|
RUP PELIKAANSTRAAT | ||||||||||||||||||||||||||||||||||||||||||||||||||||||||||||||||||||||||||||||||||||||||||||||||||||||||||||||||||||||||||||||||||||||||||||||||||||||
|
COLOFON Stad Antwerpen Dienst Ruimtelijke Planning Antwerpen Grote Markt 1, 2000 Antwerpen Tel +32 3 338 23 80 ruimtelijkeplanning@antwerpen.be
Studiebureau SWECO Belgium bv Posthofbrug 2-4, bus 1, 2600 Antwerpen T +32 2 383 06 40 1 INLEIDING 1.1 Aanleiding
Het plangebied wordt gekenmerkt door enerzijds een sterk verouderd patrimonium en anderzijds een groot aandeel braakliggend terrein. Deze omgeving heeft nood aan vernieuwing. Een bijkomende uitdaging is dat het bouwblok deels behoort tot de zogenaamde ‘Diamantwijk’. Het vigerende BPA Pelikaanstraat is zeer bepalend inzake functies en is daardoor een beperkende factor voor vernieuwing en ontwikkeling gebleken. Ook evaluatie en bijsturing van andere aspecten van het plan is nodig om kansen te creëren voor een duurzame ontwikkeling: de densiteit en het aandeel open en groene ruimte, de relatie tot het station, verbindingen met de omgeving, woonkwaliteit, maatregelen inzake klimaatadaptatie, de ruimtelijke synergie, het gemeenschappelijk gebruik van ruimtes, de leefbaarheid en de levendigheid in het gebied. De concrete aanleiding voor de opmaak van het RUP Pelikaanstraat is de intentie van de eigenaar van de braakliggende gronden, de zogenaamde ‘Pelikaansite’ om deze te ontwikkelen. Voor deze site is ontwerpmatig onderzoek uitgevoerd en werd door de ontwikkelaar in samenspraak met de stad gewerkt aan een gemeenschappelijk ontwikkelingsvisie. Het masterplan voorziet in een mix van kantoren woningen, assistentiewoningen hotel, gemeenschapsvoorzieningen en commerciële functies. Wanneer dergelijke ontwikkeling zou gerealiseerd worden, wordt het maximaal aandeel aan nevenbestemmingen in het plangebied bereikt wat de ontwikkelingsmogelijkheden in het overig deel van het plangebied uiteraard beperkt. Om die reden is een integrale aanpak voor het volledig plangebied van het BPA aangewezen. In het BPA Pelikaanstraat, maar ook in de visie van het s-RSA en de ontwikkelingsvisie voor de stationsomgeving Antwerpen Centraal “een briljant in ontwikkeling” wordt de Diamantwijk-Kievitwijk aangeduid als een strategisch project. Stedelijke vernieuwing van de Diamantwijk is gewenst en te onderzoeken. De doelstelling voor deze omgeving is het verder stimuleren van deze plek als een levendige locatie voor grootstedelijke functies die zowel op bovenlokaal maar ook op lokaal niveau dient te functioneren. Vanuit de visie “Antwerpen, de stationsomgeving, een briljant in ontwikkeling” worden volgende visie-elementen vooropgesteld voor de stationsomgeving:
De stad opteert ervoor om het BPA in zijn totaliteit te vervangen door een RUP dat meer inspeelt op de huidige noden en behoeften en dat meer flexibiliteit biedt. In het kader van dit RUP werd in opdracht van de stad een milieueffectrapport (Plan-MER PL0249) opgemaakt.
De kennisgevingsnota lag publiek ter inzage van 4 mei t.e.m. 2 juni 2017 en de Ontwerptekst werd besproken met de dienst Mer en adviesinstanties op 28 maart 2019. Het definitief Plan-MER werd op 22 mei 2019 ingediend ter goedkeuring en op 4 juli 2019 goedgekeurd door Team Mer van het Departement Omgeving Afdeling Gebiedsontwikkeling, Omgevingsplanning en –projecten. Luchtfoto vanuit de oostelijke zijde van het plangebied (bron: Bing Maps)
1.2 Situering
Het plangebied is gelegen in de 19de-eeuwse gordel van de stad Antwerpen tussen de Leien en het Centraal station. Het gebied maakt deel uit van de Diamantwijk. Het plangebied wordt begrensd door de Rijfstraat in het noorden, de Vestingstraat en de Pelikaanstraat in het oosten, de Lange Kievitstraat in het zuiden en de Lange Herentalsestraat, de Schupstraat en de Hoveniersstraat in het westen. De Carnotstraat (N12) in het noorden, de Plantin en Moretuslei in het zuiden en de Leien in het westen zijn de belangrijkste verbindingswegen in de nabije omgeving.
1.3 Relatie met het strategisch Ruimtelijk Structuurplan Antwerpen (s-RSA)
Het RUP wordt opgemaakt in uitvoering van het s-RSA en moet het generiek beleid van het s-RSA mee operationaliseren. De relatie van het RUP Pelikaanstraat tot het s-RSA is opgenomen in bijlage 3 “beleidskader”.
Situering op macroniveau (bron: open street map)
Situering plangebied op microniveau (bron: Sweco)
2 ONTWIKKELINGSVISIE 2.1 Algemene visie vanuit beleidsdocumenten
In het s-RSA maar ook in de visie van het BPA Pelikaanstraat en de visie “Antwerpen, de stationsomgeving, een briljant in ontwikkeling” wordt de omgeving van het Centraal Station aangeduid als te ontwikkelen representatieve ruimte bestaande uit een mix van stedelijke activiteiten. De Diamantwijk-Kievitwijk is hierbij aangeduid als een strategisch project en een belangrijke poort tot de stad. Doelstelling voor deze omgeving is het verder stimuleren van de potenties van de plek als kantoorlocatie en ook als locatie voor grootstedelijke functies. Stedelijke vernieuwing van de Diamantwijk is gewenst en te onderzoeken, en dit met een garantie voor het behoud van de diamantsector op deze plek. Door de functieverruiming kan de wijk een nieuw stedelijk front krijgen aan de zijde van de Pelikaanstraat in antwoord op het vernieuwde Centraal Station of de tweede voorkant van het station. Daarnaast is het van groot belang dat een gemengde stedelijke omgeving ontstaat waarbij de hele dag door activiteiten in het gebied plaatsvinden. Dit betekent dat naast kantoren ook woningen en aan het wonen gerelateerde functies gestimuleerd moeten worden. Ook handel, bedrijvigheid, recreatie, diensten, gemeenschapsvoorzieningen en toeristische functies kunnen leiden tot een gemengde stedelijke omgeving. Deze gewenste stedelijke omgeving dient zowel op bovenlokaal als op lokaal niveau te functioneren. Ruimtelijk en stedenbouwkundig moet er voldoende aandacht uitgaan naar de overgang tussen de grootschaligheid van de Diamantwijk enerzijds en de kleinschaligheid van de woonomgeving anderzijds.
2.2 Omgevingsanalyse
De uitwerking van de visie en ruimtelijke concepten is gevoed door een omgevingsanalyse. Mede op basis van de omgevingsanalyse werd gekozen om via de stedenbouwkundige voorschriften een brede waaier aan functies toe te laten en om in te zetten op een ruimtelijk ontwikkelingsmodel waarbij publiek toegankelijke en autovrije verblijfsplekken zullen ontstaan in het bouwblok. Deze omgevingsanalyse brengt aan de hand van geodata (GIS) en statistische data de omgeving op een kwantitatieve en objectieve manier in beeld en draagt bij tot de ontwikkeling van een onderbouwde gebiedsgerichte visie. De onderwerpen die in de omgevingsanalyse aan bod komen zijn :
Door de stadsdiensten werd op 3 momenten tijdens het planproces een omgevingsanalyse van het plangebied uitgevoerd, namelijk in 2016, 2018 en 2021. De analyse gebeurde op volgende statistische gebieden:
Samengevat geeft de omgevingsanalyse volgende tekorten aan. Een tekortzone in het plangebied wijst erop dat het plangebied cruciaal is vanwege bereik of nabijheid om een bepaald tekort op te lossen. Als er tekorten worden gedetecteerd in de wijk(en) waartoe het plangebied behoort, dan kan dit tekort worden opgevangen in het plangebied of op een andere locatie in de wijk, in functie van draagkracht of capaciteit. Als er zowel tekorten als tekortzones zijn in het plangebied, dan hebben deze absolute prioriteit. In de wijk Centraal Station en het plangebied zijn er tekorten en tekortzones wat betreft volgende buurtvoorzieningen: gebruiksgroen (<5 ha), speelterrein en buurtsportterrein. Voor kinderopvang betreft het enkel een tekortzone en geen tekort. Er zijn geen tekorten aan basisschool, jeugdwerk, apotheker, superette, bakker, slager en bank. In het plangebied zijn er tekorten en tekortzones wat betreft de volgende wijkvoorzieningen: hondenloopzones en samentuinen. Wijkgroen en pleinen (>5 ha) worden gezien als een tekort maar geen tekortzone. In de omgekeerde richting zijn er voor dienstencentrum enkel een tekortzones en geen tekorten. Er zijn geen tekorten voor huisarts, tandarts en supermarkt. Wat betreft stadsdeelvoorzieningen zijn er tekorten en tekortzones voor volkstuin, zwembad en recyclagecentrum. Alleen tekorten en geen tekortzones voor stadsdeelgroen (>10 ha), deeltijds kunstonderwijs beeld, fuifruimte en sporthal. Er zijn geen tekorten voor middenschool, deeltijds kunstonderwijs muziek, jeugdhuis en centrum, bibliotheek, cultuurcentrum, stadskantoor en politiekantoor. Uit de bevraging van de Antwerpse Monitor vinden de inwoners uit de wijk Centraal station dat er voldoende winkels (dagelijkse aankopen) en culturele voorzieningen zijn. Over de aanwezigheid van groen zijn ze minder tevreden.
2.3 Visie - Aspecten
Vanuit bovenstaande algemene visie werden uitdagingen en onderzoeksvragen voor het plangebied geformuleerd die beantwoord en vertaald werden in het grafisch plan en bijhorende stedenbouwkundige voorschriften. 1| de grandeur van weleer – het heropwaarderen van de Diamantwijk De Diamantwijk was van oudsher een stationsomgeving met een niet te miskennen uitstraling. Het RUP laat toe deze uitstraling van weleer opnieuw te etaleren door het verruimen van functies en typologieën van de gebouwen. Deze uitdaging wordt verder vertaald in de gewenste beeldkwaliteit van de gebouwen en van het publieke domein. Er zijn meetbare voorschriften die verhoudingen tussen de gebouwen en het publiek domein vastleggen en de schaalgrootte van de gebouwen bepalen waarbij rekening wordt gehouden met de grootschaligheid maar ook met de kleinschaligheid van de omgeving. Het RUP stimuleert de vernieuwing van het patrimonium in de Diamantwijk met behoud van de erfgoedwaarde. Er worden bijkomende ontwikkelingssmogelijkheden gegeven aan de gebouwen langsheen de beveiligde straat Schupstraat-Hoveniersstraat-Rijfstraat. 2| strategische projecten geven het station een tweede voorkant De ligging van het plangebied nabij de tweede toegang tot het treinstation aan het Kievitplein biedt een belangrijke troef die bijdraagt aan de identiteit, herkenbaarheid en de levendigheid. Deze toegang dient te worden omgevormd tot een tweede voorkant. Om deze uitdaging te kunnen realiseren wordt in het RUP een breed scala aan functies toegelaten en wordt het plangebied als het ware gelinkt aan het station via een te ontwikkelen netwerk van langzaam verkeersverbindingen, gekoppeld aan een opeenvolging van publiek toegankelijke hoven in het plangebied. 3| stedelijke dichtheid - dens maar leefbaar en groen Het RUP leunt sterk aan bij het BPA wat betreft het maximaal bouwvolume . Het opleggen van een hogere verdiepingshoogte, leidt evenwel tot een beperking van de ontwikkelbare vloeroppervlakte. De verhoging van de verdiepingshoogte heeft tot doel om de verblijfskwaliteit in de gebouwen te verbeteren en duurzaam bouwen mogelijk te maken. De strategische ligging maakt dat een hoge bebouwingsdichtheid gewenst is. Tegelijkertijd ambieert het plan een aandeel aan groen en open ruimte. In het plangebied wordt de oprichting van twee torens op aangeduide plekken toegelaten. Realisatie van de eze torens zal resulteren in een kleinere footprint van de ‘onderbouw’ en bijgevolg meer open ruimte op maaiveld of in een minder hoge ‘onderbouw’. 4| goede bereikbaarheid & duurzame modal split 12-88% De site ligt op een strategische plek in de binnenstad: naast het Centraal Station en nabij verschillende andere openbaar vervoersknooppunten zoals bus- en metrostations. Het RUP gaat uit van een duurzame modal split van 12%/88%. Dit impliceert dat 88% van de verplaatsingen van of naar het plangebied te voet, met de fiets of met het openbaar vervoer gebeuren. 5| duurzame stationsbuurt Met de vervanging van het BPA door een RUP wil de stad maximaal inzetten op duurzaamheid en klimaatadaptatie door bij te dragen aan CO2-neutraliteit tegen 2050. Dit vertaalt zich naast het streven naar een duurzame mobiliteit in verplichte aanleg van groendaken en groenaanleg op het maaiveld. 6| leesbare en kwalitatieve publieke ruimte, publieke hoven en doorsteken Het bouwblok is opgebouwd uit een bebouwingsrand, dwarsbeuken met hogere bebouwing en daartussen open plekken, de zogenaamde hoven. De maximale bouwhoogte van de bebouwingsrand is afgestemd op de dimensionering van het aangrenzend openbaar domein. De publiek toegankelijke hoven dienen kwalitatief te worden ingericht met een aanzienlijk aandeel groen en moeten goed toegankelijk zijn. Om hier levendige plekken van te maken, wordt een invulling van de plinten opgelegd met functies die dit ondersteunen. Er worden duidelijke toegangen gecreëerd tot de hoven waarvan de zichtbaarheid geaccentueerd wordt in het straatbeeld. De ruimtebeleving wordt gegarandeerd door voldoende brede en hoge doorsteken in de bebouwing. De doorsteken verbinden de publieke hoven met de omliggende straten op een logische manier om zodoende de site maximaal te integreren in de omgeving. In de niet-publiek toegankelijke hoven wordt eveneens gestreefd naar meer ruimtelijke kwaliteit en worden de bebouwingsmogelijkheden beknopt. 7| levendige buurt Het plan stelt een levendige buurt voorop. De uitdaging bestaat er in om een grotere functiemix te bekomen. De structuur van dit bouwblok laat een ontsluiting langs zowel de Pelikaanstraat / Lange Kievitstraat / Lange Herentalsestraat toe als langs de Schupstraat / Hovenierstraat / Rijfstraat. Dit biedt kansen om als het ware onafhankelijk van de beveiligde diamantwijk andere stedelijke functies te kunnen inbrengen en ontsluiten die zorgen voor een meer open, levendige en attractieve woon- en leefomgeving en benutting van het toeristisch-recreatief potentieel. Er wordt onder meer gedacht aan wonen, aan de diamant-complementaire bedrijvigheid, kleinhandel, ateliers en gemeenschaps-voorzieningen. Ook laat het RUP de totstandkoming van onderlinge relaties toe zonder de diamantsector te hinderen. Het RUP biedt bijvoorbeeld de mogelijkheid om ruimten gemeenschappelijk te gebruiken, zoals bijvoorbeeld fietsstalplaatsen en autoparkings.
2.4 Ruimtelijke concepten
De ruimtelijke concepten zijn het resultaat van het ruimtelijk onderzoek door de Stad Antwerpen. De concepten hebben enerzijds betrekking op ‘de randen’, anderzijds op het ‘binnengebied’. Met randen wordt de straatkant (Vestingsstraat / Pelikaanstraat / Lange Kievitstraat / Lange Herentalsestraat / Diamantstraten: Schupstraat-Hoveniersstraat-Rijfstraat) bedoeld. Het binnengebied betreft de ruimte tussen de randen
2.4.1 De randen
Binnen het hoofdconcept ‘de randen’ worden verschillende elementen gedefinieerd:
Verbinding van omgeving, buurten en straten Het plangebied grenst aan twee belangrijke verbindingen: de verbinding van het Centraal Station met het Stadspark via de Lange Kievitstraat en de verbinding van het Kievitplein langs de Pelikaanstraat naar De Keyserlei. Pelikaanstraat en Lange Kievitstraat zijn binnen het plangebied dan ook de meest representatieve randen of straten. Enerzijds wordt er verbinding gemaakt naar de omgeving door het versterken van de randen. Anderzijds doorbreken twee langzame verkeersassen de randen waardoor er een alternatieve ontsluiting voor voetgangers en fietsers via het binnengebied ontstaat.
Grandeur van weleer & gemengd stadsmilieu De Pelikaanstraat was een zeer levendige straat met tal van cafés waar diamanten verhandeld werden. Een minimum percentage aan commerciële ruimten of andere meer levendige functies in de plint moet deze aantrekkelijkheid en beleving weer terugbrengen. Meer specifiek gaat het om niet-diamant gerelateerd programma om zo van het plangebied een gemengd stedelijk gebied te maken. Er wordt een tweede voorkant langsheen het station gecreëerd.
Diamantbeurs met ingang langs de Pelikaanstraat (bron: Meesters van het Diamant, Erik Laureys. Foto: Yvan Verbraeck)
Verbinding op grote schaal (bron: Stad Antwerpen)
Gemengd stadsmilieu: concentratie diamantsector langs beveiligde straten (links) en tweede voorkant met gemengde functies aan Pelikaanstraat (rechts) (bron: Stad Antwerpen)
De beveiligde zone Schupstraat-Hoveniersstraat-Rijfstraat wordt bestendigd en een verdere concentratie en verdichting van het diamantgerelateerd programma is toegelaten.
Bouwhoogten – straatbreedtes – functies Aan de randen wordt gestreefd naar een evenwichtige verhouding tussen de bouwhoogte en de straatbreedtes. Daar waar de straat smal is (Lange Kievitstraat / Lange Herentalsestraat / Hoveniersstraat / Rijfstraat / Vestingsstraat) wordt een maximale bouwhoogte van 19m toegelaten. Om een representatieve voorkant (een stedelijk front) langsheen de Pelikaanstraat te realiseren in antwoord op het Centraal Station, wordt er ingezet op het verhogen van de ruimtelijke kwaliteit aan deze zijde, de ontwikkeling van een zogenaamd ‘stedelijke front’. Om overgangen te creëren tussen verschillende korrelgroottes wordt een flexibiliteit gecreëerd in de toegelaten bouwhoogte. Op die manier kan een harmonie vanuit bescheiden dissonantie ontstaan: in een broederlijk samengaan en naast elkaar staan van tijdslagen, enigszins afwijkend van elkaar maar toch deel van het geheel (cf. Beleidsnota Atypische Stadsbouwmeester 2016-2020). De nodige vrijheid wordt ingebouwd door te werken met een gemiddelde maximale bouwhoogte van 34m (met een minimum van 19m en een maximum van 45m). Zo wordt de dense bebouwing van het gebied naar de voorgrond getrokken en wordt een meer metropolitane uitstraling van de stationsomgeving gerealiseerd.
Figuur 2-1 referentiebeelde stedelijk front reeks 1
Figuur 2-2 referentiebeelden stedelijk front reeks 2
Om voldoende (leef)kwaliteit in de ruimtes te garanderen wordt het maximaal aantal toegelaten verdiepingen binnen de maximale bouwhoogte vastgelegd:
De minimale verdiepingshoogte in de plint is 3,6m ter ondersteuning van de gewenste levendigheid.
Gemiddelde maximale bouwhoogte (bron: stad Antwerpen)
Typesnedes: bouwhoogtes van het huidige BPA (blauw volume) en het nieuwe RUP (groen volume) (bron: stad Antwerpen)
Kleine schaal, grote schaal Als gevolg van de groei van de diamantsector zijn vele kleine percelen samengevoegd en is de kleine korrel stelselmatig gewijzigd in een steeds grotere korrel. De omgeving wordt daarentegen wel nog steeds gekenmerkt door kleinschaligheid (met uitzondering van het station). Specifiek voor het zuidelijk en westelijke deel (Lange Herentalsestraat en Lange Kievitstraat), wat voornamelijk een woonomgeving is, wordt er gezocht naar een harmonieuze aansluiting op de bestaande bebouwing en afstemming op de dimensionering van het openbaar domein. De Lange Kievitstraat vraagt om een opwaardering, waarbij de ‘Pelikaansite’ een impuls kan geven. De achterliggende kwalitatieve groene hoven en nieuwe toegangen kunnen eveneens een impuls vormen voor investeringen in deze straat en bijhorende publieke ruimte. Ontsluiting Een functioneel, verkeersveilig en leesbaar openbaar domein met hoge verblijfskwaliteit op maat van het Centraal Station blijft het uitgangspunt. De functies van de Pelikaanstraat als buscorridor en van de Lange Kievitstraat als belangrijke verbinding voor langzaam verkeer blijven behouden. Er worden doorsteken en toegangen voorzien voor langzaam verkeer die de verschillende hoven met elkaar en met de omliggende straten verbinden. Daarnaast is er een zekere autobehoefte vanuit het bestaande en het nog te ontwikkelen stedelijk programma. Het uitgangspunt is om de impact van het bestemmingsverkeer op de omgeving te beperken ten gunste van het langzaam verkeer en openbaar vervoer door beperking van parkeermogelijkheden en een spreiding van in- en uitritten voor het projectgebied.
Breedte en hoogte van de doorsteken staan in functie van maximale belevingskwaliteit bron: stad Antwerpen)
2.4.2 Het binnengebied
Ook voor ‘het binnengebied’ worden verschillende concepten gedefinieerd:
Het hoven-model
Mede als gevolg van de perceelstructuur is er een structuur van ‘hoven’ ontstaan. Historisch hebben percelen die breed genoeg waren zich in het binnengebied in de hoogte kunnen ontwikkelen. Het RUP gaat hierop verder en vertrekt vanuit het idee dat de tussenliggende ruimte de minimale vorm van de hoven definieert. Een hof is een ruimte in het binnengebied, zowel bebouwd als ongebouwd, dat omsloten wordt door hogere bebouwing langsheen de vier zijden. Hierdoor wordt er als het ware een tussenliggende ruimte gecreëerd. Een hof kan zowel een verhard als een groen karakter hebben. Perceeloverschrijdend denken ligt aan de basis om de potenties van dit model verder te kunnen ontwikkelen. De hoven binnen het RUP zijn afgestemd op haalbare bouwdieptes, de aanwezigheid en perimeter van onroerend erfgoed en de gewenste open ruimte. Met het uitbouwen en verfijnen van de hovenstructuur, wordt getracht om meer licht, lucht en groen in het bouwblok te brengen ten gunste van bestaande en nieuwe functies. Met de hoven kunnen nieuwe doorsteken/verbindingen en (publieke) verblijfsplekken gemaakt worden. Op deze manier wordt een tevens meerwaarde voor de buurt gecreëerd. Daarnaast speelt groen een belangrijke rol in een zeer verharde en dens bebouwde omgeving. Aandacht gaat uit naar:
In het RUP wordt een minimale kwaliteit van de hoven vastgelegd. Deze kwaliteit heeft betrekking op:
Het hovenmodel binnen het RUP wordt gekenmerkt door een zekere flexibiliteit. Rondom de hoven wordt op een aantal plaatsen gewerkt met flexibele bouwlijnen waardoor de vorm van het hof nog kan verfijnd worden in de architecturale uitwerking van een project.
Het hovenmodel: volgens BPA (links) en volgens RUP (rechts) (bron: Stad Antwerpen)
Illustraties kwaliteit van het hof (bron: Stad Antwerpen)
Gezien het plangebied op een zeer centrale en strategische locatie ligt, is een relatief hoge densiteit aangewezen. Twee hoogteaccenten, met een maximale hoogte van 100m, zijn toegelaten. De torens flankeren het centrale publiek toegankelijke hof. De torens worden op een voldoende afstand van elkaar en van de bestaande bebouwing ingepland. Het principe van densiteit versus open ruimte is hier eveneens van kracht. De torens staan in voor de realisatie van een aanzienlijk deel van de vloeroppervlakte waardoor de bouwhoogte van de onderbouw verlaagd kan worden en de verblijfskwaliteit in de publiek toegankelijke hoven wordt gegarandeerd.. Deze aanpak bevordert de leefbaarheid zowel in het plangebied als voor de onmiddellijke omgeving.
Figuur 2-3 snede door het projectgebied tussen Pelikaanstraat – Lange Herentalsestraat : potentiële ontwikkeling in overeenstemming met het RUP
Onderstaande figuren tonen de mijlpalen in de evolutie van het ontwerpproces. Initieel werd het BPA als vertrekpunt genomen. Dit resulteerde in een geconcentreerd bouwprogramma met een aaneenschakeling van bouwvolumes tot maximum 45 meter hoogte en twee accenten van 50 meter. Vervolgens werd het concept van de additionele hoogbouw geïntroduceerd : 2 torens van maximum 100 meter die als het ware als ‘overdrukklep’ functioneren om met behoud van het bouwprogramma aan en in de onderbouw meer kwaliteit toe te voegen. Tot slot werd geland met een optimalisatie van het schema met twee torens en een afgeslankte onderbouw, waarbij werd gekozen om de doorsteken in open lucht te realiseren en op die manier de bouwvolumes van elkaar los te maken en om de bouwhoogte van de volumes rond de publiek toegankelijke hoven bijkomend te verlagen in functie van de belevingswaarde en verblijfskwaliteit in het binnengebied.
Figuur 2-4 evolutie ontwerpproces projectgebied : maximale bouwhoogte 45 meter en twee accenten van 50 meter
Figuur 2-5 evolutie ontwerpproces projectgebied : initieel bouwprogramma en maximale bouwhoogte 45 meter en twee accenten van maximum 100 meter
Figuur 2-6 evolutie ontwerpproces projectgebied : verbindingen naar de hoven in open lucht, maximale bouwhoogte rond de hoven verlaagd en twee accenten van maximum 100 meter
Onderstaande figuur geeft de schaduwwerking weer van het weerhouden schema, dat als basis werd genomen voor de opmaak van het grafisch plan en de stedenbouwkundige voorschriften. De eerste kolom is een weergave van de situatie op 21/06, de tweede op 21/09 en de derde op 21/12. De eerste rij toont het verschil tussen de drie tijdstippen in het jaar om 9.00 ’s ochtends, de tweede om 12.00 op de middag en de derde om 15.00 in de namiddag.
Figuur 2-7 schaduwwerking ontwikkelingsmogelijkheden
Doorwaardbaarheid Het zuidelijk deel van het binnengebied wordt doorwaadbaar door de verschillende paden die de publieke hoven met elkaar verbinden. Deze paden zijn enkel toegankelijk voor voetgangers en fietsers en hebben overdag een publiek karakter. Initieel werd uitgegaan van een kruisvormig patroon en verbinding van en naar Pelikaanstraat, Langs Herentalsestraat, Lange Kievitstraat en Schupstraat. Naar aanleiding van reacties en bezwaren uitgebracht tijdens het openbaar onderzoek en vanuit bekommernis over de openbare veiligheid werd beslist om de verbinding met de Schupstraat niet meer als een verplichting op te leggen en een aanpassing door te voeren naar een t-vormig patroon.
paden en publiek toegankelijke hoven (bron: Stad Antwerpen) 2.5 Programma
Over heel het plangebied wordt een stedelijke mix nagestreefd. Mogelijke functies zijn handel, horeca, wonen, kantoren, bedrijvigheid en ateliers, diensten en gemeenschapsvoorzieningen. Het programma staat in relatie tot het mobiliteitsprofiel van de stationsomgeving. 2.6 Hoogbouw
Ter aftoetsing van de twee hoogteaccenten in het plangebied werd een hoogbouwrapport: fase 1 locatiegeschiktheid opgesteld. Dit rapport voldoet aan de principes opgesteld in de HoogBouwNota van de Stad. Deze nota vormt het ruimtelijke beleidskader voor hoogbouw in Antwerpen en stelt dat aanvragen voor hoogbouwprojecten afgetoetst moeten worden aan de kwaliteitseisen, richtlijnen en aandachtspunten In functie van het ontwerpend onderzoek op planniveau en van het RUP werd enkel de locatiegeschiktheid behandeld. De architecturale geschiktheid zal aan bod komen in kader van het ontwerpend onderzoek op projectniveau en bij de vergunningsprocedure. De locatiegeschiktheid kent 5 criteria: stedelijk functioneren, stadsbeeld, mobiliteit, milieueffecten en lucht en geluid.
2.6.1 Stedelijk Functioneren en stadsbeeld
Subcriteria: ruimtelijke draagkracht en structuur, meerwaarde voor stads- en buurtleven, impact op stads- en wijkniveau, impact op de privacy. In het rapport wordt gesteld dat de combinatie van de hoogbouw en de groene publiek toegankelijke pleinen (hoven) een belangrijke rol kan spelen in de profilering van de tweede voorkant van het Centraal Station en het versterken van de ruimtelijke sequentie tussen het Centraal Station en de Theaterbuurt. Het project kan, door zijn omvang, op schaal van de stad geactiveerd worden en levendige ontwikkelingen en verdichting in de Stationsbuurt stimuleren. Hierbij wordt er verder gebouwd op de bestaande torens van Kievitplein en projectgebied Kievit II. Door afwerken van de onvolledige straatgevels langs Pelikaanstraat, Lange Kievitsraat, Lange Herentalsestraat, en realisatie van twee torens in het hart van het projectgebied kan dit stadsdeel mooi afgewerkt worden en zo een nieuwe dynamiek creëren voor de volledige Diamantwijk.
2.6.2 Mobiliteit
Subcriteria: openbaar vervoer, mobiliteitstoets Hoogbouw genereert door zijn schaal een zekere geconcentreerde verhoging van verkeer. Zoals eveneens onderzocht in het Plan-MER (zie 4.1.2 Doorvertaling in het RUP) kan door het gemotoriseerd verkeer ondergronds te brengen, de ruimte op het maaiveld ingezet worden voor langzaam verkeer. Het project zal voor gemotoriseerd verkeer bereikbaar zijn langs drie toegangen: Lange Herentalsestraat, Lange Kievitstraat en Pelikaanstraat .
2.6.3 Milieueffecten
Subcriteria: windhinder en windgevaar De stad Antwerpen streeft naar een windkwaliteit van “matig tot goed windcomfort voor slenteren”. Om de windkwaliteit voldoende af te wegen werd een vergelijking gemaakt tussen 6 scenario’s:
De windanalyse van het referentiescenario toont aan dat ter hoogte van de centrale zone van de Pelikaanstraat (de autozone) het windcomfort bij slenteren als onaanvaardbaar wordt beoordeeld. Op basis daarvan kan vastgesteld worden dat het huidige straatprofiel en de straatinrichting zorgen voor een versnelling van de wind uit de noordelijke –en zuidelijke richtingen, het zogenoemde streetcanyoneffect.
Scenario 1 kan bijgevolg als neutraal beschouwd worden aangezien tussen de beide scenario’s geen verschil in het windcomfort wordt waargenomen. De wind wordt gegenereerd door de huidige profilering van de ‘streetcanyons’ en niet door de komst van de hoogbouwvolumes. Subcriterium: Geluid De toename van het omgevingsgeluid is beperkt waarneembaar, met een beperkte invloed op het comfort van de omwonenden. Compenserende maatregelen moeten overwogen worden. Subcriterium: Lucht Op het bouwterrein, in de Pelikaanstraat en in de relevante delen van de Lange Herentalsestraat wordt de toetswaarde voor stikstofdioxide (jaargemiddeld) niet overschreden. In de Lange Kievitstraat ter plaatse van het nieuwbouwproject wordt de toetswaarde voor stikstofdioxide ruimschoots overschreden. De buitenlucht in de Lange Kievitstraat lijkt daarmee ongeschikt als ventilatielucht voor woningen en andere gevoelige bestemmingen als scholen. Veiligheidshalve adviseert de stad dit uitgangspunt te hanteren voor de gehele gevelhoogte in de Lange Kievitstraat. Ook is het van belang om de toename van het verkeer door de Lange Kievitstraat vanwege het bouwplan te beperken. Dit zal gunstig zijn voor de luchtkwaliteit in de straat. Subcriterium: Licht- en zonnetoetreding De lichtstudie toont aan dat de grootste impact op de onmiddellijk omgeving van het projectgebied het grootste is aan de noordzijde, namelijk voor de bestaande gebouwen op de zuidelijke hoek van de Schupstraat en de Lange Herentalsestraat. Indien het RUP hier gerealiseerd wordt zal de afstand tot deze gebouwen ten opzichte van de hoogbouw toenemen en een verbeterde lichttoetreding conform de richtlijnen gerealiseerd kunnen worden. Het RUP legt de opmaak van een inrichtingsstudie op als informatief document bij de vergunningsaanvraag, waarbij aangetoond moet worden dat aan de kwaliteitseisen volgens de voorschriften wordt voldaan. Het opzet van het grafisch plan en bijhorende voorschriften is bewust flexibel qua bouwhoogte en inplanting van de bouwvolumes, om maatwerk toe te laten bij de uitwerking van de architectuur. Subcriterium: Energie Een bijna energieneutrale site is mogelijk door maximaal in te zetten op energiezuinige gebouwen en gebruik van hernieuwbare energie via thermische zonnecollectoren, PV-panelen en warmtepomp op beo-veld. Zowel op vlak van stedenbouwkundige en ruimtelijke inpassing, als op vlak van de verschillende milieueffectenanalyses (vooral licht- en windstudies), vormt de centrale ligging het beste scenario.
2.7 Beeldkwaliteit
Naar aanleiding van het voorontwerp RUP werd door het college opdracht gegeven aan de Stadsbouwmeester tot de opvolging en bewaking van de architecturale kwaliteit bij de ontwikkeling van de Pelikaansite. Het beeldkwaliteitsplan is in opmaak. Aspecten die in het beeldkwaliteitsplan aan bod komen zijn :
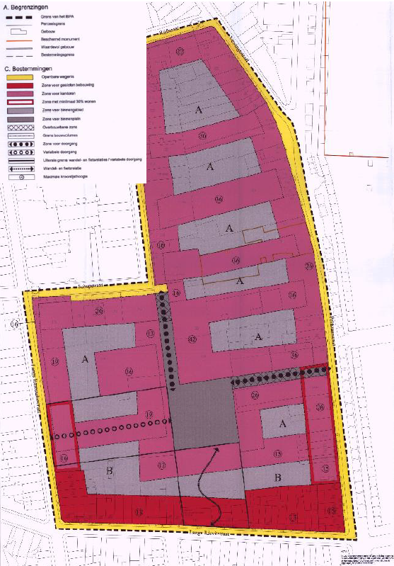
3 TOELICHTING BIJ DE VOORSCHRIFTEN 3.1 Zonering en opbouw van het RUP
In het RUP zijn algemene voorschriften van toepassing evenals bijzondere gebieds-specifieke voorschriften voor 4 bestemmingszones en een aantal overdrukken. Onderstaand wordt bijkomende verduidelijking gegeven bij de stedenbouwkundige voorschriften.
3.2 Opzet voorschriften In het RUP wordt de gewenste bestemming, inrichting en/of beheer gebiedsgericht vastgelegd. De voorschriften hebben een verordenend karakter. De stedenbouwkundige krachtlijnen worden doorvertaald in het RUP. Het RUP is een evenwichtsoefening tussen het vastleggen van bepalingen om de kwaliteit te garanderen en ongewenste ontwikkelingen te voorkomen enerzijds en voldoende vrijheid te laten om op projectniveau inventieve antwoorden te kunnen bieden aan de ontwerpopgave enin te kunnen spelen op toekomstige noden en behoeften.
3.3 Algemene voorschriften 3.3.1 Afstemming categorieën van gebiedsaanduiding
In tabelvorm wordt aangegeven onder welke categorie de bestemmingszones van voorliggend RUP resorteren. 3.3.2 Overkoepelende bepalingen
De algemene voorschriften behelzen een aantal overkoepelende bepalingen.
3.4 Bijzondere voorschriften 3.4.1 Artikel 1. Zone voor centrumfuncties
In de zone voor centrumfuncties wordt een brede waaier aan functies toegelaten. Dit maakt het mogelijk om in te spelen op tendensen en impliceert an sich een duurzame ontwikkeling. Aan de straatkant, rondom de publiek toegankelijke hoven en langs de verbindingen voor langzaam verkeer zijn op het gelijkvloers uitsluitend functies toegelaten die bijdragen tot de levendigheid van de plint. Een minimaal te realiseren percentage vloeroppervlakte wordt toegewezen voor wonen. Hierbij wordt de mogelijkheid gelaten om dit percentage ofwel onmiddellijk te realiseren ofwel om het gebouw transformeerbaar te maken om in een latere fase een functiewijziging in functie van wonen te kunnen realiseren zonder constructieve ingrepen. Dit houdt in dat bij de vergunningsaanvraag bijkomend aangetoond moet worden hoe in een latere fase het gebouw concreet (deels) voor wonen in gebruik genomen zal kunnen worden. Hierbij moet aan alle vigerende regelgeving met betrekking tot wonen voldaan worden. Een eenvoudige set van regels laat verschillende invullingen toe waarbij een onderscheid wordt gemaakt tussen de aanpak van de randen en de aanpak van het binnengebied. Het gebruik van 3 soorten bouwlijnen garandeert flexibiliteit. In bepaalde delen van deze zone worden maximale bouwhoogtes opgelegd en in andere delen wordt gewerkt met een gemiddelde maximale bouwhoogte in combinatie met een uiterste minimum- en maximum bouwhoogte. Het ‘gemiddelde’ dient telkens te worden berekend per vergunningsaanvraag maar mag daarenboven niet tot gevolg hebben dat het gemiddelde voor de betreffende afgebakende zone op het grafisch plan wijzigt. Stelselmatige verhoging van de gemiddeld bouwhoogte, in een daartoe afgebakende zone op het grafisch plan, hoger dan 34 meter wordt op die manier uitgesloten. De berekening dient te gebeuren op basis van de dakopppervlakte per bouwhoogte. Hetzelfde geldt voor de het maximaal gemiddelde van één teruggetrokken bouwlaag waar de maximale bouwhoogte wordt beperkt tot 19 meter + één gemiddelde teruggetrokken bouwlaag. 3.4.2 Artikel 2. Zone voor gemengde functies – privaat hof
De private hoven zijn aangeduid als tussenruimten in de dense bebouwingsstructuur. Deze plekken staan in voor vergroening maar laten evenzeer de mogelijkheid open om een deel te verharden en zelfs te bebouwen. 3.4.3 Artikel 3. Zone voor groen – publiek toegankelijk hof
De publiek toegankelijke hoven zullen gedurende de dag een belangrijke rol vervullen en mee zorgen voor een verhoging van de verblijfskwaliteit in de stationsbuurt. Deze hoven zijn toegankelijk via het netwerk van paden voor langzaam verkeer. Deze plekken staan in voor vergroening maar laten evenzeer de mogelijkheid open om een deel te verharden. 3.4.4 Artikel 4. Zone voor publiek domein
Deze zone is bestemd voor publiek domein in de vorm van wegenis, infrastructuur voor openbaar vervoer, langzaam verkeersvoorzieningen en groene en/of verharde verblijfsruimte in open lucht. De inrichtingsvoorschriften van dit artikel bieden de nodige flexibiliteit en garanderen desalniettemin een kwalitatieve aanleg. 3.4.5 Artikel 5. Projectgebied (overdruk)
Aanduiding van het braakliggend terrein in het plangebied en de ontwikkelingsmogelijkheden die aan deze zone worden gekoppeld vanwege de specifieke mogelijkheden die de site biedt voor de opwaardering van het plangebied. In functie van de levendigheid rond de hoven worden voor de onderbouw bepaalde voorwaarden opgelegd m.b.t. toegelaten functies. In het gedeelte van de torens boven de onderbouw, is uitsluitend wonen toegelaten en op de twee bovenste verdiepingen een ruimer programma. Op die manier wordt een aanbod van woningen met een goede verblijfskwaliteit gegarandeerd én wordt het mogelijk gemaakt dat ook bezoekers toegang verkrijgen en zicht hebben op het panorama over de stad vanuit de Pelikaansite. Gebundelde ontsluiting van de ondergrondse parking en de verplichting om op drie plaatsen aan te sluiten op de omliggende straten wordt opgelegd: langs Lange Herentalsestraat, Lange Kievitstraat en Pelikaanstraat. Enkel indien het aantal parkeerplaatsen beperkt blijft waardoor ontsluiting van de parking op twee of zelfs slechts één plaatsen beter is voor de doorstroming, verkeersveiligheid en verkeersveiligheid, dient niet aan deze voorwaarde te worden voldaan. In dat geval geldt de opgelegde rangorde : eerst Lange Herentalsestraat, vervolgens Lange Kievitstraat en tot slot Pelikaanstraat. De positieve impact van spreiding van de auto-ontsluiting van het projectgebied op de doorstroming op het omliggend wegennet, mag evenwel niet als vrijgeleide worden beschouwd. De bepalingen in de algemene voorschriften 1.6 (parkeervoorzieningen en stalplaatsen) en de bijzondere voorschriften artikel 4 (Zone voor publiek domein) leggen immers respectievelijk op dat bijkomend parkeeraanbod in het projectgebied ten opzicht van 0,5 parkeerplaats per 100 m2 theoretisch realiseerbare bbvo enkel toelaatbaar is in zoverre dit geen bijkomende verkeersgeneratie tot gevolg heeft én dat bij de inrichting van het openbaar domein rekening gehouden moet worden met zowel de verkeersfunctie, de gewenste verblijfskwaliteit en de ruimtelijke kwaliteit. De aanvrager zal op een afdoende manier moeten aantonen dat de aanvraag in overeenstemming is met al deze bepalingen (zie ook Algemene voorschriften 1.10 Globale inrichtingsvisie). 3.4.6 Artikel 6. Verbinding voor langzaam verkeer (indicatieve aanduiding in overdruk)
Inrichtings- en beheervoorschriften voor een netwerk van paden voor langzaam verkeer. Deze verbindingen moeten publiek toegankelijk zijn voor voetgangers en fietsers maar ook voor nooddiensten.
3.5 Terminologie
De definities van de begrippen zijn deze zoals algemeen toegepast door de stad Antwerpen. De algemeen gehanteerde begrippen, zijn aangevuld met begrippen specifiek voor voorliggend RUP.
3.6 Voorschriften die worden opgeheven
Bij de inwerkingtreding van dit RUP worden de bestemmingen en de bijhorende voorschriften van het BPA Pelikaanstraat opgeheven en vervangen door dit RUP.
4 GEVOLGEN EN ACTIES TER REALISATIE 4.1 Verplichte sectorale effectenstudies 4.1.1 Plan-MER
Voor voorliggend RUP werd in een Plan-MER de impact op het milieu afgetoetst. Het plan-MER (PL0249) is te vinden in de MER-dossierdatabank van de Vlaamse overheid. Het besluit van Team MER is toegevoegd in bijlage.
4.1.1.1 Doorvertaling in het RUP
Binnen dit plan-MER worden maatregelen en aanbevelingen opgenomen welke doorwerking moeten kenen in het verdere verloop van het project, meer specifiek enkele elementen welke vertaald moeten worden in het RUP. In onderstaande tabel wordt een overzicht gegeven van deze maatregelen en de wijze waarop deze zijn verwerkt in het RUP:
Daarnaast werden ook enkele aanbevelingen opgelijst:
4.1.1.2 Doorvertaling in de vergunningsaanvraag
Het Plan-MER lijst eveneens verschillende maatregelen op die niet in het RUP doorvertaald kunnen worden maar van toepassing zijn op de vergunningsaanvraag. Dit zijn maatregelen op projectniveau.
4.1.1.3 Kleine wijzigingen
Naar aanleiding van voortschrijdend inzicht op basis van ontwerpend onderzoek ikv het Hoogbouwrapport fase 1 Pelikaansite en het Beeldkwaliteitsplan Architectuur Pelikaansite en de adviezen op het voorontwerp RUP met betrekking tot de dichtheid, configuratie van de bebouwingsvelden en de hoogbouw in het algemeen, werd besloten tot een alternatieve positie van de oostelijke toren ten opzichte van de configuratie zoals onderzocht in het plan-MER. Door de bevoegde MER-deskundigen werd onderzocht of de betreffende wijziging beschouwd kan worden als een kleine, niet essentiële wijziging aan het plan. Er werd nagegaan of het plan-MER nog volstaat, of de eventueel gewijzigde milieueffecten die zullen optreden ten gevolge van de kleine wijziging nog in lijn zijn met wat er in het plan-MER staat beschreven. Meer bepaald werd nagegaan of er bijkomende (aanzienlijke) negatieve effecten veroorzaakt worden en er bijkomende milderende maatregelen vereist zijn. Uit de analyse blijkt dat de planwijziging ten opzichte van het plan zoals bestudeerd in het plan-MER, zijnde de verplaatsing in zuidelijke richting van het oostelijk hoogbouwvolume, geen bijkomende (aanzienlijke) negatieve effecten zal veroorzaken, dat de milieueffecten in lijn liggen met wat er in het plan-MER staat beschreven en dat er geen bijkomende milderende maatregelen noodzakelijk zijn. De Evaluatienota Wijzigingen mbt hoogbouw tav het Plan-MER is toegevoegd in bijlage.
4.1.2 RVR-toets
De RVR-toets besluit dat er geen ruimtelijke veiligheidsrapportage van toepassing is.
Het besluit van de RVR-toets is toegevoegd in bijlage
4.2 Register van percelen waarvoor planbaten, planschade, kapitaalschade of gebruikerscompensatie kan verschuldigd zijn
Het RUP kan geen aanleiding geven tot planschade, planbaten en/of compensatie conform de richtlijn.
5 BIJLAGE 1: BESTAANDE TOESTAND 5.1 Historiek
Aanvankelijk vestigde de diamantsector zich aan de Pelikaanstraat en werden diamanten verhandeld in de cafés nabij het treinstation. Omwille van veiligheidsredenen trok de sector zich meer en meer terug langs de zogenaamde ‘diamantstraten’ of ‘binnenstraten’, zijnde de Schup-, Hoveniers- en Rijfstraat. Verschillende gebouwen en percelen langs de rand van het bouwblok (Vestingstraat, Pelikaanstraat, Lange Kievitstraat) zijn, onder andere hierdoor, ingevuld door andere functies, leeg komen te staan of nog braakliggend. Als gevolg van de groei van de diamantsector zijn in de loop der jaren vele kleine percelen samengevoegd tot grotere percelen die sterk contrasteren met het omliggende weefsel. Er is een evolutie merkbaar van kleinschaligheid naar grootschaligheid. Mede als gevolg van de perceelstructuur is er een hofstructuur ontstaan. Percelen die breed genoeg waren, hebben zich in het binnengebied in de hoogte ontwikkeld. Door de ruimtelijke verschuiving van de diamantsector naar een meer beveiligde zone langsheen de Diamantstraten enerzijds en de schaalvergroting anderzijds, is de harmonie tussen de straatbreedte en de bebouwing in deze straten verloren gegaan. De hoogte van de bouwblokken neemt toe naar het binnengebied. Deze hoge densiteit is niet waarneembaar in de straten omdat deze smal zijn.
Historische kaart (bron: Scheepers, 1886)
5.2 Bestaande functies en morfologie
Het plangebied bevindt zich ten westen van het Centraal Station en kent een hoge dichtheid. Dit wordt niet zo ervaren vanuit de omgeving. Het grootste deel van de vloeroppervlakte is immers gerealiseerd achter de rand van het bouwblok. Het gebied is grotendeels verhard en bebouwd. Het grootste aandeel in het noordelijk deel wordt ingevuld door kantoren gelinkt aan de diamantsector. Deze kantoor-ontwikkelingen zijn grootschalig van aard. In de Lange Kievitstraat bevinden zich verschillende rijwoningen en enkele detailhandelszaken. De bebouwing is hier veel kleinschaliger. Het aandeel aan voorzieningen binnen het plangebied is minimaal. In het zuidelijk deel, grenzend aan de noordzijde van de woningen, ligt een groot braakliggend terrein van circa 15.000 m2, de ‘Pelikaansite’ genoemd. Een deel van dit terrein wordt momenteel gebruikt als parking. De bouwhoogte varieert over het plangebied. Centraal bevinden zich de hoogste kantoorgebouwen, tot 10 bouwlagen hoog. In het noorden, ter hoogte van de Rijfstraat, variëren deze van 3 tot 6 bouwlagen. De woningen in de Lange Kievitstraat bestaan uit 4 bouwlagen onder een plat dak en beschikken veelal over een commercieel gelijkvloers
3D-beeld bestaande toestand (bron: stad Antwerpen)
Luchtfoto 2017, Bouwhoogten en functies (bron: BPA Pelikaanstraat)
De diamantsector is actief langsheen de Schupstraat-Hoveniersstraat-Rijfstraat, ook wel gekenmerkt als beveiligde straat ter ondersteuning van de diamanthandel. In Antwerpen gaat het grotendeels over het verhandelen van ruwe diamant in de vier diamantbeurzen met hun ingang langsheen deze centrale straat. Twee van deze beurzen vallen binnen het plangebied en reiken tot aan de Pelikaanstraat ten oosten. De originele ingangen langs deze straatkant zijn echter gesloten. Het zijn deze beurzen die de dwarse gebouwenmorfologie tot stand hebben gebracht.
Schaal gebouwen Lange Kievitstraat en Lange Herentalsestraat (bron: Stad Antwerpen)
Terreinsnedes bestaande toestand (bron: stad Antwerpen) Diamantsector en bijhorende beveiligde zone (bron: stad Antwerpen)
5.3 Erfgoed
Binnen het plangebied bevinden zich verschillende gebouwen met een erfgoedwaarde. Het gaat om 7 panden opgenomen op de inventarislijst bouwkundig erfgoed en één beschermd monument. Het beschermd monument behelst een beurs voor diamanthandel, een imposant eclectisch gebouw van het begin van de 20e eeuw. Het gebouw is beschermd wegens zowel een belangrijke artistieke als historische waarde. Volgende panden zijn opgenomen in de lijst van bouwkundig erfgoed:
Foto’s van de 6 panden opgenomen in de inventaris voor bouwkundig erfgoed, uitgezonderd Diamantbeurs (bron: geoportaal erfgoed)
Het belang van de diamantsector in deze wijk weerspiegelt zich in het huidige erfgoed. De aanwezigheid van het onroerend erfgoed bepaalt mee de ligging van de hoven.
Het monument (rood) en aanwezige bouwkundig erfgoed (bron: geopunt)
5.4 Bestaande groenstructuur
Doorheen de jaren is er in het gebied een hofstructuur ontstaan. Deze hoven zijn ook vastgelegd in het BPA Pelikaanstraat. Hoven zijn echter niet noodzakelijk groene ruimtes, maar kunnen ook verhard zijn. Ze worden afgebakend door hogere bebouwing langs alle zijden waardoor er verschillende ‘open ruimtes’ of zones met lagere bebouwing in het bouwblok ontstonden. Binnen het plangebied is weinig groen en beplanting aanwezig. Het aanwezige groen bevindt zich voornamelijk in enkele hoven en bestaat overwegend uit gazon. Op de braakliggende Pelikaansite staan een aantal bomen. Op de rand van het plangebied bevindt er zich een enkele boom in de Pelikaanstraat, aangeplant op de strook tussen de rijbaan en het fietspad. Groengebieden van enige omvang in de onmiddellijke omgeving zijn het Stadspark en de Zoo.
Bestaande groenstructuur (bron: Geopunt)
5.5 Bestaande ontsluiting en parkeren
Het gebied grenst in het oosten aan de galerij van het Centraal Station. Het Centraal Station is een internationaal openbaar vervoersknooppunt met verbindingen op zowel internationaal, nationaal als regionaal niveau. In functie van de goede doorstroming van het openbaar vervoer functioneert de Pelikaanstraat ter hoogte van het station grotendeels als vrije buscorridor en wordt bijgevolg privaat gemotoriseerd verkeer geweerd. Vanuit de Simonsstraat en de Lange Kievitstraat is de Pelikaanstraat voor gemotoriseerd verkeer enkel toegankelijk voor bussen van De Lijn en taxi’s en tijdens venstertijden ook voor bestemmingsverkeer. Richting het zuiden loopt de Pelikaanstraat over in een gemengde openbaar vervoersas. Het station is ondergronds rechtstreeks verbonden met de premetrostations Astrid en Diamant waar de tramlijnen 2, 3, 5, 6, 8, 9 en 15 genomen kunnen worden. Bovengronds op het Koningin Astridplein stoppen eveneens de tramlijnen 10, 11, 12 en 24. Het Koningin Astridplein en de Franklin Rooseveltplaats, de knooppunten van streekbusvervoer, liggen op loopafstand van het plangebied. Daarnaast stoppen op andere plaatsten vlakbij het plangebied ook verschillende stads- en streekbuslijnen. Deze bussen halteren onder meer in de Pelikaanstraat (haltes: Lange Kievitstraat, Premetrostation Diamant, Centraal Station perron 11), de Quinten Matsijslei (halte: Rubenslei) en de Quellinstraat (halte: Quellin perron 2). Voor het gemotoriseerd verkeer wordt het plangebied ontsloten via de Vestingstraat en de Pelikaanstraat in het noorden en oosten, de Lange Kievitstraat in het zuiden en de Lange Herentalsestraat in het westen. De Carnotstraat (N12) in het noorden, de Plantin en Moretuslei (N184) in het zuiden en de Leien (N1) in het westen zijn de belangrijkste invalswegen naar de binnenstad. De Schupstraat, de Hoveniersstraat en de Rijfstraat, de noordelijke en westelijke grenzen van het plangebied, zijn in hoofdzaak toegankelijk voor voetgangers. Gemotoriseerd verkeer wordt hier enkel toegelaten in functie van leveringen, voor politie, voor veiligheidspersoneel en voor bepaalde werknemers van de diamantsector. Deze straten zijn afgesloten met slagbomen. Binnen in het plangebied zijn vandaag de dag geen publiek toegankelijke doorsteken aanwezig. De Pelikaanstraat is een hoofdroute binnen het netwerk van bovenlokale functionele fietsroutes. Het betreft een fiets-o-strade. Zowel de Lange Kievietstraat als de Pelikaan-straat zijn aangeduid als recreatieve fietsroutes. Op het kruispunt van beide straten situeert zich fietsknooppunt nr. 13. De Lange Kievitstraat functioneert als een ruggengraat in deze omgeving voor fietsers en voetgangers tussen het Kievitplein en het Stadspark. Het vormt dus een belangrijke verbinding voor langzaam verkeer. Binnen het plangebied bevinden zich enkele private parkings. Op het braakliggend terrein van de Pelikaansite is eveneens een private parking in open lucht aanwezig. In de Lange Kievietstraat en in de Lange Hertentalsestraat kan geparkeerd worden langs één zijde van de rijweg. Volgende publieke parkings bevinden zich in de nabije omgeving:
Netplan (bron: De Lijn)
Bovenlokaal Functioneel Fietsroutenetwerk (bron: Mobiel Vlaanderen)
In de Lange Herentalsestraat, ter hoogte van de Schupstraat, zijn enkele taxistand-plaatsen aanwezig.
Langzaam verkeer en openbaar vervoer (bron: Stad Antwerpen)
5.6 Wandeling doorheen het gebied
fotostandpunten (bron: Bing-Maps)
6 BIJLAGE 2: JURIDISCH KADER 6.1 Algemeen overzicht
6.2 Bestemming: BPA Pelikaanstraat
Het BPA Pelikaanstraat werd goedgekeurd op 3 april 2007. Het BPA voorziet in een mix van kantoren als hoofdbestemming én wonen of andere functies als nevenbestemming. In het BPA worden volgende bestemmingszones bepaald:
Dit BPA had tot doel in te spelen op de toekomstige uitbreiding en herstructurering van de Diamantwijk. Aanleiding tot de opmaak was en is de groei vanuit een internationaal platform voor diamanthandel naar een meer gediversifieerde sector. De juwelen- en diamantensector kennen immers een verticale integratie die in de toekomst een verbreding brengt in de economische activiteiten. In het najaar 2002 werd de bouwblokstudie Pelikaanstraat opgemaakt voor de ontwikkeling van een aantal braakliggende percelen en leegstaande gebouwen in de Diamantwijk. Meer specifiek betreft het een aantal percelen vervat in faillissementen uit de jaren ’80-‘90. Door de ontwikkeling van de stationsomgeving als H.S.T.-locatie en het vervallen van het BPA nr.9 ontstond er een sterke speculatie op deze percelen. De verschillende ontwerpen met zeer hoge bebouwingsdichtheid deden de grondprijs stijgen, waardoor de effectieve ontwikkeling stagneerde. Om de ontwikkeling van de Diamantwijk terug te initiëren werd er vanuit de stad een visie opgebouwd omtrent de site. Hiervoor werd er vanuit een overgang tussen twee contexten, namelijk enerzijds de hoge densiteit en functionele mix van de stationsomgeving en anderzijds de lage densiteit van de woonwijk tussen de Pelikaanstraat en het Stadspark, gezocht naar een aantal kwalitatieve en rendabele invullingen voor de specifieke sites. Het BPA werd opgemaakt om verdere speculatie op de gronden te vermijden door het vastleggen van bouwenveloppen en andere randvoorwaarden. Volgende bestemmingen worden afgebakend in het BPA: zone voor gesloten bebouwing, zone voor kantoren, zone voor binnenruimte, zone voor binnenplein en zone voor openbare wegenis. De maximaal realiseerbare oppervlakte per functie is als volgt:
Grafisch plan BPA Pelikaanstraat
7 BIJLAGE 3: BELEIDSKADER 7.1 Relatie met de bovenlokale structuurplannen 7.1.1 Ruimtelijk Structuurplan Vlaanderen (RSV)
Goedgekeurd bij besluit door de Vlaamse Regering d.d. 23/09/1997 en later gewijzigd.
Volgende selecties zijn relevant: Binnen het RSV worden vier basisdoelstellingen naar voorgeschoven waar voorliggend RUP inspeelt op de eerste: de selectieve uitbouw van de stedelijke gebieden, het gericht verweven en bundelen van functies en voorzieningen waaronder de economische activiteiten binnen de stedelijke gebieden; daarbij gaat absolute prioriteit naar een zo goed mogelijk gebruik en beheer van de bestaande stedelijke structuur. Deze doelstellingen worden vertaald in vier ruimtelijke principes van de gewenste ruimtelijke structuur, waaronder hier van toepassing:
De gewenste ruimtelijke structuur wordt verder gespecifieerd voor de Stedelijke Gebieden als structuurbepalende component. Volgende aspecten zijn van belang:
Antwerpen wordt aangeduid als grootstedelijk gebied. Dit gebied heeft uitzonderlijke potenties om belangrijk aandeel van de groei inzake bijkomende woongelegenheden, stedelijke voorzieningen en ruimte voor economische activiteiten op te vangen en dit ondersteund door een stedelijk netwerk van internationaal niveau, de uitstekende ontsluiting door hoofdinfrastructuren (weg, spoor, water), de aanwezigheid van belangrijke economische activiteiten, het hoogwaardige voorzieningenapparaat en het optimale verzorgingsniveau.
De stedelijke gebieden zijn multifunctionele locaties. Om de aanwezige dynamiek en potenties aan te wenden, is het noodzakelijk in stedelijke gebieden kwalitatieve (woon-en) werklocaties te behouden en te versterken. Het versterken van de multifunctionaliteit door verweving kan de sociale, economische en culturele slagkracht en dynamiek van de stedelijke gebieden ten goede komen.
Kantoren hebben een dicht ruimtegebruik en vragen dan ook een opvang van deze verkeersstroom op een duurzame manier. De nabijheid van belangrijke knooppunten van openbaar vervoer staat voorop. Volgende aspecten zijn van belang: bereikbaarheid, leefbaarheid, verkeersveiligheid, multimodaliteit en kwaliteit infrastructuur.
De private collectieve ruimten moeten in samenhang met de omgevende openbare ruimte worden geconcipieerd en ingericht. Voor de openbare ruimte moeten kwaliteitsverbetering, het openbare karakter, de publieke functie en de veiligheid de uitgangspunten zijn. Een fundamentele herwaardering van de openbare ruimte in het stedelijk gebied is een onmiskenbare voorwaarde om de stedelijke vernieuwing en zeker het stedelijk wonen terug aantrekkelijk te maken.
7.1.2 Beleidsplan Ruimte Vlaanderen (BRV)
De Vlaamse Regering keurde op 20 juli 2018 de strategische visie van het Beleidsplan Ruimte Vlaanderen (BRV) goed. De Vlaamse Regering heeft de ambitie om het Beleidsplan Ruimte Vlaanderen (BRV) te realiseren als opvolger van het RSV. De strategische visie omvat een toekomstbeeld en een overzicht van beleidsopties op lange termijn, met name de strategische doelstellingen. De Vlaamse Regering heeft hiermee een beleidslijn uitgezet die een vernieuwde filosofie en aanpak in het ruimtelijke beleid wil inzetten. De strategische visie van het BRV heeft niet het statuut van een ontwerp van ruimtelijk beleidsplan, omdat er nog geen ontwerp-beleidskaders zijn goedgekeurd. Het biedt een basis voor regeringsbeslissingen ter realisatie van de visie. Een van de grote inhoudelijke krachtlijnen van het Beleidsplan Ruimte Vlaanderen is het bestaande ruimtebeslag beter en intensiever te gebruiken om zo de druk op de open ruimte te verminderen. Gezien er in het plan hoogbouw wordt voorzien en een sterke verdichting wordt nagestreefd, op een strategische locatie, wordt aan deze ambitie tegemoet gekomen.
7.1.3 Ruimtelijk Structuurplan Provincie Antwerpen (RSPA)
Goedgekeurd bij ministerieel besluit d.d. 10/07/2001 en later gewijzigd. In het kader van RSPA behoort het plangebied tot de hoofdruimte ‘Antwerpse fragmenten’. Dit is het deel van de Vlaamse ruit dat op grondgebied van de provincie Antwerpen gelegen is. Karakteristiek voor de hoofdruimte is de sterke verwevenheid van functies en activiteiten en de ambitie om te streven naar een stedelijke vernieuwing. De hoofdruimte ‘Antwerpse fragmenten’ wordt nog verder uitgewerkt in zeven deelruimten. Het plangebied is gelegen in de deelruimte ‘Grootstedelijk Gebied Antwerpen’. Deze deelruimte behoudt een centrale rol en biedt ruimte aan de meest hoogwaardige functies. Dat geldt voor wonen, bedrijvigheid, dienstverlening, grootschalige voorzieningen, (bv cultuur, gezondheidszorg, recreatie,..), distributie of verkeer. Een dergelijke concentratie van functies mag niet worden verzwakt door nieuwe polen van dit niveau te creëren. In deze deelruimte wordt het zwaartepunt gelegd op de ruimtelijk-economische structuur van de provincie.
7.2 Relatie met het Strategisch Ruimtelijk Structuurplan Antwerpen (s-RSA)
Het s-RSA werd goedgekeurd door de deputatie van de provincie Antwerpen op 21 december 2006. Voor het s-RSA is in 2013 het initiatief genomen om een evaluatie en actualisatie door te voeren. Het evaluatierapport werd op 19 december 2014 goedgekeurd en hierna werd de actualisatiefase opgestart. Het strategisch ruimtelijk structuurplan s-RSA opteert voor een subtiel ingrijpen op wat Antwerpen eigen is. Het tracht met een beperkt aantal strategische acties een maximaal stimulerend effect te hebben op de plek en zijn omgeving. Daartoe formuleert het een generiek en een gebiedsgericht actief beleid. Deze zijn complementair en kunnen niet los van elkaar worden bekeken.
7.2.1 Generiek beleid
Het generiek beleid beoogt de opmaak van een algemeen referentiekader dat van toepassing is op heel de stad. Het tracht zeven beelden uit het collectief geheugen te versterken: Antwerpen als Waterstad / Ecostad / Havenstad / Spoorstad / Poreuze stad / Dorpen en Metropool / Megastad. Voor elk van deze beelden is een visie ontwikkeld die op haar beurt wordt vertaald in maatregelen en acties. Het plangebied of de onmiddellijke omgeving komt aan bod in nagenoeg elk van deze beelden. Spoorstad Het openbaar vervoer, treinen en tramlijnen, kunnen een positieve rol spelen in het verwezenlijken van een nieuwe stedelijke concentratie, waarbij de verdere spreiding, fragmentatie en gebrek aan stedelijkheid in het grootstedelijk gebied wordt tegengegaan. De rol van het openbaar vervoer moet verder versterkt worden. Deze oplossingen, samen met de uitwerking van een fijnmazige en optimale verdeling van het verkeer over het lager netwerk van de stad, moet van de stad een ruimtelijk ‘open’ systeem maken, net zoals haar economie en haar samenleving. Dit is coherent met de mogelijkheden van haar noord-zuid geografische oriëntatie en met de kansen van haar fysische expansie. Binnen het beeld van de spoorstad wordt gesteld dat openbaar vervoer een positieve rol kan spelen in het verwezenlijken van een nieuwe stedelijke concentratie, waarbij de verdere spreiding, fragmentatie en gebrek aan stedelijkheid in het grootstedelijk gebied wordt tegengegaan. Dit houdt onder andere in dat nieuwe grote ontwikkelingsgebieden zich situeren op belangrijke knooppunten van openbaar vervoer. Om het gebruik van het openbaar vervoer aan te moedigen en als oplossing om zich beter binnen de Ring te verplaatsen, wordt een goed uitgerust parkeer- en overstapsysteem uitgewerkt. Er wordt op lange termijn gestreefd naar een beperking van het parkeren, met uitzondering van bewoners- en kortparkeerders. Hieraan gekoppeld wordt Antwerpen Centraal aangeduid als transferium: een overstapplaats op openbaar vervoer, gelegen op een goed ontsloten plek voor voetgangers, fietsers en voertuigen. Transferia verzamelen het lokaal verkeer en lokale gebruikers en geven toegang tot regionaal en (inter)nationaal openbaar vervoer.
Selecties voor de spoorstad: Antwerpen een open stad (bron: s-RSA)
Selecties voor de poreuze stad (bebouwde ruimte): aanpassende verschijningsvormen (bron: s-RSA)
De stedelijke boulevards verdelen het verkeer tussen de verschillende stadsdelen (districten). De stedelijke boulevard Roderveldlaan – Posthofbrug en Pelikaanstraat verbindt het stedelijk centrum van Pulhof met de omgeving centraal station, langs het spoorwegviaduct van Berchem. De vernieuwing van het station Antwerpen Centraal moet worden verder gezet, afgestemd met de ontwikkelingen in de omgeving.
Poreuze stad De Diamantwijk is geselecteerd als een deelgebied van de 19de-eeuwse gordel, waar hoge prioriteit aan wordt gegeven. Het doel van deze opdeling in deelgebieden is het opmaken van gebiedsgerichte RUP’s. Vanuit de doelstelling om het sociaal-maatschappelijk, cultureel, economisch evenwicht in verschillende wijken te herstellen via ingrepen in de morfologie, de leegstand terug te dringen en de porositeit te verhogen, kunnen een aantal richtlijnen aangehaald worden die ondersteunend werken bij de opmaak van RUP’s. Op basis van de bestaande ruimtelijke structuur worden een aantal gebiedstypes aangeduid, met daaraan gekoppeld een specifiek ruimtelijk beleid. De stationsomgeving van Antwerpen Centraal is aangeduid als focusgebied. In de focusgebieden kan prioriteit worden verleend aan het opzetten van bouwblokprojecten als strategisch, stedenbouwkundig instrument ter ondersteuning van stadsontwikkeling. Hierbij wordt, op basis van ontwerpmatig onderzoek, nagegaan hoe een bouwblok ruimtelijk, economisch en sociaal, op korte termijn, opgewaardeerd kan worden. Daarbij wordt een proces en een organisatie opgestart in functie van de uitvoering van minimum één deelproject binnen het bouwblok en als maximum het ganse bouwblok. De bouwblokprojecten worden in hoofdzaak geconcentreerd in de 'modernistische' hoogbouwwijken, gebieden met grote dichtheden, gebieden met industriële gebouwen in transformatie, residentiële gebieden onder commerciële city-druk en gebieden met significante leegstand boven winkels. Voor dit soort gebieden is dit de strategie die vaak het meest bruikbaar is en het beste resultaat kan opleveren. Het plangebied is aangeduid als bouwblokproject.
Daarnaast worden zowel de Vestingstraat als de Pelikaanstraat aangeduid als winkelstraat.
Dorpen en metropool Antwerpen heeft een lange traditie van verschillende naast elkaar bestaande dorpen in een metropool en van grootstedelijke functies, gelokaliseerd in die dorpen. Vandaag is de onderlinge relatie tussen de dorpen en de metropool aan het evolueren. Antwerpen maakt op zijn beurt deel uit van een nieuwe stedelijke vorm, het grootstedelijk netwerk of de ‘Megastad’. Nieuwe relaties moeten ontwikkeld worden tussen de dorpen en de metropool binnen de Megastad.
Belangrijke knopen voor openbaar vervoer in de spoorstad kunnen de belangrijkste locaties worden voor nieuwe kantoorontwikkelingen binnen het metropolitaan gebied. Als HST-station is Antwerpen-Centraal de locatie met de grootste internationale potentie. Het plangebied maakt deel uit van de diamant- en juwelencluster. Deze cluster moet ruimte en voorzieningen voorzien voor industriële activiteiten gelinkt aan de diamant en juwelen, voor een verdeelcentrum voor diamanten en voor aanverwante detailhandel en winkels. De doelstelling van het ruimtelijk structuurplan is om een netwerk te definiëren dat de bestaande productiegebieden in het diamantdistrict en de aanverwante detailhandel verbindt met andere aantrekkelijke sectoren binnen de stad, bijvoorbeeld mode. Dit netwerk kan een goede relatie bepalen die zowel stedelijke als economische elementen versterkt. Bovendien moet nagedacht worden over de beste plek voor nieuwe sites voor diamant(klein)handel; het ruimtelijk structuurplan ondersteunt de idee van een ‘diamanticoon’ in de nieuwe hal van het centraal station, zo wordt haar rol als toegangspoort voor de naburige detailhandelsplekken – die beter gedefinieerd moeten worden – gekoesterd. Het is belangrijk om de activiteiten uit te breiden en om de randactiviteiten gelinkt aan de diamantsector te versterken. Dat kan de bijzondere werkkracht die niet meer nodig is voor de productie van de diamant opvangen. Bovendien moet de mogelijkheid onderzocht worden om meer te investeren in gespecialiseerd onderwijs, door het realiseren van nieuwe scholen, zowel voor beroepsonderwijs als voor management of juweelontwerp; ook dit kan gelinkt worden aan de mode- of designsector. Borgerhout kan een goede locatie zijn voor deze structuur, gelinkt aan bestaande voorzieningen als het Designcentrum, maar ook de omgeving Flanders Fashion Institute of de Diamantwijk.
De positie van de stad als zenuwcentrum van de diamant moet verdedigd worden. Het voorziene verlies aan jobs in de industriële diamantbedrijvigheid kan gecompenseerd worden door de creatie van meer jobs in de commerciële diamantbedrijvigheid. Naast de grote internationale bedrijven is er een belangrijk aantal middelgrote bedrijven en ‘niche’-bedrijven. Deze staan onder hevige druk. Diamanthandelaars en verkopers zijn vaak direct of indirect betrokken in de productie van juwelen. Tot op vandaag is de handel in juwelen, zowel ruwhandel als kleinhandel, zo goed als afwezig in Antwerpen. In relatie tot de diamant zijn er grote mogelijkheden voor Antwerpen als een distributiecentrum van juwelen. De handel in juwelen leidt ook tot belangrijke nevenactiviteiten zoals productie, transport, financiën, verzekeringen en bezoekers. De creatie van een cluster van diamant en juwelen kan nieuwe activiteiten stimuleren en nieuwe jobs voortbrengen. Het aanbieden van hoogwaardige ruimte voor de vernieuwde diamantsector is noodzakelijk. De diamantsector en de aanverwante functies moeten zichtbaar worden in de wijk, in de stad. Zo bijvoorbeeld kan de wijk een nieuw stedelijk front krijgen aan de zijde van de Pelikaanstraat in antwoord op het vernieuwde centraal station, kan de Vestingstraat heringericht worden, kunnen bakens in de wijk als referentie naar de diamantsector gerealiseerd worden, ... . Daarnaast kan het opportuun zijn de Diamantwijk op te laden met al dan niet economische functies die complementair zijn aan de diamanthandel, zodat de wijk levendig en dynamisch blijft. De berm van de spoorweg kan opgewaardeerd worden, ... . Wat de kantoren betreft, is het doel om in Antwerpen (en de regio) een aantal aantrekkelijke kantoorlocaties te ontwikkelen waar hoofdkantoren de hoofdactiviteit zijn. Naast de renovatie van het bestaand patrimonium, zal er anderzijds ook een substantiële uitbreiding nodig zijn van de kantooroppervlakte met nieuwe locaties om het huidige marktaandeel binnen Vlaanderen en op de internationale markt te kunnen handhaven. Nieuwe uitbreidingen dienen vooral te mikken op hoogkwalitatieve ontwikkelingen. Het streven is om de nieuwe grootschalige kantoorontwikkelingen te sturen naar de geselecteerde zones. Op deze wijze kunnen enerzijds de mobiliteitsstromen gericht worden naar de best bereikbare plekken (combinatie openbaar vervoer en weg) en kunnen de stedenbouwkundige relaties met de overige functies uitgewerkt worden. Anderzijds voorkomt men dat een overaanbod aan kantoren gecreëerd wordt met als gevolg dat de kantoren aan ‘dumpingprijzen’ verhuurd worden. De kantoorontwikkelingsgebieden zijn, met uitzondering van het noorden van het Eilandje (en luchthaven van Deurne), ook in het afbakeningsvoorstel van het grootstedelijk gebied Antwerpen (door het Vlaams gewest) geselecteerd als ontwikkelingspolen niveau 1 (internationaal) of niveau 2 (grootstedelijk), en dus coherent met de mobiliteitsinzichten en planningsstrategieën. Antwerpen centraal (57.000 + 35.000 m2) is als zoekzone voor kantoorlocaties aangeduid. Hier worden volgende gebiedsgerichte ontwikkelingsperspectieven aangehaald die eveneens een ruimtelijke hiërarchie bepalen.
7.2.2 Actief beleid
Het plangebied situeert zich binnen de omgeving van het Centraal Station. Het Centraal Station is een sleutelgebied in Antwerpen: het station zelf, de nabijgelegen Diamantwijk, de Zoo en de Keyserlei-Meir. Sinds enkele jaren wordt er een belangrijk en thematisch uitgesproken programma uitgevoerd, met o.a. de uitbouw van meer representatieve handelsruimten voor de diamantsector. De doelstellingen voor het programma Centraal Station zijn o.a.:
Diamantwijk-Kievitwijk wordt in het structuurplan aangeduid als strategisch project. Voor dit gebied wordt volgend programma vooropgesteld: In de Diamantwijk en de Kievitwijk wordt de stad geconfronteerd met verschillende bovenlokale spelers. Meer en meer wordt duidelijk dat de stad de regierol in deze buurt in handen moet nemen, zodat ook de lokale spelers in dit gebied aan bod komen en de verschillende bovenlokale spelers meerwaarde ondervinden door samenwerking. Doelstelling voor deze omgeving is dan ook het verder stimuleren van de potenties van de plek als kantoorlocatie en locatie voor grootstedelijke functies door het opzetten van samenwerkingsverbanden met bijzondere aandacht voor de integratie van het bestaande lokale weefsel. De strategie om deze doelstelling te bereiken omvat een aantal acties:
De diamantsector is zich aan het herprofileren. Het aanbieden van hoogwaardige ruimte voor de vernieuwde diamantsector is noodzakelijk. Daarnaast kan het opportuun zijn de Diamantwijk op te laden met al dan niet economische functies die complementair zijn aan de diamanthandel, zodat de wijk levendig en dynamisch blijft. Stedelijke vernieuwing van de Diamantwijk is noodzakelijk. Diamant is één van de grote toeristische troeven van de stad. De diamantsector en de aanverwante functies moeten zichtbaar worden in de wijk, in de stad. Zo bijvoorbeeld kan de wijk een nieuw stedelijk front krijgen aan de zijde van de Pelikaanstraat in antwoord op het vernieuwde centraal station, kan de Vestingstraat heringericht worden, kunnen bakens in de wijk als referentie naar de diamantsector gerealiseerd worden,...
De stad kiest resoluut voor het verder ontwikkelen van de Kievitbuurt als kantoorlocatie, maar koppelt hier voorwaarden aan. De belangrijkste voorwaarde ontstaat vanuit het bereikbaarheidsprofiel van de plek voor autoverkeer. Nieuwe kantoren moeten zich kunnen inpassen in het bereikbaarheidsprofiel van de plek: indien geen stimulerende maatregelen voor werknemers gelden voor het gebruik van openbaar vervoer en grote parkings noodzakelijk zijn, ontstaat congestie in de stationsomgeving. Daarnaast is het van groot belang dat een gemengde stedelijke omgeving ontstaat waarbij de hele dag door activiteit in het gebied ontstaat. Dit betekent dat naast kantoren, woningen en aan het wonen gerelateerde functies gestimuleerd moeten worden. Maar ook handel, kleine bedrijfjes, toeristische functies,... kunnen leiden tot een gemengde stedelijke omgeving.
Het spoorlichaam (de berm op niveau 0 onder de spoorwegbundel) biedt mogelijkheden als verbindingsruimte tussen de Kievitwijk en Diamantwijk. Mogelijke projecten in het spoorweglichaam zijn: realisatie nieuwe ‘stadsfeestzaal’, Moretuspark, doorsteken door de berm heen,...
Deze omgeving heeft bij uitstek nood aan een verlevendiging. Daarom is het van belang het verblijven in deze buurt zo aangenaam mogelijk te maken door de verdere verfraaiing van het openbaar domein, het creëren van pleintjes, de realisatie van groene ruimten,... Daarnaast is het nodig in deze werkomgeving voldoende publieke functies op het gelijkvloers in het richten die het wonen en werken faciliteren.
7.3 Plannen van aanleg en ruimtelijke uitvoeringsplannen 7.3.1 GRUP Afbakening Grootstedelijk Gebied Antwerpen
Het plangebied is gelegen binnen de afbakening van het grootstedelijk gebied Antwerpen. De Vlaamse regering heeft op 19 juni 2009 het gewestelijk ruimtelijk uitvoeringsplan Afbakening Grootstedelijk Gebied Antwerpen definitief vastgesteld. Met dit plan stelt de Vlaamse Regering twee zaken voor: een afbakeningslijn die aangeeft waar de stedelijke ontwikkeling van het Antwerpse in de toekomst kan gebeuren. aanpassingen aan de stedenbouwkundige voorschriften op verschillende locaties om nieuwe ruimte te creëren voor wonen, werken, verkeersinfrastructuur stadsbossen en stedelijk groen. Dit brengt met zich mee dat hier een stedelijk gebiedsbeleid zal gevoerd worden. Dit betekent dat vanuit het principe van gedeconcentreerde bundeling het stedelijk gebied wordt versterkt. Hierbij vormen ontwikkeling, verdichting en concentratie de uitgangspunten. Om uitzwerming, lintbebouwing en wildgroei van activiteiten in het buitengebied te vermijden, is dit beleid gericht op het creëren van een aanbod aan bijkomende woningen, het voorzien van ruimte voor economische activiteiten, het versterken van stedelijke activiteiten en het stimuleren van andere vormen van mobiliteit. Zo wordt een versnippering van de ruimte voorkomen. Er moet echter ook rekening gehouden worden met de draagkracht van het stedelijk gebied, niet alleen kwantiteit maar ook kwaliteit van ruimte en woonomgeving staat voorop. Het is noodzakelijk om de stedelijke gebieden te vernieuwen door het doorvoeren van onder andere een meer dynamische stadsvernieuwing en door strategische projecten. Het ontwikkelen van nieuwe woontypes en kwalitatieve leefomgevingen is een doelstelling.
Afbakening Grootstedelijk Gebied Antwerpen (bron: GRUP Afbakening Grootstedelijk Gebied Antwerpen)
7.3.2 GRUP Kievit fase II
De Vlaamse regering heeft op 27 januari 2012 het gewestelijk ruimtelijk uitvoeringsplan Kievit fase !! definitief vastgesteld. Het GRUP zal deels worden gewijzigd. Deze gedeeltelijke wijziging werd reeds voorlopig vastgesteld. Het plangebied van dit GRUP bevindt ten zuiden van het Centraal Station. Het gebied sluit aan op het Kievitplein en de gerealiseerde kantoorontwikkeling Kievit fase I uit het bestaand RUP. Oostelijk sluit het gebied aan op een dens woonweefsel. Het gebied wordt in het zuiden doorsneden door de Plantin en Moretuslei. Het gebied wordt ten slotte in het westen geflankeerd door de historische spoorwegberm die de fysieke scheiding vormt tussen het plangebied en de Diamantwijk. De visie voor dit plangebied kan als volgt worden samengevat:
Het grootste deel van het plangebied wordt herbestemd tot een zone voor stedelijke activiteiten: een multifunctioneel gebied waar verweving wordt beoogd van wonen, kantoren, bedrijven, handel, maatschappelijk programma, recreatie en cultuur en horeca. Onder kantoren wordt verstaan: bedrijven met als hoofdactiviteit privé- en overheidsdienstverlening met een hoofdzakelijk administratief karakter en een hoge personeelsintensiteit. In het gebied worden 4 bouwzones aangeduid. Met uitzondering van het gebied zoals aangeduid volgens artikel 1.9 kan er binnen het aangeduide gebied voor stedelijke activiteiten enkel gebouwd worden binnen deze bouwzones. Aan de westzijde wordt een overdruk voorzien voor een ongelijkvloerse verkeers- en vervoersstructuur. Op deze gronden, die palen aan het domein van de spoorweg, zal immers steeds rekening gehouden worden met de aanwezigheid van de spoorweginfrastructuur in overeenstemming met de vigerende wetgeving. Het plangebied ten zuiden van de Plantijn en Moretuslei wordt aangeduid als een publiek park. Daarnaast wordt eveneens de restruimte bovenop de spoorwegbrug over de Plantijn en Moretuslei wordt eveneens ingericht als park.
Grafisch plan GRUP Kievit fase II
7.4 Verordeningen 7.4.1 Bouwcode
De gemeentelijke stedenbouwkundige verordening ‘Bouwcode’ is van kracht sinds 4 april 2011. De bouwcode is een verzameling van regels die bepalen hoe in de stad Antwerpen gebouwd of verbouwd mag worden. Bouwplannen moeten aan deze voorschriften voldoen om een stedenbouwkundige vergunning te krijgen. De voorschriften van het RUP Pelikaanstraat primeren boven deze van de Bouwcode. Enkel daar waar het RUP strengere of andere reglementen wil, die specifiek zijn voor de Pelikaanstraat, worden de voorschriften van de bouwcode overschreven in het ruimtelijk uitvoeringsplan. 7.4.2 Gewestelijke verordening hemelwaterputten
Deze gewestelijke stedenbouwkundige verordening bevat minimale voorschriften voor de lozing van niet verontreinigd hemelwater, afkomstig van verharde oppervlakten. Het algemene uitgangsprincipe hierbij is dat zoveel mogelijk herbruikt wordt. In tweede instantie moet het resterende gedeelte van het hemelwater worden geïnfiltreerd of gebufferd, zodat in laatste instantie slechts een beperkt debiet vertraagd wordt afgevoerd naar de riolering.
7.5 Andere lopende of geplande projecten en plannen 7.5.1 Visiedocument Antwerpen, De stationsomgeving, een briljant in ontwikkeling
Het einddocument werd opgemaakt op 31 Januari 2014.
Het doel van deze studie was het ontwikkelen van een gedragen visie voor de stationsomgeving als leidraad voor de meest strategische delen van het gebied, rekening houdend met de duurzaamheidsdoelstelling van de stad Antwerpen.
Op basis van de verschillende analyses zijn belangrijke knelpunten in de stationsomgeving naar voren gekomen.
Bij het opstellen van de visie zijn 60 interviews afgenomen met passanten in de stationsomgeving en zijn verschillende stakeholders betrokken zoals ontwikkelaars, belangrijke werkgevers, het openbaar vervoer en andere belanghebbenden.
Door de stakeholders werden verschillende strategische plekken en verbindingen benoemd in de stationsomgeving. De Pelikaansite is hier één van.
Met betrekking tot de Pelikaansite wordt volgende visie naar voor geschoven:
“De werkfunctie is nauw gerelateerd aan de ligging nabij het station. Een openbaar binnenterrein wordt als kansrijk gezien en als schakel in de tuinenketting. Uitgaande van de ontwikkelingsrichting Large zullen de plinten aan de Pelikaanstraat en binnenplein qua functie gericht moeten zijn op de directe omgeving en aansluiten op het profiel van het Kievitplein. Het vestigen van een diamantbelevingscentrum is mogelijk, maar minder evident, gezien de ontbrekende verbindingen met de diamant B-to-C en B-to-B.”
Situering bouwblokstudie (bron: Sweco)
Strategische plekken stationsomgeving (bron: studie Briljant)
7.5.2 Hoogbouwnota
De Hoogbouwnota vormt het ruimtelijke beleidskader voor hoogbouw in Antwerpen. Aanvragen voor hoogbouwprojecten worden afgetoetst aan de kwaliteitseisen, richtlijnen en aandachtspunten, geformuleerd in de hoogbouwnota. De hoogbouwnota is een sturend en controlerend instrument voor kwaliteitsvolle hoogbouw op verschillende schaalniveaus, ongeacht de locatie.
In het strategisch Ruimtelijk Structuurplan Antwerpen (s-RSA) wordt hoogbouw gekoppeld aan de kwaliteit van de skyline en de uitstraling van Antwerpen als stad aan de stroom en aan een weloverwogen verdichting, vrijwaring van schaarse open ruimte, efficiënt ruimtegebruik en een grootschalige toepassing van duurzame technieken.
Uit analyses, benchmarking en studiewerk in de periode 2009-2010 bleek dat een duidelijk standpunt over het historisch erfgoed (de kathedraal, de historische binnenstad ...) aangewezen is. De stad selecteerde bijgevolg locaties waar hoogbouw absoluut niet kan. Zo worden verschillende zichtassen op de kathedraal op macroniveau (een afstand van meer dan 2 kilometer) gevrijwaard. Ook in de historische stadskern is in enkele historische deelgebieden geen plaats voor hoogbouw. Verder zijn er geen uitsluitingsgebieden. Een tweede belangrijke conclusie is dat het beleid rond hoogbouw niet hoofdzakelijk op locaties toe te spitsen is. De stad besliste wel dat in sommige gebieden hoogbouw vlotter in te passen valt dan elders.In het noorden en zuiden kan hoogbouw kwaliteitsvolle tegenhangers opleveren voor de bekende torens van de binnenstad (kathedraal, Boerentoren, politietoren). In het noorden zijn er al enkele bakens bijgekomen zoals het MAS, de woontorens aan het Kattendijkdok en de London Tower. In het zuiden biedt het gemengde woonproject Nieuw Zuid hoogbouwmogelijkheden. Beperkte en doordachte hoogbouw aan de Groene Singel kan de strategie van compacte, dense ontwikkelingen met bovenlokale uitstraling (top- en kantoorlocaties) versterken. Tenminste, in combinatie met het vrijwaren van open ruimte. In de rest van de stad is hoogbouw niet uitgesloten.
Gebouwen vanaf 50 à 60 meter geven mee vorm aan het silhouet van de stad. In de nota wordt ingegaan op de verschillende potentiële voordelen welke hoogbouw met zich meebrengt op voorhand dat deze geïntegreerd wordt in een samenhangende visie. Daarnaast wordt ingezoomd op het genuanceerde locatiebeleid waarbij hoogbouw overal mogelijk is mits niet strijdig met relevante planningscontext. Het is immers gemakkelijker hoogbouw te motiveren vanuit de visie op stadsontwikkeling. De stad wil de kwaliteit garanderen door de opname van criteria in de vorm van een checklist en het voeren van een traject in dialoog. De checklist bestaat uit hoofdthema's waarin kwaliteitseisen, richtlijnen en aandachtspunten worden aangereikt voor de stedenbouwkundige inplanting en de architecturale uitwerking van hoogbouwprojecten. Hierdoor wordt eerst de locatiegeschiktheid nagegaan en vervolgens de architecturale geschiktheid. Alle initiatieven worden onderworpen aan een grondige motivatie en moeten voldoen aan uitgebreide criteria.
7.5.3 Klimaatplan 2015-2020
De stad Antwerpen heeft als doel in 2050 klimaatneutraal te zijn. Hiervoor heeft de Stad een stappenplan uitgewerkt met eerste doelstellingen tegen 2020, met als hoofddoel in totaal 20% minder CO2-uitstoot realiseren op het stedelijk grondgebied. Hierbij staat het gebruik van duurzame energiebronnen voorop. Zo moet 13% van de energievraag op het grondgebied van de stad ingevuld zijn met in Antwerpen opgewekte hernieuwbare energie.
7.5.4 Eindrapport studie ‘Impact vegetatie op hitte, luchtkwaliteit en geluid ’Casestudie Centraal Station Antwerpen:
Deze studie werd uitgevoerd door VITO in opdracht van de stad Antwerpen. Het eindrapport dateert van juni 2016. De stad heeft in verschillende beleidsdocumenten haar ambities inzake duurzaamheid concreter vorm gegeven (Klimaatplan, duurzame stad voor iedereen, maatregelenstudie lucht en geluid). Functioneel groen kan een belangrijke bijdrage leveren aan een leefbare woonomgeving. Het juiste groen op de juiste plaats kan leiden tot een betere luchtkwaliteit, een betere waterinfiltratie, minder geluidshinder, meer recreatie wat resulteert in positieve effecten voor gezondheid en economie. Om inzichten aan te reiken rond de mogelijkheden van het toepassen van functioneel groen heeft VITO een webtool ontwikkeld op vraag van Stad Antwerpen. Doel van dit instrument is stadsmedewerkers ondersteuning te bieden bij het uitwerken groenstrategieën en ontwikkelingsplannen. In dit rapport wordt dit nieuwe instrument toegepast op de omgeving van het centraal station. Volgende bevindingen kunnen gedestilleerd worden uit de webtool met betrekking tot de zone van het Centraal Station – Kievitwijk & Diamantwijk (De Kievitwijk – Diamantwijk is hier begrensd door Provinciestraat – Brialmontlei – Quinten Matsijslei – Schupstraat & Zuidrand Antwerpse Zoo):
Voor de Diamantwijk-Kievitwijk geeft de webtool volgende suggesties als interessante groenmaatregelen:
8 BIJLAGE 4 : WATERTOETS
In overeenstemming met het Decreet Integraal Waterbeleid 1 en het uitvoeringsbesluit inzake de watertoets 2 dient de overheid die een beslissing neemt over het plan een watertoets uit te voeren. De discipline Water is behandeld in het Plan-MER
8.1 Watertoetskaarten UEsDBBQAAAAIAAAAAADh4wI8qwEAAJoHAAATAAAAW0NvbnRlbnRfVHlwZXNdLnhtbLWVzXKbMBSF181M34HRNgMiWXQ6HRMv2maZeOE8gJAuWK7+RpIT++17Ba6nkwFCHGcHHH3nHAnusFjutcqewQdpTUVuipJkYLgV0rQVeVrf599JFiIzgilroCIHCGR59/VqsT44CBnSJlRkE6P7QWngG9AsFNaBQaWxXrOIt76ljvE/rAV6W5bfKLcmgol5TB4E3b4sfkHDdipmv/eo9GU8qECyn/3aFFcR5pySnEXU6bMRr4LyY0iBZLcmbKQL17iA0LGQJI5nTKJbB+0rVuq0x06YwM6hau0GqX2elFGslc0glp6PQs4MN0zPR6Eom+GoTpjCzqBe9DC1z5MyisEoBlNYLc37vkPbNJKDsHynESmsgsd6CzweIx5x3rwUkK2Yjw9MoyF9sV7QEzH9Vb6dmNyctxxCwEHWqjgpmknz30QMVcG1K29dwDH18P4q/4Yw0TmWcOCjhDA3FN0/vH1I706AmB/fHX+IBwXh8off+85psAEmwJdleXP5Fr33nBaNtfGzWvTec1qYna7BI3X5EifreaeBqaxWZ4zC24dxtD71WNDuv4pXfwFQSwMEFAAAAAgAAAAAAEv035HtAAAAZwIAAAsAAABfcmVscy8ucmVsc62SzUoDMRCAzwq+Q5h7N9sKIrKxFxF6E6kPMCSzu6GbH5JR27d3EClWtOzB3DI/33wZ0q33YVJvVKpP0cCyaUFRtMn5OBh42T4ubkFVxuhwSpEMHKjC+v7qsnumCVma6uhzVUKJ1cDInO+0rnakgLVJmaJk+lQCslzLoDPaHQ6kV217o8t3Bgj14gSrNs5A2bhWzhLU9pBpzojU997SQ7KvgSL/MulHhZCxDMQG3lNx2n2FG8GCPiu1mi/197t1IEaHjNqmQotcpLuwlz0fvUTpScL1s2KG1/V/Lov2TNGRO2+GOR/FOn3yOSTyAVBLAwQUAAAACAAAAAAAjCxr+L4AAAApAQAAEAAAAGRvY1Byb3BzL2FwcC54bWydj8GKAjEQRM8K/kPI3WQiKCIzyoLsVQ+jeJOQ9GhgphOSVvTvbRF297zHoopHvXrzGHpxh1xCxEYaVUkB6KIPeGnkof2eLqUoZNHbPiI08glFbtaTcb3PMUGmAEUwAksjr0RppXVxVxhsUVwjN13MgyWO+aJj1wUH2+huAyDpWVUtNDwI0IOfph+g/BBXd/ov1Ef3/leO7TMxj/+O6q+U+uAssei6PZ23u5Mwc2WUMUbNq1mt/w5YUP8acnwBUEsDBBQAAAAIAAAAAAByx3Wj4wAAAIkBAAARAAAAZG9jUHJvcHMvY29yZS54bWxtkE1LxDAQhs8K/oeSezutgkhpd2+eFAQVvIbJbDfYfJAZ7e6/N1s0Cu4tk/eZh+Qdtgc3V5+U2AY/qq5pVUUeg7F+GtXry319pyoW7Y2eg6dRHYnVdnN1OWDsMSR6SiFSEktcZZPnHuOo9iKxB2Dck9PcZMLncBeS05LHNEHU+K4nguu2vQVHoo0WDSdhHYtRfSsNFmX8SPMqMAg0kyMvDF3TwS8rlByfXViTP6Szcox0Fv0JC31gW8BlWZrlZkXz+zt4e3x4Xr9aW3/qCknlhi4Gg71YmWkzQDnm5uBfdfn2C1BLAwQUAAAACAAAAAAA3UssxzUBAAA1BwAAHAAAAHdvcmQvX3JlbHMvZG9jdW1lbnQueG1sLnJlbHO91d1qgzAUB/DrDfYOIfdr1La2G2a9GYPeDvcAUY8fzHyQpGO+/bI5qoWx5kLi3Tni//wCcpIdPnmPPkCbTgqK41WEEYhSVp1oKH7LX+73GBnLRMV6KYDiAQw+PN3dZq/QM+s+Mm2nDHIpwlDcWqseCTFlC5yZlVQg3Jtaas6sK3VDFCvfWQMkiaKU6HkGdqk3F7HoWFGsj1Xkng1G+aDAZ4Ss666EZ1meOAj7xyRi7NC7c6Cc6QYsxWO9cjmY/KeIkyUVLbAK9KQY6+8xHpL1kpJaSjuXjLWfJNouKem4+zkmCIeqY2PzR1NwdUWTBtMkHppdMM3aQ7MPptl4aB6CabbXNXEUTJN6aOJgmp2HZtHdK068AO2ul0l0bnnsvUW3TS2FzVnRw3z1/bbOloxcXHWu8wVQSwMEFAAAAAgAAAAAAKxOnKeYBwAAFUcAABEAAAB3b3JkL2RvY3VtZW50LnhtbO1c627jNhb+nQL7DoSABXaBTSzLlu0Y4xbdTS8BmmIwMzsFWiwGtHgkcyyRAknLSX71MXZfr0+yh9TFsp1xs9Mk3swoQGJezznkuXyHlJUXX11nKSlAaS7FzOuf+R4BEUnGRTLz/vnm29OJR7ShgtFUCph5N6C9r7780xcv1lMmo1UGwhAkIfR0PfMWxuTTXk9HC8ioPpM5COyLpcqowapKemupWK5kBFojhyztBb4/6mWUC68io+5DRsYxj+CiEqAkoiClBlehFzzXNbV1fh9yTNF1S5xtIS/KzppiMfNWSkwraqcZj5TUMjankcymRZbW4+ShcaX81Ucja9+/xxwrnIcKOEENzCW7sUVbzl3BlV6qsuwqr81NCmQ9LWg6897AUhuvt+lecybX/5DCKJnWg6RojzB0rqtaVa3HpRAbDyu51Gg5YT/wN/N61URbqOVx5ecjrp3eksyZ+VTnNEIvyBVoUAV4X76VaQJCkwUYMgfUHF/OKVVkiX8MGhgoTmk6dRwqsr2a7pNsiFhlDT1b52nRjNzsQDXyktVdk63NaRP5w5vckOHCsrNTZl4wGdh5CyoSF3qCYIQz/3d9pNa9CSiSAH6urQLKJialclrKU+QBcw4MIx2RckkEx2aOQ4BIkXHGIE35+yUQQef8/QI4jlQFFWedFp9Ii1zvqsrpKIEU0NusrjRPBDpW2dsp5siKySSqBl2GyJhAHENkOMRE2rwCty5DljqBQuKY5Ixclp6WYQt2EAtoqFNLFhMNhizV0nqm9d9bzDmIsYUVt4PQCe3cWykJtRIwbCY01S0BPsjTMihkmgLjCSCrFeNQreGWvxdlwFBc80hathoHY8Ro07PhIiYKIpv01B0yQ4FKOtiPUq3h1nL8kRaK0oRgBLEi26WRr4VZg7LRaA4FaMMTQxg3nfke2XwB0yxrDJW1dOo4mjoSWILIQC1NDdgIxc7zlilwgbjOMASEfz4jF9DqRFcmMrd+1rS5BAw9O1oYl5A5H+dlGBDSxhwXLxhA6sLKtiB/I2alNbho8z26OpqJ0ujulBpStr61/osxxrX1XiI15CiqITUzBTTlBrgp7ewvGYD66yZIdIZ2XL/nIuYpasx0zv//oJNbcHl7qYgSfhMlBXNZfA3CnYKO7DRzWEgFyM9I4wasuUD9zLHfxlGbRaHWDGAuVWDU7PR1PH0VrcsJm9MqC1i2v06k315dtQ9Vv/3677WUYglK/PbrfxBjudVuio6ZOJRFZFugShHWgGmcqFY8w/ycv2eobJk6+g26EZSnmsTgFmzV5ew6lTajR7huTuiY3Rdu8hGNpbvnOmhcX1NRrPDwhHbrEi2rUBFLgucZtnXGETSBBBXtjoKqulbJFV0am25pW3K2YC3QKd8epFKqTWluc5uVVenSwh35cVF4BHQpVWceTyNuQ8aagTujT2mMqirD5gHjqS7SN5xzjHSYjwNm6Nq8sfNd6e9N6Yem9MqW6pluKlwbe9KOrmfecDgaB0Hokehm5g1Go3EfK72t0UxGL9HeGK7KQyvM0Hzfmet3nL3rv2sPpdNE0XzBo+ranX7EEwL3wKIh2aJ5QQ0lK8U/gmbOI7NS0CJ78gLbpnkjKZYehm5JWBQvebQByE1H9GNR7aRf7+Rlhm5N+q193Bpt6Wx1veh9gIObgk6ef8vTdJsYde1ETSHDZGLmqUvm40+4y5ROMRcEEy22mm07ZvPpK4jMzoTenTNKEe8Sxcmo892todPrWGV7TGUck2u3VTdbaUUzAM34PjZci7rHBEnkmP5+BzIjtoA7g2v09vjQ4gd9x9Lruftr31li2Yi/LcPubVn2xok27Y2v9xpnb4WTrYDwh0M2wcMAKIMn6pTEPFmt1EclSlf1ZaG9Zbz7tvK0OYaUqdRDAs/vrqJDiI9BiPGkH4Z+6V3BOAzGBxAi2EGIoEOIh0GI4BgIMfpkEOKwDdeidghx8sgIcbl/Mbh5yNMdQj5XiJlgAjcOa/f0w77vfxBiBjsQM+gg5mEgZnAMiBl/MhBz2IZrUTuIOXlkiPlu78mG7qCmE/e5IiMGeb9JXPvD0YHD13AHGYcdMj4MMg6PgYyTTwcZD9pwLWqHjCePjIw/1c+T3Vd4Ogj8XDFlEAbnQXg/TAl3MCXsMOVhMGUvBD4Fppx/Mphy2IZrUTtMOXlkTPl+62uhHaZ8rpgyGU6CjT+OsPzhG7zRDqaMOkx5GEzZe17zBJjS37vleraYctiGa1E7TDl5ZEz5Zuutke7S7rNHl2Dgh37z+HYyHoUH0GW8gy7jDl0eBl32HtU8BbrsfTPuuaLL79hwLWqHLiePjC4/b31f/+3VVQcrz0DcXy4gpqvU/OsOnc+lXGZULV8b+2bielrFrvW0jF59oH5Ig8lp7Afj0yEb0NNz1menATungwBYEE7mtbgtat+4N0lKWr19qTV6YUuGBVA0zlcQgwIRWbHNTY7MWSm2h4GNb6Ja0OIXS2nuP3PQmpknr29x+BqX2D/3z927LlgeTQbDrVFXVFmqMsfO4dDtjOLJwmyqc2mMzDb18v2ZulaubeaFo7GtlgKX1c3GbPbD1qp/oOKCQPXPZLD6X1BLAwQUAAAACAAAAAAAPaKEHwUBAAAjAwAAEgAAAHdvcmQvZm9udFRhYmxlLnhtbLWRwU7DMAyGzyDxDlHuLN0OCFXtpgmJI4cxHsBt3TZS4lRxttC3J9uoOEAPiHGz9cn/Z9nF5t0acUTP2lEpl4tMCqTaNZq6Ur7tn+8fpeAA1IBxhKUckeVmfXdbxLx1FFikeeI8lrIPYciV4rpHC7xwA1JirfMWQmp9p6LzzeBdjcwp3hq1yrIHZUGTTIk3n5Ei5gQ2qbZegzmTE6p78IwnegRTymwp1YRasNqME+Gomb/goEPdT+wIKbMyeMGFuhh/ku+1RRYvGMXOWaDZNbK5Nfx57K9rvI62cvNHWP2z/UBbChF9+qXYYXcw4H9/ies85AmMrry+rr7BFg4mfLNPJaf6A1BLAwQUAAAACAAAAAAA0RDoKXoCAAAbCwAAEwAAAHdvcmQvZm9vdGVyMDAwMS54bWzdVl1r2zAUfe5g/0HocdBadr5N3WIWt4S2aUjcMtj2oNhyYpAlIylJu18/yYndZCxDjJKHPule6dyjey66ki6vXwoK1kTInLMAuhcIAsISnuZsEcCn+Oa8D4FUmKWYckYC+EokvL76/Oly42dKAB3NpL8J4FKp0nccmSxJgeUFLwnTaxkXBVbaFQtnw0VaCp4QKTV5QR0Poa5T4JzBHY2woeFZlidkyJNVQZjakghCsdIC5DIvZc22KW3oUoE3e+kcJjncLtaM6wCuBPN3bOdFnggueabOE17464LWOP4v3Db/3dDk6iKLGJMc1LU/08UvzVgZE1GZlT1Tr5SAjb/GNIDfx0Yn/QmdBqDwXG6dnVdjKckU1E7JZQBRHfEHKNEFJ6KBtTuodwQp8sXyjW+AvMExSkrwG6PrttpWQM/r9q2ArTbyrIDtTqtrBex0e0frcwDs9pGdmN6gZSdmgHp2YlzkITs1puJ2clyv3bPT47a6yE6QqyktFXX6vUbRpbN/knWYqHvAOPJXTeGh/YgaZOy6aUzs/7EYTEbTr0ssQGPFr6W+Iudkoe80p9nsPbbKmVQiJi/KXBi+LHGiNyoFkUSsCbwCk/A2Aj++gFDgeZ4Y6yGa3kY3j9OHMAaGrWF417yOlECSEgusyDtX4Yj6Qbs6EacQRlh6Gk1gjRk4maztkX2jyrIhVnjnmwmGi+ZdaRrWLBCG55Sk+1MJpskji15yVUeggxClD+GIlSvVNL5zuGPlb9M7aROZbomjbx+/Xzofr1/OzobRzWg8ikfRcwSew1k8i6P7+9H4FkyfJmAS3Y/uwnA8i6dhGP9FfvUqmH+tU31stfUbUEsDBBQAAAAIAAAAAABeuoxkyQEAAPUFAAATAAAAd29yZC9oZWFkZXIwMDAxLnhtbJWU226cMBCGr1up74B8v8EcFli0JIqSHiJVm0rZXkVR5IJZkHyS7UDTp6/NAtlUu6lzxYz8zzfzj7DXF78p8TosVctZAYIzCDzMSl61bFeAn9sviwx4SiNWIcIZLsAzVuDi/NPHdZ83lfRMNVN5X4BGa5H7viobTJE64wIzc1ZzSZE2qdz5PZeVkLzEShk4JX4IYeJT1DIwYqQLhtd1W+JrXj5RzPQeIjFB2hhQTSvUROuFC66SqD8Y5/WQ1/vDidgV4EmyfKQtaFtKrnitFyWneUfJpONv6fbzj5951gA61NjhgNn9B7N8Yb9D8EMO4RDf6WeCvT7vECnA/cb6JA/AnwUa/VL7ZMwmLcG1BiYRXBUAThX/iEqzcCxnWbyE6QmlbHfNC28Fw9UpJMHohRgEUewkDMMkcxJGMQydhPEySpyEyyQ9uZ9XwiSDbmbSVeRmZgVTNzMBDKGbG7txNztBGKdufoIogW6GAoN0dLTM0tnR2j/8k02ZnO6ATdSfCRFmhxWTyMbTpbG1/6XAY5RhWnt7cyVQaR5GIbHCssPgfBxwbvaOVkcHfqPV4/b28/ebq2/bm83Xu83t9vJI58GvfbH94ck20V9QSwMEFAAAAAgAAAAAALK+kg4ptwEAtkUIABgAAAB3b3JkL21lZGlhL2ltYWdlMDAwMS5ibXDsvUd4XEmW79dvp5XWWmiphVb69GmhT1q8J73R0xvNjEYzejM9Perped093dO2qliOVaxiFT3oCRrQe+8JEt6ThCNIkACS8C7dNem9d0Dqf++feeoSQFWBVWRPf/MYlcy6eXFvRNzIjF+cOHHOiT/5y+b/87/6gZH+Z/z77/Fv4t/84Aeb8e/f/OC/Mc9vwt/7/usfmP8qKZ9QX/VVSGovv3BGsbyMk/mElo9rhYSei2qxgNvn0T2VpOu6z+cLhUJ+v18+hsPheDyeSCRiZsJxNBrFn+bm5mZmZmZnZ+fn53Uz8djhcOAAf7KbCZe5XC7VTJqZeDHyR+aBQADFhS0pEolEzYSy8I6/BoNB1Mfr9frMhHxQypyZWBATjlml6elp1oTHk5OTIyMjg4ODz5496+/v7+3t7erqevToUV9fHz4+ePAAx8PDw0NDQ4/MNDY2husHBgbu37+PA/wJ9+J42ExPnz7t7u5+/PixzWbDR+T28OFDHONKnERuyAfHKAv582FRczwInhSP7HQ6nzx5gsxxAbJCzrgLhSITVqy1tbWnpwf54BgnUVZnZyc+4mJciTPIn9XA9SgCZaF05NPe3j7ychoyEx8ZxbFiSy54/vw5c8MDIhOpOe6SgnAGB3jnA6LyOMnMhyvJZiY2o1yMTJAV6oxnwY14Fpzh846OjqJx3G433vmTwzt/hGw0fONsMbQe3vGrwC8Qx/h1KYoiv6XVJ9yhqBpu8/v1aFiPR9RowBkPOxIRJRZRQiFnOOgKeaazMXcm6lrI+rJmbyqm9K96U8qTingTYZ8yN+lxTgfVmYA67VcmdfeE2zkRjwcWF3Plt+lfS3oj/H1xWULHKxNRIj6nz8Cszh89fugBMwmRwT6wI24mMhEH6C3gCPGHhP7AjgHY8eTU1BQ6GPo2WIaPRC07ErG+PEkFcCX7npXISIJmDg9IuB79EHBH0UJkJpxhF5WOiq6OOvOdgEYNgRsAAjgAU4AGkI6owkecJ0xBExBTIIu/giM4g6fDX7vNhGP8CfngWJCE/NFWeGoZcpDQVhyiUBNyhAkf8U64YNjAI6Ce+Mh3nsc1PGBymYmZ4E8yyC1JvGzFP/FevqMg+WitG8uS8xhQWVU5vzxPt5msObDmuBfvqAy/CLQMv3EOUTIqyy/B+lPhDwMHuFF+MK+UFE13qR438vZAqgD0XR6PHT9bVZlMpUKFYqJQiJcKEZC3kPagp+TiSinjla5USnsWi+GFYjqTSgYgDOjuoNeViHqLhXixmPB4HeGov1Qu/ktD4216belN8BfXKDnjSh2vdFgNe51eC/7QDShsotvwFw/kkbnCX4ghgCMgQnkTiTeSxTgP7oBEEOL6KoniEvg1MTFBsqBPskRh0/ID6YTeSqK8TCkYB8GXE84Q8WQTa8X+zHv5Ee98Oiu8UCXQAdUjSQfNRHmNwmlHRwfFVbIYB+QvGI0nFZTjmPDFjWyH7du3b926dUslbd68edu2bXjfuHEj3nGGf92wYcOmTZtwEh9xHgIjBoM2M0GwxTvkYhy0tLTwIxM+4h11279/P27f/HLCGeS8yUwsekk6duwYSmlubkYO7ZUkhfKkFM2Czp07x4JYW2a+sZKsddhqJinXesznxTufl8/Oe7dWEovgxXwKyYHvW18xbdqy7cstVV9u3oL7t23bsnXLFxu+XLtzx4btVV84XTOBkD40/DgccAW0yWLGl48bvamU1isisF7K+MqLiUQ83PPgYf3de10dbd33W9tb7jnnJ/K5RCikhyL+Yrn0Lw2Nt+m1pdfB34TxKiZAXnch6cqnXLmkK5vSsnFvLKiHPJpf0zwW2InwKx8JXCSr/Is/ydwf2AKvgTDhL+eeoBUnuTLRBrk4wef0FjIm+AVIMRMSmRIrhdYl0jEScUxhSmRD8BSDBGevkJFRQ44ZorsgmnlglbCscpZIW6wACT5vJsjykOJlTg0BGTACggliqgvwdBhdwGv8FY9M5cDk5CRuASl27dq1s5J27Nix89vS3r17r1y5cu3atcuXL19ZKV01Ey7gx4sXLx44cGCHmaz5AP08s91My4uuqanB7SgFufFAEkvB+6VLl27evHn+/Hl8xPkTJ06AZXv27MFD4QB5VlVVbbckfGRBu83ER7YWzY9yF46tt8vFO15O1ntX2YxL0o6du6p27NpqlsLm2bN3V1XVll07qzCDGh1/Xl29t6+70z79PBP35hOeXEIppg15BfxNhZVs3JfPpTpaMRy1xyLRXDabS6fczrkbVy447dN+3RUN+xYXC//S0HibXltaFX+XCbwvvYoJfSGuF+NaEfxNufJpVyblyiS1ZMwb9Hr8qser+ryeFxNkIIzCr8iM1PxS+RuvJKANbLIqH3ALBWFgFDAFYcEmAOu5mTht5wETlaqAFDWhFBsBLxwAcPgTeAd4UZvBGTf5SxbjDJiICzgA4AzwyiqRmDjALXiWkCUtUWUQzbgRlRfR2DqrlTGJorfMhUlnPCl1LFRQ4CmoI6bIzCcaHx/HI+DihYWFxVUkfOVLziwsSzxZKpWKxWImk8FxoVDgmAThHfXEmaKZeNnX5bMkQ+ux9RYcIBPmSRUHmhctgMZHo+FkOp3mBdbEB/mGQpcn6y3MUNqEaTUN+O1poYTcUUwZR8Xi9PSU4nZPot08nt7eHnxtmssVD/nzyVAu4THIm8Zk0VVIewDfVNSPidWZ02cgBhQLxVKxVEY+pVJnS1NXa1PYq2VioXIh/S8Fi7fptafXwN9CQi+Bv5CCk+580pUz4OtKxdVYWLPyFz0KZKGEKHN2Cr/WJKtwnLODQeiNFEtl5Q3QAYC4kgPUCn/lXRC8JFHA5CoTCN5vJqIcJ0lzIIbraSiFxEehHDZQNNWmrBVEY9H8UpFCHFODzHd5LhyTztQsW1m8XL9JtQbbh9fgFuqgKSmDyHiQUTPdvXsXc3Zw6uu+4yX8lZNWDK2IS+SZzWbz+Ty+lK6urjt37pw9exYNmzUT/loy03fmr9wOvqMUvGNQgeDfbKaDBw/iK8b5ZDJJ1r9qWgJGaYolF7zO/mTyFy/Atwz85nO93Q8b6u61NDXW37tbc/CAbWS4kM8WM4lM3JeJafmkCv4WU0o2oWK+CP7OTE2cOnkqmUojm1AwlMlk8S1N2Gw3rlwK6Eo6ESkvvJV///Wk18JfrRjXDS1EUskl3dmUK510xyNKyK8AHj7N61G8EPKAFTCF9JEpOXgkNg+i+cU7LqNISOUp5WWuroDCQA/NCYS5TFZZmLTlu6Ql1/MWqi/ESIDaZK77A8EELipA/lIkB6DBXwwPsnRu1SpYFQ58CnJ5ienFEjGZkjJVHCKDA6+gPOVuLvfhMi5LomI4wDgBMoK/3wC+UiWRmFYgriC9mdgFCinh4gC3pFIpWkHU1tZioOJflxfHUlY8ScxZPwp/kSBlk8KQ7tHmeH/w4MHFixdxTC6zViImWyEu1f5WwZS/+OXXW5toSc2/A/TLi8WyoSIw3kuFjGNu6vaNK51tTYMDvZcvnJkYHS6VcuBvKgKBl2snrlIa8FWyMU866pueHD9x7Hgymc4XSsNDI7rmQQOMj41euXQR0kw6mTDg/jb9a0mvib8JC3+T7nRCjYTcfq/bp2tek7+YaovmV5akcQwMUe2Ad+EvDshoEg2XgVOkEpAH9GAmTtsAq5xLsyRO1ZdzVk5+g3QsBMcB8gdxaFkB6FN7QM0D4DtgJi73gRGQSbniR43KElsLY1ncTFZdsKzvUXERsSTqlPEnFHHz5k0UgYGhs7MTH1E3tACgTBbTJg/wAh8Jqa+joeDPCllycDlxrKgC/nASmaNKSTOhOKLZClDrXSumr/BkZmuFMj/yHb8ElIhGgHyNdkBxCxUVB0cCVkYeysrQb07fTFjWxKqUWPhO/F1cwCwkX17MG+/GQS6TiubSsXQyksvEc+loPpdcXMgVMtFc3F9K+YpJNR935uNAsCcPiTjq09zzZ06dCgSCuVxxZNimqXohX+hob2+or49FI9lMJp/JrLJvoyUz3zV9H6a8TatPr4e/hYSej6s5zKGSaiappuJ6KACh1+Ux+OvRFV1VNE7PRb6ThSwqfNHTKAWDvzhPSFGcpGxI8ZlSMKRUIGk5f5cQdkXU8jJJy6+hURepB7DSEIo6E9oaA8o0zhWjMcAR79Qs4ww1y5BPaQgllqSy0LfcSFmEZVrFoTj89e7duw0NDXhM5A/BE8c4QKGQDVENnMcZlIsDDgxL1vqsH5kt1dCcTOC5cMvEBKa2tmdmorqcy5UYVJAtTuJd1gbxJxzjufB0OJg2E3PAZTzJB1+ScJ6jGvIRW2nchWPmxnt5jDZEnqgD3lEfrp3imKMdDUKoHUKVcDEHYyr0kXCe7U+DX0lcdeA8hrMQTjjwJwoB+AVKW8mv1PuKKej3JuOBRNSLVyoeSMb98YgnFtbxMRLUUnE/TubT4WzCn4t7SynvQtqzkNYNK4iUJxVWMlFPJh29d+8OvtZsJtvb08uFhwsXLuC5MGXCQIspySr79vXrVy+dPXb90qlXfVVt27LKIvKlBd0XRktlUzFD5bIsYSRL5wpo6GIujU+rxdIbTqhHNJnVPd5wwFcqZMsicOCJigv+YBRPlI6Hy4vffaqxaDaOz8wqk4is2Djl18NfUwVsTKAM/urphB6P6QGfW1ddkAK9Hq9H92qqxjm4TK6tK29W5S8S6aNVLORpNk/hF3ehK4K/QMPX0daKVPRVahWosqB1BFlDv4DldxE6uAA8hUhL6FMkp04Wf0WflyU+HPf09PBG2upi+tzb24uTKI4Wcjgg12TRjwtNVusLQlls1wYHB3Ev8qFTRn19PXWjZD0uAJtaW1uRFS5obGxsa2tD0dQIc2AgyMA1dF2rVS+1Okhi6UFTWYjwyI0UpoCPnFEoaoJGo2sDbU6IaVHvoJIcDukisWQWwvGMRh1seZzv6upCDflXmXngY6+Z2JgcafhF0wiPNtQ4EEUT1Uo409zcjOrhALejieh5wfYkfGU0kh8Vv1lqt8A1XIMBidMUtomyisThWUyVfR4tHlYTllcsqCSjOg4iflcyooO82YQvl/Tlk55iUl9I6otJvRhXF9LeVMgV9s6XF1OpRLip/l5LU8Ptm9fbW5vv3LqBpi0U8vFELJPNLK6aYg11d5PeicWE81Vfp47VrLIITzJXc6HlwP6ahzcu5tOBFTC0uDiuhg8ePOl42vbHo7lGPe7b3IeOnjlzqEYZ6zNnLUZCy/oS2Uv3Hhw4UNNw9kQm6v7ORSArfzJ3vvY+GqflzLF8Ul/xstfFXy0TU7JxLZvwpOKecEj1ecBftzEL1z2q/sLJAknECqvPhZW/eMeAv5y/YjNAqWeJ9LpiYucEPuiJgN4F9qEDU3Tl tvyu8hl+nQBkcJfqiBQgRHTb40VwGXo8Oj5PMbtNHoTdTNVmaQh8EFPNmCUUCZlQEnUDWXRoYDUoH4ZQATsqPQAEYBvLruh9ejMhp6PfEBnmtPS3gOPfPPmzZaWFpoVE3aoJICOsmjHxtU8yuY4ZguLDwtrghIpwLJcWpIQkTTvo6kfHhAfOaRRRKW0yzNc2Owxk2h4aN1se3nVFO9yGQcz4S9yoDUeK0BTaH5fyI0Ny7voPocv2spf/qKEv5xhcKjjbwwzbhxY+cuJyyvx10C5V0uElaTxcpsvJRFyp6IAsTsWcKajai7pwQvwNax9Tf4uYPoYdZcSWjrsiPrnyoVouZTMpmNu19zM9PjM5HO/T8vnUqViHvOWZDK6uGqh7PvzN10st9wfHxt63Ha3Y0K1N56+B6poudLOPXeO79ymTw/E87n9t3veffe9jb99P+waSJYWjl7t3Lx2k+Px7RlXcKj7Ye+ku+vC9XO3Om+cPQrxIRgLPmjsTgSc5bIhD2r50o5d149VbdUm+2K54pXafudgK847s8Ude24e27XVMz3Qbw8/b2hEXWa9ibX7zlat+3z8ccvl1pG7R48OT0yN9nYWChmbK7h977kb+3ZnMo5nUz776GA0l21ufpLK6HdvDynj3Q/uP7XNzrQdu54q+ro6Rn2zg8/00Aef7F/zm1+1X9g1bnd9svNo9aefB9W+eKFw+u6jd955Z+0vfucYbnk4oW7acujKwb3FmHM6Vjq7/ehC3I4aRooLJ+/07l6/RRl9sLiQb7I5vli7vfv20XA0er+1//n8bNfZW4mC73TdABrn3R/91j/V+qb4m09quYSaiamZOIR2TzyiB7xur+7WNdM3TNcV7YWjJ8VYdgDCl6ttYvOLdwjFxBw7DyeJnE3jdiof0KVtL5s6rJjY+dEnUQoEnHQ6jQMIg7ydMtpykZlcpn8ahURUHjVkd8UZkkj4K5oHCrwArojYxDEFQLrqIaF0AILOF7gFwhoRBkriI/KhEzNRBVxy8BA4UlCdnZ0VdTDQTG04vemQD2rV0dFBSzWA+M6dOzQobmpqov8xEq7HNTiDClBI51hlt9tF8057QauEzpMymOGh6ElMjRBNSlAEPYDlKXAZi+CgyBYglwXQTLyX4x8qg7aVP+FxOJ+QyYdIzZSL2cjIDR85t6ABCX5R1qdAIpH5dFRT4OfB1V1xllklf5WK2x7BHfRrwG4q4pJXMuzEeyLkiAft2bgKOQgvwLdY4e9iQgOCizEl5psNqONh30ws6FDnn0d89oA+H/E7/bo97Hf7PS7VPZdMhBdXLUV+f/7GCuXdR9tunTv30aeb67tqq36ysbBoP1Y71n31y/tPJm+dOPB0enrtZzXPp55/vna7f6rt8Xxw/67q9se2hqNbup+O1Z48fqZz5PJ7n9zpHKg5UnNy3/577W2DzbcW8gkIiIXF8um68Ud3tnc+nbtyaM/QjP3Pf7n59o5f5RfzOy4ONZzd3N7zbPhh7dl+e8OWbeVytP2Z8/G9472T2vbtG9f9eO1U37V77WPNZ2ri8fDpm139bbeO1w82HfqytnP4cfMNPZ3ateNaJDb+5bra5+0njh65Vd/bs+/v3o/kZw8faB7vvVl9+WFP3Ykzd5/Un9xU12sb6bp+dUC/vu6vJ1Tn0cPHJh0zH6w78rTr4o7DN4a66682P3I8bTjRMvP3P/pzpftKebHU9Ezdu33vk7HxM7u2a4HZNV+cfzrQfufscZc6dWTPhcaBvkM//2RSt+2rPoXG+c2vt3uGrr1B/prWMwZ/UzFPJKhB+PXo6KiGOyZemsdLza/4v+EXT/ha+ctjkZFFRyw3goOYTZMUq+EvezvwRPKij6EgRmBgD18u/4pYTUFSxgBUjDVHtyQ6bRX9BpBBC1waJnOWTUEMBYFxYidHECNn4A8n6cAm4h5YQ6MO/In8wpPSWZlcRhKzM6740QyOxKSKnMbCqA/VoKwPwyxQQVFXV0eXNkqXDQ0NdDkDo3keGVINLTprq1uK1VFFzlOCppAOKFN7i/zRgLRTxjuKwFNQdwFWEqwkpgi/1N5QkuUkAx9tlYAPyIHDG5tOfgBoEEJZFB1IomyhhlfIywrjR0X+ivtPJBLhFESkWs4AXom/yDAS9KQiRmwHeaUjTrySITte9HPLp9RCShPlQxmvlCcXdkY90yFtwqeORbyTicA8cBzxzga1qajPEfTMBzwOv9eZjPkXF7J/SP7uONJ2fv+u4+fPn79xu+on66NF+/FdDe7x2zZ74NLhc7d7Bu6srUqVY4eONvnmemttys//4p83VX25b81n3b0PrfytPlLzi/fWnt+3uRB3MvNosXyqulmbbRx1h09Vn73a0nVq394j1UfCcftnG+rX/vaXm7/c3Hax5nT3NPmrxXNHz7dt/HLHlQuHN/x8q33w1r32CfA3FA6eOnpPGXnYMqYc33CgtqXvW/nb/+Dmyb2XPZM9Pc/1zttnHB790Ik7n6/bPtqwf2DS0XL2QrqcOnS+t6v77u9+W/3lJx9t3bS57e6NkzVn6nub6s+fW8iGz90badm5T0+HDu043+e2/ej/WLd12yebfv+JfaJd+Ns/PVB/8CQaZ2t1p2e0/k3xN5dQsgl3Oq5lEp5k1BMOaD6v6jW7qluF/OvxBV7IsPyNom/TecxqGyv8peWD8BdXUh/K9Q3qWym9fit/KZoB38lkErgX/lJaxF+X3yJ5opODFKwG1wlZB0zJKdmJiA1G4E/InEuIoB5XeFAupFRUwLpwhAOJuUM9MqVC5Ako89FEN0JEUtdB5xHqFihj4q+0jQPyqM1kHCIJ+0ALZcrOuhnJCGcIQUroyBn85YSdgjA+ilEgrTKoNbL6jyzxIlEscWpkuU+vuJCAaKwVnwv1p/oCZdHID3XghEa8rslfTh1QW7YD7sUtqDNXIKnbYXviXjoHUnHPCYQEZqJTOJW5wl88F/mLSuIxMTzjJC62anJX1jZUXl/B13j8F39Bw8RCHtA2E3XIKx2xp8PzyeBsKjxfAnZTaj6lFFJqMamawq++ENcW4nrSNxdSJ0BevzaWCMzEgGD/dMw/nQjOhzzTQX0m7LMHvfZ4WFtcXK1xwmvh76aDrXs3fzZ4v3HnpcZtP/xVdtF++ubww1u723ttt04eGZiY3LyuZnhiaOP6ff7pzp65QNX67WfvNR35za+7nw4tkX9//c4XNYc2h5y2hRJE+MXsYvlC7fO+ukNtj8bOHDqw6+AF99Dd0/WP7EMt284+urzv89OXatuvHDvWM3N4zQep4FzHqLr/vT33u7vuNN9d+w9bRjvPXe0YPbVjozo3de5Ge0/z7TMNj+oP7rjS8ezq0e0PJmbX/G7js6eNm9YcGx+4Rv6+85e/Gh5q2Lf7/PTTe0cu3O+uO3++tr/x3PamobGzWw/fbemaf3R5TImcPnp6dGZ83cZTj+9f2bz3cnvtpe1Hr1w4dKj2Yo1d9527eC2uTTQ+cdVU7X80MnJm9167f+a3H52ov3dlz4efORxPhb/j2siR6jPDE8/eeW+/Z/jmG5N/E0ox4c7FtWzMGw/rQZ/q8xi/cnRH9Ev012DoxQRQMafz1PwucbugOoJqVtHT0WRCPOVwOw0MVuSviK6ifKSUms1mAUeK2+hs7O0SvMa2zDqCfZuhFcgU2oTxGD2Z8OKNBAf7MMUo8BfvmUwGZ1BnElNgjTwZDo2lUHCjuRu4YzVSJp1BalIGt1BtbbOsTaEsUANSJ6tHo2DeiFI4/SeJGFCGUqrYlnjM8BSgLeNp4C6MAXhAztCtX5PVYBnJ6tcnUS+EyPL1LUkSe4zTCBRKKwt+U1waZTA2WmHj2SkmUxeB9qHiwvplEbi4hd/piBmfCNfTbRINQl027UO4qsa5glLR89LWjV7m3wpfZ+UlFNZURVecmuLwao6QX0mElUzEmY065JWJ2AFfIBUHxaRSZIwUk7/FpFYyNA9aLuyKaFMBZTyojvuVsZBnMhYAfCdjvkkQOR6YjXpnowFH2OdIRH1/YPl33Z6GbWt+4/FOVl1tWfdv/75cts8mcnt2Xzq5b4/j+YN4LnOy+fHuqp0n9++L66ORfPHQpaZd67bND9/uHlLA347hqZ6zlx+Pzly5c+/sgcP3nz5quXk5E9NpCzGHrHZdOL5n95PHHfdr6/Np78i8f+ZZ/3g4tnv3xTPVuz2zj9vngns37XzUfNMVCB04Ubdz0+YzV879+b/75fWt7zyamthbc6b5aM3j2cnd1WcuV1fHQ6P949qBo6c3Vm2/dvpA9YkLV/Zt8nmdba0DT6cmT+w7tuHgkTMHq/Jh57A3tmvP2T07tj9uOT+v+/cdubpn/WbfbHO8ULre+nRX1c6DO3dp032tQ/M7dh6+eujAs5H+icGeRDrzsM8WdE/6soXD1zr3b9k1O9i8UMzcfDy1/fOdvfeOa74I+Nv/rK/l2OVkwXu1/dmubTv3bNkRcT5aLX+/fbVtqfEvRnK1ENczET0S0Pwe1eh9GuD7wppHzB6owxWzB2tiV6flmdj9yCI1E1DCmIorSr7L7cnQFdEJaV8M4RQURmWAGE7txeeNUKOakuzGR5CR1rWUB/kIqD96KdHGUmj5RAUi+T41NYUHAX/xEbdQHLNVNMvUhDKAGU5SV0tZj3NtMprPwlBnrBIOpFDey2Uo+gSihmAH+WurrAFSuKZOlqYUyBzIplEEbrSax1GzzBhm/ApIKH4RNNsSPxHxuga8ZPlUuGwVma3uJKJWtqo1mAg+urfQXg31RLtROkblW1paQN77ZsJ56mHYVlyRwzEt0jifkAB1tGpghA1mzofC4zNmGydG1vXPb+CvQ3HbVbfDRDBVFbri1tzzunsm7J2PBR3JsD1jgS9fhvAbmisk3IBvCfJvws0wVeBv0ehBaiIwH1InQ9qU3z0W0qci/tmQfzrin46aIrD5mg155wIeeyIWKJX+oPx9r/re8bU/yWRju+ttv//3f1suOxbK5XQ6l0mnIMYulhdzhSIaMGv4qRfxp0wunzb8FQs9w2rdmdOdtune81efjM1ev1t/6cgJtEAua3j0kb8vskqlcH0xn19cXCiWFnC8sLiI81mjiGKhtJBJZ/I53LWQzuYxzVRi2S2/OzL36HqxVExnstl0ulgqpdLZXDq9WMbtpUw2h/6OW/BX5B5L5drbHgeVqVw2k8SpTLqMGiygCNyaKhZyJeScyaUNY/MiqmU8URJPlGbpyZTxtIYzuFmxQqGI86h5NldIJ1M4iWfJF0upZLqYz3pDqRP7Lw8MP2o9fmWx7GdWhhN/aWX31NfAX7wwjOdjWiqkhf0QfjFP96hmLD4f4AtBqaLAFV2qNdSDFcGi/CW4+VHSiBn9VgSf5fKvqB3Qe6lDQMeGHIovg+/oYOjG4BEEK3LwoZloG8DpMCVWnETvZU24XMM6oN/S2ozqY+pkaUAKMYohFkUXgWNaU9ksK3ssSHS+5C8tCijB8dFGzFBnsmZF7QRn2VxUxJ8mJyeFMiiaMTkZgFgiE9nM5SnO0JkkONHjSsLFKJSOJBCW6XFHEHPBjXoGMc8QhkrEOKtd7fKZDWVnNqOEXrImyYdZUeNkjTBJNTdqyEeQmjOAHO3kaAuMp6PXIhKddxjBg+8U/3UzijQRjC8OdWP86G+A70v8VS38dbs017yuzoZ89njYkTSUDy7rKxtzU/mLnlVM6Yb+N+HOG8GqjGiT+IgLor6ZoDrJV8Q7G/HPhfwzkcAL/sZN/oZ9cwEv+bva+L91d+/47M8S3olXfR07fIA5LCyWY6lsOhFdXFxM5YqxcKS8uuiXi4vlfKEEvGXyhUw8kQWUcZxKfx+LWkmlxXIynjbsdld5vYnaUjH/BzBANspKYQzKp2OJ8ioi1X1v/hLBcS0TVmMBJeRVfLoC/iomfwOBYDgU9Hp0WUCTOOtL4MtuIMpfT8VZTlSK6EtUPnDGarVAWiL/koxcpUGeovzFAQOTU3qSVTLO1mlGxgRatbe3M7wD+StyHPq2KCU500ehLAKjHLs0y8I7ejXjRgp/8c4FMY4lFNxsZlQzcaiT5+JJTsBbW1tpgYsMQW0c450yHUpk0DWugDG6hTQL7SJwIytsdVqhKpyPzwxxJREmMj79KQhlYfGS9TfPy4EsRGTmN0gHB6t3Hz8uj0/EGYYoMZYIy7SKEfGc4ZgZYZlfKFX2Ivyi2qwJ/cVp3UxLOwbSw0dkiG8KZ/DXb11we8FfxU0VhMutqG7Ivy5dsXs1ezTgSkTcyag7E1Osr3TUHQvM45WNqbmEljP1dcJfdLdU2BHxToc0wHcirE/F/HOm/Psa+Nv98EFXe1N3V+urvq5du/r9KPQ2rTa9Dvk3ruWiejKkhr2KX1d0YxMAXdU9utfQ3gb8Pq/ZZ6lPEJXicvlX1BTsNlyklh6OHiKKV1HyLucvZUy842LgiZpfJMq/mHpTeUoMic7BKqISyoCRGL1xDZAfqRq2VRwHQCuUQvsKlII+T/7iI3AMeKEa1urJYj0KBXzliSDBUaolTVg3nJRxgpawTFSVAqlUPkh8DM6yKd1TBUFHCa50sXTR3gxXdpEQRlNzygdE0TTvZW5iYydDoPi5UVK2isPW5VNBs24Jey/B7yUshkjKZDStZSRKkXiXcQmXkrjMk5iIVImORPEWRYhfCYlMfMu2Jig9Zkbas4ac/wb+OhU3EOwy4WsY/roVD16Ky6c5I353LOiOhZypiGJ9paOQSxx4ZWJ6zgg46S0kDWdRY9aY8kD4BVvB37BnKqiNhz2TUf9M2DfzWvjLNYnvkPBLfqPQeZskvQb+5uN6JuqJBdWgEegBgq+KX6bm8RpmDyZ+wV8uv8jkVDwvrAEn0d/EypUXW/k7NjbGBagRS5yd5YnKB0pD6Hv4CRK+oCEKHansl0NGS7Ku3dFEF8DiTJmmyiKD02yA2KIxBno7BV5whGan5C/OUMAcsbgYcLEeJ8FZirfkb2dnJ4U4Vp7V4Fo/oUkXDyQK/hRyFdPAgC1GBjE4BjUq1JbioKOjo62tjeWKt66tsn7I9qRvG48pmOMCVIbx3fGRWlf64CErnpSJP/+KW+guTKlc1Mci0uqVgBhCZBGWlxOZUyJ+pO6CmmVrJE+K5HrFJJlJFt9wMa0gWCWc5GAAHPM8g41YLc++ObkM+Br8NWRlt6q5Vd3l1t0uj+oMel0Bn9PvtRsUfumFSaE95HUkIloq6knHPMWUl1tzlVLeTMQF8oK/eAU1w/Is4psKeadeC3/fpj/+9B35a7ley8X1REgLelx+w+fCUNe5FNXj8wfDhj4B8PXpmoBsxcGW3YA9k6TjvNVq7USxVITc5eTln0QuxsXczktEYBQhbhHfkA+Jg78SE+jDyIedHHNwaglYBK4EItG3JS47xE/UnOoOFE2NrcibhD7gyDk+HQq4BkhRV2RSmsfhJG/BswCg5CmV1LQIRuOMVFzFcJLGXkShVcci2BX1RVdXF0Vjlk4BXOzqrIK5zVQfU2FC010Al3+iKzDvwp/oxyHaDF5JoZ5qZWJOiLlElWG1mhCpllKwKCvwLrv2WS0xaK1MQzdux0d9gtfcsIo4JnPpwsMzuAXfFDLB8eoMft2G1Ks48a4YygeDv5rLrYG/itOj2j3avK7O+XR7wOPwavN+j3Hgdkz6PY5YSIsG1YAXmHbGA84kXkFXKuRMBObDnumQPhnSJ8Keiah/Mhow+Bv0TYf9U8LfeGAu4psL+hzg7+JC/l8aGm/Ta0s/eGVt78sIziXUdEyPBHTA12PsPWj+JhXNC9E3FDImkLqxIhcwrSCilbScv+gGok+kd7LMZD3mhpJkGfG6ovGv8JfmShMTE/TvoAhMxJNNVoXDcv7SnxWiH6fVXFNiTdB1uXLFxSu61UqwYAbGxPUiDtOfgqTmO0VLXExDCGKO4c3EHk4egZEfuJ5GO2IJkkl5GS2Di4Hm2tpaXEyZjpoHQnlJ4gPS4JeSL20GaFfLW2jZxnVFNimfl81OqtKOgloaqlxJcAr7qCRdrqnQwHngnjYYYvPLu2T9kIpjWW1bQmGRcz0vhyiSkJ48kCU+TyW0tNcMWccIdlTNg7+yiR/ywa+Ccf2Vyurit2kgaITmVt2K5lJfvNwKxG9dceiqQ1PnAWKfBhzPezW7V3W47JORoJZLRfLpWDYZLqRjyZCWDqnpkJIKuRIBe9Tws4D8Oxn2jIe940HPWNA7HoAI7IMsPBn1TcXwAn/98yG/MxEPrHIFDAm/jdbvlPBjeKPQeZskvTJ/RUZ+wd+4koxoQb8OztLmwa15Fd3vDYR9gSBkV/I3XNH8LuGv6B8YIYWrNxIATBZeIEBxqUr4K3ayyxFM2wDcRezSFAwURueU7YgkRsHX8RdoYJ9nDycR0HVpk8A4L7SgoPEvgIuejLvwdFQHowLAkzWuGJiFCgB5bAexUKZBAkVdXkbSifUr/WtFj0ErKwww1EfX1dWBv9yZAixDrRh0gloIKnYpaJPC9OK1WtHSi1qsSugeLeMcLqYXtc20bKOdhpW/vIs5MFIatdUkPkV1UfjQ1FdsFQh32SyKzYUmks2ixIiNimORlxl4Qbfsv8frOXOiVxtjJVNLztgOovxFQ9HNBCfx8Zstf4W/quLWDGtfyLzkr665NCJYU1zmy+FRnV7N5VEhArsAZbdjJhryZVOxXDqWSUZz6XgpHV5Ih0rJQCHuzUbVTMSVCs8nQ7Px4HQsMBnxT4C/fs9kwDMe1MdDeGljYe900DPj98zHDfvf1cq/1y6ePbjmr46s+ctXfW1et4Y5LC6WS6UXe52YEZ9LDLJZKpXMP7746yI3MTGDmuIaM5ToV7FMeX7RPI8MxAjBuJ23mLkx3/LiV9lWsnphrMaTpVIRmZaKZk1KEsifUaG/iu4vby/CgpZ48Yszg67wf16z/R//7kcd5/cXUoFipbh0sXSi8ckPf/Lrjb/+p8DEg8XFIqNmmzkbFVishDFDRlJzVM4M5lpk4axYulQ6cu/xD3/8i62//2VguvfrDD++I38FwZmoKxpUfEaUSUP169Z0wNfjD3v8IfQMdAufRwv49XjF5szKX2v8B7pdkL9cE7eurY9UQt4IgL6Ov+zh6N60SaD+gVFrkRX5K+Rdkb80vJW1Gi4HcSSgATIDjFFPikRlJY3b0NXF1hj3UoC1LvEBUuQvsqWJLhfiOHMX5SygxrCWNF2ASIKsGDlIAkdwKxBc1tLS0tHRgVJonkH9AHUCFEKZCc0nqHxAhhxImCcDUFDDgFvoHm2rrNGJ6weN5ygL0/AWHyVcEe7il0JpWmyruZQnoyYlXzaI9ascqewXhUridlaYLUB5mXHj8BXQo09W5EhemkNwSZCefpxv4Ycke1HzB0btBG7hwE87aK0So/nb+AukOnXFrX/FXyJY0dyUjklhl+p2eTTV7XQoLmcqEc+kkngZB8lYKRUtJYOFuC8b0TIRdzpMfzl7Jjafic+n4/PJ6Hw84khG7cnwfCo0h1fUNxPyzga89lfk75mj7/35yff+r1d9bf70XeaQLZXvPJw4fPDwCTPNjdx/1Pd8ymlvP3m3XPZ7s8Ur1zsvnT7lfN4dz2WbHo6ePHrW9qA5nIqcv973sO7O+GBvIh2/2zt6oubM7GCrO5p61PiwXI4y81Rxof3x1NlT50c6G4r5SO+Et/furYVcJFFcqO+ynTp+1tbd5I5GH5xvKJeD2WL5WtvjU8ePdd68PGqfrT17Q1fGBx48TQTcqVz+RtuTCzWn9Zm+YCI9OGArILdBZ8A1Nu0KTTzqezKjD9/v7Wt/HAtO2bWo7UFPrJC80/7s0JGTuz/9wj757PTdB2eOHXvadaeQT055Imcv3fty0847+6q8cd+lWx2nak76Z3qjudLd+kcpZYCVvz+unDh0oefejWIuPJvMnT59996Vc2F18vF8aPTRo972J4ngzKQncvp87RefbWs/s6tcSr42/kLmFf6mI8bKr+ns5jFWI1SP6gl6AxHNG3CrGjpHwKdHQ/6kSSXxs2DiIhVhJOZHXsseGRR/6PIr02FrWsJNW8XJFcJgvBJfQviLbiYreJLbcv5yVQ1dlJWhVTIrAzGcqmEKg4xmwPU9Gj/Q+JfyL/orlarUulLQA/7AEc6UOT0XaZF2BeAaCQucUVPMHOi2S5GWRAZHUD1c0N7ejmvYVridEwVR0SyRc+l8jHxo9svtO+lshnsJZRpj2Co2avxI/nIYWKKXYFALsJLXL/FSY9wyW0UDLpUR+FrXP6nSYeR7uiOznnhGaQGOUnxAiefJCMLU/1L5S3mZWgiqhukLx71L8IWSv4zdsbrk1lSnoepV3B63on/FX111qRWvZHFRNoL/OQzPQ1cymUgmjBd+iJlkYuEr/urZiGLGiLCnI/PkbyYxJ/xNRebxpwz+GnUlw65oSEklQqvXP3x//sYK5Y2Hmm8d3jk0ZCju3KrzUPX1hp4HX/zbXxfLk7W9jivH9rZ19j5pv9kz5Tyw61D/w7a2W/V9M/YP/uKT+oartSePPHfOf7bhWENDY+/d8/0uz6H3t5fLatkUaCe12JFj59vbOw4dOu20dX5wqG3jP/9V3D085AwfrK550N7SVn+nZ95R9WfvlcuzSqx869qV3oHefQfO7N+59XLVly7P7OHtZ7zTj6aC0Z07j11vaD+3+fMZ9+SJw1czKde+U71T/bca++buHao+3jpyadve6i+O6bOND58pV6r2QLyq3n2oqa1l25dVHT39184ebe3uP7Ll04B/9EL949uXzu44fvvSrs9a+gZPHzl8raFnpPnMcyX4/72/c/AYWiafKpc/q7rcee9czZFLs8+at597dPv0vrq6Jsfz+0c6Z28ePLR3/XHXdNPJO4/uXDqx49DVhmNflgsrm5Ssgr8J2eHYcHUrxBXyN5/UMnE1ETJWfo1QZwZ/IRN4dV8I8q/m8boN70w1FPDGo8FExeZXdA5W/jLmGRW+VuWvYgarRQ+RkINWsXc5f5loGIBMkpVECqNnStwyCURrvVHQgB7OcOYonYYZHBsYelgwTUMFPhFK4Tad+MgVPyof6X/FJXiSDnVg5DDIrcSrbDuPIjgVQIlc16KcaK02r0SDcAIOMF29erW5uZmz7xEztC436GR8S+oB5NGYGKMHOaDaIBR39BgxbZMJVl7G4ugDzbYCZFmZYTNWGQNW0NqaMdVGTF9qUNJWCWTBiBMSHXjJl8UkLn/Mlq7Y4pONv1LRQe051/SemElst6mVpvzL9TQuteGATpUYGjmWA9OMMcTFN3rEUfn7bSpgyL9O0T8Yq8wuVXVpqiHvikuy8T+XYSJhfB3Gr0jVM+ksBmVMigw/oFQinwjmY17ANx1S0mEG6zFE4GzMkY3bM3E7yBsLG+/pqOFNl4s5s3ElHVViYTWdDK1+/+PXw9+DzdcPbcc8amr4iS8cFP6mypMHzvb//ue/+OSTdae3fnm7vbvtxEHcgbsGw+WNf7qme6ir9uTxO2Njf/E//fSTz97f9+HHD0efCn9Li+XuZ+57x05FYoHTN3tu375zck/1yYvXn3ddu/vU9U9/9866Tz7cu/6zxoFHVX/2DvgLmf9mx9jnazcc2PTFubNX2k/t9cQD5O+tKV/bnhpvOb7hg1MzE22r4W/tg/7eC2ciufjpc4322eHz95599vGGGwe/1IPa+TP1nvHHbUPqxWMnDl9u+sXf/Oyjzz89sm59a1fb7dprn72/vxgcmcqUj/5ic648f631eVvjtX/+xck1v/rPH7/30YOrBw63T5G/ttHGM4dv+ecHG/sdrVeOfw/+xo3t3UpxM1BIQl1IKKW0VkxpmYQWj6rBoAtSha6/CFeoezzhSNRbCfeHX3kkHEqu4OwWFxEYxJFI2PROFl0EDsTky7potqL8a6tsgYwOGatsaE9RlOjn3JzKUOHvclUGCc4959lL6ZqF7sQVMLF+Q7fHZUQ8LsMZGVFwgIsBX0rfcXNbHbxns1kqK/CAdOhCcQAxMMo1McacBCO4OjdsCfQ1XAnKg8vwINycFDdyzUQxlZu4DH9iKDUufD0wEwVnHlDA5M5ybH8wiITFNciH7tE8I9EVUDQtKKjVpcJBlL+irbaZdhHUL9tMc0CKzyOVWJErTlzkYsrLlL5ZNIcQDFEsha59MpDYKkbcdFnklhy0iRaxVzfDWdCchqoJnMdTc0qEY3yzdD5e9RLcy59eOgceO10uw3MSEJ6bnff7I/FEJpnKxpOpKISQZDyfCkCayUYNzYOpfHBxTpmLm35xRs9yJ2OudNyZAXljTvDXCKIW SH/ZlOvEH/ytfB3bXXDpjW/O3nyWOPlk6o2J/zNlyeP14/fObKhuW/44t6qxifPz+3dEwsr/fj5zbk2/ul75G/fzPTvfru1ubvz2Befd09PfSX/LpaH5oJnjx3HhHnPqdqaQ8cf3T3a9lxpOFV9f0LZs2njs6e9+/ccaHky+LP/8JtysF8rl/evPeOY7axv7zxzyuCvFg9s2HDYOdjyTA+e3Hf0qaZXf7BuwvFsw6Z9iuPpu1tudpxeV9c50XTiwPH25+DvJ18ce964p+OJ/Wb1tvbhyQuHDswqrh1VNQ8m+6p+emBsovdB85VwNHTyWtfz3vqj92yXdq273Nxz4eDuUw+Gjn/4zpW796afdW65MejsuhJZKH629nDAdf/E9fvD92/8eltT64WtJy/e7as9fbhjmvydn2o6fL59rK/2+M3Hjcc3fB/+eopxz0KFv6WEUkwZyodUXItGVH8Av9l5/ADJSv7WxY3NGmR9OX95QO8G0TYw5oMYddJjTUIOLlc4LDlD09pYJQID+UsmUowSJzceU3TilJaCFQVMRl6n/Oup7ElBs2JbxfsDlEGHI3/xFMOmux2Ay+A7uID8RUImuVxOjOGIYI4KyJxbW9JijKtSSIAyhE3anDHAOWPsMtHajCt+ZCU15hQbkQ/O2yoRkCkn4naufdF/z2baY4BWNjMMBdqBciuytUYCsip56ccsgiptMHjMPw1XQhcxB5vpAi62Fktoa/3WRGEipngjphae+ZC/oidhg1g3ruZyJc7QAxCQ5XBOjTAlX0rBXHzDGQ7/jExE/q5C/v32hB+s4aKsGVOT+Tm7y6nGoviiM4mkEXkAs6R4IpJN+gDcbMzN0JQ4IH9xYLziSgbSbkLJJt05w1PZXTCCWym5hCce1fOZWPkPK//uOtL6vPlSsWhsdz3ojf1v/+6Xf/k3/+l/+W//h4fXd0+H/Os3ntz40QeT/bcCmcyBCx1rfru27sL+g9fv//v/7n+/uH/z/drLwZi/6nL7hz9/f6DjzIG7T//j//hn4/fPLRYxgy+H86WTt3rWfvDpneP7m1qa9akBNZ65ebkxENf2nWn5+J2Pu28eHw+GN6zdenLfLo/bdurW4Pvv/Wrfpk//+cOq9//Dn8xM3d9Wc2XPB58o6uNNx+6s++WHE72XnaHYjiN31q7/ZMfn7xw6ceazD96Z7L5TO+hqOn3x6tU7723Z+fGH74+2n/dm8tuP13205oND275wu2z7z/V9+PtfN5zZmssmemb0tZ/t/ezD91su18z69c+2nfzkp+8MD1xvbbkf0WcHHP7ehsZyMXGqc3TNP629vGdLLunuDaQ+eHfH4U2f+hyDR7rmaw8eunTkZtDd/2DG89HanZ+uWdNzp6Zc+M76X5O/JUMENvlrxHAyov0mImo4pPj8bgO2Hh09AZ0EshvJRYDSAvfrEByvxHyQ62n5wGOKnDQ5ENupJSLwEv5ytou7kDN4x3UwvqP78RZOhIVKXHyn87G4LQBwtB4F4Mhf3QweJmpoyqEoC9eQqsifkc9IfNwFEMQq29kRuFQT8yOrhzMQwcS3QkhE0Y/05NhAqFGA5fIUejsm2lx/IzfR5yW0hQR2ELcIBk+gOJmuJNSBQdooXINowBPdl4lgtg+HHByQxfwKyF9KozQZ5i10sLbKwmKvsuIXR/3DcCW0G9qfB7SIsJl6dm5zRxZzfZWLlhLEg2uGirlnB5qCnm9U+9DtGF8l3rkQh8tooMKYk/xyV2cC8S3J5Xa6nHbDMU5xQ/idn3NGwvFUMpswhN94PBnP5dPZhBc8lQARpuRrwPdFsOCoKxlxJqLOVMyRNiNYZqMO8jcB/mZjxv7Kfyj+JsDf8w+2fPpJTc2hszU1zsn+Q+dbj56sfuefdjxoOllMBlcsdyxWPvrbXZp/fH58rFRIy3lnorBxyxlb99VSNrHKR1gxtfbOPbpzHrVb5fXjWsw9PGzuiPrG0/Unas+1K8MDI/geV3P9KvUPnmJCLxmB+lUjhp6x25AxGwr6FY/XMDmbnDKkrba2NgosijkXBkDJnW/gL2M+SJAzsXwQ+/wRcwsfmYl/g/w7Yi7fo9MS+hBChb8ADbIV+1brgo/EPJO+Td0llSf0GaHwi74qm97TPwI9nzZMKAViO40fWCJuxFCEv1I65klcye07GUCdWkiu6Un4RCo38BQS6Ha44i0NgFJtQh0oGhlFiLaUvrngkSgcGDDMqn/gA4K2jMJBt0BK7iQ1dbUSCYgaYfJ3xIwHxOjyNlMlTSMHopaLbMMVUzYOVDZLXKFv4K8gmxczJhyVv7RXoaHbSEX7zyGE3xqfiJ4g+KsYDtNkkIHhCVna+Uqz016FQS1E//t6+Ot2OF0OQxR2KdNTcxCBQ8FwJm1MiZKpeCYTy8Z10pbReVbkb2X9zc71N+PiuBYLq7l09A8p/5YWy4o/NjY2YWycOjaWjnq1YMzlnJt2eHX3/MLXRMBJF8t+pyeVTsbC4QWLtqSwsDivBkIe50Lxe6Ewlsgmw8HVRLdhCqfyieArXP99UiiZj4VCQV+4kFvV8LC69be4Dv5y/c1Ygkvo6YgWCrh9XrfuUbw+DyMENjY2ghH8TVOTIBZmK8KXsqEYEonlAw2/6FBLMwCqRylkydr3cv5ScCMQxfKBBgnIXFzRRl7erN6ayD70Ujq5MsQi0YbeSxINVeL7gGhUcaAIzQy/K4WiEahjRYNwL15qgbmIRMmU4IBEhgNMHYAzvFN6pS8ZMcTJOPXOfBfgojINDQ23b9+uq6vj6h/Vo1RliE6DAiOFfeTc2trKIGGcjDNIBZ2qOQ+QqEA2MwYQFQuUhYl+Gp/hGnxTvJFrdBzD6IjBHKiJHlnJ1EESVckSfJ07ZVDPQLsRirq8UeIuWYdSjgdcSRNPdxnCOa/CV8kgv4q5NovfJCMCC3lfC4LdirEqZ1DY5dJU3TnvcMw7XHan3+tJJqLZTCyVCBg7dVmEX+oiyF/qH1JR1xL59zvy99LZI2v+n+Nr/u9XfYn979v0ptO38zcXN14V+wfjlcdUKKwGvC6fsbWmihkX4AgEgJKQNWgqwD3T4iuFOpPFt3gl5o6nsistdRHieQGJkltFkCAy36SgJEapdBsbruzLie7HNTfCl0xEblQiy7rN1yVkLi7FtFamMhGgpKzHnk/1BRXNFKbQnyn/4gy6OmU0CA6oEro9n5p1oNA9ZG7xGTd9TyjukThceaO5Locf8ojTf0rokHzRRBgnSC5kyKDmlEMl6IStEqhehEf8ib4bjG3PPT1l6U+kVwElI0hITE78ia2NmgDcKJQufLJoxlvES5ujpnWos1UWEm0VNTr5O1QJfyFOIhwwqFsAlMWMj2OwrExyLsJdVmkzQ20vf0USwY4hkrkuFzP3eKUVsIT9fU38dZuWwG7kqiqmM6hbcc7NO2anPaojEfNlU1/xVzS/oghGd8vE3NHAi/iTscBMIjibDM7ir6mIghlnJhVePX/xjdz9TgmD+huFztsk6dv5a+xqHDc2eTOt0NR8XIl656IBl9/j9no0RVOHzRV89BCIVAyAKytvssPbcrUvDYHFtJa3cOGO6mBkRVmPXVTmm6L7k6V82erxcWWreaABnQG5EcG5XA69Szw4viFxxs0pKo3J0HUV0ymWFqnDFSNWsTJmlCmGm6HeAydRAZlroz5ix0Z51lbZpH2kErtSMbf15EogvTZ4gXhSMGY8Ywe3tbWhMsgTJ2tra9H4KI5eBtzkDd8FgzAQ3BRvaUPCCqCpWVW6pVABzfmB7E3HBkGhyBY3co93kf1xHmMtnpqGbtymfth0fqEayhoIgtBkHSiJP7PsYYq7xKzCaog2UrH64MgqjiRMEo1zwNwmDn8Ffz2V7Y2pxeJYznAissaLY3rH0CPu9SaDvKoRo4cBelQ647ucqmPW7ZgK6POpqG4EpbSsvAHEqbAjGbLjYyntwYFfm/Bq4wHPeMgz/sL/uBJ/Jx71l4qrjXv7Nv3xp9XyN1fxvMjFlExUiwYUr2b8zMbGJ+8/7CYdIP9CYqXRO+FLpefX6R8k4C+7CjdIFnGYbhfWvdqs0i65xr5H/SZjdA1XvAy44o/LuN4ixr/fzN8hM8QXimY18BTcvZGmBQQHZTcwhSEm+IyAFCPvcL0RHxlegC5YbA1Ugw4LMp0HAiQHKhBARlvFEmu4YiEni35sBNSQHgQce8BfRjNADpTQaRXAYYnWFJ2dndxeE21lMwOb0RMa4wre0YZcAaO3mxRHnS/XSG2m8S+/CGYL3kEApzMxh0mGjsPtDI6DZsTJuBkZmXbN4DWVsCiUQi7VDq2trQypQQs/jjry+COW0HRUVTPUL6dEqDw9UJRK7Ai684gumJEiRB1BGxVaR7w5/rpe8FfxKKpfdfsVh0+ZDelzRiDKyqacVP4asm3YgXccF1N6PDgf8k4z/k7EN0X+0v/Yh9sjvkJhtfu/vU1//Gk1/FUzIK+hiFCygG/EHfbaAx6n36MqLjf6+K1btU1NzdT8KqbHhPhWLPG5WJJE20B9hfCXXYV798oE01YJuSu90WYJY0azKgCCu9FQEcHOLHvuysbJ35CeVbadpxgOanCEQHcFcWhOSydgbj8h6hRuu0nW4CPQzE2JxAcEx9w7jkrSEdPYll5YYj4BouGpaWdmtRmwVRYb+VC4gOERKAvX19cz3gVy4FbHbB9idKiyvxFhrZh+AQzug2bhtEDAKlu+j1QMRdCwNOpAO9CymGI42gGPw3BrHPy4YxDOo3p4dlpW4FfBnwF/D9IU/GHQLBfNCIFdpHtqPJZYaguFRyoudqJK4hog/iQB4NGY/GlxbY1RKyUSMcdIbkD3pvmrGQGC3V7FGdAcEd0e89kTQTtpS+EX79aP6G6xwFzYNxMOzJrxJw3+Rr2T303+xbQv/V3Tm2TO2/RV+hb+cm958Ddr/lYyhtG4K+Z3RwLa+CjmpN0PewfaO+43NTVB4qPFLqft4vWwIn8pFFsjnNHtglInO5KtssWZlbkiEJG/nKQTzeiHjKiNAwp6so8DRaolRmwrJpoHELiMfCihEUlwxvFiaAJZ9Ad6uNcc46WhtwOjsimRUBhNxMoQHBIkiBewNXASMEL+YL01jI6oPmmVRa3lSCVWDs6ghnQ+ltn9cCWgms1cRiPauNEcigCLUW2UPmJa7HJlj+ZitopelS1GHTdagxuSKuZSJP4k0fSpnaBygKuLBDd1QVyi5CqlsJhblPLZwWgunFLspYJCtvmQKMYSCGLY4kHOcPU4z/BDXMi17lfCL5E2NhxTUSLjAq8y5u+r8tdpvqz89bkdQRXwdWTCroy5F30iOB8PzJG8fBfPflPUfRH/l/LvUv6uOv4v2hDDc+erpxs3brxR6LyhFE7n+wbH0UsTAXe5EigHKZLO9T0ZhcSUjWnfs4iQmdWTvr5c3Ps9s2L6dv7mkkoWr4SSxlgdcSdC7iCEX901ahvp6nrY2NTR1NxmG7HRiAcyLO1bl6y2rah80Cv7gaO3cH4qng5I3KmMCzLsZsMVfyeRB+UkZ6M017WZrlPsliQO94OwegF8A39xGeuAZ7HufEHXYRLtmblRBY2IqZok+MgIVpKDUD6f54QXDyiKY0726XBMwTBuejDjGgkZLLZikj+13iQdZE+Ib3g6GjNQYU2TOJIavYgEpy8yZuhcRqMGFnfhI8AXN90CR0xnhwFz/2Mk4ptTAcr4GEXwZaHaWWO3wzSeiJHeCNOpqSmynrYQ3IaOjiEYcuj8Eq+E48BHOgHS9A0tw0hG4qAsGnYqvpnYAvge6dQnC5WENWrLzYTowoMvDhVAJgyRQc8LiSuN+tOu/LUY/C5JLmOPohe7E5G/XkXxqy6/ao/6DduydMSgbUif9DhtfmUMFDb3q3cVU7q51m3wN6BPLtE/xCAO++eDPscr8beuro6GN6+ajh8/zhwWFsvJVK6Qy5TLi+n8QiwcyeVzECgWFkrRZMbn8eUz8eLCQiSayGeSjFKWLZT8gQg6c7lcLCyUY+F42awwcBhLZr0eIxRcvrSQjMRxQSpX8vr8Ib+vmM/kiqVgMJqIxwrZtBEObXExHEsFPN5iIc0tOI34ZNl8IZfN5ovZZBLH8Wgsm06WFhZSqUypkHNH0/vP1G3etrP20L5cUg3EUgBKJhl1R5PVp+5s3Lrz3p6dCwu+RDqPaqTjkbIRk60ci6ZKeUPeL5bL4FDY7ysVsqhtJJ7xefGAiVxpIRU1ukAunXKEE9Unb2/aurPlcHV5wf/G+VtIqvmkC69s0p2OGSuwQZ/La6y8qU6H435nV1tz28Ajgzj04+QOb1+ncLDGnBS9KroBY5xTC8wtJNA9ZCo9bInbIqDkRxFpKRZRUyn7Y3KmTwNSnES/5XLNs8ru8QJ0EaaANvDIasLhNfe9RyVpYSoDgAjjQg2buVrFwMHo/0SquEHjAWWDMsJlpOIgxwhwuJhLYRItgWmoklgEdaaK6XyBKt29excw4lSak4CRysZuw5Wd26klJ7zEyg0Ep2IUkiNlVY5hbDRqjdFiKIVyKwOMcU6DG6lv4TwG7YZ+HjcjECE3OgFDRkY+KIUKBxF+OSzR9Jg45oKexKlYMtER5YM8DsckRv+hdTOei9EwFNO2DJXBNZwZcBzlgMpodqgnNwp57fAV/hovI1S7ZiBYUbyq2687Qz5HDKJu3BX1zfjco3iFPcbCGoVfvLgXZ0CbWK7//W77XzQ0NKB5vwMUTp06xYN4oXzqSu9cX0O2VKypH9vww5/0D/d3XL4Qiwe+OHn3s4+3dJ3fOuv179p8QhnrZGCge09nNm2t3vXZTt908xM9/fuff5iZb8Z5byq/9fidDZ9ubji795minHx3Vyrvvtw8ULVjS/XWHUMdl9tszs3vbj5z/tJ4601g3J/IfHng4qaPtz6+t3dW99ffbkgmvLWdo7ODbV0j7rZTJ28/eLbno63dt06Go5GL5xo9k4+0ePqLIze3VG398nfvjtj61u+qqdqy9dbhzU599suaq5t3bH3/b38Z8PQfut6xYd3mqwc2ZSN2V6z4+w/2z3ceRg073LGNH2zYv3X7eN8dezS94eCVjZ9tuX+9pk8NnP90bwdmkHcuu4ORLw9e2rJ96/qf/qocG/oObbskfTt/iwlnIeHMJd2JqBIOKiCkx2s4vBm7G0Ce6usfMLVvimn3wzWor0vCXxoASSxXztkpC9PxDN2YS1XLzUWXIHiksmUOOj/6MzBBHatV+2mrhMuhm6zsNUlNrsRzYKwZKlKsOw9x0i0mrtZFIYEFwYr8af4htsB8B25oZEbjWVYPN6IpwAWBDgN9Uc/AtUfZn4K2ELwGB4oZcZH6X/piUKsreyOJttQKMlslPhyEU+CP+kHcSF0EY6FR34pGoAiJYZXmBDTwoMscQ/ZQL8xAxmglLiFOmon721O/LJooaQrRBeMksqKqweoOTldpLuVZtU9cfWUSMxIOSLJsgBEFheLLamlpYQgOhk/id8qhjrOHN8xf1diZyFyC01WXz+OMBF2JmCsRdXhdz9X5IQi/oGoiOC/CbyntwTH4+7r2f/v+/I0VyruPtk20XR1VQ+9tP/vpn/x1x6POu4cPDnqVDe/sfjw00NtwY3hq9vSm6nzacPdKLZSPnmicGuy6Ne69snXrlfredz796PHZXeWFTPe0b9e67RBRejpauu3Krr9dmy7Mj07MzEyP32zurz259Vzj4LX1G87dezh0+3S5nOm1+2/WnLCFAl/8w9rxib7LZ68m4ur5uqfj3bV1A/Y7u3edbej79MfvNp/ZGQgFD1VfU0Y6O8eU01UH1Yh3x5bDE6N9wwPdPTb7/vUf3utrunrg1HQo+PGvN408a9y9pQY9tbOpKRGY65/0/Xbz7tub3kkVY9X7u5xD5x+OqddrDtb12vat3/Z0+PFAV3Or3bf/p+vuNre0njvcMuq4cejEXDi4Yc3GcuTpd2jbJWkV8i/ga4QCccXDhsObV3e73M55+3xLc3NLU9ODri6nGeWE8CWzvgHBonyQ5RFaay7ZKIxCq22lcAFW/so7eix6F35tRBulyyX30hqXCON8VmbrYq+KY0Zs4bo56skldU72xa3AugZIrQWHAYblRWIgSnEAQaK5GBUXIn3HzD3qASxyh8plxod8UEkPK4maBHpAoFaoJ47pqUG3b87QaUhAfYiERxB+0QQN91IapUs0RH5GkcfzomIYAyD54l2cICgO409kGdCPEvFdIxO0EuqPbxBAx0kUJJut4WFRTxpEW1sjWYlIx2GJTnf0sSaLKaQzkBtd46gPEcMMJlSbQy89QajIwoPQpRu3o2J0Hxe/DA4esunGG+av6jbisiuYK/o9znhETcbcIf80hV9IwamwAy/IvOQvXvj4R8jfx02XbzY8qO1+UPUPX5C/7brrz/7XX3zw+Uef/L8/Hh5pF/5GiuWj+264Rnq61dCuddXXT9c8HHiwv/pcLjhTP6b/8E//ed36D9f/4tcN/T1b/tOH+eJ022OlasPW/TuqZgebLrZNgL+n7z18cv14eTFdP6q31hxzF6If/uzgmK393MkLkbDrxO1HI+1X7vXP1+4x+Lv2x+/WHd/iD/gPVl8Bf+sG55v2HYgUYgf2X7M7B/bWNG1Zv779yv5bg+Odx0/7Csl1H5/of1z3jz9et+6Lj3/3dz+zD9bdbh/s627YtPemOtd94Mubfmfj4Jz/ypET59of/fA//vTjdR9X/f63d4dGhL9Xn8w8OH0qUEhu+fzoH4q/cSMIUypiDOB+r8urK5pHh3jW1t5eX18PHngtyrUV4Rt7ecNNmv3SqYz2mBR+GcEH5yFzyRY1AtDlpgtCWCKGMjWXwmVTHNvLwSKsMBIdK7f75ZIXl/UpiVulcpTe2tqKC6hXFWc8IhWZUCLj2h0whFsoKpI7wA0tDSjDUrgDpvEnl5nE5Ux2UxdDOtEyE0+0W0BDoRQgsrGxEfVhMDMqiCk/Whev+HQ0BGYMM0aeZA1RNw6fZDF1wZSFrQpuam/QGvgTjXw5aFEnQF8y3EvNLxCMA+QAXlPBYtVCyL68KBrl0qtQxkj5aqgV4Xylw0z0RhEiM+ECbjXP1TZ6HjMiMINPcpjHOy1S6Kn4uhyOv46/ThO+irEvkdurOYM+F/gbCc7r7ueAb1CbSIbs4gJH5UM+ocYDc+Dv69p//rXwd/vhtmMHd7XfuzSgR6t+spH8dQX1Dzad2F999Nb+L+72j3z8o9/65nvK5VKxXD5bN3C85ujOg5cuHtpRd+2016scv9HuGr4/7o2t33L4xOEjVw/vfjBr/+lf//5+47nTp9sundh64dyFwd47Xx5o3vL3P9514Ur12veU8b5pX3Bz1ZGaYxcubfnYNj+9fkv12fPH31m37eTe9dt2H+2+cOBs69D7//ju+o9+c+78+ertVWHHk1Et8vnmY6fPn1u/5sOx+Z5t6y5cOHe48fLekXnHxu3Hj527+M6Pf2mf6aw6ePHEkWOndm5yOkbPX6rzzA5d7J58Unf5QvvoiZ0bjx07f//G8Ufz2vqN1Si+7nR167x3/89e8HfY5dlUBTxf/PQXv/rD8FfLG2YPzkTIFfK7fF6Xrquz8/Ot6PlNTegMbsXl0V9s2ibhDr6Ov+KOYeUvfY6JOboncUHcqlddkb88ye0y0QORP8EtSoklWgJrqAfR245UIj88M3eGJ5uoiebOF1Qs0gGPVxJJtJeiWEo0ANAD5nb0uIzyIJ5aZtwMHzFU2X2OHsAQEnExSCHRdmRzjSX+tTLpxo3c6oL+gYyNgKxQT2rMhyvbd8pUQPyPOWagtriXHORuSWA3njebzaLO3JhOVsOsGh5Uj0pb3E5ra67RUVAlKzm0sLZoItlmzeqRyCBwYvXBJ3puCc2+xC98pLI1Bh+BxidobYaIa25upuWJLD+Iq4Xf3HWQNjn4EjkMUJEt28293mRuD6fiZa6/KcZ+GaqxWB0NKMmIGg3Yfdq41/Vc+EufN/IXIAZng39k/P3dzntr/+avAs7+p+EF8Ff329xTk/l85tGYvf1ei9f9vH5gbt0/vON3PGKABVcw0dbV/7ilzeNz6C5HPp+1q4GIV8sWS49Hna31rfrcSCCT63k48PRR/5xD6cAErq3V45ndfLRz10/+cWS8v6utS5uzZfLZ7qeTnfUtIX08nMw8Hplp6+joedA+ODzS2doUUWdm9ehQ/5OHj54AjOPP+hay8XSx1Geba29ufdrXnUr4n45rrQ0N9tH+ZDbdMzTd2dYy8LA7l/aPzOmohmPscSKTss/ac6mYHkmp83Z/Jt3S/Ki/oz3mdyaR1dBsR0Or3zV+31c49LPP3NqoNjeVzOW6n03hx/esr7ecWzn80CulpfxdvgVyznDXUWJBt7nypii6+nhwEEJIl+lzPPJ8xOv10FRWNLzL7R9oqBSvuCdAUNUrmyou8TkGhWlgT24ucZ9dItLir4xBw8jlgi1x8BUdxbAl4MMS7QETN8dEDxcvVdotUXSiXlUskSVPsb7g7JguCTjGw3I6T/7GzX0WJHyPzfTfBTUAPtQfRXM1ibvEM2YCDRXo+Gs1oeNaP9oKZ7jzG/CNenKLPHmooZcjDUkaNmM1AD2MUhQ3bRswNiBDOlKznhLtXgY5Djz8QmWdkHlSGuWyG4OoUclDNzzK7Ny3AvmAyDReplkuZH+G35SqylcjFV5CZPk22TjInCFHuNQG4Er8Jrodc0WB6ilUXpQPb8b+THEZmgcGBHZrikN3zwe8zmRES0fVeNARDcxFvNNU+9LygZ2Oi2/40x+V/JsslA/dHXhce26xmJ1JlK/tvjg6Y3vS2lLIJYxt18zd1+a0WMulO/msn/YPiy/SwuKK6WtOI3UNqX0XLi4uJl6+fsUbjJMPRz3TD9oXFzO8pPzSH1e8fWHFw5VrxwcxPz+PLt7de3ZwZNj2sK1UzH91yeLid2jbJelr+UudlLG9fEzNRvVYUAn43JBZ5x32huaWa7duNbW3Tc1OuxSXphuChih2v0HnyyknI/wStbJhrXgho1dQ1WgVhQSjMj9lVxSLLlo+8EYJZriEsCsmydCqSaQyWgITc1NL+r9SuyorY1bxEISCYEU7WapWk5XoP/hI1QeVD5R/kTONsWgPi49UTDMWhETFFEUwbWABNQb0wsVcf6Mek44bNotliHXEEnhRijQmLqYKgqKoYpr0Mmwxg1hSAyBNzcEMz8hxhTGLOZ7x2VFn1ApjCaP5jJjRKUUtw4gQXB7EecrpfFiJaMw1Nxl1JCgzBeoldBZfOE4IFHMiRaZzXZdfosjC3IsID8vd5snr1w5fJnNDesWjGxsi6opdUwBTZyquxQJ2vzIRUMf9yhh9jvGq9LIX/IXwG/XN/PHw921602ll/sr2brm4mgzit6KFfZB/1VAwYHc5a+sbGlpa7vf2OFS3N+gFf2n2YJVzl6sgyF9RPgh/xQVZMX3naPnAjeIFH2J9ZV1S4zG6K25JmhFwuPWkCG6r5K+tomWm19wS/qLfgiyMNSEBEinQSfyBYTNAAfWYVD7KQhMPkJXEjhiq7ApsM0NKcu967kjPFTarhkRCQIg2FkXTRA8ga2xsxDSc0hwKRcVo0SGB5HmjWLBRLWAzjdjQ+LIUhqYDvqkZIH9ZtICb1cYD0mAObULfClaPwxIIjqeAGM67qCB+XonpQ1LjYrQhDSTwjtpSaOUuxXgEGhFz9UxCPYhSmxAXVxrRSyimv6KEEKEugrKw7KvC1UL8lf7oymsKuLMCf11GAB7jF626dHXO752PBiH/OqP+2YAy4XON+ZVx8hfyr5W/+Ag647LXxd8bN27cunWr7tXTjh073ih03iZJXyv/vojJH3VnomoqpPtUu646Z+Zmmtvbm9s7ekG9uRnN71Xwn99Dm99v5i8TJ/UUeK27XbCf4F2MOtnlZOdHK0xHKu5PhAIFScbHkZ458m2uFksSDbOQCQcG0STS0oAWDqJwYLe3BoVBhUEc0hO8FvhS6YncZOM4mxl+QUI0yIYX3AiOwR6tA4M8CwsFv9jPUeKdO3fa29u5g+Qzc9dhaqUllrzscEwos1AeWC0TQCIAkRVmEEvrgCf+L8iTkXPxrYl9GMO6o1YYBWnERgTLJnLcCWnYspsGruQO81TUWL202WIYUWgoQjGZa6TyaPx50HCFPuUyf2LkB/q2Ub+hV3YRpL5FMSV9TrPeCH9NB2S8G7uBK3afPh8JOeNhZzQwF/ZMBZRx8BcH1DyI5QN7XDJkB39jr4+/EgL7VdN3k5rfpu+Qvom/hsNxxJWJ6jG/5tdc l17Pjp69eati9eun7pw4UF/L+Rfl+4KR0OxZWlF+MbMrTbFN1QkFAnBw7C5pBIn4Fzs5uIPQYxOLnIZlZKMkvO0srH580qcmhWX7JankYorHbICO8hfdF3xm+Iyl9XzdYkembN11BMopAQtlr9857jCKfPzStBFq3KW1QanGOmYZmSEMjFH+PJ56RIiojTaCu0m7mcEFr0HqVYWctF+gwkXQOblRATQBBOpMBH+WicfVOkIf/E9koysGPUGNP7FtwO2yhZE4vzCp6aSgXsjDZthz7hdBZdh46bHCjLHBRL0HUXzGx+xhDOmgoJzEZwXs0V8ZfgKqKvhAM9lBsYkwe+EG74xutPrh6+x9abBX9WtejRFdc/6vPOxiAv8Dftm/MqY3z0WUifpc8GAD1b+4jz5+7rsz96mP/70gxfbG5O/Rmx11Qwy+WJDqlTElQwqIY877NMgSPQ/Grh9915jW3tnT8/4zLTi1V0eJZaI0qrh60RgsX+g8sG624V4wXHDcEJEeESZVKIOssvR7MlWcalAb6cER8dfq7S4Gv6KsoJo40o6e7JEXsdf6TlGsYtmTxLZh6oSmk8w8oNAikSDGEKogSOiVKXtqvi58Ykot0qQRj44iqbHmmiBKb6hPg1mamxsxOMTbaKxtQ5FI5WYNZTWKQ5T6BZraFzG0YJDhbgIUgjlMR6QsZXxUDZTicGhiLoXqhTwXEA5W4ku2iyUygdcCT4iB3zXw5VtL/B01OfgepqIkb8sWqYd1qmArWLQgtvZ4By/8a2hxNu3b7e0tNDsgYnVRuaAL8n7hux/jY2PneCvpmuQhKcDvvl4xBmLzId9k7pzxOO0xXyzkHMl2plV/2AsvoG/Zvydt/z9LyT9IJ/Q80ZIdcPUt5BQigm38TLiTBrCL/gbC2oBD166fX4ev/7GlpYz5y+Agi5N1XxeX8CfTCVXyV9aPlDmkt0urMpfSlLS+a2I5CSU5gGyEQYuRjcD5riLj2gGQbola3eS1cjLHhlyAU2puLRFR1XKv6gbTSNoxYVSZPtOGtVSVkWVILpSD8voX3EzNDDX35AJlaFLAksKKFkxDjDWtSap51BlSx5Ug1pprilxvYtxeCVuuq2ivqDoKgMSUchrcDE9dElPXMm5KnW7Aj4r0HEZ/dzi5mbPHAi59zAjz3EljUjl4hvNjcliPgIto+k1ZzNdVyDD2swFSaCTftgolBI6VzWXG3LwI+MNUZ6lkIuWRzXq6uoYooh6LVqmUwtEy1+kN2H8oBjKX8VY21M0VYEkDIw6wN9EeD6kj+uO4aA2Dvimwg7ueVxKe8TzAh8NBcVb+fe/sPSDTNybTXjyZmz1haR7IeEyX+581JUx9sd2h/2GpWTQ5CadBdDPJqem1Irr2tdFe1iif6AJBJUPEt2GPYQL1iiFmBMj2SVJJGLyjsij6wGXm3iBsEPusr1sj7XEkokXcCWd1r40p+M6IZ0vrFtSyr2inSQZuR8aDmh2JolqR3EnkTm77eUgFUNmYEmKyYyJI6KxrJ7RhEsxl5u4iQ53meTOF+IwRkcMCtFknPCX6378CP4yJjK1HIxSRt0upyBkN4cNWm7QTA1fJaNGUMTmVkzic8jYC/wShyoBhW3m8iaGK8wwuLEpb6cBGaVp1IEWMmgBfLM09aU2hvYnsq2cmCfjJPVF+v/P3plAWVZV579c/zgSQFGXA0sQCMZWCBqIRByyggqikkhComiM0QTn4ICGxCFxRmPUJc4DAbMEDVNDd9MDbSsCijRdVa+gu+rN8zxPNfXE/7v313d7+lXRXTaN3SneoVZx+9Z9993hnO/ss/e3vx3Uz9YxJKRA8mU1wxvRhr7dmGcPBwSnMtlkpuCVREwnC7lEq57pNlKdaqycCRVTY51atN/6jdSv4S/kh3phspbfdhD9v8N2+Lff4O8OH393+/i7o5Oea6WnG6lePVPKJ9Wt1aEp+p31DVXTmkIEayn42/ZrSeB8AD5MFZvBIxvWVr4L8XdhSI1gOlhMZpQnSeGjsI7UGDbKl8XrFm2cDZ9p1mcycV9GjDM+sgHiALiT1oxHQtewEH/xDwB2OlJGK+hmBjtAps9u2LABs9qC/mZ6myAZ2S5wTlhAZH0tYLwiHIzO5Nq1a8lWMP+vmoUQURQC1vVxinLKTsRRYPQyY1Jrp5btMLiFv0YT1F2Dv5wWFWC2R/3aQkxXyMDjDtblrV+/3shwJGvorzwf840Y/YOlD8sOY564isYkHyMsSTpf1ldNYq4i+EaNKPDXrfx2kPE3W0hnZUwkK6V0t5Xv1pPNUlj4W8lOdGqRbjM+007jcAB/+REoC3wFwe1qbIi/j5w2MtspzXcLfnm33E7Zv/7P9nZ6tunhb6eWaTW8Mt2YY1pXou9lIAWlYd/4S7O0CxsqYIctEjFnbM27EH9d23M8kBAL+ekPWHa6PChirLJBBIvXTTiiYu4an99WUJK8Kd0U+Ks9YJ+ZjSR3hBymrXlaQf+On9zlNtydMFtZpBNfMi2I8UBYndgXPAHzcljEn8pvlrcCQ04XrBUA9Tpdp82oX8/YiGgY6abiNu5rB5Orhu0v/CUdDhuWp2SZ3OautRqgBqzoXnIktwmk8nErp4TvHjy1OtNMFSFf65n6clTEMPy1jL6JoPiF5R9iWWf9YtsUD2R1Rc804VD+qWeV9FvWZ549XP4H/eTyKQ/Zk41qtt/y9NRr+a0C31pha9vHX2puuvav/tmrJ/bg79D+fSS1kbmug79dD3z12wNfT+o3Wy+ncxkvX1Pj4eabb1aPp0MDoHgVliK403E0d4z54Oqvo8JlEr0LQ2cL7VbzM7CxJSjCCI3U7EfYqfBGBxyIY4G0GLankJrrcZV/La93PMhpdm1zs7UxY3WSSCQyQPrp+cK+KCMLJqiIDhoi/WN2qxWTH/M13V2gB0AJN5HrBabwSPWChIDu1BJy6gpbBh1SyOaKQUqClYRsT32jTq5rwwCHLKENxHkxYHF2M11pm+qiUNNw+IKzHDPma8wjbaGvAO7NFtY/2UnuNc5oLoylzKivLDG2QH10LFCPozadTZl6vFnf2oXtaxk9TCpkXpjNCxAf9JaBgZZJFgvJblPGb6penKxmJ+o++HYasV4zgcOBH0Ewsr+e8kNua6M41Rr6fx9JzcXf/M5udlcvu6Ob9cC3kW3Xc7VyppBNI4Big58ubp7f/fp/O37aMXQCs91c5wPMM2qMD1B9F+Kvu9MibLhitQcCqb4Le1Y7LUqGbg6LX9M2xMjCoEM3x5TPwF90bfhqy6wbc4J7WMScRFCCqs4A/sJCQ7y876ecUaBT8KHjqQMvRNAZADJDHPeusVKhr0JopdADcsMbNmxwVRwJZ61bt86yRRCyodIwiwPBq3Eb9HFzd5A6gdWv44kc4nmnwgWBNexfzsZlQ/AASblmMt+YVjFXeWjMNDwxFj14zzkA6EdYgw1embl6eOz6UoJsZFt0/EQ+PRm3d6E5qVegBwVRGhc/gdaHAX91+mQ2HasUk/1WoVWKVnP3CX+bpcl+K9FtJnqttDDX9TyY8oPwt1kKD/kPj6g2MuuUlxf+bu94xu9MK6fZWwuoQi6ZSMTg+Wswm8oqvsKFVN99NFcG24CDwaMGjd9d3e8Xf82MBUMJebP2RwUYLVo4sKGAYYYnEYVDt967xrygjeU8ugGY5xq01BkyqhkeTygWGHRuPXmdxK2140IwzC1IabLFuFqoI6RC6BthueFCsZrzOBDwThDupzaoWXkgGqt1fBcUbAdVcUzjwNW92BODY8C2Dob5B5HOyHwYsEw8BNDM5wD31qAQMxlLFk83JvaAw4GPg9E4LqAtWwV7s5SBeGKJ8PAQn7MYow6z9DakdpiZ6F1m/1qOHz6Hg1htfpGWy2RS0Xwm1qxmp1u5RmGynB4vp8c61chMO92qxvqB2hmCZ8j+EnzTj5d8XI4M8feR0zz89YNv/k8nO98W/mY6tUyjkqmWc6ViTv1fY2PVqlUaNpalRkAD/N1v/K3j+yhsSFjaG8gLKLMAJyrFcnUhBC9E5LGAhwQ8UVVMvwWaGFMMZgI1RMCsQgSoBP7CXqACMXrwkM8Qk7SCbNhiWJdWXG4sYO8SH9NXwzkbMIFtJ4+LLFiTi2MnMjqIGOivfAvoAwDpqzW1MAV2guAb+Asb11YDXCQZyVi7zBa4KcBBvBOAJpMQSwocI8yC8O0mAp0N3Md8hYXyxv1aolZDCCzGk4CTAeaZjrG3hi2s62FuA4hhWZBj7bosjKACPZEJFWOf2KNpT5vmGR4t7GLKHVna8cGHXMeOzmfT+Uy0Wkx269leLVnL3lfOjLfK26abiU4tXi1O1crRvq+5A/7iCJ5ppQW+nvPBx9+h//eR00bmA+NXP9s7ORm//Xq608i1aoKfTCQa1mhcu3atoIfYsTo0hXmWbv/CfICkyereqAWUuaQwsJvja4Uj94u/bGA766rm5+dhxeJi1jVjymGi6jAz7tjJenY0KDsPtLG0x8yEWTzmVOVBiABSgblKjZusw0gi0EygOxUc6+TI46KPLMDV+fHkmDk8NzcnmNBURL01QnYwmicCoXFmlKwfbir4RU6N/EAq83iQIUbhOxi+QCGfBe+Mg4yiPLcP5rIf65tHhKMWOxeumLndcV/wp0XxV/txMTPb6ZjxQO0THNef9OhYWDAxQLXWXyG9YcVDxhh3xHdCfuBOB+hdW+YF+MvaBT8Sf9Lcphfx8OFv1rGpM6lEPh3p1LL9RrZZilSzE5XM+HQzPt/NeMSGWrxRjbdrcfhnlnQK+cHwd2j/PnLayI5ecUevAPjOtz3BB62buo1Co17KZNMaQxtuu43iadB6MA8NdpcCwTrAMkGt2oWr+SB8YRFKPMdYWftugC9aCmrCOGLfUGLBUO3UYRp+wmU8AGDKRJCjbCmtKE8atBn+jvv6iob4ZiFqTkIzAeaGzFI9H+xEXYO2BRCGHZDkMLSJ5uEWQH+HOYCMZ31c3yv8FZrg7mBZwPJfl6pFNOQzQXnFb8i3Y55T5G3dunXE8dBcdyONOGoBR4AS3wIXxn5SlscDTSLDXJTMjMiMx5aPuPirU5l8MxAPBwP8xXtj9i/+aDgPYwEZDvqa9uO5xtVglTfZg78F1GPKZDZCNd+cvyzU9MQepoJv8NbxKXvwG48W0lP9Zna6nqrntjXz99cy4/16VPZvrTDZqifqi+Evyg978LcUHuLvI6cN4u98OzfTKTRr2Uopl0zGtVy/65e/XLNmDUn6AJyLuUvEX2PIExuxfxLggjNPcpeF75eCvwTHSYQTiuEw1Xk4AFqrUE9jY+fOnRieDHXj8FpFIiRp8BiCv1hPwi9CW+bHIJsWkVyEu3A7bNu2DdvNspNHg5IWE3sX9MVIJPSEY0S/9YSFIEi4AeXr16/n+uFI4J8FbvD/QkQBf8l/0/fqDLfddhvASvlnnobrnOXeLZiG+xj8ZX4CvkN+WgQ4i3GtE5o0s16Zva8B/LUydJjhhr+u7xiXCOBuL0VngFnBxKNTYa1zBshqvGKc13r4elZ6AlZOkJIlkHwJvulVavthKvhmbGJ9qTaEv/ViYqaZ7VbilcxEIzfRLU/OtZO9RrxRDrcayUYtMeB/0Ha3Ft8TfKtEh/j7iGojO3uFnR7+5uY7GS/nopXu1NONWrZczMpE3LDxpzfffDMLPUwtdFJcbF3IPxsAaB1g9ogJ/lrkRAYgogcYcWAoRpOLxW7wzWJxDE6yzvAhagCzaDVoEJoIGYl9aazC5dBv6pvB5Ac+LGLTDsqDahsHKChpSQ0U3SA1SxsCSku9NYKtXSfzRCioYYGPm7OZZhBUX51h9erVuh5Z1qAnCR1IQLDeJz0PwWUYGjK9LbPDZSlwWvMqGICacUrsi6WAkaaZt5Bhw+cA0rkuC+7OTjXmK+mY+jDKQYa/xvm1HDkXx/GHgL84/VkrEPrDfTwelJgad3TgqFQNdUTLHZIzrX5Vym96MkyQkUjEAm6Z/TU7zD14sc9m/d05fYU3KeaymVQimwz3Gh59qFkMl9Khcma8W5nq12PN0mSzHGnV4q16cm5v2R1T3qEccmOIv4+kNrKjnd3Z8WQfvCKbLU3OyXYjVSsn49Gtd95++6YNG++9ZzOqNNAVYD7s1+AFf8mVYj1oxq/rfCC7zEb7WCC4Q7zLqLtjAcmXRqAf5AJhNbZ1Nlavv/arT7pUU7hlGoRAJE7VUUeShtC8MUl18VywhhbrYkvGBQs01LHUMEtdVoCl2+674UsdDxKgCQPq8tA/o5oRXIXRQGkTRgemFuRrLD4McBwd5JhhveIIBgrN/2AxN4xW03AgomU2r66N+9XNmp9Xn8LmDQXpGDg3+F5z4ALfE4Hyr6kJw3lgvUK+Bv5osJWb5aqgpsH9sAnMljs8Pf0VrUskHZjR8T5hFAt8BdA6s47RexQo4yUw5UmeZNZPRPZcBz6M8puGLBQ5995hGf2XymdSWW9fJpXxst0yPv4WC7lCJpGObasX49NNr8J8MRXa49Ithfv1pDb6jWS7Gpt1issYC0J/5eBONTbMv3hEtZGdndyObna+k55tp6ZbiV471WmmS/no5l/9YsOtt/5846bQ6Jh6cNZntpMYtnT87fhpFxamR5LV6tGyZMO0dJN6x4LqMhp+giEABRqpBdwMU0hkELzqu6CdaaesRVMtAE1YxVOJ0mrEmT0ljNBgthpiGOza1qClXgPTAMtwPA8E4rDFwFzzkB4A/mJ+wv2CbYZVbrSQkO+KFay4hc6YFFlAGMMXKRzQlvnGpi7D31CgZ2YhPsx5rpwnBkaDvy6fF/zFzsW4NvzFVsWBMBbwfI1Wgb3MNjkX+KBxwW/YsAEzmRd0//33k8rIvRsl0fIMYaNH/eYhoN9QhtNTisfj2s9cbnp13IXeXTgcJhcO9cusn8EMFqthOxsu42TY45vKZfOZpI/S6YT/k876jo58JpuM5BKT3Vq6V/My2ahzod9Aqn53a3FBsFvfy8i/Qt56YRL/wxB/H1FtZKenvJOda/tFjlvJTiNZyk1lU1ObNtx6zy/vuvfXm8NTUyzrYPbsF3wHgNg1eC3nGPzVfiE7og22Rh4LFGfMdMXlZ+EX8y24a2qqeyF/NRYoyxDHG/N1Z0ysADlw3M2cmfrHQjHLzUMYSE07ORKAM6VE4TKYFQrYV+amJKB0APiL+xtgCvn5uIhacMsuQ84SWIAMKoZws6gr2IqBpYBdz5ijuWPgCP7igh8NqlSYRY9vAXIFV2XcBigfFqYj15mnjSNI5qe5NUhE5okZ9Y0cEN6+DH/eKUIWvFYeLDOf6c9ZTh2pKwJTytnhH6OOhn5TCBXBHdwUenoINONKNlUNPUDt1LvWX+GloLBsiBxYzWnw10twk+Wby+vHl3rQP5KZRLiUic60C/1GSngqMC2lJwrJcQ86fcF1bVBtE86ZiU+65DMdcxDrXwzb4d9GdgT4O90S/qa6zUwpH5kYu+eOn//09p9unLx/WynIucAwXFjeeB/NnA8uMd7KI6qFfM/j2GLZxvglDDdxrUKDxdC7K2hUfe/4tC3cAhpawsqxQN2R4A+4wzZ+WxBEv4G2rE/tIlGY2CCUNbME0a8hpwD4xmQzUgEG5gHgLzMBSQpAOV4Ri879yq9bDMfDGMqYexYMxGMAzZmJB1eAi7/wbXkyhr/YvMTEQj7T1ngOHGZOZC7GiGImOsEqhC/lqdpXsM1TYq4lpkfVThzEOubWW2+F1WAJb8x2oC256SAmxqxAE/Blcdbx2dCaFwW4+H/1J10AOW8ydc2YxcOgDY7Ue9dhOondoM1k+Jd1gBdY8z6Vzgt104lM+jf2bzKdkRWdTESFv9V8Yqbl4Skik5AZZPZqQ//UhlU2cMUf9Cev5nFg/A7x9xHVRnb0svPdzIyM32aq18x06prLJ//32h+uuvnGn/10o1ZxRBlgVi6R8GsZGXCkjDhhFX1YKmoYkJAWCnwO1jCFiMuBCGAxddJYrspiwkJEeUATg7CecshavUIsxbeI85GVuHFdzacc8quxUZPRVOEhP+BCHQuy7MB6ToIZTraIRaLGgyzbA8BfwnFYkcAoJDAYryzVKeVLoR0epl4NlqydGYue01JLza4HU92qNHEk5idxNvCXO8JNgf3LrGA1NVyXham549LFq35XUK6NmRItDlLX8AbwNsFiLFA1TFdcum59YktwgMYAvOoY/LwQG8huN/eRHg7q0sSN6XWsb/A5UAgD9y4btkfXQEU+uxd64+Z7N98/EYpObY1GvKzxpO8CFgR78b3wtlxKdm6qU03NtDJYtRQZEnQKYTvVmP7pen7JQkZ5xyv7hvFbjhzE+pvDdvi3kR393Fwno87R9wqlZOrl1Oa7f7H+1lvunxhfe+utWrARKCMqhebL0u1fc/4OpF0AIuq4pqdljl2j9w+IxWC4gQ7wZ201ijyYJSmwyCXyMx7ok1mQDbSy8umcEAlzxqeu2Wx2TC2bFfBI4kPELuPaQCuOMSsy5GToLcRf1uNbArFNM1RdL6qV8DENRvI4hBSUcdIFC03gF084lT25U5TRoRBMBErzNp2EfJ6Z6UzqyHXr1lm9IpYahPXwG+gGDTEp1LQl0Fym7DE3AnhpW2aj9uswNC6APAJlxpm1lRAzH2VP0TBj2wCU9ArhrE7I+9I9rlmz5qabbrrmmmu++93vXnvttVlf/MGUH/g6vUokUsnLsDQNeiBROONOgL9GeGAnz1y/t27buu3++0Kjm0e3eHGIe+7dop9R/0lGI5OlXLJZzrQqidm2J28G+Hb8sm9CWG1YtTdyjnfNlAx/K9n7zf/Qrsa8YnHVaKsWaVcjnWqkW434TuF4pRgX/u4a4u8yaiPb+0GdoWamXcuUC8m77/r5L++8Q3M6hHkiD+rHnaCG/H5hFzMZtXUGGy5LM0MId7A+Hd271MJoUFvIQjd4FYUI5m8ltQGLDJVxXLRIChjQ2Mo35DsokZIZdQpJYFqiZygg46pQniS0ZbWOzGg1TGRlzfRAVAo/iS3wDXYXlbMgamfODUtAwD9LfMmiTxygJixL+E2YQqBJMAf9jpmA+BXzgU1OZvib7jATFVl83D6fFWLiA93il7+kpJB2ErMCZG16gAGmz65fv/42v61evRrFCZ3c0s9Ih0GWl3BZ2G9TfuP8+HNWrVr1ox/96Fvf+tZ//ud/fuITn/jgBz948cUX/+3f/u3555//0pe+9PTTTz/11FOf97znrVix4g/9dtJJJ/3BH/zBs5/97BNOOOFpT3vaDTfcIMyFbYZXAa1U/LmYxpa9SQKLxSe0E++T6aIBu5CIoVj46jqpTDKWTOhP2XA0FonFN28ZvXfLlkQ8Uitmhb/tamqu4xVOpLwxJi3Bt7lOFrWzAftXR3qc3+IUUTj9VPLbyoVttdK2enFbszTZLk81y+FmOV4uxPqd6u5d84caNIbtoLWR+V56pp3ut9LdZrZVzTUqxWQs8vOfbVq/bp3wJZlJFUtFzIqlq+2YLjBLP/V1nA8mAYFDA4g0O3QiqF4x5mt42xKY/eZVhCx1V1Cfkc8iTWBRfjawkY00ZqqycFHxLJM+p8M03oh6MyChIkHMwPzEnUpqLI5CS23AT8KVuA5Wu7zxvdsWX+CcQD9OEox9jE1EKTFjIZDBhdAHARddpJ6w4RogyCRkqR+gDzfIb+0R0t16662COf6pG8GhrHsEczGfdR58IzqVsFWfkmlMMojg9frrr9cVyvCU+SnI+9///d8rrrjiK1/5yle/+tXPf/7zn/rUpz75yU9efvnlgtH/+q//0j8vu+wyIek73vGON73pTa973ete+cpXvuhFLzrllFMEmk9+8pMf+9jHPupRj3rMYx7zhCc84ZhjjnnGM54hPBW2/tEf/dEZZ5wh2NXx55133gUXXCAgfstb3qLzXHLJJTrnZz7zGb7l6quv/tCHPnTUUUfpYvTKBOh6SojJ6TbV5ab8ALIelCVNMLnqT3RsEnNQB8WrjgGOG8QYaZ7dkM2UPE5aKplIZvOFRCo9FYnqXaeTsUYl3yhpEanVpGf8CnD1I+TVD+5gC7sZ/rKNHPCecouNpA5uVqK1crhenmyUJj3icHFbNb+tVogU89Feu7Jr5xB/l08bmemmpj38zXab+WYlV85lKsViteKXD9DCsJjP5ffUCvpt8ZeubKQCS0wy2R0N9Z/5jWj4aCC7YzKGhqSYhyDyWJA8ZsTY8SCl1aip5q6l3A6wLtTAOQA0E2nBX6ENGEsaWxqQRMxlo5nl6HLdsF5BRiNggJ7aSa1MQkm/ePBmEmUcia2K0YoVz0oflMSFQhQINCGni9QDXblAh8C9MEVPT2eWNapTCW1hj8Gs0OUJSQWdAlPZqnpifJxo28qVK3XlV1555Te/+U1BqqBNGPf+97//Ix/5yN/93d8JPYWA55577plnnilYFDhq4xS/yQ49/vjjjz32WOHp0UcffeSRRz7ucY/7Pb8dccQRgtSTTz75tNNO06de85rX/PVf//U//MM/vOc97/nwhz+s8wu1v/3tb//P//zPtddee+ONN+qqYBya2Q5xmxpLOAqgN2gnr0wPQeeRIawP6uHoAHjBeh28Rz0TanRarWWdTf/UZ+mfrCdIVia9U4iMfghOMyvZKeDNJNVJUuVSORpPCIKFv3pZmXSiVSsKf2da+dl2FoevjF9QWJBq1Y4Nf217gA68Q0ZxvzDTy81009Ot5HQj7qVvlCOtSqJSjPeG/ofl1UamO4leO9lrZbqNfKOcK+ZyTS9wUVVX1bwv/C0U9+RcLFFnHf8DXlScvEIE6MP5oFQXnZ4IOJljEBswUU2b3Fb9oJWltBHMMWUDI0iYuBd7kFs0iTL0XCihhr2sBrNY6MZaHj8JY1gNSxmOBCEm7FNwExczsGvZtwIyGaRghGVnLUyyMu0LngnTEnMV9hfCOoSeBDREpVjCIzejbe3E640XG22wW265RRgqLJNlKgvx4x//+Be/+MX/+I//EN790z/9k+xHWZGvfe1rZYS+4AUvECw+97nPfepTn/r7v//7As0nPelJj3/845/sN+Hms571LFmjQs/nPOc5Wvjr+Be/+MV/9md/ds455+gMb3zjG9/1rnfJtv3EJz6hrxBe/+hHPxK4y77Ww9GFsYbAA2ABNHgIv2HUOs09koPxWsAbw5XMhEete7wNOuatb32rwF0vCEYaMTo4EvRA8+1yTu3UYeS+6yQk2ugb+RMGL9U01OfrfvM8FY267N+aL2Sid5svlmT/jk946hmpZKxSSHv42y5MN1KwHZqlsGv8ulC7F+Du/bO9X5jt5oS/c/3s9n52Rz+3azo/38vP90vdVmF+prV79/ZDDRrDdtDayHQ70WsJf7PdRqFezpcL+VajVS5VyuWKgCHtl9ImgsHvpahNooAuw0H9PuQLBYCM2B2wpiAwmW8UtyxBLWGcDDeYALgL9CdBpy3nQ36WqmU6YO2aOu2EU76IAL1F4aiBhl3MJWluwHjEpMJbojGpnZjAkJAIH3lRb5/JxKBNBw2gNNIokEpysLthDRFOYk2FoF4DYr4WVdP34jORWXfdddddddVVMku/9KUvydb7t3/7N6243/72twt3ZJNqUf+qV73q7LPPfvnLXy6zVIv3Zz7zmbJGn/KUpwhV/9//+39a42t1L0gVmApJTz/99LPOOkvr+te//vX6uM5z0UUXyc593/ved+mll37sYx/72te+pq/74Q9/aAapXgfRQj0QHOU8AWO2GMWbWRYHjv22mBscA7zAJjxkLhqz+n/ttLv9hreHxDk1yBKYxjrzn/7pn+pedAZhNIiM/Qu80t/cgkNuwlsmoPfYO9UJSc1w2ZOCYE/RqVbttputpq9NWirnCsUJr1bq1ng0kk1GaqXMdLvYq6e69aR+6kWPt0C1+R0e2gqCs96PsLjriw72XCu44P2zV9zRL8718sLf2V5m3j9+Z9/H7n651ynNz7Yf2L3jUIPGsB20NjLXTPilNrPNSrZayFZLxZoXfdJA2mOUMflj1S7R/iXcrL6rYSAE1JpXQ0Xd1OhE6t9IjsHfco1WXL0a86ThYnviD4XAC5KOBfqHAK7FwUxbcjyo5GjJuPiUya0iymT2qS1pCb7r8uA/EUM3FzZASakxckm4TdzcWKwMbPj/mGmhgM4MvVdgKvtU1qKMUyHpJZdcIgRkaf+Sl7xEy3ktpU/w24knnuhuPNtv/FNN2zJd//iP/1gGqdb1OsPFF1/8Yb995CMfueKKK6655hoBqB4+qwpyDRDc0RPAnCQTDCEhnoZ5 K2x6oeugInKP40NpjPoTnVCNOktRke+InkQ5GprEsWvTS0SXivqGVC2zYWNz32AkqjrxF+k7gTI4oWQnf7Od74TRrCePMsFzbIUuQB8yWpjg/fLZGC3w7sm/saRRCzYCS6D11ApUFZjNvWUS3MZwXO9ViwXkrVKqukpaCdrhXC3lpjrZLZ3Mzu76V299O5+ZpdX6KCwo6Of/PZOft5LQC36PyX9bO+W53vF2X5e9i/46zFEBcfdQoC/Q/t3+bSR+UZyrpWZrnvR20oxW/UhRmurvL8eLPlOsSXCrjUImOqpGjCCmw0bNlhAXDuFVkiFuUWFB4Jp0BtYUxPEF45ofBJSI4JvWo7GmjBOGHvQIkC2HN4V+IKZg/fQtAJwqlqCHy5vxFzAUCJmsgS1xL722mv/+7//+zvf+c5Xv/rVL3zhC7JJ//Vf/1X249///d+/4Q1vOP/881/xilfIKCPKpIW81vWPecxjHvWoR8kUPeaYY2SfHn/88TJUtfxnRf/qV79an7rwwgsJMf3zP//zv/zLv3zyk5/Uul7W6He/+92rr776Jz/5yS233IKkOqaouTgw+rDUEEAwhw87QVJLhDEvEGqWpp+gxsyhW9Z8iSOeQBxEXZOUY2IjV0JPmOicnj9wzzyHRxvQxL+POBHqDUQsmRTpAJabh9fbbaFA/BPGC++RCKQ+Ivz9+Mc/LizGI4FnBoqLDvD8swGG4mTAHQFuArtoW9MNiGpS4VC/WbQB4pjJHGkGPqGRlt80bhLxcD6TqJbSjVqmXUv36h4ReLaV3NFO7uqmdns/+d294u5ucVe3uFM/veKuXlk/O/2fHb09+Ds/ndvez8lqlv0738sLf/ud0va5zhB/l1OT/ZueaWS61Uy9lK6WsjWfpKOFVd4ftJVSsfXb4y8arFDZBRkakxobtvRWYySz5DQHrksPgODpJmW4+rmos5scuJ0Bx7GlgYERGvxCEw0wc62abcsgJPAiwNUFC0wFf1rMChAFiwJHrehf+MIXnnrqqc9//vNPPvlk4aZG+9Of/nQt55/4xCceccQRWtofffTRAlkt7QnZv+51r5M1+ra3vU2L+o9+9KOf+9znvvGNbwivBaArV67Uil4PBPl2S3sL+ZlazATMEOa1ADIw2GnmEjW3CTlaEEu4TTdzAbcydr3ukRwWk8TEuwKOa8MKMjHVIUZh1ym0RSGIJEN8RDjTWZfgH4fWgot8S1CAWb81g+KIZ00z5osaa0ZhyaIz6/zkNP5q74Zrmxeq7+WOoDPqkWopoLmQJ4BhrofD5IGyh+AYHMc1T8qc/okuD75gfruyOwSQQXkz+dkw3UvdFOw05u9ms9Fq1KqlXCGbKOZizXK6U013K8l+LTlbT841k/MeEGd3eDZv3pceLNrPjj0/pfl+YYi/j5Am/M3K+G2V07ViulrOaz1dqlSz+QLGkvpSZ8luB9f+leGg0Y6Il0YjkRBMMPValsNksi3E33FH6tucEm5Cl9nLOCXHgzQKhAWIqmEh4v6D/mk8f0LbKGHiPWD4aSQfeeSRQtuXv/zlZ5999rnnnvuXf/mXb37zm9/97ndfdtlln/3sZ2Xtfu973/vxj38sDCXnTffFsAfp8kE5JTM2za4k8TofSNMa/4nLYw8fZGzrzKQzEAY0O5SIH4kSlhahe8dq20OT8hFkYMWNHadm9ZPIfyObWcdoitIlGSMQpjDfy1ShbdYiJtFgbGWockQ48TBArCYxhFPp7ZAUTmgU0jEZIrxfrZNIliPm6TZy8PRb85augUfNE/7KV75y4oknakqzrAo9AZI+dD0w0mzuUdNcZTQ1betiIDhj9ePW0J9w+OqB8Fh4kqR1aEPHhILCK7wv5ng965IXQalPd9vdVr1aSNcLqXZF9k26V033ayn9TDeSM83UTDM9287oZ66T3d7J+T/ayM53PLSdmy5sn8nvmM7vnM4Tfxvi77JsI7PNfK+ek/FbKQh/i7V6A/zN5X2R74bW4781/qppDGjUrVq1CoqrxqolX6gHg4+4cccCnReXKksmmFXBGQ3UJqE0mCQYppbps2AcaTgRIwL1jHeB95YyExZaAZgwKrXGlyX7wx/+kMvAJCR3y00bIVYOwLFB8QvsUI1GOAluWAkGCKYWB+uzeIexxPVX+zjoZhwP3eDatWtJHiF+SEgKWTioI3o+cFcJk/IK8NdTd25mZoZCR9pDQu24n0Oh56bjdQymn94RRGO8N8bkA3/x8OCUJ/fagNg0etDlAH9ZxNjLHfUrfvLGmQBc25nZ1C015DabmOHn2UJKL+UDH/iAVh7jvjK97YQdEfKTAPFfm9QZ70uvPsiqyBJWBZHJQCHPRb0F9g5zv/lk9EFy/EK+VjJ+D96dh/vRWCqe1AKkUS73Wo1es9atlbrVQq+a71QynUq6U0t2G8leI9mtJ3r1eL8Rn2kKkROz/o+33c5Md7OzvcxcNzPf9XzHQ/xdrm2k3yi0q7lqMVPKpyvlsvC3WK6Av1oBt5v7V/tlqLuC63jNNCZvvPFGmcDGvsRggZlr8GT4OxbUhcTtANzQyy2jF0cEphOUCZlU5MVqpLH6Bs5wcWJ7koRKgxgntNIoxQKCbaaR8+lPf/q4447TCQFT00LE2MTqxAeCCg/iBphsCD+CUxwAJIGPujx8MvpSqjcJKFn1s1xQI2tAiECaCSIJo0GRHrQuCViNB1K8EIRJk9N5qPIJfdWtwYz2vBpsKsCRt6CP8+4wnNE75oGDO3wXgjihoBwn/vTRQEZ9PMj6g+uCWB1YSbqKvVaOh4uN/wE5JJZBJspD/M3CbubfZwLWtvH29Awvuuii0047zWgM2MWCUexfbFWTkYT8y1zoJLZl8Z6bg1jPAc6ljjF4RbIStw/hByz3uN+wgr2JPBzVTzwcTcfiuWSqWiy2a7VOrdKpljrVQquS79Yzwt9OPdGuxTseQTjWrUV79Wi/4f30vJ9Ep5nsNuO9hofO0424zOSZdt7jnw3jb8urjXTrxWYlX68UivlMvVav1Or5YsnzP+QLVU3g7WZ3CfYvY5hBrhGuPkpYRitKbWCNmtw1K9YBA8e8EAwzonCmyY2xPBEUymQJzOpbR1ppGQvZm9waOizArswZ1vuMIlRvdCXhoL373e8+44wzdMEaSISPWFMbENjcwAJ5LKgrzDpd8GHGu+nk4uIUllEuWo8CQBQ4shxmW8+NGg3CCHJG8J/iOUXSl9W6SYtZ9Uzt0QX3l9D0LXpK5HwjsCvU0CPSfgGWHhSF+PA5jAfiyONBufjxQL2Th+/OhVY+mbwJ/EJoB4PgnBDHLhk02h4N6iLzV/y/+pM+RWIOFUboS6yHtBEKlPLV9NZe+cpX/sVf/IXFGHEN643oLesCyKnBFYMD11LamO3MpWu8OngOxN8GStZjQ6i/6UjisfAUf9OisUQ07vzEkrG4vqmYydZLxVat0m1UpzuldjPTqqdaNaGwB8TCXw+CffydbsaEv21BcCPWrXv7u9WIl8dRTzeq6dl+Y4i/y6mNNKuFSjFbzOdkHtQazVK1kStWcr7h2KhWep1Gb8n4CzVYMKfBTBB89erVGmBkLsGEpSDxlgXl5QeWnHjW0N/BHGOtSvydwY/pipFr1ChgF4sS8OU3wlcaLfCOseBMtRbG2HnnnXfuuedi+pkOmdnm5iox8XWiWEwYulrBh0ULB/BXuGb4i03q4i/zFonFuk5S7JB8w1oUHgFbLv6a/Qv+YvzuF391Aaij6eL1Qb0O9us8eko8HNcDwPQDnhqfBMcxcyETA4Y/hvB+8ZdrxqGMWDt/pdo8D42Pw7vAj0wUTiisywBk9dK18/TTT7/00ksNkWk6Ri9U5xSeQhNemAKT3rtlAnVKoBaioRGEbcPSNPSgcFkM4O/gj35FIvFINBGL+kCcqVfzrWa+1y52WoVWLd2oxH5jBdci/VqkU4+16nEff2O9eqxfjw3xd7m2kWIunU76mn6ZbLnWzOTL6VxJ+OvJlDTqwt9uZ/9pb+Z/MOVykmtZWmKDEJRnDI8tEPw1dLM2FlQVs+GHzxGcsiJyluJsrExy+bF2cTdTBJ7sW0DNhMfwXeAcPOWUU97ylrfANmO5TUzf+E/W4AOMBWoVyNmANaFAv9HwV9evcwrj9Ih0MeDv9PQ0E4aLv+jMmWybOVXN/zCAv9ik2qPXB6bvF38pzMwdYenrSvTi9ED0AJn2xoN6yfYi4JmY5iQOmbGgUj3AygbAum/8ZWohlRyH/nggXc/92jN3HzuTgc5ABjarnPXr1x933HHf+9733OxBdTbNoKiqaz9kYQAU49dCoLx3vMOWl8FvitizM+vUwsB9oW09B3y+sX0DcHyvvfFoNBmPFHLJWiXXbhR6zWK/XezWM716qldL9GuxfjXqV6qPCX97jdi05xFODPF3ubaRVDLhTdDqFplsoVyLJjLxVC6d9YCg22719+Dv/iscg78aw+qaxFLMbUrECSeaqcMstH9dE5gxr9FluulkXtkYw8wh6ATsojiBn4FoUsyvImwi6xr5bvUzMA6chRF87LHHfvCDH9QGPAoYAjRUGgjEc2GWIQIHVtsy9sk4WIi/VKo3/MU/C4j0gqaHQ7YLzDzwlxxrFCAH8NcqR+gwgULHD7XtuwmjNRPwBHR+7F9WLfqnnhtiQKEg4An4bgmKevAwTbo+FMQ/Q07JZKsnsg/85Zrx4VBYxO7XqBcu+hv7BdkNiBzg7/XXX3/00UfffPPNls9NVrHwlxAZfl5LfdbzN5EzOL8mx45XAXYw07m+xU2KA6Y5ADeaaRDvhb/xvX40siJ+ko9+wtHo5NRUJBrWmMukEoVsSqvP2U61X89NNzIzjfRsPTnj5c4lsH/7zfgQf5d3G0kkvD4SicUzuVKhXL9/MjYZScSTKUFbr9Oe7jZ77eYS8ZeyweqgMn4FTzfddBOmCoEm9VSclRZOWQjBQIz5Gcx/B3vBQmoICRrymmIvHjrCI4iCUzeedTq0f4PIUFDETAfr5Nr/tKc97fLLL9eQ037YBayvqblgZcSIGo0GpXqwpnWM7jrkB9wX4q8uSfDXarVc/GUKMfzVBKNb0DHMN5j/hMiYzBbiL95nHabTLgV/dfKQn0hi5DA9TPzRAizBzS+d4qShIIdQN6u3icnPsgbnOHBMjNT0i4HmfeMv9S+IW9IIY27YsEEf1J+szgjOX5MowqmFM4H425e//OUnPelJFEDJBSLCVN4EfwWj6oQ4dnHvqCsSasMbRp8h/mYqENqp52nhXFZRlvGhw5gJLN1jb/wN208kHgnH/J9odCoamYzpt2cEJ+JxGT2JaKSUy/Qa5XY1161lpmvp2Vp6pu6JwXaEuc248Lfv6+/swd9KerY3xN9l1UYI3cYTST/sVrp/MqwJOplMCeD6vW6v05IVLAtpH7IPeDZxPggH1e+Ry9FiH9hFv0qNagLmVXQ9v7h38fHhasTQgCSLqWg6CcT6EG+FvUsKE84NYutulR1CRhrSRHj4FvAUN67OvGrVqmc961k/+MEPdCrgyWJuA7b5eMDZmAhEzYF73TLgDh+WWpOApp4A9AOAEl8Bag/4bbWHFBX91VjPTAC6PJyqQKelpRCJwpbUaZfif9DbGfe5t0w82tAeQ389Z5wDJLDg3RYuM7VQw0LvlAUBQTMAkdfKjCUYBaNZHAhSzYFgKYs6oQ4mi4+ZbCyoHj0WKCUxDSOxDwnPdDgJJxBiff/733/yySfLqLfoK9wbki/QmrBQGxsw05FGM86DPkiGDmxuZneONCF2cxPr62BJc36DXtR/YvGIb/lGvL6vn7jndvCs4GjUEhb5fzQczqZSnWa9UsiVcqlmJdepFVrVXLOe6rTi/XZiupWYbnr8h2413qulm6X0bKf5wM6h/sPyaSP0BirI+hlr6iceO5WR2XVs2wdr2L8a//CrNE5kLlGBWP+k+jfVEAiXhwJ9ANLYBmDXnMXG8TQmAwJAeBgsuQtjB1kAS0YwiIRDJtjV+QUHQAMEVSws/In6uiuvvPLEE0+88cYb9Y1Efsb2lvJ5sDYe5EyDv+NBiblfBXV/0U2HmatHAf6qobWGLaydCJtpg6wzfKNMV2Afs4vrLR0LagzrOewXfNXwM5ARA0Si3gBw6GJwuWDDonrDNxpfEJDFLNVOSkChZ4TqJsCq+0VSXXhtDmX4wuDpmjVrYOxhCJudyzca/8ziBPQW/EXGJNMDvOCCC/78z/+ckEA+UPUle4XsGIQpLIFCx+Dn0V3raePMdf0S0Bt0HiLJ+qfeC6RvkBonGJMTAhRWBgkxTx5mxE9LdHPE3WbimclEwqsj5aW5x2Velzz7vVCpJBuNaMe3f6db8ZlWoldN9GvZTik912k9sHPnoQaNYTtobYT+AeRBA/C9Vd5yDMhDzBfUwFhb6HwQJmLf6Tzwcm644QaNTGJf6qbqbTgfWN6iSIsZhQoPHDLT0CISxWk5M0qsOONYM1I3wVJjzYAKBblw+AfICMCKxIsaCgodsQZn1fnpT396xYoVuh5tg4DjAUN53/gLCIK/xuswWUtK7br4awav7lF3ZPirxy5E0DHY5qZyCehwC7CJxwO9Y3BNBwtfLMnCmL8LGRH6Oo183poeMgo1IIIuFQcOcIygBCplGLxMRbo2XSQn11+ZGKwoEa8DIxeiNAxZFgowjuH8GceDeICZujjZsZ2ZIHFNwLZm2oDczdx8yimnvP3tb8d0hd0IY5eyINqvpwc4moYvVHTsXwvBWcELDF6INCzsKMZqKd1gsaUy/8bsdaxgGnAcXdC0k3wfGN/kYQLK/nyQqZRTjXrcowDXZfnG+rV4v5acbuS6lcx8r/3ArqH9u3zaHvwF8tzuQnc0QwMPLI7X5t7NTWrQuk8mz8qVKzWiCLupj6p/q28JPoy6zwZRNRaDlqeLtctpyRewqvWMFvS0GKi4SlkvG6VhIihXjOeBhLGQT0016gXrXMCRvK+LL7741FNP1aCyshdLx99QUDPYTg51AYasmm7f8LfvJ6QJAZEiAiVhJuD/1cfJi7WsM6TcyT4Af9G+MJKWXorOD/4CtYvirx6mXhD8PF2AHj4XMzc3Bxxov2XKMUloA2cFT1gP3OZaPTSqh1CqEuF5ZlYe+KhfDc+wG/ylspxNHi6reoDnxwsCmrHHCYRah9TGE57whI9//ONECPJBXRWSL3QScoUJrJnusIXdzOEL58FcvcTZ8C8TY+B9kThjUiGWSm4iErja4JKbWMeAg8IUimN+ynIC+9evtcHBwuxsJl6tJLutXK+R6VTiXf149m+6VU7NduvD+kPLqY0w66Jda8si60Ym8mK9hxWr22xdhnrLqlWr1q5dq+FHj9ROUzs0+YIxX5YQa8XkEcAFHM1U6ELXEd8utDBK4BBzJ8BCyH7MV/KdcCoDMcip78lgJnEW3TXyGmjMMa973ete9rKXYQcxNywFfENBkMpIsuAImdDcb8jPEOk78TdhnO4RX6TF3zDitB+9Ap2ThLpQ4PbFK821gb9mQurRGY9tUeSl6Tb12AFcPV49Mcta1F9ZLAPB+idArH/yFXhU+S5e0/z8vLBD+4lKkRGH75UgIeWcWQeMBxrNmLFCUhOrNGeRC74DjUfNZGNaw/q6xz3ucd/+9rdNCwKjmAeu7zUFDJLILf/CKGWmT0TOBbgMsBKFs1nfor40mCpW09OsBKLEpr/heiQwa7B8zefDeUxIPlBTmsylY41qrlnJCHP79Uynmuh4TOHkdK+6e9fsoQaNYTtobQ/+QjVHtQSoNWGthQ6sgfUU45bettFvGmlEPCw7iO6FmgxdEDMENRxT8MO4MOFEkkcJGZkcF6ZQyKkzhDPOtT2FVoAykGH4yzIWDhmmsQ7QNeiqXvGKV1xwwQXkpIJ6S3H+uvYvrk/IErZehi+lhwOWEShz8bcfZAmjeaht3bIegp4PbgdsQOxfw1+SAzE/taHz47sATx8Mf/GN6hhtC3f0UvS9s7OzxO6EI0C/GdG6TsEKko8h38dN3IkaH2g6a7bTZdBbmI+Jy4HXxM1wBIGwo0EZaZIG3UluwCIeCyRBLIOZKQ2MU+e56aabnvrUp1533XWm+gY043PQV8MCRn7I8NeSKdjjpmPos0iduRhtQh92BspwEKgwJSDU9I2W40KzWRJ0bCRHdB7Ykxi/DBA24rG4vr6Uy+ZTsWIq0iynOrVMt5FtVFPT/eru3UP8XT7Ni7+RzgD5kZnZXFqMKzfCgFfBbfgQ1Bc1nNatW6fxcPXVV2tbp7WFGBhtZyCEjbK7V1bANx9MoBKvMSEmDEnsSsahpcBhDbEfbpMFhUwUTXt0SUAtldhxTRBkp4KvvlQbZ5555gc+8AE9B/1JJrYp294ZNHyXRPnMgh71K7eDg8gTb/GrCEM+o4xCzFfbMf4DhiqEB/wGZv/iDoaoR4F3qj4TMeO7UNtBNiwUkOpYcfNBNSS+wH1mOIh62Hq6DEu3w/8A2mqDFGQhgkG2Ps6jHg9KSkPGgJ/AAyH+htov3mqsdXJe3MmShtPfSBG2H8g2IA75ZD6gmbest4CQHnh3+eWXP+c5z9HLEvCBnpixOlKH4VzCGa2zYVtYGpuVI3J1O2N+sThwVuDIisSkgTGQcRQQKB4Ir7kLRMvX0BkqfkP4yXXZUXTZrOPAutFPIpPykqBSsUgmES5lo/Vist3I1WvpTru8a/fMoQaNYTtozcNf5mHWU4S5YH1ZKAwTgLgB/diNOTCZE4358Y9/vH79em1wGFXL+E0MhKA/RgGtGBQqx0085te/AObAU1ucMkqxATFyoYgCT6RCsMcUGyxT1uDShj1fpOvUGNAY1kj+yle+oivB3DPJWghtloJB9J+QPb+R2oG4ijSXYIsJRvYjOjvgL/kXbsKb4a+OROcQXCbTDwtRgAjIGp2DtF3KfxDP1POUGdsJpHwQruXJU3MeNjR3RD5YyM9NwO1jkj26DJwJ5tBQ34CaYt5nJH2ZCy1K6bpxDX/NF2T5FBxj6ST2WZAaQDf9nQHjF+8TZF7aO97xjj/5kz/RfiP/4jcYD9JG+LotgZw0em+kUFrOG/eL8aGbZdJi9sIyxU1M2I2/6o0A6LFF8i8Go3B2jEGz5TEzphbJYI4lU8l8Np2TpZOITkanQun41lIhXiqn2u3KziH+LqPm+R8QAzPPF3E2vF2mn2DQrP3YC+mgJBoeDPUaDU4ZvzfccIN6J1QKCjGQg6SPY+3i0sX0wPdKzBqDFEISK1bsF7QQDVJt1Q/6QJDCHUz5YRKrZAVj9oI7pFHYKhiTSqMd3oWu+clPfvLKlSu1jeNiIpAnH0g+HgukCfiNcwBHJ8l12LAwUuGKYI0uxF8NYC/JMNDf0ZXon0JAPRZ9EV4aLCxy1ZhFcPuaOBEV0sBZBBIhRbFHUEv9eZh5VlMZ6UsSVfiIvoilOm4ovMC6KqGPJZ4gPgmZz02QMwKvgR2SksxwJq8DmOpVYtSb2wGYZuKE8OAyH5hf8T6R8ku0QJf66le/+pWvfCXMBCK3eV892TzFrvuYPsBUSi474S9o5sTToJqZ3Uq/hReIvQxA6xYoQLcP/DVv78IDTDV/8TN4nOFEJltMp7Ke8zgymYxti05NpJOT6Uy03qxs3zWsf7x82ggsKJyzet3mMTAiGmZCPpDQhRZmMgv8Nn6CPs662Hy7OHaxcy0RDkewgSyqhph4YBnrUIJapnSDIq3ZTTSQRSNEeKGLBF9AHAY/jCizlI3MxKoZz+l3v/vdxz72sRqfGmPs5zxm0xnEhBakSqPXwy3o7tAt1B49KwJZC/EXwIWXSuxLO9F80QasKTK4dMtYWxihyN8wc6BDD6PDtIdwQSLpCzXQiIM4Pfg6LsyYajqeOZjFuK5WH9Qx+g3i6H2xnIeEQDwQTzqMXQT1mbqsLgZxQvKS3QY5xB4gWXO8/bGAtc1kszlovBTNzaxXqF5x5plnvvWtb6ViqeVGMrVwBhYQpilhVT9Y1rCK0slZn2H/mvPXyhRZJREmJ/3WmZmxANkBeCXmFnN8d4u2Bw+uxKYisWyhvG0qIgNj9N5fJ2NTyfhUPDYZjmwrlkvzw/yLZdRGWLWZqWVz8kICjVEaCbMYO42Mzy1+vQmCDLmgllohKDKG8zfmc26wd4xvj/1oFFEEuVmAj/lChZCfDPvGguxh7ClIUfoulvBE23Ed4gzlPEZvwkCDoCos4y4+97nPyf4lbKidMqLNHMOtQVIsO11fMGY1y2cBpQGfbtME4RbiL8Bn+EtoToNcSwTdBd4DYuIIfo/5uRiklhEzxJSDGSZbDK5CJ1BbB9AtO5FwnPYbEBtreyBeNzs7a7Qzzsl5tAEZHIkPXMk0dDagoJlT2KQjtSF7mRfN+gNyiCW/bQnqohIyNV9/yJFkCgV6ePqgrdL0HFasWPHZz37W6oyAwlQbYmnC+oDXhNFNWo3Z3YQNICmH/BJQLMvMPzCgv5P3C9frMlg0LIq/rudh36bxohCsf0xGopliacvY+B13/uL22zdt2xpKJiKeMyk8KQtobph/sYzaiMY8Q53eEHPqOCy6PrJ/cgygrKZRt2rVKoEFRm4yqDROjyRkjPVkIliuJYvdBApjfhrhH6FYO5hMNhOEZWxrBMruA74xft11sY1hXBaMTPy8JJ5ecsklGsxUPTCNiC2B8q/RbPkIxprrCAaddePYtoInYaIgjNKlOL4Nf0FJfBQkvAHZGuS4I8C+vqOeTqa1uRGAXYgQ1Dfj5C7z1615YecxrrElKwtwOcZUiXXNc3Nz7h5tg8tcpw5gwjCuWzdofC83jv4cLlT1Cl4xDhDeHaG8XzhNd7R+/XpzHNmEB42E+Copanpr11133TOf+Uz9NuRlP8QMhCwwfrEGYMjBJmYxwSvGc4V/HAEgfO44iI0yAf7qVY77OpmW+fZg/ocBtF24x3YO/NXX64lni6V7vFnW626Rqcm49kXCsWikWqvt3L37UIPGsB20NkKRFWOSxfYmKhp1YWDdZPYyIQWqKG7YsIEqWC46k3lsImSuB9ZtgON4oEkGgRSUNF1z7FmT4IKUZuXIcIkyjOGoQfW1sJvZwiQ6E5eD5XbBBRecffbZPAHyuCaCZlEj0/YFSiaCovesl3U2GbOYk4JRHYMhiZ2rr+j7lSkMf/Vbj4UkKzBOxwgmHozAq8PgTQuSuHimKD0HvQJOuCjn7HBoA1khUGXdZvUs8AzgIjAlJleCDt0cQeq3v/3tI488Us+EbAjENKjehrQxb01dgoWITk6xPoglLClwZPO6jT9ORAHVfN4dKAyVWCeh5pB1cndcMIIOrDFwPDdgQovLwl133f2L2+/Y/Ot7YuFIwheuzCSSrWbjgQeG+Lt82ggZ8S7+YmLYAjO1d7NSV9ZpENYB9SCBmh9ZhwEWFkZbFHxtMciYIcqEbQILzdRw9E8UKS0CZsE0IBj7lG/EPnUbfgM8lSh5k3Xykpe85E1vepMum9wBI5mZiI/FjowvxZdyDXyXRvis3xAhYo0v6In5hXL7Dw1/ZcziDqbeEvdCYpjeoDl2D/PWe5BGrE+3j+i+KX/iW1fTowYuM35lCvXPz33uc49+9KNx2uDE1/OHcqPjbc2kt8yLwJhFsIkAMj4TbGRUN/ltWePw7fSE8Tbg+oBcGA2qDbljwayWh9I0cDLpbC5bvPtXm++8467Re0eTMa+OhtaSuWSyPcTf5dVGwEreveVi9J3oTWvvpqWlyUTwW112td/UcfEGsl+nDQUVw8aDLGFjFyzEX0gO2MKIi4N32CMYrYxPDTDS4XD+WvEF15q2gDuAbrgMgwotHl0hVeCe/vSnf+QjH9E2q0vjt+kwCzSZZC3ozwVzRyg6amz3fUNVDzDm65rjacXs6j80/AXWdQa8OoYRuh4+hcvi/0QbAF+rGUo2nfoAzA24w7gsLHZnyWkf+MAHjjnmGCptW/4xNgRMGBY9AmKdX2dW3yYmIeTVY8dDQuwO1iN9ySREWP0wr2ODk5UDsxjnb2zvxWJsgRbEAbSolzKayWULU5PR8FQkPBmW5RuPRpKxWCGT7rSEv7sONWgM20FrI27vwZ8g+HAlfU2vi6Z/wv4x8rm645o1a66//nr1XYv8agO3A6oLZtvain4h/prsbChQ/MIo1vlvu+02E9mCZkDIBSqxvo4lpMs3CjmkVDeSw7AkIMN5NJZkSX3xi18kdYpw+UAInkFI1IvAnRoTA6aoxjy1NSEw4GmBbSrcf+j4C0sBQjF7qHOqb3FdxodhW3hH3b2bGwAkt4IkCFMThvfGA+cAdb+3vvWtp556qp4Ye8Bl8BfN LFA4kMn13OG7Ud9Fspgo7NOlhrSPHojljPCAotuSdQOfqQ5x0iuszjHUnzB+4ZdO0M2k02nMp5mcCQWjQh8o7FIOJ2Il3KZbrv+wAPD+NvyaSPGTOD1q9+jMwIn3wViGiYwHRpDGCFt0u1dZzEJS5Sax3M6HuQ7PZj/dyzIISYmDiLjcyDMjf8ObpZ6P0xMtG/wS7jaDgPfgi1MZtqoX7sMHSx98Kijjrr66qtlRuE1DgUVl8cW04Uh201/hbMFVwFeB3QxHUCGLtt6OA8dfxE2IxbHQgTY1e1Y4Ot3BKi/ZRu4I65z2mn8k/ih3VfPjygaPUOICSeMZy6L4TWvec0555xj+EsUDg8sqSIhPzlQb4Rnq89SBhu5JTiRMPZgT8KVJBE/6pOIrUKzRSboVMZ+QadJX0Hk1sTkDgB8zZWhwVgsFJOJVMQfSRqZyXhMlnAmGS8XskP8XWZtBD6ZpU6qExvUYpuYRIurNql+T1hfXYS6Pj/5yU9CPu1XsAK9F8eo1WsI7c0oejAXsGExiV6hQGLccMrs8Z5DXMUMQXDACsKTc4wDgTEzHiQfE++G1/mjH/3o2GOPveGGG3Q78KJAapJfx51mJrw+q9ucm5tDzKHnqIVxSZokeA5xvwq6hnTflx/TYOOwAfzVP5HCMvTZN4rxdXoXuhEQain664e2GdFiURcw/c0Oc99y379ZkiAIvmliO+uss974xjfChDNpBfRGCLqO+cqcegV4zMiewP5lAz8yacGkb6DSgAIfrEqdEDk3SznB6WR+JywMYrl6oTFH5Cwa8H9tj8Wuo3vzf83yJTHP54P6lYt834aM30h4Wy6dKOXT3U7jgQeG9S+WT9ujP0kEg+V8Z58NO8X6unrkLbfcctNNNwmV0L6it5FEi5mwKNruu8ESxdOKtqHGD8ZRP2BQ9Rw2lS5M1w/cWwXfLUHJZNaM+AqstrkOprrX5Zdf/tznPlf79RUmXwutzUi+5hlkktB+Iax5A1z2Vd8H06hP3SVuo8+SC6fhrf3ADRxhEo75iB6mQMFucL9w1vNpXnpWhzn+8naMSOdCsB0DDa7vvFnXnYLhT2E3hPr0ClasWHHppZfiOgCU1dT99BjxXIG/rsiZQa0eOxVacWHZTnV+xH1MkAQbmZxA7AnEppmGjVEDFYe/Mn9bzn3MD4RM+c3Ad8BZEQ1omtogGS8mm9eryigbOBz3xNy3FXOpYi7Z6wp/h/qTy6eNsGRTByUGMmDtLoq/dE1WW/hqBWf4wizyBimCFdzCaNt+27hf1gHOPFwFdWsjt5GVRD60Rb10SRyG9WpRFDvhWKB2yIXpN7yld7zjHWeeeab+pH9qOEHgF3QSBQr5vgiYBsAxGmz6HfMFFnBimD4h9rgl9apBQe37+BvxCxEdFPzt+qVA9C0PZjIfJs3lBdt0xR7DXDfGYBOqmznS8eWSUdXQw9T8+uQnP/mKK64wFxAgq9enBwL+hvzcSP2JwnqaaH9b/LUwHSQ5A2I4asYmvjeoJ2vrKsiRJDG6jDTc06b/Z5lybgvqJXpOX/1oMCXiguCpUiEd4O8w/3j5tBHgUh0UxwLps/vGXxaDlJVV51u7dq2wEiOaii+gMIQw1msHYALrs+vXrycHCWYFKu9QLNRHoUCEfP48sRrqVJrUjiVfWDNHHoQ24ubnnXfeK17xCiRicb9YUIgNi5XTuHHTNrMC5jE/0QDHhS7GtId0SXq8fV/+8eDiLxpd/YBofHg2IznwMBFYYOFvSmDW67p+cuBCIfmuL2NkYo9C2N/7vd/78Y9/bMq/xAbwv1vkFvzFz3MA+MucSkq3yfuqIdYDVWNLUKrOJfYwwbs52boqxLVdfW377UatPWdaKukhb3xPKU/hbyoVqZSypXyq160N7d/l1PbwH9S9+gsKCz0Y/nb8CJKGjbo4NWvV7bB5QRxW33AAQktTMV9o/8L8JdtKUCW801hlcDIs2YCSRWYavDETJ6PUAqtCKzEXCjTLNVZhjL7oRS+66KKLTAEW5O0EWWqGwq5FZtBgCWauM0Sn1YBEokWNmj26WvC3H1h8D93/gLZRP7AoDy5uHsRmjpqer65JD4Goy3SoR0E/ZJFuFTbx1aL4bkluemgrV6488sgj16xZg1AO1gD4i3fewmUxn88O5/cA8BchQIT6AF+2LXMk5udes0LC4MAchqyNRQx9DcuAkWJuYnqIuSlwiMU9j4OQNxpPCJo9/M3lErVqvlwY4u9ya3v4D4z8/Rq/hr9q6p2CttWrVyO2wmLK+A/qgsS79hFw2zf+hnzusIaori0WpDBgRvUDCMNQ0oglABLyHQ50ejd7ys3FECIjsaav0NDSwS94wQve+973Uv0M6VsWvHazA+hmi+WOL4zgIi9Haujqe/GWCFD0jWjxHFz81Vcz4eEePWxNYHOPsKGFAjQPm9LwaKGHmwuakAgvkKYx8NpLTPAVGPTQfvCDHxx77LGa+2E+WA1sctjgO6INTXFr5K0P2P7FswT+4oggXscZCNnpvtD9wS/hquiNOVp9JojKfTFh8B4hFCExIctYBnE8EU14+DtVyCcbtXy5mPTxdxh/Wz5tBF8qQLNE/IX/oF4iICOdTNuop8NDoIQahQ+MSGApvEvEX8Ia6O+Qc0xWPkW6THpNTf3YZHdCjs7DmFM9dzxQR8T4FSaiZKgx/Id/+Idf+MIX0Bsk96S/WKaWAYptG/IOHKNRiugtITjNT/AcKKZrNF7WxXxK96LRqzFvKjn2FS4NwP06Jh5dM+Stw5Z/1g1KbPQC1oeeD9I/5vPtB4y0/t6V6+hvNCQ9ycz8zGc+c+qpp+olApGQf2O+uhP6SqHAay9EBjoPDH9NpdqcD9YAZS6AMhZsU/bFlKMRG7HkT7wi/EnXv3HjRnVLjHR9yq9Tl4nGNPd4DuBUMpaKb0sntzXKyVY1WyulpjuN3cP6m8uojbDWA1vRi1ki/mq6Fnht2rRJEIMetoVB1JlY7+OiNVesaWkvmoI80DgYyBZi3nbbbbCMSUKzFGE6tPbA/DW2pou8blJGKFD+peT4tddee/zxx1911VWE1zWiHjriaOhSHwH+LzXkMc3UYoGq55hfIJIQokYvZYdcA3/As7GwUdABa/2wzb8Af7lgMoyZmZg8TEtPzx9QNtpv38Hijs/Ps6jDJZdc8uIXv3iLXzvKKr/hvlAHcPFXcI/Yv0s1Wzr+EuN1HQ7WcApjBYO/MIjgsSFlCQeDpZgJTo0F1UVhTeACRuTT74TpeCIdiaSikXgiFk7G7s+ltrWrqV4z36nl56a7D+wa5h8vnzZCv2TYWwGxfeOvBrxwdt26dTfffPP69etZRwPBjBD1JPheLnfdIJjKDvu1f62/jgflzsac2vJYuHRu9BCMYWY6v8C0q8LDyRmZGFNf//rXn/rUp6LeoDGAgORDbPPz83pQAh1Lq2VxzYjli1iumh9wzJcqF0bDuzDqkqW3ov/NNWN86VQUsMBkfuiX/TA1QmoY7HoUev6Gazht8dIQjKKmashP84UnwI2TE2GVL/7mb/7mnHPOoVqdFX/jJLie6DPwf6mi/TvDX7I5dB62Icypw9MPafR/CJrwZFg4euUHozG97cnJ6NRkWPibSW4r5yK9RnamU+o3S9tnew/sHuYfL582wmLQ4BXI2Df+ojgl8L3zzjuh05oqCmn4SLWSBEHxAivU9mD5b4v6H0JBUgYeA2Pg4jUL7S2FbslyWMF0bvKVbw+aya4LlxnJn/rUp44++mgqfUFOeOiI0/EjeJiloI/twUrVzrm5ORI3mPYgk3X83G6rL2k1dGN7qxSSakXWjEb+YWv50npBvWdt4Cyigr0b2+RRdByxETgnpkzNEzCqw0tf+tK/+qu/ooApwmkoT+qBGPubKJzw/XeMv5yBqjFEdMm1830LaciL9FjETLCOdfGUQfJvNhXx6tDHi/l0o5qd61fne8Xt09XZTmXHXH+Iv8upefhrZm83UELZd9NhGgy33HILS2z1IRd/cT6AtlZoAGvUZMz2G5FzuWKs1IiYTQR1jg1z3cTlAT+DYbSRhHQNcCS0jYqFVrLHHXcczhMN8oOFOBaXMxenyaITceoELAtXftc8Cb1A/txAqu+UqzCPsF6WcLz/f4H/QLfRM1eHwXgHv5h73Ifj3rIRAfUR9Svy3IRiz3/+89/2trdZwWPyLzQr6xgr96kXjcLyolD7MOEvvg6knMmNtqQ7HCwk1FlfJd8dAXiqI4bDWgfER8e8FOrRe++OhseqxWi/mZnpFLrNwvxM94Hdw/zj5dP24K9B8KL4ay45s3/VmWT5rlq1at26dRSdtAIwMnDAX8vWZQN+7qZNm0hRcx21boJvKCA/WIqRtmW0Uu7MHBeQe8aDsggUfh+o+rVQfwfDGYaQBoZsjTe84Q1nnXWWhd0PCoqZy9Is3I5TBKjnaDWQTNgJfJ1sE0/rLChdwfO3PYC1KScctlawubN1qXrm1J3DGx7yeVqm4yEDEMIZrC+QkZ5JHWKWBTrDc57znA9/+MM6AHMY/IVIgPN3zFfx14Rq7vXfmf2L2Q6jg6JQ6KXgFyZQgTAQuXOY6jjxWIRt2xbefO+olm133fGz+yfuLma3VfNTtWK0ko/12tXdO4f8h+XTRlA17AZSD4v6f00OAjShtyH3p1YMGhQuVCIXNWbJPSPyi8yjVSKw/Aj8s+b/RXZSwI3kjbkmcDXg5tNvRAhJTDKV4YVeDsCXmj1kqZ199tkXXnghjkjd1GHLIvi/27DlsfpZX1M7ox8YvHQnq2akHiV0BpERSUBiCfNQTZ3npJNOuvzyy23JRX0Ksn4RqyR/ko8AtQfGfzgw+xfihLYZFFYgUcejpkaVJqwHeGmkF1Fi42c/v10/v77n7m33j2XT26qlaL0Yrhb0E+u0Kg/sHOa/LZ82Qvlxhsd+8bcbKC3AALNuxzxP6qQ600L8NZ+D+QSEg1SUQb2XTmk+B/KAqVujhoilexJjm8kultXD3IAETygoV75oG/M1uSGx6eBTTjnl0ksvJSmr6JeOH7aD27pOSjH+AbJyEdsDxZDcE0xbATprhC7RUIb/u3r1auHvlVdeKaw08QedGVqFiQXLqOT4Q4u/jBQdD8sT7wRrREuS1m+hM05q708aQffK+BidmhzPZYS/kXopXBUEF4W/5d07Zw81aAzbQWsjhH0Mfxd1+LpyaDJeMEOIMED90dhAylrDAAmSRV26rjfA0JBAmTBx7dq1BOtM/hxH7a9//WvZv6boalKW/BY0w9/o+JUuzaAOLZZ3R+xOH0GQRWPgmGOO+frXv47lpVs41GC1DJv5cyHMWck+MhF4v9RSIs8CQiTrd3MNW6hN/e2qq6464YQTVq5cSZejB8aCKnOm1asJnvqw6qg626HCXzVE4mWMcyU6TLdJfw75aUp6LEac8Fg9mzePy7qYGIuEQ4V8uF6JNcrhWini4W97iL/Lqo0s0flgNrL6EFEFOiveN+EXSy0ZrWQfDSBvaDEhx4FYmYal+iXISB7zpN8oyygIpswlGI3AK8tMXQYjXFYVFWsezPglKqiPMDJ1wsc//vHXXnstMwdSPsP2cDS8wDDtXB89KyF4hCY+Z1Xu9cqgZ+kwigapm33pS186/vjj1R+wfBGFMDcF+MtX0Cehqx8q/IVfxFQBEGOqUzMFEUsmibKvOu/J/m3eLAtC+JuIby2XYo1qrFGZqpXC4O+uHTOHGjSG7aC1EUtM2jf+dpxUUcK7FZ/baEn6rN8ZPAstX2MmmGofkTSM2TFf5Vo2EQl4Fg13swz6viVF2QL1YAE0ar8aqAReyDSjdj0qZYuyLMg+YmH4wx/+8ClPeYrWs2QGd5xCDMN2sJqbv0fkjTWKsVYsVOtWOLU8cvgzmndRYlJnu+yyy4S/wmUmfkxgVOss8Vcb+iIsSqEeRsMhwV9LytClYv8iiccVarxoIKD+roNlf2jNp8dx7+iWrVtDuUy4Vo1VS5Me/paFv9FOu7Rrx/ShBo1hO2htBGDdB/52/Lw47F/rZxZSAMhwb2l0rVmzBoYDbjgj/BIrc0m7LieBmJg23MLm3UClkLygrqP8ay5FBLSo64XVTBIU8T3qtsE5o56jxjPl5Ykffv7znz/55JM3btxY9YtAH+aJDP9Hm3HI9Kb0drB2LdwK+LoKpeNBmaixoPiI9mjRA/jqLb/3ve894YQTmPvx8FIWUyf3wMv/iABOeA2YIpv3u+E/LIq/FP1EMVVNsAs3ecwvpaFOy0l0F8ST/TrMW+Lh+yv5WL0ca5bDrWq0Xo7Wyj7+7uwfatAYtoPWRhYFXLcBc6BzJcjtocOZ941loEBWK3qrimaV4c3bC+3GeA4MFUsp1oDpBwQso9Cq76JXInQmDYyQC53eJoaeoyerLs4XkeeGEiD4i/iO/sTM8e53v/uss84iF0OnRabgUOPVMmy8SnUbqjHpRdwdNMhYAysk1kYwF63EKnkWWgy95S1veeELX0jsgR6od4eCml4u/QrNOXhs4O/vkv+7EH8tKUMfRP7UMvR08SQ0Iv+vOWdraGxqYksuvrVZTLRKsXY52q4IiKPVcrTbLu3cNcTf5dOWhL9wMPFeFX2RETiVpr6K5oPQjez+kM8hI/2MYhNYxGYCwyojGiaIlMWqnUQCe46oY9/XstFwNckS/Buw1mEQU32LYkgajVjEaLMu1P8lzRehE535nHPOOf/881GOJ5F36H846M2WMnq5lgamqdQWRuoztkZB4R42t/kiACxiWXrdemWvec1rMGnpgUje6Jya8jleJzl88JdLLflF53SpeKiZJPQQ+Go1zR+ecrG69PiW6NaxUjrcLiXbpVirGGlXog3hbwn8Hfoflk/7LfCXbkqnrPiKf/R+DGH1/k2bNmF4jgW1J5jkAWL9VeYJGO3SezVUyDElS6ofmEvwRtUvjZc24CWEAkyk29Qmya/Xd6G1OpCIQbhZl4pUxWmnnSZjSpOH4Lt6MJR3hm1hM3+RLVBISyHrB8gjlkA5QWqO6G2qY4DL9Cs6m/70spe97O1vf3vVl9ShIaaB6ojhL6B2yPGX+BvDRHu2bt1KXBFTAOltPhIoZ47dH9qSCt9Xy8nyBX/DHv6WhL/xbrs8xN/l1JaEv2xgvLCMQmeH3g8Qj/oVhd1wihtjgWqOHwDvhMYVimU6Rr2QCJsrpwv+QiimqtBAQM9Q1XyFwLq+RUAPiQ1yMVU1jRYqa9dP9AyfcMIJH/zgBwt+AWMU6If270Fv5s03/rg9ZLcokXGESefr+54oMA6lCygrwuXnPe95//7v/44rjH6YSCSgypD8hr7d4YO/uiNOizGBZUDmBVVBa35VF7JG1Ycn7xvPp6aapWSrFO+Uffwtxxql+B783TnE3+XTloq/UMctn9IS3sBfspIASnPkuUE21xTVYbJotEGJYnVHjRxqHMzNzbX9Eo2MRo1PDTwyL/BXuKy1gbJyhPKM0sQgxOeLGwTZdW0gNKWR8OxnP/sLX/gCVSR0AZbLO2wHsbkh0/7eUyzxXreGiL16ZPaAZtLbmOb1Ko877rgrrrgCRAN/1UlkNcN9NN9XJchjPrT4CwGD9aIOgParjir7QNfMATpYPVBjwZ88tkxtHS/lIq1KolmMCn/bpcje+Dvkny2ftn/8pakPEXE2soF5fklaRx8Sh8CD8c+wUomAq7ehwKslp/ZPTU3JBNCZzVfIsJSVSqamIfhCSpkbvVl022YCwnEUpLnhhhtOPPHEq6++GpkxK8pwiOFqOTZ4uxh6RllBeYcX7ervGFK3g2LJxnPQ740bNx5xxBE33nijrcC0gfOB1PNQUH6t6suuG//h0Pp/OW0sFrM0TuEv9Vb4FrKBPPt9fCwe2VrKhWuFaKsc9YJvpUizFKkXopVCvNOq7BzmXyyjtiT8hXlGX7c6McZ80O+QL5HD0m8hSi4MgkHdVc9DNUbn1BAVEBNFIRUNC8jNFHroDZcIl/3Nb37zhBNOWL16NZXfdIMM/kOMVcuuEQ5FKsSVdEAukikcCHMfPsYvnmKrfKwjhbyPfvSjtYixFZh+Y/zSA+0tG+odcv8D7GNdfChIz4P5QEU7/CT42bRWu+++iUIu3pDxW461KsLfSIC/sUoh0WlVd+4Y6j8sn7ZU/wPhjopfasXiHmiG4bqC+TAWCJ49mH0aCnzBaoS8QD24XxW/agAcXlJR6akHBXxDflQH8q8u+2Mf+9hJJ52ED05jA+G3of/3oDfBn/BXAEQIl2wIvXq9YqqBIDlvmjvU+oOuS+AXzwOz5ve//33Zv4JX64Qo/+qD6OrSu3RmA9NDjr+6AF2k1lhCWGIVMn6pGoPzgRtJJBKeaTw2mk1H6uVY3YPdsPC3W4k1S9EAf2s7dwzrby6ftiT7lzGA84G1kg0JVNDgvYcCJ+x+8ZfSRETYTP3dRG8xtwWL6pHQdceXINm+lAarCebcP/7jP65YsYKsKt0R13CowWoZNr3fkK8XCs8Pb7ueP+U19aL7PiPC2OWIOeivOowayfo4c6Re02c/+9njjz9eZwOOMZ+ps2fKv3rL+ufhg7/kFlMJGxecpgrENnHLQGlHUFRfVa/l6hXhb7hRnGqWplrFcLMo/I1X8olOc4i/y6rtH39h/pqAtIn+4XlQ02C44447jGwbWiB8M+B8gB4kG4cIm+mOm7nd95ef0NFA9oOFv/peoQC2xoUXXvjSl76UzBENb2McD9vBbeowskZN0lePWqiqt49HAo+/zb74o2wuBLmoyk5/e9e73nXGGWcgHwr+6oTU2UN4BF6tllB89nDA34rPrjOKDsFhZCsqQTVlHcZD6LRb3Xal3872W+luPbbH/7AHf1OdZn3njmH9zeXTBvG37TT2CHyRj6o4Sv5u6pHMDYTKFpYcHoiGsfjCPUf4hSFqquQWCu8ENd4Nfw8AbV2Lm986m2wrtLrPPffcN7zhDfhPdHd2JYcKpw6HZrkSNhu524seuehJ2OAN6gkLLl1/rkXebM9Axvns7KzValI/jMfjJvB0/vnn68UJuA1/IZ+FfGY3lHB1SL1Tw1+g9neWfwzVwfAXhNX1IFTiuUfuucczAvKFXDZXr9U1rejGmvVar9Oa7bb7rXq/U5rtFeb7+e393HwnM9fKdKqJZjlRzsfbjerOHUP99eXT9oO/JB9j59K3cFrZb9kmP/vZz37+858L2sgrhWw77qg9GCOYnUJqmcydQGdnUa8ro1HdVyd3beqFsL5v/EWAYiyoOys7nUjOnXfeKTPqQx/6EIUVEJ0Y6j/QAVDhQBjarVPnMnmNt8tHOkHioksmY2fR17ZXL+I8/aVNcnaMoC2VSgm/cJK++MUvvuiii2Bwg8jhcFgQDOchFBRXtUDxocJf/cnsX20IcAljeFJT99yTTCQr5Vo+V2zU2/qdy2RzyUQlm+xV89vb5blecbafn5/OCX936KeXne/m5rrC6OxMr7l719D/sHza/u1ftPtw/poGq4mhoA857ic+aAC4NTfJWwMKXS0V1P77eyvDDoxJRq/GLWWHdIYBtm9ogZfjwfA3FBTx1BVC+lHTRR533HHf+ta3dDsavQYfj3D8tQJ0RMPs99TUFCnaAFPNr5nS8YWZ7NH1g7cGe5cnKRwXegqY+oGg3RIfsiVl6LvMR6+XdeKJJ77vfe8z5V/DX3KUwV9hMVGvwwF/sYVR+ENwcsvmzdlMtlgoVyuNUrFayJdKhWIhnczFw5V0ZLqWnW5meu30bC8j8N01nd/Zz8200vP90nSvsnN774HdQ//D8mmL46/7T/oufQsKMME3+ECkUYb2llfXSBDSkeeGkCtJydAzhb+1QDHdLKlF8ZeQhZ3ctaOXiL/uBipreBJXr159xBFHrF27FhPeoGHofxBi6jnoIetdA3+loMCEFgoCO7RD9WqEevwT0oJmNXwCyOPxSNVnkK+THW0Lnf3ir2Xf6Le6n/CXt6aNJz7xiSS/GQOSSB0AB/5qW586TPAX9y7ZbqRfTm3bVvSuvNCotzzwLZZqlcpst72j35xrl2bqmV4j3W4kOo1Yrx6bbSXnO+nt/fz26XKvXZyfbQ/xdzm1B8Vfq3YB5tLbLOHN8j5RMl3UIYBFDBCTyI90jv407TTyoBbir8nomBpWyMk8XopT2HVZhHzyg4YBc8mVV175+Mc/XnMDNZPMAf0Ix18csnoO435JPatN1Qtqg8IeI3sCMWjACBenUFjrIRDZuoS6h565pRqb42Lfl4EZDiXRKr/pJQp/v/zlLxcD7RH91jciBo3Xi9pXhw/+Ii2NCqCuUF0urQWBbxfXa41CvhiPxT2PRGSyVc7ONgs7OsWd0+W5fqHfTnZrUf3067FuLT7Tyfc6pe1z3Qd2D/2/y6ctjr+WhGapxlbEha4PhUtd/xe/+IUt8w3yAEcTEqSAvHqezOHbbrtNe9QpIf9i4yxq/+oy0O6xQjVISv5W4bhxp/Qc8XEMtE9+8pPHHXeczgb5wRQvHz5o+z/R9LpnZ2cxWrVhdeP7QcVlwmLmbXCDdeYa5oM6CXV/kZiBz0B6934nOcNf/aZyD71O65VnPOMZ3//+90FJdm7duhVZYSSZqCtBrPgwwV96LxaJpodcJp3PZb0jy9V8rjARmrjj9p+N/vqXyamJRj7WqyRnWpmZXm6un53vZec66bl2qldPdBvpWiU13a0P/b/LqT2o/QsCovlQ8dMuYJ7h9qXrU/t9wCewUPWRxvAQmGoZC68Tz6DOvBB81bTfqoQhhSWsJ9anL9U/KXKBv2/RinM2E2AZUfYYbv973vOe008/He3Ke/x4tOYSVHjQ5WoH9UZZCBM74uEMIIULSTRbQNgeQy4MTCTlKDdpqbecmSNNhL7nVJu3i3n45gnwVHOSIMy8Q27MbaAtehL76/bt28mzQFvDvAp2QvvSASYMe4Bswnd4G6655hrNmtddd51pn2ru1FuORqMommsbXQX61SHhP5T8UhdCf9LedOXqw7YUULcvCn0z6Va7lcvpFoqyL8a23BPeOl5Mhxv5aKMQrhen6pVIpxET+O7o53bqZ7o43ys1a8LlIf4uq7YI/9dMYAR/1YHcYAL4Sz4P6QxmabpUswEjFPwVXgvyOD+RGWSrhMh0ekgRwJm6r+lMWqUMJNPUoTdu3Lhp0yZZ0+vXr//pT39KsU41ajsaGc6qMY4HSR/EQ171qledd955pF3pI5ThQhrckF1XTuIskK1P6Zr7gfnmqhZ0ArbcQmCy5TY0VTWAwGjUhUDPnoP1EBbyDez8ZoruA/4eSuOcCHr0HxobT5c6Nzen2yGnHLYvd2ruC/qbhdrceCwZGfor7EBo2l/72tdOOukkvW6jP2rK1GvS+Y3dZRUlDiH/l4xqFOJ1MQhOYpurq1dKeum5esOr45VKJe+44/aJ8dF45P5aMd4qeoTfZjlSLU3Vy5PN8lSnEu5WI/1marZb8Py/c52h/2E5tX3lX7B+BC+wIIqB5pmaoEQWJQ4BOF60hUQFs4s1NjRgLNsCgqfOLICTlSSzBWa+9uivGnUW2aNh6qIdRZWj2/yGcJ/pW2o/oT+UzzCWtV+2M7mtuqkVK1a8613vEiKE/KQMXCUY0dwLfCZOeGfQbL6xiBOVEwdMQnOn2Dpdv6m7rMvWZcDV09kQPoZggPxFIpEg/c9Fedcq7D/8+Ku3bD6ZAzsDr9gCaMTQdLP6Tdox9xv2G5lgwlNyEPoO+UEb+quJ73z0ox99/vOfT/IxizD9VQ9WXZGXyDyKfsghwV8+BVlec4wuctxPuMAI0LV5t1nUXF4qV0qFYj40IbPgV/ffN55JTDVKiVY51ilHm5VorRwW/jZK25pF70cWcbuWbNazczOtIf4up/ag+EvaRckvImDMX/oWZEyCCWb/Wqk3VyJywBWAKqthh76CGuMExyt+CRZgiOLHwlYrFuCy0HBBYFNj24KYuJvHA4kfNLzNfaFPCXxRXH3iE5942WWX6S5Il0Jf2D5oFjffaF+EcptbqcHc05j21BwjxGfyBVhz+qyuAXOeuUQNm1ofYR0taNb59UzAsgGb10Xzh88FofOTb3ZgEO/ir3EYjI6mf7Iwp4NBoREk6aXDdWMaZtkB7Aqgmfh15MUXX3z66afL2iXyVvSVJwW+5BxTS4Wy8+Yx+93jr7nptB9VNjo/lZZ04aVirtGo5AuZbC7zq7t/uWV08+S2UD4TqZcSjWKkXQo3SmHhb6My1apMdaoR2b/C30Y5Vi7Eeu3Krp1D/8PyaYvjL2kX5IyykoKEZHFnCmVjZoI+pv+wkAjBHgLTyNxg5uBn6PlUB3CK YrEhMYh5Aq4E/ptBqmsSFwEhv4DPhDzQcOgCPnKOzqbRrVOtWHDhic84Qko/3oVt/ycPbSD2XBx3HhvIZ9HDFJb4yOMf1N8R/TdfCB4mdGbHw/STyEkxfyGBce2zqZ7H4BXi331A+fyw4S/rPo18+l1k4hxACdxxST7ju8bQDfHgvul8/Pz/SCVA0+XHoKwVQ9ED5mOJzh+/etf//KXv9yER4q+eKkgWx0D1yoCN4fQ/kWdipKyhBxQxWQ5pdvx8Ter7xH+hiNTwl9N7pHI1koxWS/FG8VwqxRuyvitRIS/jdJkw7d/O9WY7N9KMd7vVIf+3+XUFsFfRo47pduQsLiHwFGAgtA13gCovnDRFnU+CDG1WrScN/su85D2nZC67dFHsDf1W9+FgLpVM9q4caP+CbMNio8FA/lSvArmOJZlJ3D8zne+c9RRR+k3J8c8cat1DFw8Riu4PDC7GEa74UerjaQvRXFYjSCM9ujRYanhnhbYZYIGxUr7sf7ww7jhL/2z4VcdfZjyRABHXSEZFgd2EkPtXpCOYX8aMKhdUppr4PNP4gSkuqnpmZxzzjmvfe1rdftEICBX4PzVk0SCR09eHzlU/l/tQTEV/MVhBSOeknSFYqFYypcrpXwhN3FfaPO9d98XGk3GJxu1TLOS9KptVqLNSgT8bZanWuWpdnnKE+KpxGvl5EyvPvQ/LKe2OP7qNyupUlC91c05ltmoXiUgQ+rMYmtW5w3nJqYimKUDhHQaCWYE2WjsOWoPHSeQxRBV56YTm/76AKECjyo+X21s8hsOCl2P9uMTxF8hsPvJT35y6aWXnnDCCStXrpSF5VU89K3aUJAmtxB/F1r0A39dePCiO0NBZNIq+2oCkNVm9l3WbxrADF2NWAx/HQldRH+CXcsZtK0zANMIeNrTsw3DNTM5B1zVtvLgr0TMkGh46C7mhdHIAV/5orhsoIxnBv+D3uNLXvKSd77znZVAJg3vBGUrecLa0LNihhMup/2mU1kYA6g1dhpeAsNf6/MVXyp+ifgLBON00n69X70yd/HEdBvyaZd53Uq5nitVsvmC3vD9E1umtm2RYVsrJxqVZL0cr/p1joW/zWq4VQm3K+FOJdwqRxrlWLWU6LarO3cO9X+XT1scf00MkI5oZi/xNw0J0MF1y5rzFH7C7X6j9hqVMXUA7Cti/W4QychVmHvuaCwFJVsWYp/VEYBc6ZYrx+TEXgaFBc0kgK5ateriiy9esWKF9miI4n8wfF8UZB+OBmdOdydjTYYbKQY8Z4w7AYd2wtVDX0ZYowWsjsf+xTUPbc5W9DzVAauzH+jJLYpxhtG8gqJfY5gA4CEkRHP9ukGUd3Sz6k6nnXbaRz/6UVZj4C/kCnuJ2tBEpUenZ6L9+qteq6YojGisWlLnzVFb80tyuPiLYhndfin4ywepqK1/Iu+H44tCzhi/uh59KpvLFyvNfLmeSGW0qLtvfHM8GqqVEoLXRiVeLycqPgQP4K9f/3iIv8uwLe7/hfmgLmXMByt1zEpQqGchhQFwxOYlroXfACwWyqj/QarHWHPtIHzBA67Dvl+6BuxeCI6gP3XnXLcDf3WPH/OLzgnItFOIfOGFF77oRS+CbkFxI2gbvzP8tYmq4TddiR4pxi9aMzx8njkKQdrf8RkjNJ6hGlhDgJQ0B7yopqTsvlbXqnW9BH0nvkc1E1Yqhw/+qq1Zs+bEE0/8xje+gd+A5yOY07QkdDNdU6QpCbSqAcTqkHq/lFbB/qWMVjlosC9sz9LxtxhIneEP0dXiB8MyoCA37gheq05dqjbTudJ99229+1d3bbtvSy65tV6KN8uxpoe/8SH+PqLa4vxfOpZGvtAB5oPZv4xP9S11fdf7OdBs8YVf4rbbbsNLQGgby9rNU3Dz7lz/r6AHatFAqC0UZPoLf9W/B1b3FhwbD5IvNBNooP70pz9duXLlGWec8apXvUqIxiQRCpR6DorE8BLxlyej5yyM04CHgobQgTl5UFSAZaU/GS8CC5dyEvqrLp60FN0jVCewBqU3BHbdhO/+Yi4IzGcBOuKcnUNdCmQh/l5//fVPf/rT9fpsoaCGT4kOAP7qMbJ6MH+OHh2zFJaBHjU+d8SkcErQtw/A/gV/LTWfMkjYH1ZpG/IyKF+t1YuVejSR/tWv7t5yz92RbWPlXLhRigX4G6uV47Uh/j5i2iL4i/FrZgLd1GwxDFIhqaW0hxar8GaSj+QQq0cKI9atWye4FO4gU6kPkjxKigdJX9h3ZnlRf1MjZ2GGG6a3IHXTpk3m7lCnR+fBgma4oXXBsow0DVxzzTWnnHLKm9/8ZkwV0lV/x/g77rMg9O16vIK8np/sJ0TQ6NUDgRILMQsPpvbrt7nmXRbw/Py8BjnhR24Hfwu5gjwTW6ZwToCGqW5hkE1fpEfRP9RSyAvx96qrrjrqqKP0fsFfvDR4eyGW4H9A7oeScVY1wyYz7YzFYvf7TUitg4FgowweAP6STM+lsqzRA4Sro69DZ93U2mr1Rq5YTaSynt9M9m9os0d7KEWb5WirEmt4+Bsd4u8jp/1/9s4Eyq6qSv9vLQcEgkK3ogxhElqGAMqyBdEltCMi0iLLYeFCdNHdaqsNSEuDdrts0aWIIILg0ILtAC0KYSapBBxaIEBS794i85y81JCqpCpTQSCg//9X58f93HXfq6JSqSK9irdXeLx67757zz33nO/ss4dvN8g/Nm8T9jJ0jc6C80yzXXjH9MY7RDE3V950DAAojO9I2IpGQNwVQKmTCBBbWlrwm0HiLgCCWwvHiIYyqaU+f1S3NdYFMZwWK5uaRJqDZObMmTjlqGwoVVrYN3XqVOHvv/3bv+l2yHyLaunzg795iodTq0xTq66GYUMTVQCBh21hEgKiNY2xnj/55JN2mgGRWsAcJW1zkG0pjoOW2D+p3iCAT1chwQ+rKAZlPQJAcHQQbLeq2kk4AQgFI4RjDYf6bTSMEPbLaLz66qt32WUXtRaXF8T5LLGENpLgo97TTyh0hPJL+XqqXBuFKYNE5B9OPFRU7LnAa7RI4FvjQ24n+t/gIdL5PVa1EGrYM3doLUcO3NEa3U7P3IE93aMLH5vd17VsfftAhMOGgcw3ki8Wr1u7qIy/XUu7O1P946eb9Y8njpTxF+LtzqLaG7Y2rGPMBI0qYgaqiXnyD4WY8DdmYUCBBnbocwojopDmhRnU0ImxWKciyIzQBaEzWcWR6sEQ/LskWBtcpsi5EmA9ZmidRHNSrz/4wQ/22Wefa6+9VjeoP583wI2SpWRoLAak7Zm0XnCAw43YEqcXCjgwWUJP4YhavUEBHOF1Y5/TMwRxk3Wtz/VeC9XmgqhhFPjrAAwNJ9xQbC+osymwI9jZRTZJx7A/1iUB9ZUXBqHYpZdeOmnSJP4E19ROnZ/bYQBoQEbjb+25hBqDWsDUJLBY5yR7zSsHVMI2NVgXtr0CigmySNjVsbnB4cbeEfzltMJfacFbNm/a3Ne9sae2Ye2y9R0L13csEATr37rOhT3617VQ+LuxZ/Em/ete1CdE7li8tmPpxg1rm/g7kaQB/mqEsWg7gpLdEyNbAwtty4SQ5J4RfOYqGGyHYcVmt6up4nmSD47ciinLJQ1aJ5yfhJlMYAP5bJL77rtPBzDcbXPwmfkzL2oiaHYJx7/zne/sscced999tyaezjPW0Doi8T2CgywVlkcKIb+O1GfcjHQy+wlHjOSJWnMkzsMYqlzqc3BZl9COBPztDyFr2yWPFwzrWi10ci0nQiJSjRcUogfqS0NQydjrTxEvvhdhIqu+VMvzzz//oIMO6iy4Tyn8qmdKZDeru8Ta7kjwF9MEQAwWq7XYiNVmfW6LRDRKgKSEneFzY71kvWdbJoFeyrY7TjLQ8o6BkOQnHt+0dXPv1k1rt23u2LZpzda+lZvXLenrWtC9Zl5X+/y1HfN7Ouet75y3oWuB8Le3a9H6ziU9Xcs3bexu2h8mkjTAXxbt7pTB6YgoFnDNTCIfrIQClJ7esNhgl8AyoG9RiDRGCRTj+PpciXojMsBEvBqKFTogIRmaIcQw6DBsnZTegO2BDDROpTf4XgS7l1xyyYte9KI8hXPtLP3XKqFvPMIin9PD7hb/CYGca5RoJrPhbUi70VDsGi1ldXMV9aSQaNT4iw6LPiu4IZekXkBkCN11Uaz/eqy6I6nG+pZnTQoyPDtnnXXWm9/85o5QfpBkZfIMsVOxUbA8p/IbD2OQY6ZQCzEBCd/J5rDZwfirxusAtRb2NUY+z07LmBA8Ok4M2UmzWbtB+Ltl4+Obep7Y2Pn05o5ntrQ/vWXNU5tXb9248okNK3t7lnZ3Lljb/lj3mrb17XN7O+ZJ/+3tWrpu7Yqm/XeCSRl/7XxblwQDHO54jIMMMk/a6hCECUQBC+A0wZjMsFADFgBBdNaV4NjmXQ3l7kRlsrlgeoRelvdEXOlb/M6wMaAa69KYgPXa0tLCXBVAX3jhhS972cvYCLMePP9irIyWE//JV4RM5UUCnjFaUx0DMdqWDsNuXh8fMpRkg2NF4iPQCdVjlGsbtfHXYS0aSDqhIAx6T2g9sGiTWyx9kyxznqBuQbClPyEh0ofAYnciBnnXu951xhlnuOyF3mDQIPowT1kPeqYjUXtL+GuB22RFEjx4ai0cSRiIaYw6R1+xD9MrWoIehCu86UMcGIS7GXxpee/6PnXT1v5N/Ru7n9jQsW1z+7ZNq7dtXv30ltq2LYnzt7/98c21zX3LNkjz7ZgnCB5QilfP71yzeENf15+a+DuBpIy/RDKi/FrR6ErVDfRG40xbfhsrvdP3NG4NJYJQ1mCV7E+RZPip7SCqV3gtJqmRPkvYJs2AsocEBE0MnEiMeCIZIsqgY+pU0uk0UQW+N9100wc/+MFDDz2UJH2Cz55/ib4yK8IlVdSeNLQwOARII1SH2MJjbWsk9oeRNEzLlZ77piLveXT6L9nDekzLkmB5IC0tLxJnMHbTcv1Er7ov4Z1uSr/VKus8Y4m+ev3rX/+pT33KzrdaIikmgpvG6ylDlmarwvbiL846wi0o5yHYpZYSyji3Q0AxmEt4pSkAMbjpjeOFCLVkT8nisXHDxif6t2zdsunxjWuf3Nj5TL9U4Nqftqx+pn/10/21bf1rhL/U3xzA4o0rt25YsWndsvWdiwfwt7eraf+dSFIxGy+K5LNRMklYse18k1KALfK3SSiySfxADLm1dQJ0cCSpzgBZO8dXi8RlCcnyhl0wCHwUHGD3tFkZlUozTUMfpx+Gv2qdeM+uplIid/r06W9LoslQT9/z/Ith15A0/PHgby1Fzvl423NGcd34Z5aSntXhJDSX/G8xWbG/YPDorytE78PwpG0KhawI8ACJpD/i+MK4r2+x4eq+9LCg/kHt7SxK+Oy3337//u//blDTGfBVgr/qBK2vjnAAXrcXf/1Dfgs/tXrDRG5aEgTEwmVyKxir9jGiCEPnb8UFk4UdccuXL9u4rvupzRu2blz3eG/HU5u6nnm88+n+9oS8q/Xv6SdqT26pSf99MmEx/Ovb+jue2NS+sXfNE/19Tf13IknFZsRNiduF9d+eN7OtU+iQ/Po8ebQIfsDkSpCpFVvesAvzpNWphNrw0eAzwYkHrw0goqGcF2w4+hbmHTCan5jNhGpGXB2eX1KNI/m6nYT6XHNG17311luPPvros88+Wzc1TNWM/4PCvcB+WStyAsfkzHEfA1GGqxpjSTB7pBHWKByTxcHZkbD2mNQYXCa6QI+DBEXdKdoAuy6Mp4La3Xbb7corrzQDNb4yIR1OVD1KDQPCpUeIv8MIZ5CqS2oiIeosS/SJ8JTlCidqngIKiSFRB1JPgH2kU5nwIj7W1ra5p/Ppx/ueebx32ybpv+1bN67eNmB5EPiu2vb4qm1bVz71eC3Wnxf+Pv1450D9481rn27Wf5tYUmFIuZyit/kmnITwQYOJqMY8uNGJLXUMEz569Fk2Yhqy5hbQeXQYYU+49fUndeHQbTFoguNstzHp2rLMNMPcbI8T0MxpCRiIXDyGZk3glpaWG264Yd99973kkkso3rGz7L+jEJY0Vi8SLsYKfxEgmLhgEu1M4hNjw60JGkb7C3KJkRdGqrcsa5xo6UUD0FWefPJJnbA7FDnWI37xi1+sx4dxgLoSVF92yJdGC0bbHcdfDMEQbmxOFPLqc0jpdH41DOu2FgDIobDLQ+ekgc0kIvkQg0ktuU90/KOPPLyg9ZG1KxZs7l715IaOp7d0btss5VcIu+aZrWue3rr6yf6VW/tXN/H3BSIVg68ZoWz8BX8ZPRp2LiNYstsygV1z3tWOiXzwnNQg1iTRmMb3jbKzOhGuk2IAoTveM+pWEM2GicNuKMKDStiE4LOyKYPQWlBeVxQi//znP99ll12kRum6up2YfPF/XLyl0N1R0mbM8beakgnVJ9AzQkxjZ5ozI8ysZoB2NvPmomjbc+JvFJP+YDXWJ3j/MFOg7c6cOXPSpEnavrAbI/pFzzQreKWhWTD+jg58MUE4R4OYCqnAWq17UkFlQjPV/xq9BMirGWy59KozYNFmkXAJIqsyA0/woYfmznlwzZK29WuWbOxa3r9+VX/vyq0bVz21ZfXTj9eefqK27XFBcFP/faFIxcZfp72Rc2mKa7ZOGnA4u+w9j342tFF8KcwE6Z4apt6okgqlz4kYIyZUU45NLlENvN+c+NelblCcDRhF7yOgAnZzNSZGaNn6HCMoMG6gkqvNd9xxx/e///2Xv/zlv/jFLzRVdlbw7+iEblebMXqOMOFiJOKgC7bw7LizlNsCj6L6kBp9QJuW5y0Fg2hJmR2hyy7yZPKJRp0uwYcaCRgxnHKpi/70pz+dPHnyvffeC1BqTDKEbMQnjBpFwRlu2yv+La/cuyOCiTbDEKHJog7R58wUlAM1myA2gtVM3AoEa0gPWMYefXT5gqxn9UCpzfVrFve2L1rfvqCva9GmnsWP9y17cvNKQbCQt4m/LxB5Fn/x8KL8smkiBQOjFSQvtvDaIFAfvcB7DVbNXp3KtId6A5MvgV8E9OgM/Yl5h5LAm4qKNZEdmHxo2LKZFfoh+fVwHWCDxh9i64TbWU0hySTdSXu66KKL9t9//9tvv93Mv2OFYuMt3IvazLI0hpYT1/tQF7W0tPAQdX71qh1K8CjaEcrnOnL58uWMEwJ4RxgvsaVOdAY9I0rhsRgQBQzc6xLf+ta3jjzySGnBVgi0ThDRaMtMNRFcjAn+onprIGGCgClCVyTiLU8VP9VsjSK1HFdhe6oE6Ky5WLJrdSp5pZ8P8BRX56xcmAl8N60dYFvv61ws/E2Zb/P1b6Dg0PrFj29a1cTfF4hUzPnAWg3+Eitj/xvGB9sBGrrOjcJoDZqrRBODrZp1mqIUKsbCoAPgvTX7AbvdyIIWvepWnXjDRlUjm9B3gBhyA8jA8Apij8MuoYueffbZxxxzDLo5YUP1C0n9fY0V0u2I0BLdjiAPK/mON4xzmkQfzMV7aQ6juJ/wEouJ34gM4T3bcB2Akoj2inttUyhyvKmosBnDJFwmjj0+sEvILb6H8847701vepMuh0VYn4O/etZ4awnCs/Y6avsDP5euypi3uYw3lDuCAr8/hVRClLy5qBcDCzA0EaZyxhysRqYMkWpP+5KBOhdrB/5t6FqyYe3i4t+iDWsHar6t7xrIP96wbnF/77InN63atnn1U1vahb9bNnZua+LvxJIKBr5IwQeZdDQ+UOLFaNVwGvs98QkaoLYGMkA1KDVLmdiQouEic/l3kghgRBPKUKjRPp/o27HlUfME7te8sJDiFcRkAcWPQJ9sBWlPf//3f3/iiSdSkotgOMtQ60r8KuZHDC8xOXtMtOy2VNxXncaSQ/z1Dp4z4m9eBD/wPq5MeWF8Z3sRsZioDHcgXlB2JJjySamAJB52TWy7cR2NsRZeZfWeKIJasjZ88pOffNvb3qZrOfiXFGEajLPXzL8jjP8dCoL1czUVJ+fiwQL+qkOgY9ZKg6+SegWYfUm1YO445nd1KlmgJzh3br6uQ8i75C//uv1vsf5t6F68vmuR8Heg/ubahRtT/fknNqx6ckvnlo1d257a/P/+39M7GzSaMmZSYdtI5AORZ5HwFxTOUiXBrOApr5/GvHFQhCYedY6tsYK/+tzTG5Mxk58YXmgc0KqATrxwGHCJ+bV7EO2YMIY8/0vxi5iMB2SQFiXwveOOO6RDvf/978duCK1ldNn5twYUg1RUA3cQ9UYnOPolhJHEmJBRS1ZECvJK7JRz7fIiuRHnEjncegptQTBctAbJktmdrZIgWMdDe0byOtYnLg3fMZt9WJ8kjnUTuq1OFfDQf0855ZT3ve99wjt9AlDSGJLfaKTObM131PqvRVCrMVnCXxRhNV7DW+3UJ5Cmor7EVAtTBoK/5gVeuHDe+s6lCWqXDPpXwPGGRIHW27PkWf6zVP9tXceCvrXL1nWvfKK/t1l/cyJJheAHNn3QIZo0BAjWuHSo1lD6r3OR86LS8JaiqoU3nhqjVqKj4gm41J88SwHtruCChQEeRcoa5cnrLfUWWzD6hYkpfEIdo6l+11133X777YceeujZZ5+t2SVQluqNJYRqdcQjD4W2UR0eIboZoUbOzDD82TBw6zFJuxyrlcAeVJ0fW41XoDwBq7rafHWmanNRUZc99TPlEUALqb4Vim3bto1y9FZvNyVuM1h3BcoOgJE4NRnDq4fiG9/4xo985COrC9J0vaF5XJ0dFXaPWkigGAX+WgWWNq3zl/AXQ7BUbzUeShPo6GzqxfKAF876by3VSySUYtnSxb1dS4bA32SRWLu0N/D/Un9+gH+na0ln+5ItG7ub+DuRpEIZBQa6axG6viEsU7CaZkWmbGkOG39RaTUnNc7Mjmg2QgkIwqlwWzshNSqeJbNAXuQ3x+BfrGnsdmEFEyrBxU4ksqAEsBAiaJ7MmDFD+HvIIYdcfPHFujt2x+R3UB1Ov21pacFCzTmBdV9xe/XfrMghHpMsOxg1dU5qNo+J/psPxl+WIt8jSTFUuRboEAoG9qkNwFCeKqEQpo2HIC6BOiF+qmhBYiSYAtjbI6vARBRo+y8gBsik506ZMuUzn/mMIyLIjGBhZv+k9+b8jcUvtkui/40hXa//sg8DdtUG/GzQmwG+ztBL4NtOqgixQ+rS1atWJPxdlP4Nhb+B/zfpv5t6lm7oWd7duWzLxmb9+QklFSLPsPOaWszgq+HIzpfYMucNRzDyeyYeFQpAXhcYB4Xxm2cpQMK7/nwwF+Iwf3J1At3yFHKPdglSAHYYf53iMXPmTHS6adOmXXvttZMnT77ssssgTzE7pU/OeVx42EzEOPTMSsxsN11ktY7OIi8WDHjg9GotHoQq9aGNxQ2Fg8E1bKmlnJSRS+nMech71r0TRhJr+nlrzwqnNUxf2TXqeBWBqfCOxZULAdxsTbJkaiCTTfDEhn1TUWh1y+Bi2E6r01AETzUs9TiOOOKIr3zlKyYyxxQL902WInPUSMc87CD+0lR6xrGSXJGgSTVJjRTs6lm4NLj5qgY03wGSyY7VA5qv/t85QBL00ANt2ZwFc9vWrlk5NP7a/rC0b93SDesWG38H2IFT/Yv+zev+9EwTfyeOVNgM4rclBNiEvyg7zEBvME0WUx1c5ILPmb2uM1+aY4IPpx1vL3ZYl7SuPRIAQinTdTVXv/GNb+y///4//elP8drlBXPC8GJvnpCUghoOQ4ZfDZg2fzkBy3SLAEgHm1rexGw6Cbl5/ImuDTp7QYoeMHYJGFJYDkdn06jH37hgmGqDnEayYKIxh5CVLQXhA8sqiq1GkSOyOZ6OUpt146yF6NdmlNe9EL7mJMn+wCahoUhNaMHivffee9hhh1111VVWLaElQ/l1h48CcOvxF+ODWqUTsswTAizwlfLblgrrqW1qrRYSDaR6esmBWSMQb+9YtaZzVa1z9ZqOgW6Z/ci8fHZt2fy+zmUb1i4pGx/Cvw3dA/bfZv2hF4gM2H9diBuTnIPe2eiBKdECUAoD4PM8qUtYZqFNiYIVzCzpowgJyEL8U14omM/5Ewoa6WCYJ/fdd1+hjCY2rvmRIDgXbS0KidoQgW1UXxHvSZU2ASgoTE620DkGDLQWhTnAdHYDHPa7wUIaoRk1gUV9zkoQYW57JRp2LCj+kNVhHMCgGVnueMpCov6CzUMPNJKRO8+Fg9H6vWXhDe03ZRK4TAK6/hTeYXPA6kXYrN7feOONhxxyyC9/+UtTOFJBw3Sm8NjtOP5GCh7dKRWGtEgw2nVR3QKfs1Nk4sAOPMhq1yHY7Vwp8G1fu2T5iocfntU6++HF87LOVQs3di3b2MTfphRSka6K8YGUU8YPPgSi3LXpxm9mzG0NbL9xj6wpRDzZrDoBbnQqq9KjwA6XKTKOD398lgJmsVFIzTz33HOFv6STjgJ/oaqIDG36RDARo5URvOFwJeeFIbh1MNk5QAxrgaDW3ejiQFhU1Z/U+NDr3XffjWk7Dykw2yUReXmPWQnuWrXQBepB4RL+YjuiEoSOp7AedwEIukmk0ulhObwkC55MP323h9AXHi47CSKdGZk//OEPJ0+ePG3atM5Qdt7FflgI9cmO4y+WX95Iz7WRGn1c7QH3rYaDucQ8AL7Pft61VmqvILjW3jlv/nytntnsR1YsfqyntriJv02JUsHdAat0DJ2x39YUNtDroAJ7GhuL0W50WPy2tNuFf8fu9e2SLMXAaT5jhmPmP+evNJk1Z7JUof3MM8983eteh/sITXaEzUB3o+iRga+astG0JzUnlmNagTBdiNpI9QZiTkWmAwVDWwNvcjbYgoxPTOeRmgw0o9GPAn99ZserZAWrBrqqb4FVxH5XfkuAMCwfPGh+Tthva0HZTPwZRnPbZDA75IPDQvx5KVBEDdNva4kHR0Px29/+9t57763zmI0P84UuyqNRkyhRuoNChDJmN51fPQCFpqPibKDrKGrQuUaclV/9f4AyZU37mo7OFatWa7Pz6COzHqs+umb5wnXtS1PmRRN/m/KsVFxqk8gHhlQt+T2EU8RX4mK2V8rMv0ZetufQ9eZ1XLSe9pqTthJuL3YQWaEZAjpQePE54UYN1l2ozT//+c/f+ta3nnzyyVpjgO8RLgPVIqiZe/ctA6M61ROFRAum3gsp9BODdYRX9ZWAm8g/40j0wllfxngKygh/86Azbm8H5oWlyKX5QECgnPA+fE1CHzxdUOv6clbhMVU75jcvnnisSmUXKKWynfro8BJOkhXWj1IXaSChVEouueSSV73qVXqOjqhFc2c9zlMMBslyO46/fq+u0KSIXkHca24DthfofYFjtJaujva0TrR3ru1etGTprFkP5dmc+W2tnasWr+9YsqGzLvKsib8vYKkwdFB+sTlItP/C+IAGFMEIEyfeJ0wTLn6D1RLqSCs4eaHKSQDu4f1v3hrzp87Db/UTzTfNELJF2KoPDzdqhqa9AGXGjBk/+MEPjjnmmLPPPhsaQOtrI8Es3oAaXm8I2NJuNLryrf9qxgovsH7ALJ4FEzBRzIAIUXQRc7MiICxL9hMSH3SMeo/+jPaf7RKdRzosdfkwKNumrI6CxBlPIIo2tT4dI4ipgesCtU61sB7NJ62hJCAbJozdZIrbFUlICXEXOCHNQapLA20aip/97GcPOOAAzGIwrzMqKPiG/huhc9RC1MSKFSsoZgwziR8r9A7ObcMOQ9pbLZnCiZ0Q/upfe9KC1eWzHnqw9dGHFs/LejtXbOxatn7NAoHppp6loG1f16LezoV69YcDn6xd3MTfF4hUGEmMLeNvLVFQZ8nlXY9HbUWdC6ICmD+aDJrDDs8CaJw6QRwu08wqUlR54vn9oY3OTHX9VnNy69atUkyYqMPDDUinG9T7m2+++W/+5m++/OUv60+K5g6/DNQjlxABoLSOpvulUlmkYXSStDRcXV374myw59CohE08ntZRdHQyVlQyIExFH20+I2x87FtiGKDaYItDHUmCMbgKS4IzxY250WoR7chEE8bEjbjexHUu9kNWJCiS1gFxswP+1B5gTt2oVfO4444D+9pT2XnYSrGZ4DncEbZfi0Dc8WdapCGQwrKk7op5SbY86BgccUycAXq/+fPaa6vb19TU3pUrlqsn8jmPLF2QrVuzeEPHok1dizd2PUv4IKj1P/05oPymD5v4+8KRSonzzF4FCvzU82x57nlG4dCXjqkNcjXRr2jOYBbEuqepNX36dBz9+PopX0RAkqc6elM22Enl/TjKINGj0n9ddXEYwS4puNHVr7766r322utHP/qR5hi62HalRUT8Ne4LIzRp +zjBNtpxkpHU4PzQlWk0/B3gWjcl0nrSzANRhNFkKctdmnpGp0JQk3SA7K1xNy+ZECQ+ECUK8VPXWgKUKbfWotyZ14q8kIrrw6uARg70AaWaOZGskL4ISHYgJqg9vTTTz/llFOeLd6eQiNg4GRwkiQ5Jvhr8gc4TzQpHJgMSbFrwYC/hmCtZ+Rf/P73v531wB/WdXcJhR/LswEgXr2qp2P1hu7ahs7lvWsWbGhfsKFzUSI8e/Yf4PsX/F27uIm/LxypEHmmoWPnMkY3KsvWgxQGuyxko4GDAgi9am6QuSRFYHUqYy7NWnDsIl3Wi53mgDPHaQ7YB/U56Imeyw/1IWmsaqqpJIYRzAUsJFddddVLXvKSO++8U/OKoOBR429eJOzdf//9rQW/DJxBBPC7ZAMsvVbzuSIWAEcEE1PMImS7qu2t4K/V5DxkTIwCf1tTKVLWSDVYKy4MR9ivrci7JArsZVAuwNtA47E70TD70Epom4fAD3/4nJkmHI/XDoVAH5544okf//jHHWAACQN2kjytsvrJjoNvrShBT1SvnqmGGes90b54pG1/cKSmPrSp5De/vnn6PXfOeuD3cx6Z9dv7Zt5x29TfzmyZ3zZnXcfyjWtX9K9b/sS6ZdJ/I/7q3yBduIm/LySpMAnt6/DynqdqC9j+oqC+2bDrz4koYEpoBGMm5ucEseaFl8YmXYNIW8GeY1ZD/RYsxmODabI1UVwTWjCSAjzoyPfdd59g96KLLpL+S0Ysn9OMESJXyf4ATFD4HdyMrAgAU0tLS2SJZMXKkkuNyC1soOQ962bZHGBD1wEcRmhEltjQdRUXyhudgL+sbWTEolNb0St5ES0OiiBbUvCN2QH6JPcAkbxsL7yQlDZM9RI1YgSTN9ZenerII4+8+OKLDX+sdlwIi4qaMSb4G43IPESdX5djWXXpDYdA8Cf2Cr2XznHvXXf+/v6We++ael/LtPtmtNw/c8ZDD/yh+uiDnasW9qxesKFj4bpV+bo188BcFF7j77PqcBN/X0hS0Shn98Rgcvw5jnJt3hvOltI2E6DRwQRvaj6g1bYmolh9aFMdwJcnFK7fkNardfo52WXkHWjOw3pVcgzmIZXL59Ex2qjqtzfffPPHPvaxQw89VCdxIQ+22COBLbbYaka0/6oxjsGKGpybQbZutDKzbSeEKyvsGNQKwUoDLTKlRdVIuCw4Uu8peL4j+JunbQrZ5HlaDoFOoeqTTz5pVrko0a7N69atW4U+dk8RGIDzgHrGYKLr77GLio849hJKcenpExDCfl+9MXny5Msvv5w6WJjvqUDsfHc2WzuOvxD3rEiCgm9tgHhHYTE2YqMwKjApGPrVvMfy6uxZ8x+r3nv3nQvmzf3f3/9OEKw/16xYuGbZ3L6OJT2r5nauEATP39S9tL935Zb1ywe4HRIKr+9YoH/Yf3u7F/V1F/g7kIK8pLdraU/n8k0bep5+uom/E0cqmjyOPMO5jNGNCmMNZ3tp25gnqyKUVOyR0Q1xHOUpCBcjJjISrxdnRoESlM9pJNW6KLcshEmBAkxUodjpp59+/PHHV1P+EsnHIwyhxQ+mV+Ep2j2QCv4S21D/E0IvqoEel59QGYS+rRapBwQ2oDzSXcRZqw9Z2Nj104xRW37ztJiRUuwm6Y7UIbYC9xdVNUt0OSUUBqRQimMh5JJoXSeQgPzvBwshqIO9Ao8yC9RO1ZRFKZDVnkyYqO7addddf/nLXxKWq1ctQosWLSKVWQezpxkr/CUEmAgZ21VoG1s6DPFo6FBo1lKcskl3UoreswTE6MWrVq5oy7MF89qWLVlYW7GkfdncdasXrF0xd+2KeRu7lq6rzd/Ss+wJYXHPso1rF/Z2zFvXPndDon3YuHbB4+sWC383rV3S17VsXefyjX09T29r4u/EkQrGX2+mWNvzZDQopVoMJaS9acJ4XGaJ+0qDFfjecfxtmCtRr/9G13w1haAuW7ZMDbvjjjuOO+6497///RRPGwX+6k1LS4vxNy8U84YxGPqJ+kQKoAHF+AvNDcVyfB5u0KkWFAzV5+i8WQrO5Vo7iL+ElMUHqi4SPgKjJbUXK3D8EJzVh1rVjL+lAiVGZN7g1rMpWUqiMA4CDXZIGFsIPmNfMicVs9BjQqfWs3vxi1982223ERaJZwISIkaF+k3tGSv8JQVO4wT91xCcBYcz1hsH6jEGtAbwW8wU1o5BZ5glBvYHcx9bOrd11QL9q65bvahn1cLe9sXr1yzcLPDtWrKpe8njA0rxsk3rlvZ2Lli35rGNXQsG+M+6pSMvW9+5cvOGdc883ax/MXGkwuYxGra0pJP5iu3VdASWPw4WDtBYRENkvBp/DSgRnp4TKazJVlMqVGugfyyp3vEnRl5wDf1X00NzeJ999vn0pz+9fPny7cXfvHB5CX+dcgKWCUSG2h+gsbqd4C8HE3Lr8+hIzkMMnz4XHhFpC31EnowGDv6thmy6kTQ+CoHb8edADF5TyrhBgo4t+Mknn6zXf7du3UoOLrGxeERLsXfRdoz/KjKRVlOqpIOCMbkQfMaQkwhhGZDXX3/9XnvtReU3oZgGJ/iLWUMn0VjVYx0T/K0VIcDCX1Y77A9krNii3VYQz1cLRouHCtF7qhOpi1CNbR3GUyfNuHPV0valCxbljyydOyd/+A9dqxauXtrW076kc9V8/VvXsXhdx6KN65Zv6V2xZd2yLeuW9HUu7Otcsq5jaXfHgP77zLYm/9nEkWfzj2tpr0Q8jUazKRZJzH80CIt/FHw41ZSgZYswm2jeo/EZBUYYdQtgSUaOvxZ21vqV7kW4edddd02aNOmLX/xiLeU1bS/+ck6dJxo9cKA11EarRbKykTcaIrBaGLg5Un+6xzAH61pYMPK0gXC8Rxb4KkfS+Cisl/HGWaVoA7ZgcIcqyAJlEiM3FLU19SrYlR7X3d1tVdclU9GaAdzoynOpIXJnzNvpVdYRNWynWDhJuPjWt751yCGHCJHxgKlV85JAJEKIt5BurOJ/UVR145oLFNbErs2IKrHOg8KO62gtSELQnYmNwTZCTsfALGtv71qzum9tR1dtxbKF8x7+4++WLsjzOQ+uWDJ3xZK2NSsX6N/KpW0dtfk9HYs2rF3yRN9AgfpNPct7165Y17Vq04b1z2xr6r8TRyoE4aNBMIgZamAHDu7WwVICQYcuCDgclIafB8SRQjdq/MXM2hqItZ4Tf/Pk3COGCb1e7//6r//6iiuuIK5+u/DXpxX+Rn8aKltDPbSaqCEwJjhU1jEe3A6KLUklMBSDv3oj2G1N+dzqz6yIETYzelbE/40CfzkPN+4kGrS5LLguubpdTwwG6vIJ/qQm61lDDgkTWF9fX+S+iGBdsl1Qsg+l27fQWjCL0hjWeEy9usSFF174+te/nk/w+5F6jmXGwb+jK3hcEsf/UsoInZ270Lqi+9K9a6ZAowpJ0JxQ74pXOpOGmb6OOPRly5at1D6jvb27o2NtR7uutHrF8nXdHatXLl22eH7WOmvh/GzJwrbFC/PVKxd01BZ2dyze0ru6v6/W37dm8/pab3f75o19f3q6Wf9t4khFY47arhocGlvQ+kVDZ/RWlyDJAv5Cj8D4A38ZlAIU4+8wSmsJLNoKQmEBVrWOwqYh/nqbr7Gu6YGXX2f40Y9+dMABB/zsZz8jSAg1E0AcBq2yQtPEdEtt9mrIDCaXuqFhOt6+aRbAX+wSxl8CgfG2obOru7JkmSX4ASBmzShhlvvB2476zolvCOGInq5qoCLLB/NU+HaqKcXG8dp61X6C4GVXAlWHoy9TIghQNhBjoyBeQuhm3d+N9+ODiU1SS9G4ev3EJz5x0kknEWEm+KNSEcCXJ/uJ2lZLjGU7jr8+CaU8MXZ7LYmlYHU72LJ5uKwZLmPIjXiAEb6CR3og+G/WI3MebV2yeMmKZcvXrK5p77m2s6Onu6ujo9bZWdP9aVvy6GwNrQdrqxZu2dDxxKauxzd0bOptB3+feeaZnQ0aTRkzqSxLsqQQXNXeHpbmuQGlFEifF5H5/NBpXSDOjBkzCBfjz+oQUroKFyKSqeQGHAoudZiAgJgEDXTdiy59zz33nHfeeQcffLBQQ1MrT6ZbdtkNs0uysMEHqjSXNHNiPFmWgtsw19a3JytM3laLvJOQqGfaCnr1LPnWyAeh98DfPNklWM/0ycyZMwn+NfjG59JWSOku8hBqnSdTA5ZlN2n45aehsE64YeYypjfoWEyleSLMFVZqRZfeunXrVmGW8FdjrN5pmRX51phcq4lVuZY8V6eccsrpp5+uU+lPQZ7uiODfalEzVK8UDdpx/K0V5e7VHr2PFu1hBAZtrT2kqNgQ7FxBDNxZUWr6kYfnPPBH7Swe+d1vf//Qg1oOH1u6dMnq2qqOzvbOro417avXdNSyx1pnt85qb1++sa+jt2f1xvVrNqzv2Lh+bf+WTX/60592Nmg0ZcykoumxrBCNbHQ3lJqoHGWhmlkJNHUAW0IHnHES4lX1J/DhyRZzOowOERT8CdoQmXX5YPraeiDOwm6agzXVpaNNnTr1rLPOeuMb36hZodmVFdHKrrsexSjmuNTHksB0YdysJgvDUDl4GBm45WirrSbXucArK0I7OA9aJPgLSoLL1HnTT4TIdCyvAF/sMduFqgXFT/yEB1QtPHtRXx4J5kZRY0gSqQZXZ+mJmCYC5wH9Bk4JghcuXDgM/uYJv4S28LsL16ZMmXLOOeeYC1jPAv2XBhCpNlb2h1phglBLdMIR4m8pDkRqspqt2USAOSsrTEwMp7Z8Xp7NbZ2T//b+3/3h9//74AMDu4oHHvzjI48+PG/+3FWrV65Z27lijf63qr1TK9CKnrWr1nev7u0WBK/dsnnTn//cxN+JIwP4K5xaWogmqgMbcPu4wKJpWVzNDLxA8DwAbdUUlWlaL4hrPee9/61XeH0AiQZZSoUiKtaYaMnqBITSD3GRC+nuuOMOqb3vfOc7//Zv/1a3qamFPsImEbyOkhfEC62BTQbmIOwGUW/1wlBqRgzdzUJUBkG+JF9UiwLD0NWDv2Rmg270ORcSbrYGdl3sACXejFKYlBc5L5mcOYLyKEQNwLnkk1cLwp22kE3jZZL1Q+OKUAphU1tBmVYSb0dgVcb4K6Vy3333/dd//VeYoahGCPMkl+DgURc8rgdfzqM269Ijwd+G6Sq4H4mA7urqQiNWs+n8PGt7rG3unNmtf/j9H/RksFTMaZ096+EH//iAAPn3//vQg4/m+eIVy2vShttXda+t9XStXtuxuqt91Ybe3qb+O5GksnLlSuwPeFfQghnlsMGCZfPnz8fvjCbVWjBXYfYCfEFtNtRUbeCT6dOnQ7Vjki2+iuQ7Np85o5cQJbbhDsOYPbjCfAk62wraLbVWf955553U33zrW9/6tre9rZZiPFoDMVA9DOF853LmZKANuiNvt1HrnIJVAnFQ1T5DmyzyFIEQbev6uVP7AMdZqaKzcVm/or6ccTNLxo0oLlmESZqVkl6NqxrBv97EjA5/I8RndUxsfBuBmJAADZuenh5yl3EVNDx5a0F5rEFIwNb999+///77f//733dyEEnPpm/m4DFUfsFfIsdHjr+8j6nbG5MAwYxtm48eE/zmbQ89OJBhPzASsursOY9Ws9a8Td/Oaa3OfmjO7N/OeuS3WuAfntU2N1++fFFHbYXwd31355ZNm/70zJ93Nmg0Zcyk4prHGsSAL0BMjD3pGLGkNjPhLwk/IREzfk7wIw4ZgnCZioxFs8/8oRBILEEiMI6fEOaFOx5YdLhlVMbNvQBThL7VLej17rvv/tnPfnb00Uf/4z/+Y3d3t26QJBF0yZItBSVRryxIeVGgE0cKzAk4oGg8vJq8RqH0Lw12QAhoSPBvXlgkSM5mPUDtjeEQtBMyRmMcAXnYdhzDYG87DnfHZXudM9svTTKl5Cjwl45yYkK1TiIW8wRZDPK03nhlKmG6VxfdeC252jSKrrnmmte+9rVaR1k7qQBEjITxd1WSscJfXtVdGrQjwV9XPyGHMEY9g8iaEY6EwaynjYke20MPPKB/C+fPq86ZPbctfyxvzauzs6p6SWBcnZW1PZLlD82e/eCshx588H+zOY/MbasuW7qod/36P/+pib8TRypEWfb29rr+EHW/BaDCII11/UlEAQCnzzXu9aEGk5CaIEfNFvRozQQi+aU7cxK2jXpDZDF8JS7uSZlF/UrDXd/qc9i2PBkkOsyKiY5nnWCFYMHQDpTENiYnLjidTWP9nnvuueGGG4444ogLLrhAPydIw+TiTjCB6YYUAJzvugrmXRwyahhUuVyaGHv+VDP0Xt9ql0CJxmqK/3WsNCAIjN51110Usf9jURXY9Y9ZZlhC2hK5OxYM6YAYImweQUGu1sWlRMtMtaBLJ4ZMEDBt2jSAgMgKE5jNqWMvizhbImAyUNrUbhNwa0HWjMU8emjZJbCbYZkpndOv2DdQfvV60UUXHX744fqKdZ0ixD4h/EGQ44whBGusUtlkhPbfevsDnwuX+xMNNEkZ7jr1i5D4D886q9NzHOgQPd+sLc8GnrD+a3tMa9TsZ9cz3anG0iwNqJUrVjTjHyaSVNB2SXsnckgCKYTGYktLi4Y4qEEMjaaHQE2zS1qJPpeCyRzQYBJkCIk0z2+55RZ9Lh1wxowZHKlPdBgpZJRt12G/+c1vdCpUM5jA0Bx1lRhyAFLAKWzuLnagOhuB+p6xhmnWA434q6666tWvfvW1114rgHZsPChsviEAl9gmbC9qtq7IyV3pi0RS1hV9q+WK1EF9xaICmScEArRBZ9A5/UPWCQL+9AanExm33JQaps55uChIoW657bbb9EkkRydAeBgFNn5lw7E6GURAQVPLIdLFoPRIUfHTPL8x9dZ2+WglbxucBhKV8bi34OogNTdYb/ZxqBYbHfWkulG9dPrpp5988sm1gmCBfgP9sajoYLJ+xwp/dR7yj0aOvyUspof7C25lbqp0mzo/UZVhK5D5Xxb+KL561o6vEfXnPzf134kjFahgFyYhBJghqOGuP//nf/7nxhtvxAOmaS/QFAr86le/0vvbb79deHpvEum8msY333zz9OnTAV9sr/pT8/mOO+7QwTqJXoUj+pBcMp3t17/+teakcFzH61spR/pk6tSpAgK96uoau0JhQtAE3DpGv9L5dU6NYP1K6CYo0XQVGkKkqfUDS4hGua71la98Zc8997z11luBQrxVaK+u2WVqQb0h3kDt1E3hE9OtaeaDm48Voqur38gI8ALA1kGn1Vd6zx6CYH4dQKqhrTSRcJm0K4rY54lGGSOp8EV9pXkLVqrZujQcvvX4G60BEYjbilIauIZssiRFjYwJOhBjkS6kq2AFwrBjRx9+y2htzwsrje2bUfOlMa2BEWko4tBqEW6og9ke6UG8+c1v/qd/+idbt3T76ljnAWOtYuUbQ/4Hlm11+Cjwt79gvSBMWE+cTotLFD7VUiL4CEV3urMRoyljKRUyLyhagasNRGZzLQwV6j2cCq2ju2HMFaoKF/QJ2iKUJUJDzVJ9rk+gZzXrFZRX9ycREAhGYWDRT3SYEFyKsGBFI0xvpPHp/DpGn2uY6hjXmhNS61fCR6GzVgIdQ51aIYheSVLSK3zYxA5fdtlle+yxx4EHHnjYYYdpPr/3ve8966yzNKsvuOCCr33ta9KLtcAI0HWntFOXUBt+8pOf/PznP9elqesBDqLRC9N1WinveoOiikGW6C51VGsik7TOwtomLHYBmzWF8J7JT8SVep7i6hRU16/gJ9u6dSvqlRaboeKO82BLzYN/DHuImkfSGhhBNgGv3jVvTYLu1tfXpy51yR89X+7LZZC4BEooTA6xqpPx17YC1oB6/DWIayyxhWIx01M45JBDrrnmmlh2nu18tah/qmuNFfjWkvKrU7HU6ZZHAb6scMbfWnLl2RPrLYKjg9qeKwnIixO91MTfCSYVh51hgsQqikWS2mUaiJo8zECgRNox8RLsr6XouYyY3musmJQP8hHS6mspnBN+S3Ixa0VGk85PjrwpS0AifUJAPqiE+olGiSsD3jXTsNofSA0Owbdg+sc//vEXv/hFAe7HPvaxD33oQ8Lfk0466YQTTjj22GOFyAcccMArX/nKXXbZ5UUvetGuu+766le/+jWveY2m/ZQpU0488cR3v/vdH/7whz/60Y/q55/85Cc/+9nPXnzxxV/+8pcvv/zyK6+88vvf//4NN9wgpJaeLlwWWLO5Fi5rCeFVMM0uQS3HQAGiPcsGMFgL1o1T3AwWXW5KfWLfjjRWKarOPqhHMdt/iVTzV6QAEMisR2CkiJWb+4tENdNRkncb04jVPAfDcWZumccUGehjjWTobKL7sSH+Qs5J8INuUw9OT0Tnd49hFCKXBy1SHWVn744LPBK6BBn5o8Pf/sL+IKEGq5GXVzM3xcCYkeBvlrJCdjZiNGUspYLmiyOeRAAHXUG+zkxmK4oCqwkmTGFKE4mFOdV0ASRNYK/EuU/oQrUoWkyIrt7gs8IaAGhiNuUVvwphGNR3sQrpUmB49tDsOAzLiYa+EJDALP1QywbLCTeIYq6vhJtSfgWUv/71r4Wk3/72t88//3zB9Ac/+MHTTjvtHe94xxvf+MaDDz5477333n333Xfbbbe/TiKM3m+//YTdQmqB+DHHHCM0P+64497ylreceuqpH/nIR3SGz3/+8wLrr3zlK9/73vd++MMfqiuwTlhZM8WB1WEQeXUhgC9M50ChprRultkbVV3rmw6AgyMGey536qQ1dRFpApHfwBQNJW+Sv4VbRwshWdFtBeOM7ksn1FdYfnCruoIczD4MEvYKDXMOGWb6iUYXK7S64tJLL91zzz3hr2FzoCMx4nOzBP8SJjxW/Ds6jy4RCY63S2J3STS5aG1eGFhsBHe+SckEkdVJ/LyJvxNMKkx7oadmKSHi1VB7mBlLJmVbSupF+XJOMDFAHmTkKZCEigeJjSepHEAwfjbAetq0adT10bfa+DswQOfHEUdcmo4B+lHMo0UyEqC0JeKuPKV7ZYkDhWmJjk90M9ql0FmTzbyF0f7L56CAkIUNqX6or1C+BNkC6//6r/+66qqrBK9f+MIXzj333DPPPPN973uf8FrK9Zve9CbB8eGHHy7gFkxLvxZwv+QlL5GKPWnSpAMPPPDoo482Un/qU5+64IILvvGNb1xxxRXS+G688cZbbrlFDUDj0xXZkajrYDXME/XanFDTk/kZrbF6r74iVC6KPqT4vJCOO6L6Cbpw/2C29QgrKMV6A+txvJYehM6AWZmDHQZLbFZvb29PT49ALUuRyw31O0YaBivuXQ0744wz/u7v/k4/ZMXFx6BOYAQSh4fxgae24/iLK08jRM99hPG/9QIVHF0K2ZNzZDAEeVS3hTT0Uj6R7fgl7bhpf5hgUkHJInUtDwm4cYfrlAfwcXj8JVgVh3s01WEIozSR+dVcDAL3mn3uRLNmhecdyyM8ajY1+o2ZunBrcH7icDWLQFXNaiIo0MhI/XDSh4klHVQLlGsqokqD1MA0IUqarq4D5uBoHaZfkS83c+ZMada33nrrTTfddP31119zzTXf/OY3hdcXXnjhpz/96Y997GPSr9/2trdJd5YS/apXvUr69Utf+lIB9L777qvthdRJnVwTWN2ipUj3rhNiKNcCQGwv+Swx5wKnmW6TVbAe6VD/XYoCKBeu4XGFMcdxVOi8UEr2p4AqejULEWAS/SriL2IdENoHvbLMN0x7Mf7q/HA/qjOPOuooLWxUw6Rv9TiAMBpApDAr6Fjhrx6x+lz4O8L436Hwl7vWKqLxUE00wU6YJGBxVlH0GmktJAtFSx1q0sTfiSqVWiptq5HBhjELcabeKvoNsNUQfwFKzA78xDjLVhEs1lfAKOenEiVzzwlm9hcxEDnSiWF5IyKIqDiAp3oV/EmnFmZliaCLpAmWGYLhgXu0dcwp9hY6l4wWcmbS/Mg040ggj8boEtjBMWTjzMGlblODelvH6ACs2JjRiV/OU1jSd77znb322kv4S2yGzkY+ntvsBYk8FGY1qw6RxZhcBNbEKkTxk7WQDejIM56vjiE4BJcmUII3H5S3/ktaF+ZOGzGiQaO/MIYKu4VrsOKWwNcPDjTH8KJuednLXnbZZZd5eaOvyK/h0mrq6iA7jr+cRI9D965XVP7tEt+4f4urU13HbkaIrD/hRHUJD69nXpyyIsi6tFY18XeCyUD+BdtVolCzgjfLam/cbAoBXaPB+AsYVYt8fFz/Uf+tJjoIsFhf6Vrk4GYFT5h1YZsRsBja/gX2wVMe3UqeulYfwF+91lLiBhlTQkDKIzF1TUWWDU7fihY3q95mekVbxJzNVVyEhowG2B3VMwC0ubpNl8GbrOCacWQu2RzYsqUmC3dwKmqWwvXlqiK2CFUHp5lVCzYya5H0XgnpopJlxdPhCnwVVyP2OvoWg4yWDWcP5snIg2u0v/A7RfztL0rJGY+IaatXfv0UyDdhodJivOeee/7sZz9zvXeWK41AM09WU3bMGJLvAMG6I6GkdG3p9aPAX4IfIhZjvt+6daur2esYtkoMbDIq2cbZZRLHYRN/J6oM8D/oqWNsBV5nFVURAR3yuNAoTas4FP6iRjXEXzu+wd9qYcJD/0UXNrLoQ0zDRCyh5ZGcFtXAEvhiUAMgNIW0hde0x2Wnq6PjQwpsOHPAQEnjqBZRqyW88wqBsFDhvYRaV42k07Cbu4YIFnBSGySYDphy2Ct0jHDk0ksv3XXXXV1JTFjAgpcHErW84DOrDrYPeq8QqXaiRKh1MG8+mKQtKl/mlnT7CQAnDaSaXEkCZUDWUGvcMf4S6EZ76lOfsyJOjhGCtnvFFVccdthh06dPd3EsIiNNvYYVm70FrtoxxF+NGS2BfX19o8Nf90MpIxlrjHYV/SELBr1Y3Uh9PO0Sqikd5uGiHEnsrib+TjCpSKfAFAXOQqtISIP2sGTNmuGFSFhw0xyV7KSY4SiJ4GDkAOM9s9r6bzWl0j6SSnbyecRfkJfZrveEAOu6akNkNgDR+CHLhmY4Thv88gRFgL/Wv+ota4bXuAEs6WjZYHIZb+oxXnPjrGEl17ZDX42bGA1aC65IukjP4rzzzjvggAOIS1PLpSLhw8xDACkoFu/Ccb5tBTcxJ683zmQhRaIkPnlJNa4Wjns1HtVYjed+Ja4TYUzxvttFlCVaC0sOhnr8pUgE9/6JT3zihBNOqCYiYPDXZee96sM8WUvG3zHBX7x5uopwUO0cBf4adkvvWYH6Q51Tm2WkF+vDqGvrK3WXFGRMgliEeHy1ZvzDxJKKnrE9Kn7MuFngRrC3CiZT1FV9i/akScVGNS8MFA4PcsADpSS9b4XPDIZJFGrQf8aMGcZofPdRvQVxdHXgG73MdRvJacatLJgWkGneYr4k6jayJo65zClq0fOGuzCEZYNrCLEmAV5tRT1jqAzUbKiK8ezVUi0o8h3MtIAFlnXOnkOvBzqMehmsiGN+p1yC28Gcoka65pu13SikeAjX8JfmjSrXzSlqVgn79LyWLVt20kknnX766Q4rrKXUbfUPO622gl8fd+hY2R/AX11F8KdWgZjPvxid1bHqAfZ8POWm/jvBpIIHyeTQzIS84GMFXtks61UQCZBF3MR7A0CAuSAm9oe2xPeKOx6YwP/Gb/W5GcFJq2V+6ipYG5xsylfeWedp12/lEa2KXZvaSc2F9evXS61g9pr4cTwk4m+0/9J+tHJWFAMunWb9l7AEabvvec97TjvtNIIfBCsoek6mqBY0bDrV7wqBmkPiT9xF4yFQc8AWD3cHfUvECMnWAk3dgvRHl1LWI6Af8kY1qLzogoO65aOOOuqSSy5BFyYmWtd18gXdsmDBAhBzDO2/0ID09PTodnYW/oK8RJUQN4KdSh3e5H+YYFLBUdNaZOOUrJ/EY+HS0UwjS1g/wTRBUBT8DAQMgD7gjiMHSEp2Wh107JTM0Ifo0Y4/ywr6dp020sATIYcVOFbPjaYAU8lQhUz6ryCY9FkX9RgPSJpTsKdjxTbHcWRW010T+AzhGUuaAZpXqXjHHXfcP/zDP6D/arLNSVVFrP6Av7aks8+w7QhDEC6ykml4rIQ2sDeqFrX+WkO9TjsbzeBDymKWYgqj+zSeEzO6Wl5LaZO33nrr/vvv/8tf/hLlV2hIpTVI+Ohwtgu1QBo5JvhLSqdGjpq0E/EXS7GxmJROrTdaHp5u1t+cQFJhF4wSaouhZ9qcopINzm52nai6qDMOJsUgK6yBDwF6B2JLNXRAeXxfOgAlGlRCX9arMPrhgosdFPOs5vxY YF7XHMkazgmgRCOR1PZY01aaGX0XnqT7aFjDkl50sS52WqqHo/O7sogONzwcbOZwEiCRRsjDx2r5u23335f/epXjb+Y/6z+20vJ7iRaq7PB7nJ/NbbChQjzwJ1I5/Mt44FLs6iYmFi3iemgRGiZh5GmXqqllPTLL798jz320Ce4p+gKDma40p+RmHSsVGCNVeGvRo6wfhTxD2MiMZIPQwQxxRhzmvrvRJIKWioKKTbWqDplBU04vjLsvNUgWciUywubQJ4MBeCmUBX7ABRiWsMJGs2TuYCYBBh7Bazog7DzoenUhygY1BwX4ew4bMG6tPe/MBrr/GTfPj/4y9rg5QGLLbkeQHOkTmergZNNsvvuu1977bVqNpTK9Ib5xkg/Kz0jxIFl0Y4/HjcL9BM1pXtkIbEVIivi2KLfrzWU82io/+J801fYcz//+c/vvffedILpJTkPvcHocpD1GPL/gr9SOefPn7+z8Lc/mICdRqhXzOvN+kMTSSpWWrFaelNplYqprg/xILGL966/FE/KG7iyskQ1ItEs0lAWGkoblVqKcrd8+XJqycBZTugFZR1YCUwUi75j/c7X8hrgsAesw3mKYdKFjL8YlONvx1DYWbMfBx9ReB3wC+k4eu79QYgtAaCJfdZT2G233W666SbpfTBbRspHK56OdHY4R7Ug1siDdZVtipeu1oKFC2kLhUqrg+vyDX+z8Rj3vzNTuEeC8JzOo95gQXVZP48fj7GHU5kiDRUB3xlnnPH2t7+dToAZwyv3nKJGss6J5Xds+X+xPwjmFi9ePIr8izHE31ICC4gsRbiJvxNJKox+NnSoM+yF7cCxkovfrL56cf2ktTqMUoN/3PGP9oyTW0WlLMhnYUBvTawuGIsJNcVNh1XRDrd4Xbun9CudAfyFDphytmjT4yHgL6sFZTVKGwjDjRMcHFrrNAe8atdff/1ee+01depUIq4EOuYNyJOGC3VWtQjOBX/hI86CHdwNsOvSDSi1B4A2EI9ifWoNKVu2upBTx76EtWfatGnegsQV1GunjtH9CnD14VFHHXXeeec580K9AfMvkel5wYDh5Isx1H/xvwnvhMI70f7bUDRlnnzyyab9YSJJJU5a5g8zx0DMjJoTavoaWfzD+mkJIMLp44TUSHgYY9RxkcdgSQrHUu9W+Dt9+nQMyjj3EdJ/Y11OEhkgRKeEB7COKrr90DpSMf46SbpeT/QnbUV9IH+YFfyQl1122UEHHTRz5kw1G7pxhzZXC3oaLlTaeWRFlc/YKv/KMRhZkTmSD44aHuohjkTsG/QnBndvSux+jCb71sEUB3qgFGFRP0yaNOm6664zvQb4K3QGdrMUPaIfxuS3MaQANv6SKPF/R5r4O/GkEvf1VpFQYNlWE9KEaszur4Qd9UqTZp33y5pUUHr3F15djFm8NwqbhRaMdkqVJh5mYkOGnXLOEzETDSsHdeSE4OvXrxeI6084qPJGkadjIobFB4vqmfXdkjUSwyhxIOeff/4xxxyj1pKzB11vDE3RhXSDfkCls5WukidDEPfurGIz82aFCSKi9ij6Jw4G43ipYQyG2QUfP0uphEA6mqQe0C0LAW+++eZXvOIVd999t2u/ClshKTVnjQ7WLgfEjJzRYyJkVJOFsRPRtl6a+DvxpEK+uY0MrQXBTWsh1ZThhgpDQBgqVWsjIisEFxNRWbCpClCoD+TSACUTRCRO7S/ShPQebI2huyXQZw/rssq6IrNI55QKrNkLBysrx3jgb1uqmkOAR6Qicmtjs6N9IN6F7lGActZZZ731rW8lB0xglBcsB9WQo6GnMKsoFje7IDiPhgWahKWVWF2tQNT0g9+dyD8HrvD0o9ViuyTeRfSUltaYPKi6WcHC7FLNcGxi6r3kkkumTJmiu6sVZd+g7wB/OacOJvisVpD2jhX4kvPdn/BX2vfOhtxB0sTfiScVpxfjv67XbfnEBcHuv/9+yGRjjYPSlJtTULbrnCtWrND80Z+QtwplqGtZS5FGUjF6enpKJN8x+MZK95w6NsWSuTNL7j6UR82iDRs24HzTdGLNyIfQ77JhFdX6z+vPAP5WU9gy9EP5YMtvSUon0d2p2eqoU0899T3veQ/ZtJIsZRJHhxVuSSz1JDQDo1jJAWXnfaDysyA5RRjmdcExoV1ULXFCnZ2r9T0w1L3Xd1rpofhhZYN9btEMwjJA1Mr73//+d7/73eS2mZRZI0cQjBEJ/NWiMh74W0v8Z+olSq/uRLTdUifgb9P/NpFkwP7gNDasDQTnml7H1sa8IP3TUNAEdnEgqJtMHZklTQ2+R/0KJ7INuxTHrKUNo/klBBzsiCmEgUWvOwnquT6Pm/qGelaWzB16Rd3Gggz+okHXK4kmc4jQUFJOS7BSj0HV5HaDTpsNNaabuBkv/bBaxBvY4IOW+oY3vOGjH/2o+kfgqLuoppg/jDnearQWFLF6Za1C04enRmBEraa82BnAzxt5YdhbmFKddU7PRX3ukszEbzi/2Y+1Pnp3dGLwrRa80mq22i/Uk/J77rnnuhoI6TOUnccajnt2DAHXQtkLadbqMepu7Czk5ZWqhnAfq3ka0lu3bm3Wn59IUnEsarXwmUSKfjb+jnMi/sH2WQ0Oav8IH7FRmKwLaNbMsSXXv7Lx1wqXneDYdklVgEUMrnE+Qd2z6SMmIACmRDhRPYG24cUiJYQ7QlV04lle7NZLwViWev9SPf5i1swTtRuBZS0tLZikuRHipaK7zBjEGxxKRx555Gc+8xmWKE1+67+0KhpqdTbtJKwZ9Q8mdgFqXWFIk5YiFyWihpLBh/B+7OYU9REGgcUuOdE6FmnNpVWTfQOZxOquQw455Ktf/Sp7F/RfChqhJbCojBP+Es2mRUhdoe7dWfgb64/oxt1jWoT0VdP+MJGkEvHFSh9bXTRioohwfZDa65oIUXB2Se3Fzc0PtW5DImUjb39R9lyf27A7p6ghVA12ZxoT47TscCOvF2gzdzjLhmCUbSz4SwkJHUmMBAZH2ModTUFrUV2JMHWfRMgbhjKNhSdPm32aqk4gG5grxvhfSkqbvw1h9TrssMP+8z//E5UH/dcFRBzwmxUZwEKlegN6nMaot47wkzLlNKrSisifdpPyuYtJQxbeGjiAdhx/3cM8YnU7brQbb7zx4IMPvvnmm6Gv0+PTo8RmRVQ1qR9Yh8cDf1mwddcayTvL/oA7GjVFnUPFW72q/zVrmvg7kaSCGyfulOMcAwfJmgU+NA602zWTdAwa0yte+6zIFLBJgfJrGt8gI7kYZBhHO0C9cdAz1mDXWvDqGuDAZdYJbb2dfEEKGdql8dSJZ9a4dR6405xBgDsIWCSaFfMxt1ZCk7bEOcn6BC0nUcBAjOlusyLL9pEgWG/I2bvzzjul+l133XVYEnAbwhHB/sCxw6STCaBRdQndY+qa9ZGn89RTT1F4YkESqbTqHPUMqi7xrebnjeHY1pT1Rp3J6pUVyXVjhb95Yb3RyWvJH/ClL31JnaA/hbzqh1oq8gT+wuqJsViv44G/vpxaok7Tje8U/GXjQuEM8FdaMBVSNH2a9oeJJBXDjY2weQgOzQOTgPknhTgCU2ysnsZbk0DZpdlC7KoGNDlvtVSNYkkSaP91oUjKA6w4WNVWTmdtlYJVsyJ8yhFUrYkUUZfWFIL8QYMV15/9NiUjr9Gc3GXiCjCAgH0mtYDuy/uDEv5qpcG+DLUQ+EvzqiGf0OhTDbkP2FX15w033HDggQfeeuutlHBWR5FOzasUaowbBNKq60gZ1xmoIU35DAE3dYi1yKnn9UZdoQ7XOfWGzbXaoE/0RPQtuxOz9LoKp8MEJbDX54n0vT57eHQSk0qg/aXk2plnnnnooYdCREnyWy0xT6rZMGoS4q1Pxgl/dUUqtArydlb+cSy4p1mTpzLh6nwSo5v4O5Gkgo7m5DeYzGJ4fPQ76Y3GpQYH9Qg0JtgcaaowXaktqFeyRYUF0s70lXU0VyfUVMc+q4Pt9jFpiyabCRWdZ+F4uLhIWFBUqd4IAMHbgppp22t9uGs1xe2iTUdCA1s5hHf33nsvqVyYoYkxcN7HjBkzMJFTws4ByzA2lBDf+27aUE1UisLoyy+/fL/99tMPIV0083o2mFHBewIHQcOpBjGjepLdxvwkrFIkFNhAAb23OkooRgq4DpA2zWpaqh6k54VNCes5TYpW4HrP5PDm8jxtIxxmjlEIl6lOftJJJ735zW+eNm2avlU/OAdHw0mH5UWpEQefjbloiaLKp96bRv15llg0RGsAqyZV6bShadofJpJUrPYykVxpxo4jJj9zhvK0+GpwzlKpW9NYuKyBK0jSdMVhotPqW7t9otSPOSzIggCpaUIHTTAYA4wykTYBcHS4lfnGwF/NWwf/1hLzr8tqRcOu03aNINa17fRnPVA/CIBccNOZeOaWFDoDxzoM7xCxH3kybdtoYOXd8QxcXWfQBPuP//iP17zmNXoD/mYprdn0Qw48cINtouHGUd71XrCrTlDPr0uCDRdbcL2BWAeYycirqSBPz2JLKlmmY9jys+RghvI65NXFjZmTuKTzwfl1pYUTBh/esFbBV4cF5uMf/zjDDPB18K/rCqp7HXw2HkI5VLsr/i+IHgftacb/TjCp4IBi920rJ6DDBpzJRka/5o/d63bgoNISCFFNVBJMS80TzStnWwyFvAg7X014pr0gGFUr2iJijARVcMw4zsZcAOTgM1J4NY2hDUJ7tcMN8y4s6TGmoqSltiZqN12R8N6SbdrmC/RfyHeyoghTVvBt5iFUuQRAIJeaoeXqn//5n/fff3+QSLiDt9MIW8KvhnFg9mVhP9Gv1IBailtiK13f//at4cA01TJMZpQu5YFyCZ4InW/mzJLrsqFH18LaQzg5RVH1hjiHG264Ybfddrv66qt1Kq1Aeo56mpSdp1dpgK41TvhLHDG7N0b4eILqdogTRJv67wSTCgEGZkuh6kQkOXNROHh7NSE1n9GnXOALXy3qEqWrpLBoZurg/mDPQmKVsDjCOBveIU0DXdGhCFHvaw3UMxEx0QGFXFoJwF/KmOOuIXQJW4RZbxynYWsDtBLYImYXgnGmhHS++pxU84KFBxozFrPY7OhgjAG8oJV+pQl/zjnnHHvssQJfcIdlplpU22wLDJwlO3jUMbOQVZylfLw81dHRo6EURexz9bbWJ3WFAxAZDKRj4NJsaWmZPn06dhhWaPNIZEVxaHiZ7cM0YZuNV6U4a5CX5UEX0lAh8/jSSy/dfffdb7/9do0fgqD1NHH983DzosTJ+OEvOSlSgWNAyE4X8Fdvmvg7weQv/A+AFNMJJRGPs8GCogNgk34ibVcYh21X26L+4LfR+97eXs00zSt95eB/u3fq8dcKMj/XHKDQw5yiNkSMWEKN8taeFmIqIfhM6h5RBEIi7IatReWFCIXVOuIuNEfhyLRp01iNQGeBC4sQUcnW8TkznAwmJ9PBHFbKYbEmiN3Dlmhyl0877bT3vve9FOxQ3wJ/VkhLFufWwWSS7pbSZl/Hw6YYS8HHWY2ZvgTr1tlRddHECQ7xnoM1xlb1alH3nt7DTOQigb59pLXIca+m0GmBKbf8gQ984MADD7z55ptryQ8G+Y6+FRqSEJSnVEPK8Iwf/nLFYfZqz784U0ZLQhN/J5JUqoPdQVnIzcf+AOiYP4FZDeMMxWjJXDKkCo4BU6GMviKNjVKYNlnUj7DNRYHu/qSX2ZSMEmf2LFPtuJY7YITWhhudVQHtKUvBc3lIG4tAkA12iGUFZw1kb9iLSZ3A+AvuROOvyRXZvFNCSX8CnfgzifaNYlMyoVcU03vLW95y9tlna+UQ6AhfWOqwzBL/Z1Wdc5YWJC+TjuejW4QpmrQN7T96KCXyh7jJ8OesFjwLLABRQca8Y1UdnZchhI3CBfGw83jRgl1IDQBtpYkfddRR73jHO+65556Yeaz1A/zlvhiKY1jwbSj8bagl7Cyx47SJvxNMKnldjQm/x5gIpxcE7cRgYb5EEUMzIsBWU0jqm6d6NRH3mCCC00JbBTmkidBw9RIjwauOhP1ER2qyYVHFRgkesTy48sV9SbRRxe/U19eH8419q3W0rM4vb+bcaNLVfeFJs8nSKmEWLNEOHyaTQkCjX+n17rvvBncwj6K9xnQMx1ODpFpddC+ve93rLrroIjUelybarlV1MIvFhthqI2Z8fH6axl+dkF515El/Ye0R1rgGs7cCUa2O9pZSB3rTYGPO/xbiTYmtDSznXkKI+yZQT6cCf3XLe++998c//vE5qeyQnr7QkDCbJUuWWEknxXE8wLdW2H81jOfPn48dbOfCbkma+DvxpGImrWrwmTDVq0WAKn5q1GGgkIhaIpww5BFIJDTRvJIGISWUsH9NHr2Bv9XHE2OLTRZ7pTQOysnA+iptS3/i8NWUoL5y1FijysYMxy1D8Bn4q+lEU7OCbKHeYWWkaAuMjmqhkNSm5+ElC8ZQQhEoAYfqyiIxM4mDN0Aigkywq86YMePVr371NddcQ96tbgSDQ8m2QHuojxd7g6bilMuKWDe2LP1FPBNWe7tDBce6CuV8fIb69Wkkt58NrgHKImS/HGs2JmlMGYA1xVv1oAkTvOOOOyZNmvTZz36WxF/wFwuSxob1dHULwcvjh79qjFoFV9/OhtxB0ox/mHhSiZXKbGWjCJD1XJenJb9LEwCaCBS0aoqfxeNEmR9NGMEuzhxCFyWkCehP7SjJxSBNw/Mfhdqltsn8kWaklqiFWZGnAAYZjjEEA2REblF2XlNXioyj64bCX944NZkbgWwzb5RtXC9GbQ627kxP1q9qDhfDlUTmy5133rnrrrveeuut5IzQctanUkRBniJ/jb+Gv2rIKGFVY1lVPxBMho3+qaeeYrehV3UsGmgWyhFtr5Q2T36UUedlE8CzYJ0ATNXhGH+l8H7rW9/aZ599rrjiCt07xt9aisZtS8x5EX8pcT9+EKyLaljSaTsbcgdJE38nnlTaCmJv0xSg5Fo5tTub7Huc6Zoe5JUReISZAt+d1AfpVkJATS1ssmCuZHkSsHhhksWLFwuIlyXR5/qT+SYY6unpQYfVh2qVNEQ3z9Q2BMYBZ/oh+9beJLUUSARxjM0L9fBh1yKxw5RfJIENMH1OlTAL4Q15Ysa59957KSlkV1Vk7DQbOjgFN8VNN920yy676CfkTKtnsHeT/IY6iZ0HQwcmZiwbNqrmwfigT8iY4LqEHKgzMY4TDsEC4J2EO2oHpbRHKcWrof7rvjAHw3Cmbj///PNf+9rXXnfddbpHYgcxSrDQgr/YXvTh+OEvbJbC352VfDyMNPF34kklxr2iSTkXjmAsG3DZTQsgsPAKYakuofkgZUF7W/0prFy3bh05b5pCBCQ5eh8EJ52JcsgS4a8gTz9EayZfCx8dhkud3HUcXFYZ+y/oxk7WQaOUnaeaHMFVxpd6sLDSqtvUDh0PoVqCOj8S/PXJ6UA24IRSUH+TxclGUtYPNRgTBAdfeeWVe++9ty5K0i3ptgC0yS6i1RtbsxNSoo/LbWazwjrqTBZiWtiU4MuKyu+Y4K8lhprwif1yEi0hukGMvHq+J5100vHHH6++0nAi8oHcSMqzeiug9sOPPB7gixvQ+Pt/J/4XaeLvxJNKxBebfbMiogufPkHBAJ+LspjqEMwS6rmkBQNXSijeGAouoAXrFU96rIVDQNK8JLq6cJOsOZ1TOE6UqJP03FosEihHhHAR/GvmB5jX2e0aIksYwaW5cZyBurSaISxrHRnXohW9PFlFKBGUB7twCaD5ikgysun0yRe/+MXDDz9cV5QySPIxGR8Ngxxai6qarUUdT56OYzMIzJg+fTr2VnIX86LQqsPstAaw13EBFF8r2p3j+3xw0Fvsh6yR5MFA7JaTzaGro8nqlltaWo444oj3ve99ahgaMf1AUiXGZbYppNiMB/gixl8NoSb+NmW8peLpZyteVIc9aTVR4VSEHQrvsHPh+osENoNyf3K1g49StXQeISNHmv9XIozWDBTgzk1STSET+glmCvI4wH17COO0t20XBx1lN4W/mrrU74EWMgJECT1tfNBUJ3gDwjDnEfgn3tqXxC5KQozR92MCS3UwCztgpJu1z0pwf9ZZZ0kBhFZGmhcm9baCqm0ky4Ahj+flIqqxzFqMKvORmEqsQdv4Xg1F6auDpb4n42HP2VQbfwFZAe7NN9+8zz77XHzxxdSu1udUAFEvaRioVfDkQXI/rviri0q/1sDTQGr635oy3vIX/1spIMExTEZhlCnsvNUi7DcmtjrIH6VYr/wEJ5tgxfjbX5RX6U/xwg4Zhu0QBi9NMzxvzjC2/RfjL952svUoOx/xVxOJfXc+OKyqhFnVgldeU85OKujk86TPln4Y1yeDcsRfNYwdQ0ydQOtsDZxnTlFjSTvllFNOO+00nFGQP5Dkkg1hNmmIvyZViIEQzqmhSU7lwD3ImocN3bF0Jn7zspcPZouP+Wz+vKFSPBT+svAAsnrQ3/3udydNmvTjH/84lr3QG8JmaIZ+yG5mXPG3lkzAUsw1CJv425TxloH4X/DLNefRleyqBoVLHnaAGDcdGjEmYPM2kWehyQO+6Dyu5g06+0hnXpidnWP0hjAATMaOt8XpR1QyWhu6OYTZBP+qPatWrSLSwIGxQ+EvoCkdnMboDNgZ2xpVem6IL8bfPFXSBOMIjMViS/wZFlu4xFBLdRe6Bal4Rx555Cc+8QmUQTOvR/x9TlwrbflLwXOAJvZfG5FBZEIg2gItciS8txuAPJQ5oUBcyXHnBek58TdP+5Is2Ysor/m5z31O+HvLLbfAgA4DJ1RkbIDQx0lWro1pteOSEP+gwaBn0cTfpoy3VPLgJ8HmG6MgbJz1BjMvlGJ+xVYXxMlTLD2GBXRh/amv4Dk0ZYRV3XrDBcf0FwkCpCEw92JIv/fRhHkR6iSwJtYKVjaiL9i3DgVeWREki/5L6jOUYLGMZkSxPCnFDrqK+AsGQabO0hVDa6tFYBYgiA+KYAahzN57733eeecR/KtOw+eWDw5fGwmulZAx9pg70GFwJDGSAwLIsgHKg9EWI7W5MkxLXzrSFx2JtQStX0gKyYMW6ZNPPvkNb3gDtVMFfKAwzDs8ndaiMpZ2XeONv4TcaG1oxp81ZbylEpUmz1smJwEGjoq1Yx0vmYkIrB0TaaSJqjlDFKdmkU4i8NVPtoQyZTELGS3Y1TQ2BiG2N85ttzYqp+Avk1bgSyWkpUuXEpvVMPI3QioRu7Z+6mwzZswg/5gb50NzL0QyCk5SLSglJd5DcLx/VQ2MkXna+BuJdLZXvvKVX/va12A+EwSr0zBtu+Xbhb/xgcYeq2/27KKCPWkRqOdwQLPljzEMthdHccRFvLvhhSVTDwgCaPX8AQcc8OEPfxi2NpRfdQJU/TzfasFSjctuXPG3ligo9aaJv00Zb6nESWtFxgZEjXi9p/wwSGRmGU/4SKfC9Da/gb6aNm2aZo4UCsZQZIFx5THCJ0wT7NE2p6j7WVK1rJ1lyZBKHAVwT/CZdCjNXqBtGFDgPLA9MMmJGMOUoRkI7bdrxJlxEbYH4r1Mx0OAl2u7mSbY+wkUXl6JvQX1SH678soruagaD4/a8PibDTZJRyW0Whc4UX/Xtuq6P9sGU5rhlGP1dfXovFixXPfeEXWR4SFq3/GivMcupDuFo4PYZ6n/sJoR/EAdCgIBsZDwNLWu18ZZ/9WrhuvKlSub+NuU8ZYKzuW8IDn0zEEz0oySXqkH39fXR6BCngJLYd4Bhb23jXCMtqU5I/zVwfotYwjArbesgcLWi+F3jyV/6g2LNJXoNLWEpClpzeziNYVi8MNQ+AvmwrUGNEikZNlaQqACRwIcQnxdCF4YOCddHA87r6HThMU2vILLoBXbeb3+6le/2meffb7+9a/fc889+pVOLiV0+JbnhdId2RvsNS3h3cilNbB9sgeKxA6ub02OTF4sujjuzBZNBIgNR64tnRVRaMA0ICuw043vu+++11xzDb5HMt/0lVZBPURCGLHRC5E1GjERjBP+olxrADTxtynPg1Qcz09KEqFRTEI0O6mT/QmJtm3bpscPu4LQR0fyKzaqJcoImwtQo4SJ/QVBZX9gm7S4IqS/0oWGx1++0tyGGJ40VpjP9F5zFZP08KLGs93GquBEZGu1RC9UQ8AWZWjhD1q4cCH8ElH3rNZFrZWMxQ6DxdD8ve99b/LkyXrVWqWTk7Y3EriMfWIgrtZVbh65GMrzwZYH50zjS9RKQ3oI4oM5kk0SKw2Lkx1oeVok9Ak+21rKUTzttNOmTJlyyy23ELXC49NX1EaC5VI/VJ+ot1cX0sTfpkwAqdjl7epnLp9DhUf8aaRXoKIaH6WhgLYuiVYyBeoNiQAGcRNxlfA32iUwRGgemoCmIVj4Kwf/9vT0CBM1sfUed/9zIg5UO15CyHY1pyUQabuz992uiGx+n7jdrtZJyXJSLUgdUbe/9KUvHXjggVdfffWMGTOov8uOe+TSVpRTstPPHMHbe55SwG/9AZT5oP6TTdssXXqjAWPd31Tu5ntDNRZ8w7AusNMJjznmmHe+850aJza/ULgEqxf9X02B4ePtfGvib1OeZ/lL/hvKHTtluAv0qqEvUAN5qUZuE62GqfQRxwxoyGYpFQ1FiZkpgBaU33vvvZqWS5Ys0aTSsNYrvrIoKDU4XgSgupxmgqEtH9oBVS3CkvRbymRxEva5z4k4oEk1xHWUnFTekrcV9O3CODRik+xYw431mKNSHE20EX8Jzzj33HMPPfTQqVOnCoPUeJLfRgKXWXBFslSY+3GYHhv+hHHNqIbSFfFDa7jwf2L/aWj2dRQ5KdcEtOmHtWTn1c3efffdBx100Oc+9zndtdOONQC0CAltXegE166UZSrCNfXfpkwMqeSBWNaT2YFobMxdRkzoBgrrFbpIvZFqTObC1q1bBcRSbcgwJpyAiYevHL9cLDUWxcXeBSXQ/j4n/trKTNlKbALgr+llh4cbars5fqMEtd7Ux3DaaGEoabXVEKRRr/NabOTRDerNhz70oSOOOEJq+KJFi9TPecoHGQlWGn8d6Yz3rETKM3IpYWhJc8+Lp+DSpboR4S+7pQi7JRzPUo1RjCpYkAnz0JO66qqrXvOa13zzm9/U8owFqZZCIHSkBhL4y2MiRlDHjBP5ehN/m/L8S6U0pZkzANCcovYPRBBE8mrOoALD0cfIKI1UzKOaKgIX+GiqBaeE53kJnvKiVDBGDMGoJiTly4aKYcgKJ77WCYiDdVEtBnh1UMpKP2kreOXBU4I6KBpUbyhoCHbxk4af54NBuYRKFlYOgkne9a53HX/88bfeeqveq9MgRXO1IeuzDU9eDVS/6gTo04TjBMCxm8Gsnw+mqoiZe+YazRvVZ6qXLNCxU6Yako08+QzinsAknBQPzJOxCH47tVOP7F/+5V/+6q/+6ic/+Ymegp4aKrDe6CfSdgm/oUOkERPiDUvOOOEv+RcSSsDtDJj9i2mu9HkTfyeeVErIG+OW+MRUAKTJOS/DKRUNB4qrLWimEb1kDB0qIDcriN41n6FvJwmiOgR7pPFXawPBD31J2KLCPNnwJ1HJJXa4LdDXNkScsRWuBW2xGn/iiSd+4AMfkCKpr4QsGExxipIcYdZ2VkH2ENignYGipZHCo44r0OqoTwQoghJ0bWz0XntaA49PNUT45WG30TC9OKI/jPv8SVAd4RDm9MEirMajkusrAA4f6Xvf+94pU6ZQKQ7CdS0h6gR9xeIN/urGpfyi+ULRMK74CwV7U/9tynhLpW2wGKSizoWBwloP5jypJ1I2G+oI5FPAM6tBw+zKg72yXmcEoDGt6mBhR550JcIP6o/PgzanwwhdEvpQv1JzlZJI9cDHG+yJcJVB7v584q/XM/VMS0vL0Ucfff7557sSsDVWp1y75FpMHXbqGhHH6joBE4VHMY86mVBvyEnBNGRuTLRjNYYExZig4d5oOCp8jE6lq7Og6pWAP4EXeWtYmbycZAXrWy0Zf/W89O1RRx11xhlnENVXK8puEn5rCxLOYcAXfBwn8PX5tQCo/fg2ngdxHfFhPulv4u9ElEH8v3nYNjLnCUpzICdTiJpvJnmoH6YCX2rRE3BGUkPeSL2KyMgellil3t5e4YhmApdr6MqvFiV+CSbVvIV5Uu/hnRgK/toSXxqOINR5K8XPm/4LZqmRU6dOnTx58oUXXnjPPffoKwGQOSuiVSS+90lQflE2oeyi8JKWRvWDWTWsxxF/0l9U1VMvseHANO+U4thRMaY4H+xUzJMxV93oftOzg31fMEFxTyz7 F1kySWgsxFkpnbq3l/xild89atf5d75EN4lvTookHjhiI/jxP+LExj8VXvUmeMGuWXxwzIJapQm/k5Uedb+UA1lY8zMIqHqhJ1jqLGkKhCR1nAwmX+SISVtCL6VYRRMb4o15SDrISK4tahL1PAnzHm9UnmI4DO91wSmIkY98AH0pHh5D26TyPOJv1lKL7zxxhv33HPP7373u/fdd5+arcmvDo9Z19Fakhd6qFuueyHmRJgr1FAnCHn1xmyfTGwi/PRECLJ2HIveSzWmzDCZhDZuVENSdUPLAzkRGBa8MGMD0ZkF8SylxJBxFzpeui0rqx7TN7/5zZe//OXXX3/9smXLsDzUivKXOswhxsQX4hnDuDQe4Gv8lWgVydMIf36Q1/HvuiI2NJivHQ7fxN+JKhVsdkRowl1AXixQKOTVfCAoiirIGCWXLFlCIPD6JAZijxWGDsdodkU2xWEwTjOZwCYK0OnSxJmyH28dXKoDkNLxeAXBXxw4eSpS2RB/UeQxZBsK84TmQxmmx1yqRbibbu2GG27YZZddfvGLX9x22216Cpr86vOWlhb40lx5iKgGDLjYJewd1SfSZDVpBUzSgoUdmIaYsZ7ApWyXmPxt5g2o43QSQimIo3DNpOpgyRPZG0NFj4BnRA0RnV9wZsMOyzb+A31O2rEe0xlnnHH44Yf/5Cc/gYhSz05fUXOoLdHu4H7Q7VPzTbdGjPA4xZ8Zf9WTasM42R/qM49YF0FeCEygkWri74SXigkGneNfLVisUNA0txkKmtKaGySeUklME5VQJE3a/oJJBzLfSK+jOSMYpQpGW8GT2xCYmHXSl+Fw0Cu11CKLAuS/UDuq2cIp13DU8O3p6dHkoXpQw0ugX/Pbhmbl50FAJVLsrrzyype+9KW/+c1vdOPAkDqZTF8UWxKXXdgCy68Es6/DtGGtxYBOBzLVmcMjdOWjF2OjsAlI2OoSG25VNUUcY8MhZIVlgE2PLqc2kKROn2NZ0vM157reTJky5d3vfrf2WLVkEeaV2kim9cF4NX4BD1Giiq27tgF9nPDXBgfUXuoW4sPgTRN/J7xUskZieyv8BvpTc1sDVHNDMwTfCLkD4K8ULg0XNKmtW7cyYtjn6hN9hbIJ8jY05tq9o8km5dpDk824Q9OYjWiCsA1MmzbNZec1aglsAn8bwqvJBDCJjCfMDimAF3mGX/rSl171qlf993//t24HtU6tEiSxqc8bsb+zFXBOsIvLIewYdI+YgK38mvBzeGgo2YttstDZiHZgIcSqq8XPZUb1RpjFxlkngabZYRW4SQXKJBmTYaEbP/fcc2+//XbSZ9jEaJ3GYIU2gBFj/AIeSoJxWQ9C9zKu+q/V3g1JIv76TRN/J7yU8TcPBAXMebbJpE5omkFNDcBp2rBL1QxZvHgxU4jSRHHAaXhR9nEo51seKk2Q5sQPpX9pkrPL9m8NQJhQBT1sZtclYQPLzG94IT4XfOhCOwt/82RpwXL9yU9+8sgjj5SaD8roXvQhKq3XwtbBZGb4SM29QBa4LTNYJ/QhFXwbenKGknq3O7ow5yGlm8RiDFYEWbMYULAZun0psIJmXKN5kSFC5JmQFwv1L37xC+HvpZdeKkzXSQibo+C8Go9TlLGnP8c15iGCr517Mbx9bCUaHAy1FiMy6ksTfye2VBqig2e7EzH03rNC41KalyuGUbVMM0rQTCARjiC7LzSA2MA2jDxDjCDgLxZJnYcakZH82wXKDASQZqlVmtgwT8aQhpJwXzobyXVjAqbbKxgf1H4tFaeeeuoJJ5zQ0tKSp+AHwZMUQKdE54PreEZxcEK80ywF4aqLtFPRahRhV/uS54SGLY1K+SGCA/o85ubYdE4aNxsU8huFqnpVPwPZxFeQ81ZLdoYvfOELBx100HXXXXfLLbegF+tDdYiAD6dia0FXrwc63jWHjL/YHyRqBla1MRf72XoLMfjCwmqJ4NvE3wkpFc9nRyBEH3e14FnHhY3VlYh6KbyArAYKXhcNrLxAUsgfmDlU9MGLXS3IheshiQboMOofS/PSbIQqFzMollD8hFTxwRgqnZfkN6onqGEkXwxlAtbnwgXIfcYeXEcgIIuurhs89thjP/CBD9x0001QaLKGzZgxgzgEth34wUqRgtW62j8cQDyZ3gtQCNDGC1qazA2ldAzvNef1Rt0LVWnk3c+KRD4At60obZcVxJ6uJqd1VB9ifNCrRsVpp5128sknC3l1y+xgJFo29An2YgwskufN+GDwhf3SpKljK711EvHXC179fqWJvxNPKq11RN3e6ZPASkwSAQxSCqSTOrYBlQojrz4RDgKjC5JkRVaxhjJMsszMfAgTBKiNW0x7Z41FIalRMtoTAB3yrNS8riT47ine7tCleF/xQgJuZ201PCbfnoKSRtU5RXm0hqeKf4K/gp59993305/+9F133aVVTROeJYqYB1M41gsuUzCaeBWiFNgQUM4D+waldFx8r2SIsMKLzmvjw5aiiCo+KLIKMStHsiGbg9QS4SzJHVbPs5T8xnpMDAPIC7PS8ccf/6lPfQq2SXC5lnb9Ln7qwVBf8KKehRLQLH1bOmaoz+tRWK+6F+H+WGEufe6a3xZCHaLyO4ylqIm/E08qTnDKQwk4tvyww0hHg/c61sccSrq7u6k2L2TRCF66dKleAURz2ja0zIJcJJtqM459mTppeNurIRM6C8Ua9EawS/CDg88icU9EUuv1UtZAQEhmvcEvoeRI8Jf4VgqY4oaqJwOL+wk+R7fVz1/2spddeOGFd955pz4kJ0K9zV6hraDx9Akdo43QP7bPuMSn3mPfYImiM4nS05xHI8btHgGiRM1MEiMf6lektHioVIvUOJ4C6wG8S+49t5n+0cBwbrTWm8mTJ//whz90tSGJlnYdQ9oxP4cpmK9WJjFurhksBO1iwG2IyyZ2MPj6E//EZ2MXpQ9HAbX1oSb2tvUNFuMvBl/Ad5hIlSb+TjypsMtjJhPgpU+EnhqUUkIJAmOAOgqtfmQwUeH2FQRrWlIeQufRGw1lzUxccEOhWGQag9KQhmFwgAPBRYBcvFKvAne1EyUCBzp6UyleFQTEa4ezyLpb62DCyVKrhgdfC7FZeQqJra/B0xYI1dAcST7Wveyyyy5f/vKXBdxADOsB+rtb5QzgoQCd3TrRuNw4VlQvDw6TwOvo+uqlVKuIv9gf+5P9QY+ee4z46zvC+GADPelqsfd4mgwG3aau/t3vflc3HnPhBMRLkrSmYnQkYaqLli9fHjknS9C5spDooHMMb0MZSguO6jOa+Cj039iT7CpiYsX6QrA52M8WFd4m/r6gpBJroRPaJQgQomlWCHnxaGnOaFBCPjm8DRG9CfJWTTYpTZpRVBHHeug4h4aKJBYD9s7VInTJ8Wd4Y0hGID1Pjcd1gxLBFIKUltBUZy54e56n1AwdYyisp5gp6arDI68TVXQVLTncZoT1+lO1FaT1U6dO3WOPPb72ta/de++9Ahp1sjqKXXyJR3iYZvAtJGGtRWWNhlETOif7G3NUqveEfWheYMSWIlMOWlFisDQeMPua5ywvODToTPLUGUIung0Q64pqmK6uG1T/CHw1JM477zzpv6bUcSFkjRl6j8RoysTVBmdGINFigP4bvWdmlI6Cll1viyDhGAeyWsiOTXfnOJztwl9nG3o6lLTdUnivkdrSxN8XjlTsTskKc62GPviroakZsixJLfH/ekNaGhaYgG00lOKgkwiCwV82lVgS4gQuicOqiDh+OAgBv+x5bWPNUvIbhZa1VGhMY0ZEDQRlXJQMy4BzqcmrVpM4c4m5PFo5nxN/bd9k10zAXD3gtgWKtWpRGg7228suu0y/UlfrXmiM+SfdqmqoY1+y1+dF2AOs7TAL26wUdXxDm1Vjw2WecrjVjQ2tEBoMzkZrLZiS9An+T4JJ8mJZJVLbpTlJmNRFUW81ljQqzjzzzLe//e1qqu5aH3LveYqlw+bLwyXt2GgLtg4Fo7UUwEAeCgS+6NqMQK001SLB3UX52EIRy2wtBC1ef+ono8BfK79ovvXWBvZquNpKBocm/r7QpBKVrGpRRkEjj1hU6b8eKKzV9frvljoRfOfJBCwIZuhDJgmGVgt+4ZIWSTPwJgEEMChSTBMUZueeFR45KnvqAHQK4S/8Cc4k9t3ZuIFSpjkmHdm1e13b2IWKTfA41GoRhb0/jJFCdp/H2Xq4MR3DkKfEFr2/+OKLDz744O9973s6QPcovNAZ9N5ONmf9uWF0I7qhCePzpNQ7as3llKKVIC+CrOPaYA0driWyHky339XVxZ/SB+nVGPZACgyJaq11RTfYuJC/ozaj2woNNR702/e85z0f+tCH4HmQaKjoAFqCGQfjLwUvMC8Io9lRsUXQq517DNq4WpNSzwbIlP9o/SV3pcmgbZ6ir9jNbC/+Rhilaq3DG6LbzWaHEmr3N+0PLzCpRDOonR6aeC6IabNgyf9WyqeK7zXaNEMgzNYgXpgEE2R1aDJfIBhvmzdoGnD9yf8DD4CPRJHRwahCOlKgj6MGba6EBVYYs+RzIzS1tRB0ophRhnGWQDcUZ2Nfad4CAUC2PiQmmnk+qxBDPMogXjKd7dxzzz366KN/85vfYPEUEpVaFRuGy46Goc7HV9pJmG1Mxyip6qWVr2RQxlhs5x6IjDKodQUjg+lACUY0ggPK7G+82oHsaj/+AOEvLtljjz32nHPOwUOAvSVL8TbwIuWFjYhdhXPNHwjCU3BKZKTFcHhc62DCkNK+of4T9xj7Cb3B/BI5NEYCvv0pyLcUWxYDHrDtxGiTkZy5ib8TTypRPWQsanBL19hSEPj2B95CjRtppoTQg60aWOY5i2MIdWZREtQWHPdcq6EjDlAGYkhC1Q91IdQfcMETCaIDnYeYB11dqjrxs1AdNkT5vCC6JFyh4bfVwdJa1Cdlu+pSSb8P4j14W6o3ao7z0uQ30GN71fGnnnrqm970pttuu00oo8VD90sUV2ujFG3r8nGxnBPKXJJ8rMbEAIz423rDRf0l2ooSIZzWT4qwYt0dkdd6L7hHX44x49xjXix+ECrlqZgQLgEoRCZPnnzBBRewPYJ9GOswAwArE6gKzpZin+tXjmFuauQSF2kuis9ju/AXoNRMYU/WMNoXI49txCM5ZxN/J6RUIkZ4KyqE0pM2vTq8jpo5mioanZonROdogJr8zDE0sEBwsI7EpMDUFX6Vdqlx6NMSYZO2lvDv4EXRtfTJzJkzvbXnVOAspFnGX8rOD4W/WWHeJayifgZWG0lJjTLwRTMiyq/OLFQydQNiy28EKfJxTzjhhJNPPrmlpUX3BfWBbg19cKiGlQDI6me1IHgUgkezidPVjGJ+BPVPof4S1WDGAWppuXpPzRYWmyjHd1ot0qA5IQ8U7xb4q9E1adKkr3/96/Z3QbypB52nAJL69SN2fsPxM7aSFXSa24u/aLJYHkr4Wwry9fFDkbg28feFIBXPHBzuqB6oY4Q9aHroKymwtVTSxiNMOKv5A8mLBsdTSTS2hNT6lU5iAyhaUsmVVBrxrYnDsJoyIyC37C8YhHV+ATExTJ7/BD8Q00rZebVE77MitaGho8+zlwi24WegQS0fbEGOOnJW1KO0sVX4S65gaVdRggxd/f7773/DG95w+umna10RAKnxoFU+Mhri0jmBjPuSoKWSOgg4RstDtImXzhlXnZJKayD2h1hReRDYZzA1ZEUyXpZiPPSw8LAtLUTHvOhFL7r66qv5k2IZ0P5mafsVe/451d6G3Ts6yQom6Kwwhowaf4WzpcQ2UzqUrHZN/feFLJW8oOPClEaiGqwOhF4K3RyWhDpsln6UU30Lo4p+QkwSE9Ikwp7qw8wWHQyzpS4tVYhMIazPwmItBlGtA0HUTorm0kJC5Vy20rl2JXyxuZZaDKUDot0wK5ToCAcREaIu5sAALTlD4W8ULSd33HHHlClTzjnnnLvuuktaofA3xjzUQ0PD3vN6xucw4Jgfx6FgmEejRy4fVov0hWLkcrWuRDR3h63A2XoEmdCNeFyNvKjA2srsvvvuN9xwAx9qaW9NBHttBSe9VzVfohQjOJL1aRRSLXiZ82Q5ocjLKPAX252p4EoyQrRt4u8LQQb41zGGSmPSxCCii1QLAR/EDgxBjx72UHoV/uqH1cL7FOM9ncKEAz0LJDINpz3IiM0RfZbL9SQxg7utjXlCagri6gCYJ4Fp/FTecUfrQbWgowWVIv4OtTYMZYL4/+29e7BlVXnuvf4KhoqVcAsgN4UmXAwh4CWVGEoSCwJaFpGgYqgkxtJKoBKLykWqkooVigqxQKBAxPISFVBIoBv6tm/dnHPqnFTi+T73mnOsUlBuCgmodBPAsA9tl1rf9zh+jOe8a8619t7dvXuvzma+f6xae+15GXPMMZ7xjvfyvJZGtpvjz9Kwiurjq8xxIbn99ttPPPHEK6+88v7779c2HB2/0ea2Bs1ORV3aL3wdXh76uS4fMc4YQ1CoXTIOx6DNBWkYgv12Gj1gk25MvqiKHzUe3w8lVMBifUqrjZk4+nLXXXf9/M///D333AMi60ddR4suNTdj7qK3Stbf3YftF7HneNsUhhZ3JPvDNPYxsWKZWNkg0LFq3Dhy+VWWO/xde9IT5mqcobLhOse2gAVAOLhz506KuWmgfPe739U8wZetkTo7O+t641Goa2ktZjlzA4DGtvC9732PsStg1XaeHa6zkEEcUh4I3SegR+CrthGkRaQBtSlN00OKBPtKSHIXSQZxqxpTPY1J07C6B3Vk+1IxIJccuU996lPHH3/83/3d301PT2slk/JeF9MwKOwgqhhH5XJ8/RKxZ+UXa0Adyik1hJ4kk1CX+upwcXuvl/1WQmB88CXfY5Wz77D16y7aRbEdIbVag+eWW2553eteJ62fdDjMvpTt0PdFCvftb2ngvrqLnR+bv31RXVdE1Izdu3d3+LuWpIcGh7eECfkfufYamq/e+rPPPos9V0dqCkkVFT5SZoKEq/ZUdyxqXdTeZY7+KjMzkKahOazbzczM4N3qh2wubLv60fj7XK67rskM869xpF94ylGK2R3rE6oE/Phc3zFMfiLUzDbUNlLmUg7mtY6pKy+Jv9iyr7/++sMPP/wTn/iETvm3TMkoZZCAJyyGOCHhTBA8ER6AX0ifMfrCIRmUnGgYTBqdzApEgzkXvTsFq4LXuZiEsnw1E4uE0BYfLNVOdSO9U8Hx1Vdffdppp6mvSI4Af/XuUIcnyIvfwF/0XyPv8pXf/YG86M6d/rvGpFeVuCimjcCIYhaa8CQjwcBLCqn2+CY/Ey6jprXHsa7TDgNYUnQ8dTPVJCjNhD5zc3Ous0CsK9xgwDSEuWqtoAr8MvNvVFcNKNH11M6ActYDqITKScQrJoUIxL6+yRwAcfLE2k8X8RfP1TXXXPPqV7/67rvvhnlS6xnEmwt527EQGHgdKxp3tZi86SgKaBIhyxsZ2YaGZRmiDNe05y1Txq0Rr7b898jBuiArKPsk2EWgQBPaXn755W984xshegZzU8Zf8tbgvlj+sFlB8ZOyLVCD1cmCPMLFJoi/5mvXvPvxj388adDoZMWkZ65VbK9sjYW8bHs1EKkwhBkRRlQGolRgshXaU11jlzCA5U9dfHcQb1P6EKyxJ6dfUgNwqcMnC/5KSYHDRROeHAFAsG0crAubhM3BjaBap2DYiNEgfiS5GU3ZKRjkCNTBTdSWiL/09l/8xV8ccsgh8JSj/2rNi/Q30YBoYgFmox4ZVt+FTKzOd5hz65xgEo28sQ1p2KNox5op3Fjn9JhYipcHXEOvvs5hD/hjBbgxS0LgK4R93/ved84551TZL4cKnDL+Pp5lgvjr9tMAtUTj6kDAX6IpINT/4Q9/OGnQ6GTFpCfgYNdMuj2MDSz+JBRUJTqCShPE0LAgC+9GThVdB/10+fiL8RddUn/Cp65bgL9fLeJK5hQTo+ymRif7dN1Lz6JTjJvO2bXltK0UN3xrsUn2Gdos6+RgDKl6TMpCU0TH1xn5gIY/tWR6evr973//CSecQFAzbAZSgReykmtUhVWDDm+kqKIU+7/qK14Ty9jI9xIdeqmsRv5zUMgkKQ7NM3oT4B3AkvjFkaTnSOh/fcJoIznvvPMuuOACuCDwyOkswFdn4TtdzpjZH+ItDkHiTz75JFydCyEFdPUF5Zd6SD/60Y8mDRqdrJj0IkNYzKPH0OnpitoI2YKmEFm/mjnofVWJ60rFJIoCVZec+rSU9dBxlzid2PXr3NnZWfgTUKPwvNU5gJe6CWb+1Xcdzwbc/iv213pAojvIXoPrAAUfs6835hGI2z6oaFetS5IYpXeIAzG1zSKCsjkzM3PRRRedeeaZbMwx8krQc9u1vzz/o4K8EPRi6gOx5o18ChyhcSuQhmO8/CPvizw9TDGuOe06flGVjtesSv4O1U+w59p+BcHmm970pksuuUTQ5qRknaVPyJ5i0t0qi3dLPJeeV+2x/XeC+PufpUyyFoPO/ruW5Cf+N9Ql4kYbk5DhqDlD+im0CYIbJqdO1PdBpgoErAFQ80NaGxqEMmX1MuI3QTf7zdjgC0OZzHxqbhCeTOUh8vHgCKfNzpXQBWGBgd+dBvM7VzaLuXk4eQobfx1jgJ7uh/paFpOfLRlQgeju0n/f9ra3veMd79BDCaqgDxcKm+TT+NsIe/IvDevEM888Y7M4sQ1eDwyyI+EmBjw0Wu4DIkO0sy2wL3FxXLisYSS8qVtgFNI2heGEqUFdetZZZ33oQx/Su0NHJv7MsRAjw59XR6pStiMV47gazOvYo/zj/SSd/23tSc+W0IZmFPEXbCWSd1BIsPDb4HCHMhF1cj7XQmb7Fo2MaXhHv/hM8DE2UHIXbgQjOzkLZp40RwRXoJ1VCVfA+CidXfNcehb/pfgYPJkIub+YmE2EhkruvGdMpXA4YAWm+kNdgj2WxF8dPDU1dfLJJ1922WX33nuvsJgcBEyuABncYGoqpmHcjChBeOcg5bCNQgeg7Dv8FkclW4dxCJuC0jfyLTR+YVfhODZupFt4l4MvlxLIfJKqTuSZXplOPP3006+66io9F3Q82B/0SQjEAYK/mPU7/O1kv0rPc6+xFY2hAhGL2X6SHbRt2zbyaGdnZzX5Nc2effZZEjcEGZg1uFRk+Yu7+HFSl7BWT4yqZHlZHZPCKPyFUEpfhL9gYh1yPXw1vDooWYJsnavfhXrYKAFf0gRcJJSbwkxm7d7ktmjNuKq2b98eqS2WxF/h18zMzNFHH/1Xf/VXuoKgVo2vcq6Ei07a04jx1JEJLEKDTGdOyQx1tZRfXcGWU1YFctJsB1cL+T0ubG5t/IxvoY3OdYkvdvKxq5OwhSJwkGAGOHfM/IBfV/h74403UuMH+2/KbKWEQLC6LwMtV17iClpnL+Jy8Hc51Okd/nYyUl6u/xY10wb++rsNAkxpwrYwy5JthY8IM5kw0eBlJF3EPdWeCWlYNYuZb4QoCHFw0xF8ptkLI09divJyKSDJFZSFQWSRDDLfIzbKh4uAv/rE+4dRFd0N3z06MozG1PjRE9EPaVFdMoqgcP369T/1Uz/10Y9+9O6775YurCvj3KuL8939UAfCs7oYndkd2zILRuOrrEounJc6u9RMpOlkxRTI5kfaHxot90JYhbRgks7NYo6P1KUu3L16QTt27PiHf/iH448//o477tCSCTqzWwJ/JY6GXH2pA/9DymNmSfxt/LJfFeQOf9ee9CIyxi2q8ddbfjabLgjPJKlKRq9mIDwMC6XsClonI5vpDQiixy05E6Jq5jkJrOAq1AbWwb8YE6E0Q3t1qIPbaSOGUBudC/8Pmq/xF9XS6X86XQfAwWYueZ0IWQybBvC3oUsuIuqWz3/+8wcffPA//uM/UhyEDBfqMxlA41oVdwAGZb87239cJcgQFnXY+VKR05ZccgJHBqulUfpvXKfjajoorJUuw0GXgr+owOr2LVu2vOENbzjzzDPVeOnspGPoSNY81PlqDD3p6ojxd5Cz4ZfE3++3pMPfTpYv/1f/TaFWDaQQmp+wekOq4HwKJlu/8A+kXJdeB0ipFGyRMiRY1KTCS4NF0mXZJEsiVHvPG7VaNCyCz8x8ptnuYIxxPiWWE6G2LmUdFnjFBEG1OiE7s07X1ymUs7ONgu/494kKcrn7cV4so1XKxgH15/XXX3/UUUdt27ZNixbJF0R69QvZWCMwrgF2ESY4EjtsVPzjwYNhpouqRNQRThe5220D9e2qEEpRtaIdGs0jbYyy2a55oU8tMBs2bDjllFN+5Vd+5Z577lHH6q2xpSCvj++w8EwwBTmF5VMvQm9ZQzr6ORsMZ5HkDIlc2HtEGdHh7ytQXs4/xt2PSw1bnqM+07AvzmJVCN8L6UwkLgsN9V2nw4WoC6IvE99maog9nRUOcaM2ge5CPp7wVIgpuIf7xg6cCHwIip705ZTXDJDXbiI+dRddmREvlU1/giMcgEIHU4x+hB/DZSAa2qJbbvxCq9LxV111lcBIDwLNsfQ+k4cRTWymYxcxcvkch2TwODwsBmJbe6Ka3G+Rl7thVqtdatpxIHQyfe6LtE+MSw7xJ2okDjeQlxKfn/nMZ0444YTf+I3fmJ2dVU8+k4UQYHLksEVIdEdvmyYrqOEx86WBv66kGQWzVSN2sMPfTkZKz2Y7bAtE/sbpGne+eKIcaRSDQDk3Zf2OSeiorDpU1tIX4QvW0j2SOvhGiHAScgn7SL5g/z43N+fEAe+vaYbr0+hSwmuhp8FUX7AtYIvQdaSTMuJJ4gImopkY/VdKK5xE4O8g8CQ0Wt7AX7XnD//wD6UJQvur9gt/cV7VxbDQL1xitu3GQqKmJcIErGNIALFebKyMKNnu0ihVIZU3JR7F6KxQV4V/soHmVXHoAeICXKwK6igImr/4xS8eeeSR55xzji4IyKL/8l2HYX9A/1WfHCD4y1puMI2xgIvov0bhFQ8W7vB37UkP3Ix42lCXquBpqbIzh0h+ZilKk9HBhc3j5jfO/CozrO9dYquvoPs6+Oy5XCbyqaeeArCqEqZmhxsttJt++/bt/G7jCWBqJVc3woSimYZ2bMx9MAvf1QkCfR0j6MTuYaa3RfA3ZeVd7T///PMvvPBCXRyaC/IUQLdGUciUQ1NiOXq0UdY5i/RKIhAc2hy9dl5BGw0DUrlvtFGkwqGzefNmsuBibHh8Lm40KNS9OoVuFAQTBSFN/7DDDvvd3/1dHgSeMz218Nf5bzrd9mKqQ+3p8NgfwnbNFGj/OVyFlljAkeBrCF5ZFbjD37UnvXaYV0Mt8vxkrmp6u2Yw2iWAWxW3Scyz8syPhkKoefZ0MnBN9DvdV9hH8JnLzkfW8xQcKfGT8FXSQ8BlArz0LK7JhiGFoC4biO2go5ydYEK/qwGCaQENcQvR9jqy/TQMlfbMM8+89NJLBUbfyQJhYxXSCNOwfhpfDf91knGdwwHhEUUdRnV1/YvYAyO71KGHcUPDF1RgFjACLWIOt30Ag8IdSuE+wFermsD3iCOO0JPqdwel4YvTJgM1GV+ozesHjv2BDdNzmfVmoRScNf7+53B5+Ya4zltn/+1kEfm/9Tdt4GvvSb0hpQgbSlZDTXaEbGrFmUVnUcqpaHBs89+GShU/2wCUsrYlIBA+ag4T/EvwGZnH1mqj3m3DhfXuiHE8ji6C5VqYiKlBWAAhkXNwXXmXnem//du/aVboYLJ+Uymd0JDGPp2o3uOPP/7yyy/XHYniwIGZSqx0uwOtnLpDeCjQkxwQK7MAB8weCDYKG8djD8d71cX6wdskao3DyDpxnG/08mH3IIWd9BZMunrAY445Rp/6Hd2WhDcdg+2II6mIbPuvvruCX3zevYLQfRI6k6zfhRwMY/xdKDnBDcwFdqlzDC11m4J9rxG5w9+1J72IcZ5Otjxaz6VkAwC0p+O4MX8wVsY0X+MCPp/oXLLi5ovoXzpXQCnYopS3vmtu004zFZCi5kQ1F9O11obaiEG2yhXvHT+PC1uzS9cXTOhT92I/zjWJotUVBBY4LU2KZgbhCGp1sU7UmZtRa5iA6a//+q+p2UE8BnaDwbLpklNRgfXJezEm9ovQe4RLs5bY0A9cso4OSvU/WugTMTfjjKUb8bBBb4TBmufiYDjMyGF797vffeSRR/7lX/4lNMoxFkIvS69McKaDMfs+lIX8Cx0Jvje8vns66vZdmAiosWbhaYhNExSc11Bp68L6rymTOvztJErPSi42U1dZNwdu3MNqDmvi7ek4juCeMuWC7kLc63yu9cnGmYwykn0pXeHS7jFrgGpmBD+g//77v/+7 EcdaXwkYNmsvuzHzXKLEmf0ZwGQRgajQiRb0bRxBTCMsIAIniWqQWNZJqLWtzOVBDDH6gIu65cNGzYce+yxN954o/bg0n+pfGFqtz2CG3CK+7LwmKusCuzpznzzbsZ+V7soyVTmRYPsmGUg/dAzwr3JgCELmcRrcEpHkiqt3y+++OKjjjpKC0zKTEzE1emNY5eQ6JUJmFyUXuBLjWQoIDCFx8EzQfwVqlL8ZRF77uLmYAN3h7+dNKSHVmvTIYFHJlZ3DQimJURiez2g2S9D3APAuc6bLWX6rhGPPfQrWRxNQQvVgDoz/wp/NeJRIakbxl0AHeCyKuzyXAougieeeAJVC9JhvPaxamf08gsdYIZEdwYpqOyA1oYWWRdDuekjYtzCfx+WT37ykyeccMKdd975ve99Tw+itcScPu6oJTvTJtoqB58QtgzZDcYHM5ZhbVeD40JYhRDgWKzTJavJLHf4MHchoNC1oCj8oSfS73oKvQgtA29961ul3esZuQjrAT1MIWSI6/SW8cXpRZBJqH9h/Gng716Pt30UvM1aIwHNkSENsHDgrR1nEY74u3fI2+HvWpUes7TB0uINaVVSBlwaee/w13tJNtqDnKzMns41HTTC4BHXd27KJI9BpihlglGYJzXcYV5PJSnDEMYjePai2jtRWGCE9g0uo1yjyqk3cDqZggfzCztuAiqsqoPdmE18L0jRoi+LlmNC1RU+9rGPUQCN4DPBlqu6xY3C4tIPlDdqrTrEBJWa8/pTcAadEORBeihih+eHK9LbBIx2bLqJuHVwQoQ5Jci14yIskDt37pyamjr33HO1tHzmM5/hTRGSDH+/eglrL6sgLByOEQZ/KQKCqXqCyItguvnud7+7EGqRtGGxURe87YhbqUCIDn/XnvSila0qkfYmAjbhJBjELNqLoeyUKuyt+LvY1wtzd+/ezfj2fp/9crT/OrxM7YGGWBNDw53gB0IaAFObegllbWzGsQCgYUVDLY4vHYx1wojPKfj3qxLjAZjO5zrKUhIdmxUxN4pjSLBFXHXVVevWrdNZ6IxqPzt0t7Naip/IAIHoBQnxpf9qN/BciXyiezX/pcFRXMPvFGu+bSPeJdhTij0kGitMOGnjAxl3pD4LN++///5TTz31jDPO2LZtG+YgAgH7JWUcoxM2YvRfEv9AYUGwvusXShBF/G0Exq2aVJkCTV0H9o0swRlTk0fqvw383ReOng5/15706hJPygxEwYmOLFw0i9vgGprUyCOtcJGAoJnmzE7B6K5du14sBR00ZKFzbNj+uL4mts4V1qD/wgRPU2NJSn/iQcLp5FUEdEZl7gciBfRfNHQvAHUINvB6oE+q1VGxqV5UDOI4Dz/0oQ+dfPLJhAFgf1DDuEjVisNdRPzuKF/CHl+tguPt+eefN0cwups6WbdLxUHHomIzLnCJsQKjU3RU0nt44eBW1sHaDAlthafqq1/+5V9+y1veMjMzI922zm5GRpQ5S/XS1TA9st+dzS/6RZDNsgqPXeQz2iPQXEHB5AIp/pL8O+PwFxexMzj2Gnw7/F2T0ovhZfAA/Gsocr4cd7y1VINvPRw8VJXEX9s0cKDZpwGnLRYJgmGxEaeCFMZ0NshMVKl1OtHkCf3h8ppMflRg+9liqU1cfNQQcr2iuN0eyUrDxVNh+XHlN6EMT2eJLQGAsIfoFpdddpn0RFR4noVSeykkv8SL2FzQuCzHU4CjLnnk6LYw4gvvhHEgrzYZ6jHY4mFEwxyRMleOfnekGtYYrwd+g7hG2RywDSLhW/j7wQ9+8MQTT9ywYYNulzIhEVUwUlDSdUe9KdZLqpboE/ejOuHrX/+6vlOFCPwdBCqyiUidy6yowfZMjIRF2x/QJDr87WT50pP+Qt6ad3xt9W3JkToYlvYVwKZ+YfahegVhlei8DF/9onnIxnbkLVgtns5CiKWmh4vmLtLyiGJp2Ohpe4v32jjiRuryhiSuxvExdCGFVSfqv8AlSdLvfOc73/a2t30vCzTkMAgTkmF6B689adim0Vjw4NAxatNyx4HQvG984xvCPgGBtvlE184HHme7OmPtUTYQNiCkYmh2MCIHf/vb377tttsOO+yw6667Tkq3bqQDtKQ1ugVdknwT08k/88wz6L9SmbXowo6PnWTN4K/tDx3+dtKWHl4U40UM/q+X5wuKYFcHqocUMlxjjR9EE5URyfCVgoabWL+bRyYqvwj2yqeyEG6p2Sv1rcFA5obFc1NAMV88tr8a9t0tib8ps95oAdO+IdauZwOB6dlNMv7Ozs6ee+65UoGFVjgP1X5dAax0WU9fMOYZxmp1jvClb+2L6weiHH7Bo8gqi0eRHnBIMtGHVaF3YDxgJuLRUJnpln7Of2GjQEL2unXrLrzwQrjt+znDEKMwnGpe9nQRHcDaKfzFMA3+EsGCKVz/qnJkxdrAX5vjF7r4h05a0jNneZ2zCTzy6rLJXXICgFMpWIGJl4j7fVcgxotFOAFI8cgjj1D9V2AkSCKkCWhom5UJMmPPTvCZ9CnsAFE9jFMoNrWhp6dgYXTIR2rl7zXmZB0yFDArg3pOc4hcOa7Tg9qoz/vuu+/MM8/8yEc+wuKh9hOlENuD+xHjCd7CGF9MEBsX17+kUEO5m4ZtQf1SURTLEukSZE9wOio/hhp8a6nF1wOfLyjssDB96k/iGX7/93//pJNOmpmZgasTzMXygCqNVZp1gpJ9zp3BMcif+A/1X3UI25E1g78rRQrc4e/akx5VMu2QqVopyMucAKhRaFgx59VGRh9W5zhizKyodY7x0pQ2pxf/shOM03U1oRWTFuZfTd06M6LVS0k1zETBBaOCXAePUx0sCe0nte2VinDRROAvdmmyGmGZ1VN/+ctfPvnkkz/2sY9JARTiEDwHtM2X4kCxnW5JQ3nHwqCLSwHXl8GYAhYUToUaOIZ8GMqJEuuXhMM0at/AdVhUbET69re/ffPNNx9xxBEf//jHBb7kTZCpQSQfewjGA6eDv1BekFvoCBC9Vn0++eST4PiawV+MvytSnajD37UnPdgPUoEVvNVx7kE46Yi0GBVQ5QB1bIIE4WP1i/RdbUQAqaW1cS5JVihi5DKgppm3DH0NozAEhpQ9Bn8lPMIiE3X5C0njsJHtr4Lvi5SE7du3YzFw8oLNqfQGtnUdr/avX7/+kEMOufvuuwVAlFCyJcE9ZhsOfW6jsNkbDMf6E19iTFOsi9kn5WxvSRVy4epgiiECGuVaF3G6Yyp7BV1fyOhMFhZOPfJDDz2k77/4i7943nnnQZpB5AyqNCsojw9Yq4soMwrfsbk7MAfrF/KP+a+zaRZZBVdBwF89WmTeWUReHC/7iLwd/q5V+Qn/DmomiEngUSrJP/+7SL8UnsCMQLxtZIcwI89yTBZojsJQaUCaeHWuVMSVMQLEiK5+SdPSfzX5pUNJSyL4QeArdQnr5OpMUQMff5rsBqB01gbGViGjQEfQg5qMHfaOO+541ateJQijbB3MbW688b3OxhZhotRbrVWRlN3hdOzuWQBi6porw0tI/62LdTvq+LE0PQ9iNlGcgQ4CA/3rQiCnP6XtXnrppaeccsrs7Kzegk7Hb+nlGasFCycrhB5E7xqTN4X7JNq+8CehwcCxED9mM04Qf9UPWu+dHzRZ6fB37UmPYC8rdGb1ZUcsOKYwjCDv8ccf18TTLPL8B5dHbtsXH9n9HLLq3H84wMjlrUssVx1MBN6YU+VImAXzryYzwVs+YH9LHcR2ZFAsFaWSnT77BnURKV7UmlNvf+pTnzr44IN1OvEPAh1T28QQDl2Euk2sbZGgw+X4gHVb1cmvc7oznkCKj6DJepXqlypHbWXfGrELJzMSeEbKl6jNn/70p48++uhrr71WjyCtVr/DrYzlQQCKLcIbppQ1cduOGviLE5KC1uAvI2Hi+q/arFe2SPxvh7+d7Iv0NJecCoXDRziomSCM0yd8rJTMwUoL/UIaLsVYhySO5cwWHaCJDewS8qlRjrbItIfRhkBUl7akQjDMv0T2UHYeE/bq4K/FWqp7wP8SVBFOQLiCGoxnCW33b/7mb4455hitPVAMC51xHsbOMWDp0cCvKhCERv+hV74YrczehVcmTFR/kl6BRfWroQp9fJxITelfMBDBhURosIaHrnnaaaddcskllD2tcgKe3qCuHDNfYBl1SIbaowbAN9/AX3WFOkTjjcgW3SJGH08Kf1P2N6jxhEg6ULLD305WSnoa7tZzNZ0eeeQRqTNocDY+zJeKapoVmooxwinigjezy8FfXQcebkohaCoSmuooAhKuortfn5r/xl+Yf4XdLnu8f+diabmdbA3A8gF1MeDi+/L6QVWID3zgA2eddZa+4/cX/mJ+NXsZJuNUmIJdETnGbPRDZpqJzRpGjJTRWf2M7QIb/dzcHDsY6NlM+hO3+XFltbvPqrQGycUXX3z88cfrmjt27Ojn0p+6Jn5IqlcQzhxtNYNME6FfRuq/+lGDwfirEWhzx2Txlyoq0JLw2eFvJysoPcGZ5oaUF236qlLGDRToByJzsx/A8+1p6elh73waZX9oTCFdU6DA3taskqhpqRX+VRV6TDhfNF3JniJ6SUBG9Gt/qZr2KyJ1CX5Iw4WB4wMaxepSkp18M/2ide4d73jHBRdc8OijjxK8IfzFaNtwOeoToEwlqhcrs2OKoWtw4IpbWIUwD2pSQNBOEJsaozWAinNV5jfAe9nIlegPh13T/7qamn3rrbcedthhN910k3YelGsiI05wzKvUkfgDU7aPe2CAv4R84H+L+Ev4MLsEXdb42xgMqylsufRSQN5O/+1kxaWnmcCOEoW3PQrZtFaBvkDTOJWd7yAU3PU8qYelGo5p42rEBQMrKRsWo/u+LQTw65NI4eeffx5PTjUcr3qAiNtcF/+h0EcQI/yV8vu+970Poyd+J/XD/HBdS2wX5g8jVwIXJesimG4tNQ2X6UsFRnmhkBJQb0Kwa9pPK+C46YT4JP7GF5Hyi65zhJ8ursNe//rXS//VdfQi8IiS/ELYg5BXKjbqNi5HHHpETUA5xH31+r7//e/rk5gHrOT439RO8qf9aJN6iax5C/tM3dvhbycjpYcqBFvKOAjrhyxYcKEOYVhpuNiP7X3VcBaWqWZJnZrNAsmsS6wT/4SjyZDq6pP6r9CK7FXwF+NJ25U0cbHulkphYDWSap7HHnvsFVdcQeqtHkHbju1ZCMXF80ksF5F5jszVj3pTWMx1TZvIAVmMP9GGIKzXf9VjCyVG1XqcgE94B5+6mqRjCCIkpsXOVcczEBcowH3ve9+r9utgtZy6G+S5eUiQvIfb0PTNUHBg7oCjfST+Yo8ioZxImInjL4r/wqQ9b0iHv2tPeugjJhFv7+IjlKS8o8QEnIpmVA3HnNl6iJrGtprAKZdaYBNtY8KOHTvQnpy7Yf++nTnoy5SuMf4SvNXI0Zi4YL0FMamERDAslO2vetWrrr76ammjcDA++OCD6L94F7F6A76EnVGBLWV3nB5ZGApXXJ0DyHCRsSnBbu4dQ8q1J9RXKLwLhaBW8sQTT9ixyTsiRjiVssfEUZB5THuEm7feeushhxxy3XXXwSNBQaOU9y76otVUrSWWw+q8zSN1MVU74a2Nv9jE0X9Rt8eZs1ZNqsw0xKIFXUmHv52soPTQRzSTY8R7FFsM6hIXLB3HkaEGXyLGCIYFc139AT3LG9tUbBqa5FIDUcoIveCOjrXCF0c8HHtY8Nf2hyeffJLg5VWdlEuJgYyoA/pWvSTM0o8HHXSQgAzqAz2CuoLaSKxMaMowC5v9nc7XkwqvCURVv+kXCgZL9CVlMgqUYrAVGBXygteauuyg1XXqbWElcdYOFo66s43XmBR0fa0HZ5999rvf/W7KaKZMfkZSMkHBMRUwFTN09NySCQLhWQN/JePwd7AnBfFWXHA8snp19t9OVlx6eJw1qWB3Han/pmEUNj+ZJzCRp+RlkG7gqNU07LiP19EdNfHQzjT/2U33Qxp0ChDPLfAdOfhX+3ECTld1Ui4l/UK1ow4R5gprpG/Ccjs1NXXooYd+6Utf0o/qdqhy6U/8Y0I0whW2bdvGG9GnU4ehABee6oJSnKllCf4SboyHDY0b7VVYKawnEZY8Lt0aNRnDTl3CDFLIPPY7wu32ta997Z3vfOe6devUjGeffZZkYgJjdBfp6TMzMyYhIl7lvw0LP6pVFK4eib8Yl8Bf9Ybxd4KvEuqo53INzeWkwHX428keSQ8KRCh02S8z8gbDVLMY46C/YrfrikSgto7Hf432mkJIU1t/wX2vOaYpJzClUrfUHyCbm1ojq0s2rYBA7UT5hbxGExX+oMVNhDZGxyANP2MaZoz0WeMav6RwChG4jvES1ApZvvCFLxx33HGbNm0Cf7Gf2Owbqe4BZdRPdsGCcgwIQmEhr/D3kSCkPOgU6ryBm2xEiC+GYExQAsHjoBR+tn2J3nAVDLqLBNwbbrjh8MMPv/nmmwlYJlgF4qGvllLZJrbH5mCSNt+CCBbCB7E5kMGIOYIVBUJk9F93/mT1Xz2mhlznf+tkf0gPLUzjXvNWAOpkqlT0Vs1bxqIpzcit0qwgZwkuQc0lNmiO9EwB+NpS5+ROXYe4t0Hm0oWGERTGlOEYOKyHlNjRvUjeFe44+KytKMX578eJNAh1iNZwq2Icwr6Ylb0BB54Ibv37v/97aZHqQIzX6jryxEyWRjIxhBLCIBRhDOiCJz31Sy+9pMfX9fGbIeoHR0+Dnu6QqhAcox2bnMFvmRKrqZitWQCwgZB9q9aeeuqp733ve3UjDRUbhaD78HXqkGoROzCFDZAeFnsXfjY9iHRzF8HTAaypehx1WjR57d0r2HdhlFKCaOIuuA5/1578xP8GJSAFuBx44HnrWuWYF/WLIxCsEcDeK5Fait0zbmPbyMhcRV2C9Uq3hkaSPTgQ70LuGH/x3pCsQfCvIMkhwyM3qlHD7Q8nSbdNIlH/HZQKynsxaRsAZCATBH/4wx8+66yzSAND/+XpiCdjjZHQCViB6SWM4Jh9KNuM8fexLNo6pGz/jQgYVw4joG5Br9KlZGGgdzuajSu41NBFF110xhln6NVANYeey+4EKz8OVS/VfvVxV8Fl0aahQIv4i9k3ZfylQJzH4WDZ1fD2h3T428l+lZftvxr3AATecPatwC7RSHC46Isgz2x70SiGbVEzCuKCQSDSbQ9r/gugY9AgT8GhVNAA8SPbcKmE+kXzVvgrlGffOsjV7Jnebfy11aJf6MTqYYlKblvaKLanU5crUB+Ijfkll1zyq7/6q8IXgue06lBLmPgzIrfU4XNzc5AKUVhoUIjP4T/Cooq2S+KisLjKIdX2VvEIcY3BKFGXkL46h2dQd8r0ciZRIxhD4+G66647/PDDb7rpJgGlVFeWBEJleLPwHaNZx9fNd3YADrHQ47APaOu/8DgT0y2A5q3VxTG4d69g36XD3072q7wcfwb+9kutBDKyXMGBnammOjEMjAZi+F0U1iTTUspw70R2iPawxqbp4KqU978Oa7MZFK2KaQB7oaYoeVME/zpxqy14ohzahcHaTBdOKotRGRG/3NS9mLSNrTdtEPqce+65b3/72518AXmFgZ7GwGWD4QKWeq8iZiZikYMRzUQZkEV4sWkYARAXgoq5i0QKOpIXvVjjQW/nqKOOuuyyyzDaChb1XwglnKpDs4lXY8uyLYsOw5EIARuRMPoR+tAG/n43ixqGNUwHOOrZUcATkQ5/O9mv0sP4oPmgfR86l73hTGPYZOpSmkgz87nnnoNqmhFJ3UzzTEvBIY1iERMqO1wdQ4otO2t2wXa7WZkCv6ie4OAzJrDLy3t/HYVNMSozia2UOtcKQaUPFD3XmMCJ5CTavU6ra6MeP87MzLz5zW8WnMEcpIZJEXYdEGcSViXCjy1IXcjITa9BF2HJxc9mEw1rJ8bTNv7GOO7Gq6lKkEk/U4NSK/4973nPqaeeqguy28DVpgPYGOF37ZcaTiwSvq/NIO5GNHRTsDfsD/oF/OW/VWG0MCHqRKTD3072q/So5U5V2pQ5X+rh7bxROBWCSmlt1nZRfrFI7Nq1S58UYSQhynjaHtbMWMzKFIaIdYhR61xFjRA38JfgM4rmUspsnJVZz6KWsDw06oTrR+nvxFEIAoADaV7wYWrOszxg64wM6K4MZKw0+leFVLf9sJzyT//0T2eeeeaf/dmfgb8kHcDuaKiqS6WJfiZWNxdPPWzMrXIiIsQLqQAr+EiGIWTq9qZWxSPnNsfIBF5TylsQFPAHH3zwmmuuOfzwwz/72c+qtQQnUOWIdwcvmrHeGx3r3Q37L1/Un4J113yDgt07MErQU6CeB4z2k5WC1D2SOtdq0bKtIUQU8ASlw9+1Jy/bf1EPBT34cOKOz/bHVIgNKZ3pYeHQHI1RzBGCSPRfg1RjWDM/2ZLb5piCxVY/4tthkguXCWU1bxazlOCzRoMtKHEkL40c0DGo6P8EWSi1ZCSgM6XRH374YWGEXU9OGPEufpy+T/zG7bffvm7duuuvv17tB4MkxI05aSJlswnMGHpqK5htUzVmcfdbfEf0ITYBZ0mArf3h8hl2mhk39Vx6TKnqJ5xwwiWXXILmq2WJ6DGHmhC+hs0BCE6BnMi3sKEDU4+uoMGDv8EVrPmubQ0RzSgEdTZPR/fpvkLp3or6WcukRkWHv52suPTQOAhBw+TXSOdtfGdGof8KpKTz/mcRFzOWoD+icI1UCZnJpN6i5NYhDgFbpzVo9F+ql7vsseA44m97imoCP/LII4tsG9sVYpyhG79EjOYYoRLReL6vXWT9MYyUOvhzn/vcSSed9IUvfAFzJ5HXeig9iNqp56VkBiFoBJ9xwbZqT5Af6r9XuHrY2l6VBArhOAZZdhUOso4oyTVRt7XS/PZv//YZZ5yhwcDyrANmZ2chULemXxWWYSy8uE9tyYF8B8OIHbl6IlOwR/wlFVDQrFv/e5a61Fodt6StjtAMFA4b3CYlHf6uPelBgk7dQ20zTdTdL4lwjdGP5iUAYkyAvwtlX29zBOGo44x3VutITyCAKSp3cUsrXCMGi6Y+99xzunsj+Hekli1EELShko9TgWNhxEaAvUseIF5m9MhCDeiEXBipzpbK/igOzCrnPuiwW2+99aijjnrDG95wxRVX6LsQDTAi+wA6SjVY6icpy0TX4kKMwRugJypz3OBHmHbYFlonTaVwhivbA5q8biJJiJP727/922OOOUarBU5OvUrs0fByRCPvIDOX6jp4AjnAZnTyQTAi8UUNIIO8jb9aWQVzGOjVBhyM8en2GUv3RlAj9DoA3w5/O1lZ6cHHai0YC28Df+MX8Fd4wZgA3V4sBWKtBeuCTuFvo5J364RbOOnW5mB8O7ZgMBWFBWZ+0PU1XXU6Wmc9ijkIUzV0X+SGNOZPRNUGyMaSMxGC+VFtQGkl8Re9D/gbGexc5XrDgrBbbrnl4osvft3rXvdzP/dzJ5544m/+5m/+6Z/+6Sc/+UldRJ1PGJbNQUJtYR+RAEJqSqMOSnE8spPTcLxtNSz0MNYMIh8AFBIoiFUgnoxH0BNpVVi3bt2ll16qrmNh4HWknD0BhsZi9bCsYbBmsXQMsnHTwYi6AiQPbfsDPKjSfwW+guADB38JsNGqvzBpF1yHv2tPepTGYQ4IAjTPXavc8JGGKX3JhTWEsU9fCPqjwG7nzp0ws7RPj7/Y1lmXFFW0MIqYgcsYMdUkM6/jfNPMhxHYPihPGy6OyvzSSy/RPKOnJZqGXxyWCMSNU6KlRVcWFqPeLhL1hV1Vneb8ru3bt1977bXvete7TjvtNOGd9OKzzz778ssvv/322/W8Uiq/+c1vYi0lz5j9BJqvY2lxllr9b2wCwEEOrkv4iju/X8QGCv2ou5x//vmvf/3rdSTrsc4SIqPJDjKRJoBO8jF3wb48KCXm2okt/q6WRPsvqef44oT12B/AYrq0Hm9cWh0Bf9UJ4G/H/9DJykrP0e+k5Guqg5uGzva+nmkGDAndRg5KjddquEZGnIq4ffAIEYCVhmesjZ5svWGexGOO803TlUQ7x1p5XxwvolMIfsCS+1IR1HZvKqNq3PC/tUE5fteRuhpUbSxa0VDg9pC2oKbqqaXfsecAhvTfu+66S1v+97znPQK+n/3Znz3uuOPe/va3/8mf/MmVV1555513btq0CTKzrVu36hm1QEqFrHJ+GsZW0ufwrZk9A3u0jieUuyrVkhrLAy8X35p6+Prrr3/Na15z2223YaEWIJJkbHZ2npHL6qUQmkJJFKz8g0IVFIeNdwZ6X4J44++OHTtcAgPaB6wT+q5eYtmoh43aqyys4moAA6bD305WVpr4qzlArFUdHPqNQYmNQlCIGtgelOz3qeJl+0PEI5smdSN8TfbOe+9sTSrlTDnt9zVvcb7RWuqMQbsV+YKxYADN2skyyUFSfdHCwHcUWCuzCxlzCUojtWShUA62MfrFEsQGrBM/h6OJvBU8io43oG4eVSGwhFL1Q3AMo5A0TaGqft+wYcPVV1993nnnnXDCCUcfffRrX/tagfIf/dEf3XDDDZ///OdhrId74WtZUJBTtqTHmOW6VAwBJVOrOl9dWI30XY2Xuj09PX366af/3u/9HhSRIKAdaC66DKNmlSPBSZyT7kzstsX0HThOSbSjglz0v/1XwV890cKo/dMqS4e/a096Rl6AWHOvn5kZ4PYeOe4x5GmSAFJt/BV+aaBA8j0IhR1joCtzWL9AtBjZHkymxQHseTGSUEcH+wPxuVb98OMhAAd5XCR3gAJ19pIJs6g2BheB5j9qtQTkbWNuwyL8QhZ+1BdiIf6liAu4eUkAp4gaBoyMawDTfK6OAU0lObhq9rXXXivkvfDCC0855ZRDDz30Z37mZ97ylrf88R//8Uc/+tGbbrpJEAxBO6sUqXGplOzFRgzPQwophTbFRpuAzhXwnXvuuaeddprw0RnAtjnQWle8J2pFF9Td4YlvUHY47s2+Pn2SRK4L2t41Dn+hoDxA8Jd1dOLK70KHv2tReoAvYUZ8J7YJuByHvzjKIyo1Boo+Na88hawGYlhA7UILRqUy57qxiRkLAZgE95Qzpsjc1ZHzoTz7oJDm2AQJytclxdaOJmfEgoAuesTV2OODzuAsKvNLL72kCSClmBq9HCMcp7amc/BM3NMvRTOxn6aSi1Hn6AWBF4owoMZTA3lS2yEFlW4rcFy/fv2NN9744Q9/+E1vetNBBx306le/Wnrxr/3ar73//e+/9dZbda5wjQgzohqkzKIUq/f0o/lxsBLEHGsWOT3mxz/+8SOOOOLmm28WIOrWejpCU3wisdguROKuw8RMl9KNjZTuVFwIlLBbjv4rgdm54TNYfalLSQFviSYoHf6uPem5AK2JsTX3TMRet+K6mAzwRjo8tjFQSBbSfw2pQAB7ZMZ0XUgOpTeZL8K5dsYys7dgkdRlyQgQ6jnwyyc28gtAgX5J7rLEZGW+AJSGD2eRue49iwHd8tBDD6ESgjs6UgpgKvwV3DeaU1KIBrM2x+JBGjR13fGDUeMZmIMfWcJ7YT8hOJ6amvrIRz5yzjnn/MIv/MLhhx9+5JFHvvnNb/6DP/iDG2644dOf/vS9996rJm3cuFEXx6xBYC/pcDSbXYgDzu6//34B+pVXXvlkFqE/meg2E6nBAnSs2GbCw3A/COSf5A2m4t9zPxg9qVeE+Xtx/OVhDwT8xZYC29+4KMbVkQ5/1570tPU2BRpfNANBAYfWNkZkKgZZ7LwLwWcV9+z6FAQwOTW1NOtIo0rFq8YXTATRKGkzMWsA2P10ZmkR/qKk61JkoPXHJL8h9vzUIZIp+scWn+HerTMJ+SQMy48gFANWBi2++ca9/Fz6F6kQVY4GE+xyDPSeKTvEBHOUU2Ozry8EQginiAzTnzrxc5/73J//+Z9fcMEFr3nNaw455JCTTjpJuCy9+Prrr1c7CesGzvQKtHJg0ITfjpRCXf+3fuu3Tj/9dPUkMTD9zEiXisk4CrYpCNuo2coS69WLNckFqFDqWcxw4tU5jtA5F8LfRglOUuHVDKe3TBZ/UfC1VCx08WedrLT0tLDb+Evqp+YDe8l6VFAtk4FCXkQUtENohZLEGAjcd+7cyS8SXR9CmVR4ZDAlk14cCyhUhY+GIrv6xDCqi9BaKemkJ3hyjsx9WAUBaxz5MNJYaRy3+1FQS34XCJuy3Vb9kIqtFmoFcjpAN7LjyDlWhwhS8UmSuaDeu+eeez74wQ++8Y1vPO6444499tgTTzzxwgsvvOaaa7Zs2aIGQPwo4NaLo2QGFnAp ocddtgnPvEJVjjd0ata+0GqwtOGed1U8dHeHa3wWJNs0GdcYf8Ff8mmIRsQImMWGCr7HSD4q0dQJ490NXf428m+SE8TQKPfkf/MZ9Sc+VF11YAP6ty4IqHDCRaKjhARmfBbDR0pO96Q1tnMStqV5jBasJ3szGdIZPQJ/koHMfOZYILEgbivX/Xp+RMBf6O5Zhz+Gkr0yGze65wfQdlKHh+MNgWlz+KNYHJFNcY+q54RZpEZKOQSlkGLccstt1xxxRXnn3/+a1/72oMPPvjUU0/9nd/5nWuvvfaLX/yiYJ3lVqh95513Hn300e9617uE0dKOsepgg25vfeLjqJHkE2NQigp+jG9LJdecH9GR2/gLrSgMG/Dx6yliCYyJ4K+fS69GDe7qb3ay4tLzBHBWEimndtqMHJRsxkFb6nJHLTjGxu7atQt2Sl32m9/8JhpuKpQxbIcJII1KYiTt1X/VHrVQ2jTJF5qcADdptW7YKs9PBOXOC8AiznrPZ4y/HMwq0i+sj/1Se4LUau8VQG1WKR1pPjZCL1CliaCAqxeA0yolHL/jjjuExWefffZP//RPH3PMMb/0S7900UUXXX311Z/97Gd//dd/XZrybbfdBvGb36zjecc9he4OB3wKoWxEm/1rS1DtnfTslEvjL6q3lHGNEBKCqIznXp0U/lYlh1Cjt8PfTlZceo6odfyDhr5mAkFR48Y98bnYFjA1MESsBcMcxozCCsw8JAQCy4Nj0TA3O281RkcBRtqZUvGIsm+aorqCfkSlSsVPsrrT82WBXSGV+mmLbJa9wLiAtNNP/MUAbe+TOYwgtSH4F+sQyb46eG5ubnp6Wp8wUhK/IWUWLnOHuOj3L3/5yx/4wAfe+ta3rlu37qCDDjr00ENvvvlmKb8EWujKKZt9WXrbXWrvom46OzvrUsd8cf1jIrJZLfC+YqxntWjjL2NPi4dUcnvnYlr5BPFXX4y/EwTfhQ5/16L0TOeIcRB0g73B8fltwSip6e3UXj6Fj0QvEe+FjmZ7YlUShQeltDj7XE3XyOpShypkJLnhFn/hhRcwX0oEFpq9lIxLpaDOak5OC/hrtGrjr39xrAWW65T9bHp2FjMYk1mZzPwL/nJlTKu46fDU1YWFHcUZgyyhdUQ9Ewus1yFog1MCmNNd7rrrrj/LQoiF9v46HbNGvzBMth+WV0PNUFZT2ul4j36gRfbb5BEAU53Vtj+YfgT8ZcGIPtiJCHcnbU8t7PC3kxWXHuUssR5aUdIXZpR39+1BCS+fdGeI02CKgarceRYN50kdxCgMcMC/Q7ka6j6YsktXkx6tdgp/8ZXDU6Hvuikt7I8iadxPczIaNOscimemmDTK/lCHQAtsu0BtnaPQqFVKKJielBWFgJB+oYXkyhhb2Sj8S6kAz46+KsVScYtZd57PRYyAY/WYXhN5ZTp48+bN69evFwrrT+pdsl4SsYCNqPEgVSG05JGjvSjuZozF86GINS1nSZBiDv5SOZs9DaxDeqFUA9Ar9vK/iElnv4rftZqt9oxLtV+OjAyT7/C3k55jgBwVDwpDgNJ2ahlP8WgTGsW8InRhOVMl4i/qHrkPBDM5/JYkBWgkhb+4Cgn+1X55x44dwhTwd9WcbyPxF2tAPd5T5OYBtcSr2RDBRYBRkoZjUThgiGpvaMrGVswOVOF0A7DMgqFcxOETBBWo01hrhcU6Xoso7xoVFUpfwN3B1IApodmwTRJN7LQRYsuwQpD/FnMa9Z31Vf/V6Y899pj3W2ZzBoLBX/5krRrXpasm4K+Wrr3G30ZcZqQ87fD3FS4/yb+QAoIPBAhmbmiSRBdQY0QaF1yBrR7ObV18TFu542A2s9HZ7auhygkviNV38O/DDz+sX8CLmGS1v6WBs/jNlvQUYVgwbYJgK2V6TIdwkIJBh6DbmlWnLgzIQluC0jgMRGaVIlItlX0AKqrughE/ZVDWn7C8C+D0xoUmRE0If1k7q8AUioWBgp6Ge6CcRDvoNbjFV4K4ep7NEdaFCeGQSN1eHH/Rf1l1Vu3NjhTrvxpye+1/a+NvdJks/5od/q49+Un9ISq6Y4Iw/krQyNqjvy6ZxKhXg1JPN6LwksPau3V94m7qDxNIso0l44uyF+i/ElMlOEhu1ey/xl8eHLutc6DHneK8Pj2j9WXiyXhMSDhTBlDSzFCN0SK9G6DmBSozdgbQQXhNOBqnEzVMlhomYPIpBG06Ugdg6CfkFjtPP3AtkX+oRnJ3FgYWXUwcaMcQt6dQar7tO+0XSjbwl6DgJfVfvVy9YjZDaaL4W+U4EHWRGraPxoc2x96eSoe/a096doNAam7DHCZg3PQNMZOWXWppfOjrIiPbn7CwRzIdT2C4hl32zYGrauS3vvUtytfXJUhgZebcMqQuHI/mL07jbSBuXl2IKNElHbhGCly0dZJyogcn2pf+ASXhxCDTASqylJM4gGCswI4Z0JV18OzsrC6ufuPKW7ZskQIrEKSwUNQx7SG02QGSoGiJqjMBsSu/2c5rbg0imm1/IBYC+wN8PdIlF8dfcqAPKPzVkvbCCy/sBW6aJ89seeOopTv8fQVKD7R9/vnnCd0nA1VYrB+//vWva+Y00mqBHleJT6X4rv/bH+Zcj6O5Do64iL/sdjnRddf/uYjQlhUC5h3NUt1d4KuGaW6nMfXe959Yv2vjbz0sPt40QDi4AGJCFEBJuHhSqQNvCnYCtlJRt52QLQz12uPSeRQqdfkSvuDNIxBQZ23YsEH32rZtm3oVW7OtzK4k0uhMs2vaoMz19YuuAxEE6wGgDP5iiACR8ezRJP1OHWvcvBF/8b9BtKTvHN8YOaspfsvsM/YOf4W5Grr/UeS5IppxI+mnO/x9RcnL/JMaEJ4GmAX1o+YJ8aTtObm4eB+aCtlNVSLPojJoRi5gCI2AlQA7g1BDv8OQS6AFzje22LDJwJO5mvqv7Q+p2HCJW0jjc6DrUm/CFLp4rhz1DGalHBFMzgI1L0yc5mAAfZoTHctvBE0d78zmVMpHPv744+pDfZmbmxME6yy9ZSmhMB9F042vQxqFAzBwymEmcm+TpAewWqpRkopdhVWHEkTGX4098i/AX710vqdstk7F9LFf3+m4t8b4BH9JLNpH/I1A/HwWE5l2+PsKlJfxFwJcxj3OcXwgZixrq3WLSFSHo3HQbDj46yP+6kvk3qXct8aosAN9nIQOHINYhGmevo/M09tP0tDcSc/Dh8Y2vB/q5kUA4mFN4Tg7OysYNRscQQuoxpgRpK6i0lrrpFfRRrk+dmGCfwG4VFyC2HkhXxei6UdpvtiUhbyCY12W4m+RS6gqcWw2JsTnxTFII1NeCczmkYI9qj8s0TpBd+nR2vjLkAN/0X9xJNarblxqvGss7Ppz72LIFsFfS+QRXOQuHf6uPXkZf4kuIBI+0lFiAq5GlTdfROJkZv54A85sbOu/hLjjFFJLSGuWduCEWgf/wuO1c+dO/deJD6vpf6tCnK80o+3bt7voLzF5AI3TT1wIA4+WftSaQRQX0R0pm9SJ+sJiSwIb/jfzalLvjkJtfhEYQISJ0QZt59tXcqVq9dimTZuE+PqEiA4WtyoHw6n9hBtb89WPOkag8I1vfMO1PFhB9VxUe2PNoDpfFLg7GoKBgjBknaLLtvGXXwTNwl9bmVh7JoW/qZh92E/sXf0LKgQagiPs8otUn6gFd/j7ipKX8Ze67gI1lF+gUNNAQMBETQVPlzNq6+BG75eqmqZttGIV8Ve/U1Kes3TfBx98kCRjjNEwT+oLWVJqocaulb60WibCOmTE1qV+M259dugwx5OV68RcV8EgWCJll6OQyIfpu3BQEIk5VQtMyhyVRArzmFUhq4xoW5UUQf2OmtYvVPf68Yks9CpOM0gh/iXXtOd0jO9uGNmGlBZVnxOHQLbFoFTYxPrBEoJ5Ny42/ZZUITpCjR+p//ILlPaMPbWTOLZVe7ltsZUpZfzdU/BdKP436lqBs4i+G3/1iTl4XEGDDn/XqrzMv44JWOMArzQ+EH1qr4odcDCmkvxIqUsxY6blfC6fjual0cY1G/irsxYyXw/lMjXUiI7CGK0WanTqC1RBuoKuptZ+61vfogTyMhu279LAXzyEdSnTa/dUtIdUOY+ADTioFwOlI2zpUlNTUyQBAuVolMZKLsW/OLEuLBCgIYkb85lVWb8LywTluiZZEvqT+qrsGOZLlQqcadxU4EhOuRCBMFV1uNdIh36jm2vN8G5mEfMUayp7FL2vBv7CgArmqnmUHWHt5xnTRPGXd6RPumUvxLyskaPVdolns+g7JQs6/H1FSQ/Vg0gg+74cCKEvmCMXmWA2JhhW2DXrLPjCd+zYoeFF2Pnu3btd2sCAjuuJ0YkWALM7TEDkC4C/LBUQxWq8Cn8hEusvL+9u3yXu/XlSQgiivzGaa+OJaZijHamCZ1JY46gGegZlE7StSxKETbFE9aaSdkFwLoq2lEe9Sm0U5ubm1Nvbtm3TYaaXrENx1aoQMWMd1rLHEghwaEjoi8YGOyHcfVhmbfvmody2RXoM/KUEMoCLHcn0e1BQ6o3rFeuOmLaX6XXYH0JHYa4Bf43CrtxqwlUS2wy1DWW28d0QjP6LRUJDusPfV5T8BH8h3BG6CSjBX/RfNBR0EDuRFsFfxwAIBSg57P2XB9yuXbt0izhd2RoLSgS1mnUuzw5TDFHJ+oQlwIFK6JuU5rRxeTWnJThLbOy+X9B6VjuamIgIyHeqQkmDkksIhFPU6kJWqwPUdYJgDBqbN2+emZnBC4fFoC50cdgHrIZDqESiLRV3+M4nNBFo6/oifCRlPBULSSrBiFEamwM1WA3zqwR/CXfhjT/44IN6v1q59cXhcZPC3xQyYgSOGs94StRsfdEnFQYEiwx1PUtMbEOZGKcRs7yh/Eb8HadHd/i79uQn+W8a9GbXdTEu5gNMjw6BGDlA/S/rvwILXUpQa140KwX6Uf/S1GUmYxd+4IEHNMoFsig+0oAw/kqIh1PbNJTR03HHEb8F4mg+46FatTm54vjLgxDN1i/pJ+7wOifLgbbgXSphYTDWEyDFv9R76KTSeYW/U1NT2A30u23TELCZBbSfszAEryhxETj47oIm0DLodJ2r91WX6ON+qQI18i30Q0KNFlqd6xgbOPVdAUAvV6/+6Vx/k6Ie/cnxT6byXggpwQPcL6yYrGF6Fg0/tnfqLg3v2HXjqiZ3+NsJ8rL+S/UBXL1Qi2F4JRM08nuNHKMRnescI6Wp5RFjjmAKEemyKGIuDiZE0GTjv964aWhqNhIRIRUDcljtoCmShObbL1kGqzw/Vxx/U163CJAYae1hFSSKwJCHkQebA045UFiYe//99+sXfc7NzanrBGdc36ER+iRsrs4xwoAI+2v2K65mgvKrH/Uqd+/ercNgSRdw4Fk1/+RI/5sr5hHLTAk4SCYp2AH+Yn8w/upfULXNT4jWOYWB3c8UqdR+1eM89NBDGoqaL+oHfdd8YbdHBzKA6cZxSNrhbydID4puzQdC96WKavYS9QUpDybgtGh+bQQL9DKNS2tPptbuZwYWQgVINcayAaeB7qhxjNZM8C/+Nwhitm7dun37do148vQ0S4mC0iea8mpO1P2BvyihVup9I7vdUu5bQh3sdTT9JoEW/Dg9PS1EvvfeezEpqPP1ZWZmxhRrpOHBXakO1J960cYO+4hYDtlT63UQSqH12HU8oT3Dcae7S+PWNf/bsLBmUAgO7gi9qVgwCVxzUU69WTY9AjjzB01EonVeD0LQgnpPw5IQnZStQxp76L9sHV4sFWFYxjr87WQR6dnVhiVRAKd5qznAfhBDBP6x5eMvM5x0JjjSPM8dSZqC4ZhNNMmp5BYLiDUWKXuhoX/PPfds2LCBKsjsWzU5NQHUWtum/0vbf8HNBv7apG4bqMOhSPalGfbd4drSRQS1gkJ9wrTARp5CnzrLkE2ChnBTZ9lYH531uExZRNUSVG9Cm4lsIdKZV0B8Wzscgv27o5g5eBz+6lNjDwoeDQMiRiZl/23jryBS37UC6SkoRy1RJ7Ng6JPgZTKVF4kX7vC3E6RnT7Smk2bs7Ozsxo0bCR0lEIIpAQtBGkbbOMfwyUC/gi5mJbcKPFgpFKNEs6OSJpY+3EpcBOYdpqJ+0VZa+i9NZc3QFSgoB6CsZgpcXYgvqNyx79ekK4BIcoKrYZKNuMLVhe2BkkU0gAL1fFFf6TsMO0IHCCHZR5vbF6MwscPE/DL57cHXhCciShCsF8HybHuxlwR73giHiLYIysER7s07JWpNY8nrKJHd7LQi/sKvNNn43zjCsT+oW/Rc6ljHO8chzafGM+6KhRAsEcV6MQubczE6/H0FSo9BD9mCxrr0pqmpKbi6iT0g3gsTcF3CldD+5kuVzH8eFuyMbZg21lhxQ3tyBZ1UyNX6mSpBxxCDoQvqslob9F98NWq2JiqmCcexrua0TAV/V2SDbH+OjTN2ZqYx1Z1hz4GBQULKht7d3NycPlk4qYW8devW+VAbycSSRAEKL6C1VN+qY9HLAAKs9vDMwVZhkl/aiReUpGSBLwnNmB1sl3AgM79gejbNv/HXIWhQ8KBLojJPMP/NnaanE0QKAdUeYuPQfB/OYkVY3/WmhKTsHgijbCu/C4WCMmYnk4g8Dnw7/F2T0nOcmRZtSK8x1bkSOJv9qMkyA0n3YkurP4256G5Wkfw9BaJYLBLoYqQY2BfkmYYRWXfX/JdirmOk1ukUNcn0QNQfqkqi82pOyLSi+GvFlv7HC5datp0oVaEmEARrH4Dhldeh/7K7JxaF8k5EVtBaTgQKXXlPKxlRgA4WFEbs2LED4h48pRDDm52OpcKVVSluHdPekLiWEE7nYq/m3mvgrxqvfQ9r/MTxt8rB0WqhOgReUAl2cHxxkm8WUYM1lVi9xuGpfZvYNJwCB2p3+PvKkR4zgYBfjX6NdayHsD5iBdactPWQ6CWYt0jPT8MmBYeUevh6j6bpDUsAVWpsOvTpdYm7wimHGVpKnOY/SE1CB1YIis4NAvv7qk3IFcffaDzxEliVzIhGQp2FDtQxUsc2bdoEd4SOV8/s3LmzzvQU4DjGiu3bt8Pm4dWRNGiMS3V2qRFyoG4XfAgUyGP26uhmeMftfJOGWSlKCsSk2KldZJPE95H4q2Pw5bIlmoj4Ret1SA8QOGLkQdvVp2HXWnCdozsWx1+DL9QQmIAX8dd1+LtWpUc4LcOdoB/NUk1mDX28Ik9mYR5CJWM11lDrtC5POf+JgRIthh1rdMHZjmHIttMJpi5sI9im7733Xp0Oe6zL5UqIDfgvjb9Rv6tLmQknXIzU/tA0B5mdduvWrequL33pSzqRJYo8YwfeUiiPyDOKK/sNktBMnT0eit2MOlbrriNw+4WDIr7ruMuJX6rh4GV+53RutyT+MhqhgJgs/mIlJ21a+Kvhp6cgPQQLWARfWEPVbCzpI11wkQ4C/MXyuyQve4e/a096RNS68rFG0pYtW4S/ms8aTFKBQWFN4JjtavMuszE6ZFJAk7jx1He2rlXJiZovZXusJQHHtimbCgufvjAC1QwVWFOUcQ8L2j7mX1j1bmvujcNsjVVjVtD+G5tR5VhdMowbJgi6dL5UV9P3+++/X++LMAZBFSYjIrcQ36XKblIqaKBf1yWOGGYfc73jTBOsA+IOQsDL+v8WcTiEw3vtDMDgS7pH/ALr0OOPP27HA8R7gC8xM9LfecUsG6vmWW0LfU6YoxojECT4TJqBkFfDz8qvRQNS3aX9x0KJ52vAaIMODSenI0/Gpcx1+LsmpadRhQmYCSDIw6uj31Ezcc1pPrhq73JGbQO8cNnBWtAvrN7R7IC7nNnLXFUzNEsx9UqhEBaglcPCzvzUAZoGePP3Dn/j1t4QnEpBuXH460wHG2pXXOqc80Y4BC102gXqGEZJHTA7Ozs9PU1QAdmMQgSYeaMhyI/mhGZfXL+zNDqWg3P1vrTs6XVACWTe9wbhpL9jmCKgAqOwI9WcNkYuL6MrlqDnuxYPKNCoUCcFM6rSqy91IfrQu9CQEAiq5ey6CIVui9YPNZv495EmBWy+4O/iAQ8d/q556RFUa3+0pq4mj1TgqakpzUwS81GpsAwuZzIAalFlq0qWMBUnbZeghq7Jt5i9TFqKfsMHT3qIgAY2caJHsY1gIbUleq+nmTV3a8ERjhtSleJDpoJccQGtgGDdyBRi6j3cPlp7tm3btnHjRoGjvtMb6hZ9x3w8KEI0WArrIoowFyc/gszmuOTQn/yXVBdcrP1SzDh21Mi1ysMgGqmqkr4MjwcUaCY+ZU+jPdmBg7914XtT+4Wb+hO1dyT46nfQWeeOI9NplIDr8PeVLD1NLXu0KNE4NzeHJ53wWyKZ9C+2pcvZDDZmIyMYhRG2csKVmPbCX7IDmPDSL0iD1mx3lCiFe++55x5S4J4KQiYS4XF7Pcfswatz/EZdwuzGWR65F4vHfkIH4w57efYH+Dz1yJCm04E6cseOHbxEdZfAS2dB7h6zIXzBxrbDcWO25zrqC6WPvuUslgFfcBwK18WKEp2xPlHN1p8OPH8uE087/016JfueAwd/6xy0p/arn/U4eN4wNbTx1yaIZ555ZmFMeXkSW2IV+g5/X5nS0zTGzQXTgrBMW05Nb+GdBpyJWfVJGtUeGeOqEiPMnpQYXoyPOHnmS/X4lOenI3lRN7g1oVRqz6ZNm3SuWssvkAZoxEMUuxf6bxuVABQsIWkU31uEM55of6CD8YtK8mwOwFM9r3pg/fr1ek3T09NqIQWDCRbU5IecHlMPVaVBTycLNNATOwNQjqJtX5lO1ysgxdao3Q/SAF/aHC1L0RnrP/EBsGBIjL/88miWAwR/3X6WvWeffRbn20jl1+ZgHaDO0eOMVG9fDHWGOv33FS49IZrGWTQBC8408aampqQZ4QEj5Qxv+HJGLYkVjg6GqFs3Mp12nKKeyWAE6pJWBc096iEBLvjlpamRJkDNJBzlzO29sANEPZ0AD3RzLJ4xwSmeYiURm+l+wl8Dlp5XzdCDU5QTzjA0YtBTf+rV4EcF0Ui74C0Q/0vYSfvidaAu4/FNAOSi65HhzAjOpRq6sF2C8S4NjRj8Ve9Bsq5P3UK4ZnMEHKQHDv7yRCgKaqr6ZEn7ryBYb01aPJSVbRjFBOzIhw5/X7HSYzIwaQnq0sAS9GzZskWgSamup0td5MY23xZGdEbSqKBiIVCf5OB+TntFVaxDyES8FGqyczoENxTZxAGoOal/GcSxR2ObhhHRMW1R2+LKceZb6kJYTOAEhSyhieFBSKWNyn5dzKa0UA84mwXIjvKvw0InNMSafh3ocSNauXsdEEYpJpzmmuRqg/4kPwWnln4UFn//+98XCsR8cezU0Kt7RalKQeWUQ9m4NSzDvDh96uLSzjAHxYZFZTb2c+z2hkQ41pXVJFYLfRIAa/0XCnZ9h+JDRy5y2f0q8RmJJBFWUpO7HfYQ7b+aQV/PMjKSwfFnrsVJ8aGoHS+MKsSJyeJHP/rRpEGjkxWTHsFDqB4kXAhtBUxCOo0zzW2rxjoGlByUegfkPjG3UZ2w5Hpj6/lJvlwKcfh1Nj4S8GA3OkRoVOthB2cTsNBHkKdNtx39sLdQqNF5XCOR13CGbddLhe4ooKdKG97/qlQ1xgjujb+x2GovtAYYZP+fYWkHCfyPlvh5zcNbhyDZlPcQ5orTrfUi9HaoVYO3SrOdRREeMvIa+rlMJ1RHcZOBC85V621tZ9uhU4hO0Vm6uLqasDMqlcGD3tB890UggsCzqkfgoZ4uVV/1pIIwgFi3dgTevt93TyWuGfO5biE1wtWT2HnG2R+kv5OmMdK2YDpsgLgRCPHisHAKZuIdWX784x9PGjQ6WTHpUSsMnCXoXaKxNT09LQxK2U8CDpId56x/wy52Q6hS6pJ/bCjkO4SHHEb6Mp53nc5sBHAZ9xyv4W7rB6vCAw88sHHjRmGlBjqarw3TxOG2zY4OQAaAAHpbRdiVe27bfOnYW7WBUwBcDnDRHU/UhnKdws4gOrssHIaJxqWYvIWvCgmR+/OJJ57QSkOtMJeKIAMQH6BXO/oZfKfBqVgJ4ougE1hX+qV2kf4lyNu9e7fUMU5Xx2rCC0oi+8e+4xqLNIMN/NWj2dMA8zpR3vD+7Psd907qkO/HLkRN1SoITeBIFdj4Cx3HuEheyCoXSsmMyLxj8jnTROCs063VLdr5TRoxOllJ6eHe0auF7cybek0S9vvShqyHaoSBmESJOXvY/pn2npQ4M0ePYsN18rE1Uw96K9eaoqS6OTwDZVD/EiKAQawNOoxZ2ti/E+iKlwyLgU5nL2/Sg5hLwp+ok9QB4jDbsgmPM9ZHxFxcGvjrtDQ8k0Cw7bA8u64vJML8IvDFSYVBBnM8GW4xnzgFawa8EDD8kh+I7p+KRQKTi2Faxws4wALdF7YzQJnXXRfD0b7jGmkamPUpQQT+OgId/NWD68sE8TeFTsNLSYEu9QzKL6beNgSTl6wTR9p2XxyuAoctGPKHF0spuXYWnDBd2xT1T2f/XUvSg41BExI3+tOl7KZm5n333bd161b2uVa4bEaIaBIZyAAmGHYALKLWgHiNYFKnUogPNRTGRGSdpfHt3GhiM9Qe6NmsA0KUhWZdZfssFkx0QEwiYH2MhXLjiUom3JgwAAy7Wi2iMgsKs4qou6Kvr25Jaum/DYnBA5SEcFUhwmx1lnFWE14bVRfpIcIXHykZw0aKVOI3UlH5qVoEP1m04drWgWmYpGS9XOlZQkMs1INAcdcvZEArEuyMyct1jinPyvNC1Q/vEsEtjLdJCZ3AKAV/1T9oAKQaj8NfiCD0XCPjf21ewApBIrLLjvAvE7rrd+LcdTsNhs7+u5akhxFTQs0LQrs0+uschKDZqyFFEBjKJhVwG95wa45gnxRn4v9JZNKoxZLIkLJeGSP5Ge518JXhQbKRASDW3XVxQQ+pGbq4cFnfiSwGRwz6VnINi07bdfaHacMwg8BmSWICAQPxMbHJkgeYhp1ReyTW8fkCFRn9gDGBBQ+LPCZC9uM4SPuFxtfRb5h9TdbTWNIAWWLRcGe5q3koDmCZ1OtG5ayKASfaVVZE/7VxqYG/CPhL4DnZQPt+x72TujgqWUQ1IMFf9diS+Ct1dUn8XSgUwAJfZyFjl3CAMP9VG+Ca6PTfNSY9pqimHIjGfNCOXqNn8+bN0jcFDZT8wUAhzQuVBOsBLn4CtnBYAWS6LPT+P/jBDxhqVDLHg0zWQCr6mrHAcIkmq7nHnCTaQdAj9XPLli3ST2GZAZTBZcr6NgDXkMfvePzYev/3Imq80QqN1XUoTDaEmsxTo//GkFhP17YiPPJf6JVc3Hzzuix2cB3AIz/77LPEZvGY+tR7gR2NpQXzgnuvDplmjQUSscGdZSauozw+/Lw6DOtzymziEYJHhv0ujmLG7lTCudhqQAHBeNPYcAYQpaow/este7+1otC6LPFimfJA1ashW0+/CA3Nf9bAXzWeEGZ14Ej8bQQ2YAJ2CARKsSnwBfcaabD8EJY3acToZCWlx+zSxCOvTINeOhflGqVRap5oQqKMoALrMHxTRJjpvziyzP+bisMdk9auXbsgojYQ6xZw0XpCOq25LtYMKA4ESTgGAVly8KCy1TKAu5zf0SL7hYAYs521P0c7YJRA1wP+9EV3YbttcEHJdThElYNwaWSjRHFUDBuQNPKAxp/o4HoWisPr0XRrARMlRwW+JCagDusYdbXWHgMrYWdUdaPx5sEYiYwu4km8B1sZepsHJ90DiwR7gmjirwP7fkSo5aBY/I71WWjCTquBv9DaCYWpCeuwxZXB1D2UOqRNq7vUPEEq+DsSfMFfLZOkYKBzLC7GX1dNRuD/hGGVGxGAOGnE6GQlpUcGsKCWkHiUXHwjmqUzMzOasUAAUbf677Zt2/BlOYGNGCamKJZW/UtjRUOKEDGNHv2owaQRrLGr6a3RzBBnPmP3jNFsQLxOwSRCPQ6de9999xEdbJOIrqnDKGxu67N9bkRoxBRnuwppJ45BU8JjfJjKMj09TZAvvixstcQ/fKVIZJmZD2JVNLVwypq4ztUTCWtYQvQvoZKelN2ogMmsjJrVmGJZ85yoojbjQ4v4Pg6tUPDVS1gw0P2h9fBSYfXZSywevH6L03n5mNg4mO0FOxiizo2/uB8EN4xArb7mJt4z4FwhqYsJos5bPTVJmKjvemvjQtDQf/UIOms5uRXgL/yTNgrDDqwVV3c3ynf4u/akxx6W4DDqqhFXqy9MeAlgxxZY8wS4iaE5cQvMqHWFMfz7uLbQsjFigN3wFhIyFeN/rZzq s42Vqt0Othd5QRW2x+IDo6BtzHFuSpRrtE6YZ0xgj4nYvhmtw6I26Ys6OfZwWKXnCCWgNjeWB4CTCdQwUXDQGeodaGXI2jfwViU5GHPIXhSl2K9peYutwOCUw7nogpRO9xtJKBEAwJORdRh+wBjUIczYtCFG07FRbC+cVOvfEZ22E0hOBUAOc2H8Ee9UCyey2d92h9SF/P6IFeJ1UoJBQT1L8aFAGMa1olLUqobfzH+xhAI3cuab4e/a1V6Rk+hg9QNlFyi3zWMBDfS/jTy7P+BEMCUu+ibjTK9+OLAFx0s4EvZ662rYU+Azxd3GbgWVTAEbZrcEKBWOKVWoT3pgjYgEkmKpubwsob6OTL4oSrZpYNCLmMVHhulbqSJBD8G1lhQUhNGD8JjpmBFYbkyfxvgC8BFc7N2G3NZYAJDmcKXSOkwEtv0UHpk/Zf1iY4CyIjkA3OxQpA/Yn1tJDJG5I1dTe5GNEqkEkEhxOctRBS2Pbe/vLJP7ueUlV/MOyRZPF1KEDmaBRuXxuG3stgSPRHxeNZr0uNTkBsWjnH2B36ERmo59A563bx0YiE4nmifQSYa7vTfNSw9KzuaWs421synHNymTZu03xcEg4CoY0IEIp/suknDOheYWxXOM8BIIAKHumDXe167odojniglBj36L23Q7+vXr5+amtKUIC4N7xyOHRsrU2vTGmHX8ARuooabALOfayxqVmC8NkkVZdipLiP1hK5LAdfiraPDylRq7i6OJ1lOU0tPAQzppmCQ/tQtMKTQbOCP5UGfVlpZM7C3UCioEVLifjD4xp1KtB27NBTGdMDdyxjx1OxU6OqRWnb8pS7ORu+QsPxqCBHsiM2X6DrHelMCgzeLaWgi+q/bzBtUS4S5aq363/wPDQh2UobGP3zt7RSMdvwZ+EsshD61ASJ9Tv1AKBtXxv/WxT+sJekxheAh1DgjBdnJ+KT2Sl8jJBO7hLAJ0yd220asq4csiiqbdDRTNvLRDpBCiV9wEK0TNGGjrZHHRNXdNS11HbVnw4YNOtEFMiQappoh6ONWeAF3IyPe/JRDoGwYgRVB/yJabufOnYIDz5BYm0D6ry6iO7700ktUR2+vPWlY/WyAXVyiiAbD7YnZAYMvSCTtXq3CBTooDBuYR/yn+pOoD8LpqJLnHJOG368RahLxNyrL6MLOD3QH+lK4Rm3hWeQxfS8Y1LBHkVaD8qsxxnhTh0Orz25GcIMTUv9q5CiupjR0C7WcbYp+jAU32/iroajn1WMSwNvA32jqhQgCc7+P1FMTCAjm6jo2a+hfHf6uJemh97E11oyymol3S4AojXXz5s2aPDEKGK025fikukQaAGr/M1QgR89NRSfCWeT57AyrBgs78AEpjH4n7YcYDLi+6uwM0bl4C50botPnS6WcFJwnwBPNA1YI+9V90bMiAcpCSfq0MFV0jFCSbGBhJaZJBzJXITYrDaeW9AMbRioh/ViENbsE96S3qQHsx/WMmmz0iQ5TO+lqG53tDdPvTobWj8T/mQIJfdlxKVUJDbYppp0eYphjeUDVdRHPutiOAVNuxAFO/rZ2b7jn4BSWWMDLaj5BBW385bWaxXh1MLfRG2381avXjw+X5Lc2/lKWW8draI3EXxt5Hfxr/xsHqE/q7OLD+GD9t8PftSc9dtyocppLGHkNwZo8mID1X40nQY8Lm9vjj9MJzGXOczVjkIOiwAsA12RpIK/VHIdbSrSDw/wHKpkOYuvWrRs3bty0adMTWfQvZ2dEwwiLBDci6IolgRYCypr5C5lZyhPDtcGZJOi/+tTor3LILU8HhYXJK+wzrFtUjQ3tGwaMOnMbYfDVxV1qWt37cM6AYINPD6jZGLUxCPBnCpWSWav4nduZY8ghdwCZ7TMRIlOrgrV1ZAxHfkE+hpdLPzQcdAavOhhb+AUXIsFbjDRyTNQJaP2MPf3XVVYjZ9vE8VcgqJel9/jwosnHlK3Tg4zEXyQmv7n+pocc6cu6lNYqfH0d/q5J6aVgItRE8mYf0UQVzAnsNI0pcoOOpmkmtCXPDXpZgNI73Khk2eCgY4hdg3UMC0DbU8TBKYMCSquQF/2I+FBdQRA8MzODt9C+QR6BIC0cSoYe64yaG26Yfnesu/eADZ8J0EwOkrnZML+Qe+Kwh+hkM1mED3O1SpjdBb74/VGrXQJVfQXieOcOxun6ROwRsEEZPb81kFe9ikIKK1tdDNyOxoO5jZdlN1o0HKXihHTycSp8FA4Rwe6E9xX1Fsu7ty92ftbF+OvXqoaRVUyyD48M/0MDf/F54qqdVPxDG3+FhhobGo0aRSPx1yFoWmP0XI55Hwm+rj9vCkpz7mgTQJRFtP92+Lv2pIcRABUVJQ4ll4BfDT7NbY024QI7fVRjwYddVYNCwh3nW3v37dqawIFQwLyLqWQG18GECoOMbiFY0YB2GSQB8SCXUhb6q2F4afivGkkKA06bkX4be8wose5NnzPumRgkPmimofbqOoQkp8DZaNLhFBxNbLHBWUfdYcgmVwXTJ1Zm4w6PkDI3o/Oe+6HwMMZ0lGL7wfqFGlx/4thk7Yl8nsYv8vogAv1fRTBQRFt8XA7NPuOoahMlOyyB4wlxIUzCcYSufkT2IMuPFFu9NQYY+Bv7Ad8D+WMANBGEBwj+quX4x9TzKKcj8XeQi5IwltoVhjA7uAon9Jtsg6z/6r9kXuiOHf6uYelFJwmwiIYr8AVtpfZqhhCOar2YKOBI6VIVqUN5RydBsAsmHhaKHM1Se8NSgRvYtmJcLdkQg1wJ9OlShmN6elr6LyG3lONkbVBTXcfMwFEPu5iqUmhDbdC5zBApuVh4yXlF4yPTgXhe0uQk2Fgp7usdvTVrcCqVcgnO3K1LCNcgF1WCRkBTTl9IvlBvDzK3J66qaBlIxSyLPQFeCx1MJnE/Mz/ok7A22w1I/OMRKPhkXuYUTLHozvhFG9t870K8uPI7rlocfY6CiD2MV9PkagQPVDnAhgbAxGT7L8HOvF8EjxNYzB5oUvjr2VGXgiDYo/REet3ovzYRaM3gU+di/B0Z/wv+wjpvCI4qsD537dqlX6TlsB3BY6nbdfEPa0x6uMuIOsIFZ+Q17QAsBN4wPlXKcVod45PoBYe7mnaLiW0DKPBH3Q3MlEzXmBwMBRf6He44khGcIqXrr1+/Xkei+Zo2yMlaziCIdlguSCiYLqsxrZlPoDsKJisEKc5cB+VLX8y5jtkENFTXEXWAVsi8tYoNOut2WCEezmUdiCMmzgzvn6YZNg3ieX2FBhagsxPmjDpJg+l/ej6ufwZiOx4j4TJW7LrQYKLYOqrB5uyRtuy6EITi6CMBmpfrmBMX3TCBvX7BoQSvJviL7xEvnJP9wF+qT+kdTQp/07AKjLYhWBSGqnl6rajAeiJsEfruNV7P6Hiytv3BZt82/hIgQf6xgB4SZF1Qn5SF7vjP1pL02Icy5dg4k5jk8gRP5wq1MLR6hkhx0/oPXEYKMdz67WQKT2BzO8zMzGAnBbnwLxlzzaZIbc2v5Fr0WHvVKt0dUOYsNu/MYTbjRpZUyl6kYt8kME4XFMhiQnHWhk0ljQoRwBkpZzaq8C8UTLYCehzUvSpEO2Cu1SMQ5Ev1ICm/jnVVb6OMeztfjeI4r4tnkq0DGSjzuRgHEMwyZpyKK5AFECR6zDsS2syJIHWsSGJjbgrWiehZBbt5lQQjx9fNNoirQZhJ5K/xF+Pvd4IYfxmEwrXJ4q+fhcEmrBREsl+xCQIUZiOCQkDw+Dj+9cj8a/sDLjgbwYTFFEhWF+niDGN1Tlf/Yi1Jz+kP+NY1jW2eMwSDGnGHqLmhMYdB02m+3vL3A7Gk1TFCEdCYdCKV09AxvcWLgjkC353mMLl5WHuFxY8//ji8DbqOtCoXEJOaoLsMAjk66woeMwdCoJBi+EY3B85oNg8VsxjITYhWBUzAHEzNSmjm8ZIZiQhOEKDszEKQr8FXLUeVjvFqI/E3Ffhj/cAyk3JICVowuw2o1FDMwXTb96M1o1/IQm0dwrptndcxKjGZOxIBuzE2ZXBfjAzuOt4sKIwlBG5Jb7Aop+REDIQScAxC1qcJ4q87Hz1ADRZ6SjevciFkTBB6KHxuEscsLhTOv3EQjBWCydXwvxEarF8wjuk7Zg11XWd/WEvSa8SEMtbNugsEQ+CrT34n31c7rKgkphDD5PFqb4/ji1G+mKumVjFYN1Rm67A6UnCGnYFNq7BYk3njxo1btmyhHAYALdH12c5zd5MzkN4GGJFWa2W2Xwow0xu0LaqQ8Auzm45Yw6NpJSCDA7TC74cejXquZYM+pP0UGYnkBu5/XF4jM24B00GhDKaAENAGU1IsWKe28adDKYjDNbjbslmVMhysTI4aroKlOFJkYCDql7ztOjjo6BlWZfx+XIHViP2Na6dizhL0kNQTIVivEvsveSiTzT+OnmT1A7k5+tRDuQQyWjCGiIVS4RiQJX6mgbwRgoHdmBSH/UHq80KphYHRWUNI/fbDH/5w0qDRyYpJz0FjDDKsB2goKClkPTgkwKkQbPYNHB6j2HZRcq2UWQUDOxzP1B8mEHAglMEIXMMijM74nVynjgI8gontWZzMKqSTRoxFG/OCKXjYgKO0pmJjdcut0KHqYsRIZWnRj9u2bdONXPDYlDro1GYfxg6LcRa3IShDioE3FloAovuuGraxttW9xo9VNrA6EJgcRROw8XQY4o2q6MuG3XhZ/xKtuvThV0up5qrUwgD6yX6OpKO+OMegVusARx+SJ8KKbvyNmW/gL4RExl94NvYLuC5D6lCuu8qBgI4Hx1JHIjIiPUAjFl8ulgdXdWvgb+NHx0hwIjrvQsldxo9nw3Gn/64l6cWJzTjT7LKS4mgHvEYmaSUWgvJcDnVwcV+bFCMuo1cyq9H7iJfC3d8Y9PGslH3uhI6i/IL+qMBzc3NS/VwRTv/ShIfXJl4BGemUowG0AexAW3e4KyVHp6enUWnRcK04p5JXQmCsfmejLYQFTShggTVTn6RQe5/uhOn47COBoPELS52enSeiXnWUKjM418VKGz2cjv+NveH+cXivznI4c/TapaLVgtSEiHDNGGIBVzIH6LtaKDB9ulQz8aB6uiWwDpl3dIL2B8Rdqhen0SWVHBY0G3+deayxFGnMRvLvLELKE//V+A4cSynu8HctSa8x1KqcBffoo49GlcRT5TulSBfKCyZg5xrELWdj4JI7q4PBHdCBaTkoxRoaWJCK6wylEsZCVGDTUep0KaT6F3FdT5dyyLinnKPVCOeK88q2aawTDmsVBDyVizDBlqln1I1wBDkfDO3PS4uAps5ecv0O+BLZin0TqiBNXVRmnh3o3ztwQSGVVo7KqS9xzeMY6CMwSUO+jokA/xuri6uRphLwGw24eAVQ6hvEntyOqAwOYPWNMcWYhtkGqX+grPMqjumzjb9PPPFExN8J+t8awsKph9Kr1J8ov8ZfaHdQkMeZffdFdNkf/OAHHf6uJWnib52TRPG0RiIIihSwVYwVGdiG18GYiI0S4IN1wT53NuZ14Wi3tyoaJVOIFYsBqg888EDK5eCc88YslVq6adMmacHSrfhdiweJIamYMizeS9ofSPAGQXh6ajaMJDoLGjSj+NTdiQeAgVet0h2Jq2V7jsFBh6nNmoqN3DYQRw0jRM/kCfPD3G97KuQi9zOZupeHOoRMqT2CYCieWeq8sQAZeSjWHtclitb8+VKFiIWQKL1oUm9k65mp0kpxXYKRdVM6lnFF2jHVlRqiV6x+5khI4Pall1ZQCJ3U45CCQXJExF/1ksmboura4W8nI6WJv4S7E1dr/OXTgVNowRjyUt59R1cVuGneboSwXCcB90vROcysg1LBvgqFk2P2MPYHfdpvjnlEZ01NTUHXwtTFegjuG4lSMa1ETl4aRsit8AUqL8GBRrnmPyFBjz32mGaacBOcJaiA1QXVlevgcMOuDUmglCBdAUpfrCUPPfQQaiDtqXLsmn6pS2DZXmABqjRxF1oP8GdGa76eVBCMdk+EgwkieFnu80gWAW5iTYZfiSAKd2Y1XEnPoWw2tTsiwpFnaoYuZQrpp0vZTaJBGsKeg3UrunknLqxARKHpGeEni/ir/iRAOJogOvztZJw08TdlqNJUhO0BLxxf/iOLndSYgFN2/jiljZmGRslstzKF46tfKldiS3UmKzu7GHkaicDBax3gHDxXhCM9jzIKtk3rLOeGABNRZSMwqx5mRwOYoOORzkVSli4OCoPOmEGc0cu5LDMUENHxLFR42+goCprpXKmirDdVYUYmhmGvwYXgZXgpUcZtTbYrTA3Gjenq1HgX65wWbJtPXcginETjhdPW/LY9HSjHQMHxzu9gi8MFMf664BD4ywoXnW8W/JO8a/ZYBwj+shTVOQujzhRlDf1Xx+i5YuZbh7+dLCIj8HeQS63AxW5tBRPEc7lOuBPhhFCaJw9kialrzG0SoupSlBc4IDKM6a2ztGuenp6W7oY/HSwelGqPKZRO0J+aw4JCh+4T10WsO7EZdsGp8WhkDm6lckRk5/JiYM8+5mmWB55UE0zgrqsR4TvI5ZTQKJ0hQryHfoGJTRMPb5tDNaDUYZcAolUli+GruZoyRpjoOosTPvrTjJUI2XrmfJCkYf1Xd8RA7BAur5SNYhbuEH3XO0W7tw4b49JiZLdt96nEotm0Qs+bWo/iPd482fjrARZFv6gNpGlQAm6CIRBRMKSo0zTeNDbgx4lcwDpG/zL+LsJ/1uFvJ//fOP1XeKEZaC5Ks6WgaRqR9V2AiOnQEzLOxn4h3jUJpJNcPZMB7hgCnIarYKDAakrPzMwIy8wboPmJbYRSwQQbuH6oUDJmtQFGkdmLhkW2GlBDM0o6FxgqFJA6k7KO7zgN8IXKQ8AZfcX6xIm0RIhDZII9SJhcqanOskS4hQNp61D03lgcQ6D8HaQjmESaNY5QzCl+EXUuk8Hd/WrqEtLLs0e+0IYX1PZi3qCz5siBdt/GkeMbYYIAuykYGrdT2Mcx/o7EX6GbOT3MIj1xqQrFEqUIsf+ShQEQayRoNFrz7fC3k8VlRPwDW2NC5b8Tyr6hs7DNj2yQdY40ggHL9l/SYW1P8J60Ho4GS9mnzHa4KplXdtmBdAhxqTrGhJOuFgqBuuDP0RFPF95uewUR4NJMCDFsgwN0X5QaLC0wvZJYYSskwMcunvi5p3JFOKcSYBsR+KZCDqlP7wOIjYVMIFYSwoyTihPSySx1iM+1RYXVQrhGFrXw12q+r1AV2jacYCmUa/M+AKuOqY76IRfR1oaGuA+9bjmJ2W8W2zQeKpZYffJeEOiH6K5x+EsJeq2FBxr+6qVrcaXIRaT9BX/1UA4X6/C3k8VlBP6a0RW+D/u7hHok0YK/NgIInmC6wgjYmJbYAfFZpWFabn4nPonToYkBSmCTcMCpw6eoEoR7EOaHp3OsgoRfaCpLiHW3Nl6Ya8IAB01ilasbCE91NXTkRx99FEeWAwwIPBBuCqxtGcf6QV+xa4avkoQFYj+wq8AeaSjUYYQMq1UxRKEfympgCjDxGKYek2YYwbmjVelUWNMiqkbluir5wa52QcJ0TOC2RL04lWQN72wcmkbH8u5YbFh+tFSTOKMuij3Wxl+J8JcSGHrdXpkmLnXx4qKYp1Ic3uU49X41NdB8yR7u8LeTRWS0/lvlVB+t59H+i89a0waMMzuEpgrzn9AC1MlGyG0ElFQmMNEImre47KAPh6uhH5LTjEcoa4I8sxc+VZh/odONBmsYc4wLmEpRylLh94nmVGwdOp6EOijMaRiQpNPn5uYAF4iKCPLF5sBCBaBoKgJnMQGX0DR3AmZfp36gVBqg+dFpwTavk1JYleLQkBPqLmow/Q/SRfwFnfuBi8PvpS6EcDbdqpf0jI4abtgWjN00rw6RG1VgB2Zl0tUEneoTqrVSP5BhQ6exkPMq2/irsYcHWJ/0zH6E1WULPQZHq9Rz/WnjL7nI6hA1fqEkrbXJfzv87STKCPtvypop6arRYYLa+3wuVetU4KdzWKu5gNt6bj9w8QA0bJ+dAgAy4ueZL+y3g8DpbnwkiSPlKGAvCXbE4czBNCHRpSjMgdLqCsSeSPNFYkoCdhKtBIIhtxbvU8rk6Kw0OosCkUSw2tuG4whrNTbuuiSw8tSmldBNUXjN6cNZaM3EM9jEYcREka9LnHW/cPHMzs4SiG21OhpwhafzoYym31GD9Id11yEiONBoQB1oEPylYRtxx2JVT7l8r0QdomOc0YPtXtgk/LVroW1/0Ik6RdsIQZvJ4Q4EqXKCEtuvfk6BA38h/8UYtZDLpnT428mS0mvopOxGDTTfDQIKv/DCC6TSGnHwMsUsDA9Wz20zn4FxjmqyMkWuqm6NxdAqHpG/wAHan6a3cdb+HKK+oPHmx0GukYF91m43vrM7RqNkd2xPHYiMywinYsoqpBCZ9GIw8bHHHiMhBYfkd3JVDrQ2AAsDKJnKdoVhaSEmj5AAtcHIiBuNLbw7J+qqdAUrQfS/UcwJExCerlRMvSw5kc4ivpooqXDokARoO+/MzIzAHcY4XI7VcIE4GjlfypeAziSJQaPDKWTHsDRqxaLf7FqwXUKvT0DGC9Id2WeQM7lK+LqU1NlezyJRZS55TMDgL2EbwK4GZINYZ5myUHx3zqMjqxO3RIe/a0l69ko5/J6wIfQ152456ouwTSGd4w30X+DDM9nZZfipXBQdm6xZAsztUpdqbI4FZiuNFunULNqpf1EzwrHAfPGsRk+HnQdUNfUlUAWO67vJy837AzpjOtCun4eiqVhIMECTY2r3PUkWKQfkfrVUEWWjCrjz1KxDkNqgXMMWRm/AIOxIiTY+4pn08XW2IzuoGSUX/X0wXPwpUrMvKXQ4J85nfmEMOHr2qakp6IdsmqiDOdj7GxAZ8zQvPWXiRL8pnKXAruO4QWfcuaQvshYus9mrI2zC1OHkYeoXmCdRgfVF+AvzOjRm0Oj8nz2UhUxcafp2fT744IODXItIXbR79+5Jg0YnKya9aCQFKQwBmnta0r09BH/xXKO8uPaEBh8JF4TcxtQ1fETzpQRZw7/EsMZ8QRxxJBlA57LXvi5Jyez97U/ni5YEAJGwDU0DGMJs6CD2lgeU4NWJehwTXrcQlrFg8BSpxDzoGEE/VBhm8MJHzwEAUz1ctMZhYTaS2qHkADieC4r3kaATlS/zW6JQs1DNzc2hLRKqXBfIrrNBwPU6F5eUjfL/XAoqVzlJj7QOVsTNmzdv2bJFKExas9dFb6GidYIFSQcIPhg8MDizflsdjnVV9B26O69AfvADQViqsf8+lelBAF9HQeA2RG+FtGzv9F+dBe0vFCLqYQwy6qhJI0YnKym9/x9QSwMEFAAAAAgAAAAAAG1hgUVTaQEAmqYGABgAAAB3b3JkL21lZGlhL2ltYWdlMDAwMi5ibXDsvQd4Hdd1rq1cx4kTO3587ZvEiWMnvrk3TlGuYzvO7ziOi5TEtlxlqndbnRIlsYmSqM5ewQqSAkAQAEEUEiwACaKQ6J3onSAAorAAJNFxepl/zbyYpSFAUlRx7PjJfsDDOXNm9uzZs+dba3+r7Jt+9Nae37nBLP8k//5a/rl/64YbPi//fuuGT1v7H5HfSz5+g/XPLsZ/l/8u/13+u/x3+Q0tFsaHw+EPpLJQKBR2lPdT1cxK2OYSzgPeVdETp1VrvPtOkONDVpnWPN0z8xLXruqKR/LTFVvO5a5xiWuc+J7v+h3L9fTttYeHtvl62vkeenvawTponW2bOWz+84s+PmfDjCsNiWs3/p2Hn2EE5C8c9oVCQcNw+wOBsOEPhaf/BQ3zz9wIT23YOwPBt198aVswGPyl9cr03gg5ygf+sJxd/V+33HCDPBCfzxcIBPx+v+/dFK/X67GK2+12uVyTk5MTExOy7bWK7pdP2b5iDf7Li+6UTzlLKqQ2vZbUPzIyMjo6Ojg42Nvbe+7cuQvvtQwMDJw9e1aqkhZK/cPDw/39/YNWkY2+vj4+5So9PT2nT5/u6uo6deqUfMoe+Ukuff78eRogreKWpSelzVLnxYsXz1hFriIHyNdLly4NWYWryx4+KdISqU1uVu49MKPQA1LkQnKYVKWdQ/fKFeVa2mbZpnncjlQubZZPubr0ntQj7XRbRb7K3XV2dnbbpctR5K6lttNW6bGK1D9gFe7uvFW4qFxRriWfchg3TpPkuvS2niJfZSc/0UKOpME0nqo4jHO5uhwjX+Un2SO/yobeL8+FGtimWjlR7oW740bkkwOofGxsTDpW+lM6X8aYbDhHNR0lj0A+x8fH5WD2O8vkB12kTmkSDePqvBTSKtmQ/dIS2c+j5P3lBZGxQT9PG+3SLTrYpM5pGCwINu7xDk+6RlxueR+GJibl67jX+vPYf+5r/U26PS6rWwQOpYXhGYL3l1SQJ04RB5K8f1SeJi5mqhL/hcoNN8gAYVhdZ9FhKANNQELQUUYWoCXb+sbIp4CK7JedciSvy7Sq3JcXFQiyIfVQG9eST4Y2n/KmNjY2Cjj1Xl76Li+9Vyq83PLet7a2CmZI5YKjsr+mpqa9vf3kyZO1tbV1dXVst1qlpaVFLtdglaamJnY2NzfLTgF+uX0aCRJIn0ht8pMcIDVQjxwGlOqG3IIcxh65ohwMAHtmFMUYeVPb2trkDZZRzOUAfkE7uZxUIs3jui1WkY02q8jOjo4OOV0uIcdLneNW4UQ5Sw7mjmRb+qG6ulp6QO6U0+UW5ID6+no5AJjkEtyI7Jez5C7kduQqcqL8JMfINn2FoJBtOVJOkf6XDpFT5CcemWzIV6lKfpJz5XIAs1xaapMN2UMXybb8JKfLYfKrbEj7ZUOuLpXLTukc2SlnSZ1yllxUTuQJ8rzkQlQlRe5UDkb2Ss/okNbxJsITnUL2y1Put4psKHZe/OUUuYQ8LISetE0awNuhg1+6Ue5U2iaPUkYvGC9tpgOlXPFFkB6WT6lk+rTKMDLz8pet37h2y/ZVm7eu3rxt9ZZtqzZHyt9q62/V5m2rNu5Ybf2tsv50Y2p/xKbVa9cePHhQGiMVmrh7OcyErb+rlct/DV/2nzHjB/2KHh8OSaf09ol4vyCC0BQv712ZDztbIvrW8MiIPALp/JlNuPYd/VqVG26Qx+JUWd6xADyANO/EqFWGrYKGIQWdW4oCPHB1jTIN4xnRiAvdQ7UyWmUgyydDWEY9+hyl/+qFw+RTzpX3W14jwUsZkggNgQoBDEELAQnBAAEJ2SMIITu5Fppup1XkeIEQ2Sn3jhYF4soLKscAQnKuHAPugqCcJUVqZnogRXZKY0BfuUd5rUW/RGeVLpWv9Kpsg5Gobij9nCLtF2xgCgHyyZFSv1xFriuoJhughVxFzkVTFJSSXwWM6TcBALllBIK0nP3aY+A9fShnyS0gpuRO5b5AHekf7kUOkz3IB06RCuUn5gZyy3QCkzFkiGxLDR1WYdrAs5D9cpZsyOk8aDkACSNFLo0IldpkQ2qQbTkS3R1Ql8P4SoPZlp1Sp1x61C4MPDCemRKjGt1d9jN5YOeQowy/7yKVq6iRcskuXB01hObJTrl9xJp0hTxEGQa8IHKw/CQ3xYObOfhBeql/GgaIinq0rGJrUsre/OKU/JI9x4sTc0vkb8+x4j3HipKOFSYdK7K2r/q3L784KeNw2qFDIm4EKAXnJ0TDnvCGvSHpyFDI6w0HRkJBVygY8vlCPn8wJL+EQv5A2Bf0jU1MhsMXAmFXMBAOjhjhYYHXCX94yBscc/lkGhsKesOhQMAfdMk82e8L+AIeqc4f9Pu8gcCEywhklVeu3bRj+YqVBzNSwoZbrh/0hwJeaYso9IFQWN4WI+wX7A8a0rSgnGm+OEERR2ERR2GZHLlcnnDI7wm4hgKBSak8IGeFRid9O5P3rVm+acfazV0tJ0LeQcNwGWGvKQnCZqcFza6zsP7XG/DfB8aj68jIklHPhhSAym1NbHl1wOkrKu5Xw3hqBuORJGjwXEuQSQa4DGTm42AAbzAvsaovZ65U5CydvwsiyuV4OaQSGf7yEtdaRb4K/MgnOCHHaw3wDO1WQZ1y2xNqaafUKQcL3kAOyLZULl/BWlRMIF9gSWpmv7y1KIho9qCjnMidwhEx95CvEE3QJsy+ZUNuRF4b+ZTDpE5pGLyTgBmySOf4zAqgvNDOpXlIJOSbXAIRBxkCSMtXMB5lkTqlyLa0X36lhbIfjKETUMoBbDCezm+0CpAvp6D601qeBVeU/uEUjodpUakCTp+0ivwqx8tZzMR4vnIv9DATD8Q1HSsFaYa+Lp8whMrGoMTzFYzX3mb6Og3p 0+RqlDfqZMZAvt5BZi5yaWlk5FpUmQM8BPEnZwuNyi3LDc+DeP1jZAOlGqnYYDA1eGS8i17D+w+Xrwrtzg6uyQ6pzw6uzwmp2xnTumunBLZudP+i3Vs6PauY0U7MzJT09ODAb9hsfvDIWP3ii1HNkS1NNQV52d2nO0pPNlW39N1qrmlubzq3LnzRdVVxw+klyTuzYxP7Bi8lFZxavOuxLQ9Gw3/6XBooueiKzmr6rZ7H31p0YKMvfGnmhtWvLpyW0JCasah830Dcol1ETseuPvu1qZSlxGqPzP42vIt993/4Jx5D5+71C7Xr6lqXL1s8/33PdB/rkvuL2P/sZwDR42AW6D+0sDZpYtfevj++4sLi0xhZBivvbb86dlzj6Ul+X1jrUMTew+fiIuNa2yo8RrGnvTce376yJ03/fDQrojxgRrDGLFg3pwnmCYLE+ZDv3EYr7r4hFV4D1SVdxI1qnZLzU7a4XrqZ3rAGyaAJJ9so/GIgouGfdYqaFdALwXsl53O0a0/SYEHkCJDHnIXokDeEoEQSBu5HXl75FN+Qo/ncogIOQsAkw1plXMGIpUI9shPTI11mgyCApNSAyq+kgaQFXIiUKQMDwIBcBJMkhogQMBgJjOomHCugkMwS8AkoCjHy0UBM33QcpY0XrkdmCgIH2kGF0X5m4nxKOX8BFhKU3kETGBQ1uUUCBn4GRR36UNpM+2HRqAN/ISSikxDj8cyoHq/FGZECEAuTRsQuXKh6upqzqK7aAZcDXuQUQKHcq7OPyHK6B/5ilaNeoI8lIJizWhniH5QSK9GG9mQC4H3zLt4KaQlKCPMJOWTCSS2GjlGJIPcl9yU/NpzeVFBfUWMN7ma4optKQdTRH3PLtl1tHRXVoX8xWeV784qS8wq3Z1dknDNv/jc4piMrJT0jKDfVI79YWPIb7x6/zObnnj++OHDCdGbT545vb+87HhtTWVR2ZGU/V3dPckHD+2OfCtt9ab1i16paO7YmHo88dDRVW884x9tD/jGUzOL5iyO2BaTtGHt6s1rlhVmZb/+3CtRcQmbtm/rPtl7MLNs6eodb0VGtjaWnJkczCqtXbt+Z0xM7JNzHuwbbHV5x/YkpK1ZsXXTxs0HD6XKDb60cMn82fO87nHZLjyW/cLcZ3fu2J4QGzcxNiFdtX791u1bo2PXrz3T01XS1hMRnbnouYUnykuGg8amHXErX9v4k3/9j6StS891FYroMgyfEQqHQzMw/teYr3/3ejwHo1g7BzuILkV/UoB3WmGvB+MBdchjMJ63UPbIQObdlbccTRq1T02kWEmvSM9zAMqivO7yNgikKZHiZFekWpEkvFUoiyArlwOE5ETZg8FBLaCywasmNQNL1A+igOVSoUCLbEg9EBoQEVIzBIu2nw1eU9kvv9I84A2mQqqVO9JZARw22i2oLEX2Sz08KZ1QYWaWE2GNkCdgpxwMh62mVsV40II6+QkuXPbQZmQUkytwXfoKqkcOg/Ki/+UwxKD8xLU4DB6GK0Lhy2HcKYKLY4B2qR/VfxpXQwPoEHpPmTE5gGmVHCY1IxtljDkZSLQJ6TG0ahkMGI8hVX4ZGA85IxvSHhHUss0cGMMLbxa8FjciPe+2J9VYixHvSMWZdqprY3x2UWVU0qG9OaVJWaWJmWWJRyt3H63Yk1WedLQ8OassOat0zzX/EnNKYtKzUw4dCfpM1AuFjRGv8ci3bntz1iO5+w7FbdlYf7I9pbjkSFllfm5hauyetrZTCan7N7y2InrhG4sfejK3uOqNrSlFVY2vLXzMcPdKi/Znlzy5aHnqgcyN69asX7k8PSkt4vkVGYcyV61ZV1VS97df/o9Xlm09npff2lxxdnTg1TfXZaTluyY9myJXnT7XdOZcz5uvrVr+ZkR2dlZhcc7I2KXEXfvmzp57sqUh6BrbvmFt/YlKmTFv2xzZ1toRu3P3ypXrj+XkZe4/2HWqO7+2682tGY/e9VD2oUP1Zy8tXx4RnAy9NveFnOTtZztLDWPMMLxhC+OD1nTF+v83CeNVF4dL4SVQ9RqcQ7lnz7tV4hUmpxH5OmtG9YTKoGDJ0zce7U0Vl5kzViV9dQoPOgI5ys/ItlSIUwqoiUzAEgmtLoAtx9AJvIgYDbCMQkvD0sh7CaLI54kTJ7i0nC5VCcbASOjVnZNrWqsEEUSEnNtnO/xIDVKhNENqg2ZBmNAhiCzeezlF3UJ4LoIi6MTMYYBkMB4clXOviPFOFgVORg2owD8cvHyFJpcDpBsRazq7YGZCDTAtNAP8hm3Q9mDfAO8hrBBNUuRayEzZKRtMEpQsEkkrlUybxQH/GM5xxZGuQF2mZzBrALpyAHJJDgN0eeIfILorwOO+gClGNnA4QEVC8iCjePRyMK8Vlhl5rHLvTOEY/1csV8P4rCmML0vKKtudWb77aNXuo5WJRyuSjlYkC8wfFW3+Wn+7c0qjD+WkHDwa9JmoFwoZY17jyZvuWnrb4wUHjmxe8kZ1S8ve0oqsqtrivLK0hH0trd3xqQc2vb5m9+LVyx6bV1BSsy7mUHl1yyvzHhvvb/F53APj/tqT59MPH1v2+usRa9ceP5QbuWBlXkbuhg0bqyvq//6rtzz45Mvr127Yu/utps7GDWt3ZO3NHx8ZX7NhSXt3zcDAmblzXnjkwTmrV62ZM/exsorimsrmwtyihKhtbfU1u97aXlqQP3jufFxsbOeprrhdCXOemb/0zRW/mHV3/uHjhTW9C9ftm/vAk6VZWdXnhlYtixg5N7lozoLDCZv7O8un+HiL2feLKm+A9RbA/6ZhvBPInRiv7o0zMf56AB7poa8Rrx3KNJoTVDfqL8wG8CAFDABH5b3nVdDXWmESnkR9D9iAjYaQUdMj9WCDREdEpABC0BoCFVBSbsuRDeCUS3Ciyhk4VNgPJglw5BAU0OeK8YruOg9RDQwYxlNFbwT7IhMSJJ4UwTyVabiXSM0QujjVyDadyfwBXIT8kUuAwcD2NK5GiRfFeEwWHCxfuXdOYaaB0MA3BlcoqZ9WYVThIUo9Am8wY3QF7D7GRTkF1x3ZZg7TZ9lblJfrs7wv0bmlHkEy5nsc6RT1UhU2e4zugKsMM1xTGMAQJlItDw4mSr1u1fvFCdLTABtCXX9CIDgPcxYl4+VT289jAuPd1uSWjkXqeu2CAV5ajsRmeLwrjA+ZXE3V9pT0lNyy3VllcZnlsZkVsUcr47Iq4o9W7DYZm/K4a/7F55YJxielHQlYGB8MGuMB4+l/v+/VH/0iP+3w/J//Inn/gdXxSfvzSo5mHFvz5trS8rrYlIPrX1kZu2jZkkfmZhzJf3HFjiNHC+Y+en95zkERuuUNvYn7Cxob2w6kJkftiEqKTn39FwvSdqeuWr6yrqr5gcdfeTMiLj+/uL487/ylM7GRiTvX7a4qr3lm3mNnL3ZcvHR+y4aodSsjD2dkrN+0PCvncEVJbc/JniWvvlyYl5uyOyFy06aSwqKNERFn+s9kHc3esSN6/76Dm5evrS2ur2waWLg+7Zm7Hy5MP3Ry0rPyzZVZBwrvmXXPnsjl3W2ix08aIb85UQmYQQJB0/pq6fH/hTHe6eSoZIvC8JDtBjBkzV6dPo/qjTDTDfAdMV61dnW35BWR/VDdzOUZ6XhOY92EQADplVdRp3agBZ4Y3wOpFqoELzypFs5HyWMIHOhbiBTmCVwLDRVWivkyTYV6hx6GVsdNhckAwKbuh7SKq6DIAmM4tYOaWBtUM8YjEpFFhaAsUIT8gU3i3mGjBbEAMKZJ8imdKYfhJomsUNCVynE2RIXlWmC88jNgPJDDFWUbUzSg3me5TCJwwHupUA7Grx2/pj7LQ51f5XR5yrjFA70o5bgMDdl+uDIk4EwARXAR9JVhCcZLkf0w/dAaSnypxZ1nysH4x2FzlXGu0QvKWWlh4qfjiidFm3HrB8X1peB1kJ28KWpJdUoDlQmyn8AA2VYVyW1Pm6VJkFHSJ9JpAu28cTLwkE5YymnVtKIqAxOAaRggMJVeVL4l5WBCTnHUkcL449XRWRUx2ZU7sytisyt2ZZfvyimLveZf3LGyuCN5yQcyg6Lehgx/wBj1G49++86ldzzZVdu8LzZm61tRS7fvzC6vSdiZ/PA9j2Rk5Zc1nSzNKjq6IXb54wuiY5LvfXRh2v4j++LeSorZ1n6yp+PMeF5p847Ibam7d53u6d+9M+3xm+8oOXIsLzdv6Pzw6fOetxIztmzacuZ0izS/p/1s5p5jUdti4xOjxlznDCNwoqIhMS5t/fp19c0V1bXlZ/sGg95QxsEDJ1tbero7o3Zsj9yypby0NBQMedzeuF3xIkYKjmT7xr0lDb2LNuzfsXTt2Y7WAcMoPl68Y+OuFW+uqinNHLl4Khx2W6p7OBwKB0IhC9sDv4kYjz1VlXUl452eNjAt7wHjnR6Xivq8FhA1UB+EsaiKyasGaQAEgrIoteyUEwFpNEipgZqxjypprTCgvt0QDogOwFjJb/mJW4arATiRG04RgScmZ4GjqFxXw3ignZdS+XgahtIvNcDqQAFBb6Nk01rkEpeAm4dyBnWYJglm6KQIOQluIU/gQxBH7EHKMdPgYPXfQIqCczwaVGqMJ7IftVgNw9JdBOaosqAACeKqjzgoLgdzawCYNAmiCbqGKZbsl8NkqiBSSw4QFMQ4gKTlXJwueY5MtNDLh2z/eAYe6CvXlcYglOQY0Jd7hz6CIIJ0wreHalEEkHgapud0h1SMV8fJEcsPG3cpOQUyftKOxsJZCxKS6auGUmiEoLwpEGjMdvovL9fGeIGnI6WVW1IPJueVRx8p2JldGpNdEZ1dvlPwO7tkV05xbE7Jztxr/mUVxhzMTjmYGXAHTIwPGiNB44Fv3Pr8Tx40LxDwesPhi4HQeMjobO/85v/3zYcefzrtWEHs1pi4V1c9f88jeQUVqzbs7O7sNQzRkn1uvzEZNLwCnT6XEXRJ84qL6pc+8WJJbn7MWzv6O/snA+YBItqMkMgSmcmEDK8xOeYJhbxBYyIQ8gR9RtBrxkOFwp5AyGV5TBr4vhCfpZGA8mkFbYWNgKmYlzb1Llqb+MKjj9cVZQ9Z/vJBrxEOmFFiRngyHPbTXxYlHzamSHnbkfLXtbxLjFefeGdRdxoNG9EQvXeF8ToNUOZHDWBYv+AQ0AvVnqSeA0z5McHy/gG0Gt1DBBP+dHIKwVxM26XU1NRocKegEQoc8wRsqPgtcjC/ysG0mdZicEWYAHXo64I6zCtAet5CKuG1c2J8n20YRmN26qDqkQJ10Gv7piOg8ErH+oj/tE4h5Cy4ZLATPRUFGtQklhSU4qK4o/ZboaUEkhI7O2QZBUFiAMwZKaHaNl60CD0wm6Eix1Mn2i1+StAgKiGR4Wjwskcql+3CwsKysrITJ07IZ1VVlTRbnldpaalsl5eXl5SUyDFSSYlVpGdwkSK8C6nOc1dIBuDpDWm8PD5UZy2yRzqNEAXVpxE48sTBBoSYThWQqBRkLMNV8X7QLlwakYJeo7G/vD40SefG0mM8X2QyHI7bCozmMGmbkvGMjZnlGhifXVoWuSc5Lb8k5XjprsyC+OwS+RO1PjGnaE9Oofwl5BYm5BSZf7lFb2/Y28kF5TsPHd176HBQ4D0Y9obCFwJGVtLh4v3ZPr9ftGVXwDMaCEwGQ5PD4ym7k9OOHK3uPl1ZUtmWX1GZlX+q90xtS5cIWkOwOuyf9BnjQcNtup+75M8TCvafH605ViGi/ER1xfjwmC9oeHyGhasTk8a4x3S3N/we0/s+FJ4MhX0moeIz4TxsiIhwC3iHTH8fET5m0gXNeiAPMRQKhtHBA36fP9B6cfxYTUdhVuaZnuYJaU0wFPQIzsshE2FTXEj9lpu9lXiEFBC/iRivMKyFSaWq4OoT/24xXqNOUKrQjDXgVd4JuAj5RKFhOOtsFN0dxpcjNXYJIysOJ4ITBL8Qco8bBs53cgrvK3QEznqAn7qOwNXgyyFvLb77HjsAiqgilDlAmkujRyIfkFHXj/FqUhAAgMmG2WCOAZzjqslkRlqLJo2zp+Y1QJphl5XDoDhgBsBmeAA0V0VrWBHwm7BLlE4IY/kJ+O+30hzg/iQ7cS9lMMjVcXSVr8y1pBnyq7RcQRoPJflV9hCNQF8hVaTBgvEQX3IALuDyHGUDg4PUgMGV03HH0gbrgGQKyn44dScPJp9O9UQAgBGojmEo+ogdYo64ccyxTI2Qh9SMrsFQhApDNVBdH9zFWMRglqo0MoRXRhojFyJumBhf6RN9oSBq0PWZv6GkvCuuRsAqt7Bw046orTvjtyfu3RKXujV+/+b4fVvj90bGp25LSJG/LQkpW+Nlf6psbIlPmdqwd27anbp8x87k/WacaygoWB68YHmQS9WuoNcTmhTUdUl/hqwEN6a2bnohmkApGnYw5AoE/IKdoaAJ6kbAFTTGQobHTLggyDrhCvgmTZ0+GA6YjophXyDgC/u8cr4vHB4aDg2PCcR7DVN3D7nDZrodjyjuonIHTeZoQuSKgL9gvCC1iBsTr80oqaCV0MFMSCNYb4Zt+V3usP9sWI6WZnnC4XFvODgRCJjxUy5f2D8eNkyfIfOe5D/z1JB1H/7fLIxnyI/YASCK8bwH6lL8njFe7bWaRkZRH+SAxFVPD52EUtRrr9eO14Q/BgvRpPHgw2IqCCFfUXw5Bt9itFg5kdAk2GLMriAB+rS8pkN2lAohpwS5okYjW6D20fh77CB8rIAolNMwXkO02K/bAhvQBVoUfVUZ1WA0CIERO1yS+FepB5ceuV+ZV1RWVvZZnjZwwMgQkA89W26Nxst+YI92YhmF3hmx0t3QmaJVS/uRBvKrQHJFRUWvFTkvNcgV5bryq3S+wDCPSV1fRTWX0+WiUrmcJdeVm2IaBrEjB8uJmF1FTZfGawwanpvo8VJVamrqoUOH8vPz09LSYmNjt2/fvmbNmpdeemnRokXPPvvsY4899sADD9x333233XbbT3/601tuueU73/nOt771ra9//etf/vKX//mf/3nu3LnqH69RGWrdRA2RAnOvw9up+IDQOnsB+0njw0wMRx0CuNTtio7lYdH5ylXCxCPY6Xa9NHQNfjVyFYL1qLD78qKeNlfEeCkmO9fS2tDc2tR+qq6lo761s661s6H1VGPrqaY2+euob+9oaDslf7JR39YxtcHO9lMn2jqq2jtO9ZwO+gWa/ZOh0GAo5Beg9Apk+iZDE56w1+X3ubyCvgLVwUkroNXv9RneQNDrHxf4DwrEi/btFggVDX48ZPhM2SO69KTXCI2bpIhU5vcEPCGvL+g1TZ9GWHT58XFj8lLQoohMUBc9W7T2oAC8+RcOBMJjIkJkhxlDa4K54RNd3oRpgXgzmDVshsGav4jS7g55zoZCEyYfI9cdk8NE4pgkjy9khLwitPzhkDdgZUswZwMQNaZwsn0nw8avZSzUNTHeic1o6hq9CqcIGDNVdPrDzKzhGhjvcXiHwVMywJX4p06mq5oVTF1lND4Sj3nGMq7VmhEFp3a8cQB7fCFRglGg5RN4VukBDQ9ao4FBV8MLyTbUh8tOHYPNVT1JFL/VPMnbTNg/DBJEE4yK+oqo+qWiDFAHAOSNR8kGQjTjF9QHuA4tgJEP8EYuEY0qlxNQxGBMvzG3kZ+kZuhzuZx0haCvHIBDqOC0ALCcJZeTbagDOYugUsSUNE+aJBXm5uYWFBTIDcrDlXMF1wFseoMHii+7nC5Xl9qk2XKzHCkXLS4uzsjIEAUdJV4we+fOnatXrxa0fu655+bMmfPQQw/NmjXrpptuuvHGGz/3uc/9+Z//uXx+6lOf+uQnP/mJT3zi937v9373d3/3wx/+8A3XV/7H//gf8vl//+//xVcKywBKudtmEfG9QdNBhdHkfIx/dkLpYAAh+lkJLoQwoWqo7PKMGF3Sh1DyEFnqjQsTD7kk3SK/iu7JK6OJyuRTasYK5HQXaLGz+uCJBNJL5VdM1vn+UzYKEopGHTB8HkFGMz+YqcsHwqa3oS8sACnwbrmWm9gIs235lofNY6A85C9gpgcwT/ebOrPXRFcrJ6ZsixYuoG3WYSKqz6ReTF5GrmMFJJkpBqzqYF/MU0zIN5NkmrutYCVRwf0mIIcNjzVTCAdE+w+EAkGPYbikJq95iBzgNgVI0JyKhKnWMrCGzJQIpjiwA1tNld5vavSAvNl2r0xkTLVejg+aJL9pnAiHLFP0r6pcN8YzijXuSTFeVXCFf7UVzSzXxniUIamWd0VTGHA5GelQ0egl03gMTU+lGjPGV45EuUGRAlbV+0+hFMcPp3cNHimwLlCt6jQP94IbHe33WHlj5CsQpYICMhgxgucDXA16KuodTqDQRM6ZtU5UsEcy05BSVVUlWIgroty1QK+ottI82Y9rp6CmXEsaIwfINl0kB0BdC3yKpgsnI9sAtnxKVXIVnqNgj1Ql4CoXlT1yp1K5NJ5JGmyJ4A2pEHot51C5U7htdUaSU9BNMWVIVceOHRO0zszMlM/Nmze/+uqrC6zyzDPPPPnkk/fcc8/3vve9m2+++dvf/vb/+3//77Of/axgtgD27/zO71wnVL+3ItKAS8hF5V406InBA0+FSyMDXiOGEexskLmVwniGHZKCQIY4gtGHkgfyZQMjEqq/HKMJFKQzRcjA0jAYpDGaaFILrDyza6lTh67T7UCD/qTCmTDwfnPzhmEsQqKYewWMjcCUy4nFbnghToygKQQuz/ulZwcsddiCZdkQbA5apI6J6V7zp4CJwUFT1bcQ1Q8k+wLmJS2B4bIkx1QSGesCpmpu1WeRMthHpwh02XaZNJKZ1kbUc/nNFzZ93wMW5RK0MD5AHKtVbZB7wVXSTucNIR+2WhSyBJVPfjWbZM06DDNX3ITbOyaCxPz6qyNz3o0ezzzUGeSHaWpa2CvqzvVgvMcOHYd3HLXT/KkZT7lJUm3h5QfLQcoRcNHpz42bh8ZGAaL4n4DW6MqQ07iGq3+O8v3gKxQNqI+xk7Ag4k0x8inGYzKUmpkvUy2xNs6QVsx+0P9MPGQnJmHag596q13YQxpeOUWUYyy4yAQyLwiUyh55fbOysmA/BMLBY7moSAAaLEq5nCX1yA3KTqhiOReOBc97XP/oChEjgsRHjhyR2tLT00WNTkpKEnhOTk4WfXrVqlUrV65Eq4YGefDBBx9++OGf//znP/jBD2655Zbvfve7X/7yl//lX/7li1/84l/+5V/+7//9vz//+c//6Z/+6f/6X//rf/7P/ynI/ZGPfES059/6rd96V3gsYPzRj370k1b59Kc//Wd/9mdS89/8zd986UtfkgvJFb/xjW/8x3/8h6j4IjGkSY8//vjcuXMXLlz48ssvL1myRNq8adOmqKio+Pj4lJSU/fv35+TkJCQk/Mmf/IlUfuutt2IYxqIMQ0JKImKjUO5H7HBhTBMQSkot4tcOn8Oclk8d0thZ0QioEDs9sy/pf45nWttnxaPh0iMN0wzDcEfK1TCTNPN8WUmTnMqRFOzrWG+kkpkw4LHjv5iuu95lmZyYnJRpjnvCE3Z7TBU5qBgvuOiznMpDFjqD8dOKjfGmQdNnQqjpfG5tmBjvnwJsj4mkfjDWBHUz39jbmO2ZwniocSsjpXWYz5pdGMYMjPeHxsMyMfCYGB8w3CFj0g5pCr2N8VOTjsDbouNyCWXfUciaa/jNLJg+83/TICBiKjARCLoCfm/A6/+voMeD8aOOgs+gx04hpjshLN8VxrvtHDWaAcEZSostk/kmVAMKiqAauIjXGOSxFE1VgGG1346918BKTGVo2HKWemISgIPGjxlM7Vjw/QKoYDMxOyip3Jo0WLb7bJ91vDhopGjSxCjxVZUqp0+l5gYDevHMQaeHAmeGIJAsLdekQNItUhuoL7+Kjs79CpzLjUCii4qPQ78o5XK6XDQvL08Ae+vWrYJ2okkLBD799NOCzQKKd999989+9jNRpgWbb7zxRkHQP/iDP/jt3/7tK8Ltb1nl/avRlA996EMf+9jHBLlFFPzDP/yDQLUIijvvvPP+++8XMfLGG28sXbp03bp1MTExe/fuPXz4cG5urtya3LXcssAYidXxYQSDcX4kcxt6eb8dACWnaNCFjP+DBw/KpaUNIgSkn8FaOR5DjXxFfWc+I+eSy0i+Mt7g69xWCiDNM6MpuFG1UfR1wKME4beDdRZ/TxgerU2agf6CHi8/SSUu2yfeifG8RGoocC7LYOZYtJzpleGZqazLXYhIl0mdzPTKrFL6bkpZcUlVSblMId2mHi/t8Tr1eD9+KFcsNmpO5Qk2wl6TKxFoD3ksHTooGn2In0zYpE7DYlpC9tcwF7F+MHVq66KWmj2108LXoPl1ytkxRA3mlul+I/gsswIL4wMc7ZmG8VO+NGFD89NMCZKpGwhZHE/AZGrcoZDHIoXCQQH4cNAlcwVBe5838EuA7+sq7wPj1QNel+5A7UaJuaIqfzWMdzkSxrPH6YUvNRNxiNaOWwsu2tACYCeWTtWzoVl4CwFv9VtETYezhzvvtVPOUqc6heNdoxkB8JABfeGt5Z1WLgsWtt+OzAJglEEftlPI6nSFiTxgwIyIuT8YwEIOlnuXOdLkAJEM8vIBUUpJyY0XFRWJnr17927RrSMiIlasWDFnzpxf/OIXDz300I9+9KOvf/3rX/3qV7/whS/8+Z//+V/8xV985jOf+cM//MOPf/zjv/d7vyc6MTz0B1WkNhEIv/u7vyuauqC1qOxyOcFsVO2vfe1rN9988/e//31R9xcsWCCYLXImLi5OGi/yRyShyCiZNghmEIqFo46yIjASzPeI+WfWwQIhmCqx+uPxAh2HyIWZZtaEGxVALo9GunfZsmW0PzExEV4FH085Uh30We6F9sCooO4zocX4rbnEEP7qjuC28nG47BUG1ILrtuObYOtxi1cfHvRvjQmWIaesoMfhGa+2IMYPSA9V77QW61spnzMxXqSlzGcqrCKKgDyLyndTqiurivPyC/KOjQTGTfeWoMVah6bAO0wK3qsVx0oc0jAL403d3T21MNqUIdOSEkFjytPR4zeTCbxdgaVMB2dIEptZsfT4kOF3yJqgDJwD+9KjtsQlxu3p7Wu3iB1tis/E+AA7TMNqyEpC5qzXf9kd6FXMH07Vn4qOid8QuflI5j6va8jwCcybwurqXfDLLdeH8czgVFNnwzkDdTrKq+7yjhivxek/47k80mrEyulK7JIGB6kjGAw36b7g41HrSXCgnAnaP2iNKq/+5SS/VWqfOFrN7gepCbWvMTi6xJLmsiKkQifRvKP6kqFIMZfXiB6Nx5H3SfQn0a2zs7NFPRWdMiUlRZAvKioqMjJy/fr1gtyixc6fP/+BBx649dZbf/rTnwpMip4tyu7/+T//54/+6I9EB/2gVGqBZ1HcBaE//elPf/aznxU9/q/+6q+++MUvyrXkU8SFqPgiN3784x/PmjVLNGzR/p944gmZBixatGjx4sVr1qzZvHlzbGyswLZghiA3kZcQEepHyYOGeGbwINvJBAH1gfUXgzHWEg3UQmIjw+G1YKxx9GfkYDPRWGc55bS9mBe+mRqdJI/s0UcflXsXoSciVFf+INhX3foJlcIqhc8pMVzyfLkvDN5cna+klGF44/7k1GvURYeBMWYvh+NxLEQgF+23cz3IBgc41XfFcl46xKBCu8eRDpALoeLPhAEy27H93ij58eGRipKiYb/LayXqEmW6t7m7v7XHUsT9nglve8PJi2cvXTg76HP7xkfHqiori4tLTnf3yLmiDJ1sbQ96XOFwyBsyLl4YuDgydubSxIVz/X6P78LZgZFLQ6fPXRwbHzD83vOnB/2+Sxc8o6f7zp6qruvp7Bganzg/PBwI+0W6nezszS8sr65tOtV1OhQKjg2PNFU3dDV2Xhw4K1r/2Li3qry+sLB4fPLS5OTI8ZzChKjU5a8vzzic5PGNuF3eqrLayoqKS0NnSTc2PDRy5lx3KOQNBI0xX6Cmpq65us49Mi5ScsTnK6us6GhoDIxPSJ/1nesfHR7qbWgf7Rl0nZ+ITUheuTli8cvz+ltrDdNtNOD75a9/eLVyfRivzIlTX1euUUOfNFX8tRFdix6p9lonwa/6Lgorhsw+e0WQfjvCFVTW4EV8V/CGB+ZRuwFsVHkmA/12NCf+kgShgAFklcEHDZjROEWNUASc5FN+xeKYm5ubmpoq+rSopzLrnzdvnuDfPffc82//9m//9E//JDB54403/t3f/d1f//Vf/+Vf/qVot6JVf+5zn/uTP/mTP7aKIOtHP/pRAWw0bFGI3wNsyykf+tCHBKql qlQJIDUL1cRafC3f/u3okn/8Ic/vOOOOx577LGXX35ZpIdAsjQ4KytLdGiZp4saJzgnn0QbCVQXFBQQ1CsbMmEgSAqriNy4zjpEG0Y+89TgOtCtZXhAkqj+TUSbZtnX/Gd9VuovsBMHegzYPFNSx2mkAcwbOi5+hWRwwF/fabruvTzxIkZiVvlDV/73f/936TqZbEgNo1YaYRRoPKlUBYCWUScZjKbw9IgLnUUwfxu1F4+Bx5OdSDN1dFXTE2+BZglm2Q8mfixriXYjdTKF0FNUm5+mTDktstP2XHGx1erqaukcw3aweQ9AMjk+UVaYPxL0ui0HFLfXeOaup5Y+9TIkTM6hnAdnPRK5ZkfMlphzvecqy8q//c1vfufbN61bG+Fx+7ZufmvuE08N9XYFvb4xt7Fv7970rOPHShu3bd4wOTbxxqLFxccKtu5Mq67MNXzu6PVxfd3VWZVFr7++fMGsn61dsri6qS09p8Af9p881Tl33uLvfm/WD398x/wFL4yPjRccPfbgj+595s7ZSbtiRf2uqGr4yY/u+9d//c6B9NRwOLBmecQ9tz50x09mJSW/NTJ2rram8a5ZP//hD3909NhBt2dCFPj4uMR1G5eZlIthNHSdvn3WHc/e8+DxA+kjHnd2Zfl3b/n+wod+3lJQ5HG74pN2V5dXPnjTjxNWbRs5N3Lr3ff/47996+FH7umoLvYN9AeDft/79Vp67+X6MP5qqeJd9sKTitBOt/jrxHi3Y0ER5IaT4Nd0A6Byr512htdOw4LwiOyzcqRonDlorUmtcLbBwx5HF0V9XJYJRVWnS14pWuWcq7jsTFHyukj9X/nKV7AdvjdUvv4i4P2Rj3xENOy///u/l4uKKi9a9d133/3QQw/Nnj17wYIFAtui98fExCQlJcl8QGSO4LTgIlEzxDZwL6h9zmek9jY1uQkmkQkZFRPTtXwlJAdHSyjqXms5J2zhPAgKYtkZuq82RQHLdnvNKWSy07+PqQ6maHX94yugi9UZJ1a8pzCKY2CBk0GJJyslpmvYemQCswW5LzlL5irSvSKK5S6UC8K10xlJ121n72G0kKbBuVoqwgGxps4HYDDV4vRKvh08W1ndlthZfXdQuHklCdrCsYdh78yPwERCVXZV7p0Yr8skc9gV+fgPAOMnJioK84eC3knLC2bCYzz03fsX3PGEzxsoLTi+6uWVN33pe1uWbdu8YlNzdePBvWnJiXuqT9Tk5haIghWxbuvi5+YLBgf8gTF3OCo6OnH/kYz8mldfWDRyYeiFp5/NPnjktVXReQVphn9yzYsRpztKD5YW3D7r/hMJsRdON1Y1tiXsPSJtP5yReccdD1ZWtix+admc2c9OjkykJ+xdMnvxkkdfjly77vRg5+ZtO1P3ZuUXlsXsequ2pnLbhh0VeTXlBcUx0RG9fW2vvvxmYe6JiorK9Mx9/Wd6Jke9Tz7x1MuvL/BJo3zBsta27KPZdceLn7zrvvKG+rVxOw8cOliUlHJwwxbv6EjEti1lhSWzvvTNyLlLyg4WHDpeMGj4tmxbW5t90BgZDIR8vqvbJH7Z5fryTmoMq/pnobI7wdi5pt/1ALxeFKJG7bXTyB95bwAMJWqceny/nakLgNFflYPXpMG99ipFYEOPvXgGVlX1Y4H1Z96NfUAdIdQVTlUu6b833njjBtu7eiYkC+p/+MMfFmD+/d//fVGsP/7xj3/iE58Q9fpTn/rUH/7hH4ruLkr2Zz7zmc9+9rOiRApyf+Mb3xDYvv3222UCsHDhwqVLl27fvj0xMTEjIyMnJ0dge+/evYWFhZpmngmGdB0+FR7Lf5PZBZKZ1CsYFrgv2GsMkOAlVknCYWHBURbRIIlPZboCwGh0lebClcrBeJ4C4KqpP9U0gZcoUyOCmJClmk/Y+bwIVyAkF8cnJHCvneEHEzuVINgxhzfb67aSbJnc/3B3EPPOpUFk+BUXF8sTkef1yCOP6IwUPp5wZO4O7ZzQYeBW4zR67Vw9TCyZvWhaPnWgl8dB0h48TEes1W4I3kDmEEHGWwCRr845PFZCqyBw1CKkb6LbdkNWsl+/Ohn6X5YePzFeVZh/MeibsGydoy7jnn+9fcFtj4tKFLlhffK2xLtvfmDzG1u2LNvc2dSxJzZ+V0xM4u49OTn5vb0X1q3cvPi5eaYXjd8/7jW273grcf/RA8dOrF625OKZgcVzns3ef2RJRFJh/h7DO7Tupc09HUWpxXl33fmL6tgdF7pr88rr9hw4Jm1oa21/6fk3onckPfbwM0/+fLZ/wpuVcGD1k6+seOiluC3byuqLl62M2LBhZ1LK/qM5R0qKC3ZHJ51s6DrX05OSvL3tZM3TTz4XF7Vvb2paXlHW+YGzPZ3nX3pxcdye7UOjZ0cm3WUdp1pb2nvqWubd/4vc8tJ5q5Zv3LSpID6xcX+6f2Q4YkdkaX7xbTf+y66Fq8r35xVU148YxtGj+zuKssMXzpo8UvhXRsi/U5yr+3LGXb0RnAr3yJUS1Fw/xmtGGsV4jRqE6SSIHeSeifG8WxpGxMwa4oWIJ/Q26ALNGKMqnVPXl6pQwtTdnw1eI6+dzUGnLnKwqNECDwISDzzwAI6E8+fPX7x48bJlyyIiIiIjI6OiokSx3rlzp0D1vn370tPTs7OzCwoKRMOurKysqakB3tBEKb12aho4bI01w74IGIDK6HOaNJ0CkQJXjccofkfoo9glCArDF1V6WA3ezmBNBQ/0XXXsphndVuoE5LP0Hol6NCBBg7nQv+FkNCsbs7Jme1FYhANKOYZtJK0zbRuiAIw/bS0LhdMUO5Vody6gQrZ1bvmUXXDK6rNWQgXjd+/ejUxetWqVvAuaowEBJZUTg+bMDIzPo1ptNeu/FuAfAl6GDR4+GBboN9geHjoijmkA2vk0NUpfK301MPHCCMEaOVlEDUN3qifMzdwWH/+B6/FhS48/UZh/IWgG/ZsZwnzGE7c8/MJtT2ZlHztRXNhS1Hjfvz+86dXILUs3n6pry9h3IG7nzuKCouTktLratm0bo5c8/6Llfhh0+Y3NkdsT0jIPFzY8/dij5073vzj7qYLDx96MSCvJizeC46vmrT/fXZZUlHf//bMbd20b7q3NK2vYseuQ3+3ubD0VF5XU3X5+1ZINC2c/H3IF8/dk7Ji7YvV9L0atWXf6UtfajZGJiYf37st4Zu4z1VWVW9duL8oqry4t27Z1aV9/+wsLXy0+Xpd5JGtz5NqU1KRlb6zNzs4prcpt6ageuDRc1NZelF906njJEz+9vaK1efHWDaLHH1gT8fxPb58YHoqI2laaX3L7X38tbt7q0pTc9LziAcOI2LSi9eh+Y2TAH/Z6jF9bjKc4MX7IXgPNPSMVsOfdLPmk9SvGq5PJqJ21Rj7R1TSbnhPjeQvJ7OpMN+AUBaSLISiTnDZkMcBPHScZzGNj9vKx+kppslnnjBvnGabnctFvfetbAg//+I//SKwQ+rEuOYTayhSCDGFKIJDXAFiC4sCGwKRC9gj8C8Bg/Oux8uvqPAprgHqPoB/r0iDYiUFT2BW5KJ6kZFBBOSZNMT7xZlCi5WTHjF4DKJ12O9ImQ4ihZMuNIIJkp+ANZIiKX8QsfqzAfKNdCCZGL9cNyHXFeGRCs7UwLZMB1fu7rcW4SbCs8cdgPNtYWHvsoul/e+1s/XIiHuTyQGWyBMbv2LHDay06RlwScz9pybCd8hf7gxwDQrO2K6cwF8Jnc8JaXpfVvRlCxKr228uTIAd0GskSv0P2ClAX7cK7NjojqNBthxzC9mh6ZM12BvwTSqup7lWNktNnxrkKxmNzJRLqPQDJ5PhYZX7+UCDgsvR4V9C4+6Y77/jGD/buTZsYGbrQeem2b98Xsz5u56bY/lO9FUXF995110MP/jw2NrGx4dS/fO2mn978XffQoGjyLp+xJzn1UHZBcU3HE488PO+pZ1+ZO684p/Cm7z/02sIHanL3b12y48KZhn0Fx7/wV198/Ntf27llaX3b6VeXbHpp0QtV5VU7d8Q/8fAz855eFLMlxnNxfOEDs7/3hX9efNvTabHxbmOypKL6scfn3nnX/RmH012TE5Ebdsx/+vmnH3s8JTlqZGSgMK/0hQWvz3n6meKyvON5xx79xWzRMjtPt2TlHpKH3dDbO/uJ2avmLUrZFj04PpZeVvLYE49vfP7F1mMFgVBwfeTmisKSx276cdKyyEvdl2YvfPG22Y/Nee6JnspiY+RCwAhMBq9g6v7PKe/Ex6vaqky85gzzOLwmgedrGH6uCPyT9tJRI45kws70wjLGUbh7HKveOXMZ8NKoLzvqIHQE4I3O12yvfsosHgsfWjsKk4oXpw3M6TgEoCqRz4xbav7CF74g8PC9732PK2q2QbBHL91mL1nFnAE45BVnCSS+EkrbbSXDwSyAE7bUoJkc6X95Eekr5Im8zXDVvfYCJ9DSXK7bWiuPNJq6/Cqtle0RK1GtM6RhGo+Lb7d0FMIWyzTaswwMFvNgykTuMSBZvVYxh2MM0WivHmsVb7K+4baEACGHM/ZUOlCN65pDE2kgFUL4EEbMhQh80zD+djt/v7LyTGngXhDp99577w2WQ1F8fLzctc4ecdGV5kmfg52guHwFwrGqsm4Av45aKwnIAYgUl52PQJkfHDDVJCyNEXBl/WB4GFD5wuXl0uVrQumrhFqvNmAIMfyCVMXX/UC+fMpdz4QBaYNivDzrd48jIRE5xQX53kDAZ6aBMZMQ/Me/3fKxj3y0MD9Pfj7TPXDLd2Y11bUHfGb94XDI4zU7J+gPeyZ8S19bN/+5BcGQYKXpYigt9PnJPxZWL6B16zYeSEkKuif8LjOytbi4+PZbZyXu2HGysV6mER5fwO3zBc1Mk2HRzYIBXC1DSbsS5j721LmuPjOrgFWwWEy5ZIbDAdFs/AENbfJbv3KkTa6ENY+wqQXZnWNG0cp74TPjnmRj69bNtRVFhscV9HjkV5ktjbo9frM5UyFSv8KcZe+E8RP2kk8oFkwJcRiE/XWq4O8W44F5iEZmAtPIeAyuMDDOvAPqLIGRtd9eqAi8JHaQU1Bh0YmJaiXllZoXtPHqIqKu2PhLwFsDMGjYiB1pXkVFxUc+8hFBiAcffFAuqk6XyhfhQ6f51zFh8pWWQzX020vtkTeT+wL5pFX4G6qTJvy6MrVMCQQ25DZxImq1V5tibjAN47WXYEtkG3VTHTCmxcl77fgdOUyT6iBGpGHSBtD3lGO1PfUD6bOXgiLMF4wH8hXjEc4QVhrdBsZzI8rVcFGiezHREN0G8KPH40nFr4jZZnuVRbaRtMpky0196Utfgm3LyMiQ22Tgya0haZGfiEQ88jUn3JC9fhNTLPzmQWUOwDVy0lqmAHJPyS51GGMtGRIooMRrpgMt6sajcgnlyG2vjYlaRAoGTTPqLO+I8TJ43hdXEw5OjA2VFhcGzEzCZmypyxvcFZ8YsWGDtF0kwOjFsd279jXVt3d39YxPjJnpJ80YVTMXWMATzs+tyDqaa+astAo2n2mXqK2uzjx8pL6uTsR0KBDs6epKTUoWhU2eAc0OTgVd2U7ugsyBgOh12UcyWxsapQff7U29YzHloZW/UlpeV3Pi4tnuExVF7a1NZrBrIOQPmml0AmE7tcKvrryTzRVuUkeZ05rvtkLxhhzL13veqcyUIcyLcV9RjVnDhfByBpg1l4vm61JKnpgg3mZ0TbR2VGpwV22HOmFAfZ/phoZHfp+VW50oVeQD2qpy/HL6oUOHmOa/+OKL0i2sMqKkrHp6Ip1Iq8sCIewkn4JUriYFaApuijmANI+MJdJRCB95FnIuajdcuJwiDWYtkG57FSrAjyAvXT1FQ36V1ZbixHglahTykXsk1iKtg/QkPSAdJQfA92tuHw1gQKEnA0W7vbyhMkjq9thnr8ENxsvBotpiQgGP1YiOGEGEoqCz0W6l6uWhq10Z0gx6RLN5akyCCnkZ1X/0R38kT/BP//RPS0pKGJCjVsoX9H7Wt0JxQD/ut9arYvxjDJGfCIcgAk6OkdeB10p2MuQIkOB06Um6Gq5JPUYJgwLsB2cUp6Y+Ymd3dTkWA8QdSD18rh/jBSBlnMuv7wdIZL5fVlYiN25mAvCZ+RmDlqwIBvxG2Ers7jfzgVkgbuXytXLk+L1mNhf5M1fP8/thiqANZzaSbM9B+dU8MqjhsSSEDzpz1Vi1B219XbRtOfH93N3MgjjCgG22ze/zesZ93smA33xbfIEpgA+Ef/UrRL0TxqN8qGkHVWbSXroVVUbp+Wsj+sxCMJ/606HTA/kIFmhspVRBJk3wq/nRoQtYR1tGK5SIUgeqNmkkl0boMprASxydmf6j+Sl53+3I7I7yLQgkrd20aRNONevXr5c2sHooOWPVzgdRwzRAakNctNkF1RPdF4sjij44KkWugvItt4AUQv6AGdJ7sBAQR6S2mqbHg/HkSlCMV5kjx5AeUZV4px6v0s9jpY9Eq2Ydc9lGQmqCHc2+32svVwgG61yCmYkmUiZ+jRmOE+NZzRyMxz5K+gnIHPL3M6FSfyraAC2GHFY+vtde95zJEg+C7ANYEj75yU/eYDnHy7XAY+lVRC73pSNcM5MR66TBUJA2+hX3SSX9cI6H5ldqHEnSZa0/zsJPCsMKyc4yaKekVB3ducqI26ZVNU2NcyWY6+Fq8vPzt23blp6evnfvXtL4pL2bcujggYT42JTkJPN1CoV9lgrr8ZoQa4JxOBjwhYJe+c8wU7kL5If8obCF4mFr9Q6SsFsAT2D3tLmEuT9AChg/QoDlnKw8v2GLoQmH7KWzOdNihKwSCsnrHZ5hgnifRdkeKVbosMnHhAJes6V2DwTCjnnFr668E8aP2KuQMZFUjHdbnrs6Ub2iEv+OGI+UIJaENrC4AuORXE0ah9p3eVEtDTsibneaux2fE4JNnK4FmtDDawenwAjBtVOPTvmVS1GEgGAG9aXm+fPnCzx84hOfOHDggLQECFcaXil5vHecqw5CGKNwE8KIlom/OHdHVdJCxI50Mho2Ho48tVEr6xgYr2tg0Wa8XLgRLLIozUT4a9ofqRkWyO3wzJ7mWg2prPlbiDSQc4ExRBnTBrUsKsbjvQO7pSnlIIvAePR48v8wtaCXCG1rs1euxXeIKCdnkgJdqJ0UQLqUL4XrsqF6eYe1jKvLyihWXFz8B3/wB/IQ/+7v/q7XynbPeCDrEe49+I2iQI/ayYEVYqErMcoyxWVqKpW4bYsTA4zUDLw1KPSIcafWjsSYifHsnCkBuJBOTTV4cNJeXMcJ89fAeOnqffv2HTlyRAD78OHDGe+yHDx4IG3f3rKyMpO5EPS2shkAxrIp8Oz3BX0eM1m73yfoHkILDwasPLwhUr+HtBhXirUF/g0LvK2M71ZsVSg0heUzoJT0bFDvH0Ti5OlF2/M22JvLApppjIPWciKBsJ14wTr8V4j1N9xAEP7V9GwZQaoEMDaZaTJydeZ4xXzCV6sTOHHb6x9Iwekcb3jEiIxKHEK67ZUzNFqRbabn4IQuB4J8GLGXpnKqodokkGnUSgfVbyUvQKXWwBnsgmwDIeqOh4KOdVNu+eabbxZ4+PznP48VEwSChNECdMHzQNEowaxhWfAbMMo4rvRbyVLkzZMG4yGo5j1+ZXouPQbESh8iN1RVBduUqwERAV0AVbmjMXsZDGVmnO40wLwcA7uC1RlZyk9UhT6teSLwacUvUn3WUdDpXuAWAwVQTbMBbwpWFOVbuu2McbKT1G6K9Grn1kfJ02SnCl4pOKsO2FmCBdJ+//d/Xx7iV77yFVW48SAimlaui9FUkxegiXCDAqJIRTzdwXX84OUYt50kDOcoGZz4bgG6clPMo1CdeMWcWD6taJIFZWPUf5N88+gsTK0RVmprQrPXd20mDFjq7vvVdBWhQzasQrlYKdincnrZ3vlhYHEqnY2t7aoGf0VInqr88na+g4J+dXTXXMp6RaYQb7f5nYqzqdYnWetNjPeH5M9MNm/tgkn6FcZAXQPjyZergw7zDxHaGp6tVLp3RkD11TCen3CbgahxORLtoSE5w1vQ5E7bBQMbs36UVKJsNPqWgnLjVEbdNjuEa3K7nfUAX0JIXNwzQBfZD/Oja8GiZeJ0Lpe78cYbUQHRjzUpsbOohdW53efILo8ej2UXxVr5eLl96SvFeAx4uKzAL41Zi3xIuWAtnITJFp4bnFOMp/HK5CB/NIzVKQyd3LxzCQq0Z+wbmEUxxsOCA89sq/ci/kIsiyLHV1dXs2IUCeQIKdYoBep3Jug8ceIEfjWwc0xRkFFMS3QBPXWhUUcaFcs4ynfbSy8xZlDBZTxER0ezjsj3v/99uU3iTfGKxRhM/gLntBBTPSg+YGdNU80eWyyKj9tyRpdP9WjnV7QY5kVtVrJfJ5A7vzoJdf0VwkcdJAfsRDpeO8G16veaphilZsxeQvADR5HwZX4jYSdrotDnUGUdX2Zk673GJZyfzvOudrYec0Wrp2b7Y5u5gTJF70niTd0v6eM9/qDPWj7WmMrB+euJ8SRud04S0QPwCWYncZZXxPirFdLkKaKjUSlvwxgn5kVVQ150J5OtaSgZzqOXLzDos4tyMjD9eHpQA4Q9aATu4o2Dn7oq9KTBwTgqGwI82Mnk3M997nMCD1/72tekwajO/Vcq0/glJ8aDWOi+IDGCAr8aud/rwXhWLsHCCsDjdwkXPhPjIb/xeJHa9Nk5c1xNw3jpYacpV9PFOPPGNFxewGn4GUyYLEMCtaLHI5QwymoiCaeXJWYQ3GBb7QSgpGVuchT1nGE/X6GGEL/ORAa6vM2qVauwmj/zzDNMTYlnZUjwoDH7wIGomsOgglGUTyAWwl4P0M6ctBfDVH8CRjuSVpMgKOOuvIqTj3d62jh1fYzB+PC4rLxu1IDY4b2AQcI7+AO3PhoA22W8xNsGUH56/0xJ6Jp/U5ed0appJL2zBKeWdDVMQsnyjTFsFp/P99xOmHifycqTLj8Y9LuDgQ++26+zXB3jUXkv2FlVsbwymlBNnBzOqJ0p11nU3VwLNXvt5Y9RaMBmVYaQKuo7AUMCtPCydluRgkOXr8Ws+ooSQW6HwRhuBzYAOFHPFg2tgnPQUEvl+HHVQM+WNx7VU+rMzs6Gyv3BD34gV9EIrGkFiIKccfp+qtQSHNJwIVRhYBsV/HowvsNa8gk9WCEQ0XQ1jKc3IOY1mtk55/Fc7vpK/dJmxD7mTAAG0kxqHrGztjNm+u2Eie1WQCoQ3m8lQZdKWLkRsFeapcnOow/3AsMDuwXGg9+aLdQZHMzTpDGasqbVLsz6pIjYwXxBUsh58+aB8fHx8SgCcOdgvFQC6EKzKG+JSQojK4DKpBHtnMX6YHV0QIpe6LVi6CbtRQIRKUyDwX58k9U3xqnTq0Ol0vZOqp72OPX4QTv6iRcTIwAzDWnSB44iAJsNpaFpGP+B+JZcF8ZfjstTKvWVlGiAHN195gJY7wfggzbG+81kx1qPtYbsr6hcHeMZL4wp9cZSBxhoFi3qMOAsI5eXUTthpSYCYEqrY5BRzH74aV5WYAkvcK4Cf++1s3ErkazRqGhUPfYy2epmo25909y44UzUIQc7gGIkR+KqAZZLs2Wa/6EPfUjg4YEHHpBrYUdU105nUbyfqceD8RgyYaYBJAEzmTBIA94R4+kl0jjiuMI85BoYjwciACyXhj1zObIfTuPjifAnp4oMfwKvpP1yCg7lBNoOWwt14KdEEbDBab7fXrtcniA1ExuqDpV0PjyYzg34tdtO7kDnM0Og09RK0+dIK6l76HPkALVhZpZthqu0Vp6dPMEPf/jDMsdQgys+PBBN6BGDdgwUJA8Dnrw0eGqpdztQjWQYtpdlnbSX+ZZ7Z6UQtHy3bZTVPkcswDSO2esnzMT+QYc7pDo9uG1PZ20MGE/AyYCV/OJqNtf3WYKXAXnIAaxTGG/hmwOEr8jbXLOo4LjiX/hKNTkxfhrAKi2DBi9jY8+ePStWrCguKblgLSnwHjohfDnGy1eZSm7etHHNyqX11aV+zxXMIP855eoYP2GtQzngiJyDfWQAMpR0xDnZRGfsxkyLERWC6Cjx+pbochryCW2iyb/xbp+0i9MLiJdDc8hoxkCdtgMb3ZazDalF1GGat18OVq8MXf0Pspy09KiAqIZ4iUgDNAZ+zpw5fdbyT059fRo/4+Tm++10LvhLEtdDS+AWEDJonPL246tINOoVMZ4oSU380mSvc6itvaIeD8ZL5dOsFjO3wXhSc8lFL1rLXY1aKyi5rDWJpG1o2zjxg+LyGsmRzEa4NWkM2/125rM+ezF0HhakDSw1T18XcUGP16zR5LGB43LKUvWXnDlr4kHL6awbhUvMT37yE3mCn/rUp6T/NTUkGM9UB2MFkxPyz3C/g1byZPlV8IA4NRzfmaMOWMtFyQ3Se5p8idOZebptX2ONSXCGJXjtvGJu20uAmYNiP3MATXbAYZrLUqNZUKx0ciXNvqLN1UZHc308HM+D4YDnbX8VEy59JusSdqrEQSM4akG7tcTd1A9v68QztGF/yPAFpqOtudR1OOi3VrrWE1STDtvGzGmL5fmsNT0MwWgLWM3F/uyTzcTv4ZCHA3SfMaVIB8NYhQOuMGsAmhfNy855aeHctUteORC9vbO2iqUD9dSQveB2KBgIX5Y+Mnx5k0OGY14hguXQ4UOrl7z++iuL0hN3XTx/buztvvObq3+HwtLDvrcrk51eIxzQqv3GNNdLeSghjRtgDVt7TSqzP+Qn92Xrxk5tWr6TTp8THVZKxgPnEI2akYMJJuqFKhbOOeY0pFceEWWCw1B00DMu2L7FzhOZ+XLktJxnNFjDZGFG0dWgWeCzUZSJQEURV20bRY0jcS6H0mHOAPVBPE6LnZ9eAEn24Bz/1FNPgfGLFy+WPXA4TlOfFoVwCjjUby9Di9sJoVsiUvgqLUGFlbefhUWJu5HrEoXEU8N3st1aLLvHXpmwyUqBAu0tgoI5CeQ3MKkJXjSKFBAl6gBfPBBFUzxcsPK3AFpIYPlJtAO3HWYgjwBSS/ajs8qvslMaQGCU9DOSBwinr+BnkGnIIjCeZ8GvHdaaUBpaRbMRAkqFTUN0Yov77AA0egy2TRMZyMCT6371q1+VJ/j1r39dDoaBVOd4RgIZhwi8onM0K5hCrM5pUakZzMiESXtJRl4Tjud01fXVV0BVmGmB1zqtmjby9TB+UicGp5OEc87MFeUUY0YZH5pI2HXgSEamAEfnmYv7M5IGh7t6R71F1VXrd0SnH85orcq86PWWVOVl7t3WVNOeGJeemrjr9LmTJQOTDZ1t4ZBb8KSuuT02IXnC5S0uLotYF1FZWj40eNHnch/efyApMS4+JbVzYLizuz8+ekfh8fyUtKzI7VGFOQfGL3ULKntCIY/pWG4p5EFr3W6Pp6y8vFu6/eKFo4V5FyYvFqWntVWUX+zpz4iIamzvrOk5PXJpcNw/UnXsYEtjU9twKD31cOKh5KrmwvNt9QOhUG3vwPao+KS0PXnZSed6T2cfzD8Qs6eq4cTehCjX6GBJZ8uumOjoHdEdZ88WZGa+8fzTx5O2R815NGvDao/hj87PXLl9S2FefnjUMzE0uS3twO7kPeGQd+jiuZyj6du3RhQV5IbD/qEL5w6lpcREReYfy/ROXDyesru5rqK3/9TJyrJJI7QvY2/c+rV7kxNWL5hXUlLb7A7HJqYkJe2YHD5lBIaD/uBwyMiva92ydfvWqI1FBQeM0PDoUP+RI+mrNmzalXrgrCi1QaO0ojYmOi5ue1T2nnhP2Bufm71y3eaUnWmlzadS6+pL6qq8/W0dpfsuXGpLzitqODfW0NW7Ny0tNf6tvpbya2I8/rWK8YO2S6P6YDiVDIabruoxbOcL1yR9ztmlwrzOZPGgZD8vitM0pZF8mj4FVQnFXY4H5OR9JURSXuJuO2QJrR10ATsBbHh9pTXggNEvORjgAddJAqOKHR6Icl/33XcfGL9mzZpuy2m+0VHU9Kh71DSIxbfDXq8K1x2AlssRyw2zpHr8FTFeDoPOkvbIwTgnwjpzFxiPwTZcPvGYZ5ZCMJR6K6FGt9hLrag/qWZ6kf4ZtZbQEATF41IxRjZwd1VinrjPNivhc7+1rAh+NXQ1Pp7IWE3gg0BGWjrpfHU1JaAZ03K/naBOoR1cdwI/DBtPVicGpKCToVteXo5F5bHHHsNPjAGMbaTbihgmjxBUkkZNwBkqeT9o+VRqkJSuDkIcbb8VFysPC7d7JXyIx9CXSye6F+wkkqr9QyLpu6C0j7KUvK3KdjoTIvBWOmOsrqjHi5Jx151P V786vnzTbtiD8x//snK2uyymp74A6lbdifExO46dSKz+ezZ4+VHTzcfj4yIWrxo7fGsQ3VtVRnt53NKCkOBSVEiU9IyMnOO5xeWbtm6o+tU1/I3l0Ru3NRSV//C3LlxO986VlRy4uTZ7GPF+/ckXBq8WFHTlnMs/+Cet+rLRbCEvaHQxbGx2kbToOS2LAaiZickJMhobuvq3PDWtrMj5za98sLRxMTzHV3Pf++2gtKKtKKC012nxv3DeyJXleQVVZ1xrXp1dc9wf8axlPpjR876/IcrGzZticnIOnRgz9au1paFT750aNuu2sbqRU/9/PTJxjff2pQcn5CbnVvZ1LQ7OmrDilfHeppj5j6ZF7k5t6pwecqu1OzM0qLioe6zUVuiHn/11RWrV44MXTiSvv/Vl55vbaqL2r6lp+tkeUnB8jdfzc06XF6af667eeuLc0ty0xsbyovSUs4Hxt+Kj+6orDzdfWrF/Pl7kg9vOly6bM2GwsKMro5y9+SAaP7yJHYfzHnwngera0uiti0fHWjLy0rbtHF9Z//ZpEPZu/dnFVe3bN4WW11Vu+rVN5bPebKtq+X5iNWHjmQV5xQfKqyKyMyMSd3jO1Vflryhu7vmlYhdNd2DZ4fcMs/dvHJpbvJbV8J4NVjq/G7Q9hFj3qd+8NNCIT12EI3KCjWFqiahyT0I9GDg45enujtBImqs1TxMTsJYV3EA4AEz3kXwCS95nbzDZrTbicHUX1LdP3DSQP9WpR9Ex3UHq1ufnaxYqpWr33rrrZqvkIBL5AAWU3Xk4LqIF66LLksz8BaUwjRcapCO8lkrByongxKMK7Z0wjQ9HtYF6EVlh5fAcwbH/W5HLnb2IM3gauiobsv7HOGDho1rCjgHxmOrJjhIMZUJHtMw7loaI+0n7QJ8vNIsOHVqtnX1mFKFG5u3YjyBCvyKzZsEE0Qwa7wBlTfaGeJpuYY+cQzTNvR4eXwyqA4fPswTfOONN+RVYJqKHq/xyv1WIgPNjgH1h7kAVYUVPpBpcjpjm1wGJCiWIvulQzRXGRQlkxaNn3K6yigeT/OXdAI/sywndeOUFdhi8ZDQiS5vnxw/E+MLT9T8/NHnV65eV1ef//r8N15+4ZlD6fGXBie7L5x9fsXKZ+fP72ouLO88daw6v7+3evGiN39wy7333Hnr0og3szsGsgrywkGXYPy2mLjjhSWpaQe3vxUtdW5cv37DmrVZ6Rl3z/rZXXfe9qPb703IKElLzz6edfjC+YE1EVH33H3vipfmDPc3hoLuSZ+3tqnpoUcemT9/vowGw/J72ZOUVN/UKCrW1p1Rg6MDO1YszU5OGuw6/dJtDxaVV+Y31J3vPT3uG9mzfd3RjMysuv5tG6Iu+Ecz89Jqj2UOG8ZQ2IiNT5o95/Gd21f2dJyc+8iC3N1pra31y55/pre1fu7SV+6+9bY7fvyzha+8nBwdHbNtoxHyxryw8PDmjelFuXc8//TNP7ll9qOP5O9Jnf/40xsT4jJzsnq7O1L2xK9fs1wUzf37khtqq1KTEu687af33jXr/ntuK887HPPmi4VZae0tJyoPHzw7ObQucqOIeHlKW5Ysf2tn6sLNCbPuuvee+36ycdXzfafqDYtayTxe9uKzC7zu4Zhtq3payrPTU5KTEmQ2U9nUGrkrJflA1voN24YuDcVujVy/YG5jfcWtjzz4wx/97M4f3rVi684tR7P3ZBx0d7Ycjl7d2la9JCK5rW+yrrlv/drtTzxwf96hxKtgPFqyernooGPiqUTNmL1sjRYni+KMqXE70syrlo/jgfqUqfOuRoA7z4XMYZyimgNsYLaqhvAb6PHMzZ3sbLftIY3LCuGwaI1ICbw41LNPNVqlXzQxAfEv3/nOd0CIlJQU4ERBy2lbVQDTVMPY/zS/O6YAuWu5O7Aci78cKXsEKcF44lxnYjxrFUHEwkep8x0OmNwCAaCAPXo8ribw3E49vs1OugZ5Qqdhg4R0ojPBY2QCUKr5k0m7oKGxSAlVhfEPpWZ1bdJ0opgOAFdcHdmGeCFmTTEe4gtnJ9kJwGsglU6lVK7ij6krra5evVoe32//9m/HxMTIq4AeT5Yk7gVRc9pOhod804HBzaLZ84I4C45nTH3VeUYDkS5Y6favqMdfdGSNHLi8aB7JC5fHQ830wMH0hEmYFH1yCxftZUhm+o0k5+Zv3rlbFMS4+F1RK1bs3rY1MTb6Uv+ZSy5vaUv7/owDLY2Fx1qaE47uq68vjNoe9/pr69/atmXf0X0FXQOp+/d1tTWMjE9u3RGdfuRoRWV15NZtDfUNy5csid62XV6wV198Yd/e1HWRsYcKm+KSDhzcl1xaWPjjWfdnHErvay0Pus8FfJOBcEik5IgFAn47DcHefftq6uq6+/teX7G0sKxgzeIXs1L3nmxseurHtx/JyT1aVnz6ZOtkYDQpZtOx7JwjFSfXLY1o7+9KO5J8aMeWznNnBz2Bzu7e5qaGjLS45rr6px98dn/07saGEy88/uCZUy0bY3eUFhYf3ncoMzsrOWrHqy8s6G6uW/fcsynLV5TXV0cd2V/dWBuzPbI1r2DpwkVFtSe6T3cV5uXm5WY998zs6qryzRvWnT/TW1yYtylibWNdTXzsjpaawp3LXirNPdhaX56zJ3405NkUvb2qsLimrv7Fp+fuSclMOH4iKjouryCzKDfNdf604Qu4/cbhzLzH776/trxw+4Zlw4Oni44fWbd+dW1zS3RiSmpGdnVj+9bI6MqyqjVvLlk7b05/d/PKyPXNTc1J0YmxqenbM7PXbouszcncte71nPyjzy6KqKgdSDtYfM+djzRVV08Mn7smxqNeOH1wieFzOVav1GUJtJB82EkuasQTmdc1ZEO5HZedRE+NfDr9VI9knNEhZNocRV1u2qwEMnjRqIu5029RJ/un7fhO+FcQBfVXw1jVBZyC6oZqiIopTZJL/MM//AMYf/ToUVhkxRiNylHIBNW6rVDXPntJWmgH9Gy5cUx90jNkwCB6VXAdnftqGI+GPWnlHG63M+20WInkSR9Aq+Cj8FRpsxP5QvJocnFnlnEepUr1Cce6jkoVc5hKb+SwtFlnXyTUp/+xaTBrarQXbKJhCsPtjrUWeTTkVj/tSJEg9yU78dXpthbfw+Ct3pQYVbodha9qe8GYIG2DbfvMZz6Tn58vfQuzgfKt8kot2UxjwHukooabNdkZpOUnTLlq9UT3gdKRoi6WxHNJ5RfstJIDVwlvnVZUrR90BEbxkxrHdD8PRTNNEMk1M6WjJxRaHZ9c2lzf0H7ylVfWNBzf11FZu/q11YOnGy6MespbOhpPNo6Nnc2sq43KSD7RUNTd1Vdd1dje1tQ31H9yzFVTW32mt/Pi0MjGrTtS9+33+vzSc6bhv66uv693YnSkpcnkuE60dByv7oyOS9m9K6q781RBSWVTY8OFM21h70A46PUFzFWtQ2QXC4dFyfEHg7v37BH9ZHRiorKmuq2jta2+7uKZsx0trbNvv3d/xuGeixc8rolx90jcWxvS09P3Hatc9fqqjr7u1r625qryrjP9lzy+U909Xafaz/af7D7V9dSDc+LWbBq/eL6+qsQ7NtR9tr+9oeVkS5v05vne7qrykpOtLfVFxX0NTRddEye6O9ramzs6Wifk5MaGwbGh0fFRUfMGzp+rq61ta2luaW4KBvyjw0PNTY3dXZ1dnW1DA51bX38+PyPVNX5xsLdr0gg0drS3Nbc0tp0sLyo71X225cKIaFrdPSfHR8/7J0cwwB7Pzn/psdltdSfaGit9k5dGhwYamxrqmltqmtt6By5eGpvo6OxuamjeuGr1ynlzDO9wU4fU2n6yuf1k39mK3r7y+sae9rZTLXVNbU3Flc195yf6zlwoLCiTqad7YsjGePWrUf1bmXgGCxNJZeLxGtOxCTFyweFGj7qgU0uwX0aWvFvydpaXl7dYqWXldHWlHLdXGNXk8Ti182rq1BukPO1ISyYbAAbqIAY5VKvTdoAsaKexj1QI1Y2fCfNuatOc9Gol5aLQL9A40jy5yt/8zd8IQvzxH/9xWVkZ2mrzjNJkx8Wqh6Cmum21lxmUagFv6RMyspNfTxqAf59Tj2eOL3vwxICPJ7EC7h88HbwyIZKhO4jhxye+3V6GSc712InZcCIjDIoH7XMU9UtVw8gVyzTHevaoWZ3BwPNVWw1ZALrtiFjIqzqrwGIx0VLvJqeLK/KTsxgkahqHsUH4M2bwniLlGyLxK1/5ijzBL37xiwQJkN9LmoRMQPbKT6wowxxAwV41CI6EKtSoOig+wk8BdTAetR4nJTmYCL6Z6H5hRnF6TV6nKMCoJa8edifmutBK0zB+0ud/edO25t7Ojr7+19/YeuFk2Wjf4OvzlvS0lgcMY8z0XAmGDW/LxQtHa8vPDPXb54U9RnDI4ZaYsi/tRG3d5XVP+eGErEyTXRe9mblF+bmHHQe4DWPCsFxc3vY9NAy/qDnBYMLu3fKAp/JIhnEhCQ+cOffE/Q/FJSX1nD/nmhgbnRiKilyfm3uspqM/MTrRHQpMmi4npo+LM+jINeF+bcFreWkZnonh3q423+T45Y28bGLjdvrVWN4yQSsRjfltul/N22V86EzEKwuPH0yZGB4cHjjrt1KtGXb/yPb42xcLmanYgqFAMHw8K+fNp5/zuibto97OT+8KhAJW7nr5t3V9xMuzHzV84+rt7wubFU5rjRmUEHbuMMsMjEc7VIf4AXtNOQ0ycmK8GlAH7dynziR3MILUwyxY3rzi4mIBxaqqKqbhLJcDBqA7aiIDjUaFEOi0FzHts/MCgMdYSfGw67aSG8oLpImsIGs1c1WLvUxIm7UUET+hAqrdjspx6cGFU2kfWA7SCP/Zn/2ZIIRo8+iaTCRUcey8fKlophzOjGW0BH9G0V6YVODpjlFN6kGPvzbG0zPmsgoWW4/PnXp6SA34zYPoGDXpSfaoGc9nrxGiJj2nB+X7KSoinJJEK3cafxhOM6OEUZrRR9WQgvYP9ALDiAUkAP2MfNA+J8gVvlwe1l/8xV/IE/zmN7/JpBFQlIfLQ1RHLKzs5LlAiUDdOGUvMo5SwAzQ6f2KoxE+BOgyGnCCvgDGX01Zn1muE+AH7TgTyHs6DSs1jOs0/29vMFjY1HrBNT7q9jQ1dwfcwwGXv6rgxMTQOX8g7DGdB0W19g+Hwqcnhsf9btA4ZIQnjeCouRnGT3JsfELeYTvnjEaZTgVDTfqCl3zGmMvtGjkv1/RMnegyWWnbh1Ex3hsK+sJhkdfyEgZDpDXzm66bwZBMISvLyo8VFsqvo5cuBoKe5oaavv6+cX94eGDIFZD2BQ1z0SXTrTJo5R8mzvZMZ79rbHLwdFdFXo5reDhswbclOSw/RWSI1QhP2MJ47sI8KPSOWeClZe6JS7Ul+QO9nYP9Pd3trSHTE9II4Axpecxbzp5mbFSAagXhDUOmuTV5BX7XZMhyTqWvzPVIwobLH/QEgqbnZjDUKLOl/GMhn8tMtBMwPU29wbDLEgo023R3NW/ZdM63ZUXoKhjvtsND0R7Ie6RkPPPQmYNx0OGxNWjPHxXvMTI5tXNywjDblfGOCfaStfqFKkZkPlGt3Ul1UyDa4V7UYRo0hRUBoSG8SbSCvoX0ULRwuu+pg4fOGZieq8c8Ti9SIbmsZs2ahSqJkFH6v9eRQa3fkUu+1xFQi4ePdDLhMAiHUXuBOFhetbleDeNBGpPFtAog6nUkI5AGK+8ECCF5EIbO8FYF4w8W4zXc0+tITq9eUlquNjdwelKpKJhWUDR6rPV6sTyotVstBvD05PaRYSy6xsc+9jF5gg8//LDAEhMMrJJK3EHuybNmbUDsqaTzV4sKokAnft12rK0a2lGgBy0uRVMT4+RDHoRfRlGMl2sxcUWfumitTzgN44lZcgdDHr+FR/JpebELssssD791UTld4fBwODgh8BnGCd1UwCdQHM1kY2QGDtlQqZA9FfMqNY1bmbqM4EQ47PUAdSaYekOhKV96TvCbjTEx3jwzZKapxJvS1KZNbAu+nanGFD7WUUbYFTAXkpr0B91TeeWDJooaQZrqDVnICbBPJTKeSg1p+5ebe4LAsAWxONrbEuIdSjAU9Pos5T9ki4VwyGf5vNsykAmB7dkvTZBhHfBZv5qny4trtw+MDwdMzioUpke5X59Zn+mmbyX2DE5PExSwboS/K2I8b6QzhvWC7RavxLkz3QDzQfWX1KzY7GEnEgDPXV3FAQAGLAE8DR+EhYVsUX2dsNQzdpkGmZhaUYilTihnRjR55SFJECZO8FY2BlGjroItdo5C5VgAjHZ7mTjprqKiIsj45557Dlq92V5OUMUF6KscvHOegBMLHvCAsXQvR0LZyosoX68f46XnoVxUFwcapcjjIEszkxkIB6gMablyNRRg9Zehx6sxXi30PnshQaedfuYV9VfuyHN5MiKvY4bARJEIKYpGNjMSpAeYhkl3/f/snXmUZVV1/5tRIC2gOOACRReOUYMSlxEQDeqSlYgroMQIOMToMoKJ0QCiRAKJK1EcGRQS4sBSSECNiIbJpumxuqZuSJSmu9F01buvsiLkVw0mdNV7PRS/b50P55v97n1VXV1VXdWm3vmj1q337rvjOd+zz3fv/d3f/OY3DzzwwH333feLX/xiM4V5/jLXzSNwaGMqz6Rf9ff3o0XMbxvJcxLjHx8MddLpV6z6cEuvz0pHOASIjSVAiKlporJN1TZ1jGcmYfE8kCseQKu2zXMVvjW2j9e929HcPrJ9Z4MSdtsTwGDEpqIX/4PRnbKetieAH0lm8k7Z+zt36n2kOlA7jO5jCWgTmjcFzY9tGzdC9bvxQpVjyQZNWLZtx/9iPEaoUHCrUFO2bSockvArFY2Skb1jx/+Mk/fjiLhj3KIdd9COpw/rNCPbmolp0VwwnmQ0XpBqB6bzyI7HRxs71IHGZC7vHO90O5Ox3kzzUzrhDs7O/zsTxjfzxi4TcXemOxlfwjS2PZ4ElfWfbrfxhGGdUm3Hxje1LtoKIu/Ut83GjtHHt29/bGSkmRU5E8aPbRvbuR3vhJ6OJrnm+KvRKxlfzGwfn/gopPW4J6Cx/N9YXBBNjvG2zq1fgCwq3lboGkuPbw368aXMPPIv1PH7c+vu7n4gSaoyqlhRonyCkc1YiRawM1xsIkeMh4tg4QwDg8XGijt6QDHp2B8AYPbwoQiZtLvUGa4EsqtpZz2x7373u2D8pz/9aX0CIRBpeLPvnPrB3JhhMKNNxvPkOa9HvH2uU+dqSujIO1Xvp9AIkMOyHftS94u3u2RMzy7GG5urNH88aQnUq82+gjgbxOXHw0lgmYUZkTbEOcKgc+96vDxJvTi9vn322eemm25qpmor9EMdxB2gljQadBymBT1AAusfSgHx+tVDKU3v4SS94VBZVkq1LJlRJE1SmLqfhvq+2mfqGB+1yqbSELHBu8U1APD6vA3GCxQ0Te4cZwDGmmNbdm77HxnFzbGtwpNtaKGP46SARaZ8cxyoxq3J7YlgbiTGRRi/M0l8ycbcNk7DjGWAN8ZrjbBzHOPH54b/1pG2Yisn6G5unwDjd+zYlkqDpCsUoo9p/tEk8+iObc0d28Ypi53j/MTORDeNz/Kj2xo7Uvbn+LQgjNd/28dN57HHH0vXMU7qb28+vkMz0ThRsnVsfELY+QTGb9+ZzG6oEsjtRjbod4nxQt7Htu8Yr+DaHOfux/Nvx48zjvHphpqJDtJFPD6yc3yqTDzQWGOnJlM9lB3j65a8uNrJOiBltY5RTHbH2HaZ/KPj/HxK4hXKowG3M69LnsgFDuUOd7bD+JKEwUOZfiG+ArLFHRCSnqJ/pnpGQzYen9DLtP/GpHOrri2MByxROCF45r+SIDfLW6B6sFIXpN5a668IWl8xyI4KSmvXroWL5XSsu1lH/3uuGEWUM0QQxy8tGMBF5gorq2g3IcTnP/95IcRBBx103XXXUbENEvdnuTnBB/fqhiylCwLhOCRKx95HpAceyCUu9K2O3EgV4RwfjwhZPdVz1WUg+as7Irt0NGgdlnyffDWayjk9lGQ90Z+pQnLJsJ55qxIvE7W25x0NGXCjKU0ifh4nED0NfOeEVRKlYyFifCAEt6jjn3feeczSK1asaKYkDRafv0gqOryFwSS3rxfB5zqmnr86trb1wImAh1vj1A+nbODI1nsVR18ld9aJBw7UcWmQh0JwPGvgKsz/IuSCT8LTW0uHf9lTR2gbHz9OFozHs4y7FP97e2McQHaMu1SfINZ3oA+ws5mCXqAfdmZGINMmO7enatfjuJs+oFp1XgeM/04oOs5IjDXSNPGEiM0Y6Pq/SgSB32lFUV1SI0lFNh/PCgtj0O2PE2z5+FhSbX9i2tr5RJGOsSf4nx1P2LzjmLh9nAQBeB/PJbWfKMzNj6Gatj8OmbPrtmN82TNuvO8YF41PVasehyNvcUpABDXyQ9s2lrQYZPEnZubxfPYnqK4M34/bYZFZqizD/78fP+Fx/d9yh2PtuJqRXOn94aymh9OUcDmCbR7KflYMhViAZmulkhThIui1q1/39PTgIaul6ghCQegdsgM351pwDAtD7yTNefibU9g3XiWNb8wmffuLJBtizxaGLJY9xIVjM6KRzSrCzl1ofirLan9w973vfS9BNXfffTdh00WWoCnR8E65Z5WyOcvmWDxnc06xIdYfzNZVaVsnbYYcqEYKeZoE46cIt42kgqtLQiZ6L2/G8mZWwokVGr0MYMNuJZRMmTyHUqlAfLeWwj7zzDP1Bg8++GA9QHZGRxLfKhEyeKbV9C0/p8PraCjzYAE1U9FWvSANJWrPcFI6FasIOlURitw4P5tOqNPh2WVkOVXwoZSEaCyfoi8WVQWrkXnSmIir6bT/w60V4zG7bcFD1Fj710YGcZF0opJucGx8Th61+viaNWsE8729vejAbE6xgQTis55lZb05BT2D1lPEeBhHjRVGCQNLlwcSYOo5QB+OH0pHlyGDHrx3liS+SesdMNxB6AdSZTY9sRNOOIEKUA7WZ3KA8IluBDfCcqDYcYuCUk6A1w99C1AE2tlczVQwfirGN6awjkzA4KywMXu0Rd49NpIoSnxOlQhCJhx9zIdSJiuU45ve9Ca9wac//embU04CEfMsAwaTrjW+Gty3QkfeKV062vFU3YDe1CeYzo2UG4CV5LKBrA3swucvxB09kF4Er1JKdHIMxBSja8B4exhsyncwfgG21rgackBiZxG0EFFjeVJ1H+dRW3q8lPPqGWM0aaoQHywE7evrW758+erVqwXzLBKg9klwZDxFb+suMd5jBXlyeFDCEnW1zsNigU8tMgBDo187EFcDqDujyqtp/UXNhpU+pDsRC8ceeyyh1ZTqJrHIISu22+zWreW6s7hsmynOkQ1zEQ+lzH/dDnSBJh89md2y46eC8UAjz3a2GPc92kw9NXOsZeR8bNCXXLmNwPxQ39ziS4SpvupVr2KW1jvCiMc57UBI6ztsTtUm4c7p8CWMb2Y9Dp0XK4lLAuy1P7Y7sTQweDhBzeSwnDO5RE/Wh7aqosle5e+rDQdCDILuYPyCba0Y74qqXhiiHObMVxaS9HRbURYgqGK8mrP6gNKYHoKj6xdJ9IOBxbf1oAs+FYxnAAHYBDkQ02xyBj+lxwr+J9ghklx9zBiVySjfnEsLEpyjcSP0lf0nhDj99NMBXbwHDFlzLw/kKhcOzoaAL7IeIvQOiyU1kkGBE4JAtDG7XA2QSb6VWqNSC2QvbM0QuE9NA0ec699S9CW7US2an7uL/iLXHlbP7OrqIr3h+OOPR7aaRjUuXPX1XOuXd4o9TSkOWO1mjsYB43VhQn1gFZZSGzxeV7Mk4RUfP9Qfxn20C6yY4CB76L6YbLjLeBvI+EdyqTUP5w7GL8DWivEmZLwkdFkzix6h9TEaRMKiZoF5G/5lxSroXbFihQYWSrPEzHikPpxL8OEZtU7VLmG+FIb+b7nSKkMEaMfP6hhJSBgsbxbIYHytUrCpCLQ66wR8tBrQP/rRjwit/vjHPw7qbE0y6uCu1zwMZUu+kCNjCOGqoJW8iiDhHEp4fSotrWPqAjZmbWHEhPH7Tg/jeSksLeyg3ZtbxHj1FksYEMCIvILr+JIzbdFdz2Ajqaw2DIa2b7/99oMPPlhv8OSTT4bAgXt07DtKNbhueIkoAmG1oxyvw/JbBo6OAB+v3Yhl0uvjAlg88CFeW10h0hWO43dIr4cACz/nQ2vPzUlwripg9lBFxgwtbmO8B3UH4xdgyxhPDAxJE7FfQDeSokcnYpSA8VUCnhEW6QjywzUohcFr1qxZmdrq1avVeR/OCiHkBNkvVYqDnwTj61lZnHAaMqE0CDCXCfthSDEKob0BeHiYKP9r4d9NuaggMwMDjoByPa5rrrmGClDXXnutjqzHQpQiNMJuNZ4bzxa6iSwbXLBwNaxGEPrSCwJ+IJ34Vzvo7mzLtoVJ0zIEYLKQMAGylzceVCMtY2L1FwchWkpgUyoOOZBkLIBkh/Ea47V9yy23EFTzO7/zO3rarrZHz6ED4GXHaiDi0oFklHdtpkJX+FyZAYzxGDgaLI2cdgzGW3UZnZ9mKpTLgoHYMHogcI5LB/vCOVzoGxeJs38419qhkRAC/8mkB0fqsBy4Vp162rXsOu1XsQU7nqAaYB6pqv/K1VuxtvH6YIi0xfj4IW5aOE5iCVEmwaIlE0edDpOXLozDKVrnU8F4h77YHiqSB1cfepQ3QqaMLolsJkbSQFaEtOhAbFhRsC74iXWQiy66CIRYsmQJcRSjObuniuLbdtVAWY1I6FiCbTgvXE09FbwmdpKA+CJR6UwOuPGAnBhmaFCPbIy29QQQMXb61V7emjlmppmi2DU7PZJL242knGwo53rWm9icRci8JPMqDq5GPfNb3/oWb/D3f//3seDR0iEYhpRonPcyBHQ0Ig8ezgXrZ4jx2kATWPeFWxRLx9dv9sb6HXRUzPr7cxFcOjA2EW5a4JxByjGt/NzhahZsa8V47N1HQnPkMUbDI6luh6mYqh0/kgPlyX5SB+zt7V2emmURcMTi0KVYJpQFq9RaUJqdHONNp7CB1xZVKqJlLLaIHYafWFfFlFIk7XO4ES8bmGEYVeZYcOLee++9+lBHOOeccwQPixcv3pj1v0Gj0d1vYABhNgSWwgxg0lGKo5a01jRwR1KhItYV/Fw3Bcbr1tqGnpuFo42k8kyozutEngf25maiBmenrtw+IlZoI7lWoR4jbnULOozkSmF60QROYuB+6UtfAuM/+MEPWgaP1SZ9A4l9bcMuIrv5UCqwoYuZIcYD7aRiMeK2JTELSHRWhlhGuPnhHsF74s1wEBEWQAIAvcXVpkhowcqPJUM6GL8AWyvGu5aTVYIZYU5IZUgZNkoYTxyLMR6ZVviQu+66y6LveBkxNdQ0/sj0drbIFO34aNCzQeiCTkHJIRSqrEbGGl8jWJ/jncU8csBjSTqhyOE9DDL9luXwG9/4RsHDscceSxoRFfAApLY2+iTNO+i5bcylTB9INa0oxVrLJe82J1H8IpUXx7Jk4sXji9skwnnE9dFQM0ivW0/eBUj2HDbPVqNfNdIjIrwU+xUCG283tgO8YrxlJjHS+gaS6iI8+l/91V9ZioI+jydqIIviW6qaUuwOmeTIM+dqGGJ4GKgCi1AIw5DD6qsipVUQ3hPTZ13xinlAvV2dE+8Zg4u1N0vxKDg8YQ5Up/3fbRWuhnVrCeOxdR5NRYebIdOkhPF8Av0JCaMR2dfXpxGzZMkSyhIJrh7KqsKP5LI7fG4xginy8Qb4Wi4Eh5uTwENEdOFhGLgE9oCgJEARKRnFDsAPi4eR3OQj6I40mFAVFtK7Nm0Ey6qlPkkbTVk8OC5QBoYlI8WWR4GPlrgLZhsoeZ29lmTSNqR6epRFGao0VvE0sBD5GoJzdnmF897A+G2p1DWJp7geWWKx1nLwCf0hprDxoCBz4O50yxdccAEYf/HFF29NJRHAeMwQqyph0+tQdGniXhuzxMfrCMy3+Gi1Az/EdQAp9F+57HERJLLpAK6wgiSOHgsOB71c+CidNHphMUYeSioM8w06nTanLdcIsWNyS24xxQk81t8YP2M73hRNIzg4ESRT71u9erV65dKlSyFP1FWjgjjzgIutQoW6xkMcqUXIGY2fWGoGzygYD4oP5EKe7KPur3EwmOuFwMZYd2BjkP/F4nfYI7q12lP3tWrVKkIyzj33XBhchvv0eI/RHCLfzKIrVmWJSyOL/7D4se6+HnI918rz7bRtvkf8D2q4EfZ+U34kR71rA/zG sdUfSw0F612RBNBrNgO+hfVRe35/ve/37V4G6nwqj6E7nMA1UCqTwgxbzteuzVTXM0kGK9u30wBB9popFcMeAPt3oCPJxSAGQw7fiTl0bLh45MtaOVWVpUuRUh3he3EMczSxRM7rDy2my6s43NdUC1hPB2qivGu/gOBU8L4Kg0/kmsDMTnoIGi5qOsRTqNFpbZd5FV/wXgsJ9DUYr+OtInQHnG9pFiGxUZIGlwHBp/JH0vQFMFf62Myq9gFCzQSraHr0cJAn+u+fvCDHwAPl1xyif7Vz+3TnVyMZdoI10iZPhDM25IMnwUiG8lZC+o/mos7x+ZstSgPygsazSpfs37Ns9u4zkaS5mRlhV3uVWUjzI2OVnLqqnYjYExvGa5GH5511lm8xKuvvhpXriAWYgTFYCYTlCt1OjBeJ4U12iXGOz6+MTHGW+hGZwfjCbFU0/EZUJjd+hY3aiNNR9oeTNWpuE5rX2KPoDoGBUSihWMRWOx17PiF1jLGm4w3xruqmwnLyTEeo1PjCR8qQV4klajfbcpV+OjIJL/qgMjLOIfIzHcsnbcxV96pBs2bqLGMGdaY7fgSscOAgLeJ0ZqeLkqeV3bYlGo9kzT0la98xSZgCeP3hE0ceeUIZnEfvmUeaBu34wCbkSzibiXhWb/gWW+jWZRma5JfRvHLAkF2oZRYqYdTiXmnOKunQWUw1731rW/VGzzggANuuOGGRgpB1auE3sb6pzcS6zXvGM+JSJ9lbOIP/lkuR85zcCwW5hVTAbnaSPQhhqfnMN+g02lz2jLGW1nSpp4XwhA1U8F4ZgP1vhUrVhAEvyY13IfwAy79x7IaBrREJ5Ng6sI69pXiDKNT29Var+gPax8CEqpZVLUkUsk6FxFA5P9s1pd2LlIg8uZU1ETbGrLnnnuu4GG//fb75je/qQeChglotOcwvvpvle+veltL84N/Xvp21q95dpvL/Y6kuikE4dKFyOspkigdPhP4KPBvMJTO5T0SuKK/J554ol7iM57xjKVLl4KIxC9tymXKLTJTpGSrebfjwXgdjRBmT0cI6XGD3D7nYh5wiCUTIxqaurUOV7OgWsL4rbkcs4148y2EucPN88kkXA1GP+MDfyRGcE9Pz6pVq/SXwUeaoA7rUGAPxFou1GpZd0sJ2LLfkEv/4WmLbloSxbU/2uFR6c+TANfAcGfNQFx+5Hzs9CWjCownYvGUU04RPBxyyCH//M//rAfFcNxzCGcTvC0kx9hxfxJboxX7d3nAvbABq2A84bHYr7x3ULZESbk5681ZUfg4X/ayl+klvvCFL9TbB/W1MyFM9DcdmT5mmZr5wnhoe/LLt6XC4jjmcTRh+LDNxUNhEWP7QC5ByRSH+aOfzzfodNqctozxVaKmivHQ83YHVu14p5STFg5egvR2rFLiD1eT801wjpaC1KNVDdizf6RxrBEJn8MAdXRkyWtLY9nQSFJV2Gr22lZ3tgokWae6d4JqnvrUp952221I39iO3xOtBMmNir0+Oaj7V3GH0p577uJnpY3mSlV6zoQKUv9Df+k81nIpqbVwj4R4Yf7CyQjknve85yFWQ5FJvE+GScx3GCHSiGJ8fGNaGN9Ij72E8fhcjfH64UQYT365HgJ3oQ08DKxINdbQytQP4Vd1RgZFHE3YLPrhfINOp81pSxgPIRPdcoC66RcTNYZz4KEE9qMp8ouIGo2P3t7e/v5+MgWJXNNwYSFM6hCLTZJ6hkK51qK13lOJimEUUo0Vm54KHLb1ichHAMz1WcF7pNltfFtDZjCU4ytaBeBZBWtPQs+e9axnCR70VysTAIBYiz1qzS+o5vnHn4ykWgTUwALa4SWs84MDh0qGEM/Y4qwGmb0RfVcH1udIyv32b/+2zkLIino4a07Iw3rKLVbTTygrQpwM0cQztOMbyT+gn7A/Gczo2zC+2mI8J0JTUp+gAAIhqQZpw0pA16YjMDS4fVtMeg6aAOcbdDptTls7jId9N8b738jPVDEee4vMC3o6JnVXV9fy5ctXrlyJGUE+OUoamODw6yyoi0lbLahuE+lO38d0g5rVQGFhUKQkdrJUCdchLlIb8EW6Hv4l6Mygbq7GySZowmikan/g4ZhjjtGChPBPs8UdmJ+V1hbjmymVCdUgO1yLLDlKTJTl36z7icOeNGVoCh1EL+7JT36yXuK73/1uoSyrVrga/xyuRgcE47HjnUI1lxjvExnsEbjUMZmO4BLRx+TyIGpwXnUwvtMqGG9EZ9EHSf9oKvc3sqs2mrKlYGwAUWpyqDNqYKGlCFhS3I8YSVOGkYmvekCLEO4Ccmss6qo0UHTqsbExBkoziXix7CXtzzDgzCb+shiAucet65pQrtWGO5bEKN1XT0/PEUccAZWrD9E9bGRtxA7Gz0orYbznT/VDlI7gZ0rMnhdgzM/M8MRCEuVFfLw69l133UWGw4UXXkikCoYJ+RVe8jHzIxDJBYC4jfnAeNzM8PECafV2lsrWXNA48q/0FZ3Z4iAdjF/IrRXjbcRbnZUPCUOLtnvkbSIxT+ykutJ9990nXEdw/dGkrq0ujLmMjAbj1fhqhTDcaXamxsawRg1QTTsQLz4acnl0GdhhrmAFX04gIdfpQnAU/cFSp1gI630acjcMII0n/eqOO+449NBDBQ8vf/nLdTG6i+iz3Pu57V+JVsV4/EV62pS8patYe8wAbxMgBlwRo0WFSfSZv/71rx9wwAF6iVdddRUATGSlvZgchOxhsk5Hc97qvGC8jobgUiPF1UDMI5mG+5lcLc6CeaVuTEB8yVbqYPwCbAHjrWLgyHgwnmjHEj/TFuPxtgoOSQzt7u7u7e1FERIuhUOx/iUzD1uEZbWL4MTI9ZIdT9Sy0FedWnMFceGAN0yRzgI1y3EYBP45SwuEmuLN6ivtzyTjVT9jCM8u6i7/9E//9KQnPUnw8JrXvIYpwqHqvxL5RL8SrYTxVhdT18J5j8cdDj7KQUdpA1dZAuHUH4zxl156qd6g3uMtt9yCF/PRpI4KBOqYrAEeSLV7wXguAMKkOYU818l9ro1p8fGwgvBF2tneA5bHSBiNJmmpWlLPdrRYlAXpYPwCbEmvxiWZ4Gqsx2t7F4xv5DyaiPcx3oN4eg27VatWqTf19fWtWbNGPU4GPZ4tlCvRxBJOUwCVIeW61XhMMU0gTKwTBkvK0lvddiSXfWvm8s26bNAaIpZJw3Y52gRRZdzVJhD9iGUG61kjYDCVZ9I+Ov5XvvIVlOPPPvtsFLv3/tjDX7lmLTde7mjOgRpJgVvEkJCp9PPcIN1tKZh5c8qyOpXeLGlEf/zHf6w3eOCBB6pbjiQxGXLxIBX1Q967DgW3g0wNGI+TalZiJ8F4Bl0jZfGyYNAI0vEZVp5V8HHhISb809XNyHDVxTNXyM5C2camTayZ2cH4BdiyHR+jih0HD8ZDWE6C8TTIewLcVqxYgTCYTHnhqDZYY1qo24nijpo0rOIucjlVvGUsyVHqIKaC6ALs+GaWfMG+sUyxM6oGQiNe0rQMwpQEY3CiKD1u/66GnU702c9+liTXj3/842iAdDB+1ptXiVtztWBesWvPuAdqWzDZSMX0IPEQlzbVpm1UpvUXeNOvzjzzTL3Bww47TG+Wnq9ODmsnvATj8WKiZbk3YDzVTRwFxNqYQcHMhjt5JAmbYcLU2qlzdzB+AbaE8ZbQLmE8nxNVPDnGj2ShbkRc165dq+Giv0uWLEH4lDQTZDQYjk59qofy3OZQB3OxBLqwK+BYEp6+byOvkcw+XSr7g/FFa/m+etauGUxVkMiLKZJKCajPAsAbKFFSzoQM8IsvvhiMv/HGGzsYv4dafKTNrIxpxZ6RJODo7UZrlP9IUMtjlnDtDSxgvbKTTz5Zb/D5z38+dgeRY0i7YFwga6f+iWMqKoTNO8YTwMsyhjFCUhi6379MtRCjjdPB+E5btIjI45ggaIyHNXwk1wVpVDA+AjxdDEMcl6dAtKurSyYU4oxwPuqk2FvsZleZoyNK0TVYVDrIvffei8uNBQBZIVtTxQUoeUaYvlUfd7oqa/AiaMz7XNGtC/yzyPUqAlu/v79f2xRiPu+88wQP++67b29vL7x+B+NnvUW3Bus0gJNOSIECLHv6JLmn1AWhNzazqg9rVMR18b3oVb70pS/VSzzllFPgJ6mJhwvTNdwxhenVewPGk/rEBpncoDi2EonjSK+h4M3yuF6pi9zB+AXYFi1Sx2mL8cQeOsxmNNSZMA1vlsZeW3W67u5u9TuMJCxmhheHUheDPbX+Y0R3R6jTqGdp8x0ilrg2VqMEHmCxjSaZDhKj6N1eIURcr2UNSgh+/pIrGeeBwVw1DpueXMl3vOMdgoenPOUpugCP7/nAwf/7zX1MfY8cHzg0ZGdsrIPrZO7SaRvZ+mcqAGItUabO+ZznPIfgeLolETvqD+TQwdehRsZSdu/BeGInGREME4x4xhq+WH2IIyIuXDsYv5Bbwnjb65YUZqkbY+VLtjuN8BusKw6i8bFmzZqenh4kguFEqVtA03gqlbVw/G6VPiyyioEOpVHOiHwkiVFBmjpFVeMDcRKdV8MU5K5XxIf9r1HfvlXbPQA/kI+ppLPoOWgflvmveMUrWEhgQXZabCU9hUZFQqfaSkfAz9rIoTXoJ9pHDnrp7RDL7mBb+gBAjraSSxFTvYuv7rzzzsWLF+slfupTn2LlSeBkkeJnsSNYOuqwdGx9SydXr5tKrb+ZY7x6HZOVYydB8WbKc4XDRM1JGI8NxV3/MpWOsi63OUmHLGi7o2Ww0FrCeBvxMd2JYJtJMN7c52iq7MdBSCShourKlSuXLVu2YsUKjRhIfSq8kmXNSDXE1irKBdGk1uDTngYM6Fid3ew+Zr369b333os4Qi3LU+5WM/Ab5lFI1ujRHR199NGChzPPPFOYQQWITqu20QmkdSJxXto/NjAeu1yYWiQlLTWMWhI5yORn5ifRCaRnHsCtzrRAA57VY7/97W/jUbnmmmt0arq33iaRXUgDAKI6GnFiDmmcS4wnsI2Vg3o7zCQYTxwRUUAQNYxQpiyyCwdToULUnGJRRN0dKVTzjTudNnetgvHExowEFQNLkVUxniGLLjFjRZ0O+lPbMql7e3v7+vrU3SjDoKGJiCQwXA9ykBMV96unqm76iUfMSKjRDBPPdFSkWqdCYnKg2sYV7BLgixxPrOtniqM+nk63atUqAic/9rGPQTox1XRabPSNtgY6bZdmvV3po6kouZ0khL+DWIJkYuLxpMLXway74LUj5kmtBuOp1r3vvvvedNNNSILpc6ocIF6EQwkyBBJS/XmOMR6uRo3yq+pmiHJrN0oxgNmkf7CeHGkti8Jal8kK59KmXC/5l516rgusVTC+Wt+PwdEW4+mb0DvaUx1qzZo1/f39P/nJT6xsrQ5LKodTFWHTixD0MpEpz1eQjnR2O9tcAU8DhdJIsECUt8aU2T0TPjfcvQxfATzx07rTm2++GRPw8ssvR5C2rVW6wJs7RqPC20zU2h4Ej6meM+BEzKBeSpFE6YhzFNTpw9HMCLlMoiuaCVz1BvUTpgL1lvPPP19v8NBDD73jjjsaiezXnkXKu0CoEdc7al7zhfFEa0aMp1IfqxoWlqyW9SgI8ORG7DobzULfVGngpggm0DE1XuYbdzpt7lorxpuMJzI+EjVtBys2NPit3gcBv3LlyqVLl65evZry3Hbc6q/2ceFs51o7yKvWrsYTaXyuqWk7byTUeSPJVZ2dyEc8c9UDTrFhxCPUfd999+nadGSd+rLLLhM8LF68WCYgNFGHj6+20RxnBduwvdJG28mVjgZffvSYqjfqnep16ENEK7DX3T+9ZogzBn+Jz6GOC8aL9ic4/phjjlm7di1UjL4i7wKYx7+Lcvx8Ybw26NUEzMDHM2txbVRdJ/XJI5RngjKmjsx0xy1gsiEmos7cwfgF1SbFeMB7IoxvpIA1upJ6H6re6p7ElJNYhLcVPW8dDQ5VMEycDNsEytcr8sI0iBrYErCckzZauXl9ogFBgixCsm2PNkX2hrpwOsjdd9/d1dXV3d0tpDnjjDNQFdYMxsxWwrZdmqczh8+9fOVAX6rn4unEwMRArEZG/VIdwmYoyMpSjflc/Ur9hCRjIVMUjPBv42OJzx/gV/dTTyAUR39/67d+Sy/xuOOO01uG2dCHrBWBeWM8rtbZwng/nKlgvA7LD30i1iHaAdtdF7k+NV/b1lw+mdRe0l49WDCI0ODXxnyDTqfNaUsY/0iWjWc96DgZWHYHx0eriz5oE0r9et26dcuXL0crhmIeVBCGJYWMJ81E35KuitlNRDshvw5uIXidNaYA45GkwwTMe0ATHM9AR7eJPCmrlBStBT/iwZ3GWmsnWaixpTvSJyirrVmzpre3F3h47nOfK8jXqMU8MutcRZpZBE4n81cPW2KyZ+uku3V53qB2BW8WOrzIQUpOOxZg601Rpg9tC0LeOY7uESzn5eo5U53F2M88H1v1kjga++Mm0unA2qOOOkov8aSTToKHhM8pUhyAE6/x1+ryeMVVnysBPM3kAYUmn3U7HlTWc+OMOoKelXO4tYFGPkSiyXi0HqBJCaB30Ci9SGccS22+cafT5q61Yvwkdvxoa/aTB5MLP6lPkTpOiIJAkeqSMIWkR7kiCICK+isTAino6Mno5xgrZKNQ3cYs79ZcI7sRjDn1X3TOnD4byf4iFPErWgMnPRvEPREqId+EzwUAQncUJwlOsDRn5Bwas60+WSUi9rYWMV4Qgn6/XhnqogC5Jabxa+KTwXtqvg4k5ifaYA2AixGT1Ii+y/VS5GrAeFSgddLDDz9cL/G0007D4YrMNVwNMfHg6N6G8TqRPox1CJEONpvqiCMIeFfa1L1QoYfgYh1N1zbfoNNpc9oCxjuKZiQrSDqopsqeMpjw62hPOiBWMulCFLTHVYaQAR0TBQEX6DHKAueWEkBSEHOf4mbOYI+BnI6z04aOc++996LBR/BjVYc+ChzEuiBFiJqsJ21K3QKJj0iPr1q16qlPfarg4YwzzmimjAJLFkcMdhpOY5as+Xj8tpb6niaIdtlKGA9VDPJF5wnBV5Y31Q7qGxRZYS6lliMhNDSiINXgKyZ6AtVmjB9NudqESKkna515yCGH6CWec8456ks6rD6n4KtRcy/E+GYOiyeiRh+SJs6FsQrSw0ScTJMA98swgcCB8CSerRMfv9BawHj75cF4PuHfkVC01VjSzPUy1b80LPr7+5EbUGfE1QrfybDWUKC+sHkS8ly9hAdoXY4P960OqA3XZW5kvqgZalV7Ya7Drl27FnkZl/qwxqy1cYrsiy2x9bbjcbJyU/fcc4+Aoa+v75prrgEePvGJT8Dscj1mkRuBIjCrMDLjqiFRjQcau7pDbHNP11QxHiDBIc08XL1Ir75oW5OKtZ45eiz8JfNB/QGMd8zs1C9sJNeJUQ8kOP7AAw/USzz33HOBf2IFLHtKD9yrMJ4cKJ2azEG6sQyZIsmFjGRxB52CoDIcC/R/rpzFNg5XPuz4XBdUa8V44suM8VA30UKNGM8Awo6nqrWwsKurq6en57777iMMjdEAzAO9DCPnKEWC3EGUNI082BvEIvUVa3ldmJl4E7TCP+2GbHxcDLAesMAYmpVQRtayjMw9V4X7WXtqkkER7ZOf/CTK8ddeey2eLf1cQzBSyxpzxG9Ei3OGTLlTNrHYGPoTHXNvsONJHKPbYEmXfDi+1NLCo5ndrghN6lBOqSO2pNHKXHlhOcmFEdjLq9EnX/jCF/bZZx+9xIsuukinQLCXxFZi4uEPsXdnF+Mbu+lzLdnx2rBcMLlaTFwEmxHij3mFCwthbZbNjBoyyOif8w06nTanrZWPh4KwMAH+sJGcz7o1i8ozChsJgVzwg7Zu3bre1JYuXSq811ih+6vfUYSjyOIwRRJuj1GTplbACXTi8do+moq24g+DrSeEHQsPpKd2T1QGdmlPzTky8QXYaJsxdVDhldWF60wwmcAE6y6ItRCiv+997xM2CCFWrVqlU+NRplY4R0DAzPr0zry0B9f6zLi+0NDibyNLKIKXPG10/YsUD834Bo14ety+feSNUKQETHXpFC+6SnPCLNI7kTrTheEiHQ3FuarnjUhcujYm7WYKJtHriGG2Zu5x3BJt4skhrmSaOYyE6ZeSjB/60IfIcPjMZz7TzKLsflM6C5QRG3q8BFeiVzOaAgtYnLi6qqXCZmLHU7mEAB7GGloG2g3WRdswYNg+eiDqkzElHaJGrR5kmkgRcfSDixZ3MH6htVY+PgbVgPGOzOJvxPhm0muHaF+VmkC9v79fdnx3d/eKFSv0V2MUeKZ8j+sWYJ9ZNh5cV4927hK0qLCToUDRVl0kS3gML9yrGkC4mlAV9lzB7AHrH6M1AfhSYA+8uxqxaQROCuOJqNGHv/d7vydsOOigg/Rz8slxCbMkQOs1+hM4FwGkTCZUdIhGP3/BfoAK1DdK6Vs9Aevcq2mysmcaahbIB2xAMq/fAVpMvVLoueeTEsZH38JuzQAm7vRGdI/2k0x9onCzT11ohLO25LFh0uMV6N6JOXF7ODWcizoCwfE8hD/4gz8A46+++moerxqxNLj/wXiC46NMzZ7GeIaSMV73y6lZMBAojzgPemlEmrHqZl2BZgEiNiyVi1zQnGhKd06dZb5Bp9PmtLVyNXSZmOS6NQv8eV1M76MXQ9SoHwnOf/zjHwvmhfGylQVFMpfVreikGjGEUjiOop7Vv0oBLbbp1WFxICHTAfZYuQBRDjgczJpaqm8mFMSOZwIhnEDjQ2cXNGKUW7PSp+M4tni0DWzo35UrV+rWdDuvf/3rhQ3PeMYzdBwuT0eONL9NKCYoDohPwBWpXLzWjehCwnhwX7DBQ9Y1sFogSZG8dIpWA3gcBCZKx9Fv48LA3JoTYUz1GN3NpTRmUK6wmbMU0KoQiswQ40dDKKVvAf5QCMoiEDAmJ5XX6moDZAnh2UWNjASo0047DYz/1re+NZqSOnTBsTRsPQlnME2BuNrNXA1TB5/sUYzXBkEPuh5oFnzPLE2pPOmUdHQ5CTXAovF6z84ubAHMEF3MfINOp81pa8V4TKi2GG9U8BCE7MRcFqoJbATwgkP1L/o+HZmweLAKAxTkQ0Cw5HP1ShOiRh18NFcBGc0yl/Y+quFMUmMa0fGRYtIG/Am4jhg8YRuMFeTQosA8C3ZWFAR7eF4SzL/whS8UNrzgBS/QNPKz1GJcUFyN+ICWyOJzjCpTv6xS+FtyIDhnQE9g7dq1JF9aihkwo/SsLoO5DpgHG+zmjA4BVgiEnjeCqkwjkCfsOQ0nbjPXY+ItzBDjGxU+JxLwpWUJfQCnvl6ZJl4IQBAOUouerE7yxje+US9xv/32u/XWW7fmWsUsC7GSwXiCZ+FqoMlLfPyexngiOv1a4QAZL5jjLp7AzIMJAIFZay2KE6MKHPY236DTaXPaAsabNMCZWir/5PFqQQFE7jQmoEHAKsEh1jxajY/moiDqpwTBQ4frJ3i2Yq0/u2CxV1BtjzhUAp5toToI0QiIMFEhEJP3vtTgN0B68+VWt4q+XtJGyDdZnZou+IYbbjj44IMFD69+9at1KMs7RUSP7lv7j+MkZqkzTwiWYRvMBUqJHITX4q9uBDaahl+5t7dX96KfM9ZdOxFrXggEa+EK6WAVbg0oOOZzP8BoNE8Dj1nXaUOXBBswE4z3LOR/S6uLyDU1UrI1bVsItRrJqZ96QSxQ9ZBPOOEEvcT9999/2bJlZICoc8LP4J5khYZ3H2jHscoDROl3JBfv3qN2fJEkgo3xsOnqJJgqBCNzmyTpsvxw94udMHbFIhW1nW/Q6bQ5bRWMB8XpgxHj/dfrfcKL1XEEez09PV1dXStWrBDACxfvueceGaCMCZbD2NORXQbAoMbR0QMyMXahIxyD3sjhznbv2UsQzVaIIwYEh4IqwVzGVr43NU7N3+h5ReZKcEhM/Jo1a/r6+q688krW+G94wxvgoOKSw0SNzfp6q2KCKZ2YgWVfQWR7fKg489jDwOf4FnRHDHT+CnUQMOFeoIYeyNXJ+aEXNuQf6UNhj99mNJFja1T8tSUv6WjWDtKGLlWnFsg1c42+aTSsc/e3GG5J80qymYt6R2JqNEewCkG1p7oBgSu65eOPP14v8YADDtA7ZQbAvaN3DclNehEdErcMuR+4NiNXow2dgixSXYPeApXCNIjQ3YBR5HraxtXo7MQO6bfcFMIEHB/eHdMc06OeivhRbpbRylClqpqXeSUrwwa9u1AH4xdaC3o1pVLdWD980gire8PqaIq7JQSFKg4gqEz5pUuXaoM4R6KcYULwU9pgBXV+mps+tDNVjVAy/LtevEdfoIkFf65bwCZzQlapv8MpQYRDmJjEpWlwM15ZBrA/grRqp59+Or8FzqvSlvXW1tacmkqLAB8bdjzrEP3rzDVy8vXAWVdYNx28hzWCjhjKFRQJFcRN68j7SO/EGTU+f4fxeIllylyH1ekEco3svp0exrf1B7vFYKGqA6GZVQzoq3omuh7tr+f24he/GMe5HgsufPWxeq4nSRdFa8MvC+uZpR0hXvg48emyjgLjCaLEjm+mCuN6IwwfLsAYz25k9uE08KVqxDVTOA1TDT0KXg5xPr01kk94Czo79ovfrE2Jtq1TB2oBtlaMZ/RYp3QijPdujt62XAYmiAY6rn+yRYmVLyoEIQauxhAGyk9Do1ogiVTR54qFBM+ApHAzpIES1E6qCBhckjOo5Tr2OKUcfmOmXP/iJCbcEmr80ksvBeM/8IEP4E+NQ2oWMb42abkUrlMXhh9RtzmU1LZYhpFSDBWDnQdTS5DGaA59xSmLPhzZapByvEGH4IP6VV7cxj08T5x+dXxeJXbztMl4zzZtc76qbbTSPBXojghh133J9DjmmGP0Ep/2tKehjsGLLpL7NpIhFEui98LkDObCj+RnQdWbq2mkYlXY8aRcTQPjseN5tkTR8O7U2YjLwhjRZTiASj/R9QP85HYzmU/SwToYvwBbxnhHWhMtE3ncKsYTp2Fm95e5ObHV8Wt4LjEZ6WK2rdmOq0hGmHq01gBCMmduc22lWlQ244wlzRTxbFq6rf8JMSfKdjIgPAm4KhoJlxpPUE8abRdccAEYf+GFF7JiqeUErskxexotcj5Vg4y8MFzRZJSiDMOS33lYJDYQNq3jlHBa0KInyaNwWqTDjRA2IcIqEmLNnMLrRN5G8JMw9zIBuvrvtGG+keeQRjtrvrSEKH1rSkffwrgjOrly5cpnPvOZeokvfOELSVfQtwScqJvBv+Ge179+pPwlSRRGkTgcjoAZQjqVTmRob6TUEX3I5U0F4yMfz5WA1o4koNwVNgiRVzqFrselkV3Nr7r862D8Qm7Bjt8lxtsjyz4WnSLIG0ESjwx9QmU/BONLvCAjpmqwMsjgfPr7+//1X/8VUhmLHBDSGVlyOGTfvlikaNHEKgEkeIxVpIPb/0qKE+HRhNxwR/pL4Lvu5YMf/CAY/9d//ddceTHBirhqtVct+6m0tvvDHFuHkWQZiAXZc5ASQBo2vT6RLahH0cjRUDwx4FM3SPQlkx5y0Dx8C4bR7IqO8Xqede2Dx4lBGVRj/DTompFUiRu35dagP1dC8UZrvE10IPg4PAoczEuWLDnssMP0Et/0pjeB0Pp2KFeA2piq5/FAtOEJ0+o6KKXpyeNXJpuPKEs9B6bWRpKrp3iMMR7TYxKMx+eKQcTymNwl5hNsd9IqWEWw6GKOotQx78gZhR2uptNiCxjvIUv3cQp9iYg1xms0r1u3jggZAnb5IVGT6kpCF/ogsu6EBJgkMe7aJVkkq0WdupaqqMqUJ7oQz+i/pUZoITQzYrCOFcY5QCAK6VQlR2Yt5c7a40tKkYGNfCU4IkYeLkkd9vTTT3fujG7KUf6zjvH1IKVWVGqcgPG6fiqmALSEgBOGxJTFgoTfan8XnCghJdE4rGdY84B2TubimRCYZJEIwjyJiSpSpjJGPzhHmGczaMtMA+N1a2NjY8zYXsJtbZXSiIeNDmA7ZU3UsJ7UEX74wx8edNBBeonvec97KPqiv3qklsLUQyADgZWMuzFJdhg+fA4zA5HiSuJkXTM5jKRSmYZ2OygIhokYzxzSTBEMYLwGET4ruishsRYEsbwIY01npzOTTOIJOfbGDsYv8LZokQYTHY3lOTwlhnKMRbbNBLqoi6mPq3/19PQsW7Zs1apVwoAilcC0bAsiG3A1YKpxmgjvIkenOG4R7XkEcKBI4VtcixmPrJ21Tiwy9uh68N06R504aQ7Fnq7vzAWwVOc69TkM pFoWiwnEqAWL178ve99D38YPO4cN2M8wXRMgA61j2L8eJR5DjgIhZqNlIeql7hz505sXIKOCN4ozT8lR7U95bDCPHxCU8EY0hL0iU4HSQ8jtLsA38gUnH6rMzK9ECPEiqtIKWMYFLZBDPks57D+tQ9TEBG43/nOd5ioP/WpTwGZVAdh6YhaBGBJB9iSW9ymgdCsYykfi0vbD5wZBj5eV4IXFrBnHcVCSy+CpS8BOYwalhOMDhZULEUs2cmUxRikfiYJgwSMYfhEFpS1h9PHdbT5Bp1Om9MWYidjUE1bjKefemVKCAF64ULW3t5eDUESUuDm1b+IUmDVSaYGBiKDCSmS6Jtkpcyqn1JmjiwvssVvyAfIEZcErnT8/v5+AvGx+Bm+zBiYp1DU0Q+A4cskgEKIhoWgi9hJHfBlL3sZFaC03i+ScewEqDmGeUIg4a+swkDjX6cBMAE6TZZHRCANb5PYIbCt3k6OM7qNeUSbc4PX4phOksdLrel0hhjfyHGyReLWPMk4qxVvsS9JLw6YZNlAxyvSFG2nso757W9/G4y/4oorMKAtbQkusuYkvn+XGI9JbW1kBgJgz9KIDgaRRYUSTgrqw/fj/EbeTJ/Ucoa3F2MEellOioGJy4t5BrDHPVxL+XEW0YDC50HReVjcdjB+obWM8URjTY7xpsAJiy9Sug1lntStyHB1NB98NhHnpSByEjRxJmEC2gZVY4U7mCqOYII7z8jAM9TanNqI/KUQmpoKjBgrTuqMGJ0eCv7KMpQIfemAjA+WH8RjvPKVr3Q6Uj0rVM4xxhchrNI+BFhzi66AbU7yx75EXUIfQsEJZpjHXH6rqFBD8XT+t/oKaikeFuZYB9SjmyHG09nQY4uyiWQz05w3jBI1rBqAhzgSl6R7J8Zd337xi18E42+44QatapjJcWjQS52NvUuMdwPpnW6Gd5bHYo8TES88dtSAqVPLOoSbouiYjSBmCQLf+S3zCaOSfzHi7WDeFvSZdUwOxRKIdR1+m6KTA7Xw2qJFo6nmpQMnJ8d4aG/1bvU+dMjg4wUhCJXQ9fRXo9DRXkUWSSqy25XhyyjcmOq/wo5rG0OnSNk0BpUS2PhD55sCNjqajqPb0SAGYxBcgMW07UXK/b+FhslLUD7fskbWvWiMEo9x8sknE4nh+WqP4fiEzQlTcTFuuOU5oKdV4vVRSNYUaikv3axQ355ve0UmcSl4TRX/9Q81k+jhz9yO35brN7kK2EOhAYpM48A/EmJFMvpZsKnBmmMEE4jyZ3/2Z3qJT37yk2+//XZCbniV7I9H3wHok2O89c9sx+Pq5lxY2FweBUh0zHpOcSbskUGEEA1i1869xo5gwabPY9V7/B624O3tboQYM8YpARAcn0WdBpdnsPkGnU6b0xYw3vbTRBjfSIQu6a1F8o/29/d3pdbd3V2klBx6orowSOkIBBaM9gWWGj1dO+tbJGEhR4sJMD7+C9hgxAvJhFukmkM9OdZP27okTzjY8ZjvmLwMNXBr3bp1ujV4jKVLlwoYBA9nn312I7kqbb5PHou8J5qlH0jyKjEqtZwgG0kktqHSdddr1641Y0Yag488GOrgxp+XcN2zhz/n53p9evgzx3hUCdSLyKrDBvVCq0hxI9Syo3nKAhQhs4HAwSxLqvb2t79dL/HZz362+ipBAyyHWMjVkmQX5OEuMR5oN9LjgjXkM3yAfME/D+c/UyP6BTuCiARLzak30jm5O1aktZTSigVPwDL3gs3CmOVxRY0P1ttMlayocSfjP9H2fINOp81pSxiPoTOa0mSIH3D5p2ojYKBIRA0rSlgXdUz8Rvy1Bwu/EQMUhsEjtQjaGhxHP+Qy9CEKjyWsKoKhyb+2VvHsshhwDv9QVonRX43gvr4++4ARIrZRzoVhk2mH3t7e1atXC+kvv/zy/fffX/DwkY98BGYUOZFJopD3XKtVVDvjV3He8+f4GQAS0N0ZPXHKrcZg0IziE52OHXRMPVJNIAIwa0+A2Q56GW1tjaA8E9tolsxQN8PUjjflvDl7A3jRLAhNruOYrCW9BryVJ554ol7iy172Mv2E4LGBXE6YIqmwecS+D7e2thg/UUPfmBRYDSW6H9jMV6w6uFRdM5fhvDyn2+orPUyvQ1D8xohnRap/SU5otGYRjOaKPjFUgn6L3l6nDtSCaq0Y737UFuPpR+opP/nJT9asWYMprL6pPgvr6QRZ0lvJr7G2FtERpeByW5/4EW2F1FNxVhML9nEOtRbdtr+wyNkitvxg4pHH4VLhpAkIgWLCQIxQh3Qjpo+a7uvCCy9ErPArX/kKDIAmtyJXs5oeVM9Zsx9jYyoEBzVrVC4m4OB3q9VyZBRPWJ0hUgdVM938cYxxLzXjfQQqLzIdvK6/mMW15K13qA8x+tqZPGCSlSi5ftJJJ7mOPOC6KVWd4RGRyGGLfHoYDwZj0D+aapAQr0WQL+5kPFq4oUyX6ROAH1e6IJ+IGigarpkVgll8e9BHJ62pSFGCZi7cMjY2Nt+402lz11oxPqoY2MnqhnGg0SADd926dUIL/V25cqW6pBMHsXQ17Dblgk2wjJRMAnH1Fy8XQRFwurA6jRQercvQ+JNRuDErr0OUYqBH9ZuBXAFcZ2R5ayGDItfppDmcECjC+epYTqYj1umMflJI9YRIgJIprzvVPeLKrc1HUM00WpwAcb/BDdeDmM8MT2GMZzIX/DRClmoJpCN+G8LbTgKNIGfAJ1FUp5nUjKF0mkngBVcl/Y1Ac8EhVeOJ84Vwe8tb3oLiwHBODyDWnyID6maEW86wORNQY4HIFlaqxB84iY9CV8QLE1ugF6SeSVliXfOWnHTGAhtnF0KuhKsNJ5EcHpGfj0cuwC+r3TkDpEnMN+h02py2gPEE9U6O8epl6lnLly/HwtbA6unpEdIXiYzHiCGMy/xMdM45itrZTHgB+XwolTiDd9QByUiyVKU1DoBkR4fjaSOug9kgavCVgnAIAmGlvzE3a7fjb9NPKEzb29urf9/61rcSHI+mK3j2q4XxtVRDAlVk2/GzdQvM0jx/6owCLdb7rbIxk9vxJQ2iqpR0Ixeq8U/Q63LxYPwASMeQGKq+RMn1d7/73cI81mO4YuiBYLwaGXAzx3hgXv2HMjDa0OyBVcLq0aqshnmsIRafuhJK1RN+44Gpn+g2CY/FX8SkRNwOTw8tf0+Y23IFSD7RDvMNOp02py1g/NZc1+nRXCykytXoW/XTu+++W1grICRcjpBiCEL9lng0YrVK8urGFVSgwG/LpaPFylCmI+Oj0sFZjJOg5OCKeko0dCJsf3+/JgFIGGYAqInIPUeXJJeHYolhW+fVT3Rrmri6u7sF88cdd5yw4Td+4zccml9kVnjvh3lz2Hp6xnimu2LSpPepNzCeNByWQ/aSmgSDWNiSCwaXaHic4mYYDPzV9YD55pGgfal/QUe00NgBexdmXeB3yy23HHDAASRAIS+jr4zxODvJnSA7qYTZ/6+17RLjWdASEQl/iPfAXlXHftKjMFKAbbyzQ7lEoTWghjMLxKWS8wAXSm9nMtHloZcG2JNNNpJVPzpczQJsixY1kshGxHgGYsR4VouEwqsDCk2FgsuWLRPSU69CHdBHUOdFbqCeMvOLrEBWhIIZgOtQUtVCJEQbxAkw6IUKxMcTH0fAOgmLRgICgpkBiKvhaJtyKSiwH0cjVAzYw4CzRjuuWYfjER+ifXSbd91115FHHilseNvb3kZwAtBey4WZ9vJmzgqMh5ewG3VW5iieHtO1069gw2jEbMItULXXwY/wzS47Hi17LE7Df+T4+ZZ1Aj9B4AUNguGkPkDgCsfXwa+++up9UrvuuutIM9XOmNQ4oZ1wBJTOBOO9jy6jSCwZEx2LUsJ+6P+2OOCUYCOJ5neom7VFuDCqMZjgp9u7niT+Zn2Fs3Y0l8f0A+xg/AJsCeNZ6OHQsjiZwxvM0gxnAb5aCvldu3atAJ7oF2YGAhgY8cSjVYNhaiHkmoFIzCNEjc0OfUU0Gak9RYpDcD0dytbRMFawWtA5gTWHL3LuPYQMhE9UQHDYDwg0nGp/awbTSYXxN954I2v88847D0eybyEGopRCffaqhpENkUWFidk9Pge028R5lpAP+HrRvQHyefhsgFXkFhPtaMEtJ2x4DekQkVIhE7TZLKDJBg4fVA/Ujf/yL/8Sp4qr/DFRYxEUaWH501RTfpc2+i4bSMwGGSAYO6TDFilPWh/qWelzjRe6dyOF5RKB4/hl6/xZy0B3SiS95wfP2KyNedqY9YQV4bLwfKiN+QadTpvTlvJcqxgfh5RDGggqJF1yKNQwIkN7OMs1RdJ3cozHeoZTJ6PbcrIaE0IFwv34C6uD/Y2TFd6G+g3QlqWFx0guYsWN6L7QtjcMWGTLNhCjUOcief4zn/kMyZGXX345Qo211uBE0z4xLHSvavUku2UVtz2E8azcnFxLpAqrOGdOFYnYwWuO7tCm3NjmIiEfIJv1lv8rty1B/no0h156wUlIGBoyLqeOZIB2eN/73kd1kHXr1pFvyitzzhFUiTZmBeNZCehKMK8xZ1i3uOgscwsqk9qBng+iM9F5PMLEc3esN7yGNM1Yy8Uqac4ufDDXTtYpoMv00OYbdDptTlvCeGgWS8Jb/xu8hONkZKjvyMbt6elBjlAjRl0YXxfjSdvkFjG+J8d4AIA49RhC3UiZ9uYWHAhpczyW6QMVsMVJjWEwMdTAfh2QgiLIpHmxXM/5UyATKTP6ORyRvv3oRz8qbDjwwANvvvlm7abrKSp+XN/LXgjwRQ6c3JDbHsL4KAGNfemKVIghemfwKUa9m/uyL5xLtfAEzUqXvN+oGEPyqH2KFGZSF6IbqG+fdtppJLnqCFD1UQmilhQHYBdnBePZUBdymDuNuHnyXy3tj18I7lF9dUuuo8yIG840vIYYv8KBMNiulowNK+YNnr/1uun5OmCHq1lQLelOgvHO9gcUjfFYS4/kmnIaDRp8subXrFlzzz33CO/xVJGeTQgHQfC75GocoIz+LSeCjdFQYHwP5OY0R36FBWbjDyP1/tZmwS0npLA8B3UYB/i3+GQ4kakADPzG2WefLWw44ogj7rzzTsfZMcKMZ7MLmXui2f28MRfkmsUWMb4IEyAcOU+SJ1akKd3PDUa5pALtY5JDx8LJFSAtrmYpHq/ryNBgLUeGAyQ3kbwnnXSS3uOxxx5LmA3RLByKVw+tNCuBk2A8lD+wytLCGa5WXkCGskjphBjxLqzGsqQkjFMkdp8wgsHW4jellxKX2VhbPEC9Jv3byYFaUC1hvEfGllxCCA+NqQ/Erb3ipp8KUwmcJA2KYmVArzVMJsd4MslxdNknxAaKWQS7l/ryYKjfFK0x4hNAspIgo8laKHlb/0wCrG1RQNAxEWjF8/qqV71K2PCSl7xEqxf0WBD9gF7Ag2sR470T72spxBU72FzTrDceZrTOiaZ0hCzPDU7GGQtAbCnYiXkAgnwoSTc+lhtBJpjIRU7hJW7K29Z01wGJENNloBx68sknE16gI7hsML/l4eiws4LxUPLEY6I2rEadDza4ZUYWlFQzl2PDiAfgYWmGQ6g9HmI/9mhoxHkyjr4oI0LywHyDTqfNaVu0CHURuhu0n32u5rb1iTom0fDd3d2CScIzUGl0qR00aoy+bfHGC3k03TX69bmz9CD+seOJyuSHDvcrgrNzEgsG5ABycNwSjQA8kxFrzyu0Ty0lOGo33Z3ui92sRoaECPEh+HGdWGnWCL+BA9msdg8bwGXE7FIHt5iv4CvH2TGB8JPBLITPbUZErIfo1KFcktvbUEzY03sC43narJqKTMJgGRvjOfWmVPKRud2cDBGLcPC8piL7iRGXdlw4poej5GEzRkIxEnVdeDYi0etZ7XHVqlVHH3001UEAUaoO2x4pkkdfl8RiYOYwD9IXybFTS2KmQD4sky5PdyqsRW24nsUOiFpgCFhP2JSj9nd8wFReSuwkHne1JIAz36DTaXPaEsbbWMffE52XjaSRhxWl7qkuJsN99erVy5YtW7t2rfrmI7lCtAXjjUltu14ka9FkoqqEMxpHkviqejTAWQvFTWOfLSYI/TOKsIMlxo2yRfZUuYGpcLHaQZCAo1cTGtXhTjvtNGgo1zUZDBr29hX8pLUh14Ppzw7gmVGfC/ZdDGaVfaJQCD4BO41GvnI/Af8bwXsgF/hkYgRKMZr3BMbrjiizHpdqtVx8BXUJ3qZeK/EzWOcY5eR34usww6B/8fYwObgMI9aEDRDsAuJGcFsSc0/4pI6vT2677bZDDz1U7/Giiy7CkMHZQhq0k1D18GcF4+1z1cNH9Y2gTruJ6imvgxrf+le3r+vBD+YAZGx6EzWPpvLiBAu1HVm7fEe1rC7awfiF1jLGEx0ZMZ6hA02IT384sYxItvb29moIMozAeP2WqIlaa0hXtUW+VoObzEgHwxApwbJBuOhUo+janAjjayGtdqhVe77IJI+nC7KfjJrMVzqvZrCuri79veqqq0icOfvss9GwtSsr3iAHqZbQgNFH0xWow9CHLHJAuY1+fgWbhF1rxokNTx0k/hL675/77FyJc7WQeCBQcSom4O62ehJ704Qfi7Jw8S5yPZBKjesahFUCY0fm8rrVf8B4L9UGkygXTnceHTdurwJ/wX4Wky7xi1eHvqoPdbqbb755v/3203u88sorR5NWDOpcBJ9gApD54FLd0wB1N8uPgfFW34A+gqjRJ2jXOBmX4DRYGgsUG+P1l2cyvayMDsYv5JYxvhQcTyPkBhRnzJGDrc7LgEa4FfHseipy8GAqYeNMvraQwFAWAABag7ncML+C7NehwEIXXYqU7SQY73XCUCrKM5DL+tnYNYPhuahIJi+2lEaYVWovueSSfffdV9hw7rnn1nJQTYn7LLWhLL3LeIKF2JyK6XExBJ9ikBFYd3+ok6pGMIknHxwO/Nb6C/qJpg4g8Ke58XOod1dAYSYhNh3OZBoIMXlD11f3hTsTzTZ8F5yOJwNaw6jwLoh+xY7nsu0pJBSEKCDoqc250qNpH0eDMh9GLyyK8jDZ6sCCdgJgr7/+ekE+vMdQrg5Sy5J4LOSmIWRgn6gbMwyMEOOFydZa1vpXl0HYMhNLjHuoYjyeLjJZp5Gd3MH4hdwSxluaOmK8c1tZUGsQrFixYtmyZajF9/f3o9LNSKLQMFkwwHzbvmYgZHVMUoxxC6sU8th6kRoWDJFarrs0OVdjjMfuQb7V0QgcxKPEG8IbBreuvK+vTwApGDjvvPMEDPvss8/FF19cS/FCMQgkjh43Rw46VAMBQf9wMMkKUGMVmpkVOosl6u+h2hD5Fqa+Ws7lJdUFZR7PAzE2nUnAEYilGrqz236Wqq6qe7hqLKGvtuN5MjgxKJPEJTktC5wGmKFQULBzMKaXT0VWoPATHsiFVEtOEgCbJcT555/Pe7zhhhvUsYFPvV9+W6QJRNegw05PqaaE8XioWBPqaqnkQeIVynm6VJ0UetN+VkeveSUQ1wbQWS6ptrvvqIPxC7ktWsTa2el0kS5lw3YPVExPT8+Pf/zjVatWgfFQjNoHzHbYCbAKCJkdd3mJeipMbOBxLCQbWGm24531XVQcrm1pE1CWBH4SRjSwdDQi4N3ruRJMZIJqdC9MZWvWrNG3Z555prBBpvzll1/Out6luiOoR0a8Flj2wSzFSAYKnyNApbHuCKJGFv9GOIh5yUsOVxsHJkkEoxQK5n5p0GOVUhCCWBooHbC/tvtkvJ9tKVbU73EwVWXUKxNiqS+ZauPGnUKwIRUL4+7UT8Bvnir+4MGUZ8yCZ0OWiYbdguvwJcW0BFKlWQcWyREBiBLEogclY+Sd73yn3uOTnvSkr33ta4S4YM64X+Ee1r+P5MJ9u4vxpQbYU5OGx0JO9kgqlQ45Y5FWbcBVkkruIOXhIFMMm+Q1sHt7EeowlJamHYzvNNqiRXQ9YzxrRueJQtQAG3iPNBSwnwg6R4wXdsUpjOA3NjSNiPnBUPEPg5X4HA9ZAogZ6Bhk7ID9Ch5P1JdjR4aNwWCCTeJcpfFh9ALjdWuChHXr1gnj9feUU05BOf66665jiT1FUAR6Mf2xtiPGU3HWClt2fTDZ8tDq2QXhNUyR3JA4oQeTWDsCEHGSiWsk28HOGZ2JwA6EicPT47vQm2WdUEsVz8lRYsJ3rQBmKhwaMVioHlwlnq/galzfFybKpBZkPHSNo9tNx3E0fQhU61wyRqgO8uQnP/mKK66A18dkRyZ6MNe5gd6ZBsa3Nes5vg6O35ccbkIKcKkyD1iuhw8dXeO4GuaETblKGo89znJVtrBK5nQwfiG3ZMfb4Rox3mEP2GSybpcvX7569WqKgCIfwIDQbvgXnaYEDoGLXpJbkKnISohEDxt0B3M1+5IRbFFW0/yRFakHJ2s958+bxFWPJvLY80zE+Frm+HG4CpyI1tTOd999N8HxBxxwwPe///0i1QmaSkjD5Bj/YKo4q9GPpBahIM780jNHfNBmmSlqXTyhO8AbdMdgCqj0wT1lOZoFC3VTqoqqk05jmc8to+Bl+X9A16ID+Ik9pWsDk90T1GAoQ8s0blz3XG1w8i27FzkHCtrNXucY/Wo+ij0xPUh4OPbYY/Uen/a0p8mOX7t2LVp3tuMHcgV5dLxmCPBVjNc1RKVlyCKX+Wa1bNLGUTQ0xCvxeLCmtf0SX3etVSa6ulrrYPxCbhNjvL38jAYwRtZtV1dXX18fcK5ezAITs9uEt5P5DDlRg4ANvIDEhDyYy6k6MwVLFEiLRGwsRV1UqBtwgg8J3NO1CTv112y0j8ZMwk8Y35rNZMeDWz/60Y9e/OIXI2T14x//GKSZCkZOjvHAsxDIpfBweIPxevh4Ruu5PqEtVKDI6yKeYbydOLIhu7C54WrA+GlwNb4pvRRXs8BJqWugoAU+XcTeXGYLiQpz5zzkuD4pWaKx2hf/moEpgtUQ8Z7QGiJDmQCpM6DPtXLDTNdXhx9+OJVcNW+Tcrol1ctmJVDLhRCFptPjaqoYT6MWwdZcWdtG/JYsWgbGj+QS22ZvHJ9DJpQuldFnGeEiBMZ6AeNJsoPxnRZb9rla/Sja8Xj50ZokE7tIC2Hw2MJ5+pwMo7hUrAU94SKzuUhMgg1eejstlV4MWjAJuGgUzfOA1QRcZCcih/l47aw7Eo5W5cRKdjzje0tSaoA+v/POO5/znOfA42pms+dvKnA4CcYDRTod6TxWAySLR9fA2qZIS4sSBcE1A3K4pU3VR0O5nnwdHAcKH1QoplWD1oCBX1OdAfELSGUmfx4OZN36VIzEoT7WG3P282BOsGetFT/hoRWtTHMxge/FDJV7ghMVtIH2qLrQbbfdduCBByJkoFUosr16/uQhMJ3SJ6cXONkW40tcjQWxTYpGFI9WFc28DZ74LUnqbygVYrGMMLkWm3OZ5GhbdbiaTostYbyDalDwcl9T71PnElqsWLFC46MvtQ2pVs5wyukgDkcbRI/YSis1+pc1s8mIQfvF2M92LYUo6miQvkwduOWiRDBWrJla3JBWZUGRhvWALs+14KyGFaGLDQdCwCZpf9nuRx11lLDhyCOPRHO43q5SdrWVMJ4sGH/L3PXzUG86RvuQZYvfAKvXyOdwQkePyHr+eWg293mGUGfsjLU6DYAvgnMaLzhTByfCEnX+kUNWLAiHdQC7goidCRbg32/ZT6CWw2b8qAdbWy3na0ZsK7I5y/pHn+gatK1Hfeuttx500EF6j8cdd9wdd9wxnJyayD7yiGAF7081EKYXV1PF+C05B0pvDS0a7HgbUyyPYyiOc3lZP2PZ27hn/+EsXEwOF0So8d6J3dUXbZdOB+MXYMuaZAZ463MTyUWtDuoi6a/AXiPV5eLpnvUUNWEy3jjaFunrSQaR3B/4E3xsdFJhM/ZfLaTD1oIq1abQmA2cHAR+sEggsET7wIYypqtOR1s/CALqFL2p6Tj/+I//eMQRRwgbXvOa12g37EIbkUWFHokHZBvFFc8tfK7LIz7eGUOeoKhJBMvOjcdzaR+9AuY07hduxEH2DjtlLQSAcSIC9G0l7y7GwxqxJGB6YbaBw3Y1uVhcjk9Qgh9Osujm7nQxunLfBZFCLNLsjnViQ62ST2fHAmQ/H+KkH8xyDywvdaK1a9f+4Ac/2H///fUejz/+ePVe+u1Qyk7i1RB/pQvQdaJTvbtIHwuH8FtZRvqESZ71LX2MGQavaiTdowvWYI8G69ZQCiqSOSyiyLiIC11m+yIvaz18/Kx0hPkGnU6b0zYBxjtiXsDT09NDyAHWsICWtDy6pLYB6XqrWmw9JwS51XOgIr0S1jbGcMNjaCbRv+Y3AKcYdFmaNwayFBmH0nglBx4IxGnACrcKYJC+pJpT/E0/FMb39/f/wz/8A9VBfvd3f1fHZ+C2dQVMgvFWcYGNJsoZy95SWHZBaE9dsC7esZaRjd4Qim5jg5ItBdjDiOu3+qttYRtVjbDzcFdPhWiqNt4jfDB8l5P/9cq0HbOiXV97W2hg1djYGMSUbFAHDuFkgAUihMaKcZwO8YX4uj3nGNcx30uuR70v4ny/8Y1vkMj26le/Wq8Vyxi1MJzoliEyNu+u4V7CeAc8OmNEb0TviOjdekp1ta4ByE0WoeEfRLdy1EgucuxUCnaG9kFhU4+CoFS6nGdLG0o8FlZfHW3hBdVaMd6p4PQpdR91Ulk/OO2ocEDKBsk7GPoAVbTd2+IxUE1mEMGVjhKxjDDh4wS31LPsTNGO/4m2XfyElYDpHbsOwNoqgIHKuhE0GoAQ3d23v/1tkiM/8YlPsECeBsbHTKUirZQBXe/JJOPxB6cR5zdfJLfjpQgyYDxJ7o5pkygmbSDAAsEVr2raGM/0XmTLHlpJd+QKA9VK3LE6H5+rUzE/mKXmQ8x9HKIE3tSznJHDZmJWKytAp3TVQzgWl6ejFcn78fnPfx6Mf93rXodKDEIGOHZqSWuaVShveeY+VwAYFxDqA4NZg42LZy3krABQnyIoLuvHDGAyx8a9a/a4ijeoz6wCOQaH4/RfbtMrHB22g/ELqgWMd3U1q7lSu16os2rVqq6uLpmJ6rboQtHphlM9HaB0cy6NHanTEloUKSwRN6oDSBA12JDEzLAOqbpW5NDqoVY1MrcSujsOG5rCAOBI7irO1XPIxyNJnJs6tfqr23EFqOuuu06PxZWUdxfjPcq5EkDXYZ52PbLIwcNQ5HCUIsT/kA1ks9XJTbAx5CTIjIO2J+ZUn8Cg13Pc/PRMeSxmVwHhwbJK0Vex+jawTSA4oO7YIevJFGmCQimjVJ6bXCG+IpLU4TH6Ce9U/YdIHpwzFq9kTsN4xR6hDPDf/M3f8B5PP/10lqb2b+BBgigrEokBuO4uopuAt02PCg3UFhym1yGbc4UmIB8ktlycLthFrzCjHg2loBw9b7VNR75F5gdPCO6djbnOq7PPtf98g06nzWmbAOMdUTOc4iI1uAV+K1eu7O7u1r8seOmMpMBYLAUby3FtD7Y2LAxIBudBCp+QbMfcYWQ416moeEmrOB3hH+PVXl5b6pG+jb8dSBUm1PEHkuIkamTLli37oz/6IwHDwQcffNNNNwktrPK1u1wNYle1XN0EIqIelIShnwEePcm2djyx6djxYBgTCEY8lQn1ePHX8iKAMTDeSs7Tw/giZT9BAvhJciJ95ZBuG5outw2EY8ojGa0GP0M6bGR1PC34Q/9rCVS9Jp3d6G7Xu8M21X6W6v6qIe7wyU9+Eox/73vfqzlE1zmYkg3wzwxl2TDm+VnBeJhMy1IwFixwGfkTJkxMfO6FyWowV68hFKDE2bPkJhqHJ2NxfZYBVknQNWAOwARiEagzd+z4BdUSxtNxYpdBYxu3JfAGw6fOIjuelTUyGqw917dr91eaw2DYZu2P0MDGVKIIChMSwLxEpGVKgDoYRAT4l75cgnNbUdWDDKawUHseMKZ1DW95y1sIql6xYgUWpEM+JsH4yAojIrkplyGB8eD2ffH2ikFNQEhXI5Sw2qGzOAWLHyKUiAFk8ozBkvA2cMB2uJbIrngXfp5F61Q2lNTcic/hQ6YUpnRmdcxoLFE8l49kDVNiRUBudI20m7BfiIv5XmJ4vJJkw5MGCf9Y3li9rGronEx3TDvE82rZqdv/8Ic/DMZ/5CMfoZ/TSRxUw8Q4PSY+YnxEenUnkn3pMzgcYrPepUOhmHmc58V6j0WgUziYPQByE/9+yJD3rFWgfYi7pFY4yyGdVLfZwfgF1RLG01mc94RBoE7R398vo1a2+5o1a2TgAvmsIhkuiDlB+JXAzxZqbC76A0KAGcAV9i7bOlFt rF+VcQCdQayTvzkP2cIYjDpenSzOK70+XHHHSdgeOUrX/mz3Gqt4jCTYDxTAT5URHIwvvEVxGj1SDRx7/BU9VYHtqcLR4SzfCLFidmSmBwc2MRykCgcLcha8F9OHePrKUwPbi0+BF8JEMvpnAULGYz/WA3+gXSewVRWEayiOoGx3CS9GX22seapfsr79cxvvgvUpCCH/qUXfeADH0B06LLLLtNX6rpFIgzh4AeS6DGVyKYN81W9GpBVV6W7c4iRjl+kFZEV1PyInPLhN84sSiIEXh0zorVUdISJdDgsPB7NyvoeyIxlJgFb9tqeb9DptDltAeMtKWxnqiwhWbGrVq0Sxi9btkzbQnp1MXyuwyl0YX2SFzQfElsJTopcu8L4V+Xj4WrAuV0idL21djYcAhg/GFK+J2lAAk1DSjd4zz33aOGvy3vKU54ibDjllFM0hiCafEeTYLxvdjCJSBFKwZ5Yw9xpEYpWF9ntwHoGnsroy9HAch/Kzmm7qDHoYehh5YvkccTkBczazpnxLPGmSrcJmRCt51pri8ccCDqY+iHqogCVblCGw3333YfoQC1FPTmoEP4BRAer1Dl37txpx612AJ6N8UMh4Y57JI1Vt6wT6auzzjoLQYprr70WjK+nUF8WRaydtOHc05lj/HAu5qprE6ASWRRVXBk7RUorM++0McvhO3J2KBeO50myTiPalNwSfUXuHhMUxpdteiZPZk5OjYmv7fkGnU6b0xYw3stk65AtXbq0r69PXeyh1NTRhPdUeiCUkq5n+2NyjK9nahwBMxYAJYyHQi7lDU29DSTJQmP8VH7iKpuEB25Ohes1py1evFjYIISg4ibTUcxYbYvxDhElfMjAXCQgRw4ArqZkKDMDEPsWk1l4bkA4yx4wnukCjMdpR1ANmMqegIdZr7YPpETgtMV44vKc5uYsel98NOv9uV3vRS5xBY/EapAsMMzZkifHy0KKbsMuUyZMG3b9uoP5gtnQC1Xn1PNfuXKlHtqb3/xmvceDDjrotttuA4+ZsswN8sBnEeMZTboMXb/9xyxIiIJkEkNAhPPWc1o2LM0DufwwlA6PlHmeD51SbGlO580xYdpB6yRah2Hq7PMNOp02p60V45ny0UxSr5HtTp0d6FXtRqoiHqB61o40FVDFj7atyBYMPldoB+YKgkPA2qmAdOnIOFw51FSiBQFX3Y5+K7NP9wKufOMb3yBx5tJLL9VjQemFdcLkGO/PmW0cEl0kjCfQxRhfglVge30ufeUQGh4XwTNDOacTUOfRMegxjtXIf62lBBwzRUOtMsWx1YN6TER93w6TsCefElfT9iBFlpK2RFwtRSmiJ2P6qEgEy+ZQOSu65zfl4lnaDXpeb2p9rnRiC97ueQ41lJJcMUl0BEQnDz/8cN0CcjRFUvAklpaJXb8lYnG27HjCbIdSwfEYQ2odaW8DwA492pJlCwZa5YnsbwHyWbG4lKILxpBRANg7GNPEvFOrOnz8gmqLFqm7gdkljFe36urqYjGIeJI2SOWg75A8ujHpObLsnWj9XjLlB5JSMRhfZEl1FuCYoZiMEaS9MK8uFSIggfEbUnGfErXSFpXZAUtdE5osP1nwusELL7yQBf51111Hvu9/pILL/9FaMrsIlL9hhrV2kVyewO1QllPk7piCqkeIGD+UtRcBexzblmPnQWlnfaJTYNtBMcHV8EaAQ8eN1hOvHxNJffbqw4yPDhKJqan0JONu8fGybZ8iuxGKEz3i1bczGDSIWOMRhiQ7fseOHXoRsE/1kMQZuSN+CLypM2sfxEOPOeaYeqoaAoKCmtAgJHY9ErR8Z27HDyflC6YmRxA5TKgUQUSoqUsa42BmGOo4KH5ixOsVb84Vhes5C8zRO5ay+Wmuk64dYoVaaCJNJh2MX1Bt0SL1KVxfcDWWFNZIWr16tXoKYtsEFnd3d6sHOT7BIoPOzC9F0UTlbzxMzmpBfhaDXts4I8lPdTyPo6K96i+RPxEeaqlMkqMR4ug3b2AQqudQk1qqVK/5ijEkjNc1nHPOOWD8rbfeSpSCIW0w6IQB6oRDIL0SbV/ctxidDE2srqiqwHGQWIGneiDXBqxnh2ItZSD4prhNHqnOArQDw0i+6WFyVcRU2tXqmQHnqMPrLfPmwMwiFHQhTjMKgJZeQWlKr87wfnEE4UJecZbaBA4TT+8EFOlfrGFZHA41KXKdkiLIz3NqdWbiYfU2n/vc5yJIobuAlKsnXQY9H23TzeopM8g0y6xgPL3OjHhMIWhU2rbWFq18V1PGlK+1JjkMZo1uF4Cx7B8DwW5vM/cdPn6htWTHG+MtZKBuRRJHT0/P2rVr161bJ+To7e0VxmtMsPpTvwOcwAPLuUQAtnGG4ehVOetxx2O6P2LfE1z2YK7h5mgyZ/K7WcHGq1p6N0klliwGgNs2XSfxBoSnofZIdZBDDz1UJyU9CqxlYHEjQJdXDliE5HbBF92fVNX5Ks5vUM48B2QuOSDcDm6KOClxCnyEtVzulFhqczVgPF4O7HhWBXhJPfpt4W3MWp+utmdyl6fNvEGDKXIGVmT3SxNviasZyrmnRViJ1XO2mhdmJYCvZfUsz2aYpEMplcLSDG0xnmMOp2gAzX6f+9znqNb9J3/yJ7xo6u8xzep1A/au8jfrGI/dvLsY75gip5VpSPIGi+D3qOe8OdP2Xo95rBHv5PhWIojmG3Q6bU5bwniUasB4h9aAfMCJ7CGBPXBC+BVTQRRVijkaUWBpS1Bpqja+eig3DTucoEQUsPomTwSydlOleRLYkDUZHahgqUpjmIP7rH6okUG+DLpr+onulMBJLfNJb8Xai7HLrnrCKkVjjotnYHn8bQzlaTGdCY2IVS5+movakQCFZIAzVrgRLhW5qVqKPOWO2ADjQXSnvZLwCjFPY70Pd+QFiecNdGuBc18YG0hGrg9KkcxOcVFk5I4UCse3uT8Y0n+4pHo72QuvkQBy5kbeZowtLUK9Qc8MZLgSV6ML/tM//VOC47/61a/CxvgBDqa8CNLK1NnopdMA+CrGw/pz+/rXWg+TtOYEDWteR8COd36CyS6icVmK1EIbDOV2ipzPQNfVzXa4mgXVks/VzhhjPOXikUpCBludBSElTQh4kpxg51aSwXZGlUPGHNIVI7wsq/ffucEXMSiHUyQaupAPVxozA8GP/1lpjouk6ieLDTQQrSPAoNQgEMZ3dXUJ4L/73e8effTRAoYzzjhDB4fy3Ji1Mln8sjawgjGYB++kz3V84iW4Zoh8Aop8XhudBkUW4xwQSMMIw9nmuDmg1zCsVRZeaiSL1ydlLwY0YRjmYZiu9a9FLSNhYjwgKIhfgfqoSwDtPAcXYNqQK8U6Yz96ZM364662StbkoT5R34E9TYhxxpId7zmkSEE1w5nD1ocksult3nXXXeqQaEHWk2eAC1ifaiDQz4dTOMosYrwuW6/eCpJuu4R8B8DwrzZ0nI2hYGYtu6uJ3YrunbhYcnP9TLK9Ohi/oFrGeDv3rThJkoXlyiwNPpwoPZh7d0Znm49Wmvkfo76bf+iMRmKgLW7s9li71vZbfhhnD2/zE3ZjMmG9AelkgLn++usPPvhgYcN5550HYaVVPysEjS3tDEvqx6JPQE1GkrYt6RPXM2T7l1Y7pgg4CCsWK/8MZdEyW70GTpB4U66byzzgtFcWGHivmaBAa8qKcLO14JYuWcODoa4QZLx+ztV6RoW8Yh4osWrMhNidoCmQXFIQ4u6qGG9T1ZEztawEwZ1OhPFqevJ6yLpBTX2arp/97GfrPZ544olahwjbUNTTtxZWQnLHr4C3ubtBlG0xnhek2YaRNQ2MtzWvn+hBEWw2FGp2Q80RF1S0ekK8VKu1Zr3Vknd5vkGn0+a0Zb0aNS8METrSgNCwcEFhorow7jFPh7MaqlG5ZKZP1Kk5CzRkI0URsCzlXyvr2ZSJKY/0er7ihw7r9+DwD70zk1JcqETVBnIQiZrcsWPH1VdfLWDYZ599nv70p7/kJS857rjjTj311HPOOefcc8+99NJL/+7v/u7mm2++9dZbZRquXLmyt7eX9Cg9EB2N6AiuyhNRFBKJ6E5zgWYBp2kQoFEjO/7Ke3qbFQ7qss4orScHGxml1HHhJwhPYEwbFYoQflgECTQz3IMp21/owgPnHfHXgrexXBEzEha/KSmiiew5JoozzqtkDHmB4Qlnc65Hwk+IxYo72NWA4c4KSvfe3d395S9/+YADDtCrfMc73qEVGm9qOIkzsjPxrRRD8Ipxeno1fq18gk61MFgHnwpXUx0gluRXh9QTBs5LLJYTqSdyXbvVQxjSlk6NkAXWEsZHSAYRUaRB4U5fMTLIsEBX1oPP8IDPEj6Hjg8+AaImYWISHp9zRn8bOZy4Yo0Qzm584uSOkVzdpLTOjSZ+le8kCNTeZY2YSy65ZNGummaAxYsXH3nkkcccc8xLX/rSE044QfPAGWec8a53vUtTwV/8xV9cddVVN9xwww9+8AOUmcFd1kKP5krN3PVIyES0mwJVrUdztTc/Rp7YlixCYqkq5gcIjaEU8Y8ovg7rUtHaZ0Mu5VLPYTOmVgyx8fN6il4k6kkvWi+XZ+h1l2sVeuo2zwZVpZMW2UsNH4yPE9Sxi93TmgMnI69cy3o+GPEljHcCAJ9TrVsP51Of+hTBURdddJEgX3dRT25X5kPIbB1wz2G83oXOhfUxbYzXvKrnCY9XhMhW7Hgm7ckBvoPxC7zlWn9eUTJMMRPNyZCbDcONOQVbbKego1zM/vLX9DNEOJKn/GtqHGOUDyGIMEPJvbKQ9nAu0xMT+AA8DMpIy5jgjzNG1WPwWBablaG5atWq5cuX6+/111//8pe/XMv8o48++mlPe9rhhx/+a7/2a0960pP2228/Qfsu4Z+mnQ866KCDDz74kEMOOeyww57ylKfogK985Svf8IY3nH766R/84Ac1D3z2s5/9+7//e60KfvjDH95xxx133303AfqyOGHZN+TCevUkMU4mGsjKtNDIJb8tswgEgvF2+MGA6TbBiVKCgaHUXO9AlqAzi48VPpAkRx9LCpIRk0o+wkYrNcE6kBkmFqUqEh1+fy5VtzHXaaQ7wfMgwlhLsahMEYM599cY78ysWlaOZ+ojAFavQE+YiFQ6Eq6PWi7VvacxHmNkdzE+PtItqcwwEhi+X3v0a1MoDtDB+IXccs3uyJAYIE2QexDggwTaHfqHEca/mPhYGKzQcdE5PoSiRTgOqV7EUHOuHkgArliQyWGJRFlGJCBwzGGSnmQgJSKk1YNku2cebGUmFv3FQaVr7u/vX7JkyV133XX77bd/73vfu+mmm2688cZvfOMb11577ZVXXvm3f/u3H/vYx9773ve+7W1vE2wLvGXQazbQVLD//vvv1mxA06+ERpoKNKscddRRz3ve8170ohdpqjn++ONf/epXv+51r3vzm9/81re+9cwzzzzrrLP+8A//8MMf/vDFF1/8uc997utf//p3vvOde+65Z926dbr4LVnpV7cGxsCw6e5II+bGI0bSHHNH+Aou3vW5NpODfDCUR1OupNWDSzDfDIrB5C7pE4r+UjoKPKYjOfuCpQtMfz3k9hO5pB9SIZAYkpIdz1IBAAMRly5d+pKXvEQP9pnPfKbuxczYUMo2dh6wGkE1s47xeEt0OvWuaWA8GyzA9CphvczVOIsaH1EH4zttkjYBxhMxb97mkSwQDstr+cgYRBGdPS5OgHAeMc2DWXQceQ3kWYjH1CfCeCKh7UeE0yWGBIBhoAM/2pCx6wBG6kbwQ+IQKXz3QK7lHUMR/QmZMoRbMFNpfwIt8EOb7YY5gUUBEvQ5WOWoDx1QJ129evW//Mu/aDa4/PLLL7nkkvPOO++MM8449dRTX/va1x533HG//uu/Lvx+xjOesXjxYk0IlCiadtNMoslBxzn00EOPOOIITQ6af4QNAlRdGPE2TJUPpIrbxFcyDzvPdSAUUHEMvWNRmauZVzkCfIvnT1YXcH2AehSDB6hIXyIQqMgpToQ34pVk56g6j2XBw8f1SwxP1Y7n4u2+0L86yw033HDkkUfqEb3gBS/QuggAJt7GmbIsIXDEzi7GU1dBfWzmGP9Yqpyl3k4RSAwoUgWp78sz6WB8p03UFi2SmRU5bKLeiZgH+0HB4RRZBpcZc9Hjkt//YjKStkMAYJED6KwpNZDqXrDYtD46n2OjFzmUAusN24V5ACOPNT45QeCQNRYZB87xtpUfmz4RFuruoJwpJduTGkBe5IxVZ2A5ucl5hE4tMWoSVzOcPRIW88a201m6u7vvuOMOGd/XX3/9V7/61c9//vOXXXbZRz/60XPOOectb3nL61//epnvz3rWsw455BCtB+IksE9qk6O+THymYh61jfJ7U3P5JMsdOh6GZdjGrJVZZJdnkdl0vl2fSpLgRmWyJWOLafCRJGcOxWe42prkIylHAOEAX8esqK5lesc0Bb+N5I+O7AjNEoCZaGJVhn2h5RbBUSeeeKJmXd4I5smGLFvJ+nBWivvF7Kfh5LzCji9S3aXdxfhmKIP+WCq5yUoVVh6rByPFuWmOnay1Ji0U2Y/uiNQOxi+0FjC+kT2UmOwmrbFfH0mlbRhAZLzXKpLktZDwTx80MDgrFOMJRASYB7PcJNu1LAvI8IUucKQbUeDGeyRcUIjF3UjjIEjUD+Tyg0VFjIAAIYgg3RFCA8JCHZYaOs5FghEi6TMmzpYyaKtZWlBMZp2JKGSe5CHgeSiy0hhiY0CyFifLly+/8847b7nllhtvvPFrX/vaNddc84UvfOEzn/mMVggXXHDBhz70ofe///3vfve7jz/+eGYDYTza/yyZWHGR9sp5bZ17VQNsky9GuhMYb8AwVV/KV7Zy/MbWshaQ6HawAHIQDngM6DNMLBR2jfDWyM51TxFqeh3Wwq9ifJFLAQjA6DN//ud/zqR35plnaurWE2aW4KUAiqSPbZmWRs0kjVBclnY60fQwPiZAjeTKH7itsCNYSVrJtBSvWnpEDowgLWu+QafT5rS1YvxILhCCR/OxXEx5SxKt0ziDBXRXque0RfAJky6mJzInkE5a5ErTxnLkWfCBYZowWLEvgWrAA+MPXhZjbn2ucTeUUtzJEHXyDiET1n5xVoipaLYxsp3lJAveYSRbkkbNz3KhzXqWKo/r32gqAYElCcWq5gKkBwsJ0l55Pnay8u+GrOQD5+pUJkAa81rXrysnvvXSSy8F0s4//3y9uCj7bD6t3tqGcloql+2ZFtO8ahQOhTTW2EBZs1Wu9uUN5mG/4s25ohZ3hKK5Y2kdeWq8p1sKpPHXTsBGFND82NA68rve9S4eyEc+8hGC+9WTkULwcpFJYyaKk5NgPJY3Xuq2+gWTtFLEcTMplkURGz0QJA8E89ChTLAWpzAhScoesTdYQ7q8+QadTpvT1orxRKoQO+GoFYx4AQnLbRKCosr7YBJGhPzelLXEHAxtrqaE8UWq1ANXg7iKBx8gV4Qi18AMmGeM1xgllEI/F0Y69ZOfr88VMmpBkwzMI9+0noQIdWvagKVZsmRJb28vCq7oCTvSsJhATHiokk5vyB8Isjb1kL5kH6HzqsAblvY8DdYqcDsOO2Eow7JjiDMd6Vc2WwX2elM8E7gyX1ItVxc06pduBILcMehFsON9j9VWIgdYKf08V4YCdaCMUJtj+sIo0F/SpiPGm6Ywr69viW8dCPr9pYacBL5bnf2d73wnD+SLX/wiAE/okTEeFQDtiRUzuxjP9MvabxoYX1Imi1kfxn6nR+l1kxLALO0lIjoX9+cysRg7elnDHb2aBdZaMd5EjWPWYRkJwsaNB3BaP8zjGAcqwRiAMdF2jHVGPxi/MZVn0L+uPIrcCp8PpMLWhHCAOvoXCEH4xcK5DHqNJ43ddevW8asHcuOSIEnWZ80zx95gbeNJZX2ioSCYRw2TQBTn4VtipQglws3/GOGK1hie+JVdFv6KaG9d2EAu+MF0B2/DKXBTsF4CpI1MtSw5z5z5vve9D0j78pe/rHdH9AjZMSVr28xV5Nm4ckdMRSgtrVVqFY2aorJCKDKxU2TdnsjqIICzPosMO4K/EZLjIldDEICOw/Te1r/Iw9Gjg07s6up6zWtesyhFsH73u9/VEUBBHLesJcxlTU+jZpLmRLBNSc29Gmq6y9bMevMlmDfGMxnyoPgJLurhJCBMroX+1aRXzxFK2Fy6ng5Xs9Baq88VKTLShSBqHItHejbj0iMbut0CJtb64hPz8RtydTsUdzFYwXi2WUSDSYAfUX4Yu87+cKwOx4EH8NSBYlNVzUNIj0uVyQcHJAYlsdFOQiVwD46W5MKYj1Nr1dAqgmVfDxKK3jnCTzxCxG9PcfAGxlFYEatJ+sjc6eZcjwnqRgd529veBsZff/31AoAilcH4Wa4bhWH9QK645CW8RZuJtEEQBja9ZC6XiKlo31eXNzFNVk/YGU9kRPw8CyPTEyDsoQdZPTp3GeDXvw7uj5NMBPh69rniVLnnnnue9axnCeCPOuqo2267jWmchRnzDBiPDbInMB7WnPXYtLkah6DGLLMI8xhlzuH25MBPLGG5NRVAYK2oW9blzTfodNqctozxdBZGG0Y8MSHDOT5Eo3N9ritUy3nvQ6nkpAcuq3KsedvQVsGF0gHY4DGQPAeksTNYHhAtAFpARYMlrBnwbsKgY2qDhYRkRnGsWihESgJXPQReawNBHo1IMoyENzpsf38/8TYs6qtW4261qo1LwyLXZbNcsQoxdjZ7gv0PpkpSPAFIeoe7eGVy6qmngvHf//739fp4ntGToH3Wrl3709x4QeQnmOOC5irRUzO8/SKvbewZ9XyuKycpAkVl5hZC/OlyOIUEXcMpJAaGp8rV4N8l+4lVqD6hVOMJJ5ywevVqIu+LoPfv5aV+SDCBYydnDvlgPL1at6lL2l2Mn3kjHRmw17aMfj3MgVSgXA9qvkGn0+a0BYy3Uhf/WufERI3GBHBbby2iORiq8DB6MJfRKwQ/sNsI6oWWIZocrCX4kbGunYmVt+bWhqxczrdgPBMIqABGOlUH0xbw4yeEUnCFzpvUD6lYCEUDYaxtXQkzG7+aIcJNjvFq9SSDSIKPCVS7FPQ5KyIHrK/PRdIhebjZk046aVESvF+yZIneHescR7nWc9XvGA/jANJ4cEzbuAiZ4e3TjPFFcsbzcu2n95XQLLbM9F5kXssxOdXj8yHZXnpxK1asQDb+7W9/ux6Oq7ywqsQQwCUpwJt1jIePp1vqmmUs7A0Y30zl3urJBzXfoNNpc9oCxseEf+e2QmIMp6ILjpFwhaB6yITHbi6yrbYh15lw5ivj2Ck5YDkQfn+qSWn5XOM9vD6mPzk4BKLo56Q48TmeSOJPNuR0WKYRQnFcpsoTjr4aSrouunKoGx1BFnxvb68udTjp0/57kEifdtslxteSnLnzjHh0kCq+fcJUeG5sbMjltFiovOhFLyLfR49Rr8xks6diwngGgqJviURiZbV54oKN0261rHMGzcV7jELNMVWaQKYYlQQw867bcjXMHkjo6a77+vo++tGPQsZ/+tOfJqhGL9S0NKdjUaoFG1Jqs4vxOPWZxOYF40tCgBZrYl0036DTaXPaKhgPNx+ZeDUS0aHPSzgRt+1xxM6GLGdCqLWKG1prwNULwDOg2jEkOFnBOWrx2d41yWAxdeh8x3BzcGCDeQCY/9fcdAHMYOioIZKjXw2nYBtgeOYINznGEzKk2+S+zG5ZIobEHzMMXiwBhEx3+vuc5zxHqPabv/mbul9dPzKFjpirpRBUV3yu0h0G41pWMDanPvMnUMJ4GCe7bmy1ewFWeolMCygnl55hfMJY8PCBb3rTm/Q0DjnkkJtvvlmPAhRnwUDkqfsnv5p1jMczAMZPg4+f9cagNk8/36DTaXPaAsYTMkmPwHZ3mqb6LCPS63q0Ysz4erQBKgSKOPyjyLhepKjutm5LoI6CBygIWCkgJhnBwETD3aY8YZvmBGpZyQSHZUze4ZjUDNJuYAyzBAQO3NTcYDwATOltW+rY8ebIYZzYuL+1sf9hhx0mVDv11FOHEx9MvI0xHuTTDbYF4OgP9nosJo7NpPktlMI27eslOivel0kb5jfnuw0GOeLqE0aGgKJdr3jFK/Q0nv/85z+Qyh7BxrjC4UBSXIO5Gk6k3J7D+On5XGfeYopwI4lExOjUTo2QBdUSxhMmiYvLqa6ucqHuD7gyNEmotlkMdUCkByNSGwAPHzomxCOyLQTiuEVfAJsjihJblp5A5yLRungo+RWcDKa/sz/s5zOGRdkFxr3mCq3uBbFLly5F9IaBTp7XrBMXvmvCRUkBg7vwBMW5QEHWIXAXlmVkGWPSWld+4IEHCtXe8573aAQL1TYlZXHIbB44OxchCqXqVa21xvfzXqJJXYSQST/J+BO7O2qtgTfxxkvv3V85xJJFnWshMr9Rp4Q949TNU6I0iP7qDV5zzTVPf/rTyXDVqYkbQA4Ar7bteH87wxarg2xJZVTI8aVzquvOux3fSKkvxM6ph8w36HTanLZWjI9Ck65YpD4LvW2ZAAxiWFLz6HhkH8z1o7EjTc6UsCTaiAZg/GFwhw6VpmGROETYMvMEAm1JxX0gXFEj6+/vR72MyI37czkks7wE1VhUcXOqdqRLEkhodAL/djBXAWmGrZ6coI6Jx/nQ1qHowoBe/NRy5Qyscz3k73znO7gYP/7xj2tuHEq67Lo1pzINpjof61sLBpVC5N1KE1rJ0I8IXbTWF5neI6pnNi/OOYTyM7mxAtGrdMUrZjxmeJ6MpjVi6PW6L7vsMkKMLrjgAv0WRyyIS+QV0MuMt+cwnuLgewnGx6DLjh2/0FrWnXRuq8XjHVdTJCsQKyoacPakOoOdzCOSXBz0Qqyw4STCRhHgnyGoDQcH79y5s5Fz/lAk5POobGgJKwI/kQXG+DNCYNY7V8vkPXOXi2gTyKm/rPq9JtnTGA8Ab8hCWaU9I7r7t0XGflYaV155JVplX/rSl/Qc9DkLG+s4DGT5N0O+2ZiiEjxj+5j4KPgiwlrxoJunt6Hvq7IWDYea+uInPuT/CIW/3c1wqvjl8h7Be10AVQWYGc4///xFSav5iiuu0DzP26xnLVS8QHRanO6zjvEuhlBP4ZN7CR9vnTP97WD8gmq5DlQsdxoLkWp8YK9D/XqUMJSJHyjyQhum3FaXl8YO2IgD2klDbHgprW2hL+l6yF+6ZAKWvdPd3W2dFYLagsMG67lsHde2KevNA43EMes6u7u7V6xYsXz58r6+Pv0WjUh7G/YQV2P5BgCYjbb1TX127mUoC71jLOrFyXwH1X74wx/qUTBBsTgZyorBlm7maRTBQxKpFRNrg0m2kmUGQIujlBinDaFoay2TYNEcn3qrhdhbPrHnvghrvKEsR+zATzgrLAtcRigOnXjiiZDxt99+ux4sgpheefJO+TmFAWeuSVbCePqVDk5o1t6D8cTV6O98g06nzWlbtIg8QmN81C+g1AR5qw5lgYAHvGPohV2bHoKOk7GUgHMri1BWmBGMZpU5dQLcCJ1jgMKckLUUa/qN5BJ/jSRuiGwiKFjCyHpQI6MyBJVc6ylyw1avnoAGblv33my1iPGI0kAf6fpLe1aVEaDLeBTDqR7jWWedRRiJnh7qJZoko/WvU7BcuT/pjvf397Oq4WnzwK3ygAeAkHTkVnjITo8HazGF7ZlxOLszg+M0PsU20WyDcV9kZ4IPi2VRS7S6mj659dZbcT+/9rWvXbNmjb7lFZMbzVvmdev61QdA6D2B8UhMI8gz7xhP0rBeop6StucbdDptTlvAeFfMc2Q8dfDIi8HbyvqdlfL9WZ0dkoGqyrbRSbV0fLMD0wEz0wUDuUAFK3FGBpK/AJ6jpc2d/zxXenLaP3VkNdrgPf4/e2cCJldVbf+EQRBRmURBRuWBCnwioog8GdRPcMIR3gPxMSgoIgIiIvoHB0BBQGR+QUBmBEHmIRMJmZPuDgoZCGhSdavf8/m0AyiYTtKd/q+cn2e561ZlTrrzvtQhX1Fddevec4ezzj57r702nBnDRpyIDBJUV8W+Z1KqpZKrAk4c/CBlLYcMG7G20bKv1gcXaw3xRTu8a4mwDh+QBC4SfIocUPRlrDULUesnOkGUQHXRDj74YKHaZpttpp1wAZmocRfUcl04PFcQUfnciUjcWTu1uFmaDfShnore3t6YUW9qLY7nShZK4Hkw08lqP+75kqC95Aqr1sdxqyFruZr5ub6VtVwFkcntrrvuwhl/zDHH+C6rn9gXVhWGJY+o/Kq3iPFdiVfTmXTvdFzdqbUB41kD 8t0oQYadFqtX1vy1cTUJ8RbcNTogSUrsRKK72BS45aJNYNAEQuVsDSGiuisEOurWBQSG1275efqQHdmfjHh/Ck3ehLTf6wyCb3HTndyIvEkWIUr2ohFUo5Xr4SysvYmTpzY0dGB9KTeEEkQfCLcapaO55YSCBUN4cboXakGxnmRBez1hkx+divDmpCwFzxMa7/P1RQ5buT9c2F1VYcPH77nnnsK1XbccUftUP2fnoor4RjWG+emIWqODxtXGHoBhF9cYts1d+00i9U7enp6SJpECwWBo65UBJJbzPTORSNKA77Gi7+KrRYY/Gqo1COZ/73vfQ+M//a3v20lIp0RFxN1oCLVkcVZ15WopquO8ZhFJmCyUEQFbW3AeOSmWfa09GrWtRYwHkyNzngNXKznSqh7H+1XnhpGs332JtjoKz3yhEtBBSQS9JRVs2Y8EVDgWR86horTHUVC2ZH6IWPU0wJoh2vIqbRMO8C/d+48UdOv9RNqBmlQsgLR5yNHjhTYT0lNuxJsVJN8A3VnvUOzO2aGIlAG/pK5H71SvmiVXAcFO14NYHbJUs6CRK3f5WaxN7IIdAqAysMPP7z99tsL1Q488MDRo0ePGjVq/PjxZEJ1pWxdS+Zjc5MtSn67MQBnrYuw6i5w5ckR0wZAO9EPnLv80NsTI8dedH1cBN6AeV+c1YLxvozVVLyOEn+aKvfbbz9nuArV7G+EJaVbz08g1YDuq14HqhHj/5ibOjkgejWxoWLAANG56/1Ag06r9WsLGG+Tzk2DCR4iPnUCmcat/04NMxEAdvq99WP1mMOFtFQsqCAY0G8xu4UBmNH4ajAHsd1xnuAgB8tdsqwIRZ3oTJGr0lnGlldT+WNKkTamMJ3GpTqmLceMGYM7WU17wxrD8Ywdj53NRAHwI4IA7lohx/a3I80Rk8xa0a901mAPopOWYsQp/lyu7WaXuTOkdFwdTj3XVX300Uehg3/xi18kzm0ZFgz3amYjcn3AOQh9sdx2rK+tzwXYek8mGuFDIaLMQc+9CBpi2VOqCYBnBiBUoluvg8Ji8v1a9dB1rT7HmhqDpMWxpNloo42uvPJKiJOUcf19rtqCh1Abc4tXEd2bYnxXCOaQNj2AAM/9nZsK4XCtdKcGGnRarV9bwHg88Tbiu5LYX1QkdMYTNnrJeI2cO5zrQkENLFS9tTfjCgU+9fThCYbnLbB0kYyY0oq/X4dzGUtw0UQd+63Beww1p8FXc24Ofn2QUm/w39PUH/VW5q/AoCtFMVnMYIqVTHBQH0QRSDs9IBrc5iBxdoYlg5M+ZBoEyxHFB55jUoF5QV47WdSAJF1177rrrhOkCdjOOussbcDVRi79uVxB0XnATCM6aEQ4i1a8lBt/osjJdbMaPdeN6dGLATAeRMGmJ9dGf7JicTbcarTjfeu5TboLI0aM2GWXXXQpXvva19511126C5wjcx0PG9dwZpKVXqMYz5RSJAr+AAJ8d8L4riTXw5DRWbe4k+tUyxgfGTUsfonnQXEBaMFIrFjYkRidmKf4BBxTJM6HuxTzEZDAVdyd3O3w+2QsAvP6FdFfYlcoGkB91k+Iy0LcszQutG+n/eOKwZiOk4ABhjWAgAreP5FFwd7EiRPHjh0LdhKoE9RxRpVcCq8Sil4gCOOpD4+W+tPe3i7gn5qba2M12vdMmEyJ5KTOyNXM42U0mHkqM2eDa3L22Wfjgb7ggguYVMEb/CTs0xMmIfMZuey4Y+dOELMkGLHtGam4C89DV3K6dyYxIrLVmHlgIJKa3Jsb6KJryM1CAKyxwkdj3HpFwV6nScd0oF/84hdbb721LsUWW2wxevRoeIuuyoRp4DUnAZnVVbA7YjwTrHUtPfsNYNNYg7rGiQ806LRav7ZBgzQindvalUkCRKrQAbY4FmjHk2LXgZHVGUPmZOOM1OhnyS90x4QqUvyvmnRaWD/WUpKrtndSoKxAdcx5T2rAjIs9WHwGU9he86h05XoYoBcYQ9hJvdJOBMmTJk0aM2bMqFGjhPFtbW36RIAEu6ZIrB7n9ZQMerDw97lON2MaWxxqik18R4hBVlCW3laypj5cRQOnQ7aNqFbNxEmoeV//+tddHURLEe1E91FfRZO3M2cnF9mdheqy8Z4VyLQsbclExCk75uo4K3YqBjq/wmBlCYGJ351c+OokLKwYEoFqFaPXkXEUo/tFfZZtnBkcF4I8AwPqhhtukAWP/ibUSF+KWiKrIm/B/cLWQJNs1TG+1NQfzCI4BAPeCK1Q6kFvNLIGGndarf9a1iTDiO9KOmSwLGqpupqBnNwi/A8MUPJiADNSY+xCIbaH35dwHdmr2j+zBM4Zkjv13MEl1Fh0MeLuDCr4d7WT7nrFVPz6LD8gQOOUsNPadioWPw28mZMqKVMcB81H2fGTJ08Wxk+YMEF/YuizK9O+K1m5xXpd1XohADsinElpV/q0LGtstMPcB9rhe5Kba+UCWrW+mUliVeSjjjpKqLbVVls9/PDDrEk0O+n2Fdn/TYjDbh+vuKwlb7EuWD36E9OcW+b6MY6o2Cs/J1VlZE1FaILLpUMTqVU3uNe470ixcH4clj3X09OXky7cag3NF7mamLPQn/T5jTfeiG7P4YcfTnaYHmaMeJi/TKHM+agKrzmMJ0xkn9XAtsh7beVArWst69W4cjHuWI1yTL1IXzFrBR8FoA7YO2RoOxX/A0Ii8XEDOQDmWqJoA8zaXvsxxscKB93JrI+l6T0J8KH6zCC2J7taX7nEJHu7I3SC6htOWRzw8O9ARNYMz6e6GmbRoJXFdGenu4MGVsbkcDi/cU8Vob5pkRUwMXDBePzxYLwN1shiKsE8GKz+a9aicOmuu+6q1YjmKB1XV0wnBbqX8LIa4ieepipZhNmJQnD3EW2MlUQJmeNu1/VxSS9orb4mNB4V01ptGpSyVEuLLlNfYodrzcQRuJ7cQWab73znOyxpLrroIpNqSFk20atILF3WcmsU46upvqxTsQe2cROZmVuaZOtaSxiPfoG9NHOTDjeUN/uAWRdXk/g3Hmj7HxwpxLJn7ML7I1eSCJ9JZKhbdidbXGCPo10ba6SatQeolyoX83mJ6KemDjMjgd+lcKwhAdjzuRTJMU88ONYTJRZhmQb/3H4qrxMMbLyJ+mdcn9glMMnqPQi6Q1hnPsRpjW3t1ULJhDXZvSutuLSTnXfeWaj2/ve/n+NSvI4AiCc3/AY+EagypnnSmNzU2ADc1V0rQRS3AFUcqFZUaWWdYM0IfQXviEWU3sCzcq5zLA0C9zZSU2fmcimN/pzOoE6Mg4gEKJ0jS5r11ltPBr22gT2ACqeF6PQT8h+M0KuFO9mI8UzFUQxsABurr+48iAYadFqtX1vSJIO2biVhXB8E8DD4wMVaEqiBF4ZvBKO2JHCAsUVU0rMB4lvaOZlW3clfCwtPFgbLBnw7cO6gaphr2Z1sEch9Bn7seDX8vlYXs3ntGOecUHobsJd5p5N1Cg85QaRcFQ3JpiXtFGMMIAqO0gHHBGK1VLtouEQYtaAg9HEySrlK2LIAMzGNRlMeI1Vn3d7evtVWWwnYPvaxjxGF1UmhrOa4+LRcP930GIufxQVPPFOmIL2itTIvNBb7um4EKyxe1Gh2Y7I/m0u6/zY0PzBeVkWwj5Y9t7IxCYFO1lJqsh5XUuQ+9KEP6VJst912Dz/8sD7EHacNfFWZNs2cXUMYj6sTP5IVfQcW4xk+3Zn1NNCg02r92pKWAba7xgSOGllmGgck5tgKrOagXWfQ7Y6OGo9LLDDTwasptmrnNBY/S2wgRE+fxiimPANRG4BYc3OxQRpU++7kpTHq6L12hRVLbx3ajKE+o6wOgZFHKrvsPI1ForA6XJGU6Z3zVWZyJADDCPY8UM0BYIjgoNEf6gvW4eeZliu24qgBgx0ocE1ZV7J+Opc9NOyhbKOjo6N/9913b7DBBgK2T33qUwSwsSAh0nDBOX3ek6c2u74qd5zKcNXjl9N7EN3o7lwn+OiWoogXp0SQZP3j6Dju+Zix4MQuPGnWjXM2Ahtz+rgHo30PbUbn9fjjj0OqOfTQQ7UxUgLgN4R4kuzmpLrV+glz++ri1ZQwfm4qH1tkEdUBx3j3AaOpxZ1cp9qgQbrzPJjO/dZIjX53G+JO6olxQeANwMMUs8caHw6B2CILWbnKBfk+Gos4wjFkLYljpSsrZsErtAfdM5LesB7H/anTwQzFrJwdyv3ZuCe7ioR2vU6YMEGv5A3VkmCVz7ER4OMsB73EXnOdNWfqcGl0qzei3XO5wC1hVxnlpaxWZ7uC9IQ2IeGQvnnllVfigT7qqKPa2to0OcAzwRPPAsbQy2XBUxE7Ft3/NJiGukpxsdSd3boQZtCnj3Kiy9ls8TtwUaoD5dCvHxtPks/kxjbqqqOqQ4YM4VKceOKJMk/Gjx+vbVBnwD/DI6G96TIStO5aHUIGjRg/Nyty63CeIQcU4v9JVmhh/DrYBg1CjbYr2TT4LipJVxZsjkRwECLmLBZZxrFWX7CTOjt2U4Ca0bDD0GQeYB0NnNtKxsULmuLlnZmLcXtVYCTg5xrNZOu6yo/JJG4w4HWy2q2QAJ76E088IXxVZ8i+hSVaqy9gVML4WlbMJIwHcmsPuEGiLRtJMjF26JCn9SBgmzi+a2EfA5uBv5oS+HXQc889F2D7xje+wQVnziyC+lqRk5LBePhORVAWKFFWWAbAPMGJW3KRoeHMFW4qhrz0VstCxJ5F7cjnFntO43zJ0IgRa55JbQA7Uq+a7c855xwyXK+++mrtatKkSfohGFxNmhQ4Aym/heooMdc1hPFM8t15zTmQCN/C+HW7DRoky+zPqQkbBJBdiU+CQyMKBMAAwV2ANRkToGohvZxfAU78llU2O2Ec2yx7PgvMY993ppo+amhcEc8j/BlLRzD5YARj+SEcCXA6qYelvV25fNuV0jRRy2Hhj1DMlClTBBVom1Sy9nxTM5RZiAwjwMNpUPEn0dsdzeUS4HFGuKIjP8cueYcnTTvFy6T3xx13nIBt8ODBAnuuKhf/2VzL25HLIud3wldlBnDaWgxnVlJaFpI4laTNxupOrxjxAgltRgXwlchbrdZnJ9tGsMuLqfi5XHvGzb55OFTagCCSTlNT9KGHHkr207hx47qyUA9FoJjc2DOxebJ11yjGM/s563dAIb6F8et0GzRIthpZJMhpa7SR9wT0RjUYGoKSFhbEWLfkL7YdO9GQIrsKhyieB2S3WH3rT+2c8Kp+Qpo9AGAaY2wE2Mh/5Q0hNB0XRxPO9WlJIC1mRUXxM+x4HV2gjvNbGwsk9KrPXVypqR2P0cmEYyDEvTMtaTc0/UnE9Vp9szHN1TDl0E4br3NimhWCarplhxxyiIBtww03vPTSS5kiKDFnn7eTwpiF8P1HPxgB4Ej+Mc3JqRFshmIzAAZXsekcuMxmXDerJy57Gn1H1ZyZ6j57cYg5rl2NGjXqrW99qy7FHnvsodvq5YozxVCcJB2CSRLW5NxVJk4uCePxEa0l/PgWxq/LLdnxmM6EqTSehHzw/uyZAXGrOQ0RRwrra0xGkMnZ+BjTetVjpYMgYUWUS48/VT10LIQpYdfoDTOGEdo7tCVqsEcwHmlIJpPuTNTRgdQrSEF2hjjUp6/0c007KJyMHz/+iSeeEEJMnjwZrUZjfFMLtRbk5FlIaKqBLP77XCK00TI2ekWz3sY92wDezkaw5z66og3V+pzw8/777y9g23jjjW+55ZZKLnmHW6aWiZaOSDjXyfQVJpNSTjCOI0Kq1az2w9nBXMJPQvChEeZLixZfhIjl8crUsjqDnUXx4jSdLZ25oYtPVffhw4dvvvnmyMZzx3VS8LgQqyG72kkI2PeG59WL8TzkGlDqLZg6kPCeWgvj1+WWeDWgppoeTHgpGKkOgJGS6FHrMVfypAIAfq/Rxure1VhJmoShAVXGzx1UDcK0QA7IBPjF+KujsByXBCINLNcq1AakkEYfM2sMDW6mGm2ms8bb09HRAdUHNyoOqCX5482owUHEHKV90qtlmrbV+lbL4VgmNJ1IqWKew5NAPq/6RMCmKW7fffcF42+77TZdtFoShmAGLupz/t2c7gTqR+aPTX9sd+Y6MN7pAczqLMm43Y3cxpKlXmSeY+xYaaJb/lbNdQiLRKrBD/PjH/8YftEll1wCSQxhBXKRmBOIM2hq0g+jM37VS7o2YjwdIM+1FXNttYFtAeOxPIDPIpFknsv1WZ3r5FIZpdFpb7eZEqbpFSlRRXAOV9hMA2xu1ApYS+D6wAzVq2DM/HXGKywISi/gqKZ7aN3gWYJxrqMDP0wFYOfcRP3XxgJ1qzNg0VL1EwUHwqi1ZsTJIgSbmYV0Xpq+mKBWDuMBQvwPpI1GF76TodwlEsoocIKUrjD+1ltvnTJlSjVxTo3rtuZjc2Qj5kBp45gK7MBLibJv6YEYODf7Pzp/LGlRzZnHRV6xLGmds/yNYIgzXHXQww8/nNjzddddB/N0dirOoWb/DI90I8avCTu+hfGttva0gPGUJsMVgDexCPmd0GDAReaBWNwnWr3Ge3jzzA9eCaB20t3dbblx4lLCcoAEQqKwKj6hMPi6U56lXgm2oYc8NxdmwDff1tbGESPrEMZLVyoG2N7eLjicMGHCE088MT61J598UqivU6bUBAuApjAP1oKghCyEIuoSSVimrKxQY28lMokhk2kqCgGQWaNzGT58+Fve8hYqud511106EeaxCJyNp1BbQjP813LGqq32GVnmn/VVTHYrgt7yzKxJSoiD1aDNgZhOUHLmrNDloqtk9JKarEPvvffeug5bbrnlI488on7q/upDcvowBFib8QzXUnYEGL8mtAxaGN9qa1ULGI8aLSIqBFmryS3tlB+QvuQe9qLeNL0YTiNaZu+Nhj5uciSjLEeDqAGraTCDLHqXEbXuh9Neo64BG9jRBAKVEmoY2Qg+okYvsGemQp4F8XgcI0vBeM6LgIO2NF8cSFsmxjeCK587Pdf5AxZHMGWStYdODQXmoUOHEmh83eteJ7zXKcCBwQ1fyWr6TQ8XzejS0sL3rsjT9ewsmW/+uucfx8jjfIX/291m+celLpKaQ/ThrOisSN90WwFp7WHUqFFbbLGFrsNuu+02efJkFmPcTV0QDH2cXZwCcg/G+FUE+BbGt9pa3jLG21GjQQDQltyrHpdzQr0NYNvpTvCYO7NMO8O9SO4FbFD83ywGNOZQBZO9hd9G78FjbakPXVzOoyT+iXc/PrmsQ/Dh1HLEkZ4zawkXdXQZ+g7KsgygnAaqbDgiPF+VAKaac6O0GRlbWP/6hD9XFOOLnDGMOpDDnDFVyglc+ByquRDpvffeu8022wjb9EpC0NyUrEwp7VpKZWrsj81odyBOZfGOF/UB1LiiozPWHZgeBEkN22jm4OOfkcWWp+W63jFXdUUxXq/PJ5n8WlLevP7663HU7LPPPtp5dxJEIl5RZNENLBRMEpd5bGF8q60LLeW54ozXgMPFwZA1HRlOC0xGwx4IEZEbBqLZeVh40HX4CfZxyQ+ABwDdEiYNjC0w3g+pBWriJ35yMfeRYHB+JGsPm6eWC5apJ2AYP378uHHjmHDgESGw7dSkJcEPDg1tQ+Ipbit1eOLEiWjPR+TjvSkrJn8zV1BQGxyy1ILj3GChmfGVLMGFYKJer7jiClnwwra3v/3tHR0dKCMgZYOmZxGkCkqAvZQWtynZ/XGbObmsYuRWcU2eri8K4ueEjTnHmLFqCR2sg2oD+8jrSXaF4dCVhS9/8IMfDB48GBWDOUmyHfYiJf6YjnDBQc41Od5evtWO8agJqbcyHAYc4LtbGL9ut5TnCg8R0jNQgdUF+AHYIFP02kYkwOsJa9lJmSSe8EPLOBpviI8y7hn0kPJwBWikmnS2pFFiIwns1/4JJswJeuQGDPR4SXGqJga5UHnChAkCexjVXSk3wGi6JD8xCwN8NeRwoc2m82UDB31Bel5xuVijAasXdATz2L4k5MJPom+Ezgs/hGHXXHPNa17zGmHb+973vlGjRo0cOfLJJ5/Ut0jZRDN9hTB+6a2W6DGR6ug1QxSZcSDW/CgSLVgCxXC+SbIuROVFTgwMu+f8HGSlJsqpp56KHf/5z3/eisEux8vCgyUlThsyyNY0xnelXOq5SYa/f4B8Ka2F8etySxhPVhEOS2eIOoveKTkE2zC5nJsI6kcjiXHMCI4ZNHFtbtQpkhOAgajNKDWhNybe2C3TVL8Pa57XWmKnRBeT90+fnchLXSodtD019VDdRoTembtN+fE2iyupCAo69DA3tDfEIAQzXElnmj6dy6hwjk/nElHWpnRYGlbSs7nOOJOet2TWNVH0+uuvp5LrUUcdRYETWfPqtnCFE6wFbvpqxPgStbOoJwvF+CvTlL15JuQ4dG1tyulZmF8bWzC0kquAdAbxH1xAeq9LraPompDhusEGG3z3u98lIsE6h6mY9UOR5l7YNXi61hzGs4rQUaqJOmCP4gC2Fsavyy3luVqd1UrwtVDt2gteKwBCSwS2GfSotegTSOqY4ORiEsrFXMMFwZgj0MvSm0lDo58cKH1iHSxayVHjxoH0lY4Ly7wa0peMQF5LdCXqpU5BiCg4sTMEiS+f/tIxvkjeFaxDUAfjFUsUs541DODEh7NT5dquFNbFpQ2SYeaW6Ki1hmYTlrIr6vCll17qkhiEGGm65niBqiHgurowPl4Ke1GiJ4dL54eH+2v1NbhDZEXH7sUQxPT6ErlY+YiB1lIUn2g3vHY9NnvttZcuwtZbb61VWVeSiWampZM4gorEddUNcqnuNY3xJGFbu7NfoHyJrYXx63IbNEjoSJFUHAKsqaM+TBH4Eiyxn8klQOx2fT6VTNI2FJDAQe7EU6SDCRlaPJHBNydXwoAyackxivigL+m0qfkNzcWhtA1xUO+qCBHEaha/x8Aiw5UyrnozadIkxjqzwdLJHrWs6AJTspKVyTDB7YGJwmZE++yR4ByZAVwyxFDXiMT2V2D+Ii6kP1326Oabb66lCq+sUqz1NSdX2F0TGO/mR6UaCPGENXzFihzAJsGNOdBSRdGyd2oy9r3d/Ez+XD09P1Rj1bOh/UAuev/7349mvD7XY0N6KxhPl1gpoWKwpjGepRQnpeHQwvhWG8CWtAyQ/oo5OKVlfhHsNkwu/O6YWXgVyDcVzFCvD3RnoTo31Wmq5Foj4L2zfkiqAiSm5SKsAAAo6BStrpSVCDnek4BedVCNJDwk0Y4s6tkjiDUQjdNuwZuOjg6BPXZwJde+q+SyGdWGat0o2Vq1wem/kYjinxc5icn1mJyTFfODqiEyWrra9kz7LFCI1wWkWvfgwYPvvvtu8j6N8cbLIuhLekaq1Yca5uTytF7CFc34P0brGBAt9bb0id/7jZWL7AbEKI/ZWCVmJW4x4bruFGCvp47Qsh6we+65hzrdxx57LEJ63OJaEhHCscNJEatpFBNeQxhPfpY6L+ujhfGtNoAtcScZXoB0kc3Kps4KQ0VMibcLmfEK90PPOE+3mh55fN7MAGSvQmKxJAtuHIw8IpFuM3KLHzpaiSKxDDho2Yao6P63ZxclMwo9o8Sm/muNr5NVh61ha3w1VvkVxxS6AxylyBmcS7J0q0GMINalWtL2sZWw1sLIwrkjjjjCiT/k6uvCEg+pZRGYmMxqezouzxCjxGdF9IDA5+z62tlxMdB4aiUykg/X1OVVyYI8zqrDd8eVZFf0vJLLEqo/8C5RJVCH0T3Wc/XNb36Tie6KK67Q3iZPnlxJ5auoSIAWBk+snqta0npYRURfHoyHm9nC+FZbG1rC+CKpSaII7vhWtaF5TJeSazxqox6s3nQmoWAYDhpqiJE7ZclCBholAKe2gdXTqJXQOMkwPzAtaHsNKQZ09Az4LOgwijR6L4uQ9KJnUp29KVOmzE01OHFV2aC0UW67nIZ+eSUXxS4aqIWNIF0Ewzqi4IpivBUn1ef99ttP8Lbzzjs//vjjughFYnFUk2vIOpKu0RKXFvHK4N4mvbhIosTMnxa7LOF9JZf3sn/GDrcSxv9Xbo1nxM9ZjUxPRWG5yJBzbNbzUCHxSeYazxjISjGbAw44QBdhxx13JKNt/PjxQnqt7vTUETOBqENyX4xarFGMJ1bAlWlhfKsNbAsYb9lE21uNC/ZKVqiKQOjh63RYoNey30B+d30Sk33q81JBYcIC+iGOmlqWsCp1wGDJACIOAJkOJze/sks+2q8o3ugn1jIYO3bs6NGj9Z6jsw6Jp2YvR6SpeGJZ0lKnKcaX2lImsaXvjaihrtIuu+wieHvnO9+pUxCYcXYQUU3bjNoTVg6jRV3LIrmNdRGKlF40J5ct8XrJcnF8VQ0sWre4PCiWPI95VuSR40qyGaQj/Fp8yNQBv4jbDcYL4LUME/CT4frJT35S10QGxaRJk4zxnALONLIOulaHOs1yYjzhHRRCWxjfagPYsq+mkoXY7ahpivElx0UEKm9gBjmrfpcusuE+L1eJp6FKAItGUGFifVNodE/cSQxBjXhod/gfcPwXgeuH6hireIAc8xFRHZz0BA0iFHWGck52TwEYDk4XK5KT37g0WtHtheU6C3Vgyy23FLx99KMfhS7CUsSrqSghYSmEZ3KBW7vDCX7r50y83DsqKAJXxB9wyrlEoWtt406JeN/IrGy8gxBvUfrlqStSOBY3nUn2FkHAS8MTVSS5Sd1NLcAuvPBCl8FCjE2TtnorjMf6J8MVFSb9iQtlTWO8hRI4qRbGt9rAtpTnyhiFEQm4atA3YozRLpLjYtY9r46tzkmF9XBdU54bY7E7ZZv7AYSEQ4AWjI8+k9iqIQOSzlBdWl9R4s+SL6WeA0XIjavDggec+s+nqqWkFIH30T/jpQt7IyuXkCE1J0oY3xTSqs2a0W6FML6SytnqSuq4DzzwwHrrrSd4+9KXvoT8f0lxsjQb23Z3aWwHOuYkIXYm3iJxWq0b58wE3bW5SYsd23RWLkPLZAK3qpqzUQnhewnUeJp0koAoRVb0IVEdwjg6R32r22RhOeg3OpDPVI+rzHddgc022+y6666bPHmyAF5bUgCQgDrOeHhNs1MR3H7DeLhPsIlbGN9qA9hyrT+NDNbjruVUbSB1eICC7naHYxE6VeeZXMEPEwoM5imDctPb29udzfcI8PoQ8jpjurIsnV7W+1SDECxhvbEGKE1H2NwafMJ4YQMpoSNS6+joqKSKdswYxuDGBYOJ7/YkLBOhV2+rJkUG4Yf6ecEFF2DCnnbaadi+AhvLRnAWjZOkbW6WJdj6OJ0o5VekejDoOXanSq5ggyu5crMM+ZWs6YA7jtgtQWWv65zfzI0okmPQdjxHJyaqnwvddVCm4pm5TDxzL/51JmTabrvtpiuw00476SbqMZs0aZK2QUEVki+dIUakzzU5AMCrHeabNqJMaO+tUQiP2SMxbRA171L+YE9Pz0CDTqv1a8t5rmQAxYRUM0Y6c2FlUtCj9GTMbGLdbc1ElxlS0yjHE69nTYPYKk2lp0/PqUbGrFRojqMvvdVSWA6pFjwAUOQhzYE0NsetZUB2vTovSBgzZoxeseaBvUaMLzInHsOX3RaJRLn6YXyprZpVd9ThM888U/C2/vrrX3zxxVz/rlTElFmXe2ECklX/S2xKUBOXCwliRfIFkchmhIiwYeUIjHs83756kWFlmToTb+JirEiGO9537iNieEJEpvpnc3VBkwBYPJCsrKdIVvvWW2+ti7DffvthTOv0NVeTf8Rig2NxKVz7qd9av2F8I7q/nBpzNfexhfHrbKvHeARynbxTDanpZrRHaRELgDnUCncSFw1WL6FcHnmcORpqJWEC3mso6KksktAulvcyYc9U9Wqm3be3txNotF5K9EjovLQB0T7UFjQ/qPMUDGJyWxLGc6AiW8nGnn5rOhxJArr4Rx55pOBt0003vfnmm3UKKHWqS1YA5tSsTkx28oxc4hyHN8wi5m0gGYYS+Wvd2aUGREWMLzX8PGTfdqVE286sI8DEyK0hmuuJlA7wCPHw6LGREa9lHi67mCU3J9VkVQ8p3KsjanJjJfOFL3xBv9Kh1QGUajRf8aTxhMCMt/neb0gPxuOl7Dd0x3xnGiTl1ymELYxfN1vWJCMv0CJS1pdiJQ5aO3/H3EnnKOH1nJkr78FBx3D01MEo1x7w/tpXEwte0hk07JeJ8Q4VV1PtO8TCWfLHIoEgnL6amxRfUZycMGGCTg0SZS0lztSyHHHEeP/JZIJ/156QZXqTVm8D4zVq1c+DDjoI5fhf//rXOpfZqWo53EMnWDFrES1xwAR0j8phXCIL1ZMM uSwin9E9OgB8KrMGv/AjBo0Ty4UejtMvNwaUqWpda6mbsjQ4LiVXA+4yPwuchL0HmeLDnHiiSeC8T/84Q/1q65MtsFhRdiBeYbsZ+Q4+x/j+8GOt2eGeBcBDRoA38L4dbmlmKsxntHGsHO5PBPuHMmr1co1l2tZPxbgxJQk7xCxGkJrsPCRXdezH700wINQX4ODUiLLxHjGkLqqXnWn4lBY26wBqvWZRxQPFDwIXZCQxwdMtQn0KIsGeXWf8pwkShMxvv/t+CIHRGXI7rPPPoK3N7/5zSg5Ezm2f70IpTjigqSaw8lzQoFYstiYokF6bQlmcIPibTLG820JvSLMg/04CrqSDjBKNVGOk6itZTetO8AyjPOFE8XsVEvJbtjrru93/fXX20OPRDYMHGM8ksv4cFa9eutaiPHcDvtnbMSrcZtaGL8ut2THo/IuhGhvbwf2MAdLXosSLQS0MH2iSLE0XLxWzcXVg/MEliJ1oxzdxE/CA6hHUgghxGW4dwa1wQhUbmCwNtarJgeNYMxTLzloxO3w1BID1m7xKlAbVZ+DBI12uU+WKAHcPccvVwKkO+sF+D2TlK5kyVMUp1ONYN2aPfbYg6oYQmvCETp9rvkfQvnsasjh8vIjnp133pmF5XQBdUe8vjLSo63lIlxRv78E8/NzyV4ajhQ0fKpZ9Ygb5MhPzG+ekavJIkWGM4fPKQwMs+gDH/gAGD98+HDcRPpKG3jFUsvyoDqWpcj0utpTXZtqGRCThsi52jG+0Tnzcn1zOKU0S7d4NetgC74acA6Xc1NMpcUcqCLkxteCli8sCGJdLhOHEdyVdHH14Ou9a5eyGS4XjUK8OkXIl1lSfwQYkHCoEeIyGxbjReQE3BIM6M3UqVN1skAFojf6iq42DaNyaGxcerWU/iw/xndmWXQ7iDqbyewUQSihllLxNSMJ1bbbbjvBm2xZXdvx48cTUUYY1HoEMeTpKSKel/uArYzjC58JnniQXpafcDo6Z7qzf2B50IhQuvUfrUpdZD0zklB58Ly6QBDJpW0xPTh97VB/cgXe8pa36L3rguiMiC3o8SMMzJTelZSO5q4mEbLlwfiuZEHolPWArQmMN7o3Arxa9KG1MH4dbznmKgMIc2pmKprT1AsRLUIPUJCjM9d+YMmvQaklgfCVXCGkEjHC/KxpS21gWx+vMOsHuDolt8mSMB7fgkBIUM3grmShWqACbolGtkabUH/SpElELr2q1Z8sMwgsxObjUjFq1THe8FbLDBOzXEy1L+rXTn7/X6kkt07z2muvff3rXy+EO+KIIyZPnjx69Gi8EDNzFdXGvCe8IvhkcM+zvLGhX6QMVyTqnR4qsBdgAPPRK48TBht9mWiEEYHnpJr14Dkpyo1QVYVsCitlOIpPDtTTueo6zng9OWjnH3bYYWj/O7UUYg9rBvbAlA4FqGsNpLo25cd3JZrT6rXjo+3eCPCv5Ban4u4cMm9h/Drbkj8e/XisVfzZTWEeJCgJldhedF4MxUIIuFIfWQjR29trtoZgtTvx48ha105wu3oJjzs/wuFSMF7Qy2KcnFrwySTBSm4a3wJCKvvBvmB1j1Yj+ycroBHj9WY1Yrzf4Dbm6uG8WhLG8wlib7p6P/vZz9Zff33yO3W1tWjRqekrbkEUcpueq6ubyupUV3NdmQat786Ki9/iMUN0CFajYQMUWSZ6aRu4Ug53NF46pias/LiSqeTiLjwStVSwlhzchx56CEfN2Wef3Z1CMWp6hqHfwBsgAUDHZQLEH68T6QeMB+ZR3VuNvBpHQppa8EsC+BbGr+MtYTxaH/gyUS/pbBBStN05u76KJ24WzD4NsiItt2HOdOdFonOdSHW1ova8lDwPkGDr/yk1QqfFspRPainQi64YmVNQgEzcd3laGPCCcNl/EydOhM2Hy5YjMjrjnBAp3TgxKIKyihjvntcyKdziAuy8EeP9E7BKF80JUDfddBN5n9xBePBxjqpkYR8rtfs9cwvwScCEFOFIhiXNjcnB5Efi5dy+mK+8JFjSRMoz09msbAl3ULeJ9AwvbGo5TFFNrFgdGkUx7U0H/dKXvgStaNiwYUI1girqGCs30hjAeL12pcpfRFvXBKmmqaOmK/lqSK5dLRhvgDecRxK8efDxJ85ca2H8utwSxvvZL1JwkVWzh1o1E1TwqACluALQeUSXXc+ajHU90UUqLe1KIaWwPgt/P32kq+hAiP1apxIVmhLGl5YWtZwDDwJZUsGEfnqLoU91JP0pjB83btz48eMnT54Md5JgXley5i3UGJM1IU6SpFOrl8xdUWqNt6/mKtLY3HC4a5mtWcJ4vPW6PhrK6urxxx8Pxv/yl7/8Qyr9R4VoMD5OI43TkauxFjmITqo/cMgSyBBbzYoDnogoF4D2G8FL7mNUm4vmo/7UNvjQavVazcwzqMoxIXMvojcJnzqlwVirIBOw6667UqxcHxI+F4TrvGKRbvJodSyErNmGJZzh+S+hNcXvUkER2gv1bW5Sp8FIsWa1HjbWacggl9B65TB+Sd53Po8XP2J8y45fx1vCeA0C8vwRLiQ4anodkAllhbFo4ShtAAWSJbAVv5wbH4M9DtrxPFKVW4fGXMaexh1BLo/hKgJktGtB35mpqCfYgL3ozvOK9cn4g0EupJ8yZcrk1MaOHSukB/wwrInRwuwjz4s4LgFpe4srDTVIallQNyJoU6Q3n2RmqnqH0g4uZIxdEg88rfGnTkGXS5t9+MMfFsK96lWvGjJkCDlcuv6VVJ2KcIR/5Yk6zjDVerIN+abWjWm85rVMIuJizszFvHgAKGDI7Y40eu61brG6jWHtE+ccnRFLwBV4JnWLD5l2sCzmpFrbmPK6QW9+85t1BT70oQ9BxHKNbJYlxFl5MGqJGQ9Uq5Ml2F5K0zZ/Dg0DhOoypca0aYOIJRDdJnkDl3wMVy8TzkvzZDTiiSOV0H15dtjC+HWzBYzXk6gHWeOMQQaqkRzJYtkFu8EGqrHhry2ywxjXgXbYmAM/L2RZ47TRJ5oWsJ41SsB4DUEKD+I1ii2apHYcMdv8ITe0GOBpxjIe7By3TFdavNPYJwMaoxZrGHpGTKSinriTRGH2gdCx8odboz1dZJdXNYnZa3vtkNQqphR26KLV1nYEaMnGb2tre9e73kUF08ceewwnD7xwHNv0jVxkhzgwi+fkFkUNCHnqW6rANl14GMCquYStLxGPCqxSXd6ulIsEPwpxMuLiaNRYIMNLoxm5ohb7twXvWgS67NoGlisYP3ToUELOX/nKV/Qg6aAmDXC/eAaISFiRE48WFDLaH3Pz2qaaywzytDsDuBTimNmsPRvazFzwhhOHFGzbeoUwPg6iFsa32kq0eozXANIjyXqceBXkO8ZlNcuo21ENfhSJgEFYDtUxl1m17WIBYZ5W/enVpYYdJjuGGq5lZ8EsBeOruRAc7AXtFouNUpqsBGqBpocvAsETNf1Eo4SUXMEnpI5aJoSa5cKvkBSOVUUdxTQDlECm8dXZpSYwVnN2LOsW1HVADjQW2SH+JVes5l5oJ7osgistPLbddlsh3A477PDII48I8gmA4Bl4JrRpufK1O+nCjHQSr4je60BWd2m68IhLAlv2nItrgeFscdQCaMcbpuZ1Aj+kzopj2EV99hmylTxg+i1yk8zSunG33XbbxhtvrCvwgx/8QPBJuREWGMwYTPJcz9lZh3521ss3DAPYzNhRb5nrH+9ptHSYQGKrhBIyPDmY+5ZVA+MjK2npkNwd3CwlmqR9NSVBoRbGt9qSWsB4yOJIN5YIJBFcea6LLLerR16/xUDvzoxqnujulEGjBxzmGmpkZts58qqJBdMNG4vIKzjaiPGlP8mB0uDDS0oWN2dhH7DBSZtpnzoEBGKqDqKiU2QVyyJTRF2hxP4N9G18ZZAJsEib03YwTw2uJeqigd8MEAAJ9PUSwru13IC20Ump5xMnTtxkk03QW/zNb36jyUGdwRsNx52ORQkD26PPBp1QkytxvEBcbcT4ps9ArV6NlCvMGZU891xzkJIO0DFCELrg5N/hnq9k8QIfAm89zCs1Tch6bC677DJ0lYcMGTI3lb5i8YObkVUBmXecozHbUx+YbeOb33o9FldltVDYOJ7+kq6JGzMPhsaK2vHRjx7RvbGB8cucMVoYvy63jPHAPGRxp5A0unIrudQbNh8cBuGroR2Vkrm53Bk+BGjK2qc+p5a3M+H1hOpDxj1jnXEDZJbwpuQDwfLWCCZ9ydjmIY4bGMwmdKfBrS7xpOvogkzAe3bWCkY4n6hzLevHg/S4U+Jixo5ttyJHE63RaZPRViMqQEwC7JB8MWLPnaHW4pxQTbuSEoLV4TFjxgwePFgIt/vuu0+YMAHvk6ZQ4nzVhsRW/+keskNjP1Y4S5TZWZa5hPHRAVXLXmefbxGWWGZeMaE5rOvAKiiLuawrg70Qfx77jPcJ1xb+Fj2i5557LiHnBx98UA+bWbr4hVDQqOQSNbhuHJyJN2tOs0q08bGPM/xSoiuNjf2gf0Ftku4g6rZMVJ6fZZyXjvElmmQL41utaUt1oOAb4EmVGc1Aif6KIi+xo+3CihvBJ5JQAHXzkp32wqhlNtDzxYPZ29uL9e+ybM+FcrCYfZ2hfJyx1nZekdRxcelo6EO6xA7Dj8tOsOHwSGhjnSCcH3w7gLfHfRzfhhyuA14aD+Km848X7KV4ZzUIxYCvzHtg6uykgj87aNJXG0ijYLmu1d133w3C7b///lx8xGqgdggLo3FZQp3OXLAp9ooOaFe6PvYyOSfVuRDxMfAVaDzQUpAS6MWyd6kBfCBRRy0Gm5khtSswnjzXr371qzr9DTfccPz48Xrw8LAJ4OGjW/QmepZq9e6gfmi1rM6kU4A+aX7LMjE+CvVFR83yg3oL41vNLWE8tAT4CYIKFt3Vhgo+RghH5jSeUAwkxunFLw4NM4N7enqE5XrktXOy4pEz0AYau/hcTW0n19ZFQ5eO8aTBq0uRtyC8ryRGO0aq/alE77qSmALbE3/QJOBVeWnpYkgABSHl+duiXsqhaFhpRJCOAEarZHIiqw6M0bhzG9CVVAEKyvWQIUPA+Pe+970PPfSQTHlgkvpHhBfiWZRcCpV6YTmaQJ3a5daCfDZXb/V978xyOqWfN4W30vzmy+vTcYEZwN6OHbvCqon8SDdcWwr65Be+8AWd/uabb97W1sa99lPBzFkJlKdqg0TPCsP1SrVaLlirZ2bVMb5R5bOF8a22nC1jPHwxwL6aHe0xmFTL+pL4IvA/MEwZVcahGBCan8sGaXRiYGFoYuuTX6ORitwXBlklp+1UgiqOcaJar+jC3KKdewDpcDoRcmFMUcTnLSxBZZJEW/1EP9Rponjj/Vfr6Zle+MPCjwv86BKJSFay40unUIQCVbXk19d1gALZiPH+k4CrJskrrrgCjD/kkEMgtOiSCggxc0ugWwvuZO8qgjSn/Hwuu4u4kHmynLIF6uIk75NqCm9Lx/haPRkTy96hYo4I95BIMIxaXvVbnbhOf7fddtPGmtbYJ34YnId2pdcacir6s8Ht0VmsKMbHjU2qWWkjvoXx63gbNEj3HJOasCvCTljkRfAumyaOaQL9g2AYVaTRftFDpCdIhrv+1N6E7mRFwbtw1RCaFc31JhpbBsLSoGm045ko1OfuFMQlFcghTNzqhOsgKuq30Gm6c5btzFRWxJw4q3nZgwuZDi2DqDtZWuTUGlr8vKg38R2kBAmY66LFGbcEUwVv6rlg/vvf/z4Yf8QRR8BU1elQAom8G/pcCRLynpfitOkDMd9Oy+VhmGMjNZJ7zTKGJAQAdUnwuXSML+o9PLVcStHhYcdrueB0GGc8VHuoowceeKBuE0UaeVQ6k3Qmi8CSgVB6tPqnVVM8QRcQHbXlx/imIG2cXoms2RbGr8tt0KCFCxfCRQHjBSRCRCw5iAoxTqZhB1cR80uQA0+mt7eXgKuFvkg4ItylJ33q1KmCUrJmwCHGATQebK8iuD6auk6b2vHU+CRsXCTpcSKa0NZqmc4GUVEbqHvkHWqoESWQfR91zU2KxJHPpSC7Fw/6nFyZqJJZKLUl+OCLZhhvA5rJ0wlWJXiIe64lIQM8aSeffDIYf+SRR6rzKAK5KIupOOZ1RjpnnL4cfyVvCCO+Wh8HoJMY90/nkr3Og7PbvvE2Ld2OL+rnydL2s5NYJDkDROKJDReJXaunaPvtt9fpf+5znyMQ4QUG/njcO9EQKB10lXB7+ZrXdZxFC+NbbQDboEG2uaHIAxh4D6bnCkFQwIgX4lEBv7u6uvRzSIiIQlWzugjojsNE9qUrhcSYXy35f7DFS8ZW9Cg3HT1FJm8iFUbfdLiOjg4SUkE1rFi7I7TPV3L9Or2ppCqteGBAXLO9zZ+GAKM5iuoprEAgQsb0opJd6xOMfxYBz0AjTyzTctmjUrMXXDcFqRZjvN5AeERXEX1d/DlkpQHPlsSxB8bEST4ku5RbHNlEXOe4HvCM5OsAHWhOlqsv3b7GBU90apXur737s7NaqBkyMO91uXReEyZM2HTTTXX6X/7yl3lW+TlJUpjOZAwPoJfGp0m8SDclwu1KYPwqthbGr8stYTyER6dBqWmUIPNiU5iH1wQ0TEaqNeFVtU484EHqB8x47Zz0WRJPi3o/DDRxq9OsUAO5UTXD/TllyhSMeOdQEsRlstJmHmEvv/wyP8EhQJdKbpZKLplkLiQeX1PALePYlHXtBCgPenZYTQFFp/Hjfl6Sbxs7FbUIATliNRtttNFVV12FkIvgTVcYtp0WVKysHNVGU8XqK6SEMskQ1FQHiEabMFvNRBpjvC8LSG9Ruuh5I9buyIZt6Dn1MqZxlo4X3LeAnTPx6tSsLaxDaINHHnmEKe7MM8/sTnJ6PIF6JYI+I5fdbTpn9k/zOTKO1DEDbQvjW62fW8Z4LHgwnnpJcEhMg2b84aWxmxZUi4Y+kEB+oZ4mIIfSRdjx1cyQ6QzkHFzyy8T4Wn1jcD+d6kCRY1WkGYPpAjQyjAH8WlE4L1C9YrmCVwoL3pk49i3UggoNCO2eVIOqj2c5zOWSw8QBRTpjx/OMVKPUpm3jFeATp//q/cc+9jEh3CabbHL77bfrWNAJhegLc3MGzYJmrSc1MhNIjNceyO2yA63a0Hy+7mGkgjrY4oSvWblEpIMAMVhbC0TOzvqiKY6b6maxpXNzEZa79dZbwfjzzjsPTTvc8OoYtF9WWWuJHd/C+FYb8NYM42X81bKaeyVXTAbUnWlvQ5YsSZbVAiHS+9ra2jTOyGQV9OqhphAf1qrjYTRkAghnLr01YjykP0a/DsEyn2QiajcbnKYl1Uht5tRAdUxdolCUIXlaLhVIez438M+A1xnq8sVhXWTLNVq6AL+T5C1VoKukwxVhVdNoetqOt5ThfvvtJ4R77WtfK7TTrpCIQewXIpNHdpSTiHyMOANouOs6IEDgFKGI7vHKl24BX5lthX4RZwoZNrrtq/U5o0Xmw1ZDdLkI5SJxHFVyHjMrPZ3pxRdfDMZfcsklmqMIqHN3KNrO/FBtCO72Z2thfKutPS1jvAa6F/WEXTWkoviJo3ckh5NgzyeMPwxcPAAYrAgTwKnUe2KW1XqKRZHW5qQ8rsRgcvaqM/8tCoBtXU2U9GpKZtVxZQ3D69TzrtPEpWMsn5WLRrErC8iYvc1XbE/wsoSFMXZYBLkbOjMrVLolDwiZfMNnUzueKRFWic5lr732EsLtuOOOU6ZMQbqWW2b8jipWzuhtDNSxDUXS0ZNRPwlOR79KUR9MaETN0jYwZAB7CzGYs/T7XAqlaBZ2rQZNMkxzvSFVSk0baCo744wzdPqDBw++5pprhPEuN19NIQso6ahgxLViP7cWxrfa2tPqMR6ivFkx6LuC37yaUWNOhWlrHusY01iraJMDkPBqisActEyUjGnIg3GILGXoxA28H7DBWihR0wtApeipMZ5C0tCEinppRfiM2oPLwdpdYA4pzQwccnmm5dq0jsLOCeVUa4EXTqTz2STAX6tPx4yNa06VP90g7R/p9D322AONTtipeGyE9CUCBlJwFncHXQz5vNHONV0wXePdKsVQ3WqBL+TGGVWyyAVngROGCR93WQxfGPJLsjCAIlGgakqlQF6Oi0Au7xFHHKHT33jjjbWM0X1EK5NbT54A+y/WJoxXt1sY32oD1RI/Hs4j7hqidLI8NExx02qsOEPeDuminpJW1Od9krv5bFaunJGKyE2dOpVYbFRkx03OwqAaspy855g4UywB5t3sI7fdDGMEyBcQIsqKu0Z/gjS1nN5ljMfFS/6rOSqzcumoWkjUckkSTocTIUCBqj1TAZFdy+nA2YQb2NTzExtEJkqn3HvvvTAHDzjgAB1Fs5bOSK9MVqwZGmVYcPVQIqCxaIS2ofIuaQ9ONcZDFeeoIvBtSreg2qCpH1s1xZh5JKIzh/UeVjhbPpebPmGJguIkWgZ6RA8++GCd/hZbbHHnnXfiq9FlgceFL8v++GLgfDU0VnFN7fj59a0EyfMbWgvjW22lW8Z4XPKuRknlNLvJIwQagEsc8WpmrpsE15kVbwh5Yu/ar48ZB28HO29OEKcvmnnfS61xBJcmh1oWLCfASbEqq/XJRgTjqyH5yECFEk4tC6GoGUgsRY8CPWk41hEH3fFUOAobFQ+hoBCahWi0FIznjEgg1rW6/PLLX/e61wnkjjrqqEmTJulwrvLH/llR0BD1tfOKy0vPSYql9AVnCgvIMpHmCzE12eAu6hc8jaBeNMzDpfvo0r8+kBdIJMQRUamlvCfKcljyX7ePBKjXv/71Dz30kCWS6KFrEq9VGK/r79KX3dlF1sL4Vuu3lnKgwLyI8aTb4IGuZKUuj+xouMfB7WTKqNUN8QajDcYFAxq1Soh+2hUEaO/BO69mjZdIaIkHbWzVIFxYJExCtUZoQdUq1Bb0p1WUiwaInZNr3BErILCHwC/hBReZoA4uCpJ6r17BltGWlB4xV5E9YNPj51mmHe9KQ2D8ueeeu8EGGwjkzj//fOYT8l9RFTasmvLp9Yy1L0simCQ3WXGylgmSsKdKbnUHLuzPqTXjvjfeDt7ER8jLLVZBLIG4JiSqei7laqN0pA5ss802Ov2dd9555MiRyKQig1dJxbB0rWblWn/FQGN8NVer1SnMy/XNm/pq5tW3VUT0Fsa3WmwJ47n5zoSyY54UoRJDOmJSRHcjysxQGBBcB9WMCpVU0UH7t0GjDzXEEScxAIBSMHZY7C/JUeDW6CIoEsYTycN7PT9JCgvjO5OQQYwCdjbIMtouRA1BHaAYE94DAEZf4dbQPjV69Gp1F08CxiqzlbDpsa2XgvH4IvRGl0tvTj31VFgll112WXt7O5fR1cbjrNv0ylhIdE6udsQSyxTOSpYL9mTuCMzMXHeWtYFrZjTekaYLsJKVX9QDMI+NC/GqG8g0oMDjDOzjjjsO5fgddthBm5HnyvQLxnOF1xKML9Kl1o0mK2N+Vo6f19D+Xt8aN2hhfKutdEsx1/lZqZrIq615TNI59fJgnbnUqE12bL7poZ6OxYFNmi+CUC2OBY1gnjh1QPg3I5TOcwVZHLfWdak2tGUOss5cHQTmndBdR8RjA36Dx4Y0M7btd2I1AuFEHwI89hBjo2sn2phxLChC6ic6kpkKtKV1tohJx1SBpqfjiRQiO0muMuVvvPHGGakCHl41PP0lpZq4E88A1nB0ui3WfC3kA1RDemsR7O/ZuQRfzAJzSSkCpY39L9nx8fMS3lezGB6FH+0NgwRw9NFHv/rVr0Y7/5RTTtETqweVC8v8vxZivLpBABg56xbGt1r/t+yP706aXkReX8xNIwYU7KxX3PVYN65Pz0UuTSmJj3n0nHhawDsOJwQKpHOFLBZAOBbw6KzXPymajeCSCevNqAJCnmh3yn4SbMxJFbodCi11u8izGTQPKIG1FH6OdrnOgnWCXrVPaCp2J3sbkB66Dm4cZsJGQnxjg1dD3j6sku222+7RRx8l+ZVq3b4RDvFGln8ke0JBoVUzgwjJidKE4yynIsRY3FiMEUhxaoGN+xj6NfZXc85rCelZzHCptQcdCGiHOKTHcsyYMQcffLDQXUb87rvvfvnll6OBxyOKrwzijXbCnOOJZXkMgTXUWAXpsqgPJaiO0O7yfW6xCkj3SgnUtDC+1dwSxuOlRnbGGK83uOQR90LRz0gcU/fB9aJeZ6YRhm0dknAOy8LME0tnYRQ6wsdCwuZpsVSMLzVb5/giqEmoEQM86IyoNlqaWCIiwsXjT2O8i0TjiimSq0Fgw1RZJPwT2GgbzGWQHiianarbaQ8QipaJ8eAfKyu933///YXxe+6559ChQ3Uj8NPXUh6Z6fvOujLkO+M2ioqBx0zU1pioZVV7301DfrWB3VkNlapw6aAZ4UO4iCJIT2CntEiIrFu6xFUllqyHU/vcbbfd8FDtuuuuumVUlwEaHQ9RB9DXJ8OhWh816s8WvZr44/W6dIz/W30z2LcwvtVWvSX9eLNNXA+VJpTSsEPfPQqzgNAMWTdSjUow4HEGVZokIKiUcGxAd5NbPO4JalaTxJTd24aW5V+JAyekGqHp1Z1WLGA8JEEnTzU21LCAf1K9aolp45iri30LkzR60MBRwxiNdjxQhBwuGWHLk9oL2rHaUX922WUXQd2+++47YsQI3Rd81fiLilyW0KjsudH+NMdcp+WKs+2pWeClEpQ03Yrswo/Gse9ULegUFImPhC2A2x7dHovY+OcO8sSiBBD0Udgsku9r8uTJBxxwwEYbbQSX5rLLLmN+hvrPVaXmOxdWfbAd3zQu0W+NJxY7Xn3DA4NLPuYfA/NLwvhXcl37Fsa32kq3hPHCdYyGkrtGhpEeTwtWOZnVw7So186NpnYlFw2NDHK4HLCiMYuLDC2dWQ+nxA+xjCAWc7EiGI8hpTYzFXxlALEKlmWM8eegpoOO1suflWtXOISs6wDFD6Zh5J8gDCaYsWfaPm8Oof5j11JfmwSx5UELUoH0+sgjj1Ct+zOf+Qy+IJ2FvuI0l0RPtz/Euu8mQpIVyiSG1wX1gZIKcbWhwkfpLvhh+K/c8EO7ttfMXGhkTqjeER+eSpKpwY9O+EIXU2uV3XffXee7/vrr77333ldddRUMIn3lUmIsqLhf8OOZtyMZbMXAeXU0XyjcaOobaG2XvBHX6+emGM+obGF8q61KSzW7EfTiiSvpFdaSKJQrs8anuBK0uxhMptYgWmZ+ttOdAEije0SIiBlmYNcSdZ5UVEZMseIYTw0MAQDoztARkOAZ8D6Leu9EHKlFDiNENiguDpwkuLOYHOAAgpr2O+HLAnvI3US2bXkAAy67btCdd96Jy+Kkk06CUAndFV2Xaq47W20W4zTkA8BsT6SciYtUtWlBfJhmFzuQH4nyRQ4Je0IuYRtuLrzsTq0i/l0Enn2RK9rOShULtW7Rc3j33XdvvvnmQned72c/+1ntAeehGkLKLMaQjQfjdaH0J2cUF5nLc5FXb7PZwnXQ8KEsDRgfKe8MuqYluY33q54X28L4dbktC+M1gFj8ekw3rugrWaLEDnt0BLQAIJWz5H+tBRJfEeAn7rPIhrX1qEDKaiZ/2w3s19JcUeRJABI2HGWbTfqK0iCsT2jR8V8LPJPYNwCVSU/XZ+HChbpiqLZzUrAjMYXhBTkBShcE8U0ScJvSYOLVqCYNFtYDGvQ333zz4NTOPPPMyZMnd3R0uG5XlGMoGa9x50X2jvsNK6tKKDPIbBazt7ibzF2WnQHpS4sHYzyVFUkAYCGHuihXAP+bf1JJUvq4dDSb6YH89a9//cY3vpGTfdvb3qaThR/KckiXmoRdrTOh3xDooO48Ph/UhpsmyvVDi3MdIe1GjG/02LiVMN7VulsY32or0ZKvJpa/ixivgaUxR8IOPmZjDwRry2uBBGAASfUok2G5rvQ4q6XkdqxJjhKDiFhI9pzYyox+aJwAxES7kyeejF5tYPT1bgG8RmoK+7cThvQo7dlOA4g6XEYEZKjYUU0iW0wgmPvIQ+iIbW1tjXrzTiqt5FYkGxdJZCQXN9pooyFDhmCCIwlfJGBeToO1dC+IwpJtXKnXnLGdDeRz/V1fxCHqknHPT9AgskSCYziRioMDsJJkHSD2oCZ0/fXXb7nllgiP7bXXXnfddVctSbJ1poKHiDKAhWTqkQOln6N9UKRaYDCdigHl1fCocMposDLElqQPZ4AvBWKjbz4CdgvjW215Wq7ZDbUGjHfYFalhjULQGoM4pkiaDY+WC/lEjCoXua7WZ0MufwNm2A8LCaYOumFWIDmmAmz8JxGnARL0 gWTEeOrSeTeywMazBC8McxaKAJgwrKioKFIY9Kl3xTJJ43DwXpatRymxVauJV6+dmtmUUw89fTCh/ipSHQ6+uijhXybb775fffdNydV18KQLVYK4zGgwWzTYL0IcWKDz6uSS67GjIioTAr135r9XHzcWXb28y3JvlZypgMQk84///wNNthA89imm2564oknjhs3Dleb9tyI8Xhv0M/jgnDN/49ifDToWxjfaqurJV+NJQu7UyZUNOWh5ln1fGpqIBxGZ6WeCl/NdA492kCjaZUrgfRQzzVka6lGn8fBX1PzSlbjniBuNaTxG4rUDX0leHCql86uSKzMGEG06RyHpmV2vGZw9i3AY1FLXRZsYt6wKnCWkKuPsKrBXdMZZOMrQX2Ab5ln9Abw0wbvfve7hfFvfOMbH3jgAZnIaE0iF7eiSGYDXVON+gaWkKXAbOmpplG5YE6oAI7bCmKSS3u78quZSOQMsHM+LJIPjR/qium9bugFF1ywySabrL/++rLgP/OZz7S3txdpYmfGI4yNS55bbzueHrq86/85jI9I38L4Vlu9LWG8bETcDkAgUsPIUGrQCEUQu8LGJYjotXxnLt8zO1eghmiJK9q+mpXAeMxfonHaCd4kGqFTvenp6dEzC90cimWEH2CMn+scGVu4zyG1lSaoWlA+45NY6sO2NSI2YDlnKsTVn5wsxq6V5qfXN+xd3B1cGex710gyNaWWNTSFYbod2v9b3/pWlOMnTpw4YcKEapLHKSUkLCf21LI8hE5B3ehOrmIWbzoW/h+mR2uboVsWExW4XF6f4NKJkI+lDuI6aM0kQECDNRg37vTTT5cFv+GGGwrjDznkEDqmr3SOOMdm5bLd5CtbYQk7ntiF/iz+D/pqSiHYFsa32mpsGeNZ/xpB7a5B7w+zshIUDeySx81Ms4fEnzj0tXKjrZZkCgndUQYjchKQRVe3oZvb0IxQrR8iEYw8jpr2ozlBGINNiTnOa3QBOe8puvljVVc76Z9NpbdJZ6xlEbUi2bu8sh+TT/E+TUsVoOLsZy941MwhxKg2YsQIVIXf+c536vPx48drDzLl4x1Z/ivcmQty4DLnQ11GinYBMGgWkQBgm5s5iuvGwoa1HN1wCNxXiYuDgeCQOaI3uL/0lX546qmnQqHZYostzjnnHDxXrADVK22Aq4cKAH5WLZbKFdCD+n/Ujm8MwbYwvtVWV8v+eNw1epR4xFzYlTe1JPnilH6cqV6bT8/1mkuKACbSLHOoVUMCa3SeYGsCLeoMiB6fcf2J6i9AZXJIkSETjKmkgq/8UDDmtPkZQeHW3ncaJuzv6pszRDlfkNtUSuYBU3Fq9XJctnr1E5KDSnQXz0vR94IijYD2zjvv3GqrrYSC//qv/6oj4qjWV5jR1XraemyNl5pFDn5uCPHOXmANph7a5z0vidUxkWKC+/qwMRcKWGU+LNLUxMqEBDGw3OY7YE+YRX8OHTr0Na95DUVqL774YuIVdB7CDwsA9VC7xfTwgwozQJ/jj8f7RGBhQBg1jVebzjsHankguam6warkvLYwfl1uzTBeTUAYdYapFwK82VLHkP19KNVteIO9zWNur3PjmIuo1hmUwIowP8A4p9ACD3g05dU9ysFCALTjwtYt1qfe49vBQkJwHW5MdOHb4HaD3u34YtSEKZF84OvZR1QEjZcItwhoTauvXwsWEpctzQl61Ynrjtx+++2bbrqpgPADH/jAxIkT29vboQpWcwZwiQ/jqx0phBH7SQ0jC7OSCzbZueTgqIxjXW2hgnpIt5nhDfNmVloxgdiFi+Cieww7i9mA7rE3bUPZj1e96lUnnHACZHfmGTpmsioivUSKrL5hlzzeev2K5Rm1bdYEbK9Qa2F8qw14yxiPS56lOhiPhYSOl+xIYmOQJZ4NhZijpVipT2UqMqG8toQWNzbOOeHVxSTAEviDflqxMv/0pz+BsrHUR+wSeyBsydDRqVVTCW/9hINGa7s0Rm1VMwlA9Qb1zRs189H8k1K2brVe9pEQwbOp/hE7BM+s6BKvDFHGnp6eq6++Gm/GYYcdhoYPbjS2pFfMSHY0zWlWss+X2hfHnByOy4TmoC8b6OITgf5DLvzomAMZETBk+IkplnzoxAZiIGTWsoLSEU855ZTBgwcL4Pfdd1+u27SsIk9+M5IWLH5I+6KgVcR4PQa4yNQICCxnDvGabi2Mb7UBb8GOVzPG447FmicIh2cDlnyJphdNw9isUmLrtlLf+Hklqx7MzBXznGQJxkBceTZXlmXBDsZT5i6K50SXvDbGKtVmROn0gOt0QFlb0iUwLkVtS99G1YAiS8QUeQXCmAZvSvmyNu5hHLEWejrXBLfmpvn6rJQQ6NL5nnXWWSS5HnvssWirwyJEQIEsgtJOngmVpyDJmItPFIVDV3IClBdgnUlHjatkgbHIjHfecyUQKov6EiOzchV1WFhQ8KupxCnpYNry1FNPFbrrpA466CDdXFQjmfEQtqeqAE+IfoX+Js+koyv4suYkdU7EDvCkcfEH1ppvYXyrDXjLOVCNGC/0mJt4NS+lBkdP6EKBOLQX//S//xT5Xkx4+EsXAcKu9E9bytakUBuOhVJjP0iAGxSroWZgkfXOHfXEsNOemZfoFduU+kYEDsRS/x3T0qnpKxTKqXf3l9TVps3V/DivuL0/gaINcQ/5FLgfCOxEjAFELbsJEwkuilUj7f9xlJFTO/7448H4Y445pq2tDSaPfqWDkurKrgBIe5lm5doejjmYAEvwAYx3GSl7zDqTKD4UIJZtlpU02KNK4CWQqUFet+AOImJj/4nlHtrb23feeef11ltPMH/ttdcKyaZlNUz2oPfqJ1ljSOtQu7yE8SQZM6/q5kKkZQ1QrDUYT29bGN9q/d8GDdJtFyC5YDcu+X/QJ194sesvc1988aUFC3sWl/LIz0av/vePp6TuYenp7V2UWt5ouVrpifvnHsJXvanFbXpS681H1JvQwX82fb5w4cKlHFHv9dSzpb9a0UFQ2iFvtFvTY2isLjBkWZaYtBNXDhjHpA4J3QmMGONPOumkJ598ctKkSZMnTxZYAns4NMy7ZEnD/FYN+nC428FR04FYmxVZKtHzLRuQ+2bMts+e6QKnk4vF+ogR4fQt65bpuVqgDqozuuqqqyj4sc022+CLwy/Hms3JViwgzcBhbsdX051KASCQykpJ74XxpGIVA0qqcaukTGsNMag1rga1lGY5g9jsqFwJmG9h/LrcBg0iBukga52W/Asv/UWm+NwX5i/sWbiob97CnnkLFi5+3yNE7FvUq/8Wpn/6tmfB4tfengS3AvhFCxbqtbe+Gb9BZbrAe0P1otD405vFz2mEA3nw48MbJ4r429IRKSirN/q53jAheMtSZ5az8St21Tjia0mdwd4Yh3JNoMed4rBlLYnHa7Vw5JFHgvHnnHMOXgswlUwoIevsXIoDUJmR5eHZoQPkTu01/R3vNQGWWi71VUtq7qQCx0BykUMlVqGxDITdQVCwqpkrhftfn7By0ApEf95+++1veMMb1l9//e233/7BBx/UJ/qWY7ETwtgzQ8kC/VCHhhxgjCcTSriOG01fIf1JmlUpXjRQjTRrSsgsD8Y3VbAxtbmF8a22Qm3QII0SHJlOgeGxItt1bkJ+4XrPor4Fi/rm9y6aLzxf1LewZ9F8WfdCMgFtb093b8+8RT3dQs1kTwseFy3+V8b4iJqLN0ut8Sv+tJnel41jb8YPtcHC1PTY6nM9wsbXxlnFx4pTh16BdtYAPih/rtxQ8EGbYjxcQlwfpWZOuSCtra2NfFMIkpqEDzvsMDD+wgsv1M8XO9NSww9mC75IGAwi/ja36PK3YgJc0alTp5ohg53tSYD5p9JMpNfvq/Wlt9ltyfqv5lytaqrMrtexY8duu+22MuJf/epX33TTTVRHxHyvZfVSJgTPhDNTRTAs9RLGUyGLiUhPL2XFPDWtDewadb4zlwlbHoxvRGhadz2prIXxrbY8bdAgPXqVJK8FzFNI4x/1Ql5+Cb7NwgR683t6FvT0/X3BItnOC/oWQ/5Cvfb1zUv//t7XN1+vvT2vLFigB2le9zzwMjbDtnHUON24cTTuKSxuPOZXelUnbX/r+S3tp6ehxQmE4+LTxaDvS/OGXrtTgtXKXVHPVNphU6JOUV8wq9SqSdALLzh1L9Q9zQAHHXQQGP/zn/9cmKHPZRpi4uNNN1WJSLP24KwuU4Cis99ZDfheiP7ifsGAZn4oAtk9kjrteneis91BZtfESQPbmkwxn8t//Md/aIJClUhfaV7C/oY+SaR2dq5PCA+nEePxx2PHM93xE5xUawPGcyLquR6qVSzq1ML4VlvRNmiQzCANLAKuTjD5h6LBK3974cV/YHwyy/sW9PTW/vjnGX+ozqr+98xK57O1zpm1zum1zmmL/9VmFMV0jaq//OXvC3sEyAsWlpsxHogFbjHEbZHjLaF3xngXV2CU8KqmofPoo4+OHj1aA31BavFAcUqJk4wnDf9EUDR8+PAHH3xQUKTdIpGwclfUCwDtpCnAVEIFcz6JqEmSKBQmp/zIrN9jjz2olnHVVVdNnDhRn7S3t1eSvjGeikoWqSQta2YuJBhZPUVISXNguxbKr5NqRIxW+xfoEsfFmWP/jMUsinr+fRHq9UZpN3aoN9pyyJAhaErusMMOOhFS2PAXkU3m1Njob4HuCoqXMF4rGepGkdtqGmnpxAewTU9lQhaPo/TULQ8kx2Zoj6LELYxvteVsCeM1LDRQwHgyoVKG4yt//fvfXnhp7osvvdiz2NW+GOO7F/Y+8+zskRPaRk357ai2341sf2p4+1PD2p8a2jF1WEfH8I6OEW1Tplcrf1+0qFs4mvC0L4QzQXec6FjMIDrOlr4Up1yUg6Bu9qvggPe3+u3PfvYzjftbbrnlq1/9avwJO9fGOhe9ens94/EBp0uazS666CKg6Be/+IUuhfu8Em3pGB9xvTFDwAx1q5rpE+GZ3r/97W+nWvfQoUOFiAAwQlz6Ica6FYwBlVp97qzfOwmhCGAfRXLIOaICAM4cFwTAuJ+Win808u8rWWeTIofVLPhjR5Cu8Nve9rYNN9xQ53Leeef97//+L3AOnbOa05rx0hTZKURvUTeIGD8vyaRCs4EIhLmPy8sBgTWK38vT8DWxXOxeDjGCFsa32mpsCeP1AAoq8L4Tdl2M8d1//+vfX5z717+89NcXZAALYHt6+xb09k2d/tzo9qdHdjwzYur0YVOn/ePfU08Pe+p3w6f+dkRbx9Oz53T39XX3LprfsxiS77zzTg1ZvWrnjHU99TfeeOOf//zn6667Ths8+eSTevpGjhwpoB0xYoTscj2DTzzxxOmnny4Inzx5skD3/PPPv/baa++66y7hsYDhwgsv1LcCucsuu+yEE0448sgjZd0KLc4+++yvfe1rEyZM0B4uv/zyhx9+WKcojNHG6gDrBB3661//+s0334z3V+cu8137P+aYY/S5jqjNdBScLSsxGqI/fpmOAgN8zENFBQiJGFQYBHs77rijcPE973mPug23BGqq3oAiILEAWPBP/BLMBnftHYcpSfIodNQilOrGow/5B96iBYTJgGOZEfOeoGrG7C2fjt/gwxHw6wpjxJPxZFl6vO+sGablEr90r5ILgk9Phbeck22ZaIJIXD3HJbh0UdtiABvpY5asWfW6Ti2Mb7Xlb4MGaYjIuiLsShjPGP/SvJfm/q3rxZe6ent6kr+jr2eRMP73T7Q/M7xj+vCpM4Z26N/MxztmPC68f2rayKeekWU/bU5lfvLWL+hZbAoff/zxgu1///d/lwX2m9/8ZsyYMVqhf/aznxXSHHLIIQJsLd41Rj/xiU888sgjv/zlL0899VT96jvf+Y5AXda5oPqGG27QTjT0jz76aHXyG9/4hmaDxx57TL/VNrfffvuwYcMEeCeddJIQWoCNOfiOd7zju9/9rkbYZz7zmXvvvVfYr58MHz785JNPvu+++wRR6pVw64EHHjjllFN++tOfapZ46KGH9EOdJ9lSXgCsUFtFjI9SCBjBetPW1rb55psLHT/ykY/oT/xpCNVTqNqFUqanWkuCTOx45MTsfbeDvJJrcNt8B02L5O2pZYV7bYmHm/1TS0uPB/owIDeGOJa91Yp8CvCIZqSa6VpuUX172223HTVqlPaM4JwzdOm8S0RG0hE6CCw4jfH/YH8lmOekyBZAc66y3Jr6a7pFjF+JmGsL41ttVdqgQRol6Gnh+pW1/Q8jqfuVl7pfelFL4Rf/3NuzsK9H0LUY4ztm/OGJBPDDps4a1jFr6NRZj0+dNfSpmcN+O+OJ301/ouO3M6rFwr6+HsF8imIed9xxQ4cO1avQSCgr41uQ8OlPf1rH+vjHPy50ly2uzQ477DANTcBYfwrVZI7L0JfBfcUVV1x99dXCzhNPPFEj5qMf/agQ4pJLLtFXN910k2BbE8L999+vV30uvNdMInvxtttuE2bLlBfGC26vueaa8847T8f64Q9/OHr06DPOOENfabbRxPLNb35Tk4Psex3uV7/6lQbB4rNPwsUrcUVXEeOLTE40BVJvNDGSD6rFhjpG7pVh25msz+ZaszAiMWT/kAq1chQ491BfXAGgVASgSC4XLGnNIVwKewz0tBRZBAEijfXmQWL3BM+JWUN33HHH1ltvDRteV177gSj/TC7pZec9gWHSfE3/hJGv3cIV1SOKNeyqW0yPZHpom1mpsFSR9TXWCHQvdyNnF/9SC+NbrZ9b4k4i3sLQqcP4BS++9PcX5r7wv709C4Txwu2Fi/rapv9+WNu0x9qnP9b+7ONtsx5te1b/HmuXQT/tiaemj2r/3cxKTdjYmzH+K1/5iizm/fffX6j87W9/Ww+7hvuHPvQhIfGHP/xhPXRXXnmlOvC+971PkCzM3muvvQTYggHBrfD4+uuv/9a3viVTW2AsdFffLrzwQqG+LPuxY8fK7td+DjzwQNn65557rixFfaUNNIdobN11112aKDQzyO6X9a89yEz8yU9+cumll5522mkjRowQusiOP/3009WHiy+++Mwzzzz77LOJGAwIxhsSSJJCx0FYpakPIoouoA5B7Sdw2hmx5swIdKFeYssSzhTAdKeMIaTFCKxa3x1EJFxapOClPofEAiwJUAEnrZ0cInW9J6tJspbQnmFukqhK3EDzOadw1FFH6cK6npcLkzBX0JM5oSSJ48Gk29qOt7ywOqnXzlQgG30HMB5Z+qaiPf3cyIhoYXyrDUhLGI92CtQayJKLw67dr7y88KW/znuhq+t/ehcnOfUs6l0k0Guf+fvhHdMenzpj6NTnhnX8fljH87Lmh099dsTUmU9MnT5qyu9mzF5sx2s26Em+GkGswFiAKsP61ltv1fgT2O+2227f//73BcxCxKuuukqTwE477aQ3woO7775byN3e3i6b+/LLL9dA/9SnPnXIIYf86Ec/GjJkiAaKBrS+evzxx/VbjWAh+vnnn3/nnXdqiGt7WfyCCiG3vsVC1bjXngWT+Nfvu+8+/SlTWAuASZMmCQzGjx+vo2gy0Sxxzz33sKDWUGiaOLvMtop2PGBG0BTyoz7UAgOA1ASlQwhotRnmuAXSYrVUPB64a0A7/G8a4sJ4bYOUAzxyrExQ34RK7Vm/1faQmhAv11NBfFetliu4wGAxOadI3h4T/adMmaIDjRw5cvPNN6cGt26E+s90NCtVuSIRllxYwgXmaULJhNLDXKTfumwZkw/eRRx0+lbPsOYBk3/WBu4kGI/+AmHXFsa3Wr+1QYM0SgAVM/UyS/7l7r/r5W8vvNC1OFrZ0zNPBm5fX9vMmaOmPjXm6WeGTX166NQZwzpmDJs6Y2THjFEd08c+NXPUpN/NmvPf83v75vf0zV+w2A4W3GrJb4IN631ZzBqCgiK916DX59pMPWnsoL6CJ6j3AiENaDNegGFvFpkwkWHvz4ErGJT6UyY+0PjYY4/p8S/9duUA3uT4vkTjWQk8wA6GNggHRviq+RB59dtvvx21TW2G1wuwxNeBt8Saj4JG/DOQc9BjA4m1Z9R1YL+UhCNxsevKoPMIj0U/18Wne3iBwOBobZuSDvyjUfzkk0/uu+++6v+rX/3q8847Lyrou7fkYfEeoqX11Vh1OIcLjI8S8uqezquWy4SA8UwLA2vBewJHhY6l1KpT5FsY32or1FIOFGV6rGNoBqWspHkvv/LiCy8KS4WN8/sWzVtsx08b1T5l7G+nPjH1KcH88I5nRnQ8M6rj6Sc7nhnT/szoSU/Nmv3f3QsXM3C6E8ZDV4QRCS2+L8Mz9PSYulpqwLMp7+Au5nhjDuvyPLlw39W6kyvGmVBuK53e6j6sCsYT+8TVTZULFDaPOeYYYeRWW201btw4/am1kCYB4SJec2YqvB8AJMCPc0O2r+ZYxBrI8y8SUxLNNk3s1ay0jJPE5Q2NrIg/aktEbCjgEa1t6EBkx5Koqq84Cx3rgAMOYBFy/PHH68pwgkiUMWPYAY/fPVfimmU5S1hA8P6bYjxyk26kQTXGGfq5tTC+1daGlriTJJ8LCaIdv/iRXEySf+WvL73UkzG+u2/RzKIy9bln25+bOWXWrEmznpv87PNTZj7f9uxzHTOf/92sP/xu5vO1P/5ZAL+wV4DX5yRUAzM5Ry7TZ52ZpjlHzojVT0ApvRr4S3i8TEY7pHynRDnXyZ+vnAO+dIhVxHgwEme5UE0Tr8DsIx/5CNFKoS+0Ft0v7HiIh456YpEjLulSTUJcLjV5/ihj/k9qwCeJmKRlzcllASxS4GCq9qk1FWK/jcz7InlpimRM4//Rh2edddZ66603ePDgffbZB45QDPrGFFjLnkWdNhONwHj1wZaIMZ7aw5QE1M7heDLpWUlzQFoL41ttbWhJd5IyOnq1ag2cY4Hw/HnzXv7rX3uEzb09f1+4GIf/unDBy709f1vU+3JfH/9eSUIG8xb1zetdNG9BT/eChYsWW8wLFyV0t8GtR8xpUPZYG1ybWvOArpNfje699bIztOV8cpkxjPR9IWGqMT1qRS/nqvtqIDxWUqkMoaAgSpC59957C+N33XVXIo76kELh+ONdTBw3Cy55UhGm5WLrkExIVMUFBNLrDdoHeIeKnIBrgjsecYg0ZELZ5kbtDFvZnm8EebSNcHrs2LGal1APJheC6AH0HuLKKGwyaYDTUSjBHE8mHPNqSna8/mRdwTxg2coWxrcwvtUGDRLC6c5TaqIR47sTH/qf2mOLetO/RX9bsGDeokXzkmUv+35B+jc/8eh7env6FmdMLQbORTmHFRTvy6a5cRqHiT4n7ajUO7aJG/clSLZ9v6Kn62mBVcGi+rzbtQHjiyD7SN0lwepOO+0kjP/whz+srlKiGoKkGeRgPC5t6/ECM64zTlEQIp2EY2UT11JVdCr+OfnffEOc7oAu8WC0ElzQxVqZ5rG4zK0WG4cffjgprSRCEENASYaOsfDAb0PgFrPelQaJOnuS0REb7Xh8NRD9UfF3OLnlq2lhfKsNGkSGvx5AbERSXQXwi5kYr7wyLwnXgPE9i9kyi7F8oTByUW/CdX24+N+i9K93US8gnkQnexz17E6KkFGEDI84z3sUh1mUBQv6EpZbvMBqNvams422V+dtmoPc/pOf9GUVedz/3jNbWp24NytX4lCyog5jojSlLAoaON5hnBbMq3HVDSeARhBtCgyVXKwcfsuDDz4Is/yoo46iup12gr1O3pCJk6Yfgvq1hrodMF6w8kF6Fy6n2keUoCmy+o0Fz9hbNQjSU39KyE03MNMpvivDnUrc22+/fVtbm34IwZ3NiMuiPUYwlYkC1I+1cmPxQO2h0R9PGhT1g0nXJubqWiP9h+oNt5I3VJlVxwDaFsa3Wn+2QYOASQRsXbkJroJ1hnt6kzB8KgnSm/KbYMAvFpFf7HanZkj5n0agdo5MBw+XizHxxl528krtqvfGfGutMj7UnAMGL5580iJE+MoygBGPAKU676gqwjUcUecoJPBuuxPHmgnH04WjvM4/B+xpnAIVmrRbzwl99f4ifVIJNcFBylLVkKbA4JJMaNfcdtttm222mcDyrLPOomgXdrxQtpZr6wFpeOVxqggyGw+EoQzGEz0FO+3fIHGJ6ShqE1jJrKjnexI9gJdlVNb7sWPH7rbbburz61//+osuukj3RbNBe3u7DgFgA8C1UP3PuD69vjGVYdDrT5np/6T3hrqU6PZQUkXbQNYnvLAm8HvprRqa/mQxpiHGpNTC+Fbrz5YwHoUWIZYGChEsfDXG+CVTX5qjO/8c19QodMQUXg3W+eLZI1nSdpAD2MAzC4zeXAgEDOZDc2yYoIB21gMxRuv5hP7rHC+//PLbb7/9iiuuGDZsGIsKfQhIe/CxQnABTpvyzANMFMLIm2+++Y477tCudLnoJKfma6WN8Vq43hOhxJjd02jN2/TEFy78O//880ly1RFRQtb04lJ7tVyE1S580v7xxjTunwgrqVXs34LAXg84BRaUAuOroditd4unXMhK3SXM9HHjxu2zzz7rrbfeBhts8JOf/ES3Rj/XEZnrmBDQMdahWTNUcumrRrz0TEXcQHb80jGetSgzz5IEnNd0a4rxsp4YTS2Mb7X+bIMGIc9CjroeSYx49FqtCrI0yso/6/719daDvAxh2d0amgj/4gAWGulPwaEefC3hdUQ9dxqOegMwwyQhQR1IozYqJrg+0cDV06rNZIay6piXihPinRAG6FuIh3hA0V+X7ahD/9u//Zsw/uyzz/5//+//AdVTp07VzrUZIvp6/AUSCJkD8Ejd6ix0FAJ+MhPvv//+W2655cEHHzzkkEPUczA+upj6kj8e2S1XVMX3DPnEANAUHkAmXCWnnnoq3MNRo0ah6w9kEk9FNQC0FpC4ttScXMGv1MgrVTdsRjOZcCw8OVZ/R5UAd001V3QqMu4C8PpKyEoAQTdU78855xz1Vhi/55576prrquIaKvK0hjMeViazjZc3vImNgzIPwJ1cOsYTTWLjtUHIoEjXXGfKg93P6N7C+FZLtf5wrxLk06gCxhbD/DIxPkC6nhu7cfDkgHlf+cpXqNa5yy67XHbZZd///vfvu+8+AdKJJ54o9Hr44YeffPLJgw466Je//CWOly996UuPPvroddddB0Pw7rvv/vWvfy1U1lgReMjEP/LII/XzY4899hvf+IZM21/84hc6ytixY/XJpz/96R/96EcjRoz44Ac/iBqCzkt7Vh+0sfZw8cUXH3HEEZdeeqnwYPTo0aekNnLkSEHRu971rjPOOEO70rGOPvrok08+mWji8ccf/7WvfU1d0kGvvvpqdf573/uezkj9PPfcc4cPH47LqDuXMLFjXh9S15u65AIbwJ78y2qurlHCg2pW8yqS/Sc81nkJMjfddFMhaF/KNxBUkGSE/W2xF21gbwnA37h/XODawDNJzLKNYI9rHCVhKPiAfREcNc5GVdPGRDplxG+88cbqsyZSqhNMnDiRlNb4c5Kk4P9QaZCs2Vn1zeWx8PTjjVkSxuuVcvBg/EAJGZSuDxhPSfH+N+JbGL+Ot0GDZOaCPZT+0fP4DwHKFxeXB3k5hV2XifEAPKFXYzwuaoRlBJwCYEHsD3/4w3vvvVfY/OMf//jxxx8fOnToHXfc8bOf/awvoZceQ0Ga4Pn6668nYeemm24SzAuhhRDCeI1mYfyECRM+//nPa8SMGzdOs4F+K8tbYH/aaad961vfuvXWW6+99lp9eM899+jQBx98sP7UToQT3/3udzXJ6OiC3ksuueTyyy9/6KGHBPY6yllnnaVp54EHHlA/NQgmT578yCOPnHfeeTqcthk2bJiuj/Zz5513fuc73xHw/OQnP7nxxhufeOKJvuTYwd/Vl13ygD2lVoB/tBG1E5w2TvAptYjxYMNHP/pR4eWGG274qU99Sp3UaQKZqEDqKhWJFGnaDARx6yAY5plYmDfwnPB5rFZSZBtd37pWB2Y9xElivejMxJ0jo6DPv/zlL2+wwQYy4rVkQoYSlz8SNzhnimzQ27Kg6hOQ/0x9i0568lybYrw+x47XZQFWydUaEF9NCeM11VBwnHJ/LYxvtf5sSa8GXBGIYrkSeUWoG3fH0vYQfDX/wPv8ARh/wgknCJkEljLHL7jgAtl2eiN0l7UtgD/ppJOE8VdddRU70AgQSDz22GP6iZBMCCqwv//++/Wnxu4PfvAD9UrgIQD+whe+oJ5rDaDFgMa6gEpnccstt2ib3/zmN/qV9iZcF/Yfc8wx2l570OE0S+hDmeDt7e2aagRasvK//vWvC++FT5ocZMp/9rOf1Ylr 3Xjyiuv1MJAvdVZCIR+/vOfq7eaKIRnmoh0IsL7vkDU+cdlyDCPoAqBW82cJDdZMgCPSimoaW9GkTBe26g/uD7UcNrozZve9KbPfe5zWlfoRMA87R/niTWEAWaSVqHN1JK0ATjtMLA94vxJf3Q9WSQQiIVFg8eJ/CyXBEQnRwfS86P1Ej088MADccqxDSJnmnyo5eTMqWoqbAjVnnXCHxoaEwUrBO1Nlvrc1Bws0iOq96QNoJhJ2q565ZXDwDadsp40nYK6vXJFPloY32or3QLGo1ZFwiuwQeS1VDtp+RsYLzv4qKOOEgIJQWX7DhkyZOTIkbK6BLRf/OIXNe4F0u94xztkngKHssVlWGszwb+MddnQet1jjz1k359++ukaH0L3n/70pwI5/fz222/XZtqVwF5QLfifNGmS8Pjd7363jqvpQgeSCa4tBcwCg7a2Nr3fbbfd/vM//1Mmst4fd9xxY8aMEdILkjUQb7jhBgGn9qN96mqoS1pCaFeaK3Rl1EnhveYrzYHq9nve857DDjtMcNUXxHD6AsZ7eEHsofaqJqsihSfVgej9iJlHYIO+1UHVPS0wttlmm9e97nWD6turXvWqnXbaaf/997/00kt1JXUHF2c1dHfr9hVZ+gayDRMLeI+VH23ceGibntjN5EbFWchpuFj54L26qnvx2te+VuuNLbfc8tFHH8WhBK2Sc4T5o+3NCGJXaM97wikZwUVegbC0IKpq60ON+mVgfJGVc0iYWkv048F4dUmPTQvjW62fW8B4qv8IDAQVFq7RAGqanbQ8DYyXZYxCvMxiQakedg0+/YkSi9BIqHnTTTdBqtHjL0gTCiLBikrZfffdJ1wfP368xopGtmaMCRMmaD2gDjNiXkpqC0wR2v5Xv/qVdqg/WR3rE4Frd1qNoIjGofGfYFqZsMkr0rWmT2po6o3Q6KKLLiLSSblw2OrdiW/jXK2+gPHzQg3aWLqNukUYtdEdHvkqRQJpwr3qjyD85ptvPvnkkz/5yU/uueee2267LfU2It7/y7/8iyY6zaW6pLLvoXbqBIW1hE4pu4fLxZJdtnRZQqD3guXtorDewLWZ+JNVAdo4st3piaZWnTvRXxxHLBvwn0DVRBBBP8cfPycXiK01NMeGtY1+rpOKGK8LixEPxquxCsWg97Ud2IavRhdcfWvpTrZaP7eA8VhvGo5675pQCNcsUwqmaetOfmj4mAJF7U2DT9YMBAODOkYY5Yx1OJTsobzj1dYbQYXwQPCjzWQaoi0IMdOSOLAXuxPfnT6D5UC4i31DrnRRb+dAmW5pUqdhm72pbyjfCqsYLs7qihv3NWC87TbvXzushTwmGp4Kw7zgCn88VrK+kglLeW5djcmTJ99///1aURx00EFveMMb7MZR22CDDTbbbLMddtjhve99ryaEH/3oR3CHdDW4/oRUcdizcsOZwyQDoRww1jbmexqxqql6FKsRPEK6Jtdeey0Ez7e85S06nD5BTdKS9qYAkd4K04YQkLphLJzd0Kw0T41B7RlCACvM7lQmhAcVFxNpr9UktLYk8lI/N4ISOn2tKlv68a3Wzy1gfJGGL6abbSNM+ZUT68LYBUFBQXKF7NaI2jV9eU6wuI2/smyYk1P9efzQGgd9WeIm6tLwdDtfifnB5HjvlsoT3mFflsjkk76sluM8XfoWNRH66v3xcaiR6qU94JuXqQ1NHA2CWEQJyNe9wK+CFxxqJF4X3SlBXS1Vx0ZE//DDD997770htJTaa17zmg9+8IPnnHPOQw89JIzUTdE91c+LJG2OPwcJS+grkFLQnInLjCI4bbAICP1OmjRJ0K55RkuLa665RjMY/bSAAuVa46QBulMHHF4NpxnTdh1tpYfsBwEfNdZaLPYcjsBbpaWL3uMjahrY7uembpDIqymaEE3/QnwL49fpVu+PL5KfWGaTAb6E8Twdxj9MZ8vR2KqOkjK2dK0vgMUM2vlX/hbQdWKUQZr38XB9CUdhXHrPbMAU4R+SHmXFAcCe5iTaRVnkDLS2uW/lBWvR+CiLstBxSezAn0Dxh1pjZRVdcOxpc1SIkuLeBgtJBtV7jPgiRcSpk4FLG8DDXy64JX4iRLzjjjtOOOGE3XffffPNN99kk02wrd30yf7773/cccfdeOON2pvgWT1Bjxcr2fmm6Alj1gtWIavgouE9PBlWfZ/+9KdZSBx99NHgq7k3CAK7Kjcwj7P8d6FZrWBaQ7MoPr3S4cwJIOZKKSg1VM1I8OBJJl474O4a7Hj1H19Ny45vtf5s9f74WqqwTHXmGHY1ei0MDRe4Fdnxk0RlGHgmFo0x0JJyalO4L8u6WyQM2I6YHUG6L9nWTj/lV32JesnG1sCxJoJxnd/SGYA86ttEt7phfmHQyaHzfBW/XRSE07ws0Sf4WHQxsblBLHLy4Z1byBdXN66JObnsnkCU905oogBgSbnAFUG0HzMHZR/ffffdl1566RlnnHHooYdut912gwcPjv6cN7zhDbL7P/axj5166qlDhgx5+OGH9XNhp0zkWhLphRZvfcko5mhXut4ceeSR66+/vvZ5xBFH1FJyBSQZToHOc8rMYIA9agucbPTMcL6xRWcLAg2WnowYr0/I99VzS0IfSyCWIgOF7jQTSHVtW/74VuvnVu+PxweMZNQLuRHR7Mvme7SnnerflyDNqAlw2izGsLZ1bl+HXeD+uV0ffZli7r2B3HjKDaj6c1HQmPd8wq5IwupL8N8bJMe8gR0+jWsJL6g9F/VksXkObSV7n35vveKxfoVfRaiGmjugTqZpR0eHQAjIBAkIGaKfiFJukcz3WpKGBO3AWmKQeHVMgEF9QEeBAgRZUnCoE9EMM2HChHvuuUcm/jbbbLN+aiV/zlZbbfX+97//29/+9rBhw4hram7X0dGXJG0KsEc6WE2bPfDAA3iH3vSmN40cOVK/wg9j5kwtS/QgLoC9TilCqpJUc7kRLkItVxxxYxtmDNxHJYzHH++Yq3BUM1WRMJ4MgYEB9tAIAOvE/+d//qeF8a3Wz63eH8/zyCLdYVcNJixyu02AZyDTtnJfQjWg0e5wF0blfU8uwGRUtiYZGInXRaPzhhtuGDdu3OJaVHkPPlb0pYC1mOyLsqglbm9Y6cOHDydTSbuin+6/1wYcnTxzjH5PLJw4xiL8Il+EniyL6VMraRnojQOWZngD6qhwwS0pMi0+mq227IF8y57ASi9SeBI7G/wgioJGAFKSyFBCkRe6kAMqG1cwc99998m433fffbfYYgvBc7TvN9poo0022UTzwCmnnHLzzTdPnjxZeIn/HsFeJhk6r8ty7LHH8vP9999f4FokshBGvHkyUYyA6Km6xBRnbWQXGHy6oeHhYVrQr2CnNGI8vhrmCmpdMYUOBKaXG2OKFAIGTgvjW63fWr2vppprRmsgklCIxwYDF1DXqNK4xxwhDwUGIiU/MfoFhxp2eiNEkRFpfS8Ez7Qxjxs6sVC69VuNXVwNn/jEJ0477bR3vvOd11xzjY5I/qIOiocbtFZ/6BuYqg//mJq6qn0iPDt27NhDDz30vPPO+/jHPy4rU6err7R/BBogXarpuNqebmsUMkGpS4hIaQMdS+9x93LKf0uNRYhOUK9EAT0JMOEwxPFkV3O9Cr0K6gzM9iSUuJNOSjKjEColv0LAEal1Ypb/v70zDdGjysJwgwr+cAERdw0K7iCKGjWgJu6KGhfccImOuK9xiaIiGsV9w6g/NKBR3MAlolERf6jgRmKGAQUZBuyuHoiCA/4YmJ7JmJ5n6pl6udbX/aWNJp0hdX58VFdX3bq13Pece+57zlEVaHbr5JGRIn9GVPaiNMijY+e77747f/782bNnn3LKKUD+FltsscEGG4SiA3hPmTJl5syZvItHHnnk9ddfX7Jkid0zBOmJJ57YZJNNOGz33XdHl/KIvHqYlTHKh4vKHxr6uuGzpGoYqwFTrVwGhlCpW7z3Xl+N+fOcD/gQhpvUnGuJHW82IbqnmdNhfCdrTGqMl/Rc1TEp0hscqS2M16hduHDhiSeeyIC74YYbGEP33XffGWec8dhjj5188sn898orr2RUnXDCCU8//TQ7wenXXnsNkKBZIPAPteyxxx4fffTRddddB/Ty4bPBpzd37tzp06dfffXVtMx+2pwzZw5NPfnkkyDQrFmz3njjDWAA1JkxYwbD+vHHHz/22GPPPPPMxYsX0zIH0wHMU06hEfZgWd54440cfMUVV9x2222M+zvvvPOoo47ivww4bgdI4L+cwi9oB0bSt+OOO46ecKcYu6eeeuqFF15Irz788MOTTjqJLtHCF198sc0224BG5513Hl2iKa7yySefnHPOORzMA/G5ivFlDGvVaNGqIb7rSWiBUIvSXUYq8QwtAGh4qDm3XK/l9Unq1AldNTQYlF4S1Gg086tB7JqofEzz6vAn0yceAo/O1O8B+/XXXx/433TTTffaa69LLrnkrbfe4r14DG/EKrNychJQW6qv+G3Uk+m/669ZiHDa03LJm8rG9V01FRjvSpG2gxhvCUTNAV4lv1mjWN0QvlJxfiXGL68Tp3YY38kak4EBBkcMqcyXNQ3jjy/teMb3wQcfzAAC1TjmlltuAWsfeOABfmnv8ssvp7UDDzwQDD7ttNNuvfVWzgUVGKygI0j56quv7rTTTjRyxBFH8NWjYa655hpAdJdddvn00091ktDUWWed9cEHH9DgBRdcwFX0nNxzzz1bb701KoLTd91110WLFtEaWAseT5s2jZGEYY01eemll9JnGrzjjjsOPfRQ2scGBY932GGHzz77zGkADQI2e++9N6hGN9BX999//9SpU4GQbbfd9tlnn73qqqs+/vjju+++e6uttrrpppvoDyjI7YOOm222GRqDu3vhhRcYwVzOvJlsMHMYbdhHy8eqAzVYF7UDz5YuXZoopD7C8fqz2dD81dujRW5ar6RudHrATnHUaxmmpJWse0c0VZnLmjQRsTMuhLN4XLfffjvvceONNy6dOcpGG20EwK+33nr868EHH+TDAFOlACVkaaipiVI1lC3tiL/WJV1dfDXMShvdj7DkS3prZbEQE3dasAzrIxgvM0B0578J+wrzfnJF75zEz45X08kaloEBxocWXpjZDjhjkYLxemn4Ol5++eVDDjmEwy666CJOBAmOP/74e++9l1/aAxo5kQMeeughDOt58+aN1mnJMPXYeOaZZ4B5zEGm9mA8p7MTaARRNt98c44HucHjyy677OabbwZgGBlY3uDrnnvuiaI4/PDDgW2uCyRjTINPwDwNgtP8yexit912Q11wJCMeVcAM4Zhjjvn8889RGvST62L3a5dzI0DgQQcd9N577zEEOXL27NkczM1uueWWTz311Pnnnw8Mo0N23HFHZgJojHPPPZf5CRb/hhtuiDo6/fTTsWUBS24Z7KEpGgdaRvtivB4bR/wErUwrHInfcr5154vWwp6AamipNn2upf9b4AzXsmoyC6CyDEWNVU2vOMDMC5z+5ZdfMnthenPAAQegnHmGlu/DsueXeRrTAC6UGtwx4iPeRWg23ojMeJVPKQH4FKjys5Tu5ffZwngzUYvxrrm6/mo07aSTaqoO4zuZVKnteCt0GkKilanZ9L8Mwz/9VPIWX3nlFe14oBQje8aMGZizbIOyF198MTAMxhx99NEg33777bf//vtjjoORQOaLL7749ttvg5RsY+9ut912wCSAPWvWLL4+wBuMvPbaaxnBqAJQGXMZEH3ppZeYGwDzjz76KMczjjHi586dO3/+fCYSqIV33nkHmGHP2WefjWYA3rg0o3zfffddsGABRjyGPgj93HPP3XXXXWgbsFwk5hc1Qs/REtwUCERnaJO74Cr0lm5z3e233x6NxGHoIq7CbASFg06YOXPmww8/zAF0EiDkZufMmcOzGu2L8VVtyOp1KUk1fURXT3zq+psljejzkaTOftcvk7vYxvWKSFVXCVjlTyePjEgbTA7hkkVDCy5WsGGWOJ4VT3WfffY58sgj+ZNnpfYAtlVBLWJMrHlXkQVvO6/8pRBdNzm35E4acmXZ7pYdryVieVrL/Ynx9n/SpcP4TiZRBgYYKPkYHY6mn2XULlu2TN9nAotGa4wHuS2drFoYrXOuY+dVNQzQwrRp07CbsXqBSQvEWkiQphjHZpKZOnXq+++/z7ePiS/FhQH991o8wLpU/DlYV6GgD/zKlqEpLqpG8lz2c3X0FRtoHo5cuHAhQIJ5J81Dsg2Xc2WUs+yndryJCTiX7sndt1rJ888/j1kv/VquEf/ljixbQuO2TN8spV1yP/tgvGuTvc74PiChN1pTWDwWs11hreq1FPMFaL6HZCLB3XZMbiwku3wroLpfG1q2j9CrLmKn0bH/LfHbhOoaiMRjKZdL9avo6a8aNmjYNVWTEd8Mw6FMhkSkpGa3poe47oKr8QC9GG/ck8QeszbwbTgBWEv88R3GdzJZUtcIicHkWEx+Wgl3clfCTGTwYY5Lm5FySDNYuiZzxIamqenTp8+bN4+dIMRoU/5OwomxSKDFokWLaFz+3fIi24wpGqUlmgohBMlQHeUqugzsKYmapeXrr7+eG9l5552x4z13pMiS4CmcDgwcdthhS5cutU2PWd4UeZUI+eabb06ZMgVQkS8pqKyoCwwmQsAwVo3dVgxU73CXL64tOzxWLb6WxOORFAa8nThG4pWvavgMxpcJvcw8Y/pIXy6oCd6YJcurGBdhygD9OZnRWcfK1VleetIH+HY4Rj+PPn5LeBvMmjRjQ031QimEMjqD3IJ3nPFGxLoulCwPYVYivRhvZjv5Ueo3vliQ3sa/m4x6ri3pML6TSZSaV+Pi3FBRzM20tIxafTXJTZAAH+OG3CMo6g0FBvjzxx9/NAXkz02p60RFJUfAaBNsysFJKJBYJKOfxN1/NQW7xWYlIbOJzErAFDDPL51JpVWPX95koUngrDmiymjXVgwXD4cH8s9Gsj/3Ep591E4e0XgYn2wwE3EVDzXFu+M50V43glPMSyrdVM/TA6MdbICpmeCHm+IZFjnU+SP8V03tb1MPRHVIYORfvlPnUQK8OebLYiGa417UZfsoMecGeuKD3FlhlTKp6+bPhcSmN+rXCQM94RWD6zJkpbLylYLxIjofrX1r5c2cRPmuLpXutHPVMD5JS3tTE/tGHGgdxnfSkoY76egvQ+v14zKeGD3JttWSMiA1e7L98zgSnC7t+xW/zEtTbpQSAI65nG6MFvWy82epi8oeZk/vJUrJDfY/rLeHbvSi+CpgfNW4OFxBtCCHka9SWYab6t7Jxa6PxUUV3eRmT9C0zUKm+007rM3tyqh+IbWKZr05ApyxyPBmDmY+sxJEh5pkxaajsTPxHUmE1Pf/TV2NMN4qpzdOHhIbkJwOKVJil8ByE48atibGY1yw3xPZcAV67cF40xmwscr8+DI39T9+KSXSdxjfSUsajE8t5gw7E5IY2mMugBVjSUzk8Q4opYXxKz2+JaNNuq+WHuhzufJcpdWZ/jJm//sfnw0ey5iuGNcdJ4jxVQ2c8hw1xOXDCH6CfZJQ6E3nVXKkrJV47l2dLfdwmE45PST6bWhKTo5el6+++soYWRc1wXidVGCqrqHeZAFDTZ1a0w5ro4dTWTX6yqVikdsoLcWEm+4s6ZNJ2Ga5Pyu5B+NNk4o9omYw5c5aiPH8/haMl9majYhI32F8J2NKzasRJ6ReJKc4g4khPtwUoRzz7BYWrvRqEzxsIu143T7/akHvaupJb7PZZjD1jvVfa8dr/ibJsEGiOub1betUsaidcVXff/8979HEkZmbCfwmBTBlu1c3hFTgTzGmZcuWsfF1XZ2PI/WNCPACKpcTgKuG9pO7S+yVFNHQcl35lusv9zMzjaSY1O/unqzjlnxe11y5QeaW9EqMH6nLDhivpx3Pv2Thrz0Yj6iQVzmXgavLfWRkfFO+w/h1WQYGMIC+Lop0xpvryhxfJUMniWLiL0+2mSRs0TlaTh77fGu/quJZOUX11/QHJX6vqGcUaTyu+tSTCmOnj1/z9xKvyEZvrblfi/Hq3m+aYtZySwR1+Y9aqyahkBz/ww8/aEOXnpCqJth83RT9E3RT0Sm8Hd32xmU6K7DECyKggiVYyfYnHp70Vo2kZ9090SEuFKhGbN/LsVGmm3RNIKqpnFiGO2nKtBLjLX8ixkt/4hhnAmvDmqvP32mPSzer9lHx8Lllf1uiBh4ZZ2R1GL8uy8AAI0MryozgOnplZVhGmcFkepASJtkwaVmokRlS4TQPjiMl+7ncY0x7uSYQtk9SvkjtlNcZKHWi6lgHkwAh95tyUcNR1of3KCION1VC+0iL6t3/4OClD0ESS6sFySqmfg+2BYmHm2ocudmqXv9OAnUtXU7EIPaKPnYJMNIeOUv/RjrDr6z3VGJSpXuihrsqImW+bcGqj7ImJU7KIfUw5xWa7KHxaLuXxMzhulC4nfcL8cloTQwWrMl8ANl2bulCrHdqr/5Wi11S50vk9Pb5Mvkg1YGTYsf7rvNM7IP1FcvPdeKWjqZK0F3DPe/FJE5mYRrPyMq1/r1K9X46+f+V2h+ffIgtcWCZAsrkYRa9kDBoQi9L8HCM5tpQkzYxv33GQSs3S9XgXJm/ynQlVWMMmXnL5Ss5P7oRJNCB6KaWdV5hNQ5MXlcNOUX7VVf06hvc5XZLCegz0a/sCqje6BBIzCWWuxaP1cDaxHqyPTjwr3UupCV1WTDGrLwJmxqsfflJbRBnuZSbpKrkSGNGYyOyMVxnwY8vpQRR7WxRXJ+SU4U4hXT+iP0J29UJUwa2/umXIgknjh3+NO2CyicWh7aGKsssma7RTood73vPMnZVz3DoOf3R+rAalE81wNxfnIsG0d3OFEvUL93zveuybnR2/LomDXeyamqEVIUVorGlMZf8ZOVClxivc1SE0H7tBe8+UoL6YE29CG1aa1LrM4b1YM0nGaxLq6qINNONvgGWXECwqisY71Kc8VxyDIebGtD9tdDvIi216exIjI/bpEzMIvSKsuK3BrdIbLCSTyaE8j/WIkFSQosp5KsmCkkbvUw3wKMTkmNzi0lSFK2rbsyaWt38m1WdOji1PWTyyLOPe4cWPIUXIUUnIdR6hJJYQfD2CSRrTRiUEfeEWuMHqdVeop0fp0/J6Zxzm9X9fvu894QHDNU58l1+Nl1SYjAmYsd7WLnmmu0Y9KV9P2Ytwc6OX2elyS1cWtWxQqraicjAYkglnTzjya+GDTE+FRp0uFYNbK8U5hOLKX6Xi74G1Qvh39S1k0L+YeyCCnRppF5sc6eJWQabSFnHvbN4p/Acxh47WQbMr4Gx3ovxCVaqiihPXRODNdk9THH1gLemXkpckujo9Ck1SJK7y0CktB/i+7dNee6qWRyQLv9tXRnPS1se3XLt/I40mZ/tVVXPpnzsZrpUXA0w7/SKOvQM7aoeMAWDga2SeVAjS5YsKamXw02m+d4nhn6WVum5bIjx2vEauM4ntQX4lxifDP2TIn7evjXuwvdFV12/ivs8lJj+MlIsTMW5Lti3fDi9DY4Uq0/Lm7ppnawjUse5luZ7JCNYZkUw3gTq2vECfFzyGmRxUKx0EIjrorjxO6AUQ5OmzM5uhoIklyo51kCOXAI/dj5wbVMpFgI8/3IlQUogHZZuodN34jON3yKtp/pdXfguRMiq8GtF0cVvlkdUetJa7mrdWUkqlrBRjfuscVa1btTV44RH0DVbpTOH8OnZ43TIRLgCiW7+NBiv2lCdBHPx4sU04otL0LDRcMK8aspzZQQx2RDjh1YmmXfp4WFb/2G8E/pqePWqbrbBeCeEifBak1IaTW4MNhko+Brjq8nXu1JTvjyytP59O05ZA/O9dny35rouy8DAfwBQSwMEFAAAAAgAAAAAAIg+qNQRCgIANqgGABgAAAB3b3JkL21lZGlhL2ltYWdlMDAwMy5ibXDsvQd4bMWVLnpIh2CDASfMMAaG63HA4fraHsexPU7jODD2HWwTDBzgJOUstdTKOefcUrfUWd2SWuqcc7daOeecdXSOjk5U1v33LqkRYGN47973vvd9r1na1K5dtSrsVf9atapqn5/87l+Ep09Rv3/B3xfwd3jHqVNP4O+OU4/R8afw3P7QKfrv+FdiGC2wzWWZZnLMM7mm2VzjQqZhOcO4lGmezTLPUGShrtnWuWzbHK64TTdNpeonkrVjSZpRQsm6sXTjFCjNMJmiH0/Wjqbqx9OMkxmmqUzzdJZlNtsyS/gcMbTMZNOR2VaaEEAdLLMZ5uk0AzhTPJEx04TbySTtKGJSdOMxLX2BfKdvnSVY6ApraH8HSdrDJR0USWmSdCCGorfTeELFHsQHC91+9bbIxs4c61yieiSA70AMOEc2dp2vMb5RocHTQL4D1/Msw1vVOr96a4S0E+kjpB0hIjc4+HPtF2qNiET2dOMk1SfmGQRQZyS4yDYHCZwoEWyR0odjQeK3qnRvVmrA0JdjQSlUuNZ4jmUgxcUpB5E3pqUXuVB0AM8BDsiOCkdKO1G3qMauAK49SOBKUA+j5+OVQwmqIfRJvHIQ9UnRjRW4ltH5IaI2FIeqMpp7EAahCOSi3pF6JIt6BbPIjp5ktvajGniKslBnpEG136hQk0j0cERjJ+nPYIELdfblWEPFbSECtM7kwzaHiTwRDegHqotCRW2Mpm7U9ly1HinDxVQT3qzQ+HLM6DHUH51A94krTOxBMhSBGDQNjfWrNfmzzdHSThACvjXGCGFbhKgtgG3xqzGFC9yRonY/ltmn2sho6IwSdwSwbX415hCuM6jOfqFSH8pz+dXZzrL06C68josc89kqHTjjnZ4pU6HPfeusaItvvRUloqWBPKpvET5fY0AvJWlGIMOZEEXrbJp+AkTJtnEK/YMewzWDlvPoll7IBunzWPkAHRhGIE4xAAH4v0nJ9PBBAFewxXuJlvWCOW5RE7yvHHrEoZ4QYKoJfCcaCzGA1GWaZ3IsM3mm6URZnx/L4M8yMkQepqQzRtJBUQNFzIb2OIknRtLOkHQwJZ4UidUysbR5eLh1eLh9sL99cLC7f7h/eLh/cLiLGJq2jglhRNKPj+ng8OAEHRL6/3//n/0B/8tNIwW2mSwrJG021zKXY17IMq1kmpYRc0zUUxq0qStgGcAOkAfsJFPIPIYAQPttvUDHU8hP4zxhku3lcxSYoZF/7gj/aeWCSHCgslPaZJJkR0GJGKdUEZORTV0Y0QBkYBHCjObuaFkPsC6yiQIroA1AIKKxA7cYsBE0YuMWASSOpACtHaohUOC4wDZhEMXK+/EI4BAkdCFBiLgNsHCOpUc8KpOsG0X82WpdAN8OtlHN3SCKv7QDFUA1AAtQTOgN1B/XdKpPxgCJQFE/rg01hJIKEjgCBU6wfaNChUKPQI9rBYoC9oFXwP+3qrQAzBCxO4BCfjuuGOMIoAhwQ+n+PDsYoiYU0Ald4Iw6A+cRiFcN4sqQ9aDD0RXIAvQGUNCQ1YnA+VpDsMiVZpyAOs53LebY5/BecIvEeARCe8/VGCjFV0lqAtVG1Q0dhezo1dAGDyDUp85MqdQGjw/HjMqjtrhFVdE0NJP07QW2ES1CA4OETtQWYbrDKXWAZGgIsqMy0IboQMSDfNEPtaaohnbgfwDHAhWAMJAqGHDNNocL3ZHidh+W6WKVAeAfIfQA/H1ZpjC+O7jecbHaECZsQ90u1BpQBLihY1FPvHF0OyqAeMT40X11vtZ0nm6mD5XeiDBD1p1I43+GaTrDjD6ZRLfQsk31FTFaIIFJ2pGopm6oZiROVA+DEshVRRExVCjSjtBWylgSFTNCE3n0/uERiq1mmNZEwP8hZmtfrGIAYUg7KpZrn6df2TQSQGIhFXgd6G3qkWOBemqbK7TOJbX2A/yDOGaGuA3Iz5R2MqVA+05QrLQzTtLFbOiObuiJlXSmSu3WieVbAPaDg/2D/f39g+2Dw5uHFF07OLi6v3/j8PAWjfx7tFI42KcAHuEdWiPcolPeODy4dZxsZ//gw2qAA/qHwO7uLolBPU4+/bsc9ujfSVYkTCL/7o8U5y2U6oUTTD5IBf5P/1AHUityRbsOjn/eSqL3SAIE9o9/f4shefre1gH/qy3DBdbJXOt0nnW6wDKTb5nLNy3kgegYimxTebbpHPNkjmUi1zKZbZ7INIym64fTdcNp2qE03XC6fiTTOJZrncKjDDzSUY+QHrkoepvJ1PuE86mUU+CTqh0CwxwzVRYIDFM0g2l0WeEi58UaLciPbQjmW8NEjkiJO7qpndncEdPcESVxR0nbQIxGD6OxnSH1kNso Rv1SELFh4ud/hzj+WqVD/iwtL61enALqDMGcc3+HMOFavUFliZJ2V/mWUJjwfxcpdKPow/iWVBcqMgRLnKECu2k9AR5bxrVzAm6cyayjGO4Daw3v1Wh8GPr/TgGFOFfZ0T4XKUK5FOrRYVRATwCz2CeBU/PVijeLJcjBkWECGyoLZoT09TBaGyLbHBFiJ0RDa4woR2FonoXWRrUE7cBdaaLNZqAemNMc3tAvcmXrccVxV1gaVFhn1odHgVyzcF8y8VadYTEmWefyjSNFrpmCxzT2eaxDONIjMxDt8sUxDODJ7riXJUqsN6E4sANrUDpkQ3uSGkbCNVDZCTdmaizD1sfLnahM0ME9ou1umCBLVJKvQV0LJ5GSdHJLp9a9ICRfjttEQ0OX7Y2VGhFOFLi9GFrA+oN0U3umCYPGuVfq2OIXbGNHaFcaxCyi50xUk8YzxpcZ2SI3TESTxDHFMA2MqXtMVAlbJN/jSEC6rLe6sfShQsc/vV6wjxSirkA+sEY1egKEVr8ODoqUuIKFztCBFb0Bt4ynpJuRBfFNLXHy3shbFmm8WyKJkC5VkreiATimqweYMo60bQU9QBeLuQwVTOEMCWQ2mFazkcQQCQSp2rJ08EUzQBFCFDhQRJPp3lPWEvSU9wQTlT2xbV04ZqhH6VqZZ7It89gWKGgeHl3mJCSPbyUBEVvvm2mwDFT6JiD5VZknUps7gxg6cLqzDFiN1PSFiv1xErbYiWeWElbvKQ9XtzJFHfHiHviGjozGhyOsaVtgn57B0D23f2D2wcHiLkNSD84uA08OTLqaRN/nwoS/L9N8P/gAMm29w+A/HtQIR8eLIFXBNBwJWGCabv074PArxfrCKbt7OyQW4KH7wOD3uwodGtrCxm9OohU4EM35v/Mz4v5qCHppZP4f0hrQK9q8GK7N+97+9AL/u/qHOA/yzxUbJkqsE4XWqeKrZPFlukS82yxebbIOknTFLkWWCYKzOP5prE842iOfiRbNwTK0g7immMYyTONFgCxjaMkHjFI7817HHj/8CT45xpGsrRU9kLrRKFlAsWBW6ZmIFMzmNzaFcYzB9Rq/arVFysUvlVKP5YqsFYbUm+MFFgZYkdckyeuEdQW2+iG/DMlbqbUTYUb2+KbPCAEIgRW/xo1MvqzNOfLW/1Yav8aDThECW0MkT2Cbwnm6JErXdUX39weKbRdrJD7VClBF8pbcQ2o0QSxdQE12iihPUMzgLqhzsV2qnNQ5zRVXwTfigSoZ0idAfUEiPlVqxAI55l9q5X+LMQYUPmLlYqQekMYF2imQRMYYjtT4ooWO2KlbjQhvqkdrUAMrmgUAjESZzjd9nC+Ge2KEtlRT1QeZflUKs6VtYAhqkpz0wVzDKgnCkK7fFnyGKmjwDqWYxgstk8U2cZzjEMZ2j5moxMViGlwxDeDvzuQrQM3dAJugziGkDpjTIOTqhKAXeoO5OgD2DoEYqQwvIHYWlSA2eQJF9p8azShPDMDiRvbAuvoZBJXlNiBNAhHoV1SB0NsDWSrI4VmFIrbQI4miKOJkdjjm9tQBzQKPR/T4EKL8FLwKvGa0Nggjj4GuqDBGcIxBdboIgX2cJ41sEYfzMbrtoVzrYiPFjvDeAZwi25Azd0Ih/IMaC+u/rWqKJEVzYlraqNEAnhIXd2h9aYAWmbwKKmlEy8x3zyG11domQTlm8dTFT0p8p5keRdJj4oly7sh8BBCvF9cs3SDeNc5tKBmqPvTVf0Z6gHwwVjIgqxqBzM0/TQN0jRApJemvxbWgiE1jiByKCiptTNd3Y/iUBOqVtbJPOMYioAoomdiJFCU7hz9MDVYLJPF9ukS21ShaTxe4gqu0URxTXFiV7zEnSBtS5C6EyRtCRJ3ksST1NARJ+6OFXcnijuyG+zu0SWA+cEe7fHZPfLqHHqNYQrsiVvnhNPnneBEUIai3b3Drd0P6wIiqAX4PYljJ2Hqg/Pxwj6ZEbwLCf/Wz5sY4du3b3uzEE1EgPfDNel/989r+W9vbx+eUAeHx/Mjr0bwageS8W8136s+CEPvD/hfZR4tpMz+WVyB/2WWqXLTbJl5tgSK4AQVm6eLTVMFhvE83WiudoRQjmYEt4gsNE4WmSbz9WM5mmE6ZgLp38Xh/QnZC40TyAsOYFiCypin8vXjdCnD2eqhuAZPGMcUUW+J4tnC68xhHHMY2xRSawhi6QKrtUHVunCOOaLeGi2wM0VumD0J0nbK+KHIA8ItKBJGJksfzXdECxwhtUbwCWbpQ9mm+AZPnLgNnMEwlG0kRQTXGAKqtCiRwbejaDyiyRhQqQGfLOVgvm4M1S6zoa9mUM/01r4ozNDZJjCPhe0qdMU1tNFVpWICqjSoMwIoMbhGj+JIHRCJ0hMbO5A4VtyGZtJEhRFJ4kGoEnLhilbgFjz9K9TIjrb7V6rBM4gOoLbIHi1wohOihfYQti5O4iowjubph8sdM2W26XzDSIaylyGwBteiaWZUD/0WWmsEK6bIldzUhfogEvVnNrTFSCgKYhsDaw0IwAgPqTP7U2gMVQX96PRn6UK5FtqAbw/GIxZlzEeL3QE1BoQB1LESF1PsCIVegHKBdpO4Qjl61CpGZE9oaqPQGI0SucA5nG/HFICJNyXrRkwIul0Ea7aDIWqLFEAVdoGihC6EYxraQUxJZ3Jrb0KTB6ySZR1p8u6Uls7EJg+uKAutwzUB9kDDkTAQYtAviCl0pcp6UmQ9EK0i05RXAiF+qS09mcpBPIqos6BPcE1s7Exu7saLSJX1psv70lp7s1SDuZqRbPUwApBMmigRzVZRAfA8SccJ/jqR8YIA2KbIusEfHDCO6OEzgyrlakdRGbzuSK4NLyW5uavUMkNqW2qdKbXOIntkPaRaB3GCYBBp91ICRe2x1EJAZ0JDe0aDzTm2BOTdp41/WgUgsAeA2N7dXr1+eXZzbXpzdWpzZXpzZXZzZWFzZfXq6trVtWWKLi1dvbS8eWn92qUrl5avrq/ubd0Eow+7BkDMdYJaXvglt3j0QbDxJBKe/H1A/Pe6TQ7e+Ts8oVP+3/2RGQoJn6zbuyKJUvA2+aRC/Ks8vbMt7w/4X2GcyDfP55gX8i1zxZaZMvN0BfDfNFdsfgeVWOYKjTN5usls9ZiXcjTA54l8/VSRaQZX3GapAODjuH1X9r9LYA4O4Aa2CJRa54tMs2BFCspUjjD47iCWicGHhdMVKwYqdoKYovYonjOk1hxYbfAp0/hV6IJrTOF19iieCzKfIO1G4jgJUnbQiT3BNUB1c1rrYLp8CMki6h2B1UawjRFCQXSDIrlO/0qdf6Ue14AqA54iDUpBAlxB0YK2kFoLrqgb6llgmC6zLZRaF3CLsvAIucAZtUUWUBgHuG1GEagbIlFzhMGWZkW1KIhlRADxoHiqqkeEMBiiSohHYlQDiXElT0PZVhSE3gBzhMlTVBvF4SlVtMjD4DsjuLak5q58w3iubrQEcGGbKzBOpMn7w+rMvuUqvwotCJUBKzCJFbfH05xRf9LkGHFHtLgjEI2qgbHdwZR0BXOsvmgg34VwpMDtzzKFoLdFmFv1hHId/jWmGFSvsSe4zhZQa47kOWOA7WI3bHUG0EniQTiszhJK38ZKPcF1Vj8ka2iPlfUypJ0MNLmlP1ExGCvro26lXYny4RTVWIpyLEM3lWOcTVNPpKrGcZusGMU1UzOeqRrKABrrxlJbe1Nb+9LkfZmqQRREOUNgBkg7qEZJOhOkXZQkNHTi/YayLYiBDKS2DEDeIGYQvyIjNPhEpmI4sbEH8THCNt9yjW+59lyRAp2Dd0dEC/2M1wFuqS39EKEMxTAtn6MQ+yzVCAiC+i6iH70fkVGT3NwHIrcYZcUWjLh5CBjqiRdxJNLiDjAsty9hMKLaZbZFCF6majSQZQqAFEE+IUUNnScpTtIeR03c2qOl7ZgEpUmt1vGFm8RvD9Q/Mvb3dw/3e+bGcpt5KS3ceCWPoeZGauojtHUMTT1TxY1R8aLVvCgVL1LFY2oE8XJupoKXLq42j3depeYAHxrcOjo6lErl5OQkwavl5WWFQtHd3b25ufkBmXghDhrE4XBYrdalpSUCmx/Qg0TKNZlMdrvt8uXLJP4DriD8P/NDQ65fv07X0L6+vn5IVw8qcmVlhYB/X1/f4OAgZlJTU1PXrl17f25IhvTv9f9UGKfyzQs5poV8jALKtJgphfFvmisyv5MscwWmmRzdRJZ6zEvZ2vFc/WS+cbrQNItANsajejRbO1Fgmn139vdQ4QnOuIJJro7iAJ4FxpliCL9hGrekoDT5UBiwusYUJXDHSbtiKVTvogOdMeL2SMBgrQUUwrGGABirjf5VBhAGBW4juE6GsC1a6EHAv9oQwrGhIDAPq7OH1duRJajWjEcYO/HSbiRDKYgBz3CUyDJdLNf4VekphsBJlhHMfSp0ETwX6parn8k3zBZbFgvNCxmq8QiuO6Da7FeJZJaAaot/pelimc63AjUx4RpUY40WdsRKegJZFsTEiDpBwTU2pIzieWLpGTpT3BUjOiLcxkF/SXtQMaa4k2o+yxxG4U8nbLkQtg24BDQLrDKGc2yxonZARCAUVpUxtNYKSPev0AchQZ0tVdZXqJ/MUY/ma8fzdRN52vH01oEoLqYhxrB6K8zpSIHTt0oXSEE3jOr2YI45pM4aLfZECduixO0RDe3+QGmOJUraGd3UHcR1+NSYgvkuRmN3lKQzuN4WIXBFN7THN8Fod4fzHCmt/anyAYbQHcF1JDf1ZMCWbu1jNrQjMkM5DLBKaelPaRlMV4zgtabKR+Jlg0ByAHtS63BCy1BSy1By61CqYjRVPpqMW8VQomIgVtYDimvpTZT3p6mG45t7ojApELqhX6L47qSmvmTZgH+lwadcFy+BCT3MFHUE1VjC653heCNse1CdM5jrDKq3B9XbAtkWKCbIT2rrUIpsIEszVmSdyzXPpBtmktTjiShUMZquHIuT9oTxnLGNXfGN3ckt/RC2KEFbJM8VWmeD2BCZCYItwbbgNpzrQDWgK/G+Ehp7Ept7k5r7EoHnLQNpCqinEbQa4+LoCmNGdRROVw6nK0eQILV1MKGpJ6VlAMKfo53IM0wVW+dBGG7giSLAnyFog8BDbktti0WUqTZfal/CNVUx5AOLpZrC/2hxO6pBb/uhhCSWWv9tZza6GdKOKGpd2JMqtVnGF68DDajVXxDlxdna29k6PLDNDMdr+KlD+pgxXeS4BhQ2rg2Z0IaM6UPHDKG4jusCx7WBU/rgcV3ihNWvhcUfcK4f7lO7hvb319bX93Z3bu9sLy8tAJsubWz09fSvr1/d3Lxx9fLGlUvr27e3rm1uLi4sbG5stLS0hEdEFBYVrayuAqynZuaimXGBwaEms3ltbQ3aAWi2u7u9cWUdJi1gau3Slf7+wVs3biHc0929MDePIq5c2VhaWb18dbOstCzQz69VJts59iltb2/T+u1wem62p68PkTeu3+jr7UXpN65fv3r1KhKg3PHxiaSUFP/AIJ3efPPW9vrljYP9g4nxyZGRkd2dnasbGzevX1+/tIbsK2trA8PDK5fWtvf2FpeXb9y+tX75Mszp6ZkZgOrlS5d3t3cW5xa2t7aHBoenpqaR5fr1m1s7u5hmDQwNry6vXLt6bWFu4dLqJcy8bty4OTQ0PD4xiTqsXb5y4/bW5vUbt25vXV6/snF5A3w2L29s39ravIr/NvOLi339/JskjXu7VFcMj45Zrfb5ufmp8UmD3pCbm7e4vFLP40mkUqgzJLiyfqmnu+vS2hrRIKuX1ju6ejY2N2/evFlVVjw50vcu/K8yThSZZwtg3ltmiE8egQLLbJH1HVRgns4zTubox7O0o5maERACuYaJfNMUKM80laUdQ8xRpHkaTN6fCug04FxopVxP4ECYIzse5dMMMzWjmdrRVMUg5v7ApXCeHQAVS+1taKcDnYApEvZn6YPYJkAZQwSjVO9bpQ1im5EFFFhrDKw1IYAEftU6IB6Yo0Qa6yxhXBvSB9QYGeI2cAMGBrJNyE7YhtZbL1aoA2oM4Ib44DoLEl8oV0XwHRnqkUzteJ5pusA8m6OfTFeNhHLtYVxHBBQHzxlab/evMV6o0MJyhs3sxzJQ9rDQjRGKgG+1AWOTIWoPrLEC1aMEnjhJd2xDVwy1VEdRDE1oday0iynpALqCs1+1AfVhNnQwxB60KJBliBG4QmqMYWxzfEN7NN8ZzrFE1ltjBFQgjG2K4Fhhx2bIB7NVIxmKoUzFUFpLP8IIMIVtmB1EN7hjGikKrNP71WgYEme8rD1KbI8Q2RBgNnsim9ojGtvDGz1RzZ3xqoF49UCUrBO3EU3tscq+ZO1wkro3RdWXouxJbOlIop0w+brhXPVAtrI3rbkD4RzDaIq8J6W1N0M1nNTcm9jUmyZHZcaSmgYTGwdSWkeAtwD/hKaBiPq28Dp3FLcttMYew/VktYzkqsYjxY4LNfLzVS0Xq1vfKpMGcdSxElsAS+FXIfOvajlf2ORTok2SDDAFna9lys4VqBMl/RmtY0xBV0CFKaDC7FtlPl9tPs8yna01nGVrztWq/Lm6yAZ7Ykt3hrw/U9aXpx8u88xlOabirdPhqtE43UyaYS7bMA0tE9vanajpy9JDICcz1MP0u+hMkfdDRNPVwxBCCBJD1MagtJ6dEo9aI7mGYILDteFNRYvbEmQ9ibLepJY+ZExTDkGe01XDacpBBCDnYIVIJICkxTd1IYwhgOIgn0WYqVlmIPwxDR5INa2O3eBTbJsvpF21JfaFUscCAsmtfVDfEFGivpEeRAdw24FJFhOvT9IZKYEgdaY2OMyjSzcprw+gf5fa30N8/IeH9qnBOEdDxLzOd00btKqJWNaGLukvrhj8l8yhC+bIBWPEoiFwVXt2TXfukjFi3hKlF+h62pBxe+9gYfN6Zl7uwuT4yPQwMzzoxuqK2mJNTc6t5TRyeTK1pKUyp2BlckYuljJCQj0Op7ylJSIq4rzPhZGJUXDoH5mKT87800uv5hUW17LZuTnZbqdtoLczIzl2b+fm1c0bmTnl0dHJSplSJ1cWpGcUZ2fPTEzxeKK0rPzphdXi/MILZ97ISEq+eQ2a7XBiYkLS2Hjt1q2VjSsl1VVhjCgxX6BulcfHxJQWFRt0OplMtr27C+x1etpiEuMv+AXX1Ekt9u4mmbarazA0JKoov7jd5eax2Z1OR1l+3uraWimrOj4tNa+0ZHx2JjYxQWXQpWVl9g4M+AX45+TmlheUzo5McavrdApdZlp2PYc/O7uo0hhml9ZkKl1kdHxuak5Bei6XVc8qZc1Ozre2qBISUpPTsjdvbtWLpJ39oyqDraNrkM3i8Vn8cJ9ghVjW197tcbdf3thIz89/48zZ2PC469duo87F5SyT2Z6dmqVsli/NL4YEh9o97em5uYFhIRmZ6SuLCy0SUUFGarNIsLq8fP3m7dJqTnJWobRFefPGDb1SIixLeQ/+jxebIVEE/yf/Fv5DJiGx2bqxk/gPjUD0AuIxRhCJAG7/Lvh78d8bJky8OgW34EZ4YuxguBH8P5btIyEnFCV0AdhxRTLE0xYs5T3GAMTYwdDwqdQAxnFFMgxMDJksemQhGfAfegFZkBjZSUHAf1IWrgB8ZEE4mlIQbQiDIQrN1mKmM1poni6GcjRNIRyKGnKtDKGT2dAGCq2zgE8Y1xolcAIWkAs1ZFLVM4FnLFohaguBGcky0k4tykkVK25/m6gGwuQDMnQkyroYImdInSlK6IhrhOLzoKDAGkMk3xkCzIelCqVA28MMen6EORGlX5q6GapBpmbYR+B8naV/k218tUoTKPHEqIci5H3RioEUxUCuaihHORQvaovm2nFNaezKVg6C8jQjuZqRVAq1BgnR72IUEETBlGEC1/iWvujmnmhZb7J6NBlqRTeRpgAwUjZzHmYc2vF4aVcgxxTd0JaqHAypt50rVQZzbPFNvT6VhtfyWs8UKP+c1/JqlZ6hHPIXtv0xr/lMhdaf63i9VPVmuSa+dSBePuBbZ3u1ROlXZwvkOs6Uqnyg7HiuN4sUmK3AYPav1r+W2xAtdkbwrW8VNUUKbJnUhoThdKgkRU+asi9bOVCkHirWDhTp+gv0XYX6zgprX619iOccFzonxfZJkXuy2jZU4Z4qcM8nGyeyrYuFlqUy21KRaTrXNF5ArexTEg5YRg+kq4YgnGQsIAwpQp/Qhgp0XH9Cc3dcI1R2J0QFLxqSA0HCiybWCIioBhrM24D2SS29qYoBXJERhAB4YgiAIUpEKRgCKBSsIMnIBcnEU8QX2+ZAAH8QbhNlPSgCZSEB2IJQB2IjUcNE4o6RtkVKOiIbujAjIPgPM3rvJP7TPg/b9CDDIQ5Y0J25pDm7qvFZ0Z5d1b24ZnhpxXRmyXR+2XB+BY/UL65r/rKuD1w0hRp4Ghr/dw4Ox5dWIpnMgc6O9i4X8L/Tbq0T8PU6q8XRW1ff1MDmJ4VGXZlblNbzzp95QyIQwlZfWV1OSk0eHB1A4Y2t2t6hsaqauggGMy+/YGRosNPj0qlb87JSrq4vT0wtBIfFj43NSwSSl//wgl2nd5nMSzPz1VW1EcwEhcYA/LcZjHkZGZuXr+zt7jU2Nmbn5i5dWmvv7bG4XAOjI/4XfeprapcXFpUKRXVVlVAoJCvcxZXlKoPe093H4TUbzO1CkTw7u5THbRgfnZAIRGWFRU6zKTUurqOrq7S2ZuXqhqi5SWU0JGdmlLOqmYkJLUpFbn6+1Wbnsup6XV3aVnVKXHJdTX1nR+/C4oq0WT63tDo2M2uw2CsLyxlBETaDtSinsKu9h11b3z8w0tSqGpuerRc1ODv7pK1aq72jMK+0trTmzT+/LmDVD3cPdLV3WxzO/NIyjVKXwky7cuXm9v4hMzHNZLKX5JdsrF5RtyikksZaPr+osmJwbKSaVWnWqWUivsukc1tNl1fXbtzenlm5NHdpo6CkbHZmsr/LyimI/oD4/y64Pmn8kytuCYZjUGAgQHoRiTC1jmybK7K+m8Pfwn+C9kS5EPVBqQPDJJlNkMFFsBpWNwFhQogkgB9Cm+UkBuMFSIsY8hRjh1j+BNXpdUk9RiKGJ5AfROw3xCBMBg7BfMSAA56SvAjjKQYXGdcIZGuH8w1DpZaJMvtUsWU8Xz8UUqMJ5+hjRfYEqStB2hbOBc5Tm2riGqE1jP4sDUNkp7egQBdoEIhtcIVyDEG1OobQHi8F1LfFSz3H1EYRvW0pubUrVdGDa6KsE4EMdX+mZgABTOeTFYMJrQPJyuEkJe0qkVO3KaqRVPUIrtSRIu1oRFPX65Wal4tbX6tQv1auPlOlDZV2xKmHEwHviqGU5r5k2OQtA7jGitpxm6MeS5X1J0m7s5Sw5MfyNOOJkq5wjjWhoSNB0hlcbYgTt2crRxg8p1+l4fVS3RvlxmBBR6xsOEM3yxD3vlGoOVusS2weytXNMRu6zpcpoaFS5AOYNL2aIw1mm+MaO3wq1EG1xkih6+WiphdLW8Nbui7Um/+YL/XnWSOkntfL5K8WNSco+hMVfSGA/UJ5YK01lGM/k9/qX6mPE3UGVOiDKo0xXLdPoex8ATtOqAyrlZ7JrPAr5cYKlJGc5pBqcUA5/0IBxy+TFZ5aFZxU4hOX80ZUyqthcX/0j3jhYuh/vhHw3EsXf/fC2d/84fWf/MfLP/6z7+uZdRXO+VLLXLF+usIwW6KbLLXMljioaS+EucQ+75VY3BKNQGwVSCwxVIiWBKQnUjY/tM8gUJ0YITENbUSWwuh5Aa6QIogokUPIFVQJMiILeJKCMCjAFhyQGHkh+UiDanhnzd4hBsUBqSaGDYT/XaYRU9pG8D8KE0xJV5rEaXkn/h8cb/K3UvgvCZg3vHpJ//qa/q1V/SurxucvGZ9bM//XmgmK4OVLuj+ta1+4rHl53QD8Dzby5H3OQ3r2IGlRV9ZwtBq1Sa9qEvP4dbX1dXVxCSnxKTmVVfVNPHFscJigupZTUeXz1ll5U7NQwG9qboxgRPYM9ICD3uqsquWHRzEzsnJT09Iz09NTkuL5dTXtLqtMKpqeXYyMSeXzm0R8SVJMfFZScnhA4MjgIJtTH5ecanO1Z6dnlhcUpsUn3L5xc3hwKDk5ubmlxepyTs3PCRqlNfV1yUlJQh5PIhLxudz6+vr4+Pj1y5fRcoFIVMGqLigp5wlb5EpLekZRNYuXkpKlaFGqWxXpScmFOdlpCfHDoyO5JcX1YlF5DSuvuKhJ3grwr6njiKVSdl1ddnZ2ZXF5b1tXTTmrqrgiOiImP69oYHBU2NCk0pvEzS3+wWH8Wm4iI65J1JiRlC7gioD/7Dp+ZU3d4trlKg63rKYuM7+ssro+Mpwp5UvPvvxGfHgMp6rW5XANj4/Dts/OzEtkJF2+cg2TlqT0nOZmeUJMgq5FWVNeNToymp6Xe97fj82tT0iMHx/uZ5UVZyTG5WWkLczOAv/Xr9+qqhdk5+dcv7bW7lKxi5kfBP/zLZTkn6STxj+uCBNHDRkLkH+QF70/lP1PZhZgguy4EvvHqw5QHEYThgkIQ4lAtNfQgoRjaBDnD3ENYZQRQ4vgP3JhaOApQXXiDiIuHcQw6CkD2NIuIAMCYAIOGEq0p8gJJshLEhMVQLQJ8D9TPVBgHC6xTpTYJgtMI9na/hC2NoJrjJc6k5o9CU1tYVyTL0sVKbQlyDrDqX2nmgihjQldAL1Qq42hdnW6gusMAWwd0jDp3ZXMRjcGLEV0ILbRA8s/UzsESqf3E2Zph2DWZulgdo4nK/oSlcMJyuFE1UgsYF87nqQeZTT1ICbNMIkY2OFZ8sFkSWd4jSmKY2XyHDFch2+xHIGs1oEEMeXqP1uuOluuZjS0JykGY2GFKgZTVMMBHMubpYoosSdbiylAn1+V5vVcSSTPFsW3v5YrCao1YFZyoVR+tlgeyDL7lhsCqswpLUN5uunQWvtfMhpfy2oKr7UXaKdTJJ1+RbKQCmWmrCuCpQmqaM1Tdpcah9OanCmN9rAauV+JJIqtzmxpi+UZ/IrECTxDXmt7YGHDuQxOEs+QLbGn8rShBYLzqVWvxxY/75P4/MX4V8Kynzsf95OXgv/1f/p845cvffFH//6NXz73pR/+4omvf+fxr34L9Mjnvvzg01+47zNPnX740/d85JP33P+pu09//M67H7zjrvtP3XnfqbvuO3XHvadO3U0diqd+d546dRfCz3z3d9WW8SLNaH7LUG7zYJqkOw9h00SWjprkAmmBvQRvvTNiIsMEq4kBQwYCzBVcyZQWkE4MeyLPxNqH8ADMQUTSIHIE/In9T0YEWIEPmUdALBHAQChzLpISiT+WjBQwxHuEuPpV6chAwO2xlrFFCGyRIkeY0B0u6sCsMKXB8W78p8IU/jumBuNtkrBZmPpGnyWj36LxrWXTn1YtL6xYXloxv7pifH1V/9qa7i9rurfWjFHz5nADT9HrRMbr2/sMRord2Q54VEoaVpbnktISB7u7ann8jv7hgf6R8b4RlaSpWSB2WWx6lXp+dnZwcIAn4Km16vnleeDw4uplQUMzT9jQ1t7pdDo5bHaby9HX3X750nKnx7mzt6c3u7g8yfjI5KWFFSlPAGv/yvo6m1NXzeFc39rSa7USvsButmzfuj0zPQ0Os/PzY1NTl65uKPU6qKKpycmRoSGoJJ1GMzo62tzUNDM7u7+/v3ZpHSqgni9q7xwcGZ+XNCqmZ5aEgoYWWevy/IJFb2BXVxl12tu7O2aXs5bHzcjLNdqsE7MzWqNhaHQU8wKVRsPjcgd7++0Ga3Jc0uLsYkuTXKc1Xrt+s6O7T6HRo/VCsVTVogw478uurHVYnWqFtrurjy9okDa3As9dHZ11ArGoUd6q0EoamqfHphUNshaRtEkkWV5avn77Fpog4ArNasvNW1u3dw9lSi2XJ7rw5gVVU0uXq+369RvWNre4ubGex21plR3s747090BTdne0UUvF+wcb12+YHO7M7IzlxakmUZWyqeL/Gv6/y/NPgNrrFDq5HODN8gG1gNf4J2yJYOcaxklZGBcAXmLSY7wQ84ZgO5nkIh54Thw4uMWVOFvILQaCT6UGYwGDjqwOYCghAdITe97rMsIIgiohOgXJMFlAJOGAYYWhRG9HbKfdvKYEGHgY1KbxfMsUKEs/mqLsC6jVh3It0Q2Abk+U2BXAMZ6rVAfz7LGy7jCh05dtDBE4GNL2IK7Vt9YQ2dAWJfEE1JkRxtMo2Hhid4TIFSFyU0SF2yhYlvdn6ceZ0k5flt63Wu/D0r9R1HqxShvOd1yshu2terNCdbZa+1alJljojAAs xjCxG0JqsEQgdO/Qp0hactt7opENYpbgopkAQVNF7MbEriWnMaOqGptYK3Wp077VrU8WGRJNQymGYfI9QJb/UIOL1hgyjEOMqXWCxVSn+rmFKUnqdV9rkwSztfGNtrOljYEV7dmSpzxdbqQksZiRVelboBZow4vbY4skzGrFSzdQEGDIyJPGJrDTWa1nk8sfSEg8XxC8Rlmzq/Phv3oxfP/8tsXf/jrl37221d++ptXvveT//n17/6Gou/99vNf+fEzz/7wC1/7ty9+7YfPfPmbn/38lz/x+JOPfOazH33k0/d+9NF7H/rEnfc+eOru+2ncBpLfQyM56PQxpJ+i4f3O48BpOs3ddPq76MA9dCTynj59530fve+hU3fd/7lv/azaOJgFbdvUmyTqiK53pMoHMnVjqapB4DDwGcLpxXmIKFEHxNXp9ckUWY6WyUBkaBB1gOwQbBAwHyoA9gykHSkRgGRCqMjcAfhP5B8ZIfkQTsg2veWVskPw6Aj/LUelU8sE1lmwQkYQuBGFEswxQUSPCBPMOmNAnTWw3hnBdcbzTOaRxZP4v08+8nB42D4+mGmUpo6bY2csSdPm9ClL/Iw1eM4WOmuLnLNEz5oZc8bIeUPEgoE5b8qaNCdquNoeBzLOLK2HBzOnp5fyK6vqysr393eTM1O63dTU4PrO7trKpatrV7xeptnpmQ1q5XRna/s2tVZ7sLu7v7e9d3Bre29n74AcJt7bR2gP1aM2hG7f2qXqekjtWyeHEvYOkfn6tWtCkUihUd/c3jrcP9jfpjaO7u/t7R7vIN3d39/eP7i9t3t7e3uXPufl3Wh6SO+fBzru4BG942dr52Br92B3jz4GcUBtjt3fPzj+usUB7rYPDzZu3DBYLevXrm4f7O/s7pFzEeCxdZtqyPrSSmdbO6K2byPtIZ7v01trd+gF7L3tXYveONDdS9Xs4HBvd59eGaZ6fmtvb+fgEMC+S2/Hurp+dfPSBpq5v01VmDqidkDXZBfdQq3azyyuyBVqZUvr5aXVQ/pYMDmsvY2EpNN2t/Z2t6hNXfv7129uNcu19XxJRVn5/MykgF2xsjj2wfHfC9HEyUnw3+vnIfFELxBbneD/0aruBwB/78qCV7OAG7F/vDEYQZB/YPjRyhpt2BBHEAAcVzL59cbAXrpQrgJ6k1FD8B8ZYSYRjyjZ4oJcRIMQtz+ZRCDZ8cpyBxIQJQLCOEKhCGB8eVcQkhQD6YbJXNtCpmkGxjZT1nehxhQscIMiJZ0RDR0+bMs5ltGvzoYYv3r7hVpzANcRwHNdZFsu1JgDuU7cnmcZzlbpfGpNAfV2/3qbL9vsy6E221Cf3GFbgriOmMbuVPVoAMf6l3zZW2XqcxXac5W6wDpbuKjt9QLZ2ZKWEIzuGu2bRU1RQjtD5HiTdoNn64bD6k1n8sVRAhNDaD5f0hjBM8Q1OkPrtGeLJQgzhBbfClk0TxMv1DLq5DE8ZbrMWqjrAOUoXWE1Ta+klAVXihK4rcFFnDdTikNK6tNF6pgayV/ict9MLfbNqX45OvNMTKZ/XPZbYYl/PBfyok/kc6/6fPdXL3zzp88/+71/f+Ir33v8C9/61JNfffSTn3/448888olnPvKxfzz9wKdO3/+Ju05/7NSdH6FM8SP0Jsh8p9cUP3F7x9ufqcLtHXffcefpu07ff8/9H733Iw/d/9AjH3n4Ux958PEHH3nyoUefeujhJx7++FOfeuxzjz3+hcefePbxJ774xD9+6Ymnv/7EF7//uW/+4is/ev47v3v5py+e//WZwD8GMN+MSfNLzM1kCf7wXy+evvPuU3c+8K3nXynRdyc3t6XLB6KFHr9qA6OpK045kKEbJQCLNw6IJrgNeCcOTwQA+yddQ0eK4Ng+BxHDBomRhdhI9LIvNS+ApEFcIWwnVQz4IAtugfzE5iHOHy/ndxF0AYn3zqOJ1QQOyJXQ3BkjbQvhO31rrf7VhrAqhX5g/gZ9uPdwn8J/gCy1FLq3Nzwxki/jM1W8GL0gVSPIUQvS1YIYrTBRK0jT8FN1vCRdfayhjmmsj9Vz07X8dEF5+2Dn4QGge3d9FZB+sLJ57erlDeDvytUrt2/e3DqkoGnr9tb2zW0C3fu7+9euXt3Z3tnfpz8vQc0+gGoHZAmabNw8sYn96PTZPn3KeN97HI2ergC2NzauXNncgPo42vB5dC7t+ITsAXD7YJfmtf/OI7FEC3gPC+zt7VMqhj7rfHD49keN6OOyVAiJdqlljoPrt29v7+0dVeskTzoz4XJwrDhQTdIoujGHu9s7e5SCOeJPNeq41bt0L1C0vb99E1pphzCk6kZjOnW7vY8Et/YObu8fXLt+A9xodUV9xOP2wR7Z00n3KiHSTYc7u/vrV67OLVK7j6Bfr13dPHzP9x8+CP5Dzv8W/pPIk677D4v/hLkX/0lx1K2WYgtJBvYCdXHFcKDmudU66IJQau+i0+urJ8Y54B1h4D9ZsfXiP9IggXfjEFkvwLAi8wWyxYIsDZCZBZRFyNHqrY0sAZCZNQjcwBODN0kxmKafzqY+lzQfLx9hNPWdrTL6su3nq80+bLtvre3NUu2bpepzlfqLLPP5KsNb5dqL1UYQYoDhPixzIMcSUGv0rzEG11nCeA5QON9Jb8h0hfNdVPXEbemK/kzloF+l5kyuNFroTGnpzVAOZqmHcfUvl4dWyBKFxqgahX+ROFvmzmp2BZZIEoWmStNQssgcUtkUJzaEsGSvZ9dG1CkSpeYwdusr6VV/yaj+c1LZb8PTzzDSL0SkvOoX/cKbwX98KwT03Cs+P/v9a1/9wa8f/8K/fPZL3/3sF7/1D5/72ief/MKnnvzSo0/880Of/qd7Hvr0XR/95B0PfJzC8FP3H6P3Hafuvu/Y5D75I2B+D309fWyK33WM8/ccWeN3P3Dq3odOPfDwPY8+9tBnnnz0yc998ul/fvzzX3nii19/6svff+YbP3v2X//jm//+x399/vVfvuT7+7MRfwqIOxOV4ZdUFJxZHZJXH1UiCs6tO5dUHl7Iz+Tr8hrMBRJLgdRaLndXqjpLFJ0FLe1Zje60BnuKxJ7Z4srXdBbrusr0XTz3yAtnLt6Bytxx/++D43P13fGtHfHyvnChB0o5BBM0eU+mfowAMqxxSAUks9SxAOGHsU3v2BkkNg+wHWBLvDde75B3Jfd4SjtB5gvEL4TszIZ2srBLfEQkL1EQxNNIrBrIJIYDvSo3/d6RVWSb9eod6AKvOjhSQ5bJPPNEmm48WTWWrhwuUPXaxldvUABxhP+Alx1qGyiM0p2ZjbXezZW+q6szG6srV1YXr6xObKzMb6wsX1le3Fia3Vgev7o0srk0dm1l9sal+Y3lm7evHezRhiwNgeRk6c7B0YQCoL9DDgrvHoEe9cGIt2HzgMLd/R3yDYn3fEnuHXdvf2uO1iOwk+lzr5gx7NLbPP/K7505Dk8WQTb5Ux9/oA6+oeG7pIi/dWyAGOq7f/tE9F/J8M4S/04NyZc2TtSS1nlHZzP20E9o6A6F/zd392lrn64r7qlTfPtbtA49ZnmkAujvc1CHvHf2jutA+umdh9v+Lv57Rde7GkvMGO/OHy9ue50/HwT5T/p/vMyJBiELzUSnIEDcmwBesgOHLL8CnIknH6B9sUINcCbjiHhyyK13a5B3dcy7d5Ts+SRbJsgkgnBGKd7FBbLPhyTDFaUQjxCKRuIUeiN6rmGqyDJfaJ5LU46kyIeihB6G0BNOHTfwMEQeanFB5IgTuxIkbfENbqaQCiOQ0NCWKPWkyjqzWjqzZe15rV1Fqr5CVW+Ruq9UN1iuHyo3DIMqDEMc2zjbNlam7WXWKv3zhQn12owGa4bEliI0JXB1vpk1fqmlQekVbzKy/uwfdz4299Xw1N+8HvSf5yJeCkr83Rsh33/+NdA3f/XnL/zgd8/+6PnPf/+3T33rZw9/7psP/dP/uO+JL9/9if9270c+ff99j9537yP3nv7YA/c+ev+9j56+62P33PHQnaceuOvUR8j1DgrkTx/7TO6hjfa732mlUz6WO+//2F33PnTXRx45/dAnP/LIYw9//PGPP/bkY//4z49/9kuPP/P1p5793pNf+u4/fvHbX/nOz7/3i//5r7/6449/++df/OG1n//l3M/e8P2Vb9gvfUP/7S3/3wZFnc8p8S+pCamqj+U1JojkmU2e7KbezKbujMaubFlfdmt/amN3clN3pnwAajFTNZSmG0w3DMUpuqKa3EnqvgwjtSU1qtEVyDP51+uD6w1hdYagWn0Y1wr1GsA2hQscSS3dyS0d2ZqeCuvwT37/Cppwx10fDS3hpqk64pQ90bKeQK4DUzAY/0m6kRT1EJmEEhOdrHMBq3ELwCeRxCgiEwSvkU8GApkCeKcGRB14t0yQXUNQBNAmuCXDgUwWIIeQRgghVAC0QyG14XP+5OrDyWUIEvBqARJzpAvsM0X2mTzbfJ51sdS2yHbOeOav3iT4T+Hy/g79IdCDLcrmBDZcoz7v9n6QdWRcHuEIOX1KgT/1PQli9x47lI4s0X0Y2AfblPVLl3lseyPn1vbtXcpT8cHO254A9F3qozj7ezCXD7b39rf/Lh6f/ILpIW3PU5iPGoDLzu7h+37DiKiPd+H///YfpdF2ybwGVvw+rZt2d3a3aS1AzQ0A5dsAf1rJ7uzS3iIor31KCW4d7v81/N/do+ciwH/KJbb/12v/d/3/xOeZoxv34j9BZu8qLZkOAKjzTB/O+D+aWZgmvR4kYiBRt5qjUjAoyAYesvzq9fl74RrAfr5MCXBGmDiIiF4ghhNJjzBx2hMHEa0UnGRVl2yZI5qCFETcrVAQlP+Hpfet1NClO8jSA0YrGeaoXoF+rNI6UeucZdmny4xj1bapWuccrpWWCZZjhrq1jdXbh+vtQwLXmMgzIXSPI8B3jQrc46K2SbFnQuYZb3YMCg1dbIWzTGLI5sgSy4XR+ZzAlJI3ozL+Epzwsk/4H/5y4ed/eOUbP/ndM//9e5/7Hz/4p69+5/F//vqDjz1zz6P/eOqeh46N8PuOr16gPunovu84wZHTm76959g3ft9xxntpQvgBOjEIzB88decjd9z/6dMPPvHIY59/8p+/8fmvfv8r3/zp9/7tuZ//9qV/f+7V51/yff71sD/6xL4elv4mI9s/pTwyvz6+SprFUxU3WUtaHWl8TbpAW6Zsz2u0JdQqimRurnWUYxqq1Q9wTMPFut58Q2+ZYxTX+CZbQosz3zKQaeiJk7tiWhwxzdS+d4awI5LvieC1MUSdkeLOizWWCzWWYL7Hv97lU2/3FzoDRK6wps44zXCCbpQh7wuVdvgJHBe51gv1Fn+eNYhnCYBUCKARnOcrjaF8d6pyKLmlN1PZU2Ye/MaPf0ctEjz4mXieKlHekaDsj2nuCay1RArc+abpHNNUsqIfEgKQJ4KNAG4h82RcQD4B3YBxAviIT5B1EzAnUE82jkK8vVs6TzpIifuUyD+uXl8oUS5kJwPED7d4hHkHMekJsL+LvNuBvIEj7YDhbJvOtc7lWBaKLfMs60THwuYR/tPwDPS4Tblm9nduby2srfUtzg/Mz8/OLizNLMzNLozNL8zMUoHpuYXxuYUxmmYWlubmF1dW1q5dv7FHXCgE82l0Il8Npd3xlFl75NnYpz84dOxyAWoR/Nnf3zlhnv8V4N0/Ch4cG8Y0t7fT0i72Y+fQ3/qR6u0depUWPQc5OPL47O/uvUO7vKcC7/wA9jur6PUAvW8FDt6b9+RTqptoPxHtFzqGcvJJB2oRhNxDhW4fHNyCHiV7tqg+3N/Ga6NM/f1j19Ue7fnZpfuJbh+1nPGOucbJ3/vv/zxp/BNA9p7w8jr/iWOTLAefnPx+EOfPyW1FRKcQ+SdGFNkvAROIbIHwbvj0qgAAe1CtEWY52eGDKzH1vXutGSIX2Sbkdfh4t0aTVV3iNSKOIzwlGb3bJyKF1AoC5eqht2rTR3gG6a6gTiWUW8Zrjf1FzY48qTWdr02olUeVSwJz63zSqt9KLHs5MvvF4Pg/+oQ/d8bvly+99dMXXv/Rf778vd/96Ru/eP7LP/r1577z06e/9r1nvvytp7/w3z/7zLOPP/X5x/7hnx791D8++Min73/wk3ff//Cpuz9y6o7T73GnvNOzcsedNGLTFvgdD5y64/477rjvrrs/evfpj919+sF77nv4no9+4p6HH7vv40989FNPfuwzz3zq6WeffvZbX/zWD7/+g59/7+fP/ey5F3/ywpv/9rLPz18L+PVboc9dZPxXUPxL4amvMbNfikj9vV/Ma7E5gYV1b6SW/yk650VmXmSlJJGnCikVMlhNJWoPxz5Uax6q0Y+x9RM1holK7Wi5ZqRIOZgn78ts7spo7spXDeaoB8L5pjCeifrKmXYwubUnQzmUrRmjvk0haGOKOsKBtGxrsqQro3WA+paCZixNMcSUdAbWmv1rKf9YKEcfytYG1qgCWMpgjjZcYPZhKX1qVOFimx9Hc75KhZQBLGh8M1PSldDcl9QyENfYQ51+pQ5BdMRgNtfSxZR1M5t7w4QeH5Y1Utie2tqfqx7MV/flt3o++/lvowP/4YvfSZdaMtR98dT+nN4wthW1SpF0pTZ1JTR1xkjaIQBEUInFjlsyVyVufHKcxGvS45a4a8geTsSASHpynsW7d4KsJhOjnUyoyXoBGVNQNMTqILtDkZGoj7+6CuC1/4ku8AaKbNOw//Nh/9uWiq0L1dYJ2P83iA+B9jLfPNi5TX/zbX5qqlGp4hsMIpNZrrfo9OZWg4VnsoiNFqnBIjRZeUYb32hr0FvlRpvaYBVImrqHRmhs2idfkjik5w4ksO0FvkPKVr21ta0zGOu4vKHh4a3tbRjeExNjdRy2Vq3Y3T35RbKDd/zv+N8cOAlZxL/u8bTzBVyb3UAXdfDXVcjxb/doznIE0f39/bz6+m5P+wGs7O3tv5Xt4J2Bv/tRifefF/ydWcMJ5bO0sswXCYRi4dLyIlEdV9cvjw+N3Lh5G71tdjk7urrQ34tTkzevb9IzuJOfLSX2/5E369qNW1NTC7e3yAoDNW3YPXz393/eH/9P7vzxXt8rq96zAB8W/wlzr04BeY+SES8oOdVLcPvEyd8jFQCU9h6rAYB7JwVEFxCfD1kFIHutcUvcO+SYMNlc7eXjU6lBdrIukCDrSVYOZVJaaTxbO5hGfeZxOBPWGuXCHS+1j2cKNb/8z9e++K2ffO7rP/zss9/55FNf/fhnn33o0//t/keevPOjnzl1z8coTD7lXeX0rm/e+dcWN0+diLnjROBOKu+dD5w6/eCpez56+pHH7nv0Mw995qlHPvP0p5/6/Kee/vJnPv/tf/jSD57+xs++9pM/fPvXL/3gudd+/qcLz50JedE39tWQ5DMxOW+llvvlsUOL+aGlAkaVNImrTBNqsyTGfJmtVOUpMQ4UWYZBxZbhEutoiW20yDwMSmp2BdUqmGJznnkkXd0TITT7shSMBmuqqitCZAnjGVIUnRnavjRFT7qsP1M2EC9qZ3CdFPFdUTxXCMcaVm9PlPVmakcTFH1xrd1JqsEERX+ScihDP5GiHvOrtfqwzEEce0CVMbjKxOC6YwTtceKu5JbBeGlPBNflW2kIqIEWtjMElmihJbxeH8LWRIvxNh0BbHUY3xgnawvlGYI5hriG9qh6Z2C1IbzOFs13RfPdUTxnJNfB4Lki6x0RPEeUyB0ldkWJ3cFc+4VqU2RDT1LrUK5mpMIwklQrfwDTqFN3fvsX/5Uta8vWjyUqh+NlfUyxJ5xtDqnSRXNtTPpEiXfjsXfBiJj9ZKs/wJkQ2QJNhPnkxgbiLyL2A7FtECCagmgWMhC8qwNE1xCeJA1Kh94h2b1HLAnmE7vrvV6g4/Xi6QLrVK5lNsdMOSorTaNtcxtH+E+Z5Pu3DrZuUB/x3BucGmtxWJwLs66lxY6Fpa75Jc/8inVxxbq0aFtatIAWl0H2heW2peWe1RWhQW/t67kF83TvYGX92vVbW5fWLm/ubG9sbq6vXRqdnLx6+er+1t7a8urC3NzVK5flLc1JiXFNjQ17e7sH+3uD/d3Fhbk5mSlj4+OAp8npmdu3bx0e7N66dXOP9kRtbFydmhg7pM3c9Vu3piZmtq/durZ2ZWvz5rXNzfaujoyc1KKCtFubq4eUijkAPN7eolTJpbX1xYWl/b19lDMzPYfE+/tb169f2d/f26GcVYfuto7U5IzC3ILhvv5tevfO3OLqzOwiHt+8dvPWjVu3bm/f3oFhvbWytHR5ZWV3e3vj6tUbN29ev36dfFxifHx8dXX15s2bKysrmxtXlxZXZmfnwXn98pXtre2t2zuTE1PLSysH+wd4tLywvEfvSrq2cXV8bAy6D3x29/Zuob47OxvXNm9cv3Vrc+vGlRvbt3aurF+emZnk1rPjY2M63G7K2bW1a9VojIqWtaXF9cuXO7q7WGz28sqy1WK2282XLq9gBrR988bi9Oz1q9TXk3b399Y3roxNToyMDi8tzjqtpsW5KVptkqnYu7//8/7nv4iR7/XGgLx+fnJilzwix74+FJEB4jX+iW3jdf6TLW1kPRfY7vXSeLWAd6Mm+cgD8faQLTpkXZh4eMi6ACCdJKNO4NJ8EB9Ef+eBOI7I+S9yghgjjipdM5qmn8w0jOcbRwrNIAr5c63zefaZMtdEjWfELz7z7juJ5+RuGq69C50ngf2uY9/L/afufvju04/ce/8nH/jopx762Gce+fhTH//0M594/AufePprT33th89+/9ff/NkffvzcK7956cKLF6PeCk30jcsLy2JH5PKCs+rPJlS8GJIVmFnHKJGmsNVJNcpcoTldYInjWxNEzgShI0nsSpa4E0XO1EZPpqwrV9GXq+zLkAM3OmLE7jhpe2Iz0LUnobkrHkjS1MmUeJgNbcSUpS1Yyog9PrhEnWCKpT4X1p6uona8pCj6Yxs7UhX9aaqjg8C0p24ihfZRJNJr5WSDLnHTUbqYPuXKpC1nAB3giyhosrZOfU+DY6beHdscVm8jp6qhsskRP7LyTra+RAocyEh255KXjgDR44G1BrIqhJRQ3AEsA1mvCajRB7D0/tV6YgNQLxfTw1qtX43urUpdSENPomoyUzPKsoyG5bJO3YO3c+o/XvUt0vanqseTdFMx8oF4WXe0yBnM0seLPRl0k+kO6SDeQuJCJLdkyclrnHjdg+gf4pbxrnCRncbeI2PEtqdOoIjcxHwiO4tOHivwbuaBNBJF4H1HZLMQURlkPHoXfN+zNHBk/+daqa8GVVvGPXMbN4/Xfw9o3/zO4dbO4V731HCr29q+OOdZWXEtrzmWLzmW1u1L67bVFfvqkntl2b284lxeta2uWVaXXVdW+FaDsdMD0/PqtcOUtIommT6amajR64pK8oMCL+Zkppfk5s+PTidEMJPiYhwWfUujODk+uiA349rVdRio7S5rfnZaTGSI1eGSKAwpGblulwvoVVpSZLLaltcuFxUX5WUkOYzyy9tbxYLGkryKMVtXVVx6h8Yg5HMbWiXpOckJUYGzY/0UtF69UVFWo9OYlhdXohnxmek5He09WrUxOTG9KD9/fWlcKRPOz0zt0/6UFoUhMSErJDAsNjzSbTatrV1Jzi5PSS9y27p4LL68STE5PWd1uWUtsrz09MTw0IHOzrKyMofDweVyL1++7PF4oqOjk5KS+Hx+VFSUpEFSUV5dzxHMzy4V5JV0dfT29QzmZOUX5Jc67W0B/iGlhWXzE1O3N68JOHXJcfECPt9sNrs8bVaXc2BsVCpvbWpUCFiNQpZkqHuotbFZIWuqLi9mRoULOPV4T1eWrohqalamhrjVZSatGo1NSU93d3Vy+NyYhOjMvNQrG4sug64kNdOoUG/d3N7a3WXzeK+/9UZpaf7YcPdwv9tllP+t6cvftf9PrsYeGf+0n9+7KejI+f/BvvnwLvz3fvPhvacJyIYKADIB7ffiv9e9T8AHKEF2eJJhiCvwHDACYMF4IXs4yYYKcKMcR5gmVGl9aPc+2fZPjvOTEUpVzDiVYZzOMiI8XGwdLbVPZ8NIs81nWybzDP0lxo7fvnYe8H7n6Qcf/+LXn/7at5/++vef/ZeffO07P//GD3717Z/87ru/+v0Pfv3nH/3m1R///uzP/+jzm78Ev+gbfzYqxz+hJCKzJqFYiBGTKzQVNrsLGl24FsnacC1uaS9t7SiVdxS3eMpVfQClcvNomWkkU9YeU6/PkXeW6gcrreN5yp4CdW9Wa3earDtL0Z/c1BHf4I4Xuxk8a4zAHityxoldTAGMZ6qZFyuOJjXkBDS1aF5rPF+uIifmyBcDyOYWci4pm/JIT2Rpjw7fkRkZ+jCppY+2SAeTZJQ3jCz9oDMRJhBN1twJ0MVJO1FiAP1vtVCeOnqbll+Vjt5G6/aj4Z28O7IBnmzT8jruyIE7r0InNSdnaU/gv5HgP9EdxGtHdgjjSlaCgjm4Up9xDuHo/Wt15zBNkPan6GbyDJNVxsE3wpPJPOv1kESWbSpVPRavHmc090Q3tkcL7eF1psTG7kzY2/SpLuLnIZY86S6yBYgc7CVagBw/RwBSRNCYyDM5wwJCXnQp8e2TU+e4EvcOOTVGnDwnD1F614uJK8l7goAQqRKZFJA9GF4iBlW+eSKftv9zLQsl1oUa26Rn/m38p9w2+2QD5uHE2LjJ7hyaXepfvNSxeKltcd29eMW9cKV96VLX0krv4mr/4lrPwqXOpXXP0qXetfVmo8Xd0XFIfYHz8OxZRkUlPyomoaikJDsnIyc7lcupyUpJ63F1pscli3h1/PraitLCoYFeNqviyuXVWzeuFhfkGPVqi0knV+kuBjPFUplKpVhdmqupriosLjXbXFweb6ivsyAjrn925s8Xg7Ry44CpLeb1i8amloK8nKTMZHenXdXEH+lph5nd2dFdkF8slTTLmuUZ6dkup6eOw8vLLbRaHbnZWS6zUsSrnpoYpUz0qzeZ8ZkjoyiIc+blV0wKhUatUxhcRnM7nyMpzS3n1fIHhkZ5InFhUVG725UUGWlUqRMTE8vLyxkMRmdn5+DgIBRBampqZWUltEBdXR2HzZW3qnu6+xMTUtyu9tmZBZVSiwoo5OqU5HRFi3Kwu29pZtao1izOzvn7+YnFYrvLpTUZ+0dH6hvEpaXVFXk1RZnlve297Kqq5Hhmk1TY291ZX8vBW1qaWaopKVmfHRPXVV/b3Ojp6UYnN8vlElnT2MxYq6pJrpCUZmcrRRIei31j88bewcHg2FgFq8rlsmKeNz7cqZOLyS7UD4n/b2/v9zr/vSu/3nnByd0OH4pOHvL1OpS87iBwxjgiJ+WJ2/+9+E8mxWQLKNm6T0YigSDyUSAMMaI7iF+InPNFmAAF0mP4kB0XRA29Pbsxz+TZFgrtc6X2qRL7WJFlIhOIZwBKDGYoOwrUzq/99Dew/B/+9GcDs0syGjXxQkUspyWxTp7MU6aKNamNhjSpLaPBnSX1pAgd8XWmZL49RUARAgn15uhaQ0CpMpRljKg1h/8v7t4Duq3tPBPltX1tx07iOJPYmUkySSZjZ1YSz6SuTJKXzHiWM8lLmUyaZ+KaZ/tedYkSiyj2TrGKvXcS7GABQIBoBEGAFey9k6IKJbGIneh8/z4fsHVEqlzHfi/2QGdBIHBwzsY++3x///5Sg3+x3q9IF1BqCPC+Dqvti2gZjGwbSuiYSOiYpC1RPRWrGL2rnoxvH4uWj/hVdvpXdobW9/pX6G8Ud/hXdN4q0/qWqAOqDH4V+pulmsBqI8IccHMBRQHIIDVC+rrYXcyNPlwRfETwBd8ac50JlRF0QKis9CbBEX2K+gjMPPOetY7S/CN7il4ggxdlevQnMqlg3OHCof4CVwe2GzJ4ofNDwyf5gmsqxn/YDviNMDGwG1aCEDYaJPMnrKnfX2K8UtYV3DYdT/ivWyzUT/7ZVy8K8P/RK1HpRd3L8Wqm/99pGbnTOBBS3xNcY06QT8UImj8c/hB58PwAb2lmUEWIjGh6nwZGO8D/QzsgyV9sscIUgkMSMSmYYDgsTyJK1S6eEQS4O2CGc9cTvus14jz5SCglgzRhxeOsT9liom41Xb9aYJgfuL/zIv+HhRGF5l7O09XZ1W7jwOzak8lHW0MPtwn8ex7tmB89H3y0NfZoc+LB1tT69sT6zujD58MPtyefPG/TmQYGR04ZtebptevhRaW1Xea+7LzczMx7stam3MyM1IS7E4OjftdulpcUNhH+FuS0ShsKcjP297adDltZcX5lWVF1RYm8XROXlh8Tn1SQn9drMgz0 VbX1JdWSKqqquUtjZKSrKWNx9dCotOTs2XFkqiLvt3tHfl5OUkZyXVSSWl++vL0mPXE2lAv7VBpdVqDql0TFhrZ2NCskKtKisurq2rjYqJnxvvzclI0apXN4Tw8caSk50tblCnJ9y5fuJB7L81k6imrbW1oUipaNLn38iJDojQ6g7xDVVBYWF8juXP9ukLa3NjYGB4enpOTo1AoHj9+TJgfGRlJfwYFBTU01BcVliYlphq7zHRqgn2NWp+TnU+SqLVFfvnStZamFo28fX1puaWhUdHWFh0VRUcrr6oqqaygUSakpVZU1BH+Z9zNkTW2Zaam5Wdn5WbdkzVL66tqGP6vPy7Py3u8NFOQmbqyOJ+VmdnT11dQVJyUliJtayoszTP36KsKCypzC2JCIna3nlutTqvT+ejJRkVF8erSzNzEoFEj++fhP9fPufOfR2nFZb//DOU/00v7wJX/M9Vk9AzFj2dy4vYR+3+Qq4ndBP7DF9FhOPnB/AbuCDgH4FWAKxVWBhIwuAOK+1EzutdTDGspZOOoJ2NlA8ENPUGNg0HSkYiWoVTVcEa7+Sd+6Vdp9n75C7+T1qaNadUH1qgDqjW3JbqAGv1NieZKteoq6xRGiqj5RknXpTwNPQdK+m5L+oNqBwKqeq8VdV4pNgbUDPlJLNfLzJeLjFdLTX6SwVtVA9fKeq6V9oS1TIbJx2/W9YTKx+L1C4ldy3G6+Yj2iXjdfEr36l3Dkn9dT2CNicYjdEs00Au/Ktachd70rzbeLNcH1/ehkJkwE7o0CuUIrwC8yDnhfmOxCOCMB5xhgJdUgBmJ5orQBjKUe364mIZ/A2chNAZEw8ODGrpb8P9UdEE20Q40TsgL1GLwgm6O/7DdXqn/g9lJ8OPpUabhTRJmkYjgOpILRtL/LxbrQtqmEjQrqR2zRfrxX/jtP/bx+dBHP/mT/illuYaFBPVStHaFdZRu7Atr6A1vGEhWzccrpmghIf+HpgK+LEJarFiCWTC5wXtDK4pe09Ki17k9D+mZvojZgDPfo5nUssKuS/kqEog0CVD+ER3gWj0wnOv2XBbzkBl9hCACDDfYI/ARvbQpxmLbx6Pap6Pb55D/37e2/RL+uzzx0dn51Q7T4Mj6U4vg+TE+3jJssM20sdm3sTkoCIXBh9t9j3d6Hm9bnu3Ud3Z3W4ZZkZHt9MLFgIysoud7B4XFRdExER0disK83P7unrHBka9++R/lrc33V5f6zMaK0qJ2Wav1mMUfVpcXGuok9M7iyv2+kZlKSd3ayuL9lfmdrc2hkXHL6JRKramvqby/MGE9dRmHJqpKa/bXnoZdvjHabR4eskzMTZRXlzbXV+4+eXB8dNxj7n/44PHy0sqTx89aW2SS6tq11fWF+aWK8iq9Vms9eq5RyVTKdlY55T4dnZivkjTU1dYrFfKaitJBy3CTXFtaWreycH9sYKy8qLyusWn14cPe/v7KslK/ixfHBy3zc3Nqtbqvr29sbGxjY6OsrKy8vFypVH75y18mc6CluVUua9/eet5l6K6tqTd195SVVmo1nTSMv/2bv1cplKo22ebjjb5uU0Vp6UB/v2VoqLS8vKq2ViprKywvm5paGOmb0sg7q8uqG2pqV5YWVQpZQW7OiMVC1+Xw+WFLbZ1R3R4THtxn6tZ2qDY3n42Nj1VWV5ZXllXXVFhtRytzs5LissmRcbqqdrtzbmn14ePH+fk55aUFU2P9k8N9rws7v9n/A3yGIgHnP9AenklxOPiD53zyTew+gpIjDijQM/RA1G1xVisx/vM3oV4C2CERsBu9+X6OAn5gHIruEahqXLRxX5bYa8oCE/rlOPVCVNt4cH33zYqOy0XtF4s0l0sNwQ19mZrxjBbDu5/6GUKP//T7/zVbZQ6oar9epblRbfCrNd+WDga2Dt5o6fdjnXCH/OsHr1eaLpV03pT0kfgIahoJaRm73Th8tdx0ucwU0DDqXz9ytaL3Spn5pmTwTvNkYMPoNfZnT1jbdLh88hqhLsELKZOm9UjldBjZ+zRvxrVEw0qQdChYaolWTPhJTNfLO8NbRgJIiy7vDKztvVVlvEoqscQUIhSvgbCUFzLTawTHUW0t9jPwqCIEAVCOYASGGOCLYJYmmcsF5Fah2hpGGTbAOFz6nAkTsM8EsQDv+DqhOgrr+P64XrjKtNt5/R/DgP6PeAFkDcAfsp72vFKovVJELzSXCxQX8hSE/8Etk4Tz9zQzxZrhT/zkz/l86OOf/uwvheY25HQuxnUsRLTP0qwG1HQHSYzBkp44GaE9c44RzAKN4f9BhidP1ER6GD6F9s7LeHkdLtKkgfO0P2QxDRg+N67M07xxZZ5vCCjwa8QLc6CD0enAI4ojwATAiYD/0fLRcNlEhGw6VjaVKhvqW93y4r8TfR/R2N2ytNza1z+48WTg2dOep8/MT5+ZaHv2rHvzqenZ076nz/qfbPY+2TI93TY+2+zb2arqNuhGLPR1u/P04qVbbTKV0+WSK+QXLr53dHSwv79vPbYe7R3MTc10deqnpyacDsfhwcHx0aHDbnM47HT6o8MD2kj47Nud+4dHbqfNbjsi08Bqd5w4XPtHx8eHu6eOI7JOdo7tR4cnbpszPTre0m02dnXuHe4eHO4eHWyzVjZOJ5kAQl0AOza9Ptg/ZMW27tOjwyNG9c+OfLx/sM+ObGd0E1s7ezYCSof9+HDv6ORk12rf2z8iOXhycHy8f0yDOXHSbo7tp8/uRkYesQiyyyY80JB3b2/vQHig/Qqd5eT4xO1y0zO9Jnm0vbV9eHD4ZOPJxPiE9cR2cnTMhnBi3d3ZQQ+Xw6Oj5/v7h1brwcnJ/MJKt77/8PnJwe4h7UlC2XZyvLe3a7dZXUJp1+r8Qmtj/cTw4O7Otv3k2OVyWq3H+/t7+we7dHJWLWaz7W0/t1ttLqEV5NLKWnhk5JWrl8fHhoYGzEcHO/8M/EdVIxYS/JbQmQHUYgro70rn53UxtHqx8uFkhvLPeeRAjUJ3OiCdh3d5JgbHf7A0o0AYEMHJFeFGoK/QfcGjbIhWQLM9L5Lg6WXeksru9/LU10v0/pW6wFr97QbTrbreS6UGv0pDevtQZEHDh9/9lI/PO7//f/9dvqovsLLDv850p2kkuIkhfGDzsH/zUKDUQibDHdJUq7ovk8YrMYeQbCLQJoFFOFZuuFSkDZYOBzUN+dX0XintpOc7TQTpw9cqum7V9MTRfa2c8a82kwzKMj2gK5KgnI1oGc02P6TtnmE1VDrkX2tOUM/erDL6VnaFNg/dqu6+WqoLqO3xvBDCi3CqsARXSY/Yiw4fzhnkP1NSBKIbuvrwF4FPj6CYppHeh4MO0I3rwp1v8ISTfkv7g3CJR2P5n3Dd0Gv4/y/mKQH7CAFDZsG7Dg2fLi5tAheTmRPxIXcLP+cF6aV3C2m03Km3hLGQdPe1Es218q5IxWxCx3xB12Jag/ZjP/JpH5+PfObf/2ZUiTxLtxCnWojpmA9tGQ6QGAn//StYmxi/SpZCRqsC6xAVvrz+l7vr4flhiaBaT6o/VjgWPAK+iAvQ12naMWxEcl+htJ/b4NXB3YGrxvklEBrgmI8XECJCleJkvGoyUjEVLpuOk02lKUZ6VjYPvfq/2+0k7Xr/1LV76u5fmpNolIaZie6Fme75afP8dO/cDG2di9PahWnD/Ixhbq5zbl47P6demjOszpe3t/SM9AnVVB66G7gYnM6zXdSFrlwv3mR1Vw6Q1bAKAQdPFvXmLnotEjzshO82l7fy18G6GBKCOtzCzm67UMWG476cAypOzhfORWN0uNxMHrj4aNlOdHxvNcKL0l27N5H1u+hw/4F3PDNAVvJlIxnmOTfjdvC6a1h1tcDu4JkuVinm8KS7evcRKgZc/KAoxzu2kvSwC1/ET/nu4r/pxvvwdsKpCCUEEVIoHtwcyDC8oib9dQ5/6EW85hdrGz4lBv7CMoYqhRvc43MWgAVQwMO+3NsDTAB68Ox9eDm4Wc2D1HCocno6blNDNwMQQYG8XKC+XKij2z+43hTc2B3U1BvQOHCtovt2dXdOx+iN+Nx33vkk6f9f/OuvZreZ/cvUNytNARLLbbYNBpCBX9tH4BxQa7xdZ/Kt0F8t6bhZ2elX3eVf3RVYY/Sr7rxaTMdXhjb1k0ERIGHoRM+hTYzz82aFPrCm+27HVGL7VFCVOa51PNe4ntN1P1ExHS0dyet+QFtW52p4I2mqPQkdczcru30rjCFNQ7eqTFdL9AE1vXiBsjWO/zSZZ6Kob8V/bDSTiOTSC3j1YbLRMQnEkJyDJEnx1cHpkC2JKcUFChK6IaD4Ao47+P+h/yPdF+m43MrjsM9jPTAuwPuBam7YEWJnO4sdNwwC/+/UmW9W6v0kPVHtM7TMcnXTMaVN7/4ISfCPf+73/iypzpihXYxun49SzYW2DPlLyErqCqw2x7RNsXZmAvZCwQaTJwAffyIuQMuYzhuvnIJFibRM6EgwlmlnkiBg+KFnaCn0jkdLf9smdvLzaC+WdIaodwanKsLG1n/7RGz7eKR8kvT/ePn0vZfxn8GK24lS0vsb65ouvVKnUWk1aq1Gq9Ho1VqDWqvUqdv0aoVO067VKrT6Fq2upVMnN2iVHYr1pTlmRLg59rwR7oR62xfkDwLrgtV6ggouoTAJoQiG7HbhTRCf2VkzL0JFh5dax+3ZCLptxwK+veXBlHYG/gz/7S7Gt+PyCBOH8POFCiuR+HAK47Cfemuq/r95vDgh+3VOlzAsRujDGI1Y+qrAZkcfsHxYT4dfVk1tP325aE7ENuEVCy4SHEJnZlab8VqKjNPX4X/3WnrXGrKU+fKDdUnrGUmb8E/ywsbvCv954QDsYsAyEn6waOm+QH4msjfF2j53AUEccNcBfAvIMPQkcKroTp/lPNVnPBs4KSp6QMMlpMp0kByBJ+F6aadveXcI8ykNRrT1h7QM+DcO+FazxvHFuqm/vxDEEjvf+ZG//Prl5Maua4Wqi4X6K8XdNwpNvkVdviwXUedbqrlBsF/Gnq8UtPuWqm8Ud9Cb/gRE5bqrhe1Xi5Th0v6wRuadvlGqpuewpr6I5oFbFTrSVxM7pu4qJu9UmhLaxvMI/w2rifLJqEZLfvd6PuG/fjm8wUJQn6ie96siEWMMbrTQi2sE+zW93hc9YmprJEQBqOGxEXsVzuM/5oouFjz5qJVDZTSQB555rofzGA2yYmCU0elwjbAB/1GjDX8UOJeA8CBZAkk+9/8grA+HFX2RrjX6+MB/joo/ump4ExIEbiXa37+6J0BCA+gNlBhvVugC63qiFNOpuoV8w4xfWtGHP/5jPj6f/L/+5r2c9vF07VJcx2K0ajZYOuBX1elf1Rlc25/YsXhXOct1Eu788ZYBzsGAhc/f0wKgfRpRFZpDaDhIsoW+xPQo1TSIPWmt8pjvB0F+cZgYdx+sD54ghIsC3ymPDsQpxqPloxGC/4f0/1T5cM/yS/jPsoAIUsCwQ+om06xBneYGCrsYYApUAgxI3CcO17GDkVMyocEoKW1na0rP4xv+FBGmoQyYkTgI53F4YAygy3DL5sH/UyYU2NlPbTYa2anNK0FcjESCMcEx/re3IS3BPg3YLvCICl8jKeBg7Dnsx5Mc8ooQEf7bvq/4/xYiIAHurSc2p5dBTmAoctsdVieklgslvy6XnRVYnzLSDCcHfJHV8qJoGZ2dX02tJHq8Dv/vEdp4ixmxyGkZg8YWWI1FCHOYBw3fiv/czy+ui8zw9lfCrUSng1MXrhsEc3nAF2iAjRAGmICAIPQxfhdw7Yi7THnFMcaPKgBgEaAJoVI6mpCOQsDC0vOCG0xBDUb/uu7rEhPp/6G1PRWG2d//86+xbP8P/9jfXr4d02C4Xq6/XG72rRgMqBi4U9kbXN19p6YzuMZ4m70wh9T2BknYM70Oru0Jo8HX9voT9BVrmCxrIvTr8S3T35aw3MhwqUUQfD1JNEj5REBVd5xsPMfEWozFtI2GNvRnd9/PNa3f0y+F1g/clvQmaxYCqln/weB6mrRuGvbtml7/KlKJ9fDJcyJT+EmQG0Pv0PNb8T/H/ICmEVRIdwT3C2Ac8wmWPNhcdDT45TgvKzxF4Gi6InA0YYOoFRsCUPh54Ta/HJDyIHFCpQbQHpmiAHzsD+nPSzlwUhYFKKWvsKDAjTLNlWLlrSpDdPvUPd1CcdfMd8IT33n3R3w+/Km/uxhepJu7p12+q12LbJ+53UDSU+tXoQ9tsCR2LEc0j8JLgxXFGB6ESCtS7vEn/V76iOYKEgE2Mv3J/UK0DzQfxv/fNgrjhZ4/uObPVaMzcQEYYriDeA4b55QQpMAki/8qpiIVtJymUmSWl/FfyP8UNM/jI/uDx1trj3fuPz1ceXq4/PRo6cnx0sbx0rPDlc39+0/3Hzw5oI+WnhwsbR4tP9l/9GT3eN96anOJ2NleeryBLQcYDvxnCq4HZ20c/61uJgI8YMxGyIDs2MEIEGzMIGAeI+ZFcjntbtebS2uFU7DN4aXcBH+R3WWzEcQKmrLDwy4Bs4JhqxV1xaffH/x/M2scI9DA4Nyn+3sHTgfEIxO8sFeY4HOcCrVrjLGVXTiXXcyJ8aJKWkRawSwzJ/s9zte7sN6A/3dV03ylYc0jsMWb3+GmAFB8kPxP7vznxClII6cjcEZcnA4WPcq+kOTDcztBigsnD6ghQJ+Le0Hs3oFhwhV+uGFxP8LDzBRFIREUPmrwfJJWCQC5kNN+KU99o0TnW665UaG6WqG9UKK9VKwPkZhquhe/8Ht/yuq8Pv4T/zsgNqKx62at6VrtYGDDeGjDWGTDcEzTQGxzb1TzYEiDJaxxOLJ5NLyJPbNNSnAxwrC6ovtKkTakcYj09gBJ77WSTv9q8536gdCmId/yrtukfKrno2VjDLLko1km1o4wonUoqL4nU6joT9Gz/KggoQ19YFXPrTJjSN2gf4XpRnEnvRlQaWYval7gP/eTcPwniOZlpG/Q/+nSIHU2QPDVI9MGVSFIvkW1NfJ2UGoH8GdkrUVaaPjg6CPExvSiH+Itr1MIIhiQjips+IJw3WGdib+IDd9FZx8UUoG7CVmg2Mg+8qvuDZCYhD47msA6cxzTw6dyOkb+/mqgz4c/6vPJz34rJKvEsJRMqr5uOYR1auj2q9Qx/G+03FUuRraMQZEGusIiBl0nUiPwJ3wysBFgFBP+09qGex/hM+6lB/7TgM+Hes9vPJIL5R/voI8MmhFjqSP1iNspMHvTOpfS9AvJurkE7WKceolsmVT50Dn9n7mWCU0mVzZKWnUFClO6vCdF1pcgG4iTWeJkg8mKngyFKVtmpi1L1nNP3pssM2e0m9MblH2TSw6x8inGtFfR+hCsnZyctLa2qlSqsTHW+cvpdHqB0cWdLrAEbO5T7uAGvf+x07G1v98oleo0muW5OZfTaXcyifAWvxOBuYPJlJX1By1tsnaVam5hjlRsh9tO+C84fxwvU0y4MZS388p9N483UgDRUGz0sU6jk7XKhi3DdqsNJKUWS9/Gk4ckH5/vHXUZTTvb20f7u2sLs6f2E47/XA54pJWwra88XF995ALz0gfFfwJnQuOVDONqso6W7ksLD4FauG7EZDi89vCVAML/5Mo/18DhpeF5dHydo8ciz/yBSokMc2A+ZwSCScJ9+zx7nzv2ofDDW4X+LyCRhn8AZcJge0CIgU56MU95s8wgBBy1vqVdQZLe27XdfpLOq5X690u0F4u1cc2Wcv34f/iN36ep+/i/+vkLMdnhtayxS0DT0G3SV6Us2zyy0RLRaAlvGkJL7nDpsNCJeziyZZQ2eiFkLZroFOw1mSF1/TfYSUn/txD+32S58ZZk7UKMfNyvykjP9FtS9YthUktwQz/j+zWv060N10qKZoHU/quFGv/K7ptlXXRMgv2AKvN15v838244yNKEVBXjv5g3jMtxfh2h04JhG54fUO1hMnmZFYvnFnkqsHA6NL1Fpiic9hAT9HU84zjeKq0uZOoC9jm8c4sPDH4c/3EK5BThT3HaD9x3gv1ovCUx35IwQXCnuse/vCukeShOO5Oom7yn6Pkvf/MVn3fe/fjPfP5qen2Ofi5ZPZvcuRTaOhxAl7LaTJc+pG44pnUmRjYB1RroCn8+7+QFYKdppLsjrNECBYlrRJz/H6sdFV50y9Ds0WTCUSnO4efZQWK58MoMf3yRtwzIErrAiI8AU50WSYpuLkk7m6RfTtKvpemWc7RTvS/n/7AqYCeDx965B7ESTVzbcGT7dIhijrYwxVy4YiZIOXNHOR3RPs3eb5/1U85fbZ++rZrwLW5T9k8Rph3bHdu7u0+ePH329Jn96OR472B3e5eUWIfrdPfgcGd3n051cnDI3Nku17HD3mOxlFZWZufk2FnWys7R4QGjIHLZXI4Tl/3E5bDtbO3s7x8TaFmt9idPt1x2UtWt7N+xdW93v8dk7tJpmutrjo8OaPhHhyd2Fg9mUeHd3V3ryYnTajvY29/b3iZ54zg+YYk3jDnTvfH8ee/wcG5hYY1EYj2mM7ptx0ebm8+Ojw9dx/tOh81xbHXZmJPo4Phkc+/giL5otzocJ0K3GjvjatjdPTg4YD1frNajIxZJ3t7etrMYhuvQaj+xOY8PTrY3t50sx8ixu0ODsdL3rU7nJvtFhyxB6MR2dHhsF9hQrSd22mxWOrqd8Xgen0yNTw4PWuqrJQ/vr5+youa9ovy8Rw/W9/aeH5+clJQWGQy6rWcbbc3Sxw8esJQnGuru4c72niDKBUccXUwbDfnkwepSd5fG7bQKIYPXWkhn8B/6f3rXSpJmQax4YO0hUZ/XIcIEwJIGAvM0fv46w9ulDto4J0VBXhyP/GJJQ9FCDxdv+T/T5TjsQ7dklojKQxBHQ8VdBoLEvN5H9Jzp5ddF9Q1vxg13ASj9oVsiOolYIdIOkSEfVNvnW2YIrO6NaBoOlw6ESPv963uvVZsvl3UmykdyFeZ/96u/SVP32V/+wu3M6tAqfQCJEgLnloGwVjryAH2LDIHQhmFxkpK3g/ALnZbACtVDyGbnIomGAQ8DjZ/ejBUav9Ivgj8Ebhn6FPhP88B7XAI8cRCkxIjxH6o4UqTAfYp5E/PGiO04xDFpGiGLkb4OmUKXCRV2oNSD6xtZiNz5j5gsfYr8f3ofmYp8JNx7g2kniQD9n4M5j+dyTxFKz+D941oB9H+oB5AmEEnXS7RXyvSXWEVAl3+Z8VqB9jbpDJqpJMPEXanm87/5hz4+H/o3X/ijkJrOjM6ZRNV4im42vGXIr9rsX917q7wnvGE8ooGW/SRXV4D2vBQX2jj0DXqBMgEEm6CNgKsNTXt5uDZTyAuF8gPJgvgybwHGM+5e5HCKDAG+IegA/w9qzfhHvEJNGPl0nHIirmMuXr2UrF7MUk+ew3/CDcaAaZp/HFZjDJHP3JQvX5Ot+spW/WXLt2WL1+XL1+UrgbLlINnSTdnKe/K1f5KvXFcu3ChW6QdmCEMmphf/4L/8yXvfuRQVFtnRIkuMiAq46rswM7+6+ig0+m5kVMLK7HxSbJzNbifEPHE6skqK//xv/mdEVNT0+HhCRGRyZMTezpPp0cGsxPjdp09MnZ1XLlzKSMscHZ2sKK+7eevOYH/v/OxUcW5hZWHFxOB4WkKi79WLhXmZxwfP6UdE3ok0dpscbrdSpbp48WJiXPzezvO4sPCb713o0+r1rTK9XOEku8PpuL+1GZ2a8uWvfy0kKKg8N3977YFS2vKtb3wzJyWxpSi3s7lpxjKyMrv64MFWSFj8V7/xncqq6pyc9BpJiUzR1tjcLG9v/8Y//dOly5fr6+tlMllMVFRhfn6gn1+7TD69sJqWU7y4/DA+OunSNy+0SZrqSqq+9vf/WFdbT1JsYmb26hVf/1u3le2akuLyyYnp6sq6ibHpnOyC9HvZep1Rq9KODgx2yOS1lVV+128EBwQuzc7RxPZ0GbPS7i3MzMTHRT3aWC0pK4iLj97Z2brhe/399y7U1tQ/evg4OiLhblzS2sr8qfuY5TG5TyXlFXp1u8263a6oe/584xx/3mvxX1hIy1kmht53O+bO2KHiVhdihyTPOvPUG3qbdvEEUV6ZDqCGq58r/9ybhIMAZKBqwrfMW71A2wf5DA8ic3ULkMiPj1543DtN+MAbBADteRNJZCECNKA9CrBG+KkLrO4jHT6sqT+sZTCkdcS3tu9ahTFVOZ7eqPv5z32Bpu7zv/VHcRXyoAptUONAgNQSJO0Lae4Na+oLIzWe8L9x5Ew6Iu84CT8JVFzgP/zbqJMiGAT+0zONimYbzmQYKZwuEr4OmmT+E+BgBywDflGuxfEfL/ApHZxXFYm9c1mi3uL0gq4OHZwmn17TuWAuwc+GP2kMdJXBdQOpQZeAhoqZx9hoJHRRSDqDQhkBX2+HBS08/+L6L+T/gJcDpWT06aV8Fe/aw68dv5Teat8BUEZgEvxre65VMoqhwHLT9SJ9iNQSp5lK1o+FVzR/5t/+io/PO//xi3+bqBhK75y5qxxP1EyHtbAcKr8qsgoH7yoWEuTzMbJJqCVscSqnxPn8kHq88zsaVfPyW86RxS1fcfY+7xHJiUDFHYQRveW0cjC3eRiOmwzQoHCx4NvkJgNEg2D5TkbJRiLlk5HymXjFdJp8uHflZfwXUh1PTk87FzaCao0B8pmriuUL8rWL8rUr8tUb8uUbstWAtrXQ1pXwtqXbbSvXZWuX21aCFAuBhSpT/wwdxmazN7UpLRbmzzGqtbmpaQ1VkuYGaV19S1Z+WWFxuaK5JTIkhHWjPT2dXV3xDw0xWyzRsTFF+fmS0rK74aGDXZpOReu9+BijpiM9KWlpbkGl6MjIyL1zJ7JZqlDI2+amxvMycgqzChuqGjJS0qxHe4X5DP9nxqdSE+5Jqmv2Dw+TU1P7+/uz0zPM+s5eQ9eA0VSakdVSWd0ubaaBHdqsdW2t2WUl2m5jZFhYbkraVP+gsqX16PCwoiAv9tY1dUPdRN/g/NSCWm3MyS+tqmlITEouKy/KSk+qllQWlpZ0aDRVNTV+fn5VVVUqlaqyvDwhLq5VKi0pLOruH07LKRkZm6kqk3SpDO31rWU5ReUFpe0KpdXpapErZmYW2lrkyUlppSUVU5MzFeWS0ZGJ1JT0tNSMTr2xqaFpcni0orgk9HbQzuZWc33D+DArrCZDoLKkdOPBQ02HYmf3ibJDlpWd3q6UyxWyudn5utrGxoaWu/GpTQ0tnTrl6anVJTCppqekqRStZJZJpRUrK7MM5T+Y/8eD/92s9y7jSH8Z/3nmG9D1dZ5J/iaXC7ySkSs5WM/IhUbVvNjghW8BYMWz93F2bkrwgAK3OMB5QgdHjgp3KfPSJGiM4gwioAR6isGNDGUSodIrhZqrxQb/SpNfZaefpOtWbc+l8i7fym5WKFrW9plf/A80db/xxb9KrtcFlHYEN1mCWoZvN/aHSHvDpCQ1CO3HQptGzuj/nNAA+j+SapDgyjt3I62RQIDQkmaDhgf8p18HmwVVunQh4OKmacTRgP/gT0A4lXMsnMF/iFcEJbO8DQTBV8aDJviTjCmaeVR+0Uc0vXjNWehBDUEDo+Fx+4veB3E30rHAtkRTjQA9amYxYC9jm55Hh0HZCg85aop5KTEcRMjzF3eC5rAPC4sTdTL7Tmq53UB7WoJq+m6VGaNZM+XZdN349bSiT33mF0j//4O/+nqqajxdN5uinU5UT4c1D/tLem5WdN+WDKSqVzL097GSgef0qwnkgcDIfKBn/EnvI1aCalzaH1KVV83Ta5ocLmq5OHhB1OyVDmckAoSCOKsHoocXY/Jc01fif7xyAvVf4W1TsbLJ1PP472aZMAenp9qFjYA6o59i5lL78rcVa99S3H9PsXpBsXq17f6t1vuE/HdkS/6ylWtyemf5jmIhoEjJ9H/36YndtX9kLympfHT/4VBPb356RkxYeH1NfbdpIC0zPz4hRdna5nvt2vzCAun/T3d2CP+LqypDw8NbpNKCrOzgW77atmZ5Q83kYJ+iRXovKUnRJmuob6qtbUpOyczMyK2qLJueGM25l1VeUK5qVSXHxZuN+sx7SccHO3qVuq+rX6fTrz98WFZeTsh8Nz5+emycILSysKi2pEzV1JwaF7+9ve12uzXm7tT83KzCgqCAgKTIaL1M0Vxb12s256SlJAYHJEeE1VdWLcwuDlsm7iZlxsYnhYaFabXKgpz0+ISYptbWdpWqtr7+lp+fVCotpkdhYU5WFj1npqUPjkwGhsW0yTvuBIQ21zZ1tmvT41PS7iYnJyY/efZMpdHIZMqC/OKC/JKY6PjW nlkRAyhd1RkbPq9rI4OXUpSSnVZeVNtXUx4hKZdmZuROT7E8J9+RUle/tToWENdzeBwr7nXMDQycP3G1cyszIb6xoz07B7TQHxsclZGbqde6XQeEc47bPbSgiKlvNXtOpLJah4+WGQo//oMKY7/GWwjbXCF9P8U3UKsYkrscoTli5UJK55vYgfR2drDl9MYuMsIaxh4fiZjGXtCSUYCP2+KytNHeTSBZyIBZLhvnzDkjuDlQJAXSemcL4JXJ6F2CZ5keMXhd4IufbVIe7lQf5O1aNRcL9deLtN/p1Bzq9pcYFjwTyn5sZ/+eZ93PvaHf/PNlKZu30KVb5XZt6bnVo0psMYYXNvNApF1JF8s58EfA0B5LPIV0c4YPYsB2rTRLLHCq/ZJ+pQmJLt7nSYK3wVc0OwheEG3ORIsUTMFE4ZTm57Bf2TdILuSwyaQE90MOZsTlwI0w4iw07TTM+1MKwGaPFxthHiQYryDCW2ozxUJUzWSdniHBe7DR/Cdjwp0QEgHhfjA1IEJEN455BfxCyrmBuE5SPARMbnf0B/WNBRY3Xut1BDLFOaZ3M7Jf/CN+PAnf9rH58N/8pXLOYb5e9qZVO1sgmr6TuMg6f/Xy7uuFOrv1AyE1g/dqesHwwPWIcKsIu/KLC8wgeHDo8NiUxeJ03AcgdgKB+Rkzpz8lldTnuHzF0uHDFFnMbFDVXwH4f5K1s7HtY/HKMYI/8NaJ2PbXoX/QlI+4b9+YSO4zhCkmL7evnhRsfK+YlXYVsgWuCRbu06GgGLxqmLpQvvy+/IFf+XstVKFbGiKDIcTx+n+ka2mtqG5Ufrs0aPS/Lyi3Lydze0nz3bKqurKKyQ7T562NDa1yWT7x8c2l8vQ2xOVEN/c2rq+dr+5rr5JUr27uTE9Ytl/vj0+NETonZ6WJm1q3t3d7zEPpKZkrK4uLcxNZ6dndaq7njx4Kmtuycm6p1K2HB4+nxgZ39vaX1lZffT48djYWE5OjkqpdNkdtZVVRTm560vLi1PTuffS+3p6CAE3drabVO3xKcny1tbm6hp5XYNG3h7JIFc+1KUrTL9XmJW9v7u/t3tcXlX/re9cjIiMXFyYtQz2kL7dP2QZsFjKKyuTU1KGh4eDg4NTk5NJduRmZY0ODT/d3isorZa3a5obW1Pvpqplysvffj/sTkh2ZmZnp2Fzezv9XmZVZfXy0mqNpC47K6e0pDwvt6CxQdrb0z86Ml5SXJKVnj5qGZqemKAXVeXlm08YqfXs9ExBTm5jXV1sXHSnQbO4NHt4tF9dXZWdnU3DMHZ1W612MiUk1bVPnz5gPBxW69Lc0s1rvm0t0s3N9U6D4uT4udAA5rWBZ47/6Qb4ewlgGS1DjHySZ2PyVB+oKzy7EgoGNBwYrZwmAm5MfB2VktBJeCo1VBeExryJyi/ZC7wj2Bmdn3cNAPUWcIOw4kJuO+wFOI1BAUpgcrmgA4Bzs4wllrNNwBn4nwFHCDSjyBQwJXyk86ti4YY79T0Btd2+VcYLxbpASW++bvabAQkf+9GfeudjP/7n376V2Gi6VtBxoUj/frHucon6WonqZqn6RqnuaknXtbKXMhLhyELOKjRwhDuRV48CK8QE6R36dXCVAP9h4APiOP6DsJpeoMiL/yjQ3CHASuPn+T8YDGQceNhgFsFcAhUnaqiRdsutJAyMLgoUbxT/8kYkdKXoEtPRaM55lIcuDfrvIHqLUSG3HwJO7NwDuRyKguGzwlc4/mMkKCiD/s9G6H3/TG8g7t8T/iTR0BdGK6Gqh+E/6/wyVaAb/+KX3xN4uT/05auRJb3r6dq5FPVMjGwsiC53w2BQ/cDNcqNfhelmqQHTyHOM6TfydY7FDCcnwsGxQiMY2qAXIT4Lbz9nkIDTjEYITUlsIJ/xmkL5zxC14RbnUaR7GwqLs5LE+A9pxfgfBPwPbZ2Mbp14Jf6Tbmw9PTXPPYyWaOMU4yGK2QD5vJ988ZZigbbr8qVriqUbijlf5cw15cxV1ey19ulQzcyNktbmkcl9lpbplslU8fFJt/0D5mdn7HaWoXnKkthdRyc2u53VedmtVkad4HKeCHktxzYbAMlhtQk56i4kI7mForCTkxOHnWW/nBzbBEp/99raUpu0bWJ06mj/2OV0HR4ySn+XyyakxLPkSSGCfXpitTod7A8HvUCHdPrA7nDY7SzQeuo+cDqO2ChcjqMT54mVRN/REaNTcNmOXQ67g70j9CR2ONUaHen5NhvLtLfR6J1Mhz6igTnZY2Fh4f7aGuNdEHgn7K5Tq9NlZWFqx8nhCX1/cnTs4f11NAtgia1WFoRmmriDhbLp19ms9qPDo9mZua3NbVZ1wcgohN9OIpLlArlQK9fd1dXf23t/bdXhsLndQi6Pi3WHPD4+FsrCWCtMB5thliJK+9tObFn3ss3dxvUHizNzwzQ0uhasz8Pr8b9Qv5DdtX5PTzBL6sTKPQNTyKNlnpxPwDiqtM40G+JpP9z9IjZXsSyh20O3RP4buNd4zwsO/lj/Yjo46EI8jYcrSLiheBgR+AYmZ56FLu786ElQEVARHiEoovQVdPX1Jvy/qD8KlNDWE1RHWuVwZIsluKnPv7bnapkhrGGwxLDwF1/3ffcT/+qjP/aZrwYmRNUYbpUZfCv7bkr6/GtMtyXG29WGm5Vd18qN18oMiFpy/zZ8O1DR6eyMm6hIA2USOA93MYjiSbumjzj+07TAv8H9P4iEQp9E7RuwFD55RBOQ6gNyJOjbiMaiuhahByA8rB5eqCWu2IJzDE57OikCnfySQYKDnI3zHtNhcS7kggL/MWCAMxOsQvwaXjhkfMH/D22f+4L4BeX4D/cOoB6pvBAr/OfjgjKbrq4ntL43uGHwRpX5RhXN5ESudq5INfJ7X/oHoVnDO98KScvvXs3Qzqeo56PaCP/7b9f3BdT0BtUxr1FI3QA3prj8ws/nfh54aZC3QM/AZxA+0z6osKYpAmscFCfMFW8BI07y4VEwcU8Z3h2bV7XgRoNT6IwNzqN1dF4mFxj+j0bKJ8PbpmLaJtIUw+blZy/l/7PaX5Y6ODb3MLNGndU2eE8+flc+mSCfjhO2WDndwtOx7RPRytEo1Wi0cjyqZThdORpZ2KgbnmB5kg7X892DjcdPn+/s2O2iZl7us5VhrlclhXp2ffH88nvwX7hsNpIFBzaXzeU9ktPbxOzNtVUvTm0Tsvqd5z53nduf8PL42EpiCDwM7jcn8Av1a44zx3nlINwvvUGC9/Dg6OTY+opvoKbB7XbYbOgd4/3a66bIgdlgyVw2Rh/kdB2TmHUjKeiN+r8H/ztXkf9zr3OBDGHCf+R8xnn72fHmLOI+7+JYId+4gOBfwdKFOEDVGAQHLGJYwVBmxJ4HznbI2wEgtwSuG7olUasLPIEVAApieAzAuIL9gQZIgAQuAfB5RiLPLfT64Q03K4x+Vb0BJAVqTYF1plsS0/WyrujmkSLt7H/+s68Senz65z53Nak0qr7Hv8IUUDMULB2PYO0CB6OaB0KlljtNw3caLdwRwVmJoGPD1gAfMqOLNKwiwQYmPwhn6AVNPgiWgf8orcLM0NxCV4c7Hdx38EVgopAxxWts4W6CsQPCfOzwEs4LshIeMB4K4bPHqRggBbisBJpB3AAPwd13pbADko6e4d2C+cPtC08Y14vkiAiADhQOfxR38CowyBHo4eK6YPwuHkfgBQLsWtNBylkfyYslnderzDQ5uaopiXbyV37zi3QFP/zJn7yeUp7ftZammUsSKrmCSaDU992q7r4tsM6GN1ogc7F4eIQFdQdoSwHE5uxwwGpYB1D7odLwyBddTRhuHqIe+fgZPv8zeT5cIvDwmTiIdqZGzON6FV4jNhHZOhQlG45un45SzMa0Taa0Wc7iv8uFboGbWwcDY8v6wUXV4KJicFkmbPLBZW3/Smf/sm5wUW2ZV1nmNYOLnf2LfZbV4eGFp4+fsa+/FF50ud3eRotvqT39oA+X287w1e2paRKqxZwc8d6C/3i4PdXFVm9vej425zmJcCo6nlAr7HZ7e0e+7lSstxaId07FP9n9hilAH2T++uwARJ9+sAcTQayvmoOPEmQaDg8jxFvwX/D/GEl1WUzVzcW1T0bJPOsKyw9VujBssdp5i16u84u7TojTCFnIQD0LSxneTuTtQHuBX5TLEZ47B9cQWrcAc+Df5gX+uOXpTaAi7UBwCo8BLxn2BAEFAYHuMMhIpzPST4O3ATECnsfOS0evleivFHdeKdJeL9XcKNdeKtZcKdZHSUfSWyy//gd/Rarjv/6lXw/IbQqtMd0sN10v7/OtYuEGUv6DJF0BNaZbNX2BdQNc3Q0VcVPzhEb0tELKBzJ5QLkM5wCINwnu6BKw/H/dIvxUPKUQ6jRL1hL6sABd4UuH4QNWfN8yhpDwqIMkB74X3s0K7MHiCI7YF4GwI2/0gKpSpDvi6/B74E+sE/DhgIgVtga8asBqQCiv8+X+H8gpJOiC8BMUEMB5xBHgyOIduJDdCso4/tshXtkFrTQG0hUp67paon+PjLvqnkTVTL5yqlY9/pmf/4KPz0d+6hd/JbZSmatfSVXN3W1nFSJ3GgcCantuVhmDGwdCGvoDqz281nAxIZcYvwiLEOOnN2neUHILhyfNHpYxaifpUxizCKAgLUqcJiHO/39DFdiZT7ngeAn85RPxQlYSHE1+VYbAWlN423gU6n/bBs/iPyNhczkZQY5Q9+pktbcn2MDM5hA2txdr3cKfhwBgobm4gIwoWUWfWTcvSD3fvvcM0J3bXvW5Q2gd7+lXc+qp0H0L/rvPILHwBRtHe2/ZlPfHic/+Mk+FUJj7Jvx3e1Tsl60b9xvsBkb4ICA8Hufx/9RLl+FGiZzL9XpJig+cbOadniliJBKMP8PGTBMI5A+A/4J3kdawQHIiwn9SNqCZo/kFX3VYcuLUZe4Q4DSekAvAMcQ6gRhiJyeXF9wjBO89nBIvgKKyG/ozHObQRcGjAo0RLiD0cEQEGZ4NrnAi5ZJeIK0RNfi8WYCXaM6bPVjb71tpukGiocrgV224LOB/bMtYRKn2F37tjwn/f+HzvxFcIg+sMPiWmy+XmC8XM1D1K9PcLFVfKda8V6i9UKDhpDTwvUDWIO4M/waiiiDShF+d8J9+DhJIxPhPn57Hf/oUDgd44OFO4bmgZB9xTxcyglDsDIxF7baY6uFM/ZeY1uNMghB2RvyXB2V4yxj2jmDIgEIQtMbh3v6J3EUP44I364RBBDHBB89ZHbASaAfIC6wEvjy4IQOjBkYWWxhktlSZblR0XSRxUD+Qqpmv0i+VS/s+8eO/QFfwc7/9+zmKgWzNUpp6IbGdUQ4GNfT7C/gf3jx0h8loLcLoHOe584oHnsA9JVY8eKU8EtLgR0VwHBcUvc94ZI1TgIpf802cAnomuQ6C43wyHjhC6RYTZkx5o1wX1DQUIZ8h/E+VDZ3Bf+b9PnWBFefVeSJeDBWRinkZBpiP/4SRMziB/6yo1snx//Tt+O96eXuVg8MleLadXP8X4gVvx/+X2Cfg1XkV/tu9b/Lu8PhMwH1BnXefvhX/T91nfwWH5dNXWxjeQQqPVxwSHEcYwKnbS3z3ymNgihy4pBioIDgYedNbTSSO/xldaPhFOjlzIJD+j9UFNy+UOl5ayGO74oSf85Yp72pHL2jZv5+j+H/SW97Lll/IbUcaIdKKECzAbnSzQNODZo7bXOwxENMBgb2Hd3WHAi/2DyDzBP4BOOGBLSgd4g1nw15u5yqY/ENhLSO3G1llbkTTQFhj//Vyw7XyrjTNvH+W9Cd/9td9fD70y1/4g+gaPeF/YM2Af81wYO3QHVJTWddFU4DE5Fvdc7O6h0d7eVqReDA0A/DkAP8BGoSihDM054SuNMl0BOQCgTQSwgvJ9hBtvNU4F6BcS+SBXaT9QAYhtZ4OSyeCuHkl5yfeAeaLE0T5m2dKvCE7IBrEdU88I4jvD0nBs9/hGET8FPEICGJIebyDCi8aNlheMY3cfQdLAeGbF8w/gpXhR5KuVHelWHuxvOum0OutqnMho6T93R/5WbqCv/Wnf1XRPZuuXrinWUxSzbE0obre2/V918s7Q6UE8mRKGEgfQG4ABA1vIQpRC0HA841xajTK4aRw3PkZJzSOhJnGjCbFC5DnCtV5/48Y/MU7iOsCuODAcThVBSPuKFHfrDLckXrwP03+kv+fcJWxK5+67W7X+sYjo6nbYOg0G7t6jV19xs7+bn1/t66vu9No0mt7Ncp+taJP027q1JnN+q5uuapj9v4CoT8jfxbBi0vMNvkBfBjucy/OPbwQ+oLz+PQNriXxAV2vev/MobnrXhQreNvXzuzgPivIXtb/z7l3RFR4p160f2lUAvkD1/xf4P9LO74wm4QQBIN6gfMHRwR/n+uD6P85xvX0TgL/5TT9XLxSAPb2aSwnzqvDqU6w6jgPIVdIzustfKFifxAsEP6TFKB7lrnEq02RzcNJHbMJtI98IrzJ4k8aMqlzhJakqVaz9iURpDQ2D9PGkuoJ1QmcSdEilBa0R7iDgPboIYu7D8oYfXopX4V9fMs8SeY8GgsXMaeM5kFDViFb2xfY0OvX0hfeMJBYOxwrGblWZrpYY7xnnr90N/fjP0Ho8ZFf+90vhbNGIYy0507j0O0myx2pJaRJSD5hGw3VwtM+uScKJgmNk2CZC1Ymy2p67gq8YWh8RrP9BvwXx3+Rl8UD5fiUvls48ISOz71bKLaCYozSWmQPcu39PP5/fzfOyHE+i0D8J40cG6oPICCQ4gukxWXiNb+8cO9qocbX6xv0+H/IdqggzVx/u6LzYq4qsGk4pmO6uGsuKDbvox/7aR+fd//7+76FfYspmvkkIWON0ZkKxgWvQaBTwGMJA5M3LINmgpxhzkzO+0rD4MIk08iRJgorgJ5hRyAjTozqZ2gfznt+XukCeuWGGslYoXjkeqnGr7orlAxq2bTg/7F0L2wcMZeKU2DOd5161cPZ+fmBgf6tra1dz+P5Htt26MXz3ec7uztbu9tbuzubu883d3a2d3aMJtPgMOv/cuR029ynC8v3TebBB+sP6YDWo5PJ0fGdrW069NzUzOL8vO3oeOvpM9vxyf7Oc8FR7tp5trn/fJeeHXbnxtOtZ8+2j48Zh8Lk2MTywiIdYXtz5+TEvvP84Pjo4ORkb/9g//n+0fbu8fTc0sQ0S5vZffZsaXZ6d/OpzXoyMTHx8OFDNzhFXa6VlZWpqamj42N6vba2Njcza7fa9vb2piYnt7e2nHbH+OjY5qPHm0+eHh8cHh8cP98+ePpkc293f39/l2DzwcPVJ083xkYnnm/v2Y4d83MLdED6+mMhy5ROtLOzc3R0hHO53uKr/57jHx/o8bLb6eVXbxjCGfxP1c0y/Fcw/MdyTRDxM4u1euQY8MxPXgUpNlRZkrOaOY3B5yzk4b9oOE6IRyBPwH6XhIh8giA9gG5b0q8k5lAhu4/AnzAfyI938OzBf8EMh5cbPh80FuSBuXChUy3CjiA94LkxABCgBMjNOJ+kxztd2nmlQnexTnO7whBf2hdRPPB+Ydd3agxpPdNfuR31zkc/RfP2H3//L6Ma+gE4t2pMvrTVmm/VmANqzPTTQuv6QgQtkVOY8ng0nR15LIiD0/zAGUIv4Oen/VFP9Gb8R3oP8B+atpj7Dt5mECbzrCd40hAO5kz1PHx/Hp//xbcznRrOb2iziGvNWUChpdOER8uHouX9MQ39vkX60NbxqI7pvM6Jr1y8/c47n/D58Ce/FpWS27vIkzlBZw0XGdKN6BrxjH04cHBT0J+81zwi2kim5USFaHmGMAdfdfB8In+Jx4LPO/O/R/yHxU3LA+QhNyv0QQ294W3jYUL91yvxH4+lpaXJyckPHnYkJBwZYWVKx67TvtHp4rLa/ILy3Jyi6YlpaU1jVkqGudM4ZhnOy8wqzs2bGZ+oKimdHBkd7Ok9dTidxyeVxaW1FZUdcsXh/nFkdFJpmWRuemFiaLysoCgpNr6ytFLepiRZJJNrBwf7Z2dHjaYuRYdWbeh977JfemZxYW5xY2VlwIVvd9RXjQ8PJSYmSiQSgmUaP4F4SkpKWFhYQ0MDDTIjPb2irGx6cnKwty8xNi4r7V55YVFhdk6nUlWcld1n6Bo0DbQ0KAvyyjr1hm5TV0+fsbA49156amxMXF21tLq88cJ7V2NiYurr6ysqKujI/v7+TU1NZrPZZmMsbQ6H47uM1f4APV7gv2HtXudSinYmQTlB+M/z/5H5w3vB8DXGa4WwwXFxpi8kUn1of+Aw78ZIdwpz/mvmCflTtQukfRHIE2YS/jPkJDEhqPoRUgtBPdCeZAGUfy4RmEYtHUJPc/h8kAaPFBHOcgB7nHuTmDJcYeScb5wFiCe6cE7pa5X6izWawLLO6OKeoDzTt/K0F2u7cgbn/+qCnw+hh8+Hf+9PvxpaK9Rt0UnL9JdLdZfLO6+W6a+WspPeIrNCcBoDRrjcgTcG+j9NV37fYzA50J5gD6Bn+pNuYUKb7xb/ud+GJ4rThUB2ENw+vCyaIIiTP3Puvn9x/OfDFjO4ij86TyqLj1BAjZQkLDZP9VlTT0hTd0SN2a+0K1I2GaebKzHP/cnffcvH52Mf+sin/AqqMk1z8D3Gebv/cBcirh1iuMgZoEVOr3FSOKag2OD68lQoXm94hiIP6xApWLCjY8/VTn7AdmAfBP/p7hOiFf2RbcMR8snQ1knC/6SWAePr8Z+0aHge3vwA3I2Ojnrw3+kKioifXVzb2z8pKSwvyi68/O2L+Rk5dVU15UUlBdk5uRmZMmkzCYLh/oGeLqOQIuRKTUyij+olkoO9o5t+wbl5JZOj01pVx9bGE9o5NCikvk66sbFdU9vc22OenR3XaNUNzS1qfXdOQXl2bkl6WkZjVVX23bj64nxJRXlaWlp+fj7JLxr/9va2QqFYWFhIT0+n94ODgwsLCrQazeTYWHVZeVxklO/lKy67w2615qTdUza3jA6MVJbWZ2fmS6XNYeHBSSkJC0sz6Zlpc7PzhfmlrU2q7Mw8wnySLx0dHdnZ2V/96ldLS0vVavUp619j/eEF/9OX8T9Nv5jYQcA+gfgvZxFEjYlY/eA8PLxcnWuPYloGZPjQXUAgiew+evHtzDaCaDo4IX+iaoZEAOE53D6E/9D5uasHr2kHCAJ6DXcQhEJEyzB0aSFpfAAFXzABUACFprEoQIOBAPRDpYC4AJZTQ/Ay0pBWy61mc2htb0LV0O0C83eK9FcajQWWhS995QKhh4/PJ//HtwKDqplT5XZdr3+N+WZ1t19tzy0Ja8WCXMob3oxE+tUk+OgZZbBoXEKD5EWgyGzkWEFfQf3Xd4v/4nCtWEOmjT6FgAZpPx3zvFvmXxz/X7fx3/I6kUHLEuIbDnkk+rLZLlZeLW33K9HeLDFEKaaTuhZLTTP/+Ut/R1fw3Xc/HdvUkd41SyYqpwpElAG2KnIJUHZNawMTS7MHJgfks2UIHd5hz2KFI9yDI/C6b2QNYVRYfkg8gAvozf6fM/1f3s4XLffgP5KR4tsnYtrHSfaFtkzEtk0mSPuM84+Pv6/4v31gvXrr9saz7ZGRqcbapsnhidT45KjgsMLc/JYmaUZa2h3/gPpqSWRIKAG+WtFOX3FZbflZ2UU5uSQa1CrtpSu3wiNiNSqtrkOt71CnJNy9GxefkpQ2M71UJWkqLMirqSnLzcvOyMnts4xWSaTp6XmJCcn5GZl3rl2uLykw6DTx8fFBQUEYz+HhISE/QXRGRkZjY2NkZGRqampdbW1pcXFMZBQJFzIBDGrN1MhoRnJKYlR0QVZ+XY00N6eApMbdxLi7SXG6zo7omMjqquqC/OLR4amc7LyLFy9qtdre3l7S/7/2ta8VFhbm5uaSuSHQjjp/eEUAx/+MrvtCIiLwf4LwH3mAcP4gQscjvyhsRL4HZ/sU80ZCVUMuNGHUxTwlVCD45C/ktrPeqUJ/k5i2seC6PkLL6wSAFV1czwfaY+OYj9dRLSP0TGYC4T/47UHaBuI46P+oEYCHPFRoU4h0EUQMOesC1HLE8sRkMsx8aOoLlA1GNloS68Zvl/Rcquj2b+sv6pv5w//xjz4+73zkYz91JTrvTg0rE2N5I/V9oSxkPBwmZa4qnvPPu1+B2IFnj3AiIOwAyQjNE+or8Pm7xX8OkucFQZa3SxRcEHStIRQQqM16jX/+X3xjo+r2JAa/MkjBzYRMUV9RJBIwy66pP6jeFEr2YHVvTPt0YudsVsfAr//uf/Xx+dC7P/Zv0lTmtK5ZiGDgP/w2uHx01UgTIJDHxeK8dsjkBAUQOH8QuI8T+tbRxtntIA64dcllEw9PwFBFuApZuOf9P98t/nPdDD8qrn1cqP8dB/9DbIO56/uN/1aXO6egrKdvyOFwaZXasaHRw/2DjfWHB893ST1++ODB4wcPjg6P7q+uPlx/8Hx722G3u13urWfPaNt4/Hh9/eHK2oOEuyl6nf748HDjwYMHa2u72zvr9x8829x5tv18fX1teXl+Y+PRzNz83sHRg0db9+9vrK3cLyssVEkb9jefHB8drq2tbWxsOFhTMBfp/9XV1aT/b21tHR0dPX78mD7a39/f2dp69PAhPe/tPJ+ZmDzY389Nz2isljxae7CztbuzvTsyPKJUKXae70xNT6SkJplM3U82Nvd2Dx8+oO893N3dpQPSidbX1588eULPJycnduHxw4//D0j/T9HOJyhJIaEVOB4lm0D2ArI1EAuOFeWH8ypdjv9iPkOAD/pQ0Be/kyX7WnIDPaPHIilmSAGNV0wSkt8mpUtwmATV9MDJDynAdf4zG97kGfWc1h46G50C5JkABJQjYfzI34ZfiPAWCjnPz4R7BAE+Fl6s6wmQ9oXW9sXWjPiX9lyhW7V9sLR38ne/9Nc+Ph/++Cd+JqKwOVDS7S8xhwiQHtY8FN7i8Sax7PGmwVBvWhHClAQdACtUSXBWYVCVotkl1EgaDM//pNHShQD+g8KU8z8AW5D/A2DkuTpZL7d04e4dcIrSJPAe4hz2f0DA/4x7B0FqjyPIdF/sAhLr/zyKzbNYsRrTTCt39bNxrWMx0rFYAkb9VKJU/+9+9XdIgn/is//+nrovST8FKxXyAviMeC5dEZT0Ig0JXjLo/8B/RARwmyBBF4IAzCTQOiDTsaJ4EJlXUnMSJASFwQsEv6s4n/OVQWGxdOCvuWNW8LtOCllGY5Ftw2G0+NumolvGo2uNXXOPjoWSWk/+v/Ag2J+fn4f/5K2ggbxEwn+LxUIvbC73o6dbKWlZSUlp5UWlLML74uEWPfP33DardXpycnV5+VTo725zuusbmjPTs548fiTe2eUW52RinJ52X/YT6+IcjXji/uKceFT0eP78+cDAAIEzqBJOvYk4L1Da+6Kpto7MDXpxdHA8NzvXP9A/NDxIf248edgkbVi7v3p6Ks44ekWizg8v8uMhwv9VwWPP8D9GPh4t4D9vzuipT2mfBKSf77R1JvIIPKHbCoYDLe/3cxRfT2mkjZR/Wv+4WQj/4fknzT+AtNm6vvPOnzdsnEgf3AJIB6UNdfcoPeDRQxoSrzWg2xk5hGCZhtSAFOBclFdKdO8Vqa7lqwOLuq8VGi5LTKHtAwX6gV/7HdIeP/Ljn/l8fI3uRrn+apn+VmUXogYIBbKtoT+YDAGppws54g6ADq6vIr8F8Av+BLQ2IBwgWKB3gP+o8AX+I8kc3+L4z3t4vVZ/FrXCAYk0Oj9mv9yy5wdzwwiRUIoBZ4uaCp2PC4vfZ0lEA49SjEt3FVPJ7bPxHTMphqnw8uaf+tnP0xX87Od+K107mKTz4D9vW0CLAUKcXtBsIyuVNggjmj2cgjkwdYu4dsB/VMbl9T5CRR5q21mRWv0ArFEIFxinPALFie945hISBpAgJI4LiCVC7MsJ/xz/ObkWeOpYDqpqMkYxFiFn/X8jpaORNV1n8J+XIJFmOzY2trm5uf/Gx97eHtKDBgcHaX+CP5uTNYF8/Pjp3Mz87vZzcQqKkLD5CswkKbP7/PnhwQGdl3R2wv/d/cP1++tHB/vixBXU1XrzWk49/7OaMw8o7+8+f8pExksPOvjx8bFDoNNhnENu99nUfWEELpt9Z2t7f3fXLYgJskSOyJA4ogG47I6T7Z0tq80q0PD8ELt33vrg+H+vk/B/Lr59TND/Wf4/rSWgJaJjsCu52v862OeaJG9+itAYr0ulNelhB2qfoi26dTRYSAQlK0CM/28F/3Cvox6VrcjzYZ5/xtLmKQVFVgbqcThzBT3TqJChBxcKz8zkPQRpMAEklWrM yvNwRX9V4u7rtSaYzTDyQ2qf/vLXyD9/3O/9cXUtt4blV2+VcYA5CKSHGHB5a5blUZ6/2p5541yTysTtJVH1Q+/tVH7gDLqWKEsiMYQK/AaEf7TbGcKXUVoMFz//17wn6vT6NtyJvn/B3mDjQnjheke+kWYLYS0YFTm4uDMUmQFCL3rcbq5BNlkmmohSTOX3j1zK6v83R/9jI/Pxz/32/8tTT2YpJ+GKkIXBVRFSCeG1IZQAJDCEUrrDTP5OvzPEpg6kNkLslxuX9AGGhDk4iJRmacf8JQh6DC82xHLYhJV+IIdV+wmOqP/Y0XxJh3xSrqXRxj/sxf/DS/hvwvgTyi3s7OztLS0vLy89MYHdlhYYCmRJCyYju1krdU9erJAUSZArQf8na/BfyRPOh2sOaHN4XZ4SwjcLjsvxnKdnr6euuzU6WDd6l+XfimGbteZRHy3t9UvDZYMBGEO6Fieyi96TyDSd3ky6VEB/H/mg+N/qm5ZoI4haGKrK7JtHC5okFmdifmKCTnFm1gHQ/sqguVvpDZ9K6MVHWBpPSPz7a4Q+aUtSkgEJfwn8AfswwX0Ss/PefwHCQD852h3hQJbJG/jXsOtBCc/srtpH7Sawlfgin8pENxoETh8LGF1lpCaoaul3Tcae1O7J8MKaj7907/o4/OhP/qLr6QpGL18tGLiLt3j6jna0jTzyQIfV3jrSEB9nx9rO9sF2gqEdzEYFLXB98sbnEHbPIP/NIHw/2R7e698j/hP34IuSi94DdcP+IZBInIBpx9S3DlVsjjqdAb/s/ofJXQuxbSMJylmkjQzmaaZSwlZQvrWu//pj/8yqWOA8B+4DbGIq8PppoH/ILOF8kC78YJrFFCfwX90aqB3MCQIAvhC8T4nO0JBGQ8BcE48FAhzzljsgGCxOGv0vHeIKxWejCb5JPz/carJKMVUhHyG9Z6WGM7gP4Eb3OYfEDGAqPyZvsua8JIAcHmrfoVPUC/sZCXDZ9EZsMwjpw6h/zsrQHYI9chOqxf/3R785waB98inQnGuS8i9dL3GYcVLa52CS8shruEVHFD0RZdA0CmUMdvcrBqOHVSohEbTRCcoN99YwfzD/TiP/7FyRucC/w9fw1y14DFfcW6e+D4F/oP8HMmf4KJB2Rc9o64/VuCUS6T7rslCanMA6UIC5iOx50z893XOH55fgf5QoKZHYg/4TzgTBSoUoGZzpn1sN0r0nFaI857BkxNBOlvTWGjdyOUy0w1pX0bv7LWE7I989Cd9fD7yD+8FZKhHQ9tGkvTMCZxrWi8wPcgz3s9CxEG/mKCdv6udB3MOAIRz6fBCaQyMQAZp+SDhEeM/gQziv9lCH8bvC/5D3KBvyA8F/mNFxQlt018U6Hlj62KGJSRkojIRuso90/1Y7XxE4wjhf7J2NsM49c3gOB+fj/r4fOwP/vwf07TDSXpPqSxJfE4rgTgR/P/w8wP/ac0jEEwbnejN+M95kHjiKGJkKJyBxYE1jPOyUnRJDyflhgKDGAEq+LAmwWTFAwS8Ep/jP5z/LwjYyZxvH4+QT4a0TNypHQgq7TDMPjzj/+Ha+Jm61Nc9OPgLcOk8YQFQAZUFvmWG+l78twuUEefxH1EGnJpUeCtrFux2Mf4yO+vH/lb8Z/syVmcXEx9n8f+M04YB+sv4zyK2wk4eEeCwCRRzNBBODgdJ5rLZj11u2+n/uY8z/p8EJekYQh/e9mkEs8DeFt3myfkR5xmeuU/Fna9RFBAn0BfTukVmOy14EPJ/J0tGbyYL+H+ntvdGiY70fx7w5UVeb8F/qEyCasT58xNVs8AEbqfAD5zX+wi8BHRHo0CMF3jy6gDQMmBj5WBFmstFmhuFnb5Fxu/ka32b+rLMM/8UECOgx0ffD07OMc6EtAwlC4HULONarvF+TtdaFvRP0/3MngfZvQ+zvDHZrJcd/pxOoaB/A0z+NAC4CIIEcYn4L8//oa+jDxfwHyDjwX/92/GfXzKaAbjj6AXYe/7F4f3NG2YJF44uN1BdTLDJS6544QYw3MPSIB28WdvjX2lOUMzc0y/lGmf+141gxvz8oR/90v+6mNM5laqfQ5QK4VrOBwK6DBCxopYKGQVi/EcDuzfo/+htmiUY0XQLICSN+4hnx6UKVIQwPcTMRVjG2LBQuVGA0mOUm4lThmK8jWk43UQsC+SNsBCwfDJKPhPTOh4v5P8civDf5X0AEDhsvnjBdG0BeV0eVHTabQJlHOs2Swq4XWC5J3UeIuHUK0QEwjaX06v/nzky99swvn0CWYdTOAKp2w6QiAqbCwMQSHAgdMAo5HJ7pZXd7hAYgTzxXxyW/xwIAqfYBeT1d7kFF5Cb2R02t8sGHrjNZ08frq+TaHFjRxqN0/b48aO9vb3T05dsn1MvjcMLaXhOdNK31tfunxwfn3p8WZ5IBE3W+sOHTzc38ab73JHPHFyYDu/XvXt6puL1PBgfEP+LDUtZLPl/OUU7n6Sepo3pzGoPDz+cmcgrQDg46zXFONz65sktBKTfSG36ZpqUFnasQEqMhUo3ERQVekb4VUzvwzcIAiT8vE4cYAdG1VWqv1qoJlOCpAk9k0AJEm5kaIN0j2NUdKLrJTqE3mB3c4ZJqJcoAWMZO9Xd1yo6bxTprufrLhZqAlt6swyjf/H1Sz4+H/Lx+dHryQWp2rHItlEkgZzfSAR8EHwjwUSzirAjdD/khAA34P+nZ+iZAHzkn9O34ECGFzrLy8kmFi4QN5ne3r4g5IE3DPHff3F4/yD4nyU4f7BCeMN6vM/7RHCOcWi/eEdYxlMRzYOBNQPRioUU5WKZcfF/v3+L1vxHfuyn//q9wHzNTLrOk4UFzyESg7ESSAeg6eXMV1jktGx4w3daVFlCjx5cLMgRRGpQvkdfBI8rfKFcImDykUqR3/cYsgzGAiJQSEiAMIJTSMw1BEHALVZ03oEjiMedY70FxTGykQTWAmwqWjYdJ5tMa7OYlzYPBF4w5vFgOrtD7Co5A0RwfR8e2gXodHpJlEmvZx1eXA4PMw2HLMAviQO7l7VeYJY7FTw83mCz29MYwM0O6BbY406tLhZEdsFvQyq5/UQYo9VpP2JuHjSJEYblYUXz+IteQB/qcFnzFC/yn4q8QGfsGo/ogePL5QSv9NaTJ+l3EzNTUo2dBuG3sz2N5p7o6Jjq6mouAvgx8cwcWTzE7P1pzISw2ouzcorvZbTW1TuEiLXVxWIbxw67tstwNzWlsKz00GYD++iJ1YqAtXjwp14KILpOJ042RYzCTqBbgtg6peO5Tk6ZhfLPFAHo/5XZuZqqWyb934P/6tlEjYeZE/cRksrQAgaQ8rpiTNyVtLAJ7UHn+NWkekZ6JixXWpYQKLhHaH0iNwaR3JcqsLyAD3fQKyPCeB+lAWQIwI90jfT2fNV1QYcHIQAPpYGAiEYFUxphYk4WxJM98GdI0+DtpoHg2r7ACvONiq5g2UBG59Dv/vf/yfD/3Z/wz65K6hiNY9b98veCbwTRNFfQNnn/d5RI00gQEwRXMKjDUBoMdkeUqfK+nLzyjgfoPZJIROBJ5wJdqrjP4A/yxhM7uUMe9Atc6eU9gzIFYjouCr3bGqHfnYbhaPliimqprHPuL//xO7TmP/bpf/2NgIRC7UJqx3yi0LedABa4Ch0ALEnw9n9/8R9s6vgiOmnCDYgMUugqaIENPeR8Uza4jDhjqodNTgB83KTQrLyh4dF4Oc3VJOF/gnwqXej/JZA3s25bQq6LHbA/PDxcVVX19OnTioqK2dnZ+fl5iURS39AwMTnbUN+mVqrVCvn67MREf/fy9Ojms402afNA33CbvKO5uWVubk6r1SoUiidPntDzwMDA5ORkc3Pz0JCFdF2r3bl3eGQXWmhNT09rdTqNWt2p0w7291n6e57v7TfJVDKVbnB4YmJ69sGjR91G42B/j16rUrQ1tjZKjk8OG1taNDpdeWVlt8nERlVfP2yxdCiVeq22qb5hYnzck4zkdo+OjtbV1dEA1Gq1wWCg0xF+9vf3azQa+nNiYsJkMtHO9APpzY6OjpWVlX6zeWpwwNLVtTg5WV1YpG1X5mVlW49PlEpVT19/m7y9oqIqNzeXjt/dTec30RTpdDqVSvXs2TOZTKbX6yenp4dHRxul0oWFhfnpGbOha3zQsjQx1VhWMajrTI2Nm5ieqpNKhybGTxyOQ5u1WS6jrbiifPXhw1aFwmDqfvz4cXt7u1QqpaPRiehX0CCVSuXGxsbo2JisvaO0uqFvaKxSUt/TN7i4tNRjMo2PDg30GpkHz2U9/edGqAX8X8jQE2IvifE/SVCigP9wXPNuXG/Gf3rGCqQVe6VQTSvwUr6KgOtCbjvKvpCchpsFhPzo9Mcp1nktTFTLCC/7eoMXiBsIsBdI0JAI8Bd0J9xB3C2AoBsIe/Hs6+14wrYKj98gGDVozUNh8tHo5tE7kl5/iTm8fSilo/ezv/IbpDx+4id+Nqy0OUE1QhOVYTgbB/muwA1BWJoK/GTUEHGaOO4QgJREbQInQcXgQQoNSASjBfIVz1D6g6AbrgY0avz/gfPt+4L/WFFI7gX0cVcJfHdcjr+wHAWZHtU2mqAcj24dCmkcjVeuZGhWizWTf/QXX6Y1/6M/9XO+icVFhpUk1SzI2Tx5mEIhIY/Io+v99xf/4aJB4TA6PiCqmyV00qTXJBFwRmA4Xwb8V6N2GHUlaIiASxwrdJ/kXYm9lLwThP/x7dPxyoVU9WKeZqr//g7Hf1BDQqFta2uLjo4mfAsMDGxpadnc3KypqUlKTpbL1eXlkjZpS9rduLaaSmlF4Uhf1/2lhea6BmW7uqVNJZcrWltbc3Jy0tLSCPwJKtfW1giBMzMzCcdIW33ybJtQ9NnWFgma+ro6wuQhy2B+bk5rc7NOrVxeXk3PLuwyD5RX1fUNDC0tr7RIpfJWaXNDzfCAuaQg68mzjej4uLiEhKiYmKHhYblcHhkZqVapGurqGuvqUhOT6mpr6c3Ozk76FSR0MjIy6HVlZWVvby8JtaOjIwJ/kkf0DiEq/UzC2J6enqamJpJ34+Nj8mZpl0Kubm62GI3KltaJ4ZG8rKylxaXCwmK1VldcWq5QKEtKSkig5Ofn5+Xl0W8sKiqin9nX11dWVra/v69QKmtqayOjokj0aNXqlrp6jVwxaOyWVlXvPNqIDg5pbJYGR4RX19c93dnePTyUNNT3DA5IZW2jU5N3wsNyC/Lp4DQ8ki80aUajkUZIk19QUEAjJEEzMj6VU1gmqW8JvBORX1gqk8ubGup7TQaFvEWwNezfi/5foJu/x8CfcH42ST3FRIBmLtmb5wl3Kzq2iItuzm+cAggJb3QfvZ+joLWK5B/04eUKG1QdEPJ7qHoR/6r10KdECJyf2N7g/6GNNH9eNUzbDUYFqb4j3CNcpvAMT84Cx5vF8xa9SPvnhWC+lV3XqwwBFd03i3QB/y975wEfV1qd/bG377LLsoQWNkCABTbJl8BHgJDQAgmBfCQQSD7qVm/zuhd1jbqt3iV3W7bVNaPepZFGvRfb6sVlG4EkXypsBe937v3PHF+NJK/b7pLs3N/9ja9HM3fu3Hnf55z3nOc8p6Brt+tkfJX7ujvfZ7Pd8Fu/fa/9aM3uxvG09guda65sl+kv811LcbGt1KyRI9b0sUqtygFBLcqI1MwpvwiTodwnq2AmO1j034L/SToJ7qtcudwNT2DH3CHDgHWofGguYMfxrh35nSHF3eFlfaGOsYSmMzlt5/bVj/zxV78lY/6u3/5IxL7y/R1PJTXMwtI37ozZlwEWKKZWTv7G+/+8UZtuaJ4XKjVBKoL/VDKqBDpBJLk/qEh5l0gnEupl0s0mt57Jaj93pHNh+Jl/t/j/5196iZa8rwowHjW34uJiwbd/+Zd/ES/3+LHjZWWVMTEJDXX1+XmHGyrK6hwFdY6ikf7elISEvr6h0tLKwsIicVnFBBw6dEhwLDIyUhBMHGOB4n//939/6ZVf/fKFl/75//3riy+/8vyLLwpCPvPMs6MjI7XVVZ3udkdJ4blzTxWWlpdXN/QPjfb2D7a0tBYVFp4YHa50llSUFu7LSZ+YPHXgyJFDR45U19bOzM6KZcnJyalwOlOSkpobGvMOHXKUlQn+C36KF52RkSFfRIA0OTlZrAAevhg1AW05lvcKkguoyrXVm9vi4qJcaNHhg81VVaenpoqOHpV1zYG9+0aGRtLS0s8+9XRnd29+foHckJMnT8oaRwBfvmNHR4esJuRryr0S49I/ODgyNpaRlSWn7evpqams7Ovsmp+YdBYWtdc37snIHBkb3Xf4UFlF+b/+53++8MrLja0tpRXlYgUWnzp3+NixAwcPDg8Py0fI0ka+iHyQ/FcslHwjuY1yzY6KqrSsPY2ujrzjRXnH87t7eo4fO1buKO3t7jBiTr+6Kv8f/E9qnjc5M4r/i1qsmuJdC2S0n7E6jT74j6XAt2ckE6AWT/vHSaViC+S/AJrWp2jzDhxytPFVrlMFP1fN/5qUIR++EPEfhKNDywZoFwWRT6U4VX5BW5BYc8EEVzccbl1/uHXrobZNuQ2BhR2pXVO7HI1rr7/dZrvp7ns+G3qkJr75VFbn2ZyeK5dNIJPrqVQy0VgXVlpDTQw/28wUqFAD7E3WWdpncJelM4hVSUxZImau0NMZ8CrN1huP/yRAIfaQc+GmYUD39f+UlRS+h2krJ2Nr5cuOif9vrzi5u2Ehs3k+q6LnD//0qzLm33fPHyYVubJbz8TXG8MVtTeibZAz6Sm2y+zne83j/6RsiILKxdM4icQxrwfD+SAS0JyfCgKauKnKBIEgOeAtTD2PDGmx0b00wjkQWTkeWzuT0jy/3zU98ux/gP+/+vUrZtLSyCiKCRDkEXddMFw8/9TU1Oeee87InL7yq7m50yUlzhdfeNHoFfDyi6/++uXz51959ulzDXV1z/8SCUwjHSv/vPjii/J/Qfinn35a3vui0TXdjHu/Yjy+8JJB1xHMFAQWj725seGVl1/61SsvmmmEV3/xwssvvWJEz194/oVf/vIXtKN55txiTmaqmag4/4KZY5YP+JVB/Hn5uWefra+tff4XvzjvjfO/In81o+jy+p/97GcsYeSVBPnNZr7nNTfx/PNii14U0/Dzn//cDKa/fN7oky6nfull+aYGv1S+0q9fNqLt8hZPiEzVnjkPm1FiRorWvJKB/v4Kh+Pps+f+5ef/JM8+/5//9fLzL2hTTLkU2eWLyMe/YJ5XHPeXzeKLsrKys2fPypmRmIAiy6NYz0N5+RPTs8aLXzG2F1968eWX5fYarRuMXMzV+f9pLQvJzfOm/z+V2GT4J+nus+r8W3uyr+j5Z3k7j8hYZU0KjFPtJX4IerxUfsHMpKaYHlgs6jVQ4+mZfrBl+1E3ihDWimCrFihKoagDIQok+9Yjbev3NgSZ/WWI5CtTVOeLtpXRAhxry0hWCsFlAwElfYHHuwMOtYUWd6d2nAo6XLzmBsH/W//gT/465GhjXPNERseZqxFPWE3Q7DXfSCBOA25qlH0SMdZTLU/T/LfYWafQ7Fj71/h0ECb2hf/Pyog0aG7P03t6zqW0TMfUTCY2LOa0zKcUtXz4jz5ns6352Ge+nFLSkdl8NrnZAGR8aUYgoxGtKli4VDJyPVeP/zTUkJdBgRD8JzQHI0iLbngj9WV8In+lB4G2wKNUATlxgrRUfsn9Qcx886HmLYebtxxp33q0J7iwb1dJF/rPLxkY94o3p2ps//RP/ySoKJgpzzz77LO/+MUveP7lX/36v/7rF96sq4eZ+fJLLz7/y+eNlpHmu006vscFlZNoEhaSykuvGGj+ireMamFhYWpq6r+MUt9XPXwcLz3GQn8xPuXFF55/5ulz57FWUILoVmwGrV54/vkLqeSlj7I9b4r/L2fsvKoZ5PPnBfzNrC76EEou4qWvvqqdc8+/6nMS39N6aUWvmpyff/zpT//55z//z/8wvuArL738qrcTpuI/BxcYQQaL6WW5GDFJ8haxBf/2b/+mLCbDhp4//9w//uw/5FfgB/OkmD10rCt2/n3wn/i/gf+u+YwOD6Rro8aLgL/iv/gnD2VU/iix5IG0cnH4n9zfhK9CBhPnXxt+CTijtagIrL3dPa14j7RtM4U06QUTUtynWqA+ckCYALvZRWWzDPtDraGmVI4PoQilIJR2YFZDBNW8g77S0BeqGAmrGAkv7g8WKCjtyuw69UTqHtvaW222t33lbx6KLuuOqDtJXWrWb6Ry/v+MnbQ1ZQuarKebpBJj6KdJGCSoyEOS9xgCQ8zwRHzDdLrr7J6WWfve0nf/7sdlzH/+G9/NrBxMaTyX0HRaQFU7vNN93irHrUF7LuaaxH/Af8L1sopR/Jcz8EFyjDMvLyOqg1ePPIh8WeJ41rYXcn8I0srZyJXTKzPgeMf2PNfmw20bDrZvPugKPljfPv2Mif+/Om/tebj6tsyzXEI4fE2/Ew7/yn2wVJhnBSKjRQXitdqvX/V23tJ8conQxFXzK1c+2RWf+7zv/6724i7gv7GLqz8tJsDw9jvOafKXpNJr4j/rU2qpILQ8vqdezMFPksvEFjBWVYpBBjPxFq3hYlJfKMWV1Wthz3ZDz8HAc2xBQH6XWIFQwQFvOxgOtC+A4P+Wwy55cagJAtbKINmJ9ssHyXST/9I4QD9XHSqPLagcDasciZCFwBFXtKNn38DMfdEJtjU3rbHd9v1HgpPrT4RWj4v/n+31xt90qPwfuZMTgbYkv6ZKnFHQJ4+ktjXApe3s7U6jX1hQcXdoSW9c7WRK8+Le1pntiQdvu+u94v9/674n9jdNJNQ/FVc3DyFZ1ZvBf9mR3AG9X1f85ww+/r98Ivhv7b5K6kcFruVqaYtGTwEIe/Iy9Gbl0RzJskYeCC4Z2J7ft/1oR+iRJvD/xV9fKv5f5bY6/oNdr3EN5y3Nef/74v9v7GbF/5RWL/63mfjffppoKl3aLwL+Wd4y4SRT/QAGCz6YzBci6tBsZJSS9oowW7egeXgBci19eCNMJ1+AXdBeDMFOg5/TIfsWMzSELZAd4SCBfd3h/4SY/j++ovbewkWkNkeuTfBfUMXK+bTif3jFaKBzKFyg4IgrvmpgX//kd3aGCv6vXfv29UGpqY1TITUn0zvO5Pjx/3XGf2ir2k4LwgAqH8jjWOthIdXzxqyucymtM1GVw/FiLBpm9rtm10dlrL3ldtt119+/JfRg61xi47Nx9Yuq/A+ViPi/DFRYlK8r/sulgv/U2oP/Wd6OBtRo6xlUfQXfiVIFytbEEFChJieUA26O16cajKkcMaxh6UhYyWBccad75tnLxP8lqHj+VR9Bh9cAx0vD/xVAVmMmrzf+m2GeX5thlPPnrx3++4oOXeU1XvQWXfGm+J/SSgXNjJgAY5h1PsWqUwtqLo7/hEllYMtIFocEtifeNRMEZWN5xG2Dbh3qrd61Yu8FK+CN7UeYtWA8iglgRbDNbLAluwD+FiPO2brFXCZwjJqoFlGiFYDGGtk3mUQCI1b/f0m8yGHw/wOdg2FFPWHH2pNqh1Jaer/04KM224233PbewF2HEusnIuqn0/3xn9d5597KCCTLCUHL2uGddgmoSwHgLBO8TKFJAcDklvmkhpm9LVM/3Gy3rb1xzY03bbAnHGlfTDDw3xBk0ObCxI52mP1ZUC95vfGfRADtfqjb5WXyV9K+ADsyjBSOyWtgLDOwCbEmmTXFVNkrK9gczAPi/4c5hkPLRiMdo4nO/o7Z535xOfEfRZ7zFkBb6ihfbLsc/L9wVutnvZH4/+tXLTH985aVweWdcMn1X1P8XxJ5u/rzC/7va51NaxGoX0h1CdpPy57uPp1xmfjP7KAEXkYdZVZiAh5IK38ku4ZO2TIxcc9gflLNiovug/8WHB4iGo8bT+Sf5YAc7/bKIZIUpo+MTN4Qb5kktHmFC7rD4y7KJaEaTbZXrwTT4/lQ53BAUe+2AvfuxpHEytbP/PXf2WzX/dbv3BucUZxUPxnXNJfhrYb24//rh/8ExuEGULzGYNDuOZh4q0ICsquwCDYdaYmsPxXfNJXbMPa3922UX3DNjbdsT9pzqPN0SpNg6UJszQmKwVGppRAY/If2syL+U6h1KfiveK6OPTBO/pcIPxJP4D/2QvGfMyAAZfR66H5alq4ydGlSD2dJRiwv1kI2LYiILB+UXfz/cMd4lHMsuXyga+6n4v+/fP5Xrxl7WQo+qwWuXxscV/GjLxYOvybR8kvczNOet+wXu+hLPuG1veaV8f/qzy/4v6d5Cv6nif9TsgQwauo7zlFTD/nnUvx/UgBU0yCigprBE3sb4PnLsEQshRaEOp2tMR+rqpvPugCFXhpzyOBHnsiqOIFCprySCWj0cDRL5q1CoASmaBOGBChJAXw/q7ZYhLiRRf0bj3esK+2IdZ9MK2v6X3/8BZttzYc//aWQQzUpDbPJTQvZFtU7vwm4JnvOshZmgC2dea0DRsN61LtRGKtsXqNeoKBnS177xmPu7VUjca7JrMrub/7tfWts1193/a2BOcf2dsxnNC4mN85h9HVBSvJUxokMfqLx1ra/l+v/Yzhw+8mgKbCTwqD+S162p/dZjf8gE8ekk79C95XXo9ok04cmd3KR1uAP8nQYL1bWxoRy9Ec5ByMcI/aysaiy0URHb/f8P67Y/8u/vQU3wf/cpinx/5MMwR8v/neeTXOfteK/tb3jauDPeoG86rqsaoTLtJ8RSvvMERq1GxprB5q1VbeV0rbiWkDbO67f1ygvlkUKcIEOvOz0GpZXcsHaldgKzplmV2K5JBTXKaihFhiVZg4MiyDriENtjx9pfdzZHd81GXvE+f4PfFzw/w+/+q348u6k+unMtgs6eH78f53wH80iQTz8eeV/+rgNFxZujiXxw6CS/i2F3VurhuNcE8klrZ/53NfX2G646eY7wg+XZrtnkmqmkxrmdCmBe4AaJ17ErvqJNx3/5U/UO6ApKqcC5PFSmFaktKiSkLtkTavZHQN+/Pdvq22C/zmNk2ktC4mNs2b8fzq1zehqndp+BvC/FPIP+E+8FIf//lTn43vqIXNS8A5nQ86G86+NtzxsfxN48cOV5mdtn40sg7werBYAz+o65wO/cmaW/7zY6KZXe5K2Bcw1JMJIapPXlifhBVEzS5LasyIQP+qI+7HDrevLe5K7p4IyDr/jne+32db+2bd/mFo/vKvqZHbHs378f73xn6FFUolKba0uUVkP7byGiB/VASz0DCa/4H/FUHz71K78hg/f82mzd+ed8SV1We7Z5LrZ5MZ5T6mUyf8nEUyJNPnfNx3/5RkKgVkIyH9Z0lpNlSpR01mGtLgxd4ww5qAf//3bapuJ/xOpzQsJJv6numbSvPgP+F86/tMdSZxzmadiAh7NqZXp+XBmFbK9WBM5QISNQCsUbup/0YigBFgTeSrOJsfaJo91hE+jW7kAQvqaFiQOrPI+qp2iwrmQBjkzz2s3geCSvhCBkYLuJ/LaNlX0pnVOPBoSf8tt7xT//xv3P57cOBJXLfj/jB//X2/8Z+DJ0EIiyQjOHO1ghNDBU1U7iAryW2sTB8Nk5HfuqBpJ6piJyat513s/Jhb85jvfnVHrFvxPaVxIaprHTKChIYMN54ERS+edNxf/CfuA/3JJyP4wfRjSclug5+FZQWHFfTIXQX7892+rbkvxfy7VNZvePp/ZeTal7TQqDeD/pQT/ZZUqQL0uq5pkq/j/MhQF/+HbY0rAf/krgXrW6UAuc5AUHtEhemYx1LEaTHyyXSpunOUtfeVzNddsbaLhkXQ2O+txHhYd+JOyQ/xbEn2SdUdhz/rj7h1VA1nuU3//yA5T/MH23Y0701wnExtmMtv98Z/XHf/1v4Q+kLyghAS01OotEv1WB8DI+O9v2iFoWTue2jUXdbDizrs+KPh/2/s+uLe1P6N9JqlxPqFhVqPo8NOCTeaw0TvGbOO7Gv5fYv73yvBf+8XwQXox8q0NepIlT0GUlWinZq618sVIi/jx37+tvhH/Efw3OHJGSEScjYWMjjOpbaeV+b9a8J/cK7MS8QeZOAL7uGT3pTgey62T+ShPauBFRjVzzcr8tO4qfSmDnP7sJAggFMHxo5G6+v853t7ufK6cgeCnh9jpGLaK/CsXFN4ILqJ8BJ+CdVC5xa157iePtofUDB3omPzKt35ss90kt+uRqPjU9lOJjbM5Hc9me5Eq+7+JnM5v+A7aa9ceawsDRlqWVw6a16D/Y205x1qVY6N7pimMFtU8ldm9EJRZcNvtvy34//HP/Om+toG09pmEhrmYqlMyPIhDUgwu 70MMITUAPY3Pf9L02qK3Yip0gcNCpBqPlMiEVrarxQp4v/R5UORztEIx3i0YyzJ2efHf/+m28r47z6d4lq8OP6rgLBmfmV8wrEn9vhgesWjObVyQASeqDvlYDjbPshvJfxoI1QZ0k/sbQD5tWOvNmNS1OUaMBMMfuXzLynpVXkHc92BXCTEb/iirDvwHg2C0MGWx/Nc4TUje5pGP/Un37DZrrfZ1jyakJ7YfiqhcSa387mcLj/+X2P859cE2PlZabxujUBa35LlbW2gtgALIs8LgMeZGpgxLTNZPYvbko/cePNvyS/42a99M9fVn9Q6kdSyGFs9Qf9oSmhp+47sp3zobwL/R917VjpkOoiaBuR305geY4e/5MOgiBTwdwzYy4bDS0cjS0cSynr8+O/fdPPkf5sXkgz9t9lU12xmx2K6+3Ry68Jr4j/NmJhoYLsAvoxAwVUI9ixO8VuMBWzDNOxNWDrL8V9JHWoOxM+hXzAxT3ZeFlN9AsErvQxcd/X8l+O/p4jAu2voSZcDJAEJHe/I73zyiOuxPFdM7eie6oGP3ft5wf81N932RM6B3S756Lm9fvx/PfEfxrvSeyjTRgxHByQoTXicdaguEOTRyBrUnkpsmIptmcnsXlwfu9e29g4Z8N++b93+zpH41lPJrrMxJv6TTWAw0KWIt4Peme6zby7/h080ljPmupjMLzwHWND0DiPbhWPD2DaErRwDfvz3b6tt6v8nGfpvc2ltc5mdi2nti0kt85fo/1N1LuNQBtsDaeWyP76nHi8aVwoFewSfifCvSO/0wX+7t0UjVVpEQZkgxHvxguRDBRkgF9EC2KeV5Ir+v64CfP5r1aAIdQxuLex+Mr8jqWlib2XfBz/4SZvtutvv/uC24yXRTcOpbadzO5714//rgf9ZZoNLeuaSzNVmDVqmQawG0wAU+3Q0QzVulzgJ9VOxrbOZnfMPhabZbLfIgH8iyJ7XfyqpfSqx5XRkxXi4Y5DEMYtB8F+u5DcH/3k97bPJf6GGKgNbZ6icBHa0PF4g/5v+vz/+499W23zwP719LqvztOB/YvPcJcb/tR83uTMZlrIKuD/V+ZPksnVZ1ZsPuwT2iV7KgCS07tN7d7n+g2r1szaXRypfiPqSC6PCC+oOsX3SypovVpH/i+C/Lgo0E61a0GHlw1tL+raU9GS75/eWd7/rnR+x2dZ86FOfCXXWhtcPZHc9neN+xo//1xz/GVqC//KLw8yRR8ha7AiJUDwIJVj5MJ6Ih/lretrBlA4kNUwntM2ntk3dtz3O6Pxuuz40KeNI36lk90xi6+lw5yhEGtnxK+SEMmKzTf//NyT+Y5T9dj0lX4quBChZyTGC6rJnmeR/yEusXlnGhhi5YH/9l39bdRP8z26YSGmap/43w71g+P9tBv6neCt/1dVfDf8J/ss8QoZdxqFAsYD/w5lVshaQKQn+A+YyxWRiws9X5YcVs8BkAcThoQ1ftlcNnjYoMl+YmHS+ltG+4UCzD/hffFcxYc0XqGyd7NE1p0KqTtgrR450z+13tNxw451yrz75lf+TVNcbWTWY2/1MtvucPGoO+r9FO63XA66tB9wEa+thfaU1Wa+Dx0r1sb5lX/9PZezB8Me+a0Mr+bHIzsvvxbqS/miIDRIb8SgkG9G83kRxbNxzue0nv7dui1jwG25+Z0BGXnbv7K6WqbSm+SjnCMoPiv80UlHJzTcY/5frP2i2S5k/cOHkmpESIuut1TpyBtIEsN0CCjrCS3rDy4bspv9v4P/cTwX/X/71r179tSGr/2YjkH97MzfwP7lRvH1x9RcyOxbB/6SW+RST+akaC6ulAGBKyHAVh/+R7JrHcutYgYLwMivpHS+POFoyPdXTVpz3UX5TgRc8GUSxtJKXHajRJsVyHvB/RVd/td3q/xP+jSgfpslUbP10bPNicvNUXvt4/L4825qbbLabv/B3j+xpOhlbPpxlQpyVg/TWxH/rsfUm0NHS2phmRcDXgD8mQ6k+ch6BU+BOhha9zBSfSSExKrRvmvLQEKGiB26ocyyu+XRS29SBtuE//9b3ZLTf8a4PBxysTO45G9s8k9M4H+sYDi7pY1mqKnBWyeU3Hv+zVtJ/E3jHToU7BmkBQBUM7plZubOQbWHJEpI1+oUVd+/Mc2093L7tSFdofl98aXfX7HO/VP/fj/9v7e2K8T/by7qB1SmoLq6+gP/3Yo49mF4hUKy0T/q0GkHLfA8DH4q1wj7Au9wQqMMjYxs8se5ME7AC8rMsOpRWeokmwIr/EEflwJjaTTObj3YEOMZSWqbz2sc22GON0MHa2/9+Q8QB19Tu6jG0eXPe2vxPBXyl4zJO6MmotsDa2tIH/K2kHWV7Eu4QcKMgV97FWo9lpuo8y0+g79Vd7QhqhJHVE7GNC4mtE7lNfff+8Z/JaP/tD//hLmdHfOfCbtdCTvNCVMkA2lCBhd3h3j50bzr+++g/y3nEChDmIsgj80I8K8iukD9ljqip5WYSKU1snIytGIlwjgQXDgYe7Qo53OieeuZ5s2vUJeu/+bf/sdtV4j9jT2bQQxmVuGdiAp7Y23BfikPgFJkFOQPKbPDzSQ0Tn9RGftYQvVav0NhCnlS/0borIRx9eK18v2L8t5sSQ/K59GP9YZLjvpyGwOPtGeVtf3v/ozbbdWtvePvGmNzD7tn0ZlOJsWeJTMFbE//VgRf4ImDOTsUf1CwrP1NbHnOsRkFfBobLgWAjv742WVNjsXwpqmdQDASQBf/jGhfS3bNZ9V13feAeGe33/tGXspvHYlwzca6FjPoZe1EfwX+GIuvNNxf/s5f2f2H5LMPSql4oV6t1wTCrxRwQJaNVn+cO9z27r++ZPV1nszueSmk5s7tqYndpd+fscy+A/+f9+P9W364Y/5lrLDbFLflxUim0HyrQH82pZSjSiVUeYf6oJjNyXh6lNW9HV5+gPVFZZsSKU16bp4P/kP+VO3QF/j+mxxQpnX5sb+MDOY1P5lSF5Bb93p/+uc229qZb3xmeXbin+VRW20KKuFvdSzQK3nQ0frPwXyu25L5RlxRc3IugH0xg9uiqcZS3aUlP6J4Up9oFTR8AhgjGXlgveI2IddXgo++XbUkiG8Xm5ePxzaczOucTy5puePu7ZbT/8Rf+z/6umei2mejm2eSqU+GFvdqZ6DcH/7Ms/R/l9fJKAlPh3t6UdlPzB6hnDS6vt5t8afkKMpjpsmQIh3af3d/7tOB/ettT2a6zB9tmBs78syf/a8T//fj/lt5WxP/UtoVLxH9eIFC/4UDzA2nl6/c1wkwTbKdAXoYuTetYZZMUoPDKqvYgu/YIg8NJsoCudurRWfPOeiX4/8g7XITtc4n+v2CU2Tr2VKhjeFtBf3hhV+yRyg/83qfkRt369vclHK9Nqx3JcM0nuuYzBP+7POug18n/t35rqxF805HfxwSA/3L3UHbCmJKpRIKbFr00cCcHRLRNzIE2c5QdvRE6pMsxDSMIcevt9VEHyl7qG6jrS/lAWNloYou4KDOhB0rW3nSHzbbmC9/4/qHeuVj3XHTL7O6KE+FFfYr/nqKqS8P/10n/AcWhTG//d/kr1hPDKkOU1QrMH3m7nIrP5S7J0CWERZWlDGZDzrdtPrfrmb29P9vf/dyRjvnhp//Vi/8v+/H/Lb6Z+H8K/k+Goah8Jt09n9w6Z+C/pe2LTkCiLiAwk1TGM6wbpnOEKU4rg1AntRwoY0FplgrRTDp0O6m6ZVGAEUHqgWlulQLQADJzRK5TGwJSK7Sa/2+tC7ugG2yxBSSsjTrlgp6AoqE450D8ser3fdBQfr7zA5841DiwxzWZ03UutfNsZu8zmV47qGHn7O6nfBBpuaDlchjXQDr3WXPKala451nL6DRW3NNAyhu5k3zBU0V/TO6e/FL8WOCw/JWcrLJ07EvLvbXyjkUc3E4GldKPsy2OvRpH62i0WkleYCZAZaGxmNUxu353ju26W2y2G/76/z62v2s60jUV3TofXTpsL/YU0iIGstXsKyqjWk6i/V9kdFERnP06+P9E+OVJUt5yTCSNN2ab+V+tmoECKobA7Mq0wI0Vs4tJpbkeq3KDwFBzUr7UzuPu4ILOCMdITNVkSsPsAdfMyDP//rw//uPfzO3S8d+KV8w7Vp0yJgW0H8utw/djmU+vIiYCHcFw7FXP04f2qbI/UP4E+ZF9QInRqkFnRT/NMMrEIZokb9cyYaqE1Au1pgawQaxElIzE9cjFywULFt2fXvlAeu2O/Q0Phybf/o732mzXfeiPPn+4aSi9fjS5dTal61xWv5Hi3Nv7nBWolxMal3vLy0MWy9/i8x1BOevzvyG7NecLDQCfVi/eerWaNiJsyI4XIQPJ4NyaRb6Uh6BjZkV+xfnspbnj5XcY7Qi5kriaqaTGxeyOuR8GxtnW3Gyz3fjd+zbt7Zq2t01HueYjS4fAf8Rmtawg2eyl+GbhP/6M4j98VyRTYP7IpWpXDjmD3ChZfcuuiy8tjTdCrw0TsRXD4aVDAfn9Ifm98aU9fYs//6Xiv6XhoX97C25e/J9Lapq7OP5rLo8pD8cMVV4ZnBsPtjySXSO74DDxSVpyEwIie2UlZyJOaO3cZI3/U96uMr9GyVj5KL0jdYFvTUPLLEANWFuEy7H2FMA78mnvpRejO2sHtCXlLU/ub35sT/O2vbXfeHDb2pvebrNd/6kv/tW+ut6Iorbg0r7w2hPRjZMJZsgCGydTUiGagDZdaay80OUxtOUgpk4s2Ih3bfWBrQsETae+WXbBSrmRn5uKVOtXXg7aPlfrc8wNoZycuj9uFGsK/b4+JsC6NODFpmT0ZEL9rOB/jnvuK/dtEPC32W6674ngPV2Tgv8Rrrmwon7B/x0m/od7G6mDrorebzD+y+vBfwrBZKdqJsRMkEGfEyup+E8veDjVtDAjs0YuzMgRty9ktS+ktS7uqp2JcZr8//mf/UL5P+d/df7X/iXAW3e7dP/fGmFgUuAg6eJdRp2sAh7KqPxxUqnsgsOIP8hwpSbRWl1r5fxYNR8U/2Uk0zuegjKmZ6Ap50j2kCbaCAXIy4w5Ynr76A5pfxCxArKOoNEYFgHLgnHB98M6UFkJnptac25xmezH2v/yxxtt190m+P/Fb34vu6IjKK9x09G2zUXdG4+7t5nRbG+hTTdfTb4vlHV4RFaztaL/ry6r8iRh7slJoLOyTsGe0kBTS7N9Qh9vys6okIvBgYeWaU3Q+4SqVrOG+hb5TeVsyPLIT8/9JE3Ajpxg1tKSEOs5wVJj+DUtJDcu5rrnfv9r35VfcO2aW9fvjMvtMPA/3DUXVNBrLx1kZUpxOgfgP044rs4bif9MLvBf3kKNMwtkGbQyUPXXp+MGooi6qg0vG2IKsJoOyO+IKOvfVTOR0DCf1jS/v3Vq4My/+P1//8Zmrf+9FPwnEIHXJyNQxpsA/v2pzoczq/D/Zf9RYskPE4pl0IJUhFWBMh7J/6ot0ApcrQKAxiDvVZaRXAwrdHa8d1xuhCDE57c7llgT+gXL80/sbVi/r5H+MmIFSDfrjtqnmW5oRftXZrF8i8f3Nm7Y74ou7Pqbn2yy2dba1t78F3//QG51d0RRR1Bp/86ygU3HOwJNaRrlMll37UJOFluwEZtl3ZnC1lVDltciyFeTizdXNJBmPWkR9HAQwUP6xmpf3iz/P8ts0U7pBBkZTdlYYVkT5blLe/dY8T/LqygrdwyDTigPm67Sx/L78t0peqUASsvVc82m6pGVo8nNi4L/e9yz937ma4L/1625bUt4cq5b8H/K3jq383hPeKmnJh1lWjkwc6bzgPZF8P9a5X9XxH/6fPFGowrGJDbIfTAGuXNYla4peyTsSRpFaypVPnHncXfA8fbtR8VF6YkqG81tPDny9L954//oP/jx/627Cf5n1p1MNcQfaPK1mNpmcDCSWxesorsM/szOC1aAQShjTHz+H8QXfX93IeKfqCiL/yx/wgfDQ1bmj9bpa1jemhTQxhYwf0ASFv7EQ4g4ka0jmCOYIGArwK6yYBgXKojlT/SRAahZ4Os0we1XhTHEpYkmPZpTty6zMsHZ/dXv3C/Qcf0td33n8cDUqr4wo7/McGT5ifDS4QizTUy4nE2mnkw6OSdgJSfM75Jpu1VsAVZG1h1yc2S9cLxT/hpc1Csr+igIMPWTyWa0Nr3NYN5myR12n4mT+3a8U95lBKUF9o91bDG7mchJUMbmbBgauSFKklf8VG6MBu6AYmvEyccnt/Dzn7GuSlazLLyXj4ajgnJmtiUudFmmxOrGa4yR8JqcWZCZEi0N4rFOVP4wRp9fEP2fZOOWLuQ2jX/8k1+QoX7Tne/ZkbRvb9d0XMt0dONMUMFASJGnlhb8l7ewxMgyFXX4OqA3izJaA0DLIdNxlfiPBYHmCl86w2z1JS+Tt9P4UmuTCf5Q826ItDTNQHujm5J9JSkVu1PmV39Acd+W4707jnbZj7V2zv/jC6+++ivD8/fnf9/qm+J/WhsMkwXFf+WcXMB/b7SBiSljFY4BkR9BYLSztAZfdqYVDVthdOhAjVhJigdGkJwKTINeYg35Kg0J6pFMB+KiAvI09jJWvubiF7+RJ0EMUAK7gKoYKxFljcKggFMRXCIncec2jfzZX3/fZrvubXfd/WBwcnRJV1ChmIDR6NITsY6xSKO/6oU9pmo8unJMUN36JAZC7IIAvlwYdmFbXjumAbsg/xWQB+fFOoSYFkSeFxMgZ5C3yznlUV4gb5dn5Gw7TWeV1pnoo2KU5f6QkraiN0EVrbciQr6i++0Tobo4/mv8J8dsviw/NMqZ2V5e0FVGpXyonstJCLAfBT9xCfjdoRnwWyfIuqB9LqO65yO/98c225q3f+ie4D35eztndsvQrZ0KLRkOLupHUVmGn4wiEkAsPGUYKxtHRnWWqXNOs0X5duRYrx7/c8y6CSwOnyhvwa5RMgnhR3aeoS4Yzr8c47qwHlyZ5Fw+GF4+GOQYDiwdCS0ZjC7udM8+97wf//2buS3Bf8O9l0W0gf8prsUV8Z8JyLyT0UWsA9reg+kVD6SVy39lasD8hBpKDy9t8q7KjSwHFPM1/yvH8jIZ3gaU9T2nYV4rQGkdKIaAzrD0CKOZFwF/ViL09sJVJnakzYV1LUAkipCCPC/neTSnevOh+vAjNR//3NdstrXvvvvj21PyQo+5BDHsZeORJaOxzvGIpfgfYcjtjvCou0C39VitA3ZBTYOsCATzBeENo3CoddPBlvV7GwTteQ34v/lQqywBBPnlVLJAEKygfzHIoFJLqolkZe1mWpr1ZJkCm9aCXOv9fE2OzYpOO9RE8J8I/DXhoy4nfVnXMmq5ND5plC6aVecMrQRT0jzJ4fqdj31SfsS7f//TcfnVOe7p2IapyKoTEc6xkOJ+6qqgKMuwpPM71w/Cy3/l3pLUQMyW9Q5m4prEf4j2y5iPrTmBzjP5KZau3FsZzPKNKI6gph5qkEZ7fEgUiv9hzoFgx3CwYyzCORrv7Osw9d/8+O/fXrXgf3q7DM6zGe6FlNaZFfHfGijA/5fhJzj5+J76J/Y2PJxZJft9KY77U50yUGWUEsLFk2GnPx34LANbi+59inDpyShvh0KT7WV06JS3ooHSI+Wa0YsgGqDlxkYQ3qws87EFrAuI0vMWmUcUXZqNbOoeya56PLf8oZjc99zzv222G97/sU9HHKgIynMFl8j8OhFZMhLrHFuO/0ttwbAsEMB8RX4fu6C2QPaw0gExBGIOCCiJNwvys7KQP8kXERMgawQB/xSzVoj8uHxZHEW8XxY7xATQRwUZlOZkBEbMFKdPIEjzO9aI0GviPz+BnFZupsBdjrcc7FqlJJb7/1YekS5wrAcyWsgKxTdOZXbMxhY0vPvDfyBD/ROf/XJGdUdm+1Rs41RoxVhU5XhgQQ+Jezq/4Jng26MgJx9Hd60cs5AB/M82aflyD68J/striPabc2oEV58ByQSRtRXVkSqsQcKFV1oX0Svgv3Mw1NEfWDYUUCLLxqHYkq4Ov//v37ybB/+b5jNM/E9vn0tumU5unUttO+2D/5kW/UaWnxpllRkkJuCx3DpZAvwoseSR7BqZeob6llefXyuttNoLISBDC+hwG7WK8ideTzEm4lfZ3lCwKsNkLpORzPIWYZF6QF/a0/zCTDSwuCAWJJ9IhRH1ZUoTZX4BjKaUaEtYWV9YkevRuD3v+cinbLYbP/7Zr8Udaww+3hFmKMaPR5WORpUN+cR/AHlFeJ8oEC+wLg0U+dmtLzC6zxf3ySPH8rysBTYeaJZHMRDyX8H/FBNngB2VS1VTK8ZOvhqhAzKn5FbId5BGzO1eWUVBb+ylxP+5+TQfJ06uq8Wrx38fXqs1g2wdElmWorBsM++MJE5Sy2xO53z4fuc73vdRm23N5/7yO/tbh9PbJuOaZ4KdIzFVJ6hHBv9ZRhE5VMKw2RRvAXyGEcTCSmAcDtI1wX/sJiQHaGnguWbA4fZDfML/l/OQ+9Dq9VX2wVBnv/j/QWWyhByJK+vx479/003wP6v+VFrzguC/GVCdM/x/E/+t3EKd0UxJVtmpZo6YUAMiDwxUwtEyVuW/tNVe3nURQIbU4aXfuDg2wwgnKREihsznEsH2iQlYrw1UhxyiIX1IEWSEWVDjU2nIlCth1jMTKWcLLOwMPFL7QFjKHe+9x2a76Qvf+kliUVtYYY+94kRo2Wi0YwX89/HnrcEfqxXwCRD5WIRwo2ffkL5e8T+4qFec/6iKkd11E2IF5MlEU0In0VKDgCdJthRXVjsvExcCkVggoA8Dk0Trywyfv/vCokCXACsyOdVGKE3RKtdz9fGfnGUFv2pxVrMRehDfYNyEFNfsXvfsttS82++6WxZxf/69+w+5T6a1z8Q2zwQ5jF/BSLiYpGL1pYmqKZ0GPxwlCvg5KG3KN1X8l5uMxUG9R/Ffy7iW478cLMd/+Dz4J3S+YJnMQhViqlIvws229Spaq5U1vubAjP+EOEdCnOORzrGE8n5//Me/6Qb/M71VEICqzLlU12yKa17w32eaW4MD1PYCLCxIUaOS8Y9cCZMFJo/CrLX8lrA/y1UonTLsccWf3N+EhhVUTK2BstojkEHJk4QgCJlCAcLWhJmBFDUEcIFUa87aLoqLgV0vRuSBtPL7k4vD8up+uCN2za3vtq25/dsPbEst6w4r6guvOBXqHI1xjkQ7hiMvGv9ZMTvgg/YX38UWyMt4lOXAlsOumKrxnK6n5L/yvbTxpepsgEXaalNekOOt1+MeZpuqCNo2SxmDNI0VFMJMZHo7O4BU1iSCdRhoCE5eRhmIjAFy0FYzfVmAr3Ynw9vW+cKfLGVfmsjO9hYUwxPgTxlmP0TTRZ/Z2za5zp5+69vfZ7v+9r95aMvhjknB/+jGqUDxAUrFA+k2mz6MUDAiN4H0ASNZzgDxhmAa94qWu9Busy00HiaCekfZSzuIKZ8fYk+mSfKRt6D/g+wPMUymA8FM/BlMORkHtR1UK2tYz9o12xoRCncOhJcPymIn2DFmd4zudvR2+vt/+TfvZsF/mTXiH3rwP63dt+cjy14OGPPJXoG4NJO4qLR2/B8Uy1nJqrqOtewLBCZwIY9kijcfbnt8Tz0VW7CGcMDIF9PwiLwwCjNaEyrXRvBfmwhbG3vh4GFcVGjOKkDNK+X8MqllIWMsuos602v6vrs+xLb2bWuve8cjAQlZVcNBRX2hFSdDPPg/+Ebif2hJ/5P7GuXJAwM/TW9bjDZVXwILDdUX0r6yUxlEG0G5D4QjNEiimEyvWLnDrLzEJsqx3BmWYIFeFg1ZcjEiiHjnLC1SA/+V/M8Cypp0vgLyj9Wx5xOtMUC19Yr/amKyvCKi2d62FNDPMttm97ae/O6G8LU3vfP62979UNCuQ53TSa6ZyMbJnY6B4JLugAKPw8AXp0yD9RQjnJuJfinOOdEzbi8KDMA+ljfbzBcgzrxa/MeK/9YMghygmwrNlR5ncgZ5i67juMNynTKGWVxbJ5Tmgi1TYNiP//5ttc0H/1NdMsxmUtsW0t2+gp/qhMs4tJsib4IbOJnAMhkBDUTAvRdIsUp6KhrrcgD8197BFIvJmbVQS9EJ6LaKCAF9EFrk2iBLWBsKYGKYFwiTasBfy4GNiFOem9wf/B85pzHRWqay6/u/9v3HbLYbb7jhrp2792fVjAUW9odUngp2jkaXD0c7Lxv/fXZr8F9TABf3/+U1ud1P5QrwmpCiLatQy7EufOQr76qfyLIo1HGsrXVVKwmooVqNtDg3iltktcK8HuosCsOUXOGOItfgE6i/XPzXBBMBluylRQrWA6Uicwy7FUPA2w0Qds3sbR772o+etK152613/s7W3bmHumZ2t0yH10/sdPQHFnfuLHCTHuI7UlrOGNZSax4J/iAPSxMWbgViy1mm3DTCoVb8Vz0fKuPkyn3wX34OPhFUV2YasX1ugvparMhoB8NMUcKDlUHNmPdw2xz9fvz3b6ttK+K/4dV3+Nbmw38g8iOjS5ATws+jObUk/tTpgjhBLgDeGqwb4jOkehX/abkCk01gJ8pcCOgrWUGQvlTGDifUNQLjX/b1+xo3mwVT1vCOTgoUKiggJa5LntQ8rZsVAfx/ufjY6hPxtWPJjrZP/9U/2Gw333zLuyPSC9IqhgKW4P9ApNMXsS8L8K8g/rP9qFv+G1zUa5zBBPltx9ykekll4r3DCScukW3JiuK901oRW6k6eNbUDLUS2AU4VNx20jRK5cUZ1k49chL14TVVdLn4z1IOWRurWBOyZkpwZZWxr/+nsmMv5CDX2xgabrwBqq3Te5tHP/vNHxi1X+/+iD2n4GD3XFzTVGidgf87C907893kWGEdaDBT3qv4z45vAxQLhgOzWAGq2ulHDP5D0ZED9Hzk8lbD/wODP8NwyIsxKwTl4CpjYflcDYSSbhNLhMtkJTCwfND4j7EKqBjy479/W22z4n96+2JK63Ryq6m43rmCPAvOP3FmSNEwDzEBDFQmi/yJyhQIh0j3yGsEqQSlcdSJc2oqFuyCNaRdv601wuGOQWWwEJ3ANGAd5BHJUDx8JgXzApwHIYE7mTsXAqTm7gmAi0ddMbJ+f+MDGZVP5Faui8l57yc+J/j/tjt+J/FwdWL5QEBRX1jFyTDHaGT5cJRz8Cod/hXzvxeJ/2w90ib4H1jQvfFAs1FWbH5NKKw47RgCeZRbIf/lRmEfwR8AmXYJWjRqbbsWZpYb6D3RMJ2WS3D/Eb4gBC23F3OMiMHV4L9GfmT84JCrOjSROhY7/PqsBOl7iy2QYUnACtNv4L9rJrdp6FNf+pbNtvZdd38i4Vj1/q752MbJ8JpTgWUDOwrad1jwX96lCA8ma2KdED1pdGt0SD5RqwiBbiQN6RdAGkLsER4791/+lGo02jiLfRH/31BNN7NdGGW+svx88mgN62VYGhwbiQBzMS7HYmKIXyF1RQ0+yR1jPVjpj//4t1U3wf+cxsn01tPgf3LLVIprRg6Wx3+yLMIsMkRp70VbagEcKrZIActONQ1UTCISZoVmv7Xny6ZDLdrwBTtCqJlqF60L0DNYtTqV4WBlEwkKaXmv9hzROA+PTA0P4V8gRRxLL+UmpvZkQsusvWps/aGWh/fWP7Gv6oeBu279rQ/bbLfefueHdxc2hTk6Qxx9Mc7RqLLRUMdYWPlr8P+v+S4mIMisbhb/n3qxAEPgyzB/HFBBLI9YCgQoxFhs2N8ky4fU1vlMg/P5dJprYafc9sIeH26SdWFyiRkKnFXBHEEeufMXwv7dVyJVjf+PrghSPGjj0NBB8zi4ChBjtGG6vFdew6ijE0RC40yGe3q3s/ljn/xTm23NB+75ZJLDld4xG984HVM+Hlk6JOAvqydSrhR/gfwX33VFwI6ZkEccckj7YlM8nc7MgjgWApDZyBrITCF6Ke/F+cGIY0S0yQvIjxKXtbqNyFiOKUnBklzOD79aRjjLNDmh4V85+sOcA0GO4SDw39nn53/6N93A/wzXGcX/VJe4FqfTlzX80qpzmVmP76l/OLMKLg3jzbpW1eCPPKrAgoo8sCIw/FJzkIPMRPvJI+AIWRNbVkfduluzCXJCOYlcg6ocEIaVSUSRgr4Mo2AUAsgckZWIKbwgVxJdfWJX41SQQ5ylodhGWZuPb07Z97a7PmTKxtyb5OywV/faq4Z2lY/Glo2GlJ0IKV+h/vf13ikHtnt1h5avL5REGmFWE8gzYiZksSB3W8vQxI5sEltZOhAttnUZ/uvZLgX/+QmovJD7rGXaV4b/jDRBM8rA5YTUr8kjO1RJdFDlcwXnzWZtE5pC p+DyTCbUJwKPlz6gY99yma77qO//ycZtT0pHbO7G6ZjHeNRJUPbj3dsz+9ASwqX4zXBn+WAz64orY0MrMte+S/KqFlm2TUEfvlSmrhh9aoi/wTT7KbOLasMkizMPsJTRg1apyfPohQIhj1ZISagMc4PNW073r7leNe2woHwspGEigE//9O/6Sb4n9s0ldV2VvA/rW1B8X95/F85nzLRZLKLCUD5U3bBf1XlldfIUMf3JoajJHzFf7tXCJRVMzkCmQLoWMqwp/7Rp7BRWQ3LJaNxmWS0y0crBUWJ66y1cSY10WD4WuI2H+sIkEW3GTiNq5uIrj25bm/9fZmV2wq7o6sGHoxIuvHWd9tst3z497+0p2Usrnk8un58l6zuHWPi/4c43mj/n1oABfnl6WOtOOAYeBf8F7TffKgVQSEWBfJfec1y/L/cSyJkhP7e1eM/JgDxfyVo4VRrjA45aNxdSgthGpBskhfAwCRZkOme2pqd9873f0zw/95PfjGjrjepYyauYTqqbCyieFDwf2dBF9LiBuQ6hpVMe+m7Rod0CrCjTGU3OwqRgUIVXFXs1Ocn1K90OJ4nOkT+F+4TkwvGHWkOhf3l91BmgXyc8dUKO7cea9uY595wpHPnsa6Igna//o9/003wf2/LdI77KcH/VPC/bTaj48zy+L94IEQjmX3yCOSu39coU5WgKJFJGeqUYhHGD/e2erH2efFEmM1FPXNB3qUEOea+ldCyYm2jThkI7cgjy9lkiuElMiXF15LnaU9POIjUJ+inAfb4pqn45unt+Z0/Ti8XE/DkvqpvPrbdtvYOm+32z//FD3KaR+PbJqIbTsaa/n+Y4L9z9HLR8urxXw9WdM7BfCQj5JHjIFMslKCQxo4Ql1hem2Y97aWYA/AfWQ8V/7ka/AfoCInDCrZmgXVXqXB+feKKVHBnmwxMyhmy3JOPxGXedMf7BP8/+fm/zG0dSeiYjqmfspeM2Av7tx9zBxR2s34REDb0gi4B/33iP7oi4E+YA0qGoRMglqVRLOrQ4ZupISDaqeK3rKa1w2+WVwKd+UV7SmvjG7112i5Heb+pbXO7Gk6FV45vLxzYcrh9297qtuln/Pjv39hM/J/J6TDx3zWP/2/4G8vwX1nlcGxYfaOZRkMiDYcq84c4JARCfDnlJ1tZaqx8VToGbjMMFp/yltXwX11QtQLMaNXhf3J/0xN7G5TfqBp0oWb8HxoS5M/Y+olgx2CAocPT8a11m2y2m2y2W797/46MxtHd7dNRDaeiHCPRpSNhjtE3Hv8NvPUKTaMR5OP/E/ZBSkjxPCC/i/iPmABrkIcXL8d/6+LiNa+HX4FbTRHT1fv/Ws9lHBuaVGeIK1JjrlQllgOU9WlSCaEeFqG76yey2id/HLzLtvZ2m23NZ7/yrcO9U/Ed8iNOhRePhHvxHzKz7Eg6X4H/r3YBFwinXSYL6WDo/VpnLX+ljkC5ykwKJfPIn+RJ7RZB2B/XC2dGmyx46u96Pc3mVMQvyyrl2nMuq+dsaue5+NYzcTWTuxy9fv/fv+mm+J/eLn6XjLGptLY5Qwi080K9Z6a327uMSUHyx3LrmO/rsqpluCKZrvFPmMl4/qTqMAQq/gn/k6LLSBPV5Ww03YMpLXMc0DazYJ3axhfvyFrhgvnQ2jGUEtVpRBrdaomstU5G9dPRdtkDi3t3FnYHl/TvrjOKv6Krx8Mcg+HlI7mdc997YpvNdr2YgE0h6VltE1EtE2E1JyIcw0bf8PKx8Io3Af99FgKrwrJFaAK5aSSjNTqk+H81u93LCOLGYsEV/xXMsy3E/uWkgqyl8g5WJQeBtUxL41Fr6Vmmt4mwjASx+xCEZGihwEARnwDvvq7Z724Mta15m4zzL/zV9w71Tu1yT0eKi1I0FJrfu+2YO6i4FyEFGTy0dLlc/PdZC0CQSzRaz4/DsNLqRSBdrln+Ss4X0imZKSryZDWNJZIvQn9kpD4JvcrzOEVU5HFbtDDHWiutLKx092KqeyFNjnv+Mbf7uUNdi/3n/t8vtP/LeX//l7f0dgH/285Y8T9DpphXckGr/hH8xDMnuyROtYxG9XBklFJKDwHDWpZIuYpK/UDFYUVg0P4rx2Soy3ynUlIJjTjwFH/pfyG6q0IXChIydwx6pyluCVec5bZKTONiwYeEX7HlmHv9weZNeW0bjhgqK4mm8XpiT/3DGZXrMqsT64a/9g/322w3XH/DOyNS85Mbx3dWjew0dJiHokrFAI2EX0J69M3dcea3mwqoVvyP8KpPXxP8l5vPT4NIfrZFONpHNciq1Ua5bs7Stg45SxsTZC/VetJwhzXiQUKHwDgkSSJISGEc6l345oObbbZb1thu+PZPnjjUNx3jngxvmAoqHAw61r3taHtwSR/4T7HVpfB/XtMccJ4os0Ab2NdUBfFMIjmqfKIDkpJerBiRH2wczAoiq/ICGeqEjBBa15iP1Yxe+BV6n8ruOZfR/Uxa13NZHU/td88NPfPv/+XHf/9mbor/aR78n053zwv+p3ecU6eCQUhNpQoFEN4XEyCjOtHbkTbR1HyD+aPlvdrnnUANqwM8RtVhpoISBw92OtxRWepC6iNio/0fifcqw18eYbxjegwLVexZMljp69bqSHv5cKhzaEdxb0Bp/86iHnvlaIprQV62fm/Dk/saH0wrDy1ovffP/lzw/13vuTdxf1V0xcCG0r4tZWLLRqLLhsOcQyGXny19g3cSAQL7gv8G28psHHBZ4Z3X2E1AQ1sb/owgUqzZmMDaq5exYZUDzfFKN/v4qxcRdrOCmzUnhU2nJwtVAMRYDFH9hsl9HdN//g/r5Ee8wXbL4zujDvbPRLSdCqo9FVg0GHC0a6vgf2mfKj9fQfJ3NXaQ0phxciLNRm8kZKk1lkd6N7BKlXmE2gOjFG8ftj/LairaGPZwX5k4BJHoC0AhvDpsnvVUz7mcvqfTup5OcT+d5X7qUOfC8LP/4cd//8ZmxX+TaSbuxIKB/+6zGd7+jwRgKfuSIfdwZtW6rGrZH8muEQyXYZze5iEhyyBkZKpEgw9Xk/GvZVwqyIymepa39TnkT1psyyNlYsRCtQYZxjWEZ+VReCsLWrceadeGudo3dkk1WflwsEn1DK0YCSkfjqk7FVN7kvYrgcc7H82q2Xaw5q6P3Wuzrf3EvZ/PPNYUXtb7pOC/YdTGYstHxXyEXX791xuP/2GlAwL7LAECC7ovN7178T3SjMCrqgZVAKzUtMkCplyjH6pgoI8XlwldbhF0ZQH1BQqZDBJ4ksb6sWESxzi5ZfaAe/pz3/y+zXbTLdffHhKftbdnIrT1xM6q8QDB/2Nd2465Q0r7rerK12RX/RMWp8b6wmS4IYRrVJfXnJT7RiBUjil4xACxc2dgXBD8oS4SSr91PRtgkLtaqW3EpqARd0EjS5z/rjMpHedSOp7J7Xr2aN9ZP/77N90U/1NdMthkmTmT2bEo+J/WfgbiQbYpY8g41MopcbYF/GUtoCXzZOhk+HmqTrzVWwr+VuU3XRRQ9iUjX2VqSAEgTaPqELS3Rm5X4waZXkoqSTfwhLgrdFCQnwNW1gpThqU45t6S37m9uJclQFTNidi6U0Yjgz31O4+6N+xrfDStcO073mWzrfn8579x0NkdVtq3qXxoa+WYvWIsrnw0onzoNx//BZ+DxFc0OZ9i10KK+675+QElbevDqpCEvhYiqSGm+I7AHaszlYrVNu5WkTclN+ZY2hP4FCSSb4JdwJkZPMgTHeqc++RXvi34f8ctd6UdKsnqPBHqOrGjaiy4ZCToeM+O/M6QsoHgoj7NQF2rJQCeCQsi+a88KtsZHRI5pjuS4T6Z6kDyXyKo0Pu1w68WHZPpVjdGtbPoZ8c4Z3VA3tmzIug6k9l1Rvz/tK7nBP8Pdy/68d+/6XYB/1sXrfgv/r8P/su4Es9fhpmMVYI5MsgpZmGI0jmROkqFfauSwAVNEq84IdNBzmYlrcmg1aTtVtO3XG/GdkiikaQj3Yw/qV6lVXyAZ5hEpOTko4lcEU3akd+14XDbxry2jUdaN+W1hjgG4uT6y8ce29MYWtwXmNf2g6AUm+06wf+v/fWPjzaNBxd1b68YCagcDTeUHwz0C7fC4DIBh2sQXbkWO+AfkN+1+VCrrAV80Ptqz++N//B7Qb4loUnSR/WllaJpVZlTTSFtxMYZ5L1QcSDAoHvmYxcu5BdMRWsZFTE1J+zlI2GOQTyHpKaZlObZvO7ZP/izr8vveMft78urdOe4T9lbJ7ZVjO4sGw7I7wkq6LY7BslMyYfCXrsm8R+Sv0RmwHZ5BlcfrQbS0/ICJc3yTbUpAy32OCcrazmh3GqcIuu9DSfRRnmjlwe7zdQJMYoO6k4kNU+lyFzoem5vz0/zes4I/vvzv/6NTfB/X+tsdvu5lNaFlFbxoucE/7O6zmV1XeAV4IfIeHsoo/LHSaVE2mHR0ylPmZ9QPVVyzWf3qd6iYxR+l4r94tSJF7fd7ISuXXE9jXEPt6qygSAbMW2ZxTL4d9WcTDZa0synydwR90kGfLunhQ0qYQIRqKkDR6GlgzvyxW/sDSnp3nHcFVjaG9s0H9tybvOx/vi6qd2O/n94MnSNba3g/9d/vGFv86mdR9sE+e3lYssGTHgfC/PWf/mA/6rI7/Dl7a9Iv1+tQdgVwLXdjDzILRLPf9PBFi0cNj+IXmNX6/+TkZQbS8gO7IXKHk7zGu/vbvUHrDFACPDk9CnNQ8WIsYGcAitKojrKivFwRDmQH7r7qfTOs8ltCzE1J+WrZbTMpzfN7G8du+eTn5NBfud7P5HfOLa/bS6mZebJssH1Jf1b87vtRX3RzhEAE/W2axL/ocwQNhrtMCCsUsKM28MxLYesXhaWTjXfDLeqYSqlZU6+kYx5gXe57ZR1GCNkld+FptJMnG15rYHHZXUzFFc7k9Fy+lD77PBT/+rR//k1+O/f3rob+J/Vfi65xRf/s7yaz+A/balljf9Ybp0Ygh8lltyf6pQJyxKe4A/0ztXo+svxH79LRYOVJWJ0DT7WIWMYmoociO9K1RKiN8S0TYvgwiLIM7JjMgTuwkzvCFkt6BPISiib1EAhh8xKmUoCiX3RNeMxTXPBlVObjvaHlwxGHHN9+XvrBPxtthu+tW5HWs3I1iOu0DIBN3Fu+03tzbGwMt/6Xx9hN+szy59fTr9fbjiWt4a8Mv8f7TgKvqwnv0r/P9Jbe6vCelY2oxZ9WOm72k7Lqt1hXS/ITw/FRQwBjRg0sKM141bJvt2mFkSyaz6j+5yYAMH/2NqTgpDpTbOZTbPpFZ13f+wP5Hf80O9/8XjTiZyWmajGqfWlA4L/2wp6Iov7Bf9V+vVa4T/tOOWcmvbF/5fnyQvQTUzMBHEqTbGR89V6hwvBH/G+zF9QxvaKY8PnR4Hia0yc0v7Q4p7g/I4dR2UY9IYXDiQ6ensWfubXf/NvbIL/+11zWe1nffA/s/MpJRijXkvpfaLZ81fcswfSymWXA+KWMp6p2bfqNlx8R+dZzqmR3ixv30BSw+AVuKfaNdbhTTGUTA0VQ4PrLkZhkxmOVl1c1BEJUMOaMPCkTOBLzjYYUzWc2DIdXj2xbn/7Y/vdT+Y2BOyt/uif/JXcnDVrb/u/GyPjSnsM/YRjbTuOtwcVdhrkopLh0NILvRq5wovPTS3OVSuwXH7NZy5rhbLP+S/d/8dQyi2Sm2M1ItzAqzcBKtYNGgPLRKpJxCvjlxSMpgBUA5wgiaHI6vAMDNR45AVU8gKMcCbR8YA5STYqkOS+rBFK+rYXdAWXDYQ5BuVrZrbMZ7fMRx2pvuu3f1d+xs/8+XePtpzKbpmJqJ94oqTvyeL+HYW90aWDUc4RKJdQ7q+A/7/iTk0ZzQLYjfPXe0SbCZwq/lPbq+BPxFILCoxS4roJ+R1lVMtov0QfQF8WVT4UVzkSVjIYcLwvIK/Tntfsnnrml1r/ZZSA+eM/b91NIO7Aivjf9bSSf4xKxpJ+1XzTDiAs6uEbINqgkvIXkWvQHfYCDTK0kxRLAEKyxKtVzWY5SKotMKxAcX+Et/RVrjbU62oSXqCzMEHmzaZ12CSgdKRjS17HjmPtEc7+3Q0TAWXD92U3hTjGA460x+S33v2Jz8rNuf7mdzwckhZR0LHtSPvmvLatR13bjraKidl6pEN2OZDdGo9CYIEFy3K1/9V6/upXo7BX96vkasoZUPuRBZFcmE8Q6ZpkKBT/7d4eaor/gL/8xARYrD86toBcDE0ZlBtP7h42C2Co/HaVu1EZ5BQz3GcEScQtqTsV6hwKKO4NKe2PqRzPbFnIbVvcnnb8pjuMJP5f/2D9YddEZutMZP3EhuL+TcX9Owt7I8sM/N9sRgVlHF4r/EfSU76gIr/q16E1RGZWnpcvi+YhkR8V81TZZ84mbgBjzFqysZpmuI/vEekcjHIMRDhGwsvG7MWDsYVu97Ti/ysm/vu3t+5m4H/bfGbbmeRmPBBL/MdoB3+apShqP+v3NT6YXnFfikMcadbL2gVYXkAF7gWC/WvhPwkyOYM18sMBelw62hUMl0fLV/O0UfWxNsUjCqEa8jsLe7Yc69pyVDC8NaqiP67+ZLBz5P7sxvDyE5tya3YXt37go58S3Ljpjvdt2n0wotDotLijsDuwuCuoqDOoqDuwoDfgeI8uN2R1sPFAszxqPAqLYN3FOmAXNPLjM3/FcKiAM4+yqCGipXoOl7XLu4wE+sEWNH/4aOuC5epTwKgWoFqvchzhZvsq8rygvTziylIeZaRrTSUHtINQf4K1omsHODnka1BRUALYhcoyWZ+y9zyT0XUusXVud9P07obJ3bUT6U2ze9rPbIjdZ7vuNptt7fefDD3YPpncNBHVMLm1uH9bcX9AQY+9pD/SMSifBY0NytDV478Mab6X9sImKETCV74sSV4WMvAZSIFRuaZsKC5mV+0p+clkPBD8UQGQ1byCZbHH/ojSvvAyORiPcY4nl/f3+PX//Zt3I/6f2iweyHxyqzghsxnuBfCf5CkES9gIqBfKfHkst04mJrRPlA+Vw6yKbZHlo1bkl9W9tQiL/h04/0iXEP/Z1/9T8r8G4UempzdO8ppAZIVTBbdoM+6qOnKkA0g92MtHA0tHQh0jkRVDURUDuxtPhVWMPryn6aGs2p/E5j0Su+fO93zEZrvuHXffuz21ILKoN6RsSPbw8oHIisHICvmIsUjnmKYnAFhrJMqgfHvNAQYCKX7ZzeVDG5x8sQtgu7joMsc37G/iLXKAaKe8/sl9jXLMSXivHGNfaAcgnwsgEGKKqRrn68vFGHGwA82kgH34P5eyr7hUsa4vBNgpAxffgHZsLAeI26vgtoyNLG+/YCSL5UcnrghlkR+FHwvqF2F5z3rNy9rFppBmQlEzw2Sp5fY+m9P3bFbP00YKuHUupXkuu+30/s6nHtiZYCp4XPdkTObB7rndDSdDq8YDnaM7igd2HO8KLxMgHYCNSeuKa1L/SywUUXQWPoiRytVi43By6CmMWSSprb1d4Lbx37gaoyxFRpQC/mWtByPLB6Odg+L/28vGostGk5x93X7892/eDfxPaZpPMuM/4L8RhDf5PzJVqTqHgY8zg9iCjGR1VOgnrg2bIrysD+3bor0FdY0PRY0iL3RxIc5hZeCBXBb+4xpZRSyNVYPTU3RGdFrx36z/HQ0rPxlWLv8dFP8/uXU6vnk2qGx448HWnQdqn9i99/a7PmCz3fDRT30lYn9tUF5HmHMstHw0vFzAX14/HFU+GlUxrmKbuiTRxIRMWODdmrYWNEaEUxcFwDh/ZSkhx/R5kZPIMa/BWGAFsAgYFAJQGn1i1xWE/AmLQwr4CgQfllKGLmRh2MFqgeXg4l5+Zbx3+e2gJuLhk38xiWSnqX6ixAktceV8Elck/ytvYb0Gnx9qkBYUaMdDY1gSbxTzUT4su71yVIx+YsNURvNcZtPsd9YFGUn8NTdvSNq3t2cuqv5EaNVYYNnwjvyegPxuu7E27JdTycVfK/yn+AvBB/LXuDrkvuWC5StDq0CilrC/FfytjwlN03Lb5Yc2yJxytaZc4WVa8Av4H1U2mujo9eO/f9NN8T+5ZcEsn1zI6jwt/n9Gpyf1Bravy6p+IK1c3H46/clIBq5llKKuT4dfus5p5ZfmApQRxCNzHAYpwV5yedqrcYMZS/GIc14y9RG+EEEhQV1OTnEQV6WXYUQqnMMhjvHgspHQ0r6oyoHEZkP8P6hkYOvh1tSawcCs43e8+0PiN372q9+LL3BvP9gWVn4i2DkS5pTzDEQ5h6Kco1HlY4L/1pSueuByMYLDTNsIb5xKPPBtZlAroWEqvn5yt0z/2lPiq+sLYDR5evt6v0iEt4yXJYachJep+QDtMRDyKDYCCQujO6Tp/GNTrkztZ0kk2RtViLBE2PByZSQgREY/OMV/GQaoA6EQLsivsR0gHe0InHnCR4A8/gZWW/vHQQcNY8FlkkJ3YjRlYXW4dcPh1o1HXFvzO6Krx+UOxzpHokoGvvS3jxj4f+PbH0/cl9k9E9cyFW00pxsNONYVXNjHOhTlZ9yYq4//EN0SNyO6cpzlM0LQ5DXks+RL6cKZ3JnqPGj4iDW1R03XXBgyFzR46Md//3ZNNuq/khvnkpvn04y2pKezu84Y+N9xToP/Mm0p8xHkFyvwUEYlagwMYyKZ1jJP1VtQpp/6/yzzmeP4eMR4qYXXfrVAxOXiv7xS+1ttN2MIuF5KUDTA30syCS0bDCoZDXMYGnGJjScSmyYEQx7Jqb8/pXR3acc6e/LNd7zHZrvxq99Zl1DYFXSsJ7hsPMiQ/RH87xf8j3SOyJzyAUkCLHTdkjkrCAzrBiQXl16gWP6b0X46p+up7M5zud1P7+l5hoPU1nlBaXK1PtFdNDzlbOA8YSX5jqrwr+sOEr4C+/Iy+TjBRq5BznllFQQrElkjvFwm+Tgx4nKHZSTs7XuO9D0uPdafnlzIPdFjF2K/9vCFM0DVAJkaxHAwGaryF+ZN5fj4EhEs9MS2lg4ElfYHlw3sLOrZVT8RXzex/ZBrY07dJz5rdP5de8td90en72oejWmd3N22EFc7FZLfF1Y8IKuG7fmddI0hMXH1wX/8f8hyVlEjGrLIYKMimIUzghXq/GsEiUwEtLpAM8QXYcl2+fHfv12rTfB/T/N0cqOsNxfS2xcF/HO6z4L/CM+yqKeShUCQTF7ilqxSjVJHk4wHjKu2GwLOALuW/EAOQa1dprauFKhqVPYIy/zLjf9486rDhF/k/Cyx5ZK2H3Njg7QNWUjpYEjZiYgKo3lBastkfMOJx/bWbzzc9nCqI+xQ7V89uGnNjXfceMs7f7A+LKG42146HFg6FuQYCXUY/P9Ix2Ckw8B/H4aPTk9wWOCXnJ36/4LMcgD+C+aD/FkdZ8UKpLctqkS/vJ51AZAe4RiiYxfhHRIE4Wb/Gh8+J91e5CTBZvjIXB24NSx2BQzSC0xyb44jxOiM4GE3yQHeO2oDhuSaKXpPDbj8mjJmvKjuxl1HGNxaFMavby0ThjJK5B+ylvY0V51nThIJN1juQ9W4vXI0rFzWdINxdafiqk8EHGl/KKHk7b/z6bW2665/27u+G7xra3HLppJO8f8T62ftRQNhJQORVePbzfUmRSLXiv9P/EeuTcWLEDXFyVelC61bJy2uEwr/nwP5akYfPXNJ6FMw4sd//3b1m4n/U8R/MtynszpP53QbdLt00/+XcSiz4+HMqkeyax7fUy+oLnNQhjfrAijKyOcyH1GDp2AHQ0C2jlwecRh5AQthksVaAcSB1gXj/3tAVf1PHdgoSHg9wAjv28F2mSmm1tkoEQkooAbD3PKaMCOfOxbuMCBUnP+o6tGHcuq25Xc/mlm5I6fkM9/6gW3trbe/43ceD0/bXdYd5ujfWTYUJKZQ3iv47BgG/32nG36piduEJpDcwYs2dMby2mVGe5QwxVs2d/Kh8hhoNs3E+Qerw7wtrnaapsFofWV2jxL8DzMzifalCxB5V4DJdCUZTVmcRgyuAP+5sXK2nSqyZ/6mpJ5pAAeNUyUgQG/kjol7aDmwtQxQ9QA1KkichxQAUTuNEZFW1uD/hgPNxBux7IEF4mZ07Czs2F7UHVI+GlF9Kl6QvGZk597y6+54/xrb9Tfd8f7vbo/fcKh+fZ4rstYUXhATVjIYUXli29EOOq1fK/CHR4SzQUk7xGYYFFb8J/KjbH91/lXSSs4jt2KLKZBl91ZPe26gxUCr9V9xibck/+sY8+d//Zt1M/v/Tqa1LJr4f8Ygf3bKKuBcWvsZa9msTDcxAY/m1IoVUG1/qAug0/KyL5J3pO1U4AVbwFw2VXAHmOy4dnoM2YNOfz5U0uWVxSopoLFiLIgciNPFCpoC/6VvNBjR4aUjUeWjuxomwivHHtjTuOFo14a9DZtT8z/+J39hW3PLne+5Z2vyod2VncHOjh3lvcEVw+HOEXGiZPf4/8sKnD0GyIxjI22nf5LjzUfaoqtPCBp4pO9NsVPCJnInCYYoYVUTKLRa0y5XtLBEH1ulNngZZaf0QzGgw2z4ewW0nwvoYeKYxuTVspO+eXJ/0/p9jZgA7fWGOUDrkgvT6F+YtzuDFvDqzVGeAAd2S9NnqwqEVevVPHDLLd1xtG1bXvOmvKaNx9q3lgyF1kzFN88kVPVGHylbc8vbDRLX++7dEH8sUhz+yhO7GqZiakaDi7rN/PLwpsOGqaKhvJZcXSX+EzKVL6L1LKpJBbbD8FF5f10XJFrko1W0ihmE+6TTwVpHTyJG8d/HBESVD8WUD0U6RyMc49EOv//v35ZsVvzP7BDPfzGz0+D/p7SdZi5AmImpPoFnzmikewt0HbBOBf91R+ETQ0BUH/AXuBD/TdUgrVWi4AmFuirUhpik7toQnIiBdhO2m4KKfCIdqcB/2ETEKHzwXzyiCMeJ2CrBhIldzTOb8nu2Fw1ElA5sTct/7z2fFNy4+6P/O6GgLrVhIKS8K6C8P6jci/+OkSvDf2qCtD09ziFRApn+8GTCLS2ScaGtqU/gVwFW8V8dbD4XtNxspomvps8L18AnykggXkEPaK2tCDGlZpSoSfReSTtWwY3l5tsqBmv3NozQ9o6rlZDoX83kkayJeoIK27fnt20u6NhWOhJRPxdZNb7zYOX6uPS1N77NZrvhw3/05bijLZktC0kt84L/IaViR2RpJm8c2nS4nSIsUPea+P+K/1rYAv6rUqLGf5T5icadZoHBfxU5p95Z9Wy5q3pLV2Pnehd9Q7EVw4L/dsd4ZOlIQlmPH//9m26K/ykG/p8F/zM7z6a4DM0fQZuHMirvS3HQXQsUZe7Txki8Jhg71ka9K+xeL05OiAgzgdyQkj6sAFlglvaaRAb/tRcYbyQmrBwS6w4WaWcBQVpxs+VqaVi2HP/F/YuqMLgiuxpORddPbCsZ2FE8kFBzcmdW8bs+9Ps225p7/vDLOTU9ma3joZV9QZVGswC7czTSi/+GBXkt/GdZxDylwR86ZrJrTSigQdfLAFOzUQNiupJS80fojNQ20TY1DbwRD9nTlstk/lxZ5peoApqrfBeuXFxloFLwCisGy4XkZjhpaG99HxesrT+V6wUfkovXlYt2arPeTx8Tb8V/T7mZocUtBq4vvLw/uHwovHYqpnkxtGRA8H9dWIJtzY2yf+R/f3V7eml681xk9Ul75ZhZxO0KKx0MKxnaetRQ1FSv++rxnzwCIS9VNcTQK7arFVAGBTu2QMNEGgviLXKH7SZ3Tntbe6izXrbAKpoeA5Fl/eGl8qexGMeYv/7Lv1k3L/6L42GEfbI6Txv4LzPaZaxVBUkezal9OLPq/lSn7A+klVP2xUyB+QMWLS/41Tkb4VV7ZlKoDgzrWdAA7NpmkhitDh7nAdIpMSCtYC4QWtXhhJVK3RBWA/UwwX8yaDAMffDf0H+rGE9smo6uGdtW1LNuX/O6PY2BeW0PhKa9/b1G8dcnPv2X6ZXdGe0TEXXDwZUjwea7oi8Ef14D/1HFVPyXZx7JriEVAv0J6xZQ0IWxe2JvgzIh+fpYNNVJJsZCL3uroo5SZeSRdRMeoxE69lJHrsb/lxOyLsM0a+MSxTdPq1lTcBXRBqSMiYRri0N+OL67NmhgTbdE0NjSJ2K1JcAFiyC/Y5kY2b7IqsHQiuGohtm4psXgor7I/KbHo1JsN9xqW3vzH33l7zamFGa2n46umwxxDG3Oa92Z7xYbEVzUv/1YF+RPhe5rkv+lgBFnydrgwGomrIbAuxxYRO8CCThEIbQFGEmBRFOACzappy+eSRCSnRI/X/x3DIQX94ixM/DfKfg/ Md//6ab4n+q67QH/zsWMzrOJLYYHbTXZVXLAJNZbDeZ0jJ5YX4yU7Tbr0LccjzUOcsBGEWoBwTDqwfKBNbEQxZs8Vk+aCjYmkNUeFTTICckM8g6giIFwiAajl4S/3eOhTtG4hsn4xpOhDgGHj/sejinfmN21dfu23rdbb8l+P/xz3wjttiV3jYR1TAeUjUWYnI+Y0z8X/5lffBfSY/qqXKFynKxahPhzgnGUgnrYwGxFJRI4IqDxiqVvBGev7lEov0WC4HNh1o1AX1l+I9dJtiuCRpWfHazZtaqxmBt0cgz5D3JcciwETxUVjD3QVvfetHMreRh1euw7jqcvAuH0XBj0SEDxsR/WaDVTMY1Lgbmd4ccqPzJtggBf9vam774nQdCDtQmN89F1E6ElA9vO94eVNQlNmLH0a7tRw3lT0Xmq8d/mSxGS5qCnif2NJAloS5erhZSKLEmwBxgVwOB54/eEakBRFGs1WG6KKCswAjJmhV/O8wa4WDLcsCTwXEOiv9vLxsOLx2NKhtJdPjzv/7twmbi/5Tgf6Zbpqqs6M+ktc+luObjG2cEPx9Mr9iW5xZ/Rr0jjUzKI50ZmdEECpbvPvCI90gSE4QEwUjwqZL88kDxapbF5xncS06rvUUIDfnWfxmk8aGYmpMJTZOJrZMRNaNRdafi6ibT605+/f6ttrW3GZ2/vv6jlLrhpOZTUXUngmXx4hTkH4324r/RDmDZhekyR9Xw9FJZtvskdtWuET/XNLq6uNAp6WnFG+U13D1PIxvztBhTVkAIK20164Kt4H8lVsD8LqrGQ25dnVv8fw1xA1ba2Jc/keWUY6gCcja0brARREU0yk1wQ/u1sd7RJpJaC2C38LjslWMRFUMx1UMRlYPyi0RUT8bVzYUX9AbvcXz9h48Z8Z+1N3/9R+uj8l2JMqTLR0Odw1uPukJLeiLKhrYd6dh5vFuuimbx2rD4Knf5LmSoV2x8Q+BO7h6NkjXa75MClgMagWmzA211xK6vjxeLU30i3Gz+omWAKH6EOwYF/6PFBHjzvwllPV2zzz2v+p9+/H9rb178l6FljLQ9vedSWmfS2hdTXIvRlWOP76kXEyAuJRnb+IapdPdpGG6QkxVdNdG52jqdOQuSaKUwtoCiSJUOuBT8X9EihJnlSJoIYF2gnX99UooGljpGYmtPJbVMRdeNPLq/dt2eOoMmWtT5xb97xGa7UfYvf3/j3vaZhKaJ6IaJ0EoBKA/+RzlGBGougv/y6Zql1doHnlED5D1YFf/t3h6vYLsaDjknpdOAP4l1MdOeAzP4z63YftX4bzeT6dreXdWT5HMFvtDr02bu+Pxo+2jcGxURiFh49ci4Wdv7qrur6vcy0lCT5hdk4cPqhjAUts+IeonvUdYXWdEf7uwLdQ5G1UzHNy7Glg7FF7R8674NZvHXHQ+HJKTVjiQ0ze4sG9op9vR4e3hZX5RjePPBth3HuyheuFb4jxYWJjvcIjwV7m3UqFxWZoF2qSATpIsCn0wBNkIleUkZExpKFUMgvlnDFBXlYTIZLW0yAgs6wot7wkuH7GXjUWV+/PdvSzbiP+mtAv5nM9xG8Ce5xWD1xNRO0KsCug5ZABmrxrBs8oxJ+St9OohgEKbQHWgyqxd7tbCXaA91BBonl/cSzLka/Ce4JNcjZ1aLE75Ug2KJeRJ7VD4aXXMyuXUqpm744dyKn6Q7H8up3ZJV8Qdf+o7ghm3t2769MTazZSrUMRBWfSLIIbhnBP9jzORvePlQ6EXxH4AKs2iQLsd/vTzcdVidVvy3mwKbIJ7Glyz472mYyJlxnmG6ysfJD2fI8l8d/mOASDVqdQYrNbtjCDdA+9V6GnKZ2K6wr03b5cWYZhLHpAwANKTh2BF55gx4ueAq3bKATV3pbDnSvvV455ajrm3HWrYdaw0p64+pm93dsBB6tDN8X8WX/+bHNtv1N971nm1J+/a4JuObZjbld28p7N5R2GF3DAj+bzrg2pnfLWdGb+FaNf9F/E3ZzprdwCfxrD1NW6A1cayLWWEhGc2imwSxtgOwVo0payjNtZBqWoEUmZXyMlMyVJy3UKPQpjPgeHtIgTyKOeiPKBlKdPZ1zf3Uj//+jU3wP6dxIr31dFbn0+aME2yfTmia3n68S0Yjal14fTStg/Mpw5Lu1UShlfu34k4cRjW7rJIviIPJn/CQrxL/gUrKiu3O4eUBnyVJCsHSitGomvHktsmYuqENRxp3FIoVaws+2PDhT/+F4P+Nt7zj8d2Hd1WPbs3vCKkaD3KO2p1jiv9h5YOhFYaI0IphKLj3VlV8vimWTtMZVkOwmv8vpyLao6kQAjIBJuUSeMGGUliHieFWBC7V/L8C/PfwiLx0I6XXGj+l1wkPKvJIcTI2MAHat51HQXWBL7IwlD8A8piA5YbggsKzmUTAHMinky/WdEBw6UCAmL/j7q1HmwX/IytH4psXI8tPbc1p2LDr4Cc++xe2NTe+7f0fejIuK7t1IrZx6omj7k0CicVddkd/ZNnwxv2tgQW919D5B7GZLCyK+dE1zQ0b1m6yo3WEQ+vV0gby49R3GAXsZr5ADYEPfTTV7HbKLoZATAC7WAGD2FZ3alfNeJRjIKigd+uRroC8zuiC9s7Z517w479/MzfwP8Ml7oR4azLRzgj+x9dPbTjkEod/XVb143vqxfknRG91QihKsur84OToDsGPMU/ekIweisFm8dcg/j9p5avHfzLU8nHLeSNWUr3n5Cb+x9SdTHJNBju6Ht1XvbO4e+uRlpTKwbv/4ItrbTfeedf7o4+3RjgGNx9zh1SOBxuCzyeijSJKA/9Dy4dCTPy37h4XXa7ELPUiSaqgDVpqfZM+z7VhIn3wH2TA21c+DGE08N8QB/AK7ECmwsQA2iFeQbyrwX/K8cgp2L31XPyyPlV7WB/KxAh80eVcABZZV74dojf4riwTFPlZL1iRH+Yk+G83cyhKDzDWjHIDjTs/GFrWE1zaHVN7MrntqaCCwYADLUHpRb/7v75os934ro/c+2h0erZrMrL25KbC3s0FnYEl3WGlvRGlg4L/wUX9wP61ooDKGYjnqKQP5F5MOYEsb0lLt6Yz7F75I+aItdIN24FwNHVqqg7nMQTmnmYxBNgC7z6b2jS1q2YiqvxkVNnI7pJuP/77N93A/8y2M+lumWsy+06ntM7EN05tONh6X4pD9keyax7KqHwwvUIMQZjZt5TAIw4tI9Oa5Vy+q+8Ngsngf3J/k0qEySDH/5f/ku/Ts1nfaHXm9U8+NCF4laR6w5a2IbM6/xHeOlN7xVBs/cndrVPbirrvy6x4MLN8456qpLK299/z6TW269753g8nVo3IOmjL0Y5Qo1mAnGEswjFqN7tGhjlHQsTNlt05auze45ByY99S0PP4wdYtZvzH7qWwsvyxBqO4bJxqAhpW28df1VyqyWBxYVQTeyttCSmzEJDXU5FN/jHC+y67RxljyEOkWVp+G+EV07AKGanZMj6luN/ntmt5b7i3dS8GSDVX4QaQvYUQRfRe0zEE3lUGTblDHGMXaAxB8RQLHK00MbPJ/eHlQ1GVhuhTSOlAZM2pBNeZgKL+4DxXSGbJ3R/7E5vtbe+/97Obk46kN07G1k9vKezbUtAZUNgR4egLLxnYsM8VXjZ8rXo+sss3Av81taEKPzJ3aA3Mj2glQiOcrr+F3Vs1iRWAL4dkCsIa5AuQiRNXH/zPaD8te6asvzrOyoFYAfO/C9ntsi6YT2iYT6qdzqobGzjzz88buH/e0//rvL//41t38+K/LMCfyu5+Kq1N3HuDwPxQZrWAvwxRQpEyIB/LrVu/rzHCVEqXZ2Qy0uYDh3ZZdZVvFzCt8QG4AAHi3ioXTBCJKOhyO+ITzFF/XnePapAF/1fcPd61IRo/+P/Ze8/oRs4zTRQd1K2WumVFS5Zsy0EOY8s5jbMcxlHOsi0HWS2p1Zk5gERkzqFJdm7mTERmAgRAAmACQDBndpIs2zt77u69u3dnfuzO2N636gFefg2yJVlqhXOEOt/BKRQKhcJXVc+bnzd3YL5o+KKmez6WHrTGoRzTSHZd59vf+SGFYvv7P/Hlkr75pKbRZClUQRqvTyMl/BOW0tcnpfIBczCVNG15KOWRSs+1KUCCIK7Je/iCI172mYtuHLjxI2qdcLbI4RHLqCGkwLEDdxkc+8B2zgICXR4SS/CKiq1EuQpAF2bY04R5GLTh5BkRcKQR/lQcMMrY+b95h81zy9YWBrs+jp2302BKT2b8Zpc+mjJLzMkyGxvShDi+TG+RGoo/gpbBauOE3uLPsk5lmKZU7YGMrqXsgbXY+qEjlcYnlaV776LreOtDn/6W6mxnad9iVu9KfKsvttmd0jKcYfKpaQLPunSmqdcC/+n6Mv5zY1P4tc6M/xl0H7QnPVxwFqEyIj5cGQGbGveAJtwTAcIdJRiw+JBZmt01SyKAoJ5EQOHAcrF9tTRsFJAsOOm9ctpzpXL4uXLnc2W29ZP9c4Hn/nsU/6MLFtb/Kz1/lMp+HcvFjuWMzunfFRuPnhug249uUVBR0R1IhgABVIjzU1btOK/+5bhrACBk9sZccECRA7yALhIaMg1+wEWoB5BuaQXwPuw+evGTCR/Ql9k9lWtfyOifi2sZTWwdze2dOWmfSyqr23fHAzQtX/vBLysHl7Qmv8YwkWkl2PfpzQSnBHF0JgSGAZ0lIEUB5KEx+0maaEz0zNLwpzQOx16wp8hKu+jGYY8Qc51hB0Q22Xjh6dLKhKsc1EBkGTohEBX+EEABHDWYWMAIy1xdmGBNpN95OQOnjQsdYVK9+GBLAW8RmkeQgrOYQFLBJQCc0QRicCQLEUiSFDg99ifSOmBQsFCTJhDtGMwSHZ+qfVJvXch1XFQZfaoG+++T8vfc9l6F4ubPfftXpYaRCvuqvnMh2RCMb/aktnr0xon05tHY88MZlpkbi//ImqAz5Ng3l8ixFOC3MHaQAZvVNasN13qzZxVh4pAJFp46lgihtmi1riSaMRKd1umC/iUSASQOSsiqCvmF1k44Vk+4rpwY+mOV6+p55/Lk8/9vFP+jC5YN/Hc/LydjS/ivt049UWpGz9ZCufkj3Z/0lkwA5G/r5LIvdPdG6j5uzghVMMJvg7s3xEsjpYJMILcEaAYtiBV4kQRGPKBYXBBxfHaDb7nDhtsnhFEBXWew0LWi753dX9XzZIU1sc6R2+F5LFa/Y9cdNC2/P5JU5VrM6p7OsAYyOycl2mcLwb7E/0yDVnQWv8YyrrFMaC0TOsu43jKe3RXI7vRnmybSG52JF/rTWjwsxSLSOBnecZLIqIEc5L+sDfM5ROA/Z5Yekxs7Yg4B+IgLQDTzVyBoEI4RZbEYgoyQp/xFulgkrGFlvBz832wIYAVRHs5+5+OLNwZuJNTE4Sahr8DeJLTM7VtAVJTxX/qiKaAxTWgMPm1HIL0toLHM5NjXCmxLZ5yLTyuLbr7t3QrFrm899mxVT7DUtpJumknumExophkb0RnHUxs8CbUjWZ3zrzX+M/+PGOlmc0AUEOVyWITOhw6CWgkId5R70/8lvYtJn5BjFif3GALZOL2ieRwJgvy+xRJEiu3L5YMrxba1YtvlSseVmuG1yT9G8T+6hBb2/5wYJm3kaqlzpcgumaVPVUiRX7qT4Z7N6ZkHzQLde9ztF8W2CFzCBS0OLnjhbG22W+HMTA0TCENrBUQgNZRryrhQFBoj14Ruqawis4hT7F5cHunMkxpLIG9wscC5mtwyfvB07+FKq/Js11d+vF+h2E3TEqvNLbXPZ/bMkpigPSXmf7ICLH7S+WlIWyy+VMOoUoo8jqYbRlSGUb3UGmA8o2Msvd6ZXG1La/bg5KHrcqNzrl3SyDWhsk00CgwXYx9a4ySyRuEXwmmnydgOiUnTCF8Bco0Q/uAKa54HqN/wNsNFxpdD5F4QvWosaiU9s3YIybpb+n8iJCxv1Js3DBy4ODiOqROIHSJiECwLEPggQCMkBJDSPYl8KrYEpRXzJFlhhP8646TGENRaZ7MHVvL756psUz9+JmXHnntJ///BEzFlXb783vl080xCqy++iSZ5TG8YT6obTqofy+m+MT3fedB54gxx2hzI4LwmsUqaU2S5IA6lE9iCbB+aK9wbopeVNQEpKBBuAK2SifjQ+pNsT3WHj+RFQd98mX25aGC1oH+9dGDtzOBiVP+PLryg/qty6LkTQ6SZXDkxTLec1MAopsYF2n9ELekOfPZkDz2/9BH0E+i0ABAkh4jZPpwTwta9aOZzVgPYDJA0wlwQjE7iYJaAUE1B69jmweX24g6cdMcjLFZ8Gd1TmX2zefalnJ5FnTGQ1TFe0OH96g9+J+H/tp2aktOFAwuarrk08xSNVEMgzRRMNcLJP0lbkg3+mCZPTJM3vmU0kYx0km6NnpRGr7JpJLHGFX9hMFk+Ey5fgrsek4YTA+qGXfqhHHvRf54ms/1DqAEVuRwA+I9DQbIADRAFFuWgOtylHXFkTjLkIU44ex4wb2xTvDyRutHPRSdEsdkIgpEo4j8Ld9GywCTA70Gf0s1G6gdEmI5bBoS7RWR2TclVrlOZltns7sWsvoW0NnfqectHv/pjhWIvjZ8dSy/tmyzoX9R0zifJ+r/ONJ5hHE8gudYwkdN7A3o+iiOraxZ/E8ELHgz4WOEKOKyfHvsTKMGxnQQBUmTpbX7/Eh4W0cjiMBBKPKRKPaFVKOF/XI0zVk4bSydjp2Oc5ifLulDQvVjZO+2/+t+i+B9dsKD/40k36Rt0c16R+B9cqzm985myuoX6XxokC8CohpQzMNNyyjRv5EdJzKlDZyg8xTRIQaJBh4Ixy/S/eiErEtJETCyE7fDiA1DG9KH8FWaMF0EvrtapMvtybPRPZ5Iavcm1Qzkd41n19o/88/cVil27b7ur8HxLfv+ihBgtPnqNbR6LaRw73jByrMFLr8cbRo/WeQ/WDB9rHE01zaRb5pJaA8drvcnNpO2TPu9PbCCVfhgeWibMZ/WbT4m5TCEHWWwhfwbKf9hd5oPWx25/gDw4tJmWByYDUkm55RntzDlXPLE8vfgiBA1MMGbVQ8ktV/PB/aK5NpPqejq85tpMJ20YsSN8emJQRhtuA4eYCCdA0kD4gJX/cEQ7mNE5pW73aw2T2Z0Lub3LGd2zyY2OuMqWex/6tEKxR3HT7b9TF1Y453P65lPaJ5PbA0nNnkyLP8M4kVDjUrYE8vpuGPJjIDSGZGn2+YuVzqJQ2HKI2bDlQ5dh+CAczOWEUP4RKBGbcnLPaO6CndI0nFLvSqxzJ9WPqprGc9s8I+t/Ced/yvj/9yj+v3UX4H/V8POVbrrxyBq9XD4kV1wOruXIHOasodGDWSg3fMH9KedvX2beWs7o5rcRxOY85IzlDW5DHsyICzlCgoPlBYTF5hHBNSQ6LsC1hTQbTThB8Zp4MSmN3VPZA/Nqk//omYGDpebjZabD2dV3vPtTim377rrvXSXVbVlmf0zNUEKDh17JIKIVjMRGb0rLeFLT2NEad2zjWGrHVJphKrHZl9A0rjHPZfet6buX0gzT6XKvYY0AWRGdIrnlMfw/0Oq5IBTADn4kZMgwTRy6X4Hqja0edOYCbKL4C7YYVHr6CrcMiFDL1UJ1qpjJjyOjpJpbcYmmmRj9ATRhwvknNsfr1Zu6NlzPg8QxC6Y82oz/OktQS9dXIjcIZnXO5/Uv6ayTqrahjMaePXe/Z5ti9+0PfCDpTMsp90qBfTnVOJXS5k9u8mSafdr2UdL/VYbp/P4bqfwz/tNpvxr8Z78QrcDXCsnLNFYcMNqM/2wLYEuGOZBh9NEUpbX40xpGtHV2z8qfovn/0QVLSP8ffr5C9v+fGr16Yvgi6b15/SGqN5F4Fno+9zNlXYXjXBGDb3vmeOEBrmBxMP0LpAaTCfMW8eu8URybqdR5BYfCeuij4UsFrtWiITJ25tKbx9LrhzPqh+ILm3bc+i6FYvd73//hc22dBUZP0vnutDpbanWfvmW4qCtQ1jddYZsr758p650q7Zsr6l3INk9lGALa9glV6xhZ3wX9S6Wui8WuiwWO1SLHGrO4o2hOlHHM9whqd/hb8GijYYE2nIGJgTovsZ8aDBmsQHtH9wR6PXymHxvZ20/4KertIZtLCJFH+POhbSKOwEYcMBkuLFhY/BNSNEE2ECB04GfTCm2A8KMRAWL2GolyQTwNSHY6FKwndYQwNQclFg6D1N8ku1Nq+5jS4omv7k451azYfZdCseODn/xivnmw0r1EV0Tbs6Qyz6S2eLMsvvRmKWCqsy4U2NZvIPjTpST8h+SlSRPR/pXhP60jh5aJZHHV4JcLOQyvxX+0hOZ2YMB/nYnkwqzeMJnX7vVE+X+iS3hh/If///TYc+XD65KLpmcBsEkwldu7AAdOocw6WyhnBLH2jt0irFfcwyIDTATfC96K3+JSUFGsiNyS17OUt5Q7W7pexXHCc6VgaLXAJTmp8rsXKgZWal0XdVVmheJ2xfa9t99139e//5Nv/Obgl3/97PcOJP0yIeNQdqWyqjG7zlLS1n/COFhldZ3qGavs9J3o9FX0BM84Fqq962fcK6c8qxVDS6XO+RLnQolzucRxsUSq/VkrCLV2XRdHoW2VthdIs7qkNQXTJHXXlyZpvAG6BIW2VUHskuxYZ6YCdJChfWSUDjAgg4UPEK0LVwnRK+iAuG/a9dJ4RL+NJlyVDFc29ynjgiacG+hBmBcUZwJTBbwfiDKjKFh0FrHDh7cw/rODiC07OLvgv9rAf7iJjAR0Qb1pOss6VzCwktg4dPiU4dGj6QrFLQrFts998wfJtYaUVoe+b07Xu6yxzqW3jeZYA6kNUtpkRtdS/muD/5LQ7H+F+F8VLoKmV3rKYJFpwuUbsj3rR6w/1HfjOviP5tE6k0/q/yt1u5vJNAQLjGNR/p/owssG/kv8z5crPZdKXat5/Yv5tlVo4+DmBeDkDywhS1nMQ0NPKOiHHA5A1hCOAFSHho+3vKXqWgbIiJBZlZA+LdoXEUgeQSATYX1wljX/dGh4rhYNrWcPLEgZ143ejNbxIsNETHa1FDTcvlexbbdCsVOx41bFLXdt33fPnrveedt977njHe97+3v/6YEPffLdD3/uw//8jc/8y0+/9OMnvv344R8fSP5NQuaTqsLD+adiyqsTTzelVRt0LT36VkeWcbyoZ6ZsYP7E4NJJ11qVc7XKtXpyaI3GqeH1k+5LVe6LlUPr5c6V/N7ZrM7J7M4gveZ0TxUMzJc4lsuH1ksGV2iUOsgWWy1xrhUNEsgsF9iWCu0rcg0RXZ1ptWGC1NqUZq++c5oMt9zeRckMkTvMIpOEUBrkQhx+1QlVANcTBPC6ENSAxkHUTiNSGeGpRsMX+i3o+cj1hfceUQzubiDm/4uszrpwQTR24NNDGiS+HoH/aR0TOjMh3kyGlfT/1eyugLbF/tmfPqHYtmfnjpsf/f2BQ5UNB86YVdYpfc+y1jqn6fDldgaT6qQGo5lSp+C1G4j/hXL8F4hNU/GK8R8cqrRCU4rsCBhTYbfYOGy6UKnLdfw/cst4MgH8WeaAzhhUd0zpO4JFpvHRi/+K+O/f/voff6cR9f+/hRfC/3PO1dOeFyo9kv+f8J8wp9ixVuS4CCZe+OGhbaJ6V/QAiwk5eMvNXqF/wg+Pzrw0xNaHWIdCK/FcyY0FMZjnqjBMgSiGBpgOEfyQcPJA3DA7Issd5k4XeclClovzcoZ1Nq526OmTPc+e7nqqvO3Xmad23PdBxTapaaxi280SC+jWy3ZJOih2SCvbdm7bsWv7TTfv2H3Lrj17d9+yb8/et91y2x1733bnvjvuve2ud99+z3vvuOc9dz/40fd+4ssf/9r3v/yDX/3g8QO/PZR0KDUrNqcisfSC+lxbVmNXflt/sdlR3u2u6Bs56wzUjs03+ldrRldqx9cujKyccS+d9a6cG1k7M0JSY73MQfC+XDFEKysl/bO51lFVm0vZOqSyBLP617N6VvN7lk8PXTk3GurPSJcAcAEvPeM/QweURq1RWpFCxqQ6dviSGz1Hzw4gsTytdezE0OUzY386NfLH06MvnCRAIx2V5LK8As4BKWVlRPpIAjGaZ5p8uZshWnACwDlME8o1agpFFsQu5+HeoOGKErnFSWy1A73MxKEnVcTo11tnkw0z6Z2SMn+ib/qcdfhTX/kOXZpbbrsztvhMYsNAWsdoTu+C3jqf3jYplQmbp+JrnQkNrpy+WRKjrxLw4RwrFDo/InZP9zMn9v9DgzOC6Lt0ZITduWAc3jAkZW2ZkSuWXciJuJIIkBhLpL4VUwVy//d/+/vf/8/f/vNvf/uPv0X1/7f2wvhf5SURcPXEMMHpWqnrYqkrxMROdzV0exqg60GpUcTgoCENdGPk7BFE7mgd7b0Q0MQrc0cjB4bZTviw8HgjKooV9aZGwxAr4bSiOV5n6UPrBEH0PDKzrqzQLhX2LBf3r+VIPaH8Sst4Yqsj3eD6Te6pX6YV/CZG8/jBpB/97tCjjx/47s+f/PoPfvWlb//kU1/53se+8C8Pf/5bH/7019//8Bfvf99Hb7//wb1337dr3x1Sn8Ftu2SJsE0WENvCkmKHLCm2h1d2yAM7YOPNit2333z7fW+77z33P/SxD3/6S5/82ne+/MNf/Msvn/jhbw/8aH/sL55Nefyo+vexGftT8g+klx7LOJVcXJ9e3qqq7NCetmbV2AqbnSUdzsre8dL+YBbNQP9FtXVJa5wp6VsslwMQBEoamRwD9GuM/yFXj5HwMJhpndbKMIsGInE1TnqNuTB47JyNtiClPKd7TrIpXJcI9mkQvBPmE9qTOMBbiAYWCidlKUAgRrcQeO85uxXnQ+twLTI9mlgIHErlImWjwU3gT0PVPiGJJwH/M02T2VJT5ukEw1x6z1pWz0JW46Cq6OzbH3gfzfDtD76/2OIodS2XushuWiUbIaVxgkSA1jgtJWU1Duf2zxQOLr16nT8C/+Uw+sgrw392hJLghuGGijl2siHzE91O2VMXkZR7bYGGX8J/qdvpNPDfI+P///7bf/412v/rLb9E4H+pc0Xq/0Iq9PBVePg5gomnGAFBbjgupnBzsBKQDonAyerKcIkTkpkhJpBPQrIAqSwoXDpydgB7Qo7Ah4zgJsQEbTx4qvdYuOMhytCQ9IIMRtoBSTJMTw1tE9gCg4We0+KB1aL+FZ15Sm0JJrWPJLW5s/uCp7wr1d7lhpGVC46ZU32Tp/uDZ/qDp3r9VV0TVZ3jFeaRkvahggZbxrlOZUVzfOG5I5kV+9Pyfx2j/fnhtJ88nfDd3x758o+e+NQ3fvbBz3/nwY9/9e0f/PS++z94y10P3nzbA7v23rvjlnsVO29XbN+nUOyTshNhQWwIi+1h0cBbdst+bLJHblMo3rZj5107b7pn1+637937rnvv/fC7Hvzsez7w1Y999vuf+OL3v/XzAxnVXZX2leye1bgm38Fzzpgah6Tlyv8dYWJQsF5TPSdHCaH8p7eNx9e6gPz0CuAl/MdGkgWJEgvcOO2Z37dYTFbY4BrJAhIBZBScHf8zoT2tQzSEh2QLEI7RzQMRzy59+PMJISMiPmS4Id6EfVLlnrYklejXpcbQBn8EhamE/0a/2hhMMs1pBy6pDH71he4n43U7b7lLsX333e/7cEZTV4FtPn9gXmcJprVOSDmQEv4HpZut2ZM3MFf0qvV/4D88n6B3QwSfVI5Xpv+z25NMJzoa7m3miQXJLSqCUeKxCfCvSbjSmnxR/I8u11tC+O+V8P/E8GXC/2LHsqSBeJ4X+cbhCIKFHpFAIuaQaIRGt/DustuWSWkQhQQoqcPNBIFOyF1HwjlcvujnhWxnJLeAAIe5EOlBY2Ix+eChHuhIieQCNGA+nAzYk86zwnlZZ5h89mRPXJPnwPn+A+f7DlcPZHYFi/pnyvpmsgyjmo6x9JYRZZOHhqp5RN0yomr0pDe6dS2jmW3jWR1jOcaxXNN4gXmi0OIrsvhKuyYLzRO57SPZLW59/aC+ult12pBS0ZJU3hhbXHso+/RT2hO/SS18LCHnZzGZPz6seuxA4q+finn08Wce+d5jX/j6Dx7+7Nff+dCn7nzHQyQppBgEmQYS+N8sS4FdsvmwK2xN7JTHnvAOtH3fI784dNq2VNC/Fts48ex559Fa11GSgBdCMhFZOtyCIUTL1jqGpuFSrxC6IjTbjR5ap43IHsEO6bL4TpY55Ugo0AqkA30KzhmSBeCfhCNItAXOjP8Z+E8zj2hRiFai2kF3lNg+GEnvkt97JNRNHs1NsrtmE+XmtnSe jCahkeGhP9SH7cUy3yW40pa62hGfd9P9sfKbX/3vOeTX1DVmIsGF/MHFiXu0MaRhDqPuoNQVGKaVbaNFtgWbgD+2zd6B5AtQ4o6eEpJda8S8t9ePvLTDMD5jy4bbF+jaypUI6R+oX3Y9Urzovp/dHnJhfG/wv18+RAp/CulrtUT7g38Z85/1KGL3VUiUri5qBOsDjDnkYiuk4kroYvChwN1XSv0t4J3ApU+ZD6TcAHOg2IUooQ+1ZunUN+E7fQV7iAp50yGfohrZsWBLHesZ3XOlAysaDp8z1R2JbWMHqy2H6517j/dG9swnN0zn9M5m1TvOVbvPkZyp959vMET2+CJqXfH1g7H1rnj68nAccfXDSc2uZOaCEtDI63Zq2xy01A1e9ObPJrm4YyW4cxWd1abh171zUO0ktMxQiPPOFZonagcnDzpCFQMjJd2e8q7PSe6vaVmV2G7LbuhO+OCSXO6/UjWySeS835yUPmtxw9/4Ye/ffjrj77nM1974J8+ff/7P3bfgx++9/4P3HfvQ/fd857t224hm+IT3/z5yd7Z/J7F2Mbxo7WepNbxpJYRRGBRRYU558IuKT9HGKTqHz07kCLNcBDgz8FErBD8QlgQCINnAJaCVHcQjhHk9swXDiyTOCBZAAcRYTs0B6QkwX0NNKObihvEiE3kuQZWQsKxP9EBcXCtXKpwLf4HsiWbYjrVNJvjuKpuH89q6PvOY0+RAbXtpr2f/M5P06utBf1SxpqkjTSTAjCqlhiwAzIT3TicNq8S/+H2wSDL5VXif1W4+BeBe7BAFMplBTgszSH9IrovsTYlNt3gFK9wIYzUAj6K/9FlywX4f9L9x3LXlVLneplrtXxovcJ9pWzoCjeYRpo6t5RCVc41tVRhJUQdbumCPXkFOA/dG54iYDhAG8CO+xY8CYT/WpkSH4yRujANPmJe2AfngGaIMDcQGoBxAQuCbROkoHNgOkMmyCrqXyTEOHS6L6nJc/CcLanDf7zBe7RuWNc5l2FdSGweTzL4U8yTSnNQKVE9B1KNgTSp4UhQbZlSmyaVRr/S5Esz+tJNfpU8klu8SSGJ4EluJD15OJn+Qo0j9oKdXhPrXEl1QymNblo5frY/5oLtSN3AwYb+Z2t7D9X1xTY74podCc2OlFZXWvtwWutQSpND2TpE66qO4QyzV28czjQP53Z68rvcRT2eAqsrv6XrVKP5cKLqltvuUty071+eOHbOsZDXPZ/QOJ7QMKKSrkWITQjVBKIQRPoN4TmUeQLz4+ftNAhmrwmwhlMKwwHiQESGIb3iIDAN4KgncZAsU9DQEej+oXMAKQdOAzhGW+imQpYj5xRtzuAiCyKvd4GODOdPpP5vDGRJlYkzada5XMelLHMgs7br8488qlDs2HHrXd/dH6NvthfL3kuYjXLCPN0zvrhap7rDL4P/q8V/LntHpoSUvNQhZewTYotNbV6ZF4hlItdXYpbo5zQy4RWqPyDWUUKOMNlGRZ5Fwn+teUpjmskwTeUbRj1rf5Hjv3/9qxT//c83GoGiyxu5AP+rhp8vc14G/p8Yvnhi+HKx8xJn4CAKzBSOuOW49xOCtvCrIzTARASgpgH+g5SSmSRhw7L+j+2QHdwGMS5c0AqfEtPgQxYgIw65ELCLueIJEgFOHoAeHFBcAkwPqVTIMLCgbB55pqLzmaqu35eZD563HzzvSGr367sW1ea5pFZfqnEizTyRbvWrOwMaa0BrkVoGaC0+sql1Muez2iK9gvxZ2mIcp6EzhIaqYyK13ae8dqQbAqltE8drho7VDsW2jh1rGztQ63yW/kKTN7ZlNJYUY1LXm0bi6oYPnbMfvDB4jKad5qTJc7zecbTGHtfgSGgMyQh1S39Vj+s3qaqd++7YfsvtP4vTnHYsZFumCfyTGrw6AkxTKFbOaT9i2Zc2TBejap9QtoyCRhiZP5wX9NIN4sNJRPgifEdkHUAiwHeHawovH6AJdw5qCUPlGOF+wZE5ve6rZKklyO2GN/cvyzRN5kgmZ1DTvZDrWC+zzZcZHB/7/CMKxc5b737P4ayKkm5/kW1VCvHLp5HS4pVdjmOoayi6EcmfiI7B/0P4jwQn+uM0z68Y+V8kKFAVLsEAazT9IiijkZWHoIkUVqt3oze0xjihM9FtP6kySF0SiswTnlD+TxT/o8sW+F/hvkT4X+S4WGhbhuYPPyRwXiRqg5v96DkbIrOsgcDDgJJVxmFOEIXLCO4IDgWC+hIFR6hUIoCCsxqKfdguGGVZAPynr8ObAecGFCFEBHA+7PFGET3TINODg0YGtMMfysy/ym/ZX9F5rNqZa1vNs62mtvuTW8e01gmddULfSa90PmN683iGZTwzPDIkCmh5mH16iYXelyXlWvuzLf4cszT0UnXqtDjSTVP0mmqYPFY7fLRmSN0xnd46GXfBnVg7ommfyjTNScMwq++YVjf5k6q98dVeZSvJuClNezC5YTShxq1sGlO1+rTtfnXLeErtQLbR9qXfPq3YsWfXHe94Jrvi3NBylnkqqWEkpXEkw+jLMIU66WAOIxp0Si0F6VMwUbSNE8bCx/6P4j/SRzOt0wTUmeBxkiPLqjDOw9uDwmQE90FoQ5gPTDsz/mf4f2gFvGc8TgxdpgOSbIL+Hxn/NRP+SwZdtm1V0zmjanbGF1+4730fVShueufDX8xt6D7lXC7oX9FbpiWQbPUktwyrTePKNm98/ZDOPFUkFX/dAP+PiP+wNF8L/I+wC3ii6C1S9ZACTTYCGHrD7XUGkxuGUlvH0+X8zzzDqDuq/0eX8ML4XyrhP2n+65WeS2VDlwol1WiZTQBk9QBG1OF21UzmjFQcpiMAIGMf+H+QFAEcBvJATEAucCU7WlnRW2A77w+dH4diWQBPDm1BLhxcT8whD/IcQhvIJsgFHBzihvbMk9L2llGzKSXXGf2prVLLg/yBpdSWMWXbiN5K+CkP04TeMJZpmsg2+3JMoZEpwb5fZwroTYEMeWQZpZFtChAo5RgndYZAumFyYxgn1aYpGsp2/7Fq19HzDm2rT9M0kVLjVjeNZxuns00zOaYZWsnoCKqape009G2BLMNUZkdQWedNqfHqWoPZxtls87y2LaiscRZ0uL7w6G8Uit233vnO9JMtNe7VTEMgsc6T2jIidSiQDJNJbqzAQXPOAtLJ9EQ0SP9PkJmEtUJRwMsZmjD/wEbNUbgWCbmaYjUxB6ARnaGZR1EG+zdQSy4WcVcMX6FDkTWBI2/O/8kySO7B3MG1dKM//pz1J4fTbtp3L03IR7/2aG5jX5VjJbdnKdR4rm0kscmlMo4lN0s+uszOWRn/X60JsBn/dXJ3DFp5+dW+r8wpBBOJmwhAgDLFNM2nlI9kDqQ0Dqc0jyrbAoT/haT/R/E/uoSXTfh/sdJ7mfC/wLbKqRFgoAVEc3k+J3wyHQ3Ub4Ia5PbDXuDeJRH+H2R30zOCFmDw/6OVLTdJgVsJ+I+GIMgRYvwHQT3ygvCW6QsgpGCwsFzghlP0Nrt7rsi5ntk9C+dt0cCSumMsqcFZ0DtbODCf3uaht3rzpN4yKXtQAxkGX6bRnyUHHDEyjAR3Uzp56OWRaZrOkgdheA7BuHEKzSK5ZSQpojTUxkB87VBczZCqfTyt1ZvQ4EptG1F2jKW0jyoN49IwTcR3jMY2DqU2uUmsZBLoGSeRvkJPscY8q7UsKDum0urcJQ32zz/yc4K7O9/+UEltT+PQela7P6HOndIuGS9as+Q6g7uMTTZIw9ArXS851ROR3JDz/2WDP4sPHjLyX1uiJRsgzFoDNwWEMjcFgEcut3cBrICQAgC0ItsKUkDhYtqs/+daAhnm6ez+5Xz7Umn/5I8Opih23bltx95HfvG0+pz1pHMtt3tJZ5YwOaXFk9LmVpvGEppcKc3e7K75YtulohuN/6RLSL/VJCUwiPXRN2ps5pHmX4E5gKDD2Ym/SK0EpCKCi7k9M8lNI0fPu5LrvfmGUW/U/xNdwouI/3J06RLhf6nrYoEtdFcT+NODifgd1Dl4krkOix0LcOmgXRHykwl2SANH7h/W6cGHK4aUdiSEEzrRztDhkeQJnIcCD5UVB2f8hwMKZwKXEVR6BCZwqhx9lgjSN7UhA5F1Tt/C4fO2Y4gd1Aw+U246WGkp6Jsrcyyr2kf0ZrniXuKWmZJejcGM8MiUB20h/OchCQIyscMjw0BvI/3VWhkeCccSauVWlcbxhDb3weq+Q7UDhxsGD9T0P1s38Gy97dmmwafrbU9V9x6vtSW3DCe1eBKa3YdrHIcIsVtGEzv8yaapuHZ/av1w9knzxz71LwrFnvseeLiqxV7rWs1sI/3frWwbV3X6VRafxhRA6hRKayEKYZpBaifJ04UosKp94poT3uRvv57/RxcOE+M/ikeAP5x7GQP2wZCGQDAX/bGbDpZmSNMgNYDUA5nlfnP+P4ngAvNUbu9i1uBqkWvlRJ/vW798WrFt1649d/4uKUd5vrvCsZ7XuyzFfNsmEhuH1KZxjXlcEritozk9C0W2i68F/sP38trhfwSPlpg9xZwq/NHpsedPeq/k9C2ldQRTm0Z1DQ736p+B/3+L4v9bfiH8P+9ar3BdKXFI2QUh/ge6n20btJ90SzPZlNiZVys0Y6J9kI2DBE7Up0ewREL55IGwL7uFuV4YooH258IuOJq4aww8/Ag3p8odsbE/k+rjK0yezC2z8XVl6yjwn17p0wNV3fSLT5aZD53ui6m25/cvkuGT1jamNV9XDdbLQ1aVg9eOSXFojZGs+MA0mDwyEo6mtI3E1Dhi65zJzd7ERnd843Bsg+t4reNotf3I+YGY87a46kH08pCq5KoHj9Y4jtQ6Y5u9xySl3R5XXHv/ez+tUOx64L0Pl3d6ygYXtW3+9JoxTbM/nWwuqVXxJCQpdxYTR0RQgGv6OKF3S3Lmlz9kAJ+Ees+JwagNhIhnvlCuztjcMI7zvvTXdqhXG/2Z7YEy41xW75LOtRbf6lRW1H/8019WKHbevO+eZwrOqlq9JYMXs7rmIPuSmjwqw4Ta4JMLTwIgrbqx/n86Jvw/0DrYu/VGjpGrlSNXS9zPFTiu5PUsFVl9nvV//V/M//O3aP7nW3qR8X/thPNyqYOQn/T/i2VysXyBfQ08PHR7w4EA3zvT+YpsvQA6PJ7w7cOHs8EwL3QH45EiQzeiBhw+Zhc9xxHEmEKiXHxEwuLgqV72aXD6KPt5UsN575Av3NyEBqIVdD4wbUgE4CtS7xWZZYWeYnqlc9NfSzXwCoZWKI7YwEPZaYZ/LcUpmkbwF8Tu56BcSKgbTm30KJu8SoknR2ZFaCJDwBvb6I5r8hyrc8XXDhzJP7v3nvcT4r33Q585MzhZaJ/XtPrTq0e0zb50U1ApNawPIg7IjrvNtaLiEKnhWBy84qHbaNQypQ239IKZBgWAZTpCEtqwv4iTVHHhkA/G2VyceJzZMVlums+3rasdK4ltzidTc++6+10KxbY9t739YFl9WutIieNidvc8c1XhDqEfpaPl9S2Ct+HV4z9KACL8//QTm/kM3xD8r/BeKfU8X+p+ocr9x2rPxfGr/+3f0f/rr/8n2v/rLb7I/p+1cselUuflE8OXCf9LndL9XBjGf3pGoM/jyUVSGT+DiKzBxmecZ/wX69C3LFHkWCREDD01oOhhJVlM6eTOwsdkDGe0RO0wHQ21pRFgi9+C0wNOIfwK7Br6iJ5ZuCPod1HpjGzVTHqQXxv8R8kDThsBdJ5eTufGSCZ5F663leRCkze5dZTAP6ZhmPA/sc72B03JjlvvUyi2f+DjX7rgnc8bmFU1+9LC+J9mmeRUK4ZWcWy+KJt1/lep/2vC/Xzxx5GgyE3HOBiB/45ryp2CYbyA9ll0OfLJ69v9JcaZfPu6xrFc6JiNyTyxd+/bFYodd7z/o+qWAbLRCgfW6PpKZkXdMIqnEA2nFbqxbwj+QwTgUMj/hMyl0wP/6huO/5WjV0s9zxUPPV8x/Dzhf+CP/18Y/6X+X3+LmgBv4YXw/6xjtdS+XuYiW/Uq4X+JQ9JkCsOp0XQzg10BaiSeVsIT6Gx4SLUC+IPpi3aOUC+3RBv6ChxK8NXTblUy+S3KHpmxjcncAOPw8DDjHNAD7iA4FiBWGILAAifqoiTaSP2jr5MpQd/aX245fKafDiUFhe2rSFB/+Tkw/yj+Iy0Wpc2ES8zMw53iN1peyjW2KLCV/inp/A3DMbVOyQtU40hpdPwkRqu46S7C/4e//L3zIwtZfbPK5gnlhREd8N88yaH2l4nYkMvcl/NV4v/mix5xHGaBZich23Tw10FQ4mrSKTHxOCzQTONkRe9KTt9ynHFcYxj+9WHlTTfdRvj/ie/+pGwwWDK4VmyXmlng1oUTCUykkqE3sMKM5a9+4FBQXVCuTqdH+P9q6r9uGP6PXJX0f8+fTnpeqB25HPzz/x/C/7//p4T/f43i/1t3Af9/ycAa8P/E8MViGf8LZKsW9LPwHmjCXRSRtsGuG6boBDkVlDroPy/ubWAPA0K6dEBC+yo5aMXpH2ITMdS8IL0ZJNIot+fOI6g7YK8Rk1RDHHDyP3Q/elSZdOjQ6T5aOVDVRU9uocwVgLZ6Nxz/YSgh5RWkXjBwNAItf4TE5KJ+Wpf+ZscEmQDxUqTArTeOfPPJGJkdbvc3fvHUOe9SRu9MctNEynmvtnlCbZlUmvwor0Cp3WZ/zpYSOWKIG18x/vPXuU2kTuAPwQ7MYCCKA5RywKLkeEGI4sAUyDJPlXUvZvctJHWMJpzrfOTR30nE3QrFDw/F5/f583oWC/vXQJXARiJi0HTboFvBq8d/Zv6BO1ErJzvhvqJ7lbMx36hR6b1S4b1S7v3jiZG/nPT+qdp7Efgv9X/5+18RB3ijQSi6vGELPSyn7cvljsvlQwT+l8tcq0WDUm8R0v+hgTNbGmuGyLrhNk9suSNKCzc+k/Owyrc5fsfaJlI60TIPtOdV4WpH5Dmg1AXrUqrDSCjJDXkO9JSBNBKppyhG4DAiJ/8jEAyiIeRpHDtnR1EYlO1nT/bQ+RTKxQ4hl3U4px1Z7jcE/+FcwslwWyttOFVGbIAoTZd1SupvS1Bp2aBX0tCMGXzJzSOZ5tGv/e6IzP92888PJp0ZXdH1zic0+pS1Y7oWX5ppQmUNgF4PLpQISyRCq2cohtcF6jcsEaAuK+E6oWOjxnBNq3dduGPj5mvN7qCIq7/5fFjqodkEJw9wMAhpvVJxa4evpHcpZ2ApoXU4s9n+1W8/JpHj7brlF6l6jcld0LdS0LuGJGFYWygwp4PQ1Uf97A3R/0X+H7hD4dV8A/3/XBFwcvS5ytHnykdeKCP93/tCtffS5J/+5//i/l+SFIji/1t3Ifw/ZVs64bxK+A/+N8Z/8MYzMz83adKGe/ORtqOTCXwQaUWU9sjZAWRdogms6FKOeNK5g5guzA9DOjnKjWE4n534C25mCAUerFMhBQ7Jb/QV5AWhxAA8Y5zwj3AwOxMQ/KX9n6nserLMvL/cQuBPbwkWCqWE84lQ/uFGY5TA5uLTV4b/cEEz5R2C2myYiFMkeYoMvjSjX+YXCmjYgW8MZMotDyqd84/8/rDcqmbf8Yzyk95lVfdcQqM/rW5Cxv9xdadUBIHCNxyfNW0xCiPq57giqM4Dpwc3cOQBD5vYvZHxf7Nw114bt31Je0E8IAsCrumDjsEpZHSeuT1z2q6pw+e6NeesH/n418gUuuvBDzxdVJVmcud2Lxf0ranDtec4DcQdgP+svd8QE6AwzP+Je49+67XI/3wF+F8xcvXEyAvlkv7/wnn3euCF/4H8n7//7T+i+P8WX6D/Vw49R/hf5pKc/0V2Cf+LBiXln56vo+ds7Pbn+C97/jn+C6MAfiGoWIAd2OxMvMZqIWfvA4Wgn8NqRqPYiI4tsK/pQSt1XoR3CMo/NxGmx5mVajiK+cRwkthCb+mAMBkkUosGD4mAp05YUaeGmCAcEWLBaQTt2Kv0/wP/YXpAVgKTr/GZGAIq2mieTDdPqi1BjXWKTAAd2QIy61pe70Lp4Pq5kbUv//x3ksa7fV/W2fay4UXNwHKacUHbMqNvpy+OqiwTqI9DiBnOOh6cFYOWWxycRbN1WqEpIg0WbkAIeoCwmFgFhgcW9OL1ZaGAwBDugZeD/xEawubQA0v21JaRnN5ZXfdUbHXf0ayzt+59gGbjQ5/9Ynx1s6bLl9O9XNh7UTJe2scRkIKlCXL+V8/8uSX+I0EOf1/scP2GGQKjz50cex74X+F+/oJnffKF/xnF/+iCJdT/1/08+D+LB5eA/8WOi/SMQGGG+sSJmqG6IVkt5DodMcaKFFDOacQX2Q+vEjqMQ00ChxuneeAZRwEvVHccAY4IrZznI3pu5fbo67QF/FcAf8Z/EXghbmBlANMQO0AWEG1BLjfkjl7mRmMkhyFwo/Af/xf4D2gSHWWhaIsxhP9ppgBZAWQLqI0h0oYS20pR/1KW0fuJr32XEG/7rjvzai0Fg3M6x3qW7Uq+dS3XOquyjCqNUlgZTRDokqHIgkSe2AchlHEqJMrSVJM1RPuAWwCuNu7gTFNE84N/AUHAAz4ZUEzQNdWFKcFFW+Mfwn/dpibFYr8JWawH8+2LuYML2daJJxLy5G4I2z/7nR+mG7ozB+cKBy7lda4qW0J9Ihj/aU5wrV8L/Ocg9ZsH/ytHrubZ13LkYrdqz0X4f6L4H13+Hs7/OeX5Y5lUArYmgb9tEfmf9LxwjyEob+zqEeu5oMfiUzyVSAFFRiWwAk4YhotQukuYRBoYRXuCBBI8t8AZgmU6CGrExBJRRipIIlSzwvkDkQGNVBeGFGhlkAuwLGgH9vzAcIB8oR3QkVASDa1j4EMDJRpcQC9fCkTgP0s9cFkALVHghhgE9HBugJvaNpZq9CsJ+U0BkgKk/6vlI5AkIvzPskwdLG958OHPKRQ7b7v7Qf2Z9uS24WPtfk3XWkH3xeLeRV23P80yxilPuCj0pwim0GaLBoq74cfThpmZ4XUHfRmQnx1uzD8JWUC2GELw+C7kNQuUCNMvwuH/kv4fjcArHuFBwgXN7prL7ZsvcC6nWSYy2j3f/uXRHYq9O7fv/eHTh0uHfNmuxWL7c1nmRfb+4bDITGbQviFSQMR/OjeaT6QWw1B9Q2CfqSEqPJdz+uZSDQGlcVpvmj5pX4jif3ThBfn/pP8T/hcPrhbZF4vIBBhczR9YQegQVJw604YyxhzynBEK7w0sBWaHo8eNG3wAcFBshQShOJltmP0J9ITSkyiyGlbJ9Fa4kzUyTQT3tuDgIPulgf/wb0AuQEKJxNTcUpxOg3CPVo6esx0+00/4/5uCtt8Vdfyh1PTUCSt9C04nJLKC1j5ESiA3wyKxFRIKYeozEfNFAaG9NuORc2nAZQe1HO41RK7ZrR2Hlot1rmP1QzENw4lNnuSW0dS20eS2seT2cWWHr9i2mmOdO5Bbc8+7PqBQ7HjHQ5+MLat/oqz9N5XdSS2TBd0rpbbVrL5pjWUjYwf9F0BKcM73XzDDIjqxSw0hdRoIX8ocAn/icDzIearCbUrwEe1J22nAAQ4ZB9MPmZBsGL6kIcD4jwu94fmRp5rvQNqSSSKgbzHbsRZTZ1eeNT/0sa8qFLt37LzjlzHqctdM1sB8ieNKpmUedoro/6dJCJE+yUluN8oKKAz3fxT1/zcK//nZKbQvpXWMJTSPJrdPprVMFJgnJp777/8m4n80/+ctvBD+Xxi6eEIi/5Hwv3hwqcwlaYbZPQvIyRd7j2oFNGOVjPO30YoX3iECMdqNAIHw4ezEX+iVG1vTwXVygTyTNgOu6ZEh9IAzh1+lBsSOtbS2MTjJOUAprrDPXPRIcMFvvJw/z7iKLuTQ2RBToOOQIYBGk3BoIwqAYlVIEySfSIPxOWx6sHBB1IATZcWgKsAf9hG6XyHcgOaVzM/G3SpD518/dKzOFUM/RP+Cfrd28HCd4xBJhOaRQvv6CftlVVnHnXe8k/D/I199NO6s8Zkq8zMnezQdk8V9q4V9SxyF1IT7xtLBSbTRVUB7qSo5sC4OJpCkUSjXQSPgAnEAQ4DZZgAyuKbwEfFhYcTRb4G6QUwcffmOoJA4uHZssAzJHrms/uUM5+Xkekf2OeN99z9EptBNN9/7i5gcXbtXJndd04X7AYnc+CTcC8O8Da8e81mIIAVI6v8iX2vgPze4YWNK5O15jaQDNH90kNdbJ5XtoyrLlL5nWWsMZrQOe9b/9d828v+j+P+WXsD/U+64VOK4RPhf4lgm/C+0r2jMU2K/0YgOL6InloEOFgH3c0c+P/wMUCbpnjw99mfcovRFJKVAEIglBpAmXAFKe0KgYEtEUrroMRbpJnA+SMODWwNIjtwPxjR6cmn/pys66cgIdCKyACU2omEWTgxUFUg0pb/JvRTZE4XQKnxi4ulxyBuEPHBKo1EmpAn+L6u+yo6JpLaxlLax9FZpSEmMbaNxHeOJJn9Wz0Jp32qM/tzuXW9TKHY98ouncqwgfA4W9ZNpMK9sHuMzEaMwWpn3gC8KCVmeCnB94ErRq1buvwabC9k+qI+GUIakANSwgYBMXe5XBdooORfrmlyvzfHcfwj/uSulpP/3L2v6luLO9aQWXbjnHYT/2+9576eezTqvanIX2teyuufh84eRyN7LnJ751wj/6RXkbyDLeqPwH4eV8f8y4X9KqzfNFNR2LZJuoG8e8l78r/8exf/oIi/w/5QNXiyyr8v6v4T/BQNLqW3jYsUNKDc5ix5QrAnzP+Bx5nU0nA3x28gSgT4ieIGiSEYBQQeqMlEviV9BbVdu7wKUVahqUInpR4+cHRAVb7EgiPtRsjASqxXgjOVQL60g8Q8pRjRo+6HTfRAK9CDTK1Rf2sL6M5sbQG9msBEFAaKrWOdW9epruw+zMKJ/xFx5CHDDL42YdUiwWoLp5kmVTKeshw/HPJlk8qu6ZnJ7F/OsMz99Ol3uBb/rO789pG515PRMlzjXy5yXtR3BmPOO4ySVwoYPrh136uE4PviUEMfnDH9IYYAY3jJ3E3xu6g4/CUoQNQPzwTaMYDF6FKKMmtv0sNNGLDfYcrw4/osjq3Mmp28p1RQ8ftL8VErubbe/g2bjo1/6QcopU1qzu9hxScb/IPAfbigIRE7+uSHOnwj8pz+IB0Ts//h64j//KPxy2T0zpP/HNXrjGseSGkay271jV/6fEP7/7T/lErAo/r91F+Z/KBxYZf9PXt9CjOyRlljRZOcG8jrgb2cKL1EQADTg/ITnRCv3fkV/OpgGIGCB9a2Rq1kJ7VGeg2IZOBAIVWAsQDUFINNxYMvDycNM8kkyPyTyGyNUccgO9vxzZinhP2p+nzph3V9uIeX/13kthN4oHKCnmB5nbbhYSXNt9StOm/kZItjMUH1Mh6KD0ylhisTGlFwoQXMLqUo7I9AglGiFoE9tnkw1Svn/UvUZLBpLMMUcyLEvF5OpYg5887EjMv7v+d7+2GOnjSktw3m25YKBVZ0hmNY2kWbwpRtCxJ7MuQdbgMP34BriGUMEnNO6aCrg8EflNV0sONn4EiA3QGqm3L9EO3BogK4jWRk0S5DaIqsPy+vN5tuWdsHmkLqI/3kDy/ruOU2D7bGDqbtvvkOx7ZbPfedxbb09t3uudPgq4T/Ng9i6CHlo9EduoNs/Av9pNlDQTRuZh/n1x3/+oTLXer5tMc00mdJOkzZdaZvf4P+J4v9bfgnxP9jW8vtXZOt+uWxoLad3/tgFh9g2Cz1T2BnCggBecabfAWDCA08IUBXuVUoYDpo1tgho0NMNSMHjSfvACy3asPyMwClB+6AlpbTuktR1kiao6AfIhPBW8NLzGcKEoZOn78L6oH0Onuql8dvCdpIFNAivEBxEQg5nxavkRucRyjxi0ExHwDQUKDRjNRtCQey6AnMGKApBgKoKGClsv6hMAaXFr5JpqDMk6JP7zndNFw6t5XZN6RpdX/3xU1Lx1859v07JTq7vTWoZzuqdz+5akPrRWKZJfKgMPjGFksup1GEeD6T64FSRAYUoDGAN4Uv28LC3H/2AwK2NP8X+LsweXS9SA2AosfcJ+3NZMYfj/yH/j9hrLEvO1NJbA3ltrh8/EbN9576dt7zjF4fV5b3TdG/kDKxm9y4qW8dhy0BLQZSH8f+G1P9G+P/RKZVe2QMvsvG/PviPh45+Wo7UPF8xcqVo6Erx0PPlzitS/e8L/+PfOf779yj5z1t6keq/bEuldik3WPYGS/W/9NzF1LiYkYzbtXANEbviAXfcBRgwC3I2QgnOf+bcElonKUNPIjNFAIcJiAjbxd4WW9zb xu3Nw5IoETnDJVVF6ZW5jQhqO7coR7hDAgmqfmL7ASmk+SEf3gq8BTTAdGVAP+LO2eJhQ9c0AQvE3xfSHCCnqkWKPfZ8w9tnw7IDTEhSWGbcCAD5A9KK+G/X2+ezDJPZZhnVIaAvncuz76QaR5LPd/17k98XaHYsfPWu/6gKUqs7VaZx/MH1/TW2fQ2+b9bJlUmXwSTTwQ/Kk8RB50xUXQyNDl8+TiZEDFiEqDcbYG7/Bw+03/kzADSmRAokaj+azeCGpyHA7WBk4chC0Rf4jVWgNBNkkswIAII/wv6F5JrBpLKmz/0mW8qFLfc9+DHdKeMVc7lQufFPPt6Vs8C4T9no8HPJvX9lAXcjcL/iDxSpNrS3fUGVv6KXqBK75XKkatl3j+We/9c5XlByv+P1n9Fl/AC/ocy+8Vi+3qRfaXUuZrbN5vc7I1v8OAx1IU7fDFdP0sBdrCwJik2eaGHndRstMBAJiGyR+gtXDpcGkBAAbUc4M89jDbf2OJGpKNI+C8/4BHKpJikFNF6gJ5QOjF6QtEym363UC4ig+cHUWCtnNCOnBnR28MOHzESwds3nEJCSwKNQIOAVxTTISEf8VlUt4lALft//KnmiTSzT2cKZEhtyKbTDZNqa7DIuVxmn8lute1718OE/7v23fOktji1aSBrYDbXvqo2TytbfSQp5MKxjaMxLY84uERaE67F49pkmo2I2QakQP9HYid71fjeYOZqFpeI1MD9DinA3R/wxzciEeFGANyeWBuO+YYiv5xVKzcCy+9bLLUvl/cEYnLP3vPOf1Iobn7nh7+QUtFW0DuX77ycO3hJ3zmb0jTCjkcEkujI4Gpm0p4b5QiCFKAppfOnG4wR+E2C/2WeP0XxP7pELIT/JwfoObpY4rhUMLBU5lrN6JyMqR5Mat5oycEaKVCR60k57R/mAO3GTJsh9U/2C6GXCpJGqoQGdmfG/0yvcMXQD9EOVWFPKemZUvdSgfOHHyW+vTnhHC2i2IONV9QLiAVEXOJEujqJHjgBaKA2Ac2yUTWcaZ0RE5y04T5ZmjBbHdMKJTWGck1hJnA6EHw+7Pln1zdgFl+BYcW8eVw8ywiZ1jGeavGlWSTqiSxDUG+Y0lmmNdZgsWup3BYsMTv33Ps+hWL7rfe9J668pmAgkGOf13TNJDWPx9a6Y+vdMQ3u2AY5aytcWcbF2rqtuPi0YX4hhHVoTsRpZ68FTRRCnEhn5UPBGIRPjGUlrDz0dIO5B7WBKUS4aoyNgoiqDTDvobkw+v9myLx89Jrfu1A6sNjgWT2qK99z+7sUips+8ImvpZ42Z3ZOZdsvZtku0nQR/kPCIi2BrhHiGjcc/9kKoFuI5kFiZ4rif3R50y/A//LBS6T/y/nwc2ntI4fO9MXWhSgWGUIj8u2hK8J7LLqGkEMi9lsBTxcEAR2EnhTQu7ECDz4EZJsQ/NJp0EYYDuIQy444OkBHQ3Uw9EyUdImNw8R+gghno68NfgXrUpXB4Br8MxBkrKuLCrzomuAdYF8AuBjDxSppsXwAEwW3ErARA64z1CzgtCVLqt51tMlxvNGZWDecUuNOqvHG17rTDRMn3CvFveOa8x0333afQrFz3/3vO15yvtA+mW2fV3XNJLdK+B9TN3yk1nm4OjQPHBxnma69lqJHhHHuXcV+NlH40rVThg0u+LtEa0uUJhCUoVrmcDlYiMlTlgW4KEwcweIDtw32JEsqkW4eMqbIvjP44QUKJX+SEUfG0fnO7/322LZddykUu//5kZ+Wd/ly+xezBi9nO65k9Syky6oI6/80CaD4voHIz22y6VUqnOmeo79AtzFu79ffCxTF/+jy8hcZ/xc4/z+nZzqlxU36/9HzUttZ+LHxpEcY5lCPmaUHOM/td+H9CEUb5X1Cj7PgP2cOXnjCmduBuwnIwLKRHwKPPRLUEd6SyhttK3AaEJ6DsA6p9cCQiBQd0BrQceB/oPOH8UJfpOPA4aOWW9JE5CiK3nJ+ZdhEYJEODoc/d0PjTH6cD5PjSY4yIWUIuaNodgxVWVqXuv3an63tP1TTf/ycPfbM4PHTjiOnB5Vt4yXOhZLescP5VTftuZ1A774PfuLZvCq1wZU5MKfrW0g3BlNbfcoOf7LBl9w2xvIIIgATKxbxaQTeIa1cJpzYMEzrGwSS11oBJCtRJUf/C51AGfnZYcgGI6d9asMVcMzkiUvDbqJkwUgR2wGj9zG9ogNOUoObRlrrWLbMAZVnDWRWd37mGz+TmyDc/LUf789odhypHozvCGYNXsrpW1SHy0m0Mql1qPOLbSV/YOlGUQBF4D/dXXT+9N+j+B9d3vwL4X9l3zz6f5UPXQL+JzW6k5tHkcYpKa7hKjDO9tRey9DCpgE0Q4AYq3Zc/s8FmOz15WovyAvsxk4k7uEL7BJlB4QRd5UlUQKDgrlrdGFyUdH/T9tJ4tBHSPshSHmy1PR0RSepl/l9i1my5U77k24ZYn7jvEROQZHPEL8LfIOii3iHODObMxtFeORKN4AS5y9x8XKCrP8fqh08UmuPrbbHnx+MOUcXwpPWFizsX8o3j/xBXbxjN+H/9n/6/DfiyxtSGh26ntmM/gW1eVJjCuhINBvpV0I/B1+T3Pc81H6F3f4RMg5zjtwtFG6jzgu5nTTDhHKopRLjGhFyJCKTX5wBEDFxpV5E+CDC/5PaOppGO8BNRHNFAp1ERrWDpGdG10yhYz27N3jKNvaxL31Pobh19+57f5eYd/Rs568rLUcaR/Js64W2NdweqMaC0xLpxzABbgj/g5j8SeuE/9CXqraKYb0BQ+7/FcX/6LLlQvh/ome2qH+11Hm5yL6iN/tSmoaVbWM664wm3DaXOy2Kzyb8PGJ5FNP8Aq6ZrZ0joYgdsHMYbWKwBbQMYGajJxS8ZGj7CJgVKH9DnD+cWo98lUz5hPHTkpxqD5keWuMkSyhUsNLO6PaYLKuXJN1I2SZ9kkRAOuF/hw/4vyXPG22ELzoxTHPNbarg3drsBnnxgXRZ9v9vVFrJ/G/J7b7U9vG0Vq+yaThZkgtjWuNCqe1Sdpv3V4k522++Q6HY8ZXvP6Y8Y0puGMq2LWfZltKMY2ntI+mt42ktE+qOEDKjzhq9DzRhvtaIvgwYyJKFjKNLgCgARECV7PxHfavYrUBE+Jf8vxFxB37L+ajc05ku5bHqwZiG4bhGd2KTJ7V5RNU6ppEFQVKTV9c9q+tfjGt16tu73vnBTysUe+644wO6C90ZtplYqz/VEpSav/StaGS1H6Yojkz3GPv/XyP8h5BlF2UU/6PLm3Yh/C/vns7vIVt4Pad3PrWFQMZJT3dG56wuzJyPhxSpnsy6Cd2eUYuJlHUyXQPtQxhOzwL0W7Fglgc9j3DD6mQuCHrLvP0E1OjwCP5PbAQdKJiZgZwQTGDs1MtNhOknyPRAkXIEW7XU0h3tXdonYJ5IdQ1NXqmC7Lw9p3uuoH8J3G4g/AfPTETyOYQCiQkSHGnyH0fwAq71fxT/oSpzC3iOVoSsAFJ3W8dTJFT0pLd4UqVUFr/evFg2cCm33fujQ+mKHbcqFNse/f1h1fnO1CZPRu+Ctms6vpEmeSDmvCOumq6RVyRHPXJ2AOKbU3c4UZaFOE0INwtAuIS2gzQVWVuYdtT6iRJky+pd7VZ1vpzjFPIUma8RQ7i4IV6ptjEC/5j6oeM1kgsoqW5I2eRNlatFcgaW9P2LCW3OZ0qq3nb3g9sUt97/wKcz6wbSu/xxnQENCXrbel7PkqwzjODuhZ4AX1/hDer8siX+46+98cgfxf/o8lIL4X9Z13Ru10J+/4rWFIipth270J/U6Fa2TTDDg5iXzqqa2BGAHfsQBIh1ljjWKz3PgcYZfVHpI5j/iLTSwekZOef7LwQs9HVQBgGsAIBceAVoIhRCL3jQStNbFI6hzgV9gRHj4/4m3CAeNUp0kEI5Q5vA8JnKrv1l5gOVXYdP98XXugj8yQRQh9u+IMPweqzOhPyEk8VyhRR+FL6sV6D/oygV58xcpiH7qG7oSLXzuOT9tifUDMZVO+PqSNoGS/rXTvXP/OQw4f8tih03/yFBn98+XNC3kGNb1ffMpnWMKsleaB5LaRxNavCKeTggfxAj0cxix+53jpKLtWyogIDPH6cHuRDhQXo5+C/muEZMl1iYEPq6JZhu9CsNvrSOCdL/yQJKpr9T40xpGsmzLRcOXSp2LezPLd196z3bFPu+8JWfZTY5n63tf7rBmWaczO9dzuicSw6nnyH5XyvTHwG34bG/4fiPrGb6RS54ieJ/dHnTLhL+d07l9yzk9C7J7UgGYmvtCWR01w2jWAnOdtHPz5FQ+PNFCmikheMtofqZ8T+jpBdkDtwOFVhND2CVnOpJ25FCybWigEGooNxxjGkccDLIuqGTLJSDwghNMrUOe6ThZodynte3hGgdWlwdOtV78GRPbLWDVH0Cc84wQcPHzQ1/QT5G22E1lMkJq3RAgOQr0P/Z/wPPjDi90h80+FJapBlWkvLfLFc3N4yq2qfL7RcvOOZ/ciBZsXPvzn13H9IUZ7cM5fctZdvWMnsXNSaf3jqZYZ5Sd5Bw2QjTRBRui9SmPJhJAw5zBA4QkOWiZthuyBHlNE52A74ck2fLjZtTUqUDGifVpoDU/swiTyz9EBlczSM6o1Sml9k1m9U59v1j8YrttygUtzxzNKOifybVGkgwBbSW6RzrrNo4GU9GU4vU+QUymnQGDvuC5fWG4z/JF8b/N0P/lyj+R5cXWQj/SzuD+T2L2d0LytbRhHpS8yRVML7ezYVOAGH2GMAogGceAIsB2jfwfx45O0BbSFEHhwzCiMwSiUgiF6rTQBQYlMV0fDAzw1hg5wBAjPvOw9UDxRuxA4l6RXZ0cPYRk8yggyR8F0gvSZCzCtPbxgnSSx3rhP+kYWrk4C8yDLn5Fw/kotMO0P/LXZfo70DocPIP545uCXSbQRJSDDlL2nB9LtdnqQxBqe2v2a+30MGn1OaZ3N61k65LhW2uLz76G4Vi9963v/ug/kTSmS51RyCrbyW7d0ltmNCa5Fa/pqDWDDa5De8KMnZ4WiDEI+p/Ib5xKeEsCnMfXbOz6F4Ty3gZz7f8v8wWKCbQRhgI11gElqDKFEhHR87wVSjoXyxzrKc1jx47ZfzII9+meVAo3hanrtQ0u2LbRlOt04X9KyV9y8r2ieP1Q6kyLQmkHtmhcPu/bvj/xpsAUfyPLtdfCP+LLQHCf61pKq7WqWwlEA7ILVN9nK6DECcHf+EHYD4BTbjDlDZc5s+6JTR5eorBDwYtvUrgEwA7Cm1HMSxyp0myVAmBMyZLAas8PWW0G8EIJ5dCLjCPDVcicLtbrcxER6+Hz/Q/XdH51Anr74sN+8stpPwfP2+Pq3HmdM8V2VYA73D7q2W/02bnD/Yh5Z8Ex4mhy2cn/kL/C2VuPCFwkTEMiiUDGoHlAN4w+gtgEBX7J4bdLxPp7SSG6LATGtOEilCxayGnb/Wc92ryiZb3f+arCsXOux/8yDO6iuMVlizrQm7fek7PklQkaxzPsE7prDMq4+SLo7H6WlIjtukS6908k0y1ihNjPgd4h+Cvg0MJcpnvENEjxJEdMU8grORfIwg2mwa8vxwsCKY2eXOs05XOS6V9y5qGgXs//LBi+56b99x/XHPymXLjr09Y45vHivuWy/tW0o2+o/VOpdwzFHfvjWV+23Kw/wfJn1H8jy5v5kXG/8m87oX0dj/hv7pjNLt7WkNGt3GjZy60PuZ24PgvqsMi7HpVWFVDFbAYIED0jbT9KrmMC1klAHb6CeRmE/igdlIUE9d7jpjnnOSCSm46DAhFPiFz1ICUjI586HQfgq0kCKSK1PP2Z6u695eZZZUyFPxlhpktPf+QC6T809tK91XCf5DhIMOc8xsjoqKMhBEd0uFgYUWa3fJhFgVnbPVQfA1JXkd8gyOG5rxtIs+2esq1llBc+/b3P0zX7p3/9LmYotqEU71aw2xu/8W8vuVMS1BvmsiwkuY8/QrwXzRMIP25pRpT2Ik6AMtf7MxFDRAHiGgwU6huUz9fcQUH3Iz/kiuMZL0x9BGZafldc+X9y6U9C2lnrTtuu1Oh2HXvAx/LPtuV2jJytGlEbZot7Vkq7ppPbh85Uh8qeUuQ6xnZ+f864H/U/xNd3vwLYUiJNZjTOa9sHU+oHyL9X2f2a82ThB7aMPMDnO2AC3a/cO4l6gK4sEisfuL00Wsy22XqAOT20IA4AGsujo/k8834v7kWicwHGuCRQGooRA/EkCZMboZSXzqHg6d64Z6iPSUSeNuKsnn00Kle0vlpPb1Nau/Ifv7N+T/Q/2mfRPoLbeNFMkMamTaYBIZTMcWFQQzID6eZ6PRGZj5qnzkHUq4LINgcUbZMKJvprSepeSiuYSixfaLAtlLeNxtfeF7u/Kj4yJe/m9VgyzEEsjuX8vsvF/St5HRNZ5h9Osuk2jyVbnoJ/N+cnMNuGV4HvDP7NzvfEO5JFPr8YvKZcw82IxNNI8TMrZn15imxnFz0SkWKAJpPugONfnpVGXxag/+EfS3XOJlePfR4UqFi2w6F4qYPffzrZe3uvIElvcRke7G8e7nIOpPUMXKk2amSSbChfrwO+M/+n6pwE8Yo/keXN+0i+/+nsiwzKc2k4ZOx70iW8//TO+hh9HHMV2TCQe1V+rX9f5G9A4tAHe7cKuq63AUALGEABNqCTiKkNXGfbnqINuM/nibRocqCAEo4qhKYllN0syDlj5Dq2ZM9dKpkBdCpSrUGPfOkyR87Z8vpniscWFZKVQMTTDi2Zf4nvaa1jsWRcls/rJIVSzphME6A8BMBU659Zg+VqP/zQF4imBDEVMywXh1QtQc0BsJAwnO/2jqp7Z4liCvumnwyJfe2u95B1+5T3/hxVpMjs92vbp/J6lwr6F8t6J3PsgY0Jh+B/0vi/2Zlm4t2YctsLmFjz4/I/4nMIjEKwBkCzO2DAmcuD2fqbHFatgiaIE3IHFSZA2kGX2rrWFbnTEn/Uur5wbSzjh88la7YtnP7zlu++p1flnV48x2rWc4rBf0Xi02zeYZAfOvwkSYnGbNI/oQf8rXG/4KBZfwRZiyJ4n90edMuIfw3T8fXkfFOsDwYUy1TPdeG0gJhubN7X8wV58ec9oQHG8oh/OFcKSyCjy5MFMZ8oWxKoISWDoWaI5H2R3QH8Y3N1DRoVgt/lMhZx8mr0P9pO2h26Lf2l1ueqew6enbgyJl+wn8SBPl9i1KFUfsE+382538iO5Q0/3i5xQDCo/JcuSC8wESERmARrcqS6K/JyjM322KiG2RXgk8PIBluZONKbhhJaRpVto4oO0ZTDOPqzuncvoXSnqnv/SFm9947FIqdn/zmT4+XtjxTYjp02qE1k3K7Vti3mN0ZVJv8acZJ1T+I/xH6v1gaECEm+ICQBSwI6BZiuidODRLdRGJGbkR+19ZJRNBArFI7A2XHRHyjO79vqXxgJb6qJ/3MwBd/+LRCsW33ntsfP5BcZhnPsa9k2C/n9azltwdzOiYS29zHmodQ1Ew/RMbXjWX7fHH8R3griv/R5c28IP+f9P/EBm9cLWGaM6FBejaPnh8U88PZbBezcTQCqSZIGLRyuT0zPwDuWCXWhqt7sA5wQJkwuxToW2gEI3KniJz/vC6aAKTXJYT71IsIhhX0MUdCUXb3HG2k3yIrQOrSdXaAzk36yDIlcuNsWc0KyYJM8hQ5xYgkAq2QRUDio8i2kmmdTm70xMufpkh/fxjd55NAbkyacN0QiRvaQisxstF0nDRnmTuIrA/aAfw2CdyzvnYorm44rlaenPqhhBZv8eDCheGFR/cf37ZzL+H/Iz99Kr6i/UBZ++ELdlXnTG7fcm73QqZlRmMMpptICly3f8o1Ca6hOqwgB7g3dn6pNE4u10KBdkR/MbH+DvcAk7yBozUsNZxME83pZCFxYEDvS7/eOplm9B+rd2d0LxX3r2hrbAl51R/41NcUiu233f/+/eqyot5Zbc9C1uB6Rs+c3jiRZSLTzJPSJmkvODj4o17rAQpQ+lFSY6reDC6gKP5Hl+sv0P/1xqnkRq+cKT2ht8jJ5x1+zvpmvRSNwKCqsX+AeYxRh0XQXea6lNU1i5CxCOwIImjDoU/RrCBYoIOjK5bk0g8zz6CrLJR8FgTsDsLP0f6k4YNBYrM3GxvB+kJSAH0k0bIQqYAkbpB3JNIjv0j2JnR+mEVkLyTKbP8kAmgQYCY3SgCONFFCVIm1pslL9kUlWTHuqyRlktByt3kERQS0Dr8T7YzUU/idtAhedEzQhUhv8ylbJtIIEs3+Esd8lc33zceeVCj2KBQ3PXYgrdQ0mkmjfzbbvpzRs5hpndObptUGAn8pd/TF8V+UAiL+b4iA62j+PBuii09U4BEzQjkGbh7wY4MPir1MuEZMJIs9xciCqs2v7fCr28f0Zn+qwXfggjPdMl/uuHyye/K4tnTfnffTDfyhf/5W0mlT/sBStmM913VR1zOdbhrJMPloblXtkhwBvxxX/r4O+I9GolH8jy5v8oUenyJzQN3mi6l2kb5E4K+zyDE4Of7LAVyx6TmMAuA5dHskB8LahU7OuZpo+4jHmVkjECZgcaA1SslCpKSBoBKFw3D7gOoTjQgj2uchcEwCgvYnAKef2NK/AYQBRwSaRR481XugqhtdeunMUbPJgYMX95ZAmUS6PjxCqAWQqlNJxSUcqx8iVCc8B4TSdkm9rx+mj2gj5AUBPpJLwWkPyOXiMh4SQlqCOgsJ2WmtUcrnzO6bK7LP5Jkcn3zkhwrFLtL/Hz+kLjGP5vUECoZWdX0LWsuMzjilNQRVhoBKyv/fooR54/hhqOceW/wpS4QXx/+I6doyvsz5Y3COoWRPDHaIIY8Ihihp1LoTJD/YUHr7SGLrKOG/pnOxzLZW71o+ri7avlNiwPj+7w6VdUp4m+e6nOtc1/dMpXd4NYaxlEZ6DaS1j6O87kYV/L7kAP5zGkMU/6PLm3Yh/C8wTqQ0eOPr3Ont45mdk1Ko0eTXmkNpPNoQXdiMJtztkVV66Glw4dJHVULElrn6aUUnt96Ai4AzQplZGm4lOILgCkDsWOrDgm4snTPQ3EigEObTK1ZoICmIVkif3Iz/YgAa+E9DF+4DRfhPUoBkAUiB2L0TAjTjFviP4AXkoOTCkrngAKTQ/7lwAOlDhPbpbeM0JF+QXG6WQBKwfljEfJFZiN+G1qWgJ10OMgemCP+11uns/vm8vqC+pfd9n/oKgb9CsftXxzO19TadaTTftarrmdeap3WGoKZjEv2/NNensOCOKjiZCLWfM6BeDv6LaC96z8RaZq0pJOJF6gncFWKWlC7MjMrNIuNrh2PO2eOqbXF19kMX7E+dtWX2Lpfb19pHLh5IylBs203z8NsYdWlXIKdnIdd5KcexmtEzldbuTmsjiezVmoKwQ+mwryf+v7EtIKP4H11e5kL4n9cxHl89lNQ4Iif8jGtME2op1y78jIdRkV9ZT2O/vYTb1U60PeI2vjAH6BVOHtR/Scp23wK8KJAdMA0QFoSLAAAr0nsi0sq+ZbhzIYnoZNBQGC2AIzJVGFtYiCADBE0eCRlICmjkcuOI77I4iNBm6Y8jpKuSq4MJITOlfmHTSBziHCHgJxeUIWqsoiFLBGj+zDVxDeZfi9LpsiAm/NeZpnX0FwbIhPGp6q33ffgzCsWOm/bcvV9dkXyhR20YzXeu6nsX9J2zmZIImJQSJgn/LVvwlzL+S9z4shuKXmnADRUhDl4S/7eMC4iZnCwm4OUD5TWC3WBq5R0iKKlxtPQ2X2LtUHK9K77ecfiC/WC1I29gtcp5sc27+uPHD9AkKBQ3/zY+M/60JbZ2SNU5JzvBJlNbh1KaPclNI6S3pDSPorQEMaDXGvzRAh5t5uCijOJ/dHnTLoT/mc3uuAuutDaf1kSPvOT/l9yz5o0eKKJ2x40gtWGSRmaHRoAASh0c7KSZ0ytavVSFa77OTvwFfVtQxougIfM5wJSAxwlJNUAMhAtRTMSfguqBnjh4DBigxDxGvOJ88noX4YsAwqC9CNjkIpz/Yva7iHIh4ghuLim7cQD1Ipizd0UX7l3OTWzxFVb+N/vhRf9PmpFksZQCqjFI9Vx59qXsbn/Sufbb3vUhhWLX3jvf/WzOubhzXRqrL3dwOc0UlKr2DDT8KsOE0uxTm+VjCt4euJgggOCMIvxH6Dm50YNgBGwZOKxEJz9jsujzEcl/Ij4Sw8TiRjj86YqT8JWYZq0hTyP8bzhguJogmN7qS6gZUrWOKNs8Cc3uVFIkyAAcWDjXO/6Rz5ARtGPfvQ8lFtfHnup8qrI7vnU8d3ApsyeY1jac3ESXiVSCadwbhMaFN47z80UG3WbAf7rnYZ++blAf0SA7iv/R5SUXwv/0ajvp/xJXmIkA0Ef4rzVPQv8Xh5jHLmpreOS56kesDGLA3OwLxb1KChJp7wS/zIQANZ4ZR7dU6XVhxniECOnrUoZSM9PUBMTUU/b/07NJOzx7sucPpab95RZ6pUESh2wBggXkKW1W+AFHnAnPrXvVQp7MazS0UgK/Xy1htYT/OutMzsBCwcAU6f+773q3QrH7znc8dCC35vjZLn13UN+/kNQ2nlDnTq4dSiILpcF1vNmV0OIGnkOxZ3YLkgKIXBDg09siMohsK1L7GzmWQV+h7XBVca8HUQiKQpZpoDSR3J4bVW+bid3EcA8uJbw9uATc8UFKLW4Yiase0hjJ3hyObxrKGlgqd1855VzJq+vaJrU/2/7wF757stOnbRk5cKr3eJMn37mS008/R2qDN72DDjKJWBWSf15r8odCuf4LLWDonql6Hfn/kSPBNZIbY/S5KP5Hl+sthP/qWkfcBWdqC7If/cB/iT3sOrl/Ef5eNAhgfIBRANiXUnrOSJzz9Ny95INA+8Dhw429tvQtsDoqFfXLjiCCIC4rxvmw9wbHoY2k5NPx6a2U5iR7rpACSt8qlIPUIpeF+Af555C7CLkWqnS+jnf9huJ/gPFf3zmb1TtXPDiXb3Lsuf0BhWLbez70WU2jXWccJ7mgNE0mtYwl1rlT69wpDcPxDc4jDYNHauT80gsSeT4a6SbL7eA5SZWgPtM6Xem+etL7fG7PPEmHwoFlkgW0TiegkhN4cB1B+Bli5JavO007AjQiQ/iGhmDaaB6xubBL7jIps562TaDoO1QlIevqTDckE9K6kuo9hP+JTa6UVk/x8CUt/XSb59fHNbLzZ+f3fnO8wb2ubHA/VdUb1zKSbZvXWcfT2iT/T3pHMLXVjzsKtJ+vA/6j7QXw/3VuAR+J/FH8jy4vtRD+ZzS546sJ1rzyTRuQ8J8wx3zd2N9mQwDKPzLtgQnQBpH+Ryto+B5xu3ImD2eNIjRM+yODOuIE0ChEK3NIgikU2im6zCCkKKXlCOUJHMYF/uOUsAWKKxhKoZFumfMJ7IK/AuFL4H/oo9cY/9OMfo3kEQpqjVMZXXN5tsX8/mDSmbZdt9xD+P/Jr3y/bGC20L5U6FpPMwdT233prRPatglN+1hKuze2fTixTUpJgm8nsV4qK0DlcqLcRZG2k86f17uA3FRap0Erpwg0vM9XDF8pd10i64wALbNrBlo6N+tkfI5w/ogKv7glQnYjHQiN5jk/n7ajrQOtIwv02PnBo+dcyuaJ9PbRhAan2jhR5FonxT7+lPm9n/uWYseunbtv/X1Cnq528GhV78Fzg2rrdK59TmXypLY409vH1MbpxCYp+Yd+FLm+r0/9F/0L6DBvfPJn1P8TXV50IfzPN0wk13vjaoflDrkB6P/a6+C/JszkgLxQZP6jRQi0RGT34XlHLh9hLHq1v4i6Ag43qJrwt1wvtsgYgp6GhEjwINF2Ag2GdzGSCGChZ5OO/2SZ+YkS4++LDYfP9NOZZ3XNoiMwApGbfxHdaoBIKGsSQ5avA/6rpRX6oenM7vl8+3KGdfxHiZnbb7qdVN9v/uQJdZNL2T6a0b8gd36XaP+zaX6MPpVlPLV7PN0i+Xx0RkR+Q9EHNV2+tnGUHqDcoGRwjdA+p3uO1H7C/CrPcyQCaJwWKi/oCtI85/Utov8aJwBwAhjaAWxuKLal/o8QMH0Fxho6DpQ6L9LPgakJcjah3h1fP6ruCKY0uxManZldU3kDSyWOlRN9k3e9+yN06979jnepKtpiykwHyjrjGkdU1pmM3qCyzZHSPKg2TCjbJ2PqQhoCnTmazb3W+F8oU8C9IfjP2dHXjGj/9+hy/QX8n+kt47E1Q8pWeh6l/E/Cf711JuKZZcxnIx2Z8HDawOePpFB6tJG/h2cchTCb79WIcBUh NTCLaFYjEGwZx7eCXrcSEclKUM/zX0KRKUUwV8aR8/ZDp7qpVc4/5892UO70enh323p4GJDQ/ovcjxaHW5n/zrgf7rRJ9dw0b+Yyfy/7L0HeB3XdS56SHXJsuVYcewkthM/35tyr28Uv9z4vdiJ4xLbcRzHJdeW3KNGiSQAoreD3jsBsBO9997bQW8HvReCYC9gATvR8f6ZH2dxeADSkqzil5z97W8wmLNnz95T/rX2qqXDvuWDPvmtf/8zK92jH9n2yJM/fMXWMalmT0qDZ+mAb+WYbWqLW0aHOwaZYrDPMNjntzjlKhHt3LMYy7p7w6RT1QK7ZXUw3wHIQUjlGGDfp7APawGAP5h/bEkFJPg2ZcuxqmcHgJpcLrU292w1TRHCRZmyGf9F804fCkoOKaKhQwd6piBIrzohOmWBG+lzwFuR3OhXPhRSPxleOxJR1Pp7n/wcVkB/9sIXDxR3hRT0goHxLhn2Lh/xLO4G8++cXueR1+WU0bkzTuk5WE0n/W4F/H+L+O9d2Lsl2/Pegb8EyLLgv6W8xUL898g22iZhXd/kntPmkaekdvUpHiQTTmscYr7Au2SBd1PBVqxi+MnTuu/NQ5Vog29BdQQbY29YgzOwAyP/072XbBK24C1pWqnl9rXcuN4UQp8CeV5IUrpI4B2q/CimoEKZVhng+Rlgk6MF/kvuYLnifbyrCpjM9g5u+V1X+D5cveKe3+1e1O1d0O2dq2CgvmLEp2LIL73+H77zC53uad32x1509rFPAvvd4FM84FnYt/NINSZopQbh2XW0ald8NW+FxCBigAUJx0qMFfcrDzVLwkE1WRvBZLPtinbJJrDDbG64k6IlcVQlTtrYPnpTLCa+BnQBIJmm8y9OZ5/g1ck/KKuM3O49+V1KFKPEdu/k7oCKCb/60bA6o/5QyjMf/QO8ul/6zo/jWo9H1Exi5KG1U76Kc7fROVOJmITpOGe2W8UrOR+xpiD4vz/yf7zzKm/QE2vS/woZ1Towbm2u8xaqmYRfwJ/hcOkjQwcZ/BvdOBPdMhvVfCqq+ey+ptNHFfy/ZsF/S2GR+A/Af/uURrfsVrecNqeMVvu0Vq29vW2igRb4dPuV4D9cv9MvDN8sjviXKfmvxUqTicLdsjvQAxPwaYN5UvIvwXxCKpUwbpQqP0j/q7X/IcIQVfAvw8iQVNGglLjHvAMAFsDjjgPlIBNcmLwaWwKioDX+N7+iyVTGFgTlg8H/Lq/8Lm/gZF6PS9mQb9VweHbTX//tP+t0j2177MmfeQa9sb8EEyfDyefF267Ae3KTRNiTKos1idgpSzk8MtxJpunEQ3krEoZYVXejBTH6fTPUktACifkpigPGjKW1MK/OFwOnYwyiygf+W+e3O2V1eid1BWcNB1VPe1YP7G3sednN57GnP6Lb9ti/vbznQNNMcOUG8HqrizWJQcpgs+iQST8l89d7WrkyIkehDWD1LuK/WX0Q8qvgPxvdZMF/S3lgYfx/r5we63gAZq1DaoN9igIUYJzEjFPSOZn59XiaMsIT/+nR45DWzBBwpAI00Xc35Z/FKfhA8D3izSTzz6+e3wI+TwIFZSwPwUZPNXIyk5IzQATgnb4DwtCS8+RWifZcNozpMPIDJVc4XQkaoOaF3DJ2AVEaaxzgv2Nq8/uO/0bXgi7PvC6v7E73XKNr2aBf9dCBUuP//Kt/1OkeeeSpZ6z3Htl1uMKnaADQR1yVhyIz0muS/6ph+lpEiOeohpujex2d+HBbgNtRal4zPJ23gk5aciDPUTluWhpo9bmSJkycx/EvV2363C48CDwjrs64BnTN7bIvNjqmt+sT2sPyx4Nrp/3qhvY3933pBy/ptj3x9HMf3x0QHds4DfzHm4NH7KHaG2NqqvtAB6dGFY/kZ3wf8F9WlO8p/ss9p0e81PvAH0u55uMW/LeUBxVF/pPf7ZHdbRVXr4ZHBgjU2ac2OWW0b7jhaOJ8ij2kh8nARkS79NkXwQu+O2oJGftRTC4Z5BmN8bUyJlusGsOH6gBsmQJABPhmgCxSIErsgSESdwLjkRwEDOYjsfcBQUzMSnEQAIFR4DBCIAO2NP4U4dJGVDqTD6wL5pVQ75TW8l5I+B+O/86FiiG9d3aXPt/oXj4QWDN0sLT7z//nV3S6Jx776PMeKXkOyQ0Ma8ypiehMnpSY4gjdFCW+uOWSUjNWJ5Ovkf8HmDxc8mCmwRd5kfY4aBMxmZI3yp0YIZxKZJIGLltExkg9i76gx7G4xz611S2+NbRAwf/wlong4vo/+cLf6XTbP/XfP++fXBTTMB1aPYnnSE09SZveFFEQVwRNwa/vNeybiYD4Con+993Ff/YgPD+WbKha8L8vZV7LrAX/LeVBReH/C4ye2UZrJc9gvUtmi5ptttvDlJ5JKw+XKsmetB7BkvaF3zXVpm8crKC8xVGjPGVYUS7/GTICFR+p5FLfEg+1vmb8lwaf+Ijw2hNJRL7BNIUUOND3k/5lOFG91jTWIBQLm0nCtdNhwkfn9FbgP7bvP/67FCo6CJ8chQp4VAyE1A37J5V94lMv6HRPPvupz3pnFO8+UqnPNYK6OauO0iQB2kemSrHuM8WU2XmaVOoeqkGOtXrTgJaCM28lfP2WaEZyQCJC61wMjJcmRabbl16Np8E1pkR+uxf9A/QopXFneqN1kkGf3BFRNhVcNxXZMvZG2MEP/9Hn8N5+4R++faCqM7IWLPc4nib9CEhr9Go8EAn7E0YFwXvP/IeYQotwCSb63/cI/ynw2RL8NYT4RHTzcQv+W8qWhfjvk9dnlwy+vckzv1M1AVIiCWzkYzXJ+UVLKIo8Cv89TDBCmQz5fLDijPksab4Bwvg0KCIIKB3m2lyCPJA/JKTTBUDb+WZCQOig8hfvPD6BezINkyEKaQFly0AADGbHgXIMg6IAHGHkZ8F/CRlB5HRXI/woCcfTWoBFjNuzdfz8tw746lkS6kf51xRYSZj2e9PEpfEgsrv88np8inq9qwf9yo2veMY89aFPA/8/9rm/sDmQYnW00qdoAHPBFEj+RNUr5M8prZVCMLNsLHpTfAxPU0w82uFo12VMxCBgIgLnzUmZJUcnFTpijkL5D226xFlAbwr9zTBQ1ByJYRUXAtZxdbvianYk1uyKr/XL6Y0snwqqndjbNPJDG/dHnviwTvfIV7//s6Mto+E14xTvcxZU96Bn6j7o961FfvECo0ZgS4tQ+Ul+5VlbVrOW3Cele1fyv5speVnxzmsFPoL8W1icWuz/LeXBhfJ/v8IB+xR8Owb3HHyJymeoRI+/XyqudYaVI4z/LJkCyMsRz9EMXwdfToroBTfwgYjK2MMUEIACapr00GjnIeDPGHQMIqoE9ikfodKB2bWoaNCbAvgABJggBvhPRwCyTNgyW6uIm9itCEYYxt8xtdnqaA3De5qRgHeA/56mzJIgKC6qYkXinZrhv1u+0QHNgP/5vT5FPX51g8HVfT9zDN72yPM63ROf/IsX9hxMtYmv4exobSsxuqWqS6Fa+VcSsksMJSoOeNt5LmVoeNCMmcBw3AR2rZCHj9LMHEjwirgHUCIUUy+jNd8l/lPvwOcl+C/5X5yz2q3SGm2SGoOLhsMrpoJqRmObhv7hx78G+dNte+p7OxwOtU+E1UxghFS5kucnI0ETr80x/7W0YEvwN3MTBnHZEuc3EwJ2GFSpLDcojBLO/7fHf62Fj1bVe5+of0tyY8F/S3lwof1PYMmwc0YH+H+37FYF/wt69Br8F+kBP09m+9Ia/5OTpzyH3l54Y/laAjQoB6BMQFgXQBbFzoAvnAK2nI5F6Jkh4h8uGyFoA9xe21dKiTFXHGJ/ro1LBhAAzuMntKHBJz9V+WbFBEii2ZD60P6T/L/gv6cpVuc7i/9AlyvaFFHkjoGRZTWzenLN67HLNbrn9vjmGn0KjEENI7Eto//hGqbbBu73mb/4u6+GFBv8ivvCaqZIT0Xgo12UkUCL2Sefl3hqMHEz9ymEl7TOGz+pKyyqUGmfT0JgZiAkKgCtrAP/4iymBxKXQNEficmWSPu1Sh86kmMFtCez2TmzPaR0NLRqIqhm6GDz0Gf/9qs63eOPP/W8VUTc3paxkGoFkOkwTjcEMiRUIm9GeIkCrcXtzZz/Zvx/EIEw65D7HM+7ZfwvnL+AvxnP/0Dwt+C/pTy0AP+jSvpDKybcssEyNTimYQnQrsR/y7sX7UGSvFA9J3KGDSVdbjcAlkm4GAIC8C7WIwrHaLLwFKzAi8rQoBQLg88EwhClcUVxJXh4JbGg9QithihTouUnR0iOl95hbxys+EV4Lv2/aIVC0ybqB9FAawy/AUQqkw/+n/i/OUL+O+D/if/obbea9pdQjIlsniDw3zav1x3Mf67Rv7g3uGEksr7/h2+6Kcb/ug+/8I1/DcivDa4cAf4Dbej4JlPQTsTsX605EFdtFL6R+kjmelINquNpWcrAF3hSuJ9YOlGUZwZQEn+MsiOAIU/X596XGoBXUZXOtdoUkIrppslfQFEk5XRapxnccjqDS0cCSof9q/pi6ozPf/rP8dL+waf+R2RJc0DtYFDVGF8bWsByIiRh6GFL5exD8N9M+MOQ0ZtP0UqQ7nH+aku8SHgc1HEwFvq7Bf5m+C+i/oeBvwX/LeWhBZ9SdNlgRPW0V0G/Y1qzY1qjPrdD5P+U0oi1pNVGXvI64i2gXiyr8RIywA4+OuA/+UO+onwPRRcmwkw0I3GhLRAl8+iTnT/IBVgWI2jJENAULxC1JDYFrYDQD7aMWgBwAPJjvfAfewt/GZH387AcbEEO0MC/bBiXo/xEjOEVNwQ1PYoaPGcjaYukbvE0xdJ/W1XiRbtmtjPtL3lySV5ghv/2BQNu+f2+eb2hFUNBtVgiNX/5hy/rdE9te/S5v/3eizaHMr0KFKct3A0JnqkFfLljEopNC8KMesGcnvciGpkWeiQTfEBCBehYQQNLPi95xFwXMLi3xD3Gk6VQTmR3BH/6kpCXkHTworIRKaJDesuupFp9njGwdMSvpD+gpt8jvfTZj35Kp9v+v//uO/Eto15VfYGVI/4lQxykCP/ZP1VO70CHyyUhfUYI/pQxsnKfL61SS4fo+6ZdbSlmDClNvD+/Jf5rxT5a/Bf5mxb8LfGfLeVtFeJ/ZM20f+kIMNMmodo2qc422bA7rk5SPdIFTBHhqihB03q85Hj5ycYTTLhGwLcgnCGZFq0LJO0WyCjS2Qf98CsDQNFwmji8pQuYmTAK3zv4f+aCIUsvOQIoUibusX8aZjAOAI5Q/oCr4Ah+QmOCBkMTkCPdAyzCvpqVxlaN/8Bwyq4kDRsh5u5PpG6G+aZMXhsaXhPtoE8BaQ2uRQMYMd1hdcvtdi3oc8/r884fCKkZD6zq986u/cI3/49u27NPP/vJf9/pZLM/yzG1kbeO4XfwCFjJ3m8ofO9fFMjqiYavpD5a3Yq4dWgVxFpdj0QEpYqZtIDRe/hYKZ0Gb8BnJNY+vC4dN3iTqXEWY1R2LvKonUeq30yo9izCCnHEp7g/on5oV8TRJz70/Dbdk9/50asJzZO+FcOBqrJVnBroq2Kv5uLEnbln+Wni50OV/XEzSJeqBKAzGTboTQslvtja3EOkgxv+dJSC8mPBbdFoYUQW+h7hf6zGpij2QQZFFvy3lAcX4H9sxXB4Fdh4cO+dOw+X2STWOGW0WifeC+SihQUxKSefQ1Et4JQOVgBSfPh8M8n5kBXEQVEdit8oKh1XKZOnCgC90V3oQQF5RIBMAQLJBz5nrruJhMQ08VmjZgE/4XKAKXw7gAVGtmT8T2oPRa0sCWio5qAwXBIXitaDiwVWalSVc03AK+pOuXuepiD5HmpoAkbMk9B59qaACRtu1yrIOCU3O6S12Wf1eJSNBlcM+KdUfeEr/6rTPfnMc59+1SXYfn+eY6qi/vZQ/Z4Urz3TIAWdJFgHjaO01IECE5rm8v6YLR/MxEfa45L3R4JBURhIbQ7JumR8FsE+bcYA0SR54qmhlQ5x1Unr/Z1HKm2S6z2L+z1Lhj0LB/fVDL/mGfrIkx/S6R55cZd+Px56EV6bQdJ9vq64CoVazDqER6/guapwZxIcZmFmIjYGR3XEszNVrvUeUgHvzIzggIuqqdNcwQ+oLAErOARm/NwTX4eL4lUX/ddbJATiUk32SaT9m8X+b8m+yIL/lvLgsoH/lZOhVZPehb1g/lURULdz1oZ5P79ZSYAi9j+yBBDzY5H9Cp8vW4AtmUPtJ4DvAvSCBqLkzLmgRreKY29628Pxn8GcMQxwd+SRuEUPNHd0N61WyB+iYhYhah5hNqbRIC8qRq1mPlOEI2Ip8YrGToR9SX8JDJcAodqQO0RdbeR83lXGQOBSRfysxXRngwEGe3wEdKfh9YQm+9yesMqhoNTKF770TZ3usQ899+n/cA61P1DgltmOe8iE4+SB2ScBnxRBHG9JubhDZ22sa1SnvwYaYslT1i4HzNYOG69Bfq82LQKlWOhQckPzKrtUHQfxmQSdVJsJ2YXieGiy9ohpsUpBGlyyW90LerzLx/1KRg/UDP/7Lifdtkd1ukd3ekfvLR12zTA6p7eT7afvIbXAysoivn6DUVfZcqnWcUo2BKlKjhslVsZGdVASCd1b5bmaZIBmVSsD3FxBcVyVXDwNaBNtCqbxtqz9zSz8zdx7zeK8WfDfUt5xIf6HAf+rp9Q0KPiUmhVONb/X0/Sxe5i8fbXgQPwHbouVOA2/BYoZLlgYS8Z80BqHxKoepmS8uYIg/0/lHenCg/CfXmZEG3e1JQMNoQcakKvyHyXIP9uTqabCQrRptBoVi0TZCsoJBSGcyqX1puxU7uqOcNRcE2mRXATaIkbTSrkpXiA8iqiBJEapQKG0Vvv09l2pbS6F/dF142GZtZ//4tfB/X70k39mG3Q0MLsloGQQ9zBA1V/IHTNT8rJDSaNJVNQ6ynG9QBKwZRwk7f3XLgpEjsSHSLIrmbxoSsQLiUZe7FQljLZW0KfXxPdTVhbJDZ6FRq+SAZ/ycd/ikfjGye/8YqdOKY/oY1LCigacUvEUNvxTJAKVhELaWPWoXLrktRRs5yrgXqZjjShPu2OG7dpft9QBEf/RM2iNgv+qCdzbwn9h+82QX4v/b8OzwIL/lvLgosX/oIoR1+xWhzSDe66adjz/Xsg1M2k8P3Z8zvhUhQ8B7FOBS2QgR6p+8srHCHjnV0DrQVSqgBlDWMIIUx4umQEfjv/EVQ81NQw1gBRov3moUgTUhBqahmIMFE/Rax5sPwUFYvZv5u/Ag5JoUksazIIqeKmZEAV4zaxoKE2ikoKx1yRUNUMiELjMk6fk9Xjl9brn9Trn9/lVjkVVDXkczPnTv/xbne6pz/yvv/eLK4qtGgquHKW+ElPzuj9pml6Tnc0M0mWcpON7VIgWFl30JlRrbq7Sw0YeNJNPsRh5br6N8nAxcSVIqWnJw1PMeiblVaRqaU0+xb2+5cOexcN+xcOHa0e+8YNfKPC//fGAuPzQ4gGnDKOfKnjEHeDd9si7L46rsOjeeECYERY4b82CV68md2bSzIfr9M0IBNvTZ/yd4b+Y+mvjuWmFP79B4WvBf0t5y0XwP6xmOrR6XJ/bYZ8K3rtDvylzt/aj5rdPiSut3Vj5mdMBB18l/e6xRmCMSq0DKV5sQBZOIXMooSnFd3VL+x8z/KfaFFfBRxFaPUFlH/NC0gdNtKs7D1ehc4yBRuxUAWAAuLTW+Ugr+hAkJKERITmrNqy91iRpS+ZZehYZiEiomAnXLOvxBi+qwEuPOwhx2Wh4w7HwEuPr+sjf+8TndNs//Lm/+aZdZLpzQo1LRit9KACAXPtopTQPYuPlV5yI0ykFIjGlO5iZTP7hVWtWRJoicR5kDBIdmk+NqwA+d+oOtEFl+XBVN7QW39J+H7wnuX2hFZNhuW1/8w/fAfrrnno2JLU0rGzYLq3TS1X64FHS3EsyCN8b3v0VhGBLTt7MuW9LbN9yLfAg+Q/wHxRkb8PMO5P/iKeMLFc3m/q/pT4t+G8pDy7A/5jyobCKieDKCeC/T1GPQyq+u1bP+9N2eEo6LZVVJjcrqV7wr6fqPMXQanSwZRix/a2n8RpTDkN9q/CKYgFIgQBXAWYmKFviv6cpSgDNhGhuSqUzLkoJEhWLlHuQ/wfOACQZ35jWqh6q/6lZshgtbHJSlP9LdoMtAdCcdd8Ev54atwUtlSFXzOyTmxFbr1qBepePhdZNHKwZfNU5+ImP/KHukQ9/4es/to/Ns0+o49TQkiZMskzTstNmVSvT81Aj/1AFwPspcbPFk1pviokkkTFkCloaLRIz0yXuo0Gy72XK7c5lEaOF8EWiNp+3gvdcn9flW9rnqxhYjoRXTAalN/63F76MN/aZ3/9kcEZ5YNmQY3avu3oPqeKh85f2Jnu+Ix+Nd+DWZ7YcwGdim9jgktEWtSmG3tsiAVvkc3m7DgUts7GtJ6JaTgP/YxpPHW2cssT/sRQpG/hfORFSNRleOxlQ1u+UpiSCccvpFgGCh8m55p4jgCpOoeEfk+sBV2NNRuDU8zK8M46jDW1ytNEJyO2TLZdQogJfIlJ4EP5T+UuRPg2NmIIE9IV+agw4QHaUSxVqisH58wuizyzDU5PpFb7XjKWnblGc3TZLgUSOrcVGgUotadCyuJ6mFJliIbm5uucZnbI69UX9YbXjKc0TrzsHbn/sI8C/f3vVJby4x0+N/OypqrCxQymWoLQ5AdoUAo73k4+GAR+4HuGDFu2AxACXCWrtATzuX6Zp57tZ7qR9sqJK4BXl7aIdL9UlvsX9/mX9AeUj3kXDkZVTPvGVn/jsC3hjf++P/gT471vSb5utOKrQ1Id8yG+P/79l5bqA+O+c3vpb4v9m8Lfgv6W8i8WE/4r8P6x2Mqhi0ClDMYB3SGul4YqjSSYvyaQI44DN8NopgLxIOMUCh8HYaY3paYotRr8hAVsiM/V0Imk3Q9eH8/+0OcG/lJECA6leJG3Sm+L5eKk5QRjTBgOT4MYATPTA2KREORFK26vZ0iWWtRj/uN+f+F7LxmsHb2b5uaVFpfipiW/F1vif3+uSZ/QuHQqrHtlb0PS9n7+pOv9+6HuvurglNfgUDlDngrl7qGF2xOjIPqVRJGmyGuLVxVGOQ6W/A5W/HhrhnqzyJNCHJH2TtO8PkRGZ3ZMHkSHtU5b88pyIY1qrV0GPa3abh8JO90ZXz7jFFjzx3Kfxxv7hf/vLkOwq39JBmywlUBX6YXBvqtH/c+D/u1Yt+G8pDy5i/x+KWj0eUjXsnNn85uFK60SD8OoU0opzPW08AALA0sOd52lOSfkz4+cIU8fwDjhLEEYLC5R+4Crqka778V+pD8d/qlPphgwAZHhnwjguLaY7HlRxqvIlEKxYk8tMQPkwVwqUG9BuRxhRIQq0z6eERBs2jWIlSkjEefY30q+NVUB2FydO+0zqoDefoldCwPU65Rq9ivv31o5G5zf+0/d/qdM9pdv2oR+96fVaRJ5NUnNA2Qh9UXHzhfSIM6xoVcQmUyxXJWM7h0E9rEyB6mxh1PnEbU3WpBLxiU4W2kWTVj+ytURrk4WVNuAen4UEg3XOaNkdV2kVX+eY2h5VMekYkaV75KN4Yz/7V/93aF6NX+XIntw+fX6vnxrfW+yOLPhvwX9LeYvFhP9T4P9V760J99z2nYcr9yQ1Uh5rlijEU5UF8fMH6gJ5iA9at1lqM5UwwpWKvEWv5ntFGy9tQoFcI8VKZK0JAlvywA/Bf7EhIYcv+C/OWeRXyWN7qckNxbguoGyY7D0tYQQxxGxSNexsE8MVCa0sQnJxs5IL8Y5tliOZaQRoUMTIFRR0SOgGM+GPa36PPRjawt79hsmDxW3f+O5PdbrHtm9/dqf3IetDVXZpHf6qkp1O1hQXUGnIfDcSWEMrcqFaRCbFbGhiDiSqW3lSItQiPm/4F2iIy0bcHnWJsZnbf/gRMx0K1b7omSIdx7Rm64SaHYcqHFPagguHbQOTdbpndLptf/7FL4Xn13lXDNvk9HoU9Pmq+X3oAfefRv4jKXU2p9qx4L+lvFsF+L+vciSiaiq8FqAxHlGnqICtE8AotujvT4aiN9m6k7dkFdNuSsjJPKOZpI4CKIEbpJu/p8lynjwzgYhhJz3ztmaYzaukNUE/KpeLTmj5g4MUHQsPL4b3zAsGGKT5HO3o8C/b06tL4JdyEq0CWuQhNM4XQ3pe5b5QABprf20EfrLKpAti88N74qo6otIKfYNkmEDSLbfbMd/oWtQXUDkSUzMUnFj053/9ZZ3u0Uce/5h1YLzdkVrPgkHGZ5Z5afMpa01EtH55qKCDOBEUkNGWUD00Lh5aNYegtFZcozfFgCXR13oZc0Eknlz3QFij/zVf5pioDPkB3jEK7oD/TqmNbx6tsUtvDyzot9If0Ome2KZ75Avf+HZYYZNXyahNZp9brtGnsA/LT+0y83cH/yNVvdg7w39xmfwt8Z/2PxGNp6MNJ48YJi34bylSgP8Hqscia6bDqqeCK0fDa8YCygbsUhod0lqFWZVYaqIT1Dp4CtPFmOfkigEveHUPdZzDFgwqTf42i4UZCoDiei1vvyFYfuiHJgaoNDfCJ0+plAiXRMYO/KeRJEGSQVS8C3vpJqAN40CsFo8ACUTvqdoNaiUbcgkhZDyX4mvtGsHGpFzgwoT0glGXNwzUH4Ah7vlGh8Iel+K+oKqhiJIOfWzy83/y5zrd9kce/cjrnvt37S32yuun7SvVLrGa0AGbMZ+VIdrkJ9w3BtzWm1Jq/mYSfD8nv1llLLoebWwHM/Kh17gPaMVWvIFkFdzUyHvOyQarZINdTnd45dhOp0iQv8e2P/6V//PT0PIO79JJx8xh56xOZkCglE+SIN9bLX4Q+A9qbpdkcEpriaideleSvP828p/o5uMRTSfDDaeiDScON0x0W/DfUkyF+B9VeyykcgL4D/4/uFLJwb0nuYksLmXUBDSgPfM5YkcCNtLp3tNktk2Uo0sOQzpgK7o5WVNQVoyv3ixEzFvEfy+Tibgw8FyM8F/y1SLEsE000AGBDjX0PsDVaRQqPrkizyFEy5bEy8kk85dcWjIXEY9oOWe9xglXAohtGEGpSc9xdXc1HOjmumGCWNjjWGC0z+8Oqhg8UN3vsS/1o5/8E+D/o08/7xqTbX+oxr94FBORYMvaCPz3mQ4237MYof8dKQW2IJ2SrIfrHTNR1VussiIQ52JyCLIOktzEcgmtNI9oz7CZEolaMUzFwi2udndyk2NhX1Tt5MvWAcD/Jx5/5ruv7gyrMvqUT7hkD7lmK6nigP98H8gAWPDfDP8jgf8q/3/YMGnBf0uRAvw/WDO+t+54UMW4ykhPhFaP6vO6rRMaBA/JzlE3J178lGbwcxO1psjhSTsYYUZM3LVSBWHORf8o4PAW+X+9xoZc5DwbcTtNY6bERkLB01IIkEhrecauFFsdjocgRgLHsG/YZ5YBVm3WG6EIZnIP0X6a6UNJFGhyuRHj+v7IA3QgZZhoj8Je+7wu+9yu0OqR+MYxfWzKh5//I+D/h//4v+8rbA8vGd7bcCqi/hjzJksQ5liN6aDIkEWSTIog+gKazYjzr1j1aFH64eI4rbmpuymBF1eLfC7UnsuiQKscYWRUn8J+uhAKk8D7hk4UHiPBYJPR7lI2uLdu/MevuGD6Tzz9kZec9KG1Ru+yYbfsPr5XYDP4oC38/2b8F/lPTKMi/7Hgv6VIAf4fqp2IqZ8F/qup9MbCakZ9SwZsEg2Oac3yddOSU0T3WogQO0/ykIzcCJykMpTs344D5Qx3I3EjySiSRuAzF+rwNvBf4a7vpbLl8Fwy2s2E/1RxokFYzaREzQXuMRCZdoIyCwwGo5Lwp5KeWOJUiJxHTGskg4lY11D4LzZCQh0o4mZ6enc1yIBUM88jfb7RMb/btag3tGp4X1Xva+6hj33oeQDgH/73v/KJLwsqGAirmfFW3dNQvdQ0Otr0VRL6HhMH4ZOwq8R/8csTLzw64smYtdm4Hi4F0spwzKiGdl2gdfQWWkDDJ8YAEXsD2nMyJKxXfr970aBH5XCsYfxff26j0z3y1IeffzV4b0h9r09Zvz6nxzmjnSFkLfj/G/Dfov+1lE0F+H+4bjK24URwJZj/KbCa4P/x6VH+ozflaRWrdXHREpTGpydmn9rvjo5jhBfgP7FRJANcEVCGT/sTUdi9Rfz30ESn99SEX9Cr/LPEKEbnwH8cp+SfGCjhAkwx/O8JtCXgA2PyMJwRIRH7QCRa1HDLJAISHF7iappFftuTuKEhFdq3oTRRh2pGAhijABN0 +1yLuzxKhsMrx4JL2r7P7vddI9+SKfb9pf/z1f3RKY7Jzf7lYwygAMXZdrIctrooxghJeSkgIx9DYpAnSlHxRu1RyXcYtIjIdoeTgjkeUn4C7NFhCwKZLHGcKmUDpH0M9Q2GvCVE/lhUOmoX/moT/VgTF3/d158Q6d77Onn/nDX/qSwpiHf8l4fEH2VsOJZiJefBf/N8N9i/2MpDyrA/6MN01G1x8JqpsNrJ4H/4XXjQZWjjhlKDHMxpTBT3WptGjdHP/Awmc3woyYkUpDChQBNcWJbTpIVJzfoacrYfq9b9VPSxuwyJwFvwVh0I5KAGolLfCcxAIp6aGci0m/SOK2mm1Y6FEcQ9rU1QBFBdJJYUHxNqT66wq/EQ+omCPuMFM0lg9tvii3mkW90K+73KhmIqB71z6z7zq+sddufBP5/58WXPePLrA9X+5aOBVWOiXkSl1cciaihJdqzyGFEeCXGn2T1taoKCvq0jcXU312TKUytRndTpjAzqZG4Epi9IVrzIY6BrwctAZiRk8lZAkqHAwv6QiqG9jaOxDcPfO37v9Dpnnn6k39hE58f2DTsWdwVUNSLewjqhmWOhxr5X8J0CC/xPuM/RXlMG40aUjkGfuNg+9lYNeA51TRSzSKia6vI7t4t/t8S/8dSNhfi/966GeB/SNVYSNVwRN1ESPW4W063mOF5mQL8ygeu18Tp1ao7heXW6g6oLyALTa6SOYL55uPL5RJAPtsN+xBFmNOGLfF/S6h8K/hPGoSh0uyHFvJeakRoCf7sbkqM627KgSuJrmRtQibTDP9RqbgEWIVWT4CvpiwCx3GEDSSKJlccIp76jayph2L/bwyoGttbOx6YUfetF3fodEro+x+9ZuOZUGZ9tDawahr472FqrCXKWrGMBCMVcRwtnUiamcxRS9k9TEmfGZuUlbdC0hmICzBPEWA3Wy+YsQdaFznecBrtSBoFhmMC+DMfdGjlWFTJQFR5T2x99zdfs3rm9z+j0z39iRe+YZVY4dsw5lvWF1CITjqZ1oEKHW3maE9TNM73vxL/HVKaAsuGRexGzN8ypMOW4R1EoW/Bf0t5j4qK/1PR9cfDa6bVYMIK/ofWTHirQXvELYuAIOyc1lacemGCiQQKICMneaakvV7128KW+WLwtofXTlFlwGaihFVMj8BXp7cC/xlQ6+3iPytlDlxxcAmAHU9TXkKtzb+Ws+W5YotO9fRm/KfYGQ0i6qb5qfIuMSwSHZPpJcesNCQ6hLvfLOBSgr91+5YORlYOR5d0/gvxf9vj//6GnXtciUNKc0jdrF/pkBa9HySu0Zpc6k2ZViRnipmVprdmKSdGsBy8NncAybrW1ErL4Yu00IwkibxOCDQbUw2NDnHr8OtGps7SweS6yRTD0E+cvXRPPq3b9sT2R5/7p1+7BNdP+hqmvYt7got63LPatfjPFGDCn3wg8h8K8fDq2ic3+hUPiLY91mSLq83nvmV4T8H/d0F2ZMF/S3lwAf4fqZ+KaTgRWX8c/D/lP2BlA8pHHVKbnFUJsLcpIyr58I1oAPdyXamZlVRZ7ob93v3ZDwVUiQmM7cy8qKAC+HJpoo9+tPmzbOLrrI7WOKY2i0D1HfD/xARUgIlk4sYOfqUEXiBIOEYRYnuqkYucVPm5i5o7zAz/ifB0OGL2W9Ay/kv891Hxn9mHMQBqafETBUHumxS+m2enL1BGEl4+eLhm4Gv/9ivF+uXZj+70CgnPbw0oHfavnHJWjWRs4k35Z02rLRdThKV7gpqCHpGwyYqG+P+gkHGs2oht4gAoCVYkygSdL7RPfMsgfkII3DcSJWwQDnpvMX+0T/FAoBLzrT+2fjq1evhHv7J66qO/v+3JxzH77/77a/tK+sJbz7pUjvuWDAQX9riqMUYkg7Pgv0j23n/On1s8AtvEBoyB2nbiuVABifBvlttXwvu/7ThvFvy3lLdfiP+xBqDiCeB/WM1oeO14SPV4UNWEfWqzvYLn7W5g8jPbbfGlJzdag3dVDTl2K54+dXuANmkt+NUVmK+ErOlh9cjrUdKO53R7KMijsoXKts9NUdI1oytXBUk60L9TRptNYsMbByutGXttI0BcOyMbO6h6gS25OA81Qs7DqoL/vXYpTegzqGIsCrwWvrumExH1xwA7VmqCe4zfVk2266CINdqcVQRzUw1Z9Yryupmzc0xv9TWpfTX4P+xd2O+S1YGfohRydtq/bBjTYRxsHPQxbekHgUkFVY6BRmBqu45Uu4n8ZLNRzQb9UkxAcWJMzWhsadfn/+6f8bCe/9RnncIPBGQ1BJaP+VdPu+caSTRt1Co7G1Wrg05QKvNhEauZJ5HkWJh2syWDlp/XArhIyagskMiulBFJPP/N1MRMNqXWjVwSeBaYDuiamqilN9pwzCur9dsv2jz5zMd1um0f+v2P/eDfXyo3DKa3nQ5uOutSMeVfPhqQb3RS8zII/pP+amN6vM/4j8GT/3dRE+vgCAMkUpjDtUCsKUGqeKNr69tL72XBf0v5LQrtf/Y1ngL+h9dOhtWABGAVMB5YPWWf3ftmfOObRw1WSc2vx9X/+mjtr+LrXk5seDOl1Ta90yHL6JDT45DTa5/bZ5/Xj2qX0+eQ0++YO+CUN+iSO+SSN+CS1++aP+Cc1+eY3YP29pnd1imtb8QbdsQ17Exswhb7Vsmte9I77DK67LO6HbKNjjk9Trm9OBHbNxMadyc2K/s5vc7KwT6X3L6N7VuoSj/5/dapbRgtoDKk4UR44+mwxlOBNTO2GZ2vH63nALDz2pE61NeP1O842oAp4yAqro5Bolphvhmd7oVD+qJhVI/iEaWWjHiWjroVDDrl9PhUTEQ0n4lsOYtfMVMc9y4f1xcPK6cUD6Ml2mMW6AQ/+VVNoUN0jklheK75/co2T63KvwOm/QGX/D7Xkv7A6uH9tcPROfUf+/T/0uke/8Rn/qdt8EGbgwXOeZ3eNVOeJWOu+YPOuf3OOX2oTjm41b32mcY9aZ02qR17UhTZl31yk9WRWts4g12cwTauYU9cnV1CvX1ivdXRqjcPVZL/F98ErSmslhCYifS1Np8EW4k4J3ZQ9MUz8yYwsxHyK+r2zm1zzWqzTmqySmt3x+0q6A+rGD5YN3yovOsL3/qJbvuzOt1jj3/k4z94w+5gQWN87di+upnI5nP+tdN+pYN+hT1k+Jn3h+oJ6fz9B3/tKgBrZxvVsVrB/9YzRGNBdUnvu2V693tJvlpOarUGFvy3lHe30P5/f9OpqIbZiLqp8FqA/6gSwLlq0iG/f0ec4c3DtbaJhj0pjXuy26xy2q1z2p0UUXyPR36va36Pa57RObcHoO2YY3TKA0oDePvdcgfd8oacs4yOGW32aS17Upqskwy7E+p2xtW+ebR6V1ytTXKjHfjtrHYX8JAAEMXWvcc93+imBD1QdvQFPThondSAlvqCXnc1GIKyo/y6UdUMZQ+rbrnd6NwqscE+vSWkdmovOH/D8QjDTFDVOAaG8Thnd7piaZPdiX8dAF/qUNXRNuyOx2hrdsXXYothoxOsfezTWx0z25yzOtCtmyqccctTLuFXPhzZOIuqROzJbPcq7vevGPUpGfQuHvApHfIvH1EyWOUZXXO7Q2omAyrHrBLqdyfUo7G7GuTNTd2yKvdBjfyjbPONriXdQZX9h2p6Aw9nPfbMJ3W6R//8r/8xOrM6tLhDX9zlUT7gUTgAwHTP7d2oeX1uub2oLtlGl6xulyxFcuWZ2+OW3uGR0e2R3qVP63BNaXFPb3NLb7ZLqn3jQJl46dIKVAQ4ZO/NlgNimqVl40VoJkZEzOwgPl8SlnmTdajRK6fVMxvXbbTDii9/wKN01Ke4/2Dd2MHi1i9960fbHntW9+gTTz/3ie+9ZheWY4hRHdWjDSejm0+H1E76l2Kd1eOQ1kTnbglL+MHqf8WCFwsT4D/uJ+U/WqmONr37w0lArCbDowX/LeVdL/T/3deoyH+iGo5F1I2r/P9EUM2Ed1nfnsQql8TK4Jym4PzG4JLWgJLmgMKWsIKWvXmt0QVtkUXt4YXtoYVtrEEFLf55zT5ZDZ5pde4p1R4plfqUMvekUn1yqUdKmVdapW9mtV9WbWBuQ0hBY2hhE2tIQVNwQSP6x0HshxY2o4YVtWAfZ3mmlgflGdRf+VOT1DDUgqbwh9TCZvTplV4ZkFN3uGEwqX0ioWU0rml4f00PjniklKNbDkDt/F4NzjcE5tb7Z9f6ZdWo21qfjCrv9EqvtApUjArz4qTQCSaIZqFFytjwr1tiMdoH5RuC8jDNpoiS1sjSdmzRJyqGEVPZ7ZmKTso5X+XGamqIeisw5RBsC5r9C1vRPrG6yyFg7/Ynf0+n2/a3X/2XxJLGZMPggYah6NqB8OKO8KL2sMJW1tCC1pD8FtTgvOag3Cb/gg73nA6fwn7f/H7fvH6v7B6f7B6vrC5voGJOh2Nqg1VcjQS7plUqBThUmlA1LIkDPLZSLmul/aLhpURIRENaoZAomjfWF/ldbjltVvHVtulNfuWDQRUDsXXDoTkNf/v1f9fpntA98uxjH/74S1bumc2j+8r7I8pHImqPRRlO7m06FVoz4V/W71vSS/xnHFpqoD5w/Pc0yf/3gMpndWzG/1hNjA4qAjbLgqga1p71DnXBFvy3lAcXFf/H9qny/72GGcH/8LqJCMOgZ3p5qqHXeGLOePxc5+z59tmzHcfPGWfODc1cGJy50Hf8fN/M+R7U40rtPn6+4/iZtmMnm6dmDRMzLVMn2qdPtGF77FTnzOnu2bM9J8+jGk+cw37nzJmu42exc6/i+IlzxhPnjWqznpPnWidPoOIno3IcZ51jG1PLc70PrTix6/iZ9mnl6gNn54bOXxk4d3ng7KW+0xcxqpaJ4/gVVQZg9q9az/WcvNB76iIuhwGjH9T26ZOt6ultk7Mdx7CvbDeOT842j89gp+PYKWzRGwapzOXEOeyjB1y9/8zFzmOn0QDTNJ48x6lJ7eFMuT15of345Z6T8+Pn51sHRg7Ep8Qcjsstqxo4drpr+lzX7OWuE5e6Z5Xb3jWD/jFf3NsLyhFTzR844Vdk9Mrt8szu8srp8c7u9cnt88ox+gCoczrskwH4NTTsF2tPbTQkbSRtrg42e39r3QPFBpjWQXTvpaJB4qOSClAQpASAKuizSsHCqtGnoCO0tONwfa9/aslH//SvdNuf0+k+/PxnXnhFH7G/pCOmpCeqYsivcCC05lgEXtSmU2E1k4Hl/X4lvc4ZiokCTUYZD+QDx3/a/wP5gf+ume0Pwn+pQgI2LwFkIfAOg39a8N9SHloY/y2mAS8h07JPEP/DasfCa41+GWV1w8dur68vrq/fXV+/pdS1O2vry2vrS2vrC2vKcdSl9fVlNFhbu7OuVLTEKQums+4o/67dXt/49c6mg+rO6q311fubsR9lZ2HjlHvt1V/XFh9aF9Sr3DVVnHJzbeW22u0tdWtW1asrOwtq5SzumOptTW+cmmlU905fMP2q6XP1rmbw+JfzUvtce1A13YT1Wyvrt1fW76wod3hFfV64z7jtNxZWcfz2/WNYMN1S021c7zl/PbS83zuvAwy/d16vd14fqldejw/Y75wOu6Qaq6PVVJjSuomaUwlwcZ85lkoRxP6f2M5YPVrXCQ/V4ULce2mMJBG5JY2CIhHCWiCvxzm397WjdfZphti6/sTGnqDUnD994Yu6Jz6ie+Sjz378z35u7R9Z2BFVNhBROhRUOuyWbQyqnglvAP6fDKuZCCof8C/tc8tW8koEV44xBNwHjv+eamQSWizvUR0Dt8R/syrmQFtW9iCRvS34bynvViH+xxrwZp6KaVLxX1EBTITUjkc0DIbk1RuGZ26tri8ury4roAr4WlEQbBVUYO322iq2QNrltbXVtbWVteXl9aWl9aW7awsL64uL68tLOLK2srK+sriK48tSl9eVg6yLa0tS0V6pq8p2ZR1XXFleX1Z+WlV+whZHlD6xxbl4e9dXcNnVVQUdV1aX1taW1f3VNeU4Lq30iX5QlXPXVtROFnH6neW7HMbCyiJ2sJWroDEGsDEwddjq5ZQTeWmOQRktJ4gjas8c9sLqIi+H/bsrC2izMQDT7NS5K0e056I958s5suILXcU8cPMXFldwq5cXNoaKma0qx1eXcRrOxfDQofIU8MPyurrFfVlfH7xwPazM6JvX7pvfrWB+fq8+VzEr8s7vdc9qsz5a+ebBCglVwZzvWv8sMeM3cwqmsEhSA1PqIu4htOSUhPIkBBLtR8JfKOemNL0RV2+T0hxYbEzvGrMOjvrsC3+t023XbX/qqY/8sVN4il98lVNcjWt6m2/hgGfBgG/ZhH/ltIr/iq0C8d89p0PiRdAy2dym9wPFf5eMNmA+8X9LGb6YA225CpCItQ93Frbgv6W8s6Li/+i+Rrwqp6Mb8e5Nhtcq9v/BWF9Xj4QUthmGT95eXV9aVeD15vry3Ori3PrqxfX1c+srF9ZX59ZX5tdXrq8sLK4R1gDLK7cXbi+sLN1RYGsJwIU37e6SgmDLq/gVkAXQA8YCHEFVVu8uLuBflXwoqIY2i8tL2OIU9cQFBeIArmB9VxVIXFI7AWwqLXEuGq8s3717B1t0sLK6sryytASgJTFYXb519zZa4qK3F+6iH4AnelhaXsbBZXUMC8uLvKJyoZWlu6ZRKcNbUQajHFlbWVheUreLi+p40A8Gs6JccVWdyAqOL6mDRz+cKXq7defOIi6h9KAMZkkdiWlIy+jzzsLdZbUH7ADD8SsufevObQXw79wF9QAlWVq8u7x8987izcUVjOq2AvMK5IM+4RYv4hS14vYq9xA76tjwga+PXbwZVtQeUNDqk9/uU9TjkW/UqyTAt2jAPbvDNr7GzhT8gSIaynzI5Eu2Gm1QUIbxYaQLJcSQKSGa+P3hX0ZyELdiJruhZoH6ZaI0JUtvHKp0y2yOLOt6Myjmuc/+mU63TffUM5974f/9hYO/X1KlV7LBLsHgkNLqlNHpWTzkVTwaUDUV3nA8pvlkeO1UcPlQQGm/PlexWfIrGQxWQ2EwlrinKYvNB2ICRF9FwX+iN2U4D0JprV/YZvyn64o2rc87x//maeMZBf/xsikchwX//2sX4P/+qhHy/8R/+v8GVk8GVE+EFhkbh0/fXllfXF27trx47OYV49VzrdcvNl6/XH/9YvOtCy3zZ3uvXRi5cv7iwp27awqNuLu4dHdhaWFx6fbiIs5aAJIvg61dvQvYBDqtoSulmSI+WqFIYx3ohoPLpiHdWVpaWF29vbh0a0HBd+ygpXIQyIkjQHKlZ6ArYFNOwgplWUG/5ZU7CwsqgIN8KJdA5zeB/Er7FYwBl7yJ1YlaOAb0jDUDfmLPd5eU6yo7yrCVNcbCCga/giEtmurG1FaUfZylzHoZnP/qgjoLtlEo09r6jbt3OGy0VysWAhunYKu2XLty/fqdpWXeC2wxX1waRxaWlFXO8sJdYDkolbLGWVtcWgJ9uLO6tIAlwtKduyuYwvLq3SWsZ0D/1tVLKNI5EAAcH794I6KoTcX/Nu+ibvcCo75ASZjlla9Ip51TG/XZnQBS5uhhwCLGuyPfLrkP6Act2WG0WmD9pnTDOw9XvXGwgnHkqEFmA3qIM90bQwDZJNQ5JFTtr+x52TvqqU/8X7ptT+q2P/6Zz/+NXejBkKw6j9QGz+wup7R264RG2+Rm75Ih37LR4OrJyAbFhSqibiqoYjiwfIg4H1g+gilo8f8DNAG14L+l/P+lqPkfh6PrZ2Ma8Wrh9ZuObJgMw+K6ejK4eiqqpL9l9Mwd4P/66qXl292XZ4vPjaWfm4g7P3V0biLp0mja2aHis2P1p8Znbs9fByqBBCwr/D3AGiz1bbCrChOuyCJW1csBmrCPg9i/eOlyaESEp7fP9MxxcLCtHR229vZZuXlAYCD5osKxg9kGuCnM/6LS67ryk7q/oDDwa7hU/8Cgnb19YmLS1fl5sOKoWETcvnNnBX9UOMWq4NZdLDHWOIwbt26BOoSEhzs4O586ew4d4ieFRwd1wLJhdVVdKSjDVqB4YeHazZvYX1Y6W1cHs6zOQmGzcVw9Xfl+rt+6jZ9uYR2ysLCiHlEHubKk0p0V08QxEZyyoK5V8NOqqRmmU1RSau/kXFpRgX1ctLGl5cLcHK51986t6urK8+fOnj51cnCwH2sckKZbt26sqAQTF8UqRVkjra5Pz8y2d3bjX4wTNx9XHLt4I6q4NbigxSe/1au427Wgy0UxslU88pzTWuzj6/aoBooBZcNKsJ3qCYogAKT416eon+oADzWIqzY5DhcI4uGltedhGH8JGUQNMgkHFwLMeqxok9NbX4stDs9v3uER9pFP/YVu29M63ROf/9I3XSPjg9OrvTIMXvlGp+wu55wumyTDniRDQPlIkJrskmCopLCsHENVQ0V1BVWMhlSNM9afZJreUFL/DuA/cduC/5byu1aY/31v3Uy0iv8xjceiDFPhtZMKo1Uzdah8oHvizOLaOjjRy2s3mq9MZVwcPnBpLGxuNOzqaNTV/oNzvRlzw6VnhqeXrl5TBOagAUvHxo9dm5ufGp8aGhm6u3B3dvb4zPGZy1cunz5z+vjszPmLF2ZPzKJ2d3e5ubn6+vnGx8ehWcy+2PSMtKSUpLGxselj07MnZ6/OX52enrp56+apM6d6+nqOzx6/fOXK5NTk6bOnb92+efbM6cuX544cPujl6eHr4z09NYnpnDt3Zmpy4vr1+eGhQWNP9/Ub10+dPjUyNnL23Nkbt27gXywg0K23j3dsbExtXe2Vq1fQ1bGZ6aHhoXPnz85dnrt2/dqZs2fOXzg/PDLU29c7Nzd36tTJ0bGRicmJ06dOnT17pqe3B8PDYI7NHJu7dPHY8WNT01Nzl+YuXrxw9drV4ZFhTHNqenJ8Yhyd3Lp9CwMYHh5C4zNnTyvbM6ev37yO6V+4cP7kqZPYwQ05d+7cz3/x8wMHDwQFB+H0S5cvRe2NxB3oHx0+O3chLj6+u7t7eHBwf3Ts0MDAzZu3Zk+dGpocm791E2uEq1fnp6anZ2dne/v6EhISQRdBghcXFnE3xs9f21vSHFLY5FPQQvx3yut2y+/1yO+1T260OVJjbRLmMwooIJQi6CNdF+KMc4JXwFgg+ZuHKpn6TZLskBBI8ncJLiFR9dSoPg3SP+P82yYasECwS25yzWyzizj63B98Wqd78rGnPva/v/YDz5jUyOwG77QG7/weh2yjQ16fe0GPfarBPs0QXDUUXjse1TAV0zSzT8V/NeDeFKEeBIsx/SReq/gm/C7gv4X/t5TfzQL8jykfUtxqGvlqzew1qIGgqyaiaybiKwf6Js8sK2YnS3Or83VXRpMvDe69Nup7dcj/xlDI9Z6Y+d7kK4N5Zwcml+avri7cXVlcvHnHZsfuxor6XTve8PJ0b21t2r3rzUB/35qqisjw0JjoKIOh7ujRQ1ERYRFhIXa2NrHRkdfnr2DdUFyY7+3lYaivPXRw/8v/8ct9+6IH+ntefeU/qqsr0L6wINfZyaG4qODll38VFRU2PTVRXlZcWVGal5tltfON2uqKhTs3b9++FR0R5ufjef3alZio8Pzc7JzsjOzs9JysjNSUxNHhwR5jJ3h5MM96d5d9sXvPnjlVXVk+d+FcYsLR7KyM0JDAgvzcsZEhnHXk8IHyspKU5MTiovyE+CM/fenHjva2QYF+2VnpP/j+v1pb7zqwL2b/vpiEhKOvvvLr4CD/goLc/LwcdBUaHJieluzi7JCbnRl39PCJEzMBAb5pqUl7oyLKSor2xUZnZaZ3tLeEhQVj8OFhwWjfa+zC8Vdf/nVkeEhfb/fy8tKF82fz87InpydfevlX5y5fdvPwPHIkrrfLGOIXFOAbkJWdY23v8LqNdWt3F6Zz7sxpQ32dq4vTydnj5WWlK8tYXWA9sITveuriteji5pCCZp8C8P9Gt4JuZ/D/imy8G/jvkNJIax8x+yQtwBHf4gEmkWG+SIZLUtwATbE6QQV2Hq5iTGmx9qHWwNkUekgV9bc7Z7TYJjUACe2V4B4tHlh6ZLdbx9e6ZDYHFnX9r7//NoOafvFr3zuUXReV3eQeV+2R2eaa1+NcOOSY3++a0+mYhp4bAsv7w2tGog2T+5pn9rWcACqG1kyF1R1jFgasVnB1jv8/H/5zBfGe4b+l/NctwP/ossGI6qnIuuPg/4H/kfWTDGUcVTNxuLKn98S5BcVg8va51etVl8aTLo1EzY94X+0PvjEYfW1w//xQwtXRjHODQ0sAcUVD2tnaHujlm3AwPiZqb1FxYVlZ6Ysvvfi9730vPz8vLDzUz9/P398/NDRk3/59UVGRb7yx45//+ds1NdVr62t1dXXY9/T0CAsL/fa3v/XTn76UnJK8F7gZGbFvf2xOTraLi3NeXu43vvH1V199ZWBwoLy8DLWurvZ7//qvb+x4Hez3senpiPCwo0ePVFaUxx09kpKakpaWmgnATU9LTEgwdndHR+89c/bs4tIirvutb32zs7MDS4+Cgvx9+2JBKoICA3DFiIhwHMzNzcEV4+KOpqallpYUR0ZGxMTGJCUldnV1/vCHP9i1a6feQx8eHpaQEP/d7/7Ld7/7HfzkH+DX1NTo6ORYVVVpbbU7PSPdy8uztLQE3SYkJmCyFRXlGDmWPGDyXV1d0CwkJNjdzc0/wB+LEQ+9+ze/+U/o5M6dO5cuzeXl5Rl7en7y0ksVVVX79h9wdXUtLS0NDQ4JCAjIzct75dVXv/5P/5STm7u2tnbr5s2ysjI7O7vLly4V5OffuaNqJ1TdyrFL12NK2oLyOzzBmRf2u+eBVe7yzu/yyFVEMdaJBmdTtlwma5C8bJTkY4chTEkjmOxSUthok92IgajQAlPo1Dafwg6f3DbP9Da7xMZXDlVb5Xbuzm6yS6sKzav/6W63R598Trf9qY995n94H8qNKTS6xhscE5v3JDTbp3e45fV6Ffbr87rtU0B06oIqhsNrJ1D3GmboPBteO4UXNbB8RKRPNE/CICmS0puyar6fVbJUuGd3Av+d0lpo/yMZOTcjv+xvaQVKR7BYUzjot20CZOH/LeXBRfA/QhEBHd/A/9qJ4Oqp8JrJA1VG48nzd9ZXb67fPrt6vfbSVNrF0QNXxyLmh2OvjRy6NHhobjDp0mjWueHh5evnl26trq1GBIeUFBTZ77GvrKwcGxvr7Oysrq5OSUm5ODeH/YGBgZiY2Kampunp6f7+/sbGRgCawdC4tLR0+vTpqKio1NTUEydOJCQkgBwMDQ1dvny5Qy2RkZG9vb03btzAT2h/5coV9D87O3vhwoUjR45EREScOXPm0qVLo6OjuCh6BiSit5WV1e7u7piYmKmpKbTEuX19fcDM4uLi4OBgdFtRUYH92travXv34sRTp04dOHAAw1teXsZIvL29cQqucu7cOWwxMAwpNDTUaDS6ublZW1sfP348OzsbI8FOZmZmT09PcnJySUnJr3/9az8/v5aWFnSCUR08eLCurh4DOHr0aEZGBrbl5eXoraurG9c6fPgwbgtGGBYWhvZXr169du1aWloa7tvXvva1rKwsjGpwcBDTx23EvyAQhoaG/fv3Y2dFLbiElZUV7kl+QYGqG1eMhlbX1sbPXw3LNXhntrhkdLhk97pkdfsUGP0LOj1zFG2sVXKTS3YX86Zpc/cwoxkFPq/EFJPVZ3BOiSmKLY3tadgpCRSY2hjtGf/BPhXcuMEnpy0g1+iR2WWV1Pyr+OpfHi3W59R6HEh+8umP6nSPPfLUx6z9Dxyu6Hc6WuOS2mGf3LHzSMOepCY1+pyR2gebhIag8lFmLmMGZ+I/ViiMF40tQ8DRilUc0z5Y/LdV10R7G4+L/f+WnL8Z/m+uFvy3lPeoaPFf5ayO7VXl/0HVkyE1UzFVvd0nLigeTGt3r6ze6rpysvDseMr50SMXBhMvDqVfGEo92599YaT03NjE4tVrqwtApPam5kvnL3a0d548eXJubg6wiasAToFpQDxV56kUQBbwcG1t491T1Lmr5ktR/Kra5twrbIODN2/eHB8fB8lYEGOepSXpYXNX2oMY5Ja3QgYjjS9evIir8CcWaYBO7t69K2dpf0KZn5+Xy8kIzUYFuD527JhZG3aF00kHcZfW1Zuz5USW1XL27FmQMFJbEE3gP3pgm7GzlwIzqt2S6/YkgNtvtYo32CbWOSZW2ydW7zpStTup0TXnviQ+FJgwGzs5fEp16LdFZS7DPjO5w71M7pqIcHQZoDRmZ1zl7vhKx+QGr4wO7xyjS2bHzsRau7Qal4SCL3z9ezrd 9ueev5v/vml2ILmgAyDS2KDK+hUltE+rd0uuckupcE+pd4tu522ppJhxwz/sTzRqynAJAQocwrLpN5/+Q+pgD6nyx6LprQWDPht4f9W4UBParOGWfDfUt6tIvgfXnsssn46uvFYjLIEmPavnAionY6o6u+YvXBHsWlcurZ4a/zy+ZbzJ+rmTlVcnam+Mt0wP1Nzacpwdab9yuzJxWu3Vpbu3r6Nt2lFtWbEWwWEBOwTpohL2OIg/r19WxFT8Di2QG/wsdyRg8QxIC06UazgTWVd7RntsQ/kxD7IAXbQmEeW1IJ/2RWOsDccZJ+Kd4B6rXXFqnKFP6El95dNBUdwHP2zqyVTIY+tyF5u3cJxjoQn8gi2qtXPOsfPxhySnCudo5C44Dj5efwE4ohJcfCcNbrlSNiGOzI7XAvUFrSAt1FpsLY2cWE+PNfgmd5kn9y8J6l1t4r/Tkk1wP+dhyrfjK93UfGfohKpTHaphn0wMDoEU9gD80Xyg0qJkGh+tam+uIhwze7Yk9a046hCa+zj6vWprW5pzfYJlb6Zdd961X77Mx/ftu3pP/78lz3iiyIK210Sa+2TDK8frLRLb3fL63HJarNNqbFNrnJI23BD9i8dClHtf7T4rySqKBsGtcKY8S/TPdD+8wOU/3uassA4pDQpKYDV3BAP8v/ajP+R9ce0VZh/i/7XUt71osV/vKjRjdOxLcob6Fs56Vt7LKyqv2324h3F90rxkLq2uHj27p1Tq0sn15ZOrN06s3Z7du3mybXbJ1duXFtbVDyzFpeA72Dlr92+c1tFNgIpMJA7RCfB0nUT/AryCy0g5ApRWFULWgrOszFBUks7eBYZcuwIaHOJIZ0QgYnG+JdYyusK2stV0JioqyVPPB1TY//EcEyZiM0d7VDlEkJx0ACn8+ocHvdlAOyEOzIG/sotr4iDoDjskM2Ue7i6On3penRxq39uh1tWl0t2r1NGp2tGi2dWq3tmE5j5nfH1tqrfrhYtid40pKE7MG3pJe8bxT4SMk6iAzG2mymry0Y6YJc8o01Gu3VSo11CvXNcnWtcdVhOU1Bi8eMf+iPd9me2b3/sP1xC91YPuqXUO6U2OmV1WCU17k402KU1ueS0umY12iVXWsfX0OPYt3hgS/zHugDXAv+PtxdUgATrdwH/sXVMbQb+Y5yC228F/7dMB2bBf0t5L4rY/4QrdTKm6dj+ViUQnG8V8H8mrGqgffbiguqAhNdkcWXt1ur6jfX1a0pduba+dFWpy1fWFxfWV5fAit7EImBZcWIFxmpwXkCVFIEsMbFORCtsIMgmyEmgZkuKNQRLhTHWMvwohEHhq0VOzh6El+YRoqV0u65SDeG0ifAkE9hi2YIdzoLgLJisZfJlyoLSWr5dyAEXLzyRP3HAJBwYiUxQGH5pLBSHSwC5luzg9OHTc36pFU7x1XaJjdZJrXuSmu2TG1wAtikKdAP/d8fXU1dLTp7MPPOCoVJ+QgcuCfhMUQ8zQlIXrI0URCdfSoQUJ6/8Xse8XifsZLQ6H63wjS/3O5j3wt9/X6f7kO6RZ7/9w58fqDC6ZDTvPFTuANwu6LXPaN+T1vzGkQrb5DqnjHrrhHLgPwkNsD2sZhIgT5Z4r2EW+zgCokCDH8AsLip+avdST76/yK/Efzbhv7OqLg9QUwCbvAA2y3/MrYAeAuZqg7cD/m8J/y3lv25R7f8V/A+rmd7A/7YT0Y3HA2um/OumI6r7O05cWASLsKp4W926dffarcVLt+7O3bpzZeH2hTvXLty9eWHx9tzC7dtK7IQl4M66Es1g6drdO4ozlFoooCCvy3/n5+fPnTtHVAfjevr0abDx5KgJtiIbEdZdyzMTlk+ePHn58uV1VfJPadIG36v2Sfpy48YNoTjYXrly5fz585TPCA/Pqwg/TwEOx8yDJAfsXMiHEBFSGSI5zuU+B4z2HAmlQCI4ElKINhjhqVOn5ubmSDW0Yi6iOqbGW3ft2jXSNRzhpDgG9sxZrGkK7szI6Tn/tCrHo1W2CY07jxisEhpt4mvs4ytt4ysV9W5cnbXJ1EcqmXnuk+0XR1ozIb9kfqF7rzYRmOI1nKLY/zhktjvmdLvmGt0zW/SJFftzG196zUW3/aM63VMf+eO/OJBXE1nasyfJsAscflKjY1anYu2f2Qb83x1f5ZBWZ59S45BqIHHBpYH2AHnAPplkxQS0eiKoYhRki/EfiP/MCMNVwPsv/2f8f+qdXTLaHFKaMCqR/3wA1cL/W8qDC+U/4VWToYoIaIP/j26aDa6dDsaHVt3fdULl/9VQN1eu3zx96drs3NXjly6fnr964uqlmSuXZuYvn74+f3NxQYm7s7CIpsDuRdV5VjSt5HWJb5cuXUpKSkpOTj506BDgq7u7O0UtwHMyvcRPwqOw6CsSLEKFvrGxsczMTJyF3oiBFCKtqzwzt7IoIPhfvHhx//79uC7OIrSSnRa8FeLCa5FplxUHj5BCEauJ8ByPVgCFlqRHQviEuGhlO7w5+fn5R44ciYuLA2HCT/h3YGCApAc7Q0NDU1NT5eXloI/yyLiiIcVEhyCCBoNBNA5a/D92+UZMSbtPVqs+22if1umU0emW1eaZ1azPUvM/ZnY4myI/U7BPG05laXC4imackiKZ7LRZCkgaWGrTAUhsH/p8WSUqGXxsUw0uabUh2XVu4fF/+JnPq95en/iJlUdsRadbRpNDeptjRrtNYuPuxHr79BbHjDbb5HrH9CZ9Hth4JX8Bg0swyReXAFr8DywfwUXBY6OBOhEl0cCG8adq1/rB4j9oIgZmwX9L+d0swP+Iot6wygngf1jt5F7D1D68MM0nwuuORdROHqju6Tl5XsX/peW11Qs3bsxcvjp5ZX56/urx6/PTVy5PXkW9dAL4v6Ki392FipLShvr6A0ePDI6MANubm5t379794osvjoyMBAcHl5aWFhcXW1lZffWrX8W/gKm8vLwvfelLTk5OfX19P/nJT5ydncGle3l5dXV19fT02NjYREdHj4+POzo6vvTSS4DHgoKCurq6lpaWf/zHf/zlL3+JxoBN4CSwHWuKqKioHTt2oKuysrJXX30VjZuamqqqqjBTAOybb76J6wL/gahYdGAwP/vZzwoLC3Nzc9EhULSjo8PX19fW1hYnGo1G7GO0aWlpZ8+e/fGPf2xnZ3f9+vXQ0NDKykq0wYXQBqeAgcfIMc6amhpvb290CNCemZl5+eWX0RhY3dvb29raCgYe7TE2ADumMDs7izmmpqZ+5StfwS0CecJVMH6ME1vcN0zBz88P7V955RVcq7OzE8TrG9/4RkJCAkjJ6Ojov/zLv7z22mvoJCgoCNMR8ZHg/7Ri/9/ul93mldfnkq1kB/PK7/bL7/DJVyQkrnk97nn3YviL6B6QRd+uNw8pywQG9mEyL4YDEg8vD02ed1afon6qCRgyFO3fPFxuk1Chz6jxSSz4yy9+Q6d7dvv257770q7D1b22yZV7UuuZYdlJgf1GEJ2dh6rskg1uOZ2id8C1mNWF9j9a/Me/YPvRAPw/7ZSolf7dwX9G2PutErhY8N9S3rMC/A/N7w6twJc1HVozQfyPbTkZVT8TUzt+uNrYe+q8Et5/bXFhbfnU9fnxK1dGr18bun51dP7K6JVLY9euDl+em7p6+boSeFPhP+MOH3FxdnZwdS4qLc3Ozgb0RUZGfvnLXwYIY6exsTE9Pd3Nze3Xv/714OAg2hcVFQHYgYc4/vrrr/v7+wNdAdGgCOHh4e3t7R4eHm+88caPfvSjX/3qVxEREVg74Ff0tnPnzpiYGPC9wGRAImhKYmIiLoGu7O3tQUEAudgGBgZiGGCVgZB79uwBboMSHT16tL+/H+CJffQJuoAeMjIywsLCQGiA+YBlvV4PHPb09Dx8+DCQedeuXcBhgDB+BTID20EdAPWgXyB8oD44HSsa/IqugPO4eltbGxYp2KJZdXU17TNBI3AEswBxBDnDWZgd/sVEQO9wxTNnzoDQ4IroB+PBT+i2oqLi+9///s/UEhISAvwH/4/5krSBfGAi66q5kRb/Jy/ORxW2gP/3yut1zen3KBjwVu3/fQsUdHXLx8F72bso0sG/ANsdB8rp2MtgbqjYJ1dPny/s09JSAoRqyYF3YR/XAlhu2CVWO6ZUe2ZWf/s1u22PfFin+/CnPv35I7kNQUVtu7MMrydUWcXVWMfXOqU1O6c1Wx+t3n2k2iWj3SMX4N/jnqtInEBuAOy4hJKW6H75D/AfB2mzxJhy1GVQQ0EK8sHiv626hqLw/x0GcLbgv6W8ZwX4H5jdDv4/vFZZTUc1TMY2Hwf+7204Hl07cbiqp1fl/xfXlm6vL5+6dX1i/trojev983PDV+fG5q+M35gfmb80ee3ytZUN0Uf8kSPA9oaW5pDwMCAnQB4ICeAFmoFdBz8MSIyLi/vpT3+6d+9ewBTYV8AvMA2wD8BHM2AvDuJc4DbaAGZxClAaYB4fH4/jgFOgNwgEcA/gf/LkSVCE2tpa0I6DBw8CM3EimHZQB5AD8Pbu7u5og5Zg0YH5gFP8BFxFnxgJTjlw4ABwHtiLJQB2wMOjJZhqoCuuiKuDirFnXBr0CFQsNjZ237594NKxBZEKCAgAsHO1gvmCHIBSYP/IkSPHjx/HrMHJ4yDGCSoAnMcIcQoAHOsOa7WAPIGlx+xAHX7wgx9ghYKRgziiE1wL9wFzwa8ODg6gGgD/GzduYEGRlZV19epVEDWsONY1wh/i//j5K6HZ9e4pDS7p7XapHc6ZXeD/ffPbwf8DG13ze91yjZKTnfw/jT/B7WPLYP5kqvGrb/EAKoNFkxaoPsIN9imNzhktbjnt+rwu99wuNSioQkoUGMzpdkkzeGRU20THPf/f/lK37YnHn/74DofAfYXtLpmNryXXWqc2OaY27UmstU6o2RNfYx1XbR1Xa5/UZJvYZBPfaJvc4pTexsChGA9Y/c3yH+I/U8AElo8wPDXl/4rC4v0F/y3xH+P5rQL4v+f4byn/dQvw3ze9ifafYTWgAmN7DdOKfV3jycjqY/sr+ztmLtxS013dXF0+fvXq+OUr09evTl67ODM/N3P18hTAf37uxM0rN5WImAr+xx2Ne8NqD0hGWXXNiy++CD6Wzk3YaWhoOHHiBABwWWPnTwE7VboiG19XWVlK12laz9GCrwZKg6ZcuHCBCgWtbQyPiAOUWM5o7T+1Bqjrqq5Ba3p0+/ZtHATsA5+xb2ZTiv3z58+Db5euREdAJYUSpW14mKpnqpKpJuAsqFmgTxwVBBytmI+eO3cOVKajowPrC+osOAsxZ+WY0RtOx20ETQGpQm+gMjiXd1KL/xMXrvqnVXqkGVwzO60TW6wTGu2T6l1T6vVZzUrkn1yjoplVjefJP/sU9WOHugDsMBYNWO6gilGALfb9S4cojaGqF7z6rsPlu49WWMVX2STV2KTWO2Y1O2W0euQavXJ7vPP77BJbXFNbQrJr/vSFL+i24V3Tff3Hv45vHPPK7dpxqPL1Q5V7kgy0OwI1waJjx4EKkB611nEHJAZLDyxAaEjDJQCtIsn/M+wnpUMYJ8kTCdkHYv+jx2oItxSLoIJe18x2e1VixhAQse84h/u7iP+W/C+Woin4JD2TG0IrJsJrpkOrx8NqRqMMU3hLowwnI2uP768a7Dw+d0vJLbh2a23l5LVrE5cuT1+9fPzapVPXrpy4dOnY5bnpyxfO3Lh8d3VRTUqyevHchcmpmVuLy5evXR8aGiIG0mSFykowumLlojXOF0cAMf7Rmj4SY8HDA4HBzM/Pz4tPAXujHY7WUUtOZBHkl8LLySlin3leLWbDWzZ5dQmtWTfpiAn+EnhBbHJIMrTmQNjBFIDVYr/Kn+TSYP4nJydpYiq6b4K5kEt2jiUAGo+MjOBW4BSO1kz+M3buSkh2XVhJX1j1lE/JmGtOj01cNfDfJU0J3WmX1uqQ0S6puwCVwExF/p/chCOA0wNtZyTnILaAX6aJoSJAiRSUWO+Y3OCQanBMa7RLbdiTUr87sWZXQo1DWottosE2sdE+vsE/s/lHO10ee/pZvGmf/vznvRPyAou6HcDVpzQ7pDWqwp860RczahDzS0ooOboSY58uwGb4j3+pmwYhQANMhCagEtHi/ef/mf8XqwDiP24U+X8L/lvK71rBV+kWXx1YMqzF/+imWeD/3roT+6sHO2fn1Py/a3fWVs/fvH3i+s3Z6zdm56+enr9x7uqtczdun7lx/fz1+TuLC+uLS+tLK0reEZrtr66LNyvteQBZ5GABWcKQE+rFdsXMQWzNFF1BrPHFVUpgWYvncvpmtN9cxCZf2168fTcXcbPSEiYx2qTlqtnBZc0CRA5ie+PGDa0vGCmREAXCO/0LxL1X2y3XFGsm/2hZCpnj/9nL4bmG6KqRfc2nIw2n/UpHHZIbvHPaPLLV9L5pquGNaurJFL3AWBrbADaBrsQr7qBSFC+xncF1O6e36rNwpEOf2+WS02Gf2Wqf2YZqndSwSwkuXReU3Wbld/CZj/+p7pEnn/69P7AOiDpUM2AbX2eV2GijKHnb9iSR269lgGhtGCLaF1GbTF0D2HsCvuC/kqi0apxDYsBScQH4oPy/iP8Afy3+7zUct+C/pfwOFuC/0+EKLNVDqrCUHgutHolsmFQSgRlORDXM7q8d6joxd0fJ8L62uL5+bWnt6sraldW1y8ur88tr15bWr62uX11bv7aspPRSwH95dQ2YpyRaXF5UTeIJTQzgANSiNfuyyaVXXJm0bq3C9Iq7k5jQ0wJT2GOBZcIdpS6CqKv3ly0pglhyar2rtC5jQiCWTf65WpmM4DYLSYAsGTBZ0jWRSonPF3fE3FSusmiKI0HxkSx8ZPxiHKt1hRACtH6//Gf07KWI/KaYqpHYxlPhDae8CgedUpv8C7oCS3p8Cvu8Sob0+b0M+0wLH+p2scNcAIDZQx3nYlXFJVCX3l4E1Q21b3aXB0A71+hV0IeuXPN6XAv7bDPbXHI6dxwod0xtjMpt/Ksvfl1J7KV77Cv/9osDpZ2eGS274xp3JzW/caTSNrnGJkGxMtpxQMkXxshCXFnQj4CkAcNDGxzEAmQz/qNS48ylgU9RP33ZPsD8LxT+A//dsjroSR3VMGPBf0v5HSzAf4eD5frMruBKhZUi/u9tPB7ZeCLKMHugdqj75NxdRVu0Csb3wo3F0zeWZ68tHb+2dOLGyvTV5anrS1M3F07eWryxsqpkYl9cXl9WshQuL60sLS7RH4piE5HnALVwhOyrgOeiprCNkADhtCmrXzb5ZC2ZHH5FfEShusCylm9/0HJA8H/dZFfPAWwGXulKBDvC6q9ofBNIgyQExJLGEXjVFNFC1AEiB5PFCMklqc+qxp93xeSqsGzyOxZvMllTbOb/gf/RxW2HDdMHWs4GV884pnfoczqCiozhlYPgpX3KRjwK+pjeUZvDkQIZWtH4Fg/4lw6BfQ0sH6F8Ruz8FcVBfq93bo9Xbq8+t9ctr9clv885v1df1O+c2eqa0eSR1fSdX+5+7FGA/yOf+6t/CEurDS3osYlvss8w2qS22Wc02aZUWsVX/n/tfQd0HMl5JrRBK63CyrLs88nys+/ss87WncPJtiy9kyxblrSWJWul9WotbY4kkXMaZBAkciYRZzCYwQATkYHJOSfknAkwLHMUA4CZua+7ZppNLFdpdUv6CfV+9Kvurvrr7xnM91dX/YGklSFQH9OqZjCfeTHBoCQZZfHg5J71H2IRSoyXICdJW0YSzROTpAcV/4FoATb+f9Cwv4//++UXKMD/lOODGQLb0dF5sv5TpVuoMaxg/g8t0KSf8m5S+L8TCly9sz2xesowsa6Z2FJNbI1Mnuof3+qdONE/vT4ytbR+5adA3p3bd4Dd21TSXiov+fXr1wluM/6qzCQWty5evEhQiwAvWfRgJrQ7kY0AMosm8140Y1b+dyNuuYwD7w69RM+s3pCL4HnhwgUmSg/jjQW2zBINE8+BrDgRJgTY2RqH+OHu0s9FbpGObM7ELQscUGG8wPYsNIXo8KHXrl3biSzpM3vNuH716lUyKPnc2NvEQdoDmty6w4rzGYqEUSL4T1+g/X9PUvjfZllrsp0+PLKYLLQXD4wdHfCVDo9RCbMGpzgKP1lyZ3t1ATwJaoHItJyEgEukTVnYLalZrsSbJ/FxZGNZ8nHgf6bclyQwpXbqKkf8rx9u+dATn3ri8Q8/9sSnsiv5x6FB2s2H2iwxHbZEkTVb4cyWmdNEJmKxSZaeQCSsKDv1PElSg2Zk/xeAD31EbVEZVkkWMLJqRAITEU9ksqORQ68gfcCwn8/SOByJK01ogTqDqmK2Ufbxf788PIW2/7HkiD2Y/1doQLMVmrlq/TLwv8601qyf8G6dvUWt/+xe3dl1Lmz2u5blnk2xa7PLfZLn2uS6N/j+VZFndvbyTy/tBK7fvL1L50C/CWyMhG4mDrmkQtQBMHxwcLC3t9doNDIIBtxjZrkhVjQesuZDjlKpVCAQGAwGsngSoqfczPSYmYeTW2RnwefzdXV1NTY2nj9/niy8E5glk2QySw9FgkIHIvE5QxFH41AovIsRigR5JuIxYm9HHnMnYlNEJMdA7JcF5haYQB+1tbVBKp1Oh4srKytqtZrEnUCvCSrD43WlUnnmzJkQK671DstcCmV6ehoKdM+3+W78L5fqjyjceXJ/hsSfIrSXDI6XDY2Vj1Kz+py+8UyJmzhM7Qngybj3MqY+VLw4OgsAyflIdmZzpO5COeb/Xo7UD/zP7h2HQskUmbM6VQWdw3/+te9FRT326GOP/9P3X2wa8GbwbClCX3ynO5ZviefrE4XaFJE+U2Jlhg47FLO8ickVJn085v/EBZjBf+AqXgeI8RJEhXjkdQbiMd0fFP6TENAM/hP7n3383y8PVSHxH4p6J8pVi5W6pXL1TJlqplK7WG3EK/Zam2HCd5KK/38ntHtpZ9eycFLqXutyn+K6Tre7zza7zjR7TrWPneB7FyYv37ywG7h6+05RyeFnf/RcEie9S9z9/PPPc7lcv9//8ssvNzc32+32S5cuAVfPnj2blJSEu/39/QqF4rnnnlOpVHNzc0BpzIT5fH5GRsbs7KxGo3nhhRfQ0WKx6PV6t9tdWVn59NNPt7a2kpm2RCJBM6fTGR0dDTg9ffr0kSNHcnJy1tfXoSPI+wX4//M///OPfvQjiAFdsLW1lZeXV1hYuLS0BNnQ0kKXQ4cO1dXVnThxAjIAjYHPgF+omzfffNNkMkFP8Xi84eFhiAqGkBZ8xGIx7uKhKioquru7h4aGgN4QA8JMTU1NTk5iCAwKOcHB5XJBTq1WC4G9Xu+zzz77zDPP4EkB1319fRgIFzkcDuQBN/TFg7z++utgu7q6mp+fj8/hypUrgHe5XP79738fkttstoGBgT3f5h78nz99sVSsTeeqDzYpD7Too1t1eTLX4V4X5v8U/vdPpHU7gP/shOlMPH8mLwx5IyDOvOSNgHEBSxOY86TObLEzo8eZIfVmy/3ZEkeWQFMm1X/t+beiHn8K/11/89V/OiYzVPaPx7VZY3iuTOl4jtyd0WNKFGrihfqUbkuW2MFkDSDLSmwigebI0JB5z/yfjf/krQQVksiMCVixj//7+L9f3quQ+J/FfRNk/g/8L1dTVhZV+rVGy3q7cdJ/kor/fDsUOLezq1s42eleb3G/U+c81+i62OQ81+Q60+Y71elenr5069J24Nb2ztDgoEDIP3/h3LM/ehZoWU2XH/7wh6WlpcDGkydPAv+hBbKzs3Nzc8fGxlJTU4G9UASdnZ1VVVVHjx7FEXPgH//4x6+99ho6FhcXHz9+HH2hAo4dO4bG6IVJNdokJycDydERAAtugFORSNTR0YFmAHCSegboCqQFwC4uLuKNAxheVlYGDG9oaIBWAoqicUFBAQTA0DgmJiaCFaAY+gjcvvWtbwFsoRqA3gkJCa+++ipOm5qalpeXIQZEhRbA0ePxgO38/DzkBE9cHBkZIf6/RCngfQezffCBCoA2AZ5jiIWFBUzpa2pqoK1kMhmwHTzxUBC+trYWCqWoqAjP+6//+q8vvfQSPrptOqDcT37yEzza5uYmPpk93+Ye/F86e6Wmz1oksaV32ZOEzoQOc2qnMaNTl9VlBKim9DgSO80kQAFJlcVEdWOvvRC7UOLSS1A6slNgTOLrk3iahA5NHE8fxzcldZpS+dryXmtGDS/qI5987KMf//CTT6VVNXNNC3HtpkM8Zyzfldpty1eALOliY4LIEss3JHaEc8qQOG8kEzFDTLphaBwSAnrP+g9OiWxHRjBvWYKOIOI9qPhv+/i/X/4TFRL/E/h/ZHi2VEkt/lTpqC22Sv3qMeC/aXLsFPA/eCsUOLOzq1o42ebaqHefK3deqHNeabZfbHGc43lPC10rs+d/egP/TVTil1CvTLyxvlRUXJCWlgYoA4piPo8KULGlpQW4ikl+SUkJ4BRY3d7eDrwFQpIoB8A0gGR9ff3hw4dRiYmJgfogeQ+tVitAEmCOXkA5ICpxEAb84o0ACgXvC+Xl5YBTTJsB5lAHwENAK0AbrxtAYzBHX6gM8ATUA0gB2pjYA88x34Y84A/VgLvQGgBqvBekpKSA24EDB4DGEB6nkAQqA70w/cbLAk7BHwoIuA3Mh3bAXaVSCY0DtYKxwByCGemCIXARksTFxWF6DyZ4EDw4VBs+BMiAXtACaIPPBw+Cp0B3aAoIAMAnS0DQUKifOnUKXfZ8m3vwf/EdKv5DidyVK/Nx5BMZPe5kvj6tQ5PKp2K7HWzXRbdSm61kwYTYzJCpOLP8QtbhyRXmemRa7kgTmVOE2pQuQ3ynMZqnPdQ6mtI+UsAf/suvfy8q6pFHH330G9//9yalo0DmPMSzvXTcdJBnSesy5Et1xX3m/D5nmswbzzezN3yJrzGbSOox3EUb4DxxAQ7jvzGM/4X945CNeAeUDE+T/Ytw5oIPPP7PPv7vl/9EBfjfql8qG547PDh9dBQzqLlq/WKFdrFSu3zMtMYzAv8p+0+ogLM7Ae3cyU7nKtdzutn9TqvrbKf7HN91qtu3JXEvLVy8eW0nePPmbbPJlJWempacsLW5cevWbWLwefnyZbLSjpn/DbqgjokxKqQBCaRM9oWZWMdXr14l+7bQEYDW06dPozF6MdzINi5O0Z7sBaM7hiDhcchAuIU2Fy9eRJ0EoCbBE4g/AhkI7Tc2NqA7pqenid0mSe9I9gvQAHoBHIj9/0/pggrZDoY6g8ogXciuxNmzZ8mOLYlNRAI1gD9OISquEMFQJxZNeCUhceqgF8juNtqTHWSy0UyelBS8aHz5y1/GEJOTk9BQe75NxvKH7FUsnb9eO+AslDkyJK7MvvEMuTex05Aq0HPE1iyJLQnTb9rkhgJeeuJNLCepzVM6ok5R/ziJ58aEgGaniclT+Av6/QV9nrwBX6rEkSgyJ3KVNQPub/z7gaiojwL///jP/kyotVYMeTBocrc3sceXKLIndmiSeMMZXZpsmZ3KCyD1cOhlH5JE7N0vIMz+L3QB5v9s/MeR7P/iOokOinkL8D+LtrphtjAeIP7jY0zvsuLNhZ0CbB//98vDU4D/LbrFo0Oz+b3jR0amgf+V2vky9Xy5erFev8wzTI1tnafxP3TxdsA6tzXgWR7wb/T51qWeFcXkltizPDi+NuxbWLl889Ju8MqdbZVO285tHxwAJF4HBjF2KdusBItMNINbrBxhjMUOs8VJrGJwukKXEydO7ETSpjD2OaSQLmxbTbZzwR7HWPZ1xmMLY01MTJCEAuwN6O1I7i3GepPNJMDKOMwU5tZ2JF8AKouLixiCMezZiQSURgOyW0EaE+NYYpsUiMSmZluBQkHgbQJ6YWZmBqrkvt8pcX4IUvP/69V9zny5PVXuSO33pSg88UJzksCYI3VQoZUV9mypI6vHAYxKxjQbM3CuLpGnRx1XssVOTiSNF9shi4FoaptA7itUjGcBxvv9MXwVR6iJLjj+mc/+OfD/07/3hwfzipoNPo7EkdplyexxctCMduZN4OniuXjpMGfR607MvjM7uDR7AwKnxPqoqD+M/yQrLkmVSNZ8INXR0VmoAOA/VAmUxV2GD2IJiFAenQIGGhb4DygmauuDdgTYx//98t6FxH9L67Qmd1rwkwH+V2jnSlX4lS3X61Z4+pmxrQsA/1uhEKb3q+d+OnvmxuTpG2Onr46/c3Xy3A3/ySsL567Pnb50/tbO9Z3dn96+c5d1MIzGDCzvcacKRfIzMqaejI0948BFZr+hiBEOA6e7LDdhptced4DA QojUogGbSZhIpGHcUZmm/eTwhZ+9z1czPaUbVaCS8KcMRZlNB0zLiPw7r2JwJjn3Y2EmAjRBk7Etva+3ymD/8vvXK/vdx1WuLIU7ow+f4rElcA3pQksBZjeK9z5fe683vDCDgX1EhfAirwIJHcYEtu1ca1q8lLArP8wu8MEmYH/RYqJTLErQ2pL61JntPX+0f/5RtRjv/3YE5955o2EDr2rWBE27wx7jdGTfALmjM9vWAA6syQhtv0nuUJse5j1Hzb+4xT4T+I/4F2geHDy4cR/kgKeBALdx//98pAU4D+Hp01sN8S0ajPFDrL/S/3KtCt1upV2/Yyfxv87ocDN3eDlndDlQOhiIHQhGMLUE/9F1wKUari5Q6WGBKSFdoP4x9q58dPAnW3MdHcjHky798ZAYKCPnRWFrRqYu0E63RWD53ci+bOYrCvMOwWD/2zAZICUrYMYeUib7UiINsajijllpNpleSLvsDyOgz+zhFiJYwiTyOI8VZg3BUYV3l29iRT2IwQjeTDJewTT8d3lLv6fuV6vcJcqPDlyb5bCn9rjjGvTp3dYCyXeAiq0gi+bWoFxceRUg7DZJxBe6s4UWpLbdUltmqRIVkdi9kn8qkicf6Bx8cBEocLPEdvj2wbrNJ5vvBof9eTvRkV95HOf/9vjA5baUXcKX42pfiKf2m4muoMAPiCdnVOAWedniMkmSRpQsebaNBiU7P8y+E/W/zHnh+SY/x8enmLyBTyQ4M/3xf/oFhWEJJGUGNjfx//98jAU4H+B0MTpcSVwqUC+R0YmgP9l6nngf41utVU/C/y/Tfl/7W4Hd2/TC0E3gqEb9BvBnUBwh8J7uuD/CeC/C/TfvXn12i7wP4LnDN4yjrHElYmshDCZFtn4z+AeE+eBeIHtRtJsEbQkK/CMLy2D83tgn1ENZDeB3GJGZLyGdyPeXgRXmQRkbBXArPD8Ip8tIwajBdgdmdP3msa/u+xGXN4Yee7bjMH/pTPX6uSuEpmLsu3pG8+QeGOb9Rl8e6HEz5F4OHIvp88Pyun1gXLpVRdqzV/uyxJa07n6zE5zVg8VII4Y/5OkYMQnlzhqUYFuJM5soa6sz3zoaOMTn/5sVNQTH//tP0gtb2vRzeTL3LHtusQOamUJAE7cskiu3qKBCaA0lSCM5epLYJ9sAZN4RCQcBIlHyqSA3zP/hwo4MjJDtg/QjKQwJn7KH3zyl/vgf7f9ULMSuokCfOuJffzfLw9VAf4Xd1vzpL4kPn5rxqIBX4VmrlK7VK7FL2utxTDro/F/N7RNJQDGDHw3QId2A7wEqKSQVGbgXbKSjQMuByKT0iALJ5mZaiASt409G2fLw15RJwjPvkVQms3zDis6dCiyDh8WIHKd6cIU9hp+KOIvxvipvZsDe2WGzeFnf7bsbQJ2e3blvqrhvbixNdRuJG39/cel8X/25KWjIiNHAOy1pEs9Kd2uuDZDRpcrXz6eKfVkKHzpCm+G3JMp92QrKG9ZzJkLe/0FEncm35TBM+SI7Bx6KQagTaI0ExxmIjOn8PVpXHVxj/6IcPD3/+dfR0U9EvXIR7/3elyXdY4jsiR2OWM6zFliF5MvAPBOLPxJBCEytyemR8yaD9vzl1l3ImkICP7jn3PP/B/4z2SuQUviCHw3BfwDxf9MGv8PD01BZjbm7+P/fnkYCvD/cI8N+J8isAL/C/u95ZrZcs3CUdVShXat2TDrP0nhfzBEJwGjMCpI/e/ghYAK97ZNxfikJv0Apt07mJjT6SScPq+8v//sufOXL18eGRlxOp24ODw8rNfrT5w4sbq6ep4uQLCTJ0+urKzgysWLF1Gfn5+/evXq9PS0wWC4du0armNyvrW1dfr06Y2NDbTZpIvVavX5fODgdrvR/ezZs4uLiwMDA8vLy+CJxjqdDkyA5xgaAoCPRqMBcyLP3Nwc+l66dGltbQ2Vd95558qVK6dOnQIro9Fot9uvX78Ozi6XC2NhIPTFEKgTF91QxCf3F3wL+NnlV2DCKIt392VdoWrzZ67WDtg5XZrkLu2hDs3bVDIvZbrQli31pMk8KQov8D9d4szt9eXTJvQkYQqnx5HC06fxDLn0FjDb8ocsyGfQaW2pEG1tymzeyBHhyA/eSnr0I5+K+tATn/uLvzvS2Vcz6o/nGl5vMb3dZqQ9hcMOvATwyYsArhN33WzWLjOz0cwmEtsB3VEB4JMUYATcUC9TzpOw/9R61OAkyVCAUcJbFQ8u/g9RBMB/vDRBEigsJgr0B0r7+L9f3rtE8N+b1eOiTDLEtqPKqUrdUql6qVyz2qSfIfN/gv+hu7blO7iyE9ql1oVCAdCt0O6NbWozVWk0RKckx6emDSlHAeMZGRn9/f02mw0VsVgskUi6u7uB1R6PBxCKemVlZVNTE1QD6llZWahkZ2fHx8fX19eXl5cDsWtqaqA7mpub0eXIkSPHjh17/fXXY2JiwK20tLSxsfHo0aMlJSXFxcVTU1PA/J6enhdeeCE3Nxe4nZOT09LSQvJqvfbaa21tbWAOYO/t7UXjjo4OAL5Sqezr6wMrmUz28ssvk2YJCQlvvPFGQUFBUlLS008/jfYKhQLC7NLWR+TF5Bdft/nAyh78Xzt/jad31yrtRQPWnF5rZrcplatN5dKZtoT6JLktXerMpvO/5NH+X9Sqfq8fkJXQrk3k6jgRjwC2ZQ6wGs0wFQekZ4uMh4XDr2Qcfvyp34969GOf+J0/TK9pazNOZIr0bxxXvtFieLtFG9OmYVZjmEV+4tsF/Ceby+z95T1EVAPZL0Dl3fhP0r6Q9GQkBDR5EXiA8T/Z+J/V4wD+40FIzrIPGvz38X+//MwSxn8Jfiw+eo/PeGRkskq3VDK6UK5eadIx+E/9q7D+WQIke9w2/T9ER4cOAhBv7u7kFhfJh4cqGxoUfX1A++joaMCsUChMT08HegNFAdTV1dVjY2OY6qMB8D81NRWoLhKJAPudnZ0AczRLTk4G/EJxQAvgLnCYz+cD6mdmZvLz8wHOOEV3aIeioiLAdWJiIkYBAEKPAMCB58B89KqqqgJ6y+VyXMe4mP9jel9bWwv1AQ54QYAKQDMIaTab0QB6R0GXV155RSAQQDVgLCgsMERjsl9A9p0f7Bd338LGf/yZvb6vP/eTb78Zm3S8s7RXXzvkbB711/e7j8qtuVJjukSf2KFJ5uqzuqy5mOfT8Xw4VP4XUxxXlyI05yrCDr/sKTqV2JH2CEgAIIv01eLB//r5v4565GMfevy3n3sro03jL+6zRfOUCUJzPN8Ux9OTVPKJdBpcYslPkJ+EmwZQk5UlEmKChBvaQyT0BNpj0D34T06B/yQFPOW3qF0iKQAeHvwn8bTJmtU+/u+Xh6oQ/M+V4JdChwIWGEqGJyo0C8Ujs6WqpePaKe/meTrT1S69AB0K0Ev/IZqCEQpQG7/U9sDt7Z3K6mq+QGCyWhYWFiYnJ/Py8gC558+fB+wDn8fHxwHswNLV1dUbN24Ae0dHRwH4AHbM/L/5zW8CgblcLiAdyN/e3s7j8dAA2I42HA4HOOz3+6FKMMnHC8WLL7746quvknTqFRUVS0tLkBFK4cCBAwB/kni3tbV1Y2MDWgZX0BevGBaLBW8BEAOqBEKqVCq8oQwNDUFNAOozMzPn5uagDiDD9PR0Q0MDhl5eXiaCEYesX9fiz6+97JFKo9N99KlPRj3x0U//yZ/98Zf+8V9ejM0sbavhD3eMetq03hqVq3TAl9/jSuPq03mGdIAtZYpjjuFqY3i65B47p38sl7aiIUtABZHkLJiN01Hj7CUKy79Hxz/66JNRUU/+tz/9SrVAVzk0ligyxnabMhXO9C59Ml9LtoxJYGeC9gTMcZ0ElGM2f8nFSP5HLeMXTHIBgANQlCA8G/9BbPyv0CxCQmL/8zDgf7bYiaeA1oOc+/5f++VhKwz+F/ZPZnTbkjt1+b2eMvX8EdXCUeX8Mc2k9wSF/wGyqUgleKGW+0PMPgAhKIedYGB7BwRULy85cvDNN8f9/l3aXwmYidnyVbpcu3YNp6iQIMk6nQ4gfPPmTZJXq6mpCaqB8Y0lfdGYeOySi1euXHnnnXdu3bqF47lz5wDaExMTpDHZXAZPaARiIEpGxOhX6EJ64aLVar1w4QLEgz7yer1+WlSfzwf9QlyDSXvUL126hPZEfmgx9sbrQ6gC7u4s00ejTvPUxz8aFS6Pf+ixT334I7/3iU/+we989gt///SPoksaONyRmqGpVv1qvXqhbGgyR+JM7NAfalW93ao60KGLFZiypGG3XCqWspxy4MrvG0sWQE0YC/r8L+Y3PPL4hx997KMfefL3jncoO5RzmV3WA53GQyJTdp+9SG4ulNlSBWYSwIeoANRBZBeATO9JAGoy8ycbuGwiW8NoQGbR98X/UuUcWZVChdRJ/IcHv/5P27tC8nSRjeD/fv6X/fJQFeL/lSf15veOZ1M/f02WxFauXihVL5UpF46pJrwb56j1H/r/ZJfG/x3gPWUNEyAqIEjb/Acw+wc0QgXsUi8JlP1nxGYmRNvqkNDHjGMUYxQaordTSUzmEMvPK3BvahViR0qsH9k+VjuRHC6kDRPGmcmfzjYZZexngpEE8YQ5YybKbK2yMyqCFWP/w9jehFjJfwnD0L0aYTfi+Ewa77F0Ytsp/dpLMPJBL66sHUhM/c7zL/7lP3zzqT/5QtTjn4AWiIp6gjLUQXn0sU9/7k//+v9+95mXE9/KKE+r5JcI1dUDnrJBf4Hck0pF0bRmcPVp7Tq8F8R3WWN6HHFSZ6rCdbBlML/blNUy+D/+/umoRx5/7MlPfffHB7gjvlK5N7nTktDtTJG58/o9xQp7kcJFdmPJ9B4q4O1jw5jkMx5h7J0FdpQJxv+XEFn/BysS/xMqgGApsf/BRTL/p/5vlXNgksQ3MmGLHvD6j9gJfQf99cBCQOzj/3557wIYOCp15svwS/RzpK4EHn6b5lLVXKlqsVK5dFw55l0/u02v/wcDoODObnA77AYVtoGBImCQMxAxaGRgnzFWD9K5S5iZMykken8g4o3LGOezLe0ZE0rG/pNpQOzhGUcwxsUgEEkrzGScYfJwkYEYHy62ViJjMTm52PIHaE/h7UgaR+Imxma7R+BAxFksGEkfw5Y5EInn//9JBdBfCjXM+vmrPKWtYdhyWKFOaBG9mFf2lWd+/Pt/9pdPfOKpqMcfi7pbHn/kkY899bv//Qtf/pdv/Tj2QHFzYaeqqs/VODrZNjRWI3PmdVtTeuxvi0yvC7QxXZocsa5OYfjq916KevSpqKgP/9VXv1Uv09aNeFM7jQkCS4rYnS33FSi8hXJnnsxBjDnJsj9Z8yE5ZUigIQAjk7SFWfwn7mDEXoh4BNBxp9XoQuz/QQz+E4tQ4HzRwAQhYlnKBBR6wPjfQ2VYxtOREHD7+L9fHqpC8L9AjrnWRJ4C8zddapexZGS6XLPyLvynMYXaCQ4BFnd2dxhEZUCPgU0mAg9BPAbGg5FkLsGIeyzB7VBkhsye1TNCMvzZoM12E2O8gJlZOuM4wPhz7VErIZZVfzDi2MvWNQxnIiThRhJTkixgRGym8W4k1S97INKeLUaAlXH41/5t3l3/oaQPzWxeKOoczhWp83steX3Ww72WSoUpv0mSWdH2ds6Rf3nhrT//4tef+MTnoqI+HhX1saioJ2n6+ONP/cFn/+Svvvi1f/nmMy++nFBQJRhpU/trVd7SYWeF2lOjcrSo7JkVxz7yyd+F4vjIxz+T3yhoHfUWSayUk5fYnYG5RO9YQa8P+J8vdzIhQ8kOL9qQtSAm6TCzKMT2/GWIuIMR/18okfviPwkBSjL/knwB4MZ4EDxY/M+mLVfx4FBS+/P//fKwFWr9v9uaK/HmyPCu6kji41ephSIoUy/twf/Azjbm99s7gRsA28Aumf+HWAmq2NP1ICsgAzt4DoO0IRbgs31s2Zl/2ctE7Dkzo3RIezJdv379+pkzZ65duxagV2xw5fTp0xcuXCDmOuyBmEk+8w5ClAW5dfXqVbKzQC4yeu3s2bMnT54kDstMWDZGsD0+wuwlLHYwIvYa1HtFb3g/ZY/95+ypK7l8dTJPHcPTvtY0cqBFmSU0Q903jUy2amcaRsdq5Pb8433Pxxb96d9953c/9xef/C//44lP/Jeoxz4WXiCi1og+/lu/80ef//I3XkzkFHN7yoQygcZ4XCz/7//rf+PmY09+4t/eTO3QTRaJDGk8XXq3M0sxBgL+5ys8BZj/0/jPDh8HiCZJZIhHMFn8J+v8hJgQQATASV8C6TiS+D8M/pP4b0dHZ4lPcQ5twsqs/1AcHpALMENk+Wsf//fLw1lI/J9UviWJb07iGxJ46tg2ZUa3rWRkfg/+UyZAdLnzrokrgTI2oDGrH0wlxJoDk+k0e1ZPcsQzqRWZ6TQpgXtXzkOsrIsMzFZWVr755pt1dXXERGd8fDwpKQlXRkdHQ6wcjgwHhiezek+aKRSKAwcOZGZmQgWEIv7FAP/09PTo6GiTyRSik0UyOw7MIk8o8jqzhy1Zj3r3e9D/j+3jPTznTl/L69Sn8A3RnebX2/UxQkey0JUlcKbzzClcY0aXNa/HWdbra1LNcrWzdb3W4lZ5XEH1t3/0yuf/6u8+/unfobXAozQ9DrAH3H/yv/7h5//yi5//i7/60GM4feRPv/R/ubrpo3JXXo89tdOc3oPJ/3iGzM+h1vA9hQpXvsKVK/ewcwoA4Yn9J/H8ZTZ5QSQFMI7MWhAJBIE6lEV0iwoVQP0e/Cf2P+AMFUASBKPCRJZ7sOv/eXQKYGLCCsEaPki333383y+/QAH+pzUPxzbjfZyK/5MqNCZ0aNJE1qNKav3/2Kifwf+d7ds3b96yWB2dIlFff9/YmN/pdGKqDIDl8Xg2m02v1+Mol8vNZrNEIhEKhQ6Hw+VyATNx3Wg0Li0toWVfXx+Jma9SqYaGhkZGRpaXl9EFGIs6uM3Ozg4ODoK5Tqe7fPky2nR0dIADKmCi0Wh8Ph+fz7fb7cPDwxgIQ6jV6u985zsJCQmFhYVKpRJDHzt27Cc/+clbb73V2dkJtmC4sbEBhmgPkOzt7QXP9fV1jAWBSa5G8PH7/UVFRW+88UZGRoZWqxWJRAaDAW8EeJV48cUXExMTxWIxHqq/vx/c0KC1tRWSQ36oG1zHo4EPnlcqlfb09OA6ZMZjgj+kmpqagiRBVvm1f5t7eC6euV7QqU3mqg9wNa+16RPF3iz5VK5sMrPLFdtmiG7Vx7RC9ZuyoQhElvJeV+OIv2nY0zzgqBKOxhbUf/flhL/+1g/+4H/+n4/91mfppaFHw9vHjz4Z9dhHP/Jbn4krqatRTqdRab8sGT1ujmIyQ+rPlHo5FNp7ChSuPIWL7dhFXMAw+T/YNEryDjArP4xHADsdDLMiRCyIgKLvnv9XaBdxkbgkHB6awjQbrwxoD4XyYI0/Gfwn6uxhwX/LPv7vl7uFnv9r0gXWbAl+oXhldiQLAAuqI6Pz1eqVhmGve/XMHcrgZzsY2DWbLa+8+ubmmTPJKSl1dVTiLSDqSy+9BFT/yle+AnjE9Pvpp59+4YUXcnJyMFuOiYnJy8vD9WeffTY5ORmoiwqAFO1LSkqAnH/7t38L0Aakp6amAi0B78Be3OVyudAR6AJQ/eIXvwi0x/Uf/OAHmITjYkNDwz/+4z8CqFH/+te/3tzcHB8f/81vfhN30QtQ/L3vfe/o0aMYq6urq729/W/+5m/S0tIAyK+//jqaYdzi4mIMil65ubnPP/98d3c3IL26urq0tLS+vv6VV16BGoKcX/7yl8EHkH7x4kVoEzzv5ubmD3/4Q0gLUdEXagXvHdAC6AgFBHmIqDKZDM3wIXz1q1/Nz8+HrsFYeCgcQ5GFr913RSV6/yVw1zGBOs5tXSzpVGZ2jMbxlIc6dDH0FL1APpYj9sS2aWNpJ6/YNtXB4yPxbZpkroHyBRNY8kTOoh5P1eBcg3KBb5rrts4UNEteSsj/+3/64Sc+8ydRUU9BFzz6sd/7cVpRk3Y8VWCJbtVGt+rSRO6c3kmOHDhMEq+4OTJHttTBrMOT3V4mdhAztydENoJJ9B4mBDRNTpJxkjQGipI4zySWAhUCSEulgCEh4KAFoBEwFvQICVX6wNd/ciJ73yQE9IOP/7CP//uFVYD/RV3mXLGH/tl68uSu9G5zTJs6v2+ySrV8jFr/eWebcvfdwf+JSql66+3oybnZDn7HwODAwYMHAfhAeOB8ZmYm5sxvv/02MBaADCSEInj55ZcBkhUVFf/xH/8BuAYMYkL+2muvAeGfe+65lpYWtAeA413gzTffbGtr+7d/+zcOh1NTU/Pqq69CszzzzDPATCiIuLg44DD6ohdYoULStWO2//3vfx8jAmkx0Je+9CUoncOHD4MPQB4DfeELXwDUowIcBnqjGfigI+AaGgGvBgKB4Bvf+Aa6QAbAOETCHB667Lvf/S5a/sM//AOGm5+fB/4fOHAA2goNwARKZGBgoKCgAMOBFSb5eCIM9O1vfxvCY6CUlBSoFRJQ4mtf+xqeAhXI2djYGKKXj8jq0K/9FWAP/i9sXSgTKgu7tTlyS7LYdIiniW1TJ/N06QJTMl+f1GXMFEPvW1ME1OpKbLshWeBMFnoSO71xPG9C53hihzdf4qwc9HIN8xLHWod6oqpbl9fU+0Jq+Sv5x2tG/MV93vhOSxzfHMs1JHSY07scmT3OHImngLLe9HFkrmypkwn7DHgnm7lMLGjmpYBgPrP4T6IDAfMJZdIxSEkMaoD/Xvyn7f8x8ychIHCaK/NCxYTx/4Hu/+7j/355yAuJ/0n2f2kfT/weHXHtmiyJp1K51KSa8G2cZfB/enomLj55YGRE1C1aWlp0Op2LdCELNZgnW63WqampGzduYBIODMd0FxPmlZUVQOjq6iom54Dl6enpyclJqAOPx4O+ExMT6Isr4IZefr+fBFsANzTAXVQsFgv4rK2t4XUAzcBkYWEBd202m91uxylunThxQqVS4crMzAzkwSkqmJ9jCIzr9XpPnTq1sbGBI4SBDGhMtnrRHfCOU6gDt9uNi2CiVqsvXbqEU7yV4HHu3LmDLuAGeTAWJv/oCMUnFAohHoaYnZ09e/YsWOH6yZMnIRWUFx4ZTzQ2NnbmzBkcIdXp06fJljExE/q1f5t78H/x1KWyLnVRj6Fw0M0Z8CT3WON52tjm0WTKyteYo7Dn97nyFc7Mbks8VxPbrk/stKX1+NOlk6ni6cSuyYOt9vh2fVGvv063WDkyWaOa6nBsdLq3uI6t4+YTeTJvhtgVJzBnyDyZEjdlpcPVpvAM6V1WKi503xgHKkDuzaXt+bPpZXBi80OcvIjZJ4ntzM72y1j+kMUfZkWI+BGTCD/vhf/Fg5MVmkVgPln/eeD2//v4v18e8hK2/5f6OFJvnsKb3+vOU7gT+YY0kbN0aP64ahz4f5us/1AmPzvrG5veiYkTW1s3b/6UvYhBLDBDYbMcamsVWLe1tRWKBNJnW10SN17GCoh0ZFKukMy55C7JDsDeNiXDodm5c+cYJsQUJ8Tyq2IDLGMLSpgzp4xxJsr58+ehBcCT5KwMRZzCmL1dYvBDBX+L9AXOQ2aSC/jK1atkRGLOigItQzKXsTA5FPEXCH4w+D9/6kqJUJ/VqU+X2TMH/Rm9/oROc0yLOr5dncjXponN+f340t25chdHBi1gTeqgFtszuh35vWMFfePpIntcmz5NaCsZnq40LNdaV2ssKzWW1Xrb1pHRxbQeX6LAnipx5A34iwb9uRJ7Rqc+jadN41MqIEviyur1ZynCGeSBgQlc/cGm0ehmFVntJyZAOMa0qgnIk70AZvGfGH+S9GHEgwyn98V/9voPGgDzqUDTNP4/WPDfx//98pAXCv9ljlwpfqfuXIU3V+7M7/WkCE2pXfajg9PHlWO+tbO3gIFU+ped27du3dneJXYzlDtYkNIJANQ7NJDSmBbYhiLYobyAA7s0vAO9A+xCeYvt0A0iRvsBKlg9buwQ5y8qFW+IGpHSN3duU+5d9F3aIyCsCChnBNolmU4/sEu1pXyywI1uuUNZXW7v0lljSD0QTjewsxtWOjv0oOEcBDsRayI8C9WA9p9i7HZwkdIC4cxllOUoiIqFQYyIImKQdMLk8bdpKyB6rCCRMCwS5TRBDUiu/9pVQPBe/J/evJLHp1b1ozuMMUBgiTuaZ0rowEzbEsvTRvO1Kd1U+OX8Pl/hgD9X5sjo0qfxVSkdI9l4a5Cbc0S6tE5z0eBUqXaxwrxSbl2usC2XW1aq7ZvJPa5kkStRYM0Z8Gb3Ql84i3tdRTJ7brcZWiCBp03oNKVIXJlyD0eGGYU3W0qZQR5qUR5sHk3tsmSJnendVAaZHLmH/q+j14KoNGQetAwTNIgkvBeQTkUmofYLytR71n9WSQi4MtUcUTRQVeAGvKWYE2/ihwf/7Q8M/2ssmzX34v/uPv7vF7L+02fm9HnS8I8q9VCpABWu1B5TSpf+cK+zZdQ7tnb6doAy/KcCfAZv7QRvBoO3QkGogztU6AdKCwDTtsORgCjYvkP/X1EhgUhgICo+KB00glAwQE53mMhBhAI7t0NU323qYmCbRBQK4ArNFpUgfZFwoEZn+lJ709skFEWI7hKkGwfvChCJVBoKjxWkTsNDMIKRK8B7OtPBNtOYEeaunOHTu8ITPmHBmCe6y5zKi0Ozoj6ucMcwh7tM7kesBuRjIb3uea474Y+XecYA+RiDc1uXC3laDt8Q36aO5qnf5qoP8rXJ3RaOzJUptlIb/TxVcrc5p8+T0+fOVjizFY4smTVZqInjDYMS+MoMia1ENVtmWKy0LNfY16rsa6Xmxdwh/6EOTXKPldPv5Qy4s3qdOb2uHIUzFxWFM0tqS+oyRHdo4gT6VIk9u8+d0+fl9LrTJfZkkelg+2gMT50usWXIHVlyV3avO0vhzJQ5cDdVbE3tsSSJTKAEoSFBqI8X6GP5mji+NoangfyxHZoS1Uypdv6oZrbSsFRvP1FjXqk0LFboFkpGpzKldtDhkUmMlSjUp0G8XjdH4eZQsrkpQuX91BWk/st07HVny114tPhO3VHNXI11tc6+XmsjtEbTz6iTylodXa+hXr5WqaN1LXIMV2oJoaV9vc62sYdho23tuHXtGBSBefO4ZZ1nXfSevHQ1RMVzD7s47sP/b3AB/hcqdFkKR4bclyn1p3e70kTmBKEWv/08sal+wOFdO3MzGLpFAfH2HUyQqbQvO3TIz2AgDE94IyDzYJIDLBipB34p2qWSyOywWFH5xUiisWA43hzNPEhlFQ4yCcjuUiDShu5IE8WT4hyIsA0EwtIG2DK/l8DB90vhCKmM8KFIwFQi3rsb7CHW9QAdXQOPuROkXiJ2gnTcJfaD7IZz8TAPEpo/eaNW4irrcaZztTGto280DR7ia1IltoJ+X2GvN7fHniIwxHZogU7pYltOr4fT68mWYxrgiO/UH2pX4Xpuv7dCv1hlWq4yrdRa1qqMyyWq6bQeS6LQmCWHvnABukkFLVHJkrmyFK4MqT1FZAITcEjuMoEhzRwqBm8NpmiuCiogmvJK0+A1JIYGdoB8PF+HCrlL3eoAaeNoQiWWR7UpUU6XsfC/1rwK8co1c0dGp7KkDo7MeVQ1k9/vS+kyZvRYc4H/cheOuQqKgMY576dOKopfpiOlgFzU58nX4XOrNq/U2zeA53XWdepIKj+vXkvN3lfRF98CjtXm1cgxXMH3QpF1jW6/EeYQYXIX/y0njlvWeNYF76kw/tM/ktA+/v8mF+B/XtdIWpcxkW9ObDcntJkSuYZ46oepSe+21oyOW9cuvnMneHY7eDYQPBcInA0GzweCl+6ELm0HL+5SdClA0YWdADn9JShwL+0GL0S4XSKnOzT/neCl3Qjh+k6Arodw63KAUIgm3KLaXCYcIrKB5/ntAGF4fjvMlnD+uXT5/dGl+9H5O4FztwNhAXbCMhNC/cL2PYSLF7bROEAeh92Y3KJYbVPPdT7S5fwdqk7ae9evNfZNlkl9GTxjfJv27WZlDE+f3GXlSNwFMm+RzJsr8SR3mmOpPO9GEp+fxGogW7HZEvfR0dkaw2qtcb3OtFFnWi9VzhFXXDQu7B8njemjp3hwMrPHCaKzLnrzFP50kS2eqyf5grN6nLlyX0HfWMQFQB3XrouYfdpoFzAnnWjSRayAaMtPN9hSbrwSN9kCALeSoelyNRXwrUq3AkCrM65XaZbKlQtlynk0y5P7qrRLhwcnM0S2zG4HTnOlHhzzZDSRNZlfuS4j9V+mIwSQUUtACTzD4aGpWuMa f5DiKzP/Ix6uIJPvsawVq1frdav4LtAPXIMV/C9sCKL3o8hFIFls8ayWW/daLcteE5fuka/3FLTfzK32i+/qYWy/+cOpPK0STxzGt/J6fLlSsazxJ54oSWm03RkaKLTvjYwtjk0vjE4ud4/szk4d2po+tSQf7Pfu6bwLff5V0Fd1ulWlavHPvsumqHp/nWRbUZknRbZaLJOd9vou445HFHH3R7nfI9zrtsxK7LPdtmmux1zQstUq8aD0+GZreGZkyMzJ0fnTivnT4/OQqotsWtB5l3uH18fmtrE3b6xVZl7UWieFJgnwK3D4EddTPOnmDt+vrRi+yxNM+Jfqd5tpyRnE9800ab1tut8AssUfWUGRzwX/aQUdVO95ihy4DgrsEyifYva3abxtKrdoA7jWJiVcbxN4+vQjwuM052GSRx7bPNi+0KHbrxDNyGyzqHO1c2XiX35AntKuyGl05ostCcIrHE8AKkhrdOaJ/EWyMcK5OPZPe4knimBa0wT2LLwAiiwJvNMqBwZmq1QLdXo1uoMGw3mzWrtar58LKFdH9eizRQ582T+XJmvoHe8sHciTwqs86cL7Alt+kTKs9iRT3PmiD3pQhuYJ3eY6C6AR3+myIE2qQIr6hQTKVDamyMBeXLARzaGK+FTsYdDE7qkdFoS2g2HB6YgUpVmpVq70mA6UW/YqNGsVI4uVKmWcnqg1MZqtatHB2eyuhycbleB1JePZ5T5C6Q0QVrQr1yX+n6FjnjkfJkfcyp8SvgYj1m2Gs2bjWZyJJX3qocr9caNWv06voUa3Sp9XKvVg9ZpoipoUG88gU+DoncxhAqotZ6otG5WWLZqrRutLPwPv+Pu4/9vcAH+5wtHcsQ2DvVzG8uTTObLJrMkvniRI7rLltc/UTU606CcaFSNN+inGywLjdaVRvNqvWqhTjVbp52q1U5VqcbzJMbE1oEiubVIbqOPFBUrbMUKK022+9YL5YQsNFkLZdZIX0uhzJIvNeXQlCsz58kt+Qpr0YCTIzbGtvZniQ01+uk601yDaf64banJvtJoWawzzh0Z9pSrxmr1Mw3m+WPWxVrd1JEBZ3aXFtxK+p2ZAlVuj+FwrwMCFEjNOLKlJfU9EpbIbRSh8ivVwRNiU0RVbHlya2a3PoE7nMAdShOqM0S6rB59ttjAkeAxzbkyS57MkiOj6hTJcDSld2mT+cpUgQrt49sHQajkUB+IFR3TOjXpHdpMyupGky00Hu3zFUodqVx1tsBYLHMdVrgPSz2F3e7UNmNssyZV5MhSjKVJvfFCWwzPmNBhThPas8WeXPlYnmI8EyqAb4nnmeLaDaB0kbN4cKZCs1Klw7RzHVRj2Cjsn0oR2OLbDQk8vB1YQFmU2bA/V04RTnEXHXFEPa3LAbaFfZPZEi+uJPCMiR1m6CCMiLHIKMkCa6rQjpY4pghtdAZqK5oRwiiEqLHoU3Qp6JssVS5WalcrNZgMb9QZT9Qa1olGgMKC4kCluH8qXWgnGopWKP6woqHpfdZ/hY74HCA5PqhqA2bpW78s4RlrjBvkW2C+iz1Ui8/BeKLOhJeFzb3dLZvV1hMVwH/rZhj/T1H4v7uP//uFxv8Sme7wgKew149ZXK6EmtRly30pUnd0lzlT5iofnjqmXajXzFZq5yrNKzW2zVrTZpV6tVJFrbuWqWbK1bO5Cndih4YjdeTInXkKsgrq+rlU0OfN7/MW0JTfByByoTuu58icmT3WFKEhoVOXKDSkS2zU0nGvO6fPkylzxPDUySJTtsKVJrZmSO24gnqW3JkutRcMjZWoZyoMi6By/UKFbr5kZAKsigb8ZeqZjB5LusgM/nm97lyZC3LmUCPeQ3skzJe/L8pRUIvhDGVTG+uWt1tH3moZju3Q0KvcNHWQtW5qfXsPRXNVuE4+ATw1aR9Pfyw4xvG08W3auFZdfJseiIcZJibVmJ8D+goU4wWKMSqst9gV36Y70KxMFFozFL7MvrE0mSe5x5EoMMd1AIEtqV22LIk7v288S+pJ6DAebFbF8wy5vWPlmqUK7XK1cb3WtFFjXC9VL6Z3OxL5pmShFV0S+KaYNm1ipzmly5bR48wUu2K5elQqdSulqoVsqScJt4RWXAdb8E8T2cEcXXARhAoojquPadeRemy7DhTHM4Az2CYJLJCNNMYQad0OXEf7vL7xI6NzlGy6lRoim361TLVQpV3OENk5Ene5erGwfyJdZM/odlBrLzJv7oMluS9H7iMfDj7MOvMJiiybvziRzx99qw1r1UyFRbhLkWmj1kzRHv711o16aqd4A9RgXePa5v2nL96grCUC+/i/X2j8VxfIjEUKe5HMUSR1FsgcuXJHhswaL1BniQyVQ94W/dxxzWyVerpSv1BnWavHv7FquU69UK2eq1TN1Grnjwzi3d+QJTLliK0Fcme+zJEnseNYIHP+DCqECqAb50ps6MjpsWR2mdI6dSBwyxAaE3maeK4qrcsEjZAtseXKqSOuZPZYAOyF/T5cSReZMrqptMVQQOWq6Rr9Yj1eT8wrtYalWv1CpWoaAx3u91apZzEWOGMUSjC5Kw/6AmLI76V7JSx6f0RHP76HIGps6yj9UMZUoQFHPF2KwJDcqUvia/EISaiwKIGnpjLyiK150CBia4pAT5rFc6kwffHtqoRWZczx4bjm0RSuLq1Dn9CiSmxTp/B0WV2WPImzSOHJk9lThbp4njKOq4zjq9MllkyZNUsKRDUm8jVJfHVShzpdZMiTOzgSa6pAB8qV2cuUk7WGhRr9fK1xocG8XK6eyhZjwq/O7DahJRrgNE2oT+SpErhKVFIEWlwpV002WlbQvlIzU9jnzhAZk/ma9C4D2ucrnGgA5ok8ZWzrcEzrUGKHCtxAaMZQZrcxS2zOllg4UisoR2pDXwhW0OsCH1DxgLd0dAL8IR4GarAs1+rnKtXTOGb3mPJktirNzJFBX5bImN1tKlRAD+JrdTxI6nXhE8PD4kOGwMesq78sUY95L9Wblu4hM02RU3wF7O7NtuU2+2KLbbnZutpmWxLaZqbOXLwVCu5ShmS0Cd4+/v8GF+B/u855XONu1vlbNP5WDY6+Rq2vTuOqHLIcG3V0GScUjkWJbUHoWBS410TerR73ltS2IbWviexLQstCt2O50zzXpPQ1DLmOjXhRaVb6j4/6mlVjLeqfRc0qPxqjS8Ogq37A2TjsPj7ixbFJ6e8wzgpsi03qsdohZ92wu1kz3qafatFONCp91f12VKS+E1L/Zo97jW+Z5xpn0KBhxNPlWO52reKi2LMu8W6gDglbNRMYS2hd5Bmma/vtx0Y8LRBMNdY06mv5eRK2qd4XtWjGmu6lRqW3qt+GJ2rRTbbqJvEgIAiPJz2u8lOkvocaR714Llxv1U8xbY4pffgcGka9uFs/6KrutVYprLV99to+R02fvUJmLpMYcKVx2NsEJjqKGlSe8gHLEYWhatheq3Q3aHzH1F5crBl2VPRbKgesdaOu2hFH9ZCtUePtsM0KXUtC1yKOPb61Ht9qq3GichBtnGDVpB+jSOdvVHtrR5zl/ebSXmPFgKVZP9btXRH712UTJ+STmyLPSrt5qnbUiY71Svdxra9JN3Zc668atJX1mdCletgOJuQiJaSWomP439N4cQSFr2hR9zbrx8EKArSZpjrscwLXIvj3+NfEvjWRa0lgnxc5FxuV7iaNr8uxyDVO1g7Z64YdrbrxFt1Ys8b3AIkSQD9W0W+uGXGIvKvSiROSsQ3J2Pr7ITEenEX4KCjy0uTBV7DGbtw7tjo8ttzvX1f4TvT6N4bHFlfOX9oJm2FHErnul9/UAvz/f1BLAwQUAAAACAAAAAAAllZwKcNUAQB+kwYAGAAAAHdvcmQvbWVkaWEvaW1hZ2UwMDA0LmJtcOydCXRdV3X+ISQMDYUwtNCwKENhAQVaoIvSrjL9y2IMtJQmLUkhZIBQmgRCJsdO4sRT7MSOZ1u2Y3m2ZlmeR1mWLNmyBsvzKFuyZTu2PMqW9Oan9//u+fnuHj85jhNoEogPzuPqDueee+65395n72/v888/6D/uzW8Iyt/rv0/qv9gb3/CGD+q/N77h/W7/d3S85h1vcP+FJZVKRaPRyGWUrq6u7u5uTtb22bNnz5w5c/r06VOuaOPcuXM6FIvFdFpHR4eO6pzOzk6uetG7xFzRhi7R5aqQa3Uv1dzhijba2tp27ty5d+/eAwcOHDp0SH8edEUb2sPGwYsV9uu3tbV127Zt+/btUwtVv37156ZNm/bv379lyxZtNDc36+iePXt27dq1ffv2XWHRfXWCTt68ebNOa2lpOXnypJ6RllOVKtm6datO0K+u3bFjxx5XqJNfFZqhP1WbnkWVxONxvzfUXfRGIpHo6elRD+t2el71Bn3V6Up7e7sq13PpkB5ft1PD1M6mpibVrDbw57Fjx9Q22kl/as9OV1StLldLeDqVjRs30j8HXFHzVK2O6jSeTs+lxnM7Pamu1ePoV/dSL3GJbavoWlWoFqoGHdItqFx7VIMqbHVF5+iQ9vOKdYjLdQvuqKILtV/3UrO1odp2796te2lDtekq1aaj+lMbOoE+VxfRhq2uqHNUp55FfaKuUDeqS8+6Qudrp4YfR/Ve1PmqXD122pWTv1s5ERb+VOX8ao8qP3r0qG6kX23Tnm5XtKH9eiI9r/pH34IGBoNERX/qGfVovE3GuX0IB7yiPtTzZjIZDSr9ptPpzJXyOigvFefZ1lAxnKdopAFBqk0bOgQs284XrZ9Bq1uA8yoICNWA1NBd9C1orOrL1UeqAXz48GEf5/kF/HuXQ67oHH0LgiBdq8r1FKpQ34jGv/brSxHKCW2Ad0MbKtflOkdn6lsTaGiPPk89o+GnahOw6JAuV506jRqAl22umOzY7Qq4pAdUY/Qr3FbDVPORI0cAFu1Uh2hbj6wG8NXTLbRf7VHn8NWreboFQAd0C9B0F9oJaCA0n3/+eTVDJ6haPaCardO2h0XX0o08sh5BDTYRqcIhnkWXqzYOqRIu0X3Bef2prtCfPJRuZ6JBf9JFvBptqDZ6WCfofMGdatYh9cnx48f1FNqjo/pT+6lc29qj/UJLxsNRVzhEDYBnuysc0mnaw/hk4KmTta0NATu9RI+pY9XJqpwXoZ1nf7fS4RU+Iv0ibrStNmiQI8T5HPj0dIIeRD2J5qD2xF1R85BECDJGqX0FvbUdddoVnH8dlpeE82wYVhjIM1YZkxxFG0Ehv5zKwXngy7R39qgSZg2qUENdiCSs8Ecyioqh/SVwHqRSDYIgbaBcCVIEOECf4BGcVIW6i04T5gt5dOFhV8AWUFHnM4vR90g71Q/6BlHRORNVmSmAIF37dV8+Sb5Z6aL6Vc1qA8oqaqd+/bmAfpEOuqnO1C/Qp2YDs7wI2kxrdXfUb+QIOKZ26o3Qk2jj3EiVI4z0XCjM1ml6fCYmaNQ6R30CnoDzOkG30714KC7Rc3EInJcKradDHCACeFnIQe4FziPB9Wo0MoVF/AJHCVfYoz+TyaT265c9nGYbGQdl/h4Vq42r2MmH4G9zX7tW2zrfr+d3KX5jrAiraQP34pf26BDgr25R7zH4tUcn6JDGnvpEMot5Fj2JZsKgYhD6OK8Rm7mC86+zcvk47yvzpmAbyDP59VEaYIlcnjJvp/kmGvaocuxCYBq4hOnDdHhG9aVxnkGuL0Vgqy8CKwGzXcGOPh/MHQIofVP6iHQ7VaWjuhc6JOqifve6IuWQx8TAglaGXUJVCTBBaYwJ2glUAo9Aos7RfvCfM7FI0E429Ityrks01+AqatAG+q1OwBLCRAOFnFkP7UfsmhEMQwSCBgwHb1WtbkfjwQoVpj/aA85zCUd1X7oOsUj7ucRq059qgM0REHO6ENjhWXhe7oLlQTjvI2HSFXAelRuI49cvtsfOoUTD4p+c9WdWDb23+TP6uxW/Bj4ZTHPab9DNadrWhn41xpgKodII1f2j2taYxEBnox1Bb7q9Ff15RZ9/HZaXivNmV/EtNqa6g9IgntnzXyrOm82H2+lPcF7wi1VEQxqIBkvB4RfV54F6dGaAF0N6Y2MjIIyarW2pnfp89BTCnIaGBrNmAO+0QbdWe7BW+S4JgZWEBTVjB2ZbBds+Orz+BFrZVrXYK7IarK8b2MTKjfla3zuwr5rBamzRzAVKSkqGDx8+YsSIAQMGPP3008OGDdOfzz77rLZHjx490hXt0Z9Dhw7Vhk546qmn9MvJOqr92njmmWeeDstQV4a7opOHDBlCtTqHM/1tNnQ+1aol1ED9FG1TG3fnKm3oNC7XobFjx44aNWpkWAYOHJiTk1NWVlYclhJXSktL2WCP7bdz/JPtBP+qSxS/wiJX/KpeXpk3bx53V22FhYX6s76+XuNNkKsX3b9/f73NlStXrl27VmOsT58+TBU1dLEuqmjgmeEOtNdRDHTo/GbRMsOXj/NX9PnXYbkEzmfpIaCur7GfccXs8BgE2GNGnksDe+/60d6pAVu09iBQBHrCN8zmaK34GdGfAXzfbm+OWtvQftUAqpuDlQ+ErwAjMxZjbatOqdD4K4FoEBXLAzIOV53ajzzCa6lm6JtFEpkphqu0B8eiTlBjzCTCFLu3WRWTlBlGkAXo2AiRRlfwLOiEOXPm9O3bV5j55JNPCpD1O8AVbQwePPhJV/Sn8OSJJ55gP0V/cgnnDxo0yD9BMGv1sH+gKxzt74qdw1EOqR7brwt1mtVjbbPCyY899pg1gNtRm971q/25/J4LYKtxoiGkbb3iRx55RONh9erVlZWVGqg//vGPcQczO2O6hH+WrwblSqNCJ2NvZA6lwWk6v07Gy4+BCIuQmY9ow5Xyx10uH+cZVHhgcScB6b72Dia/PJxHiIDzjGT9aXMH3QsHqPlM4VoAwkJLtGU0bQBf5Ygr6DZmKNDJwCneUl0ozISvgq4OIOtz0yGchtwR/yA2fNWDMcT8sGqhJtQY0mkAxhOah/UGsg2mVFQv9HDsOWaDsikJ+jx/YhFCkCGD0Oexq6tCpgZSEfv16yc4FVqCwI9eWHQUvKU8/vjj2gns6xJtaw/XGoZrDydzof60GgzkwWQ7Cj7b9uOucBVtkDDShl1FsZbQDP0K4QV92tYlCxYs0ONjdsNnodfU/NoujFIsb82hf9x8Ls3hcMI+r6f7+c9/LvV+/vz5+fn5UulvueUWvPAMEp2vrwNPcTRkZGkcNjvtxZ/YSufHHKQiYNfJOk0nVFdXa5xnQucFxrFXF4KulFegvFR93lfmjQ2CScfs9jrnctyvvXEeow01+BVS8J/q1xxMKtowXReqjPkxIZOYSmwwDv9EjQcoUNSBcaiDWO85hBTAfq5zQG/VrJPNYMXnhiQyXqIZatjAUqTLdQ46PHBtJBPf3GTbBv44f/Hw0k6DfeYy5ndYs2ZNSUnJwoULly1bVlpaKmxcuXKllMOampr1rlRVVZWXly9atKisrEy/OhNLgjaWurJ48WJtL3dFlWiP/tTJ2q8/lyxZoj+1zcna1i20X3dZ7ApXaaeqVf2rVq3SIZ2pnbqvNNUVK1awrabqkM7XOZWuVLlCa9e5Ultbq1+hk/boUEVFha5iW0VIWHNhqX5tFz2Lnk7PrqbqqfWrx9HLRc3WS7zrrrtuvfXWb37zm/fdd99NN90kqS24xu+PQUZfisCZjxG+zfHjx7Hp4drAdaIRjt6OZUY1TJo0SeJbElPN4MMHAa6Ybl4P5SXhvBltzGYuoDPV3ZR8UPql4rzxJ6nTtwLp9+TJk8Ay7A7fA2uePrglKsaRBml1SJ+JIBG/p07GKQkZBhM3DBApTvroqArkxzkLLwUrPRx71WbOTUiV4DzzC5qKrQaJg/RpdjNrtvlsOQRnsjfOt3ncCQRQs5tcgPNqBo5XuqXZWYGQQXB1kCBqJ51pVFVUu2bHXdQjq37z6kLe01Hth9ij0uZ4SvpTJyAKuVBKo/Zo/3FXeCkMAMiNqAHMyFAPYHhiiIM6rg3GFZVgClMlFx2rRrb5IytY2gXaenZepXpAv3wUuMUx30Vc9ETEmWJwTKufmdMxVBhLet10lOqRVB08eLBmScOHD587d67qN0LRFWX+dVIuH+fNaIN2bdbpSOicZT8obaLh8nEe/iThUdzOpIZ+BSbG08DGYlxK864KoKA+AsiYaNDJseFjhwGi1Ug4J1yLIcUuF7brNOz5UB+BfZ88jz5P48Eu+CdAMaIHKGYbE5AFB+FdZZt7+Wr8Re02SATgFAKnKoGHz0RD2u+UKVOkIeuOSDFI/sJPpgaqkKgc4gh0U47qfEKNdALkIgKCIJzDPxeq68xjrmib+DhCfgBtnWyhQDqTQ7DW1VfaQ3t0surHtKU26I7ao43GxkZmOup8vayGhgZNBzQpUC9pMEjz12Qk4ozM9fX10oTV4BciLr6mihnDUWak0q9yRT2gntGsRM+lMa/n0kxQ2r56Q9tGwlEfMrCxutu3oxOksesEvQ5cThYhoqLe1h3V7Zo74KyZOnWqupTKjbN6RZl/nZSXjfMG6ZEwPNY4lr8jzhvNGw1Qf2qnhi60PTO2G9TDJxQ4+ETuZuexwq6OyxLDjk6zSYFRAcF5pr26CqM9ShTsce0xDgPna9vIn4bzQK4ZYdCodaGgjG1cBkC0BX5eAudt2kI0EMQ5oS6uWLUEbRyNWmfqi16yZMmjjz46YsQIIoOEujpB4kZgIoSpq6vTrYnAsthMIJru0iE9lw4B1CA5HhMVAJxJli7BTQCBX+folaltzKFUg16xHkQdrj5R+/X4wmq9Atj1oLpapRM4unbtWnWFnmLDhg3aqbsMGzZswoQJqjY3Nzc/P3/SpEl6roKCgj59+qiqZ555Bq31NV7AUv0Kk9XgZ599duTIkeofDezJkyfn5ORMnz59yJAhCxcuvO+++9QhQ4cOxQiP21TbkGb1ghBzfiSsNvQiUGOM94tw160lEKXJ9+vXT50GwvuOVxNAryoCXSmvRLkEzmNjt6OAvDEqQeBoGHfjc29eEp3S7sUE32z7djuC9HFCoWq2hSkOUL8BQA11Bjn6uZQ9ABOchxMOv9ECgoRRGMzhrkNLI7yIuQCIbSZ0EBX7PKFVJD0gkkVfFpMII8ATZmXzAlxpZlpHcOAFMC3dODYUAj/1IaN166baFtiSx0B/2rZOEDz2799fLSkpKfnNb35DYgfhieox+xXkHO0BwBEfaoaqJdweGKdhahITN9IIIFmEwPrVheb+Vpfq0Yji1E0xqkML0a+AS7cmP4P0Sd2OCnFJV1dXq9lE+6phyCbdQtVKWZ04ceJzzz2n7r333nsJnr3xxhvvvvvu0tJSDd05c+bAwHmNk0aycFXjWThfWFio7tIDAuB6X3feeacEmU7TtroUXV2X6BW0ubQS6hzUeJj8ZkrFbqNLiNfAVa33qEMzZ858/PHHdRcNqsyFsWBXyuuqXCbOmzLv0ynBebOrm1/Slw6Xo9L7dE0/PN8MRBqlKOFo1Bb9AeajKgt20JwBWCJezb6B2gn5AfglhYtF0EOwQY6QCQGKPrYdLCTcF6mhj47gdMyk4Dziw1e/cQdQCZ4y8jZYiDoiBov3QS8tCZJCJwg/1RWCawzjKsSIkbEBBzEqnABWypsep6ys7Oc//zlOBx3StTpNGAtjX7iqBggcdFSAXO+KKhEykD1Ab0EPUllZqZ26tboUdyHNq6qqIhZY9agGNQ+LlgaSXhz2Fs0adCPmGijnuqM2ysvL8UcsXrxYQCcMHz58+KhRowREgwYNEpg/+OCD0mlvu+22gQMHqkIputLkhXi//OUvMTQJ54WHy5cv19CVhq/2Z/4QcJ7m6Yk0sLWhl/LrX/9a/SB9Xp2mbv+FK9OmTdPR22+/XX2YCZ9L4x9XzlmXBMkP8uJL0SswOgFzT4k/VAtNiMzxqjMJN3tVO+NKeXXK5dhtIhd6YA3S0dvNMu9zby5ThzectwArxARGG3x2pHAR8mBjQQP3Ad9cmaA0aWqk3jDbBWwFdKb8Y9iBi26BSKZXU6euheWOlRsXKgwZbP6qzSRdNExNA9HRqPikBaBOcF7VmsOUKQkmffYDmLB6wHNtCwTUtzptgyt1rpDXS6qyAEGNEZDqkJ5U+nxRUdETTzzxwAMPkGyNWYOQXFcRbgDgM6dodjkf0M+jLlsO/hHdWtq1SRNdrpP1jIIUQavupV/NGoS0UqqnTJkyYsSInJycIUOG3HPPPcLhn/zkJ7fccsutt96q3+9+97vf/va3v/e9733lK1/5kitf/OIXP/nJT3784x//8Ic//GeuvPvd737b2972pje9ydLr/ehHP5K00u+sWbMkRkePHl1RUbFo0SLVKdEwYMAA9YyEmqmpr2Wcz4Qqvb41da8Epd7d/fffrw1JugULFkhsaZIyfvz4hx56SO+9T58+ejsZl+cBnNdOCVZmjpEwE5RBfcRRKy0BFCY4/S5btoyACF2eca5e1Uadr3J3XCmveHlRnH8hZR5AjngRrGauv0xl3jjAxgYx2QF9BczR/qwkkBBajDNJ8BHOWRR4mOTEiZMrzHInYvNBezf93wAc0415Y9HwERY6BNsZPdk0bSYjEkn6EomiUgOYOBC6S7oYfLKmdGG1xjnrJ5nZ4RWSSXIjXSutDKs+Yk4t1x6MMKpK2Ks2CAm/9a1vCWaxFwmNcQELJGHUqJ6VK1fi+4MSKZCBhKnpQIMr0rqlSAtLH3300b59+0qX/rd/+7cbbrjhO9/5jiD6U5/6lPD5gx/84PXXX/+e97znne985zve8Y43u/KGl1je6MpVV111zTXXvOUtbxHUX3fdde9973vf9a53/exnP1M3SunFRKPtm2++WRJEfaV5x9ChQ//lX/5l5syZQq3XfrCP6fPwIefNmyfxp5mLxrYGjCTXT3/6U704HZIIUz/PnTuXND4QI/UVYGcjK4JpXz7ORx3Z0k6IOPKbJguaFo0cOVIjk2ZgCHq1++NKeRXKJXAenSHiGc/NAwvORy/MVGAkQ1T0F1XsfZw3x65PU8TsL4UWY0tzmC7YSOmWrAAyIcowDBYIJ1BxLGvBwTCbH9o7Xl3tJDYcCzbmdBUTEBAaMRojYnQJNnMeQb/atuyLgDa2IxoJm0V/IgKw8BuBB8kCp8W8n+bUpk/UgI0bN5LYRB2OWV44L0xesmSJVF8h89KlS4XhUgsFFMLAZ5555je/+c1vf/tbweMPf/jDf//3fxdcf/3rX/+bv/mbz3zmM5/+9Kc/+tGPGlxfe+21f/Inf/IysPqFiqp6+9vfLkX9fe97n+6ie33sYx+TjPjc5z4nxV5opsZIHgnJpcRKMx82bJh+x40bJ8RbsWKFeltYl3HoRE4AAyjDtEyoyb+WQT5zoX2eBhMVBWdej4M5xR5Q23rjMB71qy9Lw0MvnZN9lZ4P0PLhMLvEsK/TxowZI31+woQJFjPlZ4G7SDvDf69WsVv/3kXRJZ7rJT31Rc98TQ++sFxOfhviUv2Uqr63NIv0HrnQ4HNpnGdAwrSxKFoz+KPnw3jBtoCm3eyyH6CTo7pb1iyyDQCtQCjqLrq6JXciftDSHYD2mK/BeeYFljfSlG2M5/Bb1Ehaq6eAT6id3AKHJuwU7Selm3mo9SdcF9JOEsCFoR48l7JNDJF0v+Li4qlTpw4aNOiRRx4hOYCAUfAoNVvQLe39H/7hHz7/+c9/4hOf+MhHPgJoSyuWSiw1Wxqy9GRpy29605tQnl8SVuvat771rYJr1fb+97//L//yLz/siu71hS984e///u+/+tWvfuMb3/j+979/4403CrTvuusuSZaHH35Y8CLVVDgjlXLSpEkSOoRl6Vn0aDgpmG2pB+gowhb0XsgDjAEQ5QFqEL5mGPu6CkmHY9qyDDH2LMGpvzgCZkAISNgJwUbJRPLq4LjkEM5un2ZmWg3TN24XC5P5R7w5LOdjDLc1BWIuqyRMyIjLdQy5Ufsh1UQcHx7At4+OCOs2l0KZq7KM81np2qJh9jNOltB87LHHcnJy9Gg9Lio24wkdDwIkWgK0SmXSCQmZjCRCyoFXTyoZ6ckkMj3pgIOZSaSCQ0lVcf4SiYxULJ2JpXsCkZQO04Fyi6QkSyqd0aXpHj+hqDXD8tQF5/ekM8mUDiR152RPt+6g1iTTiXQqaFna1aJzgqac30imkFnpVDqpuvQv5RSDjKs9eCzJNYFbPJ5Kq8pMXM04X0/KwZ7264nS0VQy3tMTTaUSTgSnkprySOYm1V+ZoP2ZVDJ4Cm3rcikcOpwKeiA41OMuCZrdk4gnu3t0YVJ9Qv+o2a6Rad0onojr5QVzz0RQdfAA k1HXVODx08l4ulUkBM1RfvSPYlkUHsiEQ8eMaXeCfpNz5h+WSEkL4rz5iTNwnmOmrc0C+f9SeWlcT7mUn/7WXGok5S/+BCxulhk68Ew2zw5BASMluUGSGeb5MBY7PWn5cIFWiE0wqIB6ok6pBLy0lCJ+X+BdyEAmKMGM1xRluw71YYOYQhqaGiorKyUyl1QUJCbmyvoE6r069dPQH3HHXf86Ec/+s53vvNP//RP0q6Fn4LTq6++2jdT/47ljS9QhPzvfe97P/ShD3384x//7Gc/KwX7u9/9rhpz++2333fffQ+70qdPHynYQukpU6ZosrB48WLyJ9M5zGWYWTDpIP+DpXM3eY1QhnivbheE6kK9Vnj4mM5YdIO+hV3PHId5ENMfZkP61btmngVRljxFOk21wfw8FC4TYMxb3i80Wu0nKAD+0j/+4z+qo9QPugvLfEiIIHB53dqjlkA35XlZGoBhrxMIECBTh36pnP5RUZ1kzkfKoy/ZyLfJr7EX+BaQYvQAGo52gt6G9malj/cqGIikHvTv33/UqFFqElOJizthtS8RgI1APp6JpzLunEQPUH8eOP/3LFcSTjoEindwSTzAyDSEhAD3hEVJ4aYQz2FrMmWJnY23T3JOzg9mLkK+VLo7mY4le+Jd8dOJdCIJggsthXLBCT1OzRdsOHZoAHz6+ARODuAT6o6MF0mXdmAdYHqwEeB8LBnUJpGYCWSPBG4kkYx3x6Jd8Vg0le6I6lf1qmGCa0FrPONg2sGuTtdTBfV2BbDbI5mdCqWAOkR7uuLdeoBEUg+eTETiPfHgEomRQDhofzru6k4lXC9IUki4JMg7kUJuCvDjrrHpWCIZS6VjKTU4uGMmkGQxRIB6ShJdT5s0ifZ7xfksZd73llrIKsPY1+cvDfKR0G5jxnlblMRkh3ZCC9EH7pPJjXwIhRKQx7aD2YQ95JlBwYaTQ+4CTPSWat5qQ4EncTpmH7RNCwgyej/ane4lfem222675ZZbfvjDH37729+WcvvlL3/57/7u74Tbf/VXfyUFWAq2EPVP//RPpRu/DAAHlnWh8B8LtqpCu1b9f/3Xfy29WnfUfX/wgx/cfPPNaoyUamG1lH9948OGDRs7dqw0umnTps2aNUu6K1YRiZ66ujqiCciKDLVSLwJVUw+uflCHwI2sr69HDydrvfoHLRphR/QrWjoRWzgRgDteE3RNOlDb0ITgHeETATxBe+J5AVvor8yqkLls8L4gf0L7tDgvAgEOhkuMkfkNnMexziQLfpQmQepnzYwIzkUeETeNWQ+/j2ogXJf8/9pgZRAyPGsP00/c8UgBPgECxFRQhCyQHMsn8pEPAbU84i3WBvEVShiCCeWHr8/QPquoNr1E/c6fP19j4Omnn9Yjg/PYi3pBQADiPQ7nk5mkPsuGytptqxt3rm7aUbFxa2VDY3lj7eqN1WvqqyrrqtfU1Vc0bSrfurliS11FfXVN7eZd2+KpJI6SQMQInJymLqRORmM9gYLeQ0Z9zjEcVgtN9Og5hJjRVE9c8BhPnxMsR3V5PNCxBXEpoD34Z/JCGnIykUS5SgWatJTmhB//xZmZYLsnkuiJq/JkcHvhOhpyMp3qikWFut3JVHcqmDkI7N30I55Jx5PxYDvoF/24W6vHNUmLOX06pYYGtw2OxALoTgkRumPxmBoRD8ScbioVX2cKtBPpHtY0EGoHry0ZAHeA85plxAJJF3RXKt4TYL6mIYFIUms1E3A9lYp2nw1mS+ooN31IvCwny4vi/EWZNsxMfZzPYtpcJs77CXN614llEprNgXBRJ6OXo7Dx8Ro1HZr9znAVJ+JYoR8DGmj4kPQAEx0yGWHrsvFNdYRZ9G3dH7LZkNlVsHnVVVe9bNX62muvve66697znvcItKVaC7cxX0tMfPWrX73hhhsEPrfeeuvdd98t0H7ooYc0C9BMXPMCfb/Lli0jG0xNTU1jYyOJ1whitcUW+bVetbeJMmlzKAtwQzsVCunQoTDx/lm3lBKdzLwG/Myi9GNbA5PpTzRntH3mZRYIQGgzMhcalerHc2H56nl3KPO2RJdlByIIDtsdEcH4uG0ihrMeSYH7xlZ1IfcL6vfy5cslOvV2+vbti7UHUwlRzzTAVqdizFj6aOYjEKuwIzErYYPAChxPNlXhKOYjIgXwy5xxy0hFQjuMfRo0yUx82AN1FYPTiBCxCwuX67uWEJceokmZeoCP3WD2AggIjAho7AHknjp+csbQyTXTVm6Ysmr9pOW1U1bU56zRv3VTVq2duqJ66ooNU8rrJ65unLymesrShRPzlhfOSzoAz4BlAXw6M04iaZZrEzG+0cayLvArLVkabTwZGD3Oap6QDCYUsZSbXKR70m764Gw2PQH8OZzTzpSU9Z5MdzwRWFQCJbvnf/M49GScyu1sOGlnddIcwU0T6AQ8InHdxf2LJtwEIJ12dbgmCcqT5yVjMDeRPHINQWi5LgsESjzY7yZC+g2m89HAviLc1uwjnqpat7FiTe3p40fdBCGYJiRcBwnfBebpcIqUSkTdcwbCIJEObh9NuGfvYS4VLnmTtJ2/N5w3RqUPBX4W4qyMNC8K7BcVIgRemdnHZ+Oj2hkT3jfatIUL+Qk0yCRDqCnfo6UdMOY8wVDYf8gBgj4P453UBCS3ZGlO7FSAvDXMiKB8xQMGDBBECOrf8Y53SMcWYv/5n//5Bz7wAYG29Pl//ud/lpIvVV9Arc9t+PDhkyZNEkpLoy4vL6+oqFi9ejVpuKQq19bWSsEGseFzQpKnPeoHlmRS4/1XgIhkvTzLeElMgRHyCUdCx0Y1BTmJVIIwD7xjS+FdYMEg+YzlpTFbN8iD7qoKUebNs2yKtOXI1Qmo3xaYBiupxa1ySIYucBU/C+o0AREUXiUBy3BcSR/BOejzgDlvGTsPUG8bJCBV/yC19QYnT56MCNasB8M4wg4WFiOH7ED6ZcgRTWYZpM2ZzrhiQALdPm2MFQ9J+KOd+HEwHqpDLF8ECYj49LDAdIcrGKoSi2VDvcd+iBXICsNVNehxdImeS2NPow7evtkYs3E+NM4HOH/05ILRBc8v2tNe2ny8pPlESXOk4EA872BX0b6Okr0dJXu6ipq78vZGS1rPLdy7Y3bFhoJl6cCQkGhoaJDcbKyv1wOroRuqa3Zu3bZzy9Zjh4IZ9Rm3NMOqVav04GqGekwDng+842xHU33dqeePJjKZo8dO7dm292hnd+36uqa6BvWIxHPHiTPpZKa1pe14+8mmxs2nT3Zs27Jrzerq9qPHz5w6u3nzjq54ICMOPH+kYfOmHVDvWlraDx95/sDBztNnjhw8vHvPgbbDEq8n16+r27V959kzZw8fOtwdiW6ob6pYu76jO3L6XLxp8+51NfXdnV0H9jdXrl6xc/umdCqWSETqG9YfP3pEomLj5k2V69etb2zUCBagHGk9cPLosQD8M5mDR88uXla7oXHr2e7OirWrtu1qisa746lUZyQ+cXLRfb95bM3yxbu31GuacKC1edmKZW3PPy8ps2tv696WQ+vrNq9bV9vddVZyTyj7/LH2Ux2dBw8fazt8ZMvWbZI7XedOH247IJWluqpKb1avX3PC3zvOGz3ectoYJr/UBJWXwHkz+9geFewt8GTMim6fmCX4Ik8j03az7eBsxVbDnzDGsQKh6ZlFSB8OK3pTTLmyGC6TYkArDlZhuFDi+uuvz8nJEWKvW7eObDZqEkoX3y+WCrZtA1A95CVMtqwLMPzBT52jtqFU60x0QhRCsAI1b2dYiP+yDcATVzXizAwgBAWTWwZsP+utVWocKl4078KicdFg8SZjnzFUNOHL+kco+cywYEnh6bZANhqJwYesnqZ7Y88x6qzlZGaioWe3SswEx3jobd8jGIFwBkAYH3qfPn3e4KhBmppFHAsdwzhvAWUegwzOWcwvQK5p5uR2YxlHdQs2KJ2DsR0zO04i3BNMbSAMkPIIww519g42NyXfXNIYl1QJBC1/kXHLLqga9HVrWJIgWrM/lpFSbedN4hZ3ENiABfHncf7086cWjyhun7fvdH7LqdnN+tc9sy0689C5Oa2n5+47ldfcMbelY3bL2bzWEyV7t82sXp+/MhkJZi4SmnpHUl+emzx59cqVmxoaGzbU5YwZW12xpmzePFZskUpTVFSkHsvNzS0sLJQY0q/kcN+HH1KnRFOZNZXrCmYWlJWvGTt6QmlBUemC+Uvmz5cGHoskCvJKVq+qerzfAP0WF5Y11jcdOXx0XXXdtNxZ6UCj7hmVM/HBfn2fHDTw2REjZk2fvmrJ0vLFS7Y3NJYVlY0cOXnlqvULFqxcvHDZ+pr1Wzdtqayo3LRl68ryqtWV66dMm7tqTd3sOaU11bXbt2zLmz1j+ZL5M6dNjie69jTv+J977npu4oRUIjmnIH9x+apJ03Lz8vNnTZtWNHtOU129c872DH46p6CkfFLu3LLFSwrn5dU2rD3X3aFJ0v4DRwc/NTG/YFHJnBlP9vlNKnZuXmnByvKVZYsXHz1xumT+ksKSJWULV1ZWVZ84fjSVSkpWFpXMazvSXrZwWc6UqUOeekpvZNf2zVMn5xQVFKxYvvzUiRPrqqslTAOlPp1Gsb8ct+yL2m1s4Q8K34gZWMzk8jJA3g96NYO/n8wQLdGWCMwqptjrBFDOcB7AQV1E5QNz6uvrMb9jXsAozSzedzFg67CvLOrS1/BBcT5f2Re/+EWhxOc+97k9bl1mkMGUUiNY7nSLcWMJJxOmLZJCyC20TzAQCxJ7eBA9BTLIrAoAL+EzyCms0/qTu2PKIOBXBVcFjmZCxtAktdHhFuE1My+0ELxmGAGIsieyHlVc16qpqo28Q6ArK22ZJbwtTLCJ34T3yEMZzvOA5h8H9Jh/meUNoKZjLaszOE98nM0FmAShFVCaw8XiLbiYm5KEDXXlhhtu0Bt85zvfOX/+fN4yPF4mR7oLYhobC4MEbd9ScRr/R6PCwihYYZwlycibjeAzCcLzElKB86I9LNwLwGdG6bMajBSB9Z7z/cstfdwpp/LpT4mw/v37DxkyZNmyZWoJXlp/7d0eZwVJ+Dj/TNHR4r1n5rZ2zGk5N/fAudlHOmYfOZ5/4PmC/UcK9x8rONCe19Ze3HawdF/d3HWVRasdGSQ5btw4qevLli7Nfe65USNG/OoXdw0ZMHDogIEVK1bOKy3Nz8+XrFHnqKv1dtQqzWQHDx4snK+rr+v7SJ/u02fiPZny1VXzCspGT52RP7doQ/W6wtLShfNK08l0V2csf27x0sUrH36w3/Kl5Xf9/H/uuO0Xy5etqli9dtbMPDW7vaPjocceHTtp4oBBg4YNGzZm5KgVixbPyy/YtKGuaHbhiBE5K8vXDxo0/LZb7+j/2ON16zcsX7p8957mho2bdza35hUtmDG37Hvfv+m++x4omJs/ferkgy17ykryU6lYXUNNUXFeaWF+vDtSvX793ff/9hf33F06b97kCRMLZ87aWFunPjx+9tx/3f7rnXsFzivHT578L//+g6HDBx44HMSmbd2+b8DgsU1Ne5eUFT/24D1njh9ZvWrZvtb9s/LyDrefKFu0fMSoiTf/5Of3/faBnTu26r1sato0f+HifQcOT3puen5Rydy8vJMnjjfv3j5k0ICf3HLL7bfdpslq7bp1aysrMxaU4T7X31GfR7vWmDGDuel42HP88KiXWvzKwXnmDhbcZzxz0+GzcB7tsTVcWdvmzoaQwCmKH4qlcfnMh4hjy3R4M3KCY5hGQU4LztLl2nj/+98vlPj617+ub80WHwFaARnyMQK/NKM1LLbkNw6FPd7q4Wh6OpmUv7ocyh8woj3G0ECW6esmotanhoLzmGjg8OOksMgCcF6VGEfIx3lbhpVhoFsgNTBQq0KYfiSLxtNBegffpIaZnaxEkGApplrTDLO9EAdHBlELOmbiBg+W/mTDt9tgn7d4CuzzCFOz1TMjYAoDLUeN//jHP643+Gd/9mcVFRWY48gaZIu5mPFQO4FZyJzQaQznjdsJ34ZUP+A8Ey5YuNpJsKol66ATqIR6mCoC4Ib2Zik1Bcl0JJsk4i8wwNdVZE7T3fPy8vr27SuoFxSvWLFCezJmFe9xFu8snH+2+Oi8Pe2zd58paD2Vt69jdmtn3sFTBfvbi/e2FzefLGw5Pmd/e96+IyV7moTzBSvj0YAC8uyzzy5dujRvzpzC/Pz62tpRzwwvLSgcO3xE/779pkyerJ6XSj9mzBh1tbpCuv2ECRMkeqTejx496rvf/ta+bdvjmcz4CVOGPPHU5n37x4waP33y1AVLljze95FT7SdSyfRzU6b3ebjf4EFDd+9qnpY7Y8jgYVs2b5s9a+4TTwxS+5u2bZuVn7eyYnVhSfGCBQumTZ0qMTFJ1U2YkD977m2337146ZqKNTVPDRk2d/acrZs3jxk9umzBwrETckaNy6mo3rBj76FnR018duQYfXglBXNHPzts0oQxmZ6k5iS79+zcuKEu1tW9vq5u5ITxOblTKyrX9Hv44dyJOXt37lKPRVKp4vnLBwwZNWz46KYtm58c+MT0GVPPnjsjFD5x5lzuzOIhT42aX1QwuH/fZYsXzC8rGTlm1Nra2m279w4ZNnz+omXPjho/YvjI9mNBLJsG7JhxE1ZVrJ08dUZtfWMQ/b5+/eGD++cVF06ZNHnwwIFSf1evWjVp4kTN6DKOjWOA//Jw3gzRWG7NPIsDC2WeYtrvS8V5zBG2yiqwz71QVzA1HPTyzPcuPtfdFE5MHwTGqhBjhZsSKxPFvppIaBE1rUltI1svhHYWWSZbgjbUNr2Bt7zlLVA11GxLsGOU+LYwAw8WJBy+qHZ+Rh3kFCYmoPKgW/SK9Wf1wcIYRPqoc3Q56QrV7TzsGZeonGuhlZr3odmtKm7LV4GllgNf/aOWg+f2G/EyGjEGtF8twZJ8KFxakVhgNYY5CHqp5R3ilVkiZXAesAXnUe8PurRFeGyRQTiUkYy6FvKMEWh5HHI+4KBnLmC8HaQqwQjca7u30BhTKl2IxFTN1113HaTKxsZGxLr2YwlscQuWkb1HxZLFAaeMUjAWncHcFlD96T1GEYVJGVNCFcYnlhzYm/ipMb9gDuJPy/zsc9LMpsoXatIBSUGSPWOz6BxBn3B+6NChjzzySFVVFR++Jav07Tanjp6cP6rg2JLm4yV7T87bf7KsubOwOVLQfLZ416nSHadKdpwt3nMuf29n0f5TZXt2zK1Zl7e8JxEIFGF4bm7uzOnTly1ZIkVE2Nhx4mT+rNnF+QV6JWqJOpbEyLqvWqgxE3EZTdfXrv/1PXcf3rc/lu4pKpmfm5N7Nt2za8ee1r379uzfN2PqcxKoEiTFRcVz5+Tta96n8S+da/OmzeqEkuKS3NxpgrljJ46fcG8Et9G6mprgtTXv27JpU9vBQ48+8dSqippzXREpzKdPnoh2d+3csW1Dfd3iZcs3btl2uivSlUjtbm7VbFAfwbEjbeUrpIAXphKxSHdAyensOKv5rSZOGzY1tRw+dPTYsW2bNh/YvScRCwiTXcnEqXNdKyvWzMnPj8fimpDr/emQM4ll2o62N27cdOr4sead26U6HDh4sGHzphNnzrS0tU2bPr2l5cDe3c3S7dLORatvbU/z/u27mtfXbTx1JhDwGgdnTra3NO+RLqjvSp+lxpmU185z5/BnY8B5Uai/BM53uzBPlAQL1STjOpjce+C9pMIbMcqZqoLCYakUWXDNTDFZCG/xTTZzx+hhIVS2XKwR0lDdu3sVeCnQQtAhQXi8gWikaJUYt3Wm5ptXX321UOKXv/ylWmvxtrQWpd3X56mKPVANmWsgp0A5e1gegd4QGuiTRwbxOtC31WaqYvFQ3BNmrumN86b3EkGG5myIZCE2PlvPIivVDBhNKKKqGdGMUr3LLX1uRpJDYQp02oCnEjWbX1+fz8J55Ckn7HRJmOkQEl/wIqhBO6mQyQu9ZyqBMefNvkeH05kMA7X52muv1Rv81re+pdvhboAnydxN9TOVU5/jSCVdP5o8bBlMNFwLUEOeiYbJBzDgqLuw5xClpfNxTGPVt6z+ZngxA45/yISIzUC7vcyuCBrkAsmXMhdG4Apa6+vry8rK1Gl8++ePBnQ/zw/bfnLuM7lNs6u3z6zVv51zavfPrm+ZXbd37rqd+dU789Y1z6lrmbmxdXbT9lm1FVMWr85bkowHvBOUBA3TgCWYTMF1ScUT520L4YImFrGFiCHquavzXE8iJcU4mkwnI0nhfCoRAFd3wM2P9bh4KD1sz3lzdNqxIIN6NI/QmGV/wq2xy12C8RyPW6xrZyQRcSxHzVyTQeSRbpqMp2Jd0UjKUW6i6Z6uWNxdnHb/ErHuLkd+h32jK3R+MtqTjjlUDdEz6FvtiaWT0aTeeHdAi3RcoGQk7qg+PcmeIM4q7PCAjK+H73Yc01hA5nchV8FTBcFZanZPwLRJx1NBTYmAQKTHTaQd74hwMOhMmfP0e0dYSiRfNs4zfjS6cO5jXWR+aiGHZpk3W8dLKpA6mGMiOBjh+ChBb7REY0Fn4TzfL1Ngad1M/AEK/JjMl/mysma+xj80MgO+WjRzo+WDvebdw/aiGqQaQZh88MEHieXE52jRVZbrGA8jaRMwJviRvIfCTPXIKRASB7FNatQbMKLBFtAYnBfKqf2Ektm8BtsROA+kg/OWM1NncpTgJgvbtNAb3imB9trWGMDEZKKEzmxz5EZLs5yF8zbJQgm37D0+zgOnOgGNHe8JvWeO3TZHazEfBK+YmyLU8DvDsTSej9nNeF5uqkcAKvV0q1atevvb3643eMcddxxwS5mgz5vXQA2DdGT5N/DXEx6L15V5DV5a7DMWBmVzXlQanOZGs0c84doGz838gv/dzPXHvcKZyCMGtr0vyw3OdMD0MV6lTbrJe2/KfEDkS6YdzmcSAbT0dJ/tqi4rryup2lhYs7GwekNBRV1R9fritTWla9bOq1hbumZdydoNhes2FNZWFa4tL6toqt0UMNvDxBTgeUBrd1x6R3oPA5fCdQx7eghNheh+PiC0JwgOSkViCSHj2SAOKWiVqnDgFsTratQnEnGQLohIggQZ8OCdRykeF/SlQgo9tMnASRqw63viLipVe3RhJKLHTwShUjoYsPVTXUH0UcrFwaaSqXg6iJMKgrC0WyCfjKcDnA/o/PFOx7ePBaTKoIIeB9EJyaB4dyIVDcA3FdArNcHpSfSkXKxXMvDTJmD7pxyXPppKxlz4ret9FyMm+E/HXRhyQBrVOXEXSZsIjjrifTp1fv2vRBBdhgc2dKOHWv0lMzAYzptROhIq54QpoaUwIBnGOtNUccL07MIXLdEwQYehKw4sqDsWqAjkkpfAR3Xw1jjMaMIoxqQL02l8yMYh8cPSfZWVT0O3I0wSowHYbtw/eJiYYmgGoCTU/cUvfgGpUoBvjoBtFxaQzUh9ZiiG08h8wddXLdclWI0HUOeD8+ol6BxY0fXZ4gXQUxhlFCINDgIqBOdxXminpXcDt4nft9h5w3m/6Bw8qroKT4SegjgCaDbMVowDCc7zBold3Rau2AuvHtEM4NvyKzvd+ows/oX1SXssVgKXOkOCVYB3hus5bg9XcsSNuzUs9hZwQ8P2Mae2nnfGjBmakb3xjW8cPHgwWI2mYYky9HRGg4HEaJGqOF6x3oPGjDpUbrCdAYbqYoYXtG4GEtmhj11YfNi/aEH1siW9ut0qscR00CT7mri1zRfsXjrZR4DzSnIG3o1z7RGsH3VgFUT1JNPJ82FKaRdf6nIGODUz4bBKeJRMOd06QaxpgMhJ6Ooph68BHDs0Pe/6CbjlUiTSDsrSqcz50P6AoBngmHApCK0SggdEgITzHev/Usnz66SkXIzSefERAGJC/+cAE0J6QHxXMyUuBJQxV20gC4KcA0Gkb/x8soK0I6qnXMxtmjwJqiKeCBA5QXBXwKE/L1ESbj8SyrguRCi7bAxB24QywaPoRBfD5SJ/o0GvuRukki6AzAF4jNjYZIrpQhB6FevWler+pHt41e7ak4kFjx/0nColfADRrI7Bix68jOBxepIuVjfhnjQdxilgwzecNw5hJPTAwu5A5cZ3qSEKbHJI+2EXc23v0Dwf3q1ggjgbLk6EWoLNxIYiHz4BmL53j68e2yaYabQKdC1cukaGpFhjUKVwrTIXwEKi2myqLjSgZjAKnRwPLM5Tbai2f/3Xf32DywCTk5OjqggjYt5hxY++50/jfuC79HHeIkPJqAbZw8d5PZekrY/zWGCw2wDp+8K1wgF8doJyYLLlwAf5jbb3QjgPCwU3KH5YhBfSGdfDLrdcl0VRWTwR+5Ge+DWQhpbMEyZSY2Mj1njhNqBta5fY3A1Bg9C0ECq0ep94b+sLWMGrwgYyztJWPP3003qDUuknTZrEwIABC73H4s4IgNVQZyzxLagSvhQUdewkpv+g/KBFYy03ZQbzjhGfstgyl1NMq0f6WOIdPig8aIgt2+DRgH19YlGXIiAL57P2pNPnYzh7euWJw/PHBnvi0YSbF7gYVYeQOiEajwZRRologOXJAFOJXc3KEyJocLqxiyF1IZ8plz1ATSAVQQzfkYsbdbdIppzQ0YYQvrsrIhQPssoEUChBE1hCUH2jArwgHDUZDQRLd6Dsx4OcMVKvpaEnSL2TDiSZA8ggPYP6izwNEWe0jJ/H8B64CrEwEPV8pC3P7oragFmp2wX5Mnmxq+hCl2xH/ZOOn896E6j0Ee0JOzfhZkApUiQEMi+JZEkS1RVMNFIuPjjIgpByAV8uY1KQZEEDAIMYAtGos/b2snAeywZTTktCYl4hbI+EezPqwPkXNdqAtL5F0ZJK2feCpsSvmXYPhdmG+UUDtPSPBDcxrej0Cp+kLbsDXnFT0q3DYzQGjmVIE1wQrCQw0QbGFmAHXXGHy2aszvna174GVWPu3LlYWphuZJH8ccXaflh2YBfhXRZu4+M8Ll3mO9qp30vgvBpDb/jwbuukgPNopxhSkD6XifMxt9QdiM3EhM5pC5fuQuBaKjkre8LV1XFobvUKYG6obmo8Pc8eVhVEatA/6PCkM0KN53XY1AlvDjYrC1xFpKIb4GLAx6RO/tWvfqU3+KEPfWjRokVRt4IAE6gWt0AAcyv8NQxUqGWWmw62AHZ748bgnMVmwlQIlwo7kQLY/HG7cyHFd6Rm7emN82bVQaYQeOufhkpmqo6fV9yQ56I4r9rq6+tNKFuouBWkqnESdJrAxsWoBhCEEBGyErzqkoSlg75IJmKBTTrIjWyr3ybJyiVci8YDI0qqR6CcIaVNMgCxeCzu/tSZKZflwKUCC8wtGf0ZiwaD1iniQbYZHA2gn7o/EaTYCYA0sH0EwbJBUhmXvkC7M0mUezUoGYCmWqJOTDoacTKYiwQJc3qcSDo/mwizV9nai6RxwLwJxlpiB0uXzSXCYinHsUCouCQTuqf71xkku0ud6zhbu6G+eV9rPOg9d/9EKnwvzhIVzEdiqUBABTOcQNAE05eAJuUalAjyKOiOsXgy5pwCYXBExpaG9PT5iMc8gd+YNaIw2hgmG9PAqO9ZyrwZww09TI4AuWb20Tg0HgL4DxHdvJ+WmgCNDp6bfT5ge1agls0y/AhH2JVICrRri+tBqcZsDkzBSKENSBZUWZ88/4lPfEIoAVvb2ONWDnoxvGbTMDMUtzCcx0sINO106xJiBNZO3VHDDH6Lj/PYn/WARtJjPmKAb1R5n1QPBmqjza03emmc1430uvm0mUYRFECf4H1g+oMz1CAXmzkPohsxyyBcCHcwKch4ubxuS8WPFEYSWb6L7d7C7tyOqRZP51tsECUmd2zDSIzqWD3Id7/7Xb3BL3zhCw0NDUZThFTJvOCAy7FGRBiOVOzeKP84rYzyirFRlWNIsVVcLfQPMXEmXFr3QJjAzSdSWm5q++ie71WMF8H5GPz5KtmDrfW4y8DjR5cbOTPu+St747wqLy4uxvtgFfoFhx0NUK8uXry442xE6BTpirQfa+88ey5AzmTqzIkTms+kgzQAXVImNGk/F+k+dvJE0lkSErF4Z8fZjNP+o1L0znV3dXTGu2NJyYNo8E+1dXVGhNsdZ4Jmg+qCfQG1fiPdgvggr+m5s52Cu5hu0CVY7ol2Rp2jNYGN58SpM3EBezTSde5kKnbO2cWDLJCxiN6NPqFEvCuaiga5bwRJiWisq+Os2nPm1Ol4JKqXp1/p9CeOtZ890wFTAeMDejtKry0TAG8B7opePV9WwMbp6hLO678T+n6PH9edBdknz5w5faaD+dDx54+NGTWh/5PPtBw42tWdcNif X3yTKSzW03SZCwVj589c+pc5xlNeHj2mP4XCeY4+NED41B3RBMG/XaePiOFPtrZFcxx8NUG2SSSL4Tz6CFZIRhAOtNbyGBmmSThRlYxK5CZxLkFVhpcWhEvyx96iDaYle8JF+xAb7TIJpQrP5qJGxkz0D5Mn2hndp4D4YreFosKyFsiYqOIEASE7cjokXpY/X7mM58RSnz5y1/G7NAaxvtn6fO2B7DyFz0EM9nTGq5ywvOqGbqpHkQgAM6jV/fGeXiV4DzzDhbpwxCUhfNgneG87vuiOK/9RKzrZPKVQZjnjbeH/EBILNBW4d9iy+JC4qQ0YKJhiChiCEFgBEj8sAgR6O6o4khMmwjsCpOX+jFQeHIRuGjjZsAxOj2zJxw3Ulk//elP6w1+73vfO+Si8kHCQ2EI9h63ygAmF/USfEtwlTGG8oABB0UF2M9KKEQWR38Pl1vqJDOtWJ43JgWX0OcpnIDdBkMocqE95N7bDMK+LB4Tff6FcF4nL1myJHN5RTdavnx5VCAfiw8cOPg/bvqPfg89vHv7jo21G+646aZFeXlFuVObatcVLVxQsX5dTu7U//zpf62pqtJT58+Z0+e39+/Y2LRy4aKWXc1PPvLEmhVrpOPWVdcvW7Rizoy8ovzStZXrlyxa8WT/QY/26995rmteaVlRYYnAvGV/67ix45csXvrA/Q8+N2XqyRMnJ42dVFdTL9isr22s39C0eOHyg62Hp0+f+6tf/Xr1mpqFCxfMnDYhk46cPdNeWljQWFc/6Ikhz7cd3VK/5d47/6d8wfL9O/bs2LR5Sdn83JxJJXkFd/zkpxvWVj/xSN/2w0f2794z4qmhD/72fg2eVatW3XzzzXl5eerkUaNG3X777fPmzSPXdHl5+dKlS/U67rzzzltvvXXmzJkYBOrq6oYOHRp01LlzIydNuunWWxetXHno6LFf3X3PQw88dFaSLpU+1HLg1/c8cOvtv5k3v2LGrNJznQlNju/51b35s+dWr6kc8Oij0lB/fc+vHun70J69u/WyaqrXNzZs2r1r79TncufMmdPQWJ9MRAY/+mis49y4IUMfufvXa1esLJoz98zJkxiB3LwmRVoPA8zucJkP7CemOTBygFNLxIRk962F+KGM32XEe8sH3hGmATebj7E3rSpba9sS1PCJmVzwbUFZlmTmGpgUcL3B32gJ8w8b9Q5kNi0XHAB5mLkzaYW60xYuKa6j+nykAX7sYx97g1veDkRtDRcoz2IEmcWGPQgXVFwmCLZwoaV2wVKtvtUQUm9gt8HYyy2AX70L2qaPF2DElcyCidBXACtwHsnl2210C6NT2kJFF8V5ZI3ao75Vz+hCzte7U/t1L7WQYCumsdrQ+bga28JsQnrLSCg9iGrg8elz5ghYb6gfApK9Nfg2fDt7w/ViDOcPhSsFX7TgxsUSSApNvcGFCxd+8IMf1Bv8r//6LySU6fNIW9bdxkSDSsO2P6ptwLeHnlZzlWJINBWaYlNd5rbmNjIVyGwsXAv4n+pV8Ksy+cUhznQPSDf1jOdCM2/3KD0eQfEiBA1dvmzZskyY4xczhX+C5Y3XtmpesWJFPCGcT4wcOaqyYs38ouLpkybPyJlUmJu7aG7eqCf6V69akV82b9KsmcsqVp/p6swrKJAMLsrL39K4ccAjfcvy8vfv2P3wrx+Sdt0T66leXVNaWDZl4lTh/KIFyx68/5HH+j4xY/rsw4eO5OcVrK0KFrrdv6+lIL9w/LgJGxubciZOWr+utnBW4b7d+3Ro9Yo166rrVq+qqtvQ9PDDj+Xk5OYXluXPzes+d6wnFWndv+vpIYMGDxg4bPDTm+o311XV/ecNN66ev3zftt311euWzJ+/tnz1gEcfmzNtujD/zp/eeuTAwb07dpYVFrXu2ydInzx58vjx4wWtK1euFNqzPIRGu97Rww8/rEmQxvDcuXPz8/NLS0s1tmtqajSeH3zwQTVsbWNjzaZNTbt3C+fLq9bmTp0+csTI9dXrJJuWzV90riNatqiqsGTlxElzItGexx4b3NSwpXhu4bScSUvnlbUdaH1m6OApz+VsbNqoqspXVTRt3CKc/+199z/xxBMFhfmx6LknH3yobcuOmeMmzJk0JW/qtJwxY48fa+clarIRxRXiLCfmqUTpAuf9ojEDulq0SG8mgD+jNAKwufvNLMO8Em4AKQVsVsjJFiCDK9YSkvhGIdORouHKHQAmuhywaUQ+8+RmKdh8/lga+cCNhmfWA5v1E9Oqe2lsf+ADHxBK3HXXXVj1W8JVwg3ezRR/yIvk5db4AmgkDcacbkGdupf6Qe+o3cW6gvPqK6QGCKxmoM+TYmuXy8cOzlPhtjCHGxKTDQjn+GH1jBaJ7ItLc5dDjTjjVqfVW1Bvq1VqsH6ZmTIXI17gVLi6FkZLnY8J2oJ/mUlhmMJ7a2QkOp9H0L3UdXSI5aaDFArZRjvpyQNeXrssK1mWqDXLGAisdk6YMOGd73yn3uC9996rNjPALEgKfwc8SfQZX2/H0AchAUctMwJWSNEYbnMpMXlHSAGdZmhsEx9fw8/q/ywLpEV5WIifn4iJSzrClMg+ziOM7BPG6qKrLoHzOkeqqan6vdywoZfWFZ28enV5V3cskUwNeHLg+LHjR494tjgvf2FR0TNPPJEzfPgzjz+WM2bUpGm5JYsX5ZeWLF21sri0VI2YNmVK3oyZU8aNn5s7rSy/5N677jl68Gg6lq5YvubpIcOHPDm0rGThkkXLhw0d8Wjf/o892n/b1u2TJ01ZuiQQQFu3bBO8T582o7ioRDs31NaNGT56x5YgKGDFklXTc2dPy521ZfOOfv2efPLJp0aNyXnuuef27dmSSkQqy5eNHT3y53fcsaB00fyShUvLlv7HD24cNfCZquWrtzRsnDN9xsKS0pHDnpYCr7b99D9/XL502daNTZPGjV8wb55k3/Tp0x955JFx48ZJzXvmmWfGjBkjbFcnVFVVSQQIE6S9FxUVaWhJ8xdWSCJIHAwbNkwNq9+2rXDBgul5+fMWLW7YtHn02HG/+uWv1pRX6FDt2nWrV1aOGT998nMFQ54a03rg2OTJuUX5xXmzZo8d8WzR7Nltzc19H35gwMD+dfUbdP7yZStnz8qvq2286cb/0O3mzSvZvm3Tkw8/fGTnninPjhr+xICnJcgGDtq6aXPayWjoQ4bz/tAijs8nerWHjNyYY3BlzTEtao8BZkY8X4sAxo3rBSxEwgyBJiPsdpbTiZlpd5ij24wz5iwmIQkWAHMCmqEbYgNRS5hboW2b8gyvD1KixeajG8PrwBCtegQy+lO3njZt2rve9a63vOUtkqeqGXDGXUW1fpYVyxiJdgr4GPsFS9Eel44SkzX6p7pFr6Y3zutyOqHTrdatetRFmK/BeVuF1kwcCA4LVqJhPB3WMItNME+xesky3wpAMGtD4Ne22maOJzVMh2By6p2SPkVvitU6sKjwdObg7q3GG/cSuw0mMhj+PuFKVekEH+dtI8s54uO8OV9UIZCrJ5ICxnIAgwcPJkEBh4zSjwuesaSnI5scVlkL+kAdgnZraS1RWpALxro/Hi5WhUJOyxneljvOrJ2+8h8LF6Ii0ZA/I4h5efaMNWFGG0w6KP9QhnBp6c/L1+eNtpFVDOfR56MxDYOEFOyK1WtKi4tn5E472X58U0PDgX37nhs/5rlJExo3bTrcfmzbrp01tbX6ElSnhHp97Ybn2w4179pdW7P+J/9x8+HWw8EE4dCR2nW1VRVVh9uOSGXdvm1n00aN6S3CjBHDny0pDhYL1p8TJ+Tsa97XUN+4a+fufc37nx48dPvmIPfyskXLp0+bWbeh/tzZrh27dq9bX7drz/6pudN2bd+YjHW17t+7f1+zW1L58IHWQy3NLVXla6rXrN1c33j65KncyZOXLFy0b+/ehg1qWFtN1dqNjY3aHj96dFVlJQ76devWaWyowzU2Ro8eLe1dz8LUDx3MJuPqeW1s2LBBo12dpW+pvqlp2uw5RfPKJJ7rpZo3beo43SFl6syJ07XrGiqrNmzf2VyzrrG19YjQsbamdu/uPcX5BRPHjBU6b9oo4dAo0HXTmdbGhqYDrW3zSsuOBbkQ2yTJq8rL412RXVu2bahae/hgW2N9ffPevdiUkp7dxsd5810azoPVpvhlKdU20zSHvs0uDfz9qixrhxnq28PoD5sUYyy1O/ouLaQMcwrsFeir6lVMLr7BBHokXjnoGTvD1PSYslUAQ7y0RromnN+oOARtYQJSqwYMGPC2t73t3e9+96RJk+AcMiPw7T9WzDtpgULorlBHdIKwRU+9263QQeIsPYI29F1n4TwIxlevZmCH15mqwZbQMm4hz0sgAE4H82JjMyG60zJnGluVRiIckSzY5LWNfMRH7FvPgHp0RbLpki8acOYtYJMx9ovZ0mktHlXsbG1h+CpBvgfCNJhqT2+ct+yX1GZMm4PhMlLY6CBZ4dnR780330xGYr1BcP6YC3o1vz/dyLSInuS+2ORNOTnlForCY37I5Ydn6BpJmIVpdD5eVCYOCGif1u4bPy3tJK5bP78NcwqbCPDRWU6z9jB+lqqQ0XyJZtK5HLsN9nlLKd/7HP9kKf/dXdFkIiUF+79/+d+jRo7Ujc5r/pmetVUVGgJBbV4QT9ZyJ7rF/OLSRCRm6eIzAaUkqU9HD8SfqWS6aeOm5r2Bcebo88c2NjZZfefOdm6oWdd+9Ji2m/fsPdB6wAkpF8Hkfps2b4p2n0unzt8Uhr0ebu+eZk1Ez9efSm1qatKM0ZrEhkZPQ3191jpc/EnIBh/jJbqInkw5tv2BQ4c2b92WDO1ggl9H3TwvSYPVq5I9ZiXTxt49e9SqsNUBbSjw+brTjz7f3tDQeP7MnsTyJYs7z54733hvoWGbkfk4zzdr+Qf84WcESIZZ7GLFYJ/SES5NYhHZJ8NU55bZ2Kg74Bsx3V3h2nNG8rSUBYxbfWtM5FFfIViC3sARU3jwmfm+wZeAnRfU6ArsPs7hi94ZrjYCLd/ctais2DruuusuQcT111+/YMEC9FVM5eb29fHWiNzGVeNGG13RvfRQGvmgPW5x3M3qgYviPIq04fxpt9AeQHQoXFDJ5izGnwfnd4TpZXa4RQDpfDLr0mCsSUZWNAq6yUezuqMiMnHTL74MI1DpBJg/mLzQ5A2B28K00qZ1g9j0/KFw7SfmZUatVP0kWDBDDYxWWxSe6CqewuSIRdfS1fievvGNbwjn3/rWt5aWlmK3waKI3QbRb1QorEz0iR0iOtgSR6gbtR9tGcEHIdN49UazJxgWck57yJM85gXAMvM1uG73YmAta7Elj7UZhKnxR8O1iWF1mgZFzXpll7bb6EypqWohvbcrDOuzwgin1NXVLV68OBFHZTyPVwFrXVOPeLQ70p0KApLSYWhRmvVF9KvPO4gVIjWBmzIkHRUzGmTOZwnU8xFPThVNERkUsArDJgfhUamAXphOkbYxpJWHy8h2x6KpnnQkWJY1CJlytP+A0xh3K9rGHNqmXIBsJkMihSAiSf+IkNKGAJHIsB5vjSo2jDlpE9uMl2UCFwanOaWatf5A3YABGnD/0+nOaBAVEHMyKe0I8bDm3SpVAW0+7RYtJIw3WFq2J+UWpZXUc6tcpd1CXcG6iEGcVDQWR3Wn/ckL+fO9cd6yLfkWeFgHnWEueuOJ+ak2or2KGViA6I4wsXxnuBomGG6Md6vKnyMQWsKXBYQaFgHL4AA0FXC+tzMO9Z4ITZ0JshkNj5Ao1G9Q0czyqJpmkyFw/oc//KFQ4mMf+5jmcajHWD8oWXbjQ15WfMufgHrJbAIjuT4fdTJLZ5L2BJzX3dnudAkqTZ9XFzW7RQ/VgcfcUndmvuDucJYATHB+W5j1l+cCwaiEXLvmWzeosV+8KllcO9iqFmKmt4MbRW9N+yVG6VXhsCRaQ0MDEyVjtyI30fBR+y3JD4KbeQSzM3AeEs4hL3Rud7jIu7GqTKYbzcZsREwV9Syf//zn9QY/+MEP1tbWothAZ2Jg8KINzHlrvGielDqRrbaYlKn3mD3NM2vmTea56kCYY0ZvOO4lnPRLb5pNlm3TRINFyNpnC+WYF3QwXAGT819In+dPvT71iR5Qg1OvrCksrDJpRZ8MmpL6yoW7BggcoI7DeYFMdzyaCAJnpa4mUDKTpAtwJRVgV7AWVLDMq6N38y+VSGJVdqkQeuKJGLJBrXJgHgSeBlx6dzt49S6ONpGGcx+wKYNoqnSPi85yu+KB4GC1wXQs6WJ5gxVje5Ln148NrI8gqgsC6CEMFoANYN9hJrhtuR14CkP+nnCFLAtWMowlvUHQ1GSKlbAIxQpcGpIsQeww1SeCuGC3DG4yINo74RIuetUTrGd1fsHEIM7YPfv5dBNuHd3Az9qTln6cdiGxrHeeMRa9u0E0jJMyxpex2Y11w/drsRg2OAnBOxOuqQdPwOdVAtoYKmF2WTYbNjq9dJdIBIP3o27hHrMn8NnuCJeTA8fANygZuCBNXURrAg1w50HbaHGJC/T14fVrDZea8tU/cwsC/hY+TyVf+cpXhBJ/+7d/SyySqb6mT+71ilWLVcHyN2Ihp2/xPMK81eOrzepYEr9jmYFXiSobCzPS7HHJ51HbTAEzTjtaLhwb6JT0D4i6wyXpQo+1d2fcmxcqZig2HiZudAhRJsFtJ/5ozOP2ykySbg8LO3EiM1+wZvumHoiv+HMRT4gDqJhGrbEIKbwDyDW8MICtHhyyzRe/+MXDboltRiNN5RIMgEbuZQqjo0fd4lkMDyaGZl/ySQhwwzD7Y73hc8CRjSwzH9bvt4D26FT0GD5lJiz4WXrjvFFoeodQZXljDdN83FPBNdPD0oEkSAgT2mTV5luEYoEaH2Ra6HHLapPqBlQkK0KwjmoAVIH6HuRHS6fCVDk9FpyVdsjZE2bU56bGbDft+nzEELOLi5tY/miLz5+PhoFFPnf3mGPIo28b06bd41W+kO7BbBFTfLuzP6AC6etD94A5di5cAg9F6ITLxY1BlRk0yIlhBKMrfBU+/O1hOt+WcFWRVrfa0aFwQU9caabEcj7cb3RaY3RQeVu4eHRLmAvL0vwyEVizZs0nPvEJocSXvvSlLJ1/x4XZbHxzPajLBt4B/RKRGnHZWVWDWgUlA7/n5eC8asAkjmSElUr7yerAvXBGs7Q3GbT2ubVf4UAC3Ujbi1rkfJqlFdvjn4DU7n00Ei40bJ5BE8EHvSSfyClEJ+oiUzb6Flc4MwIsSKidTIvM3LQtXBDW1weQdBARtedd73qX3uD3v/99PTs4r19GERciJraHi46Z78OyOjBmrJOBU0St9mMex0YErRF+Dgup4+Mw0+jvt/Dlkq+YuL8dLoOEZVHujfN+dLxN89mJRcJ2pkMjhmmzRr8BTjPO/J46b21JsdP35xrkovoGvxIQQUKDOE3JsL6hS2SmK7vJXRakmUkSKUuF8ZgUdpfcxmm2PgvIgN1yLJzPQuPZW15xoH2VS1a+ys4wI4E/SSRHpYGwn3zJD5Qz0YDB1p8L4KfTB1hXV1dZWblu3TrSMGKltCz3vrLEl2Xzep8ybWYQ0n/tdit3M4WHLnjUpZCFOi4Q4MuyRZ2YEUCh2R6uLYWabRGy6KJmeMGbqdoExYWFhe973/tYYYTWtrr4XGvewXCBWmSE6fNmKLYpAJFKQgNUU0EB/XyZOI9Oi3k/Hq4JYjQ81UZu551hNmAj2+Cw7g5C75I+iwn+zCVKb7tcFv77hMys2CsjTZm7P3JhMQKVTeWwdGEvMr8D2oURaZDgft4b8yYjZPGJ6O1rFMHyWrFixTXXXPPGN77x7rvv1idgGcaYJux1WTGBcdXMjBW5bzZDXEI+e4oXjSLhO/E1yM1VSq4bsm1kcdp/j4UPkw8ZY+ZOt9QaDTjm1iPzcd7X1VNeyLztz7JFcKahup1p52S8hWhN7T9vrvEu+V9Ydjkb3Qrb/J7PvBhkM+tJxSRMAhfq+f3xRJz6yQAQZNoM7DYpu4u1xxqcJWL+T+H0NVuycF7g4LuH2sNYDHymvgZyCVUkK34EXZ0h3eYy9dXX1zPbJZEX2jXhq3yzRpzA38dHx6/tVGkJ02qx07RuwBmcJ/8hphgwFsciIG/qLjC+K1x2yiAaQUPYlI6qH3Jyct785jejDQIFnGMeQzMdt10YHmuCAI4fdG5UcTAEDtJLwnl6z+II2IBPpdPURWajxo5tflXT5w2QX8i9/kJaPXchwJ89zA6yAL+38Sd2IUu/d/EnmOY28qWDz/jqCJd8wqWCl9C4N7gLgTs83bpq9OjRen1XX3312LFjseDh0ERqMADawjR3mCKxpPE6KDZUTC6QHA8uk+Vw2BcuC9gWLkMMiddnoP1+cb49zCurDUY4VKj20KTzQnYbsFHPqw1GkXaSJ4dRSvgAszOUZCgT9Kr2EBqgSnDntTv+gGX9Mh1bJ1M5Qy7ICR+XAqC7dCUSkZhmlvoIujrOnDvdFevsTkTSmWR3d+fZcx1dXZ12l2D5j3M66WykO8IsOBZSvuMu4b8liOaOag/PmLyMVfb++EpW3gNjzreHTBvLJ2n2HGPI+D5ZY9dYQTFjns5XQzG/nlBImIOVGEebGbFNMe7tUfW9mZZCFgMpzk28Y0bG2B7me+erBMMtyhUMR0kzc7FN/2FFslPzX52pXiLPocrtt99O2ClfExYbY1ybPo9nlpaDPEgfnabeJoEM4G84z8T/Mu02nW6JOsNMXiUfI4ooSQZg19viSmqJ3in6fCxMFhG5MGbnhfT5LLSn2CjyVXdjfduh2IVr0cY9TrjhvIH8RUUMh7jWKlRHWXZiOJy7wnT0zJUYacIHXfjAAw+A88uXL6eXDOctaY9FZjHF0J98ILghsK2ZKMF2Z5wrbtrsVqUxYq0lx2DD7Fe/d9MNChU4vztcqafdzbL5ci9qt0Hp1QCbMmWKBuSCBQvQDSQKy8rK1P4lS5ZoGp6Xl0c0BI6k+fPn19bWaufSpUt1l6KiopUrV6qjNOfV5fqzvLzcJAi3UBvy8/PVqsbGRl2uSqoqV2/furG6evXmzXXN+3Y2ba6vql5dtqhk8fIFrYf2b9zRFEtGFi6e/9zUKetr1+ld6Hbr168/eKBtwfyFEyfkrC5fs65m/cKFC6uqqhYvXjxt2rQ1a9ZIGZszZ472qM1qzzpXgLsXpUH+URY9uH2DnW71ECO9WzxIJFwN3EQAFGJj3Ue9taQxRFhaSz4fcgxqtKxdu1afIVYdKsQcBETzbZrlxFeMexfUY6wQu9wqG2Sv9RV41GZm8Tadh8ht8aomUyxa0+iR5h2AG6Or9I306dMHnB8wYAB3NM6kH/JjMwVAAPeisTWwFzFXOuVWPG9xcaZ0e6tbmVRdqm1dpZ2oKNA/wDeScR1w60llGcntdQDgkLcBfBRRMgAArZepw1+i+Fr6C53zQqD9Mm7nK/mxEPk1Ji09EQ4RSDgY25nCQG7XJbfddhukSmJeLG0va5czKTjklsrShk5g5og17JDL84MIhtOCsdEcARgbjXnVEq72y/CwaDsoqajZ7SGXqT2cC/+O9hwkER5nvmLT3I65BbAyFzPaaENw/eijjwqcBw8erF89nQBz/PjxQm81fty4cffee+/UqVOFz0JLddeyZcskEXQ7oavQu2/fvoMGDaqpqZkwYYKeesSIEfPmzVPN6sPi4mLN4rWtl/L444+vWLHi2WefHTVq1K7du+aVFtVUlRcXz127tryuvqayunzbjk0PPHxfn0cfKi4rrNxQmepJFBTm1W5Yv7a6anXFarVBzZuWO33L5q0lxfMKC4qnTHnuqSFPqRkSOv3791fLBfj9+vVTO0tKSvQUwnx1eyZ0Gb/+3LAX4DzxHT7OH3dZ73DO4sc5FibWQM83nDfFzKYGlg0VpbfFJYeREJdg1ZjBPwvTjLU+LU7fpyBeohwK15PCEgvhgY8d5Gf6jLa/z600B9bZEn4G7AfC0ualKTBZc8gtac0lGt533nmnUOKaa66ZPXs2Pk1z4HIL++ot6ha2/PZwwSnLpmgs/V1u6T2cs8gmdTh5D/a5RPRSvPUiLorzrJpxCRA2kkzMqdCn3JJJTG9f1PH6Witm/I+FgaKMOrI14pTBQU/3MolD1MJ7UXfdcMMNeoPXXXedOrM3zlskwo4wBzUWeHBebxnuGRGycZf/h3mr6mceZ96llnBJAn7hFZiUhwRrK7UZtltcoTEzXyrOkyQNcyjFCJx6RjU74+G8sQS1IVSUYjx8+PDS0lJ9p3q0GTNmTJ8+XSp0bm6uwFPqfXV1tY5KyRecCsklAmbOnDl58mTpbzpHZ0qLFuAvWrRo6NChetJMKE3AWA1ynSPg1VU6X3dZuLCscvWKwYP6z56VW1dXkzN5/LLli2bNnT45d9La9VWzi+ZUrq2YMHHs2HFjlq9Y9vzzRzSh1t031NbNmjlr6FPD5s7JLyoslgxqdsvojB49esOGDRUVFZIjEkNjxozRyZIs2uZJccW+yrD7ihdwHnw+Gy7MbUGsrI+AXc4P3zCcN5twrFcKeohkOo3+t4wlZKM67pISI03MzI5j0YfxFy3E9RNVyrxbBefdwTAbMF+TsTSN/7w9XODJImt8e0uLt24IswNdrnHygx/8QChx7bXXSm/BSoNUYoJgGSnNcczl+MIsNAxqx8EwDRdMyxaXzIdQUJ0Tc/x5cJ7cKYbzcZfHbK9LR3kJnEfgxjw/KbnIWl22BN+W8odSbO7gb8fDpGpZeWC6vJWVjrlU7eorvZovfelLeoMf+MAH2h0NxjLPtznPPgzMg+GaAiS0aXM5nIF3hj2ETMw+uMJJg3DKrTDLfBCxbhq+raSA5m++Y0s9kWXG6c1ku5wCsaHLLWuO7LBFgggh73BLx2a5YslKtGTJEjW1oKBAnaCptx7woFteWV1B9mY9NV48Po3KykrGIQYxMw3NnTtX1+qJtMe4N6C9FB5JCkkBfYASHNU1NZubNp4+eVyf8rFjz3ee65DSrmnQiVPHjxw90h3rPnTsyMFDrSWlRQ2N9apT7cTSm4gnjxw+kje3YPGipavLVwth1BIeUG+H7y7qQg71Yeq51M/m+X2VMffVKIbzPqPSAi7MaNPulr9kwFhSDrvQB3zT8LHqE8UvWS8hK9lta73ZwCPhIYBpoY6Xj/MwEm21I+glGl0x51jsChf4plUM/mMuLy7BO0RI+TZ5v5jJHVVcnaBKWGHkL/7iL8yqg5EWa4/vkGU6APuOJBhmi7Ypj7m3+NjbXaZf3Q4uPSmaiZNSn/v2+W63buDl6PPm3OS+CFb1yYuya16bxacNxEKOkM/qMWs/Cj+WKwvc0Ev/1Kc+pTf4yU9+UmMPB5NGBXweOp+XSCwGQ1Sdxisjt4Pq106sQBgnY86Bog0dAmBJzsyUjWHJCLfRAo/ULH6MMV4xRiF/Bn35xRZlwC7q4zzunt44H3ecRkEBcA2/l3EFSjAfZMOoLLZYkoGJ1dkRrkJO5bhfY84liq2SG51yq7ScPnWK9ay9ZU8DXqVbCy+dCNiVKc2ZUm4t7ETifFPh25w+debo88dOnjiJmzVLUTemjV4cLc+E0bn/V3j6Wi0+zpsCYOkyyCFGLncYv6jxYFRvnPfpEPEwPZRepeBIuCqcr62t1XhWbR3hWpmorLvCzPBGaLycgs4MfWWnW4OJuYO+IJNETCugghhFnGyKkHMMopvDvOV+LA9FdaqFenydwwoj+m1zy2eYixNfm7li0eLwLGOfR5+3FCXWh7hioQypryCgkt+G2El8ssTLH3T55y8T582CbfZzMs/oXua9/b+G5d9jiYcEHtsDkvszSh/w+ZOEvQCvOry8vBxa7Je//GUs9gxFgjKwLrJhjFkMmATxYZ9X/Ri6tYHRJuYAnzeFVzfmDKGEn2ARsrQSe8KVbphvwkDYFaZXxdZkQawv1VYPdwJCRXtoBeIQ+bqzcL7Hi+XMeOsQmSkbkmTGQ2zb4EwGmLHWWUSpJ1wZ0Gg2hsNGqrRmBFH8bilAVhKJRWN60wGCBIvTshZsMliHNhEsC0j9LulB0sXD6sLAfMfEAbMMZiIaZg0w/uerBbavYjH7vCkA7d4alHxBJF8ld3fv/AY+vBvIA2I4WBm92Dzh8aJXYxQ9Fq4GCyHZX1nvRQsTYcjthFJCZTHbu6WlwvxC2CaKls2XD3oJr8zAbjGVaOPwz9VgTWY//OEPCyVuuukm+MlwLy2hDQUC5+5wrSU8CBYna7Qf+9IRMT7OH3ercjD1UC9pcJL/Si0E7uDbtLp1A41vc1FsNONGzCXJQWtF v1B4Lw5gHD3EE+H+LalOnxSaDzkfFrCt2PhajiqqrS09JprroEWi/EQqlibY0OZwwUjP/FQaCMMaQ0hlEPViaEeVRlhTeYKNpDFWYGxutwYXwxXZLeNZ4LydoXLYAH4jFufipll0uFPJAIaDqHr7LTARp4xC+ctE0sWCcfPP++juvkxfazOkgtZ5hHQ3v401IVdGdQQJHRJQZwPZwEJgrIE+RlHrHdZvBLWGBfo3+N492n/7v5z2YNkLpRf/8eY+loskEthVBqjxtxAYDgZZmCU+b7XLIN8vNdirMfdMhl1dXVVVVUbNmwgHpP0WQSnoGPgNWPGin37hTg2vfV5kBk/JjhJPKxRDto88iRKGnKHOEHTveHIge0+4Qc1D+O5nn3+/PnXXnutUOKRRx4hsRgpTSwleFbBSdfuSKS0pCVcfhS/AFlZoDu2ubzlSD2go90toaju0uDUISJ/0WnV4YRtolVGwuW0LlGw6hPUoxf0B2G3McZmd7imCSDZGhYW6Tb2l0/9opBzA9ekemDGjBnQpW688UZoAIbzzWGayraQPM8Ek4W0GOTkAYNvo/cb8/R53jUec9zcJDqg/ag3JMbkK7PgX34Z/1Yg6mA5ZJxoJ4ht5Bxi0o+H6SjZQwqLU+FqPhYOc8xl1iVuInN56SivlD+aYjhvqxK0e9mDmasCU+3Oj987jDGr8HGR8YycIbg1has1rgjw6+vr8QfBTMYyicPUuI6XqdJzvi4Xzre6JGM4YbHXxdzcmbk5X7RqJpUZlHif4mLJr1C0+LhARZywqm3q1KlvdGXKlClodwQLo5kkL1bMZoIDy7I3M51B2PGxYxmDMoQODxqQx5LJke5ojHQI29D8Lock+YeI87HQzarHP+AtEejLSp/KaKXNuTXbXYASkbB6dj3y2LFjBfJXXXXVnXfeSSoP7DbgPC+CrJVIXvAZnO90S7G/KM5jqI85ThTvMeqCifhASCikYmnhDfD3hgsWHHCrx+Ksx5/rG/BNw2dNE8xKlnGOMWYpqszso9sxWbiC86/DYjgPMvuJ9Sz34PFw6QQC8yPhGje9Qd52QtHEPIK1maBvpqtCV0huqhkzRUuYhNCCRi/TD4s9n0yGMCUQGeT9Nnu4tVAnY8BvDbMcWPIrzC9mJrU8tzDhdb7qGThwIHnLFyxY0OnWvzvrll/x+X5+McOInwEMqwKfPxGIfMvkMCSgUt0FRZk4KXxk5DnEImH2ect7cDmA+QeH86gNkNj1suhte7NmxvHnTRbWiqSG4NruqDW6dsiQIXqDb3vb2/r162c4jxDh7e9165XDhmXdKN2LdAGXg/NmwIk5HYP32O2WaOkOMxgTqgngd7tVuphBmw3f1zEsPTLNw/tvvFy8CWA+2jtpAw3hfW2fybKeIuPZMV5tBLpSXoni4zx6CPwBUsFHvDW7bWmnSJiFvrcmb+5FRpoAvKGhobKyssWlC4aKxjzasm3YWDUjuZ9S7DKhnuhFwFl3hCGPcxZljwk41m+hKPWjTZk7wGiQ+71ijAidqR742c9+JpR485vfvGrVKjjbJvtsLuNTPnxlPupFcfp7CDEwTjWSBbMwYghlEk6O9kRCrg7+BVuTLvJiJMk/RJyH1KHWgsNHw3VagV8z1BihCHM9CjP2NFINE9mnV/bQQw/pDb773e+eOHEip5E5wXCeTraXTm/rRV+mPm84Hw2TecacWwScx55P6DFN0lFY/cxZUMtbwpTRRtSxDwQeviXKsxV1LbAFQoVloTfzjq3jo8ZkQoR/fRqrX4clC+exJ1jSYCwwtrSB9sTC3INdFy41GPEC3jEBaUyyCEh1dTWKsQqMHVsTSqNxt8taxmzUz2F4Od5Y45+3ufTgeDbJV2bESAtFRFXDSuOzYnyXqJ/HDIu6ff7Mgv/f//t/Qon3vOc9El7MffjqAaX4hSUWej/thKiXNMAwXx2CC8CSG/PxtrpkaDgHkWV88simdhfVrkO4USJh4gKTMnZHf4/OwfTxh4Lz0ZCvS8YA8kjgUje7h59YD/BEIcFoRiAeK0np0H//93/rDb7vfe8rLi6GY6+dutCiJBgMDFddiOwgfJiNl4Tzek08ghqGcDecx2cKvRBCJloQMp1kgK1hen9GgrF2Ge1qoT4xconY42Oc93Eeo82JcKWqCLncQ1LKq41AV8orUeC12izYx3k4DOC8rz6Z6SbLYoN2StIzDaddLkG3MLOuro50BBs3bmS88cVhnMeMQwZFw9jeFPpD3modlvomK0sYnwAsRya8ljoSSMcsj10XhZ98UyaGsvKYMXdmD2kHyFv+0Y9+VLMGiMo8/uWYTXoXkBYnOB1y4sLCHtJv2uR9t7c81o5wgT/LrOLbqLPcHHTIfrdOLjj/8pr9SpZ4GPzL6wASmWBiBjSl1wodYjoAIwc/rH5vueUWvcGPfOQja9euReGHNkzfkhOPl77bpVTl/YLzbIDzOH8xvPs4z6QJgiV2G5sRGOBTAy4wPC/IBSxIkKkQB9qDFAPVs0g4enycTUyWiZCCOAHso+czGUdP63ZJSn0O/KuNQFfKK1HIY8Zs19Z7QuUGuol1elGc5xATYUKu4MDoWxPO19fXNzY2sqCPpT5rD9MU2Oo8eD9RZS0BgqnuvfV5H+TN4MOagObJMsFBUDweOkCDX1tYZHeYD5mAWUs/RTCvPjptQ7b53Oc+p0fDvkpvvDzANDXbnwL4BY00Eq4EavLRCNXIAvaYJ85mIhRjiiK8tMd8gq99XiXdq6cG3JhR4t1gmAH7vi2aDUuDAOZjG9Gzf//739cb/MxnPqM3SA0qsAVsxUBAlQi1VxjnuSMLznIhU2DyKuimsIhRigj3YzUWAvFAcluJoM05o8F/m3ET8XTFbvO6KvDnfZy3xaEiYQZLvpEXxXmC+hljWAgBVX1QtbW1QnvSthCgSpIlQBWeA/YKy0AFIhm5HXXd8N+w3RcE3I5kMoQdmSnmYLjSK9BnpGUm/oaKrWF2GksUz9RYG+oi6fBXX321UOKb3/ymRACOaft2XjZm+ub93pYfCm7cmBf6ZN5Y30Rjxn9LLoTgZl4AAMI8sTN/Bwx+JQpEJj0IFjbsaWalR1PFxhjzYmNtiOIn0vkMPI0u1gL72te+pnfKxJMgqX3hkpRtjngDs90E4quF8xjt+dYQScxYbXgzoyGmGysiGpR6iekJBp+2MKkCsiBzxQ/7OitkgTbSguE8QwtDOhr4i9ptYOxoyK1fv15IS14ydGk8oXBszFKq/UxCfW457lTiTG2WahNwX3tv81JNGm0GlqaUHKjmZu2x1CI7vAIr3kA+y0bEFIBAeNWmp1uxYsVVV10llLjzzjvVKvvkf0ec91H9op7cLD3fV8Wz5ELWBAFij1+570owzudruURdYnOjJCHrzRHJG0RjPxwWs9iD8ExwANKamprPfvazeoM//vGPCT2AWtbm8sZTDrl1hEl68MrjvPFzLEqRDS7UTVvcummkHoVdoAZDPECDOu7SgOOKwiJqCVSZn+qmmVCTv8KrfJ0UfexY5o3UDdMGRdE0fIx7l8B5WyKt0hVp70L7+vp6KcOtLvuWn5SeaBGsoC1u5T6fS9karvfN5wzgG00aZOaLPnhhaXPhLaQg4DRf59cJmIkQOizqhDiwu/f2wzKFJ/34tGnTyFs+ePBg0oZ0uzXyXjbO05NsvxA3MhqmF+bMuJewPdYrtW9va0yW4Ij1mhq8xgs4r5HDeMAcZw4LSFNgHcPGYp3MEIfTVjUQ5nb99dfrJd5///0ET0Ew+//snXmUpGV59h0YdmQHZZUQEAVClM2jkJggIhoVCHIkcTuKcQlGQY6CGyLEBRdCXMAoA6IIZlgCyirDAD3T3dPdM4PRmWFgsLvetybfSb6kRr980l3E8ZvvOs/vPNe5+63qnp7pngWrnj/m1FRXvfUuz3M993Ld100MhO/qsOQ9dWTNVeb5ZsZ5+Dk8cR8B5kyR+qaRkqAfSi03uwHnqa2zKia2k9vryLnWB9Z1cb7DhiYVERuDvIPzo4k8X3lnogGbS1MICWKtO00tgbygHvP+ydSer54bBVIGa3VWm2QVcx1GsVlkYL7FoIixO+GI46Af1Yc5bKyu5ZTIqI4mxXJwvrUCt577BqJIQL2MluHXvvY1cP7666+HHfrMlHswTX9UDP62H6hAeuuIu8NzAuc1UBJYmZtClrks9D9yHwRoM3AJnKpgp66nHmSEd/TXH/zgBzvttJMeonZqd8aBv2pJCuM89R1EUZyQRcdsg3CeDeI/UnOl0cSlIQkO30aGFjGosdyasxl4mM2E8xhd0CY1mJa4mYZ9qP78EKRQ6ATcAavorEi9L9d166Q6bMDfZsIb55ENeSa3keKdSUAee56Aj2tVAEz9l4AJFHGtPipT9FemYqTKR15lDK3jrbvxE9QdDYwWeDLM7ZVJuxKj3fF8Yz7lJwTVtbj0MTccqeR8rZyDPa8P6OZ8+tOfFkTsueeet99+O2S8qPaz9cdAnqMDpiKFS1b64nHz9InsUbKNqgDpaaa0np05w9dcc82sWbO22Waba6+9log3YI4niMNonMe6JnqJda2nPIM4T4E5gB9xnvSK/gqxGfu/mZTTrKjDtCRmhTAaISYKyqAQVxhHRdZuqujPb2EA6o7NMlpxniRsZFqS55oc50dzUT8utsz4gYGBn/3sZ9j2UM21RuDbwK4n58Wm4OrUIovGO9mKYYaePIEUWeyLFy8mPItTQBEradyhoSH9OgQeFqyb9yEmRppYh4VcgS59W5zXIC2rr+gzdBg58sgj58+fb2OvmW3sLs5vikE4S3OGTL25WNBj3KpJj9stWWFt0eYDl9B9uz73uc/hkd16663NVLkA1Zy2lYjM1FIzSvS+thKc1+ebqRkBn9c7THv7m/r3/6QelIggkbYg8BizWgS7ujjfgSPiPKY7qB4rp6aC80xOYu9aC3AAZHIPpoHhoX+JSYKxxnmzaBxmj7TJMhDmiaWA4ZZZM+cQtWH9LoEd4J1OcCShUJt3whe1YYK6lToUx/+J8eq6hB6vfe1rhRInn3yyrgu2m3F+9LnWsOO5MghG6f6TT7F4daywICgxkuVJXWKAl0cxxX+mdlEXXHABOH/PPfcwbQSMDu8QRRxOzej16MH5sVzutMVx/n+n5m76vE6YVCxFfEhec1Y6PfwdshJtSchdnO/AYZz/dR6Odjpuv97gPIOyDiuJUa5IAylEbDT9sKy0iIiuQKfBiPKooL0N7DIrT1IbopNEYtrmtH4dvgS7kkVrccxZFDAqh3P7ZgeC3Mh7ZWgsRV3kk6lh99KlS48++mihxFlnnaX3rXiAGT/6XOCiPxfHWKrIpvhXz4jEoieGOTZ4ZCZNYfCz1+sJFqlPov577rnnIlvR09Nj7kE9tP3C/tfE0JtbFc7raFRO6QXUSuYnhj2MSrqTo/IUzaQKUa2L8x04CH46J+WUayyPnQrOM81oWtrX17dgwQKBJwKM8MyhSZCrpS7VIVbUmQBhF3JWyPNYXOYM6JPNLOrCrjSW1dr1STjVUMc5K29eo7khBY6APqCfcxtBBtqAuAb6LST+5s2bd+CBB0KqRDKL4vqYHt2iiPh7NcaCag0eIpY5sTj37cKSL3KVtJsOGPPh2RapTkpHgDy/884768lS04dSpdOUpPKpMJ0RnAfAJ8J5nUBrHhZajnXPHJ+3YMJIEuKGX4RmiIXRfhkaFkeiaWxn2cX5Dhyab0RmiJwDjBhRLo8lj19h6EWQBzMx5rUYhZkLFy5EfNhMAKgCeqGVgtdJUCVKRLpufTj0TiXMyKyGWk8+N/aSAGzJ7ZKNZe+AYGNFBVT0qRViU4O9QC7PQEGdLMUyupwilWHefPPN++yzj1Di4osvpgqsC+ybaIxlTRv4n6i4W3+GhxtFpDESSMRY2te9ZuhfpsetaXnUUUfpCe62227ovxFptI4QfDC+q+erKQ384lBwStYx22z2PPz5ZorPIzhMbAqeMDKnmBwwKiHhVIgN0TvWWa3LCN+tk+qQAc6DeG1x/ldZuHK9OI9pJGMemvqiRYu0BvUv3YvgP8CoJE9E/ND6kLEk1t3T4N7jWbPAMc/QEo8VQKNJjx29MtjCUcTVtEwoOsYHq5y5riqWVlEkBRXz7//+7xE9+MIXvkA70eeEDthzbsTZ5Z10NFF8rYAnQIsKpQzEG/2IMRt4kyJQzUw8sv3335+w269SQ2TIYGiT6uljGBAt2UpwHnseQjJOK+FHNjU+oN+CORz7lVSqS5jbXZzvwGGcB4ShUOKrEslxUfl6cR4M7+npIeItex6cR7mdfUTzmaZOZNOMqLXQQsIlscRSLNYH+GOePZubvXrov07C4onH2L4V5jHUGVYzo5zQ8mXwMEESfUavdf4f/OAHZ8+ePWvWrGuvvRZHvkuwmfHhjZsXo1m6ma5SY7lAmGCdkR9HEt4UjzXq1OkF7Pf58+fvu+++yBO5KJsuCVjIJs+ThDVKb1mcdx4WDgNnyHohFUutun5dc5uavpi2qAdhQNIQXZzvwBFxniUDzhO6dBK2uT6cR1BFq2DJkiUomFEe9fjjj1t23po2EBorDEZemOhingxdn1wkxbJ1zT7V/ZjW2HVWKo50MnRsKkVYJGQx/mNYPlI19KO0lEX/Sjh/yy23oO022uXYzPR4Nre+Bc+RvwbeKxZ+fO4O3PEB0jHExvXoNVsQ47377rt33XVXPcRzzjmHgCQ9dLw74NMh1jGa6JRULW1ZnCfH2kzxeS0f6rm8NxFfokqRcFYs6MaUsiQg87+L8x04jPMgvGXnwXlXSFVqLVtxHrcRq1hf1LyCygiPC2lHva//onsTwTZyA8rQUooaEG0W1pNHoEPz9ldJpjuufb0gvO/yWO8dFV5ZZJpVvAmcd5CfaI9MfS0lfeDkk0+mD9H999/PHevG5zfFGE1EKeYYqrykdUCz0fGCG3ysGXR+2CbwAlCJwZHUO7fddtv222+vh/jhD38Yd1VzEvI83erBeaGlENIo3RyP85s/DwvO6wUNU3yeBDax9rHnmbS4rpUQfYzkdHG+A4dxHi/YnHA3VGUWVYIkhlYMLXYHzbqBgQGBJOJRFBjSrw3XgFgoWbNyCoPqFRiP9dRTz7qCFHRD4MGL13kSmSfq0krOnGQ4BWDwh/ZDvli/qzfRvzrkkEMWLFiA14+V1R0zOKIJoZmp50vM3MrSTAPE+ekYZfxn4AKMpu7AtAVhGutoN998Mx7ZF7/4xdGs0YeX54gHSXkwGdHILR634YV+nf2IxCuTU//+KulwjqbuVJCEUfMrs3yH5ViZ3pV62C7Od8iI9jwxSdYLSdhJcJ41he0B6GkW9ff30+mbklWMYSQR6H2AteypOMkockspkrb6CVYu7bPLFKVkyyBXq7UG6c5xm40Y9iOwiKiLpJIX/StZ9foVrR1CVVsYFn/vhrCR7u26veA81Bdi71RAgHUQC+tZvIXZosdEMRFf1wuCNpQXfetb3wLn58yZ00ywTIdfEprQEUdS30aa/W09OM9PI9yhU7XmcD3JA1InQgtOnGV3Z3NYnqxTN27TsSPifJSdB+ddG9vKtwHhx3KjQMpRWSmC997e3kceeaSnp0evNT85suYnziZlreuFXAIpy5Yto88d0IpL7kWhYxKo1AGpb7WEwsbhPF8ntol3QCepHXfcUShx9tlna0Hpk1H4vTtmahjnMTYginvzZQfXNMOnQ09S/1qGHUalo3bMH7cJ+NSnPkUx7E9+8pNnUz9BPUQd0NVGZWJ/bW04b4FiYkq6IopedcKaimTQYLvRZcZhKC0c1kWZaQk4RF2c78BhnI/1UJAqYyVsK8iPZTFecF5zjOiKJirJrMVp/PznP6dKBfVXxJc0G6cIvKxBTWzOgfQrmN/MxZLoIaOHEOmRG2HVE6inBQ+bCAUy8lCsPA+pUveny7eZ8TGWFSQo07buIjhsbVJ4Uxa+gFXOI0NzvsgadPoYcKopSg/3/fbbb8GCBaNJxIxuudQWYX5QAb1V4Tx1UnRCtxdD0MaWGHlnYlbUqtBUEToBThB1xPpWN27TgSPivEUpK4oHbUGe9eiGU5o/Wj4y4wcHBy0LrBWn6UpwPja4saDleq1rQvEsKNMwWN2jWY+dHIGOKZynZXYsgZ/6cIgewVuUD7UAdRN++MMf4vJ/4Qtf0J1BAnFLAuLv73gmNxomsaiJhKowswhQBdL10LXvV76O7UEoA5MDDoD+PeOMM/QQjzrqKIGkPoNhQ3kU+htbJ87zeX0Sm8fFXzoTu9s442a+cR98B1DsQcEDxbN1XZzvsKFpxgpCecb2eavigbXWbeFjPLgsfenSpTLg58+fL7RfsmQJRi8H0WeEn/iS1pCxXLCJ9EUQqyyTVKy+or86VjMWCmdijw+9RkjH7b+ngvMxgBlpPzRQZktClPKzn/0suii33XYbq57NxSY9TI9WzKmMGUfFTX389f56c7zuvelPkQZvJgwPMZ45r/1kORQ3FqIgdfqVT4JmFaZlPCXvFOzICMgfc8wxZFiYUWRysSUgVZLl1/yMtPlNivPwbSp9A5tZf54L5Dwxk0gbPZma2uuT4DwCDq43Z6P0fWD7gD5K5a9+xaIHXd2DDhkT4XwlbuPYeDPhvCPz9AqUkbBw4UIiokJ4oX1/fz/iURxWP+EulojJQFZ3W0AAH/1hwz5tETTP0TeoYILXOC1uKacF58vxlYCxJHBynOenCQT19fXpoog7nXXWWdTL601cfgNLxKhWGPy9x3munX81W2jYR6DYzfugJzna1jriDu4ja87omSKa8Wzmz6/3lLzjINykr2PbC+L22msvPcQ3vOENvOOeHSRhCeyjJBDLYDe1Pd+K80QmjfMUkqO640yxK7lwqNnRTEIj9WAOKnfGSTedXlfcptOGcZ64TSvO25h35tHvsASQvH744YeXpkHBkcujYLVpJgPaJMsIt9ITEMzHozRPgPmMWAdrwUEbr2LORP/qrzoZ9xuqZ63aqHU8Ec7HGJE9C7IJOrFFixbJNxkaGjruuOMEEXvvvbeui6Co7ox+d2x8C8VWGOwEnHdEXdBkkTE/ZULfZlghMURAj77koBxKXE76gG96mrDHpy4xMZrbqWPPw7zVEfTgyKSfd955enC4mbSqh72D9AHUXFAXsG1u4jqpqeC8PgDZAAqoThJfAKfGwpvuDEtnTLriQj363e9+x15JX/V1AeS7aN8JwzivYZ6kK8rtHUc3eSyTKr0j0INPNjyZUMQKWAhEVjXlkC8og7YSAjLY4RRVEdJB1oYFqM+wKJiiXu+WL3sm9ytnH6GtyURj8jBOkbXOCAibyKHN6yUveYkg4sADDzQI6BdhhtiA3AQ4+hwYnhXCK91DPQJEwwRNcD9iOA5NSPqDoEgGKCGWLuOfO09XGs0fHRDbI2oZTT5wGfjwr1LPL9K1991337bbbquH+L73vU+nitwoAXmdBtuTAzjUz24lOK93dJ6uGWFXwnwiP6vXPhmCqKSqWUp67VoD7P8uznfgiDjvaIzLY22p/ib33xzNur4OzmsWEffTvzRu09qBssJhNVFh2sDyqocOEWWmMmL+IV+DkY86fZm0ZTDPxnIb6xjFBWR0JhSx4hRYoHISY74cr+PHh/UvRiZeMP6FXJWDDjpIEHHSSSdB0rMRG0PErTbnWMuYSYRt9xMzfvz1Dt8H4ZXunh4xWGePr3JixJPpxoVhT58Ct3NFhghqjV43x/ssUzmfZ7MGAhYIHsG3v/3t56Xx8Y9/XH+lSJafg46CHibFGhTfkYdtbmmchzmD6g5lXLo5rFl9Rf8irP2zn/2MFIMrCPQn3VsWF0uPXU/HZO13Eb5zRgXnmzmOh3nPUrU9zzsOllLoqunX19c3ODhIsF3zSjOTOQ+TB1HZ5cuXOxRftpRjU/DiTk+y7RcvXixfW1+h1IWYqk27sZQFxkOXfSLoQKPA2ghQqT0M/hVgd1jeok8sOq0LXdRjjz02NDT0zW9+E12U173udYTuhU64Km6/1UzhowoQtcX5yZF5knfGQgYzwlrlUJsT7eNuq39pDYYiBHOpsvfFOzAaBnYpBicTpswcV2vXNFvC+BPdRkwCMke0/dLJkEmnAzhQDNEXnGdDx9IwztOhprnpdQ8mx3lseErIYw8UDR1Qp4rEH318kGbSfdOqcZ2jTgzPlHia3u+SbTpt0FMSQGZtapaaJwOMGO1j3Ma0HArxhMn9/f0CxoGBAeLkQk4M/qikWjGeK0NvUoWk1YQ9b0qYvg7gwx8j5Oh+UrD33TCOHAFK+GQN3EmEjBtdKqxSXg+6T8ie6E/0PdTRPvGJTwARf/VXf6XVh69BbAq/mMwXXyTs4CAYyIMtSmjUKQYjFX96NhMkDI/UEZM3sYcVswAcijRB2+LcCv77vzMVyR/LCmME1hCL478bvd1wUTSXpPLC7EGffMzUjAaGz7OZfwX9nkbAGnoH8vysWbOuueYabF29j8uGfULRB9lY4jaQWPgJTUgWgks5qFHS707TntfHiMDrr3jHzSy5zx0G51k7ekHlFyQifR7Ned4vU70JAUxIDhhdmEk6ecQ54dsA9ZqQXau+E0YF50GMmIT1UrJ4IAM2FwlWYoaCeoF8b2+v0L6np0erBtArE6OSDKklUtvyHkkeEcvVMaEQ09QjGvxY3aQPWH10zLQGpjtHaPLjGgjqEc+06CUkT6tTOmOoE9YSprSW077kkksEEdtuu+2HPvQhnYne5JJjnws2IwZqDHQYh+n9X2lwn7mrzZBiAN+cycUvgCvCAUle2yUR1MDtt0NhHkvFTjb6NTc9zuu6ytTtdyznUjfugJy2jkZdJ/F8QIxgoLn0/OsAY2XTxDbGUdUHXv/61/MQ58yZo59APcO5VzJHGPP6FVySaI1vNpznCISMsKZwNMy0iZo2Fg9kUTgUSYSHaA9TnSpaOw7rkjEvhO+a9B0yjPPYyWO5wwhzaSwwGK0QxYIyXW3+/PkC9r6+PiF8Xxr678KFC7VIycdR1kE5nsntVieIA6CGaYP77Nwru4+Whj5mLgdFNHpfbwqZ+QkrG7NxQP5xT0BDemxBQngTa58KqcHBQcoB9DHBuyBihx12uPLKKwl4OqsY+09Z35hWF7GtCTsLRetsUgD+/8nDiQ/8FP0LxULngCwz7Vf0mjVL/hqlIA0woRk2i2ZgktvibYZ+fNPC9wDL/CizSLeCNluO5GzoD/ls6fFBIAgRUUg7sdsXe5+eNSEUyv9dHEr8H29I49WvfrUe4h577DF37lyYBvDEyMMa54l4EMPUvEK4fiKc18GbmwDneUGmWC9IWIDbBG1scenrlI1gINlfNtpbhRU1fhxkdA9A+C7Od8gwzmNnmkJjIXrbZpW4DZxJzaWhoSFZ7w8//DATiVVJmAXRG8qdWFMESSZhvwCh+ry+SMZzLHeaADRwurUKnLMjnk8eytuHEdhirbxTZpWPMkhTopeC247FqCX/szR0hHe+852CiAMOOOA73/mO84Nl1gP0KMcLHfsE2JXwDqgasENh4x97jGCy6dBEZUFygB0CKkfGoWCf0o/qtmjNGiqJeI8GQWm9IMIzgzjPofgVtCWpINtonGe0Zv+J3jM5wf8iaXMB+Dxcgs/kZbjzeiL6MJj5yle+Ug/x0EMPffDBB0F+IttI6OAo6XHoK8QGm8m0MEpvzrgNXWw0H2A1eIMjX0xvLE5GX4SfTG+RWm6p7HUU81D6L5W/+pZjNd24TYeMiXDe6UXHPJshg4bVBJGGlbJkyRIBvkwLzTdmPsrGdFklNk6qKIrpxQFaMld1HFzmZ0PZ6bO5phIL38ImZeIM6xxAUbcLAQaBazDcvaJas8AsDa1iyuqFJNiKWlZnnnmmIOKwww67++67iaIAy07setuK+VxnHCLy13NNInCko5lcRLesJ/Kg3TkFoZykrhHvAJeEc7DOs84T+AIbuV2/TQPqSCxTmjodfSqDB4Tsm6YEO/I0cb6Z41eVjYkXTL+osOfdnykEZdc4r9cve9nL9BCPO+44+WiAPPSAIquSQmWppybypDjB5Ens+U2B8zorGGt4GRgJ7GJEb+gGTmxHe6vJk1ga5fhWDm3tKH1xXVf3oMMGfBvreBvn2yqYNXOPZhK1WiZaNYODg3R01eve3l6hk+YSpimuMRwYAxpIhaUaLRDmJ5F5DWKkBvYK1DezfzEaWshhkrk/iIYQPoY+CKro103eJuhtxGbp6U19a+HChaQbXvWqV9Fsrq+vj1ho9I7bjlY+Z/Ri4hfjLkASDePfEl6Yatp3 FeugqwcwWcayeEswAOHmMFfeabCEI5AKADbGNKI4yQO7I+NJ7TE/b0VkM131QtuPtnDZlYemI7jEBPT8Ryc1GYXi2lZdjTMFdj7ALWm39FHH62HeOqpp+r+cN+E2PVcdkS9Bn4fneKZVMZtvcnqsIQdQaHp4zwxOmg2lG7BPUB+GQynjZRuL0QvlicLkNrYieah514Reu50cb4DBzhvew9LqRXn7USP5tpYfUBzXliEJT+Qxrw06LxMIozp6t6sJgNgwRK7sHAHE5IQdKyRZ/02kyGKBkJMOBqOCPiQA8V6N6mS8A5dCB2rh4HpcArahlrd+iTqDdrCfvSjH7385S8XRJx22mn6Ouq19ax4tolGLfe3wuDETSASS+sTLXzrekH1JJ/IhYAPpgPhrduNYk8h8mww92Y61kJcHM0FvxNBPe/rmPpphL9mBOcnAv/KqHxAv7s2DWEvUKyT1/yUO6aH+Jd/+Zc0vtFfqYnDE2STJbrI/YHYT/cE4JrVoXfQYQDwNRtnBOc1yGXrQWOrcEp2PzGN9DH72miJ6JM2GKYytYpuP6mOHMZ5M+QrRVJe7IZccB6DR+uaZBl8G1m8jz76qIxhDA/WPhxLsIvZG7OWDlmzHSA4r0/+Ngyv6NY1Hk1NyJA6CB2gbD87LMOPEr91wNOchCdTY1AtQzwCYuBz5sz5wz/8Q0HEu971Lrfm3HQ47wxafJPz16nqXgHd+i9xA0pHyTn+Wxj6DPEfk5QstlymFi2o2lY4VBXfzUayQT6WJMecr97EngfWmsEX2MzD0SoiM9SBzp8/nzYx733ve3FndNOK1GUAO4Q4Dy2lEM2GWo+IJUI9WD5Ws4eWMyM4Dx0LQZ4y1RQTr3P5MPWDtdQu01l7fZ368VYncfIJ1sX5DhwVnIds09pexCt6LKsFmi4COQc6IuGFIimYERcVNFU0JI26GKvAKWEW894Fxe4K53ooY74XdUQhnRUWOwLykWBG/ESngeke4+pENR26QSFWZ0KuQQe89tprd99991mzZl122WWI1hJm3xQ4X2EfleOrhhGC0wnreXH30E8mnmyJCdcgc9tBciK63D2YPOyqel4uQ/Nt5Lmb7c+ttifld5wixx0ok74oiNfMdbJtXYDNMMYSAx/vTENO2V577bXNNtt84hOfIOIBzhehkxTpEm4vqgv0BcYl1B0rE7ETeG+mrtzEviArNqeH8zoCKxHzg3AiDppVXik/hB2hi6J1YIVR2cX57mg7jPMWigGivd6j8+7EKJwQwjseBO0JNsKcZ+20djFjyum/GJ8wAeCTUNbkCYxzDRGxOV4Ct2LS6/SIxpic6YnNC+idmMSVkEiZU6haejpttHp6e3uFAFdeeaVAfscdd/zud7+rvyLF4JzXphvGecM+cRsSgrohvKkzsb5E1Gn/z9SKVxiOBT4W6ogd1yVv4riZVUOxYC1yawm7SsA8hnpg2OIj8FfPnBkH8Fa/ozKYqzp/kkQaX/va13beeefddtvtG9/4BoxNDfZK6KllcpcQ52Hqclfh9jBvif5BRKeM69epmfL0cR7lTBKyxDbZ1inrZjLoNAjaYIBRt0K3kS7Od8d6xyQ4HwPgvABa9SfCNawFNxDHIwZzKPNx87LW3KUtVReiEuR5/PHHhfMyp/UvOgZEVFBUAIugLut8NEujhQ+xs8ykskrDEZwLHR9wI3fp9CVcUNRLSFyyDV188cXy94US//Iv/6JliCM/xT4pGzEiP8c/wbXoHtJdgv3OmrpRB6yRB4UGsNkNzqQ8gBrk40hJQ/uBmGQFUVKBlozgNqIVw64ha582HzqsHgdWKDGN5viyrA0dMfDeNkZX2XGagRXmfYfyNKaiHuLs2bP3339/GfajqUgKsk0F53UriIZhz1tRjd1T7+An2tjWPWc3oeQWr9bw3kyCCbwYTXJkvvn/nfrVIi8GvFMqQukWvBrCibgPXlMml+p9GJXuk1hhr5UTIH8X5ztzgBi23DDU3a0g5uDwxAnLa9VTYaqlgRmMGUmGy8reFApR1AkVxK3fMFHMqHS6EHuGoD3kHL5OyMUHJF/m/QIyiWPsfhOQ5L86LNEh9g6yA8C+7XzIybj2eqGzfetb3yqc33XXXR966CEdJyonb9JULIObQ/U62QedJEJVpLkt1w9j3PQhkiBopBgtx7LsjC4NuhG7CR82qoMwZi75/pA6R9qxFjSfOQHQcpox+bHM/0FSWFeta4yqxb6cZ8Y3C+a/BnnsbUP9u971LjllhxxyyH333YcpojuDwJc5LUTC+bmJBsgPud0bMZssx9RfUc6BFfyb1J4bF9iZCyr7xnKjk7HU6ZvmgEVuoEYwk5JwliTROQdX9T6Zd6hZUG1dNI1FVLQber+L8x04zKs0zltHpYLzzFJ0UDVbELTRGBwcFAjUU+t5QjdEb0jOMg+xEqOh6LhimaMTUGWswooN6bytE1KxiBWipm1+bT2ySMmuer0wSGlFQoVl0o1seo2kAMVNAhm5FSeffLJwfp999tGVYsabBrk5cR4EeDwNyhC8qNkf9SZ3GPoTtCJ9gBwiIieOeulxgwxFC+3T7xS5xSo300XELvj6eR78V3d++jjfzIVXbhnP5uWHSDiObd0FTfAHGLbG9Rki7RpUQBx++OG6OXxG98Q4z7blKrlJcB6oB3VxaTHvaY7mYmf3AUSmxv4FK4hMLlR81K05WgzawJ/XvyTL+FE2OzJoXAXV2awv2z8juWE6xRpmL3tSdXG+A0eM25hsg6VErCbiPBk9FPDoHqJZJEjR8kGmAKtDy4EyWIOqaxWFEi5iAjT8GVKc+no9ydti8LvyqAx+aBG6PAP+4L9Og9lOeRSQaKOUfcHo4cAmq5UoB3agjkOv21tvvVXgQPNoCGy1IMuzGXC+DJpv7E3xkiPwco1E3a23wK6qQWm8niOpVSEGu23lElpz5XZbHK3iUYL8bL4uhdMNnGYF1lhm8CJuE58+Txyoh5eF9wHLkQgSKWbcGdgp2CR/9md/pod4zDHH6GyNkES9IM8Th9G/pEQnH4RZWAIa+i87KRuHbxrxnKhLxjpCGRgGPoqXmBY6GYKcBG3wTJ1hh5ZgjcFmluUE+SmjIMPl1pyIOaweP3QzuzjfgUMLBHFFMHwSnCd6TxU5IIx5A9RT2YSJRRLQnO0ySw0AFBhRgibqmEAnQuVwGMoUYzEOY9MSoIiYzwGdzNXndUDytkVWM2BzwZIn/mz9Gfsa1CXpVDER9V22If17/fXXy5KnGBZCTi2LW05ScjiDw6gbrz0WPPJmkZVMLMVpF4aroyLYHaX1gChScHIkEnsi7Mefc5At6jwwdHDdfN356VfaEt+GAEPchoEIQNSrJ8tPGMSFcppaTJUiNZbVkL95/PHH6yG+4hWv0JvgPDcNP47NC8r6ekEenIehio3t/BTmjevdHFokUoT1jmGPWcUcZkfDHYOcZvaCg0i42MjdcLEx7cI9J5jD5hUtfCe2alnlr4vzHTgmwvlm6A9oxp2FlQYGBvr6+giSANHUjzQSQ8/lUQ5gspSirWjLEAsfU7yReAv2BVzUY4MWBKvYnGWmHeo0dOa0eUKOD/IDTXaw9AiAYOeTfGS70ZKnCwNQiY9z2223Pf/5zxdEvOpVryIN59xukct4N8+w620cjjIRZcteED/jAiukADh/ZN9ifQGfp0rUB2yN7pZBKY4EMYoHS5cu1VemGbfh6/iJppqUoXcwYSiQH1sCqwMOPC6AC45IXD744IO0A5NVjzqEJjzXi71B2gWZoCnifHwN7GNyE4FBN8O6SexN+KrgPPUOUZ1jZW6tVSazHOcRZ4GwKsuThCyZiGZmFuEdmPgKoYjSOYj3VuQmQtXF+Q4cLArmDBMVa+HZIJPeTJwK694AqkJmpCn7+/s1RTH18VU1xwgpACytYFVmg5x3LHRGrk2LEf0WzHWykEXgk0ek9TH1izolmtYRgcH44fz1jv0LSt0JOBDDIZhDx0ABoHYxeDvf/va3d9hhB0HEW9/6VnxwKrB8CTOM5hs4WjeayjsusCKMg2DOytRIF1hb7xEmH+y8QlS8M91A7nZMmE5evloZmKZoFlmd0uEapxfZztgL6km7AJzURemLYB1SRWzWFEmdccYZ2Mb0F2B30CDHrXsCf2a9Y834gSVv3WlXlJi1hSdS5t2qDGaJI29YIMwookn6Cq4xlABLhbsxBCn1CgEp3mHYPuR3iN3hO6Nj1hUl7qghGwBZSKvWWCA9lkc5RUuBSSMVlcMKoKsIzqmZyQRs8RxjEKYM1EHbhyxYLQEo2SSkqEwE4TEyWwfriH/RUnNLKb3A+SW1qnPwX/Wv9cG8WUCZ0AUKK7R/0evWHUY++tGPuhasnKBqdfMPx6w8KvenTFAMAEKkhOBKnCfGf6ZzDrp15ALglphUb6Lj1HE+TrZGoiwiU1PmSYK3ZUKReySRJqbQaSwJ9rJra1pef/31dAA/88wzyUHrUTIn2R2InOgS2BqmifPME1LAALvewYiiTxZRGqhTzjSxEGpZUvLp1AAdpg1BHrdshkHkiI3v81juB+Q/ua5tNKnL4ibrMnV6rP2uUmXnDE0GKuyIb8RGGCa5+a+aaVpWAkysEcwnN9FoJH6mJjMGiYdThCZ7CxwoNgTq4cbo6wjn6ghOJDFsyJUhSlyGADLce34OghlZQku+WM3G0joQlVnpcBsoDmJPIQLwyU9+kiZE1157LYqIgjJvT1sc51tHa9KNOBUJPjLdMeoy/V8k/kb4S5hmqcwYh5n6qDDkR7NUKe+PZj3VRiI3UrJqY5VcDwVKZJGQkf/KV77idmBCNr4Ou+aJ0ElKrycnVU6E8+RJ/b4L1hDPQXHi39MwT6aeWkSxIszUJZyIKVJPspnkXs2x4chUsbk3hJUruFFR4s/OeMyv4R2A8F2c75yxdu1a5gyxdxdWe1nxGjolCLx48WJNxcHBwd7eXk1LhFKZ4bDFQFrjMzhj4TLzKslp1pJAZZlk9JqpkRDtnNDABPDBYVgWNucI+5eBlkmQllAP+8JIaEtBrJJhnme08KmRYQchjHnRRRdRJPXAAw/gBeN3bz2jEj+v2PN4Q8hBkHO0kT8jvFCOpttLBBiPDDPSODO+enX9ZVMmAJgbH//qSj1L09eSeB2sfsrcMF9R7NRXLrvsMnD+ggsu0Gyn7oConXsWE8drZIb8BuF8K+zjR+BFWlID/xQr3QkjCEtMVz0jrSzNfD0mSmXR/fDiIpzF4mKuupLx2SwcGvVJxoJCHV4SQ292Eb7TBjhvZRuyPJ4/roolByQMNDURkNTMpGGlmQDgtnHYudRakgpZmdvtUYnDVCc0ymzErbY1zsfAfDsIK/KwQU58FV1ZpxGdwrNl67MyKYJBgBRjXleEIrE+c/bZZ9Ocor+/H21z4+fqTS99sBGjNW4DY1A3ELclplynfwncVQIRHBwFDEzc37RrWTu5hR9xyYZ9HHEX4DNlioRQH62hXYb6XHg4OtRHPvIRnLIvf/nLVAXqUeInEjwhzKj/2jLfIJxvBFI9/6WQTXNJE1L3h0StZyAWvt4U7ONkYdtj3nM+rlW0PLJVvt2qYGXqfoXlbzG6yeUmuIcxLN8F/A4ZwnlXSJmjWxE9wFmmzQ3d9CjY0cyEttHI6S29AIeHc8elem7AATYWufrSM5yKHtxt06chHvx7HlSgkD7Q6ihScYrVhuEec1ZeBU/mEamGMYFru72eeZtaXPokZpWAXZd23HHHwcfTkeN3I5BuzYN4L/6LZYrL9bWi2NCfgLYNVOK7IVJqViTFR4SyzeaKgG9rHyY8UeVngzy+t4BW2IdQRF6JTBPhNTBZXzz//PNp+3jLLbdQl6pnPZzadpCwQBBsVWpzOZW4zUTg7xeE0HWr6f/ltEI9kX59510VpReaYHqN9Kh7H4PzHJmIKHlbVpDLRlgC9dSPzCSKuF3GzIjedNCmG73pnGGcB6grOO/gPJE9eNd0+oZpo5VC4BGHVDMNw3vysEDke2uG618MEmsjI5zr3UH/dUzAAdtm1qUnogLmOx/n0iGX7ZMvdlcpAh38ilYf64t4PiVXusy9995bEPHmN7+5CG0a7Ck8V3AeBukTudv1DA72C91wF8bqVtPbhcgYgjmxDRbsqUaqs/jv3KES27UZwssGK+ah9wUj/7NZfpN0KswfnUwj66YyJ3XY8847Tw9xl112eeSRR1AAqyeuDjjJF3WG2PNTqZOaytBxUJ4knE4s0c2hNH9kMpVJc0lnq9cAvrNgJlLGYlgdygkF3DHzkXTnMXJ0FdagGwsyRJYe1Wvs+S7Od9SIOO8J1hq00TRDrJuhGSUkFCRqrmKn4bTqM+CJ86SReh0p9KAlJSH6ljkDz6aGaCtyNyWmMSRkC2P+Jrcjt6GCx4GQGksDv7hMgQuK9ykXgl3GcPwf+g0dTmXME9C+4447Zs+eLYh497vfzT5ijspzBefLZDRyM0k9z+zBuRvmVjnZTf6lopnA8D0nRuFtFykDm+U2OaIlHyM/tudJNFvCAtY6FRDwUt74xjfqIT7/+c/XB5DgK7KwACUeCNwhtjl9nCdKo7lELgm2v1lDmBYkSvgMnaow2n+Tm5i7Ksogz8aB01QGSe0iqy0h37Eyd0ljK7EgITYSu6Res/a7ON85wzgPJcxdDBwIdehek2dgYEBr2dLcmE9sEBjzGFcs27IlS1jhz5eJ9K7J2UjSK168+jlIkoSGKO4jHAQ+YyZZ4YR1AWWu0nbKFiDxUivDuHeDrX1q3nXawvkyGVpXXXUV+buPfexj+pPZoc8tnGeDw8GplDNMf5B8wYyPoB2r22B7eg6UqW4Oy5aCIOvkEPBBlYuiHhSAbX44kxhD9NBR+JcYI/RFaGD6LqIH+++/P2KbzFJwnq4x7so0leD8eocNHgpRqe3SgCCE9Bx2i84He54Ny2aMezsSR2JV6vPAeEVEzvl3F5vExBakNW4jLjPrIiJAF+c7YUSch8rFfGiGeljsCs1bhMvouCochnKMp9lI/rK7NrTm+OJKL7KAAIFc5LijQiZ16AT5WZJ4/WbQESVgJvM+Lm0t9fJ29w3HBKgKJ7bJ+QBHxiXX8+p84NcJ3snfXXnllbo0KmueczjvPAjBtJk9OMBCTKYIfX7LXARd5loqVzFXZBbKzMy0Xg0yjEQhiOxZx8zzh8g/0zX2xMHsb6SegATJ9Vt0AD/++OOxRlB6hI1pUiXVUjOF84hym1SJaIPH6iQxTb9v1EeJVeLF2Ce1HDGXWSQ5DmqEKxMPmyrWiVMoHevNzUciYW1s71ZLdcgA50n3VHDeqEuClTCIQENW/cKFC3t6euiL7QZ2xA8rKojxRSVoD87rHa1NncZYbmICzlPzQhcSMzAZUUrLzBzbhCA/Xjwowb7jdJspl2XaRPRfcAM/2tWy55xzjvBh9uzZV199NedjyTWvKSNPvChnOVvTnXGzq4ypsBwn+u4kI2r4bNAXpzJsz8OMZQcExkGYqHXmZxG/Xo6vmytzYRfJFICOzGktN6PhaCO5j0wZ1JNw8YjPY8z/67/+K0p0b37zm9n39aAJwWHrkl9A9WJGcB7yPPZ8mVpQYc+bVMCFWxt5TS53/e/cPY20xa/yIHSjGYjX6XBNtOrruVrQM8T31s4LiTNKGrs432kDnMdiX5MFis3RstYrTGzNJewQQYcM+0WLFpGHZSPAdEQdK8Znigk4HsOpcYZmu7NvBGD1YiQ1gCiSWloZuJFx9rrMipkMYsfqSCwZx43hCBFJtio+WIT5V0ui+oTo5TLQ/nunnXa68cYbLQzFcGyfHcGudMzVlkFkrHIJDKvHcDcc64i3qy2w+yaULRmQykovsiYbe+KM2/NlCnBBX+cECA3piRDMWZk7kqNdbAVRhqshIi+ryIVdOhokQJjhVvH6de5TiQyF5YWBa2x1+DaaS/PmzXvBC14Aed71pHgNaGusTn23qT+NFX8bBOxxuAmvzgd4d0txvYbqU0/9HAm5N1JYHksexxMOs70D1A8wZuJkmKJTyb31rdZBdPB13eB8hw3jPMZDxHmmnBaLFogWxZIlSwBAWBPAvqYuDrL+taZNxSsvxsfk/Rreuw4ey+SJpaM5w08ULVTGYnzHJTCzNSAA7Nvrt4VJXpJ/2QV0HF2IPiyc13FIBBx77LHEde+6664iNxLlWybwuIm5GT68hs8ZtVl8SmXwbuItYvMizV0hBUUkj7GjInRjLHNKzn9lB+RaKn7WDA4UwCDP29QkU8+9RfoGuTCE4Czbjp0J59N73+rUfUBf0ZsQBd282LRwJ18wQuLQdEJPBgLn3LlzUSj6/Oc/r683ErmdXC3TuJ4UM+AGb1wStoLzjUy2wdXFLsKk94XTW4ozofYksuV/Hbr9sq9Bb8BBiCuonFrwsEiRsTJvo/qJdV2c77ARcd5GhSM2zL1GisnQ56Kvr2/BggVahgjCWC1B0xj/3QHw6JW3zkziuvqX9JnrH6l2RNlsIpxnOH4Szde2n7RXaxWRCP66Llx+vSkPRT+NlNlLX/pSRMt/+tOfelvx3mEDybUAse+S+2HZccBrxtEwqz963C4cjnRQzFRXh+E+DOc+5tGvKXMUJToIGNu6HEz6jQLyyQYVRljpFB27bNnJbn0A/TSa5VkZ1Wq93J9aGDqaLQrHfDiy7hXqyqZaMW3crFZbQCPVuwkeNZGuvfZakixz5szRX4WcQl1CQJAqdbuQJp4Rsg0WON17ifmzuzmgxKzjVtCXivgStYpOk8VtS//lOdZyK8zW1TT5iLEd/beL8x04jPNkqSLZhtyWVeWJHMoIEXYNDQ1ppVDfTdCGehmM+WhaVyIPIDAASyEt5plOw0tVP6TVTWsMg3P8ej2E/SsWfpmjJWXITJVBZde2bj0kDbEb9a/2L21kcvZvv/32gw8+WBBx6qmnal+jKV4MmNiDcGFpDCIBIxi0wB2BC3wi/YsYC6oLAPiK3KSVukgiLcQ3vGX8omVUgkjgoXcl7GrhcKwUnsFRJFEF9iMqd7gEfs6PHoeCDZ1pNpo6nghkaJZnwidzg+uCD/NE6KJiERuTpiKHEGAfTQ1YXQx7xRVXgPN33HGHfh3iSpm7wTJJyAQxzzcO2Ft1D8oUtyGtwwsmCRkBxAc0+RHhMYnUpcQOT6GTAwGpYr1MHefjStT1dnG+A4dx3s6jy6NgVILhsK+hssCXphTFfisp0eEsh1gJSpQhukK0EFqjSSx8AJoxOrc2YNrifGXOl9m4taGLpR1xnp+OAmhFVsK0IC0Osi5QOL/ffvshfgWfpEzYXgbrKIYafDLOHVs9rJ77gFAURowCR540BIBvM96YgO1nr4FAN4Ej7w6W66EuyeEjAiZ6E3IUJuuMazWAyTqNeuqXR2gC5Kf2lh0HWixmvBPr3CiIVRBl3T2EgD9PzQ6Cg+r2jwz+kK+eyu1udRDi8JrS73//+/UQt9tuuwceeAAUZRpYBYKQNbSxxtT0bdaL8zIYeOiUbzPh2Zj4LTxlPkx0lO3PIM965GRqSaMPYb3KhC+njPNOFenfLs534ECvEg8R59HkZBZmI4n7yaZ99NFHZYsKNwYHBzVjmaJm2rDuCCw4KFGOR2amGQpOQNCK3EmKBYvxQ6gBxIsm9FTmcz2Hvq2Bg0EIgy4a/DHcQZaB5a/TkJV155130knq7/7u7+BXr1fBzHsH56AL0VWwPOuZ6kZ60YWfWuw0MyVJx7UP54aevm9gnXtjWcmnyIxE/yl2zmL7wJivSENv0Gi7pdazSBrBNzS1uCi976soU7adp8w7PGt37GLDciq2lsSRKJGIv84uUPETR/IA/zkyOxrwqEOhUPT85z//3nvvpRiWNn/sm2XmnRLnmUoeFuz1J6sqZumv6N3pPM1bA/CZmfAW3OvBUSw7FPwJk55OiNDmo8nU1lme4uj2GenAgf58xPnYKBCchzAAwvT39w8MDGh2uQYWpgrOu71skmuxAHZ16MRkRfSYgjTpDrAVRkVrfyq2qJFWgx0HHCCsUQvKNvXAgUdUSgtKv7ho0SJtZ/ruV7/61Z133nn27NmXX345XGt9bCqLKOI8l+DYznDS79W/MItw3p2V0JvIgzv9aogj2Esmjg59bIJlCwgTq2G71P3E83JIfyNwPobNuQqHrTBTOZNGKrQH01YnOXpv9Dgj9kTwcQipuYi1DD2qOGdsBksVudbVsBZ9OlsRHBNepQ7S09Pzile8Qji/5557zp07l6woUMyJIalhnJ+i9T5FnNdP8KCdNcbL0F9tvTv9Cs67+pU/6R1qUuJCKEOEcCNAvuj2DezIYZx3ibTrDakbInxaTypJYJ1WB8pUjVSsh/ofhIpabpRgIWIit4ASFiCGlm3scnzwnM84qlNrKf2Lo3UO+1/KgigwHM6NhyI4YN8iP8LCHBoaEmrJc5ENfMEFF2yzzTb77rvv9ddfz8Y0xaBHxHngzl9EbFAfINPtfkAkJvQCnC9yEqHIaVaQE1odKTnb85ULr+Xe1jDMeRAj02gpUssNv5w7jjloPB1iLARM6M2E21JkPrxvOBlVB20q/ChOkpge8G46q12AyMk3M7/iPBKE1ycfeuih/fffXziv5/i9730PdUp8tyInBfgtWnK7S8h0cB7Lh3igi8p5xFAa1mRhea84+8WYW2a+6ZP1JCvBHYac6UpzO6cb9EC7ON+Zoy3OM1wfKgCUGa9/BYCsFFS/MEs08aBVVOwNQqBYZaxTsIJNAbsucmacPaSGxQDVKpUzEc7HlCgYi6VETKNsydsCpzp/CM+6QH1sMA2KpA4//PD777+fzWuKPnIF5yNHggvXah3NbVwq+uqEOMrMfysCkRKsw55nAzV3KN4N9lAI4djzZBstPrBBmOC7yg4FPdLpY7YbTQkSrxU0jtUBfrjcjTLksu1bOY0ekd957UjgIYFSCc6bmaMBYOrfvr6+XXbZRc/xoIMO+tGPfkRaHAmCWqb6sycirTMVXeINxXkrcKJs4Ng7UG+Dak3WN3bOi3yuDsJdNZcp3sON8NG6ON+ZI+K8VYijJiqMSs20xYsXL1q0SGBIhUs9ids0UiCUIIkxJ8IpVhwRWoODkGFZbkxsqiHmmQ05aBWUINVy8WkMI7SiVvxdAJPQqIlAZQj18+GRpFcJq4FLE4j99Kc/Pfnkk4UPf/RHf6Q3QZv43cnXUcWer+fEBDlH7ZKjuU0S0RswHzXmlbl5ukEPBwf2JvcHvLXZX4YgNr9LFQO3HSHE+gQlV+sdHNks91oWMfBjdS6A1jDG+TJIH1QO6DOJ7lWR4+3xOca/Do/vMuP2MeYaAf56H7jWt3p6erbffns9x2OPPVZuGuFHfDdX1OpbkNgbWVJ4mjjPFgOjIAqvPRM6LHOG4Lzj88Z/2/ZrclMqOzjsZW5BtRE+WhfnO3MI502eN867VdnqJBdQTyxfilww1IkbrEnd7WEAxjr0uKijzTacWntgEBJ1NM4PJz1wYYV2E+wuErXeGrC7XEYUVeU9jB5EWrTWqEZBWi1yj8vAwDHXYkVuq3fPPfccc8wxwodXvvKV0GO4CVPH+SKHnjAaiWkQzUbo/jd56FYTvG2kgmLTVGLQYyQrg2Hckl/2DhI5RUVKTLARm/BThLTFRsBCmYxelL7cVx25ObQfixyHdz6UffwXuWOjRRT5jFkxlYa2/jnDVz0nUyqn5K/H2UWKh36serO3t/fmm29Gie61r33tkiVLKKqS6U5okfmDZwRur9eYnwrO81c9ZVRYMeZd0us+LC5XoQrMtSoUpDgPy69YM59AnDXno0/X9tlFq8ZvdnG+A4dmIFFBjcicp0hc86q/v//RRx8dHByED0OvZM1h2aWak1o1tronmWaOLVA+qcU1Evo6acDKg5IH/rMYrbXI9DZp0JVEcbALEOB9IvUBFBxZvqwe1FccFVmddC91sfp1qBq6tDvvvPPQQw8VPpx++un6ANLfG4STjo2bJlFPki/oKuB9e3sqUwQDWDbOR7uXdIarbrVL6jiAuTut8AiGkwoKIa9WnJ/iycfBmSAfRGLdt1FYRLm0Wbijqds1KOcLZHOPkXYMb8Cf4V27FpQfyvEGvyk3vj/4L6vH67po6/mv1ERVt+jGG2/UQ9xmm23e8pa39PX1EYekMgvfhNkYcX4qUF8ZVqHhv/+VeoXUUvc0TSqi8dwiYjJRoIylZ2UbEjdIf1jZzFx6qFlm7VqR0jOqgucxaBZXYhfnO3AY56HGsWzN93v88ccHBgb60hDgP/zww5pgsTpbCwprvDbBMKLyAl/AZh4WIOrfw0nu nXnleuve0eAZmZCZhz6Lgo2BBO0InSeOhTkf9uBPjjBHARJdMyhNGT4XXPNNXQYecMb3gAZm9LFqcOjcd4FBWXiEeng+OAEpviXiMfiNFaFlk9OW/Axb3Z0vKIPF+FxNj4OC1veJ8CFbzTOA7NwYFyTC11TBxQ6rV271lDvRjBMIbuHxB/Iz5IMRVdtWdard3aVbbpSKRxPBqivJFniqdLBChi84YYb9BC33Xbb888/X0+WoDe6FoQZV6VmW/putNU3AuejMa9/MX54QATiSP42cgTeIB+jPW70EyXBR3PrcyeIgX39BKuJEqrWImvTUMvxAbQuznfmqNjztiWo3RbIr0rNN6EoaEmuTnIHkOcbiY3Dkqkgs4dnF+vRtfBoC0OWprWHXssG0/utQRLHn73A497hweJiwF0npetq0IjzHBlhw0Yi2vF1ffjSSy8VOAgizjrrrOGkS2+u0XpHkSXWQUV71o532biyO0OcmThVzBfbHmYXAwNthcLAQZaNzYK9jwsvUoZiRW7gaJ9iQ3EeoMCxcnAM/Zki9T9CfyBK/bv909o0iE7rTXI9I0mhkdCE7upwkrix7hyX4JwvrkoM05UhGOgR7XkQVTdHN/NLX/oSxbAXXXSRjtxI4jZcDtsfv0h/K4fWN3S0xm1g+7AzMtuBYrhG1EqghOClZ6PdIR3304khnShluSYJLNCXirCntUkR5CxD4MtrBxLaui7Od9gwzhOfHw2d+DR5enp6KH0VyiHcirIrxYb0O7Me1OQ4D/qtzC2Pzc2gmB3Ew8Azo6BCJokHbJuEWpW6ky/LTcaNHuAesZcKztdTNhlPH9jXKvjYxz4mZ18Q8YEPfABJhEaSNJ+6SQzOW5WdIAb55XK8ZqxJjyRYTeyxPQ/OYxb6Koz81swhREOAhQAI33IGeeNwPp4ATwSsRryFOINx3mGH2PXVsK+Zw9YmvIqdvmOYYk1S9MXSxrx3RYbzratys6rhrKTkiVFPJW+az4TILrzwQjrDXnXVVS6FgzbAhsVeSSgS8Nw4iZtKEhYnl0fmJL5ZZDwyNhqElajeWpMrYZ2TjS3ejPaRtOMNopHEc/wry7OYnrMhfqBdnO/MYZwn1ooUtl6vSRV8sucfe+yxBQsW6IXQGKiHKqBv1ZOAPCy+SkqUGEslgYhBa4WueqagkOMrk0VN3U3FYgcJI863HbjhFajE1zC0Vsw/CmRoI2U2ER1FZdJfffXVuiFwJzaI3tCK8yTRDMLF+JgD5jf9PY0MZWjkYaUv3oFMaEYNCM9Wwk8QqLdG5UbjfJnlo00E4j6jCaNp4I69LvKNOO+kLe0/cElQIXN3b3/dYQrLpQJlsF5d6su1M4sq8m76GAxJwkTapimS+sEPfqBT1XNkTqJgpg/jUSJizCrYaCmzNVl8DHEbkNY0SO/1RYoWPpVbPhGz4uRJFZn548COW2GuybLhMXrvAdpj4UOFdUk4MXxb+F2c78Chtcn8YfVpFjVSbSPirrjVsjMHBweXLFmiSWJimOaz/mrWNHaX4+RRsNf509ie1UIEhCBsgjqm3eogrBeRNLcRTixCzWaF0RFHPenM4JjoAsF5/Xv66afTOXru3LlaOFRiVug6lePwwjUs7F+23lnjGFqVcFM9SyJYHKAcXwUDYsNU9M7FO+AtbExS24BekapiabBun92JyzjW6yKB8wT/OSV2E3tJVFIQinFMPsI7+L927VrNGUJ8lIi6ELg5fsR+35BOYX9hV6zIvWUJiXCT7RjCkISLKFeU/frwww//yU9+YqYNQkw8BWJcmNM2qtcL6ZOT5xuJpaAl43hUrOeK9IPYP9efAZAp38NxtrtNxMY2v6VlY8aWmA8bFjI7q3LjSGdsdYYWt9Fz2dII1B2bY0Scx6ZCiIksYZks3nquZ3ToBkVZaNUrckNPxhO5N2WkxPCaiKsVDsEZsH0qON86KohElNtdUKdivmI+YSETQhc2/smf/AlFlP39/ajxDAf1xUmGC1ioWrXYAusaJPdxYrQBnI95W+M8bEzMaW8Z2OqQGEF7uD2O8BDCiknYtvb8enG+SNR9F7UVOf6GdR2buqJOwIRBXsCNM4Br3Wd60CBcaUh/dvzgnSg1DDsR5RwHCb3plFlagQ1OM1n/6sHdddddp5xyCsrS999/P5ENkvjgvIZukU7JovEzgvMQGIZzZ8Ai9xmXmYTQHHPMPCuHKIF9Vgf2EiF97HwDvqP3ZulUOufiBxHtIeSoSb46C8Rpa9Oh1iWQ7+J85wxwvkLi1VySNbhw4cLe3t4FafT19WkeYuojxFFPdLtYHlWGDKnDNX5BMAG+GbiBncm+EDHfON8WlCbBeYRxXBI1FY8Aso1OQFfKriQwoaPoi170IgQVHd6faOOIUMmaJYIE76XIjZasslW5IkIx8dqN89hjcBqN87gtLhHSC7ZRbiyf5FaYbueYT9vzn2TUskiFNSh8Y+Grc2kYriuzVL43fRf1CPyLJGI8nFqm6p5bTCl6Ac7kjoXhdGSRolsOy9vD8u6jw2p+0kFAs/fEE0/UczzppJOE81ZVJTzOhOQWVdB7+jiPwI6bQ4G3RJ/gwTKcnHW00xQ1nvLK3PsY5EeogUyZOyBXAN/y/tZG4zO/Su0XaWjVjdt04CA+z1KiBBsPd3Bw8LHHHtNige+nF4J6nFySTeSziCvWg+ZwDGUXIQ/rJbkyCTlCLJncnp886tI6CDH5lNb7lSLplq9JfRyE8zICif0eccQR4IMuE1ioZf2B+HVnDWpBaYQgDGTRlbmTRZlsTggY8dJY12XuutIW5ykfMw+HsAnkeZcMO1zPBqpPYhZGbk9bez7epbZbIRsQD9qZjnh65XjpSIcjACjHLjhnuns7nQqLpp5K1QAuSwEY5LHnYeYzeSLOl+P3SuTc9UNDQ0MPPfTQi1/8Yj3H17zmNY8++mgjReDhWxIP5wbqQhxvmRGcx3jWibGmYuEzi4tOxGC+aQmEbqiDcGoeN5Bw3NKlS9nuGTitKJDghkQ5hYj2Nu9dbKszWZcRvovzHTKM8471wajs6el55JFHNA/1X8oehfNaPpp4tOSAIYn7aVuxYs9HnK/lKkhCxytz3wRHM9aL83G0ta4hsxHenArOo2yzJtXIE2PR63nz5h1wwAHCh3e+852NlDrEjhppKfhtxXkusJbFdZ0G5U3B9UQ479qB4RYBf33FVEnQjFQIGwfaj4BnxHmMcJvfZabYbSjOx+B8fLitH66H/jJxELjghvhCoJI64uSSCpyglVmGlyI1p3GtC7E6N/6Ov66vaL/QE9T90Vz9zne+g7L0W97yFn0LzjnRM3DeqnGWL5spnOdWW8HMexapCsuTEldHh6FIoTbyyyRfCOyzvZpPNZz7lzEHLOta5gR0VLC3aFXsEAc/f11qPLFuXVd/vlMGzdTY/eHbMFEXLVqk+aYZSKxVc0YLREa+JhXaZUxF43ythc1uKDCY8Bk4IfoXBh3H4cPu1hoBqgw22ySghFOvcyYIXFE/a/stcF7ggD2MTsJNN9200047CR8+97nPoXwYWaMVbIzsnXogXlKvhMzg6izhC8U9HmckSxATiiGXGndMcJ7aoiKL5PgyrTlsth7xnCIxw9lJbXi3bsG+pfF2xeAMp02XkEqxamUbrbzvARRb1EIjPh3/4nDu3g71lIAPHooQFWkI4SpGeNy5KjhPNQTyNd/85jf32msvyLFAH2eC+I9Zjvqw7fmNGxWch6KvCwRabc87vxwzzq4po1ZXWE2Ai1AYQTCC6s6D287nFjF1TXurJ2oB7bRckNVI1VUEykh2rOta8h02jPMamnsw58F5zTeyP0xCTTnhvGag5kw9y+hZgpLskptfu7zFg8VljQ4C+7jzzsnCfo+mZiuetKK3ByiBeRN3iooV6mFY0HX19vYKmXVWl1xyCcU1MggJq1ZQ0SWZxfharXqIWRmcI87D4vPV8T5p7hjPtxnMzojQgePz2PPgPP04zG9fmTt0UEjlnZTjkAdxtCTiuauNohFehLSCHZPK42gdE+E8SYRlWdit3tLMtz4+pVLPerwUNWuWCj8dr2g7wHlsEj21z3/+84hVXnrppZCCgEeMk1ruRIM0wUaDfCvOU6laJvH5iPOTj9juFv1AGJLoPLOhe9LysLgWtmDC/k6O4OUZ8B23IbOmH2Ltd435zhmylKiEZa+nVkXg09/fv2TJElSIG4kqNjQ0JDzUAtGEoSMPlLDIsanIEawI/d1+kdtkL126lLJ9GOPEbGFrwLqMuwPefWSdsWXAz//l+MHPsYNEBKuAmJEBzSsNQBjdmLe//e3g/J133gl5u57TjhHKypxv5ZRwpTmrJ1MrEGJTQMpIUncE+SPElTnagxaN052RY4/Ntir1paJGie0MMx4uELEI028Qi3s69Xm0WS6bUA+Up+AKzafGD349BtzI53qX8d2r7AgT7bzeDdkyhkMH89r4+h0PPzti10XqaKOZqWuZRC6PX6eVALvhO9/5zllpfPGLX1ydOibwc1bdZB8h3DGDOE+z71oqB6OVzOQI75COc9AuLuAdHRCimnf/elbqw4mrh9Y5LBmidpT96kzMgMK812G7TQM7bRjnmVQEcPSO0IDcK02r3S7Q6wJjo5KEZd0V4yk3EDMsV8hUtBfANgHxwG57Zb8gcsvrqIUSB8X4ViN3HMAWLLFNC/yy3slhaSlxCXrzzDPPFM7vuOOOjzzyCPRRrgtuSawFs8A7vwWEkulDY4czMREFTjXLkK/AtbCTvjIrwnG2jufoopy2JtbtPCxXB85z39hoKDfDnNb5YxNyHIdHVuQGT5EB67IjqDLEiPQ6xuenaNuX40V16iFANMnX/UNQNx37ct1ZK8jXQx8BfVI7rObtCSecQLHbddddRxaGp/ZU7nrAPXTHnBnEeZKn1DRVasdah02sCPWgPd/VFOWJ1ENCpxYaDbTdfD1P3IxeX9Et0laoBd7F+U4b6M/btIB/q/mJxa5JIjO+t7d30aJFMI1dPGstJuRVzcm0mLaLsl2vx0KI+n6ktGRs/EcaNE2u52BLfXw0vjXUUBmOF4H8AFrFZLV7S5CEaKoWAmQYXebxxx8vfHjhC18opwMmHmi8IreadS0Arw0+ljUgrUawwpsLXjYn5kofTEriMKxHh2QJxaxIQkCcG9dCVBkbm0AT1BoT2lngvChyRyosfP3rrRmsc6mO901+YnnuJ+I24rb/vW9y5FZgj8MfqIXuGGTt0QuKXkB89HzMvB0TTky2acV5O566G5qxhxxyiJ7j/vvvf99991EKxyMgADKSFYmnCfIVnMcw4ImTA10vzsf8rOsFYjdJLQoMgOgJFinPRRjQxrx9QN9/Qjq2AXCxdZ5dnO+0EXGeYUwWypkAtjrp0ILYTMtIfjMLmpy+OV3uV2JNexN9Tff6v2HwGd6EGBy3icgcq+h78Kb5EtQ2+jUVK4hH6V/6TTAaiSAKcVQg/+Mf/3i//fYTPrzkJS8RqlAvho+A+Az7CL4JlYZYSuQaED3jlKDPkVmD/6YX7GWYVY7bEGcwflIXz/4CettcX5mFLnEWaKRugx/xLox5feDJIALGx3iOEZDLEFoxZjrNx55i3g6xFwfrvI06eEWUIFrvEfDrWZmtyIKK9azh4+C8A2K1UAYFWOHKte4sPmcYv5iy2pt23313PceTTz5Zp6rphPvJxlHm7uTM6pnFeX5FJwyDcSo4jwRQJZJDwEcrpUy5eBMeyuzWuZJxEv+oyHQvJhgPSyfWxflOG2vXrnV9Irl4TS1NDHSfQFrcXkZsguMKF4tmR2UqgpOe57ZY+K8FbOMRXBRpZ5Z9ITq51veIJOFKx8Mo8edNJL42rxg+M/lKLZOf/vSndKY48sgjb7755nnz5j322GMDAwMCGYL5rtnh68jmV3Te+C3vVi5msf4Jn/GfbG3CRSlzd3KyhwSO9D59XvAU7CMQ2GEjcENeQvH8l22CsAzBjTJ0pigSRxHaZzFeEahMoSpcEp4jBXTe/Yez0qY9AjwaXI9VWWEYy99AxIUY7Yucv67sO/YC+CvcUViprYPT1u0i3igP9N577+U5vuMd79AHQGA0V3V/IPfqaLSFrQReNgLq0ZbhUBxcd0bPrgLgjFbiTWXEMA7VYSQmePTcRp08TTzXK+7RivzdOqkOHOC8J5UmId1DNG+FP27Bo0XUSLKu1GVgJBPbdNymEuQHEo3kzRyK9PCs9q5hByF+ZSx3ym5mNoKPHMHfsaNYAx6djmg+eVNoJHXBMgVb9PonP/mJwGG77bbbcccdd9tttz333HPvvfd+4QtfeMghhxx11FHHHXfcKaec8rrXve7MM898+9vf/oEPfOBv//ZvL7744s997nNf//rX58yZc+eddz700EPyC2A1O0CBPb8m61CRAYlBrUbqf1HP+hJFKuBypMv4Q9DMpiPsDoocAV5wAATGkKN5NNY+qB6NeXv3w1m33FBMVB+h5kaqgzYT23uxOxFADmEnKnPLbxv8TrtQ2sCpglq8s3q8Ao8Bvxa0v2KIrAJc7Dvss0+ndsYXXXSRnuPs2bMvvfTSwcHB5UlPe00q4sapITa1SXFeT3wjcH4sS/fzWlOFPbTI0pf4QVbJKNrRlro43x2VYZxn2RKfJ0SDUYr9RsUi5N5KtNzWLNsBA0UOO7YVnVXC+zZ9+WvFJgei9deI56wCOyC8YxJy2xHR3mEl70RIhQvNYCredtttkPHQn5/i2GGHHXbfffd99tnnwAMPPPzww7UjHHPMMSeccMJpp5127rnnnn/++YKdz372s1dffbX2gn/+53/WbqLtoLe3FwIM9EvSiFYXJxLlve+ZoFgVB1q7hFPgZHLz9a+vUQPeTmvQo8zVrLVQ3+q2TW7+xQbBPGkGkTGHkaNSzTOpGRleEhiO3p1Vl4ne4ImgdBRj/sSaYpgCcIYU2hbnMfg1Ay1K+eY3v1nPZeedd77xxht7enp0n3HHHKEiuT9TOI+zQKhzdWoNpqHzacu3Wa89H+PzuiKcNaJe5NZrScgOElTbZ9rF+e6ojIjzLF5QF3xA+A6jEYEO2O8sf+uZOLNptVWKKHnfBd1EG0AV/H3HCgwv2CREsNlfQC00Q3hNpwbexL9g/Gr88J5iU7/iUKBIrBNevHixrL6BgQGZ4t/73ve+8Y1vXHHFFRdeeOHb3va217/+9SeeeOLRRx99xBFH/MEf/IFsexn5MvVlK05xF5g1a9Y222wjH2GnnXYS8mgf2XXXXXWEvfbaa999933BC15wwAEHHHTQQS960Yu0R8hleO1rX/uOd7zjox/96GWXXaYzueWWWx544IHHHntM50ZFLRIxXC/FL7oQ7F6IhWyyMcZbT/oJMTZSD6VGtu0dqGHjQAyNogZ9XbPCrU4xOB2Fq9R7xpSiPikkhNs/EsTwXewwkjWrHfMnW0pQCHOCeVWbWKIHcRv2F00/FIp0Y+mHgvq07glFHEVS29ABEaufKZxvZMUwXJiNw3lCZOB8M4m/2Q9yBpYY3aqsv10ZXZzvjtYR4zbNrD9vJ50ItkMEw1kuHhDwwjSD8ancCRR2BChheiEZQ8DfTU6fyE2R2D54DesPsof7JZF2fCp3HgQNonaWOZYOX4+E5uDOe+KACBLxL7g0bEIgFJeBDiMYafqKfkvnICNc1vj3v//966677itf+Yqs9E9+8pPC5A984APvec97zjvvvLPPPvuMM8748z//81e96lUy6bVBHHbYYQIcoboQfvvtt5+6mxCHdoq999770EMP1QF15L/4i79461vfql+Up/CJT3ziM5/5zLe+9S3dE/Y7ljNZFexqwtG222OohOWPU7AsN16kJxdS0ua1cnDgNCZNosjkaBCQ9/u6jRB+4HKvzp1K9BoX0pVBwsZaUG5kpukFHeHrLdIN9Uwdx1yHav7DH/6Qto8nnXSS/kSUjDopctPUmpk8P1M4D3MMnNfVaYJtHM6zDAnaEGJyU5UiyyPgHI206+/TxfnuaB3CeVvyo1nHzDwZkydZRGZu19opnDBqWd0Fusiy1KI0Shx4oekzZVZQwStHWZcKI5Y5GwG/q8WOYcl+wWdQGIBeQhCYI9CC0OxH8yFNicSz1kp/Oon3wt7XSRIzQbubGDJRUCQgYPJQI2wSkeW+IfPok1QzoZooa3zu3Lk33HDDN7/5zauuuuryyy+/+OKLzz///HPPPfdNb3rTn/7pn7785S8/8sgj2Qtk58vm32GHHTYocPS8pJb/8Y9/vJGoqoRE2Bn1L9BNfDsWFLCvmeICx57n5YoGO2hsxNw9Ak34DrYKaBQYzfhmzuzrfkLdMfEPyq5uVwz7xAAddxUU1XaAqWBRCA/vVrrnODU67Je+9CX5ULon2m11wkA3zHlwvkgSGauSKN/0cd6yxuyqOlsInEhWrpdvUxmRk6AbC0sTT5k6i5/nsTx3PXYiezg02KrshkWgVHVxvgOH1qbDrURW1yQZhGfGdx+mywNBmIksB1vO6EYSqDGdD5wnjFzL0kyYdvDGmaXmflOkQ02fi0zxYZ/IHa6h/y3L7ZYIC7gwFmQgKWkBKAcE9Ekgsb+/n9CN8FD/FknYSgsWrMZfiARCXlRo+XYlLMClFfpvebglKMkLWrzhmAwNDfX09MybN+/ee+/98Y9/fOedd95yyy1sCl/72te+/OUvX3nllZdddpm2hve9731vectbTjvttBNPPPHwww/fZ599dtppJwCNINJf//Vfsw1hPP8idxh3LxjTb7ixsDRjvbw5LexutdwILFYlYGm7us2XDOyvyS2tgTg6g2v+sF8T9idqR3oXYflK1MIJF6x9hKMnEj0A/PXr+jBuixwcPCC5PLp8Zi+CG6tyKwFCRoDzjOM801tzYCNwvpnTHLRigZBfy+LPPEeyG+y8FCaYRlWOJ1jGuqouznfyMM6zslinDtQjgwAVkFohELLeohhZZI603geTjfPUcrLQwHkirnji4DwyTXyXQC6pwxVZbxxrE90AKoOAF4jQMDGKrPSFFYofUc/tv+NOVCZ9PwEISKu/6t9VuU0JNmTEMcssAHeuKl05frioZ0XuThsHcGqdBPYOb0PsBeQj3PDCzBy90JtWcSfAMjg4KH/h05/+9H777SfA/+hHP8oOBYBz5pZKq2VJcydTiLDZzaFR71O5L4AJMH7QDuO7wAqfq1JRuzKp0uk0SIsIfnVdXDg0HoIPBPwrOG+U8xBO6sK5nFZ7nsFOqt/ST2unfs973iOc33333S+99FJd0ZpEdrVMBFlgquQa7TQnp4nzuK7g/CTJ1kkGW0MkNbEYdRvrqQEuRFz2SuyWmP8yl7XWIjHK7erifAcO4zzOciPxJJtZLjvyZAhQk2B1gswmny3AIlGUqbtfldSrjPOsVj4DyJRZet3SJU9kbWFIBdBgsH5Rta1nlTBAjFwhaSm/A/LAUjDO14M8CDivoS8uWrRIX+nt7cVGIp5TT9piI6HpTyWgPVEKjJSiLWRb+94gAFu73k9mMRy+QmDkiaxSSAqDqIt1aSjI4s7rGV133XXCtF133VXGPyRYDlWJrfGwImhbxgEniNDW01kFLl5pxV+rDHYQV+Z64+C02fvwFKwdwW3RpGptKRt1ADDsdUXLkw5za3zeD4L2GXqxZMmSN73pTcL5Aw88UG6RTgzoJjwYcV7f3RQ4TwhlZRIL3Ticb+aO6oZ6XlhsUH/SqoTbw2xnOuGyxXQV62g4t5spu/H5Th0xbkPWlbkEyFNjyAsi4cwl0N42LcahDVdmHRFvpPaw202NKxLhoYLzuANgAtPSkuzEgih7r6fm4zQDxc43HhKCpiyUpC1YZ5qHvdcilclDwIBs88gjjxC3QQyhbWwq/rcV7lrx08PvgJ9Ud+r0wD3CKa60xX0gtcG+Q1KDHdBVUdx2He2SSy7ZZptt9tprr5tuugkhZVb6SJD8qrcTpSxz5BYniOiZkaEYX0HfakV7eK8fyUJGWPvkSjD4ya0zeZgzCJ9W8G0sDCOeMJxH6T06Dq6FAKOuXX4ZbaRe/vKX9/T0QKrXTsF9xpwgsse3NgXO1xO/XedmRbINHaYzcQSHs5rZ2h8br2bMbaG2DgGQWLOG/ePH3cX5DhzGeUIEAgpWmWtF1yT2uyYPsQgXoXv9QqoB2+n0DVuDYGnE+agSALUGmge2N2BiAl49tyBBf+mp3BMQ/MdfAGRc+I8Zw5GBRLKQRCcqoenh1METEpE+I3teIK8LZMESEZ3IdJ8E5+OfWm3gMrf25u7hg6BOUx8v1et4cpHojvgXbA1l1q7HQn7ve987a9asfffdd968eVr7SH4RB6tneQHQO2qI2UnhDOPB2RnbXmnc7CpvVj7vT5KasYYD1FA2FAFOJQnrWM1vf/tbwvuamWWiu0ejtLLL6OcEdwQDtdm94AUv0MZ37rnn6keJd+F0cD/JDui1TmzT4TyBxLhhTX1E/pJvTqw0bGZPx3sB5dXPpD68fMytE7yrlrn0rIvzHTjAeRfyU4Jkpk0j5bBQ7iUkzioucnsIIrSOzdpsoyCUQASsAGI4DqTzeSh/kGewCW3csrpd3UNul6gCv/jL3AcWX7Ucnz0kVMK+A8L4PIlq6hxY11CJ2Ep0TN7kaJMYsZOM+viwdhwu//EtAmDB8xhEJZCi66rncNPK3CLKkjjEhc455xyZr4cccoi8Ej0+YmJPZiXhMvf+QwxtZVasdYIA92FF6EI+46PI8jhPJU1Rl2CUKRWOw0ihXDOwbswwhL6C79N6q4uUAm6kumZd0eWXX7799ttvu+22H/nIR/RfSuEwLRzv4sJRN2qk0E3U1tuIQQ4Lx4GNlSSFgXeTjgpb6dncRR2019bjchUuX+bcui7Od9iIOE9nSWx7HGEzKjGDLa8BjaTMxTUWOQRFsaJ5B/uNyC2vwXniPA4wYmsB5u7QwfusbuI5iAnwQ3ij+mmqSol1uI6+TDYqIVlMaKeoSODSS5Q2E2Sc9f7SpUuRPYySXBs6JsF5kx/YE7l1BN4NvOxQZr84icaOYCjGVBO2n3baacL5ww8/XLdFV+EAhb0D8g5wJk3CielX3rS7NLODx13PgjlsMWRnVmRVZ/Y7fh19ObP09ZgI5jvmVrnVZWrmDglTz+7CCy98XqqE/dKXvqSJ0Ugp9ZEs2gnQQeLiQf/+4TyDaI/AXEi+JslBEMDXxNAJ/780WP5dNbNOGPDnrbs1mptIMu1Jwmop2SyvhG3rQVTcJEYCOMhnOYcI+KMwAF0EM955RtCbzzhBCZ5jg0GhqeXWSMRz9IscGcgyh9CYZpe/CNlYGg/p38WLFw8MDFAM29vbq3+1VHXV00G8SXC+zCGX5bkTLoxosx/N8Ne/3CKHyFAns3YxW+q8efOo/Tz66KN1ND015zuMrk/mRo3cSeLn5AvIlcN+cehsBkeM6nCx+BqRIsIL0rWcxorcnoZpEMN6bQdOAQnos88+W3djjz32uPXWW3UEzWTh+aqst1xm76aW9C1nFucbuSnD1oDzRntekGLTiek+VHB+SyNQd2yOAc7bmCdoQ3C+kQSaMAZYayMtPZWKwNrCyMeexJBelds/WQR7eR5sAYDbv+ZhxGONUw+LuUugA5RzFw8An1CAaX4+CCW3lFISsmAQDKeGUZ8ReAL1GvrWf6bRNkowdXCbCOe5b0ANG9ATQUfCdE3sW/5k7grbGZ/03bjjjjsOPvhgIduJJ56I+twvc9NA47wDPvXcprCee3ZDaGeMtGvVNM0RJwkXy17M83K+psiiNzhlT4U+ZVwp/l1bqEeATo9Sn9HdePGLX6y7sc8++zz88MO6FZrVui1P5jYu1GtA6G3k0PrvmT1veRxnbPUBWfUCdq10naEW+Lpu3KbDRsR5piVBG5psNpJGJcuT2AK0ChMOnX0j3VZme2l5amltg59Fil3Nkjf+swUA14gkmMkT87x0kcbW5TWhJIx2+JbOHZAs5iccDzFvnCQgqssY+bU8BIN0OR/OHe42DtwmwnmH1kkKw0HCE+HaTY3DpoVgaToTNjkXBXDddNNNsl2fl4TWyTmyKce4Dblpw3tE4HoWF3JCtjJi1nXj7oZnSJH1c8zeJ4Jkphb2vDUYmTZP5iaJlfyFhx4ZEX595vrrr99zzz1nzZp1yCGHUBZBnZE3UG6+7jZ/+r3E+db6YuvgkbTVv+sywneDNh0y0LehEseF/IRrzFV7Ive8s0ANPHBWGZgGNhIwZ0eACFEPFVWtlAwTQogtUEpDBRNFQyxMayDEqhxTaHgBqnMyZpFFqDGzEdE/aBgQe0gN6Oe0VHX5 Canb99WLtbXC9SQU8BWj1a9g04xAOXrBRLZBXTa11133XbbbSecP/3003/729/SLBsmj8+Bg5fju7LaEYtROMfleGqV+pq2X9nQe1IPfUwws3HuzABfliXyCLbgzZFzb+WFlmkGUoeriSqcR0HozDPPLBJ1VjO5nqlKcNrJ++vFRqN6W5DnNeLMmxnnN3RonrjPSBfnO2TQT4pC9ciuJHRD92QMS0gsGGP2vp/KzaPrWTcVFHJ8O0J6a5GO9wLoJXpBVUhzvK4asF8RDViRB3VGACZhGexeV2/xQ0Yn/QqqUzr/xYsX66IWLVrU29sr81IgrLuB9dhakrOhoy3OW6eXvYkXxl6HL8gXu/bWngiXTDRDF2stl/e+972y0NAgAue5XnM4W5G5aJEut0NUC6LTq3PrE+Jyq8d3pPIn6+2KmKYygH08FDD/Z3nQLcU1VkU7nideZ5Hy1JdffjkCoV/84hebqbMq2SVwnno9RCFWJzn6jSNSTo7z3CIIVFHtbesZXZzvwAHOC9Wh5gLviFOh8oqM0kgWfnRUxAQbLC6g1dV54Eyswmu1/Yx+pFlXpY5mkIExhKy6E9uFmB2Eu6ElhnqYBoJmlE3FmP/yLIYGYBaJUakliYWs08CAHBgY0KXpDuAaTD8p2Rbn2dSIgw1nDbdoM9tsjiT2MnTiwxjGnkfLRch25ZVX6s7gfLnAv0j6bNyBWq5f9g7b1pLnTWrcSK/Yr4n2fG1iIbvJR8VHqOU+VvWsu1hLZPtVWfvU1RB+iFCSTKcn3sJVv/vd735e6h0wZ84clM3YAqD4QiTAN8R320Q4r8H8Ec636lVu8dHF+Q4c//M//4NCe2TaAPUaApblWWSmFupuWKQVMwzMh6HnmusyWPIV26/IGnrGeWGsJp4FD1397aSSYd9vWvBQb2LS2/En5AtWOAaOhAt+gekrmNYIIDQSqXI68XmPtjhfphpebFSqUMH5+DEDbzSwwW1e1DNv/MMf/jA4f+ONNzrn6EpbYkSmWZbJPveJ+XUcBL5063CRDLZUlrm8t8ymvk97irDfepmVNw3+RRYLfSpL02NaWDIC8j95c/50xhln6G4cfPDBP/7xjyHPwx7HzeT8mRXUyW4KnNc9oUBJ569l1cX57tgaBjhvIWJse2wkOAyAoZVRiSoYJQzUDqWaVInpxYcrMdUy0KqJA7ObuHTF3fF0SjrDtWvXIt/XzJ0smLFxEemT4LlJ5v5FVrqlt4ZTt26MwP7+/oVp6AU0DLQNa1n9cjpjIpyPpWHG+bZ3qTW14bgTN+d973sfOP/II48gBQMqgjMUf8FThf4ErxKHxf5CDOkgs0n8n5OpZbHEmA62fJYdvdW52+Dk96QSdTEpN15vxdr3uWHqWzwNL5Kqf12jHuL++++vu3HKKafIodMn0Ytmb+KeUESs11aetyLrDOK8/uWcKfjdMmg+8ejifAcO+jtH8fk1Sd+PoM3KIF1rMQHsQzvO0VZ3SGdZ7lgBpxFH2ws8hnRI4CKYY8lf2BE4v+4bRVsryzlSR0ONvM5fRh0aC2WwUaMH4QByPXHq4M8TrYWpXs+CJ9H1iNBkB6SC4Uatemj6MBHO11MqUKcKfxLAL3KH7koEwzEWnwwpb6xQ4ep5551HWZAeivZr3QQ7XByEC8Qm1/7rVK8D/o75r8gq0BjzeijwbEEq3W0yI8C+We5MD+v9en/xDYm3rtXgr+wLPnPf5PgUypAFGMk9bekCo3P4p3/6J6T4zz33XDapRmrwxCeR7ADwVyXleaP0jOA8gzysbhTX27bPyKYeUSGBX7cuHG4ynPkuyHfUMM5rDqBCbJwn2OvObjaliIG4ihPjOcpk1ZIuKzakAzvLcgcoQgomW9azrhdtATX0u0ZUljnSZKAKuwxbAO3zGon8qY8hhgzIVCxhwyZuNRq/Dj7rKzRGRL8dtKwYk4bfqRirrXvBRDjPi+HcF7sS2opRsmjukpgWGr/mNa9BmxHmJEW+7NG+dleDEu4YGa9UbD15oJ7npbutO+nwciU5glgiuuhP5k7fsTwhpr+95dnyn+ao56BfkaJMPC9d+Kc+9Slw/qKLLipTfpZS7pEkXPZUaHwAq3ZmcZ7Xxnm8VCPtZh6EMWnyon81H7CRdJ56fF2c78CBMewugeYS4/ASuDbKeclg4ZsFB/PZYW2Wv/5tpAgMncSJkVoDh3gp9io7iH7anVuRYCWUhCSym0ytaBlmmNNwio+5RCtmkMF52kLpT729vX19fUNDQ4sXL16yZAkVVSNJltwJaO9NI7lFNUyemEA0Jpfjg0W18X0fDODgPAVBhMU84smzt8ar4JhCEpnuuqX33Xff0UcfLWQ79thjH3300UWLFtEOlViEz4dzG8mi687FuCW62yOy0+nI4GRsEdUcHyUbC43XgRFsbFeeEthxEW704KYzoqnvfY1LQ4542223/cd//EfCj7ooxBs5K24giXjM72kifAXn16TWh8RtaIC4RfKwpKsc5OT+4LjpJujh6q/rAnO+i/adMIzzMCqxBjVjNVFdch4ZF3HRRR0zCw4AUwTbNdN+97vfgRX8ivCTb1HaifWI76+VYngnjmQ5JhayrfQY01iV29RarCwmhdmGrFEJtAJipJj1yYGBAYHkggULBPsLFy7UO/QfR2yH1K0rcFdkrVcDvou/KpGcKA5ZCUcQn+dktMVAKSF/HZnzvwgD74mh30Vx7p577nnhC18ocDvjjDMefvjh+fPna9vSMUFsXQI/55oCCv91P1GDtCYkjacdpTHJVr+ihyLMbOa0SNRLdBI8ggxdTTFrUS0z82cGcd7GPEa7fkVP8IgjjiCENWfOHMQrdPJlynoTBsRjeiK1tZoRhDfON7KOPUUZ5DiKxJ/fIva8C6OQcUM7iIaGehb6U0SALs53whAOYz9j/0Cep+oEarpjsA7I18enUx3VIT7DEGTpTzoUwmggiXFAb2ohQP+zvg1GF0VMrF/asOpkMOMrBJ4KG58RmecORwCkltDRB9jLWKc6c5n0JEP1J5jVWrBFrtbnUJG4bikwbg7xCmxXLHAoMTFGXYZoMzjP6kPAmYPbGxoOvavMXyXMzu3VLqy7KpwXrAncPvjBD7Ip6/NkGMl6uMGQvTD9OrJFbg0JhdUWIJNBr7Ujcw76Ci3RncdphqLLinYuOwXxCp0JW3kRupZMc3gDtWumJ6UL1x536KGH6lYcdthhN99885OpWRXBKxxJHEx8NG7RzOK8DaTVuaG8rnrzI3wzu12uba8nTZsyEVApY9RDj9jexflOGOC8jXlKyBuJdeyEXeTJW/SPxQu5rshFlObVCwmxHnFjsT8BfMCknmpg9XXq9Ikbu0TIFD6wFyrdytCq1XBatIwyND4uxne8ArH1o1wj+4g+IJzXX9ngGomTD3GikhBkUyMlTZbZuemonAYj0XZsW3veosT68NO577YzAvZWfP4MAjjYsXpe3/nOd4hIf+pTn9K+TP9Z9mjoT8tyT1irCa1M3b3ZzkhV8JWoxM5kgGPjDlC8oJMFOwWoEp0CdnOPMsnfDec+UPUWtlV8ZBHJY0ajMszPKVK2l4SOLu3uu+8+6KCDqAsW5oNm8F6cey0SeX7T4Tz3UKdH5EovtlRw3nE2PUqWGOYTC0f7dRfnO22sXbvWnaRAP+pPAQfM+JGsDA++EcGIGVgbrtix8Gf4LuhKiQp16ITcMTMgxa1I4pPwZ1DaAXJJ6VrRi2GtG+RurAMDbzDqj0V0NSkIBRuMVUBY57lkyRIaz2G4QuHAYoxeQz33No3aa/F8dHOWLl1KqN9CPbaoKRzWC72vDwOk+iTFZQQWIiO9HM/n4dcp8yflQZGUxqc//Wn9KMFqSpjdyM8egWNrlbEstCNkH2Gz1purUydrIYZmBSEyP00ivbpd/52GYz6mv1JuHCvmbBvERxPj9qvzqCSyW3eBIlNAib8NDg7+wz/8w2677aZb8ba3vQ3qFNMYH9BqP4TdZhbnG1khh12ynkQPKMTYUkEbMrDNRDbm2bHd6z7ophGfX9dNxXbSEM4DvAzMOa1faHiRGDmSZWxBXf4K4Lv0EiAiAg+iIq6FM1vLfYU4znDq6ET8sEhk42YO/EKYJ11o5EclHpQuEmOQyAy7T4zGWxCM4Yg6WvS0x0KReOHChT1poIesQwH12pJwvStmp4XI7H24R57DVnTUsuqa3+SOuVwL/CFuE+MbEeUqOF+mEArWoy7z/e9/v5Bt9uzZX//614Xzrv8i8mOHyB4B2659LuM8z9eqPgxdqeaDu7W6syRPMxaoIiKnn0YlCcDXacCt9V7s9E3U9p/IsK/kOFpxnjB4I2nO62Z+6EMf0n3YZZddPvOZz+h8NKk0Vci2jyR9JA7OjoawZ2MmyDatOE/rHP2WlpXm8BbhVTpGSpwNtMcHJLfe5c932tBUpHsUAUaseq0g4+SyLBoJpGOAuXDGpabRgCc4oDlviTxrYOJFkjPVv9hvLEMtzNgDuplijE78NUNrOaj+wD4KjeCkBZBXZBHIKJBFUEV/ZXVTo4QFvmjRItmE/f39Q0NDsDhGskS8t4mo5ONAccRk/gRzD/C0uLqNarsA+l24HzRP+UVuwF3B+QrK6axMAdVB6CS13Xbbff/738cC192gAtQIH/GzHrRD/RytJ2bCj74rnHRkxjlxU7L1Jxwr72jm2RIWw6x9MrdNwTaw78APWZQ4Xm8lzNXWnrfxT5xqRWpbrFuBTOVdd90F3uok9QELonJPSAlBnqcKY8ZxHjtHzwjvZkuZ9HHhmBnF4tKj7OJ8pw30bSJtnpapVo6q54pIrWUZjUJC0JIgQ5HEZg1i7hILnJK5w0RvppwdsgbUnBpC+bz2AtZFpSemqR2/TePZMPQmAXYyjM7PRlrOSG5RjV2n125uzk6hkyQSAnWfjhXDqZUelxMjM5GBE5UV8VaguOBoxLqwGIchXIyWMlsJOM/nrRVmw7UySD7qPPWVP/7jP6anxk033SSs0+/CYiUoXQ+FpTaPfXADacw1s1lAfNU9ASWMGGAFfGx4evBY+IpjVpS86R1asUdBOU6MXd7exPLcx5DbWAlYTYLz6Nrp6/fcc8+xxx6LCL+eC6EkmoWZVEmKYVlqW7NJcR4KsaZQWz7S5oR6W/XNnEaRJd/s1sN25ADnmfbY82XqTEF0pQjMc1ZKJFK6ZMmMDsIXwKBrYHVwS+gwCYnJEIGB3yisI27jyVnpm+DRHG+uwMbBKh4J8lyRxWf8jCYi0WwNh4bWZBVxCj+9QXB1Nn1xFqK/s6xFRhioJJRNfL4WNFuINQ1ncRtwHoirJF5bcV7XQmBN34JUeeCBB95+++2mbWNIr0wNVb3BVRjsMeBfCZsUKVmprwsMLasbFUT1pn4IdpAP4lvEpo+NvXjx4tijMBbKuRDDgG//y1vncDuJIeO8niYZYV3yDTfcQLOVV7/61dpcdCtQ4XMIkR3E+2ns3D0jUB9xnvZVQvs4hzfzsCFkBpSGSZ5dnO/AoYdOWB4Rb01XoQFBmJGWinvb9lBE3KcPk4z4vOueLBpvTqaWgLV0iBMKq/WLgCGamb/JI/L3PGMr7+jkdc6OhyzPjTnMeIwFXCO5JJ/Qh1Yi+5pVfYhsR3cgwku0gY3YVlZ0u0OgvrUVIPgPiC3LqsIIAYGKBLKwk03UdMFULYsMUyQljJLlvOeee9IBfP78+XqzkZpJmadqvS+TP114W8HMCooS5WBfxtMHJXgi+i87lE6sHvToityxxXti7CBWQXLLh0bMZw+tqIxanZINC4Rnv6OqSw/uqquu2mGHHXQrzjrrLB1W+K9nSghFR16Ru6JDZ3UJrcUKpo/zcSBiptMzVXWLj4pP0e0V2IFDD91q83j9Wr8yiliSWJtFViyp2H5wMByld4AXS48PsCkAbqaIayUC9RrCWNKRsfiIX2wk8g8i3kRpHK6h9gqc5xdB6eWp26C70zrYYrytJxEbXH4MeNx8vcaUrRSxxhHdAQfky8TQxoCPydkId9SC2QmioSGxDqJAmL5mP7qLlqvPvG0VqdxVCPbQQw/tsssuArdjjjnm3nvv1e8i1wBmei/mi8uyui99Abi6iqhCmZuA6Ft6ASZESrxf/DK18zZhMuJ8JdgeQ0NOAcfeIjFuw6OPLca4Xb/IXYbJFxdZbJOwjD6DHPGsWbPe//7300EGaiipCuM8XFOyt5sC4bdanK+MLs534MCeN6eFMtjY2cfmJea94wD1oDbs6LfRnqjFcG7YQQQYxDPBA8AXOplw4iixy7Sd+jTwEqCA+k5oXd/S6kafh7A/P23xFgbxBLYPF85AgNTaBOet9DgRzpeBE0hWlIokCIRxE3SyoAyCmWxkT+ae1+ySMf4f+Zm0x2XwX/2Kvk6Wc+7cuRixp556qnBedx4aCXIHnJjPmYQLUQuupW11aj1p4+tZaBpAeSKxYnue4Dw31s+l9c5U7kN803EewNwdEu13MA3sKK0KfXI9J/WYyPaSxH/jG9+o+7D99ttfccUV3E9dBUE5/TSeZi23kjfObwqQ7+J8d2ydQwtZc55GgY1UJ+4g6tO5G7WZJ7j/TjvWxisQ1hNzXl/UQpOBig0Gcpa5dgn2xZOpt93Q0BCmODhcZlHcelA2cF4AygqY4PjtSG5xpVOlgyEbhEHGFqbzswgCIGWjwz722GOPPvoo4WiM4XI8SbstGJogyulR4E/aOoJ8mZV1fa9sQjtcvyq3tPNmxLCSZMwCWPRAB7nhhhvokfe2t71t4cKFaKpTd+/gjIk3pJVxZ6JrVrk01GCoJIoOFPk7KDf6k59p65jopvlPrYnmWhbAdBbYESfuicNuWAuExfRd8ju65FNOOUX3Yb/99nvwwQf1rb6+Pl0pOE/Wm6+zt6I838hKBV2c745OGHrumvlMUS1hSCCsYtDJhqjRBoPcxZKGUGMXIQI483wey5wULYFoYAdrH6ymZE/LxP2hqHakUawRm/g/sEBkBla2U8AaMcTNT+Nx6Pha+/pR6lWxXdmPUDxeL847UIN5TA4CdCJebWZLDGJUbPtaUMIkBkKILBIRn87Drx3Rktui11dfffXs2bOFbxdffDFeCfcKoI6ab9wc4iQxt97WZzEXqAgc9WYy6cmn1FP7LQdk4m0pWug98Q5UMr/xzvhjlMV5T3eye0VQP8bOZ5JQ43bYYYfpPrz0pS/VtVMDq78SnatlST12Or7YxfktjTrdsbmHpiLF7I3k8oM5QpXVQRS3nrtXRyo4RpdZJUZIUFTHgbVopUoLS/Ja0KQDUsqhz7CcgbUi9x/5jzD+PQ3i6vwX6315EjTmfUqunO+LTBh+Wicp80/nI3CgvSBA/fjjj3MTTO0r2kmy2EpHJgX1ACLA+iFWd1s7tnVEeCQPa7Z/rLR17ZUTl/o5whGf//znhfOzZs3SC7KiQq0yhSniHXACFNKjie74RBVJT3AeeQT2CDZ0QjSok8GoiV+J+1rl6io3ZPL7ULnJzs86ns8gYwuo6jO33nrrHnvsIZw/7bTTkNpAs2tNag2Jt1XPNdqwahszVyHVCPuF+Tbcri3FqFzv6OJ8Bw5ZaFoUNO/QKgBesJChZ0Rz3dU3BnysaFxp1iD2pMavf/1rorsCfDfyhmBJkET/JZeqT5KU1C9aH8zykoYjuw//K416KjDXm9Rg0hhLb5qywrdsHkNW0dajn9ZvybtHy3dgYECfZ5twQqHIjT9aob5Ilb86vpa2NimhLlnmthHv1q9XhpEZ/4KzfSoPIvn2pLQ36QwFJjrbyy+/XCC/6667fve739Undba6fOTWXfqKHft0aBwQi4VXhGE9Tz5gfktlW8ddItvO42gb/ynHG+qtDs56b1EZ6P2OQRHi44qINOrmf/WrX6UT+hVXXEGSiCwG0hC4friWhK1mCt49YFQ2MruSYu2uPd8dW9UYS82jAWFaUbDSYx1QjDxXDDMHV1H3wobUCx0EUg25PBjv+P6xSJCGUPoXFNIB2TWwIc3NMzqZaEc2kyYd2qQw0rScCaEQ1C2CmooFuKwAA8kHm5msHAakcb4VvorMMsLv0JZB9QFREac4Nwjn4Qgtz+0/RkLv7xjNcAEycWn9S2fYgw8++PbbbweZqfBqNbNj1ViRmwiY1uKKAOg9FLea/WJuLSfAhl4h01pTqPKLZWYlTRQjmugWVaYZh2VzB7HriTTFtvg3f/M3kG3uuusuPccypQBgThKctz2/IjSm3KQ4z1V0cb47tp5hnNcSwHoECgjqLst9vYnPeO0biKLZRix0edAZLpMeCxx1M/T8AvwXVAq48AtYxUWiDjIn0WTA2K5sMSO5pzOnzQaxZMkSOpKAY0S89WFCPcTVCVngjMAbAfyfHt/+u9U+5x1CAfoku5hw3ozHqeBYHKilgZzkEWyHxyi64xhF6iSls9U1nnnmmQSl586dK68EO59UsvPXFez1DYwJglpu9WLMXxbapq/MHUNibjfKPkdZIVi4niEVbOeRbegtao3w6KcJv+uH5JS94hWv0H3Yaaed7rjjDs8iBDFINjEPOeEZVzBrxXk9oDJltOGgbklAn2B0cb4Dh5CW0LfWLwnTek532h52rpDormWvKqYann49cfPs7FO+pE+iRoLguQHfgR2iPWVKcQqs2BeseWudVb5F/Q6VQWRs9bvWsQFwMJLZcYrcRbS/v1/IAMdG/yJrI8wkiBQvuW1La0x9UzhQfUHshcjw1FGLQdbDRV4RM70fOWYF0kIjmTdv3ste9jLh2wknnHDnnXfqonTCtHAlOFzkdoFGSMO7C2OtdROHExDskkSNXExhRehYuhXjQq57JWdaYWRN/RYZ1eNJ8iaSGhRx9/T07LPPProPRxxxxIMPPqhdXg9UH2gk2S64TPhZbFjkoTY1znPaLjrY0rheHV2c78BhnId5jppWa4gGtF8ZFG4dRWE5YzE66FEp83epC4DfyAVQBG009EkdkPiATqaZ5bPGcvszMN8BH2vmMG8FtsSWQTk4QiO5jd3q1DpEBxfOm7kHgg2moZ2ikYpJbQmvblFKZESc17nppwU43IrIJ2/FrjITMiPfhj3R29OyMFxG6sws+XGqBoRpL37xi0k+0i4QhiE6z5HSWY5nsLdiaXwHe5snCMfVMA7Jk7jNstyJAF56LehhmhJvfU6oMk/nZgETwXuFkFOGQL0TQ5yYDtVI3DA9tbvuuotegaeeeiqhQvgAjUwe47mUKQmyKjVh2Tw4r1vHHO7ifHdsDUNY6jZ5NAcBJCvpsDLkxVjOUdoF0TNoGDHD6OgBy9P2IZ+vJzFbJMX+f3tvAmVXVaZ/G7DBpUi71LahtWW1bbf2slvaZSt2a7cyiiguYImxQSQig+DAJBrAAYQAIoMgQmSeEURAIMxDQuakEgQSkgBJ3XtukRSQiRBIJVW37vfU/rGf/65zblUqY6W/Ou/KqnVz7zn77LPP2c9+9zs8r+YFdgBmsV7FtU4Q9CXwX7o9OwLA01ZuEA+qYbWPsietT7fADNV/9SWJVxilU0AuYlE1Vr/F9YnaD/rhU0gB03YthoUYISM89i4Cwp1WtiBWITR4pi5v9Hn19tZbb6Wsxv7778/Y4pfUneI+LlI3rLf4uVd681v6BXBGm6nm0247ToYgH9MQpQYZj0YO6ttiqZcFsZZZJZaRUvtq8+yzzwbnR4wYwWoO6uqVxoSlTvI+4CjHj7NxZWlvWRL8RG2Bul9ibWTLkRLnh6DouWO7nhdqXjjcBdAz1rUmNfs8GbFUk4Goc4uzOLUzVyJt73OxkCtmf/TtLOysMRxpprhcRT9i+6cZFEFCrkK3cd4xuwU7QniTyRCrr7P0JVw3wGwOaoqgB8KkQY84BXBk4C9Is8lsQsmijs1Kij0BUmWnJKTR/q0Jsxn9UZ/VzywEVRJMOHz4cLLSFgQyf92pniYMMFkzBpt1FbR6MptsQrEnV731joPVynm+Xmodt4OS/0xkJ7aSXykUo8wBvgOf0DGob0KA1ve+9z0Nwvbbb3/mmWfiYyWai6WBzUUWtqIA/qZIgy3iPB2Gx2kz4Pa6SonzQ1CElng5NfWgWPHMNXBhjS+qYQYuAnWYv6h5uOQcjIHUYjKmlUOi4DCkczl9o8kyEC2IijkdAeelxc0K1OLVmFmfJYYLChdqLeNe1DdKfkumTp1KhCSx946Bb4rzDomxwQrKlNSLiufacSn2GqTar0l9WfIcy5pjPzMfgsdWlyao8ic/+cnb3vY2Qdy3vvWtcePGPfLII7oRgsOJJ7TrZANxPt2dVXuTw6f7jjSzyRRqGG1yFUzY1vlIx9DaDdEaycpYYlDgeabO1dXTlF4xfvz4ffbZR4Pwz//8z9dddx0x8xQF42Gx4GbBpK8B1wGbB+d1IXXbtXe3NClxfggKpX9qIckRNR49DWhyoB25n7gFbZxBE6uG5H3NI4Etygypr3OS0hWe6W2RAh2LB5PRG3zYjDWLBxKTZlJ6afXCN2Aw6x27mMWdvia4ukeFDgGFFybXvwOCjI19KfMwAxBPSOOYo2uBPpENAjGWbHZmRWpK0/ACgPZxAHQYutGTrSo7PcGr5/zAnS5F8YQTToD0QICvFmB6h9UB083G0ufTkfQ3We/g9lpkMzMLmQ07Jm2YHSmss8QXgO9mdlICzHnBVvVbk4rqmF80yFLadfxNN91E7e8999zzgQcewPgGTSXrAiG4PCO1uSmMNk1xniwG7bxM8rlFSYnzQ1D03KHpRgO3NlWJFTrS8kxp3AVzliNRTTX7iJAnSJ4wbzPNom87JDuFDs0Lqq2BkOQ9DcSBpUnU3d1N1q0jG71rSBEb2itNPaohs+7UQo6nLkfhIQwp/Rtt2gJx1jOxLAgYgr3LzlP8FJiMCO3TuSCwvmElteHLGqytIr6Wl1FvTNR5qr8ddNBBBI2ff/755GACMql9fgMRPkX1LNng5L5Ju5fzyyxIqhJ4y8bayr2kEbkcyZv2TFJ/hCXSzGZETwGno0eP3m677TQOI0aMAMbJnELz53heNt7YTQHyTXEeAg19LnG+lC1E9NzbQoV61M5q4nJN8Q27Oio6E5bsVytverHxOhEVT+SkY2lQSh2zQX0fB+qYJxx9nlAcAktSea23aB1hHoHzpuWxU6+aRBLiBkWTnzRp0uQg06dP111ApIB+niX6atbbUOyoDwYhZ09AjzW/rhcyLNhe40A8EvOLtMDFxYUHQR+gKdNfXWiPPfYA54V1cDIL3/QrqmxqtKn2liwxZ6XBPyjkXnFyjXDvOQdNqucXV8Z0FQDG54SCBc7DypFeugNp0I6tQC62q7+kb+vtOvfcc7faaisNwkUXXeTqtIS7OK2Yp8OOyYExmxTn2TYS20MM8GDjel5KnB+Coudu7CKjpFZgKeGDJywamm0OKGBCe8fGE1gO4Gs+Yp8hHbUWeAl0Ln7bebEqNDZetLiUkzaV+b2FSHsgTr1Ncd4QZKyDLWdJsMPbKqI+CO11lr7vy5rtFuwVxchgt3KKb5igK0mR69bIsohGSi4S2v4AVe5q5HWHPFm3LNz7z//8T+H8tttue9111+kuqoHhGf4Z7wu8QhVxPosOZTNLOJnXZzkMsi8A72vXUxzAtlhfkmE3k8/syCCdRUJR9mLpuBEGBiezpKWlBXpVvV0nnXQSi921116rI5eEmPklwXIIa8ecQKTPUqs2l2xUWpu14ryeV0fYcg42ruelxPkhKC4PhPKTg4ist36bJQ4481jaDo9rUrNVLz8sB4TEAGu88Jqh2E+wYPhckpueSUpFm5vXkhJm2uerCaUGAZBiRJDvCJynTDYfloSA+SeffFI/QWBbDKTMmSOIJ3e0fNY7DKnIh5Nq4w4xbU1YmgeI87WYurU0MK4L9CiHusMOO9x9992CwWpIBKM6bZaYeoorVzXGK2YhRZQNCA/ChEL2nnNHtSTluVqQIqoXJd1eZSH6xdscVnnONXWeh53VweZ9njhVjIWiX/7ylzUI7373u//whz9MnDhRP5EJS5AwdwQ1nxYISFk3A84vCfZ5tmyDWDqwHylxfgiK3kMmXWusHN0PzucmLzjgIApr+KiItRAeDwmkKcvQ8PWmUfxOClhb4CWeHcsGYdxGmSwq8DlhD6LJhfMuh/Mp8hBdKXDACAy+4QklwwhTUhFm7TjmA65VDA5ZwdHZ9NLGQ9aC1Cg9cJwHdZeE/YjWpp122kkQ9+EPf3jMmDEzZsyoBS9wJbDiz4/VTBwilQvIr8SEWbRlfYBTwiRmpnRmYwXnT9ZsbVorzhdvhxFgC5m6Oezi99LJYbxXts/zHKUt HV7//vfr0HYfffdCewR1Otc18qh/zoep8lGp6lcK85T+2awQb2JlDg/BEXPnankAO+st0/QOF9LmFJSdizrq1lQ1cijAbRJjVHjevlR7/2mOVpGc2FpqE5bCzE/qOXW/foHQOIkhdLEbBQNyIAztAZLQhUVKcNTpkwZH0WYSSwiwTZ9oZZHgwv5AGf3uEtFLTfF+bS1pjDY9DazsJgC5uqqOvCe97xHEPeJT3xCt6DhJQoRYre0SGKRlDLV2PkMh+fKlSvNmYBv3UbyuUnx7rXq80Wp9d4PImqKLtHmC6FCNxqC02yrIYCH73Ft6HuiRvXC3HbbbdBUHnfccXqFdPC0adMwwjMUrFBZoH3W947G2dQ4z56Rje0WaLTpKHF+SIqeO+o09CnVhDgrxfki+NSi3TW14qb2anOaaYYSisM2Ni0w3REMmKS1wmbmFacphtSi1b0WbP4gg+Y1yqEpd7JE+axFKns8lS/EYoKor/rLtsJaa9ObnR8LVUNEk+uJJYd+1QJjWPrTOuE8+jymaamy22+/vSBu7733hoMOu725xVyaKseckMZzEs1SicXZ9SyI1RHmmztIP2VJwpEjHq17V6PvIL2XdDlrqtUD4GjpHJAq7Y4jdWYBmw72a0sDf4UOPuqoo6AvGz16NFRyLhdIEBSLhXmT8ONsNpxnb1jq86VsIdIR/LDYM4lvZ+b6Q1M48vf4T3MpkF4v5ocagnA6AfIkg+Or5S//lW6v2Qq5cdbH4pLFvTx9eyGUuMLhRdA+IUCVJAnXJpclgeVA/wXbMQ7gxtVPtRCh0XQHQVMsQM79WRALnW9q8Y4pC0i1fPlyLUm333678E0od8QRRwhS8C9oEGqJCT2NpalEvgIMNVjVAG2NgFZA0nngLLUPnUemn4T5S0PNDuz/82N9W5paEIue2xzEYyKsNIuUBfTKvgkUdeJLdTDrNTisO+JROmvM2Qe1wMmsFlpaWqBx23HHHceMGTN16tSJEyfqYB2gFqgCgzLPqqHBEfxuCpAv4vySEFeJAaojJPFtatz2NnlVIv6pWO5EOlV3d7fmfneQwUagUjaH6LnXIssKgc3W0o2WIIatygRCOKtR8+vJJ590rSIX9KxEigNBEzGWzn4qUlDqV4EY3bCWWITcWlLslSVmfqgooTVCKKGegAbej3ipInxdHYayUrAwfvx4HQ+TgA5oarfxdUn2nBOrJfa1/G10yeG8YER3fdZZZ731rW/deuutTz31VHYlOJexzBeJo9Ou2s7Gyq5nhN1GeK4PwkNCVVmFDfgW/QpRpI5km+PIK1Ro50c4DNU6QzWJWcLNYVMhBhysHHoc7ER4uCwl6PmQxsBx8Q//8A/C+U996lPVUKdSDxSjDfzSBDWxa1BrLj2wefJh0ed1X5sH51OQfyNKPy7gEueHoGjyEr4ORGcJzqdm50qsfJ1aAwiZIBiGmW6l13mgqIh65V4NAkcllnm/n7yZ+ikL1lS2FX3tIxxxTW4X6wIpvX/5y19Q1xGUTFqDxJ7eqmNCeymBAny1yU7f8fOp2GYCyM9P6uFmfViWNq7kcJ4KKVQY2WqrrS6++GJGgAwsbB02xTt+xhGqtmvh98SGXAvucsqj6y/PArT3LiwHJh3B2sbaSo5bSn1gWjOn3WXJBjB1wmIr4znqA+YjQbG5rNti0WFePC0uvELTp09/3/vep0E48MADiUGqBmb+pSEZ1kR8MBFh1WezsHl4zKhLK9k8pQM9g17vLal1tMT5IS6CXNQPELIa+WEqScm5lI3k2ViR2VQGWdibw2QClyC2YshqsI0zYXWKpqpfy/QDM4KaVoTx94W61kgxvQoxsFGrq+Zhy3HRE72vXmnTAf4Q1TNlyhQoEYjeaXpFOwLMxlnMb9p0ksN5jaQ+fP3rXyd4/g9/+APFFnULJLuZe39WH+JsU3jYqMRnqz72eZBhVR/SEXdhPDugQx+EwMR2tkX2YBeZxZnrEa6GHAT0CmI79V/dHY1DYYHVhfWUBw17z9LAYHPTTTe9853vHDZs2PHHHy/U0gIBLT8MZryc7NFwpjiyfaODfFOcJ/ZJt7l5cN4InyYVGupLnC+lEXAeLdFRyp74s5KaF3NihbjWpFSQUykxt0qdBuptBmEWo9eRtF6L9dSw/XZEGw7ao7bkrCyoQ0XUzZJwRPby+i9vuFoW6HE5E/na78BaQw6s+kmgjtYFlGT2CMXEJb6HVgXLP98XqRs2kaQ4D6+LoHjXXXfFBXnPPfe0tLRUAw8AI5yLO2UoSDrjsTpskgWR3Zl3YTpeowGvPhuunB0gp9t3FExw/FePA0s7bhS43djxYfuiYiNLD9o7dwdrKCYdL7K8itjesb2ceOKJW2+99bve9a7rrrtOT1/QijPdjleitlj4yDvAPr8Z/LDsGtgRbx5SYoN8mi1utC/G/JQ4PwSlI2hQraFKshlsZsXKsKmxPU1jyUWVVGM+C+GUuM/IKtKMJqwCBY8QaCYshcKNEtTsAIv6Caq0n5FNBHwLwhxdjrybHELib7UTFoTBVYeHDrNVLWZi5lzJWdAn7bzYQKnGeNFaQp6c3lfxFFu2KbOlD5/5zGeE8+95z3smTJgg2MRu7/XRJ+bWSntCc7H0uGgJbtFftWbyf5t82XBZjPNNLcA535/erjS3IrXsYVnibaHANyBPiKyhnieFG1oIpmOgffjYxz6mZU5f6va1myALgLeCnSZbBn2PJo/1ZlMAexHneWobpZ5U6iVJRz6nxmtkVgQxvPdlpS9xfgiKXgNceEw3G1dzMYppzHxRwBCMANhzYHFROyhyzwbucafNklqVBR2VgDdeP83WtAZQX1DpGBK1qeNx43IL3oM4U4ZkGUqZcGnYwAgIkc6J+deblOKtoZH2ZU0auNR6R6KmITFZHyGIWeIuQePVre28885CuQ996EMo5NyFjRUsx9hP/Mg8bn09OxyjrBr1eh1IYQF1iNQAcT6HUULXlI3fkT+8YLwqxNs4FhR8Nhs//6VYjGTs2LHU0vrSl75UCxE40JfZNa+DrXjor2vCYvb5P4fzuWHviJss2+FzBFD60NcWrMT5ISt6H1Bo2VanNLDFUI2czunPaUCFcQNtjVlsl5wOI1QDvc6FRNHWsM87faZ/nFebUs51PIikD6wpjscz7OssMl6nTp2ahaJyUntgQnPuZDHHyjBIFNBGwflawg9WK/AIFXG+mnjDoWt48MEHyQP993//d/wR7I8IdzQ2OgehtVnVgLRLPDusahp5dg2gAaab1Gm+rjgP6zUKNjGuWbJzwaeAMu89mv25rNcYduAg0huiB/f73/8emsrDDjsMDRbXQBZNeRgP2UTUgpfZOL/hID9YOJ+OeYrzKwtis3wZb1OKRa8E9gogNwuZ6bUk0dU4kwutb4ushmYkMG8JeEtrGPA1Gdl7Qm4mqHeeI/tr9Hzsxpr4Tb2ihr5Un9d0Rp1DUazE+k2E/LHW4B3WJYTzxGyg+UCzg9pfa0b5xWzlppoG5KyrVCLLTVuzGtxFHK7G7CqSpHQXV1111Vvf+laSYR966KEZM2YISDW86L1pSpRLg9kE93xBXP7j2VBlhuwADR3uaY2PxgpkWBWpF9cJ54U5ugvsab7BahLeD62ZfvVbx/f2KWBLxPImUYPHHnvsW4KMHDkSVmrWaxvkeVL4lVwQdnGU/3M4b+nLXNPU97oqCaEvcb4U9HlYxQgpyXrbiptu823jZT4SJENkDjYQktOJlpTo1bJrj9i51lCGg3B3Eu3NQI7NZ636PGEwcKQ49sbMkCj8OBcgPdDB0v818YEvTLWEwGVJKVKLOwaNw8bC+WqMaMJCRTq/k5GLN8sToVK5+nzppZeCcrvvvntLS4uTgLjZ52PxVlpOc0ubht/MieV6WZ3tc+exsr9T+1g89OD0BAeO8zpS48yCuyAWeLXa0BrrjEBTzJiwvpOHy3/pPOnMGgG9S/vuu++wYcPe/va333TTTatCyUhdhRJOTtkzNd/SGGYDwm8UlX5QcL4vTT7nci2CfInzpTRifVjNAkw3KWtlTlpjtSN21uADgIA+jEFGyNkRTIirYqA17xsGXkfa6P3UkRQHgVYdW729q+lCk/XBjjsnVHeFD59ELQrtCc9dAItEKokmvoCxNTIkM/GZmFSaq8ZMW4t3Ovbw1vrIOfWgZc24vDyG5rTEm0DnyQnKWXJ8LiYs1k2N5MUXX0zl64MOOmhp8D8K6LA+zU/K89nB4a6y57IZnCVAo0QfnCCQBVcmfmpqsGL+YhgNI6DHqphL5UfMT06zUg9ZeT28taQKjC5EZWFb6rx58SixzeT2eWQ777yzcH6nnXbSuJFeh3GenddzsZ4j3vwlCXfZ4kT86Jc0U/VT0O4H3tliFL+hnI1u0HUDHY86ENhf3VuaInwR3vu31aRS8h4MQcFTRjgKSqAxoZqkzKNpz4q1nonJwQuGVsx0Q/MkSBITDa+6k+itmehXnYvdnsjw9iC6IhDdP85nQQNXxyjqjWna3FxpdIe+p2VByoQJE6ZNm0bZbsGLVgQcfBqBakKPye23xmrXxHvkTElF5T8r5J+mOM+K4Ip+QBxmJVIPapG/tyhZKEdFUtIpp5xC8PyIESN0Ot9Lm2Ukc75yD1QqXnTwmxNI7+Cc4uLOvsMRtmgC5CCDNg6w5BED+/orPNFhKAO1ECHpgWKc9RP10x3tOSeWEccEB1y3Bl5rVHE91h133FEj8LnPfc4gvyQw1LE7wNVOU1ifkBSHjcbE6qQLAZumIqSn+vwrQchBlvABRQUKDnjM9ESWRILuDcR5I3kaPwnIrypIifOlFEXzkXdb7yrb3tZY7RrFz0lS3uk7K1avtF4bGIYF2tB6aMZh1E3fW1t3AQG//LWQ7oRlQK1B0kIFimoSt5k1k1pI3kcbxFaD4JEErtkXLA2M96S1CtamT58+JYhgX6eTyTU/VB3ybSKAm5nSMTXkPJuptBXoKyuJeGCrkYmR3hIdlG6jsiQ8hqVBQ6oh0v0efvjhQrl3vvOdJ5988qRJkwATzG5Fp4bRm161RYpR4y0mKevbdCy9QX92xiv7OPYFujp7CmE+z5ona1AilpXtnrMtiITBwepC81DupDSbgDw5F6zUutO7774bDrfDDjtMby9rNPVYMTRhBGMXQAUujkEhz1GZWYcHugFtvodSWy3wwUjOXqMaLYdOUmCysPWbG4od64NOWQ+cz0lTW43jata1tRLnh6awuUYv0nuL6cO7dVJOHAWXZq9gU0WVYnWAFkxNWf3oiHk03ubz3qIE6idK/6BuYfnRN8xuJyKluJTT5wFJ1Hjm1+xYu1yzz+orEeaYa5bGzHRdi8nrjb/rWDmRk8mrBtMKsCmxAOsL+j/7oNak8ki6JBlpU30eV6lziEDONKI1C+VF9BcCSfVt+PDhQrm/+Zu/ufrqq1taWmYF0oMsuB3Ne0BTtlTngupTYjGgVYd5nUqXqmrBgpfFWq4spow22rj6qWFkQXfYKluGSqyxiClMl3MdQDjKuHQWaxnYTaOdl26QwFHCiq6//no43EaNGgWXsqSaODu8U7BfBn3eSjifjd68cr5fljPn2XnpwR2c0j57tHOvBLtLfOJtgZp4w3G+GELZVw5UifOlNJXOzk5NT4IWqoESSu8nGjIqsbVKZiKzlUgJOIEx76PU4apzxUC9UbbWAu9+abHrEu6I3kXIpWtnY4WwzTaXrMpaAxRTeMKZ78AXOI8jtRJr/FENnA4QpMfWm91EztxhbdZRH01dmdb8EVsejP82mAN3XihJSdMpBLp400QjdqSC2BoZ3BkUUXr/+99/6623QuNASCFAl/bHH+YkYgoaGueY52OdVtaU1GSU2wKkT6ESKY/mhIJNPAtH77imJOr6/KRmLsYiJ0Y5w9pFWPCozg0VA9U+z4j0gfPOO29YkBtvvFE3DhEEfcDNgZWe9tmeLIiFz+yknpuUKrOrwojtfHAf4CTxlC/I3hCWZlZPK0JQbupXM3IPHOdzdpimmryNNqsLUuJ8KUUB56GH0lTi3V4QeHfR7lLjSRouwtsO8xWgjXZhH1xHpD1hOyxQdV683+E3QlVBXQ4nrI6EYRh7eD84T2dAMzR2XYIZQRA+joaUbmVeINtB51TfdL9S9ljIKJ9dTSjiwRyQGRMWIFaJmaQpt4C3AC7wAX76s3U/mzvAIpYD9k22ANhVaggiNJQksr322ks4/4EPfODmm28WuqJFp+W/K5GYyFwHqe8VPdMVWvFTgNIOKMpp76kBLWehssIPkHpBtJLvOrDstjCsMVBeiP2UU2MXI4wvFaVd74ae2o9//GNqwj700EN6fBzpBCsiQvHa+LrPJpLiNoj9Qqy9ZdeM1+XWpBqXl7nivrL4WmYhkp89qV7IDcH5ptE1afxkifOlDESw2+CWAvfwmmWJrdh2EmtcbYHTRrNGOI/S7og7vYHQoWfRPoy1nKTXosOI3T37Aj6DjU1D6KsxrN36PFF5LntRC3WfrV4yeWshd35WqLtEYjibC92vjiQ1jKUt1WOte2PYT13D6bYihSbDRWqzZelMgxu9HOA0ZKefJZ4Ij7xXE42zeq7efu5zn4OPd9y4cQRbEoji/UiWWLpsh0l76EIhDp3CiuJctlQvzd1mPyNQjV77FDlZcVIvD8wYrhRgbKwk6WN8CVTitcFUrqd2zDHHwNU5YcIEjYn6T70we6K97jwX65vP7y2V3tI/aK+H8Drp0rpNtS9kXivwNoV6XtE0PL6pxWYgwF7ifCkpzusDW+Y09CLrbV5mWoHzmrxtgRIcTnLP2ediEdUsxELjSYSF3io9r9zKyEXsLTOerGJ8C5La6p2mSi4MvjNqQKOj2pSqZgVl+MXgWn8jlEwSgOh7bxyKW4ast4Gof5yvRDI0a302yLO7T2HHtL2gmRqvJRE7AJe1dDVCsvA999zzkY98REC33377tbS0ZCFJ1hXxvCupRtZ3PyyDZ7pS85l0M1ZG7Nupf4HloxLTu5qOT6riQmKflvPOokmfEcD9Su6tY/VzjdcifRlmf54vftIDDzxQt7/ddtvp9vUNRj8OYBWrJERMWTO3zqYWXgPdLOl+64HzDk4jZdsKvCVlCi1xvpSBiHEeqYUgFjA21WwxX5iOoBpzWDRt+d6xcDg9X42iN1bQyhQQWPGmCZMrMc1qViAzBIchjUcP7GsSpYYjjDZMJb3w9Xpdn7HPo8zb5EL4pa6rA5gpBDmzuca847Bta6dcDiieG6rX5fqTqtCV3swJuWNyln+LE/+bIhIdwDgjKLvyyiuJKjzggAMeeOCB6dOn4yauhkDH1J+Ys7ek6mv6uRrq8WlZJONATwE3BO+A7dumsyj2sNZbvI6kA+jV2QlxLySF47Hk269tuwfp0jhhMf3pv7vttptu/2//9m/VTyIH6KRaZl2o9OYUrfYOebLZzdL0pjZEvBEjz3dDcB6vWRohb4S3IajE+VIGIsb5pYHZW8oYDtYsmkeyBMSqSaVUTUzwmb0zm2thEdUiUNpxFekbDCO2t8yLpWOFVISRo9xWemf3FCEltRvjfWNDwdve2dmpW2CvYTMywILmr9s0y9PSWGmUNaXSmwQmvXG4X/rS53MA7sUxNWhY0nUBwYn5Qqygl/pEwCX9F6o39fx3v/sdUYUjR47EKcCt1QJnL/p81tvAnltlinsN7DbY57Ey2ajOf4v6dlF8idyDq8WsKHepLaHOyGIVQhQGroi9hW0d+xq8NjBXUC5wp512Ug9tn9fBWSgRyHLJfTmsaFMbaorCDg69BbfUukKxPbC8rk0j5AdukC9xvhTHVQLRBHVgLs7ijhtIYeoRdalZRtw7NALOfsVQ3xWEyHwiJaCIcYQJJgKYx0iuz6KJIEWMIpgYLgjsVCNqHxcwETt4DVBHya/B7ICTjl0wvSVMUaosyqRDU9JoGbpEaD1QXOxSsc+1xHqTLgFZYjbx8djtbVjOLTdAFiGFejSnnXbaW9/61mHDhp1//vnk1+PmJlsNoMbPaGN1rofp1UFanKdpiHtrZH3EqG4Efr5ZCV2rzVmSLJaOj0No0g0FQ5HGovs1S+OOKFm7JFQk1/OdMmUK5QI/8pGP6EnBnqFGdC5VZefGWjBs0NLx7+uRrQeMr1V4fGyL1gPn15rutK6O1xLnSxFIYplfEvgABR2aNRTscEi2o7IdAYK5hvzWlMQDYwhGWjywWFegfHeceTXaXmi8EuOra70df/1MItRseImx3DpSkRzYauJGxPCi+9JC5qwT0o6c+UUQILfseGn8p04QmxfZIFuTAqzuWFszarIctmRRoyajH2Ueip5qEnOSE+zPuu6RRx4J6cE555yjZ5SFood6dnhA8Eo7yMcRJmlEPbfgsEBHv+CtTtdWDzKAj//USj5RkYbuvpZmSzoCuZFJB43Q99mBppgeYorRgAvVx44d+1d/9VcagV122YXnzlOGYZ5dANRG6balX0jeJFKL/gWN0vr5YTeipOm0SMlvMwQFnCclFn5XvaLTp0+34j0vKTXCa4zOTGzwqkAkRaiMnXpO5CdaEmXelh+7LGvBF4AZduCTyJigjrW0tKCL4uNLawUCyGAa6F0NlnxedWn1hF8S8ZIFvdScbCn9S5omg50Km4Y1fy6RcpHlQD7teS3aqOeEMrW06RHIneKlBJzX5Q455BChnLDu8ssv1zNSD2GVJP0HLi9bnisxwAbDCECdlpJJk1Lnx1q6RcjK4raOEH2PBphvA76t8WnnsyQysy/tOr3T+ZGPjv6w4+OZ6kW655574HD7/Oc/TwwSHcauxYMD5weiMGw6qUXjZInzpWwhAs8M8TZs/2uhAB8GW7Ar6+2T1TuMbs83qKazIvkhYQZqB+O83jQdhhncyVaeDjjjmhoE+hLr85hTbJLVT2Cmo8SxABAlrr86TJvoVJ9Hua3E0t5FTLCBF5R7IVYkdJRgqvzjq7XlxMpzakLB28sAsq83Y0xTGGRYyD7QYV/96leFcm9/+9vHjBkDpukuyJ3BnJvmyLPP0ooGqUVaecQpb5UQMvpsKMPdFyR6wFOrDougo+W5F9KU/HCbNlWERH9fDWmtKPPcO6PEOOtOb7vtNnB+3333zUJNAdZH7FrPxyKVJc73A/V6MUqcH4KC75Lcf6w30o5m9S6rUYmp7oQFkv9CCifhi4BVLYYg6q9as/2QShO4a1P7TFsoM+H6JgOcRIadaghWIaRBV9Gsx4qODw41G18twTbaXMC3gD6vXplyk8gc25CtjRv9KiH5yAsK/2VMnCQ1K2EBSncBsyJ9xNxIQczqhkWiaP8pggbULpMnT/7EJz5BZdj7779fLWehZgplQYrWWnwlaRRrR6we4i9XhkKENnM1TUZLpZZEirL22dJlKgBeBmdS1xIPRV8472vxvEh30n9nRS4Lfak7vfbaawmeP/zwwykKZs+OfqUzzu0ttr/ZZAvE+TTlqsT5IShdXV2E6RrqNX1s90CDhf7LlL8zgsycORMoezZU88zCRNbxpHkuDXTlMCowB1HSakksClQn4MP8wIg7EDHOt0b+eWjQ9CU2nNQHyoxD7afCNTwM6pWuDuEAxhNuxCnwfH4+CmYrR+LVesfJp9aSBbHeip3Xqc0f4IIwh3Gzdp0aPVLEkLJKtq+w/QMf+AA4/+CDD06fPh091uFGudwEp63lyk941jPxWbj7ikXJ4aSxOmdvJ71uXmBF4zZT05Yxv2mGgsWrM77U+YG62XYtvUVwMm+77bYjR44kccBGePwXKYdD0/5vHtnScL4jqvQE8OglKXF+qAk4j9EGplZcsemEtZ6GWQZItHfPEA3bJEo+/wUV2wJF2LzIZ+W4mrZYri51xfZv4s56OzodYWLaKxItUZudoIqXQVCAHUlvu25Wl8Njiw5pngE+k8szKyEuy9lkuIQt86k7MksSPKtJIqq5+p8NxZsc7F30TqaC4qpn9PDDD++4447SZvVX3cuCExYaBwc4WVLM9xxPaa84TOPA6FWT0NmsGTymCJ+GyhTvmmHBkm+PMH7bLDHd+B1w+8TVsyjY16PlbF7kjj777LOF8+94xzvOPfdcfP3umIaIgd0ScD4LQ7GF+GGRdHEv9fkhKHromHCJoscVK00JFZc9OEheTYLnbehIpxIzd16kNLdx1SZWcwtUIi0J9h8KgJpSptJHNm5uKvlX/K1kpqgpOFucEsvVdQyMB9ixtZxVQ4BKNUZ0Z71XEHKXfBc0SFf1AQZ7G2dYDlL8B9PSbUUWETKL8T9scNYqVAzU9BwzZsy73/1uAd2nP/1pDZdugZRJZ375M9sW1/BKDTXQwlPyVacIP9nOkImcZjHkHmvapdRZk2r11aTuLbsboq0cizs7VjB01i2LflusEmJlnoBYbFx8o/fztNNO0+1vv/32119/vQ5IqwYQu5s6O9zVdcboDRMbFVndNKHWI/Rxk0oZVzkEBZzHaAPOQ9vLlLTZPGdlLQZRpC5LDD4cgLcU9RgknBOLVtgRKdg0qY4NI7WYYtPXhGVFcDSjdwqVSOSFH4GlRN/AFtIRAkFh8jHO23gCDqsPxDqCVGxGdCOEjLIYAebg2JNBWGJM6ZxGNpIs4CUAt/UATVUEk0iuvPLKbbfdVkC31157aa0hNlv369Ad1hockeoqPJwSaJ9dPsNrAXnKeJCtfju7IY2wygF7JXLp55YAG2fS1a3Sm1fNzgvnLLMm4tmZEyqeQHCtlxACYW5Br+gPfvAD3f573/ve++67j+95wRaEOvKwGW85OM+io26XOF/KoIseOnYMQz2VF9C7soThJEus62kAhl/vtkiuXktYVuAlA/3smnw2kMaTzi9NDBZZzxFPmTQKui9LgvuT+z6L8STsGvQNxkk2sARVEgXki1YifbHj7eHppcqVydaIXXGaABmpRJtwLcxBOe4ycwXj7HgmkNauFTRM+6zLnX322VtttZWAbsSIEWjI1DHHgcJq4kBQW9tsKueBsjurBHoKDYI5glpjGZGc+9iMZ6lhrX9DU5ZswVLjDEr+gljUz0shkVoE8MBrhN/ZjPGMs5ano446Srf/d3/3d2PHjqUmLGsudhscDYOO87WYboZWoxspcb6UQZd6vY5f0hTuJEwRd50qzOnLnIJ8amW1ouskegfg2Vo7L7Cpm4VeGib6pKen8aSp0pibU8acSpIdk0IQqNIWKj6YCR+6M7PKVCMvpScp1gBsGtVI8wK3Q67MEBkxpG3qAPYyJA54LWCbQBKQDhZE90XImRMyjtWy+vCzn/0MSt4zzjhD50qlpz9mEkhHY0EkXTdJBYjKHeHIwKJiJ7gHDWuJQ+7xvwPC5kBoCvV9rcW5Xx2txEtiAmHjPAQaVIFhmdOrcvPNN8Ph9ulPf7qlpUUHtMUCvlh1CNchUHZLwHlGXp0vcb6UQRdwXsqSoN6hlfqM/RzTaJYkPFqyxIYDsIMq+GptlicOvzUy4jITBVDgLThPyLTjVZzdQwcwFxS1R3cp663wV5OQSNx5QjnhrZ2w0uoxd6g/6W4F0zRx/lmwouNrwEyhw7AVkIzv4hetgXNSI6bpo7USyxW8W4A8KwLp+VjDSE+o9h2yblH/dUUtu/owcuRIogovuOACPLkkArfF4to54ogiFFejUxgVHWYbglo9mEV7C/mw9kc7OdqBNOkjyGUi1Hqb+6q9GX7snuZCbD10XcYWrgMJxD4f/OAHCZ4/4YQT0uowrDt6i1hwtxx9nv0RNK2DDe29pMT5ISjE28A2hjKPFZegd2wXBltjRQrsVtrxtTmF1lmZWVTR2QVgg7WvEJ4ZoN7B0ng/sedsyJzVdWmNKiQEVcKrRpx/1puDK0uWj0rI+ucwanC4XjkkiujSKMNes9iDWBfV31rIC6aEK+1gqSjekZHQkZacq+VD1zr66KOFcu9617uuueYanY4Sm4UNSxr2WemdEpuiqx8imjCckE5uamqHqSbxQqjfKRUGH8yBwMFG8twuww+x2tu/ow/qjFpgWNgHgeGwt1122WU77LADIL/77rvrugIruFU1OKzLsNJtCfq8B42gNfXNpUYM+GmU4+sF8cazxPlSNpakOA8BQorzZD+ltlmn+aS583x2wlHW25JfjU7SLCAMjkLqDBLfqNOJxndAPqYGfYaKcEMEU4lwAzaejpAcVA00Uw4vSfOArBULQ4iEBPDbQllDozcaOwClg2FUwL1biSWQcIBie8GQTpQIVpG+jNtZYhWhP+yzSIb9h3/4h0cffVQNwi8Kq09at9SxoI4RdRRQyk4AELGpaUs4mdNdAC7RnHGsNSlWYs5S 3bmRkJjXyi3s0h9LmmQLfuLWiB5IPKK93DUqFHve9/7tIvZZpttDjjgAF1CaEkRAVYEGNhY8ujVoON8FoPTNCZtkU+1L5wvinNX10poVuJ8KQOUHM4zuSi0ytSzjdfZ/fYnOozE8J4l+/dqEpJt3KgG7jJib8xAa7UwJYrRwbbbb8h0I+yBfKKOkD2kOwUe7W0EEllf6BJaLjCI65DCH1jmDfW14Ggm0xbOTPR5/YoPEeVff/HY6hvK//WP8xYsP5BV/uu//qtw/mMf+9jYsWPnhNqOlNu2pk1spAnoZvUuXPhsUigcQz2rqr3tuTiZrLdTxk8zxfw0Wn5WrEjoDClTEPQDtvzECMOlhqWLreXIkSO33XbbYcOG6e/BBx+snmvTpKHWQ4TMQUJ4KmVuthCct0ZknAfbm+L8awVJVfoS50vZKALOQwUgCHLNEYKT7UIletyRe7YMVBNXbDGgOkuCXrDbY1jGwkPaEa69nM2E+WKDbf95lH0JFmDy6LWEmZFYn106BGxMncUuRKVL4zAFM0EhFHUUe+JwWgOVolqG4QEdmLweR4ygo6oFQgRB46xvFPJosF4IxNTD9773vcL5z33uc5MnT8YgoBthxFzu3A4Ofwb6XHbWKxqwrMfadF/T1ICTE//EcydOCccKLZMj4DIlWWK7zpL4Q/ync2M9Xz0mDZFu+Yc//OFfBZEyf9RRRzGq5FnrpWXjiTVMjeCq9v5r0HG+FlJiSWdbV32+ad2oEudL2RDJ4TwgjwFHkxf1D52N4LrUqZf1DqdPf7KF59nIYY69HVDFoutZ72LQrBfe7wOwaSDNOglYh5+RJCnmjrlQ0g7bCcu6Q3Kl8ZA1jp6DluifaMhYG4RCGEPw0rIWAPVY6SuhWqgOo52+IMIjqbvGzqMWHnzwwbe97W1QeIF4uiOCTOi5rps+i7TB9ANWF/s9WXBnJZTv7NHYoPW147ABp5IE2HuhxwXj0lS06cSoahJj795iVyc8iZjen//85+94xzvIfj3yyCN1GOwWRj+2nISGZoHTjMiBQffDZhuM82ml7xLnS9koAo8ZWaLGeaCemiMCJavobbGoqIGx1pvai1wVZjfwyEaeLbzdhdXe0ZI5/d/wAs6n7CipMpmahpoKaw00MrpHSipr4giEMRZVe0e81GKciY0J1eh0RrCQgPzsRLhZ5/vwkzkiMPugV7MP0jhDE5fzO3BTKQDyPbin53LbbbdBvX7QQQexldDtsE1In0XaWhHwPYZcAg8InTfP/OxEZkVyflDaj8zbrhyi8npAW212IC/0pnGrxtw0TidOhjQ0NpIHHngg5VS23377kSNH6tKwLsOejSlDY8IyygJHzhRmNw/CYBnns0hxQ7Yde70U5zsiEUFKNFSE/Rw30frF7aQEd1yxxPkhKMJ5qrhSj9Imemw4rsGa9c5U9QbfhI0gm32p5IQSLZkuBwOXaiycYfUSyM3F8NQSYrScYYHcn9m9mecJnnfouFl6UlYcb0+Mk6kxCmsPdATUHwd/NFzMbqzlRJ7bnQFnGrornAlsHCqFzOKceVyrrWboZZddRpLUN7/5zWdCIVd2Ci6YNUBYq8XgyUqosUU3+Ml2HjwyNmelDndWNyvnxTFXy5DG62a9/Un5PM2J5OVGB7cF5lK9hDNmzNh7770F8hSBHT16NDlTbGEIMQX09H6iz7NwkLzAgpXFHcdg4TyXbg2lAzWYTXE+Bfy+cD4F/PXG+Y6Ojtz6UuL8EBTqjHgXaZWeKt7AWgpH1d515Uz2aI5fsIJIjzQgc12lGkuXmjaNtcMuRbtQHYo5r7eYYEetwXjAcqY5aCN8KmnYv+tJpZmkuIkJQxKqsA9iZ81EJmiTrRCA3xoraGMRwsnLNsckA7lLOAUVMFRTmpgnn3wygYUnnngi6x3O2f6pIfoa2Fqk8cz5XGpJ7KVXVWA/TbNKn7jXx2qs2+sbdKYVQbOsILYREZnDKqCzNHTjxo3bbbfdtt56a0D+yiuvRB/GpIMpjAoCxnl9yShptcVuRnKfF52+TE+bVIo439HbD5vD+f61+g3EeRpfldQNL3F+CIpxPmeix3SjmYXpBgtqTjdL9/WtkQm8LRRpBZDxXTbNqB2IqB2su1iqs5Af6rrSrCnqEmpzU0FzroUKI7zzwuEsWIRIwsJeza2BtJh0qE7yVJQ0OIcFgriOapK0m0W7Fjr2C7HCLHGV9sZiSjI9Zi42xnZylgC1KTTTcxk+fDjJsL/85S+hW9cDchVUhmuAOF+JSWFeNF1EgFUm54hx47VIt2u3tVk9uSPGEM0fF4yrFbC5S417tg7pACntDz/8MOz6ZLxecsklupae7MyZM+E+Ingpp89rSDEJ4vjGZFTifInzpeSEEDVeJAgQAHmKg+M0xMRha8ycmAlV6V0b1Bt/3HCOUSkmywxEOJ5tuF7Rer2urnZ3d3cEIjIJAeQCPS83z/cWcur1E6lGnKibchBOajBJLTNgkQM+nSOA2QGHMt/oA9yVYJ13NxhqCOnxRsAx57MDdadtHWlQerri6C/5sOrY5z//eSrDnnnmmYK+LBSNbYtloQY+wvZoYD3WX6z9tKDusTJ6l2EzC9gFsU8txg2SLctAYU1ydOWcWEOWjAkGZ1YoKwzaz4tk9cLn22+//cMf/jAg/7GPfeyhhx6aH8UBQuTGaoHL2W2cmKb3Aa6hBUkRtC0E5/ux2xTRfqPbbXJS4vwQFHB+ZST4SmtLvRqibjQfZ4Z6TEIrgTupUME+HuCdEI4X5j//3PPPzn52zqyef88+PVv/5s2dt6B3ydS+5kVfx2AE0AXVPXh0tfvALUUYvF5aViIqEOWaZaLpJ92FmSopMMcEROFsLRT1rib8AITqsYuB4IUVxFnAQl14fWnt+VhkFgDMKe3ElBIsyrVyKJ1uf4AvgZtO32WXXUiGHT169PTp00nFcocd6+J77wv2vQEhi0f91CWAEQ2yBgfzSFuoDkmeMjee5lulvu9qkh/NisZSaPOXqS+pHcYmAmWAfOc//elPH//4x63J33HHHWwZsrB9Q0VXI5BYWp/Xi0okEiOm14AVnF1kifOWYiWCEueHoOgFgNCG3aWjboT1K6XbL1miaazJqRleebGtta02v5bNq7TOrbTOWzB/3vzn5zwXdLmnpcw9PffpOc8989z82S9Un61U51baWteiXubiQ7JmgTeohZD+MV94deFU1xtLUJBmU1r/1O0IVzXpoGrnBgnbw+afZhJZfQWWQbb5BUn5HCohTxaHoyliUo+wZ31rrHgyOxRDcbBNboGrxjgifkWZF9ZNmTJl5513Fgz+0z/90z333NPS0qIG+Yk8VtvVU7oDD3Iqxnl8HyBtNYS2CuE1UB1xd0/sIrQ5hMTbbZGz1znkPvXgoOqz92EhZhwgyrDP5YEHHpAmj+P1C1/4wtixY3W5OZFGntvBESBUx22ETrIyFE2AyROeBNtt2Gnm1u7NLEQToRisilXMcoUdjcNoIB3Rf1Tq86VsdDHO8y4RdYPpRpq9EH/RwoXS5IS2cxfMn/PC88/Mm/vk7Fktzzzd8vRfZj7z5NOzn3l27rPznpsnBKzMb83mV19c0LaodWF7ZdGL1fVxvxo07CuUCMytETlJUCq6pjbKOSQzqRsRlJDyDM6vjMHzrAuzY1kQe2xTzhbrorbPsxw4hB6NHdUdY47DDnM4n4NZQRDUYTkoptuuk84+CBYdPZ1Jkyb9y7/8i5Dwk5/85F133TVhwoQsZoBWY/xkLfJtDiTXgKgYspJtSjJlgVpwGXf+qic23LE62JXsoZsby5RkwU3jgE9diIPxkGK/Iu1Ol/va175GHNE+++yjlrVykTHhgBnQck6oD1vEeUJxdBiFI3l82PpqSSbC5pcS50vZogScZ/rgCSJi5E2cX75cap40XSHdjKeemvH0UzOfefqpZ2c/M3fO7Oek7857rvX51qxViC58yapZLastrL64MHtxUXWhPvc/FxycyX+ZlY6sJmgT1NX05xWVDu/ZgQWGvEuXq0iRVl8KOvRf7o5bU1OAm3HYHGumbXHeqK0uqebPZ+AOEz2pZLmrV5NkomqMjYdvQc1WI3eNCV4qCRuMh0I4rwk+depUcP7Tn/70mDFjdGmUW1zezi/IhWg2DXOy4o11BYuK46PsM30+FG3HaqRBwwniqEg7KTT42lxQuuuZyE1E7KWN5OjYjBtGFQgBdN3LL798++231339/d///eOPPy6sto/b60UWGIok+hWfETQCFAWjfkE11g3Eb4Lftq0Zx+lmkxLnS9miRMgJ4TwR5rxmy8MUej2Qb2hyvTB/viY/dDZz57+gSTg/qy6oVRe0Vea3LRDOL6j2/DO49YBJ69qnWGpjyZKAHCODA/LhMdYr2tnZyWTRB3UMGy8kkEWjMQTy7e3tTBYsn5gFUorFtD+mecmiQ9b0DjYj2BbttYDiWTnKr5zHgZ90MNzveGbTEEo7C3ww5gh1+9FHH/3Hf/xH4eF+++2nU1iXtQTAtGafaY5uqFKQapJ6jMMUR3ktSU3FkM7441c1Hb0D/hlbc1lgKuEsx1Lig7b7oxrioxxmqe+1eO24447Dhg3beuutr7jiCu0iccdgVfNSqN6ygQLk2XimOK/FqBqiT6kpUOrzJc6XUhTjvKADy8bK3kQ3JNfDHiAgaOWfNNWs0vpipbUtfAj/Km1VPvTAfuuCSrVS7VeyaLtO3Z2oyg5WIcabyh1U3HBekuY1+3RaM25bkcakI6hk+gAObYGp2CbcSmTxTRepNE8qlTSFKj0y3ZVkCcdXsYUep3bYgFglzsmsWP4Jei7oea+66qp3vetdwvlDDz00C1ou7WsctIoRlIK5G/t5LhA0lbmx7hVxQYbuXBIcwZ8ug6s+w5nvFIlKrBVi+hqvg6SJzYpUaZzi1YEHqqsffvjh22yzzbbbbjt8+HAKAXCwg3Jx+4KWEvKkeEuBTRxJ+j4L0UeUQUwfbl/O6BLnBxt1StncAgM8MYppdCVZsVi29V+IFnvKC/bYSHvsOeHnpQ62X7Z82eKlSxYvX/LKssVLli/Vv6XLkl+bCTVNzPdl1q+0JKgOwExNdXJ+Auf5BuWWNF5WK/4roTUibah8rZlCPB5nLY3ifAGnA/v7pb2lrxvpR9LGKYdHiKBv1qWpYEhDIMbkXiZMmHDuueeOGjXq7rvvxuOMUQXEY//FtWi/aZtmYEuFQcvdCB/w85qHzYPv/rPgLu8t7oZv0IUMgHr0/5/+9KfbbbcdHoeJEyfqQixS2PDJaGBFcLSSjlGbxMcCelxOlxCikkKlv7NjeazBQvhqEreP9qIHhL2xKc7nBKg314G9USl3QYnzpayrpDiPcaMjMLTrqyWB/UBvVyPQndX1r7OrvnpNd2dno7u751+98ea/bv3rkXp3vau7Xg//unu+7SXdvSX3TV89rKsxtVyv9/QhfPa5/Ldp4z6FD0h6ZNpCrgPFpjai5Dqw1geUJrb4fj0a3KBv1jeVjkzTR5D+t55I7qe1jkb/j5hOSkU3y8SCUPFwp512Ghbkwgsv1LJCOpUTkInkcYA9HnBWpSLOw1SpX4kOcnbeloDzmLOkaawrzqe8xCXOl7LhktptMNGD81JANamWhXDlHoQUAgjeO7sawu814YNelvRfAPzuzgCbPRjfJ4BYcphQL0ju1+4EnP1renDx9EaARBBe/9WiZmBsClbdvReF/iFuINJ/I7kBAauLwr3wOXcLac85sjgUbqe77yUv/W9u5NNviu9P8chUeMFqoUojxnzh+SGHHEK0/P777y8VXRD9TCjUbk5jOBNmB15oTEb6xjgPBqpZ7DZUGCEolPTtLQrndUfqpNemgdheUpA3sJc4X8qGiONtEOzYbxo/X311ybJlrwec79HQ13TWV3X04Lz+9WC+Tg7/1oR/neHfmh7dXmp/1+rOHuV+bWIcKwI7qNIZBIyiw91Rd01P9E85zNExWGxyy0R3sgTUCwuKDyjibdP+p0CaCkH+9L/p8b67IoAjKPM+Mu2bPvDNmiCcm3ZSX9aT1arp0891qR7XiHTY63Hv4HHuR4pPULgkoJsXKu0KAE8//fStt956m222+eAHP1gNBVmgkiCMvxIIaohlshcerR62B+P86lBVyvq8cB6frOuVbCE4T+S/SZAGgsM5Nb7E+VI2XDpC6hCxlAStvenkWrFCIL90+fJVwW4jEXovWdS+eOGiZYteWrqw/bUXl75WWb5C/6rLlmdLl9WWLqktWfHSq92ru7s6ujpXremO8FlPDC+pGAOBkc6C0BP2vGBaCno5/KS1nPATTdFICsLMnfTENVGadqmgaHf1f4BxvukBuW/Sq1uAbrfjxEaJoZt+eki7oj0HcCgOl2+N9hsR7bmix8GLIy00XYiLy0dxqdUTfOWVV3CqPvroo7vsssuwYcPe8Y53/OIXv9BPeF0N9fovCVyknhGc+fzzzwvns+CV5hWVqIeuXA+7gpYMPN1bFM7rRrT6rBOxsEG+I1kaSpwvZUOEaQjdAdGVdsUu6fGkLn+jB1Ia3fVG16rO2pzWBS1za9Ofq02au2jy/PaJ1fYJ2Uvjay9PqL00sVab2LrwybbuV7u7VzW61jS66v/P/oxmCEGN4QLUBbJSSAF/JGhBRh6rrCm8cwkTNKVKaT1Q4nCisdS/QtBqrZjO6ENHcNoaMI1XzA6+xGehv7ndBCq0L5TeoL8BgfkphVb33+1wTCPg8JvWs3gVtSBwGz169KWXXipYo5GOwAJk+DU4+x67444mXcjQ/DUaLCLuFTflszhy/V4wsoanTp263377AfJHH3006av4WwnvIRqTCB8TWSxatAg+oixQNMPRwa7TOI/j1VkAVLwdFJDP4TyhUJQCH3jFkKJNvsT5UjZQ9AZC80VMiKMreyLnlyxfvGTZylUdnZrvXY2u1+vtzy5cNK362tSFK594ccXYtqVjX1z+2MKVj7606pHFbzz2yuJH2xZOrHUv14rQWFXvfnVlTztqXPsFkI2wRl1Fn3FOkbukD0xYYn7eCCWfeCdJfgQG4VsDA/VfLU96Y+EZ1t9GAF414gqbXMibAn0vlU+X0FmUHQHiOFhfwsPPVOK6gAkIrJZph8AVfNZgY8+aGHwcQKLaoZgs3XMAP7Ex6pKO5ERCWOkw/QTEvEiRAUr39BNWaOb7ddddd9lll5111lnHH3+8gJQW1AGM2PqvTnkjFFXRB0J91BprEDQXOl6H6XidxRKvD4wGXhs2eqyVNKhz1+ntYptAAPy55567zTbbvOUtb/nwhz/8TKh7iKcVZCbakxJXkB5kgaGoEqsK6jM475fEFY3hBaUF8pQ1+JW+C9BsaqlFkn9SD9QT9iAbDtEbRUqcH4Ii9NAL6bg4IKIH6F5bKeAH5/VadHc16ivrLz3T/tLk7PVJ7W88vnDF2EVLxr24bOyLKx5f9MbYl1eOe+mVcVnb1Gp9ZWNVZ/fKRr2z0f2nP/3p2GOP/elPf3rrrbcKNG655ZbTTjvthhtu0DS8/fbbNWHvueeeu+++W9Ph9NNP/9GPfjRjxgypeb///e9POumk3/72t+qbdvrCSeGPfjrjjDMEC+D8H/7whwsuuEDTX+ih9q+//np1e9y4cb/4xS8003WA4OKaa67RwQ888IAURbXz85///OSTT54wYYLm4M9+9rPx48ejo+rXSy65RJPxzDPPFHjqWuqbUOWcc85Rmw8//DB9OPXUUx988EG1pltQT3Tpxx9/XD3XGI4aNeqXv/zlKaecAsvNb37zG7WvNnWD11577U9+8hP1Sv1nFdApJ5xwAj5H3bUOVud19T/+8Y+agLqvsWPHomnrciNHjtTd3XvvvWr2V7/6lS5x8803qxE9qbvuuuvEE0/UN7fddtudd96pRvTUpBv/+Mc/1o088sgjmtEa8Isuumj69Om6F927zmW/IDidNGmS2nniiSd0FV2OnugbPTL9Om3aNN2RblmHaQT+8pe/eDOyTm8XmzJBny700Y9+dOutt95uu+3OP/98QbQtNvhnXYQLljMC8k1ZaT66FUFyOA/rJuGm5quvDl49qRTnYZMocb6UwRUBO0UriKA2zvfkG65YsXjZ0tdWSTfviagRzr/ydHv7hGzl+PZVj7a/NnbRsvFty55oe/WJha89sWj5hIWLJrZWZ8zvWl1f1d35WqNzdaMu0BCSa5LuvffeQm8h+X333dfS0iKI02SXeiYwvPjiiwVNwk8dduSRRwq1BKSa/nfcccdjjz129dVXaxZrUgv2hUiEIgs9vvGNbwjzdcyVV16pea1Tpk6dqtXkoYce0sE6QDAuRVfHX3XVVVpKBK1COaGfJqBgXGdZ6RUU77777hMnTvzud78rhNSYCPHUyW9961tCNp2uPqhx/VW3v/rVr/75z3/WXUhPVlcFULqWjhQYCp+1PAlahZC6ohYa3buAWv0/+uij1Z+OYFdRn/faay/duKDvqKOO0jEaCh189tlnS3OWfn7jjTeqD8IHtaO/Gh/1R5Cre9QIzJw5ExuLLqFRHTFihHqlUzS2OuuKK67QSGpN0eIiwLzwwgul3ArD1ax6qN42Avbq0mPGjNFnnaj7UoMHHXTQD37wA31z6aWXasX5/ve/f9NNN2mB03Cpq1rR2F/oFtbp7cJgpU2cujps2DAp89/5znfwtwq9n4mFwrHAmznHJJksBBhz9AG+yhzO66VVa/ASayHAkwvSDpb1JsV5ajc40WlLgPoS54egaJqQSv8mF3GwEnQQcrPytVeWLxPONwLOd6+sL36q/aUnqiufaH/j0Zdef/ylgPA9/1ZOWLRi8osvTV5Qe3J+fXV9dXfn643V9Ua3QE96ppTJY445RnD62c9+Voh3+OGHC42lXQsABXGXXXbZt7/9beBLKPrrX/9aPwkcBDIC0t/97nfCWP1XHzRrhBuCbmHOwQcfrPkusBIoqavCMWGXAFxzqhHMBVJEtWqozdGjR6up4cOHC41322238847T+AmoG4Em7NURynbOl3dEICrt4IOac7Sgb/2ta9JRdTpAs8pU6YI6xYtWvShD31I0PrFL35Rt8BKpHYOPfRQHS840q0JlnfddVehmY7RyiKs1gHCc/VBH6RnHnfccVLaDzvsMF1aF9UH7Q7UvvRt4ZK0dynqOlK/Cqt1I7pxwbVA+L/+6790aY0kN6hb0PBqVLVt0TZEi5q+FyYL5IUwAmotVfqvsEWrzx577KER0OLInkIbH11aP2mEhfPa46gRNaUnomtp+7Dvvvvq4H322Ufbpcsvv5y9hh0ifUXvFIXnpRb++q//Wjj/b//2b3pMenCOjXd5wbTYumkcnL0LT5rAXO9nDucllVAlHMyvBipO8HYLwXndDg4F/CCDDfMlzg9FgacXXqxeOL9q1auvB5zvUY/fxPlXnlrU/kRl+dhFKx5tf+PxV15//OXXH29/fWz7608sWjlp4ZJJrQufXNDdEXyswQ17y823CN+E81Ip9dpLWxZsSpfWzBX0SUcVHEmRFmYKbAXvwjT9pO+FtCeeeKKmieBI/xXOCEJHjRqlrqrxadOm7bLLLoImQdmxxx6r77Uj0IXUpi6hDb7eZK0OBxxwgFYNNaWpp3bohnR+6fa6rlCF1UTtC8+11qhxIae+UQ8FO/vvv79alpIv3NNCoFPUpr654IILpFrrYHVAv6od4bywVLB85513an3RVXSMjtRk15EXXXTRl7/8ZS0TGm391dU1zhqH+++/X51RrwT7ulN1QIuC8FxA3QjuS3VDq8Y3v/lNrU1sFqTzS81uBPeoBkEX0jIhTV44L2TW7kkr3Q9/+ENdVOOgnYKWKjWu9UuLiBqRrg5E61yNlXp7ww036Cz1XPcrtNdw6RtBsR4Eph7tAoT/uoq2DwKr7n5j6ZuKblZ922qrrXbYYQeNmP4LbsPARpC80d5l000xYQoL/QTJfA7nIcahhjgxlhQizCIN2iDiPISrujW8MyXOlzJYopkifUOaj9kD9E7qZdA+87WONxa/uuz1jlU9OVBrurtfry+etWjRpOqSCQuXjVv0+tjFrz/68huPvbzq8ZffGNf++sSFi59Y8PKMamNFTwpVT6pUMCOccsopwi4plgJVzT4pq8xBYZq08cmTJxNJIg1TuPfKK680giorjBIWaWroSKHrI488oo2AYErnqh1NnE996lOCKXVYW3u1ibdLOq1AVaqdjhFYCZ2Ee5poAiVBhNpUU7qEYG3kyJGCDtrXAZqA2lCoNdx5gj64LgV948ePlxopkJSmrS/VuPqpdnSu4EgrlK57yCGHCGmlYLM9F1ALFTWkuq5muq4rUBVQ69Y0/YWo6h71BHVpdV6AoNZ0I2pNiNcRw2bU5wceeIBVT5imZnVwe3s78TB6TGpTCrmgWLevLmkMtV5rKVE7+qAROOKII3QvnKvu0SVNc/0qdNXgq586XeditaPn+qvXQJdWU3or1Li2LVqOMYit6wumFvbcc8+3vOUt2k9RxARUh/uF0mMwHkBZ7LpaeFRdxlEfYGl2SXd9wNIIqHILWPVNB7f5QR57EZfGiKQnq67qoW8JIN9R4vyQFL2BmkeaF2YmwXC9UvNo1aqlry57o+ONHoqDru76qvqLz1RfGD930ZRs0cTaK+MWLn+8ffnY9lel3j+xcPmEtvbxL7w0vdJYtqYnW6qrsXpVT+zfHXfcIcBxqB6xebqcVDu99o1C7n8a0eEAS0kWank7/lBzx7F/iI4RhqBz6r8CK+m0AsNG0I3TCwljBXSNYP3oCAZnczsQVSgk1+Uc09gISimnpFHrvrT0XqFWI+ZVuT/u/xlnnCE9H2XY56Y3nraGx9P/1VKlBU434qhIR78XBy2N89RNaZ+SGyXHxtOUNkR0TN1mEATvrES00xEWnaZ9HogQyfPFL35xp512ErwL5yGXo0RsWlXcdcZz1XI5Bvs81MRpSBj8S0A6fDtYSygpNShR9Dmch5qPoLKNyEW2IVLi/BAUzRrNI4IZwHkpRXotiVFeumL5qtVv9MzXer1r1ZqXWxfVZlXanq7VZmaLZixaMuPlpTNeXjKzfdmTC5f+5cWX/lJdMufF7lfXkB676o2OevebmJMmaTrWEa0VMOQnB6vDPOyzQOCOWCU2Tdsx4nX1Tt6kvrk+E5ZJLHqKw42IXQ6M5wAiHomNJ87cKMqRhK+nFgyTKPpGaJmtOiEiHcE8m2K104h8I84L4HL0hz0Ct0nIJbfju0izD4Brhohffe9cyPH/Pt4x/OQUdMbkMm7T4+xsgnV9wfQ6feUrX7n11lt1UZM5Y7RBXYdOGepLOJ9dexFzjT7AYGkqM+M8ZkZKiZk5gdY2M7z3j/N6AUqcL2UQRTMFfR6Et5W+ZyqtXr1MALW6o4fLoLuumd/Vsbrr9c6O5avXLO/seq2r/lq9vqJe14cV+tzZuaKja8WqhkCl3qh31Q2YXUnafoot4HN3b2IWJwc1YrSGE52AepRwZzk1EqBz4hIYZSZYILQzJvKDgfzUCOjtHCUfRvC5R8lrh4HaB+sznTFgpulInaGsLUlMaRZVI6YgpWuT7d5eLBg3AtoZT/tDDeBerbzk1ZNcMNrMrWU8CzDHw8WvLAeMZGdMH/Z9rZ8+r/0IJneXVsfBmhIao4HnShKYzJ9iuxCNkhJLjgN5ECYB1ibOZQp97uDiPCUS4APsGDD1wSaVEueHoGi+UM0hJfhFTVolOO/B+dXBCyuI078A1PXAcNMNsU13Z88/vTr6Wv96CM7039WN+pokL9VqZJrR34iWmRRVjF31kJpqDbkRrRPgNsjZ6M24aMwEzTpi4WP99d7BOMntc6LNFHzwKWmESaqEc253TB21Mp9LOwU2GzFzlmOaNuXlKf2+HrlrMEZ5I+Ore23qTsTDlTMi+ch0c7QmUivQeZYkRsmrkk9M9xoDl44Abu3t7SjzGFUIlRcgS1136Sv9peKtC6NDho+VGwr6FOepcUkCiMRFW/jgSo6DjvPaL5c4X8rgiua1po9Jokzk3uONDfmSPVAQyCh7+MuECdLUe0iHuzsD7nd21/Wvh6q4u7Mr/NXn1fU1nT3EZ93WutO/xlUbCggItxbtIxuJiR7EM4jRsnVjMLA7MYlzFRRamylSs7MXF4DdCjPfd8Rq41bU00XKd9FIKBfMsWB9239T3ZizbCoxXwGbC+vS3ssY7dG6uUGWjzWRC8LN0o3uaIDiYP/lcrQPpJvepztkwtqO1BFWWC5nc5BXPS9DXgIaCbON10efKDQW8JL6SioZJcPgHHa9dfywGG1cuhfDDlz05Fbz rrGpRonK4pVQAsKpp7BwvlU2MKo57bbDCK8W0qcH4KiKUlRHtR47DZv4nzQh1NDxFqlEQ0I9cT+THqI4Q74tQGHDx2RqWxNJOwCbTjSampHwJ+uhFmLTMPuaPyhn6m9iBZ8vD4LHLqC3Zt33lZTINfA606yKaB9ndsIi2NH1M3cZy8KXZFUzVuPrmg2By1puSPsR7g6x/gz7XdFZ4EXRMN+uh5x+x431HJjtW1KPG5WUp7vmoT5h//yDdfiBWDkuUS6bvKZp9wRy7h4NfEizqLTU2I4mC9mzZpl3mAIDXC5ukaka68/HcU/SSteuHChX07jPLTzBBJAWUnI/ea32FhcLk29IjWgjLcpZXClK/C6LF68GPKQNIoecWzGwHHeAJKqvla5GzHqw9YMOy5ZFNw3gMJKL2hpnbweM/EBMShuOKsj0jnaFtSI2i8frJY3ou3danNnQuTYFbkuG2ELYJco6jRYSoNeVlJTtkHb6wJd9Vrge+8O+UT8yuW8IFrrbkRHMLeD+m3VvZ5ExdhiA87rSz3fn/zkJ9/97nfHjBnD4PAT1+qO26XuhLHN61FnwsDmB8qA+Dk2opXJq3Y9uhv0XyGe1FooDkB1l/SFoZ1662l6lPX554OwTGBdLOI8bDY4mPQabwk4nwXnAmtZifOlDLqg3xI6Du8rhGbUqTTOe9r2D/KNBOf1WRttqqCyb9VMxEcGSaZee6rL6Vxstqws6oDQQBtw9hrYjvRXU0bHdwQHqzQlflUjWJx0jBrR5QgmJNyaZULn6ro6UteiZbB6wYIF0HypA8IQaMSoOa5JqiM1W9UUxWc7As7rRP2kAzRcupD+S6luHQnyaJXURfEw6hQC5qm1h5qt9nWw+omxSD9JUxUurQ41DfW9wAGyMiAXcFMPybtRhzF369JkBtEsge6YuBlqKmKjik+ePPmkk06644479t133ylTpuiiALtugVFluVcLcLIR3N4RDUo6viNwyumDvtFfBpkijDqA4dL4Q3zaSNzrOsxu1rSSiAmEU8drTvyrlgONDNbFFOehoNcta9AoNDnoOG9lnmwpKB1KnC9lcAX00+wQlGnypq5YeBTXFefrMfRRn2+77bZjjjnm5JNPHj16tADqsssuO/PMM/WlJvj111+vq9xwww3SMGfMmPHjIPosBDv33HNPOOEEHSkc+/Of/6zJoqbImYWhRRiug/XGPvLIIzNnzrzlllsmTpx477336kJnn322cEyz7JRTTrnrrrvQUYVv+knnXnjhhWqZBFjhxrHHHjthwoRGUKHVoDBEHbj//vuFij/72c/UgQcffFAYMmrUqD/96U/o8BootSBkVmekIXOPauSiiy7SjG5padF96RZGjhx59dVXP/bYY7/85S/POussdVKfBVY6/sorrzz66KNhJxM0qcNq/3e/+51GA9Kzb3/723feeWcj2lh++MMf6hI68kc/+pGO/PWvfw0bg/6qt5deeimPRn0+/vjj1Tfdo1Dut7/97WmnnXb77bdDcqtLH3TQQbpxjZUGTb9ix9aw6Io6RQ9a/VGvxo4dq8Z1dzfddBMMnPqrjullEPjreemb008/fcSIEbrufffdp8OE8Oecc45O0X/VuO7Umyk2Ami2gDmmDGLjMdcDiYZ658BitLcfForLpjivV0vHoKXo7xaC86xQcDKXOF/K4IqmBsEMmkeaLFSVYjaRYL4eOL8mhp0LZ6AT/8xnPnPdddd99atfFaAJPAW5v/rVr3QhAc7FF1984oknPvDAA5raQg9hmvBKICbAFI4JYTRf1KCOVFPYMTR99ttvP13o5ptvJltfOCwcE7brLB0mqBciqX3s8MI3gZjAWWCue7zgggvUsk4RNqLWqlkpukIPrQi6ouBOy9NVV101adIkrSBanmhKdyco+/rXv67V57jjjtMtaBW45JJLhI3qs25q2rRp5513npqFyuDII4886qij1CWNsAAW0gbBvgZBWrRO0WG77rqrcFVLkkZJ40BWr9YIBlMN6nJadLTZEf5r6fne976ngdIdCfTUW/hz1CxsY7pNjYPuXWfpG6Eu+rya1eKiG9EdaXC0HOj56l5+85vfqDXIFtQrDfuNN974xS9+UQ9FXdJda5A1LFqMdLxWKw21Fl9MQOqAbkptCuEPPfTQa665ZurUqRpVeNi6YqQoz4usJUBbnynAAUcl4e7EydiAY3O9c6b0uWifh4IenMfHpL/YggDbwUJ7BxGpMyXOlzLooinjeAbNOPi90ecl8KU3eids9i+28Qo/r7jiiv3331+YI3AT+AicBSBCSCGMVFNNBEGu9NuDDz54+vTpmrbDhw8XkugnXVSI9Mc//lGIp+7p5RR+ChlYRAShX/nKVzR3pEzqRLWJRULHCM2knY4bN07f4DbV8cKl8ePHC6a0U5DqrmYhWNMcxKGpYw444AABiFYZwZSOF/T9/Oc/P+KII7SPuPzyy+uxGIeUanVYeHv33XdriXniiSd0j9JgBc5aX3Rdabb6Xh8EOLr3k046Sbq9kFzNCks1LOqD+ia1U13VLuBLX/qSlrBvfetb+lIX1VXUuG4BO78WJgGpcF6jIazT8d///veFIWpTCKbB0VrTCLZ6XVfwqNs87LDDdJguLQzXwqHH2gh8CxpY3Yt+1aqkRrSUa7USOOtXmDDPP/98OMc0FBpJ7SPUYCMkOkmB1+2o/zpGR6qremG0DmrthoZUPVcjOkUrux7KakdqBZzXUqJXC8oaFHs9eji+yIcFydXVvxSEfFjyZIXzaCCuhkPkAJWktObSMtGM4O3mZ6FPLVHYbdR/Kg6sU/XAEudL2Yii+Yg2RfaKpjM6kv6C82tiNtMAG6zHrHy9TgIEqZRCGKmdevkFd2eccYZwQLNPaC+1WfCo2S20FKhKG7/11ls1lwUmwjd9o5krNNa5wtJvfOMbxx57rLQ7LNVC4JNPPlnYohkktFELAl4dKc1Tiqg0TK0dgjX1Qei05557Ct90j4I+Aa9OFB4KZgVQAj0cpnvssYf6I/xU39RnwaY6oK4KcoV7WhowrUuP1QFaibRqCJqkA6uH0pD1jVqTniyFVjCr3grYhf9CdbWje9QOQtfVrxoNdV7QrcYFUOqwrqX1Tp+FukJUqdOCUFwG0uEFFzpLOK/b0cFaFAQXWonUW7Wj7QZPR4uLBk3jqTsVtlx66aUaDUjp6bmOV+f32Wef+++/X7epodO9q8GfBtGA6DbVVX0QdGsAIVvoDEVJ1Kw6qWFRg1rmdF8aBC0x2k9pxdRSq5vS3ekR6Cc1rhEgYhyXtJ6XFkHSrgXv+i9E8RjqYe51Pmylt7A6aEXW+6mz0OdTnNcbC85roChQolPU5mDp84785+rquW4cB0daEHAQpcT5ISjCeZyGWG+ELS4sBQHCmt4EKWsVB/7pdRImaMoz8fW99tfTpk3TX01YQYqgSbMAChqnkxDPP3XqVPVKECHY1wQXVgsYBXfqUmeoS6UOCzoEC52BsgwfroCXD9o7CDnx1QripGcKkHUv+qyzBIO6kFTWO++8U8eoBf1XACi41unquY5Ew9T3QmMBpvqJw1oHdAYWMgEO5bGEwBBnobkJFbXQaIuB55cCSTpSTWFz1ip2ySWX6KakmupaulktGVmg0xFe6SloJWIHoaeg61prZVg0erpEFiJY1JpjliTqm4BXWwP1U8Ai+FWDxEnqGLWswdeXakEoJIBVO+rz5MmTsXuceuqpGsnFixczShphZyio5/pGnXn88cf1RNS47kh9mBKkETwm3Ducw1rXCObBeqNTzFfmyHZ1XoeROdUPF016sF/OFOcJFdNh5NISY6nhHcQ6I1nicYAQT0PqAOPBhvkS54eigPO8kJodxKdB600hvzTQcYBC6F1P5cGlSzXvNA0Jxq7H1CfNVqn6IDx2S07sDtk6jYQPxz+pV/WYMQq4NaKnT4iaRdoxwv/wIHdH0hgw2VfnLNYUggD1pfTbjkjnYlMVnlD1lhNpgS5xjE4Rdglq7KHgFrgLh6S6w/qsxUXQ2kgc1t0xI5VjtJxJdafz7hKY2YhBoY3EkubCo42wXEpFd4hpV1ITvCvJjfVj6k5yDfSsG71jMtfEbGWOF1hp7XNvG6E2FgRu7gnhoL40NjG0d9YC3K8kQ5mgAHy2DpyKvtQyoVdUJ+pzTp9n16nxp9QIn9UIdpvByodNL80SmQUWvhLnSxksESZA362/wnnNO2lrRNETr7geOI+koddp+o8D1MGf7qS0t+PPnVjaSPhnAJDOhFUsTUFdE8tYd8fK4GnwPMd0xDRY5wSlEfJOpOKbNMfW1Jp84+O5XFckulkdeXIaMXS/q5AS2xmTyPxTGq5fTxgPHELvNK40Vao7qWbujIDO3tQQ3ZFgwSuOI+HTJYB7bMS1w/H/HpCu3pVhc075epLt24jro9ejzsBHbX+reYYR6kmlVPNYb+ZHgcSAeBvHz+dwHtp5iv/qV60LlJTqJ2Jzk+K8tye4nrVf0x0R+lvifCmDIuA8Sgis4FRzIOskxfm+Amz6EU98f5NChA9wU8X/pmCS8wXnWki7lOqcff3Ntd/XMem1+j+m6Tdr/bWvRvw3veviwd4m+HbSW+vrxOIT7KvnA3zQTe+oO+6wBNTSaQX18M/AeCDdXgCIg5UXjw+E3EB3RhosK4I+LIgFLvV+uko73+gFptSIfhK6avkg3GVweQ9geHjqqad0104wH2yYL3F+KAo4jxVUU4xsFIw2OZwvSv+wvx7rQv/SF/aWsiWLViLB+4wZM/CeUHeDwq9wzkOGQA4sIO982LTaiKAe9uwU58mH1bsqnHf2RxacF0baQcR5Ce5m/FAdJc6XMkhinJf+Q9ahPpsAQbOmI9JCcry16/WA2SLyN9WoG9GE0tdhfTW1cUaklI0qeo56o6yTQx0sDDfbvGRBFGw1kBjbRE+8jRYFfcjp86RyY7cRzusz9nlKBw4i9UER59XVwQb4N6XE+SEoxvks+Iyo9UMKeQ7nbadNrcGp1HtL59okd3xXwv2OsT13vK3KNhrnWmhE43B93elzS9kUwuNYtGiRdHIB9cyZM1taWqTY602z4zWLObDgvFkrEehudC7Wj6b6PDivBqlLqGbx8A4qwL8peJB1IytWrCjrjJQyWGKcR3eiHDMF2phTuCBTNLYDdK1iiPZ/u2KBDHsnu6KkvlF7HrsSgt+0zdW9C05ZvECU6v2WIOyzBL9gOMWVTFxp2mHb5Ml+Rfk3cSXfaI0QWhZxnhfVGVLQv2+BOP/qq6+WOF/KYAkcXCblwDSamuhdk6gz8ut2RMJbWrDNhDrR5j9vxJyp1AIDYnckhLddkUF9TWQ/a8SQj3qMq+yMgY4c0xG3GI4PaSQ2n464QGzmkSylqegZtbe3O6iGSHhp9YJuc1TaFG/meczyBNvwAZ60oh9We099SWgN1hu9xjpYJ24JdhvhPCuacH5Q0f3/STk1hqCQD6tphVqlOYj6gdGGCcWRAP6kSZM+/vGPX3LJJZpiu+2225FHHil4v/baa//3f//3jjvuOProozWvf/SjHz322GNnnXXWMcccQ7LkRRdd9OCDD+qd32OPPf74xz+qqW9/+9snnXTSiSeeOHr0aF39xz/+8Y033jhu3Dh14PDDD4fIZcyYMRdffPGFF154zjnnqM3vfOc7Ov6II464+uqrL7/88pNPPvmUU0459dRTb7/9dv0kpVEKoZq9+eabHWM5uGNbCmsx+apEG+odwFBP7iqxlIjtNsC7a46wEMDqmdPnYdcE5+HqJJYep+0WgvMU0qJGcOmHLWVQRGqGNrlsk/X3ySefRNHSfPGE4kjUcqHohz70oZEjRz7yyCM777zzQQcdJIAVDv/Hf/yHEHv//ffXMcL8u+66a6+99hIIP/7443vvvTekjnrnd9hhh+uvv15N7brrrpdeeqngWi0IzA888MD77rtv8uTJWjK0fEybNu2QQw655pprfvrTn+6zzz5f+9rXhPn77befYFx/dTktBCeccIKWlYMPPviqq676whe+8PLLL+ta//M//6Nzbbof3LEtBZwnAxdrPNmyes3g2XCMjdnp02ojDqrUlzNnztSR6WvZEXCeZGFwHnuj4B3lv8T5plLi/BAUvX5MNGo6MO806ZrivF6S4447Tvq5/gqHBba/+MUvpJ+fffbZn/zkJ6XkC5N1jED73nvv3XfffUeNGiV4Hz58uOb117/+dQH7e9/73ssuu0zK9pe//GXB+C233KKDhfZqUJr/5z//+TPOOENYrXkqvV0LhzYFH/3oR7VrkE6oma52jj32WKnxWaBwV0+OOuooNahVRtN8/PjxWlzU/zT5qJTBFfywgLw0didJUShKb9qcKHMTsSUntdvoc85us3Llytdee00qPV5d4gd4N7YcnMcHTUjDliAlzg9BMb8NryVc34JT4Wpqt8F+rskojV0vrfTqd7/73ULmq6++WhB9ww03fPe73/3zn/88YsSIm266SVgtTP7v//5vYbsaFA5Lh5dmrqkq9Vu/6sTdd99dar8UfrWgY4Tnv/nNby644AJNbSnq559//p577ind/vTTT9feQb9qRdCm4LrrrjvppJMeeughaXraMpx77rl3BjnggANuvfVWLRwC/LvvvtuFkAZ7dEvpwXmBcBYt1dLSKf9tc43DvZC0ToeraUNZ0xTn4Tqgeov0ef1XZwnnoc0ZBGTvLcZ5dbtjCyCr7ChxfkgKnGCaieQPZsEVO2PGDFyxqT4vqL/vvvukhwvwBcgf/OAHNQHHjBlz6KGH/va3v5Vqra3Byy+/rBakX+msL33pS0Jpau3Bx8UWngoXn/3sZ4XM+kzoDmmMTF4dqe+PP/74K664QiAvYNeXCxcu1K/qpFqAu4ZudwYWMooK3X///dLntYOoB9b0wR3YUhBwXq8KOrkEjuJU0ojK1DJvzyzcODlzYkeItwHn9VboxdPrp//qJdGisIXgvIP/S5wvZRAF4kHrVJojmmKaJpp9S4J0xOCW7kAwO3nyZEGrZuWkSZME7JpfUt3vuOOO8847z1QzWPKnTZumidadMLpAnNgZavZdcsklUGA50qY7VJTWr9Tpvvfee6dOnfrwww9LP+9KahHSoM0yacaW0F47Ec10B/z8/0zWNTVsrcev6wHr12e9JJR0pOgMRW0cXYllXp9tz8Gkg1WHWiRkzuozOK8XT6+QXifsNnruUgxgzKMCJlRpRFoOLs5TdBK7DaRJGw7Uq/uVEudLKQqlTh2WlkXTjaaJpqdx3m5NPGtQVMFw2Ij1qVPI9QdCHDnLIZcpdyLY7tBKf+MeEszp/3JkGjPvbxxg2Rn504o4Vkr/kns9NrA1HhDx80JpWOhBbLhrbKXHUF9kPCAMHiJ3HWDaJeM85RJeeeUVQuiJvVE7Op4Yy8GVDcf5VQXpH/ZLnC+lKJovWEGdnAjdt+YULOuAM3BqVkMyleqRVrEeiXNzqNsdFwWwmi+JzzSbJauAPadUBmwE0kUah3fXm4JiPqwBqt6bUriYMPt/XfoC0vU+fv1we10FfnjhNmlQlIU1p4FN9ClfpU33sCLoL+EBjqvEHgixPymxZNTqWqT7aY3QCzzophvqnmgt01TqWC+7zRsF6R/2S5wvpSjgPDOOmYLnSPNRX1ILg9lqQO6KROim4c1RDRgWUrD1ilCPaF+PtMNrYj3ZemQt4HSvHTbspJeoJwjvbxphB2EL0rriWCn9LwQDWUqKp0ifN7OBLTBpdA3xNvwkJZ8QX1eb0k/6nswOeIkF7NLkTU2Mc7Y1lHGRYi90VftaVqAFHlycB+opK7N++bBUwk1lA2G/xPkhKPAekCrF1hhnGdWaNINMdd5I0BVAtou20S+ZZHfYCLAvcLWORsJRnDurHinTvbJ0R5OODzPIpBe1Ab/4UykDFD+R3If1Hk/8sAJhoS5RMYJuDDjEyRvY9dYZ/1PTjd5DfEbgvCud2RWLks8WQB8WLlyI3WZL0OeRDcF5zdCVvSUH+yXOl7JW0ayxzwu1iggH/F/t7e2vBeHt4kWSCoH/S0JlBxLb9VfalDbOLwVpj6LZrb98A9MU32g+6u/LQfyrPuvXlxOhBb7XzNWSpMMgsdFfqDUXL17c1tamI/UZJYfZof8SWU3Ih/5yaa7bvnmFe4cCmv+m8nJB9CWeRGjbsWOAlgDmglBrVUfqMAHaK0HYl6VjqF/NA4kZQaIvGQE9BS4BFLcHh6ZwVS1gHkGB1DqrD/qVwBgCn9LO6yw1pUtkIe5FT0QHkwALbtNbOgMvse0zucAb99ZCqRG9k2oZu40eLuWZwHkpJDpFjet9ps4InawNtmTB4aUVSuO5OpRHL9rb+5f0ffZkTMUqPTC+1gZLnB+ConlBhAPJ5q2hhqCDwTRlMH6yNaYeH2SwS4PwQWdRBiIL5n3HP6PM+IX3X8S6lq1GjvlJ/cI25NbCNpyNBm81s0B/dRdAluCFiYB7TpMLMNGJ3COXcJD25hT1X6NKALlAKa12bQ94GlIugYmC0BT2WUIwG64xdPBBwvCyZMMnw3VJQYWhjoOhgqcPcM6gLas1J8rh09QwgvMaZP2X/s+cOZNodveTMC1iZlzXm0Gm7rC/BMzpZArv5iV+vreg1WPbUQ/1iF06kBdA3SMAWKdDTayHzlmb+fk2FV5dih7C7LSublPAuR+cz9lzSn2+lKLoPTHHVJotpRkHdBjPUyWKkHUbS2EUMc5nCZj3I8a3WlDzkLR+HLCQBeSvxWqbFI8GnSgk5+A60mR42/UlU17tUH6UvXwt1Bt1saHNLFRWArdda6MYbWIKL6pygO1gPv8lwpwafDA96kvqqOq/+olBY5TgtWAcWCA4hVB20hCysBxAL6BLZCHnSCAPnApD4BNw1ipAzek8GnCYZ0rtVzRqCbn/rEp0XjcyY8YMFi9b41nInuotfM9Y6TNbNj3lVJ9nT8fDJYmDHcFg4HpzgYqZN7OI8wPU523Aea23pIb6Up8vpam4bmAtqadJMJgmF1H0AkzUYytR4DyRzBIhDFXhXOgzG0Apn1ygBbpcSleIHYlS0Yg+Q7+jD+Ah1oYsrE1s6r011owQWLH6vPTSS6CNPgNrg+KhU4cdW5iKeV1SxMNebR1eQIcpm7BzHJdmg6G2LzHq+snDgq6uEwXOXjfpCXxi1O8AjSnbpJ+0LUJRFHp0hRLhBCv6YK6F9m7CYb0GOl4vCUiLsZ2NmK7ofYc3KTxoP+4c83xRscf6kerzuhzmen3De6Ku8tB57luIfV49V380nkSR5dT1YkRNKlbX+7LPW8Nv6qUtSonzQ1D0YgChKL1gIAJJCNxQttsYQoF6lgASYUDdXB3kfoSroGGazAp1FBZxtYb6x/GCEV2FKYNJgfpBWon0kw6D3gSLJSq9+lwL9h8hjz5gt8ll1m9OUSdZp9hDVXpXvk5rKoF4fGY804xRQ1+OLgY9mdhF7OGc6OQj0A+fBdGz2HPoBr544mk7gosTONXocTmwFL4a0vl9aUppEBylwdeDIL6RnjDaWM+0uLS0tLBAsNanJvocQvJO1oKdX6ekOC/M1IUofKa3UVchiZtwfXwQmwnH+xbeNHgYKB1ITMK62m36kRzOr1qbK7bE+SEo/x9QSwMEFAAAAAgAAAAAAOhpYQ1wAwMAovcFABgAAAB3b3JkL21lZGlhL2ltYWdlMDAwNS5ibXDkvXecJFd5NbxKSEJIICQhgcFgWQZheMEmG+yXbJucbLAJxhgEJqOw2ryrjZNj557p6emcc84559w9Oe/sTtqZ2cnpO9W1u0gE4fcv8O+r3zN3n7p169atuueeOjd07Se+wN+46xCxfQB/T+IvdtuhQ2/C322HHqvH/wzHgw8cqv/d3ORpkzpt0SRt6qRDlnTJkk5l2qZKWQlLk6ENjjJlVSYtiqRZljCJY0ZRVC8Ia4VhnSCsE0Z0kpgRkZK4SRDSGsveyGwhtVhLLVSz1wbzK8P/E8utDKeXBhLzlfhcCWdllgZKa2P51RE4yCcxV45dLblHYqaSF6ZMWnudEoaFJw7rrLWgezT2axuJeUbjv2HesQQZ7xyK6PMu7MavlpAtHEPBjQyt1QBCc9lnqwXtAyE4xqIHh5BYk7Gr0zZN1q7LOWHY1eUcnpFYfLaQWxwoXBuCZRdq4amsvRIwZJ2GnNNU9FiqfuSJrBxDYedwFFfHtVAAlBCOdyzpGIwaiz7nYCx+pZZbmiitXM4tTKWuTCRnJ1KzY8nZwcLSSHF5NLc4HJ7M28oh92AsMVvJLw4Xro0WlkdQfuSG4qFI2qxDnbErEmZ1xoZi63FHebet4DNmnK5qODKVT89VctdqmaVqcCqpypr7fdJ2NZ1l5VsrfkPejdLqsg5t2qbL2FVJC3xz0WspxUz5lC4d08bj+nTGUiyZC0VVIqbLpyy1vK6YEYYzfH9B4h+Q+YdF7grXlpQFsppIkal0N7B1FJGbqfDRJN5GlqW11y0yVUyhKbV3UOkrmNMVd3XAVirIE0F1PmgZDltH/NygrEvPoZmFLItYEFDpC1bnUMBZCxnzbkvR6xmOeoai5oIH92WvBqxlv7HgRuFRTYaix4aHPBiGo805jCUvbh9w1eWdlorfWPLgESEejwiGSDwuWdzID6j4QaUorpamdIoMcKuVJfVoBeqURehXWUq+zHw1OVcGQvCcfePJwFQmdqUUu1J8sUVnC5GXNZwL9EYu54Fq/0RKnjAJQxqeXyUIqlE24Dk0k8NRpAS8kVtoOhuYTAens8gcMcn5Ck5HW0gv1ZDMMRThuGWisE5XvyNgEu0RNW4qew1FN24Nz4HEP2GjMc9IPDiUCgwnPWNR13jUOxLLTw+s7W7v7R3s7h+sHeysH2wf3Nj2Sdvfx9/BXt3267sHe3/IyFN/e3f34GCn7v+Bbf+m/Y7Y3733Mqf9iW2HetOavoyam9b2pfQ9KSM7redk1YghLKvqy6i4hINdFQeWVrGSclpMTI2KKGERJSKE0WMSZlLOKxmUY27psF035fet5MIbpeB6MbxZhkW2ypHNCmFbv8OPblWi2xUkC1wveJYzrsWUfS6un/SZZoLaCa9qxKUccarHXObLIfWoW1I1K4ad4oqpN6VgxaWiisk4HdBN+LTjXiSG6cZ92NVNEqaf8Osn/djVjHm04x7dhBc5iMpG62w4uFYMXM8rh52ctFJQ1CNDblbNL+gkVYt0wCoqm5AMjmrEKR+0CUsGfkEvLBkR4jnwshrzVMC3mI6ulWCR64XgSs46E5ZVTP1pFT+rEeR1/XlN/RQDchZXzSg28lEM2xXDDpRBM+qTVz39aZOi5g2uDCY3p8IrY975IedM1T5dcV2u+OZK0dWB5MZIYn3IPpOUl5zG0XB8bSi7M57cHElsDgWvF0wzIWSLWzNfDuMpofz9Oa2kZhEUDcKCQZI39KfUqgG7ay4RWEV1FCKbJcuVYG9G1uZhHZVdarayDBN+PC7NiFtYNHKSSn5O35dSScpm7YhPPRiXldL9yQg7FOyLJUX5EjeVpfnD7Gi8P5fjZHJd/kybO0/113qCozR3qdMe4cbSinyJZvc0yAzdxhDNmqVbyk2S1AVuiqoZZeon2uSFJlmUZk+IUiVRNksPO/qyTuV4QDnhbPGwT+s6Gyw9DWYWNSyQD5sMEy7NkENc0MvKJuOEzzjhFRX0/KxWOWCTVczCvE5Ws6KyeAWdYsihHiOqFU9bPmTHE0AdARiacQ8ei2zQhhhUgaBkEJT0vIKWnZBRQwJKiEeJ8ZhpcU9WRk8ImQmRpGZSjzplNYt5yh9aLeAJB9cKzoWEYSpgm4vVkZl0LSSdiwnCFhLE7hJh7sUU7Df9xaRzPoGzHPNxhLarUXHFDKQBRXCASeTgmE+gEhVDdvUoUU6U1jgTJNP7V3OAaHijjEbkXc4YpgO4o0tmaoOVTo+K0TZlAzYS85oxt6Cg5+Y0aCYE8scJIxuCeTRkHgsbJgK6Sb9pNBCbKizsbmwdHGwT3Lq7Rvx7i51u0uvBPsmK4F2SYW8e3v9d/m+w7Is2IslvRf7/bDvEzCrZBWVPXsnKq+k5LS2vYRSVzAJhcBg3HXpBQcvL6XkFJSPtTAg74oL2OL89LuhICLvT4q6UWDRud2/lratJy3LcuZZxbWS9W3nfThGOezPn2czD4Py2T4RbROhcS1tXEuZrMc2sr6ekZuWV1JSEkhJ3J0XMnFw67hCNWvsHDPIpF3yEimm3fMopnXAo6r5i2kXYlFs57VbO1G3ao5zxEMkmnfBxCnLgD5lQQhTMtpoQDJv5gybVZa9oxMIuqGDcqo5b 3OrenZRxalokblqxosTcSGE4jFbf83Aq+qMl32u5WRgI+dfz/quZ7zX0+arQdmQRVDWSgdNkmELyol8kENvWY2sGDk5q6Bk4RJFZW9ZwykZuWUrK6MXDrgcyyX7UlkzlZQOhwQVn6Dilw4FNWMBNCfLlahzMW2cCYurFtWo27Oc9a7knAsp17W043pKPxfCrbk3suGDGnbr92Ik71E8ZBHWjH15tWLMYV9OuNcySObfLWqu+ig5cUOAfVh96bydLhmxS0Yd4mFbT17Nyqp4VSMrqxQOmtXTAflYUlDL0JPBVq+rMxRhpYqUaLbRHW32JbpieUqqeDEcOx+ItcbytEytM5ZsC3t6Cn7paJxX9DLjtv58gp8fEmSn6Z7RZs1Qh3bmvHDwCDv1DNN3UhykeIs9iUKb30HPusSTIdGk87yPddTYfs7FOmWhNId6+wc1ygmbYtTGL2vFA0bdtAcmKGm5BZVy1CYZNPYXVeJhi3DYjIdJ1NFlLx44fLJ+aRkpHj58VCvxNMZsAIxk3CYm8GNERdAzUkpa1Jnup+XFzLK8OyOkpUW6q37n9aRrNWldCLtWkv6tgms9o50L4CGbl6L21aRxMWJajBqXInAIfylqvkZarG6/y1+6GbMcR2hZjllX4raVpHU5gUOGhTBqrS3S34l2FOUxcwpcC00A18KlfdsFolGsZ5AYIOyr6s46KGesXe0RHhClueL37xQBY5SEU9YCukA+0Qqm6lZvCFpCYfjV0x7NjNsw7otO567tbezsH+zsHWwd7G8e7NygyFucSdDp7u7BHkmvuwd/kFv366lI23spsSBmo57Ny20vlrwvjb4R7t+k7d9K8L9AuR4CbbELNwxMSs+r6HklI6cijHCUzLwKpMAqquHQsorulLQzKeqIC9tjgvaooCMmpKZl1IxMOulybeatwM1K0kk05pxvq+jfKXu3ir7tom+rRNj2S/2tur9d8u8gpuhcywJ2thWCNXqKanpG1hHld0QF3XERJSkG3/GHzLxBk3zSpb7sgwFwAJBswikbdxLhpEsx6a5zq1c54yWIdcqjIugVvlc17cWJvJqxv2ZUX/Yb5sJIKRqxIl4zG5CMO7hVA3/QrLsa0l4JILeekgaQRZskcpsGQXtUMz75hIs3YAT72Bai7pVUcKMQ3iqFNgve1Yx1LsIv6wUVvWLErp4E6RMlEQ5ZUOzekqavosPVpRNOXJ1XMwkHrbyqtRdyo2SWjfokw15exdFfsvWXHLyyU1RzCSpGcIqwopcNWxUjNl4JlG1WjzuVY4566DTMhazXEvJJt3E+Agd3hNLiWigwnoZq0isesPYXDeoJr+1a0rOex+P17hQUM25KRnzORXtafvGErqOvZOBBsJdBqWouVHnN0pvXiQbtqqmgdCzBH0jSkr4mj709GGKAW2PFS67ERVeqOzHQlaqdC4fPBHzNiVR3Lt+ZirXEbeyaSzoV4A3Y2TljfyUgGi5xi9Vuf7nJVO4wT58R1A6zMz+nBI7wIt3uYXZ8sM3rY6R9kvGoeNJz0c85om8/Y2edNtNaQlz+kEEDmhixiaoGPFLtpEc94eLm1TA8EH5Z11/QSEbtqAs8W9yvesbXXzX0lXV45nj5MbJyhERMRQcg9RaJqoSPhw+Goqdl7RF+a5jbFuPSsmJWUU5Ni2lpiWEu6AR0ryXMVyPu5XRop2K5FscTxrMlYLmasi0nLUtx8yIYM45DeOyW5QQcyzUyrNtS3a7dSIBT7CspnIIc7Ksp+2oaMTdsJQXSFAya20L9rSFuR4RPS0mBakTiKFqNf7uIRuTZyCMf8QheDLYLTuZFFwPtoqegRsrgXgUGALDzKjwH3DvwWedWD9EKptyaSa92yq2ecWhmnMZxT2I6t7a7QXbY0eHf29/dJynrJoGBdXcPtrb3d8sjk6HkQDBei2aqsUy5bpW6vcSPZyoJIizEsoVothhJVyOJWjI9lMnWkqnE1MwQuHV3dw8bLrJb90jSwdWxi3ALx+tcv727Vx+DONjehmLe39neIIh+b3dnb79+dB8nb21tIQei4Hu7+3s7sD91bu3JKTh5eV9B1peX9+YVbJBpRs16kfVktWhyMHZWw0gqaHEZjBqTdkcklIiEGpWxUipWWqUY87iWc/altHs551stBtZKwfVKaKOCMLhefhkLbcAqgbWy+1rWAVG2lLFejcsGHbJBp6Bk5ubQjzMSAxdZHb9g5BdNkppdOeJWjXjUo14N0f3xq8fQM/KpxwhfO+7XTaITFERI7BIGPwhHOeLpR0/5humRJzKU1GzIU1g2I0Y6YPehM7hetl5NIAbXRYx8yIn867kFhGULPSrDicapkHkm7JxHHzCD0DIbVQ27aSFxX1ojLlskVStS4lxegbgQTFSxkAXAHSFeMeQSlsycjIaT0fGLZnHFLht0K4a86tGAZgyi1a8adWrGndIB3KyRm1NSQlxWQtyTknBzCsTwCmopuoQTAeQmKJnEVeIWmHE5HpGoYkWkrObkZY2MsFxStuknQ+bZmHUuYZ6PSYfttKT0vJV+TNV+1kBnxpTUoJQSlHIyeknVAePlzdKaUzseVo1FpCMxTj5AibgZiVhvpkSLFhvsyYv2NC0xRo0PXQomX/BGWqIFSrpCTeZagi5m3iccDnNLHlbSwU57+mrR3lKqMxi7ZIp32ocvqWvnpJVj3PQpUbbTPsbwD3W5w+xkSD4al437m3zco5r2s2ZWo4Pb5OrrjoqEZSOepKxmFxZNWqKf6ycebMWqHvXg8UprNuWwW1S24MZVox5UEB4yHoVxJoJHjceOhyyt2RGifhGDQ6hNGKoe1deTUvdmNVy8PgtqVkrGTEp6M0rblahvJY/adM4lvItZ/0rBNpfQTQRMl6OOhTSQ6b6Wcy5m4KMz4V7K2ueTtqsJ+1wSDo7etDSZmEzmXEwhtM+ngCgSqwCSfipomA7B4APkKC3Kw4jKcC9IRmR+LYdWE7heQjtCozBMhVDFQPhFM6PV3Yda7stqUfvRrYHI1gAql5vT4VEgczwKxGvG/eS1DJM+/ZRLO+PQzTht457MdG5jd/2GyrzR+69r070b/x4QSnZ7aW2VI9AfO9137ITk2Enx8RN1O1m3F/knTkhOHJeeOCE9fkp45DTv+dP8w/BP6I4+rzh+lHfmNNVodm5ubu3v7a2trW1sbIAWd3Z26uS4T4abW9tbu3tbuwd1KY1IogR7e7u7O1t7O5soE6iVKNDe/ub2HkHBO9jfqY8KE6p6f3+7nuxPdyO4FazKyylg/VllX1aNBo/GVjcdYWnC783o2EkgQEGPyBkROT0sp4Vl8NE+e1NadkItH3R7lvKeawX/cjG4Wg5fr4av1whbqxL2Mv5aLbJWC62WvYt590LWf60QWa/5lgqh1YpvKe+ay7jns7rRgLTsEObN/Wl9f8bAyxiEeYus4lQPeXHIMB7Sj4V0YwHtqF874keMfiyoHwvAwS7MOBFGjKzqxOlc3E5CU89Hz88aRQWLtGxXDrhFBaukZLNdRrvK2S7HcS0k60tpYdyUDlfEdVvt3OPS1gt6Oj0oZUUUfUktkWFKx44oWu19ZzWUnphaUkI+VmQrhg5NG/g5kyBvFuRM4qJVkDMiMXJWDDjFJStRgJxRVnWoh70ovH48aJgIIdSNEa3CMAmqdWhGnT0J6RlN62lNyyUzhRUTq4btkjLyNEnKdpSqN65GGZA/ClN/Jg7Cj2saDawj/MYWC4cRkrOjyr60jpvV9yRVXQHBeRPtpLLjkpFF8YkbTT3ndXQUWzXoVQ16BDkznrNuLKQdx7skJBsIcrN+Xi4pyJdZsWKLK9VoT9OjY/ToeKu/etFZaveO0sNTjMhYiytJCcV7U+neRJrmj3X6Asx8uK+S6YpEL1qCtMAg3T9O9022mAdbjAM0zyTTP0RxRzjJiHIsoRj3tYJbFa1nDYx2t/CsDsVru2RmUnwiYd7Ezxg1wz7ULN4WuDVUFh6guGBW1Fx4pEigGnSj8DiE6jNNRvDkeVkDjqLeUekENsaDdVQEFQMuorordvjWy1HzbEhSs/Qk5ZwkwK81TQT9i3nXlZR/Luu9kjGPE5gxT0Xts0n3Qs6zACimnVczzrm0az4DoAKZiKmHWUDUPZ8jfcLmMy7ELGSd9QRwkA9qihaU0ANSgIcWgEmYYbm86nJcQbZpy3TMMh0l8wmulCJr1Xo7quAQ6gUGqDeYUGUioAj1DsBH1wcCy2UUEjBGvevHQ5oRH3Z1sHoTMI0DSB7dtNMw7bKPebNT+a2djZs9eIKh9skhV3IIYO9gd2djd39zeWNbogjSGGGhYIbLWeD2LtVtsW4v8ft7VmDcvvne/llW/1Vm77Ue1gavZ0PcP8egRAzG7PXrO1tbmyQhbm5u1jUp2POGAgW/4vJbe7D9rd39Onvu7BEGRt7a3V7b39/Z2N7DUSTb3Nmv8+/eDdW7tXYAbt3d/oME90fcDjHzCshVCCJ+VsnLaPogprLavgxhcDhwsmBYLV6tzLgCqo0WltIjUnpYyojImDF5T0LJSWtYcaV8wOlZyvmWC4HVYug6wFGJrFfCa2UYHGK3HvMSf+2GIU1wpQCx4F3KhlaL0Q0AKw/fvZB2L2Q8CxntqEdcNosh8UpmSckiLJhEpBUJk5atsqpNNejUjnj04379OHjKb5wMmiaDxomAgbCgdtQnJk4El9n7M1pJxaKELs7pca5xikgJvhPkjdhVD7sVNQcvqxPkDZISLgpaNEsgmsqWdlffUUnjRSOVFpYwYnJOWgtZjYeDJ9NgY50z0iBXoS9AjuohtwriNG/k50CgemSFEsJERG4W9ZAHjQpEBhbWDHuN40GCWAluRcl9ulEvlJp20qeZgF72M+OyE+rWk5r2c0YKIy5VjDj5BQOKh1Ih7E0oEfKzeFVoZRWrbtSHS+MSrba+Y6LmDhePHVf2JFQwdkLBTim6w4JzFuoJVdt5A63Ryj6j6TqpbOdmdASZjvkFBZOkYtPjcU26tdMexbCHX3ALijFBschOFNs86UZbmhYZZUQnO/2jjdbBduckxXeVHphtsZfa3XlmpMqKDHa5qo3mdEcow87V2gOZs5YgNVqlxwep4cEme77BWqD4R5jhWrcn2JP0yUZDsglXc6D3hK7tvIXR7hWc1lKPK9vOmWiUsEQx7EY3heiUjPsh8eSDLmh/+bALohXPCtWtHHCgom2XowaixgNgTPKZa0e9+jE/Qs2IB88TeDBPh5GYnzOgoi0zUYhTx0JMMWLrzUDvq7kplbJqc88l3VeS9qmIuuqUFMxAFPBjmQ4jW/uVhBNH51IeYHIRmEwTzgJ4NuWaSzqvQu2mCLjO161+yF0/5JpPB1YK9tkYJ6liRtBqpEyAJyyhhUSMkERZcyCBtV5+x9WkZzHjXcqhRcQ2a8GVIk60Xo4pBhyqIbekbKUFxT1xBTeDl70aIEcatBECZgW8ftwG1OCI10CAn8C/YQyaI6hHv23Ko5vyWEb9qcnC2u7mTZVKcOvewSahWnfrU1dEJDrf2/Mr22JZkkEvcvtWabRtKnWXSt2ph6Szc8uhd+/Tuw+otO1O1moba62dvkulH9Ape2zmSkt7XGMqX1v99WgAqVVBr+TIALkPYt3cOxiZmClWBsnuvdftYtG7S/lUXbdubeweXFm45nAHrm9sbu3siEUipVwyf3WGeBvsbtQF7J/udohKzGIp+3IqbkbDTesgcHpy6pumgnEKWmKuI6OkJ2W0uIRYIRAVIawvD5Cx00SLhSMbsruWM97VrH8tH1wvhDaKMDgB+Jul0EbdNouE3fKRZrMU3CgG1gq+1az7WsqzksEpkc1yYC3vWkraF+LOpaT1alQ6YBFVjKoxl37Kb7yMPr4XvWZJDd12bR/KmVJwMip+SY8Y1YhDOeKsp/QZZwLGmaBuCv0jD9ILygYcci4mpDULupySAUt/XgsHuSExDvGLxHyruGYWlg2EUzUrh4k5aM04WMYBo4YFJ1TNl6z07piYmpSy82pOUcvKqTojwlOmrlPGrv6KUT7uUk+il+rCRSX1rPhFnbBirC9j8EgHrYohhxYyvOLqz5qEBYsK0htatS5aCZsM6ib8msmgBlwwEVCM+agx+RFlG+wFE52eUCrH/aKaDTerHHEgZ9yUbIjYxaMQVU24hGHaLx9ytDr7Tihau4NCUDMzKe/JKGlxMT0taQtyntc0Pi09d1Td+IzkbN3OcYsazZQbxitrhVWDfsarvexAX1I+Yu8v2njFkKCU60nl232ZBnuaGhmmxSc6QsMX7aUmx3CHb6o7NN1gL7T6CrTEEDU60uqqXTCWmp3DtOhUi7d61hrvipUoyUp3otTgSTR6UtT4IDtV7Q75mCmXcMwrnba1xntO2dobPKwmT98LFvo5K+2ii83MKEzzMfNi3Hk9a19JW5cSVoBhKWlbTtuX0+6VjHclA5D4r+cAHttczDYfc19Lywas4qoJFaqf9pNVX69fv3E6gOrA48Ihx0LcvhC1XYsqx2y9WVlfQclKimWDFtuVsGsuqqha+5PKfjSHnFpAgMqiqMPAdDlgng3b5qL2+ZjtKsI48rmxbGAxCaA668sDXDd8cHfctZQChlE8JGYnZd0hPi0ipEdFjJi4bhLUHRKbZkOmyyFk4rmWRvNB6whvltAEHIsJYA/gVwzbpQNWwLUvo+pNK+Hg1qLbFZyLo8AYioc7VY+7cLMwLeQqsXgmpBkPqSb96imfYTQYmype29vcq09F7R7s7Rxs7xxs3ODWLXLJ1N7u3s788q5Imqd1D/awNzqZOx2/37qoB93Ugw7mdgtntbH3egNru4W+3UbbYnCXLnb5ZZbEyibBfWtra+NjY/F4fGlpCTyLGOhTFGJ3j5DNYE+DxdkvkG7v7g0PD7U0NVw6f6a7vWlksAjqROqB0enWTtrw6GQskTx39mxrc6NKLtnZXD3Y29jf+9PWrbS8iplTcHKqvqymF0IsbxQNWEXgMoSDVuGgRTBo5lb1jKycmLVPiilxUXdUQC69YqXkPVkliJUel8hG7J7rWZJbA2DVzSJBmnVuJf0gGflif6OEMLBRwClgVWedW7FLnui8lnQsJRAa0XdDeaom5ahTM+HRoqlM+xGCQBHPK+lRAGZS2pNR8Io6UG1fToMmhEMK8OwoMfODlLJBcITOMOOP7w4YZoL8kkFQNoqqZnHNohpzkyIRu5yMWlgxAfH9YG1i8kTDLWiREucKSoYOP/e4qvmig96ZEHanpMy8qqes66saaGnlOQfztJXKyCh7CzpOiVjHxivqe7PqnoyKnVbicmoQ9KgLjhTcOhmSDnq4eVN/0Swf8aongsoxn2rcr5kIqicC6nGffMyrnArKJ/wwRkZzTNt1WNX2goXRGZFyy+aenJaZkPLLenpMhJci2LAnI4dPiwqZCQkrKWXEJZds9JOa1q4QjxoVMJISZlpKiQnoKUlrsPd5TdMz8vMn9W0n9a0nda3PKy6xMjLpsEU6ZGWlpLySRjsFHnGbp93qEZcgbxMWQpJygZsuUYKFZkeWGhxhxSaZoaE2a6HDUqM6xunOyRZ9udNS6w1Osb0TXebBduMI1T7fG1judk02Wyu06CinMNVXmaJkapTsYE9lSjQ4LqlmpUMR3ZWobTXcPyhvjzAZST41yusOcqkRHiXK55Y0uss+9ZQbJh+1gfq1M17lhEM95dLN+FRQ1lf8pvmwcS4kHbMLBkzay377ckI8Yu2v6KSjdumoTTrqgElGbKIhi3DQ3FfS8qpGLShyIWqZD/tWk+pxcKuUk5d3R/tlo1bzXNC5FAc7S0pG62wEwAPegCLxgBlPm3gf1yySAbOwahSWTVJiUZ2TBI9hOgBytM5FrQTFg7jjjsUkzL2cti3EwLM4hPcfKouTUfakFb3ASQaCRq0YdeKVoJ/xg15dyyk0HxL8XrwwrufMV8PCKi5klQ3bNBNuvKHxygcsBRUCTmgs2ikvKyVjp+QALQAPnGsJYiUMPR7teFAzHlRN+lRTXu2oPzRdWNrbBJ0Rve8D0NLWDsFse/s7N3QrdCS85bV9vijb1lFjsDY6WJsvZ/S9Nvp+K3ujuW+5kbPSwN5qYu63MHbo/IUGmkfliC6tb+zs7e3s719bWWltbf3hj35ks9mur67ubG6ie3+Anv7e/urOgVpr72VR55ZXJAKFjC9YvD7feuGiWtAPyl/fPVje3HV4w2arrbmpwaRXW43a82eOry3Pg6L3drb+2Pz5ctuh3jzav7Q/p+jLKUEEilGP+1rOvZT1XMt5roHycvZrKd3lIDunomdk4FZIV0pIRAuLWXF0itV9GQ07qaCGRPJBR2Ct6FvJB9dKofXyy1g9QSm8UYERMWsl/2rBvZSB4XQygQ/XnU+4FlPOhZR61CMbsCN/zRjRWVaNuOCQ61h5BX2bm3PeSLlkoaMMqhE31DcnrRIUjbyCQVgy8fLQHVblkAsx3KzGMB2MbQ/g1mQ1hxA9/YoNIXx0h9ERVgy50DtGvxj544o4F6f053VwcCH0xC9ZGMcVLY1OVmdcSMsomNA1QzbrYko9FejN6dhpjXjALhlwimsOTk7fk9b05UCyOkZCwS+blaNeGK9oEtXs0J6yEQ+3aOwrGuRjHvWkXznuVU344CAk/EmvBlJ63KOZ8rMzqmPq1mdll14wU5o9vQ1OdoOdeUbfCfl8Wtt+0UJr9/Y12Bjwzxm7L5ipZHhE2fCCqbM7wodRogJqTAiHnhC3+HpO6dtOGTou2VitHu5JTcfzsqZGG5sSFHUHBBdNdNSpcdzvnAraxrzWkaChGtLVUoahAVlhSJge6wkOs0LjgsScKj7Xa6ixVANs+Vg3b4jGG+sRzwi1CwL1bI9ktFcxSVdMMTWXu1QjFMM40zPDTc1zC3O95SvMygy1NMkp12TlpHm6YJ1N2+ejvKKs1dPV4aW0ObuoXhYvKe6JCSj+ngZTxyVTO+ycrrnTw6QFORcMbV0eVn9WzszIOFW9YsbLGzR1J8WMnFI+5TEuxnhDZhq6+VUDp6zvLRp68YYr6uD05HXcilk27tHOgo4TzoVkdr1sG/eIihpOTtEZ48kmne71rGc1Y5wK6Ee8RI9+EZa2zyX0kwGA0Hol5lpKmy6HpQM2ac0mqdpEJQvQwssZ+nMGft4IOMkHnMpht4YYMQ+ZL0ess1HrlahlNmq7GkdouRwxTYdNM2Hsmi+HDVMB43QI3XbDVNAxnwTm/SsFNIcg0SLynmsZpBSU0K/yA/O4rgSCOqfj5XTcrBZoBESB+dOajotmeruHS49KiAYy5kNpiZyngsbxgGHcr633SHRj3uB0bqm+BmufoLX9XWJ+nhCQ+IeY1iIGC9YIlbm+w5ek2qnDVPYmhb5DrRulbrd80umk7bfR99rZ6x09q23s9WbGXhP1oIm6T+9bbukK6izJ5a2dTcjLPUKszszORqPRlqYmJo02XKlBku7t7Gzt78+vH6hVLmlf89TqCrtLbJFq5g9WmM0sCYW5e7CyvHswMHE1nMhKxOL2pguMzsZ+drdE0Le3s7m3iyz2/iDB/RG3Q5y8sjcr5yHMyNkZpWYqEF4n5pcQRuBsVv2bJctCnFPQglu748SPBaghglh7UypYT1LJiEopQSHBrdeLsJcn1pvcWia5FT5OAaWCWD3XsiBZxMAhzbucA+aAIaBKMeQkRiHHfQAQiXU4uPoZTSf47oKJBnZQDrvAp0gMB2eJymZOSg04IhIhDGcR60MXMuoRn6RsF5dt/LxJUrFrxwL6iRBCUcnanzWAo5FSXLHgFDI37CISCD6r7+7091MSYnpKys4qoNa91/P2hQQYHJcjijfqQ+bwwcgoM87l5w2CooksMFk8XX1Kl1808osG1RiUeH2pQ31uFyF8KGtIofp4q4+dlIM3jymazhq6mhwskOkZXecJdet5E+UUwacUUO15M/Wkpu0FQ1ejgwWePWelnrZ1t0S4sLMu2lFj62Fd83Fze1OQA8XdFOJc8vXAWoJ9Tf7eF6zdp02dl5yMRhez1dsjG7b6VjOe5YR1NgBqsMymjTN57URFNlQTVYb5xXF+cUZcuqrKLTKM1Q5ZgaYcoUrH6dJplmKWIZlgyMZ71RM96vFuyVBTX6FNUunWDV2SZ5tMxXZvlZ4cO+9JPm/0vuByX/QY+EMJ1dUcJad9Rtv0c+XZI8amn0lOH9e3dcckHSHBEWXj91nPHZZfOqpq+gH78POKhlP69mck5ykxoXrS25fSCjIm03hEWrJzEzrDaMi3UAhcK9mmE7qRgHUi5pvNBq7kg3PF8Hw5slCBhRfKofmi93LWMZFwjkY8gwFRUM7w8PozKnpCor0SCGyXwlulwGrBv5iJ1DkO4AQIgRngEH5sezC4VgZLAoHO+bRrIWudTRqnIjooxFG/atirGHRLKw5R0SoomPE6R3UDRaQyAH5wFugSHA1uhU/ugljBsLgEAI9LRDaraBdoEUgD/KiG3TgRCXAUhA4pA2IlwQyAAZAnlK0v6LqaHT3gWeDqlmnHvEZQ/JivPnTu1o/7QjP5F3PrXp1bd+vcSg6BHhysw9bWd8GtbdTh7t61Dvb1l7E21mYba6urZ7mbs9DJudbC2mxi7DcxNum8uRaqR2+LLm9tbxzsr+/urG9vX5mfLxQKDCqV3tWdT6X3tyGd9zZ295d2Dqxmj6Tn0uTqSsdFtkttnjtY5XTwhB2Mtc2r4dxAY1cvk8OjdHWqpXwuq1Mj548Mlg/298jVBn9s/ny57VBvTtmXV4grOn5Jyy8bjbPRwPVKsG6hNWL5FMmtPXk1NSXpjAloMTEzJgO3shMK1DTen2BY+OAOklgBjj9IrySxktwKGAG+JJOSOUAsAHMkCmFAJwwIIwYiieVWXjjgLIQoBogVr+4mO5sekQDEADQQCcmAowA0IIgYYoIuTZAsmY+0ageHglLREkCvwqIFDggR9CofcPWmNMiHPB13h9zQBgh9MRno9PEIEg/jIQjYGRm3oJINWcxXQtoJd39WJchpjRM+E2TIuFdWMYsKevjW6ZCsbBYXDLpRN+LR2ZRXLfoxr3oY3W29IKdXI3/cEeTGuM8w4SfmsuATPyFzasZcepBIWtHqYrc4WW3unu4gr93T2+Rktnh7O0K8dj+3M4Tus7DN39ce4HaFoFKJ4RpUU1tS1J4WH7F0/FRx/seysz+RnftvyQu/0jY2RLitCWFjhHshxD7npTdH+5qinHNu6lknpcHHoGdEolGTZtajmXVZl2P2tZRyJsQf8onHEoKhND0TFQ4NiEfHWNlKqzV9jOt6jmW/KM1S9BMM40yzpHa4O3CCEe5S13rMY8389JEOZ7MwxTDWTvO8Z6Q+qr9ECxUbHKEmT7Q1GDrj0LbH7cLJVEtC/Sttx3E74wV371P8888ou7pi2laf5Jiy/ef9584ZGWcN9J9wzpzUdF+wsA9LW1rcPGZE0anjdso5/XYlRcV9gd3WKe9lGkRdCk6TgH62p+00vfl4+7mjTWeePn/sJyef/sHhn3336R9982ff+9pT3/zsN7/8qa9+5u8/+7F3f/xv3/bBt7/9Y+88JWrk5/WG2aBvo+BdzxPdqevF6CaBT1Iu4JWPEFiNbtUQupYygCi41X415ZhLw0CyCA2TYUAIVGueiZmmo8AP2BBYAlaBorrUJV7AMmIRnhOwhANiJfTsbBTcDXpF5iS3QmrgEBIDh0gJzCMBTkdbA7eCVYFnOG3uvmPy5pOqNkjXLj//VuuAQQ4bxwIEt055SG4NX84vvoRbd29wa/1HrvVFWMSYwPragVCc7qQNdnFWm3tXmntX67byO3z2Bui1u2eFwlns7r3WwV5vZW63MtcY/CstNLfeGlve3N4gCHSnWKty+vv7ebx4JDI/e4UY6SW4dX90aobBt/7i5yeU3Jap5Wu9VLFBpJk7uN55niKj9SwuT/3g54fbadxLzW0SkZDfx5ycGCXGL4hRDIJZIVz/2Pz5ctuhnqycm1fqJpyOxahtMeEjuK8aWqsS6nWD0K2+9aLxaoSVUXYnRC/mVtQueIrkQbJTE6y/6m/09P8HxBq6qQtIlQqSJbkVzAj0gBDx2sclyDc/CRpiqWM9JLmVHpWCWMluEbq0gC8xCFC1ggeRHg52EUlMrOf1yA0OYXmjtOoAmUKoympOCFUwLEQH1AdCbkYPmYnTcQnAGpngtUHSeouzFxoBBNcd7WdlZf1lNa+s4Zd1jLio0Uaj+PtVQw79uFcz4hIWdIKcBnwKtoUPniV9cCto1wjoj/nEEDUFo3YEnItdr2HcZyR42Weocys3p6RH b1pOTMupoR43cH+rgCX+KVmiMdATETQFebDQKy0uJgYAY8Ku4gRAAE9KemMCxtC3OYo/7i1+2lt8zFr1wte1i9Ul/6Ld/yMm9GeFJ/1ME/aO4+YWk7ZOppDve2x/qYAuy3MoSYFF13U06bWpgBLPuXUzYWYeS09rZGMBPm1UHvAwK8kxIO5Tr+n25Ns0kXOyf1d1rIwMieJLHVqysfZnnO8IMs2aMwsSz0TnaKIyDGgiU1166Jse8oyMKstj0mzFWmh2hsJdVi1Z6ScNpv0pJT6C/b5C1rmORXjhx2nnmo9fZjd/hzt4k8aD3/tme9+/if/9o9PffVD//rJj3zjHz/+3S+87ysfe++X/++7P/vht33wXX/5rrc/+b53Pf6uJx9806MPvP6h+173mrsfvO8Vr773rvteccc9d95+z123veKOQ3fcduj3bbcfOnQ38bGNbxz5Xl9UCQx7VnPWuahrKeVbzgTXiqRuJSFN6oB6b70Aw65/pei9VoD5V0poL77lIvgUrOpezEGXIBKygNQH5HgXUA3cglUBJzjgTUARuCIFBFQqmhKpS9AQ7HMJIB9pQNAANtoCqRtIboVKQOuDoIGkOCprel7SgBBvfUAdRvaW1JDJI149eksTLs2UWz/x27r119y6c4Nbdw72dzeuH4hE6W5alcpZae7ZaGLXraduL/VbGbud9D0Kc4vBXKOz1imMrU76bgdjncWba+0KGoy51fVdEOvm/t7E5ZlYMjk3N7ezvb23vbNf/2bB/s7OlYUlZr/h05/6opjTOr+xZtX5+ul9nlK08XSrz2BZ25j79g9+IpDp6awej8tpM+ucFt31a1eJJQQ72/W1Dn/SG6FbeSW17WowtlsJbBS9a8XAahkWvE4gCbo1sFk2z8fArV0JYUeER40S3EqKVkAEOAMtAhYk4MgX78tzKxKQL+dbfS5yQODWWC2YESIUkAKDk51owBGR5JgAyZtAD8CHd/UZbSeI9ZKFAR+oIkcAAFn4wC4KSaoGsl8GdCIBiBWsSnbiwK0gU3ArdhF5Y1ggp0NiUlyQPhoe8mx1cc4bqXi7dMR51JyEVVKwCnJ6VnrRxTiibLjkoEsGbeoJj3LMJSwT0x3a+iIq+PyCXjNGTN2KKkQnsf6JAy8YHCVUDrvJ+9KBYScCCOGrJ3yslKLNx+0I8Bud7NOGzhPaNthRZcspXWerr++Mvuu4quW4suWkuvW0tqPJwbpgpp3Strd5ONSI6LyV/ryyudHNafT0/kp04Se8M09LL/5McBbWFuDBnpVcPKZoOiJrfE54/pKZyoyImWEhKyLuiUpOShuf4Z5ptjK0wy50KjkRhTBtck6lLCMJfsSqLUV0pSg34FDna8r0YL83KwqUTfmrlvxCrznbJQ90yvztUrfQkWvrs/z8JOX5Rs5zDayv//T4V370zDd+8sxXf/DfX/zu9z737W9//Iuf//A/fuLdH/nAez72wb/+4Lve+t4n3/qetz/xt29745NvefTxNz32+Jtf98bHHnnjQw88/Mp7HrjzjntvO3QnQYKHXnHo0B0vJUdyu+2lkb+xSybDiXceuu2Vd7zy4QcefuNjb3ni8UceeeTQXbeBXr995IfckFIz7HEsJpWjTtW403KVmLWHkAQygU8gkxytujVJQOB8oxbdHIxsDMDgwMCnIFa0HVAtOBdqgxhyrXMr6cPAtuQIA2BJ4goxiAeZoglAFxO/X1hIIZJkYaAF4hTNjVQbZPeLnOeAg5bY7uE2WJmn1O146xMTA3k9KSAEBYOkaJaWTKKaUTxoklYtvonUb3ArsT6qLgJv/sJpD5S3sbIvlaTorAKLu9jF3upkbXextjvr1vVSv5uxR6MdsOm7fYwtDmMLDp2+R2Ns9PUvdbTHDdraysrBJrh1d3cbVl99RSzAQmd+e5uYUNsjhnmvre/z+yVqEXVzf3dpfq2toe2T//r57hba5tLS1vayzuL6yte//atnDg8PDS3Nz144cyITDxOidWd7f+/GT7n+ZDfitwOCstY66w9vFf0bRUK3rlXrAwIEgPzoE22W9bMhdlbVlRB11cdbSWLtSSrBAuRoFDlU9AeHAn5DusK5Rc0Ib1EtoIbMQa+ADrCCtzcMDEsOWt3q+MAH2YFbG20svLRvcStOwSFglxyWIse5SKkLhiW4teZA3+0WmUoqxBCBcshDDrmCcOtpbEhPCmFyqBfnQrfiQh1hfkuC15ERUwry7pysIym64GE9o2y84GILhmzSMY9s1COoWoVVm3zUo5oI8CsWQcUiH/HIR73Cmp1ftkoGnZKai1+09GUNwpJNNuSRD7mlA25pzSUdcEkH3ZJBV3tI3BYQtPj4zyvbfsY/D/u54MIvhBexe1pP+RX37GHBxbOariOiS8/yzjeamfCf5Z9vd/axovJTspZfso53WNktevqR/nPnlR1dtl70fA9zXmjUUs7J245xLzap6K1a1gVpV6uGyXFL6eZ+lk3AMPU/Tzn9s6bDF/qaORYBU8vpkNAFNpk6YOIZJa193W0cygudDT86+vR3nn7mX370s3/6xnf/4fNf/8Cnvvzk+z/1+r96/6N//s7Xvf6J1z7ylocf/cv7H3zT3fc+dNerHr7jlQ8euu2uQ3fceejOOw79PhF522/tIu0rDt1x9+2veOWd9z5w932vufeV99/7qgdfef9rX/Xqh+5/zWMPvPrPXvPgEw+/7m2PPvbEY489+fo3vfPP/+Ldjz/+vife/tF3feRLH/3Md7/4jae/+58nfvx0y/Ez7KZWMY2p5/XbZYqwSRkx0/X9DDHnS1/40p13oVSHfnL+OY5Prh7y2ucTqjG3fMSGfrRtDpxIoBrIhKgERQKZJHo9xA8Ik4Hr0B+VugpBY6mSrYbUsOjzwSEHE8i5BJJPgXOyvYA6wZsAGHBlnA4hfxxF4vpEa9YyGwXCgT0wL2BPC4tJMoVihW4lfXJMAEAlfbQU+L66TCF5HOdqBl2KqlVQ1vWX1Lyc1jEUnd+5Tsxa7dd/T7pfX3VVJ9Yd8hMBCLZ2N1f2xIJgW4ebxq5Q6eNU2gSMUrff8Lso012UywzKNJsyCWNSpru7Jzopwwx2tbnRatIW1tYIKt3d3ye77vv17cVyk/z1wtra2vWVy+TIxNzV+exgbWF+qf7Lq82N7Z2BkdHpmRniN7J7u1dmp9fWVn79BYQ/dW7NKvhlrWXWH9osBDZL/nVCtAIZxJDrWhnc6l0rqCa9PTk1JSnuToig2kB8fWk1ya3u+tgTEPMHlwe8eC7rVieL5FZStwZvLhhAtlCsgBQ1JAKYQKz1WX4CSXgh3xqxAtV2ePshJEF5kK7gWRxFMiQmRQFKiNNv9cLI+SgcFZUsIFaYesSHENxKDguQYlY9QnArrkIKXuRJXhckS3JrW7C/Jc7vLshZNR01r2wIcs+5Wb9SNJ40UWgpVU/e0Fcws9K6HuL3bAZe0dqbNXJyRm7eDIeZ1LKTWm7WLMjbeDkrN0044rJLULAjlFW90qpHUnFJqm5KSN4dkLZ5hM9L254VNp01MDt8IlpEQQ3JOzyCw73nTwubu8yci4quY9xLdAe/3dhzvP9Sl4XT65eeE7U+23X8Ql/jUcqpnzc+c5p1/iK36RdNz377yPf+49j3v/6rb332+1/55//82ie/9YUPf/VTH/j8Rz/wuf/7N5/8wJMf+j9/+bdvffTJN772iUcfecujj73lsQf/7LX3P3b/fQ+hl33n7XcR/HcbKO/O39vJfrne9+111XknEd7+wB13PXT3PY/c96o/e/WDb3nowccfgb3h7W9+HOr1g+9450fe855Pfhil+ti//fNnv/+1f/35f3zn8FNPnf7Fc60nj3WdPU1vOMduvtDX1iDppJh6FCkDjOuT6Aq2+Hw+u1LNrdaSi8XIfN63mPMsZN1zadvluGU6apwIWWdi3oWcfTbZn9H1WcT/+MlP33X33SjS8e7zPV6pouYEY0qHbJJBs27Ga7kSAQmSKpIcbQdEAVpAnZx9csylCQJdLbsWsvarKQhVUCrJs3AQ/2IBgbPIQVs4oGnkRs4ZAJbgQbLbR47tAv84BLkKbsVRhOSMMUmmJLECiiSrkuqV3AXgE7tDYGeyUxiGglkp+peyjsWYbTHimIsnF6qLu+u7++TXViD6biwOALFuk+uy9omf7m8s76oUwdZOXWuXubPT9jLW0m1r7LK3dTm6OxyUDkdnp6Od6mimGJu7lW3dQr8vtVVf3/r7PqmyX+fWm8MRm0RB9gjivSGi98llt/+Lt5dy60bJT6ChRr6EnQsZDfTaiFM4YBEP2yRjdumYXTZMLE4i65vUreTaqf8nbiWd3xgQuLVgAK9xwI4cLQWpkd1z8CkARy6rIvFEzpOC7JodPU12NnxybQq5Wgs0Si4PQEgO15JrDJAJL2dQDLqhUsGtkKvksACkK6lkEUks4arrZSAbecLIoQlKUIhrdQYFlKSUlVczMsqOiLDZw23xck9ru8/qaR1eQYdXyAgrBFmLvOyWlVyKigeOasCnGQxoh4O6kZB+JGwbT7oms66pHMw9lfddLgWvVuGYhmLynEeQsMhyjh6fkmIXNapZv6Sf/XHH8cO9Defl1GYVu0HOOMfv+OG5X373yA+/e/SHX/v5tz7zX1/+2k+/+fmnvvrhr338Y//+z5/8zmff+5kPve1Df/2Ov3/XX7zniYff+tjr3vb6B97y4H1veNU9D917zyP33v3Q3Xfefxd6x4fuue0QutuvPHTorjrrkb1p0r/rhng8dNfv0ph3EBR5x6vuuvfB+x543atf+4aHXvfmR9/wxBve9LY3Pf7Ox598z5Pv+OA7//aT73/3x9/3nk9/8EOf/4f3/tMHP/i5D3/6W5/5wve/8tUff/2bz3z3Oyee+s8LP32q5Zkfdzz/g5Zn/uPiz57tvdCk723QsZtNfR02QbOV2+ERUYKybr+0yyehBmX0sJIalCOkhxXdfklPVN4Xl1unQvbLEc2Q03E56plL2qbDumG3omKVVYnV2ZyijhKXdEVFHWFBS4BLSUh68preorY7IenS9f6fd7/ztlfcjofQwO9iesTsmEJQMrb7+nglrXU+ap+LE0tKFtMO4rsBcRjZbUcMKTNtVxLO+Yx7MQdihcGBgWd9y8W6LqmQCCeVBDkOBsMuIS3nEiTDknNZiCFbBDmvC24lR1rJwVP46CkChOQAAmidHFsgCZokeoTIEMRKsjnC+PZAcnMgjt2tYmi7EN2sVDYnl/e3d/ZvadQ98lsCINZtcCrJrVuEnL16ZWN44vrw9MrkzMLUzPzvs+HZucHZufHZuZnpRdjk9MLI7NzQ1SsDl8fHL4+tri781sexXrKR3FpPsXODW+tUu3lAEm69aP+bt9+hW/145a7XIhsDlsvx3rSaEhVDtOpmg/ZV4ss9toU4KpsRlaLPDv4ipqHq7+TQ/5hbbxnxlr45IEB2oEgNC3ghEgAiR0gRkl0nopsz5iUxR/I7mO6kqu2YvPkFXRe4lZx6IldQkeMG5NQqTiEnT8kvfYBbpVWHbjxYHwEgpKu4ZAO3krNbCPkFIwQCOQ9GamRyOgtZtXm4lICAl9FIiyZxwcRLaXgJjSil54aVfSGFKKbjBhXShMk3lsosDhZWRsprE7D88gissDKaWRqKXi46ylF93CXzGbkWBU3FaxHQT1Ibfnrx6Def/sGX/uvrn/3WVz765U+//9Mf/uuP/M2fv+eJB/7ykXve8MArHr3v0P133GC9e+uTMKQSvKvOdLdU4W318I6bkbe9SDm+4kWH7rh57m036RKH7qlHIvP7b3/VGx546PFHH3vbG9/87r989yfe99GvfvrT//LZf/r3z3/uP7/6zV/+138898Onzv7qJONil7Kn1yqUh7TGjM1bC2ZnC9Vrg8W5cvpyPnYlK46o6ZY+tkvYrKaeFbXQnTx+XMOLabgRVW9M2ZNWslNyZkLR7uefNdMbPFx6Vt0eFbdEhC0RwXk3+7yLfdbJPG7qgp2x04/o25/TtBwzdp620Y7qO86YuhvsDEnNapoNW67GAmsF17W0btIvqph5Rb2oahYNWGhx0Wljx0l92zFN8xFV4wU7rcXb2xXidUcEjfLux97yejyWex67v0VBp3kEXX5+q5dzQtcqqOiRm3c5CzIFCMGkBLzXy3CAQESSIsAxlzLPxMjJK3IuyzAZNk1HST0buo6YPNmlA9ORCwzIlQYkw75YWCD/W7SLU0CaQCy5qIBc3A3gQSUgAZQpydRkC0JuZIa3dm/NuUG3Rq9XoteJ77QR3LoBbp1aOdje3rsx3krQGjG+CgLb2TqAwtwk3N09Ujxu1tnu5ndcfrfhlG1i2dbWzS8U7O7sb2wdbOwQkRChm+S62d/efv35bLIQBIciky345D/1n7Le/MzBi4Tv7/og4Z/uRnCroKw13+LWjTK5Bgv0SnJrZ0jAyiiNVyOO62nrtYR7JYvKJqezwGJkv4kcbP2DKwR+w24NRZFDCuQuCS9Ekj0jwItcfUWuB7yxvmQygEOgP/DpGW3nCWXrKXU7eLafXFYNTqxayWWw5DoqwJQUrTCAVVg08/MmKFZyWIBcekVKV0nFLqnaQak4kZxAI6caEKJRIR9WTM5NqARhRYO04xjrzFHG6V+0Hf5Jwy+/f+bH3zr8vX9/+jvQZV/90de//uNvfu2pb/zzN7/wsa99+u8+9w8f+KcP/80n3g8h+bb3vf2Jd731TW//i0f/4g2vfcPDr3rkgbtfc88dr7zzN+XhbS9yblHk7TcmZG5M6dxFsOFt99x253133vWqV9z1wF13PfCKu19z970P33ffY69+9O1vfsvfPPnWD7zrHR95799+/O/+/nOf/NS/fP6f/u1LX/zuN/7lqe989b///Ws//+a/P/uf3z/x419ceu5o5+kz9AsXWJcu9jQ823zkp+d/9TztzFlR6/Pscz/rPn5a0Nph5NJdkjYjt8vCF8TN/IRRmLE4Z9PR6wP+pWJgKR9ZLoaW8oG5jO9KKnAlHbiagZCk+/kX9N30sBi01WBjdYVFHSHRORv7jJn+gqn7vLH9krmr3dtLjQo6Q/1tQU5riHPRSz9lbz9hbT1hbD5tbD2ha35Wdu55xYUzpvaT+pbD8vMntE2njW3Pyc4/J7l0wczgZLTyIZd+KmS+AuILwVGP+ZQjHtWoVzfuFeT1ba5eWIOZfkrV2upgd3m51KCAHZedFTTf+zAU+6G/+tBfd5s5jICo09/f5GaDi1lJmWE6YL0aw+ucmMefjZE9enJRKmQmqS5tVxNoIJbLMduVJPGVoqU8fNNM7Aa3rlU913Kk2iVnw1zE17My5DIDkmRvLZgh6ZJc2U2O7eLSaGUkaDn18TdgG6fHdwbJ2eBbZH2rL0hOI9+aKAa3xtcrMTjbpfAOsaSsvAHdurW1e4tb90ni2iG4FYRILJeq/x6WGC9Y3l2/vrO1s72z+/ttc3d9Y3d1d2djb2tnb3N3b2t7Z2drc3dzc3tjd2OH/FbBb2+3PslKcuv+jZ/cErZ7sAtCB/tv15ff/vorsgc3dOyvufVPeqD1xnaInVX0F8Ct4dBGwb9Z9G0Wwxt4DaKmK6aZCDup7AoJe7Jq42zEsZx2XEv71op4e5NqDggg4fI/HxB48RoscnSJfLff0K11biUH/slFJ+RM1ItXtpITUziKfjorLienvNBbRwPu9PFaXZxmZ0+rp4+VkPemVeyUAipGWDHLhhyqMY+m/j8UCMvE6K10wI7M5YNO1YhHUoG8VZN9f2nNTo6CoRj2+YR6wi0fscuHiHEGSdnKS+v4YdWPjv/48fc+8dATDz34ltfe89i9dzx4x6H7bkrIW0rwFiH+P211ZXr7/Xfd+dp77n3dq1795w89+BcPP/zEo29+9+N/9d4n3/7Bd77nE+/7u8//w0f+9ZMf+OpH//4bn/rUdz//9af/479O//Sps7/44blf/qL5yLMdJ59uP3G8p+GShNqiYrUomZek1DZtL80qZLuk3KBaHDdyo2pWUMIOSjhRBT+pEaV1vJhSktbJssYWPf1XzBPndV3MhKTN0/u8tPGIrPG8idbq6T+l7XpBS2HGFNT6J9DUo37bXFJd70kADDDNqEdb/8kc8SqaTyiGnf15nbhm6c0SvR9mWtns5R5WtR7VtJ/UtT4nOXtC1dBgpza7GK2+ns4wt8XPPmvrOqpvPKy6cELTeNbQeh6Uqm48o2tpdtDOmzpOKMGnnY126ilNM96mjfaeVhe3zdNPDUt6UmryA0NwepKqnpSGmVB1B4TNJkarhXlR1/WCpr3V1dsVENBCkt6Y6kxP4+33ECPH//dfP0n39tMiws4gv8XDecFIuWRntgf72WkFIMTJqImf5BUNCPuyGm5OC0c74cPd2efiJHpN02HjTNgxl3QtEN8e9C7XpcZamZy2ArfWf4VFrAQgRxhIhxxj/Y12QUpXYq5sPgmc40RAkVxFDpFBLnNE5qQQvrXq5sXq9db4Q3gdorUaXqsEoZm2C+H1UnFt7Nr+5g7xBVRyWmmv/j8LHNS/2QcRiiNbxIHNnWyhqo6kZPG8PlYxRH+v6eMlfaKgjxfNsbIjWraHy/pQURVDZMnhT03VpsgPxe4QZE38UGGvftH6JNXe5s7uJvGbVyLJ7m6dS+uTXgThohyII4j3FrHuIcXqbv03DsSq1t2t7QPi84X13+oiWX2p697Ojc+74uT6rwpeOm/2x+DWnJKT1Vpn44H1km8r79nM+ddLoQ3i06uGmRDBrQFBXxbkG8V72LWUCdRrl5yOBD7IF+aL7X9IrzfGBG7+1JWcUSXHBMghLdAcjBwnfbGRXfs6LToAOwhYknYBvgYr86y++4yu83lF0yl9x0U7o9nD6c1r+ssGfsWomfLpLgeJ70bXiP8LRFQxwQQlg3TAKh+yK0ecmnGP6XLIsUB0+pyLKc9K1rGc5Nf0zLSUlZYTcwhpnSBl6LGKnvybt4E0b7/7ttvu+F38CFZ95e23Q0i+5u5XPvKqVz18/2vf+NDDb3rk0cdf/6Z3PP5X73/H+//xw3/3xY/9/Zc/8ZnvfOlbv/zeM5eONXE6KWI21yiRenRyv4HrVfBCakEEPK7tMvY1qRjgRE3BZaz4HCMxx3hUXDR3eHldPj4lIGBGZdCGjIiUHZf3JpQ9CSUrRsR0evpbHD2dfh6sI9jfHuA2edgXnPSLLkajm93i7WsP8NoD/a2+Plibn9sR5HdHhE3uHnS3L7pp7XFue5x3wUM/a6e0BDhdUUGrn9PoYtJiwu4QH2819YgHIo58Bd5S+qq6Geq84CC+bBtDffHyevQq0MlotLGOypqIZXNW2lFV42lTxyUn46i66Zi6+ayl66KDhv77cU0zuvDnsWujXgKNaltOapqbnIxzpo4jikvnTJ0XLN3HVY3orFww0ZAVuXj+lLoNMTet5aii5TlV5/PK9tOKtguqtjPAg6atwYO7kFAjir6E9njHebKuvvKzr7Pi4q64gJqQdAQEl6zss1b6EX3rJTer1UssaKOEhR3+/jZPX4Od2ehkNTnZeFtrJrxAi37K//9R9x5wsmV3eeCAEFhkTLKFwTbGyAveNYYFrVkWg4jGBGGwkBGIJKIMi0aa+N683P0651zVuau7K+fclWNXdeXqnPPrnFN1VbW/c//d99X0zBuGBY1++37nd9+p27du3XDOd75/RmPVg1bcYCcYOc7DOJdpZYyP6ia7Px4COoGzcYxt0m5xrnhuAlmMeZo4vE6WeC4pJYgs41vkBkvzjjgNgSwBKzX6yLWp8NlM8GzKmxl1A1vPUqOn80f5syzHG4FL2TxLlE1uA1d5KuLCfF7zx5dyrbNcF3zsGHtiTRS9uJWYU2iPhuKPh2Lllni1OVVmGb8/lH5qj1VIdB6n7+LkFNB5mskDRk8zVyC0LJ4KoJpjMQUn+avjLEswyFJfswSCeQrWYt4L+cvMVSbD0JbcWMGsc9ss9RUu9OQynzk9vzrMgBsf57PHLJ1WPpMB4LLcBQzEcRPZS5ZPm7D12j/hK4OtiUJsTXpYlZ4x52FSteQWROSErViZAaykWsW7Z9GonKafrFh/L2yltbdQ30SDCYs8WQ/ISYXU+RQpcKthDvNGf1KwYthhD9nxH+sb3lBWvK4ov6errXB3do5qqEkWbNJF+8CspW9c35lQUhIsoComBiDVsh2y70cdBzFsGYM+iHvPRx0ncdGMvjXOUtJANGsflneHVPVK4Xd+73eCon7jt3/jx3/xJ//Lp3/1V3/313/tD37zV3/vk7/yPz75a5/9nd/5mz/6i6Ivvtla/FRU16DpbLeKpcNGXdLhWYyNbI77VhKulYhuyil0i5ttfQMRrXUx4H4Wda3HPBtx13rU9Szm2xsN7o/790a9O2ndjFs+OuSAAH4w7t9Ju7cSzs2YbMYGkg60YjzdKig2tRQbm0stbfhYam0DhJHP4xvSsifGBhYIa2t5ZKq/q618VVnyRVnRW/oaPJkaf2+1r4daTaC3yttdNyyqH+5vikoaowM1I711UVF9tK8m1Fsz3FMb7K4f7itztFa52xs5H2egKl4T3hGpBcmuQoIFPgJtSYGDv9Z5enExWPYeaeuBreg8NTW/Ii56CxBmaXxVWvTFgUfAzfvaqruq8jvKMnRKhppLrE2A0delxa9JiopM9Q+0Va+JiwhbsfNNaTnOg+2rA09JKUQNOIv2pqzii9KqO8raR8rqJ4rKNweevikvL3d3NYSljX5JV1jzB1/4C4asH37pz0v/tjMhrw+LmiLiWp+owt75xNLyqqqsxCEApBK21np70K9wtONJojM4bdat+xQLdgweNIAs1WrTrrJEWa6jBLAVWxrJgEU+qhWDHB1yDxBG5HhEpDQgKxlNJYJLMvfzgh0ZeMmQRRYtDHjyfcQk4hvOQAo6biaOhU6nga0eVsIgFThPj529DVsBZhcU7HqDrVlO0s4eX6gtQUFwpm3uRDB7LJg94drxO/sd06fCmdOm+aPm+cOu2cO+6RPB5Fnj/Llw/rDRHrJ5Q8fHLMkgfvI0d3V6kTs/u8hmGLBmLy/Oclf7mdx5nlMEAOgzudzFJZfmIAcay1S3V9nz3CUH/YxYg1HvsF0ctuYujw7Aec8vcgfZzBF4aiZzgRNkclya1ywDWkaVs/lrWP0Ksdd3YmsC2ApyChjVrvooizu2kKBlEM9XvOQyQpH+pIb/+5qweO+rQq9sDBQ5qyZgJ6JKfvu8N+stbL1J2mIn9yxsMeYAssAXYEqJpfUtbQ2w9S1tbZmzvTkiqQ30lbs6ACV1QVFtgGVHbBsBD1X0Txjk83YVV7sQCIu5gcY6K17T1rBlN6zd8EqXrOJ5c/+0CSS6zS9pcvYX99R+03ezSrk/9BM/PGiTh1cSjtmgc3HEOhNUx4Zkw0Zx1CibsOqXfNoFj3LGoZl3o6+YtimmbKpZh3jcIhrTt8dl1e6O0iFAVYcwLhNN6HtGNT1jmp5RtWTWYl4fNiwFDEt+107SsRUzrQxbn404txPO7bh5LYSz4WIojQPuF9hKXmiAVGDrUw5n0ZiVT1r6QFNzT139pqoc9BA88Y6uEth631DbGB4EoxckFO0plTCp6hzVChLsY0tE2hKT1kf666OilpSkKtD12NpQbGsucwrKnYJH+romlhnPQoY+PCgK5SRs5dIpOCgijmldODM3jsSlEu5jPcDlVdo6Gv39xZbmKldn64ikzNYGGvvU0gzYqnZ3ltkElc72toikNTzYFBThr+U2QUtooMrVUWxuAmVuCPQ9NbfglnH7WF3QAXbjhGikIAKnbgGGRpUNQUm1TVhubCrW1eIkHaOarlFjZ1SrGLX//Kf+K97gR77j6+93lbRHJbXDvc1RSZWrp9QifGJquqOrrgn21jBI7a7z9TaHBnGdQNhyuxDrimzeRthKcg/gVTprxVjqSWuwxVgybgQwinD7GJnk6o8tBU9Tmgv0cZE4AHsAtXzOAfTJTkBBB0aW6mWYAJSQmnK+YCd5L1C8LN94YsvRlBgGjGM3YTuK2k4hXybSJ7OH+dPsdY0qJp6zsNObklUXZKcH8h1fyK3DreG5psXz6pnjmpkTNHTe2a+fOq2bPi2fO6qYO2ycOWqdOqmbOi9fyNQsHJXaQmrPMEu6ymIH8lsHJ3qzS9Q3oJVJtzdW80zGv/JGU5Nzi4fHp8PBkHhA7HO4MkDLbJYquQCKL4lWM3jNAFs3Tq/sg7rN8SQ+H2/nhoMYiAKDTnl8dMgcczO5wHBsYnrx9DQbCSdkAzKb2Xp2cpq7CTH44EH2 dh6lnCdsIosrqMUiKp5K4wGSO1MqFvDUlY9YtxoZPqBON4fb8IqbH8nttKCTHGu5NaHnQBHSvtCXtAYfxTw+q7YWqh17UlpMTQxyQGyjLtZBaVDgkdGUNfyN1UVDwx1j0wNr0iffklSfE9XU2Rl4jAE4UaWf1bUNiJuj8uFMRnLJZhUdqfVALjeMZYhQRiVNw73N4b7ga0s090Sg4zemLbVI77fXvbVH2G6gJ/9jZ9XhIzaUVt/RDuQNEjGzOJR02DSIBo1dE/oRNPGvimDMKkQppRdY5rucS32oHWPa1rTsua0tGtG1zmlaRmVCSZUgnFl96xetGhuHZULxpS6dT+70wUX6UwsnMsOmv+UadMce3HeqwzIRSEV6OA58LFkQBnIy6+Jnz4xMN76lraKCdqWxgfmui/KwVurW6KSLtxpEtiqbI1J2+IytI60ivL2NscGW1PS9nFlqavtNWXJA2MtgBUIeF9TDXHYeZSg2A28BbwpUssQaSX2CmwlEyJ5elD8e0dMiYOvczhNW4DR7XGFnMu72JFQoj8wZWKondZcV2mdt1FS3e6UGkA2MMny7WInGsQOShyBLSEX+eSBB7AMKWld76i+a8LUOiIrN7eU6usqrM2CmFSzETBuRS3rEc+z5L//f34Ub/CjH/sXdTpB68hAzXA3sLVsqKNI3/JQ1/iWvq4BO73dAPR6fy+AXhCV1nq7KxxCbFsjEgwbQHylU1jlam8JD3YkFBhLNdy4wp+606r2mBy4X2nvQKt19wD3cbUUMoDbJ29/YCuuFmMea0ODTwQBEUdSHzsBvhSXiIlGwj4faEMGCV6Ti3YLYTmQDVtWw8a1YcN2wLgXtO2GEodTt7CV8wl4O7Ze5S9OL6W24YbwbPX8WdncWdnsOWtz79KvnLmonMkUz58+nT+tnjttmD4vm8o8WciWLhwXOaOqYPzg7DzLFReIpqe7+qRGg1kq6jUopRDfL6+urJ7hlrZ2g05fXVnV3dHZUF09kU5nzs9yN4iKi8tQ2AGYaD6/un/1+U/+/rBSgh0p/2Tx/UedwtrainKnzXF2epbJXPUPqqVyw9LS1md/73Mlj0urSivTyeTVTYjBVwBbWxMyYVxpXB8GtjrPGba6T1k4FtWtMuIlbYVBYIVRRWNgoCOuwqjFmyMnfz6BwN8LW8lDgDQAfH4WzFKMJ3LtQiN/UjJe3cJWQlvyDSSKhAGK/diCwTFf16G2xwxPi78ofvKavASYAtYGcKn0dAArG0KipnB/W1TcFBI1h/sFMXFLZFAQkwjjUmxbIgPYiaHfFBwodwghSjeE+9riko4UC+juiWiArW82F5Eb06/+3m92OqV9Md3ghEk0aRycNUsXbQqWGNAlXbRLFoYkC7beSX3PpJ4lzF51qdY8smXH4Ly1e8bQPqmRrrsGl22CMVXnlG5gyYr+4IpdOK7qmTE4ThKaVQ+wxrITDlxO+C7GDBsB9Yrbez4avJx07MdAcLAaYSKR9y7DVm5B4oMdMHU5kbnsqbkZbOuRqR7PAdt7xhrw1ru6KjyKrjF1e0qBrTApRxMkgK3K635a3pqUYlvmbrujrnhorCu1tTD+Kyszbw079xMUjgnopAQOhQoBIAiRWZbGidPbUMOlYg+vRu/hCkoDQ9HpiCuAm5JpRgDRwR6W2pkTtIGz+Ag8HZwyoYPj0Th1uYE0DxR9R4Ge5CiCJojIW4Burq578rI7g0UP1ZVYP4y7EcfBqHd71DE/8q3f9x3A1n/38R/u8olbI/21oR7IN6WW9iJ960Nt4z1tXbWvu9jSiLuu9nbW+rqqPe3Vno4ab2edvxsf6wLd9YEefKxyt+MAlsuRpXfobh5hQ6s1Ap47CJIOoAS5BrC2haWUOgCvjOwEeAh4iejQYTgGR9Zx8MojLPbgAAAo6dC8N6m5eAcbwGshqvI4yzprQcta2LQe0m36NFse4zPvyM7oYf7kGluva1znrp2hOGzNcLz15Pi8zxqoDs9ULQBJL96jVc5cVsxcFs2fF8+f1cye109flk9lixZy5Qtnj+1RmTd6cMbyw17k8jtHp5u7R5DTF2emakqLjw/38XNbR2cd7Z0tDQ13Xnt12OsRtjZHwsOApL293e6eruKnxQaz6TTDbG9XzC03v7yb/+vf/GxELccx6l7Tg9feOD/ZlogG+nsGdzYPcO1z86tyhcnjHvnZ//xL3cKexpqGeDRaiK25DzYn4UsQADtTGv1qwHc+7s6kHOeMtzoPk4BUPQSTzRCVcW4bkTX4+zFkme511cdj6/sMdeVVsSzJBRgx576KkcGrFDAJMZiAqjSkiI4VagCeJ0+70bcSdaUQAwxTbB/rGh5oau9rau7rqpkIrKt+bG6o8XdXY274uppYimgxtq0xCRpBCcClLS7Fx+bIYG2gp9wlLHMIcJ5XBorfkJfd1VYCW8ULlvaEglEMz2CrZ/Bz9/+GfOx/9+U/6guqWOmqOatszane9spX7bLlIfWqm5USWPLLZwEN5r40UMahWvBqVwKqBY9kytY7ZkTTrPpl886+cVNHUiPHPS57FYvuzpR2cHrIc5ZWrThEk1rzbpD5fl+kjVt+/YY3mB1Hcx5d81bMVQrJ5bIT6CggDZCHCYn5CWx9dbD4vrr6qaXlnrYa2Fo01HTPVPMlefFjSwOeA54A7h1PgPAUHXog7UkFULUlLm5LSEqdbXfV5U9MLJPhW4oqcGGmHz9KUXAHfotShd1SixNvpYgPivUgWQTvFJhCMW89HMcEInN5clnQHaWM6mZVBXV4ueSnTNka6b7wFRbNPMcdwzk+kyWNsvOQkRNHsmD8WZt4wQaCWaSvvScvLTbWg5JbmP094d8ek/r0X//tzAHr//ov/7c0rm0I9lSHeuqH+4uNbQ+UDW8p6u4oq5+Ym95SM3UwwJQwFItxR1KOpbfM0Vpmb6kL9tKCVOFuLx5qrvJ2YnTheWJPa4wNM3JKBV14amoBdGLA03yhRC34CO6JDogt4JW054WNOC/WSNwyifmFKrhCexe5bfGMlTpgS0PPIpaNEf2WX7vtBbaGtlL7ueMsZ0p/V2y94PStxycXPRZ/1chs1cIZmGkV1ziKertfO31ZM31ZOndePndWP3PeMn1ZPZV9OperXjgrHoqovfHjc2ZiOrvMjc0si2U6r8dv1qn7u4Rnp8cTswvD8VGVXN7V1lJXXV786L6grWlzYw0XcHp64g/6jCZDcjR9AsLKQrTOcaEr+5d/9eufiWgYtvY3K4vv3rvKnVj05sa6lpXFjZXlrUh0UizRCQR9tdXN9+88qK+qe7a+/kGC6W1sbUvKu9JaiJ/WnRHj3rBxf9i8HTY8C1LZSOWiS7PipTqapBDonzBRNklyEvj7Klt9FI7N1UYlyxWpjTDIAKnAVmwxpHhlK/FT4kS3dAJopM7DzMTsAjW4p6zG5L+vZrJ/uauds9V0Q+ZtT6kwtdri8uYIRr8MMm9bTMak9SQThzGpqrzdT22tj4wNb2mr76irXhsseaSrB28FLoum9ap1l3iOKR+6RlTy8aH/9j8/g2n5td/6da9UvdXplbUGJZ3juo4pbd+8UbJkVSwzS4Vy2q2e8cgm7P0pkyhplI4PKSadqmm3fMopGbOJkthp0i0GVLNu8dhQT1ynnHHho2be15cwyiYdWIE0q+7+SYN1NxzIjHvPRvUbft0zX/ByAs1xlABfo2zNtAjdwlY8EEzpCls77qJsqK3S2XFXU4nFpsjadFdfBd762NqIR8HpWwGpSu5RMOUAnhL3uBjatsYlAItSW9s9dRVEgRp3dynka1Or5zDtOx7DBQAl8YuEoYUiRSEgUkZdujZisqTtkU4P9SX1vUmdZtGDbXdc0xFRDo6b5TN2fOxPG7VLPsW8S7XgHhg39yR1WKUGJyy9KYN81iGdAbbqRKPXkUuUrI9XR5BDGAaqaNooiEurHG1PjbXlQ819UwbrQdK2k4oczJR11X7oI1+NBfJnfuvnBqOq+mB3VagbvLXO3V9u6izStjwxtDSHxA1BUa23p87XyxTBnq6mYXBSaXN4EB/L7IIqb1djaKAJ/NTfU+oQVrghFWHxlrLRFWcFkDCYSc2FF0GJ28nuj9vHC8LjonUFBxCxZWriYXFhwx5KOky0FDOlEGHJpMz7LPJaAuKtulU/eKv5WRjYqtv2mTf94e30NbZmC7A1fxtbjzhsreSwtYYBKNdmuPb2fsPUZf3UZcXseeXcWdP0uWDysm4qWzabq50/Kx2K6LyxvaNjYCvEf184/muf/PTP/szP/c5v/sb0WHJ1dflPP//XH//pn5cN9Eu6hD6HdXV5fm93i1V9zWZynDMWtwKwIq8X50xdcXx+tnZ49Ve/8Zm4RY+L7GtSPrr71lX2yKwzDIokLkfglS/d+8Vf+mRpecPdtx6Pj0+vLa9urK1+wET1Nra2xqUtI9IOliRf1RKXtCZlrSPSRv9AjbunGsupu6fK2QW6ql72gMw6uexnZMviHUfev9MVDQhSyQMXcCqMGwjgGEMQgqqdXQSsWOfJQ4WwlSeqpCIgqCV7F81hEAQar+VDQubl6u6uC/YDMdFaYzLjTth9Pmo7ig/MWvARCCtIKpuj0obwYJWv54m15Z6+7q625jVF+evKCvQfGBvuKqq6kmrJnBWMVbnmkC/b5Et2gIhqxhk+mf7Pn/llYOt3ff9399vlnR7pPXk1vvgl2dP7htrm0IAorRYltKK4XhQ39ES0nSFlZ0jVE9X2xXR9cT1rMX1vjHV08z7tvFc+YRfF9Mppp37Br5339SeMiklH4HxCu+YdmDIN7UWCl5Pe01GsZ7o1XzAzieY4YGmS8TTwGHH7QBY8nEJsJVU1S6UcV4omDD2jWsj1r8lLQK/eMlS/qiwptre2RKSsEtq1LQvwSiuQGltuj1yYkDWFB4pYdYNqwASLuUjqhGF54HjcvZ8ibO3hijvgt/jcjzy2UmJ8IpvYksmRnArYnyYtAFDAq2bBgw5Xu1QzMGqSTFh74treuE67yPLmgP4PTlgBqbIZB7YdUbVolKWdbo+oiLryuSj59Hq41DKLAJddYm8tsTU/NdcXG2pKrE2iKZNlN2HfSaVPlv7g5c8xT7mvfek3/vS3RCPy+uHu6uGu/mmzcs4tGcNyaFbMuWx7UTz/Gs+1LashwHCWPjYG+5uGB2r9vRWerkpPV11QhLFUGxBhODWOgOwrWuNyYCuoKIY0UBUIC6Ak/QCGN5b/R9p6+gjoJMB9LssXtMIsxnyHPAR4pwLyZSQPAXIqIO08C2pYDRnXhrUbXu2W17ThC23dxtbn+tb81RkLxHqOrdUjs6Cf1zD6gtY4lamfygBbq4CtM2dt+DgJbM1y2Dqi80aPzy8AlufZq+nFtZp6wUg4mr1gxbGdTlttc5vO4rz36pc0/d3SHuH5yR4XSZDlfVopwQvLlgV4PTv0hYarBPJP/fSvDGsZb1UNWl5++YuHx5vSAXGHsKvkacUf/MGfDYhVws5+qUJdW1f/bH2VnfAFgWEfELaCt7bFmN+1IMosGG0pWePwYK2ntxKCibOLti0hCdirG6/wKIX3SrBIQdDvR8FK/sx83gpaWrkiFknMQ6zbAESMOQxEbCGPl1kFlDb4lo6Vz7dCAilNbIpiIHsrqWsbAv1N4UHQEJAIIKl5b8QHrneS7JsyYsQ3hAZKne2PrS0PTMxk8Zqy4hVFObZfEBe/Ii+7q6u9D6hVVPWktYolh3jeIlmw9M8YBmZM3QmNftHnPxj7/p/6IczM7//fvz8wG+kNKN8YKHtLVX1XVVVkaOqOKJTjJkla3z9mHBg39Y1ybgyjhsEJM9CEa6wWSF9a351ksoJq0S2ZHsKZZTM2SjDYm9Kjj2dFFiE87eDFpOcojb8CXsl1EU+eEnngLZC68xa2UoeR+pSaKxSmeVPJ/ASKhprv6CtfUT4tcbRhmQGSEqTewlYh4DUp70gq6v199zU1dxWVAAhc1cCYqS+hC59N+Y/GpNNWlpmBM6CRhEFrIb0gPpMDpW7idKzX2Hpt5ho3EaQqZhzoAE9FKQM6gFeALPqUkwxb8SSej462whEltmidMU1XQkMJdCj9Oa0oJGK/ISl7Vfz0FcmTN+TFbylK7ilLHxlquycMpp2YfSuVPJz/pU/9CpM8vvHDf/jan/SEJY3h3uphCCgmzYJPMe6SjtmB7J7jUdm8rcLRDkjtSChbwmLQ1XK7sMrVCWDtSKrqhwdKXR1o1YG+1oSiKSot93Q1AFuTyhZga0SCiVNqbgXC4goBryTjY5CQZy7pAbpTGppQvDh/yyTF76foW3QAsthSuBdZOMiLgHzDC1p86FkEvFW36QO2vk0ncIOtGd5PIM/CVM9udAK9HLZWLpxVATdf3OqmL0BsS+fPyudP62fPWvFxOvt0/rJ68fSpLazxRY4vLi45W9b69vGTpzVtrcKgx72xNB/we4orqqsb24S1lWmfXdzZkowFcR0XmdPLXOb88iJ3nTmLuzSWS+tiYm7uteKWX/iRnwrrFNgfCU/dLyoSdjdWlZWHAqG+3oE//OM/Kymv7hGJl1bXSstKnA5LLnv6FcbW1oS0LSbvjKsFMYatwrSiKSyu9UIO6gbCgrpWslI8g/r1ADm9kvMpRf6RN9X7xFaKJKG8v5SfAt/FPAQaAlWruDh9EM97iipsyfRMCjviI9eQOmkSjRuIpBCmEEzjbIAeZi/GfEtrO9OarjFt36QR26HDGHirdT8C1Kjx9z6FkGuov6OtuaOtvm+of2huemxtfmhufENV+Ya6CgT2TRUrjtIY6BfGFRCKu8ZU3ROajhQzTOsX/YZ533f+wHczM8iPfSy0EOt0S8qMgjKrENfc4OpTjFls817NjF22OCRfsskWrOgol+1KVlfDqV5zKlfs2Cma1Hel1Mz3YNkpnrW0xxXYoq9acfaMaaVzQ3hQWlC2MbNtKzp8NuU5SIPf6Zf9ofNpfHTsxAlbceOErbzJiNdLAsW4sgtKYGtnUv3QUPfQWFfuFr6lr35FwbAVq07nqIYgFez1FrYKE8rOpApo8oasDFBV4+ziMnkbgK2BozH3bpIxUE6xSxYq0vnSO6JyD+QVQGUpIJqQdpXgGCROOCLvGFG2BaWgru1hBTr0UTgsFwRlfQm9hquSAmwFb+US7FqwFYQVXXFtd0LfBxS+yTlJvyjhsB5bDCfmgmZufmyqe2KsfaitvM/pi7vGdZa9uGMrOfJs7Gd++RN4g9/8Xd/8cumrA1GlMCFujA0MzFjUCz7JqE08OqSYcZk3R+QLdjBWsFS8rLaIFCsN+boy6jrcj7FU4e2u9PVU+XvrQgO1w/342BiRCFKq1qQS2FrDWaUAoLgkSGZk/a+wtT9Q10Iyw35yFSDcvFaSvt2nirdQ0YwrtFax4l27UV4QJLpTqJb1Ho959kadu0nLfti4BywOhLdH93Mnt7H1irK2slJZ59fYei6y+OpHZmsXz6rmz8BJWZt/l37N7EXN3HnZ4kn5wknD3EnL7HntTKZkIVOzdFzsCCn84YOzsxyXH+Asc+VwDYt6BiSivtX5mcPDPYXO2NLesziWujreWZ1OT6YjHM3M5FhKWc5t6iZ0LHvJCiee53Oz22fqTsne7Diud2cvG04l+iSdaoXi4vR8cXFZZzD1iAZTYxOZXHZ6Zjw9GrnMHHD6jq8gtsal7UlFR0LeFpW0xmUtYCvh/mpvF5UJqXR3Vbm6MMJMm8MAR7xOWkhp2SysfMXnDH5nHAH9lbAVL97E+R5QiBcllwKCY5EHlJda2u7KKx/p6qrdncx/099X6WgHbFU5ujqjKvAmyaQV7A+QSgH+5FZNUYAYTxSywhbw/Zh5K2R4xmxxkKBN22Hlkqt3TC+MyoVRRSfIDqb6mF40YRyYMvdPgdlpm0PilrCkPa5sDotx409MjUWGxmJ9g2BkUDSlFaSkvZic65EOj+abP/ptmJn/8Wf+o9SvrTV39ST0ElZB3qqcsemWPIblgHrBLV+0K7jGCtOuuNCUXPVNbGULNtGkoZO5E9kxeyF4Aluls0PKJaeMc0jSrHgCZ+MgqtLpIdtONHg+6diLK+eduhUf+oGzCewc4LTeuF+yv5NJh8dWUhRwymhmIBJPWwANnQlVe0Lx2NDwurSk3NHegvc+qoLUgi2aIKVAE6aV1ARJVfe4vtLV9SVxySvi0mJza0dU2RkDbdSo5p1KzkBPdczIxZhkCNISkJyOLWXG4fPgEccEgys2NT/U1D3WNDzSQGBvxvaeorpI34TOXVlljaOb/QrLEe5WL3kGJy3g+CD+2HbF1b0pHcspntTSOen2KcMv+ZZQprSeUV3XhK5pZOCxqfaBoarY1tg3b7YeJZzbSddM+D/8px9hDlj/9l80Kzvda1HTelDzzMfqoS64pFNDskmbbsGrWXTr1/0Y9tpVLzlFtI1ImXQfEpPdqdrb2xCWoJV7ukucHRXeHvTbkqq2hKopKmuJyJqHxe0RBYY3jm/092MtpBhWUo+QmoskfZ6NvtNZtdBORcfQfl5wxCwj6wUdTFpXDl7T3oM0yxdzFLWfxtyHidj+1EGWxQ7kyU+Ay65CHgOZq/w5i3zNZ7PZk9OM3Oru9UYHpjZbxjabRreaR7ea0BnbbOb76ODj+EbzxFrr5GrH+GrP2Grf2FrH6Frb5Hrn9Gqp0S71hfbPz6+uuECpK5Yk5uT45Pjo6OIMdDJ3cn5+cHzCXGzzWS7R9SXLKHtjZeP0rdf/X7FLZPEGLG7g7AI4y4XJ4rTZg+P9k+Nj7idyZxcXh8cnmUvmV4AzZrMXV/mbey1oHyi2tjAHI3lHQiqIS4RJVVNcXhvqq/B1VHjaKz0daNWertYRiWUrBO5JcSbkukyxqrxrCN94fxGet/I1ClksKWjvesC6EwEFBrb2juqJGgNb0Sk2tdxRVNzVVD001DwxNjzUQjyvgEyKiQexUTnrNK0NWzdHKFdWYXkuXjVxnQfzKE2XSk5akNAhhhMFpmIwFNzCJ2rjzdYsf/a0pTkuLhpqfKpvrDA09afV8kWzIC3umtA6t1MPuxq/5pu+7qUPvfSTv/rTQttglaVLNutgtYmWXGjqRZd80cOqYRe45ZKZhWpwUsgDlZmhvxLLIz8q8qACMcE6RKUTqM4HFbvFNZNqBR9xUyQkkuMR+bSSXYtsWbzfPp2ZDD7YQhplPNTbI0grOsbVLQlpU0zcGB1EB41p21OytpS8OSoTpjSlzs43lVVPhwQdSTWuR8yZiSjamJwEiK5S0nEyIpHITzUcKaUOfpTyTlCArCAspdRl91U16NyRV6D/Sn/xl0RFr4tLXxssAdfD1/n0ESxxRFrfP2GkrI/kYC/lPAQISXkHL4J4sm22x7FaqGuDojcUJa8rnz601vYvWYaOE77DMUva84M/8jGWpeXHf0geMI/sTrt30kO7CdmyWzw/JJ6xyGaGrGsB3ZKbnJ+4cixBLHVUfBNks9LWwSIXAgMtMUVzVF7tF+FBVXp7W+NKQULdFlehI0yqhRxbJ2UrLomgkPK3UrYKQkNCTwoWuKUHYO0GYQvVsu/KW+krpDeguenciVm3w+a9kPVoxLkfi+1NHebOc7wP1k06q+wVcIgL6QfCXV5eXOb0Q66q9t4nLV1Fgv7itgHW0Cnst7H+/XbR3Y6+x+19ZQJRRZuoXNBf0jHwsK27uL2vvKPPMRw/v3wftPFdYO/vB4a5Fx96Y6h7r2O+fP+It8ra48zBsy2haIhIqoM9hK1V3s4Kd3ulq0MYldn2IniRtxZPPrqZ+CNfnJUPv6OsP3woHrm14usgrS786TgNER6oSsCKbZGx+U15xR115V11xV1VxVuqqgeamse6hjp3L4Riy7Oway/pPxmn6AM6ue8mtZrvJkEBuRASO6AtoQDvcsA7HgAmKE6G9INUqBVcsjE6UGRtLNY1VFsFihmLat3RNirtnzGFjmf+9OHr5ID1C5/+ZcHQQK1DpFoCOrsIWwGyymWfctnL5+uiH+UL0pDKmACIx1bycyCNIS4D82c4M0XFEMlvHI/3ndhK+erJnsO70JP5iOom8NhKKwfFCD3S1r8pLa8PiICt7WMq4agSDWD6HFuTDFtBvoQpLSDjrrqm0t0tYTWcAzgPhY2Q+EKpF0luoJdO3nW4KSofCXAk3MdXwtkZoAAGD64EpPWOrOKeshpXAmClik/o4NoA/ZCdcS8UoUQPgQgvPaXC4FredMYn56X1iUH/pLl7wtgckdxRlr4mL3o8VN+/aLEcxoNHkwMu5fd+7PuArT/+yz9lGfMP70y4dpJDuzHJgr1/1jI4bVYtOD37iaECvCMtVltYWuh/WuPrq/D0oAFVqVOFPe7uuuFBYG5rTEHYSoiMDp4P5Vcl5kHTgcYwPdJbQQHvqoTl87fiAHyLWAVlz+J8A3x8KBebaxu4bL9u02eg3NjbEy/C1gyLMWXYmj0HMbza3D+a39lf3t7d3dq6aZtce1t/Y2t3ZWt3Y2Nv+9nezjO23do8fLa1/2xjd/vZ7tn++d+dDfCFEPq+sDVfgJvvfcB7HPPl+1eArQmGrbWhgapAV7m3vdLbQdha7hC2xxTAVgwC4nqFRkxeluFLqlF8NDmFUIAADRfqsMM2QyCtAFbHQaIzoa5x99T7RGjEW+9ral6Tl74uL3lLVfnE2FhhF9a4uztjKvt2zHOQ9h+PB04nPCfPeTGNVC7nW4gitUgopuxBgBgKHyJ0I6TDECRQI4UgX8uA5vPglBmy5NOh5sea2jJDsyitGZwztCbFkrmhyOnCb/3FH7A49K996ZN/9t/r9F01jj71sle56FQvODSLLAWUYom5qd7irXzMEhFYcvOkY6jiIWWkJR94PKjQ5TRRNjwxMl7dwlbcI+4FfyU/JOKqhK0E3O+KrTgG+AUUq/P1tcXlpGltS3CKV85TjVSurI1qQb6e2tvvaesqXF3SOTsIFKXr5TOQUgpHDAAmQHBrG/ZjkOCWyTELF0x0krTzlOQJF0O5DljUv7ScS7NSBagFwpIZszk4SLyVd7Pja/DR2yTTGTl4kQ8sv4zxTb3skS06u0a1T0z1D/VVxY6mweUh417Euzda0l37Hd/z7ZA8fuWPf9s2HfJvjzl3krbdOEhr/7QJ2IqX6DtMu3bjuDWcmeIP8ahbQ5JSSxsEfIAs2Gh9oL/M0VFqb68PDrQn1a1ReeFHYULVwtWZx7dI9YwhSpwAzwEgy+vTCocxYS5PRyh7UWF+bpprhUE3xCf4AC2SKa95DMPWALBVv+M3PQuGt8YPmSP/O7E1d3md1IQM8+zvJ1dXRywrFZhn5kXtgmkSrq6/yJ31PMfZxAjGsv//yAT45fv3UltCKkCLDgJh2+KKqgBTCJR5hISt5S5hhbO9K6V2HDApg9ZwXpB5kfb9lsKIgJjEGZZdeHuElYo5TFp3Ih1xVa2nt87bV8dpXSvtneV2YfFQS5mjtcbT2RjsF0QwjqW9Ka2DlYyfCF/MgLcSRSIWTEUKKH9wpb2DRj/Jj7wjFxFVCjcgkKUAIQI1qotJJ2FxPik1c+0cGWwNDLZ4+7vjCjyZloQYfDa4O/Ern/ktljjwm776s6/8aaVGUGbpHJyxS+dsKg5br3nrkudddQLUSCcApCByx4eBkl4Sl4TnBpaHr+AwPO0XYSv5CZC5j+L3cQbCWQr2L8RWci/FR2ArSOITY1OFu7N7XNc/YxZNm9TrXuNOyLQbRjPvjaCZ9iKiGSu42BNzS7W3Vzw7pOfKlGLSAvepdgheASkucMF8Gid0sJMcsEi3SMjCP2psgZ6AJypdQeWe0Gn09/O1c/AnPCWqpELhALSfFj+CVD6fL1+hkvKYXO+EULLkli3YO5NyYVxSG+rpmNB0jOrEKevvv/JnH/onH/q6b/knf3z/b0zTAd9O2rEbB2+VLToGZy0DkybJpNm4EtCvXJ8ND5ncm27lZW8MDoLRY+Gp9YsArE1hSbmzEx+BrS0RWWNIXEP0lrNZ4R7JREEKVor55jOzFCay4k0XzAJ8k+uaAJeXCHltGKV8JX0rr7qlxcC+Hwe2mgqwNbQ59m7YmqNyhM853iVLCnh8lT29LqX1wnaDnHnea+oie565zv+SZ/D7d3uXvgB9379KIF/QoYSJXyHt6jv/XWOrMCbuSMpbY/IKXw9IK1oFp2wFtla5OntGte6jJEl8fMlrPo810dJCzL3lQcJrgsxcB2+dcsGYt8LgraQTILUAcBbiakOovzU6KIjhquQdcUVngsGQYzcaPJ0Inky6D1JkEKMCLaQnpboXkCiLDE313j6+EgbN lLSMasOpwEguopZjT+RRElqQYK27pSmPa0Qz1g08y7VjEM6Y+0ZVwtSMvWSM7A59onf/nVg6zd89Jv/8vHLxYrmIkNb55ixhzkY6QZHdf1jhr5xExohO+AMjTCFbNl8cRpMNop6pPKIOAx9CkbC3AByUV6P9+CtFJdFWlSS9wGvfG0xOiFpYHlqjLt+oK59pb/4nqrmqbVNNGUCGRdNGoFBimWXYtnJNXRc6md+8Nb7+gbirf1TZh2nm+bFWCJfePsUPleYXR+H4dbowaLDrxl8TUky6NOT4b2yqCIvpQbGw+FjvQhD6eKJzPJpfPkVqzBs77oBlJe8urWAZsUlnTM1j4jqmIVW1OqWfuJ/sCwt3/LPv+3VlsfGuYB3L+3ci5u3Q6oVl2R+iKVfSWklE0zJS8EOlDsRF4YBTIaj1mFxhb0DbKAhOAj2WunqKnd0VkH8CvTTnmpPD7MAczkBAK9Vjs4GnwjYR48LF4wXymsbSBtANth3ZrTi+Syh7a1CAzy94J0N+EIJTHB8hv0BDeffalwPvBu25ri6VHnKNJgHGjLeerl9sDW9vTCztfxsc2tjY/uFbfPZ5vbq7vby3vby7vbS5u7S+v7K/NbC0sbis7WV86Ojq4JygbeC+m/2k9nqulwh5VXJZbl8gzdifOEZ3vF17rJzVFsxR1/MUbEE7qScQYwj4/l3Kbn95Qbfl9qSMmFS2s7S6DF3+nJfN1MI+DsrPO0A1koWQ93dk9ayrJQ3yylfVYJEjxehLa8NKFRaAV5J0zq0GzU8CxK2Mkj1iZqCg2jNIXFrTNqRAt2QAVt70hphVN6T1JifBT0Haft2zLo5QlGDZCCmmlrEAUFa0WrdPQRqvJGHYJRsLFTTjRoFX/L+9lQga3DSNDhjVi45dYs+w1JAueASL1jbR5W6ZY9/LfUTv/CzmJn/7N9+z5dq7z+WNz8xd3SOmwZmrJIps2Tc0A8uPGrsZu6rz6sZE/rTR+rgMsjrk5LO4dcx8chAh2lMAW/ADtwC5gmeNg4j9k0PHw+WwIuq2NOVE2Dxnr8UuEXpl4jAkhEf2AoBHAQfj1oCws40ztb+CZMITwC4jGPwoNL63gljpbf3DVX1XXXNY1NzU0hMlI3IESYwgSmuk5LmYYuLBNrSpVIuCOKbuFPi0STLk9cUOU4RctECicNI0UG6Y0I0Cl6iknxcvXFbIaSSVofeGm9Mu67ow/TmOMylZNmqtBjhdaH+lhFZk2PgR3/xJ/EGv/17v+vRYLVpOejYibkO4qbNoGrFKZvDCbnqanNOydR1VRV+pOG0BGTkSgWiDakLDcy0xNKGYSyMMh0rMLdsSFjBhavixgGv5UNCfIVU1RT0QTHft+Q80qdZt6/1aaRS4zGXR1veT5yfaDyhIQGRxgz77lbEshnSbnjVmx7C1oPceYGfwLXQTvT1hrTmzk+PZEZpg7StXtrWOigUDLa/qDWIhdXssNZGWVO9vLFK0VimaCpRtFTKhFW9LVaP7fT8lNAwy/3LseLZGZYt+/LyBiJBks9z+czlZYY7LMeOu8xxLgNcvuzcczy9LsHNAesl5w/AwPTyurESCdwXsf8iy9aQDEs+eMlVqck/bwX/vtwxW4XYKqkPDTBs9XVU+DrKPe0V7vZqX1fjcD94q/MwzksihbXV+LgAXnIhaZ3s9aSnp3dPYwV/AqcQT1t7GQzpKU1Ba1gqYKmnFO2QEOMs8rIzpQC2dnEJkBQLDvmsQ7fk0yx4pJND4glG9DBkaVJhiHNOWp18nWFK3UK6V5rDZEcmxyCaxqC0VN+tMMcHKSXBXAanzPJ5u3LGpZn3KhfcollTz5TevhO1TgR/+Md/jHJ8tBn7u8K6jrRJ/WxYs+7XrXp0Sy7VglOx4JYvuHjxn3z4KfKdhHcyZFNOPCr0DVJD+QHQ6L5w8RCTq51dlG0ez/AWb8Ud4WDspwyqKkr1z00zouFkwSdHV17fisd1nQEkquqMaaQzdvGkVTRqEo0aB8bN1OkbNbLYp3Fjc1ReE+iHhNs0Iq31icq5RLH4bmEeFtJcE7ThqsLZGVwt5dYjlQsF3VEKc5Lo+fg6FmnGNcoDQE4atNLwqlXireQCRckEeFUAhflSzD7V96W3f72GcYucaNTQzxZXuTAhrRvub4uoHksb//WP/TvmgPWD31umF+iWA5wNNmra9KtXHMBWrKyKeZd60YchRzCNO6Vfp2gI3Dstz/xDJiUPEdLrNQOLB/fqyaeCGglzJHDgTb3T6apQ7OOVp7wNw8oqHYT5BMc8ZSlsdE6yf5o2Q9aNMKiMYTug2/abXoytNx5ZFBiVPbs41PsMxnGncy9hOAobjkOGoxDbUqegrzmMKfdT2v2E7iCqOYwojkYkxxH5UUq+lWgJ6qURx9bZEWEiYSshDmDx4OBgYmJifX3tGtUZqGZwFPNSYBGuV5nz5/oEQtLz83NKtvIcall+79y18H+Zz17kLi+yLH9Bjt3HRT5/dHZB32c/enpWSF15/ceXF1tb41Jga2dSBjG8JtBX7u2uuMFWkNbaQE9bRAqMM25cu17Rq+UdA0infkt44TuUToIWYSK22ANm1BgYIEilpZ7WfzRgqyAmbxoZbAj2Vrk7GoP94mmzdHaIRTSNWQZGTRS6QxQM8xlDnBKVviktB2qQbIixSzOWzwZLBd0wNzDcMShJgiZXdtJ4Eqslbx5GOdOafqBMApPTIpowd4xpOsc1ju2oImj+gX//w5iZH/+vP62K20VJ8FmzaNY+OAv8sipmrHLGBB2KhecpZgobqXqphBeuFuQRuFNibn2oqSOgx6R9amqhUEgAGTgm+A4gFc+QgIzkQfITwA3iYWIGFhZMpDsl0ZvypBRmICR/r4EJo27Fr1sJWDYjxvWQYW0YW/PGiOkZKwCFLfqGrZBuK2TYGbHsRdH6J82cNryDco5QGnzSb5IKFbeGATCSm8Vbpry6lJ8Fd0RmKFrz6IGTtoS2tOTwCmjKP0DYyrsEELYS+PL5etDIrYLuncJJCPe5nzD1pk19KYMImBiTdybldQGRYET5csujb/3+78Ib/Df/4WON3kH1stdxELfthY2bXsJW8ZSZq6LmlkwBGR18Ugsy3PEOvLw3GNUOINmCHPvI1wqs4lpQ2wzxrldUHQNf4UX4924vyh9YyFL5UALeBEIMhlkRJnGFQ5pnXu22z7Dmey9szV1n9AO2HmYOFAG9ZSnou5rUX0V0VyMvavp80pSdsGXH7Nm0LZ805+O6TMyanfRczIrjVmPcfZA5ZaI6RzbHx8ddLpfb7QZQbm9vd3d3J5OJucUpm8MUGPYAPC+zrKrr0eFxMjF6fprJnF0uLawMDdlmZ2cJkRlXJaXBNXvNZU7Pl2eWzFrjRGo8c55Bw40cn2YC4djKxhb48NTE1IjLsz63QJW5rm58wj44bG1PyYCtLSMD1b5ewtZyX3u5W1jl6agb7m1PKLpTat2aj1ZFfnWl5ZQE/0LhpVBhRBUsKPUvlabAMRidEEhbQhKQVubJjxkYU6KDPQDcWm9vqUPwxFT/lrqyyNQsiEiZyD/GIBWkVTXnUs27aYxSJj0w1iJD0xuSMnSI4xRGx9Lk5M3xuOZofh77yZuHrCWFgip5aPaN6QbGWI6VvpSpO21sS6q6J3W2ZyPNyq6P/svve+lDH/qNz31ak3Z3Rg3NMW1rSifEAQlVX1LdywAakrWB92knBCG/eoIVAnG6eDSWzNvcSrXmgbD42BQYQL/U0vZY10DYiodGnI7S0eOpUlZ/NxeCTGSQd3sgIOOhjYdU4lZEeD1HrM5z8HwabfhiBg2dwNkUGtuTmfUALM7HfdnpANeMbEFirl04G9W8A0VlwbjHaRoDJKaQKEPacPIWooY+v8DQEyasJApP5iwsMyQ6UJgssVHi2pRGkiLQeAmAtASkbSB9BdHDa/+BWefgpF08YZVMmAaYqlfbOiIVRlR/UvrFr/q2r2N5zT/+fwgjSsWSy3Uct+4O65+5VEs26Sw7LbBVMmXvTV1TbyLphLB8DBgpzfnEiZRZkQpik5GKzFaEtkQyAIJU5I2cqN5pBy6MueIJ7PtEXp7hohHvYcNgRNmTVKvWXLptn37VG94afxdsJVn5GluZEL5zsTsY1Ggw6vKjgEvTdYtx7e39XGooN+rMpd35uOsqar+KDmXjruxo6HxKMWIYCttOzk9yHF3d2dkpLS29e/fuX/z5n4eGh/f29hKJhD/ge/nVv6lrrKipq4hEQ4RH66vrDfXNqcT4eHq2tbm9pKS0+GnxyckJKRYKkesyczk9PvXkzYftzcK6ilqD2sDtzB+dnNc3C3Rm28Las9qK6sr7j8rfenDwbLPQvPUBYWtLXMywNcWSp1V5u4GtVf7OSm8Hw1ZvZyOTpMAuZawiEDcgbhmseBNWoSM0X3CCsJVwhCL/MBzrfaIqVv1tAI3UrOjUenohdRYZmx/o6u6oK99QlN5Vllc4OsBbmapx2atZcGsWPNolr3KOGY5J6iTeR7ZvgBFhJQY0sJKGPo1+gjkgF6YB7oJwh9CKeC6fRYmgVrno0C56lLNu+YxrYGqoc0wnW3R4thMPmku/4Vu++Wu//iN/du9vtZPevpS1b9o+sOCWzgOarbIpi2TKPDhh7Z8w83o6mp+EenQxPOtBB88EFw88ZSlHR2Qgs+CqdZ5egAtuB5Qcz42YEVV+DF1OU3QciZZ8ymTecZiewHVFhgJaB/wiREAHX/QejwFbr5H0YoZQlW/BixnvxYT7Ytx9Pu4+G0PfyFkdSQ1KlZxBUX039Z1IauFLUvJFnwpjRsDssDBQbB7zh91PWHdGrn1IOP6F2ySXPn4t5HULZOmiWqf84oE9FE3LryUEtdfbpK4nYQBv7WdfV4McQEhq8gx8+s6fslLhL730f/7iTwqjKsmC3XOatuwGNaug/IBsE0cCfLIZlnaLvGULoyH4ksPkvUAHkNxD+WKYCW7ZU1hwhfq4TapbjMMIFm+lXuXx8Va6lsLG09VbHLaQzJI3AhrTkIwoelIaLfNvDepXfRy2nr0rb83dlMrGHzcudvrDGtW6b+hy1HI59h5NnxvV5FP6fMJ4FTFejRiuRtTZsCmb8GYmxVG9OWI/PD8mNEun02VPS0BalWp1Y1MTQc/G5obbbT+7OAwGfbV11RcZFsQFDA34hwdEUumgurqyfnZm9i//8i/X1tZILTA1NTU/Pw+kZiUTz8+XFpbi4Ti+Je4a+J9/8ldXl5yzLn5ucrZfptborW31TRGn869+//cXJya/EjqBpLQtMSiIixuG+0pd7eWergpnR523t8rV2RAQQR5XLDh4QYZ3bi00TRZqiGgP+bFSWJ7ppiAwTQYAR7ldeE9be19XW+nurB/uh7BW4eostrZg56uy0tfl5RTa/9DYUO3t7mC1ALS9Yzr1kou5kTJ50MnL+KQ5xTlJFUjSIiYnsdTrXPTcfCPwInqIDhmyeBJEblg859VBBmRp/92yeVf/jLVn1KBfDsYOZj5//+WXPvzSR779G77Y+rA7pm3yS6WzTs2KX7MEjPZolrxoqgWPauG5xxXv0I6GC6YUyNjip/FYcJEsetLZhSlH7BJyN/kP1Lh7ijkOq2M1U0cGpyzaVV8A2HQ2PrQbpax6ACnSEtC2MLaYklGR0E1uQ3QNZI5nIMiVm/SejPnPJkwbIdNm2LQZwm+5cc7MlA/geDbO6k7iSE55B8FCEJEPTJoNeL+c27IfGMpdz62G/dTYhWWmQtkZnBO3YN4KW8j2gs7uiOUgYj2MmnbDxu1h90kqyCj5lPdkwn046txPmTfDpMwllSWpzgsbn2WCtLpEcq81PFhKU7rBhK4/retMatoSqv5pi3jMpB2zfeblP2LleL/mpc984U8Usw6wM+YZvTWsWnJKZixYyMl1TDLN3DlI/CKVK+XhpmIKpDgm2YiUxSSa8C4rxK8pGxHRC9Iv0+t47jbzjkn0D2k8dcWooKCSvoSOqTjWXNotn3HdP7wxyrA1d4OtefITuMHW3HXw/VZmD9iqWPXZ8uOWbOo9mjGb1mfT5mzKmotZriJmIGw+asumsIgqYmZbxHEG3nrFPF6Bqt1NLRtra7GZqeKy0uzhMdjys71dm8O5srxmNlqaGlvPTjO57NXu9sHG+lZLk7Cqoq68rKqkuOje3TsX52dgrWC7tbW11TW1kVj84vISZ17Z2nUER/Y39+RtvXf+5K+vTrNnmfzKwdHCzr5Epa8pqa4telz58I3iu1/a31q9qch97SH2AXhpvSRIywVJCbC1NthTbG8rdbRjegOt0CiYBK+KhgK50dH742NIqBWGkfAjhgYWVV6j1Z6KVtYHRPcNdfd0teWujtpAX4W7EzB6V1ONPQ8M9UXWlidDrdfN0vzI3PTY2Fjp7ACnAJ1UL7tY5nlOCiYRm/gmH0VK9nRyPyJzOYEL2ZEJSXkmS+5KJIo+B+KkBoKkBF+ZtgxMW7rGDe0xjXklHNme/NRf/h4ozzd+9Fu+IHxYbGh9RVRS5xaJRk3SabtkyoYmm3Eo5lzK+bcpW3nTDVYCqksKcto/YQICUsAVKSvJ1wpX7tyPA6EAZGDx4PWgde+KrfgWqCI5bPBpxnh3dHomfNQW0S5Km41LcnPe/oGLCUAn+j1pLdkSOxIq/Bx2ek9ZzTQCSqAe0LCDS+bfDjaUUKMjGjfiMghMmRvmDZ7yjT8D/orr705pr22VXBPEFa0JmSDNCt50Y+Fc9+Iw0lGQdiJ4McWH25G9FDO2sJE3Ep4bHiC5ItANEuYq5+z6Gbt23glUFU4YVOt+33569Gjm059nuXe/+hu+trS3zn88bt9nvhkYrliweaUtBYMRtuIJF5YRJBUzDSFSVhCTpeFNGgPe8EXOEmR5I/8Ksmpy9Nx3C0+vEwO+m9RfyFreD7aS/oFd4Rguz6ZedwNbTc+Cw5vvxNbsta61gMjtZvYHwzrVis9+NQ7B35iPvajpc0ldLmXOxa35qPVqxAzqmotYs8lAZkIeN1oj9rPTQ/zAXj7rcjoH24TrS0vhqfEn5WXZ/UP80OTS0mc++0df+NtX7t554LB7spmrne09QVtHXW2TqHewsb5VPCDpErYOB/zssvLMx2BlZWVxceno5ATXe5bJRSdnPv/6nYd3Hxb/v69r2/pw1PjcYlFz65sVVYJuUXejQN3TqexrCTr0l5nDfO4kz2IdsrkPDFtbYpKW6EBLpL/O313u6az0ssw9FNiHOUnyZuHLJjZK+3m9KrlhkXWLok4p3hljiwQ3Gv0YWJhmHUlVlbebEl9W+1hiKgDrG8qKR6ZGAGsRl/0PwFriEJayqiptT0yNVc5O6ayVShYrFxxqlsjDRYOYpHjCVsAljXU+5pWAlbdy8IE91Ggy0DGFaUdESW0fye+jupaYvCUkG1qPOudHPvFbLHPrP/3X3/nWYOUDVf0Xup+UWzt6UwbAa09Sz6Vo0qEPcZJ3CSJVIE1C0NXXBkuArQ81dTgAkjUeFx1GOjIDF1fq2IsBaCDDPtDUNfj7wRNfxFupijLvGFeYGQcLHs5GJmyKJiDJGguJloNy0Mnhy2kCx560DsDXBjqfUANbCVKBucBHACsaeCv+BHjFFgd3cvnGcBn4E45Beye24lKBrdQxbgx3JTWF2MrScqcULLiWS8elWfd52cVP+E8nSVMBbKVlg69tcat0EDX8CQOgUG/LlMITJsWsTTtj0y44e8YNLUm1et3v3IqNn8z+6meZe/KHvuFrRQ6V72h0aJfZCUgdTIomWrRIlKHE7fiI10QMg9xg+Oo1pHUlhz+yGZLfGK395FRANJYU4hSMR9qAwoSthfGN/5BGAiXmIwXUqLhMF9oNr27bb+ZiB/ZfxFsLsHUvsy8N6bXLAfvVhP4qqr+KvKhp83E0HANUNV2FDFchPTr5uDs7NpjUGxKW0/ODy3z++OrK7/f3gLeuroUnxopKS3JHx8C15c2Nv/3CK709/ank6OnJ2fHRiUyqrK1pqCivEgo6lQqNTqvf2VzPXJxnLzNcrsHniQdZGa5sfmJp5U5JmUGtX4qNZzYPri7yGoPlcUMjWml1vXpQHnXZz/ZWc9mjXPYknzvP5S6Io39A2No3beid1AhjgzW+Li7X7zW2NvhEGDcUkcKrgXgrJJ/omidKNAdoDwWYY7jwltzWkIRKcg5MmFsjUtBVAGuNvxfM9I66iqvJWgMYZUhqbSm2C4ptgqKh1uKh1iJr61Nra427G/KaYhG4CT54LWtTMBI5nJOCFcI+nxuJpGzSl5HIxkeFFlYu4H16CtOPKqaH5JCgZ239UxZIlIKoyr4RV0QsP/KJH2fOrT/w0XKDoHyoo8QkaB2WAUz7x8x9aSOwtTOm4RKMavlCJjThyb0UD/YtRdUTfSMkA0AeZiwFVpGYiQ4pLnA9gK2m4CB4a0tIArADNomnrYXYSjkG+TSPt7CVaGwI0MklHsOLI3MQLgYd/CijkxlGNgF/wEeIxuTiKpkZAo4TV3WA0G0M4yN+Tr3sIXAE/gIZyaMD37LuRHAAtu/amAaA+6ty0QUsBiLzjaWOTSu5xAXy7nGdbjOAWwucMWD1nUyg+U+fAyhR1FuJK3k1CFYREtupMCWFKojSOnFSKxk3daS0bSmNcTvs3UmOHc783G//PN7g13/7N1tGva79JIEmHgixTio4Rl5l2JI4j0ZPlSz+aHwtIsAZqaH45DWUDIgPecCFkWkOV9UyLG4ODlLsHHHhW2rWd/LQW5aM94OtFPBK67RhxW9Y87GaLqQTeBfeeuPfepPFFf/2Lw7kQaNxcdidnwQ5NVxFX9R0+bgun8AxlqsRy1XIeBXW5yPGfNyVG+1PabVJ80nm6DLLzP/JRLKposrlcHQNDjS2tnLc8Wr/5Li8strl9J6fZTIX2Z3t/abGVolY3i8Stwu7hoMjA6KB3e1NFt3AEmVROW2Gipe5XCabu8xfrezs1bV3hQMjl/vnV0eXF4dnfSJxh0Sud3ubBJ2xYEQt6t1Zm2NJuE73rvLn2ewFf/cfBLY6jhND++GBKX0dy6PeXcElqK739gENMVgpVJnePRl88RG4yWPrO7ML8omvcDzBGUYeIKPU0vZy7+On5taWsLhuuK8GNNklvK+vfV1R+pq89L6+pniouZjVYW19ZG1Ee2JtKrI2PbE0FVuaqj0d0lmzesWpg4Cz+hwEyX+TQu/JL7IwSxNxUjLQE7ElxRwf5Eo61ms85ZSt1/I7qVwB2QCFCUNXSu/YTAitg//8h/4lZua/+pF/Ix0DLwZdZTZlHVcFCx3Od8cln3XKZu2FpmTeEYoP8iEuSVdFafdIJfrU1PJAXYuPvaP6UqvgiaEJ2AreCpH8Fm/FDVI01K23wGMrn8IGDe+OwjTbwlKmc+Dc/l1Ah7NxUg4QwSRVAFPCclsq7gsYJaJKCgFymAPOos/DJT4SpS1sXazslZ4YLrmCFDaWxyApB7YKkoqeCb1+M8jpBACXk/5TZk/zn12HHpE2gO7lVlQoqUQovSQVdceQIyuTcs6umR4Ce+2bMvdMWyw7kcB+OrwW//FP/ATe4Hf+q4/6FhPu/SRJWng+pMEn8YLiL6h0IHnU0gIGSCWTHfbTMyRpg4Kg6KfppfMgC7AmSoGGl1tkaMLiCqkFIEs6XHKeobDGf6jK9caGTN4jjMOuBSmfgGbTq1/1BZ+l3wVb8zfYeoM1RxdHmqDZsRwdyS+482Ou/DjXxlzv6DvyE/b8hDs34c+N+fOjnqtRB9s/EcrNyVJmQ9x2fHGc49JTHxwc9Pf0PLh//wuvfCnC1QfEv/OLC7FY+uRxUU117Wh6/DJz6fcFH9x/+Mbrb/p9ga3NHbPJFB8ZzmVZXRguAyEXhpC7Vg4DW48ucwNK1ZuvvdFSXh1x+XBOl9v7+sOHf/PmHblGewoi3NcT8dlZ+G7+grlB5C9zV3zA15cfW/2ZCddxrG9CU+NmoXslQ+2sjryzC8ssBgqfA4LEDfJv5VML8pMZffLCoQ5ZKvGmmVcAZ7rB9pG2/vPCuw+1dQ2MsXZXuNufWBrvqCveUJbd1bBKoo/NDdjz1N7y0NLwxNb81NH61Nb82NL4xNxQ5RKKZ4zqFbtm1aFefu5iRW6bJNDRmOayAo9SoiZKIUiUkDJtk+dWoZM5KV7JyEDWHgZ/mJas5p1dtuAAtg5MDXn3x2pV7R/5Z9+ImfmDP/G/6ea93Um9eHKI064yVKUCJNdtycvKlHJ2GPI/owWJwtgomIIkSkrEhUsi9SglpcfEAxiVDQmBrY2BAbIdAVt1a35mZQJT42Jeyb+1UA/ANx6AyF8KEw83S+ES+BY5cgFAGZxxQj2AlYdUUp6GsjPAVuBpa1jKQypBLX2kLdWmJGwthE76E46nI2/99RpbQVrTjLcCW7Ubfh9d/CnzXgicTvlPJ0jk54td0u0UxuBTpzCAhbCPeYOdjg0fjzr2Yup1v/pZYGgnGtofNadsP/xx5p78Q//pRwIrafBW216UdAK0PJNTLS1+JKRTyAYtYBRLSsoByu9HmVLJ45hXdJJLLMlMWM/wTjHyS8yt6JBfHbAVM4JEK7LRYajcUpuSooDX8PJuW7eSeBQWg6HgEVLK0bS1rOM8fu2GF9hqWPMH1lP7XP7W554BHJ5mOSsPg1mOTh6dHsiGVO3mQXHMIooZRFGuxQzv6Bv7oqbeqKk/apREDZKofiBm6Isb+mImSdTSphOZAraj82Mewebm5ixWq81mA6SylNccCV2YXzQaTHKZYmlxCcedn124nC6L2Xp8dAwIXF9b31hf5Qpu5UkngH8gwjy24g8zS0satVYrV04kR/Erm5tbVqdTYTCsboLwXi3MzawtzzPHXaAqY7q5DxRb3adp685w/5i2dVjcEpI2BMTNXBE0irWnrGUErJRMoDDMmWcWt+IFKPKVhhqADCMJXBiMjFbsptAgZdgCLQW2vqkq5wqyNuJjMZqt5fFQ0xN7S7Ed2NpSZGVkFtg6OKVXLQNbmU6ATyjHK1V5ryxy5OYDcElq5lO7UsYNXk6noCy+LgiZmLvRj6t7Od1C/5SlISzpHTM5t5KPuqq+5ps+jJn5oz/3E/oFn3BENThhBUtlRHXGQdtrW9aCixgxL2ZSGCLRLgq6D96k4cB8oOTzuB1wnCf6RpbMf8xAZXUAQ0Yuc9i7YivpW9/ZSHSgW6awVHKDK9TzOI9SkPrdXFIP3iRFCEs7sbTwbJTw8R+x8by1Lc50AooVl+tag5/0n0wOn88EzvCsrqta0GJQSFrpMRZG1hcqqbA/fDE1wmrhpHSbw6bdyND2SPRwXOyRfc/Hvgdv8Jc+9RvhZxOOnZh9nw1U0p+SWpw8cClWmLz08O7oZVE+AXSMnBMri33isvnhrxR7GrqcJkpBOVUxADC0qp1dwNNiYzPeLFgLCCz2kJcxL9nQIKS6Z2TyJSb7TgC95dNKHVIXUK508sYjFgxsNa6zHIO6bT86/rXE/uXZc8+AfL4QWzntQA77M+cnU8vTznTQMR52jo68R3OMRuyjEU86EkiPBNJh92jYkhp2jEc9Ewl3JLS4upq9jmx9m/ydvzHY3/6Xf9HHtwnwvGYYiwQFBFwV/uHmX/ZtP0HuVzdhtB8YtvpYSEnCsu7Xr3j168PaNbwkP14S0U/eAQBDkI9lLqwpwMukfIYBsq7iK7R082FR+EjhBu1xRbWvp9LTVWIXvKWtQXtsbiJla5G1tXio7bGVOQmgw/St6Fhaqpwdg5NG1ZKT2bIWrysSkjmLhib5QpL0jT0YxMApKp+JMUemNtpSeGVhCCavE+AtP+Jxo+jGlnVXW/dQ19QZUv/R/b9+6eteeulDL/33P/9dw5K/M6YZGLcAXrHtTRl6knq07oQO/d70dQQ6X62PMp/yZRxJZ000lhLx0cwh+zL+CoBTYpLP2iD+g0UCXgcmzYSt+Ph3YmuhMxbxVvD0psAA2BPmNll+ujlJn2R2y/YI2awAcOplD6uLwzUq7kus8x8XW4UJZstiqWMTcmFSCXhl+2PqvrTR9CzMVK6n14sE78NLHJxwlpYNfiePs89vH1/kUhoCW60HccduNHY4LtC2f/ifstXxcy9/Pr43Z9+5Tn9B5lDyE8DrwIMCDwACYvCQrEbSWCG2kjYGrwxnoJw1fFYdjHwK06IvUkwdhavw+YCIq5IplVxKKJqOryLBHAE5xsqnSzYWeEDykMpn6iCqSwoK0uQy9d0avhhkMa87fi1Gy1L04L2xNU+1CC4zuYudy+Oti5PD8/Ojsxe2/fOLg7OL09OLi9Pzi9Ozk7Oz3bPTvczF nnm5Owim8lmb6JpWfpBYsccsHE1Zd8ntOXeA1tz+bef4+Yogu+LtwN69iZ91weHrZ6TMcdexLYRMK/jfYT0a3hJ12nKyOBIwghF8hX6+rwIW8mFAMMCQ7PW3QOiKhiRkT8KTkJ+ArWBPq5sdRuA9YGhHhhKLgHFnP2KHLDIloX21Pp2bF24TuFB9QLIvZGADB1K0UIJsUAWWH3AAu8cSkR9yw+cQgYoIJWpXOcdqjm7jDSk8/b7hsbHhhZg62998Q+Za+RXvfTK0zed2wnI/tatqHE9hA5Iq3TazqIGxlhUfl/awGdpYbEDXCoZchi4jk/lWO11FmfOlEzzhNwzMRuHL6chkktmhpyHyeDFFFAV2Kpd9TEn0IvJIS524L2xlV4KsVeSHkBa8TQoToEIKZPNI3JgKNWAIM0AMB07KWSODigMSv5Hw9akkjlgjSoFSUVbjLFXpkmIKDuiasPasPeYHG+vsZUcNinwjw9D4M2nfKpTXpZio/FsPHw5bduLaZ4FLPsx915s9HS6sq/qpa9hgQNvlDyM7TNste0xTKRQBbL44y3Ue/velJZjEcK4Jaii36LcgDg5OqSNuYWt4K2UhIWsSUA3mhdk+6LkD6R25/NAyjktP4Ev70vA+8kSkyXZ8ZZdizdtFcIu0Ro+5aBxBXQ1AGzVbGKI2uxzoYPsu2Dr84SBeS6tCZO+s6d5ZlN/bvN5t5Z77mdw3fIcop1m83QWZoG6wdbTq6vMDVSesbqH7wfa8u+Nre+S2OrmwEvuF7MFl/oVwFb/6bhrL2rbHDavh7TLAVBX00aIWCq9J8JWPsk5H3jDY2uhIYWmNA6mkoUUOkX5OiGTsuigmSFhXFE/zGLAHpka73AxArewtcjGUVfOH4thq6W5Etg6ZSJsVXDYqgEscsZ9wibSTGHUkiQFkKWqxWgknlPyAYod6IgruxJv07fyyEvKMi2oBPjsglMyZ7unbyixCLvCml/+3H9jFQe+6qWG/jbr+ohhLcRMLqeTroO0+3AUW8de0rYdH9qODW1fZ9MgfzXa2veiN7GMQVLwkdmNpjQtFTSj2HS9nAaSDk5ZgHoj2TnDs2A/jrnBVkDGe2MrvSDKcg8yhd+lDAYQTim+ltI4AEDJQmVngu0UkWLM9paQhFebXitMY18GbOX0rYIUp3uNy4UxBbC1PaLCijV8MeM/m+Ddy8hLmrThheEDfH1Z4neEv0wlSkLVyah5K6xa8wFbnTuR5NHE3dq7DFk//FJxS01if8G+Gwe2YrEneYUII85T4+p+pb+4xNKGB0XaVZoL5INFygEyo5FygHQC5EVAin4/V3sVE4cWOdIIkTBHohufJIHkJFrpeSmK+CzJYeTIRbG8ZEzmwyN5XwK+4gBhK+/jZVoLAlt1W37NpgfY6pgP38bW3NuxlX24vKlP+P8lbCmffy6MA1rPCFu5vCtHgN2bWLATDvjeRzGA94GtN0T1+Z9vyPg1muefk9bMB42tkF8w+LbDQ5sR08aIZStq2RohwwuZUI039a5vTV0eT3nVIbEGCnXFt/j0SORujZEKRgAu0DoiaQoN1ni772tr7qqArY3F1pYSu+AaW7HlPLEeW5qBrWXO9jK7EAcPTJmUN9hK8jvvygrgIGU/YSsapZuiPH4032gnZYpTzrtl05DRwDGvY1L5SnksdBI8N2XoS+t7x3WdY9r7+rpKW2dXQPVzn2LOrV/zTR9W+4zWdZbWhPPEZC1wNgmQ9Z0y5yHmSHQ+SbhGjlCcdpWCjsauTeE3qhU8WErhiscF4kxYD2wFzBG24mGGsjPgrcBWMFkeWylX1jux9Wa1w5a9C/dxyns6yrQNaS2WmUfa+gpbO0n6nUl1O9aYlAYfzdsj7hNWIN1xmMTix8xQnHmqI8HZqf4R9K23v96eUDJ9a1zWTkW8EywkoTOu7oxpzBsj4K2uwxSRbjwlI1ekh3JWkL8UH0r3v5h7D+jW1us88FqyZCmWW+SJLU9mEjv2lNgexzNaWV6eeJIsO7Gd2JZc4hXbo3hsWVG3rfreve/2XtgLCIIESZAEQaI3ovfeey8kAPZeQQJsd/Z/NnguLm9770laFtZe5/7ABQ+AU77/2/vf+9u4uE+XDCDgUg21DMK8AQ6gsGI17EZNq37vUviL73zx0gcuXfrYD7Rx++OHc6bNMGawYhoc6vzCzuFAXeY/fqTtH4lI4TDqVj1wPAm2Lnnte3Bg05pVj3Uv6q434q3ITGEMNwKmK8AriK0Iygi7MEbKQoswwInGaAAGXhHcMUMWQRbXxNCbocu9MCaLKbG0dCdOLdjK5VndOSDvile15lasumRlu60S3j45eGlM4ORZTODpyVE9X8474j5HyudOeTxJLzEYvDB2pj2OtNed9PoSfjB30mfP+Mwpjz3t86YC5ZXywekxfhw2MqhTn3h2enZAhQieIryfPdd1pQGdWJx6rsx69nzOFIq7UjGBs9dga+18ja6ZtJ48N2d8b8H1knU/Zt4JWjeDpnXwa8Jgho0QBrOwxxmcKuwhcaF7azNvbRYYhBOMzLHXNQFcqXn1k4hZrHjYEUGfd7zdyr4uJcme4LkDR7iv77+j7SNcFYBV1/vACIy1r8U2PJJScPMabl47NWMUlS2SOTs4rbBz7FmETa6AkGKdDOZvYjALVyHwCsarGV1yxbxTVfEoZp2SolVcMIuB1VIpO2AicNIpwS1+XDcWU3LS8v6E4Ja6s9MwPKSf/OS/+zVMbjUk7PoV0kS2eWnleYwjOfCvM4qUwa0IxwpvbNk5B6eX49BDROEPFLuCowdIjY4nja10K0Z6oRxPhGzeNpZSTmTVYKNJxUhc1ukYvSZtazGz2RExGLJF2LIT0pG0YjynHs1MD6fk2NkFeOXrbSj6BhsMi+BTBokGlfTF/x2JyYZiUjqvCweAuRxKHpBLAQ0cEPhFcPqwswtqwZDF0nMRS7r3Ceal4KTeWAICfld2kIj/vFW/H50uuxRB/W9++j8Ctv7gj324UzYYqOVRYwguEozM0KorcF29PfnwiX5AkNW4q1HTpsd1ELfvJqbnfa5qwb6fmV5xmasBZy2BvBWZLGIrHW/FRS2EVDpQSyLp1O2DUQX/SQE7DGIAgS4zwazBhtzteWogXQWDMVkMzcOlTisoYeQBaQ08JWkDlFyycsUjX/Kp5v2+lczWafXk7JzInVPTU5oeEpL5dP/4kK2bvDz1+Pp0+01F2y1FO2Vtt54bk+316ZZ3pluBId2Ud15XdFxWtn5r+vGV6dZ7iu47nNZpu7F6fIRgSnSrnxKVViJkdXp6rmdFlFfrRLn16Ox0/4x8t+O9GhEZrFOYDH9ZPzs5OK4fkgaJx2eUWOEp6YpA9dY+JeKvr8K1F7NXv/f5rBcflyxVGlvBmY3oN8LmrSjen+jP4vILTSJexFY6vxIGeK3DVYKqncCS6Fw/bA0LrvFIQsLwcJ+YBt8Rt9yZ7rmv6Xug63+oZ93VMm5puu9oex7omY8MLNh2OkcnCzrpvE06Z5fN26UUsALoALailAmw4ObqAIabh3r+mPmELAZlQHEJi/BWcPkrDkXZIS/ZZSWbvGwFw25XOJbPWOU5myCr581ohrKie/oehnm0Tz7yz37xXwC2/sq/+VVr0adbJgGv942twH0wOAjHBDPD6AbUWGmGYIpa0ZigjusbuHoDf4VPccJrjjPiFt7GL+oHQkJAN4Q22LbbRq7L2uGwA94NUtiKhg2ycIy4+V3BVkBz/GiE8otviDSSsYAXY7Zsc4IXBnlR9wDwCPW/MWwCUyathNKQCW5q5I5YBuBr3405NqOkqGTZrt2PTJedAtf0L/3r/wOw9aM/+cP9ulFPNY1F2+ju4CWEnPGct7KmMhpXNapbd9n2o/bdtGYp4qqWHXsF1YrfUg07D5PvG1uxTww4N0jGsUEO7gSbLNANGjAtjK6cpusUUDUNG+ogmGJmK+wZfTjCLUgAwSUHW/brliLBtcL2aZU0tKZdd0SwBrE7a9Rl1fb69dzryo577v7bTuadV9ttF+OOk3HXzrpnH7htZ113Mq64um84ex+aWXcmOqQ27c4hlYNFSVgdAxBSD2yOTQYEQ89qtVMAz9OT/dPT6urGqjcUOTghmahH9frJydHRCZHRrhMJwiNKrRBYNaDx0VGtRrIaXmgl8H31uGTZjyK2mjcixo2ocTNq3YnjHQsXCs1Y6Wv3VdiK0kfwZji7iGJwKXRYOVgqAx43KgzAG8bS0wCadzWMb0zeuyZru6Pqvq9lPDL2PzQyHxj6Hhr67msY99UMwNwu+ygvo8b8PlR4kp1jK6D2Q20/DFAvA0NmTO8UNouma1hxekeRJCyIJNFVAN+kajKl5mc1gpxOVNBLZowAr4qKFUxZtqlmnNIZq3DOOJKXPbawhpz8Vm7vRz7+jwBb/+Av/tAzHwVsxe7Wr1hKegO2umtZWkEK42V0NTqJ/1JzA7qBOEngIjJyGUwSwgJfLFSnS+ZwiQO52Hh6muHlAbwCxnEScsTW29PdbdZhNmDrObAikiKY4gDbEX5XeCuSVtjC13jxDXRBAXDV5pgDoi1W3CFaYbIdLrLjCg+meTRXLWNGCjrLBHzXAu6dBFHd3/DqqlFlyTlhkf7E//iTcAZ/4p9+nOsSew9IUqqOyvlvxlbYW7dj/Ia047Ge1BBadyPqVZfjIOmsFjWLKcfuvHWnpFqNmqspx2HqPWErjDFz4AK2wovwCg7wDsKUEthiDh996mk5IZxr4Z6CAa3ygcknyFgbTQlXPJplt2LFo1wJGpajkc3Z3bPDE8TW01di63Z9j2Xg3VR13fcO3vAyr3v7KWNef2F809t328u462Ldcw3ccbGue/qu+hm3AswnLvYdfofQpto/IktWWKtKUlOpdgOAqoeHh1Sm6un2zpHXHeeP8+KR4HG9WigWJEr1xu5htlBSK5RyoSATSwKSAqrOLS6Gk4n9o/rO/p7dZjWqVEszxaen76JH9z/c45J5j8LWrZBlM2raipm3wdVKIANFQRYaWy/kEjZjK2IxvBNdElwmgssUFZ6wzg/jQaRvdkr1wDR4Y7rrLdHjh6b+Hu84M8AbjAiGYiKgtOMp+Tg4hrCHqAwQUFai6CQhmzY0OZWKiIlEWFaPNQJwh8BMjur0tEgKvRyPxTaNjlUZzVRGPUlasChJHmtMzk0oYcxLAeYS8SRhyjCZ1o7llKyEoMXMGnEJrzMekiSBS5e++NaX/SsJ7RJpXEoHnd8HtmKcGnNd6SA1rgHi3UJnONKtc+miIxRGoOVC6Hp2XO0hS2QFfY+bew+mKG3fQz1ZDARIvafpvT3dBQgLSIfYSqMqjnHAipAw6GBM/B1iK3DViaxavepWrbg1a17tug+2z2zVO73k5mW1dIkBja2NolhKrwsFFXF2IXUrcDXCgToXrMAgNWpi4YoQLcojyhuURZLyIVl1GmsJ83pEFtB/5Cc+SjoO/K//lOeROncTRgpbsZ0i+j1YygHXFVxIE2mtZhUc/7Ruw++oZS27BXk5ZVib06+VFYtJw17WfpB5r9iKlV0IshjPwbgEavLSgVq6USudX0V3823IGFLLDJjugqwWpQUxHEeXUBpWvfp1vxb2DDf1ZjqxW9k7q51QfaReg627x9VB09QNZcctD/OKn3HZ30cZ4/IL43f8vTf8vfC2255+2F719b7l67zu73noZt0UtAscyu1z3opYA5Dq9/vlcnk6nQbqCcw1Gi2zmLze9t5Ht25HfJ79vb1MfnZzr6ZQ6YYGB1RicfedJ8VYFv62tLDEHOXEinmH3/Pg/u3Oe3emmL2nB3v/ULj5bh6XTHsRGlvNW3HzTgNb8RxjpccFsYwXsRWTYTFbEP4EVxjgrD/WD2CfS7gHTNS6AbyBHVde1zAvyzrekrR0ODnDSQknLeNmlRMZ1VReJymZlRW7quJSVZzKkl0xa5PPmMGUJet02TZNqlEbskMoC0AH/uFqw8UrvNpogXpai4jU2Mw55PN2cdkoLhskFaNolsDQZAZ4EFy4yHPlnKhsPKIcjkoH48K+yESHlT1iF3z9/mWCrD9w6crja+HNrGbRQ0tBvwxb32B0NSqiM91RGVfAMIWzUT117iXgU/oI43o0Ym5zRzLcqpbdI3FJl4sD1uEYbrEMwBYcgidmFsPHHQiT3miDMdFQQgI2EBWyqKfvyYbeZMNxsWTO5D5OuY6S7qOU5yQNY9o8RyQwIiga+/2CBlFFSKXZKxVMxGUiDO/ANQYHIXBaxKAzfXxwRqc7R6HpV3ymZZ9izi5atusPYtbthDJs+qGPUarYv/7LUz45wdZNksuBCVg4P6FIBYph69aC9oOs/TCtATpZy+vWs/x8TDk3O71QksxndDtFezX7nrCVrpptxlYMbsBvwWkVkyJgt80ZtfA2LLtqJF9TfAKXcNEtQz1DWlYJFX9I1GjGCEcAvr9xN+XYySX35/ef1l+HrVS8tcFbpztv+/rf9ve89Wq77O+65u+64em94WFc8/Ze9ne/Hey8Fui66+q7Knwy5VTsHh1gNRVwVcBTDofz8OHDycnJ+fn5/f19cO6n+Eb2gHipvHrrrXeG+phPqeaw+4cn5fnFjc216ubmlb/5W4tEh1ClsJj7uKMcwURb60PRMKvr6ltPq7v/gND5xgfhrZbdkA156ybhrfa9Bgk1UDKdGNiim7W8yFvpOk6UsAPfDeZ/vNbhrCMBwU6WmG8wGFNekfd8U/jkqrKzLzzFm9WOZpUjScVgWMYKSAcD8tGQkp/USfMW5axDPedWzwHOOpQkNcqsLAOBtcqaGlPTHe6wjTZKYSHyYk445q5iAiMhNQU9L6sUzmgkFdKJSw57nvNISw7prF1MpABIro8wbxQUDRNFFTspZrq5PI/8jz/3ZyQB68OX7vU/9q0ldCs+TFl3vSCV0oh7HqZI98YavAjb1AWjE92bZfTondD7bG5ERr+H7rdMv/LiU/ho/owOXAHwA9hRIQwAT8E5YIWm4OlwXMSm8JEdJwYDgFew7y62wmcJS3pnPWE/jDlqcRgApMIAnrqPAW1JARhiKwoOYL7XM60sKtqD0wmSdOxPRcs+0N1WcNESl+Bp+UFvLRuuF8xbYeGibXo7YNmK8WyyD/0wcT1+4/f/nTxuAGw1UbMUzsrIB2FvmIksKVuMmxHbQdYIaLXut+xndes5XiYsL88oF0qiclqzmbdVs7gMhWtTYPDRWG4DXxszrpznxbI0b8XUDoyNYkyApIXUs5i0h2t3iK208hbSW7pZDt2mDOkCahLhDjGFFjuJEeXMiASIwgg4ZxmDIGO1l2M7JE+AClOe0OmpzdhKXtk9qvbrubfU3Xe8/e/4el5jV/xdV/1d17291z2Md3y9bwc63w51XAl23vMyCba65DtH+xgQCIfD3d3dCoVibm6Obh9wdHTK7BdNTujgc1vu3Ge2dZwcHJ2ePd2vnQxxxoUiwfbS8uW//krCEYY371RrS/v7X7tx9cajO2+/9fX/9qnfdQh5T6mYw/ftA2MCDWwF3mrZSSC2opdK17leaITVbPhmOOVAUZGlAp5iGR/6sJh519B73QgCgN5Q9l1TdD0wDQzEJYI561TJwi1YOCnLSNzCiVrGI1peVMuNanhxjTBjlBWtilmromRVlC1KarmJlkalk/8xCklUThJKGOC6B+pj4TuxpgDhdSwl4+WUolmjpGSTzrpksx55yScreWRll6zslFeciopDNm+bLOlGUtLhgFDgV3/yt3790g9e+tCP/VAbt8e9EtE2YeuFPF8CiLW0bT8GBjBqr8bBHAeJZgPApY/ku2S+F/LeXkqEEVZwh/yijh0VjSblQzHxcFyCBmR2JCHlJGRDcQnl9b9/G3qTDYQFwpLBWU86agRerfsRZy1pq8as1aijlgRf215NimbNGG+lw6y0AcgS6QMKdFB4ge6B1qyHgrF1uucKXcVkWPPrF+CEWgFb1bth61acNT3+wY988NIHLn36r/5YX3A4duLoSDVrb2NrAKrPhR14q62aMe5EtBsBazVt3MoJ8zEgrZrlknguodnKOg7ymhVPcw4WuvaIjAiyeLKwCtZ1nhh7AVvhT16KrXQMwUWp7aDcFza5oVt1Ibai/g68U0O15MIoHJkkMurxhIIdk7MiipGgSpf1nmPr05djK5UssHt80MBWD/OGr+c1do3GVi/jKoWtbwG2Bjrue/sRWwGmTymNgqWlpfHx8eHhYY1GUywWa7UacNnD+glzUDQxoTmpP229/6C/rf34sAbYelB/euf+48/85WcYHR2i/tHtynoymm7t6n3Q1Tks5LPGhuVSgcugOd5Yxubf37ePS8bd8LOYwDa4FQCsYHFcyMKS/OY+gy8aZmvRHZthwmw1Dd1TMe5O92IbYTpPHvNSWQFJu3W82znRHxaN5dSCOftU2cktukYz3pFEYCzhn0xaJxOm0YhmOKgYCSnGY9MTSfVUViMqGmRls3zO1hwKwKAq3FdwST3U9nfaRuFrYB0h0lUkOLgWL6uQJXhuTjGalvGLwFPcooJ7MukQZDyivEdS9ADUSstOWdkuqpi4RfV4ViHNG3Rp5//0iz8Ht+WP/PSP9UkHXWsRzbLX1aQP0IR6SSpUHVWvuBULtuklh2LB/qLJ5+2YheNoWuN+ESvxmNNCUFjDSuuVXEBenOQwL12x4OBmVHT+E2YLDEeJ4dPB6BuWqr7ztSz4FHALHIdJMNNOWL5gVy454YerVz22ahymH+CtmlWfpGydXnIrF11SOKdNho2m4YcDHmE0GcvnMEm+uXc0vZqHb0AeKsobhCntSETKyavHZ/WKWUfLRO8HPvwBmCD/+1tfdCwCmYii/44ReWyGyPILepxcuGaoPfts+ynzTpjEWw/T1p2cspIwrZeNGyXFYky3Db8rg/WKcPzhy8ioOR52BZcZfg3YJ7wBCWxz0YGL0kV8I7bC2cTlXxdVCYa6B7h/FB/AxCx4ihkjKOONmd3AbOALTM+RIkZewTCW0XNjemM+8L6x9TplF8bXMCbgxZgA47K/6+1g5zv+zgfe/muNmADhlaR7a72+sbERi8Xa2to6OzszmQyw16OTMw5venhUcnRw/PDaVWZrC6HOx0/rJ08nBZKOnu5cOn1SO65Xa+NjE739A9fu3VMa9Cq9xmSkogRHte93bNVvB03bz2Gro9qQNcGAAA2sr8JWeAOuTaNgBHhzbebhFiO73TJCVU9PY0oWtjPodU2MRqfH42pBzkjuogWneN7Nm/Vwsr6BeKAvGGYFA5Npl6ToFhddk2nTeAL8Qe1YgtSocOLy8bRiIvtcP3pcyoCreTAo+vrYnXeELd2OcVpDE0MHOOEDyKK8/1RRw0nK+AWTouIX5bzjYcdE1M1PeWEsLnjFM3Cf24UV41heyc1P6xe87rnYx//5J8Cd/Mmf/akhzbhjLaxd9oLX7zoXDbkAi5bdqGBGy44IBsN8sKGokB153iiHt7kjy+ux9UJCwov5CbgfuMHghzdahScVDUhtSi/FhFOycB95w1LVdyVPQFw22w+BoqYAnjgJOXw6Kyjg5TTm3Yj3JIcSXHSt7cXGMOcMHWAIU44wVQDzl9Ffwfx5OisLYQs5owWu3kUvL63uCfFbPdyJuPo688GlD//AD/zQB95pue5fT1o3I2YKxWgdCbgygQ3ckHbAp5B0l9WAYy9h3QkZNuFcJ+27Gc1S3L5Tsu0WVashw27YVU+j9hX67Bj+Yrh54LrBAC54mObhRWQeeB7fE7bSVbbwv7gOjP+F/bvwIOBiJkIw7BCOCebJYMxENQ9TkUM8Z+fP2sV5h60UAWw9axQqnb18LasJW297mFe9vQ3zUdY0vgZ01d8NdsvTe8vNBHh9x99zJUjQ9pGHdYPfKnAot2qNHtp0i1YYlEqlVCoFA/D/1RZPF3NYKhLeu/qWXip8SpXdwlczWOwd3d1mq7lcLm9v70zxBT19fZevXnV5PYFgkNHTvTw3//Tk+xpYnxJs3QqYtgPWzZB1K2bZSdj2Us5q2rbXSBLAUtfmaMCr1rKwkhoupieGwWvitpuyTsA4FNDCiwCuNiI2aBsdj5BwqihvAmwVV+xTJcd40TuUDjIjkd5AkhmITqTc4hmvtAT+mks4YxcUbfyiaSKn5aQUJDgY4mMfULrl9RhVFwiX9bcm7l8VtQKI43IETVpxtsfmfa7DFGDraFrJL1gkpYAg6x+PeLhRHz8VFOWDooJfNOMGxBfOm0YBW3NK60rQnPX8+M98HLD1Fz75L6fsEvtKUL/qp4/D8646wUHrXlRU0g/HRCNxMRqMm20gKIAvhvrK9BJWs52XAxC7EHZ4EWrPAxEZuMGEBQNpzwcUNU5QlU7AemYIstHvLbYijIqoTn/uowxwVYKtUXiRD4TasBVE3oo6h9gA5gK20vEWuAiRVNKNHekGsXQ1HTZUR8VVbDJk2ggBtk6kVG2e8a7g1Hh0+qsPvn3pw5c+9LEPt7I7wttZC8njDqNyK2Irw8W7o+yBSxf27NhP6tf8ngOA1KBp0+M8iNt2k5qlsGO34Kzmtet+454fawfoeCtqRWKlNWryAreAGR1OCoZZm7H13ccEaJVIXOmCn4YrWuiZYXQYsRvb2yBjhfmGRDbKFgVQV/Deyg5JwWkvR8+x9ezp8ekbsfWmh3nZz3j71faOv/emv/eOp++Oux/efNXfezVIKO0Tz+AtfpvAPr13fIiZrZh6hSKBR0dHh4eHVKbr07nNXbne0MfomBaN76/PPz07RmydnV8c4/G6GD1TIsH8ylIsmWAPDzH7+tZWV5cXFg1a/Vyp8vQ8u+v79gHYCrw1YNkMAm8FbLXuJQFbUamMxlZXU0nri9iKvi1eQ5h6/W3egy8PXv36+O1W8+BgSMAOizAFeiKlg2tuKqWQFnTykkVWdvGLntGUdygRYYbjDH+21zvT5y8MRWLjqRg3HRvPhLm5ADfrnig4hGWnYNbCTau5aZVo1iytWMGmcpqRqGQ4Iu7zTcKl/Fg/QMRnbRxOVMYhNZRSTlQ+npieSGmGQ/KpjEG/GtIu+8fT02PpaeGMVTzjEeUAVX2TCZ8w4xcX/OKiVzTjkFQs/JJ2LKeYLGhcG3GJW/uxj/8IYOu/+YN/Lw9pzEs+wwaRpyL6zVVKvLmecROd6bhm1TO95JKWLWMp+VAUsFUyHBMDUR3BWOe5DUXEkzmtcpEIHWnXfEiBL2Ir1Q2l0ezvgMrres6evQ2AiWQ1glNMtSsnCooRqiwqKgYbikkHIzCQNNt3CKwNizYNouehWBxERARbZ032KmKrF1AeySw4H/yCXjZngy9sohbZG1cUTVfPB7gwBbAFCAWzKcbxsTKVLrrHjBSkb5gUjIH+sbiCl1T3uCceWgZZIeG4T/YXX/vrSz946cc/8ZO9InZgL2PaDoEpFhwYU5rM6nqdvDvTPeD3jESlcEYIth5mHHtR44bXuR+z78bVSwFnlQjL6tZ9lr2wbZ8IEsnn7aplt6BIZAmJ2JjnnLf6+R32UfAeZAuOyYIePogkDBCQTcDZ1K8/h62YMPD6mAAmJBgoCTSsHEHGAMcBU2WBa+MRwLVcspwLrGLWxsu7uRn/ZDxgKaa2iPD+6QvYel4oStVn7dcPxtSCh1PdLQb2LVP/TSNlJsqeH98x9T0wkDKfR4aBB4aBe0bmPVPffQOjVT9wc7RFYJverR8QxD5nrBegEDC0dnpKoe/hyXGVlKSenQC2HlO9Wg9qtdpR/eD4qH5GyXmfwtsowVlS43VWr9VfVWfVrCfz4uv0uPEdmuylf3j6Wnt96cIlw3bQvBM0w1S/HrLuAEQSbMWlJ1zIelUo4AJvRWEX4A7DUdkDbf/t6e53JE8uix/e1XZdET9qt44oFtzTi/6pnGkyLREWFZJZs6DoHk0GBiPx/mCW4S32ukoMV6XPXWF4Zvp8BWYgxwynWJH4QCw4nPDAJTKVt05m9PKyzbwTsQGVOIgpF61jgF9hQY+L00r0s3VwP8vmrNJZk7igF+b1wpwBCLI4b+EltLyETpAxTqXJkhc7LORltLy0cTJlEeacUykbP20T5GzCglVUBOA2TxZU41m5uGT0bqU4WsFHf/yHAVv/8HP/VZe16Rfcpp2485DIjHoOsv5axneY9B6mgK7y8qrRtHzoTbQO+CPwuLGUErbCWaN1PwYO5jOrAbiAm5x9jSHpQ4fatBOdyutRErBRrR/5znFT+noboIwFFpMM0M2v4qKBuJAVFw7ERIMhkbhkwW+I/bKe5a5SKVaAC8jFLrBy13mNH6ZYAX5h//NHOhZM D1OLsAonVSHa5WIjzTaTmW1kzndWEbT7eU9MQ0OOCdHLfzf/8wfkZ4Rv/QLA/pJ235CvxswbPlJd8uKVVg0TWWNfW7+HUXvW5MPRxMy52Ec5jz3Yc6xn9KvBux7Scd+GhUkXAdZ7UrAtpuAM6VZ9/JyGjiJMLV3u8Zg/mB4eR12DpxiZoDfYh8aiIv6I8JO9/hwQmbcCWtX/bZd0r1ctxqEPdD5rQiamGCAIh7NMQHkxchy4G30ai0u6MGhaFZAn6JECxsHp2zlFpxDicBgMDnmSxnSM5vHFKYScnh6LiLwPACdntbqNYPJODA0MMwf7xIMdgoHcYuD58cDXcLBbgEbrEvI7hQMdEz1g3UL2e0T/ZqAZf+49lrwuQB9L4yaa//PmgDyrPFfZ8+9dFHM5Tkgb0wcz/4GtyjgcnQuNXDyAmjCwTpu0iI4eW58dvpadCXxVoKtGwHzRhhOvG0PsDKF2EoUlN8FtmLCFkaCYMZuMw/f1zB73Nx2+1CbbfCxmXlT2dZu48jnXZrlID9v5kTFHACXuHY4ZhuM+Jj+KMOb7PPkmb4ZlmeG6Sn2eItd7nyHO9PtyzDDmf5wjB31chK2kYiKG1eoF+zgjvnOMr7jlGbZMZYQg3Xbh9qtg9p1j3U/5D9J+47S/uO0r57xgHcJd2w1Y96I6pcD2kX/dMXNL+gm8+BM6UZjqqGAkhNWDwemR8IqeDqe0HCTKl5WPZ6Rc9IS8awxtJfv4LE+9LEfuvSBS5+98mXHQlC/6LYfZByUPgvs2X+Y8dfSvhpMSOHxjIKki4ZfUobUbFinBPck8DiMP+KaD21vxFZktbg170THUyqsEyXFoxGiw/K9xlYWbTEJsXNsZb0WW4fOGxAADwWWB0yN5EtRK3XN2OqkCivgdWBkAJ2AwjAd3lf33ZJ3PTEMAtQitmJIHZew6GTnRq8qgJ6Cocc72WpiD3kEfcqhX/ud3wBs/cVf+1d8vxomM+2OH7FVUrbw8wZ+ztTvFd2W9wJvncioHAcxzYoHC+dwsR4lY/DrNXSw6hnNmnciq4ZT2ekYbbMOP4etQX6PjzuQlPQEeC22YXZC+h1iKyrGYt91XMJFkMVCA8t2BH4+zFh0AiJ4deKKjVt0jSSCg8H4qDeuTxXfiK34WFtbK5fKuZl8qpJNlrOpcjZZIZZ6fpzE8fkA3pyu5KmnGXi6sL188n60tJrxsOk7nl1E0ZPnsPXiH76o43VGi8G8AltfUHIhD9TSfoWdvShz2PzAmADBVstmxL6Xtu+DJTEBC6V2Xw+sdA4WnFp03G7Ku749+fC+tu+etocZmOj1jXc6R5h+PmCrYs4zHteNJrScpJEdtfT6ra1W62OTo83q73ZG+32JQX+S5U90+tNd/nxPYIYRmmWGgMMm+wO+waBlwC/jpeTGdafrMOY9TrnrcdUS8Fa4S/mPdb2PdD3SikFS0quXbOolu27VZVj36lc9+lWfZStMZo7tmGsfcDYNd46tGjZvhySzVsDTsbhmPKHlgiW1RIA1pR5LKIbj4uG4SFoy+3cyb3fc+cBHP3Tpoz/47bbr9qWgZtHlPio4AF7J3gi2+g5TvsMGtpKIcOQN2ErX1/cH+MC1AUyf46319OuBlcJW0gEbt6btMHWHE9kqEmmNyYbj33NsHaANeWtMDHhKDIA1TqXKvgxbn+v4EpGinvSFXtnN2IpNVQFMGW7eNXHbtybu35R1skNiDAXQulBoDfldyqQVG69g7PJMPDYMcHyiTjHz5z/5vwO2/vrv/Ftj0WfZjWq2vYYtH2ArODqTWR1i6y1Zz1VRK8yszlpct+5119P2Kgx8mEWnXnG7iVeR0q55bfsxOGuqFXC3VeCFAJMAeL3AW9ucI/1xYW9wss3OYcelhu3vFFuxxTo2R0DlYuxHSUvRYxt5TOuWUYsZk0UXJ+UfDkfHAlF9Jr9BsPWUUk85O3uZT3t2/nj6LFbwHDQ9P76AazR8UUJbZyffYbX/6Ytgd/bs3+NXTg0v/2YXBvROLtDSF7D1O4gJILZivNWxD15YhsZWUqL6LrDVTJFcmDBRmvqxYfDbkw/eEbd8c/LOUEw4BDdbmA83vLTsEBQsI1ENN+sZz0VGkpG+YKjV5n1ocD42Otstrl6nk+V1MP3uNn+4PZjuCc32BspMX6XXnet1Bvu91pGIWlrRuw4CvnrcU4vZ90LqRTs/r+bExA81PS1G5nhCPJEQj0aFozHxeFI2kZbz0srJjFpY0IlhPq9YVQtOzZJbt+HRb3q0625xCe4rjbAILMAGOCuesYiKlEJdwTieUo6nFQRGV2J/+c3PX/rQpR/5Jz/RymMY59yqRaf7KG8nioJpby3bjK0TOeVwUsqOiYai4tcYtaxELSiFhbycWr/pN++Gn9lOGNx8007s1RY1boeM20HDVhA4r3bdN5FVNQujsKPfUe4qFTZ9A7Y+swYcixtlBQCsr8bWZuoKJAuFTTEC8GJMAGNNgD6AF+DtPtYPAHVtMbLhMqPlBehmPNjxDIUF4FyLS9bxrI7h57dZhseD0idT3f/k538GsPU//sl/9q2mjVshzbYPsVVYNPDSWkHezPKJH2lJ00DRrNFdT+o3fe56yl6NAcjC1nEQV6+44BVXLald89j2o+6jtJbEBNQjccDW8Q77CAwY3gkYwCnuC0w+NLMY4SlGaKrDOUawdStEYWvifccElFQ8HZkprmjBKw3Zs4oNJQoxz5fCVqCuDsGMaywLPl9wMhYx53Kbx1TMksoTeCm24uPw8JDUpB6fnJ0cn8EWBy8ZN79Inp7Wj06Pjk/hb+tHZ0fHr0Wed/W4EAl9ej44PUfDV0VXn56/GbGSlm09bnqd3s/xy6IBzTt5jb3m8QxbrVtRZzULdAzOOtZW0tWurzdUHoDz2ueZhG2Laeht/qMb8o5rshbVmlOz4VKvudSrXt16iJ8zD0U0gzFvfzTKDCeYgTQzkGH4Er2uUJ/b3e+1DAeNrJC5xed65A49dibbnMVed6XXWey2hvtcjomURbvm8p3E/fWE9yDhrRGhUkc1ZdwIk9YDCYUwp1bPmYV5Fb+oAa+fl5ueKqjBgIlM5bXE008px1JKbga2Uk4CYEjASciEM0aK7GAxAphdXiEX8URGbQC+UPL+7v/7abgtP/G//M+jRoGm4gS24qzn7NWMp5YNHOUa2ErFBLgZBTsOwCR8Yz0oVR8F1FgMT8fS8rG07JmlZJy0kpOafqWlya9Aoanx9DQnIccYLh3MHSbiAO+thvWifc+wFVvAAmkFw0Wb5rqyl8rfwH9hBTYCEC77AJ+lG1Aih8WVHEwnIEGSiIwR4HfYOCNe4bWBuz/6iR+Hk/h7f/5Hke0i6e+96wdslVYs/IIePBXAVmHBDF4LJVzgB88Gpl73UdJ+EIWZGLaOw5h6FeZU8DAS8F+2asRZT8CFzc0q4SR2u0c7HENE4M3H7XAMwzntC0622Nn9MWFfmN/uHH3GW0mvzPeJrfB7SY72HMk/w0wYLNyCGxAzBDD1ihbTkJbtolknr+jm5QLiTNg2C9h61EhcotaXLoIINlI9OcnlcoFAIBqOJMPRZDhGWfRl4+jz41g6Go8FwvFgOBoIVoqlk5elSTVI8dkLwdILdtroQXt6Lth62sRkT+k1KNRyfQ7mnu3l9DzGWqOagcHzw6eUJ39G4gBY+kuw9Xz/Z0+f+/RXBHLP1/3eBK6XDDshCylcCdm2464D8MJS5i0i+kBruL003kpf9HRfDbgoAeDg+m41D39p8OrXxm/fVnVqN93GvYBlP2zYDMEsOpHWc9PWgViEAbTUn+715fp8+f5AdjCU4MTDkzmvsGDjZq3tQccdq+2u0XdPH3tizLYaM23GcK/TzU27tRthTz0VOEx7qmmYCZwHBXe9bFhPsUPATw2SglkxY6YEB6jCrYoFjQqroQGjMYnLBsGMFpB3NCnFpKixpJybVvGyGn7OgC0FJ9IaXlptXQ2aCs5f+ff/F9yWv/xr/0oRMUxX7GogMiQlk/R89h6mvVUgranAUda8HeLlVYCtI0kp3F2oPjMYJYWnr8FZANkLNkjKTyUDzQZYmZDBFowVk1IpUIDO8Lcv3Scpi0Kkw0pWAvfvGVufCwsMRCRgjUhrWNwfEg1SylUjMYLvIyS/CiYM6ucQYBUMktxesaRsxeQq1bIHFQMwIkxwllrxBzTxHecxrNmMpBiBhUuLllaAF1FDAMUELsRn6U5CcNGieLawaOLm9MNJRZ+Xx3ZNfenh1z/yj4lQy1//3eeBt5p3Ipptr2rFAdcGVVCr4udMoiJZKQXIBq8fkBToqucoY6/GDZsB52ESYwJOEgpP6tZ91j1A27h63TWRm4ZThroNL2Dr0EBCzIwI2hycgagYsBVjo85qRr8Wsu0lX4+tdMsDDPXCG1COEn4d6qWhRAu8AVOA8RW6eYEUqOusXTJrF8w6pmbd4rzPVkojthIEPX1ZSxTqcXBwoNPp/H5/Op3JZLJoacoujNPPjzPZXCadTSbTsNXrjQ6HE3ZFwfgpLYKFCQNPScHr0SklwkoiCMcnJ0fHpJbghPTIprZnJ/VjgmCUhjf8f/0YvnpjS+gnbk9PD2qwo6ewPaWEYil92BOqNSxZhaL2R4By9/S0dnwC/7lJUsHO6kcnh2QWIWKw8J7aEdGLPSP9vomqLOwA2Df1xU4RQBuqs2dHZzRdflfYCqR1NwTYat8h2GrdTZo2I7iKRSqyXhETaAZWIK3orcC5hwHw1i+xr74teAQXmXHHb9jxG3eC+o2AcMYyFgfmaGFFEz3BXLcv3+2dIUlXvvxAKDGaCAuKwCPs/BlbX8zd4nI+MLtvq323pkOPjakWc7Td5h2KB5QrGUd1xlPNeQ6KzmrJslc27paVy9ler3o0bpIUnbIZu3LOLZtzgsnnHJQR1VdJxSqhAvxwO5FEgjmzqGQASjuRJb4/YOtoQjEaV1L9BKeHQwp2UMZLTFtX/CKv8l/8n78At+X//bv/jzHv0iw51Zte+yFia857kAFs9dfSweOceScknNVxgIRmFECHweuHLTsiAnt9iOCCsSkNKtbLrD8K96qIGbnIi18AaNF3PSaA8AoGwMoMCgFYKRFrFRBnbkY1ECaFEmxC2IlewTDsoYm3alZ9SFeRtwKpHKekAhFNmjvQBE6L1FQdtWxHsWlbc6M2gFQAVv9JAQyhlo4n0PN9Q+hyPShdcI3nNP3+qUHX1J+99Vcf/BHSKusrl78W3MhZ9+PaHZ9yyQbT7VSORNiFBQtQV15aRzpm15L2alRL4q0Z+17CsB4E3wh+iHrJ46ymwHRrAetu3HGYVK+5J7IqOL9dztEXYwKPrYP9ccJbAVsp3hoitV57DWy1v2tsdVHdD+GLYWIvACtWXsG9hrqC8L+YfIYihFgvQ0SKi3bpjE1YsvJLVnHBbi3Hto7rCAykl9ULEUtaANDtdq+vrz99PkXpPVk4kfAEggeHgHxHiKSU5moN0PaQejQ+8eTs6KBeP6wTnezaMcBXDWDyoE4Ya/34FND29PSkVq/XahTcHYPB4KBahVdgdwCOteOz/RopQ6DaIR6SWeP05Ojo8IQ0lAHYPTkETK0fb51RCmD1042z00P4g5OzrfrR7m4V+Gq9fkxJwp7s71aBlRKl2IM6fJPG9zmsV/cO6jUiJkstetUbkd6XrpddwFY9ha22rZBjN9GMrc0SLa/CVlS5N1Kt8dotIx1WDlDXdivnhqzjnoYB5AWwVbfp0W/51Csefh48Gu1k3jkQS3YH812+Ypdntsczy/AV+4PJ0WREOBuQLzglc86RpL8vGGhzeu9qXHc0/hZbqtWeaLUHuzwBViTEy4amy2H9Sta0VdFtLqrWFwWVfLvTyA7bpcWQbMYvnXGLZ5wNm7WLS3AL2SmzUXYukUX4rAkQFkw4YxAUjFNZ42TaxEsaR8LTA34JP61zb0ZZypFPUKG63/vzT9kqAc2aW70XsD3D1ixgq/cg6SPJ8Anjtl+z6VWuOHH5eOhcfv+NVUzPrXQRGBX3NxtCalQEY1ZcMgBEOC4eTjyzIeCMTcYmK0uNVSlgTP1h4Xe4lgWQCnQVtuyYjE1aBhAd1elFFykw2QxoVj0T2WlOAuYSyQgBVuEQ8OWwWDRrtsLcfJjWrvlpDewx4tXadRSm0DqNSFThKSAmQAbm4QNYoFIEgA52FkDldbwy0ch6QJNWDr0UBlCoAjZXNPT7poY8gv/wN79PevReuvT2g+uR7aJ1j+QJyBcsJOCeIxJoQFqBugJvhU8nKhAHUfDf3Yc5+25KvxYGL96+R3KwSAPaaka3SrIVgZKr1+CHq+H8djnHOuyc5rWsvsDUI8sAHRMYIjlYwKkDsJ93HxNAIQ54EQ41MNNW0xDcZZ220fvqPhhg3BkzJRBbcUGv0VVzxqKcsStKdknFIpozyUoWx1ykga2EzQHbO3rJCvvZWbVatdvtKysrZ6QLy2kdWB4YaQHw4vj5F4EbAgJR3n40lXT5fFUK7Op10tR1eXm5v7//05/+9Kc+9akbN26gaItKOv3Zz/z13/y3zy5VlvY39+RC2Z/+4X/5wme/MFeseO0eHmd8b3M7Ggh2tbatr62dnpwANDvtdt7omEahGO5nARDLVXq13lpZXFWqdVabrTw7e/3q2//pt3/z6uVvlorZrd3dkWFuzB/JrKwJpsS5eCa/szMxNJ6Ip2OlyuDAiMlg+cY33vrzP/vMndv3Wx+369WGuzfuDvcPGdWGwV7W2uKqzWT/z7/9+1/98leS8Qjg83PY+uLK1wVs1W0FAFvt22HHXtJ1kLXsJIwb4dcvZNGkFR0xeDOc4yuCJ59jfPvrY3euiduuCJ9cET3pD04atn3m/aBxJ6BYcEzlDLyMgZ93DcYSvcEcSbQCbHWXgboy/WlOMiaYDcoWXZI511gqOBKLMLz+xxZXhzvOTs0NZ5bYyXlmpNDpifW6PdyoU5iNSkoFUaUiqCwMJTOPLdaBoE+Yj0sLYUnRL5n1SGa91NYlKTklsw5JiTIEWcpXwvUrYC5U3MAqKztkJZe85JOX/IKcbSSsFOWMvq3E7YGHH/vpH4Xb8s++8BlLxa/ecOvrkWZs9VHY6iF6V0kSoasnjLshQdGA1aVg7wlYG9gKvmRCxGxsqUFc1J8Q98WEjJiAGRMMJUTDTTYUFzYbJXBFJK5RlfU7x9ZmhCUWEsEZx4IiXEyfyqsxujIUFbAj/KGoiJNQwDRmA9pVyxg2Qyh2NRAUAbbCUz8lFYjVAbR3j7KNqH3+WD/QZh5GjX1cpEKBEtiC0T17MDOJrsmmqQB87vSqf2rGyPRNAm/913/8G9jh9UFfa2xnxrgVUm95KJFJI/DWyaxOWnLAzDqVNQCugddvqxIcdB3kbTsp/WrEsZux76TVi37nfta5n9OthK07qTdi62NrA1uRt5p2InqgwPsNbLXuvFtshf8FuASu+lDbD3Z3uhfuNRh02cf6fXw4XJoVL9YRoE5Yo9S7bNNWPJp5l3LJKl81qRet7kXA1hqJBRBsrZ8+12S68QCfGkil0+lcW1t7SkHIe7MzDI0+TcRjXq8H+Snsc29vr6uri8FgACP2+Xzt7e2As6lk6u71OwIunzMw4rW588nc47uPJFNiGV/iMNm1Cs1Ad9/u2obXav/6l7+6tb5BdnVyolYqWx88HO1n3X37ytOj01GeaGR8amlta2hkTCgWK2SyzvYWr9s+MsCY4Awsrq3cvfvQb/fmNjc7O3pi3lC+Wn1y+2HAF/YXZq5fu83nCa9cvsYZGb95486nfu8PFWLlw9sPIr6w2+K8+q3LOoX2yb02pVStkMr0OlWtvkNh61GjD86bsXUzAM4sja3m7bhhI/RusBXDrJgJCzNnn2fy27wHgK1fHbr+xcF3vjBwuc02JF+y6LY86jUXDzyvtFY8A3DmY8cSDMBWX6GbxtZAZiQRnZoJiOedgrKdlwpy49F+n7/N7mTFslOVDf787tT8Pnd2dySzPpYqi7KpqXSCE0/2h5OMULrDHX1kdrGCkcl0SpiOiXMhUdEvLAbIdsYrnPGIZt2ikktUcopKDjEg7AxlBGGJVyghzQ0tMJbNugFYleWQvOTlxjXKkt2/lfzizb+9RBoOXPr82192LIc1W17jcewCtvpraXc1Afek5zgF2GrYDopmTXR1wEsbRr0eW8k9SRkzJjofCAFbB5LSwZR0KC0bzcjGmmw0LX3eyGrYWFYFNpKUX+jRwn5f2IoBAUJa43JOkhStkz7SDSnFlGhWP56WjyalwFuBtIINx2SCoglg1LIbm15yo9IV8NbRhFKz6nOQJdAo3QKLTrqCp+j8Ai9jeqeIeCC1rIqNbVAXAvM66VavWEGAKZ/I2ihlaLdixSssWxgeHtPG/cXf+lUibf6BSz3jrMR+Wb8RVG16xGXirwC2TmX1srITSCtgK3xQA1tXA679onUrq1uO2Xfytu28eiHs3Cs69wq65ah1K+Oopl+Lrfwntmfx1sG4RLcRUC64LETDM6VdCVh34q/HVtRewYZp8NMAW7HXxi151w1pBxwfll8wGBRhIA5bURApiah8LEH1NMroFHmromgWl7XCOaVkVm2f82+d1E8aDaxqZy/DVngAN0TeikT2vdkZ5oM+zSYT8VAQPHeMrgaDwdu3b8diMSSwPB6vs7PTbDT/6af/dKCbJZ4QOY0Og1L/5c9+abhvaGKI67f75HzZYBezugQ+gv3aN7+1vbYOuz8+rJl1+o5HjydYgy3Xb55Uj7h82TBXsLy2zRmbGONyBVNTKqXs5LiuFE89vndjYXXl/v0nXosrtbbR28VMeCO5/Wrr7cdBXzhYnL1+/Y5aqevtYXGGJx7ee/JHf/AnXA6v60nX5vJm0BW49q2r7N7Br37u7yZHp8R8gVopPTzcpjoc1hvYenze0vZV2ErpCQQdOxHXfhr8HctO3LAewnjryxeyzkswrXsJy24cbh75PJBBC+BIq5l9T8MAeP0C68oX2VceGvqAUo2mpOyosJMUWStFMzbRjJediAIgdvsKne5Kp7fS7Z9hhBPDqQAfaOachciqzroFBf9w1MX0ecZTM8LSlqBU5Zfq/PLRVOlEVDkQz65N5hc5wGTDs62O5ENz7J7ez/Bl2JECO5QdjabHYsnReHI4nmTHY+xEeDgVHMt6p4oeSdklBd4KjtI5h5WWbFJCYG2ykl1RcanmferFoGoxIJt1mJdC8Z3Cf/nif0XK8/WHb9lXw/otv+OE1MJT0gFZN1WB6q2lXcBbD1PuI5Jzaq8mTNth3bpfu+aDLXidJO2UWhknaUMxGepRvRJboxJWVDwYlzIjQmZYyIqQXgCkR0BSzpvRqza8mg2/dh32/My0F2wNtn6U+oeBuGzB7FdipFEV8e7JbuGzEvLBuGwgKhloTlmlwJQdec5It9eIdCylUpOdBwxbYbgSqKWqlLue0W8Epped6hX3VEHLSZAMs4EQoa5TBT0KkLMjEvwCWPMqKpkEM3rjVpDSTMhQQrcpN6khTlu2Y8p5N8svBLBAKRZ6fQbXcADWUbIde2UCFuP6OLbqw1ap/LxOvmATlk19fn6Xeexnf/1fArB++Ec/PCbnRbYLxu24bM0D30E4Y+RlNZRyqwOwFfZPia6SWKd+JWLfrqiXZkTFonJhVbG4witmVauz+s2CejFi2yK3ANZlwSnrdo1fyG/t9/Nb7SMkbh4SdTjGBiOSiaxmmOhYGyQlK5h1F7A1C+wYyKyTNJgJa1cD7lrOvB1TL3kd+ynME8BesBgHeKBl3lX3XZW03VR2dzrGGb4psCFKMoJ0IA+L+nxTnY6xJ2b2Y+NAi2moyzzaYRpptQ+2e9jdTo4kqt88Pjx5ith69NIMUeCYGBNA3vqeH+f8NRGLBrxegGngsfWjY7PFMjY+vrGxAa9IJeL79+6JRULgtn/5F3/Z095778a9rpYui9765c99mc8VXL98o7OlSzghvH3lxuJM2a7T/93nv7C5SvHoo2OtQtn24CF3YPDL/99fb6xuMNlj7DH+wsrmyCiXy+Nxx8b4vPHawa6MP9b++M7S6uq3r9wUCOTx0ty9O4+sevP89tZXPvd5g0bjDvquvPVWNBqXT+tkCvWDBy3/6Xf/AGgso7NvZX4l5Al++6vf5LLH/v4rXxfyRR3t7bdvXd/eXH8uU+tNCa6UDtZWwLEbdVczjv2MeYfw1tdh6wFgR9pVy1n3kmDAQfoD/If6/uvy9r8fv3FruuORntViHmq1DHW5OH2BCYZvvNUyeFfNGArLAVslJd9QKswIp7v8sx2e+TbPfIc/3x0KsTMuYcUhnzMo5wzSebOwZOMkLBOpiKQ4L57ZEs1UBYVDfrE2NXMkAISd3eeX9gXl6lRpvz8y/8SauqcPd3uKjEC5x1vo9xUHvcV+3wzDP9sdnOkKZhnh+EA8OJH3y8puObWoJW5EYAFb7bKyQ15xKitOzaLXtB42bUQ0a0HDati5Eo+u5n7rT36HNF7+yKVrrHuWlQAAmevomXb1S5VT6PAfihihNhX4uUNUUifYm6krtZiOq+rA+LDmCrbCGdO5jsHrDO5MWiIWVesHAkIw+guwo7L+iIQJ3n1UCgMwVnOpFQWsz7W8DjfaW01kNHagVPsJLLqlS2/pAlx+wcAKCsn3p1LEaOWtRnIYZYAFI3EAWbF+w+siGaOE/BLSepilmpDnDOthIF8Al0DlUFgPO4YhaYXXUTWVjq5iyTXV6ZKsxcOlO73oUCxaBGVDj3eq3Tj+P/zKP4OT+DP//KdVjunQRka/nRAtewQzRAcdW29hxiiAPt3vWr8St24uSGbnRxNLvMLhePGAlZzjz80pVgrKOcBWMhPA1PUqbGX6p9qtHDgOcNa6HOM46HZysc/CZE4Hx9BTy+vXQvBjwV80wlW37IeBaTM6veCx7iRsuwnU94IpGbjqNUn7PV3/LVXvFWnbXT2ryzvZFxL0Bfn9IQEjMAWG3glMwz0+3hPb8D1d3w1J52Xhk2+JH76tbLkp7+TYxOv1fcRWaiX9JQ4txgQcDsc5b31vj9Pz1K5kIuH1evcPDo9OntaOjk0WWx+TuUbFTMuzM7FIeGlhbntjdWiQ3d3Ve/fOfZfTUynNj46MM/tYt2/dddrdRoP56uV3+nt6H9y+09fZtbu5Rdbra3WLTs/q6Z0cHfviZz87wGK/dfWu2mBz+0J/8/kvXX7nHc7w8J1b14cGGD1tj/TTkp29/et3n7x99bZKa2xp77xz9x6L2feNv/9qT0fLwztXWYz2YrnUNzzayWBevXH7rz7733u6GQD3AMFem7vjfkvMH5rgchkMBovFUqnVR0dHLyauvQ5bDUS0IojYat9Lm7fjxo0wLdv6spgAsBXiEQMKg8nnHeSS8vBuKDr+hvmNr3Fv3FR09ri4ALg9njEA1m4P556254asg+UXCwrALzwDsVBvKNPjL3d6FwBeO3357mCInfaIyi5ZxaKcM8rmTYKicTislZbT0wtLisqaYm5XUtmXVKqSuQPJ/L6gtCmqbInntmWLe5xUpc0eeWIJ9voyzFCux5fq82aZ7izDXejxznb7S92BWUYwMxiNTuYCspJbUb6IrWjykl294DGsBrXL/omsTrsc8G1mffPxT/4maZ390U/8MEPBdmwAVwq4jzOvx1baz8WlbdS0RWxFJZE3RwbOQQ379GGLaaBy4lmL9zhPNFwOc68x10EGF3aw5AmwFT6d6GMR8RoK3GOywbicFZP1hUQArGT8LrAVBrysFjEUtw0pGfjVlBAX2FRezwoIyUwQEuI6HhqtdshuJOFKxlIy/ZbXXU+RYqfDFKGuVRKLBHwBuJlIa4C0IswhYtI9sgBunFUqK6D2TBWMXhPDMUyBJA1g3tzt4nWbef/o5z4O2PrLn/wlZ8oV2s5qNqPiZS/4E9iwEjsOYJUXMGIEa81KzLS1KC4tcBLLE4Uaha3z/LkF+cqMvAKwCx+XfQ1vZfr5F7AVjgkM+rxTI1TVv30/CWdKtxoEeEVIRWw1b8UQW607cXB6jJshhpt3RdhyS9nzwDBwTd55Vd752DrCCIJPIwJIBSQFA5DF8Dpu4Wm3m9tt5z4xsW9qu6+qOwCah8yC1fruccNxf3mwELADsNXlcjXire/xQe8nmUx6fb7dvSp2w06k0rfv3HE6nTA+OTnxedwalXJ/d3tjbT0eSyTiycODw+Ojk/W1jVAwnIinjo9P1tbWZ2dm4+FINBDcWt84w6KHk9O97Z3VxaX11bVcMhUORf2RxOZudaa8cOvug37WwPraWiGXigQ9 WLmcG/z6OS0UFn0hxPZQrmysJTJZiOhULGQKeRTsYh/ZalycFTPVyoOr9cXCmfyealU9o2/+1oqGt9d31qpLJ7Vjjc3NgOBQKFQ2N/ff68zDclvNe8EnbtRV5Ushpq2YsbN1ycJALaSEgPDZkS3HuKm1WMppbhsbrGwvz5x6ysj73xj4m6bZaTXM9HjGe/1jj2x9N9WdV6TtDE8/PGEdjRu7PZ52l3xDlex3bXQ6ZnrDRaZ0ehI1iuuuGWkZYtJuWgRFfSjUY1uOWdYmZ+em5+eX5HPr8rmV6WwXViWzS+Cicvz8oXl4Viyw+7qdnkHQlF2JM4Khpm+eK833ePOdrtnGJ55pg+sMByO8zMheck9TWVWX+CtZDtrU827tUs+eNpuHeNEplU5pzpi+blfJQlYP/W/fULoVbi345bdiOck++6xFbZAi1AkCQGOgGzkjWIuMrr1KT2Am1NcslC4lnp9r0PAVgRWMIAJwFaaOMPXgO1AWDyUULABUuGbxOUDL0RXL2Ar/QXGktPGrTBRXKUaB5D+1RS2WnZjOqqpBFwPLCKFI6HIqYzmqs9qxqisCcDW0aRUt+lx1ZLIW8mS1D6pBwXEAXwBbAXG2ugbRoEmZrbSyVi0XegqhqdAs+qRzJkUi45+n6jPPPmhnybJrb/xH34jupDwbaY1G1Hpio9HtYoBbKU7DmDjKRfVhFy9EtVvLwpKC8OArUXCW/uT85Nzi7LlkqSStGzkXYe594StYMhb4RgCu7fsxr31AswiwFjhJ5u2orqVoOcwb95OqBZ99j3A94RuzadecXVYR65JWh/omEBFL0tabqi621zjDEJaBd2eiU73eJuD89A08MQ6zAwJWBEhhbDykaR8NK4cCIu6/NxWz0ireWjCrVit7yG2Eu76imAhuO3AW1dXVxEH39ODFrtKJZOBYBCxFRB3c2d3bGy8paVFoVCQmMDdOwGf++S4Tn9ovXZ0dvKsyBbLxxDsG9uT06dAt4+OdzY252ZmT0j11zHmQR2Qf58aTOb7Dx4U8jnqTxpSAfA3LytmpcuyjgDRj8/O6NKDaDSmkiv3t3f3t3YWZsq16kHzkWk0AH/32GrcDVt2QwRb99O23RScY9NmhA4IvEytNUVK6SlsNWyGgVj1uLnAUB4Z+q/JnlyRPHqb/6jDxoEXGb4JVnjysZl5TdZyTdo+EJBwU7qRiL7T7XlkjjwwJh6Z8q2OQo8/0xcKjKRdopJLVrIry1ZF2SjIaQRZo3k9Y9uctWzOmbeWjJtL+s1F7ea8bnPBuLVk2FxSr1Rgy8vGGB4rO+wZT4UnMlHYDsVizFCq15vpcc/0eRb6vYv9ntnhYJqfiihnfcqyTVq20dgqKZEqLGIlu34lYFoPT8+7+7yCPpeAbRMOayf/8c//1KUfuPSzv/JzqrjJvh42bYfstYSzSUr1pdhKlxuBAdvClvHAjwDXCMAB1tDtTzCtlR6TQcMBR0SD+xCcA+Wia3rJDbjmPy2667nXxwScBw0qhxn4wPuwCTl8B+B9JFkSnlLdlRXLbtmicziheA22wjcBxIQ/ga+hWvaAMwt01bpHXBbRrBleB8SHywCAo9fNazENPdSxHmj7H+r7Hxn7H5tZLebBFstgu324wzHS7RpjeCf6g6RtF+Gtm+e8tUa6E5Lg9UEjJjCV05NlpXOhNfo6pA873RGHPv52KicB36Nd80nmrYpFJ9sr7lAM/eCPk5D5b//p72a2ZxxrMf1mVL7saXQsp0T5JJQWKpwgXFkiE9JKVLe9yC/NDyUXuDMH3JkqKzUH2CpZKosrKeP6jPMwr9nw8PJqOGXd7rFOJ2ckIYVrHn4mvMIMXIwJIG/FmACMgbrKKvbxpGo8qZaUbLyMjhNTSkrWyaxuKCzl5/SiGeNERjUcldzXMG4rux7qWbc1vVfl7Q+MrE7vRE+Q3x8RMgKT3V5uu5NzS919TQH/1d9qH4ZX4HX4AmRGBwclKRlISVgBgRRY0xEBotPTM7pkqfmBTQNrtZrH40Fsfd+PVCrl8/u3d/YOj06OSdr96X61arFYrl+/3vr4kcthr9cOzs6O4fOO6qRFNgVxZ6SY4OSUhIMBxU5JlQEZwEsnpO83KQU4PS0XZ1x2x9HB4Un96Pj4rH5ydkzNEjOlysDAoNFoPKodkrzZY5LfenxyfFA/qZ+eHZ2eHdaPsC8iFROhUqlIItrT+hmVQHbSUD8gk87Tp4vlObNWt7m6fkYJzuKRwXW594ytrr0YYquR9LqIvDrY2sBWKiYQM+9EYfIHGKW0KjiXRQ+/xr15XdrO8EwCb+1ycXo8ow+NjOvy1ntqxkRGp5j3CIqeXn/wsSV2Xx+7pwV4jbc5gh1u20DUzC/apbO26bJNklcL0tOqisO+nXTtFdzVsrNatlfLtmrJXJ21HpRdB/PO6rx1u+Q6WJBXooMBPTfpEBUD0lJIMhsey4QH4vG+YJIIFXoqLO/CgLfECWUFqbi8GJDN2kUlG5iYMsJYSw7xjBV4q3GNFKfpVgKConkqYxREdBz91Md++kcAW3/p3/6Kbdbn2IiYd8LWaqwZWF/EVjrSCv8FVAtfhAFAG0UbxSMEW+n6VxFWvjaqAGLC4ZiYQrRGeShAqgdYG8mWLwB2wJj4400sFcD0Am8FbEU8ajTmOyd9NO8j4tMneedR1nWcM+3FOEnlYAS8dSltKAZISwIKikb4E4BU+HTsFwBEdSKjAeAAVAWiCnh6Vdx2V8V4pB94YmRTqy49d9RdN5XtcPZhcr2haIXxXU33Q0Nfi4XVbmP3esZEZb123QscEwxXzI0bISqlNCSetWCTPvroNTcWoyMeNHV1nTdwxJQDINHKVbdi3jXoFNwZbvngxz4IJ/FPvvTn2YOKeTVs3InCjAKQiiWzmGmAOUw0tk6vRLUUto4kFyZm9rkze6xkeWpuQbJcFlVS+o1ZB8FWNy+vGoqLut2jnc6R5rosZmDyArbCYexxTSCph/+Ce4QdkXQ6xsAGgdK6JzrsY/Aehney1TLMCgoHgsI2y9ADbd81SQsczAe6PgBQsFaYovyTvSE+Kyrs9XO7PGNgbY7hFhv7vgHe0wX2wMjscHK6HeO9Hh4zKmClxLA3Zcq2dXJI8daXYys+qtUqsEu1Wm21Wm3v5WG322FrNpthy+fz9QbD/sEBoNcxldgPAFqv18GzPqjuH+zvYakqjeZPzysXTs/7wj5tIN0pbs/OtV+xBgFrdgF64efUjkmRWf3oCL45/O/xMcmROjkGhAVIP8M31I8JdJL9Y00aAGb9gMwmT5/WTk+OiCQsVZZFMdMTopNwegxYTD3FL9YoJHtPvBVrBzzVhLuatu4kDKRw4DwgcN5h9DlsJasW4AMmjFsRuO1h+uUX9dPLLm5WdV/Xc1X6uMXM7rCNdjnHBkL8LjfnrrbrHcljuNnGUxpwdvhF90A00esvdroKbdZsqzXaZne3OXR9AdVoUsdNaAQZvSCt4KenbZshL7CY/Yz/aNZZzcGl7Doq2g7h3p5xHRSIVfP2vay87BkOT0+kDNKSW1Z2KeZ8Y2nXcDrMioQGw2mmN8N0Zwe9OU4oM5mMC3NB8YyXX7QKZ60ArKJZK/BWxZxLVnYoK04zQOdGBLjzZM4gnbXrSz6GdOiHPv6RSx+89Ht/+enoRsazQzUTrJ2XwL9ApvBWx1wium4Nyxbh9elFF5ssSQlHwOVv0hyAe3IwIoBXOEkY8AFbkbfiDQn0EP1ux2Fj4YjYXgqMymkn2xfg9eXLa8+M+vLAPUm3gr04eKm4XHax2eq5bNVkTnehOwB8B5hWmT4+xgruTPfeVvYAdcVv3uedZHi5gDhtNjZgDWzB2u1DKDv5xMy6p+15ZOgbjokmc0TkYSqvRb0VQcGoWvTC6RAVSQMegFTneXfhC50fXxWKwfdo1vyqdZhr7eNe6d8++Nalj1669KFLX7n/7dBOHlwTSzUuqljgs7ChITaeQgJL4q1E6D2uXIlpthZFlcWx9NLkzN5Ecas/nhcuzklXZkSVpGmnZD/Mq9deWfP6UmyFAY2t/QGSdNzhGuv2ToAXD1vw7gei4i4PF2tkB0LCVsvAHVXnDXnrXU3XfV3vO9IntzXd7a6RnhCvPybsj/A7XJy7ul6AVBj0+ifAenwEbZ9YBx/omfdUjPs65gML67GTDbCuTFo3jw9wLYvUdZ5dZGGIaIBciUTCYDAAVlrf4wOAFcipw+EA/pjOZAhVfKUGygsyAO/r8bL9P8sJO3svb/iuP57DVlI40IytL2ua7TiAezJp2o6pln3Are5r+jrsHGCpg2Eh6o8MhkXd1FoWPOUVptvsg3BfgUsiKJiBtwpnvKxYsjdQ7PXN9HqLzEB6IBJihc3suGY0peFElWMRxVhEMh6VqucdhlWfdsmjXwuolrzqFZ96xSufdwKgmzcj3loOiLb3MKcoOzhh+VRax0tp+t18FrjzPsVoxs1JAchGOfE4J5oci6XH4smxeJSbDE1kAoIZp6RCcrAIe521kaqBc2zVrwR4aV2ve6rPxZ8MqL9895uX/n/23gNItiwtzKwBNDB4AQMKEDIDiF1YSbtIIG0sSEIrRLDSEhtIK4OAXWAlWGAGGNMzbV/3s/XqlXdZlVWZleXSe1Ppvffee1fee1/7n/tX3Zddr6dneoaBiI3JPnH7vqzMm9ec853//Pa7PwZs/fNHX4htZYGt7uOU5+Jl4VU6zwgtUr1ajRWlV2joT0OyaTTt0roVmqJlh5lpJiFnRkRYOpAKkL0lGlqQ1Mse2haPjai8KZ4iUjFh80diK7KJrmkI0Jd3VM/FOo+SuyauWOhzAMLCPjQg/kJmCZEBvACwQhvz8vgkJT4V/NZyQMPL5BV0xGEgJiEtKmaGhUBeRmBxLi3n5jTcnFbeoKpht9wgaQJbRQWLtGJ1UzkE3O+vLtypdXlVLeC+q5GhWw8o14NLbb+x6P7jdz7d9fGuru/sejD9InRYNm9FrfsxOCvx+9kKZIerBvGZKqIBcmtSt70sbSwv5Nqi6p6wujmbLys3mpqtsqQVN+0VHcd57fqX9W99Vd/6FdkK+/AO7ABbmXCj4oStANb31ANP9WQR8Ib8BZB0yDfPiAmhjQZ5T4wTX5K+eFs18FA3+lA31mNjDfsWGGHiNjDiW+yzsJ+bpt4DiUc7+FA9wvWqNs6JnwClb7yi3LDe9+q0R9EZVT7Si5bsyAqakhLpmoevoI1m69ecZ+ov5PUNPIEPZisdNfCBPliOwwzlfRUacXM/z336mdkHfzLzNixbYN6GJdJ8Rg3rHUaAPx0lMa+AV35JK286YNjIai5R2TcZT46GCmOhEjNSmk3lecWkoBoQ1mzEEbJgIvVXotK5uJyf084m5CPOuREXqWAInZIdgyWqcjGtWWq5/Gc510EyeJ5XNezssISbVk/6uG8Kn3+J/+w95fhUZImTNM2lHfMZ93zWN5cJsuOBqWhwKhyeioV5JS+wVQ54bTgVDTeAVQzcr7vsOwnTeng+uTQdkU8FpKKY4dd+/zeIc+vHuybFLG8roqu5FE27es2NFUax+iZxoX+/6Nppue4MDn5ZFIdkAyE5sL3nOeN2aCGrQZM6lrci1h7iDEsUAiBRAiZufQOohub4DpeAD7ZlfTVspW3rlG9ptrPdrwxICa3ofdWZhpVDCkSqYAfA+kTLgGcE2KUUF3nPWRauDhpcrH4zOJ/RvL8wopSKL5CwSJUXhbLl8J3BrSuioVxOFhNuPDfvXZnbzqmr05ZIXxHdnGRF71dshs2b8eR28Xf+5HdAaP227/9rE3qu97Bo2Awbt/3iqlFUNmHQF7AVC1PDpIK1p4gtazVl2FqV15b52basuiOtrQuqZcNew7hfVKxGzHtZEDJ0Xw9bgyIg6YBnbti/OJ2UwRb2mQnJSIDb756djImnYuIey8Sb0ucgusKK8F1N/1uKF8+tk6PBBVjmj0f5g975d5dGX5f1AlWhva0a/IKoG7YA3Bd2dr+TM+kXTYZEQ4GF567p50Ym16dePdm7uJPYXmXrDQVTNEbhQvgjg4oC621aFiqZ1F8VWz/8yx1H/+DfpSPNvuYTuPkgtsatu3E6L9Gr+lbHYdq8E7fuJUFuHXTMvyHufUvW97nFR++ph2Bl1GubIvVzjMwh19xUVKhYti0WVKKqXkHi8NyyqlNSDQBbh4O5sUCWGcnNZTL8UlRc90iaFlnDDOQiaQcyS/KaTbPigY7bZ2U/0ozCkrPHxOq3zQ25uKyoQtV0hC7yXlIqLiEpmebiCmnZNBuTPVQMvacYfKadmEuoyTo3KmFGJRMROSO6NBw0DXjtfU5vr9M3FbMs5g28gpGXN8LPiUs2YcECbHXsJnVtH9MvFhTNwrxFmXX80m/8y66uro9997eqvDpryStIaOZTytm0EusYQ0MDiKrlomKBPFjPGd0SaeZ2Lldv7TDHt8mwfRd5YCtdLhDZCiI/jL1+GwfaoGNuMatdWvWBtK7fCGKYEzDOd1oEsOL2a5Nb6bNCeHWGjbo6ZOROJ1ZUBdBsRSdckKxhKgW29lrY8Cdg621BhPPbPN+YQ3ourerMgjibUsylZZwkyOaS+bRKs+KmKJmnovXD0oodFuxodoOG5bLRcZXWtN6bxjrlALjzymWPbD1o2ohldkr/+jf+FTzE7/iBTyhSNud+TrsZWNpwi6sGYcmISAW2AmRhPQHPsYOtaePmmrK2Isq0lZVtRX1VUstbDquWo5x6PWA5jMN1fT1snQiLppLSft8ssG8qJYVtn4cDK/3h4GK/dxboORkVPDWMvC3veWYYfawbekvR855uaMAzM0LYKhwJLfbYp99SDgBMn5mZ2B4TnezoO+ohaA9UQ0+XJnrM073umYHAPEBWmbSunezdyq2UFvE+ce5kVTT6f9RKf51cvqESA17+ZbD1Az52/T49wId94EPYevWVSrZ8xdcHsNW2l0C20qvde3KrbT9l2IzMpbSv8Xv+aPqt1wTPPsd9DHIrpV9jP9Uxnukn+x0zzIiQk5ZxC2pR1UjloHLJ625ZPTCVSo+E82OBDDOSns3EFws+YdUurhkkNYOyAZgDacJo2Y0FLksgssG47TYwn+omHi9NvKMYfaAYG7DOLyTVjr04gFW34hXm9QsJpbxi4WWWeg3M57qJQcuMvGoWV/SsBJ+Z4DHiwrGYYiis7/c6njt8T83eEZ+BHVfNxNXsGKBBBSCGJimarVsxTdMz4ljkJNQLiSVeQPOPf4U4t377J7/TnvHYqn5BaklYMnCLOjpnKHqzo0M+0nYuqcJSz6RA/LIHuHBrpdmO3GUXg5kpRot1pp0wcId9V+AaHXrelg3ApPW6qPcNcR8QFmRDmCq4OR0sz2GWUi97TZtRCzypXVJ/1ElK8943Z3WULMQ/gXBapBpVtuAEYJp3kRIMWScpaPg+FYcP5cGOhhoJ2LHuxUlmACqjFbWSIFavEffiO/JBYCvswzQAD46Irhd5kFhRQlevuFEexzgCahaBuYTIrTNx6UJGo13zUiZ+EvJn2AirWx5YsGMgFoZaofMpyJWAWryfeGMxOPs2acudspXkil52K2HtvxFPbeb/6S+Th/hdP/TdzrWU4yCr3w7rNj2yuklYNFDxAiZgK1ZOxcxSyFb9atqyuaautcW5hrq+rqq3JNW09bBkP04vbXpthxHXSQprusB1gSQx4ODAdY35uLDDIsUxBf1UOpUvy9YIxVYvzdbFXjewVTIa5gJwgZ7jIe5DzcC7yt4eM+Nddf/r0mdPzWPD/nloYxHuUGD+sZFyydIMP7dMPTVN9thY3ZYpICzIrSDGPlAPP5APv6MYeFPd/0A/PGDnKBKWrfOjK4oe1x9ky6Ls4NeYF4BQ5woRfHV9c6ssuL5761WTDop4aIa6vsHagcRwdM//6frl/29zsV7ftpdZtK4+EMjvA+O9f153frgzzevdG7eq1Ve/Rm3up/GiTuDy+jbj65c9ia/I/i7zXsR5FPefZNwHact2wrQVs++97Kb3V1skUWbKshPTrvoXs7oH8qHfG/ncn7Dffo33rN86MxkSjHt5AzZOn4U94l6YCPC5OQ2voIXFF5UI3SmvO0Vl93Q8Mx4oToaz09HoXCYgrPhlTTeJ669aFGUrN0lcUkj6H6qwMI4uQBgnrpwMiEZcvBEXlxkUwZsKSi1IMlem1OKSiZtZmvQLxj08dkghJ5W3zVNxCSMuY6R0Q2HzSDgwGk4MBdLD/sRM2s8t2PlFGzdvmk1rAG0w1GGk2Xbi2pXAbFw97uXy4+oFq/hT//Anuz7W9YM/+SNLKau+4RHmDVLiv0WSvMC1KOouWdUhKdvEJYuoaBEWSLIPfg5AoEcDNDZM2Axb9KBE+QjQQCrpboeVLScmz+ckFMwQiRAfcsy9Ie55XdzzprT3gXLwhWV62DU/6llkx2SCokHWsPGLevg8OyIVFozm7Sjl75UPnN8mQiWlZ08K7v2C64A4Y7lOSvaDhnV7zbC+oVtb0262tLtl/XbTvLVq3mkZ98rGw5ztLO28TLkuUp6LtP80GzzBWN4PkHOBZRhdijlTQKYG3E8GhC/MrAm/AER49L0na/Y7XgOn4E3oA/yCni4NwC/puSXtdAIWFiJORiGqm/Q7Qf1OSL8dJHLlpn9pzadf8Zk2giqih3XBs5ZVrcq6Hf6pJEmeSHkIOA3MTgLMpZcLsIUzlNSs8rbLuZlwFgI/+4/+B2DrD/3U33CvJe1kyRXVrfthYQRyK2aYRrYqGg6Ujik/gZS6GXFut82rNVUla1qtWLeqmhbc6oLnNA9ItR9C/8yql91kAigZ0X0Yg/pJJeOCAR4QMyxeyOsYIVG/cw4TMoz4eMyIlJVQDLkXGWHBVEo44J8BQZWVVg56uUNe7kxaNRxYGPTNsNICRmiuzzQ2ZJ9k+GdfmMe7jaMTYe5cRjUDK6fM0lRU/tzEeqplwJ3vNjIfa8d7zKwnhsmnRuZTE/MJNHhzifFwaexNzcDryhfvSPpmreKN033CocuriytSPKCDDQQUFAxvzk+vry9uzo5vLk5uLknKgYMLzLl6cXV8fXB+dnJ9TqxgZ+dnV8RSDwci3lDEzk45S52TA6Of0+UNseNfH1G4uiG295sTYrgnXmBUctVzgOrp5eXB9eUxSXJ9cXNFnE2Pry9OSZQAhdybq8PjY6LFxXZBVYa9OidXQNIDXmGC65PTIyob4dU55Ux1dXFzCsc5PadO45xynb2B08jUWjqlXqFQt+r1m/OTmxv4y9kNOiaQPIWXWFMBi4lfnJ1eXJzDt47gJy/IBVIOBhfX5Kcv4dAn19fnV9RpXxMnL5Jj4DYpLiX1XlE+WK7jhP847dpPg9DaydZX/VsxPwvIX5ifZdS9+PnFJ382+x6w9bmBOeJaALYyfHx4HxowAnoYYAWZQmWWtMtrXk4sOxnIs6IpViw4n/OIah5Cq5pNWXXIC5aFqMq0QRJ3oq6t01EU0ybBn2D8KJtOHOQoJ/ILBqxyQUZv1iQuOARFKzOuYiR0jIRjOBQYC6XGQrmxUHY8lJzPhURVr6RBtK6yllNKcrka1SsumDP0ayFApKxicKz6uSbhD/z4J7u+petTP//T0rhelDcIy2ZF2yupOhV3kbJU3IELPWTRJiavOUl6LapqExnkVMPpAfNvQkM5F2udwpvAU7yQYcc8TEtPScx433ua4WeGCeIlamI+1IzAO0/1DBCIFC2HpGaBb8Hn4etwcMtOpDN7P1k1Hxf8xxX/SRGEQdtBTr9Z0bTXFLUdeWNPsbol21iWtFcUzW3lyppyva7aKeiOcrbLnOMi6z7PIFt9r7AVDh68LKFzPnYPfBawRX0luqN2qpLowDBcBvlO8/Ra3nOes5+leDUDyUoTF4Lgdq+x41Jx2eQ+Js4q3hMqXQNRCmdcpO5e1LQZBBkTkwxIKM7iDtBt2Dn/prj3mZ4x5p1X5i0Sl+bHf/JvA1v/9j/6Ke9G3LEdte6ENctemBHhw8BW/C70HAQrXAXOIoa1hP+o7dqp6ttJx07BtV/QrgTdRyRBD6lFeJiAyQxmGrw0eAcaXBcMDeic8I59L65Z8Rq2I5y0esA5x4aJMyIZci9MhsWsuHzYvTgeEkynxIP+2dEQbyatGfYKhzz8sYDwiX6izzbNLcJqTyfMa+RVk7xu4WZUgqJOv+m37cctezA9pBUt72JaJ8jroRf1mdnd+snnxikCViNFVao9M0w9NU89tkw8MY/36Ca4TvkGyTZC/JeAreevsBWZQMAGwCEuTIBXeP/i6Pj04pws+C+uSU5T+NjF9a2HPsmgenpbzPXiEn2qiGfU1RVW6rs6Pj/dQ+XD+dXF2eXhNV1V5eL08oyqmX2zd3N1jO9dEV/Vg6uLPTgCfOmcOLsSep1dXlE/eX4GrAN6HlGQu5WsbwhhL2+uzqlgCHIW5xeklMAp5Rp7fXkCV3pyerZ2esESqwa7h/sGRhRS6fnJ/s1dtprzM5J0mxji8NwIxSlv2+sbOOGd88vjiwuYSyiR/laRcnp9dXh1dUyFDl+dn10en12fUdd2dXVbQeb6psuyHwO2+ojuMgXLTPP2V2ArWS6tBwBhQIQXpmnox5+ZefBp9juA13cVQyC9AlWhf8MO0BZRgmHsVHAhENbFjkYZgfh0PMJO+hYLXmnDR+KjGnZ13SXJGuejSgd1Ap3+jKgEvGcgAsqDtEKkp8wS/gqJ6QRyRZRz8SVY8o+HZCPBpSGftdfp7XOEBzyxkWB8PBKey/nFNa+o6iKeWE2HpGlVtO2wLNWugTjjnApJZyJCSVLzmNlD7MtdXf/Tv/zH4piWl14Sg+i04hNVHO9n68vAWcSrkiRGcHY2RC2Of7rqxm3BZ0rGgbEN5/9YQ+qMviF68Yb4BfC0xzwF7YluHKTXLwq7vyR6PuyeB7lVtQzTQBSeAiXOK2CSo5fGt6UiDjK+g1yALOcT5r2YZj0pa5bF1WVpY0exui9d3RLU14XVbXFzU9xeka611LtN80nTdlwFIZficv5V/WxnSSskLCb/h32MygfhFAVn9Nt7qWG4c0qjPSiIa9pJxnqaWChrx6MCRlR4VyNWcleIWzIZFoqqpuBl0X9RIGkMj1O+i3zgsuC/LJCEOGdZpDaeg/uuICbcB+gAcBv7rKxhF0eZN7PUi9/7w3+dBLz+85/zbiScu3HLNogFbknFhvcfHgrm84e+hHhFWVu7HPId1Zx7ReNawnVQcB8WdKshyisjD/REFcRtwdfTHNo2O9kKC6+lVZ9pO8KOyUG0RM+2MQ93KiyBBmu7cT9/Oi4bcM0Pe7nspHLYwxv28F+YOW+KBp9opueSekHexs2YpRW3qGTn5UyqttdI3KsTjsOk/TAB67zZpBImBpCXn+kmekzTILe+ytaHesZ7pvGHhtEnqhGuU7ZxsocQQwHs3hqX8vIny/iDnROL3iMTKK/PLzaW96V88cpyef/0wOf0dz9/0Ts8KJUomq3NhXn+wvycy+8d7usbHRxMZDOhWCweCsFx1w8OpFIZhzGey6fGONNvvP66Q2c6Ozxr7+xOc+b6n3ZHQ8HdowMhZ4G3yPfEo497e6bHRvLhIJwXiKD7xKGVAjClMTg5uZTLtVqZCAgYjQdEQtbh6bnPHx8dGJgaG9jZ2oj6rWaDpr2y4XWZGsursVzZ6XWv7uxp5LKoz16ul7RL2r3rmym+7MlbT8Yn2RNj45vLrWgiODLUNzLQXyrk47EIT8BfXV9ze92FQr5RrchEwnw6LVdrrKHQxMLc6PCAeJ4TjQYZbGbPQD9ndt7o8TlCAZ1SfHVyBHwXzvK4M3Mn+3t3dWNvuqwHt2wFohG27sTte4kPZyv0P+iUsBKEhwoseF3Y87mFxyC9wha6Ncit0Id6jFPQUFhD9t1lgdJMhp3jAc9UzMNOObglp7zlVVAAUtUcooxBmDG4D0lqJVpE6qzh0enehKMLaAJCNHQy+BUcLdz00mJqaS65xIrrpqKOEa+n1+J/pvd2m719bvegzzIRMcymjZy0nlswLRb0MymFoGRYWiWZnqVVG8PLZ/oXWS7unz78HCHrt3b9i//wq7KEQVoySxs2YLG45rhj6K2sSnIVVh102hdFw4npt+mG6e/of+IyFt8BMmKKPMATzEbvKYcfqkYfaUYfa8dAbn1mmISdd1VDr4t7gK1jPq523WfZjWJKOvg6OmYKKLEdXUThJihrdutGyLrj16xZBdWl2ZxuJu2eSafnMo3Fwga/usur7/Mah/zmkaB1IFk5UG4daDY3jTvLtr26+7DkOyrc0wl08rHTgoTvk3tO X2dJrvO6q2v2vRdIMyeZSRN20JBO5fTsFMK4tHZ0ZgxMbe4ZNoLG3dD5v2waS9k2g+bqWbcCxl3g3ATAKZ0HS26fwIimUHRqGeBFRMb6u5n7MGubydedL/467/sWY87STmDILBVXndiTlh4CrBDJz+Fx4GJ4UmOweO8Yz9l2ow6D9KO/bRuNYh6bdjBqgFwyZgDEM/hHlsp8TYlKBoZfsFcSo25WphUagh4ZyGt42ZNE35ArZRX0MOKZNSz2K1nPVXPjNqUC1E3Nx1azIUExTAn6ZpN2ZWtiGkzad+HeSttO4jIGqbFrFpas8HyZYCyefZZZ+6xtds4/UjPeO5kDXg5gxa2PKTfPjt8ydZX9K1kTX9xdX56tb2+P8PkP3n30fHOWtRdffiFN9NJc2mtapJZ333Y/dqzBxPjrFS2OTM9ZzYsjc5OjXY/00kl0VzG4HSYFZrT86vcxhabNes2GyXihUHmiMNmmRtlOC0Osz/05EW/eFEQ9AVry6vvffZ1h9G6urMtUSoYvT0Ohez8aB/W6usnx7Vao1qqHRCh+Ozk9GZ0fG5+agDO2OowjfS+UWqsLC7KWeMjOsVia7mmEbKEi9Ol5VUpj1VqNq3hhEQiXts/5DAnA5alWqPImppaOTwam+VK56V8kZzBmFprtZkzrOfdz1RSSSmfc9it/UMD61sbYpkkFo9WioXXP/85LofDneUYQ96njEHBLHu6+5ndaetlMZ/19T9757FUa5FbLbOTA9fnx8dbu0++9JbLZL65PKXyEJK8413Ww7j7JOkFaO4mgK2WncSHsxVztkIfgtUTSq+w9oeVLCbuxfrGE37BI/UoSLVY7Be3MOwpraJ6KmZhRCzMuHkqoZvN6oWwlKuYZDWrJG8SZ436Zb/zIEWfALKVdsaknfNpvGKHhoMDvqngRZAQzYoGrBNBHvFw89HpUGzEGes1BfptvrGAmxEzTyUNANbphHo2rR328r4kfgGCISchVzQd82nVQgYWYkZ+RPmHb36aoPU7v+23/uz3VRmzvGqRNW3ihk1St3eytUNcJZoBVdOjbLqQoSi0YvJ83Cf1DiiqwpIW3ke2whZTcIK8DzfthWmq18rqNk10GxnPzRPPjOMPVP2vS54/UA1Mhvi6Da9lL4qmcxjPWAaVFt4xF8x8XCFIa6QVrbCq5JYV3JphJmedyUbGw6lBd44ZW1uoHi22jnmtM27jTNA4F7fPJI1d9cq6abPl3Kt4jtAa9j63fNqpAKFJx/Wj3ArPl0h8HQWsOoPWaMK+PNRJxn2RMx/ELIdx/U5I3LTdJplNysgObNPyqaSYk1ey0jJOTsnKyGbzqpmsAnam01JWSjqbvr1Y6HKwgyIkhhholj3SutWw6Qsd5N4ZftRFvX7tt34d5FbXXsK44ZfXSWJJuGlw5nDzsdgUrUSGa1G3XTDX2g9j1v2IZTfiO8u5j0BKDaItF9jqOsz5zwrIVrgorC+HXRG1CkRuXfHin9D+BicJI2UqRHInwlRk3oq5D8tLK0H9ht99ljTt+SUN00xCtZCyCjLh+VCIHYiw4glmJDLidU6GXMIyrFSy9r0cyK26dZe4pBIUtThnU5WJTbMpFepbabY+N7GeWaaZKSm/ZhAXDM5aeI9a5BP1IHGwum+JIQVTyCr8Zm1588FbT3ufPi0kgkq+8e0//7xWPdveXd5obApE8j947bODg5PhRJU3y20vN77Y8+4X/+D/eedPPzM0M7Vkt7s0JuBKsL06w1pYrZbnZxkynQwOzhkd485yZ4Sy3/+jzzx4493nz/oMdnf3a28vl6vNlXb38+4XD95OOuwX5yfHN1el9VU2e/b54+fZchnYurl3Pj4lkEz11FdX5Wo5a+TtYKL49oPnb33uM4/e+lO+eN4gmubPTxY3N8zyxWKraYomNGrFysEBmznuNSoarQJ3nlNot9/rHXTbXLF0YWKCVa80v/jg3T//sz/77Kf/ZJbN8nrdz3q6d/Z35SoFsDWXTv3B7/3ugy98wW8xbV4dq73WsZ6nTDjDXFodDgxPTn/pv/653haQ2q0zYz1Xl8dHW9vPXn+rkk5T1jDE61WXjWKrBxYaFFutuwnHHdpetWVRbtW3RTWg93Tm0IROCehEJSMw4i1JH0hhgAwaKHe14+0LeSs7a57JGFhJDayG5tKqxYxakNNyk2pRzmjZiHhhDFMDGMOZUGjFlea9AY9GYTgNNBZhAWFl0wZsJU7vZS8/H5sJxyc9ySFrgOELzGX93KqbW7bxK1Ze2SKpO5hR6RvSvofqEaCqrG6ZCPA4SakwvyRLGwCpxHfnez/xhedvAVslZYO0aZG1iRpBUfsAtnY0Jy2WIlIJ9KlhQNfgROn1ZXWjlgvGNk5Rz0DWME0CUrtNhK2wxchR2JkM88VENexEaR1t5ZgmCnNEEU10ywmDbWnZY9z0La07lrZdxqOo8Sin3asvlEqD7vREYJlT2GFVttjlXU7hcKF0JqxdCMp78vq6drVp3a14j0vEtauDjPeQihG97rvcKKiyxGhR392D87wSXkF7+98e86LgPs/C1nGSljbt0zHpTFIBW2ZUMhWTTqdkEwnRRFzIiAsmqZ2plIRurDTxBcaVEGzh1sGaA2M0vFTCac2K27wbCh/mX+t+g5D127t+889+17+VArkV2CouW6QVEi+AWVrQ2IgGRsAlie+oWoRlvaSmF9f08qbZshuy78d0637q/Albbbsp1xGJuUC/AnR29lAprrUkA2wGVWfo3EYq32yFAakjrgVkK5ywfS/lO6kY1iOGLZ/3KmE+9EqaMOVr+AW3uJCccvkHLL5eR/iFLdhjcU9F48JyXrtasu2VzFtxcVnPy8mEJR3qNFDpNJ/WdLL1Eciw+qnHxsmZglq6bFXV7L52Yv/yBONdSTjnq2FR1zfnpObLTalYfffB4yW5crK/T7qwIF6cnxgdaDQra+vrSwbTo+eDszylSGnrffzcsCQZF7K5Y0MzA306r0ttszGe9Flt3lmb690HT8wqhdkg6x19LhUszgyPhH0hXzLbD5hcECqVWp3V+fp/+7RFpvZ4PG++/iWXQX+03L48O947PwXp+uDg6PT47PTq8uZqf+/4ZmJa8uizvzPEZD14/N5Yz2crK9sypZHHYcJx/TG3U7Ug4U0nV5ZNEk6x1TBGE3KpcGX/YKC3m9H7iM0Z589ztk+OGbPznLHpCSanu2ew1Vpj84RDw8PMsVGPy2mzWf78859d5HOHRofL1TJIsm9+8bXZ8VG7XNo+3nakowrevGRooLHaNuXSXLF86K1ugzUgtlnf+dwfJv32hNf72h/+kUWjvjqHcwfJG+awsy7bEUipL+VW626SZAy4GwM4kNDvHcGKlYs6PIoSdH1NNNRC1wRGvCF60WtmvZ+qBCjKlktUdwhqDkHVLqiYeUX9QlYzl1LOJxScqGwhrpSWLJgSGAvGYDdFOehe1COO3sB5AT4MA0xAIoJItUFV06asWxQNu6QCxA/PJ2ITnvCAxckMghjrFTddkpZTuuySr3iUKx6A+xP9JOU/JJM3rdNRwaCTNeHlagr2f/fffhNG5fd+8vt72EPKtElaMcraFtmyTd52vALT+2x9VSfwIQ2HB5w/spWklzdOAkl7LMwXVibN1n4HayGnkjbM0jpJbIr5oXF6g30sew4NBryoCB+IuI5ztv20Bcb2SdpyVjQf1yWt0qgv1m9N9XvSL4Lx/kBuKFidjK/M57aF5W1xta1oFg0bOecBrBJeGqM6w/Y7I01xSQHPCKcNOAE6i8qHe9feshXzE1J+V7K6fTIg4sSVJPQ2TEISiAtBUgxU7Wzwzu2bMSGJtgiTpGLMoAgmdeApCtEIOJA6AYi+3dT/++Zn4CF+23d9/I/f+5wP1tTbUfNWUFg0Sco2NGTByePEjJEg0OBmwiylXnFIG7CoWhKWtdK6Sb3s0K55SYffS1JVA0j2Veyo8KMIZZRb0VMCKwlirhx8OsjWyYAQ5gNBQe/YT/uOy8aNqH7T77lM6Xa9goZxNm/iFXy8bHLY5uqzBl84Ur32VJ89zklVBcW6dqVt3W3q15IknKygUTRuNUtk/m65FrPah9pxwOstW4GzwFbDxEJFJ2qagK3eVnzv6patpAjqK5Wnr69vLs6JWiASjg4ODEf8sfdee1sjYeYykYdvPaskM4WV/OjkJGN0zh3N86X6d77wpUXORKJd1PEXtXxee283Xi4rZvly+dKwVPnF196eGxvZ2GqK1MKZKUYlnrg8Pd+/uhYoNJyp2eXmqtXj+/R/+T3FPG91bW16eko2P7tTq9xcnIHIt39DsqvAeZ5eXd1cHewf3TDZUgmnH04T+DzR/8Wd0/NCucmfYRpU/IPzA6eGJ+az85sbBvFsrlpJtleTsSDA1GE1ShdZzOnRbDJ2AdJ0Oi1fEAhFcp3BenhwmipX4B8qiXh/b7dWrQjFQs78rEwhOzjcLxfy48NDUbcrYjK29tZEFs30YF/KYtq7PBV7nX0j4w6podLcCpQKXM6oS68wKxV//H//Lo/NOj/Zubk5vpNbga2dcuvefbbSkYWwxfTDOA93QhY9B9C7GzorSKyvC3uAFPTSmKYMdAJ5yykB8JEc1TYq+tPCzWkWkkpOVMoKiWZj8umwBNZ60N3RyQaEXyw+fE/ZihpAHEvsqAyGChyfqCCqVg2p4W6X1uyiim8+7R9z2wctBqbfPJcyLeZ1wrpZ3LLLVlyKZTc7qe4xk9RNk0GBftOrXrHxSxpJ0WiuB//tb/8GDMtP/q0f4Wh4mrxVUtYrVmzihknWsivqr8qqXxdbYYTA+cOakeipDST+4olu/Kme0WOeemaYeFve/4bkxZBrTrXsMu9GJDULZnTGekp48+lHA2/K6279Rtp13HYetW2HTdtxzXJcNh+VdTvluXS8z+J+arI8tZme2x3PrK5uq/eF3ddtdvTZzWNew2zcJMjDotiD7KY9EO7BkVatwi/CJYDQh1Xz7mkAvjxbs3RomeswC7I/O6KYiSqnQzLYzsSUrLiMlZRCY1MNy4CTd6jC4MyYaDIoxKRiDB8fsAVni12C5P3ajhq3grCcd25Ef+szvwsP8Xt++PveHe8ObKeBrabNoKBgpNyoX7IV9mEJj7cRu7R5J2ja9Zl3/dArVMtOSdVMSh7kjeKSVVZ1ABndxzlkK6Y6g9sOOzRbYcrRtFw+6KgnWeN6wLYTXUypRxxzkz4+9HBBTmfbTfpOasbNlGEr4TwrqjYi8wX7bM49lw2z47Ehl58RLE6n1qeTa1OxNi+/KS6vLy1v6taW5fXkbMK4kNFLypaXlQfhKu7Y+vhOJ/DUMPXIMDFf1n5ltqLRnzgXXZ+dnmmXtLOzM63aynjvuFnL3j/aePO1ZzGb5+TmkOSeOr/Zv7ppb+y5LbbtjZWTm8vr87Obi4uDqwviMXBOKk0XtnacDu/ucuv6+vgEzfGnJHPKAYhzcAJnlyCPbh4cKuYEK+X6+TW6LMBpkYyAJzfXeySH1fX1BfHQurk+PTq5GRrhLEz2Xd3cWOzmvqef3zo4PifWeOIadnx+ppcuznMm88urKhGn2qona3Wvx7J/fEQUHNfn51dn15fnR1eXR/ArJGkM8Qa7PL/epwIkbohnFbkV6JeGXlTZdGqg5/nWygrsH19f7l+dkhtGUmxdAjtPLkixsZPLmz1yekfE0eDwUMzlEdcuYsU6QQ8EwlbXccJ9kCCufzsgKqbvsfXW9EyVJobJWUapz0FSACLQ3ZEe4dAvYZjBwmfUvTjhF2BFI3qBjItf9bJX0XLLKJ0XWVk3HaQeXHZJkFtih4XssIh2UcKGZnTgLI4EVFYCbVG/hj0b5FZh0Yh+OYqqTdt0qYCeTau06eKV4HzMEz49O2LkxJc4SVmfk/WeYeyRceKZaeod1ejrkn4qXlNg3PaZ90izboWVGds//bV/DsPyJ//hfyd3L+nLDmCrctUmbBgkDetHZeu9aP17jXYhwNT6RP2X1Qy754GqwFbg7DuKgbdkff32mbm0CmPzQV5Dwx2GFaHGFh4HCK0w2KR1r6yV1qw2NcvLmnbLuN22HtbMh3n7SVnRTLBCblbUNZf1zOX87KRvMuqaiLimEq6pqJUVM3Di2jkSfqZG4nQWSoEjw62mC6nhOgZ+FE4AOgYdy/fVNRK2e6vYpTJDm7dixo0I5uE3rJPasboNH8h00AzbQWj6rQBsjbC/RVWyofQhKDBi5DFiHWcX/Ybfth91rEf+j9/7P+Eh/uDf/OSYiBXcyQBbDRt+YCsvq8f5Ca4LrhRuI+qv4etomLLsRix7IdS3Et+sNVKwS1KxwZqAlzWA2Ktpe+AduCHw03gm+OuwcztYQG6FQXSUhh33Ycqw5odZX7vsAdRql932vYxjr65qZZTt7NJaZTEXm4j4puMxRjg25An1O8PTySYnvz2b2+GkNhcyW7zcpqKxI600F7MJRtA4GVyaS+nQtRFNGvyCAcDabZ5+ap4GsD7UTzzVMx9/Bba+L3aJYuvVxcXFyury8krz9Pi8VV3e2qgBkNLJ0u7axtH1wdnl2fnJ1SHljXWwswcfPrm6uDo7v6bKvhLrOHFnuoCF8e7u3sXp8eXFCXFWvbi8IcmmAEakePcN8dGCnavDrd2T49MD+BCVm+qGZK0i3l8H6BILcitxkL04O7sulRrtSg7wt7G92qynjkiCwZsbqsY2SLir7WqrWdnaO1ltlw6ODzd2d5fbpTOQgK8pxy7Kr+r46vL4mrLiUeEQl8RdlzhakZxZ52dU8porkhCRii872N8rZtNnx8c3F0SCPid3h5ze2fXZEeWdCzfvkgAWYAykPYUjbm/snB6fUrf0/NaWBWx1Al7347ZtwlbHYeYDdQLo4wL9BgYSi/ImgQYLHDRioMUWRVcY3uhahGWQEY44UNFPW9V0K5vQL91o/CHJitIaUUG/1LYvZhSzcYm0dhuQg7ZvVIeRbPl3XlZIW/RCByShSQ0+jHO4vGxX12DHImsagYaiupVFeGESFV3ikk1SNfU6p7+o6PmivPdN+cDr0gFg60P1KLBVs2pXrph0m07nXpxlE//UP/n7MCz/2a/+r9qQ2VSD7+rky2ZJyyRpWD4qWz+8IV5h1kHlLAmfXfVMhoQguhLlgHHyTWnvF4XdQNiHmpHHWpBnJ+Dmo3smpshDRyLqVsAd0/BLLkEjr1heX2odqGo7hrUt2/6y+SDnuSjo1kL8rFWUtwMdpDWnqOrkVx38mlPYcAmrdkHJyi8YBXdO/rRbLjxHnFAxAgLNPmhCwQJWaKn/6tnqPcl7jwt0rhlo/rMSZZdPa9o+Qd4kLsE8ShyiNctu3ZrPuBl0HMSdh0msSwaN1r+jjpVWAUMXBdwbtwkWbauhX/mP/xs8xB/91N/kW+TB7bRtC9jnJxmwMsR+hXM/1omBL+KCDPUtVHlw6M+kmbci1h2SZ8OwEdavhaDTSit2cdmCNwGXZSi3wkCAIQCnAcMBYApgBarqVrx+kP1BmN2NgRgL+6aNoG0n69rflFfKknJNUmoyA+kRV5IRKPQ5Et3WSJ8nzc6ucPKbs7nt2fTOQmZXWDiQVfcFxeXFbG4q6mWELDNxLfpKw5aX18+m1I+Ap3f61q+OrXd4vb51eD8/u6CgdY1esARKF2R9TkVpkSBWgM/h6REJMTgn0h9GaF1cXJ6R+AHi2oqhXESdS7B2BZLgAXqKEg9U4sdKxQ6Qf1+QUyD+opvnZyBUkogBErcA0uXVIRWwBQc4OTshOV8oyZZoKy5BkCVy4un5+cX59enZ1fHJ+fklsPqCZH0lCRIuiGs/OWESF3B9ThB9SGWQAdAeXpGLJpkDL8jnj9FyR1S6l+SMr6k9MhGcY7VaFKaJ5ysA/uKcxCxcU79GjkKuAn7s+PL46PLs5JJKiouBA0R0pXyw3sfW3Q9gq+cu2wjSE0sYoe0FRjhATUPMJiFa3wdoQIkAxUw+ld0d8YojExZWoqKVcloijvfQTUmZ9brNsR9T1GFBqoERhZ0euYPO4djQkotBkHBAHPMYDINBCnCo+fgSL6lbzKq5BaWwpuWVtey4cjFjkNfclAHKzgjyHhvHnxgnHusn3lOPP16a7DGxJgI8XkHDjPDGfLOzYenrzGd//VN/A4blf/r93zYlnPqKS1w2iBoG6bJFXDd9I9iKVL21dDUdYz7uo6VREFpJLTLFwBuSntfF3V8UPfsSac8fqcdJUU+iOdEspMgExonBTKaZiapYERU7aR8Nh4e9iRFndtyZE+Rqlr0V21HRf5WH5S0nqhQXTOqGXQmifcNCFLhtm7QFMr5V2rARotUssKX1FchQ+s4jc3GyhBuOmm5UCNBK8K9GbkWw+k6LJFMiVhw4Bdpm4QZyM3rC1opFCt0A5oySSQRPPLMkzOthH96XUzZAlFWxfwJPcYEMvQW25h1SqcjY8P0v//svw0P8uz/zE5qQKbCVghWJfsMnqVgX01pkKzToP3Clt5FylHwAW+suiBpx0+ZLaRqabjWI8jXs6Fb90PPpCBGsZQ3vUJViKW+wltd1kPIeE7kVtsBZ81bYeZCEEzZuhOw7JfvWniBVX4jUZwPNQX1uzFJjupb79PleQ3bMU1tI78yltubT2wBWXv5AXD1bzG4vZFcFlRVBtS6slTRrWVXDt5jWs2OK6SjJafCWfOBd9ehD7cRjw9RT0/QzwxTNVnXN7mvF9+/YSnnbX77M8keBDJOYUvlPQX4kwhcJVzoBSRJEt8MjWM2fED+to+vjGwIyIoESwpAIqRuMywIswX9UscOLGyoLNXBp9xKwe0WFHZBYJmqZT4UOkEIC8PYFSKmH1xjgBFuiEzi59cHHeKkrKmbqmsIgHAA4dkYCGc4BbXCK14cHwHk4C5Lj+uKSnCL5Ayz+SeQV+alTIqmSbNhn5BBUwBj5BiEoRvHiqWICgVMSI3B1hVdBYiGuyZle31C+v3iS5zf4t3MSq3V2c3F4eQGncAQ/eIlpwK5uYwecJ2nXMWGrfSeBOgHKvPC+HAJoy4I+hyAAvEK3hr4IY4wZFEFXxk6JCyIkIFrGaSs5xswgEMlMS2CnFRZNopIFY/NR+MVc6zRucKmL/7y3voYDotSA62I4LFpLYZ+bhV8ByKqAO9DmCHrkC6klSsVGZGGSPpXkmqKyjcQVGEtOVBNF/WxSyY5IFvzKP37y+W/9/o93fVvXZx581pb3yzJWccXGSivGI7zx4CIcHE+PVijTzqoofn4ktnYe53a/6Rr38Z8Rn4GJHtPUU/34I+3we0sDD7WDj3SDD9T9PaaZ+ZSWD0uBgpaXUfAyauDRfNI8HbFMhJyj/lCPI/bcmniqD3UbPDOJpHG3aj/Kec9yqqZzNqyQV+wkkLQJPwQ30yZrkCZvvPRk+PBpABoCF24+arppZeuratnOGJCv2LBeNKzZAVKAKiAm/ij9cJGGMEkDENFfxXNXOAcXOtATqHRWEcdOSpaw/YN/9gvA1n/wSz9vSrlCexkbCTJ2qBoufpbMELjogT4AO9iHv/pGlz4EmNJKT3SSJWEIa0FdO+A7ynsOM+bNkOsw6T5OG7fC9qOM7SgnbfmV7by6sjOmz3YLQy8Eqe759LCgPsKr98/mBxdybFVr0bQ9Y9iYca7zE3v8wv5ieX8qtTWd3uUUDxZqh4L2vmp1R7faVC9nlMt+WdOymFMMOjkjTu6Ikz/qFTEjcnZMyU7IeVW9rG1RVq3+VvwAFty3A58SXl/NoHKbaeVluPxt7BMuhK/Q4nVFf6Pz2x/4uqb5fUeda0wvdZeS4PpWeH55gFdD+F9+9PplEP/1XQkYssi/uYs1vbl++Xc6X2LnYd9/xR9wwvcSD3RkDbj//9vD3uYcuHolYUGX85Sw1bkXQ53Aq2xFlSvgFZAKghLDx58MCNEOAOMKOigKrdigV6HGEMdDp1CG/Q/Ji2MDl5kcUljYiGYx9OK+M/5YO/2WOoc9+oTiYaEr4xIVc85iaAN0d6p+CZEj5DU7kh0YyopI6XQqGOyPSVVQWkHpw7gWdK8k/vTpFz72XR/r+njXg6FH/nZKW/XJGu7RsOCZjdFtZkyFRKghRfdVijtOmrB/EWx1j/sEwNanuonnwFYDg/hjWaCNd5tHn5nGGF6hvOZQ1q2qulnVMGta8EWfqBTkJAKTodBYIDXsKw97y73WJLCVEfQKK0Fpw61ecYvyxrmISlF1dp7kB97kD2crni3sYMQdmnTuUfLVaLoP9xyAZwd9AOmJUVKIV0yFBTuoU4YtzqnwPjqxwQ70AcwQiAnJQLq0byZnHcpP/dzPAFv/1b//t/aC37eTtG4HQVoHtgpzRswuCFvoD9gHvraGyzXifUVBFiceft4ozJqsmzHrVhTkVuLxcpQ1bsXM+1nNRpqVtExFvGxX6Rkv8A7T9d5k8O3hUA8z3z2SejIQGZhMT/PqM5JlpqTJMrYF0W1BfmehsANsZaZ2ZgpH3PrJYv1A0thSt5Z1m1X7ccFzmXEcR5dW3aqmW1i0zpLAGRBfdHMZ9QLIrXWDsmIJtBMHl/fY+s3XN/BF5FbnUcKxG7WRvEop52H2HlthYAD4UCcACIM14IRfMOycH3LMjXm40JMQi+g2AD0b7fuIRXocduIDgQiHAq5BtwZAw2fgV6D/Yeh95zCGT34gYfHI9KGgN2P0IV22BP2HMFEI/iiMImArqiYwcScmsoIdGLHwAcy4IStbtTnnb/7573Z9J/GLHJgbCa3njMth9YpvNMjvtjB6zBPMoJD2+acp/xfKVlcnW5/ox58Zx3usE4DXbvM4bIddc/KahWKrRUn0kh5pNcQrxNiJ+GQkORYsjAaqjEBjwJHtMfoGnfbpmHUha+TmtIspNS+pVdXcr0Lzo7IV7wDMVXBL0b30Hi7RbYueoT+8obsSEIqua41TXaelDjmLK3E04KBeAiNH4K/w9GGOhA9bt2O+vdyIav6HfuJvAlv/4x/8jrsa8WzFjZswR9qUDSewFc2ARNTNLCGXPypS0fsNI2VxekZPRGJTrZDEQ/pln7xKUrvp10K2vax2LaluZ4SlGMNvY7h8E7ps97z/0ZTvxUyqfzo/MlN/MZrtGUkx52rzopVZ8fK0tD5vasvjO9LcjiC3vZDdncvsLRaPRfVTfnVHXNtQtpY1G2XzYc5+mnSext0nZH1p2o4p225J3QpsnYpKmUkJJyMXpDWeeuQVufWbr2/gi8itzqO4fTtiJVla0qQW1gfJrdDQAouWaFyGA5UwRhBdsqBvQWdF6xO6T2HeNgIgijudKkVMbo+mEuiOMCrgCKj8ouDyviimL9dQ4YAhSaj5QkLBWRFj8XoAzhaNFagohIOjTI2Ld/orqEeGg4y6F5le0aB0+p/++j8nhUA+0TXCnfCtpk2rUeWyd9jPfWIYfW5ksKJSPAgcn/5FGo4fwqavmq1O1AkgW7uNJILgLpqA8dQ4NuYGtprULbu66ZJVnJJqUFiOL2SzzGhmLJQf8RVHvOVxb23Amh60hkbd7umoTVCy8UmFR72ESlZLnyQ9K3wktkoovzHYIYaUnA6W5/dcXzGyANlKe8t9uNzqwQKrxIfMTmt+6Gws0J1Q7YtJedCkhhqhTrZCXyLOtpsR727mEWfw4z/0vV3f+rFPv/2F4EratRXXb3glNQssZfhZPdIZ0YyZW782tnYqahGyWuocbJthz2HKsh1dWg6oWwFVMywuRXjp6Fw0xgpE57wFtrYyuJjsZcWH2PlhVnmYWXkxmBkczXHmlxcFq7OCNltcX9C3FeFtRWpHktoWJPcEqUNR7lhaOZbXD+TNbcXyinarbj0puy/znnMYvElSG+2y6L3Iei8yjsOketUrbJoXCqq5iNRW9B1+k61/ia9bttq2w5bNKLCV5Pc8vh/nShQCa35cv0OPRLECXQJunQGpreIufBCNVyjR0JBFAOEwRtM2ZgiEsYEO2MBWGEUgPKLbFj2SPxCpNMtQlJ4KieFQ6PCIjSTHyutRNAZpFPWqaIHBhSSeBspfODeQwFNYkObNLD3/Z37pf+z6eNfHvu9jHO2iZy2pbQeVK77ZnHo6JpqJSdhR4rIOhwURfjIgRA92uF7a3/AvlK1MaKSEsm582D03HRNPRUQLabmiAYywKps+YdG3mA3MZRIzyTwjXBwLVMZBaPVVx92lAUty3BWfCgWnomZZwyWpmRQgBlYdSoqt8sbLyLGPylY60RfcWLjPr+pbUQjFz8C89RVFV0wBQ/SzHWIspl8BeGHecVr5jk+fNpOiOwp8IHhZwmUKsDWwk/nC4LvkIX78Wx6P9SV3 s6tmHbdI6wYJWULN6XFaRUdTjDC6iM1mqqoE0DUouh6K7dWzUtt4vYbuKg6Dsvq5aygkOKE4uPWSP9SYFgZnxaXx+fyw9PZAUa2uz/x7EX8eW+CwShzeesi8RZftLkgXV9UtkWWNZ6tPWduTWhqLNPKjGN93r8hy+0p63vy9rpqo2E8LNlgWjpKOg/RuJdxnybc53HvWc5+lLKeJMwHYeOKN7ScPLg8/iZb/9JehK2OwxiylegEjrIYk0N3ehAlUJE6aJ8FjkBvHvfyoMGwARkBI19xSwLvKAmRJOik3HfQRwR9dzDEEJ2NcGxgnhEYCeigDqIxDBtWWIKAxuOgB2KnZkBxZzJCwRM+jMn60A8JDRoo2tBaXRyB87jt0LQi2eGA6CcP10j0bmshZcTyd37u73V9S9d3/Mh3qMN691pM0/LKlz3SFqDTTqrIRGW9ZtYL0/RzAxMa7GOKRThbrD31dbJV2XKN+/nPjcweYu2dfGGe7jGTHWZYTIIvGnZ5k/gSSGuAyxC3EGYnwhOhBCOYHw9Wx4KNcX9tOlSb9BYHTJFJb4IdDXISVlLApmWD7yrrTmCrpGLFn0MV4QeeCT2TKTr0Hp3PAp4R+gnAs6MDt+hIE0AMes7Bc8HIOhqjnvfH13nuIms97y8peC8RAZ0tCDVUorIJHy7yER4iMcFT4b+27VhoJ/tHDz/X9a1d3/rt3zY0P5nYq9p3EkvrHn7JwM8bQG7FmRU6Cap3PypbaSm1cx+tDmQ1U7dJS1pJUScuWzSrYe1GTtEuyGt1XrI2acs95nneY7oHmKlRZm54Ive8P/7oSfDho8CLnjh7uiEUbIlFW0LxrkC8tyBcn5e0Z2SNMW6xZyrVP1caFlbG1VVxZF9eORQ31xUbbeNBzX5acp3m3Sc5/1nRf5Fzn8XtJ2HHUQLY6rhIuy/SweNM/rBO6wRuvsnWb/yry3GSsh9EbdAttkBuJfpW1+H7HLAwLgCG05BjDiVN6MogJ8KYocMEMakrWZ5TGUU7I47QcoUyL7qmYhQAsfZSyzoMxEYXRRi602EJfIU2c2EmDjoPLJqtkLkoE8E7eMxO6xmyACmA54ynja6y6LxFZ1NF/xv4FvzcmIfLSy4tmKU/8Hd/GNj6Y//9j1kKDkvbr2i6JSQboV3ZsKlqNnZECmDt1k/2GKdg+1TLgAZzD5wbagm+Xrm15Rj3c5/qGd0GJkivsH28xHikGWf4BcomVUix5RHXQAQL8EqxuWyKFc8wQtmxQHE8WBsP1MZ9RXakwPSlB82+SW+QHfEsZOxSuD9tkDqtypprqeVH/QxOVK8qiDvZqrhTeuDnaR0oshVuGjwOB+VaBHhFfTdsQQiFb0E/gYZs7YxUpjHamXDAe1caq/N9OvkWHpPOwgWfR0uUdtWHUMNwBkyl6tiJe1ai//kz/xew9a9913ewZNzobtm6HVetublF3WJaK8gZ8UJwVsbAga+/0Qs4YUGvrpsMK+SmSRu+hbyfHQ9xMyVeor0YXO8VJx+MeXuHE4Mj6ZGx/MBQpqcn9vx5dHAgPTfbFgo3qbbP5x8vcnfm+Wuz/OWhycK7z8MP+xJPxpI9nPS8ZV2Y3udXNxVr68bDFftpw3lacRzk3SR7d8Z9FnOchb1nGc953nmZcV+kgifZ0knr6Ob0Nkk/5Xn0Vw2f/5+/iH+rdS8McqttJ+48gC4LjHtZVhMjTNCKBWyFjgiiKxAN8w8BR2hlK/RONA3RYO3M/ITuKbf+p3cN7bNwBFoqgQPCWEXPG9JBqfwv6NeCTja4rscMHfB1mtqYWwj957HRaf06F+n0KdGORBg5CnzHCWMiIGAHpCMi9sd/8BMwLH/hV/6Js+ZTl22SmlUEcmLToazZVVXbTFT2gpJVgacMHx8zgsOsAEdDafrrlVvbzomgAARVkFtJ/Y+AiOEXjXkFswmNsumV1T2Cqm+hFJjLRziZ1HQiNxktMUKVsUCFESiP+4sTgTQnniIJwBxupt8zE3Xw8lZpw6poW+VkbnBrml64RXDT4DZihp0PPyu4LnoJgon48O7hogGNgZj5H405KMQRZTfFLzpttrujqlWnZpYWde8Js/eMXTRYab8reOKo6oU/BS9LqK4l+VV34tay+1//53/T9bGub/++7+KbVOGdkmkrKltxLORhNaPhZfTYqeCKoHvgiv7rpCoqBGAfjjyXUGjqJn0b+ptL2gzwq9HJSGDcG590FmacKyOKcu9MZmA43d+f7O1NDA/nJiYqjIkyc6o8v7jMF20KxBtC0cH8/MHc3NYCb3Nmtt07kH7Rn+0Zyj8ZTD4Y8PdzUyOWynCgxM6UJe2KfrtiP6h5jhq+46rvtOA5S7rOI67jJMitttOE8ywROM4Qtl5/k61/ea8u60HcshsCtsKK6R5bSQ5jagmGcY3ADkBJv3WGGRRBw0h/THYJDfbnKLEUByTGyOMOTTpctqOjK7IVPoAiD4onMDCQrThQ5VT2PPgJHFeYWwgBhOOK9uhCwmJiJNrFCu1XxNm2w+gsv6sRjecJmMBVJHweLV0zAWnP7FjXJ76lq6vr3/3ev3c0fLKiSVA1CxtWYKu65lBX7CC3koRVugmYaWiI04SiD/41s1XetE+GhN1GZq+FPRWWUbnDXeKyXVJ2ymseUcUzlw9MpYIT8Sgjmh4L5cdClfFwbSIEbM1P+DPT0cRCNjobDzED7umwczZhF1Rs0qZF3rYomnZFzaOse+B6QeiGS4AHCnfyQ3wb4BbB/YRPQhtxLcCdhGeNbMXYAVT44CIDHwHq2eG2IGcx0gm5A13lXvJsuqjEvXRZ91DrPc1636/PRR9nzBBEuwDChcDPeXaTuqTp53/1f4YJ8hPf852qgC24U9JvhsXL9sWCdp6wVYcOs/DQ4QJRsft14pW+RmLRTatlRa2sqF/M6ubytrlikJVOcJKVaW9t0tzs4WWfT6WZU43JiVr3s0j/QGpRsLEoWJ/jtvniDYF0UyBd54l22HObs/MbPMEGe6Y+MJDq788Oj1eGpksvpuNj0sKgofzYmOyxhUeDgdlsSFZLWDfLrv2K/7QSuMz5r1POo4TtMGk9TThOv8nWv4LXLVvtOxFgq2M/g/pW7N8IVjTfo0SGi2gYQmjcRzUlfAb6EwxCtBThGrNz5Yi2qZdCGSUH4SIdc1zSKjb4JxCcphUmXcYgQizogmPPQ0Xi4hlitBjmOaSDiLChuoCmLSoWULfAy90KuTj+oaHJC36R6RZ+qe+9LoLWrj959zPWqltZsYrqVkHDKq7b1DWnpuoACRdA82SJMUEW6U60rtyqL/8i/ASkdSsjwH+kHXuqm2BF5cqmh4phc8uqbmnZJa76Z3JRRjw6Gk4OhfJDgcqQvzoWrANbJwPZqWBqNhnlFkPz2cBM3M2K2ubSFjhzacssa5nh9JR1r7rpExVNMD08WRqHLTrqdp6JvCNBIjS4dSCkP9aMweSKNw1FV0QqzmSo80EXN7jz2FVQ1Y5ObzjbEbG36UT3Vdp7CbhGZ4fozLzVqR+49z5aPmlfOtTm03WwvXspVUjzqX/894Ct3/3932NOBbybee16SNi28srQqXT8rEFOsRVOGKYKM7X8+noaLbRCXyL+DAW9vm03rXpULY+g5uXkAyMh35A7NmzJTtmW+0XFJ4w4i73C5+9NTFYnp6oCyRZPvDEvWBbINviy9UXRypxonb24NsdfWxQsT05lh4cSI2M5xnR5jFMcmI1NavKTruV+V73PmRpw+0d9rumwS5QNyYshbTts3Yt6zuP+i5z3nk7gm2z9S3zd6gSArY7dpPOAsJX2E8BkHNBpcL2MhloQLdH3CCUFGB7owo0WJNrnFG1QtLm/0ykV9aSdHgK0ug0OiwZ3HKI4PuVUpTlMMIx2M2go7aIOjsYu/hUzEwJ2UZAhCzQqiTJt1EKzMgVcFRahI9cIEmtUIanZ5yOa//q5PyFk/UTXe6xn+qpLDvNEyyZuEJOasu7U1J1zScWYZ37YNcuKSKSUhxCt+pCRrV1Rp+q+IDFfopOYwhRNG1HaUk3ZsL/8awfLFE0HOy7rt7MG7Oy5lFzedMgaTnnTJ675BGUfrxxnJotj4eJwsDASLI2HyuOh4lQ0z4mnObHoXCLEywUWsjZWzDARWGL4lNNRNTF/tSyypoXURKi7oWEqblyI0EHx99hKh5nBwxp1L8InYS6hFT7wuGE2Yvj48MhwxqLvA71eoePxOsqFKWjNO61JR1USHTxN567EGbQzxIsGLjxiABmqj7C/YUguiRLcjgBbpR71D//E34A58nt/9Adc5ah7K7O0EYQJUlAxCfMGUd4kqzuEVDUX9bLLtBW0bIVM2wDHoHErBM20GbFuReBNC/xp228lHwhbvixbb50E4OQx5ltUNBhXnaZ1t2rZI2kFufXYQjXPjOZeGOJs1+qoqvaIER6frkoVx0LJ/qJogyNssyRNjnqZa9hcXNpgiZosQZstWJ2XrLK59b6RaP9QdIJZZLBKQ6xM70xsaqnC8q6OhZqT0dJ0LMGOeDkROzfhWIiZFpI6YdmgXLGZt8OWvZjlOOY8TwbP8qXT1sH16fUdW1+t8/rN11/sq8t+lCQ6ga0QqVJ1lHdT1e1pcwHWqIDeD0Nr3MvD1H+opEPmYpgWDlHMREUnzaPVmvf8e3DJDMeEP91LogyjCw6O8i96C9CFqelxiBIoDGw4DrIe+I4GBBj5mCkZDgu0DV2VAb4wPtEHFlepZMCXrfwcFRuWUnKzaiCdfT+uXvbKai7VSkhecP+H3/5PgNaP//B3vlBNy+sOXkFHeS9Z5VW7jEQ0AX2MijoIPkZl3aKGfwJP4dJAgIVLrpPchnL4WMWlrDmBxaqGQ920q5s2VcsKTd2Gr1jUDSs0TcOuaTrUDVinA7VJ3C11cMQr3DejsqFTtvSyllHSsvLrbk7BO5nxjcYSfd7mgGd52Ftj+PMz0QwvmxYXo7JyQFFxK2suuMAxD++hauwd2dA70sEeE0vW4dMmqxL0y+s29BtFUH6gEE27Z6EyB2M08E/wT3jorwt73pEN4KOny4LJOgrYdHoa0PMr/i4uSjpLNNLVyFHJgEmeAO64QkIhFx40XRasMw0mUvhW57sZdO+keGbFD/7YD4Hc+smf/hH/Ssy7m9ZtBLllk7BiFuX04oJJ0nDziubF7NLSstu67bfvBCzbPuOWz7Dt128GzRtR+2bMtgXvu527LueO174dtG1GzJtRI2B0J2jaCVLkDVMtYt2Owu/C7K5Z9UKHgWnMuOHSr7k0az75WpjbjHFKaUY0PWBLzgU2mcbWk+nIGKckUu2JFHszgmWGuMayrAiTJ5LMmShwNKVsMQTNCcHKjGSTMVvvHogPjGZGmcVRVnmIXeydyU0q2kxPazySZydzgkJKWgrJik5V2aaomADr3IJuLktMdvy8TgydbdNt3Ykm9isHJFkVRqFirOk3X9/AF5FbiU5gO+zcS7lJzfqc8yBF67xQOAWEAZjYURkKL7A8BJEH/cbhnRHXAryD4g8uFemYyM4B1im9omEKq1+8ylYM9KaD1mnXcdqWRS/wcb2J3ATKvyXpg3UrnA+MMRR/UI+GobRCSqgh4ljTLa8RuEhrFmXLat4JGjYDnAQsbE2LOct8UPeL/+IXSebWn/rRcbuAmzdwizpJ1UTCn6qAUbe6BfI7jHmLqkFMQ7K6lVaA3NnKnERDSlUnJKkUATREXAX4gvBoU7SsSsJTt6ruUjUIeZX1O7YSSdaqatjVLSfsKxomVUOvbBkUbYuk5eTVA6xCcDwZHoqm+r2tId/ymL8yGcrOxhPCfExWDsqrHmXNoSLlpm9LP7yrGAL2YXGdTrq9z272Mmz3y7IV/4nOcHgQeBxw2C9wnz6QD9LTKnEkoP6E/nPo0dH5LdqWiJImTsO0Owea16YpJzzaA5ou5orJYvCACirOFURFlG0xSRt2VLT4e3ZS00re93zy+0Bu/dlf+vvhzSTRwG4GuRWzACRcOH7RLK27eXkj0Ee/6rFu+W3bfst2wLQdIujciho3Eub1mGUr4Nj1OHbdZLsdsG1GzZsRI3xm128iLEZplzSSinAL2BpVr7j5RZ2iZdOvOnQrTs2aX74W4TXj7HySEU6PuQu86C5D13zIjDDmqgL5Ll+8w+GvTktas84tceZUnDrh+/enle0p0fIEb2WCuzI4We4eSA4xCmPT5TE2xVZWdlK+POVtTMSSM5mEqByTVwOqqlPXdGiacKstohqI5zZBzsDPaRdL2sUykaOdreje1cklXR71+pts/ca+iL4V4GLfibgO0sBW51EW5VbUCZioKGlAHqpWoU8DYYccc9AwPB+E2T4L+5F6FKQYlIBQbHm5vP2geEp0wwLqfSBbMRjxXsD7fWvPXboWwV2CUTgTGOrQ3hT3YnZ3ugAibFFHfOu/VbIKi5TKomFbWnNZ9sKSinnExZ0OKYYdglED78c/9beArT/9Cz/Li+tZMcV8Vi0s6aQlo7hgFpeAAnZJzSJrkNpc0poVmrhym6ZWCSInLN7rLpCJJHW3pAE7LnHdJW26qeahmltS80mrAWnVL614ZVWSZVFF7pUdQK9qW5baNk3LDiKtqm6lCihYidt/I8ivxtm55HgiORTNDvgqJKo1mGeGE7PxsKgYUlT9wH1KsUDSrwBb3xC9gOfyUDUyYOPcWz10xiK/Gpf8gWxV3Hlf0RFTwNbXeM/eUw5DB8DE5ArKxgjTGNxtQCR0FVyC4ESI/nN0qJX0LrILD4u/hYsV6HK0Ph3d+4CYOB/TOdVovzp0VcbkAPBwSRTAdth/kBvhsz7+fd/R9bGuX/sv/ya8lXJuxUBu5VUt/JIJ5FZFxQq3fTGjlZRM5nW/dTNg2aTCq7Zjhu2EdjO1tJrSrSSMGxHrjt++67ZtE7baN8NWgOmO37TnJZmzd/zQTCjD7oWN2wHzTljVdgmKelXbaVh1aZedqmWfbCUsaKVZmQQjmGYHW5LE6bgG2BqfmG9yRbtc3vY8d50jXZu3bksTp5LEidCzPy1tsoUrHOHWxGz7xXDueX9qZLw0Pl0ZY5WHWbk+VmpKUWf7yxPJMCcTFMK0WvMq6w5tC+QGu4JyaJGSmdutaNiFNeNieWkxrTGX/Vvn/x977x0lSXrVifZo5EAOgZCQBIsTIJwWhMRbYHnCiLcIs4+H2RUPsUc8WLSI1cGtxMxofM+0qS5vstJXem8ivffee+8zy3vTZkZj+t0vb3VMTvUAYs8Z8U/HuSdOVFZWVGZEfL/vd+937++evXKu0/QKaTr9YHszt0veszxia+SsSrD1Zi1yq0b3oYKnHB5lLBagsckwru+Gxx3hddrDu2JbBdqISxz3M6ML2AojBLkJuG+TTetobMVxQme2XzjDZBHB5OCHEwK+w4fBPFNMEpiI9BkwtjBWgDUL8sQJldYsuoHbthORVM2rMZWi5hJkzGtB6j3vfw9g68997pes/fha0cQvUaKyQVYyiQsmQd4sKtkEFQsYKUaoWiX3yiIIvHYC+k5A1QlK2hFJOyrtxGTduKybVPTTil5G0UXLylpZWTOvaGVVnYyml9IPEuMqAK+276QGDtPIZV33W4dh85Ak+ev7UXUnIW9nxY0qp1RfztUXM83FZJ2Za3ALFX4hKy7Hta04BRgNHBnY7sin6bmWw1JAVWDx4FKAb0EzR5rATrDsN158uxATwIuJVXaYugRnRvgGbMWwNV2CjFVw6NfDHuWmMCKP6ImAiGlzdGyXxlb4EfAUxbYnCw0QarF2AKu24Pmk/Rtc9ycLU4fZ9K3mNd7SpW97CLD1S4/8FWCrfy8L2KroA7a6gLdaegFjLygrm409n/8g7dtLuffSrv2c86Bo2a1QWyX9Rsm0UXLs5T3HKc9xzHuIMYGM9xxbo4CtrqPEmMASDgtm2QlZtyOarltUNlF9v3U9aN0IW7eShq2csl/kFvPMVFWS36UqLy2Zhs9xikzRhkR+IpMdS+WHEu2B0Lanip+pE6eqwLFQuyFR70mUR0ze+tRsZWautszsrHC7S7zmPL8yJyisWXvSfJPfiIuaUXUvSpF6EJ956AXvh8TWh2Fg5UYid+nXjrzqkQdcmeAwe/CNm6/cU6O6O5ZnfbC9edslzylpXxE8ziG2Bs+qGBPAdlV0o2ZWSo25nNhZCFeNwPUGPgsjBIXmaLeRJjj3x1vhbECpYNjDgJ8sHKCxFfMl6bLUC4tgdEkC/V+w0IteH0MIgA9GawtcqEYnEt1Nt6xiE43bIAIM2XajsrqVFVNpG15R2jSn477zXe8EbP2Vz/9W6KAsgxO2HLq+m+p61A2XvOaSAQSX7VzSsJbiFqg14MUkSmgUFiyivEWUs7JSjrm4ZyHhW0wFl9MRRjbOLmY4hRy7kGfn85x8gZXLs3M5XiEnrGYljYy8GZfWfOKqXVQxSuoGedOkbXt0QJDbQXUzLK/FROXEWinLLVZWs7WFZH0pVWcVKoJqRVwvSuppZTOm6xLyOy5j9elHHoBpuE2ctGYlKoPriRIK+tf38Tb8SxWuk54HnA08FXgAYL8UloABF4abCNgKe5jPaN6qHa9q0oI4mNaGzjsWoWDGG9wylHegA7V4E+Gv4FnCbn2YGIsBVnwaaT1sevET23NhFiC8QueupG+3nly+fulhsiT5+MyThZO6fzczxlafvEWw1TYImnp+ecFoGwTCR1nfbsqzm3XtFey7ZcNWWT0sqvolar1s2yu6jrKuo7j7IO4D0rqf8xxkgaW6juPOo6TjKOU4SjoBXk+Spu0AO6fgZJXzwbVrTibJeo5IxAWjaT1h3SkpewVuPsNJVRWlPUP1G4vG7vO8EkO0LpIfy6WnKvmpQn28pt0S2bb51pHAsC5QDKWKXYFod4XRvz5Vnl9srbD7i+zmArc2u5afE2VEro66XpcPYso+eEUh0wYwVp9h4DEMfNQoSI0i1ChG4k4wJNd92g0vYH1ko3D8ICbwLdwueU5yvuNM5LQQJYy1Ma7LOtdnwYoAXCmC4QHDABMYAQFxFd57mHXuJmluMlkQSYMgXaaF1AmGEAxFcCRhlMKpUF8DRwscoGAKjivaUf2nBv+F9bHJ90/WEU3SNHI8DJCC+n5QD5+t77XshN0nGXiRm9Cs+KTLLvGXLv/9W99BMrB+/8tfcG9mlW2PBhzzkc8MpyUtXSP6fljZ8Ss7PgV4qV23sutWE17mkVXdkrJHmHMxYv5rvtBVb/iaL/q8K/S8K3rNHb/qSlx1pWb8hYVwZS6UX4rnV9IFRirNLWTEtQwn52Nn7Py8lV8wCoomUd4hyDrXch5Oxr8c9c34fTOByHQged2bvOrLzEVzvFJO0gDam9X1iT+I3p9+4CNKrCO/7l52Ea46YjuWN7yGk0bfJv2E/BheNzgVlp8BV6Wr0R5VTX1VduVpwwJQV1pgDCOtGBUljZ3HK1RY00yrBODthluPcyH9X+j3y+9b46KzuBCLsZPKZAs1ODP8iOm0roMMYOsjM89i9+xl+Wr9Thew1bAeVg8DkrpNVXeYuz5t0yXPE2wNAm/dTfn2cu79om0XGGtR3s3JuwXdsGzdLTqPAEzH9awHJfdeybVbdOzn7YcZ+1HecZS3HWash0nnSVI7ci/GBIsRwVXn6pP62cvmlSd1s4tBia4HZLao6ub4hZSk3NQ29gz12yz3YEpeXZIO+fJ9qexEo7wlkx8KVVtc7Yil6fJVfbF8XS7bEaxtzM/Xp6erS4wugztY4LVmeMUZUWZaHBV6q/p2WQPUYRQkDdzWfSSgBPA6gvmVZENTgwhgq3EURGyFqTS6WXyArd/K7Q2wFXtoo/o16hDDQ49Kmvi4wwFyEDCAMDpvkaY5F1jPJNmEgXTDzcUVJyBWcH5MugY/DuO5yLO+GWydBFk6ZofHtNoLEqJJbCUvtn36NskNUndc1GbAfpCwbEUlBbM8Y9blHb//V5/HMfmnX/sfpk5E3nRpgQwOvCY4/xhb4anVDULEhgHdCHwuv4nUucbU7ZiinhAXY6vx1LSvOBeqLkYbM4HqjL92xZF/2pi6bMlOuatT7tpVV27Kn50OZqf88dlwbCWVWE6EONmwpJGQNKLSWkhcCgsKQOETvGx6JZac9kenvLHr3sQVV+SqOzoXjjPTPl7BLSp5JGWnuGSVAa5VzKKyUVI1S5t2aYPoQmELHCx++xeB9QK20pFQujAUUPWqnUkkFFxEPwGwFUgrGMopYMMejH6ie0447FiBDJ4fhD8U1cW1fiw2wQgs7ZpgVizOrOht0JJXuIaJ6SK4dDlZAI0+Cj4JcH7PUTZ+Wvvzr36Z3MV3X+Ia1io3W96dtG4YVA0DoppV23IBb1XXHdKiyUoEq1Je4K37Wfd+wbFfMgJvHeXVgwI1KgK2ug7z7kOgtHnPbs251bRtNs3bDdNu1bRTNu2WzHsFy0HWcZLRrHuW4kJGQjIX4F93sRYDoiuWlcWgSFYF2hGRVsPcTEheq+k7G1RrnxvuLFoaXMuuSH8kURypFGdSyYFIucPTjMCEqnW5fFsh2+XxBjMz5dn5+hKrv8jtLYjac5LSvCozow4J/Dl9O6sfBcbA6jeM/LA3jlUmKEIgYCCQxVLj8AG2/pttl9wnWd/Ja9g6zhOoYMkAgikjJgccBB8HoBALBDFHGrEVfiREo26nn2963ZmaUFml2SWMBDghNoOBEyKS4sgEgIahhYpW/ypsRVyg0ypRJgbjrTQtorEVnjZhlmJGyGdgJBWsvJpb0LJSqkWfSFO0J7YLn/2vv0nG5Nse+tLTf6+ueBQt9wVsJUtGo3Fvq42AYcOv3whSG1FNPyZvJcWVDC+Xmg9krjpL8+EOIzlajPSWov0ZX+t5W3Ex3BeWjgWlQ35pm1/eYOf7S4nqQrQwH01P+cNL8YSgUhLWioJyXljJr5UL/GKZm68uJ0oLkcJSrLQQzc0GY4uRKDcbF5Z90qpbWnVIyxZx0SgrmyRlooTLzmi5eeNa0QxEEqUYsKHWv3gBjfeU8+krT92TKzOMxaKAqyKMArzOePmAs09R889bGfBgwE3E5wFFIxFbMfqJXXzokmgM2dNdYcTjmACtJwkv0lECOogxOStjdgEmb9EZ0CgHA24QwD3cU3iDYy8Z3C/89hdIm97v+L73Kzzq8lnTt5s2bEQ0o6CoaqU6XssgJK+Sz2BZD43jrUnvQdpzAP5Zwb5fMu0UTZslyxaJt5KcgYOcc6dkHdaM3ba201V1OspeUzOo60Z1w2bVsl9yHAHCJrQjDzXyaLoA9y77VsxInnlyJTXdgKjkWsv7qGHdtrVuWd+WV7rS7IYyeUvuOhOp92WyQ4lkT6jY5qs2BJpNsXpbqdyXS3eZq63pmeI8o7XI7c+udTjGTZ5jsOZvcQNZeb5o6KWp0XkKyrm9jnCEH2Drv+12yX2ceR22jmteMYUQC0zRu2QlVXN+AQAihsAwjR9GFHYfQDaBRndjvbBgggMGxw+2LaB7iNJFNagV8L+BrXRwAAY2ZmjRdVmodEVjq2kUYkUVN2zsa8DC/LzpEP+Ka/UxzdTT6llBWB3uJ3/5t0l717e9651fnX0GsFXT82sH3klsNQ7C5sE4+X/kpdY9Wnh2RxFlDyhndq2cZyS U57M83bw/QFbh4uxzkqiPxOoX3Hm2Nl1zeCWpn9LN7ytH93SDk7lrX1xbYuT7055U9OBzEqqyshUWTkiw8rKVRiZ2nKyPhsqXfOkr3mT04HoQijAy0Y07TTQ5LGcld/Y8xq6bjAtSYO3rRXM4qpb0fIJi4TioYf+zegb0PPfOaK9vjUv3FbkrYiwAK+Aqk8bFuCYnVLDb9E9h5PgA0DdU8mC6w+PB95ZBHpazRrdfLokDPutYk0Hrphpux7q9eV8dPEbHcfHxCw44XxA+IxxEaAf0FYNH6Dh/fTn/k+4j9//4z+gDVJkLWs3Y91NGrZj4ppV3/boOz5xhRSkWreivoPUOAcr6TsinNd9CHhacO4S999NslnTrr2cfati6DY1jYG8ti6ubYjqQ2mjo+m09KOWebduOyw7j3KOo6R9P2LZJEtY4bNS6mUimxIi+eN561ZK34/bd6qO/a59b6gfdPS9bV3tRUXolK/dFsn3xJIdoXyHr9pc02wBgZVJ94Rr6wsLxZmF4iKnM8vrTAtbXMe2ILghSnSE6YKikjf0EiS3BItTSAO3cShg+FrwxwRPyANs/bfbLrmOLmJr+FYVO6Mgl8Snn2ibjp0vWldtLMoXRTKCAwbLny4oCr7mpN8bP6g8BCecHC1YAgRvw/Safy220uwVdQtRMxQrZOhGBjS2chPqWQdnysmeDwmnw4Knbcv/ILk8bWWJwmpVWP/Tv/QJGJMf/OiHFlRcfT0A2KruwyCfxNaQZeC1Dj2mdTfwFN3Ip12PKvopSbPAK5eW4oXr3tx1b2kl0V1N95fiLWamOxspX/VmeKWBanCoHh4Dqmp7p9r+mXZwU9M/E1Z2rnuLN/zlxURnOdVdzfRWMo2lVH0h0ZyNNa/6itPhCjPbYCQyK1EfL+tVt0i7Q1M/YO77LEOfZeS1DP0UIewuYdEuawS0/ai4bME+YN/kpaNdjQsLj7gKv5anXou3Okm8FYD1ce0MUFeAM3Br4Np6DrNwW+nwLl2eh1kBmIOFnwf3k6lXGEBA/KWrtuga5cmG3li/gH+LVc74yYE+w8cbT/86bla34pN8+Kd+EO7jx3/ux4U2qa3qdYyitr2UeT8lA1em69W1PIKyXdpw2XbivsMMqR04BmwlK/6uw5SLlOHmffsFLwkUALbm7Zt1fburrG1IyruC8p6gsieujJSNvr7fM24BvJbthznHYcq2C4+xz7IRitwsET2qF6rxb9QTL8GwqjgPsiQJYads3WvpN2raYV/duCmJHPJ0GyLFtki2s6bY5qk2+eqtNfm2ULjNZnWmZlKzK+Ulfvc6tzEtbXPcW2uRoSBdFxZzymaW6sfNZJof89OxOzXG1rAB4XUUMD/A1n/T7ZLzKA3YGp7A1sgtotkKjyxyVezdQgDrXk8h77ifMBjVD0jKwFO81AAGDHBG8NdIK0AE2fN1ifGQwIAs5u7Q6tSGe2mwdGIQRtyQztAu4SS2jpfCiXS04b52TzhoMcvHuhXD5ks4PUy+E/a8lHbGwZ2yM+d8/IWI6Gnrwt/KngWAkKQMTAvvB39uPCZ/9uPSgF7X8MGX0g29hqEXuKpxMI5kkTorn3nda9rwGNa9hnW/fhhSdaPyVkpcynJT6Tl/dD6UYmcq3FyFlSnw8pX5cHLKHxdWh+rBsbJ/qu4De72j7t9R9e9ohi8KqofPu0pXfbXFxBBsKTlaSg0Wk92lVG8x3rzhz82Fs6xMfjUZXo47+QWPthfR94O6LunmYhmRyi5wbMcJTA5hyapsB1QdH5JWrE7GaWzSJq8GvjKJrePfhuCGmkZhuLOismUhJHraMP+4buYJ/eyThrmnDPNP6GYfVU19XTP9pG72WdMSirQiDk4iJv7rSQf/fgSn7z4ugt1LnnNKK+Cz2yQwVZeMkgIlzGlFeb2kaCCvVG3yslVVtSnqFnXXLm9Z5gJrV6yseZ9MWnQqa75lh+Rt7/u2S2+59O9/+ZNLBi4/rFRWra69pHPcM8YwCGo7vrWiSdFyO0isP+M9TPmBtJKa16TrIOU6hOOcd7/g3i24tsuOzYal39dUh/Lylri0KyjurZV3BEBgmyN5f6TZ6Gu3OtRO07xXM20VtYOUYZQJnLUjt4nOd+zFevRONXBa8JC4bcG+m3eS5Nmiab2lre2JwptsY4ejGXBVI456g61ZZyj7TDBp7xoz//h85DlO7rq4dllYuKIoMtwtbqzOzWT5xZisHaOGUfMwbOwHDWDjBsMUoa6kdGV8Vf0Au6Rl8tCj2/SdY+vLD7D1W7eReKv/NAu8dZyDBaS1HjglYtjg+2NWE6qaAi8A0/WANHlcu1nfEXGXtB2/pGzTdQPj3tRk5tT3gK346Zaukw0IaLUqXPuik6JoJoKeI2IrZtFOZl/Ste2TS96TAQdcs8LorXMvhUoIyHRoKBmPcL+4ZOWn9IK0Vpo3iEv6pyxzfy195rKDCYD7dc6zH/yxDwG2furXPk1lbbomKQ0wrvsJmI58xmFAP07MJrGtdd8YWL3jJdogfHF9J6ZpxNTVBDvqYSdDkkpGXkvLqklpLc3NxJZjCWljXTO4KWvflHduq0ffUA1elHdvK3p3eJX951yl64H6YnKwkOgDti4kh4vJPjPTZ6dbrESeGU9w01FW2rucsLKLLtUgahiFMQSJ9BAuLC+rw5oObka7EiUFHYyYnD9uZAusc7IjA76IB7jYha7JZCox0VWo2LhZaiWmnPbwrznZl63LTxhmH9Vef1R77RH1NQDWf1Sc7wFngcnCNLwYEqO2GX0q9HgwEw4rDlA34ELaMu3m37OArgtMFhDQT3W8ho7L2HboGzZN3aas2mRlq6RglRWskhzgrFZc0/DLqqWYiJXUSkseSz/t3iyIA4aH3kaSPX7hdz8jSZvFBZOibvMfZZzbcUXdqe2H1L3A2riJhvu+xgFETIDoA+QdOwXzqGQetIy9ka65papsK8p70sqepLotqm1z6yNOc8hvD4XdkbQ3kvX6yn5P2W+J6kVFu+LaH4XOmuGbtTBhKhX/cdF7WPCSdp9FMP9xyb/fdQ4ONYVtcXgk9G8IPbsiz4HYd8h1bAi9W0L/5oy+8owi/6Qk/ZQs+bw2c8OS5cSrklJN1shJmlFVP0aNIhcmSOA6kz6cdUTyBNYqFLei42W09nro+KXbRETgAbZ+SzaCrYGzXPSsOOatBFuDp2XUtYLbhtX61Lg/KzJQUckMMArAattKqpoeRd1F9cH1iJhGUdhTZKoMIQ4SJjL+KwRWGMbslBq7rdBNAZDe0jVUABCctAYzh+hkVXot+EJaKzVBexFbMUES/h2MEKTepNT19dg6XhsJknrTnt+7k7Bthp53rX5Vd+Mpy/JTqtk/e+Z/vPej7yWdQf/g1z2diKFDaLKu73kDbJ2AV9MGWZw1AuT1olQnIciCb+5XdxL6HsxPUV0voWzGgWuo+11qc1+/caxdP9Ft3ATTDIHDnnCLw6uezGy4vJJqraRbjHRnKdVeSbdZ2QYvWxMUiuJyDmBaXAlx8g5e2aHqw1gaJz+MzgWqlyNSQDfAuCd0M1ftTHDYAfWATmJsFBOnJg1eQQUs8KPhD+Hy0sGZ86jrIMTLGa46OI9pZp81Ly9HpatJxXJMuhgVzQZ5cyH+lJvznGXlGeMi/NPHtTOYjwU0FqZhXKrCEixUUEMCi6rhdFR3cmqc/PFepCgM84dxGDIPg9ZhwDYM2EfE/6W6EW0nom5HtZ2opumVNWzillHUNAjrJsNGyHNYNPUjypJ9Ws146G0PwX38zf/vDwMkbJpx7MR8B0kdkGvwtHpBVccvKBjhWaKBlcZW9zjqBf47SRjolZTNhrLZl9U2pJVtcWVXWAHGuiWobfJqQ159uNYYCRtDcaMnbnRkrY682RAWC4pGzb2/Eb3did1pggHCBk7KiK2AqkSB/qwSPOm5948sw0ND+5BqnFK1W9rybX3ljqp4rK2caCuH0uyWKLXNDnVXvNVlX2k1mGdFU8JcWlqLy9ohDVyKe6wCE4TpFUt6UFiGMAxDMyH+s86lq7ZVecy4/+LpeR/pV155oNXyZm8EW4M38/Fb5fhtJK0V4K3whAHAgZuMxaMAgnDz4OEjskODEKAqPCUAqQCswCz0PWBtQVI7jweD17nqdGYPLfJCs1QMDmBiI91tBQO4uL58IcnxQuiNlmelW79gxhguTIduljF5aDJB55wWjRtGGTpe727Csh686mI+Y2dcc3PnHPy/vPw/3/N977n0zkt/8pU/ie8UnJtJ225CN/RexNYhUlc/wis18uoGgCABUhnVjwiLNknVoRuTCP2ApMVIaw5mxiqoRIW1nKBaEtUb0mZHCkOx3ZO1uquZ3HQgzEhlWbkCO19k58vMbJmdr7AzeXYqyc/GJMWorBqWVX38gnWtZFZ0PNp79fgYBoE7BZAK0PYUNQ+ICXvM6gcMxVzU+7EVkBF+hSFUuEQXsBVcS05Gf8XOekK/8KxpecbHnw8JV+IydlbFyiiEZQq5MDOhhH8961vDrjZgMDXiciVmSmEIFW8KZqfSTXomwz60ui4dAiJpyOSCEzMP/eZ+QN8FMhvVtJOqdlbVyWn6Od0wq11PqdYjqlFAvR4w78acBylZzcKJS//iub9Clcjf+/IXnMNk4KTo3IN7HZBXLLKqXd0NyBpuYZFQbN9xnqRtTWLrmLfaDsrazZqsW5Y065JmT1QfCWsbgtoGv77ObYx4zYGoMZA0h5LWSNYayBo9ebOj6XTVrZa4mFdWy+6dIWJr9HYjeFqB8eI5yNMGP7oOqqa9AbU5otY3jev7VP9A1z7UdQ5VzR1Va1PRHCpqfX1ry9Da1DWH8nJDnCuI80lxMSwsucU1p4o88170BuiMjgszlrEXMI2CUwHu047F6w6WPGbae2GMra+8evfllx9g65u9XfKMsTVxuxK/TRKw/GSCzcG9AY4JIweGCriW4OvBj9jBBbwb4xAecR8npVvLGRFPJw0cE33fd14Dek/YFFOjEEBxmet80annwxoqREw6j4qWSqJjC0hIaWE6PEDYpTNykAvDP8L6SKy/fANs7QepXsC2Hg4eZsyj4BUn8wnz4jNmxmX14u/8999/+L0Pv+N9b//Tv/uivuDQAW9dD+nX/cb1C9gaugevgK0+sqI1cMFeP84oEJT04ppBT15xU0OnYeSW1U3crH6t6GTn3CspNzMbZOfCzEyQW4iCLcbcywmvoJIUVlPiekZUywiqWVEtv1ZKcJJeXtIlyDhFRYekbONkteycWlw1IWbhRYMDYIvgkgNozgeEcNcA7Ga8fHgRbh/2SbxgMGWiNiAcgGnabuMFbB2ERGUrI66a8QlueHjXXOzHqZnL1uXrbuZVN2M5LgZsRaI06UnApUbpCbzpGMNF2Qda9hdvIk6idAUtqhGSU2GGCVznoVc/dMGlMw49JtIqPET1YppuUt7IiKpZfjnLK2WE9ZyomRM0U6J2TDGIGneS9oOEqmmhOo7P/+OfEmR96NIf/c2fqYpOz0HWvh2lem55xaysuwBbpXWncKyKjf2J3ff6tt7D1oz9oKLfrquHNdWgpQJnvzeQdQbSbl/c7Yv6HXG/I++2VZ2uptfT9jrablvXaRn6LapTExcS4lzU0C44t3Pg3vmOzqMBkwbwCrzYtF+jdmvUdsu406c2B8bNddPWhmlr3bA10G92jOsd87BtHrTMg6Zt1HBsNlw7Nct6BtiMogEPPNz9cwF4GmFxunptfZL4N0FWXr2SkTGiMmPRe/TS7TG2Et766gMdrDd5I9gaulVMvlBLEOel7j8tu/YzKHWM+v8YxIQBjA3X4LfCvHkhILliZTHjagwIkDg6WUMnAXXizb2+Rav+nvAVVppjDQ8YJm/RrVgxE5N2bejcRnqtg04pv9BLGakunAFOiJVj8LFh2GDs9cIJycM3Cms7XusoFD7OBU9yipZjrWxejamfkc5/+nf+46V3XHrXB971h//zj2eNHF6aknfc1GYQsdVEmgASKVXyTRFbMWd7w0+tewwbHmrdpR85BWWtpGak+i7T0G0cuMwjj6ZpkVXM2k5Q1Q7LmmFFOyptBAUVr7geAGNmbLyiS9WLq7oxzSCp7iflrYSym1G0YqKCS5Szy0oOVd2latiFJR23oBJVKUn1vP8YXDr81rDnZrS4Fo859uNFmzeoGL6QIYdvuBBvNYzIorOy5REUDdKaXVA0PmmYe9q0+LR5/hHN1efty3D7sLfrhTpULJFCHTUsx0KhVexsNkmyMHcK58hJIdfzfICuXdO36vp2fd9J9TxUF0A8pmglRdU0p5hZzWaZ+SIrX2GkiyuZHLeck7azxp2CdSchyGp0Nftnv/jbmKT8xcf+WlN2+48Lrr2kceBV1qzKBsFWedMtKplhJoBvQbdrnYwJuA5L1r2qebtq2Wmat9vGzRa12dSDbdV1O1UwarNu2mxat1u2nZZtu2Hbqts3a5ZhUVYOCjNueTkgyJvFJau65YWnxbwes2+nnLsZ116W8Faw46LjpGQ9LFj3S7b9mnW3Zt2p2/aazqO267jtPmn5z7rBk07guO07bHj3K+69onsv59nPeA5S7r2obcOv77ox/EK7cbRo8nnUhYhJEq0WzYZX1XQEBpmTl++cx1tfefWVB1otb/JG9ARiL1YAW2O36uGbNd9Jyb2fhQcd6A91T5Qanzx4BF0HaedumpehnjOvXjYxuGn9vVWs8LmkXo8kDExqCOBAwoZLCNnY8wPDrDjeYI9rXMhf7l9H/ucN09QxVR4jGHT0YLJ2gEYZIMvwzDm3YpGTvO8gbd6MGNdj6rqX61F+8jf+A/iS7//e7/zb619bcouXokpF36ffIPx0AluD59g6Aa+mTR9gq3HLrRlYhBW9vO4wAmfv+81dn6Xn19UduobHPIxT3ai+l9D2w5qeXwU+3SCg7vkFZYuoYoVXdIMgNQrryEpLRNOL6LphWcWpqNhJIxkYKn23qm0TVHSiqkHVcqIHgDmhGG+hSTq64QiXdInaP2UTuQET1H4QNG3EAFvXCgZ1xyOuWoC0Tnk4V5yMr+unrrlX4d+Boz3Z1ZVWU6V7tGDrQDDwu/EZoFtto/YjztyY2owZAnSDXmnDJGtSyhbMEICGVmXdrW4G5c0EkHpuKcvKF1j52nKyuRhrMhJtTrYhrBTN2zXLVpoTV4uTpp/+7KcJbX3bW75y9RFTOwS81bETB96qqts0La+6Q3irlLS9eA1b36AF1n7Os5d37wOxLbr2Cs7dgmMvb9/P2g/SYI79vGO/6NwvOMd71z5hqfBgiMuWceK2k2gEV+yiogVMXnMCyALl1HUDMF6smwn7TtJ9kPIdpf3Hef9RwX9Y8O2XvHsF+Ke+w0LwhIRlx71Bq+M+IOXwTXgxGzrNhE7T4eNU+DjpPUihUD2uhWAQBsPcSEGoDgw9r2bo0ax7iJ7AZuHo5duv5Qk84K1v8kZ0sMK3S9GbpfBpBbVaAqclGF1LYclyRAoOI64jO3aTRGHgFJ6hDGDrk7qFxzVzyFtpxnpuw/PlCHQMcdxi+SPdkwozEGB8osYHPBNwDL/FVan/DWzF5iKTxQh4TKemT74ZccQ8CISOsrb1EHzHtbyZF6OeFcz9yKc+Do7kh3/sIzfkS+yQ6oZPLOm4dJPYOgzq6ZjA4DxnmxBA8h6vccuj7lsEJR2MJfMgahvFzN2QuRPUVl3amsfUj+o7YX0vpuv5qZFPC4Si59T0XNK6SdYwUyMv8F/zFjmVfj0ECA5wIyoaVTWbjei9ArZ6VW2HsGKQ1MxI9hFbMQxCYysY1l/g13xDbP2nsqDoS6TtEeoqb7h4OaOy5RKVzVccq1edzGctC08Ypmf8XPi/wFjTLxP1cezten/rQFRTA/YKMIruPzxCdFdB7BlBy/RgAyHAXOyTBpdFDdS1Y1W1rLKycS0L3NzMz7vZad9ywr8QD8/HUvORykKosxIeMGMdQbFi3qo79wr6ZlCV9f7Iz/0EYOtbvu2tjy0/79vO2zbjup7HCBewbtO2vbp+WFixKcY9Yul46wVg9R2mAoeJwGHSfwSWIpUFB0kv0XiNe4+iYO5zdcEk2R8mPccp70laN3DD3Ve0rJquExw40ygKIwIgVdlwy6oOgFpJ2QYGx6qGw9T32IZ+91Y0sJ+KHOejxwWw0GE2eJD27yY9eynvUdZ/kg/eyoduwyDNxm7nordykbNs5CQTOk4Hxwo1WDIOF410fux6YRDR3ZTVdWCybv2GX7fpp/q+0Ch3/MoDbP3WbQRbI3dKsVvlCKDqScW2k7JuxuGZw3RFLEKFsYpRf+9RzrmXhodjxiO4ZucAtuITA1ACBhM1PEMwY+MSE1Y3YlkB6oZg6g+8jpMtSl5hVQLyVuqeSuG/yoCHImrTSyL0askbnlADrwNajULho6x1GFqJyDhJatkt/5sbT3zPj3wvjMkf+sTHhD6NIGVcSmpkXVJ5NYmtFA1Sg/NJZRwYgUnFb9jwqXtWfkHHy5qkZYccrGDT1zyaslNTcZv6EV0HeH1IR+RfPURRcOSRNy2LkTVGQgJjUlShpHUj7AVlvbLrUjQdwrwe4MBKsJVAuaLpEpTN0oZDMo4sI7aCEZWT8dSCwU28sPgh6aDKP2/3XVVS5APYKiiaVW2PvOFgJOTLMSmgKpDWhYgQcJxMtydFWgmQFgNEAUC6sRUAKHBDnFARQCebttLNB2k5QewkFLpVitwZk7XTrGc3oW+5JUWLrALPiZeVdq/EXTMR341A/IY7P+OoLfurolLVsl137GUt/ag67/+hT/4U3Mfv+t4Pzau56Vsd+3ZCUbcZ+h6CrR2ffhjhF8yajpfWIbofW70EVeOBo7j/ngXQjqNovpOE5zjhPo4DyLoO43DsO01rBy5+USOuGeAmKpsuTdtPL/PicwI4S7JrGm5l3aEAz6NkUZWt2rqNgkHR9dqGQfdWzL+XCuxn/Qe5cRZ5DiDbe5z0HSeCpykgrZGzXPxmMXGzEjkro6ASDkz6K8DgpcbZI9IiuG5mccMsaVuUDXtgkHmArd/K7ZLvZiF6p5y4U43erLr386qWV1Qk6d9Y1YpyLTA+4YadhwX2M/CUAJ4KC2awtZyRnzWgwbEgb1rLnzdEQq8fIZU+5ma0WDAOp8WYIMy3dMRgUmb0mzfsiIXJDJNQQudpTcYoDGMdPOt2zHOQ8u8l9S2XtGgxD2KyjOPx1esf+IGPwJj8mc980lGPqGpeSdurGAXUIy+NrQbEVqzdBmDtR8Go3nhPGmQFVB07K6Oc8q5NufhTDv6sSyBMU6qKXV1zGMlH8lGk1sADBqQVWCoMwkc1Vx/XTV2xL19zMqbczKtOxnUPU1gxKppwkSlN3UEKbMA/6IVkdTevaJU1PJKKFWMCGPoA2ELdW/j6mJJM66JelBacSNOZtAuXCEircT0K2CoqWwFbiSToKKAf+hVtu7Cih8+MxcQYNYJHBTuYIaQik6XhFdAT3oPVcagBdKGNNiIyDc2oiBYnIYV27IVGClD7rGjp+/QwDfdDwP113YiKyOPG+cX0YigzY88u+jLict68ldN0HfykesEu/ujHSQHIxz7x4zybMnnWcu6mFA1grA5wAvRdv24QXitZ9IMgnSFwP7Z6YD9WZfWQPdHA9gJ6HiVp8x5nwMZNB0jfCucBMf3ATxq6DPyqjltUsogKFmnZDoSDjpjpugHEWcJn2wF1wwukRFq2SsoWQd4gKpqUdRfVC5hHUctG0rqZtu2knftp0nXpLOM/TQdOMkBXIyelyEk5fFbGuQor1DHMgiofCLWu7aSu5+VXKG5ZK6tagsPsA2z9Vm6kp0v4djFyWgidlhFbmQkVM6FYicrA2Ck1QB5Qv3viLACvaZh45XUnke7vBjCEhKZp+8aS/ufNPHDFCd1zXAvGlsuYPIS4gGsvdLx1Utn+mzcUwcMGXHS4ll7CpmOIFJ0PO27254VRsR2TFoyCjEFRdiqyzidXp97xvm+HMfmLv/kfQxt5WdkpbnkAW7UbfsRWojP0OmyNEGztxaluzNCL6XshoHuqtpOVVV/z8p6zM6/YmFMOtihLwZDWNK3m8ZKXadsP7AbOoB/4TBshYcnwiOrak9TsNSdzys2e9nKvu9nPWhfXShTwVrgsmqbHPIhQ3ZCuC0Ds4uRs0oZXUiVBSWwBjeIJ6BDA1wRshYkKi/rpEOo3g62vQ+FRWD8MSWsOYcmibLt0fb9xI2TcCKt7boBXRdsmq9sm8+SwsJUudDaNwrTeFcAuTJ+od479V5CZ0o1daRlWpK5jPtsI32zEX+hEbjeSd+rR04KhZdfUzKaexzIMEX3IbkDZD8g7CUGxyI1XRIW6Yb3hOslrBlZhTjlnW/vwj34fKa775E9xrPLoUc2+FVc27fKqST3GVnU3IKk5jethJK1ADz2HcIAIm6UPHEdgGdrcAFgEs+DNWAVQgD90HwIQpx37gIBZ137WMIjq+xH/GXydRvCsAicxjsLqtkdWs8uBqNZd6NsBn9W2Q+pWTNtJ6HoJLUmBiChbQVnDL654hCVwF5zCIjiOAUUtoO4EDKOQdScM7Nh9kPAdZvxHheBRyX9M8NR/Ou7beFYikuGnZfAk8JoHz4qBo7zvOGs/TFBbAU3L5e+nH2Drt3IjvQgDZ7nwST4wLh1Rt70smPmDosWQGGuxliNSQFgYftit2nmQkTQc3Dwlrtm0ZNkqqB8XvOp7/vEqVoDOyKHzchDvdGPPHbGVGqtsYOyVjpbS8db7F7XpWklaoADfiUs3cIyrN5MRQ2qiXwitokQGPyD+uOjLuZd07SUlJfNqWMEJq1RJ21evP3Hp7STh/Jf+6NeC+3lF1SltONXrAf1WUDsiTVLH5tOPACIBoMOk1UovrO6ENP2IdhjVDCPqYUjScrOyuhm/cNq7Nu8TLQTEvLROWraoWs5xk9eAcT2gGwARDqo6LmCCnKzmcf3Mk4a55+2MKQ/nhpcLe4BXUdkkH0sFqlukRnM8jQUkVYegZFU0PaJxbQVW+mNMALEV1VKw8JTOJ59MDDBMaC1eSDWfjEfDJKHrBaRVh7hs07S9VD84TtK6F10ZvpZQSTezwuUUNDqtlW46gJ8Tw9/YMRA5IxJeNDpQSwK4dwBbW5HbtfgLdWBq6oZN07Ab+z4zfDacQUdedTciLGT4qSo/WzVstq0HOWmD0tbMPI/igz9M/I9P/OIn1zzqyFndvJtQ9pySqlFetRr6YXHZyckaNES9N4Zm2oqYt6LEtolZtqKW7ci5bcUsm2Bx62aS2EYKzL6RcmymnTsp33HKdxZ1H4VdB0nHTsZAgumhyAvl2Esl/52U707CdyfuvR0Ds+wHtEMYCwFVMygu+gSJsDRclARLsmhFlapp0jVtrqbNw76iShfliawoluZH45yIl5u0CctmWduo3TCb9hy2Q6/zKOQ7S3mPs57jrPdmzn0r6znLB09L0eNq7KgWPauFbpf9dwrh29ngzbTrJOk4iLs3E7nd+tkrt165+427JLv1pZfuvvQqqSJ4sL1Z26XAbYKt0ZulwFHRtZcTlazTHpIaCcPVsZtEfXjs8IqK7gArz7nYjxnmp/xrvKJB1fPqX49ohtHraJHhXu0jYqtgXGg= 8.2 Conclusie watertoets
Op basis van de watertoets kan geoordeeld worden dat dit RUP geen aanzienlijke negatieve effecten mbt water tot gevolg zal hebben.
9 BIJLAGE 5 : GOEDKEURINGSVERSLAG PLAN-MER
zie link
10 BIJLAGE 6: EVALUATIE WIJZIGINGEN MBT HOOGBOUW TAV HET PLAN-MER
Evaluatienota
1 Inleiding
1.1 Aanleiding en kader In functie van het RUP Pelikaanstraat werd een plan-MER (PL0249) opgemaakt volgens de generieke procedure en goedgekeurd door Team Mer op 4 juli 2019.
In dit plan-MER werden met betrekking tot hoogbouw specifieke locaties onderzocht. In de Kennisgeving werd destijds aangegeven dat er 2 scenario’s met betrekking tot hoogbouw zouden worden onderzocht. Op basis van voortschrijdend inzicht bleken er slechts enkele locaties te zijn waar hoogbouw wenselijk is, waaronder 2 bouwvolumes in het binnengebied met een maximale hoogte van 100 m. Bij de verdere uitwerking van het plan-MER werden daarom geen verschillende scenario’s met betrekking hoogbouw besproken.
Figuur 1-1: Figuur mbt densiteit en hoogbouw zoals opgenomen in het plan-MERmet aanduiding locatie hoogbouw (cirkel met ster)
Nieuw voortschrijdend inzicht vanuit het ontwerpend onderzoek met betrekking tot de locatiegeschiktheid van de 2 hoogbouwvolumes in het binnengebied en de beeldkwaliteit (Beeldkwaliteitsplan Architectuur), resulteert nu in een verplaatsing van één van beide hoogbouwvolumes, ten opzichte van de configuratie zoals onderzocht in het plan-MER. Onderstaande figuur geeft de gewijzigde ligging van de hoogbouwvolumes weer, waarbij het oostelijk volume beperkt naar zuidwaarts werd verplaatst.
Figuur 1-2: Gewijzigde ligging hoogbouwvolumes tov beoordeling in plan-MER: groen = ongewijzigd ; rood = verplaatst hoogbouwvolume
In voorliggende nota wordt nagegaan of de wijziging aan het plan op basis van voortschrijdend inzicht, aanleiding kan geven tot een gewijzigde beoordeling en bijgevolg een impact kan hebben op de geldigheid van het plan-MER ten aanzien van het RUP.
1.2 Regelgeving
Het richtlijnenboek milieueffectenrapportage ‘Algemene methodologische en procedurele aspecten’ (Oktober 2015) 1 opgemaakt door Team Mer, wijdt een hoofdstuk aan voortschrijdend inzicht en geldigheid mbt MER’s.
‘Voortschrijdend inzicht’ is het fenomeen waarbij in de loop van of na afloop van een m.e.r.-proces de informatie en inzichten met betrekking tot een plan of project, zijn effecten of zijn ’omgeving’ (in de brede zin van het woord161) evolueren, met als gevolg dat het plan of project en/of zijn effecten op het milieu (of het inzicht in deze effecten) gewijzigd zijn tegenover de situatie bij de start van het m.e.r.-proces. Dit kan aanleiding geven tot een gewijzigde beoordeling en dus tot een wijziging in de manier waarop de m.e.r. doorwerkt in de verdere besluitvorming.
In dit geval gaat het om voortschrijdend inzicht na de definitieve goedkeuring van het MER, en dit heeft volgende consequenties:
Een MER of een ontheffingsnota of plan-m.e.r.-screeningsnota en de bijhorende goedkeurings-beslissing kunnen, eens definitief, niet meer worden herzien. Zodra de dienst Mer een beslissing neemt over een MER, een aanvraag tot ontheffing of plan-m.e.r.- screening, is die beslissing definitief. Indien een plan of project dus nog zou wijzigen nadat reeds een vorm van m.e.r. is uitgevoerd en afgerond door een goedkeuring van de dienst Mer, dan is juridisch gezien geen ‘aanpassingsprocedure’ mogelijk.
Strikt genomen bestaat de enige mogelijkheid er dan in de m.e.r.-procedure over te doen. Echter is het niet de bedoeling om voor elke kleine wijziging telkens een nieuwe m.e.r.-procedure op te starten. Specifiek voor RUP’s wordt immers opgemerkt dat vele RUP’s na de plenaire vergadering en het openbaar onderzoek nog aangepast worden. Hierbij kan het niet de bedoeling van de regelgeving zijn dat in zulke gevallen steeds een nieuwe m.e.r.-procedure moet doorlopen worden. Dit is zeker het geval wanneer de kleine wijziging bijvoorbeeld geen nieuw ‘effectgebied’ veroorzaakt (waardoor belanghebbenden geen inspraak zouden kunnen gegeven hebben tijdens de terinzagelegging) of wanneer het geen essentiële wijziging van het plan of project betreft (waardoorbepaalde aanzienlijke effecten niet beschreven, beoordeeld en eventueel gemilderd waren). In dat geval is er weinig reden om de procedure opnieuw te doorlopen.
Hoger beschreven wijziging kan beschouwd worden als een kleine, niet essentiële wijziging aan het plan. In voorliggende nota wordt nagegaan of het plan-MER nog volstaat, en of de eventueel gewijzigde milieueffecten die zullen optreden ten gevolge van de kleine wijziging nog in lijn zijn met wat er in het plan-MER staat beschreven, geen bijkomende (aanzienlijk) negatieve effecten veroorzaken en geen bijkomende milderende maatregelen vereisen.
2 Toetsing milieueffecten planwijziging
In wat volgt wordt per discipline, zoals opgenomen in het goedgekeurde plan-MER, nagegaan wat de effecten zijn van de planwijziging en of deze effecten in lijn zijn met wat er in het plan-MER staat beschreven.
2.1 Discipline mens-mobiliteit
De planwijziging heeft geen impact op de effecten zoals beschreven in het plan-MER. De totale vloeroppervlakte en de toegelaten functies, die de verkeersgeneratie bepalen, blijven ongewijzigd.
2.2 Discipline geluid en trillingen
De planwijziging heeft geen impact op de effecten zoals beschreven in het plan-MER. De effecten van het verkeer voor de geplande situatie werden immers berekend zoals voor de referentiesituatie en dit met de huidige gebouwen configuratie. Het invallend geluid voor de 1ste lijnsbebouwing is immers hetzelfde. Hogere gebouwen of woontorens zullen voor een betere afscherming zorgen naar de woningen/appartementen die er achter liggen. Technische installaties van eventuele kantoren, hotels en appartementen werden ook niet gemodelleerd in het plan-MER, gezien er nog geen gegevens over gekend waren.
2.3 Discipline lucht De planwijziging heeft geen impact op de effecten zoals beschreven in het plan-MER. De modelleringen houden enkel rekening met de kortste afstand van de weg tot de 1ste lijnsbebouwing. Gezien het hoogbouwvolume in het binnengebied gelegen is, heeft dit hier geen impact op.
2.4 Discipline bodem De planwijziging heeft geen impact op de effecten zoals beschreven in het plan-MER.
2.5 Discipline water De planwijziging heeft geen impact op de effecten zoals beschreven in het plan-MER.
2.6 Discipline landschap, bouwkundig erfgoed en archeologie Wat betreft het effect op de aanwezige erfgoedwaarden langs de Pelikaanstraat en omgeving wordt in het plan-MER aangegeven dat de impact van de hoogteaccenten die meer centraal in het plangebied voorzien worden en waarvan de hoogte tot 100 m zou kunnen reiken, op het erfgoed minder direct is daar deze hoogteaccenten niet langs de straatzijde voorzien zijn, en dus vanuit de erfgoedwaarden of vanaf de straatzijde vanwaar de erfgoedwaarden beleefd worden, eerder beperkt zichtbaar zijn of op de achtergrond aanwezig zijn. Het beperkt verschuiven van de oostelijke toren in zuidelijke richting zal deze conclusie niet wijzigen. De toren blijft immers in het binnengebied. Door het zuidwaarts te verschuiven komt hij overigens verder te liggen van de erfgoedwaarden (vastgestelde en beschermde bouwkundige relicten) langs de Pelikaanstraat. Met betrekking tot de wijziging van perceptieve kenmerken wordt in het plan-MER gesteld dat de hoge bouwvolumes tot 100 m tot een schaalbreuk zouden kunnen leiden met de omliggende bebouwing. Door de ligging centraal in het gebied waarbij in de rand ook reeds vrij hoge bebouwing aanwezig is, wordt vanaf de omliggende straten visueel evenwel een overgang gecreëerd (“piramide” vorm), waardoor de schaalbreuk visueel wordt ingeperkt (zie onderstaande figuur).
Figuur 2-1 Straatgevel Pelikaanstraat geplande toestand met 2 hoogteaccenten in binnengebied van 100 m, zoals opgenomen in het plan-MER.
Het beperkt zuidwaarts verschuiven van het oostelijk hoogbouwvolume zal niet leiden tot een wijziging van bovenstaande conclusies. Het straatbeeld zoals op bovenstaande figuur blijft grotendeels hetzelfde: de 2 hoogbouwvolumes blijven vanaf de Pelikaanstraat visueel ongeveer in één lijn liggen tov elkaar (zie ook onderstaande figuur), de visuele overgang blijft ook behouden.
Figuur 2-2 Straatgevel Pelikaanstraat gewijzigde geplande toestand
Verder wordt mbt de hoogbouwvolumes in het binnengebied nog volgende meegegeven in het plan-MER: Ten aanzien van de direct aangrenzende bouwvolumes in het binnengebied zal het contrast wel groter zijn. Gezien de maximale vloeroppervlakte vastgelegd is, zal het bouwen van een hoger volume bovendien voor een verlaging van rondom liggende bebouwing zorgen. Bij het globale inrichtingsplan voor de zuidelijke zone is de inpassing van deze hoogteaccenten met de nodige aandacht voor schaduw en bezonning en ruimtelijke kwaliteit een belangrijk aandachtspunt. Deze conclusie blijft ook voor de gewijzigde toestand van toepassing.
2.7 Discipline mens – ruimtelijke aspecten, incl. gezondheid Met betrekking tot wijziging ruimtelijke structuur en samenhang wordt in het plan-MER volgende gesteld. De hoogteaccenten die meer centraal in het plangebied voorzien worden en waarvan de hoogte tot 100 m zou kunnen reiken, kunnen mogelijk wel voor een schaalbreuk zorgen met de omliggende bebouwing. Door de ligging centraal in het gebied wordt vanaf de omliggende straten visueel wel een overgang gecreëerd (“piramide” vorm), waardoor de schaalbreuk visueel wordt ingeperkt.
Wat betreft de impact van een verschuiven van het oostelijk hoogbouwvolume geldt dezelfde redenering zoals hoger aangegeven bij discipline landschap, bouwkundig erfgoed en archeologie.
Verder wordt in het plan-MER aangegeven dat ten aanzien van de direct aangrenzende bouwvolumes in het binnengebied het contrast groter is. Gezien de maximale vloeroppervlakte vastgelegd is, zal het bouwen van een hoger volume bovendien voor een verlaging van rondom liggende bebouwing zorgen. Bij het bepalen van de hoogtes zal het voornamelijk belangrijk zijn rekening te houden met schaduwwerking en zichtbaarheid vanuit de bestaande en nieuwe bouwvolumes.
Mogelijke schaduwhinder werd verder bekeken binnen de effectgroep ruimtelijke kwaliteit. Aan de hand van een simulatie van een 3D-model (SketchUp) van de referentiesituatie (feitelijk situatie) en de geplande situatie voor de volgende meetmomenten: 21 maart (vergelijkbaar met 21 september) en 21 juni (waarbij de situatie op 21 maart maatgevend is), werd een schaduwanalyse uitgevoerd (zie Figuur 2-3). Ten aanzien van de omliggende bebouwing zal voornamelijk de beschaduwing van de hoogbouw domineren. Conform de hoogbouwnota is het belangrijk dat er geen ongewenste beschaduwing optreedt voor een ononderbroken periode van 2 uur of meer. Onderstaande figuren geven een 3D beeld van de beschaduwing op 21 maart voor de bestaande en de geplande toestand.
Figuur 2-3 3D beeld schaduwanalyse bestaande toestand (links) en geplande toestand (rechts) op 21/3, zoals opgenomen in het plan-MER
De conclusies uit het plan-MER zijn: Uit de figuren blijkt voor de geplande toestand duidelijk de beschaduwing op de gevels van de bebouwing rondom de hoogbouwtorens in het binnengebied. De direct omliggende bebouwing (noord, noordwest en noordoost) binnen het plangebied ondervindt hierbij (op maatgevende periode 21/3) veelal meer dan 2u schaduw. Hier dient genuanceerd te worden dat bij deze schaduwanalyse voor de geplande toestand is uitgegaan van een “worst-case” situatie (bouwblokken en hoogbouw met maximale bouwhoogtes (en gemiddelde bouwhoogte van 34m). De effectieve beschaduwing van het plan en voornamelijk de hoogbouw zal meer in detail moeten bekeken worden op projectniveau. Hierbij kan als maatregel worden opgenomen dat binnen het plangebied geen residentiële functies voorzien worden in de zone waar beschaduwing optreedt over een ononderbroken periode van 2 uur of meer. Behalve de beschaduwing binnen het plangebied zelf kan de bebouwing, en dan voornamelijk de hoogbouw, een impact hebben op de bestaande omliggende bebouwing rondom het plangebied. Om dit na te gaan werd een verschilkaart gemaakt van de beschaduwing van de bestaande toestand ten opzichte van de beschaduwing in de geplande toestand. Onderstaande figuur geeft het resultaat van deze analyse, waarbij het aantal bijkomende uren schaduw van het plan wordt weergegeven.
Figuur 2-4 Verschilkaart schaduw bestaande toestand – geplande toestand op 21/3, zoals opgenomen in het plan-MER.
Met betrekking tot de impact van de hoogbouwvolumes wordt het volgende geconcludeerd in het plan-MER: Naar de omgeving toe blijkt dat de bijkomende schaduw ter hoogte van het plan met hoogbouw redelijk beperkt. Dit is veelal niet meer dan 2u bijkomende schaduw. De impact van de hoogteaccenten is voornamelijk zichtbaar ter hoogte van de Pelikaanstraat ten oosten van het plangebied. Hier kan de bijkomende beschaduwing wel oplopen tot meer dan 2u. Gezien het hier gaat om het overdekte stationsgebouw is deze schaduw niet als hinderlijk te beschouwen.
Het beperkt zuidelijk verplaatsen van het oostelijk hoogbouwvolume in het binnengebied zal niet leiden tot belangrijke wijzigingen aan bovenstaande schaduwanalyse. Zoals aangegeven is de impact van de hoogteaccenten is voornamelijk zichtbaar ter hoogte van het overdekte stationsgebouw ten oosten van het plangebied. Aangezien ten zuiden van het overdekte stationsgebouw zich de spoorlijnen situeren, zal het eventueel zuidelijk verschuiven van de schaduwhinder tgv het oostelijk hoogbouwvolume, geen belangrijke bijkomende schaduwhinder genereren. Wat betreft de impact van de beschaduwing van de bebouwing op de hoven kan onderstaande conclusie uit het plan-MER behouden blijven: Uit de schaduwstudie blijkt dat in de huidige situatie, ter hoogte van de binnenruimtes in het noordelijk deel van het plangebied op vandaag al veel schaduw is (≥10u/dag op 21 maart). In de geplande situatie zal dit ook het geval zijn voor de hoven ter hoogte van de Pelikaansite. Op 21 juni is de beschaduwing van de hoven beperkter, maar toch nog grotendeels meer dan 4 à 5 uur (en meer) schaduw per dag. In functie van kwalitatieve buitenruimte is voldoende bezonning binnen de (openbare) hoven wel belangrijk. Zoals hoger aangegeven, zal door de variatie in hoogte de schaduwhinder binnen de hoven verminderen. Gezien dit op planniveau nog niet concreet is uitgewerkt, zal bij de uitvoering van een concreet project (voornamelijk de Pelikaansite) het belangrijk zijn om na te gaan of het ontwerp voldoende zonlicht, alsook daglicht biedt binnen de hoven. Hiertoe kan de hoogbouwnota als leidraad gebruikt worden. De uitwerking hiervan wordt best in zijn geheel bekeken binnen de op te maken inrichtingsstudie voor de Pelikaansite. Behalve schaduwhinder ten gevolge van hoogbouw speelt ook het aspect van mogelijke windhinder mbt hoogbouwvolume. Hierover wordt het volgende aangegeven in het plan-MER: Gezien de intekening en effectieve uitvoering van de bouwvolumes nog niet vastligt, en het in beeld brengen van de mogelijke effecten van windhinder de specifieke locatie, configuratie en hoogte van belang is, dient de windstudie te gebeuren op projectniveau, bij voorkeur bij de opmaak van een inrichtingsstudie voor het geheel. Deze conclusie blijft ook voor de gewijzigde toestand van toepassing. Met betrekking tot visuele hinder wordt in het plan-MER verwezen naar de effectgroep ruimtelijke structuur en samenhang. Hier werd reeds geconcludeerd dat de impact van een verschuiven van het oostelijk hoogbouwvolume niet leidt tot een wijziging in milieubeoordeling. De aandachtspunten zoals aangegeven in het plan-MER blijven ook hier van toepassing. Een kwalitatieve uitwerking van het ontwerp en architectuur zal daarom cruciaal zijn. Hierbij dient extra aandacht uit te gaan naar de privacy ten aanzien van bestaande of nieuwe wooneenheden. De nodige maatregelen dienen hierbij te worden getroffen om inkijk naar deze woningen te voorkomen. Ook bij de inrichting van de (openbare) hoven is privacy naar de omliggende woonfuncties een aandachtpunt.
2.8 Conclusie Uit bovenstaande analyse blijkt dat de planwijziging ten opzichte van het plan zoals bestudeerd in het plan-MER, zijnde de verplaatsing in zuidelijke richting van het oostelijk hoogbouwvolume in het binnengebied van RUP Pelikaanstraat, geen bijkomende (aanzienlijk) negatieve effecten zal veroorzaken, dat de milieueffecten in lijn liggen met wat er in het plan-MER staat beschreven en dat er geen bijkomende milderende maatregelen noodzakelijk zijn.
11 BIJLAGE 7 : BESLUIT RVR-TOETS
zie link
voetnoten 1 Decreet betreffende het integraal waterbeleid, en latere wijzigingen (B.S.14/11/2003) 2 Besluit van de Vlaamse Regering tot vaststelling van nadere regels voor de toepassing van de watertoets, tot aanwijzing van de adviesinstantie en tot vaststelling van nadere regels voor de adviesprocedure bij de watertoets, vermeld in artikel 8 van het decreet van 18 juli 2003 betreffende het integraal waterbeleid, en latere wijzigingen (B.S.31/10/2006) | ||||||||||||||||||||||||||||||||||||||||||||||||||||||||||||||||||||||||||||||||||||||||||||||||||||||||||||||||||||||||||||||||||||||||||||||||||||||

![i_RUP_11002_214_10025_00001_200067.jpg [image]](i_RUP_11002_214_10025_00001_200067.jpg)
![i_RUP_11002_214_10025_00001_200068.png [image]](i_RUP_11002_214_10025_00001_200068.png)
![i_RUP_11002_214_10025_00001_200069.png [image]](i_RUP_11002_214_10025_00001_200069.png)
![i_RUP_11002_214_10025_00001_200070.png [image]](i_RUP_11002_214_10025_00001_200070.png)
![i_RUP_11002_214_10025_00001_200071.png [image]](i_RUP_11002_214_10025_00001_200071.png)
![i_RUP_11002_214_10025_00001_200072.png [image]](i_RUP_11002_214_10025_00001_200072.png)
![i_RUP_11002_214_10025_00001_200073.png [image]](i_RUP_11002_214_10025_00001_200073.png)
![i_RUP_11002_214_10025_00001_200074.png [image]](i_RUP_11002_214_10025_00001_200074.png)
![i_RUP_11002_214_10025_00001_200075.png [image]](i_RUP_11002_214_10025_00001_200075.png)
![i_RUP_11002_214_10025_00001_200076.png [image]](i_RUP_11002_214_10025_00001_200076.png)
![i_RUP_11002_214_10025_00001_200077.png [image]](i_RUP_11002_214_10025_00001_200077.png)
![i_RUP_11002_214_10025_00001_200078.png [image]](i_RUP_11002_214_10025_00001_200078.png)
![i_RUP_11002_214_10025_00001_200079.png [image]](i_RUP_11002_214_10025_00001_200079.png)
![i_RUP_11002_214_10025_00001_200080.png [image]](i_RUP_11002_214_10025_00001_200080.png)
![i_RUP_11002_214_10025_00001_200081.png [image]](i_RUP_11002_214_10025_00001_200081.png)
![i_RUP_11002_214_10025_00001_200082.png [image]](i_RUP_11002_214_10025_00001_200082.png)
![i_RUP_11002_214_10025_00001_200083.png [image]](i_RUP_11002_214_10025_00001_200083.png)
![i_RUP_11002_214_10025_00001_200084.png [image]](i_RUP_11002_214_10025_00001_200084.png)
![i_RUP_11002_214_10025_00001_200085.png [image]](i_RUP_11002_214_10025_00001_200085.png)
![i_RUP_11002_214_10025_00001_200086.png [image]](i_RUP_11002_214_10025_00001_200086.png)
![i_RUP_11002_214_10025_00001_200087.png [image]](i_RUP_11002_214_10025_00001_200087.png)
![i_RUP_11002_214_10025_00001_200088.png [image]](i_RUP_11002_214_10025_00001_200088.png)
![i_RUP_11002_214_10025_00001_200089.png [image]](i_RUP_11002_214_10025_00001_200089.png)
![i_RUP_11002_214_10025_00001_200090.png [image]](i_RUP_11002_214_10025_00001_200090.png)
![i_RUP_11002_214_10025_00001_200091.png [image]](i_RUP_11002_214_10025_00001_200091.png)
![i_RUP_11002_214_10025_00001_200092.png [image]](i_RUP_11002_214_10025_00001_200092.png)
![i_RUP_11002_214_10025_00001_200093.png [image]](i_RUP_11002_214_10025_00001_200093.png)
![i_RUP_11002_214_10025_00001_200094.png [image]](i_RUP_11002_214_10025_00001_200094.png)
![i_RUP_11002_214_10025_00001_200095.png [image]](i_RUP_11002_214_10025_00001_200095.png)
![i_RUP_11002_214_10025_00001_200096.png [image]](i_RUP_11002_214_10025_00001_200096.png)
![i_RUP_11002_214_10025_00001_200097.png [image]](i_RUP_11002_214_10025_00001_200097.png)
![i_RUP_11002_214_10025_00001_200098.png [image]](i_RUP_11002_214_10025_00001_200098.png)
![i_RUP_11002_214_10025_00001_200099.png [image]](i_RUP_11002_214_10025_00001_200099.png)
![i_RUP_11002_214_10025_00001_200100.png [image]](i_RUP_11002_214_10025_00001_200100.png)
![i_RUP_11002_214_10025_00001_200101.png [image]](i_RUP_11002_214_10025_00001_200101.png)
![i_RUP_11002_214_10025_00001_200102.png [image]](i_RUP_11002_214_10025_00001_200102.png)
![i_RUP_11002_214_10025_00001_200103.png [image]](i_RUP_11002_214_10025_00001_200103.png)
![i_RUP_11002_214_10025_00001_200104.png [image]](i_RUP_11002_214_10025_00001_200104.png)
![i_RUP_11002_214_10025_00001_200105.png [image]](i_RUP_11002_214_10025_00001_200105.png)
![i_RUP_11002_214_10025_00001_200106.png [image]](i_RUP_11002_214_10025_00001_200106.png)
![i_RUP_11002_214_10025_00001_200107.png [image]](i_RUP_11002_214_10025_00001_200107.png)
![i_RUP_11002_214_10025_00001_200108.png [image]](i_RUP_11002_214_10025_00001_200108.png)
![i_RUP_11002_214_10025_00001_200109.png [image]](i_RUP_11002_214_10025_00001_200109.png)
![i_RUP_11002_214_10025_00001_200110.png [image]](i_RUP_11002_214_10025_00001_200110.png)
![i_RUP_11002_214_10025_00001_200111.png [image]](i_RUP_11002_214_10025_00001_200111.png)
![i_RUP_11002_214_10025_00001_200112.png [image]](i_RUP_11002_214_10025_00001_200112.png)
![i_RUP_11002_214_10025_00001_200113.png [image]](i_RUP_11002_214_10025_00001_200113.png)
![i_RUP_11002_214_10025_00001_200114.png [image]](i_RUP_11002_214_10025_00001_200114.png)
![i_RUP_11002_214_10025_00001_200115.png [image]](i_RUP_11002_214_10025_00001_200115.png)
![i_RUP_11002_214_10025_00001_200116.png [image]](i_RUP_11002_214_10025_00001_200116.png)
![i_RUP_11002_214_10025_00001_200117.png [image]](i_RUP_11002_214_10025_00001_200117.png)
![i_RUP_11002_214_10025_00001_200118.png [image]](i_RUP_11002_214_10025_00001_200118.png)
![i_RUP_11002_214_10025_00001_200119.png [image]](i_RUP_11002_214_10025_00001_200119.png)
![i_RUP_11002_214_10025_00001_200120.png [image]](i_RUP_11002_214_10025_00001_200120.png)
![i_RUP_11002_214_10025_00001_200121.png [image]](i_RUP_11002_214_10025_00001_200121.png)
![i_RUP_11002_214_10025_00001_200122.png [image]](i_RUP_11002_214_10025_00001_200122.png)
![i_RUP_11002_214_10025_00001_200123.png [image]](i_RUP_11002_214_10025_00001_200123.png)
![i_RUP_11002_214_10025_00001_200124.png [image]](i_RUP_11002_214_10025_00001_200124.png)
![i_RUP_11002_214_10025_00001_200125.png [image]](i_RUP_11002_214_10025_00001_200125.png)
![i_RUP_11002_214_10025_00001_200126.png [image]](i_RUP_11002_214_10025_00001_200126.png)
![i_RUP_11002_214_10025_00001_200127.png [image]](i_RUP_11002_214_10025_00001_200127.png)
![i_RUP_11002_214_10025_00001_200128.png [image]](i_RUP_11002_214_10025_00001_200128.png)
![i_RUP_11002_214_10025_00001_200129.png [image]](i_RUP_11002_214_10025_00001_200129.png)
![i_RUP_11002_214_10025_00001_200130.png [image]](i_RUP_11002_214_10025_00001_200130.png)
![i_RUP_11002_214_10025_00001_200131.png [image]](i_RUP_11002_214_10025_00001_200131.png)
![i_RUP_11002_214_10025_00001_200132.png [image]](i_RUP_11002_214_10025_00001_200132.png)
![i_RUP_11002_214_10025_00001_200133.png [image]](i_RUP_11002_214_10025_00001_200133.png)
