BIJLAGE C: BELEIDSKADER

 

C.1 Relatie met de bovenlokale structuurplannen

 

C.1.1 Ruimtelijk Structuurplan Vlaanderen

 

Goedgekeurd bij besluit door de Vlaamse Regering d.d. 23/09/1997 en later gewijzigd.

 

Volgende selecties zijn van toepassing:

  • Grootstedelijk gebied Antwerpen

De bestaande ruimtelijke structuur van Vlaanderen, in het bijzonder van de stedelijke structuur, en de ruimtelijke principes voor de gewenste ruimtelijke structuur vormen de basis voor het toekomstig stedelijk beleid. Vanuit deze beleidsmatige benadering kan het principe van de gedeconcentreerde bundeling worden waargemaakt en de druk op het buitengebied worden verminderd. In het Ruimtelijk Structuurplan Vlaanderen wordt Antwerpen aangeduid als grootstedelijk gebied gelegen in de Vlaamse Ruit (stedelijk netwerk van internationaal niveau).

  • Economisch knooppunt

Ieder stedelijk gebied wordt beschouwd als een economisch knooppunt. De stedelijke gebieden zijn van doorslaggevend belang voor de economische structuur van Vlaanderen.

  • Hoofdwegen

R1 van A1 (Ekeren) tot A14 (Linkeroever) wordt als hoofdweg geselecteerd.
Tot de hoofdwegen behoren onder meer hoofdtransportassen en achterlandverbindingen, waarvan sommigen onderdeel zijn van “Trans-European Networks (TEN)”, het Europese netwerk van transportassen. Onder meer de Ring rond Antwerpen is onderdeel van het TEN.

  • Primaire wegen II

De hoofdfunctie van de primaire wegen II is het verzamelen naar het hoofdwegennet en primaire wegen I. R10 (Singel) van een te verbeteren verbinding met N180 (Noorderlaan) en N101 (Scheldelaan) tot een te verbeteren aansluiting op N113 (Amerikalei) wordt als een primaire weg II geselecteerd.

  • Hoofdspoorwegennet voor personenvervoer

De Lijn Antwerpen-Gent-Kortrijk-Rijsel behoort tot het net van de (inter)nationale verbindingen en de verbindingen van Vlaams niveau.

  • Hoofdwaterwegennet

Naast zijn (inter)nationale verbindende functie ontsluit het hoofdwaterwegennet de belangrijkste economische knooppunten zoals de zeehaven van Antwerpen. Het hoofdwaterwegennet voldoet grotendeels aan de in Europees verband beschreven minimumklasse IV. Het bestaat uit onder meer de volgende waterwegen: het Albertkanaal, de Schelde-Rijnverbinding en de dokken te Antwerpen en de Zeeschelde en de Bovenschelde.

C.1.2 Beleidsplan Ruimte Vlaanderen (BRV)

 

De opmaak van het Beleidsplan Ruimte Vlaanderen verloopt in drie stappen: Groenboek, Witboek en (Ontwerp) Beleidsplan. De Vlaamse Regering keurde het groenboek BRV goed op 4 mei 2012. Het Witboek BRV werd op 30 november 2016 goedgekeurd.

 

De Vlaamse Regering heeft de ambitie om het Beleidsplan Ruimte Vlaanderen (BRV) te realiseren als opvolger van het RSV. Het Witboek, de tweede mijlpaal na het Groenboek, formuleert doelstellingen, ruimtelijke ontwikkelingsprincipes en activiteiten die de basis zullen vormen de ruimte van Vlaanderen te transformeren.

 

Een van de grote inhoudelijke krachtlijnen van het Beleidsplan Ruimte Vlaanderen is het bestaande ruimtebeslag beter en intensiever te gebruiken om zo de druk op de open ruimte te verminderen. Gezien er in het plan hoogbouw wordt voorzien en een sterke verdichting wordt nagestreefd, op een goede locatie, wordt aan deze ambitie tegemoet gekomen.

 

C.1.3 Ruimtelijk Structuurplan Provincie Antwerpen

Goedgekeurd bij ministerieel besluit d.d. 10/07/2001 en later gewijzigd.

 

In het kader van RSPA behoort het plangebied tot de hoofdruimte ‘Antwerpse fragmenten’. Dit is het deel van de Vlaamse ruit dat op grondgebied van de provincie Antwerpen gelegen is. Karakteristiek voor de hoofdruimte is de sterke verwevenheid van functies en activiteiten en de ambitie om te streven naar een stedelijke vernieuwing. De hoofdruimte ‘Antwerpse fragmenten’ wordt nog verder uitgewerkt in zeven deelruimten.

 

Het plangebied is gelegen in de deelruimte ‘Grootstedelijk Gebied Antwerpen’. Deze deelruimte behoudt een centrale rol en biedt ruimte aan de meest hoogwaardige functies. Dat geldt voor wonen, bedrijvigheid, dienstverlening, grootschalige voorzieningen, (bv cultuur, gezondheidszorg, recreatie,..), distributie of verkeer. Een dergelijke concentratie van functies mag niet worden verzwakt door nieuwe polen van dit niveau te creëren. In deze deelruimte wordt het zwaartepunt gelegd op de ruimtelijk-economische structuur van de provincie.

 

 

 

 

C.2 Relatie met het Strategisch Ruimtelijk Structuurplan Antwerpen (s-RSA)

Het s-RSA werd goedgekeurd door de deputatie van de provincie Antwerpen op 21 december 2006. Voor het s-RSA is in 2013 het initiatief genomen om een evaluatie en actualisatie door te voeren. Het evaluatierapport werd op 19 december 2014 goedgekeurd en hierna werd de actualisatiefase opgestart.

 

Het strategisch ruimtelijk structuurplan s-RSA opteert voor een subtiel ingrijpen op wat Antwerpen eigen is. Het tracht met een beperkt aantal strategische acties een maximaal stimulerend effect te hebben op de plek en zijn omgeving. Daartoe formuleert het een generiek en een gebiedsgericht actief beleid. Deze zijn complementair en kunnen niet los van elkaar worden bekeken.

 

C.2.1 Generiek beleid

 

Het generiek beleid beoogt de opmaak van een algemeen referentiekader dat van toepassing is op heel de stad. Het tracht zeven beelden uit het collectief geheugen te versterken: Antwerpen als Waterstad / Ecostad / Havenstad / Spoorstad / Poreuze stad / Dorpen en Metropool / Megastad. Voor elk van deze beelden is een visie ontwikkeld die op haar beurt wordt vertaald in maatregelen en acties. Het plangebied of de onmiddellijke omgeving komt aan bod in nagenoeg elk van deze beelden.

 

 

Spoorstad

 

Het openbaar vervoer, treinen en tramlijnen, kunnen een positieve rol spelen in het verwezenlijken van een nieuwe stedelijke concentratie, waarbij de verdere spreiding, fragmentatie en gebrek aan stedelijkheid in het grootstedelijk gebied wordt tegengegaan. De rol van het openbaar vervoer moet verder versterkt worden. Deze oplossingen, samen met de uitwerking van een fijnmazige en optimale verdeling van het verkeer over het lager netwerk van de stad, moet van de stad een ruimtelijk ‘open’ systeem maken, net zoals haar economie en haar samenleving. Dit is coherent met de mogelijkheden van haar noord-zuid geografische oriëntatie en met de kansen van haar fysische expansie.

 

Binnen het beeld van de spoorstad wordt gesteld dat openbaar vervoer een positieve rol kan spelen in het verwezenlijken van een nieuwe stedelijke concentratie, waarbij de verdere spreiding, fragmentatie en gebrek aan stedelijkheid in het grootstedelijk gebied wordt tegengegaan. Dit houdt onder andere in dat nieuwe grote ontwikkelingsgebieden zich situeren op belangrijke knooppunten van openbaar vervoer.

 

Om het gebruik van het openbaar vervoer aan te moedigen en als oplossing om zich beter binnen de Ring te verplaatsen, wordt een goed uitgerust parkeer- en overstapsysteem uitgewerkt. Er wordt op lange termijn gestreefd naar een beperking van het parkeren, met uitzondering van bewoners- en kortparkeerders. Hieraan gekoppeld wordt Antwerpen Centraal aangeduid als transferium: een overstapplaats op openbaar vervoer, gelegen op een goed ontsloten plek voor voetgangers, fietsers en voertuigen. Transferia verzamelen het lokaal verkeer en lokale gebruikers en geven toegang tot regionaal en (inter)nationaal openbaar vervoer.

 

 [image][image]

Selecties voor de spoorstad: Antwerpen een open stad (bron: s-RSA)

 

 

 

 

De stedelijke boulevards verdelen het verkeer tussen de verschillende stadsdelen (districten). De stedelijke boulevard Roderveldlaan – Posthofbrug en Pelikaanstraat verbindt het stedelijk centrum van Pulhof met de omgeving centraal station, langs het spoorwegviaduct van Berchem. De stedelijke boulevard Plantin en Moretuslei en Luitenant Lippenslaan kruist de Ring en verbindt het extra murosdeel van Borgerhout met de omgeving centraal station. De vernieuwing van het station Antwerpen Centraal moet worden verder gezet, afgestemd met de ontwikkelingen in de omgeving.

 

 

Poreuze stad

 

Het plangebied is gelegen binnen de wijk Diamant volgens het idee van de poreuze stad. De Diamantwijk is geselecteerd als een deelgebied van de 19de-eeuwse gordel, waar hoge prioriteit aan wordt gegeven. Het doel van deze opdeling in deelgebieden is het opmaken van gebiedsgerichte RUP’s.

 

Vanuit de doelstelling om het sociaal-maatschappelijk, cultureel, economisch evenwicht in verschillende wijken te herstellen via ingrepen in de morfologie, de leegstand terug te dringen en de porositeit te verhogen, kunnen een aantal richtlijnen aangehaald worden die ondersteunend werken bij de opmaak van RUP’s. Op basis van de bestaande ruimtelijke structuur worden een aantal gebiedstypes aangeduid, met daaraan gekoppeld een specifiek ruimtelijk beleid.

 

De stationsomgeving van Antwerpen Centraal is aangeduid als focusgebied. In de focusgebieden kan prioriteit worden verleend aan het opzetten van bouwblokprojecten als strategisch, stedenbouwkundig instrument ter ondersteuning van stadsontwikkeling. Hierbij wordt, op basis van ontwerpmatig onderzoek, nagegaan hoe een bouwblok ruimtelijk, economisch en sociaal, op korte termijn, opgewaardeerd kan worden. Daarbij wordt een proces en een organisatie opgestart in functie van de uitvoering van minimum één deelproject binnen het bouwblok en als maximum het ganse bouwblok.

 

De bouwblokprojecten worden in hoofdzaak geconcentreerd in de 'modernistische' hoogbouwwijken, gebieden met grote dichtheden, gebieden met industriële gebouwen in transformatie, residentiële gebieden onder commerciële city-druk en gebieden met significante leegstand boven winkels. Voor dit soort gebieden is dit de strategie die vaak het meest bruikbaar is en het beste resultaat kan opleveren. Het plangebied is aangeduid als bouwblokproject.

 

 

 

 

 

 [image][image]

 

Selecties voor de poreuze stad (bebouwde ruimte): aanpassende verschijningsvormen (bron: s-RSA)

 

 

 

 

Dorpen en metropool

 

Antwerpen heeft een lange traditie van verschillende naast elkaar bestaande dorpen in een metropool en van grootstedelijke functies, gelokaliseerd in die dorpen. Vandaag is de onderlinge relatie tussen de dorpen en de metropool aan het evolueren. Antwerpen maakt op zijn beurt deel uit van een nieuwe stedelijke vorm, het grootstedelijk netwerk of de ‘Megastad’. Nieuwe relaties moeten ontwikkeld worden tussen de dorpen en de metropool binnen de Megastad.

 

  • Policentrische stad

 

Belangrijke knopen voor openbaar vervoer in de Spoorstad kunnen de belangrijkste locaties worden voor nieuwe kantoorontwikkelingen binnen het metropolitaan gebied. Als HST-station is Antwerpen Centraal de locatie met de grootste internationale

potentie. Voor de locatie Kievitplein heeft de Vlaamse regering een gewestelijk RUP gemaakt en de ontwikkelingen zijn reeds gestart. Secundaire kantoorclusters zijn eveneens gelinkt aan de Spoorstad en gelegen in het noorden en het zuiden van het metropolitaan gebied.

 

  • Werken

 

De positie van de stad als zenuwcentrum van de diamant moet verdedigd worden. Het voorziene verlies aan jobs in de industriële diamantbedrijvigheid kan gecompenseerd worden door de creatie van meer jobs in de commerciële diamantbedrijvigheid. Naast de grote internationale bedrijven is er een belangrijk aantal middelgrote bedrijven en ‘niche’-bedrijven. Deze staan onder hevige druk. Diamanthandelaars en verkopers zijn vaak direct of indirect betrokken in de productie van juwelen. Tot op vandaag is de handel in juwelen, zowel ruwhandel als kleinhandel, zo goed als afwezig in Antwerpen. In relatie tot de diamant zijn er grote mogelijkheden voor Antwerpen als een distributiecentrum van juwelen. De handel in juwelen leidt ook tot belangrijke nevenactiviteiten zoals productie, transport, financiën, verzekeringen en bezoekers. De creatie van een cluster van diamant en juwelen kan nieuwe activiteiten stimuleren en nieuwe jobs voortbrengen.

Het aanbieden van hoogwaardige ruimte voor de vernieuwde diamantsector is noodzakelijk. De diamantsector en de aanverwante functies moeten zichtbaar worden in de wijk, in de stad. Zo bijvoorbeeld kan de wijk een nieuw stedelijk front krijgen aan de zijde van de Pelikaanstraat in antwoord op het vernieuwde centraal station, kan de Vestingstraat heringericht worden, kunnen bakens in de wijk als referentie naar de diamantsector gerealiseerd worden, … .

 

Daarnaast kan het opportuun zijn de Diamantwijk op te laden met al dan niet economische functies die complementair zijn aan de diamanthandel, zodat de wijk levendig en dynamisch blijft. De berm van de spoorweg kan opgewaardeerd worden, … .

 

Wat de kantoren betreft, is het doel om in Antwerpen (en de regio) een aantal aantrekkelijke kantoorlocaties te ontwikkelen waar hoofdkantoren de hoofdactiviteit zijn. Naast de renovatie van het bestaand patrimonium, zal er anderzijds ook een substantiële uitbreiding nodig zijn van de kantooroppervlakte met nieuwe locaties om het huidige marktaandeel binnen Vlaanderen en op de internationale markt te kunnen handhaven. Nieuwe uitbreidingen dienen vooral te mikken op hoogkwalitatieve ontwikkelingen.

 

Het streven is om de nieuwe grootschalige kantoorontwikkelingen te sturen naar de geselecteerde zones. Op deze wijze kunnen enerzijds de mobiliteitsstromen gericht worden naar de best bereikbare plekken (combinatie openbaar vervoer en weg) en kunnen de stedenbouwkundige relaties met de overige functies uitgewerkt worden. Anderzijds voorkomt men dat een overaanbod aan kantoren gecreëerd wordt met als gevolg dat de kantoren aan ‘dumpingprijzen’ verhuurd worden. De kantoorontwikkelingsgebieden zijn, met uitzondering van het noorden van het Eilandje (en luchthaven van Deurne), ook in het afbakeningsvoorstel van het grootstedelijk gebied Antwerpen (door het Vlaams gewest) geselecteerd als ontwikkelingspolen niveau 1 (internationaal) of niveau 2 (grootstedelijk), en dus coherent met de mobiliteitsinzichten en planningsstrategieën.

 

Antwerpen centraal (57.000 + 35.000 m²) is als zoekzone voor kantoorlocaties aangeduid. Hier worden volgende gebiedsgerichte ontwikkelingsperspectieven aangehaald die eveneens een ruimtelijke hiërarchie bepalen.

 

De Stationsomgeving Antwerpen Centraal kan verder uitgewerkt worden binnen de bepalingen van het Gewestelijke RUP Kievitplein mits bij de bijkomende ontwikkelingen meer aandacht wordt besteed aan de vooropgestelde functionele verweving, de beeldkwaliteit, en de parkeerproblematiek. De belangrijkste voorwaarde ontstaat vanuit het bereikbaarheidsprofiel van de plek voor autoverkeer. Nieuwe kantoren moeten zich kunnen inpassen in het het bereikbaarheidsprofiel van de plek: indien geen stimulerende maatregelen voor werknemers gelden voor het gebruik van openbaar vervoer en grote parkings noodzakelijk zijn, ontstaat congestie in de stationsomgeving. Daarnaast is het van groot belang dat een gemengde stedelijke omgeving ontstaat waarbij de hele dag door activiteit in het gebied ontstaat. Dit betekent dat naast kantoren, woningen en aan het wonen gerelateerde functies gestimuleerd moeten worden. Maar ook handel, kleine bedrijfjes, toeristische functies,… kunnen leiden tot een gemengde stedelijke omgeving. Daarom is het belangrijk dat bij de nieuwe bouwaanvragen specifiek aandacht gaat naar de kwaliteit van het publiek domein, verticale en horizontale verweving met andere functies (stedelijke plint van commerciële en publieke functies), de doorwaadbaarheid van het gebied en de relatie met andere grote functies in de buurt (dierentuin, Diamantwijk, de nieuwe ‘stadsfeestzaal’ in de berm van de spoorweg, Copernicus, wonen, Moretuspark, …). Er is nood aan een geïntegreerde visie voor een ruimer gebied.

 

C.2.2 Actief beleid

Het plangebied situeert zich binnen de omgeving van het Centraal Station. Het Centraal Station is een sleutelgebied in Antwerpen: het station zelf, de nabijgelegen Diamantwijk, de Zoo en de Keyserlei-Meir. Sinds enkele jaren wordt er een belangrijk en thematisch uitgesproken programma uitgevoerd, met o.a. de uitbouw van meer representatieve handelsruimten voor de diamantsector.

 

De doelstellingen voor het programma Centraal Station zijn o.a.:

  • de ontwikkeling van dit gebied als een representatieve ruimte, een hoogdynamisch onthaal voor Antwerpen, ondersteund door het beeld van de dorpen en metropool;

  • het programma bestaat uit een mix van stedelijke activiteiten, dikwijls openbare en aantrekkelijke grootstedelijke functies (kantoren, winkels, diensten, toerisme, recreatie en woningen) maar ook lokale activiteiten, parken en speelpleintjes. Over het algemeen kan een hoge graad van verwevenheid bereikt worden, zonder daarbij te veel druk uit te oefenen op de omliggende woonwijken.

Diamantwijk-Kievitwijk wordt in het structuurplan aangeduid als strategisch project. Voor dit gebied wordt volgend programma vooropgesteld:

 

In de Diamantwijk en de Kievitwijk wordt de stad geconfronteerd met verschillende bovenlokale spelers. Meer en meer wordt duidelijk dat de stad de regierol in deze buurt in handen moet nemen, zodat ook de lokale spelers in dit gebied aan bod komen en de verschillende bovenlokale spelers meerwaarde ondervinden door samenwerking. Doelstelling voor deze omgeving is dan ook het verder stimuleren van de potenties van de plek als kantoorlocatie en locatie voor grootstedelijke functies door het opzetten van samenwerkingsverbanden met bijzondere aandacht voor de integratie van het bestaande lokale weefsel. De strategie om deze doelstelling te bereiken omvat een aantal acties:

 

  • Versterken Diamantwijk als economische én toeristische locatie voor diamanthandel en aanverwante functies.

De diamantsector is zich aan het herprofileren. Het aanbieden van hoogwaardige ruimte voor de vernieuwde diamantsector is noodzakelijk. Daarnaast kan het opportuun zijn de Diamantwijk op te laden met al dan niet economische functies die complementair zijn aan de diamanthandel, zodat de wijk levendig en dynamisch blijft. Stedelijke vernieuwing van de Diamantwijk is noodzakelijk. Diamant is één van de grote toeristische troeven van de stad. De diamantsector en de aanverwante functies moeten zichtbaar worden in de wijk, in de stad. Zo bijvoorbeeld kan de wijk een nieuw stedelijk front krijgen aan de zijde van de Pelikaanstraat in antwoord op het vernieuwde centraal station, kan de Vestingstraat heringericht worden, kunnen bakens in de wijk als referentie naar de diamantsector gerealiseerd worden,…

 

  • Versterken Kievitbuurt als attractieve kantoor én woonomgeving.

De stad kiest resoluut voor het verder ontwikkelen van de Kievitbuurt als kantoorlocatie, maar koppelt hier voorwaarden aan. De belangrijkste voorwaarde ontstaat vanuit het bereikbaarheidsprofiel van de plek voor autoverkeer. Nieuwe kantoren moeten zich kunnen inpassen in het bereikbaarheidsprofiel van de plek: indien geen stimulerende maatregelen voor werknemers gelden voor het gebruik van openbaar vervoer en grote parkings noodzakelijk zijn, ontstaat congestie in de stationsomgeving. Daarnaast is het van groot belang dat een gemengde stedelijke omgeving ontstaat waarbij de hele dag door activiteit in het gebied ontstaat. Dit betekent dat naast kantoren, woningen en aan het wonen gerelateerde functies gestimuleerd moeten worden. Maar ook handel, kleine bedrijfjes, toeristische functies,… kunnen leiden tot een gemengde stedelijke omgeving.

 

  • Versterken van het spoorlichaam als verbindende publieke, stedelijke en groene ruimte.

Het spoorlichaam (de berm op niveau 0 onder de spoorwegbundel) biedt mogelijkheden als verbindingsruimte tussen de Kievitwijk en Diamantwijk. Mogelijke projecten in het spoorweglichaam zijn: realisatie nieuwe ‘stadsfeestzaal’, Moretuspark, doorsteken door de berm heen,…

 

  • Versterken van de beleving van de omgeving op elk moment van de dag door de verdere heraanleg van het openbaar domein en de realisatie van een stedelijke plint.

Deze omgeving heeft bij uitstek nood aan een verlevendiging. Daarom is het van belang het verblijven in deze buurt zo aangenaam mogelijk te maken door de verdere verfraaiing van het openbaar domein, het creëren van pleintjes, de realisatie van groene ruimten,… Daarnaast is het nodig in deze werkomgeving voldoende publieke functies op het gelijkvloers in het richten die het wonen en werken faciliteren.

 

 

 

 

 

C.3 Plannen van aanleg en ruimtelijke uitvoeringsplannen

 

C.3.1 GRUP Afbakening Grootstedelijk Gebied Antwerpen

 

Het plangebied is gelegen binnen de afbakening van het grootstedelijk gebied Antwerpen. De Vlaamse regering heeft op 19 juni 2009 het gewestelijk ruimtelijk uitvoeringsplan Afbakening Grootstedelijk Gebied Antwerpen definitief vastgesteld.

 

Met dit plan stelt de Vlaamse Regering twee zaken voor:

1. een afbakeningslijn die aangeeft waar de stedelijke ontwikkeling van het Antwerpse in de toekomst kan gebeuren.

2. aanpassingen aan de stedenbouwkundige voorschriften op verschillende locaties om nieuwe ruimte te creëren voor wonen, werken, verkeersinfrastructuur stadsbossen en stedelijk groen.

 

Dit brengt met zich mee dat hier een stedelijk gebiedsbeleid zal gevoerd worden. Dit betekent dat vanuit het principe van gedeconcentreerde bundeling het stedelijk gebied wordt versterkt. Hierbij vormen ontwikkeling, verdichting en concentratie de uitgangspunten. Om uitzwerming, lintbebouwing en wildgroei van activiteiten in het buitengebied te vermijden, is dit beleid gericht op het creëren van een aanbod aan bijkomende woningen, het voorzien van ruimte voor economische activiteiten, het versterken van stedelijke activiteiten en het stimuleren van andere vormen van mobiliteit. Zo wordt een versnippering van de ruimte voorkomen. Er moet echter ook rekening gehouden worden met de draagkracht van het stedelijk gebied, niet alleen kwantiteit maar ook kwaliteit van ruimte en woonomgeving staat voorop. Het is noodzakelijk om de stedelijke gebieden te vernieuwen door het doorvoeren van onder andere een meer dynamische stadsvernieuwing en door strategische projecten. Het ontwikkelen van nieuwe woontypes en kwalitatieve leefomgevingen is een doelstelling.

 

Het plangebied van het RUP Kievit fase II-wijziging is gelegen binnen het grootstedelijk gebied Antwerpen, maar er werden in het GRUP evenwel geen bestemmingswijzigingen voorgesteld in de omgeving van de Kievitzone aangezien er reeds een RUP was.

 

 

 

 [image]

Afbakening Grootstedelijk Gebied Antwerpen

 

 

 

C.3.2 GRUP HST-station Antwerpen – omgeving Kievitplein

 

De uitbouw van een volwaardig HST-station met een nieuwe toegang aan de zijde van het Kievitplein was in 2003 de aanleiding voor de opmaak van het gewestelijk ruimtelijk uitvoeringsplan ‘HST-station Antwerpen – Omgeving Kievitplein’.

 

Het uitvoeringsplan voorziet in 4 bouwzones (zone A, B, C en D) een verweving van stedelijke activiteiten, een ordeningsprincipe van stroken bebouwing en stroken open ruimte, algemene richtlijnen in functie van de ruimtelijke kwaliteit van de gebouwen en de open ruimtes samen met de inrichting van een nieuw parkgebied over de Plantin- Moretuslei. Op die manier wordt de ontwikkeling van een stedelijk weefsel met een duurzaam en multifunctioneel karakter beoogd.

 

Hiervan is zone A of Kievit fase I gerealiseerd in 2004-2005.

 

 [image]

GRUP HST-station Antwerpen – omgeving Kievitplei

 

 

 
3.3.3 GRUP Kievit fase II

De Vlaamse regering heeft op 27 januari 2012 het gewestelijk ruimtelijk uitvoeringsplan Gebied voor stedelijke activiteiten Kievit fase II definitief vastgesteld.

 

Dit GRUP werd opgemaakt op basis van het stadsontwerp (zie 3.5.13.5.1. Het GRUP Kievit fase II vervangt bovendien grotendeels het GRUP ‘HST-Station Antwerpen – Omgeving Kievitplein’ (zie 3.3.2).

 

Het plangebied van dit GRUP bevindt ten zuiden van het Centraal Station. Het gebied sluit aan op het Kievitplein en de gerealiseerde kantoorontwikkeling Kievit fase I uit het bestaand RUP. Oostelijk sluit het gebied aan op een dens woonweefsel. Het gebied wordt in het zuiden doorsneden door de Plantin en Moretuslei. Het gebied wordt ten slotte in het westen geflankeerd door de historische spoorwegberm die de fysieke scheiding vormt tussen het plangebied en de Diamantwijk. De visie voor dit plangebied kan als volgt worden samengevat:

  • Nieuwe stedelijke structuur.

De bebouwing wordt georganiseerd in bouwblokken met een maximale bouwenveloppe die parallel aan de spoorwegberm ingepland worden. De bebouwing van Kievit fase II maakt aansluiting op het bestaande woonweefsel en neemt afstand van de gerealiseerde densiteit van Kievit fase I. De eerste vier bouwlagen, de sokkel van de bouwblokken, dienen overal gerealiseerd te worden. De maximale contour en hoogte worden voor elke bouwblok afzonderlijk vastgelegd. De bebouwing presenteert zich langs alle zijden evenwaardig en als één ruimtelijk geheel.

  • Parktuin.

De nieuwe stedelijke bouwblokken worden ingebed in een open en groene ruimtestructuur. Deze parktuin wordt opgeladen met en krijgt vorm door verschillende functies en tuinen, zoals speel- en sportplekken, groene zitruimten, bloementuin, enzovoort.

  • Verhoging van de doorwaadbaarheid van de spoorwegberm.

Naast de bestaande doorsteken aan de Kievitstraat, Plantin en Moretuselei wordt toch de mogelijkheid voorzien om een bijkomende doorsteek te maken in de spoorwegberm ter hoogte van de Jacob Jacobstraat, richting Somersstraat. Deze nieuwe doorsteek, vooral voor voetgangers- en fietsverkeer, zal ervoor zogen dat de Diamantwijk en de Kievitwijk dichter tot elkaar gebracht worden. Bovendien wordt tussen bouwzones IIa en IIb en bouwzone III een nieuw stedelijk plein gecreëerd.

  • Casco ruimte in spoorwegberm.

De cascoruimten onder de spoorwegberm zijn bedoeld voor reizigersondersteunende en publieke functies en kunnen zowel openbaar als privaat zijn.

 

Het grootste deel van het plangebied wordt herbestemd tot een zone voor stedelijke activiteiten: een multifunctioneel gebied waar verweving wordt beoogd van wonen, kantoren, bedrijven, handel, maatschappelijk programma, recreatie en cultuur en horeca. Onder kantoren wordt verstaan: bedrijven met als hoofdactiviteit privé- en overheidsdienstverlening met een hoofdzakelijk administratief karakter en een hoge personeelsintensiteit. In het plangebied worden 4 bouwzones aangeduid. Met uitzondering van het gebied zoals aangeduid volgens artikel 1.9 Gebied voor ongelijkvloerse verkeers- en vervoersinfrastructuur, kan er binnen het aangeduide gebied voor stedelijke activiteiten enkel gebouwd worden binnen deze bouwzones. Aan de westzijde wordt een overdruk voorzien voor een ongelijkvloerse verkeers- en vervoersstructuur. Op deze gronden, die palen aan het domein van de spoorweg, zal immers steeds rekening gehouden worden met de aanwezigheid van de spoorweginfrastructuur in overeenstemming met de vigerende wetgeving. Het plangebied ten zuiden van de Plantin en Moretuslei wordt aangeduid als een publiek park. Daarnaast wordt eveneens de restruimte bovenop de spoorwegbrug over de Plantin en Moretuslei wordt eveneens ingericht als park.

 

 

 

 [image]

GRUP Kievit fase II

 

 

 

 

C.3.3 GRUP Kievit fase II

De Vlaamse regering heeft op 27 januari 2012 het gewestelijk ruimtelijk uitvoeringsplan Gebied voor stedelijke activiteiten Kievit fase II definitief vastgesteld.

 

Dit GRUP werd opgemaakt op basis van het stadsontwerp (zie 3.5.13.5.1. Het GRUP Kievit fase II vervangt bovendien grotendeels het GRUP ‘HST-Station Antwerpen – Omgeving Kievitplein’ (zie 3.3.2).

 

Het plangebied van dit GRUP bevindt ten zuiden van het Centraal Station. Het gebied sluit aan op het Kievitplein en de gerealiseerde kantoorontwikkeling Kievit fase I uit het bestaand RUP. Oostelijk sluit het gebied aan op een dens woonweefsel. Het gebied wordt in het zuiden doorsneden door de Plantin en Moretuslei. Het gebied wordt ten slotte in het westen geflankeerd door de historische spoorwegberm die de fysieke scheiding vormt tussen het plangebied en de Diamantwijk. De visie voor dit plangebied kan als volgt worden samengevat:

  • Nieuwe stedelijke structuur.

De bebouwing wordt georganiseerd in bouwblokken met een maximale bouwenveloppe die parallel aan de spoorwegberm ingepland worden. De bebouwing van Kievit fase II maakt aansluiting op het bestaande woonweefsel en neemt afstand van de gerealiseerde densiteit van Kievit fase I. De eerste vier bouwlagen, de sokkel van de bouwblokken, dienen overal gerealiseerd te worden. De maximale contour en hoogte worden voor elke bouwblok afzonderlijk vastgelegd. De bebouwing presenteert zich langs alle zijden evenwaardig en als één ruimtelijk geheel.

  • Parktuin.

De nieuwe stedelijke bouwblokken worden ingebed in een open en groene ruimtestructuur. Deze parktuin wordt opgeladen met en krijgt vorm door verschillende functies en tuinen, zoals speel- en sportplekken, groene zitruimten, bloementuin, enzovoort.

  • Verhoging van de doorwaadbaarheid van de spoorwegberm.

Naast de bestaande doorsteken aan de Kievitstraat, Plantin en Moretuselei wordt toch de mogelijkheid voorzien om een bijkomende doorsteek te maken in de spoorwegberm ter hoogte van de Jacob Jacobstraat, richting Somersstraat. Deze nieuwe doorsteek, vooral voor voetgangers- en fietsverkeer, zal ervoor zogen dat de Diamantwijk en de Kievitwijk dichter tot elkaar gebracht worden. Bovendien wordt tussen bouwzones IIa en IIb en bouwzone III een nieuw stedelijk plein gecreëerd.

  • Casco ruimte in spoorwegberm.

De cascoruimten onder de spoorwegberm zijn bedoeld voor reizigersondersteunende en publieke functies en kunnen zowel openbaar als privaat zijn.

 

Het grootste deel van het plangebied wordt herbestemd tot een zone voor stedelijke activiteiten: een multifunctioneel gebied waar verweving wordt beoogd van wonen, kantoren, bedrijven, handel, maatschappelijk programma, recreatie en cultuur en horeca. Onder kantoren wordt verstaan: bedrijven met als hoofdactiviteit privé- en overheidsdienstverlening met een hoofdzakelijk administratief karakter en een hoge personeelsintensiteit. In het plangebied worden 4 bouwzones aangeduid. Met uitzondering van het gebied zoals aangeduid volgens artikel 1.9 Gebied voor ongelijkvloerse verkeers- en vervoersinfrastructuur, kan er binnen het aangeduide gebied voor stedelijke activiteiten enkel gebouwd worden binnen deze bouwzones. Aan de westzijde wordt een overdruk voorzien voor een ongelijkvloerse verkeers- en vervoersstructuur. Op deze gronden, die palen aan het domein van de spoorweg, zal immers steeds rekening gehouden worden met de aanwezigheid van de spoorweginfrastructuur in overeenstemming met de vigerende wetgeving. Het plangebied ten zuiden van de Plantin en Moretuslei wordt aangeduid als een publiek park. Daarnaast wordt eveneens de restruimte bovenop de spoorwegbrug over de Plantin en Moretuslei wordt eveneens ingericht als park.

 

 

 

 [image]

 

GRUP Kievit fase II

C.3.4 BPA Pelikaanstraat

 

Het BPA Pelikaanstraat werd goedgekeurd op 3 april 2007.

 

Dit BPA situeert zich ca. 50 meter ten westen van het plangebied, aan de overkant van de Simonsstraat/Pelikaanstraat. Het BPA had tot doel in te spelen op de toekomstige uitbreiding en herstructurering van de Diamantwijk. Aanleiding tot de opmaak was en is de groei vanuit een internationaal platform voor diamanthandel naar een meer gediversifieerde sector. De juwelen- en diamantensector kennen immers een verticale integratie die in de toekomst een verbreding brengen in de economische activiteiten.

 

In het najaar 2002 werd de bouwblokstudie Pelikaanstraat opgemaakt voor de ontwikkeling van een aantal braakliggende percelen en leegstaande gebouwen in de Diamantwijk. Meer specifiek betreft het een aantal percelen vervat in faillissementen uit de jaren ’80-‘90. Door de ontwikkeling van de stationsomgeving als H.S.T.-locatie en het vervallen van het BPA nr.9 ontstond er een sterke speculatie op deze percelen. De verschillende ontwerpen met zeer hoge bebouwingsdichtheid deden de grondprijs stijgen, waardoor de effectieve ontwikkeling stagneerde.

 

Om de ontwikkeling van de Diamantwijk terug te initiëren werd er vanuit de stad een visie opgebouwd omtrent de site. Hiervoor werd er vanuit een overgang tussen twee contexten, namelijk enerzijds de hoge densiteit en functionele mix van de stationsomgeving en anderzijds de lage densiteit van de woonwijk tussen de Pelikaanstraat en het Stadspark, gezocht naar een aantal kwalitatieve en rendabele invullingen voor de specifieke sites. Dit BPA werd opgemaakt om verdere speculatie op de gronden te vermijden door het vastleggen van bouwenveloppen en andere randvoorwaarden.

 

Volgende bestemmingen worden afgebakend in het BPA: zone voor gesloten bebouwing, zone voor kantoren, zone voor binnenruimte, zone voor binnenplein en zone voor openbare wegenis.

 

C.3.5 RUP Pelikaanstraat (in opmaak)

Op 26 augustus 2016 besliste het college om BPA 'Pelikaanstraat' te vervangen door het ruimtelijk uitvoeringsplan (RUP) 'Pelikaanstraat'. De proces- en richtnota werd in zitting van 19 mei 2017 goedgekeurd door het college.

 

Het BPA Pelikaanstraat stemt overeen met de contouren van het BPA Pelikaanstraat en legt beperkingen op inzake de toegelaten bestemmingen. Het BPA voorziet in een mix van kantoren als hoofdbestemming en wonen of andere functies als nevenbestemming. Vandaag is de vraag naar kantoren laag, waardoor in de vernieuwing van bestaande gebouwen en/of het bebouwen van braakliggende percelen weinig of niets gebeurt. Nochtans heeft deze omgeving nood aan vernieuwing. Ook andere aspecten van het BPA hebben nood aan een evaluatie en eventuele bijsturing ten behoeve van het creëren van nieuwe kansen voor duurzame ontwikkeling: de densiteit en het aandeel open en groene ruimte, de relatie tot de (stations)omgeving, de verbindingen met de omgeving, de woonkwaliteit, de maatregelen inzake klimaatadaptatie, de ruimtelijke synergie, het gemeenschappelijk gebruik van ruimtes, de leefbaarheid en de levendigheid in het gebied.

 

 

 

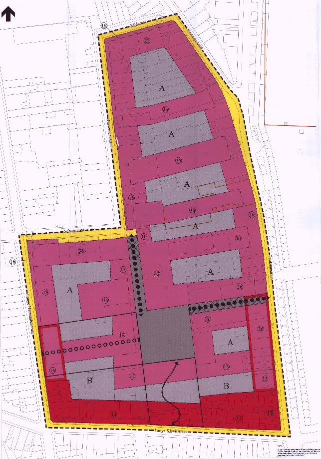
 [image]

 

BPA Pelikaanstraat

 

 

 

 

C.4 Verordeningen

 

C.4.1 Gewestelijke verordening hemelwaterputten

      1.  

Deze gewestelijke stedenbouwkundige verordening bevat minimale voorschriften voor de lozing van niet verontreinigd hemelwater, afkomstig van verharde oppervlakten. Het algemene uitgangsprincipe hierbij is dat zoveel mogelijk herbruikt wordt. In tweede instantie moet het resterende gedeelte van het hemelwater worden geïnfiltreerd of gebufferd, zodat in laatste instantie slechts een beperkt debiet vertraagd wordt afgevoerd naar de riolering.

 

C.4.2 Bouwcode

 

De gemeentelijke stedenbouwkundige verordening ‘Bouwcode’ is van kracht sinds 4 april 2011.

 

De bouwcode is een verzameling van regels die bepalen hoe in de stad Antwerpen gebouwd of verbouwd mag worden. Bouwplannen moeten aan deze voorschriften voldoen om een stedenbouwkundige vergunning te krijgen. De voorschriften van het RUP ‘Kievit fase II wijziging’ primeren boven deze van de Bouwcode. Enkel daar waar het RUP strengere of andere reglementen wil, die specifiek zijn voor het plangebied, worden de voorschriften van de bouwcode overschreven in het ruimtelijk uitvoeringsplan.

 

 

 

 

C.5 Relevante projecten, plannen en studies binnen het plangebied

 

C.5.1 Stadsontwerp voor Kievit fase II

 

Het gerealiseerde deel van het RUP ‘HST-station Antwerpen – Omgeving Kievitplein’ (zone A) werd door buurtbewoners en actiegroepen gecontesteerd en gaf aanleiding tot polemiek. De stad Antwerpen besliste een nieuw stadsontwerp op te maken voor de delen van het plangebied die nog niet ontwikkeld werden.

 

Het nieuwe stadsontwerp houdt een bouwprogramma in dat bestaat uit vier nieuwe bouwzones. Het plan voorziet een vaste verdeelsleutel per bouwzone ten einde een gedegen functieverweving van woningen en kantoren te garanderen. Daarbij worden eveneens de contouren van het openbaar domein vastgelegd. Ten opzichte van de mogelijkheden zoals voorzien in het GRUP ‘HST-station Antwerpen – Omgeving Kievitplein’, werd een belangrijke schaalbeperking doorgevoerd. De nieuwe bebouwing moest een reële overgang betekenen tussen het bestaande woonweefsel en de ontwikkelingen in zone A. De bebouwde oppervlakte, schaal en bouwdensiteit werd beperkt. De ruimte bestemd als openbaar domein werd aanzienlijk vergroot. Een indicatieve weergave van de schaalbeperking wordt weergegeven in nevenstaande tabel, waarbij de referentiesituatie de situatie is wanneer noch het ruimtelijk uitvoeringsplan ‘HST-station Antwerpen – Omgeving Kievitplein’ noch het nieuwe stadsontwerp wordt uitgevoerd.

 

Een verbrede Van Immerseelstraat zal volledig ingericht worden als ‘parkinfrastructuur’. De groenstructuur, of ‘parktuin’, waarin de bouwblokken worden ingeplant, wordt ingevuld met tuinen op maat van activiteiten ten behoeve van de buurt. Mogelijke activiteiten zijn sport en spel, zitruimte, bloementuinen en dergelijke meer. De creatie van een nieuwe doorsteek doorheen de historische spoorwegberm verbindt deze nieuwe, publieke groenstructuur in de Kievitwijk met de aangrenzende wijken. Er wordt uitgegaan van een sterke functieverweving van functies als wonen, kantoren en publiek toegankelijke inrichtingen.

 

 

 

 

 [image]

Stadsontwerp voor Kievit fase II (bron: GRUP Kievit fase II)

 

 

 [image]

Indicatieve wijzigingen in terreinbezetting (bron: GRUP Kievit fase II)

 

 

 [image]

Stadsontwerp voor Kievit fase II (bron: GRUP Kievit fase II)

 

 

 

 

 

 

C.5.2 Bouwblokstudie Lange Kievitstraat – Van Spangenstraat – Van Immereelstraat – Stoomstraat

 

Deze bouwblokstudie werd opgemaakt door de Planningscel van de stad Antwerpen dd. 06.10.2003.

 

Deze studie moet gesitueerd worden in de vernieuwingswerken van het station Antwerpen-Centraal, waarbij ter hoogte van de Lange Kievitstraat een volwaardige tweede stationstoegang werd gecreëerd. De stad wilde de vernieuwing van het Centraal Station aangrijpen om de stationsomgeving aangenamer te maken en een nieuwe impuls te geven. Door de ontwikkelingen van het Centraal Station krijgt immers ook de omgeving uitgesproken ontwikkelingspotenties. Dit resulteert in het aantrekken van doelgroepen die in de nabijheid van het station willen komen wonen, werken en ontspannen. De omgeving Lange Kievitstraat/Van Immerseelstraat is uitermate geschikt voor nieuwe stadsontwikkeling.

 

In de bouwblokstudie wordt het plangebied opgedeeld in kavels. Hoog- en laagbouw wisselen elkaar af in een buurt met open ruimtes en bouwblokken. De voorgestelde bouwvolumes zijn nooit hoger dan het Centraal Station. De open ruimtes tussen de gebouwen garanderen de doorwaadbaarheid en bieden de buurtbewoners voldoende bewegings- en ontspanningsmogelijkheden. De gebouwen kenmerken zich door hun specifieke vorm en materiaalgebruik. Ieder gebouw krijgt een eigen karakter. In de bouwblokken worden op verschillende niveaus ook openbare platforms gecreëerd: lobby voor een kantoor, gemengd met publieke functies, een zomerterras met uitzicht op het spoor, …

 

 

 

 

 

 [image]

Visualisatie (bron: Bouwblokstudie)

 

 

 

 

 

C.5.3 Bouwblok I - Gebouw De Persgroep

 

Met het stadsproject Kievit II wordt een nieuw stuk stad ontwikkeld dat op harmonische wijze de overgang vormt tussen het internationale stationsgebeuren, de hoogbouw van Kievit fase I en de bestaande woonwijk.

Het stadsproject Kievit II vormt het scharnier tussen verschillende schaalniveaus: internationaal en lokaal, hoog en laag, dens en minder dens.

Binnen het stadsproject Kievit II vormt het nieuwe bouwblok aan het Kievitplein hét gezicht van dit stadsvernieuwingsproject aan de stationszijde. Het bouwblok zal dan ook de veruitwendiging zijn van de ambities die de stad voor deze plek koestert.

 

Crepain Binst ontwierp voor De Persgroep een gebouw met 10 bovengrondse bouwlagen (+1 technische tussenverdieping) met kantoorruimte voor De Persgroep Publishing, 32 appartementen en op het gelijkvloers een brasserie, een winkel en take-away, een radiostudio en een Medialaan podium met vergader- en ontmoetingsruimte. Ondergronds telt het nieuwbouwvolume 2 bouwlagen met 76 parkeerplaatsen en 5 parkeerplaatsen voor motoren op niveau -1. Deze ondergrondse parking is toegankelijk via een ondergrondse tunnel met een inrit in de Van Immerseelstraat. Op niveau -1 bevindt zich ook een ondergrondse fietsenstalling die plaats biedt aan 219 fietsen. Deze ondergrondse fietsenstalling is toegankelijk via een fietstrap die uitgeeft op de hoek van de Stoomstraat en het Kievitplein. Verder bevinden zich op niveau -2 technische- en opslagruimtes. De plint zal worden voorzien van verscheidene functies die zowel publiek als semi-publiek kunnen worden aangewend: koffiehoek en radiostudio, diverse leeshoeken een brasserie die zowel dienst kan doen voor werknemers als voor het vrije publiek en vergaderruimte.

 

 

 

 

 [image]

Visualisatie gebouw De Persgroep (bron: Crepain Binst)

 

 

 

 

 

C.5.4 Onderzoek compensatie

 

Voor bouwzone I is de bouwenveloppe beperkt tot 16.500m² vloeroppervlakte. Volgens het gewestelijk RUP moet minstens 30% van deze vloeroppervlakte of 4.950m² een woonfunctie hebben.

In voorbereiding van de opstart van dit planningsproces werd onderzocht waar in de onmiddellijke omgeving deze vloeroppervlakte mogelijk gecompenseerd zou kunnen worden en wat de impact ervan zou zijn. Twee locaties werden concreet onder de loep genomen: het plangebied van RUP Pelikaanstraat en bouwzone IIa.

Onderzoek naar compensatie in het in opmaak zijnde RUP 'Pelikaanstraat'

In de nabije omgeving (diamantwijk) is het RUP 'Pelikaanstraat' in opmaak. Dit RUP zal het bestaande BPA 'Pelikaanstraat', gelegen binnen de Vestingstraat, Pelikaanstraat, Lange Kievitstraat, Lange Herentalsestraat, Schupstraat, Hovenierstraat en Rijfstraat, volledig vervangen. De aanleiding voor de opmaak van dit RUP is ook hier het botsen van projecten met de rigide verdeling van de toegelaten oppervlakten voor bepaalde functies. Heel specifiek gaat het over een project ter realisatie van 100% hotelfunctie en een voorstel voor een gemengde ontwikkeling (kantoren, hotel, woningen en assistentiewoningen, gemeenschapsvoorzieningen) op een site die al een tiental jaren braak ligt. Het RUP legt voor beide bestemmingszones een minimum percentage van 50% te realiseren kantoren op (hoofdbestemming) en voor de zone met de braakliggende site ook een minimum van 30% wonen aan de straatzijden. Het hotelproject werd vergund mits beslissing tot vervanging van het BPA, teneinde meer rechtszekerheid te garanderen.

Het doel van het RUP is om meer flexibiliteit in de bestemmingsvoorschriften te garanderen, om kwaliteitscriteria en duurzaamheidscriteria te verankeren en om mechanismen in te bouwen die vernieuwing kunnen stimuleren. Het plangebied blijft een toplocatie voor kantoorontwikkeling en diamantbedrijvigheid, maar heeft behoefte aan vernieuwing en verlevendiging. Vele gebouwen staan vandaag leeg. Een gemengde stedelijke ontwikkeling en het verhogen van de kwaliteit en aantrekkelijkheid als een tweede voorkant van het station Antwerpen-Centraal is hier gewenst (cf. strategisch Ruimtelijk Structuurplan Antwerpen).

De basisuitgangspunten van het RUP zijn:

  • concentratie van de diamantsector (lange termijn),

  • het poreuze bouwblok (het maken van hoven (ontpitten) door aan de randen denser te bouwen,

  • het maken van een kwalitatievere omgeving.

 

De conclusie van deze toetsing was dat het behouden en uitbreiden van de 30%-regel voor wonen, ter compensatie van het wonen in het GRUP Kievit fase II, alsook het behouden van de opgelegde minimumpercentages voor andere functies haaks tegenover de doelstelling en ambities van het RUP Pelikaanstraat staat.

 

 [image]

 

 

 [image]

Bron: stad Antwerpen, Stadsontwikkeling/ Ruimte/Team Ontwerpend Onderzoek

 

 

 

Onderzoek naar compensatie binnen het plangebied van het RUP Kievit II - wijziging

Middels ontwerpmatig onderzoek is gekeken of er in het plangebied van het RUP mogelijkheden zijn om de 30% of ca. 5.000m² woningen die verdwijnen uit bouwzone I (na uitbreiding en maximale inname van het toegestane bouwvolume door de kantoren van De Persgroep) te realiseren.

Binnen het plangebied komt enkel bouwzone IIa in aanmerking voor het onderzoek. Dit is de laatste bouwzone van Kievit fase II waar nog een (her)ontwikkeling zou kunnen plaatsvinden. Hier bevinden zich een synagoge en een Joodse school, alsook een smal braakliggend perceel in eigendom van AG Vespa, grenzend aan de Van Immerseelstraat. De synagoge en school zijn actieve functies. Concrete toekomstplannen voor deze bouwzone zijn niet gekend.

In opdracht van de stad deed studiebureau Sweco ontwerpmatig onderzoek naar de impact van realisatie van bijkomend woningaanbod in bouwzone IIa.

Een zestal scenario’s werden onderzocht.

De verschillende scenario’s tonen duidelijk aan dat het uitbreiden van het maximum toegestane volume ruimtelijk en maatschappelijk niet verantwoord is:

  • het verdichten van bouwzone IIa komt neer op bijna een verdubbeling van wat volgens het gewestelijk RUP is toegelaten,

  • alle scenario’s tonen aan dat om te kunnen verdichten de ruimte (licht en lucht) die er nu is tussen bouwzones IIa en IIb helemaal verdwijnt en de voorziene woon-, kantoor- en publiek toegankelijke functies aan kwaliteit (uitzichten, afstanden tot andere gebouwen, licht, herkenbaarheid) zullen verliezen,

  • het GRUP Kievit fase II kwam in participatie met de buurtbewoners tot stand, nadat er heel wat protest was gerezen tegen de ontwikkeling van Kievit Fase I en er een bezorgdheid naar boven kwam omtrent de leefbaarheid van zo’n nieuwe ontwikkeling. De stad is van oordeel dat uitbreiding van het toegelaten bouwvolume de ruimtelijke draagkracht overschrijdt en stelt het ontwerpmatig onderzoek dat eraan vooraf ging niet terug in vraag stellen. De Persgroep lichtte haar project toe in de buurt en kon rekenen op positieve reacties van de buurtbewoners. De stad wenst de discussie hierover met de buurtbewoners daarom ook niet opnieuw te openen.

 

 

Besluit

De stad wenst de opzet van het gewestelijk RUP maximaal te behouden, omdat de toegelaten bouwenveloppe is afgestemd op de ruimtelijke draagkracht en uit respect voor de buurtbewoners. Bouwzone IIa moet blijven functioneren als een rustpunt / ademruimte in de ontwikkeling van Kievit fase II.

 

 

 

 

 [image]

  [image]

 [image]

 

Ontwerpmatige toetsing mogelijkheid tot compensatie in bouwblok IIa (bron: Sweco)

 

 

 

 

C.6 Relevante projecten, plannen en studies nabij het plangebied

 

C.6.1 Bouwblok Kievit IIb

 

Bouwblok IIb van het GRUP Kievit fase II is momenteel in opbouw. Het project Kievit IIb bestaat uit een ondergrondse parking, commerciële ruimtes op het gelijkvloers, een woontoren van 13 verdiepingen met in totaal 56 appartementen, en een kantoorgebouw van 6 verdiepingen. Het project sluit aan op het project Kievit fase IIa.

Het project wordt uitgevoerd door Interbuild, in opdracht van NV Immersale (Kairos/L.I.F.E.). De werken worden opgeleverd, indien de timing wordt gehaald, in maart 2018.

De gevels van beide torens zijn opgebouwd uit gevelmetselwerk in witte steen en worden gescheiden door een daktuin op de dakplaat van het gelijkvloers. De kantoorruimte zal gebruikt worden door Fidea. De ondergrondse parking sluit aan op de eerder gerealiseerde tunnel die ook toegang geeft tot de betaalparking Kievit en tot de parking van fase 1.

 

 

 

 

 [image]

 

Bouwblok IIb (bron: stad Antwerpen)

 [image]

Bouwblok IIb in opbouw

 

 

 

 

C.7 Andere relevante plannen en studies

 

C.7.1 Hoogbouwnota

 

De Hoogbouwnota vormt het ruimtelijke beleidskader voor hoogbouw in Antwerpen. Aanvragen voor hoogbouwprojecten worden afgetoetst aan de kwaliteitseisen, richtlijnen en aandachtspunten, geformuleerd in de hoogbouwnota.

 

De hoogbouwnota is een sturend en controlerend instrument voor kwaliteitsvolle hoogbouw op verschillende schaalniveaus, ongeacht de locatie. Zo wil de stad kwaliteit garanderen door de opname van criteria in de vorm van een checklist en het voeren van een traject in dialoog. De checklist bestaat uit hoofdthema's waarin kwaliteitseisen, richtlijnen en aandachtspunten worden aangereikt voor de stedenbouwkundige inplanting en de architecturale uitwerking van hoogbouwprojecten. Hierdoor wordt eerst de locatiegeschiktheid nagegaan en vervolgens de architecturale geschiktheid. Alle initiatieven worden onderworpen aan een grondige motivatie en moeten voldoen aan uitgebreide criteria.

 

 

 

C.7.2 Antwerpen, De stationsomgeving, een briljant in ontwikkeling

 

Het doel van deze studie was het ontwikkelen van een gedragen visie voor de stationsomgeving als leidraad voor de meest strategische delen van het gebied, rekening houdend met de duurzaamheidsdoelstelling van de stad Antwerpen. Op basis van de verschillende analyses zijn belangrijke knelpunten in de stationsomgeving naar voren gekomen.

 

Bij het opstellen van de visie zijn 60 interviews afgenomen met passanten in de stationsomgeving en zijn verschillende stakeholders betrokken zoals ontwikkelaars, belangrijke werkgevers, het openbaar vervoer en andere belanghebbenden.

 

Door de stakeholders werden verschillende strategische plekken en verbindingen benoemd in de stationsomgeving. Het Kievitplein is er één van.

 

Volgende sleutelkwesties met betrekking tot Kievit kwamen onder andere aan bod:

  • De stationsomgeving kent een duidelijke voor en achterkant;

  • Kievit 1 heeft een gesloten karakter;

  • Kievitplein opladen met buurtfuncties (wonen, werken) die doorgetrokken worden in de achterkant van de stationshal: groen en spelen;

 

De algemene samenvattende visie voor het Kievitplein werd als volgt geformuleerd:

Inrichting en functies gericht op wonen en werken. Bovendien een schakel tussen de Provinciestraat en Lange Kievitstraat. Toevoegen van groen, speelmogelijkheden en functies bouwblok 1 meer gericht op wonen. Het opheffen van de kiss en ride is besproken om meer ruimte te creëren. Volgens de ontwikkelingsrichting Large zou in het tussengebied een kralensnoer van openbare ruimten gerealiseerd kunnen worden: een ketting van uiteenlopende tuinen (Copernicussite, Kievitplein, stationshal, binnenterrein Pelikaansite en Stadspark).

 

 

 

 

 

 [image]

Lange Kievitstraat als belangrijke langzame verkeersverbinding tussen Kievit en Stadspark (bron: Briljant in ontwikkeling)

 

 

 

 

 

C.7.3 Impact vegetatie op hitte, luchtkwaliteit en geluid: Casestudie Centraal Station Antwerpen

 

Deze studie werd uitgevoerd door VITO in opdracht van de stad Antwerpen. Het eindrapport dateert van juni 2016.

 

De stad heeft in verschillende beleidsdocumenten haar ambities inzake duurzaamheid concreter vorm gegeven (Klimaatplan, duurzame stad voor iedereen, maatregelenstudie lucht en geluid).

 

Functioneel groen kan een belangrijke bijdrage leveren aan een leefbare woonomgeving. Het juiste groen op de juiste plaats kan leiden tot een betere luchtkwaliteit, een betere waterinfiltratie, minder geluidshinder, meer recreatie wat resulteert in positieve effecten voor gezondheid en economie. Om inzichten aan te reiken rond de mogelijkheden van het toepassen van functioneel groen heeft VITO een webtool ontwikkeld op vraag van Stad Antwerpen. Doel van dit instrument is stadsmedewerkers ondersteuning te bieden bij het uitwerken groenstrategieën en ontwikkelingsplannen.

In dit rapport wordt dit nieuwe instrument toegepast op de omgeving van het centraal station.

 

Volgende bevindingen kunnen gedestilleerd worden uit de webtool met betrekking tot de zone van het Centraal Station – Kievitwijk & Diamantwijk (De Kievitwijk – Diamantwijk is hier begrensd door Provinciestraat – Brialmontlei – Quinten Matsijslei – Schupstraat & Zuidrand Antwerpse Zoo):

 

  • Waterhuishouding. De wijk is voor 49% bebouwd, 38% infrastructuur en verharding, 9% bomen en 4 % overige groenmaatregelen (grasveld, struiken en anderen). De hoge verhardingsgraad in de Kievitwijk-Diamantwijk biedt weinig mogelijkheden voor retentie en infiltratie van regenwater, waterhuishouding is hier het thema met de hoogste impact voor bijkomende groenmaatregelen.

  • De hoge verhardingsgraad betekent echter dat deze zone zelf minder dan 4m² buurtgroen per inwoner. Bijkomend groen kan het groene karakter van de buurt dus aanzienlijk versterken en de nabijheid van groen drastisch verhogen.

  • Luchtkwaliteit. Het volledige stadscentrum is echter een zone met verhoogde polluentconcentraties, zoals blijkt uit de analyse en het kaartmateriaal.

 

Voor de Kievitwijk – Diamantwijk geeft de webtool volgende suggesties als interessante groenmaatregelen:

 

  • Intensief groendak;

  • Bomengroep naaldbomen;

  • Bomengroep loofbomen;

  • Houtkant en bosschage;

  • Heide.