Heraanleg Akkerbouwstraat
District Merksem legt in samenwerking met water-link en Aquafin uw straat opnieuw aan. De start van de werken is gepland op 4 augustus 2025. Bewoners van de straat kennen hun straat het beste en vulden vooraf een digitale bevraging over hun straat in. Daarna werden het concept en voorontwerp tijdens bewonersmomenten voorgesteld en besproken. Met behulp van deze input werd een definitief ontwerp opgemaakt voor de nieuwe straat.
De riolering in de Akkerbouwstraat is aan vernieuwing toe. Dit biedt de mogelijkheid om na de vernieuwing van de riolering ook de rijweg en het voetpad opnieuw aan te leggen. District Merksem voert deze werken samen uit met Aquafin vanaf de zomer van 2025.
De Akkerbouwstraat werd niet geselecteerd als woonstraat breekt uit binnen het stedelijk project Antwerpen Breekt Uit. Dit wijzigt de geplande heraanleg van de straat niet en biedt nog steeds kansen om te ontharden, vergroenen en verblauwen (infiltratie regenwater).
Aan de heraanleg van een straat gaat een langdurig proces vooraf, waarbij de bewoners vanaf het begin betrokken zijn. Met de input van de bewoners maken de ontwerpers een concept voor de straat dat opnieuw met de bewoners besproken wordt. Daarna maken de ontwerpers een voorontwerp en tenslotte een definitief ontwerp alvorens de werken effectief van start kunnen gaan.
Update werken november 2025
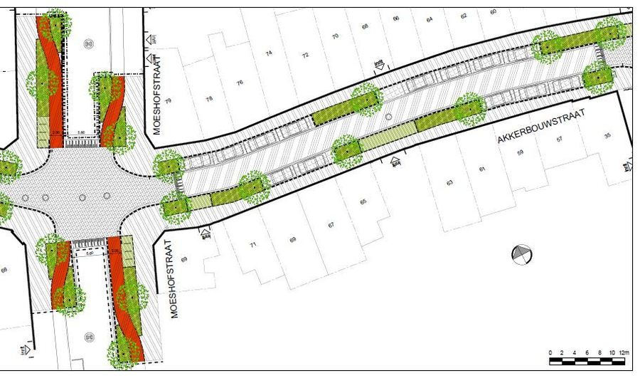
Fase 1 - tussen Frans Adriaenssensstraat en Moeshofstraat (inclusief kruispunt)
De aannemer werkt er in november de voetpaden en plantvakken verder af. In de tweede helft van november wordt het asfalt in de rijweg geplaatst. Aansluitend volgen de klinkerwerken op het kruispunt Moeshofstraat - Akkerbouwstraat.
Tijdens deze werken blijft dit gedeelte van de straat afgesloten. Fase 1 zal volledig klaar zijn en opnieuw opengesteld worden op 28 november.
Het aanplanten van de bomen en beplanting is voorzien tijdens het plantseizoen najaar 2025 – voorjaar 2026.
Fase 2 - tussen Moeshofstraat en Laaglandlaan
De aannemer start vanaf 19 november met de werken in fase 2. Eerst breekt hij het deel van de rijweg tussen Moeshofstraat en tot net voor het kruispunt met De Meers op. Daarna volgt de aanleg van de riolering in dit deel van de straat.
Rond 28 november volgt de opbraak van de wegenis van het kruispunt met De Meers en start de aannemer ook daar met de rioleringswerken.
Eind december is de riolering tussen Moeshofstraat en De Meers geplaatst. De aannemer brengt tijdelijk minder hinder steenslag aan zodat beperkt lokaal verkeer mogelijk is tijdens de kerstvakantie. Tijdens de kerstvakantie wordt er niet gewerkt in de straat.
In januari 2026 starten de rioleringswerken tussen De Meers en Laaglandlaan. Aansluitend wordt de bovenbouw in de volledige fase 2 aangelegd. Tegen de zomer van 2026 zijn de werken klaar. Tot dan blijft dit deel van de straat afgesloten.
Het aanplanten van de bomen en beplanting is voorzien tijdens het plantseizoen najaar 2026 - voorjaar 2027.
De straat is tijdens de werken afgesloten voor gemotoriseerd verkeer. De Meers loopt dood op de werfzone. In De Meers geldt een plaatselijk parkeerverbod om keren in de straat mogelijk te maken.
De bestaande gemengde riolering wordt vervangen door een afzonderlijke riolering voor afvalwater en een afvoerleiding (koker) voor regenwater. Daarnaast wordt de bovenbouw volledig vernieuwd. Er komen nieuwe voetpaden bestaande uit betonstraatstenen. Er komen verkeersplateaus en parkeerstroken in kasseien met waterdoorlatende voeg. Verder worden er bomen en groenvakken geplaatst in de parkeerstroken. Ook het kruispunt met Moeshofstraat wordt heraangelegd en voorzien van ruime groenvakken met bomen.
Vanaf maandag 4 augustus 2025 start de aannemer met de riolerings- en wegeniswerken. Hij werkt in verschillende fasen. De werfzone was oorspronkelijk voorzien tot voorbij het kruispunt (ca. tot nr. 76), maar moest een stukje worden uitgebreid om o.a. de complexe rioleringswerken beter te kunnen uitvoeren. De timing per fase ziet er zo uit:
Planning
| Fase | Plaats - omgeving werken | Start | Vermoedelijke duur | ||
|---|---|---|---|---|---|
| 1 | Akkerbouwstraat tussen Frans Adriaenssensstraat en nr 92 (incl. kruispunt Moeshofstraat). Het kruispunt met Moeshofstraat wordt pas in de loop van september afgesloten. Aanleg gescheiden rioleringsstelsel, vernieuwing bovenbouw (rijweg, voetpaden, parkeerstroken, drempel en groenvakken). De aanleg van de toplaag asfalt is weersafhankelijk. Mogelijk gebeurt dit pas in het voorjaar 2026. | 4/8/2025 | 4 maanden | ||
| 2 | Akkerbouwstraat tussen Moeshofstraat en Laaglandlaan. Aanleg gescheiden rioleringsstelsel, vernieuwing bovenbouw (rijweg, voetpaden, parkeerstroken, drempel en groenvakken) | december 2025 | 6 maanden |
Opgelet: deze planning is louter informatief en kan veranderen door onvoorziene omstandigheden (o.a. slecht weer).
Hinder en bereikbaarheid
De werfzone in de straat zal tijdens de werken volledig afgesloten zijn. De straat wordt per deel opgebroken. Eerst verwijdert de aannemer de wegenis en daarna graaft hij over korte afstand een sleuf voor de rioolbuis. Zodra de buis in de grond ligt, wordt de sleuf aangevuld en afgedekt met steenslag. De werfzone in de straat is afgesloten voor gemotoriseerd verkeer, maar door deze minder hinder – steenslag blijven de woningen wel bereikbaar voor hulpdiensten en in geval van nood.
Na de rioleringswerken wordt de resterende bestrating opgebroken en wordt de nieuwe wegenis aangelegd. De voetpaden blijven zo lang als mogelijk behouden.
In de werfzone is geen gemotoriseerd en fietsverkeer toegestaan. Garages zijn niet bereikbaar. De woningen blijven wel te voet (en met de fiets aan de hand) bereikbaar.
Tijdens fase 1 wordt het deel Akkerbouwstraat tussen Moeshofstraat en De Meers tijdelijk dubbelrichting en loopt dit deel van de straat dood op de werf. Ter hoogte van de werfzone geldt een parkeerverbod om terugkeren mogelijk te maken.
De Moeshofstraat tussen Rodeloopstraat en Akkerbouwstraat wordt volledig dubbelrichting en loopt dood op de werf. Er wordt plaatselijk een parkeerverbod ingesteld om dubbelrichtingsverkeer en keren in de straat dit mogelijk te maken.
Geveltuinen
Een geveltuin is een smalle strook groen tegen de gevel die rechtstreeks aan het voetpad aansluit. Deze zorgen mee voor een aangename woonomgeving met meer kleur en groen in jouw straat. De heraanleg geeft de mogelijkheid om ineens aan jouw woning een aantal tegels open te laten waar jij jouw geveltuin kan planten. De aannemer voorziet de opbraak van de tegels en het plaatsen van boordstenen en plantgrond. De plantjes dien je zelf nog te voorzien.
Heel wat bewoners hebben hun interesse voor een geveltuin reeds doorgegeven. Bent u ook geïnteresseerd? Laat dan zeker iets weten aan het district Merksem, via wijkoverleg.merksem@antwerpen.be
Voorbeelden van vergroenen en verblauwen
Informatie
Via deze webpagina kan je alle informatie over de heraanleg van de Akkerbouwstraat terugvinden zoals het conceptplan, voorontwerp, definitief ontwerp en infobrieven.
Wilt u op de hoogte blijven van dit project?
Als je graag op de hoogte blijft, dan kan je je hier inschrijven voor de digitale nieuwsbrieven over dit project. Vergeet niet jouw aanmelding te bevestigen door op de bevestigingsmail te klikken! Zo krijg je alle informatie, ook over de aanvang van de werken.
Uiteraard zal ook alle info terug te vinden op deze pagina.
Meer info
Wijkoverleg Merksem
Burgemeester J. Nolfplein 1
2170 Merksem
tel. 03 338 72 49
wijkoverleg.merksem@antwerpen.be


