|
6 BIJLAGE B JURIDISCHE PLANNINGSCONTEXT | ||||||||||||||||||||||||||||||||||||||||||||||||||||||||||||||||||||||||||||||
|
6.1 Gewestplan
Het plangebied wordt gesitueerd binnen het gewestplan 'Antwerpen" (KB op 3 oktober 1979).
Figuur: gewestplan Figuur: de bestemmingszoneringen van het gewestplan met in transparant de luchtfoto
Op basis van de luchtfoto met in transparante overdruk de zonering van het gewestplan is duidelijk zichtbaar dat de grenzen van de bestemmingszones niet overeenkomen met de bestaande, feitelijke en vergunde toestand. Meer bepaald: een aantal bestemmingszones zijn verschoven t.o.v. de fetelijke toestand. In het RUP worden deze zones aangepast aan de feitelijke en vergunde toestand, maar de voorschriften van het gewestplan worden quasi volledig hernomen in het RUP. Het oorspronkelijk gewestplan uit 1978 werd meermaals gewijzigd, waarbij de gewestplanwijziging van 1995 relevant was voor het plangebied: toen werd de bestemming “parkgebied” ten noorden van de jachthaven gewijzigd in “natuurgebied”. Figuur: Gewestplan 1978 (uitreksel uit kaartblad 15-7)
Figuur: Gewestplanherziening 1995
Volgende wijzigingen van zonering en of bestemming (zie kaart: gewestplanvergelijking onder 4.1):
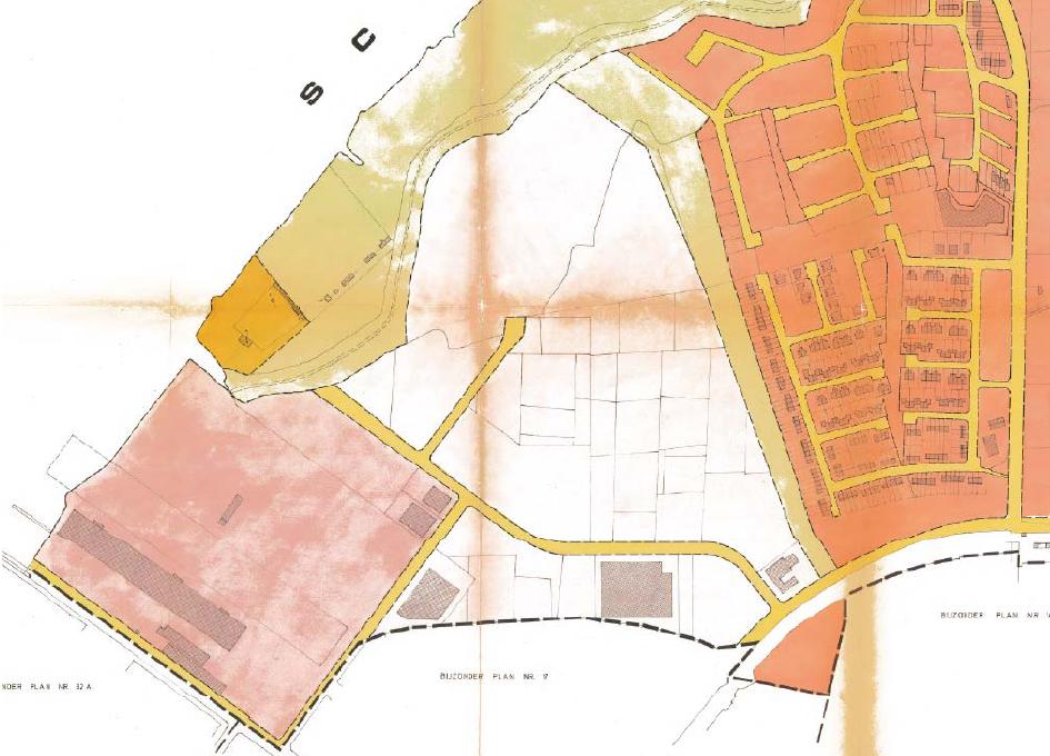
6.2 Rooilijnplan Volgende rooilijnplannen zijn van kracht: Kapelstraat(deel en nieuwe straten naar het veer) KB 21 mei 1948, Kapelstraat-nieuwe lijnrichting van huisnr 157 tot de kaaimuur oostwaarts 13 juli 1899, Kapelstraat (vroeger Kapellestraat wegnr.6) bouwlijnplan 25 april 1894, Kapelstraat bouwlijnplan 2 april 1929, en 11 september 1936. 6.3 Verkavelingen Binnen de grenzen van het RUP komen geen verkavelingen voor, maar wel in de omgeving. Ter informatie worden de verkavelingen in de onmiddellijke omgeving van het RUP hieronder weergegeven. Figuur: verkavelingen in de omgeving 6.4 Bijzondere plannen van aanleg of ruimtelijke uitvoeringsplannen
Binnen het plangebied komen geen geldende BPA's voor. Het plangebied grenst wel aan:
RUP Groen Zuid werd opgemaakt ter realisatie van een nieuwe woonontwikkeling op de voormalige bedrijfsterreinen van Alcatel-Bell. Sinds de stopzetting van de activiteit faciliteert het RUP de herontwikkeling van de site tot aandeel nieuwe woonontwikkeling en voorzieningen nabij het centrum van Hoboken. Het RUP Gravenhof wordt opgemaakt voor de realisatie van het cultuurcentrum. Het bestaande park wordt als groene zone gegarandeerd met ruimte voor het cc in een zone voor gemeenschapsvoorziening.
Figuur: RUP's in de omgeving: RUP Scanfil, RUP Gravenhof. 6.5 Vervallen plannen van aanleg
Tot 2000 waren er wel BPA's van kracht, deze worden ter informatie weergegeven. De BPA’s opgemaakt door de toenmalige gemeente Hoboken die het gebied bedekten, vormden het planologisch kader voor de huidige bestaande en vergunde toestand. Het betreft BPA’s nr 33 Poldergebied, dat het grootste gedeelte van het plangebied omvat, nr 32, nr 29 (Moretusburg) en nr 17 (Visputten). De relevante data voor deze (ontwerp-)BPA’s zijn:
Sinds het vervallen van de BPA’s nrs 33, 29, 32 en 17 (BVR 1/12/2000) is het gewestplan terug van kracht in het plangebied. De reden van het vervallen van BPA's werd decretaal geregeld met als doel de planologisch onoverzichtelijke situatie aan te pakken. Hierdoor werden slechts de noodzakelijk geachte BPA's t.o.v. het gewestplan behouden. Aangezien de BPA's waarover hier sprake planologisch gezien niet noodzakelijk waren te behouden en men pas achteraf bij de digitalisering van o.a. het gewestplan tot het inzicht kwam dat er een tekenfout
Figuur: Aanduiding van de BPA’s die tot 1 dec 2000 (BVR) het planologische kader vormden voor het gebied. BPA 33 In 1972 werd een BPA goedgekeurd voor de ontwikkeling van een groot deel van het poldergebied van de gemeente Hoboken tussen de Schelde en de spoorweg Antwerpen-Boom. Figuur: Uitreksel uit BPA 33 (KB26/9/1972) Figuur: Ontwerp herziening BPA 33 (19/11/1980) Op basis van dit plan werd een concreet inrichtingsplan uitgewerkt voor de woonwijk Polderstad en het industriegebied ten zuiden daarvan. Daarbij werd tevens een bufferzone voorzien tussen de woonwijk en het industriegebied. Tevens werd het buitendijks gebied uit de woonzone gehaald, en ingekleurd als parkgebied, behalve de zone van de toen bestaande jachthaven, die de bestemming recreatiegebied kreeg. Deze configuratie werd in 1978 overgenomen op het gewestplan Antwerpen. Parallel bereidde de gemeente Hoboken een herziening van het BPA nr 33 voor, maar dit ontwerp werd nooit geformaliseerd, omdat het – naar men toen dacht – volledig in overeenstemming was met het gewestplan.
BPA 17 Visputten In de jaren ’70 begon de gemeente Hoboken tevens met de ontwikkeling van de woonwijk Visputten tussen de wijk Moretusburg en de bestaande terreinen van sportclub Maccabi ten noorden, met twee groenzones die de nieuwe woonwijk bufferen t.o.v. het industriegebied ten westen ervan (cfr. BPA’s 32 en 33). Dit resulteerde in het ontwerp-BPA nr 17 Visputten, waarvan de bestemmingen in gegeneraliseerde vorm werden overgenomen op het gewestplan. Net als de herziening van BPA 33 werd ook BPA 17 nooit geformaliseerd.
Figuur: Ontwerp BPA Visputten (1/12/1979)
Conclusie Het is op basis van de ontwerp-BPA’s 33 en 17, ingetekend op het kadasterplan, dat alle vergunningen voor de bedrijven in de KMO- en industriezone werden afgeleverd tot begin jaren 2000. Toen kwam men, bij de digitalisering van de analoge gewestplannen en het maken van een overlay met het kadasterplan, tot de constatering dat de grenzen van de gewestplanbestemmingen aanzienlijk verschillen van de kadastrale grenzen. Concreet:
De westelijke helft van de recreatiezone van de jachthaven valt in de Schelde. Het gaat hier duidelijk om een foutieve intekening van de bestemmingsgrenzen op het gewestplan van 1978. Deze kan toegeschreven worden aan twee factoren:
Deze foutieve intekening was niet gekend toen men in 2000 beslist heeft om alle BPA’s binnen het plangebied te laten vervallen. Maar ze heeft sindsdien wel belangrijke negatieve effecten voor de bedrijven die op basis van het digitaal gewestplan deels zonevreemd blijken te liggen in buffer-zone, woongebied of recreatiegebied voor het bekomen van bouw- en milieu-vergunningen. Tevens bestaat het risico dat niet wenselijke bouwaanvragen worden ingediend voor woningbouw e.d. in woongebied volgens het digitaal gewestplan dat in de feitelijke toestand industriegebied of bufferzone is en ook als dusdanig had moeten bestemd zijn 6.6 Bufferen van bestemmingen
Het bufferen van sommige bestemmingszones gebeurt omdat de functies die in het gebied plaatsvinden mogelijks moeilijk verenigbaar of zelf conflicterend zijn, zoals bvb industrie en wonen vaak conficten met zich mee brengt. Bij een stedenbouwkundige aanvraag wordt er dubbel inhoudelijk beoordeeld: beoordeling van de wettigheid en beoordeling van de opportuniteit. De wettigheid heeft betrekking op: de Vlaamse Codex voor Ruimtelijke Ordening, een ruimtelijk uitvoeringsplan vult hierbij aan. De beoordeling van de opportuniteit gaat over de een goede ruimtelijke ordening. De Vlaamse Codex voor Ruimtelijke Ordening, waaronder ook de omzendbrieven, geeft aan op grond van welke beginselen de overeenstemming met de goed ruimtelijke ordening moet worden beoordeeld. Van belang in dit RUP is uiteraard de omzendbrief betreffende de inrichting en de toepassing van de ontwerp-gewestplannen en gewestplannen, gewijzigd via omzendbrief dd25/1/2002 en 25/10/2002, van 8 juli 1997. Hierin is vermeld onder punt 7.2 het belang van bufferen van vestigingen van industriële of ambachtelijke bedrijven. De basisprincipe is dat de buffering van een bedrijf moet gebeuren binnen de eigen bestemmingszones en niet mag worden afgewenteld op de omgeving. 6.7 Sectorale plannen 6.7.1 VEN-gebied en Habitatrichtlijn
Een deel van het gebied is gelegen in Vlaams Ecologisch Netwerk en Habitatrichtlijn. De Habitatrichtlijn is een speciale beschermingszones in uitvoering van de Europese Richtlijnen 92/43/EEG (Habitatrichtlijn) en 2009/147/EG (Vogelrichtlijn) : de habitatrichtlijngebieden (SBZ-H) en de vogelrichtlijngebieden (SBZ-V). Deze richtlijn heeft tot doel de biodiversiteit in de lidstaten te behouden en streeft naar de instandhouding en het herstel van de natuurlijke habitats en de wilde flora en fauna die hiervan deel uitmaken. Een deel van het gebied is aangeduid als habitat-richtlijn-gebied (zie figuur: groen) (slikken en schorren). Een deel van de jachthaven is aangeduid als GEN (zie figuur: gearceerd), echter reeds rond 1970 was dit stuk al in gebruik als jachthaven. Het gebied ten zuiden van de Boombekelaan, ter hoogte van het pompgemaal en waterbufferbekken is in het verleden en nog steeds groen ingericht. Het sluit aan bij de afbakening van de grote eenheid natuur. Natuurreservaat Hobokense Polder ligt volledig in VEN-gebied; daarnaast is ook nog een deel slikken en schorren in de Schelde en het zuidoostelijk deel van de jachthaven aangeduid als VEN-gebied. Dit laatste is het gevolg van de foutieve intekening van de jachthaven (recreatiegebied) op het gewestplan. Het KMO gebied ten zuiden van de Boombekelaan wordt omgevormd tot groengebied met waterbuffering. De ruimte sluit aan op het VEN gebied.
Figuur: kaart VEN-gebied en Habitatrichtlijn 6.7.2 Biologische waarderingskaart
Figuur: biologische waarderingskaart Biologisch waardevol (lichtgroen (terreinbezoek 2000). Slik of spuikom, biologisch zeer waardevol (donker groen) terreinbezoek (1998). 6.7.3 Archeologische adviesplicht
Door de archeologische dienst van de stad Antwerpen is een beleidsondersteunende advieskaart aangemaakt. Deze beleidsondersteunende advieskaart is opgebouwd uit verschillende zones die elk, vanuit archeologisch en planologisch opzicht, anders moeten benaderd worden. Deze kaart en de afbakening van de zones houden geen restricties in wat betreft de ruimtelijke planning. Zij regelt enkel de inspraak van de archeologie in ruimtelijke ontwikkelingen die gepaard gaan met bodemingrepen en dus per definitie ook gevolgen voor het archeologisch patrimonium (kunnen) hebben. Het studiegebied van het RUP is grotendeels gelegen in de 'algemene onderlaag', wat betekent dat adviesplicht geldt voor projecten met grondwerken groter dan 2000 m². 6.7.4 Beschermde monumenten & landschappen en landschapsatlas
In het gebied bevindt zich geen beschermd monument, stads- of dorpsgezichten of landschap. In haar onmiddellijke omgeving bevindt zich het natuurgebied de Hobokense Polder. Dit is geklasseerd als beschermd landschap. De landschapsatlas geeft het landschappelijk erfgoed weer. De onmiddellijke omgeving bevat het volgende element.
Figuur: kaart beschermd landschap en landschapsatlas 6.7.5 Overstromingsgevoelige gebieden
Conform artikel 8 van het decreet inzake integraal waterbeleid moet het RUP in het kader van de planvorming en het vergunningenbeleid getoetst worden op de watergerelateerde aspecten. Delen van het studiegebied zijn aangeduid als effectief overstromingsgevoelig. Het gaat met name om een grote zone in de omgeving van de Boombekelaan nabij de Grote Leigracht.
Figuur: overstromingsgevoelige gebieden kaart In het groene deel zijn de gebieden aangeduid die effectief overstromingsgevoelig zijn. Vooral de Boombekelaan kampt volgens de kaarten uit 2011 met een effectieve gevoeligheid voor overstroming. De lichtblauw gekleurde zones zijn mogelijk overstromingsgevoelig. Bijna de volledige KMO-zone, het woongebied Polderstad, ‘de Hobokense Polder’ en het gebied aan de Charlotta Finckstraat zijn ‘mogelijk overstromingsgevoelig’. Blijkt dat de overstromingsrisico’s ten grondslag liggen aan de lage topografische ligging van de buurt. Polderstad is zeer laag gelegen (rond 3 a 4m TAW, sommige delen nog lager), kent een diepe grondwaterstand, de Boomseklei komt tot bijna aan het maaiveld. Richting Moretusburg loopt het maaiveld snel omhoog tot circa 15 m TAW. Door de uitvoering van de Sigmawerken (verhoging en verzwaring dijk langs de Schelde) zal het risico tot overstroming in Polderstad vanuit de Schelde sterk verminderen. De Grote Leigracht ligt in het Benedenscheldebekken. De Grote Leigracht is de “hoofd rivier” (noordelijke tak). De Kleine Leigracht is een zuidelijke zijtak. Tenminste, zo stroomde het vroeger… De Vlaamse Hydraulische Atlas (VHA) is voornamelijk gebaseerd op de Atlas der Waterlopen, met aanduiding van de beheerder en categorieën. Omdat sinds 1950 de Atlas der Waterlopen niet meer is aangepast, stemt deze (en dus ook de VHA) op veel plaatsen niet meer overeen met de werkelijkheid. De Hobokense Polder, Polderstad en KMO-zone is zo’n geval. Vanaf de jaren vijftig is met de heruitgaven van de Atlas der Waterlopen (1950 -) een complexe indeling van de Leigrachten tot stand gekomen. De Grote Leigracht stroomt door het ‘natuurgebied’ De Hobokense Polder; in beheer door Natuurpunt. Zij onderhouden i.s.m. de provincie een deel, ook de stad beheert een deel. Figuur: Grote Leigracht, de risicozones voor overstroming en recent overstroomde gebieden
Met de woningbouw in de polder is systematisch het stroomafwaartse deel van de Grote Leigracht en de Kleine Leigracht ingebuisd en onderdeel gaan vormen van het rioleringsstelsel. Momenteel stroomt het noordelijk deel van de Grote Leigracht langs de Naftaweg naar de Olieweg, onder de D’Herbouvillekaai om in de Schelde geloosd te worden. Het zuidelijke deel van de Grote Leigracht watert af in zuidwestelijke richting naar de Scheldelei. Daar stroomt het in de openbare riolering naar het pompstation aan de Boombekelaan, hoek Congobootstraat. Dit pompstation perst het gemengde afval- en rivierwater naar de rioolwaterzuiveringsinstallatie (rwzi) Antwerpen-Zuid aan het Kielsbroek. Na zuivering wordt het geloosd in de Schelde. De zuiveringsbeheerder Aquafin heeft een bovengemeentelijk project voorgesteld om de Grote Leigracht af te koppelen van de riolering en een RWA-uitlaat voor Hoboken centrum te voorzien die rechtsreeks op de Schelde loost. Zo kan de situatie verbeterd worden. Dat project is in voorontwerpfase. De uitvoering wordt gepland na 2015. In het gebied, ter hoogte van de kil (inham van de Schelde), is een klein terrein dat is ingericht als slibveld. Hier wordt het slib dat afkomstig is van veegwagens opgehaald en afgevoerd. In het masterplan technische gebouwen waar alle technische functies (werking van de stad Antwerpen) zullen worden geclusterd, een in het noorden en een in het zuiden van de stad zal deze functie worden opgenomen. Hierdoor verdwijnt de functie in het gebied en verhuist het naar een nieuwe cluster. Vooropgestelde timing is 2018. Hierdoor is de noodzakelijke extra ruimte voor waterberging op termijn mogelijk. Het pompstation gelegen aan de ingang (hoek Congobootstraat) is van Aquafin en verpompt afvalwater. Deze staat op grond van Aquafin. Een tweede pompstation ligt aan de Scheldezijde onder de rijplaten van de stadsreiniging. Deze is van de stad Antwerpen en in beheer bij Riolink. Het is dit pompstation dat in de toekomst vervangen zal moeten worden door een groter gemaalstation op ongeveer dezelfde locatie.
6.7.6 Samenvattende tabel
| ||||||||||||||||||||||||||||||||||||||||||||||||||||||||||||||||||||||||||||||

![i_RUP_11002_214_60005_00001_200096.png [image]](i_RUP_11002_214_60005_00001_200096.png)
![i_RUP_11002_214_60005_00001_200097.png [image]](i_RUP_11002_214_60005_00001_200097.png)
![i_RUP_11002_214_60005_00001_200098.png [image]](i_RUP_11002_214_60005_00001_200098.png)
![i_RUP_11002_214_60005_00001_200099.png [image]](i_RUP_11002_214_60005_00001_200099.png)
![i_RUP_11002_214_60005_00001_200100.png [image]](i_RUP_11002_214_60005_00001_200100.png)
![i_RUP_11002_214_60005_00001_200101.png [image]](i_RUP_11002_214_60005_00001_200101.png)
![i_RUP_11002_214_60005_00001_200102.png [image]](i_RUP_11002_214_60005_00001_200102.png)
![i_RUP_11002_214_60005_00001_200103.png [image]](i_RUP_11002_214_60005_00001_200103.png)
![i_RUP_11002_214_60005_00001_200104.png [image]](i_RUP_11002_214_60005_00001_200104.png)
![i_RUP_11002_214_60005_00001_200105.png [image]](i_RUP_11002_214_60005_00001_200105.png)
![i_RUP_11002_214_60005_00001_200106.jpg [image]](i_RUP_11002_214_60005_00001_200106.jpg)
![i_RUP_11002_214_60005_00001_200107.jpg [image]](i_RUP_11002_214_60005_00001_200107.jpg)
![i_RUP_11002_214_60005_00001_200108.jpg [image]](i_RUP_11002_214_60005_00001_200108.jpg)
![i_RUP_11002_214_60005_00001_200109.jpg [image]](i_RUP_11002_214_60005_00001_200109.jpg)
![i_RUP_11002_214_60005_00001_200110.jpg [image]](i_RUP_11002_214_60005_00001_200110.jpg)
