|
PRUP RIVIERENHOF | |||||||||||||||||||||||||||||||||||||||||||||||||||||||||||||||||||||||||||||||||||||||||||||||||||||||||||||||||||||||||||||||||||||||||||||||||||||||||||||||||||||||||||||||||||||||||||||||||||||||||||||||||||||||||||||||||||||||||||||||||||||||||||||||||||||||||||||||||||||||||||||||||||||||||||||||||||||||||||||||||||||||||||||||||||||||||||||||||||||||||||||||||||||||||||||||||||||||||||||||||||||||||||||||||||||||||||||||||||||||||||||||||||||||||||||||||||||||||||||||||||||||||||||||||||||||||||||
|
Memorie van toelichting
Ruimtelijk planner: Katrien Van den Bergh Gezien en defintief vastgesteld door de provincieraad van Antwerpen van 23 april 2009 De Provinciegriffier, De Voorzitter, D. Toelen L. Neefs
Dienst Ruimtelijke Planning
Colofon
Opdrachtgever: Dienst Ruimtelijke Planning projectteam:
Opdrachthouder: Grontmij projectteam:
1. Inleiding 1.1. Omschrijving van de opdracht
Het voorwerp van de opdracht bestaat erin een provinciaal ruimtelijk uitvoeringsplan (PRUP) op te maken voor het provinciaal groendomein Rivierenhof. Het PRUP is uitgewerkt op basis van de structuurvisie voor het Rivierenhof zoals goedgekeurd door de deputatie op 21 december 2007. Binnen de structuurvisie is ruime aandacht besteed aan het uitwerken van een leesbare structuur voor het park en aan het onderling afstemmen van de vele activiteiten die het park telt. Hierbij is rekening gehouden met de ruimtelijke, fysische en maatschappelijke randvoorwaarden. Voorliggend document betreft de memorie van toelichting horende bij het provinciaal ruimtelijk uitvoeringsplan. In deze nota zijn de analyses en visies uit de structuurvisie verwerkt. 1.2. Algemeen kader van het PRUP
De provincie Antwerpen is in toepassing van artikel 44 van het decreet houdende de ruimtelijke ordening van 18 mei 1999 bevoegd voor het opmaken van eigen provinciale ruimtelijke uitvoeringsplannen (PRUP), en dit ter uitvoering van het Ruimtelijk Structuurplan van de provincie Antwerpen (RSPA). De provincie kan onder meer PRUP’s opmaken voor de 14 geselecteerde toeristischrecreatieve knooppunten uit het RSPA. Het domein Rivierenhof is bij de opmaak van het RSPA niet geselecteerd als toeristisch-recreatief knooppunt. Het RSPA voorziet echter dat nieuwe toeristisch-recreatieve knooppunten kunnen worden aangeduid ‘door een nog op te richten overlegorgaan’. Op 19 april 2006 legde de provincie de selectie van het Rivierenhof als bijkomend toeristisch-recreatief knooppunt voor aan een vergadering met verschillende Vlaamse administraties, de planologisch ambtenaar en ARP. Uit deze vergadering bleek dat de provincie een PRUP kan opstarten voor het domein Rivierenhof als uitvoering van het RSPA. Naast de selectie van het Rivierenhof als toeristisch-recreatief knooppunt binnen het kader van het RSPA, maakt het Rivierenhof ook deel uit van de provinciale open ruimte vinger van de vallei van het Groot Schijn. Bovendien wordt de Schijnvallei in het RSPA geselecteerd als een provinciale natuurverbinding. Het Ruimtelijk Structuurplan Vlaanderen (RSV) stelt dat in gebieden die door de provincie als toeristisch-recreatief knooppunt of als netwerk van primair toeristischrecreatief belang zijn aangeduid, er nieuwe en grootschalige toeristisch-recreatieve infrastructuur kan worden gelokaliseerd, steeds afgestemd op het niveau van het betrokken stedelijk gebied, de draagkracht van de ruimte en het locatiebeleid. In het geval van het Rivierenhof betekent dit dat rekening moet worden gehouden met de functie van het Rivierenhof als stedelijk groengebied, met de selectie van de Schijnvallei als open ruimte vinger en als natuurverbinding en met de herwaardering van de Schijnvallei. Binnen het afbakeningsvoorstel van het grootstedelijk gebied Antwerpen wordt het Rivierenhof aanzien als een grootstedelijk landschapspark. Het park heeft zowel een recreatieve als een ecologische functie. Binnen het Regionaal Landschap de Voorkempen is het Rivierenhof geselecteerd als hoofdpoort. 1.3. Procesverloop
Bij de opmaak van de structuurvisie is een ruime overlegronde georganiseerd met de diverse provinciale diensten die betrokken zijn met een welbepaalde sector of doelgroep binnen het park:
Ook zijn een aantal actoren op Vlaams en gemeentelijk niveau geconsulteerd om de haalbaarheid van de structuurvisie af te toetsen:
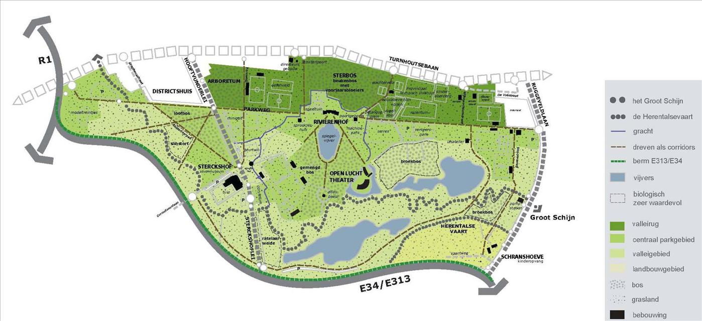
1.4. Leeswijzer Leeswijzer Voor de naamgeving en situering van de onderdelen van het park wordt verwezen naar bovenstaande kaart.
2. Identiteit van het Provinciaal Groendomein Rivierenhof Het Rivierenhof als Provinciaal Groendomein is een sterk gewaardeerd en druk bezocht park dat voor iedereen vrij toegankelijk is. Het Rivierenhof vervult binnen de stedelijke omgeving een belangrijke taak op het gebied van vrijetijdsbesteding en dit voor alle leeftijdscategorieën. Rust en ontspanning zijn hierbij de voornaamste doelstellingen: wandelaars, sportliefhebbers, natuurliefhebbers en andere parkbezoekers van uiteenlopende leeftijd kunnen er rondwandelen, zich ontspannen of vermaken en diverse sporten beoefenen. Op een hoger schaalniveau is het Rivierenhof eveneens een belangrijke ontmoetingsruimte voor diverse activiteiten waarbij het park een uniek kader vormt. Door allerhande ontwikkelingen is het Rivierenhof vandaag echter geëvolueerd naar een eerder versnipperd Groendomein. Om bovenvermeld profiel van het Rivierenhof te kunnen handhaven zal de uitdaging er dan ook uit bestaan om door deze structuurvisie een samenhangend en overzichtelijk park te creëren waarbij elke activiteit en functie hun plaats vinden. Bovendien bestaat de opdracht eruit om een realistisch of haalbaar plan op te maken waarbij belang gehecht wordt aan de behoeften van alle partijen. 3. Algemene situering Situering Het Provinciaal Groendomein Rivierenhof bevindt zich aan de rand van de stad Antwerpen, hoofdzakelijk in de deelgemeente Deurne. Het domein wordt begrensd door een aantal grote infrastructuren zijnde in het zuiden de E34/A21 en de E313/A13, in het westen de ring R1 rond Antwerpen en in het noorden de Turnhoutsebaan N12. Het Rivierenhof maakt deel uit van het valleigebied van het Groot Schijn dat zich uitstrekt van Westmalle tot in Deurne en wordt getypeerd door een opeenvolging van recreatieve voorzieningen en groengebieden die binnen de desbetreffende gemeenten een belangrijke rol vervullen in de aanwezigheid van open ruimte. Van al deze recreatieve voorzieningen en groengebieden situeert het Rivierenhof zich het dichtst bij de stad Antwerpen. De provincie Antwerpen beschikt over 16 domeinen waaronder het Rivierenhof. Het Rivierenhof neemt een oppervlakte in van circa 130ha en is grotendeels eigendom van de provincie Antwerpen.
Luchtfoto Topografische kaart
4. Planningscontext 4.1. Relatie met het gewestelijk niveau 4.1.1. Ruimtelijk structuurplan Vlaanderen (RSV)
Het RSV is op 23 september 1997 bij besluit van de Vlaamse regering goedgekeurd. Op 12 december 2003 heeft de Vlaamse regering de herziening van het RSV definitief vastgesteld. Antwerpen als grootstedelijke gebied binnen een stedelijk netwerk van internationaal niveau Antwerpen is samen met een aantal randgemeenten geselecteerd als grootstedelijk gebied. Dit betekent dat ontwikkeling, concentratie en verdichting centraal staan, maar steeds met respect voor de draagkracht van het stedelijke gebied. Gelijktijdig maakt Antwerpen deel uit van het stedelijke netwerk van internationaal niveau, de Vlaamse Ruit. Dit gebied is van internationaal economisch belang. Toeristisch-recreatieve ontwikkelingsperspectieven Enkel in de gebieden die in het provinciaal ruimtelijk structuurplan als toeristischrecreatief knooppunt of netwerk van primair belang zijn aangeduid, zijn nieuwe toeristische en recreatieve voorzieningen met bijkomend ruimtegebruik mogelijk. De omvang en de reikwijdte van de voorzieningen moet getoetst worden aan de ruimtelijke principes voor de gewenste ruimtelijke structuur en moet afgestemd worden op de draagkracht van de ruimte en op het niveau van het stedelijke gebied. Medegebruik met andere activiteiten en functies staat steeds voorop. Bovenlokale lijninfrastructuren De Ring rond Antwerpen, R1, en de autosnelweg, E313/A13, zijn geselecteerd als hoofdwegen. De Singel, R10, is geselecteerd als primaire weg II. 4.1.2. Afbakeningsproces Grootstedelijk gebied Antwerpen
De nota versie 15 april 2005 is een voorstudie die nog niet goedgekeurd of bekrachtigd is door de Vlaamse regering. Het afbakeningsproces van het Grootstedelijk gebied Antwerpen is een uitvoering van de bindende bepalingen van het RSV. De afbakening en invulling van het stedelijk gebied worden in een volgende fase vertaald in gewestelijke ruimtelijke uitvoeringsplannen. Rivierenhof binnen de afbakeningslijn Het Rivierenhof is gelegen binnen de hypothese van afbakeningslijn van het Grootstedelijk gebied Antwerpen.
Rivierenhof als onderdeel van de Grootstedelijke open ruimte structuur Binnen de Grootstedelijke open ruimte structuur wordt het Rivierenhof aangeduid als een onderdeel van het landbouwgebied met een belangrijk aandeel gelegenheidsbedrijven. Vanuit natuur wordt het Groot Schijn binnen het Rivierenhof aanzien als een waardevol aaneengesloten natuurlint met eveneens een belangrijke landschappelijke waarde. Grote delen van de valleien bezitten nog het traditionele karakter bestaande uit alluviale bossen, natte graslanden afgewisseld met kleine landschapselementen. Het Rivierenhof is omwille van de historische en architecturale waarde, aangeduid als landschappelijk waardevol. Volgens de gewenste open ruimte structuur functioneren het ringbos en de vijf Antwerpse parken, waarvan het Rivierenhof er één van is, als grootstedelijke parken. Zij zijn belangrijke schakels in de grootstedelijke groenstructuur. Zij garanderen de verweving van open ruimten doorheen het Antwerpse. De parken en het ringbos hebben zowel een ecologische als een recreatieve functie.
4.1.3. Afbakeningsproces buitengebied
Voor het afbakeningsproces van het buitengebied is een verkenningsnota opgemaakt, die momenteel besproken wordt met de provincie en de betrokken gemeenten.
4.14. Gewestplan
Het gewestplan Antwerpen is op 05/08/1976 bij KB goedgekeurd. Het merendeel van het Rivierenhof is bestemd als parkgebied. De voetbalvelden van Tubantia, Rapid en SAVA evenals de terreinen van de keeperschool, van korfbalclub Meeuwen en van tennisclub TC Ruggeveld zijn gelegen in gebied voor dagrecreatie. Ook de parking aan de Ruggeveldlaan, de korfbalvelden van Riviera, AKC en ATBS en het voetbalveld Sint Augustinus zijn in gebied voor dagrecreatie gelegen. De parking aan de Turnhoutsebaan, het Sterckshof, het openluchttheater, de school P.T.I. en het terrein ten westen van de keeperschool zijn bestemd als gebied voor gemeenschapsvoorzieningen en openbaar nut.
Gewestplan
4.1.5. Gewestelijke ruimtelijke uitvoeringsplannen (GewRUP)
Ten westen van het plangebied is het GRUP Oosterweelverbinding gelegen dat op 16 juni 2006 door de Vlaamse Regering is goedgekeurd. Het plangebied is aangeduid op het plan met weergave van de juridische toestand. Antwerpen beschikt over een zeer uitgebreid wegennet en ligt op het kruispunt van verschillende belangrijke internationale wegen (E17, E19, E34-N49, A12). Al deze wegen worden verbonden door de kleine ring rond Antwerpen (R1). Het autoverkeer op de ring rond Antwerpen ondervindt meer en meer problemen als gevolg van verkeersopstoppingen en files door structurele knelpunten, ongevallen, wegenwerken en incidenten. De congestie heeft zware gevolgen voor de bereikbaarheid van de Antwerpse agglomeratie en vooral voor de haven en de industrie rond de haven. De R1 lijdt aan oververzadiging. Bij ongevallen of werken zijn geen haalbare alternatieven beschikbaar. Om een antwoord te bieden op deze problemen, werd in 1997 het Masterplan Antwerpen opgesteld waarbij na onderzoek en afweging een reeks projecten zijn aangereikt die beschouwd kunnen worden als de “prioriteit der prioriteiten”. Het gaat hierbij o.m. om de sluiting van de kleine ring (de Oosterweelverbinding), de optimalisatie van de Singel, de herinrichting van een aantal gewestwegen, een aantal stedelijke openbaar vervoersprojecten (tram) en enkele optimalisatieprojecten voor het waterwegentransport. Het gewestelijk RUP ‘Oosterweelverbinding’ is een belangrijke stap in de uitvoering van het Masterplan Antwerpen. Het omvat het sluiten van de kleine ring R1 aan de noordzijde van de stad Antwerpen ter hoogte van Oosterweel. GRUP Oosterweelverbinding 4.2. Relatie met het provinciaal niveau 4.2.1. Ruimtelijk Structuurplan Provincie Antwerpen (RSPA) Het RSPA is op 10 juli 2001 bij ministerieel besluit goedgekeurd. Het Rivierenhof binnen de hoofdruimte ‘Antwerpse fragmenten hoeksteen van de Vlaamse ruit’ en de deelruimte ‘Grootstedelijk Antwerpen’ Het Rivierenhof maakt deel uit van de hoofdruimte ‘ Antwerpse fragmenten hoeksteen van de Vlaamse ruit’ waar binnen een sterk verstedelijkt gebied aandacht wordt geschonken aan het vrijwaren van de kwetsbare en natuurlijk waardevolle gebieden. Binnen deze hoofdruimte wordt het plangebied binnen de deelruimte ‘Grootstedelijk Antwerpen’ gesitueerd. De doelstellingen binnen deze deelruimte zijn het vernieuwen van het grootstedelijk gebied, het uitbouwen van kwalitatieve woonomgevingen, het vrijwaren van groene vingers, het verbeteren van de bereikbaarheid en het uitbouwen en inrichten van grootstedelijke assen. Rivierenhof als toeristisch-recreatief knooppunt binnen een gebied van primair toeristisch-recreatief belang Binnen de gewenste toeristisch-recreatieve ruimtelijke structuur worden een aantal toeristisch recreatieve knooppunten geselecteerd. Het betreft aantrekkingsgebieden met hoogdynamische infrastructuren van Vlaams of provinciaal niveau. Alleen de provincie kan voor deze knooppunten ruimtelijke uitvoeringsplannen opmaken waarin een specifiek ruimtelijk ontwikkelingsperspectief wordt vastgelegd. Het domein Rivierenhof is bij de opmaak van het RSPA niet geselecteerd als toeristisch-recreatief knooppunt. Het RSPA voorziet echter dat nieuwe toeristisch recreatieve knooppunten kunnen worden aangeduid ‘door een nog op te richten overlegorgaan’. Op 19 april 2006 legde de provincie de selectie van het Rivierenhof als bijkomend toeristisch-recreatief knooppunt vast. Bovendien is het stedelijk gebied Antwerpen geselecteerd als een gebied van primair toeristisch-recreatief belang. Groot Schijn als provinciale natuurverbinding Doorheen de stedelijke bebouwing van Antwerpen wordt het Groot Schijn als natuurverbinding tussen het anti-tankkanaal en de samenvloeiing van de beide Netes geselecteerd. Dit betekent dat het beleid gericht is op het behoud en op de versterking van het ruimtelijk structuurbepalend karakter door onder meer een stevige ecologische samenhang te realiseren. Vallei van het Groot Schijn als open ruimte verbinding Binnen het grootstedelijk gebied Antwerpen is de vallei van het Groot Schijn, met inbegrip van het Rivierenhof, geselecteerd als open ruimte verbinding. In het ontwikkelingsperspectief voor de open ruimte verbindingen wordt nieuwe bebouwing zoveel mogelijk geweerd en de ruimtelijke relatie tussen de verbonden gebieden gewaarborgd. De N12 als secundaire weg type III De N12 of de Turnhoutsebaan, die de noordelijke grens van het plangebied vormt, wordt geselecteerd als secundaire weg type III of een belangrijke fiets- en openbaar vervoersas met een lokale en bovenlokale verbindingsfunctie. Bindende bepaling n°36 Voor de gebieden van primair toeristisch-recreatief belang worden geïntegreerde gebiedsgerichte strategische plannen opgemaakt.
4.2.2. Provinciale ruimtelijke uitvoeringsplannen (PRUP) In of in de nabijheid van het plangebied zijn geen provinciale ruimtelijk uitvoeringsplannen gelegen.
4.3. Relatie met het gemeentelijk niveau 4.3.1. Strategisch Ruimtelijk structuurplan Antwerpen (s-RSA) Het s-RSA is op 21 december 2006 door deputatie goedgekeurd. Het Rivierenhof als onderdeel van de strategische ruimten binnen de zachte ruggengraat Het Schijnvalleipark moet de ontwikkeling garanderen van een aaneengesloten park langs de Schijnvallei dat de verbinding maakt van de groene vinger in Wommelgem/Ranst met de Schelde en het centrum. Het park vormt zowel een functionele als een ecologische verbinding: enerzijds moeten de specifieke ecologische waarden rond de Schijn ontwikkeld kunnen worden, anderzijds kan het park tegemoet komen aan (recreatieve) noden in Deurne en Borgerhout. Belangrijk is wel dat de voorzieningen in het park rekening houden met belangrijke specifieke aspecten verbonden aan de Schijn, met name de doorwaadbaarheid van de bodem en de traditionele topografie. Informele sport is toegelaten. Water in de stad De mogelijkheden van de Waterstad moeten terug bekeken worden. De elementen die van strategisch belang zijn voor het herstel van het waternetwerk moeten opnieuw besproken, en waar mogelijk, actief gemaakt worden. Hierbinnen speelt de Schelde een cruciale rol. De grote beken en rivieren, waaronder het Groot Schijn, moeten onderdeel uitmaken van een grootschalig netwerk dat aansluit op de Schelde. Ook de historische waterstructuur, waaronder de Herentalse vaart dient bekeken te worden in de ruimtelijke structuur van de stad enerzijds en hoe dit een antwoord kan bieden op de verdroging van de stad anderzijds. Ook staat als suggestie naar de provincie vermeldt dat de parken verbonden dienen te worden met de Schelde. Behoud en versterking waardevol patrimonium Behoud van het waardevol patrimonium, zowel boven-als ondergronds, is een belangrijk aandachtspunt, waarbij het versterken van betekenissen en waarden van dit erfgoed vooropgesteld moet worden. Zorgvuldige inventarisatie van en systematische bewustmaking over het archeologisch en monumentaal patrimonium zijn prioritair. Voor alle cultuurhistorische en architecturaal waardevolle gebouwen moet een functiewijziging mogelijk zijn ten einde deze in stand te kunnen houden. Groene Singel Het gebied langs de Singel wordt gekenmerkt door de aanwezigheid van het spoorwegviaduct en door marginale, gefragmenteerde of eenvoudige groene buffers. Het voornaamste thema is het versterken van enkele verbindingen en het introduceren van een nieuw gebruik van de ruimten onder het viaduct. De mogelijkheid om enkele arcades te openen moet onderzocht worden. De herwonnen ruimte kan nieuwe functies huisvesten (kleine diensten , toegangen tot ondergrondse parkeerruimten of commerciële func ties) en kan nieuwe relaties tussen het achterliggende weefsel en de Singel mogelijk maken. Anderzijds moet de buffer ten opzichte van de snelweg versterkt worden. De wens bestaat om een eventuele groene schakel te verzekeren tussen het Rivierenhof en Spoor Oost, langsheen de Singel. Verondersteld wordt dat het project voor een nieuw park met gemengde functies (wonen en KMO) op de eigenlijke plaats ontwikkeld wordt. Dat is ook coherent met de noodzaak om de Singel, als groene stedelijke ruimte, de gepaste omvang te geven op een heel moeilijk punt. Daarnaast beslaat het project de reorganisatie van een publieke en uitgeruste ruimte, met de mogelijkheid de ruimte in de nabijheid van het station Antwerpen Oost mee op te nemen. 4.3.2. Bijzondere plannen van aanleg (BPA) Ten noordwesten van het plangebied is het BPA Deurne Dorp gelegen op 26 juni 2007 bij ministerieel besluit is goedgekeurd. Volgende ruimtelijke concepten liggen aan de basis voor de opmaak van het BPA Deurne Dorp:
• Bereikbaar en ontsloten Voor de Turnhoutsebaan, als belangrijkste verkeersdrager door het gebied, worden een aantal keuzes gemaakt: De Turnhoutsebaan wordt ontwikkeld als openbaar vervoeras en as voor langzaam verkeer, wat op de eerste plaats een vlotte doorstroming voor het openbaar vervoer betekent, alsook meer aandacht voor de zwakke weggebruiker (aparte fietspaden, brede voetpaden, verhoogde oversteekbaarheid en een aangepaste snelheid van het gemotoriseerd verkeer). Het autoverkeer behoud zijn doorgang door Deurne-Dorp, maar zal in snelheid worden afgeremd. Vrachtverkeer zonder bestemming in Deurne-Dorp wordt buiten het dorp afgeleid. Dit impliceert een grondige aanpak van de Turnhoutsebaan en de kruispunten. De nadruk wordt gelegd op het verblijfskarakter en de belevingswaarde van de Turnhoutsebaan in het voordeel van de centrumfunctie waardoor het accent van (verkeers)doorstromingsgebied naar (verkeers)verblijfsgebied verschuift.
Een cluster bovenlokale voorzieningen Nieuwe voorzieningen worden ingeplant op de as Fr. Craeybeckxlaan – Hooftvunderlei. Het groeperen van deze voorzieningen maakt het mogelijk een goede integratie in de omgeving te verwezenlijken en de verkeersafwikkeling hierop maximaal af te stemmen (ook voetgangers en fietsers).
De cultuurhistorisch waardevolle kern van het dorp met de kenmerkende stegenstructuur blijft behouden. Het Rode Kruisplein – Cogelsplein worden opgewaardeerd tot verblijfscentrum van Deurne-Dorp. De vallei van het Groot Schijn wordt hersteld en het groen wordt via de straten in het woonweefsel doorgetrokken. Nieuwe voorzieningen worden geclusterd bij de bestaande concentratie. Tussen het Cogelsplein en de Gallifortlei wordt het winkelapparaat versterkt en gebundeld tot een samenhangend winkelgebied. Het parkeergebeuren wordt gereorganiseerd, waarbij de parking van het Rivierenhof en de parking aan het districtshuis uitgebreid worden. De Turnhoutsebaan wordt verder ontwikkeld als as voor openbaar vervoer.
Het doortrekken van de vallei van het Groot Schijn over de Turnhoutsebaan creëert een groene toegangspoort tot het dorp, heeft een vertragend effect op het autoverkeer en verhoogt de beeldkwaliteit van de inkom van het dorp. De Turnhoutsebaan als as voor openbaar vervoer impliceert een ondergeschikte rol voor het autoverkeer waardoor de twee dubbele rijstroken kunnen teruggebracht worden naar twee maal één rijstrook. Door deze versmalling ter hoogte van de Ring of Singel te lokaliseren, begint het dorp visueel ter hoogte van de Ring en vallen de appartementsblokken van Borgerhout morfologisch gezien binnen het dorp. De versmalde Turnhoutsebaan verhoogt de oversteekbaarheid en toegankelijkheid van de appartementsblokken en de parking van het Rivierenhof en plaatst de cultuurhistorisch waardevolle brug terug op het juiste schaalniveau.
BPA Deurne Dorp Het plangebied is aangeduid op het plan met weergave van de juridische toestand. De woningen aan de Turnhoutsebaan en de Hooftvunderlei die grenzen aan de plangrens van het BPA zijn opgenomen binnen het plangebied van voorliggend PRUP. Dit is gebeurd op vraag van de provincie Antwerpen.
4.3.3. Gemeentelijke ruimtelijke uitvoeringsplannen (GemRUP) Ten oosten van het plangebied is het gemeentelijk RUP Ruggeveld – Silsburg gelegen dat op 26 januari 2009 definitief is vastgesteld door de gemeenteraad. Het is de bedoeling dat de drie parken -Rivierenhof, Ruggeveld en Silsburg - samen één groot groengebied vormen, maar als stads- en recreatiepark onderling een verschillend, eigen karakter krijgen; waarbij Ruggeveld wordt uitgebouwd tot een hedendaags, actief sportpark met bovenlokale gerichtheid en Silsburg tot een park met lichtere vormen van recreatie, voornamelijk volkstuintjes, met eerder een lokale gerichtheid. De vallei van het Groot Schijn is daarbij de drager van het geheel, de vallei is ruimtelijk en naar functioneren een zeer belangrijk element. Water is trouwens in al zijn vormen (rivier, vijvers, watervlakken, vochtige delen) in het studiegebied aanwezig en kan op verschillende manieren als een kwaliteit worden uitgebuit (recreatief, educatief, ecologisch). Tegenover de waterrijke gebieden staan de drogere gebieden die heel wat functies en infrastructuren kunnen opnemen. Het is de wens van het District Deurne om functies die historisch te Ruggeveld zijn gegroeid hier ook te behouden, al dan niet op een andere plek, maar wel binnen de grenzen van het RUP. Dit geldt in het bijzonder voor de sportclubs en jeugdverenigingen die vandaag in het gebied Ruggeveld actief zijn en die dus binnen het gebied moeten kunnen blijven. Daar komt nog bij dat in het plangebied bijkomende ruimte wordt gezocht voor een aantal functies die op hun huidige plek moeten verdwijnen (bv zwembad Boekenberg) of voor nieuwe functies als een openluchtzwembad, een sporthal en er is ook interesse voor een overdekte skipiste. In Ruggeveld en Silsburg kunnen verschillende functies en recreatieve onderdelen worden geïntegreerd. De mate van en de manier waarop, dient goed gedoseerd. Teveel, te verspreid, te verschillend leidt tot versnippering en het verloren gaan van de basis van beide onderdelen, de nieuwe parkachtige samenhang. Bundeling is noodzakelijk. Volgende ontwikkelingsperspectieven worden vooropgesteld: • Ruggeveld: ° Doortrekking van de dreef van Rivierenhof als structurerend element voor de vernieuwde sportinfrastructuur en parkaanleg. De dreef als ruggengraat van het park. ° Ontwikkelen van een sportlandschap: bundelen van harde infrastructuur (gebouwen met velden er omheen), geïntegreerd in een parklandschap met een zachte overgang naar het meer natuurlijke parkdeel. ° Ontwikkelen van een sportcomplex met bovenlokale uitstraling. ° Ruimte voor het Groot Schijn: ruimte voor natuur- en landschapsontwikkeling, ruimte voor waterberging. • Silsburg ° Silsburg wordt ingericht als een recreatief landschap: − tussen de Ruggeveldlaan en de Peter Benoitlaan: behoud van het bestaande recreatiegebied (voetbal en verenigingen). − tussen de Peter Benoitlaan, de Boterlaarbaan en de Koude Beek: creatie van een zacht recreatiegebied met zones voor klein vee, volkstuinen, hondenclubs, fiets-en wandelpaden, bestaande tennisclub, … ° Ruimte voor de Koude Beek: ruimte voor natuur- en landschapsontwikkeling, ruimte voor waterberging. RUP Ruggeveld -Silsburg 4.4. Sectorale studies en beleidsdocumenten 4.4.1. Studies en beleidsplannen m.b.t. de sector natuur en water Ecologische inventarisatie en visievorming in het kader van integraal waterbeheer: Stroomgebied van het Groot Schijn De studie is opgemaakt door Syncera Belgium in samenwerking met de Universiteit Antwerpen – departement Biologie in opdracht van AMINAL - afdeling Water en de provincie Antwerpen – dienst Waterbeleid en dateert van 28 oktober 2005. De gronden die tussen het openluchttheater en de autosnelweg liggen, komen in een zone met ecologische doelstellingen voor. Belangrijke natuurbehouddoelstelling hier is het herstel van de relatie tussen het Groot Schijn en haar oevergronden. Dit zal gebeuren door een heterogene mengeling van voedselrijke hooilanden, ruigten, struweel en broekbossen waarbij de gronden ook voor waterberging in aanmerking komen. De huidige (vis)vijvers worden maximaal in dit natuurherstelproject geïntegreerd door een natuurvriendelijke (her)inrichting van de oevers. (Provinciaal Instituut voor Hygiëne, 2004) Omdat dit scenario niet gemodelleerd is geweest gaat de toetsing gebeuren op basis van de geschatte overstromingszones in het Rivierenhof. Dit is gebeurd op basis van de zones die in september 1998 ook onder water hebben gestaan. Bovendien zijn exacte vegetatieopnames niet aanwezig van dit deel van de vallei. Op de Biologische Waarderingskaart is het overgrote deel van deze zone aangegeven als kasteelpark, het gaat dus voornamelijk over graslanden, boomaanplanten (diverse soorten waaronder ook populieraanplanten) en aangeplante bosjes. Daarnaast ligt er ook een uitgestrekt elzenbroekbos beplant met populieren (het moerasbos), een rietveld – dotterbloemhooiland – moerasspiraearuigte (westelijk deel) en ook aan de oostkant een goed bewaart valleivegetatiecomplex met soortenrijke hooilanden, elzen -vogelkersbos en rietveld. Ten zuiden van het Groot Schijn bevindt zich ook nog een uitgestrekte visvijver. Wanneer de natuurlijke vegetatietypes getoetst worden aan het model Waterberging en Natuur dan bekomt men een variëteit van combineerbaarheden, van slecht tot goed en ook kansrijke mogelijkheden. Het probleem dat zich hier stelt is alweer de waterkwaliteit die onvoldoende is om nu al overstromingen hier een kans te geven. Daarnaast moet ook rekening worden gehouden met de boombestanden die hier aangeplant zijn en zeer gevoelig zijn voor verdrinking tijdens overstromingen. Hier is dan ook plaatselijk boomsterfte te verwachten indien men dit scenario op deze grote schaal zou uitvoeren. Zeker in een openbaar domein als het Rivierenhof is dit een gevoelig punt, dat met de nodige aandacht en informatieverstrekking zal moeten afgehandeld worden. Als men eveneens de bestaande visvijvers mee wil opnemen in het bergingsgebied, zullen ook hier de nodige ingrepen gevraagd worden. Deze vijvers zijn immers zeer voedselrijk door de aanwezigheid van watervogels en het visbestand. Bij overstromingen zou er dus mogelijk een grote nutriënteninput kunnen komen naar het oppervlaktewater. Hydrologische en hydraulische modellering van het stroomgebied van het Groot Schijn De studie is in 2000 afgerond en is opgemaakt in opdracht van AMINAL – afdeling Water In de hydrologische studie werden verschillende simulaties uitgevoerd die de waterstanden in onder andere het Rivierenhof weergeven. Het betreft het deel van het Rivierenhof tussen de Sterckshoflei en de Ruggeveldlaan. Er werd een buiduur van 2 dagen met een terugkeerperiode van 25, 50 en 100 jaar onderzocht, ook een buiduur van 6 dagen met een terugkeerperiode van 25.50 en 100 jaar. Ook de overstromingen van 1998 werden in kaart gebracht. Uit de hydraulische studie werden enkele scenario’s weerhouden:
Uit het algemene inzicht in de overstromingsproblematiek van het betreffende stroomgebied kan besloten worden dat de inplanting van het pompgemaal aan de MIVA -overstort de meest geschikte oplossing is. Aanpassingen aan het tracé van het Groot Schijn zelf zullen geen grote verbeteringen inhouden inzake overstromingsoppervlaktes gezien de grootte van de afgevoerde volumes. 4.4.2. Studies en beleidsplannen m.b.t. de sector landschap Regionaal landschap De Voorkempen -samenwerkingsverband rond duurzame en toegankelijke groene ruimte in het peri-urbaan gebied ten noorden van Antwerpen Het Regionaal Landschap De Voorkempen is een samenwerkingsverband tussen de provincie Antwerpen, het Agentschap voor Natuur en Bos, 15 gemeenten uit de Voorkempen en diverse verenigingen uit de open ruimte sector De Voorkempen wordt gekenmerkt door een grote aanwezigheid van bos- en parkgebieden. Door de sterke verstedelijkingsgraad en de hoge dichtheid van de verkeersinfrastructuur zijn de bos-en parkgebieden echter sterk versnipperd. Deze versnippering heeft een sterke invloed op de natuurlijke en landschappelijke waarde van deze gebieden en op de beleving ervan door de verschillende gebruikers zoals recreanten. Om de versnippering tegen te gaan werd er een structuurvisie opgemaakt voor de noordelijke bosgordel rond Antwerpen. Één van de aandachtspunten binnen de samenwerking is het verhogen van de toegankelijkheid en de recreatieve waarde van de Voorkempen. Niet zozeer met als doel om meer recreanten aan te trekken maar wel om de bestaande recreantenstromen beter te geleiden en zo ecologisch kwetsbare gebieden te vrijwaren van een te hoge recreatiedruk. Binnen de structuurvisie wordt hiervoor het principe van afnemende geleiding, hiërarchie van toegangspoorten en een duidelijk netwerk-en ontsluitingsconcept voorgesteld.
Hiërarchie van toegangspoorten wil zeggen dat recreanten geleid worden naar onthaalpunten, opgedeeld in verschillende niveaus afhankelijk van de uitrustingsgraad, de vervoerswijze en herkomst van de recreant. Het Rivierenhof is in de structuurvisie aangeduid als hoofdpoort. Een hoofdpoort heeft een aantal algemene kenmerken:
Het Rivierenhof ligt aan de rand van de Voorkempen en sluit als domein perfect aan bij het gebied van de Voorkempen dat onder andere gekenmerkt worden door zijn talrijke kastelen en parken. Gezien de ligging vlakbij het stadscentrum is het Rivierenhof de ideale schakel tussen de stad Antwerpen en de Voorkempen. Via de Schijnvallei heb je een rechtstreekse groene verbinding met de groene omgeving van de Voorkempen. Omgekeerd is de Schijnvallei en het rivierenhof een groene vinger vanuit het bebouwd perifeer landschap van de Voorkempen tot diep in stedelijk gebied van stad Antwerpen. De ligging aan de rand van de stad maakt het Rivierenhof optimaal bereikbaar met het openbaar vervoer, fiets en de auto en is een ideaal vertrekpunt als je het zuidelijk deel van de Voorkempen wil bezoeken, bijvoorbeeld op basis van het fietsknooppuntennetwerk. Het Rivierenhof wordt mee opgenomen in een algemene communicatie en kan vermeld worden als het vertrekpunt voor fietsers en wandelaars die het zuidelijk deel van de Voorkempen willen bezoeken. Het Rivierenhof moet bijgevolg vooral beschouwd worden als de toegang vanuit het stad naar de Voorkempen. Stadsbos Antwerpen Het project ‘Stadsbos Antwerpen’ bestudeert de haalbaarheid van en de mogelijkheden voor stadsbosontwikkeling op het grondgebied van de stad Antwerpen. De realisatie van het project is lopende. Keuzelocatie Het Rivierenhof en de Schijnbeekvallei situeren zich binnen de keuzelocatie ‘Ertbrugge’ en worden aangeduid als verbindingsgebied. Ruggeveld wordt aangeduid als groene vinger.
Streefbeeld Het streefbeeld voor het stadsboslandschap van Ertbrugge is een kleinschalig historisch boslandschap met verspreide parken en veldbossen en een veelheid aan lijnstructuren als dreven, houtkanten, heggen en andere kleine landschapselementen. Visie en concept Bremweide, Rivierenhof en het gebied Ertbrugge/Fortvlakte vormt de groene sluitsteen van Deurne Noord (groen hoefijzer in verstedelijkt gebied). Het gebied rond Ertbrugge biedt uitzonderlijke mogelijkheden om in te pikken op een aantal landschapshistorische waarden die als attractiepool kunnen functioneren. In het omliggende stedelijke gebied zijn tal van gelegenheden aanwezig die grote groepen mensen aantrekken en voor wie het stadsbos op deze plek een meerwaarde zou betekenen. Aanknopingspunten bieden vooral de diverse sportcentra, waarvoor het stadsbos op deze plek een meerwaarde kan betekenen. Stadsbosontwikkeling en –vormgeving De voorgestelde ontwikkeling voorziet in een versterking van de algehele bosstructuur vanuit de bestaande parken en bossen, middels de aanleg van verspreide veldbossen die de verbinding tussen de natuurkernen, waaronder het Rivierenhof, onderhouden. Betreffende de ontsluiting komt het erop aan om ook voor het Rivierenhof en de Schijnvallei een goede verbinding met het stadsbos te voorzien. Om de verbinding met de omliggende parkgebieden te realiseren is het noodzakelijk dat een doorgangsmogelijkheid behouden blijft aan het Ruggeveld naar de Schijnvallei en het Rivierenhof. Harde recreatievormen moeten worden uitgesloten. Sportvelden en –zalen zijn volop in de rand aanwezig en moeten verder tot de rand beperkt blijven. Dat belet niet om bepaalde sportactiviteiten met het stadsbos te verbinden. Beleidsdoelstellingen
Inrichtingsvoorstel Behoud en uitbouw van een ecologische verbindingszone naar de Schijnvallei en het Rivierenhof. 4.4.3. Studies en beleidsplannen m.b.t. de sector toerisme, recreatie en sport Kinderen in de Provinciale Groendomeinen Regio Antwerpen: het Rivierenhof De nota is opgemaakt door het departement Welzijn, Onderwijs en Veiligheid – Jeugddienst Provincie Antwerpen. Voor het behoud en het activeren van de reeds bestaande ‘kindvriendelijke organisatiecultuur’ zijn volgende aanbevelingen van belang:
Bij het promoten van de bestaande speel- en sportvoorzieningen wordt in eerste instantie gedacht aan het meer bekend maken van de avonturenhoek en ook aan de mogelijkheid voor het reserveren van sportvelden. Op termijn kan men er ook naar streven om de huidige en toekomstige speelplekken visueel of ruimtelijk met elkaar te verbinden, zodat er een ‘speelweb’ tot stand komt. Wanneer men tussen de bestaande speelplekken nog een aantal extra speelaanleidingen als ‘stapstenen’ zou voorzien dan zou men kunnen spreken van een ‘speelparcours’ die de twee bestaande ‘speelpolen’ verbindt. Om kinderen de mogelijkheid te geven om het park verder te ontdekken zijn educatieve activiteiten interessant voor zover ze vertrekken vanuit interessante verschijnselen die op het domein te vinden zijn. Belangrijk hierbij is dat men inspeelt op de speelse eigenheid en exploratiedrang van kinderen. Ook kunnen manifestaties georganiseerd worden met kinderen als mogelijk doelpubliek. Verder is ook het behoud en de uitbouw van de bestaande ankerplaatsen voor jongeren gewenst. Hiermee worden de informele sportterreinen of andere accommodatie bedoeld. Bouwen van 3 clubhuizen en heraanleg sportzone 'ruggeveld' De provincie Antwerpen heeft een stedenbouwkundige vergunning verkregen voor het bouwen van 3 clubhuizen en het heraanleggen van de sportzone ‘ruggeveld’. De werkzaamheden zijn bezig. Bij de heraanleg van de sportzone Ruggeveld wordt een herschikking van de sportvelden voorzien met de meest dynamische of ruimtebepalende ter hoogte van de Parkweg. Centraal wordt voor elk van de sportactiviteiten een afzonderlijk clublokaal voorzien. Van aan de parking tot deze lokalen wordt een landschappelijk geïntegreerde doorstreek voorzien.
Gebouw voor technische diensten De provincie Antwerpen is bezig met plannen voor het oprichten van een gebouw voor het huisvesten van de technische diensten die instaan voor het beheer en onderhoud van de Provinciale Groendomeinen Regio Antwerpen.
4.4.4. Studies en beleidsplannen m.b.t. de sector mobiliteit, verkeer en vervoer Mobiliteitsplan Stad Antwerpen Het mobiliteitsplan van de stad Antwerpen is conform verklaard door de Provinciale Auditcommissie (PAC) op 4 november 2004. Onderstaande tabel geeft per vervoersmodi de gewenste verkeers- en vervoersstructuur voor de wegen die het Rivierenhof begrenzen en doorsnijden.
Aanvullend op de bovenlokale selecties zijn in het mobiliteitsplan van de stad Antwerpen de Ruggeveldlaan en de Hooftvunderlei – Sterckshoflei geselecteerd als lokale wegen type wijkverzamelwegen.
Herinrichting Turnhoutsebaan De heraanleg van de Turnhoutsebaan is één van de acties uit het Masterplan Antwerpen en gebeurt in opdracht van Beheersmaatschappij Antwerpen Mobiel (BAM) – bron: projectnota versie 2 augustus 2004 De heraanleg van de N12 gebeurt gefaseerd. Voor het traject August Van de Wielelei (met inbegrip van het plein) is het ontwerpdossier afgerond en aanbestedingsklaar. Het traject van de Turnhoutsebaan, ter hoogte van het Rivierenhof, is reeds heraangelegd. Dit project is uitgevoerd onder leiding van AWV. Het traject van de Turnhoutsebaan in het (versmalde stuk) in het centrum van Deurne wordt heraangelegd door AWV. Het is de bedoeling dat de tramsporen vernieuwd worden en dat de weg heraangelegd wordt. Het typedwarsprofiel voor de Turnhoutsebaan gaat uit van een centraal gelegen vrije tram- en busbaan in beton met aan weerszijden een bomenrij. Afhankelijk van de locatie worden er tussen de sporen en de rijweg parkeerplaatsen in kassei voorzien. Op andere plaatsen wordt deze zone ingevuld met groen of met een halte-infrastructuur. De rijweg in asfalt is gereduceerd van 2x2 rijstroken tot 2x1 rijstrook. Ter hoogte van het Rivierenhof is een snelheidsregime van 50km/u voorzien. Over het gehele traject zijn dubbelrichtingsfietspaden voorzien om nodeloos oversteken te vermijden.1 Specifiek voor het Rivierenhof zijn volgende elementen van belang (het traject wordt hierbij van west naar oost overlopen):
Herinrichting Turnhoutsebaan extra muros De stad Antwerpen is bezig met plannen voor de herinrichting van de Turnhoutsebaan tussen de Leeuwlantstraat en de Singel. Momenteel is een startnota opgemaakt die dateert van juni 2008. De doelstelling van de heraanleg van de as Turnhoutsebaan ter hoogte van Deurne bestaat er in hoofdzaak in het dorpskarakter van Deurne te versterken. De concrete inrichting van het openbaar domein en de verkeersruimte is erop gericht de verblijfswaarde op te krikken. Anderzijds gaat het om een stedelijke hoofdverkeersweg binnen de bebouwde kom met een sterke openbaar vervoersfunctie. Die tegenstelling tussen ambitie en aard van de weg leidt tot een inherente contradictie die enkel op te lossen is indien er ofwel duidelijke prioriteiten doorwegen, ofwel door op zoek te gaan naar een realistisch ruimtelijk compromis. Het streefbeeld op stedelijke schaal toont de basisdoelstellingen van het studiegebied: een maximale uitbouw van de koppen om het C-segment te ontlasten en zachte connecties naar de binnenstad, de Schijnvallei, het Rode Kruisplein, over de Turnhoutsebaan en op de Craeybeckxlaan.
Fietsroutes De wandel-en fietspaden in het Rivierenhof sluiten aan op een aantal bovenlokale toeristische en functionele fietsroutes: Functioneel kunnen volgende fietsroutes onderscheiden worden 2:
Recreatief kunnen volgende bovenlokale fietsroutes onderscheiden worden:
Het netwerk TPA of fietsknooppuntennetwerk De benaming LF-routes staat voor ‘Lange-afstand Fietsroutes’. Op lokaal niveau:
4.4.5. Studies en beleidsplannen m.b.t. de sector geluid Meting van de geluidshinder in het Provinciaal Domein “Rivierenhof” In september 1991 en april 1992 zijn geluidsmetingen uitgevoerd door het Provinciaal Veiligheidsinstituut. De studie omvat geluidsmetingen ter hoogte van het openluchttheater, de visvijver, de Schranshoeve en het directeursgebouw. Op de eerste 3 plaatsen wordt de geluidshinder voornamelijk bepaald door de autosnelweg terwijl aan het directeursgebouw de hinder vooral afkomstig is van de Turnhoutsebaan. Uit de meetresultaten aan het openluchttheater blijkt dat de aanbevolen grenswaarden voor stille recreatie overtroffen worden. Op de bovenste rijen van de toeschouwersbanken wordt de aanbevolen waarde voor een stadscentrum benaderd. De metingen op weekdagen, buiten spitsuren, zijn representatief voor metingen tijdens het weekend. Samengevat kan gesteld worden dat het geluidsniveau nagenoeg overal in het park boven de aanbevolen richtwaarden ligt, ongeacht welke grootheid en normen gehanteerd worden. Indien de oplopende rijen van het theater beschouwd worden als een geluidswerende berm kan afgeleid worden dat er een verschil in geluidsniveau is van ongeveer 10 dB (A). Volgens deze studie kan de oprichting van een geluidswerende berm naast de autosnelweg voor meer dan 60% een gunstige invloed hebben. Door deze daling van geluidshinder zou een toestand kunnen gecreëerd worden die vergelijkbaar zijn met landelijke omgevingen en rustige woonwijken. In deze studie werd een eerste reeks metingen gedaan en is een eerste mogelijke oplossing aangeboden. Deze studie is echter te weinig uitgebreid en heeft te weinig onderzocht om nu reeds af te leiden of een geluidswerende berm effectief en realiseerbaar is.
5. Globale ruimtelijke context Binnen het stedelijk weefsel Antwerpen ligt het Provinciaal Groendomein Rivierenhof in het randstedelijk gebied tussen Deurne-Noord en Deurne-Zuid. Morfologisch zijn dit dicht bebouwde gebieden met een administratief centrum in Deurne-Noord. Rondom het Groendomein zijn een aantal bovenlokale assen bepalend, waaronder inzake weginfrastructuur de R1, de E34/E313, de Singel (R10) en de R11 evenals een aantal lokale wegen, waaronder de Sterckshoflei, de Hooftvunderlei en de Ruggeveldlaan. Het Rivierenhof maakt als open ruimtegebied deel uit van het valleigebied van het Groot Schijn, dat vanuit de oostwaarts gelegen landelijke omgeving het stedelijk gebied binnendringt. Dit open ruimtegebied heeft op vele plaatsen een recreatieve nevenbestemming. Op een lager schaalniveau vervullen ook Bremweide, Ertbrugge, Te Boelaerpark en Boekenbergpark een rol als groengebieden binnen het randstedelijk weefsel. In oostelijke richting wordt naast de aanwezigheid van het valleigebied de overgang naar het buitengebied ook zichtbaar door de aanwezigheid van open landbouwgronden. Betreffende recreatie zijn de stedelijke recreatieve activiteiten van de sportsite Ruggeveld bepalend. Rondom hebben ook het Bosuilstadion, het golfdomein Ternesse en de sportzone aan de Autolei een structuurbepalende betekenis. Cultuurhistorisch is Fort 2 kenmerkend in de omgeving. Naast een aantal kleinschalige stedelijke functies langsheen het westelijke deel van de Turnhoutsebaan zijn er in oostelijke richting een aantal grootschalige winkelcomplexen gelegen.
6. Historische context Historische structuur
Historisch gezien ligt het Rivierenhof in het valleigebied van het Groot Schijn, waarbij de kastelen Sterckshof en Rivierenhof een belangrijke cultuurhistorische betekenis hebben. De dominante invloed van het Sterckshof op de omgeving is grotendeels vervaagd door de vernielingen tijdens de inval van de Spanjaarden. Gezien het Rivierenhof gespaard bleef, is dit kasteel zeer dominant geworden mede door de aanleg van het park dat in de loop der jaren steeds in oppervlakte is toegenomen. Ook de doortrekking en de herprofilering van de Hooftvunderlei-Sterckshoflei was een zeer ingrijpende verandering in de ruimtelijke relatie tussen het Sterckshof en het Rivierenhof, alsook in het totale park. Bij de aankoop van het Rivierenhof in 1921 door de Provincie Antwerpen is het domein, dat in 1923 voor het publiek werd opengesteld, tot een openbaar park geëvolueerd en werden grote infrastructuren zoals de landbouwschool en het voetbalstadion gebouwd. Deze infrastructuren bevonden zich toen nog aan de rand van het park. Later is het park nog in oppervlakte toegenomen en is het ruimtelijk begrensd door de aanleg van de autosnelweg en de Ruggeveldlaan. De Parkweg is stelselmatig geëvolueerd tot een lange rechte as die nu het park in horizontale richting volledig doorkruist. Ook een deel van de Herentalsevaart met het omliggende gebied, waarin de Schranshoeve gelegen is, maakt nu deel uit van het park zonder dat dit gebied ooit de kans kreeg mee te evolueren met het park. De huidige vormgeving van het park alsook de aanwezigheid van diverse functies en gebouwen zijn het resultaat van verschillende tijdsperiodes die elk een indruk hebben nagelaten in het park. Belangrijk is ook dat het Rivierenhof het eerste provinciaal domein in Vlaanderen betrof. Gewaardeerd erfgoed Naast de juridische beschermde monumenten, stadsgezichten en landschappen is een belangrijk aandeel van het erfgoed binnen en rond het Rivierenhof opgenomen in de landschapsatlas alsook in de atlas van het bouwkundig erfgoed hetgeen duidt op het historisch belang van deze site. Landschapsatlas Het Rivierenhof is aangeduid als ankerplaats en omvat het Groot Schijn als lijnrelict en de kasteeldomeinen Rivierenhof en Sterckshof als puntrelicten. De begrenzing van deze ankerplaats wordt gevormd door de Turnhoutsebaan in het noorden, de Krijgsbaan in het oosten, de autosnelweg E34/E313 in het zuiden en de ring rond Antwerpen in het westen. Naast de lijn-en puntrelicten komen een aantal relicten voor die worden omvat in de relictzone Vallei van de Grote Schijn, kasteeldomeinen en bosgebieden. Enkel de overblijfselen die zichtbaar zijn tot en met de kaart van Vandermaelen worden als relict beschouwd. Bouwkundig erfgoed
7. Bestaande ruimtelijke structuur van het plangebied 7.1. Elementen van de bestaande ruimtelijke structuur 7.1.1. Open ruimte
PRUP Rivierenhof
Binnen de open ruimte zijn in het Rivierenhof vier gebieden te onderscheiden. Het eerste gebiedbetreft het uiterst zuidelijke landbouwgebied tot en met de Herentalsevaart dat weilanden en akkers omvat en zowel ruimtelijk als functioneel geïsoleerd ligt van het park. Aansluitend situeert zich meer noordwaarts in de valleibodem het valleigebied waarbinnen de oorspronkelijke meandering van het Groot Schijn nog aanwezig is en waarin een tweetal vijvers gelegen zijn. Kenmerkend zijn hier de broekbossen en de natte hooilanden, die bovendien als biologisch zeer waardevol worden aangeduid. Het valleigebied is ook in de omgeving, ten oosten van e Ruggeveldlaan, nog duidelijk zichtbaar. Het centrale parkgebied, op de valleiwand gelegen, bestaat in hoofdzaak uit bosfragmenten met verspreid graslanden. In dit gebied is in het westen de oorspronkelijke meandering van het Groot Schijn niet bewaard gebleven en is in functie van de waterhuishouding een uitgebreid grachtensysteem aangelegd. In het meest noordelijke gedeelte tot slot is de valleirug kenmerkend. In dit gedeelte zijn de bossen en aangelegde tuinen bepalend. Uit bovenstaande ruimtelijke zonering blijkt dat ongeveer de helft van de vallei van het Groot Schijn sterk is aangetast en ruimtelijk minder zichtbaar is. Het Groot Schijn blijft echter functioneel nog steeds de hoofdader van de waterhuishouding binnen het Rivierenhof en wordt binnen de open ruimte structuur als een belangrijke natuurlijke en landschappelijke as doorheen het Rivierenhof ervaren.
De Herentalsevaart mondt uit in de gracht langs de E34/E313 en wordt enkel gevoed door de omliggende terreinen. De dreven binnen het park vormen belangrijke natuurlijke corridors. De berm langsheen de autosnelweg vormt een uniforme groenstrook in het zuiden van het park.
In de studie omtrent de ecologische inventaris van het stroomgebied van het Groot Schijn wordt het herstel van de relatie tussen het Groot Schijn en haar oevergronden vooropgesteld. De huidige visvijvers dienen hierbij maximaal geïntegreerd te worden.3 7.1.2. Activiteiten
7.1.2. Activiteiten PRUP Rivierenhof
Binnen het Provinciaal Groendomein Rivierenhof zijn de diverse voorzieningen verspreid gelegen. Opvallend is de aaneenschakeling van activiteiten langsheen de Parkweg die een verschillende dynamiek vertonen. In het oosten betreft het voornamelijk sportvelden in open lucht (tennis, korfbal en voetbal),vervolgens onderscheiden zich de parkactiviteiten, waaronder tuinen (rozentuin, educatieve tuin, arboretum, geurtuin, coryletum), beheersactiviteiten (lasatelier, serres, machinepark) en andere specifieke activiteiten (verkeerspark, kinderboerderij, petanque, speeltuin, minigolf). Richting Hooftvunderlei komen opnieuw voetbalvelden en een basketbalveld voor. Deze westelijke concentratie loopt in zuidelijke richting uit met een aantal korfbalvelden en wordt begrensd door de Hooftvunderlei. De verspreide ligging van de sportvelden maakt dat een grote hoeveelheid infrastructuur noodzakelijk is voor het bedienen van de verenigingen. Ook kan opgemerkt worden dat een aantal voorzieningen gehuisvest zijn in historische gebouwen die omwille van hun karakter een structuurbepalende functie hebben in het park. Deze gebouwen, waaronder het kasteel Rivierenhof, het kasteel Sterckshof en het Openluchttheater (waarbinnen optredens in open lucht worden gegeven), situeren zich hoofdzakelijk centraal in het park. De Schranshoeve in het zuiden van het gebied ligt volledig geïsoleerd en heeft geen ruimtelijke en een beperkte functionele binding met het overige deel van het gebied. In het westen van het park is geïsoleerd van de rest van de activiteiten ruimte voorzien voor modeltreintjes. In het oosten van het park bevindt zich ter hoogte van het Groot Schijn een pompstation van Aquafin. Fietsers, wandelaars en joggers kunnen van het gehele park gebruik maken door de aanwezigheid van een netwerk van paden. De vijvers in het zuidelijke deel worden mede voor wateractiviteiten (vissen en modelbouwbootjes) gebruikt. In het noorden van het plangebied zijn woningen gelegen. Het betreft 3 clusters: één ter hoogte van Hooftvunderlei, één ter hoogte van de Turnhoutsebaan en een laatste ter hoogte van de De Vréstraat. In bijlage 5 zijn voor elk van de clusters de gedetailleerde weergaven opgenomen van de feitelijke toestand.
Gebruikers Het Provinciaal Groendomein Rivierenhof ontvangt diverse bezoekers enerzijds door haar ligging in het stedelijk gebied en anderzijds door het uitgebreide aanbod aan activiteiten en voorzieningen. Op regionaal schaalniveau is het Rivierenhof voornamelijk gekend omwille van het Openluchttheater waarin jaarlijks tal van concerten worden georganiseerd. De tentoonstellingen in de kastelen Sterckshof en Rivierenhof en de grote evenementen in het park (zoals het rozenfeest, de ecomarkt en het vuurwerk) lokken eveneens bezoekers vanuit de ruime regio. Op schaalniveau van het grootstedelijk gebied Antwerpen is het ruime aanbod aan sport-en spelactiviteiten in combinatie met een ruime groene omgeving aantrekkelijk voor vele stedelingen. Voor de omwonenden biedt het Rivierenhof een belangrijke meerwaarde voor ontspanningsmomenten, hetzij actief hetzij rustgevend. Voor dit schaalniveau van bezoekers is het park maatschappelijk gezien een belangrijke ontmoetingsruimte. Beleving Het Provinciaal Groendomein Rivierenhof wordt door ieder type gebruiker verschillend ervaren. Het zuidelijke deel wordt voornamelijk door natuurliefhebbers, joggers en wandelaars gebruikt. Het gebied rondom het kasteel Rivierenhof kent de grootste toegankelijkheid door de hoeveelheid en aard van activiteiten. Verder worden ook de gebieden ter hoogte van de Ruggeveldlaan en ten oosten van de Hooftvunderlei als afzonderlijke zones ervaren, met name als gebieden voor de verschillende sportclubs. Zowel door de sportliefhebber alsook door de parkbezoeker wordt de Parkweg als een belangrijke structurerende as beschouwd. De Hooftvunderlei - Sterckshoflei vormt een belangrijke barrière en dit zowel voor de parkbezoekers alsook voor de bezoekers van het Sterckshof. De geluidshinder die door de E34/E313 in het zuiden van het park wordt gegenereerd,wordt als sterk hinderlijk ervaren en dit zowel door de natuurliefhebbers alsook door de joggers, fietsers, wandelaars en vissers. Het meest westelijke deel van het park (ten westen van de as Hooftvunderlei -Sterckshoflei gelegen) wordt het minst benut en wordt ruimtelijk afgescheiden door de aanwezigheid van het Districtshuis (met achteraan het politiekantoor) en de Hooftvunderlei. De toegankelijkheid van het domein voor de omwonenden is goed door de diverse toegangen. Voor de occasionele bezoeker is deze diversiteit eerder verwarrend en onduidelijk.
7.1.3. Verkeer en vervoer
PRUP Rivierenhof
Ruggeveldlaan Sterckshoflei Verbindend wandelpad Dreef Toegang Toegang Parking Deurne Huiskens Personeelsparking Parking Ruggeveld in park Voor gemotoriseerd verkeer wordt het Rivierenhof voornamelijk door de verkeersassen Turnhoutsebaan, Hooftvunderlei, Sterckshoflei en Ruggeveldlaan toegankelijk gemaakt, met voor bovenlokaal verkeer op korte afstand de Ring en de autosnelweg E34/E313. Het Rivierenhof zelf is volledig autovrij. Enkel dienstverkeer voor het onderhoud van het park, leveranciers voor de horecafaciliteiten en toeleveranciers voor de concerten zijn toegestaan. Verspreid in het park zijn een 11-tal parkings gelegen, waarvan een aantal publiek toegankelijk zijn en een aantal enkel voor een specifieke doelgroep zijn voorbestemd. In totaal zijn er 436 publieke parkeerplaatsen en 129 private parkeerplaatsen in het Rivierenhof. Op het openbaar domein rondom het park zijn ook parkeerfaciliteiten aanwezig, met name 731 plaatsen. Uit gevoerde parkeertellingen 4 is gebleken dat de huidige bezettingsgraad laag is; gemiddeld bedraagt deze 33%. Op de parkeerplaatsen op het openbaar domein is de bezettingsgraad het grootst (42%); dit is waarschijnlijk te verklaren door de combinatie van bewoners en bezoekers. In het park kennen de parkings in het domein ter hoogte van de Ruggeveldlaan en het Sterckshof de hoogste bezettingsgraad; deze parkeerplaatsen worden gebruikt door bezoekers van de sportactiviteiten.
De parking Deurne Huiskens, in het westen van het domein, kent een zeer lage bezettingsgraad, evenals de parkings aan de Platanendreef en de Cornelissenlaan. Bij activiteiten in het Openluchttheater worden voornamelijk de parkings op het openbaar domein en de parking Ruggeveld in het park het best benut. De Turnhoutsebaan is een belangrijke as voor openbaar busvervoer tussen Antwerpen en Turnhout en als as voor tramverkeer ter hoogte van Antwerpen richting binnenstad. De Ruggeveldlaan en de Hooftvunderlei -Sterckshoflei sluiten met twee buslijnen aan op de Turnhoutsebaan. De wandel-en fietspaden in het Rivierenhof sluiten aan op een aantal functionele en toeristische bovenlokale fietsroutes. Ook zijn er diverse toegangen voor fietsers en voetgangers verspreid aanwezig. De aanduiding ervan is evenwel zeer divers en vaak onduidelijk.
7.2. Juridische aspecten
7.2.1. Vergunningentoestand
Zie bijlage 2 7.2.2. Feitelijke juridische toestand
Onderstaande tabel geeft een overzicht van de juridische structuur van het plangebied.
De clusters van woningen in de Hooftvunderlei en Turnhoutsebaan zijn zone-eigen gelegen in woongebied en zijn destijds op vraag van de provincie uit het BPA Deurne Dorp gehaald. De cluster van woningen in de De Vréstraat zijn zonevreemd gelegen in gebied voor dagrecreatie. In bijlage 5 zijn de decretale mogelijkheden opgesomd voor deze woningen.
7.2.3. Eigendomsstructuur
Met uitzondering van de woonkavels langsheen de Hooftvunderlei, Turnhoutsebaan en De Vréstraat, een aantal percelen ten zuiden van het domein, het pompstation van Aquafin en de Hooftvunderlei is het domein volledig in eigendom van de provincie Antwerpen.
8. Uitgangspunten In de diverse beleidsdocumenten zijn voor het Provinciaal Groendomein Rivierenhof een aantal ontwikkelingsperspectieven geformuleerd, die in hetgeen volgt vertaald zijn in uitgangspunten die bepalend zijn voor de visievorming van het domein. 8.1 VANUIT DE STEDELIJKE OPEN RUIMTE In het Ruimtelijk Structuurplan Vlaanderen (RSV) wordt Antwerpen geselecteerd als grootstedelijk gebied en in het desbetreffende afbakeningsproces wordt het Rivierenhof aangeduid als onderdeel van de grootstedelijke open ruimte structuur. Volgens het Ruimtelijk Structuurplan van de Provincie Antwerpen (RSPA) maakt het Rivierenhof deel uit van de hoofdruimte ‘Antwerpse fragmenten’ waar binnen een sterk verstedelijkt gebied aandacht wordt geschonken aan het vrijwaren van de kwetsbare en natuurlijk waardevolle gebieden. Binnen deze hoofdruimte is het Rivierenhof binnen het grootstedelijk gebied Antwerpen aangeduid als onderdeel van de groene vinger, de vallei van het Groot Schijn. Binnen een groene vinger zijn de hoofdfuncties natuur, recreatie, sportactiviteiten en land-en tuinbouw. De vallei van het Groot Schijn is geselecteerd als open ruimteverbinding en de waterloop het Groot Schijn als provinciale natuurverbinding. In het strategisch Ruimtelijk Structuurplan Antwerpen (s-RSA) maakt het Rivierenhof deel uit van de zachte ruggengraat met name het Schijnvalleipark. Uit bovenstaande ontwikkelingsperspectieven kan afgeleid worden dat het Rivierenhof zich situeert binnen een belangrijk open ruimtegebied dat in horizontale richting in het stedelijk gebied insnijdt. Structuurbepalend is hierbij het tracé van het Groot Schijn. Deze waterloop verdeelt het open ruimte landschap bovendien in het noordelijk bebost landschap en het zuidelijk open valleilandschap. De open ruimte vinger die horizontaal gericht is, verbindt een aantal radiale structuren waaronder de zachte ruggegraat rondom het stadscentrum en de gordel van groengebieden rondom het Rivierenhof. Het verbinden van de horizontale en radiale groenstructuren biedt een versterking van de open ruimte in het stedelijk weefsel. Als onderdeel van deze open ruimte kan het Rivierenhof binnen de stedelijke omgeving een belangrijke versterkende rol vervullen. Landschappelijk wordt het Rivierenhof door de bewoners van Deurne-Noord ervaren als een beeldbepalend ‘groen’ gebied dat optimaal toegankelijk is. Belangrijk is dan ook dat deze landschappelijke functie alsdusdanig in het straatbeeld wordt geaccentueerd. Ten aanzien van Deurne-Zuid zorgt de weginfrastructuur voor een landschappelijke begrenzing met gebundelde toegangen. Dit maakt dat de kwetsbaarheid van het valleilandschap kan gerespecteerd blijven. In het westen is het voorzien van een verbinding met de zachte ruggegraat rondom het stadscentrum belangrijk. Vanuit de rol van het Rivierenhof als onderdeel van een belangrijke open ruimte structuur kunnen volgende uitgangspunten vooropgesteld worden:
8.2 VANUIT RECREATIE Naast de functie als groene long heeft het Rivierenhof ook een belangrijke betekenis inzake recreatie. In het RSPA wordt het Rivierenhof aanzien als een toeristisch-recreatief knooppunt binnen een gebied van primair toeristisch-recreatief belang. Een toeristisch-recreatief knooppunt betreft een aantrekkingsgebied met hoogdynamische infrastructuren van Vlaams of provinciaal niveau. Het domein Rivierenhof is bij de opmaak van het RSPA niet geselecteerd als toeristisch-recreatief knooppunt. Op 19 april 2006 legde de provincie de selectie van het Rivierenhof als bijkomend toeristisch-recreatief knooppunt vast. Bovendien is het stedelijk gebied Antwerpen geselecteerd als een gebied van primair toeristisch-recreatief belang. Binnen het samenwerkingsverband Regionaal Landschap de Voorkempen is naast het tegengaan van de versnippering van de bosstructuren ten noorden van Antwerpen het opzet het verhogen van de toegankelijkheid en de recreatieve waarde van de Voorkempen. Niet zozeer met als doel meer recreanten aan te trekken, maar wel om de bestaande recreantenstromen beter te geleiden en zo ecologisch kwetsbare gebieden te vrijwaren van een te hoge recreatiedruk. Door de ligging van het Rivierenhof aan de rand van de Voorkempen sluit het als domein perfect aan bij het gebied van de Voorkempen, dat gekenmerkt wordt door zijn talrijke kastelen en parken. Het Rivierenhof is om die reden geselecteerd als hoofdpoort en wordt beschouwd als de toegang vanuit het stad naar de Voorkempen. Volgens het s-RSA is het Rivierenhof een strategische ruimte binnen de zachte ruggengraat waar eveneens tegemoet gekomen moet worden aan de recreatieve noden van de stedelingen. Ook inzake toerisme en recreatie vormt het Rivierenhof een onderdeel van een groter geheel. Belangrijk hierbij is de positionering van het Rivierenhof binnen het Regionaal Landschap de Voorkempen. Ook de aansluitingen binnen het Rivierenhof op de bovenlokale functionele en recreatieve fietspaden versterken deze functie.
Op een lager schaalniveau kunnen ook op het vlak van ‘harde’ recreatie linken gelegd worden met de omgeving. Vanuit de structurerende open ruimte elementen wordt het noordelijke gedeelte, dat gesitueerd is langsheen de Parkweg en eveneens aansluit bij de stedelijke omgeving, aangeduid voor het concentreren van meer dynamische functies. Voor sportactiviteiten kunnen clusters gevormd worden op de uiteinden van deze Parkweg: één westwaarts ter hoogte van het stadscentrum en één oostwaarts ter hoogte van de sportcluster uit het RUP Ruggeveld-Silsburg. Vanuit bovenstaande ontwikkelingsperspectieven kunnen volgende uitgangspunten inzake recreatie geformuleerd worden:
8.3 VANUIT DE IDENTITEIT VAN HET PARK Vanuit de identiteit van het Rivierenhof als publiek park binnen een stedelijke omgeving waarbinnen rust, ontspanning en erfgoed kenmerkend zijn, kunnen volgende uitgangspunten worden toegevoegd:
Binnen haar dagdagelijkse werking besteedt de provincie veel aandacht aan het toegankelijk maken van gebieden en gebouwen voor andersvaliden, aan het behoud van archeologische restanten en aan de noden en behoeften van kinderen en jongeren in parken. Ook bij de diverse projecten en studies voor het Rivierenhof dient rekening te worden gehouden met bovenvermelde aandachtspunten binnen de provinciale beleidsvoering.
9. Globale visievorming
Binnen de grootstedelijke omgeving van Antwerpen maakt het Rivierenhof een onderdeel uit van een belangrijke open ruimte structuur die het stadsweefsel in horizontale richting binnendringt. Deze horizontale open ruimte structuur verbindt de radiale open ruimte structuren. Het Rivierenhof situeert zich binnen de open ruimtevinger het meest nabij het stadscentrum en in de onmiddellijke omgeving van de zachte ruggengraat rondom het stadscentrum. Landschappelijk is het versterken van het noordelijke beboste landschap en het zuidelijke open valleilandschap een belangrijke uitdaging. Binnen het beboste landschap kunnen diverse en meer dynamische toeristisch-recreatieve activiteiten worden ondergebracht terwijl in het valleilandschap het natuurlijk milieu en het waterbergend vermogen het meest belangrijk zijn.
10. Onderbouwing van de gewenste ruimtelijke structuur Voorgaande uitgangspunten zijn op basis van een locatie-en mobiliteitsonderzoek ruimtelijk vertaald. Deze vertaling vormt de basis voor de verdere gewenste ruimtelijke structuur voor het Rivierenhof. 10.1. Locatie-onderzoek
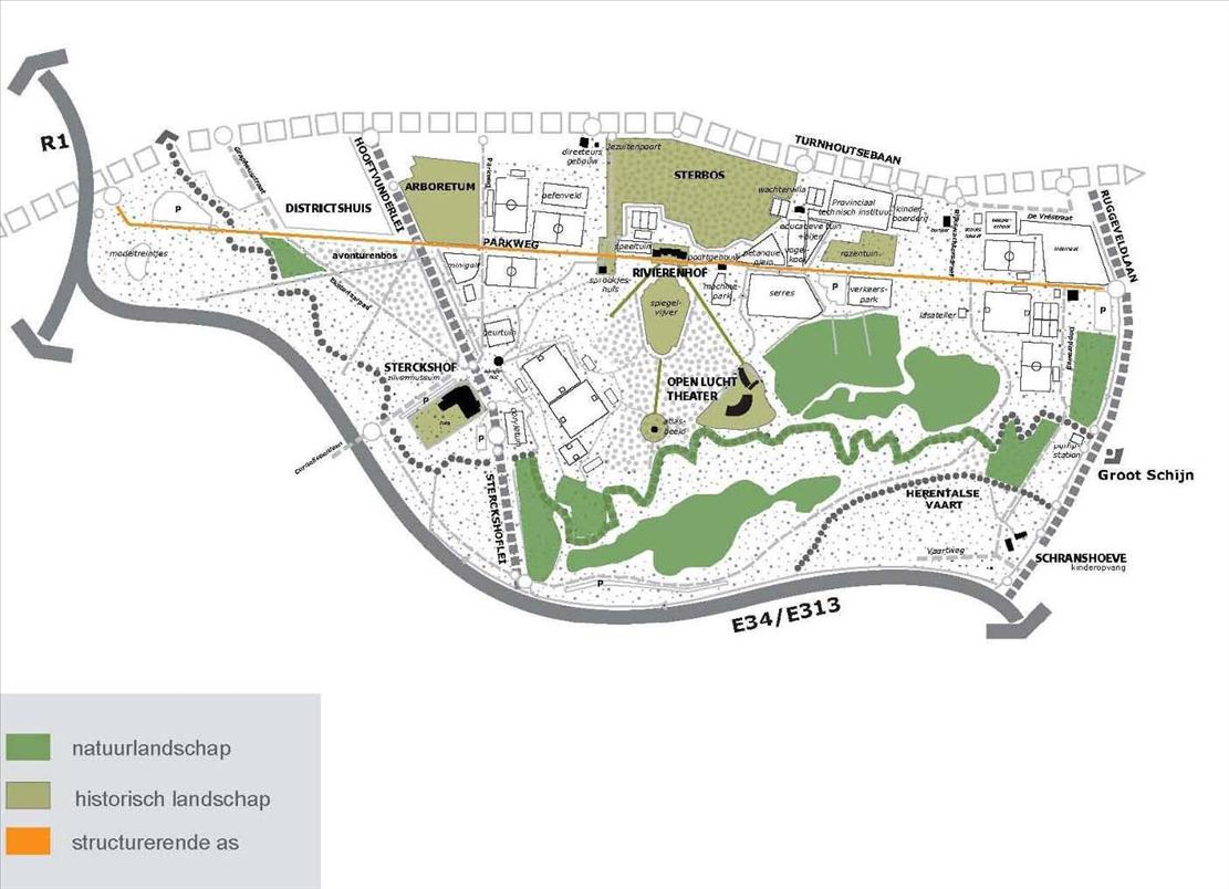
De uitgangspunten geven aan dat een drietal thema's dienen ingevuld te worden binnen het domein Rivierenhof, zijnde natuur en water, historiek en recreatie. Inzake inrichting wordt in de uitgangspunten duidelijk gestreefd naar structuur, ordening, bundeling en het voor elke gebruiker aanbieden van een bepaalde ruimte binnen het park. Om die reden is het belangrijk dat de drie thema's binnen het park een eenduidige ruimte of landschap invullen waarbinnen deze identiteit duidelijk tot uiting komt. Elk van deze landschappen wordt gekenmerkt door een aantal structuurbepalende elementen die reeds een eerste ordening van het park aangegeven. Het begrip landschap mag binnen deze context echter niet worden begrepen als een begrensd gebied maar eerder als een ruimer kader met een welbepaalde identiteit.
Het natuurlandschap omvat voornamelijk het meanderende gedeelte van de vallei van het Groot Schijn. Andere structuurbepalende elementen zijn de vijvers, de broekbossen, de natte weilanden, de ratelaarsweide en het natte gebied rond de meest noordelijke vijver. Het historische landschap wordt gekenmerkt door het aanwezige erfgoed binnen het park. Het betreft een geheel van plekken en gebouwen die hoofdzakelijk centraal in het park terug te vinden zijn. Het gaat om de kastelen Rivierenhof en Sterckshof, het Sterbos, de dreef naar het kasteel Rivierenhof, de spiegelvijver met atlasbeeld en omringende dreven, het sprookjeshuis, het arboretum, het directiegebouw, de wachtersvilla, de rozentuin, de Schranshoeve, het Openluchttheater, de congohut en de Parkweg. Het sportlandschap is minder eenduidig te bepalen maar wordt gestructureerd door de parkweg die het volledige gebied doorkruist. Het landschap wordt gekenmerkt door tal van voorzieningen en infrastructuren in functie van sport en recreatie. Elk van bovenstaande landschappen heeft vanuit de ruimtelijke kenmerken specifieke mogelijkheden inzake inrichting. Dit betekent dat welbepaalde activiteiten al dan niet wenselijk zijn. Voor de totaliteit van activiteiten worden een 4-tal types onderscheiden:
De confrontatie tussen de landschappen en de types activiteiten met elk hun specifieke randvoorwaarden resulteert in de toekenning van een bepaald type activiteit aan een bepaald landschap. De differentiatie aan recreatieve activiteiten en hun gebruikers staat namelijk in verband met de kenmerken en kwaliteiten van de diverse 'landschappen'. Het natuurlandschap betreft een aaneengesloten gebied waarbinnen natuurbehoud en waterberging primeren. De vallei het Groot Schijn is hierin structuurbepalend en dient maximaal te worden gevrijwaard. Het centrale en zuidelijke deel is het meest gave gebied. In het natuurlandschap worden de 'laag-dynamische activiteiten die een bepaalde omgeving behoeven' onderbracht. Aangezien het activiteiten zijn die een beleving van de volledige omgeving inhouden, is een toekenning van een specifieke locatie vaak overbodig. Onder dit type activiteiten behoren: wandelen, fietsen en joggen -vissen en modelbouwbootjes - natuurbeleving en -educatie.
Het historisch landschap betreft een gebied met verspreid een aantal cultuurhistorische gebouwen en originele landschappelijke structuren. In het noorden betreft het een eerder gesloten en beboste structuur en meer zuidwaarts is het een eerder open gebied met verspreid 3 belangrijke cultuurhistorische gebouwen, waaronder het kasteel Rivierenhof, het kasteel Sterckshof en het Openluchttheater. Ter hoogte van de Turnhoutsebaan sluit de bebouwing aan op de weginfrastructuur. Het meest noordelijk deel is het meest toegankelijk door de aanwezigheid van de Turnhoutsebaan en het oostelijke en westelijke deel door de lokale wegen. In het historisch landschap worden binnen of in de omgeving van het erfgoed 'dynamische activiteiten met specifieke inrichting (binnen bestaande bebouwing)', 'dynamische activiteiten die een specifieke omgeving behoeven' en 'laagdynamische activiteiten met specifieke inrichting' ondergebracht. Onder dit type activiteiten behoren: activiteiten in functie van parkbeheer - culturele activiteiten - ecomarkt, rozenfeest, vuurwerk en horeca-faciliteiten - diverse speelactiviteiten voor kinderen van diverse leeftijdsgroepen zoals speeltuin en avonturenpark – diverse speelactiviteiten zoals minigolf en petanque -verkeerspark -kinderboerderij - kinderopvang. Voor de diverse speelactiviteiten (speeltuin, avonturenpark) wordt geopteerd voor een locatie nabij het kasteel Rivierenhof gezien de complementariteit van deze activiteiten. Voor de specifieke spelactiviteiten (minigolf, petanque) kan de afstand tot het kasteel groter zijn aangezien deze activiteiten vaak eigen faciliteiten hebben. Voor de educatieve activiteiten wordt eveneens geopteerd voor een clustering. Gezien de ligging van een aantal bestaande educatieve activiteiten (school, verkeerspark, kinderboerderij, educatieve tuinen) wordt voor een cluster in het oosten van het landschap geopteerd. Gezien de structurerende rol van de Parkweg en de centrale ligging van het historisch landschap, beperkt het sportlandschap zich tot het oostelijk en westelijk deel van het park. Binnen deze delen worden 'dynamische activiteiten met specifieke inrichting' of een concentratie van sportvelden voorzien. Dit in aansluiting met parkings die voor dergelijke activiteiten noodzakelijk zijn. 10.2. Mobiliteitsonderzoek 10.2.1. Gemotoriseerd verkeer
Het park is omgeven door weginfrastructuur waardoor de bereikbaarheid van het domein wordt verzekerd. In de loop der jaren is het Rivierenhof geëvolueerd tot een autovrij park. In tegenstelling hiermee wordt het park van noord naar zuid doorsneden door de as Hooftvunderlei-Sterckshoflei, hetgeen als belangrijke barrière in het park wordt ervaren. Om die reden wordt het 'knippen' van deze as als suggestie aan de wegbeheerder meegegeven. Als uit een onderzoek blijkt dat deze maatregel een nefaste invloed heeft op de verkeersafwikkeling van het omliggende wegennet, dan wordt gevraagd om de functionele en landschappelijke oversteekbaarheid van deze verkeersas maximaal uit te breiden.
Parking In het gevoerde onderzoek is een onderscheid gemaakt tussen parkings in het park en parkings op het openbaar domein. Bij de parkings in het park is een onderscheid gemaakt tussen private en publieke parking 5. Uit de gevoerde parkeertelling kan algemeen gesteld worden dat het huidige aantal parkings ruim voldoet aan de huidige behoeften. Volgende bevindingen kunnen hierbij aangehaald worden: • Op de parkings op het openbaar domein is de bezettingsgraad het grootst; waarschijnlijk door de combinatie van bezoekers en bewoners; • In het park kennen de parkings Ruggeveld en het Sterckshof de grootste bezettingsgraad; deze worden grotendeels gebruikt door bezoekers van de sportactviteiten; • Op zondag is de parkeerdruk het grootst; • Bij activiteiten in het Openluchttheater worden de parkings op het openbaar domein en de parking Ruggeveld in het park het meest benut.
Om onderbenutte parkings meer te gebruiken kan enerzijds een betere signalisatie aangebracht worden en kan anderzijds een herschikking van de activiteiten plaatsvinden.
De resultaten van de parkeertelling zijn geconfronteerd met het gevoerde locatieonderzoek. In de landschappen waar hoogdynamische activiteiten met een specifieke inrichting kunnen worden ondergebracht, zijn voldoende parkeerfaciliteiten nodig. Zodoende worden de huidige parkings in het oostelijk en westelijk deel van het sportlandschap maximaal behouden. Een wijziging van de vormgeving van deze parkings is mogelijk voor zover dit de toegankelijkheid bevordert en/of een duurzame inrichting van de aanpalende gebieden ten goede komt. Het betreffen parking oost en parking west. In het historisch landschap is voor het type toegestane activiteiten de parkeerbehoefte minder groot. Wel is de aanwezigheid van een parking gekoppeld aan de hoofdtoegang wenselijk. Ook is dit ingegeven vanuit de selectie van het Rivierenhof als hoofdpoort binnen het Regionaal Landschap de Voorkempen. In een hoofdpoort wordt een parking gevraagd die aansluit op het hogere wegennet, zijnde de Turnhoutsebaan. Vanuit het streven naar een maximaal gemeenschappelijk gebruik worden de huidige parking aan de school en de wachtersvilla geïntegreerd tot parking noord. Voor de activiteiten in het natuurlandschap is de parkeerbehoefte het kleinst. De parkeerplaatsen worden voornamelijk door de vissers gebruikt. Om die reden is enkel de parking die het meest aan de rand gelegen is behouden en wordt het huidige aanbod aan parkeerplaatsen verkleind. Het betreft parking zuid. De locatie van de parkings bevestigt bovendien het principe van een autovrij park waarbij de auto's aan de randen van het park worden opgevangen. Het resultaat van bovenstaande keuze is dat er in het domein 4 publieke parkeerplaatsen behouden blijven met in totaal 329 plaatsen. Bovendien zijn naast parkeerplaatsen bij het Districtshuis ook parkeerplaatsen op het omliggende openbaar domein aanwezig. Door de heraanleg van de Turnhoutsebaan is het aantal parkeerplaatsen zelfs toegenomen. In het streven naar een maximaal gemeenschappelijk gebruik van parkeerfaciliteiten kan parking west ook door de bewoners van Deurne-Noord gebruikt worden. Aanvullend zijn kleinschalige private parkeerfaciliteiten toegestaan ter hoogte van de beheersactiviteiten, de educatieve activiteiten en de historische gebouwen (het kasteel Sterckshof, het kasteel Rivierenhof, het Openluchttheater en de Schranshoeve); dit voor een optimale werking van de activiteiten. Rekening houdend met een gemiddelde bezettingsgraad van 33% voldoet dit aanbod ruimschoots aan de behoefte.
10.2.2. Openbaar vervoer
Inzake openbaar vervoer wordt de Turnhoutsebaan aangeduid als openbaar vervoersas met een 2-tal haltes ter hoogte van het domein. De voorziene hoofdpoort uit het Regionaal Landschap de Voorkempen ligt bijgevolg op korte afstand van deze haltes, hetgeen de toegankelijkheid bevordert. Ook op de assen Hooftvunderlei-Sterckshoflei en de Ruggeveldlaan zijn mogelijkheden voor openbaar vervoer aanwezig.
10.2.3. Fietsroutes
Om het netwerk van bovenlokale functionele fietsroutes te verduidelijken en te optimaliseren voor de gebruiker wordt geopteerd voor het bundelen van de routes en het optimaliseren van de directheid van de routes. Op die manier kunnen specifieke routes worden voorbehouden voor fietsers zonder dat wandelaars gehinderd worden. De hoofdroute en de functionele fietsroutes worden in oostwestelijke richting aan de randen van het park voorzien om voor de fietsers een vlotte verbinding te voorzien en gelijktijdig een permanente toegankelijkheid te verzekeren. In noordzuidelijke richting wordt de as Hooftvunderlei-Sterckshoflei aangeduid als functionele fietsroute. De alternatieven zijn respectievelijk de Parkweg en de Ruggeveldlaan. Voor de route op de Parkweg wordt een aansluiting op het tunneltje aan het ringfietspad behouden met een afbuiging ter hoogte van parking west. Op de plaatsen waar de fietsroutes op het openbaar domein aansluiten, dienen verkeersveilige overgangen te worden voorzien. Op bovenlokaal recreatief niveau worden aangename routes vooropgesteld die bezienswaardigheden verbinden. Om die reden gaan deze routes dwars doorheen het park. De zuidelijke route verbindt het kasteel Sterckshof met de vijvers in het zuiden van het park. De noordelijke route verbindt het kasteel Sterckshof met het kasteel Rivierenhof en verlaat het park via de hoofdpoort, zoals vooropgesteld in het Regionaal Landschap de Voorkempen. Beide routes worden in het oosten met elkaar verbonden. Op de Turnhoutsebaan zijn aan weerszijden dubbelrichtingsfietspaden aanwezig die het fietsverkeer vanuit de hoofdpoort in diverse richtingen kan afwikkelen. Het netwerk van bovenlokale routes wordt aangevuld met een netwerk van lokale routes. 10.2.4. Interne circulatie
Naast bovenvermeld bovenlokaal fietsverkeer wordt het park ook door recreatieve fietsers, wandelaars en joggers gebruikt. In dit geval is het domein een verblijfsruimte en geen doorgangsruimte. Om de leesbaarheid van het park te vergroten is ook een duidelijke interne ontsluitingsstructuur aangeduid. Hierbij wordt geopteerd voor een 'parcours' dat het volledige park omvat Er wordt hiervoor gebruik gemaakt van de bestaande dreven. Het voorzien van een aaneensluitende route, verder interne belevingsroute genoemd, is hierbij cruciaal. Aanvullend worden langs alle zijden van het park een aantal toegangen tot deze interne belevingsroute voorzien. Vanuit veiligheidsoverwegingen is het belangrijk dat de toegangen voor de zwakke weggebruiker telkens gescheiden liggen van de toegangen voor autoverkeer. Ook wordt aansluitend op de Turnhoutsebaan een afstemming nagestreefd met de haltes voor openbaar vervoer en met oversteekplaatsen voor fietsers en voetgangers.
11. Gewenste ruimtelijke structuur 11.1. Globale gewenste ruimtelijke structuur Vanuit de ambitie om door deze structuurvisie een samenhangend en overzichtelijk grootstedelijk park te creëren waarbij elke activiteit en functie haar plaats vindt, worden de bestudeerde landschappen binnen het domein vertaald in een aantal gebieden met elk gebiedsspecifieke kenmerken. In het zuiden van het park wordt het natuurlandschap aangeduid als een gebied voor natuurbehoud waarbinnen de vallei van het Groot Schijn maximaal gevrijwaard wordt en waarbij een verdere vernatuurlijking het uitgangspunt is. Centraal bevinden zich binnen het historische landschap een gebied voor cultureel erfgoed en tuinen en een gebied voor parkbeheer en educatie. Het gebied voor cultureel erfgoed en tuinen strekt zich uit rondom het kasteel Rivierenhof, het kasteel Sterckshof en het Openluchttheater. Er wordt een ruime toegankelijkheid voorzien met diverse toegangen en entrees. Aansluitend op dit gebied wordt een poortfunctie voorzien, dé entree of hoofdtoegang tot het Rivierenhof. Het gebied voor parkbeheer en educatie is meer oostwaarts gelegen en is gepositioneerd rondom bestaande bebouwing. Een verdere clustering is op deze locatie mogelijk. In het sportlandschap worden de activiteiten ondergebracht in een oostelijk en een westelijk gebied voor sport; elk met eigen parkeerfaciliteiten. De ligging in het noorden van het park vergroot de toegankelijkheid van de gebieden. Door de locatie aan de randen van het park kan gelijktijdig het groendomein maximaal gehandhaafd blijven. Bij de inrichting van het park dienen de resterende of te herstellen historische elementen te worden aangewend als basisstructuur. Naast een belangrijke landschappelijke en historische betekenis vervullen deze elementen ook een belangrijke rol als verbindingselementen en oriëntatiepunten binnen het park. De verschillende gebieden worden met elkaar verbonden door een interne belevingsroute die de gebieden aan elkaar 'rijgt'. Op deze route sluiten diverse toegangen aan alsook een intern netwerk van paden en dreven. De bovenlokale functionele fietsroutes zijn rechtlijnige routes doorheen en aan de randen van het park. De bovenlokale recreatieve routes verbinden binnen het park diverse bezienswaardigheden. Op de noordelijke bovenlokale recreatieve route sluit de hoofdpoort of de hoofdtoegang tot het park aan. Voor gemotoriseerd verkeer worden aan de randen van het domein parkings voorzien met gescheiden toegangen. Op deze manier wordt het gemotoriseerd verkeer uit het park gehaald en wordt de zwakke weggebruiker een verkeersveilige omgeving aangeboden. Uit bovenstaande kan geconcludeerd worden dat voor elke type activiteiten een welbepaald gebied wordt voorbehouden. Tegelijkertijd functioneert het Rivierenhof als een samenhangend park waarbinnen overal de benodigde kleinschalige parkinfrastructuur is toegestaan. Hierbij dient steeds aandacht uit te gaan naar de toegankelijkheid, naar het behoud van de archeologische restanten en naar de noden en behoeften van kinderen en jongeren in het park.
Structuurschets 11.2. Specifieke ontwikkelingsperspectieven ACTIVITEITEN IN HET PARK Sportactiviteiten Gezien het dynamisch karakter en de behoefte aan een specifieke inrichting is het wenselijk om de sportactiviteiten te voorzien in het noorden en aan de randen van het domein. Er worden twee clusters voorzien die bestemd zijn voor sport- en spelactiviteiten in een parkomgeving. Het betreft sportactiviteiten in openlucht waaronder voetbal, korfbal, tennis, basketbal en andere gelijkaardige sportactiviteiten. Voor elk van de huidige clubs wordt binnen dit gebied ruimte voorzien. Aanvullend kunnen ook spelactiviteiten toegestaan worden waaronder een speeltuin. Voor de sport- en spelactiviteiten kan bijhorende accommodatie alsook gebouwen en kunststofverhardingen worden voorzien voor zover deze landschappelijk zijn ingepast. De bereikbaarheid van deze clusters wordt verzekerd door de aanwezigheid van ruime parkings, openbaar vervoerhaltes en diverse toegangen voor fietsers en voetgangers vanuit de bebouwde omgeving. Cultureel erfgoed en tuinen Binnen dit deel van het park wordt het bestaande erfgoed bewaard en wordt het behoud en het herstel van de originele parkstructuren vooropgesteld als basisstructuur voor het park. De culturele polen waarrond dit gebied wordt opgebouwd zijn het kasteel Sterckshof, het kasteel Rivierenhof en het Openluchttheater. Binnen het erfgoed zijn in overeenstemming met de draagkracht van het erfgoed en de omgeving activiteiten zoals horeca, tentoonstellingsruimte, musea, ruimte voor optredens en diverse andere gemeenschapsvoorzieningen toegestaan. Eventuele werken aan het erfgoed of bijkomende bebouwing en accommodatie kan enkel worden toegestaan indien dit op een architecturaal verantwoorde wijze gebeurd en het in overeenstemming is met het parkachtig karakter van het omgevende landschap. Aanvullend zijn in dit parkgedeelte laagdynamische recreatieve activiteiten toegestaan waaronder speeltuinen, een avonturenpark, minigolf, petanque, modeltreintjes en andere gelijkaardige activiteiten. Ook is er ruimte voor diverse tuinen (zoals een arboretum, een geurtuin, een coryletum, een beeldentuin en een Chinese tuin). Binnen dit gebied is ook de relatie tussen de diverse functies en activiteiten zeer belangrijk. Om die reden is een maximale opheffing van de barrière van de Hooftvunderlei-Sterckshoflei van groot belang. Enkel op die manier kunnen de aanwezige activiteiten elkaar versterken en kan een landschappelijke eenheid binnen dit gebied nagestreefd worden.
Parkbeheer en educatie Het gebied is bestemd voor activiteiten in functie van parkbeheer (machinepark, serres, composteringsactiviteiten, administratie en andere ondersteunende activiteiten) en educatie (school, kinderboerderij, kinderopvang, verkeerspark en andere parkgebonden educatieve activiteiten) voor zover een optimale integratie in het park blijft gegarandeerd. Het gebied situeert zich in het noorden van het domein waar reeds bestaande beheers-en recreatieve activiteiten gelegen zijn. Ter hoogte van de Turnhoutsebaan is gezien de nabijheid van de randstedelijke omgeving ruimte voor meer intensieve bebouwing. Ook meer centraal in het park is bijkomende bebouwing toegestaan voor zover de ruimtelijke impact in overeenstemming is met de draagkracht van het park. Bovendien dient het resterende historisch patrimonium maximaal in stand gehouden te worden. Natuur – vallei Ter hoogte van het meanderende gedeelte van het Groot Schijn wordt een parkgebied aangeduid dat meer natuurlijk dient te worden ingericht en waarbij voldoende ruimte dient te worden voorzien voor waterberging. Indien uit voldoende onderzoek blijkt dat de waterkwaliteit sterk is verbeterd dan kunnen in functie van waterberging overstromingengebieden worden ingericht. Het meest zuidelijke deel heeft eveneens een landschappelijke functie voor wat betreft het begrenzen van het park hetgeen geaccentueerd wordt door de groenstrook op de berm langsheen de autosnelweg. Bij eventuele werken aan de autosnelweg dient deze groenstrook gerespecteerd te worden en dienen eveneens maatregelen te worden voorzien voor het beperken van de geluidsoverlast in dit gebied. De Schranshoeve kan in stand gehouden worden in functie van gemeenschapsvoorzieningen waarvan de dynamiek in overeenstemming is met de draagkracht van het gebied. In het volledige gebied is recreatief medegebruik onder de vorm van wandelen, fietsen en joggen toegestaan evenals natuurbeleving- en –educatie. Vissen en modelbootjes blijven mogelijk. Nieuwe recreatieve watergebonden activiteiten zijn in deze zone echter niet toegelaten. Om ook het gebied ten zuiden van de Herentalsevaart maximaal te integreren in het gebied voor natuurbehoud worden in overeenstemming met het beschermingsbesluit landbouw- en parkgerelateerde activiteiten toegestaan. De inrichting van het beschermd landschap dient te kaderen binnen het globale beeld van het park. Parking Aan de randen van het park worden ruime parkeerfaciliteiten voorzien en dit zowel voor gemotoriseerd verkeer alsook voor fietsverkeer. Wel wordt voor beide gebruikers een gescheiden toegang voorzien. De oostelijke en westelijke parking bieden de grootste parkeerfaciliteiten. De noordelijke parking staat in voor de parkeerbehoefte gerelateerd aan de hoofdtoegang. De zuidelijke parking is eerder kleinschalig en is voornamelijk bedoeld voor vissers en wandelaars. De parkings op het omgevende openbaar domein kunnen eveneens gebruikt worden door bezoekers van het Rivierenhof. Hoofdtoegang en parking Dit gebied is bestemd als een toegankelijke publieke ruimte binnen het park, die dienst doet als info- en onthaalruimte voor het Provinciaal Groendomein, evenals voor het Regionaal Landschap de Voorkempen. Het bestaande cultuurhistorisch gebouw (ook wachtersvilla genoemd) wordt in functie van deze rol ingevuld. Naast parkeerruimte worden aanvullend ook andere faciliteiten toegestaan die de toegankelijkheid tot het park bevorderen. Bebouwing De aangeduide bebouwing is destijds niet weerhouden binnen de perimeter van het BPA Deurne-dorp aangezien de provincie voor deze bebouwing inzake typologie en vormgeving een afstemming op het park nastreeft en bijgevolg opteert voor een geïntegreerde benadering. Inzake invulling wordt geopteerd voor hetzij wonen (met inbegrip van handelszaken) hetzij parkgebied (met inbegrip van parkinfrastructuur en aan het park gerelateerde horeca). Naar ruimtelijke vormgeving dient eveneens een integratie binnen het park te worden nagestreefd. Landschapsdreven De landschapsdreven hebben een belangrijke cultuurhistorische betekenis en dienen om die reden in het landschap geaccentueerd te blijven en indien mogelijk in ere hersteld te worden. Het accentueren van deze dreven in het landschap herstelt de relatie tussen de 3 culturele polen. Ook vormen deze dreven of zichtassen de basis voor de verdere uitbouw van het gebied voor cultureel erfgoed en tuinen.
ONTSLUITING VAN HET PARK
Functionele fietsroutes door het park Het opzet van de functionele routes is om fietsers een vlotte en korte verbinding aan te bieden tussen twee bestemmingen. In oostwestelijke richting wordt hiervoor binnen het park een route parallel met de autosnelweg aangeduid. In noordzuidelijke richting betreft het de Hooftvunderlei-Sterckshoflei. Beide routes zijn permanent toegankelijk. Recreatieve paden in het park De recreatieve paden verbinden belangrijke bezienswaardigheden in het park en dit binnen een aangenaam kader. Op bovenlokaal niveau worden deze routes dwars doorheen het park voorzien met aansluiting op de hoofdtoegang tot het Rivierenhof. Om de verschillende gebieden binnen het park met elkaar te verbinden en de bezoekers te betrekken in alle facetten van het park wordt doorheen het domein een interne belevingsroute voorzien. Deze route heeft naast een belevingswaarde ook een belangrijke oriënterende rol waarop een uitgebreid net van kleinere paden en dreven kan aangesloten worden. Inzake inrichting wordt een duurzame en uniforme aanleg vooropgesteld met aandacht voor fietsers en wandelaars. De aanleg dient zich te onderscheiden van de andere interne paden zodanig dat de oriënterende functie van deze route duidelijk in beeld wordt gebracht. Ook dient op deze route de nodige signalisatie te worden aangebracht naar de diverse functies en activiteiten in het park. Om de toegankelijkheid van het park te garanderen worden diverse toegangen tot het domein voorzien die aansluiten op de interne belevingsroute. Belangrijk is dat de aansluitingen van deze toegangen op het openbaar domein geaccentueerd worden in het straatbeeld. Oriëntatiepunten Centraal worden op de interne belevingsroute een tweetal oriëntatiepunten aangeduid. Deze punten refereren naar de historische parkstructuur en kunnen naar toekomstige inrichting een belangrijke rol als oriëntatie- of herkenningspunt vervullen. Ze zijn namelijk gelegen op de overgang tussen verschillende gebieden in het park. Deze punten kunnen door het plaatsen van blikvangers in het landschapbeeld geaccentueerd worden.
12. Bestemmingsplan 12.1. Toelichting bij de bestemmingen en motivatie van de bijhorende inrichtingsbepalingen 12.1.1. Algemene stedenbouwkundige voorschriften
Algemene bestemming en inrichtingsmogelijkheden voor het globale parkgebied Het volledige plangebied wordt bestemd als parkgebied waarvoor een algemene bestemmingsomschrijving is voorzien. Aanvullend hierop zijn ook een aantal inrichtingsmogelijkheden opgenomen die eveneens voor de totaliteit van het park gelden. Op deze manier kan gewerkt worden aan eenheid, uniformiteit en herkenbaarheid binnen het groendomein. Binnen de diverse zones van het parkgebied gelden specifieke stedenbouwkundige voorschriften die specifiek voor die welbepaalde zone van toepassing zijn. Voor de paden en toegangen wordt de verharding niet gespecificeerd. De reden hiervoor is dat het aandeel beperkt is en dat de nodige flexibiliteit dient te worden voorzien voor allerhande nieuwe technieken en materialen. Doordat het plangebied in het zuiden en het zuidwesten begrensd wordt door een autosnelweg is er conform het KB van 4 juni 1958 een reserveringsstrook van 30,00m van toepassing.6 Indien bij de inrichting van het parkgebied routes, paden of andere (sport)infrastructuur binnen (de laatste 20,00m van) de reserveringsstrook wordt aangelegd, dient (bij de vergunningsaanvraag) een afwijking aangevraagd te worden op deze wetgeving. Uit het locatie-onderzoek is immers gebleken dat de sportzones best aan de randen van het park gelegen zijn. Vanuit de optie van een zuinig en duurzaam ruimtegebruik wordt geopteerd voor een invulling binnen de (laatste 20,00m van de) reservatiestrook. Hierbij wordt evenwel afstand gedaan van de rechten op vergoeding van de bebouwing of verhardingen bij eventuele onteigening. Paden en routes Conform het mobiliteitsonderzoek zijn er binnen het Rivierenhof diverse recreatieve en functionele fietsroutes. Het opzet is om deze routes maximaal te bundelen en de directheid van de routes te verbeteren. Op die manier kunnen de recreatieve routes gebundeld worden tot 3 routes doorheen het park. De functionele (alternatieve) fietsroutes worden aan de randen van het park gelegd alsook op de as Sterckshoflei-Hooftvunderlei en op de Parkweg. Dit laatste strookt met de visie van het RUP Ruggeveld – Silsburg. Op niveau van het park wordt een interne belevingsroute aangeduid die de verschillende zones binnen het park verbindt. Deze route heeft eveneens een belangrijke rol inzake oriëntatie binnen het park. Op het grafisch plan zijn de bovenlokale recreatieve fietsroutes, de Parkweg als alternatieve functionele fietsroute en de interne belevingsroute samengevat tot ‘recreatieve paden’. De bovenlokale functionele fietsroutes zijn aangeduid als ‘functionele fietsroutes’. Door elk van deze routes op een uniforme wijze in te richten, door bij voorbeeld een uniform type of kleur van verhardingen, wordt de herkenbaarheid ervan voor de gebruiker vergroot. Het zal met andere woorden duidelijk zijn welke paden door doorgaand fietsverkeer en welke door wandelaars gebruikt worden. Daar waar de routes en paden kruisen met het publiek domein worden de toegangen tot het park geaccentueerd; dit om de toegankelijkheid van het domein voor de omgeving te vergroten. De concrete inplanting van de routes, paden en toegangen ligt niet vast. Op het grafisch plan zijn deze louter indicatief aangeduid. Dit betekent dat de concrete inplanting in een latere fase gebeurt. In de zone ‘Parkgebied: sport’ is ook het tracé van de recreatieve paden en de functionele fietsroutes niet aangeduid; door middel van een pijl is immers enkel een richting aangegeven. De bedoeling is dat het recreatieve pad (de Parkweg) ter hoogte van de Turnhoutsebaan aansluit op het valleigebied dat noordwaarts verder loopt. De functionele fietsroutes dient aan te sluiten op de hoofdroute of het ringfietspad. Voor elk van de doorsteken wordt op de Turnhoutsebaan een afzonderlijke toegang voorzien. Aangezien voor deze sportcluster nog geen concrete inrichting gekend is en de invulling bovendien ook van andere planprocessen afhankelijk is, is beslist om het bepalen van het tracé voor de route en het pad vrij te laten. Voorkooprecht Voor de woningen aan de randen van het park wordt een voorkooprecht voorzien voor de provincie Antwerpen. Vanuit het streven naar een ruimtelijk aaneengesloten park dat ten aanzien van het stadsweefsel zo zichtbaar mogelijk aanwezig is, kan op deze manier bijkomende ruimte gecreëerd worden voor activiteiten en voorzieningen die de bestemming van het parkgebied ondersteunen. Het parkgebied vervult binnen het stadsweefsel immers een belangrijke publieke en maatschappelijke betekenis. Toegankelijkheid In het kader van de toegankelijkheid van gebouwen en openbare ruimten wordt elke aanvraag tot vergunning die betrekking heeft op een publieke ruimte voor advies voorgelegd aan het Centrum voor Toegankelijkheid Provincie Antwerpen (Boomgaardstraat 22, bus 101, 2600 Antwerpen; T:03/240.56.47 of www.provant.be, Welzijn en Toegankelijkheid) alvorens de stedenbouwkundige vergunning af te leveren. De aanvrager dient alle informatie te verstrekken die nodig is om de toegankelijkheid te evalueren. Onder publieke ruimte wordt verstaan: de openbare en niet-openbare gebouwen die voor het publiek toegankelijk zijn, met inbegrip van de praktijken voor vrije beroepen, de openbare en niet-openbare wegen die voor het publiek toegankelijk zijn, alsook elk ander domein, infrastructuur, gebouw of plaats die voor het publiek toegankelijk is. Er wordt gesteld dat de openbare wegen en de indicatief aangeduide recreatieve paden en functionele fietsroutes integraal toegankelijk dienen te zijn en de overige paden maximaal toegankelijk. Er zijn met name paden in de vochtige gebieden van het park waarbij het benodigde type verharding voor het garanderen van de toegankelijkheid niet gewenst is. Aanvullend dienen op alle private en publieke parkings binnen het domein specifieke plaatsen te worden voorbehouden voor mindervaliden. Waterbeheer Om te voldoen aan de modaliteiten van de watertoets worden voor de totaliteit van het parkgebied mogelijkheden inzake waterbeheer toegestaan. Bij elk van de zones zijn zowel inzake bestemming alsook inzake inrichting een aantal kwaliteitscriteria opgenomen die bij de beoordeling van de vergunningsaanvragen gemotiveerd dienen te worden.
12.1.2. Parkgebied: cultureel erfgoed en tuinen
Binnen het locatie-onderzoek is centraal in het park een historisch landschap aangeduid waarbinnen ‘dynamische activiteiten met specifieke inrichting (binnen bestaande gebouwen met erfgoedwaarde)’, ‘dynamische activiteiten die een specifieke omgeving behoeven’ en ‘laagdynamische activiteiten met specifieke inrichting’ zijn toegestaan. De zone is bijgevolg bestemd voor tuinen, spelactiviteiten en cultureel erfgoed. Ter ondersteuning van deze functie kunnen in totaal maximaal 5 zaken als café’s en/of restaurant worden uitgebaat. Dit aantal kan verantwoord worden doordat er momenteel al 4 café’s en/of restaurants zijn, met name in het kasteel Rivierenhof, het kasteel Sterckshof, het Openluchttheater en de minigolf. Bijkomend wordt gedacht aan een café in het arboretum. In de aangeduide gebouwen met erfgoedwaarde zijn ruimere bestemmingsmogelijkheden voorzien met tot doel de instandhouding van het erfgoed. De gebouwen en constructies met erfgoedwaarde zijn:
voormalige portierswoning Binnen de gebouwen met erfgoedwaarde zijn kleinschalige logies toegestaan voor zover deze binnen gebouwen georganiseerd worden die rechtstreeks ontsluitbaar zijn via het openbaar domein. Op die manier kan de dynamiek in het parkgedeelte beperkt blijven. Voor de gebouwen met erfgoedwaarde is een beperkte uitbreiding toegestaan. Voor de kastelen, als beschermde monumenten, stemt dit overeen met de huidige decretale bepalingen (20%). Ook voor het directeursgebouw en de naastgelegen voormalige portierswoning is een gelijkaardige uitbreiding toegestaan. Voor het Openluchttheater is een uitbreiding binnen de grachtenstructuur als natuurlijke begrenzing toegestaan; een permanente overkapping is evenwel niet mogelijk. Inzake inrichting zijn diverse tuinen met verspreid een beperkt aantal publiek toegankelijke gebouwen toegestaan met een maximale oppervlakte van 200m² en een maximaal volume van 1.000m³. De toegestane maximale oppervlakte is gebaseerd op de gangbare maatvoering voor dergelijke gebouwen. De huidige bebouwde oppervlakte 7 voor deze activiteiten is momenteel kleiner maar om toekomstige behoeften en regelgeving niet te hypothekeren is een marge voorzien. De gebouwen dienen zodanig ingeplant en georiënteerd te worden dat de bezoekers van het park van op de recreatieve paden de activiteiten kunnen herkennen en dat de toegankelijkheid ervan duidelijk wordt gemaakt. Het is met name niet de bedoeling dat de gebouwen in de richting van het recreatieve pad over een blinde gevel beschikken. Het maximaal aantal gebouwen is beperkt tot 7. Dit aantal omvat zowel de bestaande als de nieuwe gebouwen. Hierbij wordt abstractie gemaakt van de gebouwen die activiteiten huisvesten die niet beantwoorden aan de bestemmingsomschrijving van deze zone (met name de clublokalen bij de sportvelden). Voor de clublokalen zijn enkel instandhoudingswerken toegestaan. Momenteel zijn er in functie van de gewenste bestemming reeds 5 gebouwen (sprookjeshuis, gebouw in het arboretum, het gebouwtje van de minigolf, de Ijskelder en het gebouwtje van de petanque) aanwezig. In functie van nieuwe tuinen en spelactiviteiten zijn 2 bijkomende gebouwen toegestaan. Het aantal en de oppervlakte inname van constructies en accommodatie is vrij.
De bestaande clublokalen met bijhorende sportvelden en accommodatie dienen tegen 2030 te zijn verplaatst naar de zone ‘parkgebied: sport’. Een periode van ruim 20 jaar wordt als realistische periode voor herlocalisatie geacht. 12.1.3. Parkgebied: sport Uit het locatie-onderzoek zijn aan de oostelijke en westelijke rand van het park 2 gebieden als sportlandschap aangeduid. Binnen deze landschappen zijn ‘dynamische activiteiten met specifieke inrichting’ toegestaan. Naast sportvelden in open lucht zijn aanvullend bijhorende sportinfrastructuur en gebouwen met een maximale oppervlakte van 400m² en volume van 3.200m² toegestaan in functie van berging, sanitaire voorzieningen, kantine en kleedkamers toegestaan. De maximaal toegestane oppervlakte stemt overeen met het clublokaal dat momenteel de grootste oppervlakte inneemt. In deelzone 1 is eveneens een tribune van maximaal 500m² met maximale hoogte van 12,00m toegestaan. Deze maatvoering stemt overeen met de huidige maatvoering. Sporthallen voor indoor sportactiviteiten zijn niet toegestaan. De gebouwen dienen zodanig ingeplant en georiënteerd te worden dat de bezoekers van het park van op de recreatieve paden de activiteiten kunnen herkennen en dat de toegankelijkheid ervan duidelijk wordt gemaakt. Binnen elk van de deelzones is voor het aantal gebouwen rekening gehouden met het huidige aantal gebouwen waarover de club beschikt die in die welbepaalde deelzone zou worden ondergebracht .8 Bovendien is er telkens een marge voorzien van 1 gebouw om toekomstige behoeften niet te hypothekeren:
Deelzone 3 is ruimer afgebakend dan hetgeen nodig is voor het vooropgestelde programma (korfbalvelden). Om echter de waterloop maximaal te vrijwaren en een landschappelijk verantwoorde inrichting te garanderen wordt een zekere marge voorzien. Wel is het maximale aandeel bebouwing en verharding in deze deelzone verordenend vastgelegd. Deze planoptie houdt eveneens rekening met de mogelijke onteigeningen die aan de westzijde van het park zullen gebeuren in functie van bovenlokale weginfrastructuur (cfr. Oosterweelverbinding). In het mobiliteitsonderzoek is aangetoond dat in landschappen waar dynamische activiteiten met een specifieke inrichting zijn toegestaan, voldoende parkeerfaciliteiten nodig zijn. Om die reden worden binnen deze zone aan weerzijden een publieke parking opgelegd. Het aantal parkeerplaatsen wordt niet verordenend vastgelegd. Wel wordt bij de ruimtelijke opties een indicatie weergegeven. Dit aantal plaatsen stemt na afronding overeen met het huidige aantal plaatsen (namelijk 166 aan Deurne Huiskens en 84 aan Ruggeveld). Voor een optimaal en gemeenschappelijk gebruik dienen deze parkings permanent toegankelijk te zijn. Het is met name de bedoeling dat ook de inwoners van Deurne gebruik kunnen maken van deze parkings. Binnen de westelijke sportzone dient de Parkweg, als onderdeel van het recreatieve pad, gedeeltelijk te worden verlegd parallel met de waterloop en gedeeltelijk richting tunnel van het ringfietspad. Op die manier wordt niet enkel het tracé van de waterloop maar ook een recreatieve as voorzien die de verbinding legt naar de zachte ruggengraat rondom het stadscentrum. Om de toegankelijkheid van dit pad te garanderen dient het te worden verlegd voorafgaand aan de inrichting van de sportzone. De Parkweg heeft zowel een recreatieve als (alternatieve) functionele betekenis. Binnen de sportzone wordt ruimte voorzien voor de sportvelden die nu in hoofdzaak gelegen zijn binnen de zone voor cultureel erfgoed en tuinen. Er wordt opgelegd in het PRUP dat gelijktijdig met de oprichting van nieuwe gebouwen en de aanleg van nieuwe sportvelden de huidige infrastructuur dient te worden afgebroken en dat het terrein conform de specifieke stedenbouwkundige voorschriften dient te worden aangelegd. Dit kan door middel van een borgstelling afdwingbaar gemaakt worden. In ieder geval dient deze verplaatsing tegen 2030 voltooid te zijn. 12.1.4. Parkgebied: beheer en educatie De zone voor beheer en educatie maakt eveneens deel uit van het in het locatieonderzoek aangeduid historische landschap waarbinnen ‘dynamische activiteiten met specifieke inrichting (binnen bestaande gebouwen met erfgoedwaarde)’, ‘dynamische activiteiten die een specifieke omgeving behoeven’ en ‘laagdynamische activiteiten met specifieke inrichting’ zijn toegestaan. Bovendien is in het onderzoek aangegeven dat voor de educatieve activiteiten wordt geopteerd voor een clustering ter hoogte van de bestaande educatieve activiteiten. De zone is bestemd voor diverse activiteiten in functie van beheer en educatie maar ook voor tuinen en spelactiviteiten. In de aangeduide gebouwen met erfgoedwaarde zijn ruimere bestemmingsmogelijkheden voorzien met tot doel de instandhouding van het erfgoed. De gebouwen met erfgoedwaarde zijn het poortgebouw en de bijenhal. Aangezien deze gebouwen niet rechtstreeks ontsluiten op het openbaar domein zijn kleinschalige logies hier niet toegestaan. In de school zijn daarentegen wel kleinschalige logies toegestaan omdat deze gebouwen rechtstreeks ontsluitbaar zijn op de Turnhoutsebaan en bijgevolg geen extra dynamiek wordt gecreëerd in het park. Voor elk van de gebouwen met erfgoedwaarde is een uitbreiding van 20% toegestaan conform de overige gebouwen met erfgoedwaarde binnen het plangebied. Binnen deze zone zijn deelzones onderscheiden. Ter hoogte van de Turnhoutsebaan zijn deelzones A en B aangeduid waarbinnen de meest intensieve bebouwing is toegestaan gezien de ligging aan de rand van het park en de goede toegankelijkheid van op de Turnhoutsebaan (N12). Er wordt een terreinbezetting van maximum 80% vooropgesteld bij wijze van aansluiting op het stedelijk weefstel. Onder de terreinbezetting wordt zowel het aandeel verharding alsook het aandeel bebouwing verstaan. In deelzone C is het aandeel bebouwing beperkt tot een toename van 20% ten aanzien van de huidige bebouwde oppervlakte. Het aandeel verharding kan niet toenemen. Het is de bedoeling dat de personeelsparking hier op termijn verdwijnt en verplaatst wordt richting N12. De minder intensieve bebouwing en verharding in deelzone C zorgt ervoor dat het aandeel ‘groen’ hier primeert. Binnen deelzone A zijn zonevreemde woningen gelegen.9 De woningen zijn conform het geldende gewestplan in een gebied voor dagrecreatie gelegen. Conform de decretale bepalingen zijn renovaties en verbouwingen binnen het huidige bouwvolume alsook herbouw in het geval van overmacht toegestaan. 12.1.5. Parkgebied: hoofdtoegang Binnen het historische landschap is aansluitend op de Turnhoutsebaan de hoofdtoegang tot het Provinciaal Groendomein Rivierenhof voorzien. Conform de resultaten van het mobiliteitsonderzoek is geopteerd voor een locatie die grenst aan bovenlokale recreatieve paden en functionele fietsroutes. Ook voldoet deze locatie aan de vereisten van een hoofdpoort binnen het Regionaal Landschap de Voorkempen. Naast het voorzien van de nodige accommodatie voor de onthaalfunctie wordt eveneens het behoud van het gebouw met erfgoedwaarde vooropgesteld; met name de wachtersvilla. Dit gebouw is opgenomen als bouwkundig erfgoed. Om dit in stand te houden zijn ruimere bestemmingsmogelijkheden voorzien. Ook kleinschalige logies zijn toegestaan. Ook de bestaande vrijstaande conciërgewoning kan behouden blijven binnen deze zone. Aangezien deze woning niet meer voldoet aan de huidige comforteisen is een uitbreiding toegestaan. De toegelaten oppervlakte en volume stemmen overeen met een gangbare maatvoering voor huidige woningbouw. Naast het accentueren van de toegang tot het Rivierenhof is ook een minimum aandeel groen belangrijk voor het benadrukken van de aanwezigheid van een park. Om aan de parkeerbehoefte van een onthaalfunctie te voldoen dienen parkeerplaatsen te worden voorzien. In de ruimtelijke opties wordt een aantal voorgesteld dat na afronding overeenstemt met de som van het huidige aantal plaatsen aan de wachtersvilla (7) en de school (18). Het is namelijk de bedoeling dat op termijn de parkeerfaciliteiten gemeenschappelijk gebruikt worden. 12.1.6. Parkgebied: wonen -park De zone voor parkgebied wonen – park is destijds op vraag van de provincie uit het BPA Deurne Dorp gehaald. De reden hiervoor is om inzake bestemming mogelijkheden te voorzien voor activiteiten die de bestemming van het park ondersteunen alsook om inzake inrichting modaliteiten te voorzien die een optimale inpassing van de bebouwing in het parklandschap garanderen. De zone heeft bijgevolg 2 hoofdbestemmingen: wonen en park.
Met uitzondering van het aantal bouwlagen zijn de stedenbouwkundige voorschriften voor woningbouw in belangrijke mate afgestemd op de mogelijkheden conform het BPA Deurne Dorp. Ook stemmen deze mogelijkheden overeen met deze van het geldende gewestplan; zijnde woongebied.10 Voor de activiteiten in functie van parkbeheer is een afstemming gemaakt enerzijds op de mogelijkheden binnen artikel 3 – deelzone A en B en anderzijds op de bebouwing langsheen de Turnhoutsebaan.
12.1.7. Parkgebied: natuur -vallei In het locatie-onderzoek is het gebied ter hoogte van het meanderend gedeelte van het Groot Schijn aangeduid als natuurlandschap waarbinnen enkel ‘laag-dynamische activiteiten die een bepaalde omgeving behoeven’ kunnen worden ondergebracht. Hieronder worden wandelen, fietsen, joggen en natuureducatie verstaan. Activiteiten zoals vissen en modelbouwbootjes kunnen blijven, maar nieuwe wateractiviteiten zijn niet toegestaan. Aanvullend wordt het behoud van het gebouw met erfgoedwaarde vooropgesteld. De Schranshoeve is opgenomen als onderdeel van het beschermd landschap. Om deze in stand te houden zijn ruimere bestemmingsmogelijkheden voorzien waaronder ook kleinschalige logies. Daar de ligging van de hoeve aan de Ruggeveldlaan wordt de impact van deze activiteit als aanvaardbaar beschouwd. Wel is een uitbreiding van de bebouwing niet toegestaan. Ook het aandeel verharding is hier beperkt tot het bestaande aandeel. Om het gebied voor bezoekers toegankelijk te maken is conform het mobiliteitsonderzoek een parking voorzien, evenwel met een beperking van het aantal parkeerplaatsen en met een aangepaste aanleg. Momenteel zijn er 108 plaatsen aanwezig. Gezien het geringe gebruik kan dit aantal gehalveerd worden. Ook dienen deze plaatsen ten zuiden van het recreatieve pad te worden gesitueerd. Op deze manier zijn ze het dichtst bij de autosnelweg gelegen en wordt het natuurlijk milieu minimaal gehinderd. Door een clustering van de parkeerplaatsen wordt een uitspreiding van plaatsen vermeden. Conform de algemene bepalingen kunnen ook in dit gebied paden en routes worden aangelegd. Het is evenwel niet de bedoeling om langsheen de volledige loop van het Groot Schijn een pad aan te leggen. De hoofdfuncties natuurontwikkeling en waterbeheersing staan hier immers voorop. Deze visie strookt niet helemaal met de visie van het RUP Ruggeveld – Silsburg waarin een pad voorzien wordt langsheen het volledige tracé van het Groot Schijn. 12.1.8. Zone voor wegenis Momenteel wordt het plangebied doorsneden door de as Hooftvunderlei-Sterckshoflei als verbindingsweg tussen Deurne-Noord en Deurne-Zuid. Aangezien deze as als barrière wordt ervaren binnen het park wordt op korte termijn een verbeterde oversteekbaarheid vooropgesteld, voornamelijk ter hoogte van de oversteekplaatsen van de recreatieve paden. Indien op lange termijn kan aangetoond worden dat de mobiliteitsfunctie van deze weg kan afgebouwd worden, wordt voorgesteld om deze weg om te zetten in een parkdreef. Op die manier kan de landschappelijke integratie verzekerd worden en kan het park als één geheel functioneren en ervaren worden.
12.2. Toelichting bij de ontwikkelingsperspectieven voor de woningen Bij het bepalen van de ontwikkelingsperspectieven voor de woningen binnen het plangebied is vooreerst rekening gehouden met de huidige gewestplanbestemmingen. De clusters aan de Hooftvunderlei en Turnhoutsebaan zijn hoofdzakelijk zone-eigen. Om die reden worden de mogelijkheden in overeenstemming gebracht met deze van woongebied. De bijkomende bepalingen zijn grotendeels afgestemd op de voorschriften van het goedgekeurde BPA Deurne Dorp dat grenst aan deze clusters. Aanvullend zijn ook bepalingen opgenomen voor het optimaal integreren van de woningen in het parkgebied (afsluitingen en ruimte-inname van bijgebouwen). De cluster van woningen in de De Vréstraat zijn zonevreemd door hun ligging in gebied voor dagrecreatie. De beperkende decretale mogelijkheden zijn eveneens in het PRUP vertaald. Voor elk van de woningen wordt een voorkooprecht aan de provincie Antwerpen toegekend.
12.3. Opgave van voorschriften die strijdig zijn met het PRUP en die worden opgeheven Ten gevolge van voorliggend PRUP wordt gebied voor gemeenschapsvoorzieningen en openbaar nut, gebied voor dagrecreatie, parkgebied en woongebied, (KB 28 december 1972), zoals vastgelegd op Gewestplan Antwerpen (KB 3 oktober 1979 – herziening 28 oktober 1998), opgeheven. Ook wordt door voorliggend PRUP zone voor parkgebied, zoals vastgelegd in het BPA Deurne Dorp (MB 26 juni 2007), opgeheven.
12.3.1. GEWESTPLAN
Gebied voor gemeenschapsvoorzieningen en openbaar nut (artikel 17) Onder « gemeenschapsvoorzieningen en openbare nutsvoorzieningen » dient te worden begrepen voorzieningen die gericht zijn op de bevordering van het algemeen belang en die ten dienste van de gemeenschap worden gesteld. De idee van dienstverlening (verzorgende sector) aan de gemeenschap is derhalve rechtstreeks aanwezig. Daarbij is het irrelevant of deze voorzieningen worden opgericht en uitgebaat door een overheid dan wel door een privé-instelling of -persoon, inzoverre althans de exploitant van de inrichting geen winstbejag nastreeft en de voorzieningen werkelijk ten dienste staan van de gemeenschap. Zo oordeelde de Raad van State reeds meermaals dat sportinfrastructuur een gemeenschapsvoorziening kan zijn als bedoeld in artikel 17.6.2. zelfs indien zij door een particulier wordt uitgebaat. In dat geval mag de exploitant wel geen winstbejag nastreven. Ook constructies bestemd voor een manège en ruitersclub kunnen worden beschouwd als gemeenschaps-en openbare nutsvoorzieningen, onder dezelfde voorwaarde dat de exploitant ervan geen winstbejag nastreeft. Als gemeenschapsvoorzieningen en openbare nutsvoorzieningen kunnen eveneens worden beschouwd een school, een voor het publiek toegankelijke toegangsweg tot een vergund gebouwencomplex in een gebied voor gemeenschapsvoorzieningen en openbare nutsvoorzieningen en neveninrichtingen naast een autosnelweg. Alhoewel in een gebied voor gemeenschapsvoorzieningen en openbare nutsvoorzieningen in principe geen gebouwen met een woonfunctie zijn toegelaten, heeft de Raad van State bovendien niettemin geoordeeld dat service-flats voor bejaarden kunnen worden vergund in dergelijk gebied. Ook een nomadenkamp werd door de Raad van State beschouwd als een « gemeenschapsvoorziening en openbare nutsvoorziening ». Binnen de bestemmingen gegeven in de gewestplannen kunnen de gemeenschapsvoorzieningen en voorzieningen van openbaar nut ondergebracht worden onder verschillende aanduidingen : a) De woongebieden. De meeste van de gemeenschapsvoorzieningen en openbare nutsvoorzieningen en, in het algemeen, van de verzorgingselementen horen thuis in het woongebied omwille van de grote relatiefrequentie tot het publiek. b) Gebied voor gemeenschapsvoorzieningen en openbare nutsvoorzieningen (artikel 17 punt 6.2.). Deze gebieden zijn specifiek bestemd voor de inplanting van hogervermelde voorzieningen. Voor zover het om bestaande toestanden gaat werden deze voorzieningen aangeduid als gebied voor gemeenschapsvoorziening ook wanneer het om instellingen gaat die niet van de overheid zijn en normalerwijze tot de uitrusting van het woongebied behoren (bv. privé-instellingen voor gehandicapten). Hetzelfde geldt voor geplande instellingen voor zover deze gekend waren op het ogenblik dat het ontwerp gewestplan en/of gewestplan werd vastgesteld.
c) Andere gebieden Bepaalde gemeenschapsvoorzieningen en voorzieningen van openbaar nut behoren tot de normale uitrusting van andere gebieden of worden bij voorkeur ingeplant buiten het woongebied omwille van hun specifieke functie of een bepaalde graad van hinderlijkheid hetzij door de uitgeoefende activiteit hetzij door de omvang. Daar evenwel niet alles kan voorzien worden en nog wel op de juiste plaats, werd in het koninklijk besluit van 28 december 1972 betreffende de inrichting en de toepassing van de ontwerp gewestplannen en de gewestplannen een artikel voorzien (artikel 20) dat de mogelijkheid biedt, niettegenstaande andersluidende bestemmingen op het gewestplan, toch vergunningen af te geven voor bouwwerken voor openbare diensten en gemeenschapsvoorzieningen voor zover deze verenigbaar zijn met de algemene bestemming en met het architectonisch karakter van het betrokken gebied. Deze mogelijkheid wordt verder uiteengezet onder artikel 20.
Gebied voor dagrecreatie (artikel 16) 5. De recreatiegebieden: 5.0. De recreatiegebieden zijn bestemd voor het aanbrengen van recreatieve en toeristische accomodatie, al dan niet met inbegrip van de verblijfsaccomodatie. In deze gebieden kunnen de handelingen en werken aan beperkingen worden onderworpen ten einde het recreatief karakter van de gebieden te bewaren. 5.1. De gebieden voor dagrecreatie bevatten enkel de recreatieve en toeristische accomodatie, bij uitsluiting van alle verblijfsaccomodatie.
Parkgebied (artikel 14)
14.4.4. De parkgebieden moeten in hun staat bewaard worden of zijn bestemd om zodanig ingericht te worden, dat ze, in de al dan niet verstedelijkte gebieden, hun sociale functie vervullen. PARKGEBIEDEN Parkgebieden zoals bedoeld in artikel 14.4.4 zijn groene zones, die evenwel niet tot de groengebieden worden gerekend. Zij moeten luidens artikel 14.4.4. in hun staat worden bewaard of zijn bestemd om te worden ingericht dat ze, in de al dan niet verstedelijkte gebieden, hun sociale functie kunnen vervullen. Uit het voorschrift blijkt dat de ligging van deze gebieden bij de aanduiding slechts een beperkte rol speelt. Ze kunnen zowel gelegen zijn in of aan de rand van het verstedelijkt gebied, als in het landelijk gebied. Bij de aanduiding werd geen rekening gehouden met het eigendomsstatuut : zowel de privé parken (meestal kasteelparken), als openbare parken werden opgenomen in deze gebieden. Niet alleen gebieden met een specifieke parkstructuur komen hiervoor in aanmerking, ook worden zones aangeduid, die in de toekomst moeten aangelegd worden als parkgebied. Deze gebieden worden vooral aangeduid bij of in woonkernen, waar actueel weinig groen voorhanden is. Bij de omschrijving van het voorschrift wordt het accent gelegd op de sociale functie, die dergelijke parken dienen te vervullen bij de ruimtelijke opbouw van het betrokken grondgebied. Openbare parken en opengestelde privé-domeinen vervullen tevens een belangrijke recreatieve functie (wandel-en rustoord). Het is duidelijk dat slechts die werken en handelingen kunnen toegelaten worden, die strikt noodzakelijk zijn voor de openstelling, het behoud, verfraaiïng en/of aanleg van het park.
Aldus houdt artikel 14.4.4. geen absoluut bouwverbod in, maar beperkt het de bouwmogelijkheden niettemin aanzienlijk. Enkel deze handelingen en werken die behoren of bijdragen tot de inrichting van het parkgebied, zijn er toegelaten, met uitsluiting van alle werken en handelingen met een andere bestemming, weze het een residentiële, industriële, agrarische, commerciële en zelfs culturele bestemming. Het is geenszins de bedoeling parkgebieden te transformeren in gebieden voor actieve recreatie. Inplantingen van horecabedrijven binnen deze gebieden kunnen slechts aanvaard worden, wanneer dit gebeurt, in functie van de openstelling van het park, binnen de bestaande gebouwen. Bij de inplanting van de tot de normale uitrusting van een park behorende accommodaties (waartoe ook toiletten en dergelijke kunnen behoren) wordt rekening gehouden met o.m. de nood aan dergelijke accomodaties in functie van het gebruik door het publiek van het parkgebied, de visuele inpassing en de plaats van inplanting. Parkgebieden zijn al evenmin gebieden waar gemeenschapsvoorzieningen of openbare nutsvoorzieningen moeten ingeplant worden (scholen, medische instellingen en dergelijke), ten ware de bestaande gebouwen hiertoe geschikt zouden zijn en de openstelling voor het publiek op langere termijn niet in het gedrang wordt gebracht.
Woongebied (artikel 5) Onder de term « woongebieden » worden begrepen de effectieve woongebieden, de woonuitbreidingsgebieden, de woonparken en de woongebieden met een landelijk karakter. Het zijn derhalve die gebieden waar, al dan niet onder voorwaarden qua densiteit, groenvoorzieningen, technisch-stedenbouwkundige voorzieningen, entiteit van inrichting, termijn van verwezenlijking, en dergelijke, het accent gelegd wordt op de woonfunctie, alsmede op functies die complementair zijn of inherent verbonden zijn aan het wonen van de mens. Bij het eigenlijke wonen horen bepaalde activiteiten die sterk in relatie staan tot de woonfunctie. Meestal gaat het om inrichtingen, die veelvuldige relaties vertonen tot het wonen en hierdoor deel uitmaken van de centrumvormende elementen, die zo kenmerkend zijn voor het stadsleven. Meestal is de bodembezetting te klein opdat ze met een specifiek teken zouden aangeduid worden in de (ontwerp) gewestplannen. ARTIKEL 5.1.0. DE WOONGEBIEDEN 5.1.0. De woongebieden zijn bestemd voor wonen, alsmede voor handel, dienstverlening, ambacht en kleinbedrijf voor zover deze taken van bedrijf om redenen van goede ruimtelijke ordening niet in een daartoe aangewezen gebied moeten worden afgezonderd, voor groene ruimten, voor sociaal-culturele inrichtingen, voor openbare nutsvoorzieningen, voor toeristische voorzieningen, voor agrarische bedrijven. Deze bedrijven, voorzieningen en inrichtingen mogen echter maar worden toegestaan voorzover ze verenigbaar zijn met de onmiddellijke omgeving. Deze woongebieden zijn bestemd voor de volgende activiteiten : 1. Wonen : hier wordt de zuivere woonfunctie bedoeld. 2. Handel : het verkopen van niet ter plaatse vervaardigde goederen. 3. Dienstverlening : bedoeld worden inrichtingen en activiteiten die omwille van hun specifieke functie en hun frequente relaties tot het publiek noodzakelijkerwijze en eng verbonden zijn met de woonfunctie, zoals bv. kantoorgebouwen, horeca-bedrijven en dergelijke. Voor kantoorgebouwen moet bijzondere aandacht worden besteed aan hun bestaanbaarheid met de bestemming van het woongebied, en moet met name ter dege worden onderzocht of zij de woonfunctie niet in het gedrang brengen. Een bankagentschap of een verzekeringsagentschap bijvoorbeeld dienen de woonfunctie. Een volledige inplanting van een verzekeringsmaatschappij, een bank of een administratief gebouw, kan de woonfunctie daarentegen zeer nadelig beïnvloeden. 4. Ambacht en kleinbedrijf : de wetgeving op de ruimtelijke ordening en de stedenbouw houdt geen nauwkeurige omschrijving in van de begrippen « ambacht » en « kleinbedrijf ». Er dient dan ook te worden uitgegaan van de gebruikelijke betekenis van de woorden.
Ambachtelijke bedrijven zijn deze bedrijven waar handwerk primeert, wat het gebruik van machines evenwel niet uitsluit. Te denken valt bijvoorbeeld aan kleine graanmaalderijen, pottenbakkersateliers en dergelijke meer. Warme bakkerijen en beenhouwerijen kunnen over het algemeen ook worden beschouwd als ambachtelijk bedrijf of als kleinbedrijf. Met kleinbedrijf wordt bedoeld industrie op kleine schaal. Bij de beoordeling van de vraag of een inrichting al dan niet als kleinbedrijf kan worden beschouwd, kan dan ook rekening worden gehouden met de omvang van het bedrijf dit is zowel met de oppervlaktebehoefte als met de omzet en het aantal personeelsleden dat er tewerkgesteld wordt , almede met de (objectieve) aard van de ongemakken die de activiteit meebrengt voor de omgeving. Als kleinbedrijf kan bijvoorbeeld worden beschouwd een kleinschalige drukkerij. De vraag naar de aard van de onderneming stelt zich niet enkel bij zijn eerste inplanting, maar kan zich ook stellen naar aanleiding van de beoordeling van de toelaatbaarheid van de uitbreiding ervan. Een uitbreiding van een kleinbedrijf kan er toe leiden dat deze niet langer als een kleinbedrijf kan worden beschouwd, zodat de uitbreiding binnen het woongebied niet toelaatbaar is. Ambacht en kleinbedrijf kunnen worden toegelaten in het woongebied voor zover ze om redenen van goede ruimtelijke ordening niet in een daartoe aangewezen gebied moeten worden afgezonderd en voorzover ze verenigbaar zijn met de onmiddellijke omgeving (zie infra). 5. Groene ruimten : een gewestplan geeft slechts algemene maatregelen van ordening. Een B.P.A. daarentegen geeft de gedetailleerde bestemming van elk perceel aan. Er wordt naar gestreefd om de bestaande groene ruimten in een voorzien woongebied, op het gewestplan aan te duiden. Gelet op de gebruikte schaal zal dit niet steeds mogelijk zijn. Het feit dat een bestaande groene ruimte in het woongebied is opgenomen, geeft de eigenaar geen (absoluut en objectief) recht om deze percelen om te vormen tot bebouwbare kavels. Dit kan eerst blijken uit het plan van aanleg dat de goede aanleg van het gebied vastlegt. Een bouw- of verkavelingsverbod onttrekt die percelen niet noodzakelijkerwijze aan hun natuurlijke bestemming. Bij het onderzoek van de dossiers zal derhalve de nodige aandacht moeten besteed worden aan het aanleggen van nieuwe groene zones en aan de bescherming van bestaande groene ruimten in de woongebieden. Bepaalde open ruimten zoals dorpspleinen, sport- en speelvelden moeten op dezelfde wijze behandeld worden als de groene ruimten.
Voor deze inrichtingen geldt niettemin de algemene voorwaarde dat zij verenigbaar moeten zijn met de onmiddellijke omgeving (artikel 5.1.0. i.f. -infra). Het is dan ook mogelijk dat zij omwille van hun oppervlaktebehoefte of hun gebondenheid aan andere openbare nutsvoorzieningen niet meer kunnen worden toegelaten in het woongebied en afgezonderd dienen te worden in de gebieden voor gemeenschapsvoorzieningen en openbare nutsvoorzieningen, die specifiek voor dergelijke inrichtingen, voorzieningen en activiteiten zijn bestemd. Indien de bestaande toestand uitwijst dat er reeds een bepaalde concentratie van dergelijke gebouwen gegroeid is, zullen deze gebieden -indien voldoende groot in oppervlakte - op de gewestplannen worden aangeduid met hun specifieke kleur. Dit zal vooral het geval zijn voor instellingen en openbare nutsvoorzieningen van bovengemeentelijk belang. 8. Toeristische voorzieningen : hiermee worden onder meer bedoeld vakantiehuizen, hotels en informatiekantoren. Wanneer toeristische accommodaties niet meer verenigbaar kunnen worden geacht met de onmiddellijke omgeving van het woongebied, bijvoorbeeld ten gevolge van hun specifieke functie of hun ruimtebehoefte, zullen zij verwezen worden naar de daartoe speciaal bestemde zones. Dit zal bv. doorgaans het geval zijn voor motels, nevenbedrijven en dergelijke meer. Kampeerterreinen en weekendverblijfparken : In principe zijn kampeerterreinen, weekendverblijfparken en andere toeristische accommodaties, die in bepaalde gevallen hinderend kunnen zijn voor het normale woonklimaat, niet op hun plaats in de woonzone. Bovendien zijn deze instellingen over het algemeen zeer « oppervlakte-behoeftig » en onttrekken teveel bouwgrond aan de voorziene bestemming. In de « algemene planologische voorschriften » is een specifieke aanduiding (gebied voor verblijfsrecreatie) opgenomen voor campings en weekendverblijfparken. Daar waar het planologisch en stedenbouwkundig verantwoord is en deze instellingen normaal deel uitmaken van het stads- of dorpsbeeld (bv. in zones met grote toeristische aantrekkingskracht) zullen deze zones als gebieden voor verblijfsrecreatie worden aangeduid in de gewestplannen of kunnen deze gebieden als dusdanig worden aangeduid in een B.P.A. dat de bestemmingen in het woongebied verder differentieert. 9. Agrarische bedrijven : hier worden de agrarische bedrijven stricto sensu bedoeld, dit zijn de aan de grond gebonden agrarische bedrijven, zodat gebouwen bestemd voor niet aan de grond gebonden agrarische bedrijven met industrieel karakter of voor intensieve veeteelt niet mogen worden opgericht in het woongebied. De vestiging van nieuwe agrarische bedrijven of de uitbreiding of verbouwing van bestaande bedrijven kan slechts in het woongebied worden toegelaten indien de omgeving een agrarisch karakter vertoont. In het ander geval is immers niet voldaan aan de vereiste van verenigbaarheid met de onmiddellijke omgeving. OPMERKING : Voorwaarden waaronder niet-residentiële inrichtingen, voorzieningen en activiteiten in een woongebied kunnen worden toegelaten De toelaatbaarheid van inrichtingen, activiteiten en voorzieningen met een andere functie dan een woonfunctie, wordt door artikel 5.1.0. onderworpen aan bijkomende voorwaarden. Voor elk van deze inrichtingen, voorzieningen en activiteiten geldt dat zij slechts toelaatbaar zijn in het woongebied ingeval ze verenigbaar zijn met de onmiddellijke omgeving. Inrichtingen bestemd voor handel, dienstverlening, ambacht en kleinbedrijf kunnen daarenboven slechts worden toegelaten « voor zover deze taken van bedrijf om redenen van een goede plaatselijke ruimtelijke ordening niet in een daartoe aangewezen gebied moeten worden afgezonderd », met andere woorden voor zover ze bestaanbaar zijn met de bestemming woongebied. a. « Voor zover deze taken van bedrijf om redenen van een goede plaatselijke ruimtelijke ordening niet in een daartoe aangewezen gebied moeten worden afgezonderd » 1. Deze voorwaarde houdt in dat de inrichting of activiteit bestaanbaar moet zijn met de bestemming van woongebied. Met « taken van bedrijf » (inzake handel, dienstverlening, ambacht en kleinbedrijf) wordt bedoeld de aard van de activiteit, met andere woorden wat er geproduceerd of verwerkt wordt. 2. Bij het beoordelen van de bestaanbaarheid met de bestemming van woongebied dient rekening te worden gehouden met de aard en de omvang van het bedrijf, waardoor dat laatste inzonderheid om redenen van ruimtelijke ordening niet in het betrokken woongebied kan worden ingeplant, ofwel wegens het intrinsiek hinderlijk of storend karakter van het bedrijf, ofwel wegens het bijzonder karakter van het woongebied (bijvoorbeeld louter residentiële wijk of woonpark). Inrichtingen die de woonfunctie van het gebied in gevaar brengen, kunnen niet worden toegelaten. Vanuit stedenbouwkundig standpunt dient niet enkel rekening te worden gehouden met de huidige bebouwing, maar ook met de bebouwing zoals zij zich overeenkomstig de bestemming en de aanleg van het gebied zal of moet kunnen ontwikkelen. 3. De hinderlijkheid van een bedrijf of ambacht is inherent verbonden aan de activiteit van het bedrijf of de ambacht. De exploitant van een inrichting of een activiteit is doorgaans ook onderworpen aan het milieuvergunningsdecreet en zijn uitvoeringsbesluiten. In voorkomend geval zullen de milieuvergunningsvoorwaarden de hinder die een inrichting of activiteit veroorzaakt, beperken of ongedaan maken. Luidens de bepalingen van het milieuvergunningsdecreet is de bouwvergunning geschorst zolang geen milieuvergunning is bekomen en vice versa. Niettemin blijft het aangewezen ook bij de behandeling van het bouwvergunningsdossier reeds zoveel mogelijk informatie in te winnen met betrekking tot de hinderlijkheid van de gevraagde inrichting. Deze informatie is immers nodig voor de beoordeling van de vraag naar de bestaanbaarheid van de inrichting met de bestemming van het woongebied, wat in grote mate afhankelijk is van de hinder die de inrichting teweegbrengt. De vraag of een inrichting of een activiteit, bestaanbaar is met de stedenbouwkundige bestemming van het woongebied, dan wel omwille van de hinder of ongemakken die inherent zijn verbonden aan de exploitatie van dergelijke inrichting dient te worden ondergebracht in een ander bestemmingsgebied, is een feitenkwestie. Inderdaad blijkt er in de praktijk een grote verscheidenheid van situaties te zijn, niet enkel met betrekking tot de aard en de omvang van bedrijven doch ook met betrekking tot de aard van het woongebied. Het woonmilieu zal vanzelfsprekend verschillend zijn in de steden, de wijken en het platteland. Bij de beoordeling van de vraag of een inrichting of activiteit, gelet op de hinder die deze meebrengt, al dan niet geacht kan worden bestaanbaar te zijn met de bestemming van het woongebied, zal niet enkel rekening moeten worden gehouden met de objectieve hinderlijkheid van de inrichting, doch ook met het eigen karakter van het betrokken woongebied. Zo is een woonzone met een louter residentiële functie meestal gevoeliger voor hinder dan een woonzone waar bijvoorbeeld handelsinrichtingen en ambachtelijke bedrijven voorkomen naast woningen. Hiermee moet dan ook rekening worden gehouden bij de beoordeling van de bestaanbaarheid van een aangevraagde inrichting met de stedenbouwkundige bestemming van het woongebied. In de mate van het mogelijke zal de behandelende ambtenaar zoveel mogelijk informatie inwinnen omtrent de gebeurlijke hinderlijkheid van de activiteit die in het voorgestelde gebouw zal worden ondernomen. Deze informatie kan ingewonnen worden bij de technische diensten van de provincie of bij AMINAL.
b. « Deze bedrijven, voorzieningen en inrichtingen mogen echter maar worden toegestaan voorzover ze verenigbaar zijn met de onmiddellijke omgeving »
de aard, het gebruik en de bestemming van de gebouwen of open ruimten in de omgeving; de bijzondere bestemming die het B.P.A. van het gebied aan die omgeving heeft gegeven. Ook de woningdichtheid van het gebied behoort tot de specifieke kenmerken van de onmiddellijke omgeving. Ter illustratie volgen hier enkele motieven die niet in aanmerking komen als beoordelingscriterium voor de verenigbaarheid van een inrichting met de onmiddellijke omgeving : louter economische criteria, zoals bv. het feit dat een onderneming louter voor een fabricant produceert en niet ten dienste staat van de buurtbewoners; de opgelegde exploitatievoorwaarden die de hinder van een inrichting beogen te beperken. Deze zullen echter wel van belang zijn bij de beoordeling van de vraag of de inrichting bestaanbaar is met de bestemming van het woongebied (supra); de loutere vermelding van de afstand van een inrichting tot de dichtstbijgelegen woning. Dit is geen afdoend criterium, gezien het geen gegevens vermeldt met betrekking tot de specifieke kenmerken van de omgeving en voorbij gaat aan het feit dat de inrichting niet alleen verenigbaar moet zijn met de in de onmiddellijke omgeving bestaande woningen, doch ook met de in de omgeving bestaande open ruimten. Bij de beoordeling van aanvragen (bouw-en verkavelingsaanvragen, stedenbouwkundige attesten en dergelijke) en van voorstellen (gemeentelijke plannen van aanleg en dergelijke) zal erover gewaakt worden dat de woonzones een leefbaar klimaat behouden of krijgen. Hierbij mogen ook de nevenactiviteiten van het wonen niet uit het oog worden verloren. BESLUIT : In een woongebied moeten derhalve de mogelijkheden worden voorzien opdat de gezinnen hun sociaalculturele en economische activiteiten zouden kunnen ontplooien in een gunstig woonmilieu. Dit impliceert een evenwicht tussen woonst, productie, diensten, recreatie en natuur.
12.3.2. BPA DEURNE DORP Zone voor parkgebied 15.0.1. Bestemming Deze zone is bestemd om ingericht te worden als park. Wandelrecreatie en bijhorende voorzieningen zijn toegelaten. Uitgezonderd zitbanken of reeds aanwezige historische elementen (grafzerken,…) zijn vaste constructies niet toegestaan. 15.0.2. Inrichting De inrichting van het parkgebied mag het groene en open karakter van de omgeving niet schaden. De groen/terreinindex voor de volledige zone bedraagt minimaal 0,9. Wandelpaden en onderhoudswegen mogen in het parkgebied aangelegd worden in functie van passieve recreatie of het onderhoud van de zone. Deze paden moeten aangelegd worden in natuurlijke, zachte of halfverharde waterdoorlatende materialen. Bij de aanleg moet rekening gehouden worden met natuurlijke gegevens zoals reliëf, aanwezige bomen, grachten,… . Tracés voor wandelpaden zijn indicatief op het bestemmingsplan aangegeven. Afsluitingen zijn niet toegestaan, behalve dewelke volgens de voorschriften van aangrenzende bestemmingszones toegelaten zijn. Een uitzondering vormt het begraafpark St-Fredegandus: hier rond mag, t.b.v. de bescherming van de historische elementen, een afsluiting voorzien worden. Ten behoeve van de brandveiligheid is het toegestaan om grenzend aan de “zone voor bedrijvigheid met nabestemming” een strook met breedte 6m aan te leggen met halfverharde waterdoorlatende materialen. Deze strook mag niet aangewend worden voor het stockeren van grondstoffen, schroot of ander afval en mag evenmin gebruikt worden als parkeerruimte. Het optrekken van bergplaatsen of andere vaste constructies is niet toegestaan, uitgezonderd ten behoeve van het onderhoud en ecologische en waterhuishoudkundige aspecten van het Schijn.
13. Ruimtebalans
14. Decretale bepalingen 14.1. Watertoets 14.1.1. Algemeen kader Het decreet van 18 juli 2003 betreffende het integraal waterbeleid (Belgisch Staatsblad 14 november 2003) legt in hoofdstuk III, afdeling I, bepaalde verplichtingen op, die de watertoets worden genoemd. Artikel 8 van dat decreet luidt: "Art. 8. § 1. De overheid die over een vergunning, een plan of programma moet beslissen, draagt er zorg voor, door het weigeren van de vergunning of door goedkeuring te weigeren aan het plan of programma dan wel door het opleggen van gepaste voorwaarden of aanpassingen aan het plan of programma, dat geen schadelijk effect ontstaat of zoveel mogelijk wordt beperkt en, indien dit niet mogelijk is, dat het schadelijk effect wordt hersteld of, in de gevallen van de vermindering van de infiltratie van hemelwater of de vermindering van ruimte voor het watersysteem, gecompenseerd. Een schadelijk effect wordt gedefinieerd als: "ieder betekenisvol nadelig effect op het milieu dat voortvloeit uit een verandering van de toestand van watersystemen of bestanddelen ervan die wordt teweeggebracht door een menselijke activiteit; die effecten omvatten mede effecten op de gezondheid van de mens en de veiligheid van de vergunde of vergund geachte woningen en bedrijfsgebouwen, gelegen buiten overstromingsgebieden, op het duurzaam gebruik van water door de mens, op de fauna, de flora, de bodem, de lucht, het water, het klimaat, het landschap en het onroerend erfgoed, alsmede de samenhang tussen een of meer van deze elementen". Op 20 juli 2006 keurde de Vlaamse Regering het ontwerp van uitvoeringsbesluit over de watertoets definitief goed. Het besluit geeft de lokale, provinciale en gewestelijke overheden, die een vergunning moeten afleveren, richtlijnen voor de toepassing van de watertoets. Het besluit, gepubliceerd in het Belgisch Staatsblad van 31 oktober 2006 (Nr. 350 - pag 58326), trad in werking op 1 november 2006. 14.1.2. Toepassing op het PRUP
Kaart Watertoets Op de watertoetskaart is duidelijk zichtbaar dat er op de hoger gelegen valleirug geen wateroverlast voorkomt. Het gebied waar de meandering van het Groot Schijn bewaard is gebleven en het gebied van het Groot Schijn ten westen van het Sterckshof zijn daarentegen aangeduid als effectief overstromingsgevoelig gebied. Het gebied tussen de Herentalsevaart en de E34/E313 is aangeduid als mogelijks overstromingsgevoelig gebied. Ondanks de vele ophogingen, de vijvers en het grachtenstelsel zijn deze maatregelen ontoereikend geweest bij uitzonderlijke weersomstandigheden zoals die voorkwamen in 1998. Bovenstaande kaart is gebaseerd op de wateroverlast in 1998 en houdt geen rekening met (reeds genomen of toekomstige) ingrepen betreffende waterbeheersing. Het Groot Schijn heeft een open bedding tot en met het Sportpaleis van Antwerpen. Van daar wordt het Groot Schijn overwelfd en verder opgepompt tot in de Schelde. Het huidige pompstation dateert van 1998 en werd als noodstation gebouwd om hoge debieten te verpompen. Momenteel ligt de bedding van het Groot Schijn op 0,00 TAW en het gemiddelde waterpeil op 1,50 TAW. In functie van de realisatie van de Oosterweelverbinding (in combinatie met de verbreding van het Albertkanaal) wordt voorgesteld om het Groot Schijn ter hoogte van het Lobroekdok definitief te ‘knippen’. Hiermee wordt bedoeld dat er geen natuurlijke doorstroming richting Schelde meer zal mogelijk zijn. Bij het ‘knippen’ van de waterloop is een nieuw pompstation noodzakelijk voor het verpompen van de lage debieten. Dit betekent dat de debieten regelbaar worden waardoor ook de waterstanden in het Rivierenhof controleerbaar zijn. Deze ingreep geeft verder geen aanleiding tot verlegging of verbreding van de waterloop. Door de controleerbaarheid van de waterstand zijn er geen bijkomende overstromingsgebieden in het Rivierenhof nodig. Enkel in geval van nood (veel neerslag) is het behoud van het bestaande overstromingsgebied aan te raden. De beslissing omtrent de aanleg van het pompstation is in de zomerperiode van 2006 genomen. De studieopdracht betreffende het ontwerp en de aanleg van het pompstation is lopende.
Vanuit diverse beleidsdocumenten (waaronder het RSPA) wordt geopteerd voor water in de stad. Dit kan mogelijk gemaakt worden door het verbinden van het Groot Schijn met de Schelde via Brouwersvliet. Deze ingreep biedt potenties voor het verhogen van de woonkwaliteit in de stad en maak gravitair lozen mogelijk. Rekening houdend met bovenstaande plannen kan geconcludeerd worden dat de huidige loop van het Groot Schijn kan bestendigd worden en dat in de laag gelegen gebieden de mogelijkheid tot overstroming wordt behouden. Reliëfwijzigingen in het kader van een optimaal waterbeleid dienen mogelijk gemaakt te worden. Overstromingsgebieden worden bij voorkeur stroomopwaarts gesitueerd in functie van een optimale waterbuffering. De natte zones in het oosten van het Rivierenhof en de landbouwgronden ter hoogte van de Herentalsevaart komen hiervoor in aanmerking. Volgens de VMM worden stroomopwaarts in de nabije toekomst nog enkele belangrijke waterzuiveringsprojecten doorgevoerd (Zoersel, Ranst). Hierdoor wordt een betere waterkwaliteit en viskolonies verwacht. Er moet worden gestreefd naar zo weinig mogelijk verharde en bebouwde oppervlakte en zoveel mogelijk infiltratie en buffercapaciteit in het grachtenstelsel. Binnen deze context is het wenselijk dat het volledige grachtenstelsel van het Rivierenhof wordt herbekeken en waar nodig wordt hersteld. De Herentalsevaart is binnen het Rivierenhof volledig afgesloten en deels ingedijkt. Het verdere verloop is onbekend. Op grondgebied van de stad Antwerpen (ten oosten van het plangebied) is de vaart dicht gemaakt. Met voorliggende planoptie wordt rekening gehouden met de watergevoelige gebieden die eveneens nuttig zijn in functie van natuurlijkheid. De zones met de meest intensieve bebouwing zijn het meest noordwaarts gelegen: het betreft de hoogst gelegen gronden die niet als overstromingsgevoelig zijn aangeduid. In het laaggelegen valleigebied wordt bijkomende bebouwing uitgesloten en wordt het aandeel verhardingen beperkt tot hetgeen strikt noodzakelijk is voor fiets- en wandelpaden. Bovendien wordt binnen dit gedeelte voldoende ruimte en mogelijkheden geboden om het waterbergend vermogen van het valleigebied op peil te houden en indien gewenst te vergroten. Volgend voornaamste aandeel bebouwing en verharding is binnen het plangebied voorzien:
Voor het plangebied in totaliteit worden in de algemene stedenbouwkundige voorschriften de benodigde werken, handelingen en wijzigingen toegestaan die nodig zijn voor een optimaal waterbeheer.
Uit bovenstaande kan in alle redelijkheid geoordeeld worden dat deze planoptie geen schadelijk effect genereert. De planoptie heeft immers een positief effect inzake integraal waterbeheer tot gevolg. 14.2. Milieu-effectenrapportage Met de Europese richtlijn 2001/42 werd een plan-MER-plicht ingevoerd. Deze richtlijn stelt dat voor plannen die het kader vormen voor vergunningen voor de in bijlage I en II bij Richtlijn 85/337 genoemde projecten of waarvoor gelet op het mogelijk effect op gebieden, een beoordeling vereist is uit hoofde van de artikelen 6 of 7 van Richtlijn 92/43 (habitatrichtlijngebieden) een milieubeoordeling moet worden opgemaakt. Het plan-mer-decreet dateert van 27 april 2007. Het decreet van 25 mei 2007 bevat in artikel 49 een overgangsbepaling voor RUP’s waarbij de plenaire vergadering heeft plaatsgevonden vóór 1 juni 2008. Voorliggend RUP zal geen kader vormen voor het afleveren van project-MER-plichtige vergunningen. Activiteiten die project-MER-plichtig zijn, worden immers niet toegestaan of mogelijk gemaakt binnen het plangebied. De te ontbossen deelzone 3 (van artikel 2: parkgebied: sport) is kleiner dan 2ha. Evenmin is voor het plangebied een passende beoordeling vereist uit hoofde van de artikelen 6 of 7 van Richtlijn 92/43. Aangezien het PRUP de inrichting van een parkgebied betreft dient voor dit PRUP geen plan-MER te worden opgemaakt.’ 15. Uitvoering 15.1. Recht van voorkoop
Voor de woningen binnen het plangebied wordt, zoals aangeduid op het grafisch plan, een recht van voorkoop toegekend aan de provincie Antwerpen. Zie ook paragraaf 12.1.1. 15.2. Actietabel
Naast de opmaak van een provinciaal ruimtelijk uitvoeringsplan zijn ook onderstaande acties van belang voor het realiseren van de gewenste ruimtelijke structuur voor het Provinciaal Groendomein Rivierenhof.
16. Bijlagen 16.1. Bijlage 1: basisinformatie planningscontext 16.1.1. Herinrichting Turnhoutsebaan (N12)
16.1.2. Openbaar vervoerslijnen
16.2. Bijlage 2: vergunningentoestand Volgende tabel geeft een overzicht van de recent ontvangen stedenbouwkundige vergunningen binnen het Provinciaal Groendomein Rivierenhof (bron: provincie Antwerpen):
Volgend overzicht geeft de vergunningentoestand weer van de woningen binnen het plangebied die gelegen zijn langs de Hooftvunderlei, Turnhoutsebaan en De Vréstraat (bron: stad Antwerpen): De Vréstraat
Hooftvunderlei
Turnhoutsebaan
Volgend overzicht geeft weer voor welke gebouwen of constructies binnen het plangebied milieuvergunningen zijn afgeleverd (bron: provincie Antwerpen):
16.3. Bijlage 3: overzicht bestaande bebouwing binnen provinciale eigendommen Onderstaand overzicht is opgemaakt door de provinciale dienst Infrastructuur. De maatvoering is indicatief; er kan een zeker foutmarge opzitten.
16.4. Bijlage 4: verschuivingen van de sportvelden Bij de herinrichting van het park zullen de sportvelden als volgt verschoven worden. Voetbalvelden 1: Tubantia naar deelzone 1 2: Tubantia naar deelzone 1 3: Rapid naar deelzone 4
Korfbalvelden 4: AKC-RI4A-ATBS naar deelzone 3
Tennisvelden en basketbalveld 5: basketbalveld naar deelzone 2 6: tennisvelden naar deelzone 4 of 5
16.5. Bijlage 5: kaartmateriaal randbebouwing 16.5.1. Zone-eigen woningen in de Hooftvunderlei
16.5.2. Zone-eigen woningen in de Turnhoutsebaan
16.5.3. Zonevreemde woningen in de De Vréstraat
Decretale mogelijkheden voor woningen in recreatiegebied:
16.6. Bijlage 6: advies Aquafin 16.7. Bijlage 7: KB van 4 juni 1958 betreffende de vrije stroken langs de autosnelwegen met wijziging door KB van 10 december 1964
voetnoten 1 Enkel het stukje ten zuiden van de N12 tussen de Leeuwlantstraat en de Beukendreef is enkelrichting. 2 Bron: www.provant.be 3 Zie paragraaf 4.4.1 4 Om inzicht te krijgen in de huidige parkeersituatie alsook in de toekomstige mogelijkheden inzake parkeren, is in de periode augustus-september 2007 een parkeertelling uitgevoerd door de personeelsleden van het Provinciaal Groendomein Rivierenhof. Voor de telperiode is geopteerd voor een relevante periode die zowel een vakantie- als een schoolperiode omvat. Ook is rekening gehouden met het aanbod aan activiteiten in het Provinciaal Groendomein Rivierenhof. In totaal is er op 10 dagen geteld. 5 Zie figuur in paragraaf 6.1.3. 6 Zie bijlage 7 7 Zie bijlage 3 8 Zie bijlage 4 9 Zie bijlage 5 10 Zie bijlage 5
| |||||||||||||||||||||||||||||||||||||||||||||||||||||||||||||||||||||||||||||||||||||||||||||||||||||||||||||||||||||||||||||||||||||||||||||||||||||||||||||||||||||||||||||||||||||||||||||||||||||||||||||||||||||||||||||||||||||||||||||||||||||||||||||||||||||||||||||||||||||||||||||||||||||||||||||||||||||||||||||||||||||||||||||||||||||||||||||||||||||||||||||||||||||||||||||||||||||||||||||||||||||||||||||||||||||||||||||||||||||||||||||||||||||||||||||||||||||||||||||||||||||||||||||||||||||||||||||

![i_RUP_10000_213_00062_00001_200000.jpg [image]](i_RUP_10000_213_00062_00001_200000.jpg)
![i_RUP_10000_213_00062_00001_200001.jpg [image]](i_RUP_10000_213_00062_00001_200001.jpg)
![i_RUP_10000_213_00062_00001_200003.jpg [image]](i_RUP_10000_213_00062_00001_200003.jpg)
![i_RUP_10000_213_00062_00001_200004.jpg [image]](i_RUP_10000_213_00062_00001_200004.jpg)
![i_RUP_10000_213_00062_00001_200005.jpg [image]](i_RUP_10000_213_00062_00001_200005.jpg)
![i_RUP_10000_213_00062_00001_200006.jpg [image]](i_RUP_10000_213_00062_00001_200006.jpg)
![i_RUP_10000_213_00062_00001_200007.jpg [image]](i_RUP_10000_213_00062_00001_200007.jpg)
![i_RUP_10000_213_00062_00001_200008.jpg [image]](i_RUP_10000_213_00062_00001_200008.jpg)
![i_RUP_10000_213_00062_00001_200009.jpg [image]](i_RUP_10000_213_00062_00001_200009.jpg)
![i_RUP_10000_213_00062_00001_200010.jpg [image]](i_RUP_10000_213_00062_00001_200010.jpg)
![i_RUP_10000_213_00062_00001_200011.jpg [image]](i_RUP_10000_213_00062_00001_200011.jpg)
![i_RUP_10000_213_00062_00001_200012.png [image]](i_RUP_10000_213_00062_00001_200012.png)
![i_RUP_10000_213_00062_00001_200013.png [image]](i_RUP_10000_213_00062_00001_200013.png)
![i_RUP_10000_213_00062_00001_200014.png [image]](i_RUP_10000_213_00062_00001_200014.png)
![i_RUP_10000_213_00062_00001_200015.png [image]](i_RUP_10000_213_00062_00001_200015.png)
![i_RUP_10000_213_00062_00001_200016.png [image]](i_RUP_10000_213_00062_00001_200016.png)
![i_RUP_10000_213_00062_00001_200017.png [image]](i_RUP_10000_213_00062_00001_200017.png)
![i_RUP_10000_213_00062_00001_200018.png [image]](i_RUP_10000_213_00062_00001_200018.png)
![i_RUP_10000_213_00062_00001_200019.png [image]](i_RUP_10000_213_00062_00001_200019.png)
![i_RUP_10000_213_00062_00001_200020.jpg [image]](i_RUP_10000_213_00062_00001_200020.jpg)
![i_RUP_10000_213_00062_00001_200021.jpg [image]](i_RUP_10000_213_00062_00001_200021.jpg)
![i_RUP_10000_213_00062_00001_200022.jpg [image]](i_RUP_10000_213_00062_00001_200022.jpg)
![i_RUP_10000_213_00062_00001_200023.jpg [image]](i_RUP_10000_213_00062_00001_200023.jpg)
![i_RUP_10000_213_00062_00001_200024.jpg [image]](i_RUP_10000_213_00062_00001_200024.jpg)
![i_RUP_10000_213_00062_00001_200025.jpg [image]](i_RUP_10000_213_00062_00001_200025.jpg)
![i_RUP_10000_213_00062_00001_200026.jpg [image]](i_RUP_10000_213_00062_00001_200026.jpg)
![i_RUP_10000_213_00062_00001_200027.jpg [image]](i_RUP_10000_213_00062_00001_200027.jpg)
![i_RUP_10000_213_00062_00001_200028.jpg [image]](i_RUP_10000_213_00062_00001_200028.jpg)
![i_RUP_10000_213_00062_00001_200029.jpg [image]](i_RUP_10000_213_00062_00001_200029.jpg)
![i_RUP_10000_213_00062_00001_200030.jpg [image]](i_RUP_10000_213_00062_00001_200030.jpg)
![i_RUP_10000_213_00062_00001_200031.jpg [image]](i_RUP_10000_213_00062_00001_200031.jpg)
![i_RUP_10000_213_00062_00001_200032.jpg [image]](i_RUP_10000_213_00062_00001_200032.jpg)
![i_RUP_10000_213_00062_00001_200033.jpg [image]](i_RUP_10000_213_00062_00001_200033.jpg)
![i_RUP_10000_213_00062_00001_200034.jpg [image]](i_RUP_10000_213_00062_00001_200034.jpg)
![i_RUP_10000_213_00062_00001_200035.jpg [image]](i_RUP_10000_213_00062_00001_200035.jpg)
![i_RUP_10000_213_00062_00001_200036.jpg [image]](i_RUP_10000_213_00062_00001_200036.jpg)
![i_RUP_10000_213_00062_00001_200037.jpg [image]](i_RUP_10000_213_00062_00001_200037.jpg)
![i_RUP_10000_213_00062_00001_200038.png [image]](i_RUP_10000_213_00062_00001_200038.png)
![i_RUP_10000_213_00062_00001_200039.jpg [image]](i_RUP_10000_213_00062_00001_200039.jpg)
![i_RUP_10000_213_00062_00001_200040.jpg [image]](i_RUP_10000_213_00062_00001_200040.jpg)
![i_RUP_10000_213_00062_00001_200041.jpg [image]](i_RUP_10000_213_00062_00001_200041.jpg)
![i_RUP_10000_213_00062_00001_200042.jpg [image]](i_RUP_10000_213_00062_00001_200042.jpg)
![i_RUP_10000_213_00062_00001_200043.jpg [image]](i_RUP_10000_213_00062_00001_200043.jpg)
![i_RUP_10000_213_00062_00001_200044.jpg [image]](i_RUP_10000_213_00062_00001_200044.jpg)
![i_RUP_10000_213_00062_00001_200045.jpg [image]](i_RUP_10000_213_00062_00001_200045.jpg)
![i_RUP_10000_213_00062_00001_200046.jpg [image]](i_RUP_10000_213_00062_00001_200046.jpg)
![i_RUP_10000_213_00062_00001_200047.jpg [image]](i_RUP_10000_213_00062_00001_200047.jpg)
![i_RUP_10000_213_00062_00001_200048.jpg [image]](i_RUP_10000_213_00062_00001_200048.jpg)
![i_RUP_10000_213_00062_00001_200049.png [image]](i_RUP_10000_213_00062_00001_200049.png)
![i_RUP_10000_213_00062_00001_200050.jpg [image]](i_RUP_10000_213_00062_00001_200050.jpg)
![i_RUP_10000_213_00062_00001_200051.jpg [image]](i_RUP_10000_213_00062_00001_200051.jpg)
![i_RUP_10000_213_00062_00001_200052.jpg [image]](i_RUP_10000_213_00062_00001_200052.jpg)
![i_RUP_10000_213_00062_00001_200053.jpg [image]](i_RUP_10000_213_00062_00001_200053.jpg)
![i_RUP_10000_213_00062_00001_200054.jpg [image]](i_RUP_10000_213_00062_00001_200054.jpg)
![i_RUP_10000_213_00062_00001_200055.jpg [image]](i_RUP_10000_213_00062_00001_200055.jpg)
![i_RUP_10000_213_00062_00001_200056.jpg [image]](i_RUP_10000_213_00062_00001_200056.jpg)
![i_RUP_10000_213_00062_00001_200057.jpg [image]](i_RUP_10000_213_00062_00001_200057.jpg)
![i_RUP_10000_213_00062_00001_200058.jpg [image]](i_RUP_10000_213_00062_00001_200058.jpg)
![i_RUP_10000_213_00062_00001_200059.jpg [image]](i_RUP_10000_213_00062_00001_200059.jpg)
![i_RUP_10000_213_00062_00001_200060.jpg [image]](i_RUP_10000_213_00062_00001_200060.jpg)
![i_RUP_10000_213_00062_00001_200061.jpg [image]](i_RUP_10000_213_00062_00001_200061.jpg)
![i_RUP_10000_213_00062_00001_200062.jpg [image]](i_RUP_10000_213_00062_00001_200062.jpg)
![i_RUP_10000_213_00062_00001_200063.jpg [image]](i_RUP_10000_213_00062_00001_200063.jpg)
![i_RUP_10000_213_00062_00001_200064.jpg [image]](i_RUP_10000_213_00062_00001_200064.jpg)
![i_RUP_10000_213_00062_00001_200065.jpg [image]](i_RUP_10000_213_00062_00001_200065.jpg)
![i_RUP_10000_213_00062_00001_200066.jpg [image]](i_RUP_10000_213_00062_00001_200066.jpg)
![i_RUP_10000_213_00062_00001_200067.jpg [image]](i_RUP_10000_213_00062_00001_200067.jpg)
![i_RUP_10000_213_00062_00001_200068.jpg [image]](i_RUP_10000_213_00062_00001_200068.jpg)
![i_RUP_10000_213_00062_00001_200069.jpg [image]](i_RUP_10000_213_00062_00001_200069.jpg)
![i_RUP_10000_213_00062_00001_200070.jpg [image]](i_RUP_10000_213_00062_00001_200070.jpg)
![i_RUP_10000_213_00062_00001_200071.jpg [image]](i_RUP_10000_213_00062_00001_200071.jpg)
![i_RUP_10000_213_00062_00001_200072.jpg [image]](i_RUP_10000_213_00062_00001_200072.jpg)
![i_RUP_10000_213_00062_00001_200073.jpg [image]](i_RUP_10000_213_00062_00001_200073.jpg)
![i_RUP_10000_213_00062_00001_200074.jpg [image]](i_RUP_10000_213_00062_00001_200074.jpg)
![i_RUP_10000_213_00062_00001_200075.jpg [image]](i_RUP_10000_213_00062_00001_200075.jpg)
![i_RUP_10000_213_00062_00001_200076.jpg [image]](i_RUP_10000_213_00062_00001_200076.jpg)
![i_RUP_10000_213_00062_00001_200077.jpg [image]](i_RUP_10000_213_00062_00001_200077.jpg)
![i_RUP_10000_213_00062_00001_200078.jpg [image]](i_RUP_10000_213_00062_00001_200078.jpg)
![i_RUP_10000_213_00062_00001_200079.jpg [image]](i_RUP_10000_213_00062_00001_200079.jpg)
