|
RUP CADIX | ||||||||||||||||||||||||||||||||||||||||||||||||||||||||||||||||||||||||||||||||||||||||||||||||||||||||||||||||||||||||||||||||||||||||||||||||||||||||||||||||
|
INLEIDING 1.1 situering De Cadixwijk vormt één van de drie wijken van het Eilandje Fase 1 en wordt naast de Londenstraat aan de zuidzijde afgebakend door drie dokken – het Kattendijkdok aan de westzijde, het Houtdok aan de noordzijde en het Kempisch dok aan de oostzijde. Het gebied ligt volledig op het grondgebied van het district Antwerpen.
De Cadixwijk is een wijk van 26 ha (38 ha inclusief aangrenzende watervlakken), die centraal gelegen is op het Eilandje. De wijk zal in de toekomst vlot ontsloten worden voor het openbaar vervoer door de aanleg van een tramas in de Londen-Amsterdamstraat en een aftakking daarvan in de Cadixwijk in de Kattendijkdok Oostkaai. De zuidoostelijke hoek van de wijk paalt aan de toekomstige kop van Park Spoor Noord en is via de Kempenstraat met het park zelf en Hardenvoort verbonden. in de toekomst komt er ook een veilige fietsersverbinding over de Leien tussen het Eilandje en Spoor Noord. Aan de noordzijde is de wijk via de Mexicobrug verbonden met het Mexico-eiland dat nog geheel in concessie is gegeven aan havenbedrijven. In het meest noordoostelijke punt is de Kempische brug niet meer in gebruik. Deze zal wel gerestaureerd worden en de verbinding maken met het Kempeneiland (tussen het Kempischdok en het Asiadok), waar momenteel een vrachtwagencentrum is gelegen, en later via een nieuwe brug (Asiabrug), zelfs de link leggen met de IJzerlaan en de groene singel. In de toekomst is er ook een fietsverbinding voorzien tussen de Cadixwijk en het Droogdokkeneiland via een fietsersbrug over het Kattendijkdok.
Het gebied bestaat uit een orthogonaal stratenpatroon omgeven door brede dokranden. Het inwendige bebouwingsweefsel bevat een mix van rijwoningen, pakhuizen, depots, kazernegebouwen en het solitaire Douanegebouw. De meeste gebouwen dateren uit het eind van 18e en het begin van de vorige eeuw. Aan de dokranden komen van oudsher bedrijfsloodsen voor. Aan de noordrand zijn deze reeds gesloopt door het autonoom gemeentelijk havenbedrijf in functie van de toekomstige ontwikkeling van de wijk.
Figuur 1: Aanduiding Cadixwijk binnen het Eilandje. Bron: eigen bewerking luchtfoto. 1.2 Algemeen kader Het Eilandje is geselecteerd als een uit te voeren hefboomactie in de bindende bepalingen van het s-RSA. deze beleidsdoelstelling is overgenomen in het bestuursakkoord 2007-2012. Dit wil zeggen dat meer bepaald het Eilandje fase 1 of het zuidelijk deel bestaande uit de Oude Dokken, Montevideo- en Cadixwijk, moet uitgevoerd worden de komende jaren.
In het voorjaar van 2007 werd een Politieke task force Eilandje opgericht om met de haven te onderhandelen over de financiële inbreng, regie en grondoverdracht op het Eilandje. In de zomer van 2007 werd een nieuwe programma-organisatie Eilandje met tandemaansturing door het Autonoom Gemeentebedrijf Stadsplanning Antwerpen (AG STAN) – AG VESPA goedgekeurd door het college. hieraan werd intussen een meerjarenprogramma en meerjarenbegroting gekoppeld.
Het sluitstuk van de realisatie van het Eilandje fase 1 bestaat uit de globale gebiedsontwikkeling van de Cadixwijk. Hier wil de stad gaan voor een integrale ontwikkeling (inclusief de aanleg van het publiek domein) met 100% return en duurzame stadsvernieuwing door het creëren van ruimtelijke kwaliteit, een dynamische functiemix (wonen – werken – recreëren), een levendige woningmix (residentieel, betaalbaar, sociaal, familiewoningen, appartementen…) en een voldoende uitgebouwd voorzieningenaanbod (onderwijs, kinderopvang, sport…).
Het planvormingsproces voor het Eilandje kent een uitgebreide voorgeschiedenis. De ruimtelijke krijtlijnen van bovenvermelde duurzame integrale gebiedsontwikkeling voor dit stadsdeel zijn uitvoerig beschreven in verschillende master- en beeldkwaliteitplannen.1 Het totaalpakket aan visiedocumenten 2 werd opgesteld als een hanteerbaar referentiekader voor het verkrijgen van de noodzakelijke ruimtelijke en leefkwaliteit op het Eilandje.
Het BPA ‘Eilandje’, goedgekeurd dd. 15 dec/2005, voorziet in een juridisch afdwingbare regelgeving als noodzakelijk uitvoeringsinstrument voor de stedenbouwkundige ontwikkeling van het Eilandje.
Figuur 2: Aanduiding bouwblokken binnen de Cadixwijk. Bron: eigen bewerking.
1.3 Voorwerp en aanleiding Opmaak RUP
Het BPA ‘Eilandje’ vormt vandaag de juridische basis voor de ontwikkeling van het Eilandje en daarin de Cadixwijk. Nieuwe inzichten uit verder onderzoek, maar ook een het evaluatie van de basisvisie voor de ontwikkeling van het Eilandje -zoals geformuleerd in het Masterplan Fase 1- maken echter de partiële herziening van het BPA ‘Eilandje’ en de opmaak van een RUP ‘Cadix’ noodzakelijk. In het bijzonder liggen drie nieuwe documenten en de daaruit voortvloeiende acties aan de basis van de noodzaak tot herziening:
1.3.1 In de loop van 2008 werd de mobiliteitsstudie Eilandje² opgemaakt. Uitgangspunt is het streven naar een meer duurzame vorm van mobiliteit voor de ontwikkelingen op het Eilandje en in de Cadixwijk in het bijzonder. Een belangrijk gegeven is dat er nu twee tramlijnen voorzien worden op het Eilandje, één richting de Scheldekaaien, en één richting de Leien). Het BPA ‘Eilandje’ houdt echter geen rekening met de mogelijke aanleg van traminfrastructuur op het Eilandje en de ruimte die hiervoor nodig is. Op de meeste plaatsen kan een vrijliggende trambaan echter wel in de bestaande wegbreedte ingepast worden. De realisatie van een vrije trambedding op de Kattendijkdok Oostkaai vraagt om een verbreding van het wegprofiel. Dit is echter niet mogelijk in de zone voor openbaar domein en ook niet in de aanpalende zones voor bebouwing zoals die nu zijn vastgesteld in het BPA.
Het RUP voorziet een verbreding van de Kattendijkdok Oostkaai zodat de vrijliggende trambaan gerealiseerd kan worden. Als een gevolg daarvan dienden de aanpalende bouwblokken opgeschoven te worden. De voorschriften van de aangrenzende bouwblokken (A1, A2, A3, A4, A5, B5, B6’) werden daarom mee herbekeken. (hierop wordt ingegaan onder punt 2.5.2)
1.3.2. Ondanks het zeer uitgebreide planningskader voor het Eilandje, bestond nog de noodzaak aan een integrerend raamdocument dat specifiek voor de gebiedsontwikkeling van de Cadixwijk de verschillende ruimtelijke, functionele en organisatorische aspecten afweegt. Daarom werd de integrale duurzame gebiedsontwikkeling voor de Cadixwijk verder geconcretiseerd in een ‘Plan van Aanpak Cadixwijk’ (CBS dd. 11 april 2008). De ontwikkeling van de wijk werd daarbij aan de hand van 10 krachtlijnen verder uitgewerkt (deze zijn opgenomen onder “2.1 krachtlijnen”). Daarbij werd duidelijk dat een aantal voorschriften van het BPA ‘Eilandje’ aanleiding geven tot een beperkte kwaliteit van de ontwikkeling en dat deze bovendien niet in overeenstemming waren met het originele Masterplan Eilandje. Concreet stelt het BPA ‘Eilandje’ voor om op de bouwzones b1 en C1 strokenbouw te voorzien. Dit is echter een afwijking van het basisidee van het Masterplan Eilandje dat het typische Cadixraster van straten en gesloten bouwblokken wil doortrekken tot aan de dokranden. Een concept dat overigens afstamt van het oorspronkelijke stadsontwerp van de solà-morales (1993, stad aan de stroom).
Het RUP wil het rasterpatroon afwerken en de voorschriften van de bouwblokken (B1, C1 en D1) die erdoor bepaald worden herzien, zodat deze ook als gesloten bouwblokken (ipv strokenbouw) gerealiseerd kunnen worden. (hierop wordt ingegaan onder 2.5.3 en 2.5.4).
Het RUP wil ook de voorschriften van bouwblok B5, waar momenteel het gebouw van de Douane staat, herschrijven met het oog op het realiseren van een gesloten bouwblok. De BPA voorschriften voor de Douanesite zijn naar ontwikkeling toe niet evident en moeten herdacht worden in functie van bestemming en ruimtelijke mogelijkheden. De parking voor het gebouw zal worden verworven door de stad om er het Cadixpark te kunnen realiseren. Hiervoor wordt een onteigeningsplan opgenomen bij het RUP. (hierop wordt ingegaan onder punt 2.5.5)
1.3.3. Bij de uitwerking van het bouwblokkenweefsel voorzag het Masterplan dat de bouwzone E1 geen onderdeel zou uitmaken van het raster en dus ook geen bouwblok diende te worden. Gelegen op een landhoofd en omgeven door dokken (Houtdok in het noorden en Kempisch dok in het oosten en zuiden) vormt dit een locatie die uitermate geschikt is voor de realisatie van een solitaire toren (zie ook figuur3). Deze visie werd echter niet hardgemaakt in het BPA. Integendeel de voorschriften maken het, naar haalbaarheid toe, moeilijk om een toren te realiseren. Zo is het mogelijk een laag bouwblok op deze locatie op te richten dat aansluit bij het Cadixraster, is de bouwhoogte beperkt tot 60 meter. Het s-RSA heeft het Eilandje geselecteerd als stimuleringsgebied voor hoogbouw en de hoogbouwnota volgt deze visie.
Het RUP wil de ontwikkeling van een toren op de locatie E1 vooropstellen en zal de voorschriften in die zin aanpassen. (hierop wordt ingegaan onder punt 2.5.6)
Figuur 3: Masterplan Eilandje (schets). Bron: Masterplan Eilandje - Antwerpen.
Figuur 4: Masterplan Eilandje (plan). Bron: Masterplan Fase2 Eilandje - Antwerpen.
1.4 Relatie met het s-RSA Het RUP Cadix wordt opgemaakt in uitvoering van het s-RSA. Het s-RSA stelt in de bindende bepaling een verdere implementatie en operationalisering van het actief beleid voor aan de hand van een aantal hefboomprojecten. De Cadixwijk werd, samen met de Oude Dokken en Montevideo (= Eilandje fase 1) als onderdelen van de strategische ruimte ‘harde ruggengraat’, geselecteerd als hefboomproject (s-RSA, pg 324, bindend deel). Het RUP vormt een essentieel onderdeel van het operationeel plan voor dit hefboomproject.
Het s-RSA specificeert door voor het Eilandje expliciet als doelstelling te stellen: “Het vervolledigen van de Antwerpse skyline door in te zetten op hoogbouwprojecten op het Eilandje zodat op die manier een dens stedelijk programma kan worden gecreëerd met een beperkte footprint zodat de openheid van het gebied en de vele doorzichten behouden blijven.” (s-RSA, pg 215, richtinggevend deel)
Figuur 5: Harde ruggengraat. Bron: s-RSA.
Figuur 6: Deeluitwerking Eilandje in het kader van het structuurplan Antwerpen. Bron:s-RSA. harde ruggengraat: strategische ruimte strategische projecten in de harde ruggengraat 2 ONTWIKKELINGSVISIE 2.1 Krachtlijnen
Tien krachtlijnen vormen het kader waarbinnen de gefaseerde, globale ontwikkeling van de Cadixwijk zal worden uitgevoerd. Als 100%-returnwijk moeten de krachtlijnen met betrekking tot functionele programmatie en duurzaamheid steeds afgewogen worden ten opzichte van de totale balans van de wijk. De krachtlijnen werden goedgekeurd (CBS 11 april 2008) in het ‘Plan van aanpak Cadixwijk’.
1. Ontwikkelbare rand in regie van de stad (AG Stadsplanning - Ag Vespa) De west –en noordrand van de Cadixwijk met een ontwikkelbare vloeroppervlakte van ca. 200.000m² is eigendom van de stad en zal in regie van de stad worden ontwikkeld. De programmatandem AG Stadsplanning - AG Vespa coördineert de ontwikkeling. Dit wil zeggen dat de gronden onder voorwaarden zullen worden verkocht aan derden (projectontwikkelaars, huisvestingsmaatschappijen…). De stad bepaalt wat er komt en met de opbrengsten van de verkoop zal het openbaar domein in de ganse Cadixwijk worden heraangelegd. Dit heet een 100% returnproject. Bovendien moet voldoende ruimte worden gelaten voor een sociale mix en duurzame leefomgeving (zie verder).
2. Ontwikkelbare rand: 75% wonen, 4% voorzieningen, 21% kantoren & handel Om het door het Masterplan vooropgestelde woningaandeel voor het Eilandje fase 1 te kunnen halen zal een extra inspanning moeten worden gedaan in de Cadixwijk. Voor de ontwikkelbare rand wordt daarom 75% wonen nagestreefd (ca. 150.000m²). de ondersteunende wijkvoorzieningen (kinderopvang, scholen…) worden geraamd op 4% van de ontwikkelbare vloeroppervlakte. Kantoren en handel kunnen 21% innemen of ca. 42.000m². Bovenstaande verdeelsleutel is richtinggevend op schaal van de wijk.
3. Bestaande weefsel: maximaal inzetten op het ontwikkelen van de woonfunctie Naast het voorziene woningaandeel in de ontwikkelbare rand zijn extra woonimpulsen nodig in het bestaande weefsel van de Cadixwijk. Strategische projecten hierin zijn de herontwikkeling van de Douanesite 4, de kunstencampus SISA en de tweede fase van het Gouden Anker. In deze projecten zitten potenties om een verweven woningaandeel te voorzien.
4. 25% residentiële woningen, 50% betaalbare woningen (streefcijfer), 25% sociale woningen en een gevarieerd aanbod aan woontypologieën Er wordt een woningenmix vooropgesteld van 25% sociale woningen (15% huur- en 10% koopwoningen), 50% betaalbare woningen en 25% residentiële woningen. Het percentage betaalbare woningen geldt hierbij als een na te streven bovengrens. Daarnaast wordt eveneens een mix van woningtypologieën beoogd. Op die manier wil de stad verschillende doelgroepen aantrekken in de Cadixwijk waaronder gezinnen met kinderen. Voor de bestaande bewoners in een sociaal zwakkere positie wordt een flankeerbeleid uitgewerkt.
5. Een gemengde woonwijk met een verweving op schaal van het bouwblok Om een levendige wijk te bekomen is verweving van verschillende functies een noodzaak. Er wordt een menging voorgesteld op bouwblokniveau. Dit wil zeggen dat een bouwblok in de Cadixwijk kan samengesteld worden uit een sociale woningproject, naast een residentiële en betaalbare woningen, naast een kantoorgebouw, naast een school…. Op deze manier bekomen we een verticale verdeling van de functies die aanleunt bij de typologie en het gevarieerde beeld van de bestaande Cadixwijk. Er moet wel altijd voor worden gezorgd dat de klemtoon van de wijk op het wonen blijft liggen. Daarvoor moet er een minimum per bouwblok worden opgelegd.
6. Drie ruimtelijke strategieën: homogeen raster/ hart en as/ samengestelde bouwblokken De Cadixwijk zal worden ontwikkeld volgens drie ruimtelijke strategieën: homogeen raster, hart en as, samengestelde bouwblokken. Deze worden verder uitgewerkt onder 2.2.3. Concepten Cadixwijk.
7. Gefaseerde lange termijn ontwikkeling in twee grote fasen Elke fase moet een afgewerkt geheel vormen. We onderscheiden twee grote ontwikkelingsfasen: de blokken die in herziening worden gesteld via een nieuw RUP en de blokken die niet in herziening worden gesteld.
Voor de eerste fase kijken we dus naar de bouwblokken C2, D2 en E1 en de lopende projecten. De Napelsstraat is de enige noord-zuidstraat die op dit moment doorheen de Cadixwijk loopt. Zowel het Douanegebouw als de SISA-kunstcampus liggen aan deze as geschakeld. De Napelsstraat kan in de eerste fase een belangrijke rol als wijk-as opnemen met daaraan gekoppeld verschillende voorzieningen.
De tweede grote fase bestaat uit de bouwblokken van de noordrand (B1, C1, D1) en uit de bouwblokken van de Kattendijkdok Oostkaai (A1, A2, A3, A4, A5, B6’). Dit is natuurlijk een zeer uitgebreide fase die verder moet worden verfijnd. In de fasering is het belangrijk om ook de uitvoering van het openbaar domein en de ontwikkeling van het openbaar vervoer mee te nemen om zo bij elke fase tot een af en leefbaar geheel te komen.
8. Werken met flexibele ontwikkelingstools De voorschriften en de enveloppes van het RUP worden flexibel gehouden. Deze worden verfijnd aan de hand van verkavelingsvoorschriften en voorwaarden in de verkoopsbundels. Dit laat toe de instrumenten voor de ontwikkeling van de Cadixwijk doelgericht in te zetten. (zie punt 2.3: “uitvoeringsinstrumentarium in drie stappen”)
9. Gedeeltelijke herziening BPA Eilandje met RUP Cadix Voor de realisatie van een vrije trambedding op de Kattendijkdok Oostkaai is een verbreding van het wegprofiel nodig zoals het nu vastgesteld is in het BPA. Er wordt een RUP – procedure opgestart ter partiële herziening van het BPA-Eilandje. de Douanesite (Douanegebouw en bijhorende parking) en de noordrand (Houtdok zuidkaai) worden eveneens mee opgenomen in de RUP procedure. Hierdoor is een onmiddellijke ontwikkeling van de westelijke en noordelijke dokrand niet mogelijk.
10. Duurzaamheid als thema van wijkontwikkeling De Cadixwijk moet als een duurzame wijk worden ontwikkeld en geprofileerd. Reeds een heel aantal aspecten zijn opgenomen in de bestaande plannen. In een aantal andere aspecten kunnen we echter nog een stuk verder gaan. De toepassingen op schaal van het gebouw kunnen we gemakkelijk verwerken en opgeven in de verschillende bevragingsbundels waarmee de kavels op de markt zullen worden gebracht. Voor de toepassingen op schaal van het bouwblok of op schaal van de wijk wordt er een ‘Masterplan Duurzaamheid’ 5 opgesteld dat de duurzame infrastructuur op grote schaal uitwerkt en de precieze relatie tussen de individuele infrastructuur en de publieke infrastructuur bepaalt.
2.2 Ontwikkelingsstrategie 2.2.1 Ruimtelijke regie De volgende figuur geeft de bouwblokken weer die als geheel nog te ontwikkelen zijn in de Cadixwijk. De bouwblokken die eigendom zijn van de stad en in eigen regie ontwikkeld zullen worden zijn in het oranje weergegeven als de zogenaamde ‘ontwikkelbare rand’. De overige blokken zijn niet in stadseigendom. We willen echter wel trachten een zekere mate van regie uit te oefenen op het kantoorgebouw van de Douane door het mee te nemen in de perimeter van het RUP. In dit ruimtelijk scenario focussen we op de functionele programmatie van de ruimtelijke enveloppe bepaald door het beeldkwaliteitplan en het BPA. De invloed van de stad zal zich beperken tot de ontwikkelbare rand, maar de functionele programmatie wordt afgestemd op de ruimere context van de wijk.
Figuur 7: Ontwikkelbare rand aangeduid in het rood, deze volumetrie is een voorbeeld van de maximalisatie van de enveloppes toegelaten in het BPA Eilandje. Bron: Eigen verwerking BPA Eilandje en Masterplan Eilandje.
Figuur 8: Ontwikkelbare rand aangeduid in het rood, deze volumetrie is een voorbeeld van de maximalisatie van de enveloppes toegelaten in het RUP Cadix. Bron: Eigen verwerking RUP Cadix. 2.3 Uitvoeringsinstrumentarium in drie stappen. Aangezien de stad Antwerpen zelf de regie voert en eigenaar wordt van bijna alle gronden gelegen binnen het RUP-Cadix, is het mogelijk de verschillende instrumenten (RUP – verkavelingsplan – verkoopsvoorwaarden) in de realisatie van het programma volledig op elkaar af te stemmen. Het instrumentarium werkt hierbij als een drietrapsraket.
Een strikte hiërarchie tussen de verschillende instrumenten wordt hierbij gerespecteerd. Als basisprincipe geldt dat we specifieke voorwaarden, eisen en regelgeving voor de ontwikkeling van de Cadixwijk opleggen via het meest geschikte instrument. Per instrument willen we afwegen wat er opgenomen dient te worden en wat er meer geschikt is om in een ander instrument op te nemen. Bepalende randvoorwaarden daarbij zijn:
Het doel waarvoor het instrument ingezet wordt:
De schaal waarop het instrument uitspraken doet:
De tijdshorizont waarover het instrument uitspraken doet:
De detaillering van de voorschriften:
De inhoudelijke aspecten waarover het instrument uitspraken doet, zoals:
Overzicht van de taakverdeling:
Het RUP doet enkel uitspaken op schaal van de Cadixwijk en op schaal van de bouwblokken. Gedetailleerde uitspraken op schaal van elk individueel bouwproject (bijvoorbeeld over de kavelverdeling, specifieke bouwhoogte per kavel, specifieke functie per kavel, parkeernormen, duurzaamheidscriteria) worden niet in het RUP opgenomen, maar wel in het verkavelingsplan of de verkoop onder voorwaarden. Het verkavelingsplan kan de voorschriften immers makkelijk koppelen aan de kavelopdeling die niet aan de orde is in het RUP, en de verkoop onder voorwaarden kan makkelijk elementen opnemen die zeer variabel zijn, of die beter contractueel vastgelegd worden. Deze taakverdeling geldt als basisprincipe voor de opmaak van het RUP en de detaillering van de voorschriften. 2.4 Visie en concepten voor de Cadixwijk Binnen de krijtlijnen van de planningscontext van het Eilandje en uitgaande van de functionele programmatie voor deze stadswijk wordt in dit deel een ruimtelijk scenario voor de gehele Cadixwijk weergegeven. Dit ruimtelijk scenario geeft op wijk- of mesoniveau de ruimtelijke invulling weer van het functioneel programma. Het ruimtelijk scenario gaat uit van ruimtelijke ontwikkelingsstrategieën voor de Cadixwijk. De strategieën hebben elk hun eigen accenten van functionele spreiding en menging, ruimtelijke beleving en wijkgevoel. Fasering speelt een belangrijke rol bij de ontwikkeling van een gebied met een dergelijke schaal. De lokalisatie van het functionele programma bekijken we in de eerste plaats vanuit de bebouwde ruimte. Toch zal de interactie tussen open en bebouwde ruimte steeds van groot belang zijn in het ruimtelijk scenario voor de Cadixwijk. 2.4.1 Rol van de Cadixwijk in de omgeving De historische Cadixwijk is met zijn orthogonaal stratenpatroon op een rechthoekig schiereiland een unieke wijk in het stadsweefsel. Het Masterplan Eilandje erkende deze eigenschap door het dambordpatroon van straten en bouwblokken tot aan de dokranden door te trekken waarbij de bestaande bedrijfsloodsen aan de randen op termijn vervangen worden door bouwblokken met een gemengd stedelijk programma.
Uniek is eveneens de grote diversiteit aan historische bebouwing in de binnenstraten van de Cadixwijk bestaande uit kwartieren van rijwoningen, pakhuizen, depots, kazernebebouwing (bvb. de SISA-school) en solitaire bebouwing (bvb. het Douanegebouw). Deze diversiteit wijst op een historische menging in dit oud-havengebied van residentiële, gemeenschaps- en havengebonden functies. Dit laatste is een belangrijke troef bij de transformatie van een havengebied naar een stadswijk. De aanwezigheid van watervlakken aan drie zijden van de wijk levert een enorm potentieel voor het creëren van een buurtleven aan het water. Niet alleen kunnen er woon- kantoor- en commerciële functies met zicht op het water worden ingeplant; de brede dokranden leveren bovendien ruime mogelijkheden voor de uitbouw van een aangenaam verblijfsdomein met een indrukwekkend uitzicht op de dokken. Naast het water en de dokranden is er ruimte voor een centrale publieke ruimte voor het Douanegebouw: het Cadixplein, een groen parkachtig plein. In de onmiddellijke nabijheid wordt momenteel bovendien het park Spoor Noord voltooid. Via de Kempenstraat sluit het park aan op de Cadixwijk.
De Cadixwijk ligt ingesloten tussen de Oude Dokken (waar het stedelijke transformatieproces reeds duidelijk vorm krijgt) en het Mexico-eiland (dat nog steeds een bedrijventerrein is). De Cadixwijk fungeert hierdoor als contactzone tussen stad en haven, zowel functioneel door de aanwezigheid van havengerelateerde activiteiten als morfologisch door het voorkomen van pakhuizen en depots. De korrelgrootte van de bouwblokken houdt het midden tussen het weefsel van de historische binnenstad en die van het Mexico-eiland.
2.4.2 Concepten Cadixwijk Het beeld dat wordt opgebouwd in het Masterplan, de beeldkwaliteitplannen en het BPA is een sterk ruimtelijk beeld maar laat soms het raden naar de ruimtelijke en functionele werking van de wijk. Er wordt ook gewerkt met een eindbeeld zonder dat de opbouw van dit beeld wordt geëxpliciteerd. Deze statische ruimtelijke visie willen we nu verder aanvullen met enkele strategieën. De ruimtelijke strategieën geven ook belangrijke input aan het ontwikkelingsproces dat we verder in dit document behandelen. 2.4.2.1Homogeen raster Deze eerste strategie beschrijft vooral het concept zoals we het terugvinden in het beeldkwaliteitplan en in het BPA. De Cadixwijk wordt hierin beschreven als een raster van gelijkaardige gesloten bouwblokken met een quasi gelijkmatige vermenging van functies over de hele wijk. Er worden weinig specifieke accenten gelegd. Het lijkt een homogene wijk. Dit heeft interessante gevolgen op de mogelijke fasering en de autonomie van elk bouwblok op zich. Deze rasterstructuur vertaalt zich ook in de visie op circulatie binnen de wijk. Enkel de Kattendijkdok Oostkaai wordt een wijkontsluitingsas met een snelheidsbeperking van 50km/u, de rest van de straten moeten bekeken worden als woonstraten met een snelheidsbeperking van 30km/u. De dokranden moeten als voetgangerszones worden beschouwd die aansluiten op de watergerelateerde activiteiten. Er moet een goede afstemming komen van activiteiten op het water en op het land, zij zullen elkaar in sterke mate beïnvloeden. De aanleg van het openbaar domein moet deze strategie ruimtelijk vertalen.
Figuur 9 en 10: Ontwikkeling in homogeen raster. Bron: Eigen verwerking
2.4.2.2 Hart en as Hart In het hartmodel wordt gestreefd naar het creëren van een centraliteit in de wijk. De strategie die gevolgd wordt is die van ‘dorpsplein’ waarbij een centrale plek wordt opgeladen met voorzieningen die interageren met een publieke ruimte. In de context van de Cadixwijk is dit het Cadixplein, een groen parkachtig plein, dat volgens de visie van het Masterplan Eilandje straks het centrum van de buurt verbindt met het Kattendijkdok en zo de wijk opent naar het water. Handels- en horecafuncties kunnen in principe overal in de Cadixwijk worden ingepland, maar op strategische locaties zouden we meer kunnen toelaten. Slechts twee van de nieuwe bouwblokken in regie grenzen met een zijkant aan dit plein. We hebben dus weinig mogelijkheid tot het voeren van een echte regie om een levendig plein te bekomen. We moeten maximaal inzetten op de strategische koppen van de bouwblokken A3 en A4, bijvoorbeeld door horeca-zaken van een bepaalde schaal toe te laten. Ook de SISA-school zal haar steentje bijdragen in het opladen van het plein als multifunctionele gemeenschapsvoorziening.
Op dit moment vormt de typologie van de Douane-site een uitzondering in de Cadixwijk. Dit heeft een bepaalde kwaliteit. Deze toren langs het toekomstige Cadixplein, als groen parkachtig plein, wordt soms vergeleken met de kerk langs het dorpsplein. Dit geeft oriëntatie. Anderzijds is dit gebouw nu ook een beetje een eiland binnen de Cadixwijk aangezien de ruimte rondom het gebouw een buffer creëert. De site neemt niet deel aan de levendigheid van de Cadixwijk. Het herzien van de plint van het huidige Douanegebouw kan een belangrijke rol spelen bij de verdere uitwerking van het, als groen parkachtig plein.
Figuur 11: Kattendijkdok Oostkaai. Bron: eigen verwerking
As In het as-model wordt de Kattendijkdok Oostkaai als belangrijkste wijkontsluitingsas en tramboulevard opgeladen met een aangepaste functiemix. Deze as heeft een bovenlokale uitstraling aangezien ze een verbinding vormt met de andere wijken en een doorgangsweg naar de haven toe. We moeten de ambities voor deze as als winkelas niet te hoog leggen aangezien de as Londen-Amsterdamstraat in eerste instantie in deze functie wordt uitgewerkt. Toch zal deze straat een belangrijke rol kunnen spelen, bijvoorbeeld als verbinding tussen stad en haven en als hoofdontsluitingsas van deze wijk.
Aangezien de nieuwe blokken langsheen de Kattendijkdok Oostkaai moeten opschuiven omwille van de tramlijn zullen deze blokken via het RUP ’Cadix’ in herziening worden gesteld. We kunnen dus het keurslijf van het huidige BPA nog in sterke mate aanpassen. Dit betekent echter ook dat de ontwikkeling van deze strook pas in een latere fase zal kunnen worden ontwikkeld. Deze bovenlokale as zal dus ook pas in een latere fase voelbaar zijn. De aanleg van een trambaan zal ook een functionele invloed hebben op de ontwikkeling van deze as.
Figuur 12: Kattendijkdok Oostkaai. Bron: eigen verwerking.
Figuur 13: Hart en as strategie Bron: eigen verwerking 2.4.2.3 Samengesteld bouwblok Het feit dat we voorop stellen dat de Cadixwijk uit een homogeen raster van gesloten bouwblokken bestaat betekent niet dat er binnen deze bouwblokken naar diversiteit kan worden gezocht, integendeel. We willen de grote bouwblokken verdelen in kleinere gehelen. Ze worden dus niet als één gebouw uitgewerkt. Op deze manier brengen we veel meer diversiteit en menselijke schaal in de wijk zoals dat nu ook reeds al aanwezig is in het bestaande weefsel van de Cadixwijk en de rest van het Eilandje. Het is een schaal die het midden houdt tussen de individualiteit van het stadscentrum en de monotonie van de grootschalige havenloodsen.
Tegelijkertijd levert deze verdeling van de grote bouwblokken het voordeel op van een grotere flexibiliteit en faseerbaarheid in de ontwikkeling. Het wordt ook veel gemakkelijker om de functiemix die we nastreven in de hand te houden aangezien we kavel per kavel kunnen bijsturen. We streven naar een menging van verschillende functies naast elkaar op bouwblokniveau ipv een menging van verschillende functies boven elkaar op kavelniveau.
We willen de nieuwe bouwblokken van de Cadixwijk ontwikkelen als samengestelde bouwblokken. De grote bouwblokken worden verdeeld in kleinere loten van ongeveer 5000m² vloeroppervlakte.
Er wordt gestreefd naar een menging van verschillende functies naast elkaar op bouwblokniveau ipv een menging van verschillende functies boven elkaar op kavelniveau.
Figuur 14-18: Ontwikkelen van samengestelde bouwblokken. Bron: Eigen verwerking 2.4.3 Structuurschets Cadixwijk De Cadixwijk bestaat uit een homogeen raster van woonstraten en gemengde gesloten bouwblokken, en enkele uitzonderingen. er mag geen ‘gouden randje’ langsheen de waterkant gecreëerd worden. Ook deze blokken langs de waterkant maken integraal deel uit van de wijk.
In het as-model wordt de Kattendijkdok Oostkaai als belangrijkste wijkontsluitingsas en tramboulevard opgeladen met een aangepaste functiemix. Het Cadixplein, als groen parkachtig plein, wordt de centrale ontmoetingsplaats of het hart van de wijk en combineert een verblijfsfunctie met evenementenplek met halteplaats voor de tram. De wanden ervan worden opgeladen met voorzieningen die interageren met het publiek plein. Anderzijds speelt de Douanesite een belangrijke rol in de toekomstige beleving van het plein.
We willen de nieuwe bouwblokken van de Cadixwijk ontwikkelen als samengestelde bouwblokken met een menging van verschillende functies naast elkaar. De bouwblokken worden verdeeld in kleinere loten van maximaal 5000m² vloeroppervlakte.
Figuur 19: Structuurschets. Bron: Eigen verwerking.
2.5 Visie en concepten op bouwblokniveau Op basis van ontwerpend onderzoek, werden de globale visie en de voorgestelde ruimtelijke concepten op het niveau van de gehele Cadixwijk verder verfijnd voor wat betreft de bouwblokken deel uitmakend van het RUP. Eerst worden enkele algemene concepten geformuleerd op schaal van alle bouwblokken in de ontwikkelbare rand (2.5.1), daarna worden een aantal specifieke concepten uitgewerkt voor verschillende types van bouwblokken zoals dit ook uit het ontwerpend onderzoek naar voor kwam (2.5.2 t.e.m. 2.5.6). 2.5.1 Bouwblokkenraster De basisstructuur van het homogeen raster uit het Masterplan Eilandje vormt de basisfiguur voor de ontwikkeling van de bouwblokstructuur van de Cadixwijk. Door de straten uit het bestaande rastervormige weefsel door te trekken tot tegen de dokranden wordt dit raster vervolledigd en ontstaan duidelijk begrensde bouwblokken. Dit principe lag al aan de basis van het bestaande BPA. Elk bouwveld of bouwblok krijgt een nummer. De nummering van de bouwblokken in het RUP wordt afgestemd op de nummering van het BPA Eilandje. De bouwblokken A4 en A5 uit het BPA werden fysiek ‘gewisseld’ (zie verder).
Figuur 20: Omwisselen bouwblokken A4 en A5. Bron: Eigen verwerking.
Binnen het Cadixraster wordt ervoor geopteerd om overal gesloten bouwblokken te bekomen. De rand van het bouwblok dient dus zo duidelijk mogelijk begrensd te worden via een bebouwde rooilijn. Dit om het bestaande karakter van een weefsel met gesloten bouwblokken te bestendigen maar eveneens om een scherpe grens vast te leggen tussen openbaar domein en privaat domein, een grens die in de bestaande bouwblokstructuur eveneens uitdrukkelijk aanwezig is. Dit versterkt het karakter van het stedelijke weefsel, straten vormen duidelijk het publieke domein die worden begrensd door de van gevels van de gebouwen. Tegelijk worden ze ook door gevels opgeladen. Het karakter van het gesloten bouwblok is reeds aanwezig in de kern van de Cadixwijk en het bestaande BPA voorziet eveneens gesloten bouwblokken in de westrand. In de noordrand stelt het bestaande BPA strokenbouw voor, en dit is niet overeenkomstig met het principe van de gesloten bouwblokken (zoals ook geformuleerd in het Masterplan Eilandje).
Het gesloten karakter van elk bouwblok garandeert bovendien een duidelijk private en afgescheiden binnenkant van het bouwblok. De kern van het bouwblok dient daarom open en onbebouwd te blijven. Deze binnengebieden dienen open, groene verblijfsruimtes te worden voor bewoners en gebruikers van het bouwblok. Hier worden geen publieke parken of groenruimtes beoogd, maar kwalitatieve, private of collectieve tuinen. Dit aangezien de Cadixwijk reeds zeer veel publieke ruimte aan de dokranden heeft en bovendien in het raster een publiek park voorzien wordt. De tuinen dienen het woonkarakter en de verblijfskwaliteiten van de bouwblokken te versterken. Voor de compactere bouwblokken (A1, D1, A4, b6’) kan hiervan afgeweken worden: in deze kleinere bouwblokken is een open kern niet noodzakelijk de garantie om tot een kwalitatieve inrichting van het bouwblok te komen. Tuinen zijn hier sowieso niet mogelijk. In deze bouwblokken wordt de verplichting van de open kern, via de bouwenveloppe, niet opgelegd, maar wel blijft wel mogelijk.
De bouwblokken dienen verder onderverdeeld te worden. Daarbij wordt het beeld van een samengestelde bouwblokken beoogd: het bouwblok kan niet uitgewerkt worden als slechts één project/gebouw (m.u.v. de compacte bouwblokken), maar dient opgebouwd te zijn uit verschillende deelprojecten met een middelgrote en kleine korrelmaat. Ook de bouwhoogten verschillen per bouwblok en per deelproject en zijn afhankelijk van de positie van het bouwblok in de Cadixwijk.
Figuur 21-22: Overzichtsbeelden maquette Cadixwijk. Bron: Eigen verwerking. Parkeren gebeurt over het algemeen ondergronds. Het aantal toegangen tot ondergrondse parkeerruimten in de bouwblokken wordt gelimiteerd. Aan de zijde van de dokranden mogen geen toegangen worden voorzien. Toegangen tot ondergrondse parkeerruimten waarbij de vrije ov-baan moet gekruist worden, wordt eveneens vermeden.
Binnen het Cadixraster wordt een functiemix beoogd. Deze werd beschreven: in 10 krachtlijnen in het plan van aanpak Cadix (punt 2.1):
Om het door het Masterplan vooropgestelde woningaandeel voor het Eilandje fase 1 te kunnen halen zal een extra inspanning moeten worden gedaan in de Cadixwijk. Voor de ontwikkelbare rand wordt daarom 75% wonen nagestreefd (ca. 150.000m²). de ondersteunende wijkvoorzieningen (kinderopvang, scholen…) worden geraamd op 4% van de ontwikkelbare vloeroppervlakte. Kantoren en handel kunnen 21% innemen of ca. 42.000m². Bovenstaande verdeelsleutel is richtinggevend op schaal van de wijk.
Er wordt een woningenmix vooropgesteld van 25% sociale woningen (15% huur- en 10% koopwoningen), 50% betaalbare woningen en 25% residentiële woningen. Het percentage betaalbare woningen geldt hierbij als een na te streven bovengrens. Daarnaast wordt eveneens een mix van woningtypologieën beoogd. Op die manier wil de stad verschillende doelgroepen aantrekken in de Cadixwijk waaronder gezinnen met kinderen. Voor de bestaande bewoners in een sociaal zwakkere positie wordt een flankeerbeleid uitgewerkt.
Het RUP legt deze mix echter niet op in de stedenbouwkundige voorschriften, noch op schaal van het bouwblok noch op schaal van kavels binnen het bouwblok. Hier gebeurt er een duidelijke bijsturen t.o.v het BPA Eilandje. We argumenteren:
De visie beoogt een verticale menging van functies. Om flexibiliteit op de ganse ontwikkeling van de wijk mogelijk te maken wordt de functionele mix ook niet op bouwblok niveau vastgelegd. Het vastleggen van de functionele mix per bouwblok zou immers de inpassing van een groter publiek programma (zoals een school) binnen een bouwblok onmogelijk worden. Om toch te kunnen waken over de functionele mix op niveau van de ganse ontwikkeling en dus de ambitie uit de krachtlijnen na te komen, wordt het uitvoeringsinstrumentarium in drie stappen ingezet (2.3). De functionele mix zal uitdrukkelijk opgenomen worden in de verkavelingsplannen en in de bevragingsbundels. Beide worden door de stad opgemaakt vanuit haar regierol. Zo wordt de functionele mix op de twee andere niveaus van ruimtelijk instrumentarium verankerd.
Figuur 23: Maatvoering kaaigevel Kattendijkdok Oostkaai. Bron: eigen verwerking. Figuur 24-26: voorbeelden bouwblok Kattendijkdok Oostkaai. Bron: eigen verwerking. 2.5.2 samengestelde bouwblokken Kattendijkdok Oostkaai (A2, A3, A5)
Bij de ontwikkeling van de bouwblokken A2, A3, A5 langs het Kattendijkdok wordt een gesloten bouwblokvorm nagestreefd met een open en groene binnenruimte.
A2, A3 en A5 betreffen samengestelde bouwblokken met een middenschalige korrelmaat van de bebouwing (cfr maat van pakhuis) en variatie in architectuur. Bij de verdere opdeling van deze bouwblokken zal een onderscheid worden gemaakt tussen de loten op de korte zijden van de bouwblokken, de zogenaamde ‘koppen’, en de tussenliggende loten langs de lange zijden van het bouwblok. Op de koppen worden grotere bouwdiepten toegestaan in functie van het aantrekken van aan het wonen verwante centrumfuncties. De loten langsheen de lange zijden krijgen een beperktere bouwdiepte en worden daardoor meer gericht op de ontwikkeling van woningen.
Aansluitend en op maat van de tram-as wordt een gemiddelde bouwhoogte van zes bouwlagen vooropgesteld. Een gelijke kroonlijsthoogte over het volledige bouwblok is echter, vanuit de beeldkwaliteit van de Cadixwijk, niet kenmerkend voor de bebouwing op de Cadixwijk. Er wordt daarom gestreefd naar variabele, afwisselende kroonlijsthoogten zodat een speels beeld ontstaat tussen de verschillende projecten en de eigenheid van elk gebouw tot uiting komt. Naar de dokranden, het Cadixplein, de Kattendijkdok Oostkaai en de Londen-Amsterdamstraat moet het mogelijk zijn accenten toe te voegen op de gemiddelde hoogte, waarbij 4 bouwlagen als een minimum geldt en 8 bouwlagen als maximum. Als principe blijft wel gelden dat de gemiddelde hoogte van het bouwblok niet hoger mag zijn dan zes bouwlagen. De hoogteverschillen tussen de aangrenzende percelen mag echter niet te groot zijn. Het hoogteverschil wordt daarom beperkt tot maximaal 3 bouwlagen.
Figuur 26: Voorbeelden bouwblok Kattendijkdok Oostkaai. Bron: Cel Ontwerpend onderzoek, Stad Antwerpen.
In deze bouwblokken wordt enkel ondergronds geparkeerd. De parking wordt daarbij best gezamenlijk georganiseerd voor heel het bouwblok en de ingangen worden daarbij best gegroepeerd. Daarbij geldt een parkeernorm opgelegd van 1.1 parkeerplaats per woning en 1 parkeerplaats per 100m² bruto vloeroppervlakte kantoren. Deze normen worden opgenomen in de voorschriften van het RUP maar kunnen indien gewenst verstrengd worden in het verkavelingsplan en via de verkoop onder de voorwaarden.
Figuur 27: maquette Kattendijkdok Oostkaai. Bron: eigen verwerking.
2.5.3 Samengestelde bouwblokken Noordrand (B1, C1)
Bij de ontwikkeling van de bouwblokken B1 en C1 langs het Houtdok wordt een gesloten bouwblokvorm nagestreefd met een open en groene binnenruimte.
De bouwenveloppe en bebouwingstypologie zoals voorgesteld in het BPA, namelijk strokenbouw loodrecht op de dokrand, sluit niet aan bij de algemene visie op de ontwikkeling van de Cadixwijk. De algemene visie stel het doortrekken van het Cadixraster en het realiseren van gesloten bouwblokken voorop. Deze visie was reeds geformuleerd in het ontwerp van de Solà-Morales en doorvertaald in het Masterplan Eilandje. Ze is echter niet opgenomen in het BPA.
In plaats van de strokenbouw wordt voor bouwblokken B1 en C1 gesloten samengestelde bouwblokken voorgesteld, met een middenschalige tot kleinere korrelmaat van de bebouwing die enerzijds aansluiting vindt bij de maat van de dokken, en anderzijds op de kleinschaligere bebouwing centraal in de Cadixwijk.
Omwille van een betere bezonning voor de noordkaai en de mogelijke ligplaatsen voor woonboten aan de zuidelijke oever van het Houtdok, wordt de bouwhoogte voor de noordelijke bouwblokken (B1, C1) beperkt. De bouwhoogte wordt aangepast aan de bouwhoogte van de blokken in het binnengebied (vier bouwlagen) om de overgang tussen rand en binnengebied niet te scherp te maken. De bouwhoogte bedraagt minimaal 2 en maximaal 4 bouwlagen langs de lange zijden van de bouwblokken. Op de koppen kan er dieper en hoger gebouwd worden, tot 6 bouwlagen, en dit om ander typologieën en ander functies toe te laten.
Ten opzichte van de samengestelde bouwblokken aan de Kattendijkdok Oostkaai wordt er voor de noordrand gestreefd naar een verdere opdeling in kleinere loten. Bij de uitwerking van het verkavelingsplan kan er dan geopteerd worden om in te zetten op een groot aantal grondgebonden rijwoningen. Om die reden wordt het parkeren voor deze bouwblokken niet overal verplicht ondergronds georganiseerd. Voor kleinere loten wordt een kwalitatieve inpandige oplossing op het maaiveldniveau mogelijk geacht. Daarbij geldt een parkeernorm opgelegd van 1.1 parkeerplaats per woning en 1 parkeerplaats per 100m² bruto vloeroppervlakte kantoren. Deze normen worden opgenomen in de voorschriften van het RUP maar kunnen indien nodig in het verkavelingsplan en via de verkoop onder voorwaarden verstrengd worden.
Figuur 28: maquette Noordrand. Bron: eigen verwerking.
2.5.4 Compacte bouwblokken (A1, A4, B6' en D1)
Bij de ontwikkeling van de bouwblokken A1, A4, B6’ en D1 wordt een compact gesloten bouwblok nagestreefd, met voldoende ruimte voor functies aanvullend op het wonen.
De compacte bouwblokken, veelal gelegen aan een pleinruimte, kunnen uitgewerkt worden als één project: een monoblok of monovolume met een éénvormige architectuur. Een verdere opdeling van deze bouwblokken in loten is mogelijk, maar wordt niet verplicht. A1, A4, B’6, D1 kunnen ontwikkeld worden als een gesloten bouwblokvorm met flexibel indeelbare open binnenruimten. Het model van een gesloten ‘schil’ met een open ‘pit’ of binnengebied vormt voor deze bouwblokken nadrukkelijk geen streefdoel. De open ruimten kunnen op een flexibele en creatieve wijze worden ingevuld. Het bouwblok is volledig bebouwbaar voor het aantrekken van grotere functies. Ook de compacte blokken passen zich strak in, in het Cadixraster.
Figuur 29: maquette compacte bouwblokken. Bron: Cel Ontwerpend onderzoek, Stad Antwerpen.
Het bouwblok ‘D1’ wordt t.o.v. het BPA sterker uitgelijnd binnen het Cadixraster. Op deze manier vormt het effectief een deel van het raster terwijl het in het BPA al een deel er buiten viel en aansluiting zocht bij E1. Het verschil tussen deze twee blokken wordt op die manier sterker uitgewerkt.
Het bouwblok A1 volgt niet helemaal het raster. het wijkt iets terug van de bouwlijn van de andere blokken in de Kattendijkdok Oostkaai omwillen van de aanlanding van de mexico-brug. Ook bouwblok B6’ wijkt iets terug ten opzicht van de bouwlijn langs de Londenstraat, net zoals bouwblok A5, en dit -in afstemmingen op advies van de openbare vervoersmaatschappij de lijn- om de trambedding in de Londenstraat en de nodige bochtstralen te kunnen realiseren.
De bouwblokken A4 en A5 uit het BPA werden fysiek ‘gewisseld’ om volgende redenen:
Een minimale bouwhoogte van 4 bouwlagen en een maximale bouwhoogte van 6 lagen wordt vastgelegd.
In deze bouwblokken wordt enkel ondergronds geparkeerd. Daarbij geldt een parkeernorm opgelegd van 1.1 parkeerplaats per woning en 1 parkeerplaats per 100m² bruto vloeroppervlakte kantoren. Deze normen worden opgenomen in de voorschriften van het RUP maar kunnen in het verkavelingsplan en via de verkoop onder voorwaarden nog verstrengd worden indien nodig.
Figuur 30-31: maquettecompacte bouwblokken. Bron: eigen verwerking. 2.5.5 Douanesite (B5) Bij de ontwikkeling van de Douanesite of bouwblok B5, wordt een gesloten bouwblok nagestreefd, met centraal in het bouwblok een of meerdere hogere volumes.
Het bestaande gebouw van de Douane vormt nu reeds een uitzondering in de morfologie en typologie van de Cadixwijk. Het bestaande gebouw volgt, als solitair bouwvolume, de bestaande configuratie van het gesloten bouwblok niet en is beduidend hoger dan de omliggende bebouwing (32m).
Ook de Douanesite dient zich in te schrijven in het homogeen raster van gesloten bouwblokken in de Cadixwijk. Door het toevoegen van een bouwblokrand die het volledige bouwblok uitlijnt ten opzichte van het omliggende publiek domein ontstaat een superblok van 110x110meter. De hoogte van het bouwblok op de rooilijn (=schil) wordt afgestemd op de gemiddelde bouwhoogte van de bestaande, omliggende bouwblokken. Minimaal dient de schil op de rooilijn 3 bouwlagen hoog te zijn en maximaal 5 bouwlagen.
Het bestaande Douanegebouw kan binnen in het bouwblok behouden blijven of vervangen worden door een of meerder nieuwe hogere volumes. Om dit mogelijk te maken wordt, naast de bouwenveloppe van de schil (zoals hierboven beschreven) nog een tweede bouwenveloppe opgesteld voor het bouwen in het binnengebied. Deze enveloppe is zo opgesteld dat het bestaande gebouw van de Douane er in past, dat het gebouw uitgebreid kan worden, maar ook dat het gebouw vervangen kan worden door andere hogere volumes. De bouwhoogte wordt daartoe beperkt tot 32m. Dergelijk hoge gebouwen mogen niet op de rooilijn opgetrokken worden, maar dienen teruggetrokken te zijn: 8 meter ten opzichte van de noordelijke en zuidelijke rooilijn en 12 meter ten opzichte van de westelijke en oostelijke rooilijn. De terugtrekking is kleiner aan de noordzijde en de zuidzijde om het bestaande gebouw mee in deze enveloppe te kunnen laten passen.
Voor de totale site van bouwblok B5 wordt een maximaal te realiseren bruto-vloeroppervlakte opgelegd van 40.000m². Aangezien de schil volgebouwd dient te worden op de rooilijn dient er minimaal van het quotum BVO 14.000m² gebruikt te worden voor de schil. daardoor blijft er nog maximaal 26.000m² over voor het realiseren van hogere bebouwing met een bouwhoogte van maximaal 32 meter. Dit wil zeggen dat het binnengebied niet geheel volgebouwd kan worden tot 32 meter hoogte.
Om de vooropgestelde functionele mix binnen het bouwvlak te waarborgen, laat het RUP slechts een bruto – vloeroppervlakte van 3000m² toe voor handelsruimte. Deze oppervlakte mag ingericht worden in de kelder, het gelijkvloers. Aan de zijde van het Cadixplein is detailhandel eveneens toegelaten op de eerste verdieping. De bruto – vloeroppervlakte van de handelsruimten op de eerste verdieping dienen in mindering te worden gebracht van het totaal van de toegelate bruto – vloeroppervlakte van de handelsruimten op het gelijkvloers. Wat kantoren betreft wordt er een maximale bruto – vloeroppervlakte van 10.000m² toegestaan. Door deze beperkingen blijft er voldoende ruimte over voor wonen, gemeenschapsvoorzieningen, culturele, recreatieve en sportieve voorzieningen.
In dit bouwblok wordt enkel ondergronds geparkeerd. Daarbij geldt een parkeernorm opgelegd van 1.1 parkeerplaats per woning en 1 parkeerplaats per 100m² bruto vloeroppervlakte kantoren. Deze norm wordt hier wel opgenomen in de voorschriften van het RUP, want er zal voor dit blok geen verkavelingsplan en verkoop onder voorwaarden opgemaakt worden, aangezien dit bouwblok niet in eigendom is van de stad.
Figuur 32: superblok 110x110 met behoud (1) en afbraak (2) van het Douangebouw. Bron: Cel Ontwerpend onderzoek, Stad Antwerpen
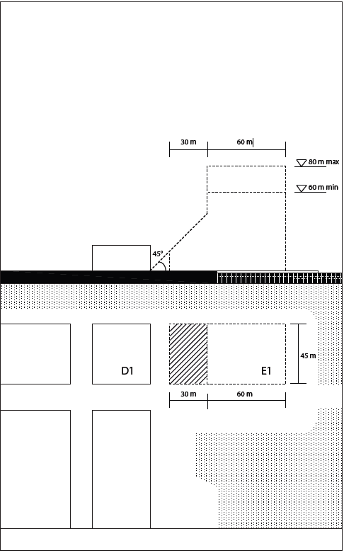
2.5.6 Kaai 38 (E1)
2.5.6.1 Een duidelijke toren
Bouwblok E1 vormt in het bestaande BPA onderdeel van de noordelijke rand van de Cadixwijk. De bouwblokken A1, B1 en C1 werden daarbij afgelijnd op een rooilijn aan de Madrasstraat, de bouwblokken D1 en E1 werden afgelijnd op het verlengde van de aanlanding van de Kempische brug. Het bouwblok E1 sloot ook aan tegen D1 via het doortrekken van de binnenvaartstraat. Ook naar bouwenveloppe kan bouwblok E1 aansluiten bij de andere bouwblokken aan de noordrand. Het is er volgens het BPA toegelaten om te bouwen tot 50 meter, maar het is niet verplicht. Een gesloten bouwblok van 6 bouwlagen is hier dus mogelijk.
Dit is echter niet geheel in overeenstemming met de gewenste ontwikkeling voor deze plek. Het Masterplan Eilandje, dat het basisdocument vormt voor de ontwikkeling van zowel de Oude Dokken, de Montevideowijk als de Cadixwijk, voorzag duidelijk een toren op de locatie van E1. De visie daarbij was dat het bestaande bebouwingsraster van de Cadixwijk wordt doorgetrokken tot tegen de dokranden, maar dat het bouwveld E1, door zijn ligging op een landhoofd omgeven door water aan drie zijdes, geen deel van het raster zou zijn. Integendeel, deze locatie leent zich volgens het Masterplan Eilandje, voor de bouw van een solitair en massief torenvolume buiten het homogeen raster van de Cadixwijk. Deze visie is dus gebaseerd op het verscherpen van het onderscheid tussen raster en bouwblok enerzijds en solitaire toren met open ruimte van de dokken anderzijds. Deze visie werd in het s-RSA overgenomen.
Ook het beeldkwaliteitplan architectuur voor het Eilandje neemt de visie van het Masterplan over, maar doet geen gedetailleerde uitspraken over de solitaire toren. Het beeldkwaliteitplan stelt dat “De locatie E1 aan de Kempische brug kan ingevuld worden met een geaccentueerde bebouwing, bijvoorbeeld een woontoren (Masterplan) of een loodsencomplex (Waterplan).” Het beeldkwaliteitplan stelt dat in het geval van een toren dat de andere torens op het Eilandje als referentie dienen. In het geval van een loodsbebouwing wordt vanuit het beeldkwaliteitplan geopteerd voor behoud van de bestaande loodsen en dit op basis van de visie van het Waterplan. Het Waterplan gaf inderdaad het behoud van de bestaande loodsen aan en dit in functie van de bestaande watergebonden activiteit van de vzw Werkvormm en Trotter. Deze functies hebben echter maar een concessie meer tot 2010 en zullen dan deze locatie verlaten. In het BPA werd uiteindelijk de keuzemogelijkheid tussen toren en loodsen opengelaten, maar net daardoor liet de voorschriften voor de bouwenveloppe een derde variant toe, namelijk het slopen van de bestaande loodsen en het vervangen met een laagbouw.
De keuze voor een torengebouw op deze locatie past in het algemeen ruimtelijk beleid voor de stad en in het bijzonder het beeld van de waterstad uit het s-RSA. De stad wil haar relatie met het water versterken. Torengebouwen zijn bij voorbaat elementen die de stad en het water verbinden.
Het RUP wil de onzuivere vertaling van de visie van het Masterplan Eilandje en het s-RSA in het bestaande BPA Eilandje opnieuw scherpstellen en resoluut kiezen voor een solitair en massief torenvolume buiten het homogeen raster van de Cadixwijk. Een aantal voorschriften dienen daartoe in het RUP geschreven te worden, en dit om er voor te zorgen dat er effectief een toren gebouwd wordt. Zeer specifiek gaat het om het opleggen van een minimum hoogte voor de toren van 60 meter. Deze minimumhoogte refereert naar de andere torens op het Eilandje. alle torens zijn daar minimaal 60m hoog. Door een minimumhoogte op te leggen garandeert het RUP dat er effectief een toren, en dus een hoogteaccent op locatie E1 zal komen. De ervaring van het BPA Spoor Noord toont immers aan dat het voorzien van een bouwenveloppe voor een toren zonder opgelegde minimumhoogte niet noodzakelijk leidt tot een effectief gebouwde toren maar een proportioneel te laag volume toelaat. Het RUP wil dit daarom uitdrukkelijk opleggen. Het stellen van een minimum bouwhoogte heeft niet enkel weerslag op de hoogte maar ook op de minimum slankheid van het gebouw. Onderstaand wordt er een maximale bruto – vloeroppervlakte vastgelegd. Uitgaande van dit maximum werd er ontwerpend onderzoek gedaan naar de verhouding tussen hoogte en slankheid van het volume. Hieruit kan geconcludeerd worden dat een toren lager dan 60 m: niet enkel geen hoogteaccent zou opleveren maar ook resulteert in een plomp volume.
Figuur: 34: onderzoek naar slankheid toren. Bron: eigen verwerking
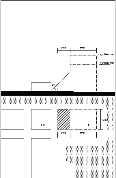
Bovendien wil het RUP ook het bouwveld zo modelleren dat er enerzijds voldoende ontwerpvrijheid ontstaat maar dat de toren anderzijds voldoende ver afstaat van de bouwblokken in het Cadixraster. Dit zowel om in de morfologische structuur een duidelijk onderscheid te maken tussen toren en gesloten bouwblokken, maar tevens om de mogelijke impact van de toren op deze bouwblokken sterk te beperken. Daarom werd het bouwveld opgedeeld in twee zones, een eerste zone waar enkel een lager volume wordt toegestaan en een tweede zone waar de toren, van minimum 60m hoog en maximum 80m hoog wordt toegestaan. Bovendien werd voor de toren een verplichte bouwlijn opgelegd zodanig dat de toren gebouwd wordt aan de meest oostelijke kant van het bouwveld. Het RUP stelt verder geen voorwaarden aan de footprint van de toren. Het bepalen van een footprint zou immers de ontwerpvrijheid beperken. Via het ruime bouwvlak en de bepaling van de twee zones kan de ontwerper de toren op verschillende manieren positioneren op het bouwvlak. Door het vastleggen van een minimale bouwhoogte en een maximale bruto – vloeroppervlakte (zie verder), wordt er toch een garantie voor een zekere slankheid van een toren verzekerd.
Figuur 35: toegelaten bouwprofiel bouwvlak E1, zone Ce2 Bron: Cel Ontwerpend onderzoek, Stad Antwerpen
De hoogbouwnota in opmaak (zie bijlage 5.3.1) formuleert voor hoogbouw in Antwerpen uitdrukkelijk een aantal uitgangspunten als uitwerking van het s-RSA en het RUP neemt deze mee in de visie op de toren. Een aantal gebieden worden specifiek aangeduid als stimuleringsgebieden voor hoogbouw en het Eilandje is er een van.
Het stimuleren van hoogbouw is vanuit ruimtelijk-economisch oogpunt zeker te verdedigen. Het stapelen van functies is een teken van zuinig ruimtegebruik, zeker in het geval van kantoren. Door hoger te bouwen blijven gronden beschikbaar voor latere ontwikkelingen.
Om een grote toren effectief te kunnen realiseren, verhoogt het RUP het maximum toegelaten bruto-vloeroppervlakte (BVO) voor E1 van 9.600m² in het BPA tot 30.000m² in het RUP. Deze verhoging in BVO wordt echter wel in relatie gebracht met mogelijke ontwikkelingen op de andere bouwblokken binnen het RUP. Voor het hele projectgebied werd het maximum BVO van ongeveer 160.000m² niet verhoogd ten opzichte van het BPA. De druk van dit programma op de wijk werd dus niet verhoogd, maar wel tussen de verschillende bouwblokken herverdeeld volgens het principe van communicerende vaten. Zo werd de bouwenveloppe van de bouwblokken A2, A3 en A5 in beperkte mate verkleind en die van bouwblokken B1 en C1 in grotere mate. Dit komt de ontwikkeling van beide types bouwblokken ten goede. Zo blijven die blokken in bouwhoogte beperkt en wordt er een open binnengebied gegarandeerd.
De negatieve impact van een toren is niet recht evenredig verbonden met de hoogte ervan. Vanaf een bepaalde hoogte is er reeds een vorm van hogere verdichting op het maaiveld, spelen al windeffecten en is er al een visueel effect. Als de toren dan hoger gemaakt wordt dan vergroot de impact niet zeer sterk. Om zowel een landmark te maken en om ruimtelijk-economisch zo efficiënt mogelijk te werk te gaan, opteert het RUP ervoor de toren zeker hoger te kunnen maken dan 60 meter, maar tegelijk de hoogte toch te beperken tot 80 meter. De hoogtebeperking vloeit voort uit:
Figuur: 36 – 37: Visuele impact toren met hoogte beperking 80m, redezicht Bron: Eigen verwerking
Figuur: 38 – 39: Visuele impact toren met hoogte beperking 80m, Sint – Annastrand Bron: Eigen verwerking
Figuur: 40 – 41: Visuele impact toren met hoogte beperking 80m, Spoor Noord Bron: Eigen verwerking
Figuur: 42 – 43: Visuele impact toren met hoogte beperking 80m, IJzerlaan Bron: Eigen verwerking
Figuur: 44 – 45: Visuele impact toren met hoogte beperking 80m, Noorderlaanbrug Bron: Eigen verwerking
Mogelijke negatieve impact van de toren op zijn omgeving is op deze locatie eerder beperkt. Zo staat de toren al verder af van het bouwblokkenweefsel van de Cadixwijk. De schaduw van de toren zal bijna volledig over het watervlak van het Houtdok vallen en dus geen bewoners in de schaduw zetten.
Figuur 46: Schauwwerking, toren 80m hoog Bron: Eigen verwerking
Ook naar windimpact zal de toren slechts beperkte invloed hebben op de omliggende bebouwing. De impact van de toren op het omliggende plein dient onderzocht te worden bij het ontwerp ervan, aangezien deze effecten sterk afhankelijk zijn van het ontwerp van de toren zelf. Op basis van een eerste windsimulatie kan er windhinder verwacht worden. Daarom zal er in de procedure voor verkoop onder voorwaarde voor de toren een windstudie verplicht worden. De maatregelen die uit deze windstudie komen, zullen in de verkoopsvoorwaarden worden opgenomen. In de verkoopsbundel wordt er aangeven om deze maatregelen zoveel mogelijk deel te laten uitmaken van het ontwerp. Zo suggereert het ontwerpend onderzoek om de plint van de toren zo te ontwerpend dat deze kan voorzien in de opvang van valwind.
Figuur 47: Windsimulatie Bron: Masterplan Duurzaamheid Cadix, DaidalosPeutz
Op het vlak van mobiliteit worden er specifieke maatregelen opgenomen in de aanleg van de vervoersinfrastructuur van de Cadixwijk en bij de ontwikkeling van de site zelf via de verkoop onder voorwaarden. Voor deze locatie wordt een multimodale ontsluiting beoogd. Deze wordt uitdrukkelijk mee opgenomen in de ontsluitingsstructuur van de Cadixwijk als geheel (zie punt 2.6). Elementen van toepassing voor E1 zijn:
Figuur 48: Maquette kaai 38: solitair massief volume. Bron: Cel Ontwerpend onderzoek, Stad Antwerpen 2.5.6.2 Ontwerpprincipes Uit het ontwerpend onderzoek en uit de hier boven beschreven principes distilleert het RUP volgende uitgangspunten voor de voorschriften voor een toren op locatie E1:
Figuur 49: Profiel bebouwing bouwzone E1, voorschrift Ce2 Bron: eigen verwerking
2.6 Visie en concepten voor de wijkontsluiting 2.6.1 Ontsluitingstructuur In de ontsluitingsstructuur van de Cadixwijk wordt de rol van de verschillende straten in het Cadixraster gedifferentieerd. De Kattendijkdok Oostkaai wordt de hoofdontsluitingsas met een vrije trambedding. De rest van de wijk is in essentie homogeen als woonstraten met een snelheidsbeperking van 30km/u. Op de dokranden is enkel laden en lossen toegestaan, met uitzondering van de Kempisch dok Westkaai, waar de Binnenvaartstraat een straat blijft.
Het circulatieplan legt bijkomende maatregelen op. In het Cadixraster blijven alle straten wel woonstraten, maar er komen wel een aantal knippen in de circulatie: Enerzijds de knip in de Napelsstraat voor autoverkeer ter hoogte van het Cadixplein, en anderzijds een knip in de aansluiting van de Binnenvaartstraat, de Kempisch dok Westkaai en de Napelstraat op de Londenstraat. Deze maatregelen hebben tot gevolg dat doorgaand verkeer doorheen de woonstraten absoluut vermeden wordt.
Figuur 50: Wijkcirculatieplan. Bron: eigen verwerking.
Figuur 51: Verbindingen openbaar vervoer. Bron: eigen verwerking.
Figuur 52: Fiets- en voetgangers-verbindingen. Bron: eigen verwerking.
2.6.2 Openbaar vervoer Een van de elementen die aan de basis liggen van de opmaak van dit RUP is de uitbouw van een tramnetwerk op het Eilandje. Op het Eilandje worden twee lijnen voorzien, namelijk een tramlijn op de Rijnkaai als verlengde van de geplande Kaaitram en een tramlijn op de Londen-Amsterdamstraat als verlengde van de Leientram. Op de Cadixwijk wordt een aftakking van deze twee lijnen voorzien. Deze aftakking zal lopen doorheen de Kattendijkdok Oostkaai en in de eerste fase eindigen aan de Mexicobrug. Daar komt een keerlus. In een tweede fase wordt de tram doorgetrokken tot op het Mexico-eiland naar het nieuwe havenhuis.
Daarnaast plant de stad ook nog een derde tramlijn die voor het Eilandje bepalend is, namelijk de tramlijn naar Ekeren via de Noorderlaan. Op deze tramlijn zal op middellange termijn ook de Groene Singel-tram aansluiten (aan de IJzerlaan)
De Cadixwijk wordt op die manier bediend door verschillende lijnen en door 4 tramhaltes en een eindhalte in een straal van maximum 300m. De scholen en de publieke functies centraal in de wijk zullen het vlot bereikbaar zijn vanaf de halte midden in de Londenstraat en via de halte aan het Cadixplein. De toren aan het Houtdok is in een straal van circa 300 m bereikbaar vanaf de eindhalte aan de keerlus, via de nieuwe fietsbruggen over het Kempisch dok en het Asiadok (zie verder) met de halte op de Noorderlaan ter hoogte van de IJzerlaan en tenslotte via de halte ter hoogte van de kop Spoor Noord.
Voor de tram-assen in de Londen-Amsterdamstraat en de Kattendijkdok Oostkaai werden reeds inrichtingsplannen opgemaakt. In de Londen-Amsterdamstraat komt de tram in een vrije trambaan centraal in het profiel. Aan weerszijden komt een rijweg met afgescheiden fietspad en voetpad. De trambaan dient als een middenberm waardoor er enkel ter hoogte van de Nassaustraat en de Kattendijkdok Oostkaai een dwarsverbinding is voorzien. Ten behoeve van de vlotte doorstroming van de tram (in functie van een aangepaste bochtstraal en dit op vraag van de vervoersmaatschappij de lijn) worden de bouwblokken A5 en B6’ 3,75 meter ingekort ten opzichte van de bouwblokken in het BPA. In de Kattendijkdok Oostkaai komt de trambaan excentrisch in het profiel te liggen aan de zijde van het Douanegebouw. Dit maakt het mogelijk dat de nieuw op te richten bouwblokken langs het Kattendijkdok vlot ontsloten kunnen worden via de Kattendijkdok Oostkaai.
2.6.3 Fiets- en voetgangersverbindingen De Londen- Amsterdamstraat en de Kattendijkdok Oostkaai zijn de twee hoofdontsluitingsassen voor het fietsverkeer. Op de Londen- Amsterdamstraat wordt langs beide zijden een dubbelrichtingsfietspad voorzien om de omrijfactor voor fietsers te beperken en zo de veiligheid te verhogen. Op de Kattendijkdok Oostkaai worden enkelrichtingsfietspaden voorzien.
Het is nodig ook door de wijk aangename fietsassen aan te leggen, weliswaar gemengd met het gemotoriseerd verkeer. Dit kan door langs weerszijden van een aantal straten een strook van 1,50m in plattines of blauwe hardsteen aan te leggen in plaats van in kasseiverharding. Deze aanleg wordt voorzien in de Napelsstraat en de Madrasstraat. Zo zijn de belangrijkste publiekstrekkende functies (aan het Cadixplein, de SISA-school, het kinderdagverblijf en de toren) centraal in de wijk gelegen ook vlot met de fiets bereikbaar.
Om de barrière van de Kattendijkdok Oostkaai zoveel mogelijk weg te werken, is het belangrijk om goede oversteekplaatsen voor voetgangers te voorzien.
De wijk wordt voor de zwakke weggebruikers ook op vier plaatsen verbonden met de omliggende wijken en parken. Via de wijk van de Oude Dokken en de nieuwe fietsrug over de Leien komt er een fietsas recht tot in het park Spoor Noord. Maar ook via de Kempischdok zuidkaai wordt de Cadixwijk met Spoor Noord verbonden. de fietsverbinding moet dan wel onder de Noorderlaan door. In de huidige situatie kan dat vrij eenvoudig aan de skatebowl doordat de Noorderlaan daar op een viaduct ligt. Er zijn echter plannen om het viaduct te slopen en de Noorderlaan te verschuiven naar het dok. In dat scenario moet er een nieuwe veilige onderdoorgang komen. In het verlengde van de Madrasstraat voorzien we nog drie nieuwe fietsbruggen. Eén ervan over het Kattendijkdok richting Droogdokken/ Motevideo en twee aansluitende bruggen (over het Houtdok en het Asiadok) die het landhoofd van de toren verbinden met de Noorderlaan en de IJzerlaan. De eerste van deze twee bruggen wordt mee opgenomen in de verkoop onder voorwaarden van de toren (als last voor de ontwikkelaar) en de tweede zal worden gefinancierd binnen de 100% return van de Cadixwijk. (zie ook pagina 42 figuur 37 ter verduidelijking)
2.6.4 Parkeren Voor de Cadixwijk wordt een duurzame ontwikkeling vooropgesteld en dus ook een duurzame mobiliteit. Daarbij wordt zo veel mogelijk ingezet op openbaar vervoer, fietsers en voetgangers. Maar de auto blijft een belangrijk vervoersmiddel. De mobiliteitsstudie voor het Eilandje schetste de contouren voor de bereikbaarheid van de wijk. Enerzijds komt het er op aan de draagkracht van de wijk niet te overschrijden en dus de ontwikkelingen af te stemmen op het mobiliteitsprofiel; anderzijds komt het er op neer om de mobiliteit duidelijk te regelen. Ook voor de autobereikbaarheid werden principes opgesteld.
Wat de ontwikkeling op de Cadixwijk betreft, gaat het RUP uit van dezelfde te realiseren bruto-vloeroppervlakte van het BPA. Er komen dus geen ontwikkelbare oppervlaktes bij. Wel werden deze intern verschoven. De druk verhoogt dus niet in vergelijking met het BPA.
Bovendien werden er bijkomende maatregelen opgelegd:
3 VOORSCHRIFTEN 3.1 Afbakening grafisch plan Het plangebied wordt begrensd door:
3.2 Algemene voorschriften 3.2.1 Kader Algemene voorschriften zijn tot een strikt minimum beperkt.
De algemene voorschriften bevatten een verwijzing naar het uitgebreide plannenkader voor de ontwikkeling van het Eilandje en de Cadixwijk. De beleidsdocumenten uit het plannenkader kunnen door de vergunningverlenende overheid als informatieve documenten gehanteerd worden met het oog op het beoordelen van de vergunningsaanvraag in het kader van de goede ruimtelijke ordening en de stedenbouwkundige voorschriften voor het gebied. Het betreft het Masterplan Eilandje, het Beeldkwaliteitplan buitenruimte Eilandje-Antwerpen, het Waterplan, het Groenplan en het Beeldkwaliteitplan architectuur Eilandje-Antwerpen.
De bijzondere voorschriften bevatten de verklarende woordenlijst zoals deze bij alle RUP’s van de stad Antwerpen wordt toegevoegd. 3.2.2 Algemene toegankelijkheid In het kader van de toegankelijkheid van gebouwen en openbare ruimten wordt elke aanvraag tot vergunning die betrekking heeft op een publieke ruimte voor advies voorgelegd aan het Centrum voor toegankelijkheid Provincie Antwerpen (boomgaardstraat 22, bus 101, 2600 Antwerpen; t: 03/240.56.47 of www.provant. be, welzijn, toegankelijkheid) alvorens een stedenbouwkundige vergunning af te leveren. De aanvrager dient alle nodige informatie te verstrekken die nodig is om de toegankelijkheid te evalueren. Onder publieke ruimte wordt verstaan: de openbare en niet-openbare gebouwen die voor het publiek toegankelijk zijn, met inbegrip van de praktijken voor vrije beroepen, de openbare en niet-openbare wegen die voor het publiek toegankelijk zijn, alsook elk ander domein, infrastructuur, gebouw of plaats die voor het publiek toegankelijk is. 3.2.3 Bestaande gebouwen die niet beantwoorden aan de voorschriften Voor bestaande niet verkrotte constructies en concessies wordt er in het RUP een mogelijkheid gecreëerd om beperkte verbouwingswerken, verbouwingen binnen het bouwvolume, instandhoudingswerken, onderhoudswerken, veranderen van de uitbating zonder vermeerdering van volume of oppervlakte en gedeeltelijke afbraak toe te staan voor bestaande gebouwen die niet beantwoorden aan de bebouwings – en inrichtingsvoorschriften.
Voor bestaande niet verkrotte constructies en concessies wordt er in het RUP een mogelijkheid gecreëerd om beperkte verbouwingswerken, verbouwingen binnen het bouwvolume, instandhoudingswerken, onderhoudswerken en verenigbare nieuwe functies in monumenten toe te staan voor bestaande gebouwen die niet beantwoorden aan de bestemmingsvoorschriften. 3.3 Bijzondere voorschriften 3.3.1 Bestemming Het orthogonale stratenpatroon met een maat van ongeveer 100 meter deelt de Cadixwijk op in een raster van bouwblokken. Elk bouwblok wordt strikt afgebakend als een deelzone in het RUP.
Elk bouwblok krijgt eenzelfde, éénduidige bestemming: ‘Zone voor Centrumfuncties’. Deze bestemming wordt toegepast voor gebieden die gelegen zijn binnen de Harde Ruggengraat van de stad (s-RSA) en waar een combinatie van functies wordt nagestreefd. Over het algemeen vormt het ‘wonen’ de hoofdfunctie. Daarnaast zijn een aantal, aan het wonen verwante functies toegestaan zoals handel, horeca, kantoren, gemeenschapsvoorzieningen en culturele, recreatieve of sportieve voorzieningen.
Hoewel een gelijkmatig orthogonaal raster normaal elk bouwblok voorziet van dezelfde eigenschappen, zorgen specifieke elementen uit de context voor een duidelijk onderscheid tussen de verschillende bouwblokken wat maakt dat sommige bouwblokken meer geschikt zijn voor bijvoorbeeld het opnemen van kantoorfuncties of handelszaken dan andere. In het RUP wordt er geen verhouding tussen verschillende toegelaten functies vastgelegd. Wel worden er beperkingen opgelegd in de vorm van maximaal toegelaten vloeroppervlakten voor specifieke functies zoals horeca, handelszaken en/of kantoorruimten. De beperking wordt opgelegd op het niveau van het bouwblok of per individuele reca-, handelszaak en/ of kantoorruimte.
De open ruimte tussen de bouwblokken wordt bestemd als ‘Zone voor Publiek domein’. De zone is bedoeld voor de aanleg van openbare wegenis en aanhorigheden, publieke verblijfsruimtes en een openbaar vervoersbaan. 3.3.2 basisprincipes per deelzone Op basis van het ontwerpend onderzoek en in overeenstemming met het beschikbare plannenkader (Masterplan Eilandje, Beeldkwaliteitplan architectuur, BPA Eilandje) kunnen de bouwblokken opgedeeld worden in vijf deelzones, die elk resulteren in een specifiek artikel in het RUP.
Daarnaast worden nog één deelzone voorzien:
Figuur 53: 5 deelzones. Bron: eigen verwerking
1. Zone voor centrumfuncties - Hart (Ce1 - Hart)
2. Zone voor centrumfuncties - toren (Ce2 - toren)
Figuur 54: Profiel bebouwing bouwzone E1, voorschrift Ce2 Bron: Cel Ontwerpend onderzoek, Stad Antwerpen
3. Zone voor centrumfuncties - samengestelde bouwblokken Kattendijkdok (Ce3 - Kattendijkdok)
4. Zone voor centrumfuncties - samengestelde bouwblokken Houtdok (Ce4 - Houtdok)
5. Zone voor centrumfuncties - compacte bouwblokken (Ce5 - compact)
6. Zone voor Publiek Domein
Noot : over het algemeen gelden de zonegrenzen van de deelzones niet als verplichte voorgevelbouwlijnen, waardoor de toekomstige rooilijn niet noodzakelijk samenvalt met de zonegrens zoals weergegeven op het grafisch plan. Om voldoende flexibiliteit ten opzichte van de inrichting van het publiek domein te garanderen blijft de mogelijkheid open om in een volgende fase van uitvoering -bij de opmaak van het verkavelingsplan voor de bouwblokken- de voorgevelbouwlijn iets teruggetrokken in te tekenen ten opzichte van de aangeduide zonegrenzen van het RUP. Concreet heeft dit tot gevolg dat de breedtes van het publiek domein, zoals aangeduid op het grafisch plan moeten geïnterpreteerd worden als minimumbreedtes. De mogelijkheid blijft aldus bestaan om gedeelten van de aangrenzende bestemmingszones in te richten als publiek domein. Aanleg van doorsteken doorheen de bouwblokken, die na realisatie toegevoegd worden aan het publiek domein, zijn eveneens mogelijk. 3.4 Op te heffen voorschriften 3.4.1 Op te heffen Gewestplan voorschriften Bij de inwerkingtreding van het gemeentelijk ruimtelijk uitvoeringsplan Cadix worden de voorschriften van de bestemmingen van het Gewestplan nr. 14 Antwerpen (KB 03/10/1979), die binnen de begrenzing van het gemeentelijk ruimtelijk uitvoeringsplan liggen, opgeheven en vervangen door de voorschriften van het gemeentelijk uitvoeringsplan.
Volgende bestemmingen zijn terug te vinden in het plangebied: ‘woongebied’. Het KB van 28/12/72 definieert een woongebied als:
“De woongebieden zijn bestemd voor wonen, alsmede voor handel, dienstverlening, ambacht en kleinbedrijf voor zover deze taken van bedrijf om redenen van goede ruimtelijke ordening niet in een daartoe aangewezen gebied moeten worden afgezonderd, voor groene ruimten, voor sociaal-culturele inrichtingen, voor openbare nutsvoorzieningen, voor toeristische voorzieningen, voor agrarische bedrijven. Deze bedrijven, voorzieningen en inrichtingen mogen echter maar worden toegestaan voor zover ze verenigbaar zijn met de onmiddellijke omgeving.” 3.4.2 Op te heffen bestemmingsvoorschriften BPA Eilandje Voorliggend RUP betreft een herziening van het BPA Eilandje voor dat deel van het BPA dat gelegen is binnen de afbakening van het plangebied van het RUP.
Concreet worden volgende artikels van het BPA opgeheven: artikel 0 (algemene bepalingen), artikel 3(zone voor bebouwing type iii), artikel 5(zone voor bebouwing type v - samengestelde bouwblokken), artikel 6 (zone voor bebouwing type vi - strokenbouw), artikel 7 (zone voor bebouwing type vii - patiogebouwen); artikel 9 (zone voor representatieve bebouwing), artikel 11 (zone voor kantoren en stedelijke functies), artikel 14 (zone voor openbaar domein), artikel 15 (overlay voor winkels en horeca).
Deze artikels worden enkel opgeheven voor de zones die binnen het plangebied van het RUP gelegen zijn. Ze blijven dus wel van toepassing in de overige delen van het BPA. 3.5 Ruimteboekhouding 11,95ha van het plangebied is bestemd als ‘woongebied’ volgens het geldende Gewestplan. de bestemming ‘woongebied’ wordt opgeheven en vervangen door de bestemmingen ‘zone voor centrumfuncties’ en ‘zone voor Publiek domein’ volgens categorie 1: [wonen] van de gebiedsaanduidingen van de Vlaamse Overheid. 3.6 Probleemstelling en motieven voor de opmaak van een RUP met onteigeningsplan Om de Cadixwijk te voorzien van openbare groene ruimte, zoals het Masterplan voorziet, wordt de onteigening van het Douaneplein meegenomen in de opmaak van het RUP. De onteigening wordt niet opgesteld bij hoogdringendheid.“Dit plein zal een echt buurtplein worden, waar men rustig kan zitten maar waar kinderen ook kunnen spelen. Door zijn afmeting en contact met het dok is het een zeer open plein. Er kunnen ook verschillende plekken en sferen in worden gemaakt door het gebruik van straatmeubilair en speeltuigen, materialen (hard, zacht) en beplanting (gras, bomen). De ruimte rond het Douanegebouw zelf kan aansluiting zoeken bij dit publiek plein en de omringende straten, onder er volledig in op te gaan” 6 4 BIJLAGE 1: KAART FEITELIJKE EN JURIDISCHE TOESTAND 5 BIJLAGE 2: PLANNINGSCONTEXT 5.1 Ruimtelijke plannen met bindend kader 5.1.1 Gewestplan Het plangebied maakt deel uit van het Gewestplan Antwerpen (KB 3.10.1979). De Cadixwijk is volledig aangeduid als woongebied. 5.1.2 BPA Eilandje Voorliggend RUP betreft een gedeeltelijke herziening van het BPA Eilandje (goedgekeurd dd. 15 dec/2005). Het RUP valt volledig binnen de plangrenzen van het BPA.
Het Masterplan Eilandje fase 1 gaat ervan uit dat het Eilandje een voortzetting moet zijn van de binnenstad. Dit betekent dat er grootschalige stedelijke functies en een verweving aanwezig dient te zijn.
De verhouding hoe men deze functiemenging ziet heeft voorwerp uitgemaakt van menige discussie. Terwijl het Masterplan uitgaat van een 60/30/10 verhouding. d.w.z. 60% wonen, 30% kantoren en handel en 10% voorzieningen en cultuur wordt er in de richtinggevende “memorie van toelichting” van het BPA Eilandje op gewezen dat deze verhouding niet overal toepasbaar noch overal wenselijk is. De stedenbouwkundige voorschriften van het BPA Eilandje leggen een zeer flexibel kader op met een minimum van 50 % wonen, wat weinig garanties biedt naar levendige woonwijk.
Figuur 55: BPA Eilandje. Bron: Soresma. 5.2 Ruimtelijke beleidsplannen 5.2.1 Ruimtelijk Structuurplan Vlaanderen Binnen het Ruimtelijk structuurplan Vlaanderen werd Antwerpen, geselecteerd als grootstedelijk gebied, gepositioneerd binnen het stedelijk netwerk van de Vlaamse Ruit. Een stedelijk netwerk is een complementair en samenhangend geheel van stedelijke gebieden en van structuurbepalende elementen van het buitengebied die verbonden zijn door infrastructuren (wegen, spoorwegen, kanalen,…). Antwerpen vormt aldus één van de polen van een stedelijk netwerk dat internationale betekenis heeft omwille van het internationale karakter en de internationale rol van dit gebied. Volgens het RSV moet het stedelijk beleid volgende doelstellingen nastreven:
Er zijn ontwikkelingsperspectieven vooropgesteld voor de grootstedelijke gebieden zoals o.a. minimale woondichtheden, een differentiatie en verbetering van de woningvoorraad, een versterking van de multifunctionaliteit, het ontwikkelen van kantoren aan de knooppunten van openbaar vervoer, het afstemmen van voorzieningen op het belang van het stedelijk gebied, het bundelen van de kleinhandel en het behoud en de ontwikkeling van randstedelijke groengebieden. Er is in het RSV ook een specifiek beleid inzake stedelijke mobiliteit uitgewerkt.
RSV p.332 ‘Het is noodzakelijk de stedelijke gebieden te vernieuwen door het voeren van o.a. een meer dynamische stadsvernieuwing. De vernieuwing van verwaarloosde of onderbenutte terreinen is hiervan een essentieel onderdeel. Strategische projecten stimuleren andere actoren, waaronder huisvesting, om projecten op te zetten die de aantrekkelijkheid van het stedelijk wonen aantonen.’
De ontwikkeling van het Eilandje kan als een strategisch project beschouwd worden en voldoet aan de kenmerken vooropgesteld in het’ RSV p. 374
Ontwikkelen van stedelijke potenties, RSV p. 369: ‘Om in de bestaande toeristischrecreatieve aantrekkingspolen Antwerpen, Brugge, Gent de kwaliteit van de leefomgeving en de maatschappelijke en economische ontwikkelingsmogelijkheden van de eigen bevolking te behouden, is het wenselijk een in het stedelijk beleid geïntegreerde toeristische beleidsvisie te ontwikkelen. Aandacht moet gaan naar het ontwikkelen van minder bezochte toeristische potenties in en nabij de stedelijke gebieden’. 5.2.2 Ruimtelijk structuurplan provincie Antwerpen Binnen dit provinciaal structuurplan worden vier hoofdruimten onderscheiden: de Antwerpse Fragmenten, de Noorderkempen, de oostelijke netwerken en het netegebied. Antwerpen behoort uiteraard tot de Antwerpse Fragmenten. Elk van deze hoofdruimten werd verder uitgewerkt in deelruimten. Op die manier zijn 14 deelruimten afgebakend. De stad Antwerpen is onderdeel van de deelruimte ‘Grootstedelijk Antwerpen’.
Een ruimtelijk concept voor deze deelruimte vanuit de invalshoek van de provincie bevat volgende ruimtelijke principes of ordeningsbeginselen:
Rond Antwerpen zijn drie andere deelruimten gedefinieerd: de Antwerpse haven, het bebouwd perifeer landschap en de Antwerpse gordel.
Relevante aspecten voor de bijzonder plannen van aanleg voor het ‘Eilandje’:
5.2.3 strategisch Ruimtelijk Structuurplan Antwerpen Het s-RSA is een ruimtelijk toekomstbeeld voor de hele stad en werd in 2006 goedgekeurd. Het strategisch Ruimtelijk Structuurplan Antwerpen (s-RSA) vormt het kader voor het ruimtelijk beleid van de stad Antwerpen.
Het structuurplan is opgebouwd uit twee delen: het generieke beleid en het actieve beleid. Het generieke beleid geeft een stadsbrede visie weer op basis van 7 beelden die refereren naar het collectieve geheugen van de stad. Het actieve beleid geeft de projectmatige werking weer op basis van 5 strategische ruimtes.
De 7 beelden van het generiek beleid zijn waterstad, havenstad, ecostad, spoorstad, poreuze stad, dorpen en metropool en tenslotte megastad. Elk van deze beelden doet expliciet of impliciet uitspraken die zijn meegenomen in het Plan van aanpak Cadix.
De waterstad wil Antwerpen terug een link geven met het water. De ontwikkelingen op het ganse Eilandje en dus ook op de Cadixwijk zijn hier een directe doorvertaling van.
De ecostad doelt zowel op de algemene toepassing van duurzaamheid binnen de stad als op de specifieke doorvertaling naar de stedelijke ecologie. De aandacht die in het Plan van Aanpak uitgaat naar duurzaamheid is een gevolg van dit beeld. Ondanks dat de groene inrichting van de Cadixwijk terug te brengen is op het Beeldkwaliteitplan buitenruimte en het Groenplan is er ook een link naar het s-RSA daar deze twee plannen mee in acht werden genomen bij het opstellen ervan.
De havenstad wil contact zoeken met de haven en zo de link tussen de stad en diens haven versterken. Eén van de contactzones met het stedelijk gebied in transformatie is het Eilandje, en meer specifiek de Cadixwijk. Hier wordt een stedelijke omgeving met een sterke relatie tot de dokken en de Schelde vooropgesteld bij de ontwikkeling.
De spoorstad wil vooral de stad vertrammen en zo het openbaar vervoer op een zichtbare manier in de stad verder uitbouwen. Het Plan van aanpak bevat de aanleg van een tramlijn en geeft zo een directe uitvoering aan de spoorstad als vooropgesteld beeld van de stad.
De poreuze stad doelt op het in gebruik nemen van holtes in het stedelijk weefsel. Behalve een strategie ten aanzien van de bebouwde ruimte is dit ook een strategie ten aanzien van het groen in de stad.
Dorpen en metropolen is een meerledig beeld, waarbij het onderdeel polycentrische stad zich richt op het vernieuwen van het stedelijke weefsel en waarbij het Eilandje één van de grote bebouwbare gebieden is. Het kan dus dus een grote rol spelen bij het tot stand komen van een evenwichtige bebouwingstypologie en een goede mix van sociale groepen.
Het laatste beeld van het generiek beleid is de mega stad. Het drukt de positie uit van Antwerpen binnen de netwerkstad maar heeft weinig relevantie op niveau van de Cadixwijk.
Het actief beleid is opgebouwd uit vijf strategische ruimtes: harde ruggengraat, zachte ruggengraat, groene singel, lager netwerk en stedelijke centra en levendig kanaal. Het Eilandje maakt onderdeel uit van de harde ruggengraat. Het Eilandje moet specifiek het wonen in deze stedelijke zone aantrekkelijk maken door er een geïntegreerd gebiedsgericht project verder te ontplooien. Daar het structuurplan dateert van na de opmaak van de beeldkwaliteitplannen en het BPA Eilandje, vormden deze ook mee de basis voor de ontwikkelingen die het structuurplan vooropstelt binnen zowel het Eilandje als de Cadixwijk.
Specifiek stelt het s-RSA:
“De Cadixwijk kan ontwikkeld worden als een aangename woonomgeving met ondersteunende voorzieningen. Vooral in deze wijk zal worden ingezet op het creëren van een sociale mix. Bovendien zullen centraal in deze wijk, als aanvulling op de aanwezige scholen, gemeenschapsvoorzieningen (onderwijs, sport, openbare diensten, …) ingepland worden en dit in afstemming op de wijknoden van Oude Dokken, Cadix en Montevideo samen. Aan de dokranden worden de huidige bedrijfsgebouwen vervangen door bouwblokken naar analogie van de rest van het bebouwingsweefsel. Ter hoogte van de parking van het Douanegebouw wordt het Cadixplein, als groen parkachtig plein, aangelegd als groene long van de wijk. Ook hier zal de aanleg van een kwalitatief publiek domein als katalysator worden aangewend voor een duurzame wijkontwikkeling waar, naast de grotere randprojecten, ruimte is voor invulprojecten langs de binnenstraten. Het is belangrijk dat deze wijk in de toekomst bediend wordt met een tramlijn. Dit is onderwerp van verder onderzoek met de lijn.”
In de bindende bepalingen van het s-RSA wordt het gebied ‘Oude Dokken, Cadix- en Montevideowijk’ geselecteerd als te implementeren hefboomactie. Dit wil zeggen dat het stadsvernieuwingsproces in dit gebied moet uitgevoerd worden met als één van de doelstellingen ‘een kwalitatief openbaar domein inzetten als katalysator voor een duurzame wijkontwikkeling’.
Figuur 56: harde ruggengraat, strategisch Ruimtelijk Structuurplan Antwerpen. Bron: s-RSA. harde ruggengraat: strategische ruimte strategische projecten in de harde ruggengraat 5.3 Sectorale beleidsplannen 5.3.1 Hoogbouwnota De hoogbouwnota heeft als doel een kader te schetsen voor de realisatie van hoogbouwprojecten in Antwerpen. De opmaak van de hoogbouwnota was als bindende bepaling opgenomen in het s-RSA. De nota is een beleidsinstrument om hoogbouw initiatieven bespreekbaar te maken, te sturen en te begeleiden. Tegelijk heeft het een sensibiliserende en wervende doelstelling en wil een draagvlak creëren voor geschikte hoogbouw in Antwerpen.
De hoogbouwnota geeft een duidelijke rol aan hoogbouw in vijf strategische ruimtes van het s-RSA, namelijk de harde ruggengraat, de zachte ruggengraat, de groene singel, het lager netwerk en het levendig kanaal.
Voor de harde ruggengraat wordt het Eilandje specifiek geselecteerd als aandachts- en stimuleringsgebied voor hoogbouw (zoals reeds gesteld in het s-RSA). Specifiek heeft hoogbouw er een rol in het ontwikkelen van het waterfront, in het afwerken van de skyline aan de Schelde en als een duidelijke verdichtingstrategie in die stedelijke ruimtes. Op elk van deze drie aspecten speelt het RUP met de ontwikkeling van hoogbouw op E1 in.
Een belangrijke doelstelling van hoogbouw is het realiseren van verdichting. Dit draagt immers bij tot het verminderen van het congestieprobleem, zeker indien voor de toren een aangepaste bereikbaarheid werd opgesteld. In principe verdient elk initiatief dat bijdraagt tot een betere benutting van de reeds verstedelijkte ruimte aanbeveling. De hoogbouwnota erkent hierin de mogelijkheden van hoogbouw. Hoogbouw is een relatief begrip en afhankelijk van de omgeving. In sommige stadsdelen zal 25 meter overkomen als een hoog gebouw. In de meeste gebieden blijkt de grens van 40 meter bepalend te zijn. In een aantal wijken dient er hoger gebouwd te worden om van hoogbouw te spreken. In het geval van het Eilandje blijkt de minimumhoogte omwille van de bestaande en reeds geplande hoogbouw 60 meter te zijn.
Hoogbouw heeft een belangrijke visuele betekenis en daarom dient de locatie voor hoogbouw steeds vanuit verschillende perspectieven bekeken te worden. Een hoogbouwtoren kan een belangrijke visuele functie hebben omdat het stadsdelen kan markeren, omdat het zichtassen verduidelijkt en omdat het centra kan accentueren of creëren. De hoogbouw zoals die voorzien wordt in het RUP speelt duidelijk in op deze elementen door een locatie te kiezen die van op belangrijks stadsassen en zichtpunten duidelijk waarneembaar is. Tegelijk maakt deze toren geen zicht onmogelijk. Als solitaire toren verspert deze geen zichten of vista’s op ander belangrijke gebouwen of landschappen in de stad.
Van ver is een toren een landmark of een herkenningspunt. Van dichtbij is het een deel van de stad. De plint of de sokkel van het gebouw is de plek waar hoogbouw de stad raakt en dit bepaalt de levendigheid van het straatbeeld. De aansluiting van de hoogbouw op het maaiveld is een punt van zorg. Het RUP erkent deze opgave en stelt duidelijk dat de toren een levendige plint dient te hebben. Dit wordt gefaciliteerd door er niet enkel een kantoortoren van te maken, maar een mix aan functies te voorzien. Bovendien zal het ontwerp van de toren, de plint en het maaiveld (de publieke ruimte rond de toren) als één opgave in een verkoop onder voorwaarden opgenomen worden.
In navolging van het s-RSA duidt de hoogbouwnota het Eilandje aan als stimulansgebied voor hoogbouw. In de stimulansgebieden moet meer hoogbouw mogelijk zijn dan op andere plaatsen in de stad en heeft het zin om concentratiezones te creëren. Daarmee wordt gezocht naar plaatsen waar hoogbouw kan helpen om tot een grote verdichting en functiemenging te komen. Het Eilandje als stimulansgebied versterkt de relatie tussen stad en Schelde. De relatie ‘stad aan de stroom’ wordt er dus geaccentueerd. De hoogbouwnota is nog niet door het College van burgemeester en schepenen goedgekeurd. 5.3.2 Studie opdracht mobiliteit Eilandje De lopende studieopdracht, uitgeschreven door de stad Antwerpen, heeft betrekking op het Eilandje in Antwerpen en bestaat uit drie onderdelen:
Perceel 1: ontwerpmatige uitwerking van een netwerk voor openbaar vervoer dat het Eilandje beter moet verbinden met andere stadsdelen. Meer bepaald worden de potenties onderzocht van de doortrekking van één of meer tramlijnen naar of door het voormalig havengebied.
Perceel 2: ontwerpmatige uitwerking van de twee belangrijkste hoofdontsluitingsassen in het gebied: de Londen- / Amsterdamstraat en de Kattendijkdok Oostkaai.
Perceel 3: opmaak van een parkeerstudie voor het Eilandje fase 1.
De mobiliteitsstudie Eilandje (Libost – VectRis) voorziet in een tramlijnnetwerk dat het Eilandje als nieuw stadsdeel verbindt met de binnenstad en de andere wijken. Belangrijkste conclusies die werden goedgekeurd op de PaC dd. 15 mei 2008 zijn:
5.3.3 Masterplan Antwerpen De Vlaamse regering heeft dd 15 december 2000 beslist tot de opmaak van een Masterplan voor Antwerpen.
Het Masterplan Antwerpen is geen globaal mobiliteitsplan. Het wil korte termijnoplossingen bieden voor een groot deel van de mobiliteitsproblemen voor Antwerpen en omgeving. Het Masterplan biedt geen oplossing voor alle problemen, het beperkt zich tot ‘de prioriteiten der prioriteiten’.
Op 09 mei 2008 besliste de Vlaamse Regering de uitbouw van de stedelijke tramlijnen op het Eilandje onder te brengen in het project Brabo2 (heraanleg Leien 2de fase – tramlijn Ekeren) als uitvoering van de 1ste fase van het Masterplan Antwerpen. 5.3.4 Beschermde monumenten en landschappen Het Eilandje kent talrijke constructies en gebouwen die het stedelijk havenlandschap karakteriseren. Ze zijn beschermd vanwege hun historisch en industrieel – archeologische waarde.
Pakhuizen en magazijnen zijn typerend en nog talrijk aanwezig, vooral in de omgeving van de Oude Dokken (Godefriduskaai), maar ook in de overige delen van het Eilandje (Kaaien, Montevideo,…)
Daarnaast bestaat een groot deel van het beschermd erfgoed uit haveninfrastructuur: dokken (beschermde kaaimuren, droogdokken), sluizen en bijhorende infrastructuur zoals sluiswachterhuisjes, bruggen, pomphuizen, kranen,… .
Naast de vermelde beschermde monumenten wordt verwezen naar de inzichten en bevindingen gemaakt in de deelstudie ’beeldkwaliteitsplan – bebouwde ruimte –architectuurnota’.
Tabel 1: beschermde monumenten en landschappen grenzend aan het plangebied of gelegen in de Cadixwijk. Bron: VIOE
Volgens de lokale archeologische advieskaart van de stad Antwerpen ligt het projectgebied in archeologisch aandachtsgebied met adviesplicht van de stedelijke dienst archeologie. Een deel van het projectgebied is gelegen op de tweede omwalling (van 1811). Het Ravelijn noord, een uitbreiding van de versterkingsgordel, valt zelf volledig binnen het projectgebied. Dit voorwerk werd geslecht en de grachten werden gedempt bij de afbraak van de Spaanse omwalling op het einde van de 19de eeuw. Ondergrondse sporen zullen nog aanwezig zijn.
De historische waarde van de plek dient weerspiegeld te worden in de herontwikkeling van het gebied. Toekomstige projecten met ingreep in de bodem dienen op voorhand ter advies te worden voorgelegd aan de dienst archeologie van de stad Antwerpen. Op basis van hun expertise kunnen ze bekijken wat de beste opties zijn: vooronderzoek/werfbegeleiding/behoud in situ/opgraving/...
5.3.5 Statuut van de wegen en waterlopen Alle wegen gelegen in het plangebied zijn gemeentewegen. Binnen het plangebied zijn er geen waterlopen opgenomen binnen de atlas der waterwegen. 5.4 Overige relevante wetgeving en plannen 5.4.1 Stedenbouwkundige verordeningen Onderstaand wordt een overzicht weergegeven van geldende stedenbouwkundige verordeningen in het plangebied. Gebiedsgerichte RUP’ s zoals het RUP ‘Cadix’ kunnen nog wel, zoals voorzien in artikel 56 van het decreet, voor het grondgebied waarop ze betrekking hebben de bepalingen van de bestaande stedenbouwkundige verordeningen die daar strijdig mee zijn, van rechtswege opheffen.
Voor zover de voorschriften van het RUP de bepalingen van de verordeningen niet overschrijven, zijn ze van toepassing. 5.4.1.1Gewestelijke verordening hemelwaterputten Besluit van de Vlaamse regering van 1 oktober 2004 houdende vaststelling van een gewestelijke stedenbouwkundige verordening inzake hemelwaterputten, infiltratie-voorzieningen, buffervoorzieningen en gescheiden lozing van afvalwater en hemelwater bvr 1/10/2004 b.s. 8/11/2004 wijz. bvr 23/6/2006 b.s. 22/8/2006
De verordening bevat minimale voorschriften voor de lozing van niet verontreinigd hemelwater, afkomstig van verharde oppervlakken. Het algemeen uitgangsprincipe hierbij is dat hemelwater in eerste instantie zoveel mogelijk gebruikt wordt. In tweede instantie moet het resterende gedeelte van het hemelwater worden geïnfiltreerd of gebufferd, zodat in laatste instantie slechts een beperkt debiet vertraagd wordt afgevoerd. Ook de plaatsing van de overloop van de hemelwaterput en de infiltratievoorziening dient aan dit principe te beantwoorden. 5.4.1.2 Gemeentelijke bouw- en woningverordening De bouw- en woningverordening, goedgekeurd door de gemeenteraad van Antwerpen in zitting van 11 september 1984 en latere wijzigingen, is van kracht tenzij anders vermeld in onderhavige voorschriften. De bouw- en woningverordening, beter gekend als de ‘bouwcode’ is momenteel in herziening gesteld. 5.4.1.3 Gemeentelijke stedenbouwkundige verordening kantoren De stedenbouwkundige verordening kantoren (SVK) werd opgesteld om de verdere groei van grootschalige kantoorontwikkelingen (>1.500m²) op het grondgebied van de stad Antwerpen te concentreren in de daarvoor geschikte en in het s-RSA aangeduide gebieden. Met de SVK wil de stad de ongebreidelde ontwikkeling van grootschalige kantoren buiten voldoende ontsloten gebieden een halt toeroepen.
Het Eilandje/luchtbal station, inclusief de volledige Cadixwijk, is één van de vier afgebakende gebieden op het Antwerpse grondgebied waarbinnen grootschalige kantoorontwikkelingen (>1.500m²) mogelijk zijn.
De SVK werd opgesteld op basis van een uitgebreid onderzoek, weergegeven in de kantorennota en het s-RSA. De kantorennota Antwerpen werd in april 2005 door de stad Antwerpen in samenwerking met VOKA -kamer van koophandel Antwerpen-Waasland gepubliceerd. Deze kantorennota legde de basis voor het verdere kantoorbeleid in Antwerpen. in het strategisch Ruimtelijk structuurplan Antwerpen (s-RSA) werden de grote lijnen van deze kantorennota geïntegreerd.
De stedenbouwkundige verordening kantoren (SVK) werd tot op heden nog niet goedgekeurd. de achterliggende visie, zoals geformuleerd in de kantorennota en het s-RSA werd wel al goedgekeurd. De SVK werd in 2008 door het college van burgemeester en schepenen en door de gemeenteraad goedgekeurd en ligt nu bij de bestendige deputatie ter goedkeuring voor. 5.4.2 Bestuursakkoord 2007-2012 De algemene visie van het bestuursakkoord is: “Antwerpen wil een aantrekkelijke stad zijn om te wonen of te bezoeken. Daarom wil het stadsbestuur samen met de districten zwaar blijven investeren in de kwaliteit van stedenbouw in al zijn vormen: de ontwikkeling van nieuwe wijken en de opleving van bestaande stadsdelen, de organisatie van het verkeer, de inplanting van openbare gebouwen met architecturale kwaliteit, de aanleg van pleinen, parken en plantsoenen, en van kleine en grote straten.”
Om deze visie waar te maken vormt het strategisch Ruimtelijk Structuurplan Antwerpen de basis van de verdere uitwerking het bestuursakkoord. Dit is ook logisch, daar het structuurplan het juridisch kader is voor het ruimtelijk beleid van de stad. Het bindende gedeelte van dit plan bevat 15 te realiseren hefboomacties. Het Eilandje en meer bepaald de wijken Oude Dokken, Montevideo en Cadix vormen het voorwerp van één van deze hefboomacties. Met dit project en de andere opgenomen hefboomacties wenst het beleid grote stadsprojecten op te leveren die garant staan voor kwalitatieve stedenbouw en architectuur, kwalitatief ingericht openbaar domein en duurzaam groen.
Naast de gebiedsgerichte uitspraken doet het bestuursakkoord ook stadsbrede uitspraken die van tel zijn binnen de Cadixwijk.
Naar mobiliteit wordt er algemeen gesteld dat de stad bereikbaarder moet worden: te voet, met de fiets en met het openbaar vervoer. Om dit te bekomen moeten de fietsers en voetgangers zich veilig en comfortabel kunnen bewegen. Ter ondersteuning van deze gedachte dienen er meer fietsenstallingen voorzien te worden in wijken waar er veel rijhuizen en appartementen zijn. Tenslotte wil men meer tramlijnen aanleggen tijdens deze legislatuur.
Toch moet de stad ook met de auto bereikbaar blijven, daarom wil men het parkeerplan evalueren en optimaliseren. Tevens wil men autodelen versterken en dan vooral in de nieuwe stadsprojecten.
Ten aanzien van duurzaamheid wil Antwerpen een voorbeeldige milieustad zijn en bij de verschillende facetten van het bestuur (van stadsontwikkeling over aanbestedingen tot huisvesting en organisatie van het eigen vervoer en dat van het personeel,…) rekening houden met ecologische criteria.
Met deze algemene en gebiedsgerichte ambities wil de stad Antwerpen een aangename stad zijn voor gezinnen in alle mogelijke samenstellingen. Daarenboven wil het stadsbestuur blijven ijveren voor een betaalbare en comfortabele woning voor al deze mensen. Toch wil de stad de komende jaren in de eerste plaats extra inzetten op één doelgroep: het is voor de toekomst van de stad van groot belang dat gezinnen met kinderen in de stad blijven wonen. Of, nog ambitieuzer, dat deze gezinnen terug in de stad komen wonen. De stad wil het woningaanbod opvoeren met grote projecten voor stadsvernieuwing, en met bijkomende privé-woningen en sociale woningen (waar het huidige gemiddelde van sociale huurwoningen niet is bereikt). Antwerpen bestrijdt sociale segregatie in het wonen en streeft naar sociale vermenging door sociale woningen, betaalbare huizen en duurdere woningen zoveel mogelijk te mengen. Het stadsbestuur erkent de noodzaak aan bijkomende sociale huisvesting in Antwerpen. Antwerpen wil dat er meer sociale koopwoningen op zijn grondgebied worden aangeboden. De sociale woningbouw moet door de kwaliteit van concept en architectuur een meerwaarde betekenen voor de buurt. kleinschaligheid moet de norm zijn. 5.4.3 Masterplan en beeldkwaliteitplannen Eilandje 5.4.3.1Masterplan Eilandje fase 1 Het Masterplan Eilandje gaat uit van een aantal strategische interventies om een levendige en leefbare stadswijk te creëren. Vooreerst wordt bijzondere aandacht besteed aan de kwalitatieve uitbouw van het publieke domein met de vele dokken en watervlakken als een belangrijk onderdeel ervan. De realisatie van een jachthaven in het willemdok en de geplande heraanleg van de kaairanden langs de Oude Dokken kaderen hierbinnen.
Verder wil het Masterplan Eilandje de historische en maritieme identiteit van dit historische havengebied benadrukken. Vandaar dat ingezet is op de bescherming van monumenten en beeldbepalende gebouwen die geherprogrammeerd worden naar wonen-, kantoren-, culturele en wijkondersteunende functies. Nieuwe invulprojecten rond de Oude Dokken moeten de geest ademen van de historische pakhuizen en depots. Het beschermde Sint-Felixpakhuis is zodoende gerenoveerd als stadsarchief en rond de Oude Dokken zijn de voorbije jaren diverse loftprojecten gerealiseerd in de bestaande en nieuwe gebouwen.
Het Masterplan Eilandje definieert tevens een culturele noord-zuidas die centraal over het Eilandje loopt en het gebied linkt met de historische binnenstad. Langs deze as worden culturele stapstenen uitgezet, zoals de realisatie van het Museum aan de Stroom (MAS) op de Hanzestedenplaats.
De oost-west gerichte Londen-Amsterdamstraat vormt de belangrijkste wijkontsluitingsweg vanaf de Italiëlei. De geplande heraanleg voorziet een verblijfsboulevard met centrale trambaan waarlangs de vestiging van plaatselijke winkels en horeca kan worden gestimuleerd.
Om deze globale visie verder thematisch te detailleren werden beeldkwaliteitplannen goedgekeurd. Het betreft het BKP voor de buitenruimte (atelier JPLX), het BKP voor de architectuur (atelier JPLX), het Waterplan (Urban Urhahn design) en het Groenplan (michel desvigne). Hier worden meer in detail spelregels vastgelegd voor de aanleg van het publieke domein, groenvoorziening, bebouwing en functionele programmatie van de dokken. In het Groenplan wordt gekozen voor aanleg door middel van boomgroepen die verspreid worden over de dokranden omdat klassieke laanbeplantingen te transparant zijn om een antwoord te kunnen bieden op de schaalgrootte van de open ruimte op het Eilandje. 5.4.3.2 Beeldkwaliteitplan voor de Buitenruimte Het Beeldkwaliteitplan Buitenruimte geeft aan hoe de publieke ruimte op het Eilandje in de toekomst zal evolueren. Zo moet bijvoorbeeld elke heraanleg van een straat een variatie worden op hetzelfde thema, met heel wat ruimte voor interpretatie. Zo worden de unieke eigenschappen van het Eilandje in de verf gezet.
Het beeldkwaliteitplan buitenruimte bevat heldere visierichtlijnen voor de vormelijke herinrichting van straten, pleinen en dokranden. Ook hier moet het typische karakter van het Eilandje met al haar ruwheid en éénvoud duidelijk uitspringen. Het Buitenruimteplan doet uitspraken over thema’s als verlichting, terrassen, meubilair en kunst. De twee onderdelen die het meest in het oog springen zijn groen en verkeer. Omdat groen in detail is uitgewerkt in het Groenplan, gaan we hier dieper in op het onderdeel verkeer.
Het voornoemde typische karakter van het Eilandje zorgt ervoor dat het een bijzondere variant is in het stedelijke weefsel. Het is belangrijk om door middel van programmatie en ontsluiting het gebied beter op het weefsel te enten ten gunste van een volwaardige wisselwerking tussen deel en geheel. Het maritiem, industrieel en landschappelijk karakter zijn een belangrijke parameter bij de ontwikkeling.
Het leven moet vorm krijgen door de eigenheid van de site en niet omgekeerd; geen vooropgestelde modellen die vreemd zijn aan de plek; bv. het maritiem aspect mag geen disneyficatie teweeg brengen.
5.4.3.3 Beeldkwaliteitplan voor de Architectuur Het Beeldkwaliteitplan Architectuur geeft een visie op de ontwikkeling van de bestaande en de toekomstige bebouwing op het Eilandje. Het plan biedt een stevig kader zodat private en publieke bouwplannen eraan getoetst kunnen worden. De voormalige havenactiviteiten hebben de buurt een eigen karakter gegeven met een sterke sociale en culturele geladenheid. Renovatie- en nieuwbouwprojecten moeten zoveel mogelijk binnen de authentieke sfeer van het Eilandje passen. Een belangrijk aspect is bijvoorbeeld het gebruik van specifieke materialen zoals kasseien, staal, baksteen en hardsteen. Zij zijn typisch voor het Eilandje omdat ze een gevoel van éénvoud en ruwheid creëren.
Het Beeldkwaliteitplan Architectuur bevat een duidelijke strategie voor nieuwe bebouwing. Het bevat een aantal concrete spelregels waaraan de architectuur van nieuwbouwprojecten moet voldoen. Typerend voor het Eilandje zijn onder meer de vele invulprojecten, de imposante torens op Kattendijkdok westkaai en de bebouwing van de randen van de Cadixwijk. Het Beeldkwaliteitplan Architectuur is voor al deze projecten een stevige houvast. Monumenten zoals de pakhuizen, sluizen, bruggen en historische kranen zijn sporen van de rijke geschiedenis van het Eilandje. Deze monumenten bepalen voor een groot stuk het uitzicht van het Eilandje en dus moet er zorgvuldig mee worden omgesprongen. 5.4.3.4 Beeldkwaliteitplan, het Groenplan Het Eilandje ondergaat een transformatie van industriële site tot levendig stadsdeel. Omwille van de grootte van deze verandering is dit een unieke kans om een strategie voor landschapsaanleg te ontwikkelen voor heel het gebied. De uitdaging hierbij is groen te introduceren in een wijk die nooit groen heeft gekend. Een nieuw stadsdeel met voornamelijk een woonfunctie is immers ondenkbaar zonder groen. Het Groenplan bestaat uit vijf bouwstenen die samen visueel één geheel vormen:
Er werd gekozen voor boomgroepen in plaats van voor losstaande bomen omdat die in het niets verzinken op de weidse kaaivlaktes op het Eilandje. Om alles zo natuurlijk mogelijk te houden komen er soorten die in dit gebied van nature thuis horen. Op de grond komen vooral bodembedekkers. Als de boomgroep toegankelijk moet zijn, kan de bodem ook aangelegd worden met platinnes of kasseien, zoals de omringende verharding, maar dan met groene voegen. Dit principe is al toegepast bij de heraanleg van de kades rond de Oude Dokken.
Het Eilandje ligt vlak naast park Spoor Noord en heeft daarmee meteen een groene long in de onmiddellijke omgeving. Op het Eilandje zelf wil de stad op nog twee andere plekken parken voorzien. Zo zal het Cadixplein, als groen parkachtig plein, het groene hart vormen van de nieuwe Cadixwijk. Op langere termijn plant de stad ook een groot park in het uiterste noorden van het Eilandje op Droogdokken-eiland. Dit laatste behoort tot de tweede fase van het Masterplan. 5.4.3.5 Beeldkwaliteitplan, het Waterplan Het Waterplan vormt een belangrijke aanvulling op het Masterplan. Het accent ligt hier op het verder uitbouwen van het maritieme karakter. De havenbekkens blijven behouden en krijgen maritieme functies: een commerciële havenfunctie, een toeristisch-recreatieve functie of zelfs een woonbestemming. Het water is de sfeerdrager van het nieuwe Eilandje en moet vanaf het land zichtbaar zijn.
Het Waterplan wil een bijzondere ambiance creëren die het Eilandje weer tot een betekenisvolle plek in Antwerpen maakt. De activiteiten op en aan het water moeten daarom zoveel mogelijk aansluiten bij de karakteristieken van het gebied en niet een opzichzelfstaand item worden. Het waterprogramma van het Eilandje moet voor iedere Antwerpenaar iets te bieden hebben. Cultuur en experiment voor de liefhebber, maar ook vissen, eten en drinken, aan boten klussen, zonsondergangen en spectaculaire waterprogramma’s krijgen een plaats op het Eilandje.
Stroom van activiteiten De komst van een jachthaven in het willemdok in 2000 was één van de eerste waterprojecten op het Eilandje. Daarnaast beweegt er op dit moment nog heel wat op en rond het water:
5.4.3.6 Plan van aanpak Cadixwijk Ondanks het zeer uitgebreide planningskader voor het Eilandje (zie boven), bestond nog de noodzaak aan een integrerend raamdocument dat specifiek voor de gebiedsontwikkeling van de Cadixwijk de verschillende ruimtelijke, functionele en organisatorische aspecten afweegt. Daarom werd de integrale duurzame gebiedsontwikkeling voor de Cadixwijk verder geconcretiseerd in een ‘Plan van aanpak Cadixwijk’. Het Plan van aanpak bestaat in concreto uit de weergave van de plannings- en beleidscontext, functioneel en sociaal onderzoek naar wijkontwikkeling, een functioneel programma en een ruimtelijk scenario voor de Cadixwijk, ontwerpend onderzoek, een fasering en timing van de gebiedsontwikkeling, een balans tussen kosten en opbrengsten en een projectorganisatie annex exploitatievorm om de ontwikkeling te sturen en te organiseren.
Het ruimtelijk scenario uit het Plan van aanpak werd verder uitgewerkt d.m.v. ontwerpend onderzoek en geconcretiseerd in een Richtnota Cadix (goedgekeurd door het college dd. 24 oktober 2008), die in grote lijnen de onderdelen die vereist worden in het kader van de opmaak van een ruimtelijk uitvoeringsplan omvat. Het RUP zal daarom maximaal putten uit het richtnota Cadix. sommige delen worden integraal overgenomen. 5.4.3.7 Masterplan duurzaamheid Cadix Het plan van aanpak Cadixwijk Eilandje legt de krachtlijnen voor de gefaseerde gebiedsontwikkeling van de Cadixwijk op het Eilandje vast. Het plan van aanpak voor de Cadixwijk hecht naast sociale mix en ruimtelijke kwaliteit veel belang aan duurzaamheid en ecologie. De implementatie van maatregelen die leiden tot de uitbouw van een duurzamere wijk moeten goed afgewogen worden. Er moet een evenwicht worden gevonden tussen milieutechnisch haalbare, maatschappelijk gewenste en bestuurlijk gewaarborgde kwaliteit.
Het plan van aanpak voor de Cadixwijk, Eilandje, verankert het streven naar een duurzame wijk met duurzame gebouwen. Er wordt dus zowel gezocht naar duurzaamheid op wijkniveau, bouwblokniveau als op gebouwniveau. In het plan van aanpak werden al enkele krijtlijnen omtrent duurzaamheid uitgezet. Vooraleer te kunnen overgaan tot de opname van duurzaamheidsmaatregelen in de verschillende plandocumenten (verkavelingsplan en verkoop onder voorwaarden) is er een meer deskundige en praktische studie nodig. In het Masterplan duurzaamheid Cadix worden de potenties op vlak van duurzaamheid van het ontwikklingsproject Cadixwijk, aan de hand van een objectiverende methode geëvalueerd. Het Masterplan zal deze potenties in kaart brengen en nagaan hoe ze deze kunnen gerealiseerd krijgen binnen de economische en operationele randvoorwaarden van het project. Het eindrapport vormt een instrument dat concreet zal toestaan om de realisatie van de duurzaamheidsdoelstellingen doorheen de verschillende projectfasen te implementeren en op te volgen.
6. BIJLAGE 3: WATERTOETS 6.1 Beschrijving referentiesituatie Het projectgebied Cadixwijk ligt in een waterrijk gebied. Ongeveer 0,5 kilometer ten westen van het projectgebied loopt de Schelde. De Cadixwijk wordt langs 3 van de vier zijden omgeven door dokken. De Cadixwijk vormt een kunstmatig opgehoogd en genivelleerd stuk land, dat deel uitmaakte van de 19de eeuwse havenontwikkeling van Antwerpen. Oorspronkelijk was het gebied een moerassige zone, gelegen nabij de monding van het Schijn in de Schelde. Door de ontwikkeling van de Antwerpse haven is deze natuurlijke waterloop echter omgeleid rondom het havengebied. In het plangebied zijn geen relicten meer aanwezig van deze waterloop.
Het waterpeil van de dokken wordt op een kunstmatige wijze op peil gehouden. Overstromingsgevaar vanuit de Schelde wordt tegengegaan door de waterkering langs de Schelde. De waterkering wordt in het kader van het geauctaliseerd sigmaplan verhoogd evenals de waterkerende sluisdeuren die toegang verlenen tot de dokken van het Eilandje.
Alle watertoetskaarten werden geraadpleegd: de hellingenkaart, de kaart met erosiegevoelige gebieden, de winterbed-kaart, de kaart met overstromingsgevoelige gebieden, de kaart met grondwaterstromingsgevoelige gebieden en de kaart met infiltratiegevoelige bodems. De meest relevante watertoetskaarten voor het studiegebied worden hieronder besproken.
Uit de kaart met overstromingsgevoelige gebieden kan worden afgeleid dat het projectgebied niet overstromingsgevoelig is.
Figuur 57: Overstromings-gevoelige gebieden.
Figuur 58: Gebieden die gevoelig zijn voor grondwaterstroming.
De kaart met de gebieden die gevoelig zijn voor grondwaterstroming werd opgemaakt om te kunnen nagaan in welke gebieden er minder of meer aandacht moet uitgaan naar de effecten van ingrepen op de grondwaterstroming. Met grondwaterstroming wordt vooral de laterale beweging van grondwater doorheen de ondergrond en de toestroming door kwel bedoeld. Voor de watertoets, die onder meer van belang is voor het evalueren van geplande bouwwerken, gaat de aandacht in de eerste plaats uit naar de ondiepe grondwaterstroming. Deze stroming kan worden beïnvloed of verstoord door ondergrondse constructies: tunnels, schachten, kelders, ondergrondse garages, damwanden, kwelschermen en dergelijke. Voor dergelijke constructies zijn meestal ook uitgravingen nodig, en vaak gaat de aanleg of de instandhouding ervan ook gepaard met het onttrekken van grondwater door drainering, tijdelijke bemaling of permanente bemaling. Ingevolge de vele watervlakken in de nabijheid van het projectgebied is het volledige projectgebied gelegen in een zone die zeer gevoelig is voor grondwaterstroming (type 1). Wanneer in deze zone ondergrondse constructies gebouwd worden met een diepte van meer dan 3 m of een horizontale lengte van meer dan 50 m, dient advies aangevraagd te worden bij de bevoegde adviesinstantie.
Bij de oprichting en constructie van de gebouwen en gerelateerde ondergrondse constructies (parkings) dient extra aandacht uit te gaan naar deze (grond) waterproblematiek. Het risico is reëel dat men zeer sterk moet bemalen waardoor verzakkingen in de omgeving kunnen optreden. Het opstellen van een retour-bemaling is hiervoor een mogelijke oplossing. Bij de vergunningverlening moet geval per geval de toestand in een bouwtechnische studie onderzocht worden. Aandachtspunt in dit onderzoek is ondermeer het nagaan van de stabiliteit en de waterdichtheid van de bestaande kaaimuren.
Figuur 59: infiltratiegevoelige gebieden.
De kaart met infiltratiegevoelige gebieden toont voor het ganse plangebied niet infiltratiegevoelige bodems. Dit wil zeggen dat ze niet geschikt zijn voor infiltratie. De reden voor hun ongeschiktheid voor infiltratie ligt waarschijnlijk in het feit dat het plangebied volledig verhard en/of bebouwd is.
Momenteel is het plangebied voorzien van een gemengd rioleringsstelsel. hemelwater en afvalwater worden gemend afgevoerd via de Royerssluis naar de RWZI Kielsbroek gelegen ten zuiden van het stadscentrum op enkele kilometers van het plangebied.
Er zijn evenwel plannen (maken geen deel uit van voorliggend RUP!) om het plangebied op termijn af te koppelen en te voorzien van een gescheiden rioleringsstelsel. 6.2 Het plan De realisatie van het RUP brengt geen noemenswaardige toename van de verharde oppervlakte met zich mee (het plangebied is reeds volledig verhard). Goedkeuring van het RUP zal eerder leiden tot een beperkte afname van de verharde oppervlakte (creatie van open, groene binnengebieden in sommige bouwblokken, aanleg van plantvakken op het openbaar domein).
Het plan voorziet ook dat voldaan wordt aan de normen vastgelegd in de geldende gewestelijke stedenbouwkundige verordening m.b.t. de opvang en afvoer van hemelwater.
De ruimtelijke regie op de gebiedsontwikkeling van de Cadixwijk door AG Stadsplanning - Ag Vespa, stelt de stad in staat om bijkomende maatregelen omtrent het integraal waterbeheer in het plangebied op te leggen in het kader van verkavelingsplannen en/of verkoop onder voorwaarden. Parallel aan de opmaak van dit RUP loopt een duurzaamheidsstudie waarin gebiedsgerichte voorstel op maat zullen worden ontwikkeld voor het realiseren een duurzame wijk en dit op het niveau van de wijk, het bouwblok als de individuele kavel of gebouw. 6.3 Beschrijving en beoordeling effecten Conform artikel 8 van het decreet inzake integraal waterbeleid moet het RUP in het kader van de planvorming en het vergunningenbeleid getoetst worden op de watergerelateerde aspecten. 6.3.1 Watertoets op planniveau Een eerste toetsing gebeurt op het planningsniveau.
Zoals reeds gesteld ligt het plangebied Cadix niet in een recent overstroomd gebied of in een risicogebied voor overstromingen.
Het volledige plangebied is gelegen in een zone die zeer gevoelig is voor grondwaterstroming (type 1). Wanneer in deze zone ondergrondse constructies gebouwd worden met een diepte van meer dan 3 m of een horizontale lengte van meer dan 50 m, dient advies aangevraagd te worden bij de bevoegde adviesinstantie.
De kaart met infiltratiegevoelige gebieden toont voor het ganse plangebied Cadix niet infiltratiegevoelige bodems. Dit wil zeggen dat de bodem in het plangebied niet geschikt is voor infiltratie.
In deze fase kan reeds gesteld dat in de geplande situatie:
6.3.2 Watertoets op projectniveau Een tweede toetsing situeert zich op het inrichtings- en kavelniveau en gebeurt in een latere fase, wanneer meer nauwkeurige technische informatie beschikbaar is met betrekking tot de uitvoering van de diverse bouwwerken. Dit situeert zich op het vergunningenniveau, in het kader van de aanvragen van de vereiste stedenbouwkundige vergunningen.
Indien bemaling noodzakelijk is voor de aanleg van ondergrondse constructies, zal om de stabiliteit van de nabijgelegen weginfrastructuur niet in het gedrang te brengen, voor de concrete bouwprojecten waarbij bemaling nodig is, een technische studie moeten uitwijzen of maatregelen nodig zijn om de stabiliteit te garanderen. Conform art. 8 van het decreet integraal waterbeleid moet deze informatie voor concrete projecten aangeleverd worden bij de aanvraag van de stedenbouwkundige vergunning. 7 BIJLAGE 4: MILIEUBEOORDELING Voorliggend RUP werd onderworpen aan een onderzoek tot planMER-plicht. Hiervoor werd een ‘screeningsnota’ door Arcadis opgesteld en ter advies aan verschillende instanties voorgelegd.
De bijlage omvat de screeningsnota en een samenvatting van de adviezen die door de verschillende instanties werden verleend. Voorts wordt aangegeven welke opmerkingen aanleiding geven tot verdere verdieping van het onderzoek en hoe hiermee wordt rekening gehouden in het RUP. 7.1 screeningsnota De screeningsnota wordt als aparte bijlage toegevoegd aan de toelichtingsnota 7.2 Samenvatting adviezen
Naar aanleiding van de adviesronde verbonden aan de planMER screening werden, in twee adviesrondes, door de verschillende instanties adviezen verleend. Onderstaande tabel bevat de samenvatting van deze adviezen.
Gezien bovenstaande samenvatting kan er geconcludeerd worden dat de aannames uit de planMER screeningsnota correct werden bevonden door de verschillende adviesverlenende instanties. Wel waren er enkele opmerkingen waarmee in het planproces rekening dient gehouden te worden. Sommige van de opmerkingen zijn ondertussen als verwerkt.
Tabel 2: samenvatting adviezen. Bron: screeningsnota PlanMER
7.3 Screeningsnota
1 Inleiding In het kader van het planproces voor de opmaak van een gemeentelijk ruimtelijk uitvoeringsplan ‘Cadix’ te Antwerpen dient, gelet op het op 1 december 2007 in werking getreden plan-MER decreet 1 en uitvoeringsbesluit 2 een bijkomende toetsing (screening) te gebeuren naar de noodzaak tot een milieubeoordeling van voorliggend plan (i.e. plan-MER plicht). In toepassing van het decreet dienen overheden immers na te gaan of de plannen die zij opstellen, binnen de werkingssfeer van het decreet vallen en of een milieubeoordeling dient te gebeuren. Het beoogde gemeentelijk RUP omvat een deel van het strategisch stadsontwikkelingsproject ‘Cadixwijk’ op het Eilandje te Antwerpen en kadert in de visie voor dit gebied (oa masterplan Eilandje). Het gemeentelijk RUP heeft tot doel de inrichting van het stedelijk woonproject nader vast te leggen. Het RUP houdt een gedeeltelijke herziening in van de inrichting van het woongebied als reeds goedgekeurd in het BPA ‘Eilandje – deel Cadix’ d.d. 15 december 2005.. Het voorwerp van RUP bestaat erin de Cadixwijk verder te ontwikkelen als stedelijke woonwijk en via een tramlijn te verbinden met de binnenstad en andere wijken. De aanleiding tot het RUP is de uiteindelijke realisatie van de gewenste ruimtelijke structuur van de stad Antwerpen als actie volgend uit het strategisch ruimtelijk structuurplan Antwerpen (S-RSA) en bestaat er in hoofdzaak in:
Vooraleer kan worden overgegaan tot de formele RUP-procedure en vaststelling van het plan, dient duidelijkheid te bestaan over de plicht tot opmaak van een plan-MER. Indien zou blijken dat voor het beoogde plan een plan-MER opgemaakt moet worden, dient immers de plan-m.e.r. procedure te worden opgestart en het resulterende plan-MER te worden goedgekeurd ten laatste vóór de voorlopige vaststelling van het ontwerp van RUP. Voorliggende nota heeft als doel het beoogde gemeentelijk RUP, meerbepaald de inrichting van een deel van de Cadixwijk op het Eilandje te Antwerpen, aan een screening tot plan-MER plicht te onderwerpen. In het bijzonder dient een onderzoek naar aanzienlijke milieueffecten te gebeuren.
initiatiefnemer
procedure onderzoek tot milieueffectrapportage
De toetsing of tot een opmaak van een plan-MER dient te worden overgegaan, gebeurt aan de hand van voorliggende zogenaamde ‘screeningsnota’. Deze nota dient conform de bepalingen van het plan-MER decreet en uitvoeringsbesluit een procedure te doorlopen ter raadpleging van verschillende instanties. Deze procedure wordt het ‘onderzoek tot milieueffectrapportage’ genoemd. De initiatiefnemer van het plan dient op eigen initiatief welbepaalde instanties voor advies te raadplegen. De selectie van deze instanties gebeurt op basis van de bijlage bij het uitvoeringsbesluit (art. 3 §1). De initiatiefnemer kan buiten deze instanties, nog andere instanties raadplegen waarvan hij het advies nuttig acht. De instanties die een verzoek tot raadpleging hebben ontvangen, bezorgen hun advies uiterlijk binnen een termijn van 30 dagen na de datum van ontvangst van het verzoek, door betekening of tegen ontvangstbewijs aan de initiatiefnemer. Vervolgens neemt de bevoegde dienst MER binnen een termijn van 30 dagen na ontvangst van de documenten, een beslissing of al dan niet voor het beoogde plan een plan-MER opgemaakt moet worden. In voorkomend geval dat het voorgenomen plan gewestgrensoverschrijdende aanzienlijke milieueffecten kan hebben, wordt deze beslissingstermijn verlengd met 60 dagen. Laatstgenoemde is niet van toepassing op voorliggend onderzoek tot milieueffectrapportage.
2 Ruimtelijke situering Het plangebied is gelegen in de Cadixwijk dat zich op het centrale deel van het Eilandje te Antwerpen bevindt. Het gebied Cadixwijk vormt één van de drie wijken van het Eilandje Fase 1 .3 Het wordt begrensd door drie dokken – het Kattendijkdok aan de westzijde, het Houtdok aan de noordzijde en het Kempisch dok aan de oostzijde. De zuidelijke grens wordt gevormd door de as Londenstraat-Amsterdamstraat, i.e. de oostwest gerichte verkeersas die de Noorderlaan en de Leien met de Kaaien verbindt. Het totale Eilandje te Antwerpen beslaat een oppervlakte van ca. 172 ha. De Cadixwijk is een wijk van in totaal 26 ha waarvan het plangebied zelf slechts 12 ha van uitmaakt. Het plangebied omvat een gedeelte van de zogenaamde ‘ontwikkelbare schil’ van de Cadixwijk, met name het gedeelte grenzend aan het Kattendijkdok en het Houtdok. Eveneens wordt het Douanegebouw mee opgenomen in het RUP. Figuur 1: Ruimtelijke situering van de Cadixwijk - mesoniveau topografische kaart
Figuur 2: Ruimtelijke situering van het plangebied van het RUP 'Cadix' op microniveau (topografische kaart, luchtfoto)
3 Duiding van het plan 3.1 Aanleiding en voorwerp van het RUP Voor de herziening van een vrije trambedding op de Kattendijkdok Oostkaai is een verbreding van het wegprofiel nodig zoals het nu is vastgesteld in het BPA ‘Eilandje’. In het BPA werd immers geen rekening gehouden met de mogelijke aanleg van traminfrastructuur op het Eilandje. Dit vormt dan ook de aanleiding tot de gedeeltelijke herziening van het BPA. Eveneens worden de douanesite (douanegebouw en bijhorende parking) en de noordrand van de Cadixwijk (aan Houtdok Zuidkaai) mee opgenomen in het RUP. De voorschriften voor de douanesite dienen immers herbekeken te worden in functie van functiebestemming en ruimtelijke mogelijkheden. De parking wordt beschouwd met het oog op de realisatie van het Cadixplein. De noordrand mist zowel programmatisch als ruimtelijk kwalitatieve stedenbouwkundige voorschriften en moet in herziening worden gesteld. De ruimtelijke enveloppe die nu strokenbouw voorschrijft is zowel voor de woonmarkt als voor de kantorenmarkt een sterke beperking. De ontwikkelbare schil van de Cadixwijk wordt door het RUP qua fasering opgedeeld in twee grote delen: de blokken die in herziening worden gesteld via het RUP en deze blokken die voor ontwikkeling niet in herziening worden gesteld. Enkel eerstgenoemde maakt voorwerp uit van het plan. 3.2 Actuele juridische toestand GEWESTPLAN Het plangebied maakt deel uit van het gewestplan Antwerpen (KB 3.10.1979). De Cadixwijk is volledig aangeduid als woongebied. Het RUP (en het bestaande BPA) wordt opgemaakt in functie van de ontwikkeling van het Eilandje als stadsinbreidingsgebied en wijkt daarbij niet af van het gewestplan Antwerpen. Figuur 3: Gewestplan - Cadixwijk
BIJZONDER PLAN VAN AANLEG Voorliggend RUP betreft een gedeeltelijke herziening van het BPA Eilandje (goedkeuring d.d. 15 december 2005). Het RUP valt volledig binnen de plangrenzen van het BPA. Het BPA zorgt voor de juridische afdwingbare regelgeving waarbij het opgemaakte masterplan en de beeldkwaliteitplannen het referentiekader vormden en zorgt dus voor de juridische vertaling van het masterplan en de beeldkwaliteitplannen in stedenbouwkundige voorschriften. Het masterplan gaat ervan uit dat het Eilandje een voortzetting moet zijn van de binnenstad. Dit betekent dat er grootschalige stedelijke functies en een verweving aanwezig moeten zijn. De verhouding van de gewenste functiemenging van wonen, kantoren en handel, en voorzieningen en cultuur is verschillend naargelang het potentieel van de verschillende wijken van het Eilandje:
De stedenbouwkundige voorschriften van het BPA Eilandje voorzien echter een te flexibel kader met een minimum van 50 % wonen. Dit biedt weinig garanties naar een levendige duurzame woonwijk. Figuur 4: Bijzonder Plan van Aanleg Eilandje - Cadixwijk (goedgekeurd bij MB d.d. 15 december 2005)
3.3 Actuele bestaande toestand Eén van de belangrijkste kenmerken van het Eilandje is de tegenstelling tussen de verschillende wijken en schaalordes: open wateroppervlaktes staan in schril contrast met de dichte bebouwing in de Montevideo en Cadixwijk. Deze schaal op zich vormt een tegenstelling met de dichte kern van het nabijgelegen stadscentrum. Het Eilandje wordt vooral gekenmerkt door zijn historisch karakter van een typische 19de eeuwse havenstad. Dit karakter vertaalt zich in weidse kaden met een sterk publiek karakter, industriële relicten, materiaalgebruik gebaseerd op industrieel karakter. De dokken zijn een belangrijke indicatie van het industriële verleden maar zijn ook sterke beeldbepalende elementen. Het Eilandje is een bijzondere variant van stedelijkheid voor Antwerpen. Het gebied maakt deel uit van de binnenstad, maar heeft zeer verschillende karakteristieken ten opzichte van de andere buurten. Het overgrote deel van de buitenruimte bestaat uit dokken, i.e. de ‘pleinen’ in dit stadsweefsel. Het grootschalig dokkenstelsel heeft de orthogonale structuur van het Eilandje gevormd, los van de schaal en de concentrische structuur van de kern van de binnenstad. Dit stadsdeel sluit sterk aan bij de Schelde, een stukje ‘stad aan de stroom’. De menging van typologieën, schalen en functies karakteriseert het Eilandje. Deze eigenschappen worden bij de ontwikkeling van het stedelijk gebied gevrijwaard om te worden ingezet voor een uitzonderlijk woonklimaat. Het gebied Cadixwijk bestaat uit een orthogonaal stratenpatroon omgeven door brede dokranden. Het inwendige bebouwingsweefsel bevat een mix van rijwoningen, pakhuizen, depots, kazernegebouwen en het solitaire Douanegebouw. Het douanegebouw doorbreekt het patroon en wordt omgeven door een gesloten groene zone en een parking langs de Cadixstraat. Hier wordt in het RUP (zoals ook reeds aangegeven in het BPA) een Cadixplein voorzien dat doorgetrokken wordt tot tegen het Kattendijkdok. Aan de dokranden komen van oudsher bedrijfsloodsen voor. Aan de noordrand zijn deze reeds gesloopt door het autonoom Gemeentelijk Havenbedrijf Antwerpen in functie van de toekomstige ontwikkeling van de wijk. Er is momenteel geen band tussen de Cadixwijk en het Kattendijkdok aangezien de aanwezige loodsen een harde barrière vormen. De tussenruimte tussen de loodsen en de straat wordt weinig efficiënt gebruikt, soms als parkeerplaats of laad- en loskade, maar dikwijls ook als onverzorgde restruimte. Het gevelfront van de Cadixwijk heeft goede kwaliteiten, met onder meer het Noorderpershuis als industrieel monument. Het douanegebouw is een atypisch element, dat zich door zijn omgevingsinrichting (afgesloten groen en parkeerplaats) afzondert van de wijk.
3.4 Plancontext Ruimtelijk Structuurplan Vlaanderen
Het RUP past binnen de principes van het Ruimtelijk Structuurplan Vlaanderen en beantwoordt aan de algemene beleidsopties voor een grootstedelijk gebied. Binnen het Ruimtelijk Structuurplan Vlaanderen werd Antwerpen, geselecteerd als grootstedelijk gebied, gepositioneerd binnen het stedelijk netwerk van de Vlaamse Ruit. Antwerpen vormt aldus één van de polen van een stedelijk netwerk dat internationale betekenis heeft omwille van het internationale karakter en de internationale rol van dit gebied. Volgens het RSV moet het stedelijk beleid volgende doelstellingen nastreven:
De ontwikkeling van het Eilandje is een strategisch stedelijk project als vooropgesteld en gekenmerkt in het RSV. Het project draagt bij tot de vernieuwing van het stedelijk gebied door het voeren een meer dynamische stadsvernieuwing. De vernieuwing van verwaarloosde of onderbenutte terreinen is hiervan een essentieel onderdeel. Strategische projecten stimuleren andere actoren, waaronder huisvesting, om projecten op te zetten die de aantrekkelijkheid van het stedelijk wonen aantonen. Ruimtelijk Structuurplan Provincie Antwerpen
Antwerpen behoort tot de hoofdruimte ‘Antwerpse fragmenten’ als onderscheiden in het provinciaal structuurplan. De stad Antwerpen hierbij tot de deelruimte ‘Grootstedelijk Antwerpen’, naast de deelruimten Antwerpse haven, bebouwd perifeer landschap en de Antwerpse gordel. Het ‘Eilandje’ is een overgangsgebied tussen de stad en de haven. In principe maakt het deel uit van de woonomgeving Antwerpen kernstad. Allerlei overgangsfuncties vinden hier plaats, zo ook een toegang tot de haven van waaruit het openbaar en collectief vervoer in de haven wordt georganiseerd. Door het verdichten, hergebruiken en efficiënt benutten van de oudere havendelen, kunnen de voortgaande verschuiving en verwijdering van de haven ten opzichte van de stad Antwerpen worden tegengegaan. Strategisch Ruimtelijk Structuurplan Antwerpen
Het strategisch Ruimtelijk Structuurplan Antwerpen (s-RSA) vormt het juridische kader voor het ruimtelijk beleid van de stad Antwerpen. Het s-RSA is een ruimtelijk toekomstbeeld voor de hele stad en werd in 2006 goedgekeurd. Het Eilandje is geselecteerd als een uit te voeren hefboomactie in de bindende bepalingen van het s-RSA. Dit wil zeggen dat het stadsvernieuwingsproces in dit gebied moet uitgevoerd worden met als één van de doelstellingen ‘een kwalitatief openbaar domein inzetten als katalysator voor een duurzame wijkontwikkeling’. Deze beleidsdoelstelling is opgenomen in het bestuursakkoord 2007-2010. Dit betekent meer bepaald dat het Eilandje fase 1 of het zuidelijk deel bestaande uit de Oude Dokken, Montevideo- en Cadixwijk de komende jaren wordt uitgevoerd. Het Eilandje is gelegen in de harde ruggengraat van het structuurplan en maakt hierdoor deel uit van het metropolitane gedeelte van de stad dat opnieuw binding zoekt met de Schelde. De mogelijkheden voor bijkomende woningen betekenen een bijdrage tot het invullen van de eigen stedelijke behoefte en de taakstelling inzake wonen vanuit het grootstedelijk gebied. Het Eilandje moet specifiek het wonen in deze stedelijke zone van de harde ruggengraat aantrekkelijk maken door er een geïntegreerd gebiedsgericht project verder te doen ontplooien. Het s-RSA stelt specifiek voor de Cadixwijk dat deze ontwikkeld kan worden als een aangename woonomgeving met ondersteunende voorzieningen. Vooral in deze wijk zal worden ingezet op het creëren van een sociale mix. Bovendien zullen centraal in deze wijk, als aanvulling op de aanwezige scholen, gemeenschapsvoorzieningen (onderwijs, sport, openbare diensten, …) ingeplant worden en dit in afstemming op de wijknoden van Oude Dokken, Cadix en Montevideo tezamen. Aan de dokranden worden de huidige bedrijfsgebouwen vervangen door bouwblokken naar analogie van de rest van het bebouwingsweefsel. Ter hoogte van de parking van het Douanegebouw wordt het Cadixpark aangelegd als groene long van de wijk. Ook hier zal de aanleg van een kwalitatief publiek domein als katalysator worden aangewend voor een duurzame wijkontwikkeling waar, naast de grotere randprojecten, ruimte is voor invulprojecten langs de binnenstraten. Het is belangrijk dat deze wijk in de toekomst bediend wordt met een tramlijn. 3.5 Voorgeschiedenis
Het planvormingsproces voor het Eilandje kent reeds een uitgebreide voorgeschiedenis. De gewenste ontwikkelingen en de na te streven ruimtelijke kwaliteit voor dit stadsdeel zijn uitvoerig beschreven in verschillende master- en beeldkwaliteitplannen. In voorbereiding van het RUP is reeds een omvangrijke hoeveelheid studiewerk verricht. Naast het Masterplan Eilandje, dat als uitgangspunt voor de uitwerking van het RUP geldt, zijn in aansluiting hiermee een reeks deelstudies in opmaak of afgewerkt. Het betreft onder meer de deelstudies Beeldkwaliteitplan Buitenruimte, het Waterplan, het Beeldkwaliteitplan Architectuur (cfr. Architectuurnota), het Groenplan, mobiliteitsstudie Eilandje, plan van aanpak Cadixwijk. Het Masterplan Eilandje, dat goedgekeurd werd door het College van Burgemeester en Schepenen d.d. maart 2002, omvat reeds een indicatief bouwprogramma. Voor elk van de drie wijken die de eerste fase van de ontwikkeling van het Eilandje uitmaken is er in het masterplan en in het BPA Eilandje een specifieke identiteit en ontwikkelingsstrategie vastgelegd. Voor de Oude dokken zal er vooral gewerkt worden met invulprojecten om het bestaande weefsel te vervolledigen. De Montevideo wijk bestaat voornamelijk uit beschermde monumenten en nieuwe woontorens. De Cadixwijk tenslotte is een raster van bestaande en nieuwe gesloten bouwblokken. De essentiële aspecten uit deze kaderplannen worden vertaald in de stedenbouwkundige voorschriften van het gemeentelijke RUP. masterplan eilandje
Het totale Eilandje te Antwerpen beslaat een oppervlakte van ca. 172 ha. De bedoeling van het opgestelde masterplan is enerzijds om het Eilandje terug leefbaar te maken met al zijn stedelijke facetten van wonen, werken en vrije tijd. Tegelijk wordt het maritiem karakter van het gebied positief versterkt. Het contact tussen mens en water staat daarom ook centraal. Anderzijds is het plan erop gericht de relatie met het centrum van Antwerpen terug te herstellen. Het masterplan formuleert de basisvisie voor het verdere ontwikkelingsplan van het Eilandje, met oog voor bebouwing en haar invulling, weginfrastructuur en open ruimte. Het masterplan gaat daarbij uit van het bestaande gebied. Het masterplan gaat uit van het bestaande gebied en bestudeert hoe het oude karakter bewaard kan blijven, welke aspecten men wil accentueren of vernieuwen. beeldkwaliteitplan buitenruimte
Het beeldkwaliteitplan legt een visie op de ontwikkeling van de publieke ruimte. Het streeft naar een eenheid in werkwijze en resultaat voor de verschillende projecten, zonder een hypotheek te leggen op de ontwikkeling. Het beeldkwaliteitplan voor de buitenruimte is een richtlijnennota om de herinrichting van de buitenruimte kwalitatief te kunnen sturen en bepaalt de beeldkwaliteit van het openbaar domein. De richtlijnen ontstaan uit de affectie voor wat het Eilandje is en uit een verlangen om het karakter ervan in stand te houden. Volgende thema’s komen aan bod: verkeer, groen, straatprofielen, verlichting, terrassen, etc. Het beeldkwaliteitplan vormt o.a. een toetsingskader om stedenbouwkundige aanvragen te beoordelen. Samen met het masterplan vormt het beeldkwaliteitplan het directe kader voor de opmaak van het bestaande BPA en dit RUP. Het beeldkwaliteitplan is een verfijning van de regelgeving en een concretere, visuele uitwerking van de verschillende visies die leven inzake de inrichting van het openbaar domein.
beeldkwaliteitplan architectuur
Het beeldkwaliteitplan geeft een visie op de ontwikkeling van de bestaande en de toekomstige bebouwing op het Eilandje en biedt een toetsingskader voor private en publieke bouwplannen. Renovatie- en nieuwbouwprojecten moeten zoveel mogelijk binnen de authentieke sfeer van eenvoud en ruwheid van het Eilandje passen: bijv. gebruik van specifieke materialen als kasseien, staal, baksteen en hardsteen. Het kwaliteitplan bevat een duidelijke strategie voor nieuwe bebouwing, incl. de randen van de Cadixwijk.
groenplan
Het Groenplan stelt een landschappelijke aanleg voor die de eenheid van het Eilandje moet accentueren, zonder hierbij echter de openheid te verliezen. Het voorzien van plantvakken langs de dokken met een aangepaste dichtheid staan hiervoor garant. Globaal komt het hier op neer dat vanuit de twee nabijgelegen groenvolumes (parken – omgeving Droogdokken en Spoor Noord) het groen geleidelijk aan afneemt naarmate men de site binnendringt. De zo ontstane gradatie groen verleent een zekere dynamiek aan de buitenruimte zonder daarbij het aspect water te gaan domineren. Integendeel, het groenplan voegt een dimensie toe aan de vlakte van het water en steen.
waterplan
In het waterplan wordt als aanvulling op het masterplan het accent gelegd op het verder uitbouwen van het maritieme karakter van het gebied. De havenbekkens blijven behouden en krijgen maritieme functies: commerciële havenfunctie, toeristisch-recreatief of eventueel een woonfunctie. Het waterplan moet een optimale wisselwerking met de ontwikkelingen op het land en in het openbaar gebied mogelijk maken. Het plan omschrijft de inhoudelijke en ruimtelijke visie en uitwerking van de dokken en de kaaien op het Eilandje. Een programma voor de infrastructuren op de kaaien is eveneens onderdeel van het waterplan. De functie van de dokken zal worden aangepast aan de ontwikkelingen die de verschuiving van werkzone naar woonzone met zich mee brengt. De industriële havenfuncties zullen dan ook geleidelijk aan evolueren naar de veranderende landfunctie. De randvoorwaarden van een gescheiden rioolstelsel en een systeem van hemelwaterafvoer zijn onontbeerlijk om tot een succesvolle uitvoering te komen van het waterplan. De bestaande regelgeving inzake het integraal waterbeheer (cf. verordeningen) dienen dan ook op dit vlak optimaal toegepast te worden.
3.6 Planbeschrijving
Het sluitstuk van de realisatie van het Eilandje fase 1 bestaat uit de globale gebiedsontwikkeling van de Cadixwijk. De stad beoogt hierbij een integrale ontwikkeling met 100 % return én een duurzame stadsvernieuwing door het creëren van ruimtelijke kwaliteit, dynamische functiemix, een levendige woningmix en een voldoende uitgebouwd voorzieningenaanbod. Het plan van aanpak Cadixwijk vormt het concrete raamplan voor deze integrale, duurzame gebiedsontwikkeling én dit binnen de krijtlijnen van het reeds bestaande plannenkader voor het Eilandje (cf.supra – masterplan, beeldkwaliteitplannen, BPA). De Cadixwijk is een dichte, gevarieerde woonwijk, waar het contact met het water op dit moment kleiner is dan in de andere delen van Het Eilandje. De stad wil met de herontwikkeling het wijkgevoel versterken en het contact met het water herstellen. De volledige ontwikkeling van de Cadixwijk loopt tot 2015. In de Cadixwijk verdwijnen de oude havenactiviteiten aan de randen na het verlopen van de concessies. Om de Cadixwijk vlot bereikbaar te maken, komt er een nieuwe tramlijn over Kattendijkdok Oostkaai naar het noorden van de wijk. Het douanesite en het douanegebouw dat binnenkort leeg komt te staan wordt voor een deel vervangen door een parkplein met zicht op het Kattendijkdok. Het BPA legde de nodige architecturale en stedenbouwkundige randvoorwaarden vast die belangrijk zijn bij de invulling van het oude havengebied met stedelijke functies. Het BPA speelt hierdoor in op een dynamische stadsvernieuwing. Het BPA garandeert door specifieke voorschriften stedelijke woonvormen en dichtheden. Het gemeentelijk RUP houdt een gedeeltelijke herziening van het reeds bestaande BPA als bij M.B. 4 Toetsing van de plan-MER-plicht Het screeningsproces bestaat er in de regelgevende basis voor de plan-m.e.r. te verifiëren en de specifieke bepalingen van het plan-MER decreet toe te passen. Screening is de eerste stap in het plan-m.e.r. proces en duidt op het proces waarbij de noodzaak tot opmaak van een MER (i.c. plan-MER-plicht) voor een gegeven plan of programma wordt nagegaan.
Ten behoeve van de screening dienen een aantal stappen doorlopen te worden, gebaseerd op de vigerende bepalingen van het recente plan-MER decreet (omzetting van Europese richtlijn plan-MER). Deze stappen betreffen een aantal te behandelen vragen betreffende de aard of de doelstelling van het plan. Kort samengevat komt dit neer op volgende deelaspecten:
Achtereenvolgens zal een toetsing gebeuren van het toepassingsgebied en werkingssfeer, nagegaan worden of het plan van rechtswege plan-MER plichtig is of desgevallend een nader onderzoek naar aanzienlijke milieueffecten dient uitgevoerd te worden (het zogenaamde onderzoek tot milieueffectrapportage) – cf. schema.
4.1 Toetsing toepassingsgebied In casus betreft het een gemeentelijk ruimtelijk uitvoeringsplan dat ter uitvoering van het strategisch ruimtelijk structuurplan Antwerpen (sRSA) en het masterplan Eilandje, door de bevoegde administratie ruimtelijke ordening wordt opgesteld om middels een wetgevingsprocedure te worden vastgesteld door de gemeenteraad, met de goedkeuring van de Bestendige Deputatie. De opmaak van gemeentelijke RUP’s is op grond van decretale bepaling voorgeschreven (i.c. het decreet houdende de organisatie van de ruimtelijke ordening). Ruimtelijke uitvoeringsplannen vallen dus onder de definitie van plannen conform artikel 4.1.1. van het DABM als gewijzigd door het plan-MER decreet. In het RUP wordt aangegeven hoe een gebied moet worden ontwikkeld, of waarin voorschriften of aanwijzingen staan voor het soort ontwikkeling dat in bepaalde gebieden geschikt of toelaatbaar wordt geacht, of waarin criteria worden gegeven die in aanmerking moeten worden genomen. Het plan vormt een kader voor de toekenning van een vergunning van een project en valt dus binnen de werkingssfeer van het plan-MER decreet. Alle RUP’s vallen per definitie onder de werkingssfeer van het plan-MER decreet. Dit houdt in dat voor elk RUP de toetsing naar plan-m.e.r. plicht dient te gebeuren: ofwel is het RUP in kwestie van rechtswege plan-MER plichtig en wordt de plan-m.e.r. procedure aangevat, ofwel dient een onderzoek naar aanzienlijke milieueffecten te gebeuren om uit te maken of voor het beoogde plan een plan-MER moet opgemaakt worden.
4.2 Toetsing plan-MER-plicht van rechtswege Met betrekking tot de plannen die onder het toepassingsgebied van het plan-MER decreet vallen, onderscheidt men twee criteria van plannen die ‘van rechtswege’ onderworpen zijn aan de plan-MER-plicht. Het betreft:
a) plannen en programma’s, of de wijziging ervan, die tegelijkertijd - betrekking hebben op landbouw, bosbouw, visserij, energie, industrie, vervoer, afvalstoffenbeheer, waterbeheer, telecommunicatie, toerisme en ruimtelijke ordening of grondgebruik (artikel 4.2.3, §2, 1° D.A.B.M.); - een kader vormen voor de toekenning van een vergunning voor de in bijlagen I en II van het besluit van de Vlaamse Regering van 10 december 2004 opgesomde projecten - niet het gebruik regelen van een klein gebied op lokaal niveau, noch een kleine wijziging inhouden b) plannen en programma’s of de wijziging ervan waarvoor, gelet op de mogelijke betekenisvolle effecten op speciale beschermingszones, een passende beoordeling vereist is (artikel 4.2.1, tweede lid D.A.B.M.).
Sector Kader voor toekenning van vergunning voor bijlage I en II projecten
Vervolgens wordt nagegaan of het beoogde plan een kader biedt voor de toekenning van een vergunning van projecten opgesomd in de bijlage I en bijlage II van het zogenaamde project-MER besluit. (BVR van 10 december 2004 houdende vaststelling van categorieën van projecten onderworpen aan milieueffectrapportage (B.S. 17/02/2005).
In het project-MER besluit wordt onder bijlage II, infrastructuurprojecten, rubriek 10b de criteria aangegeven inzake stadsontwikkelingsprojecten.
Stadsontwikkelingsprojecten, met inbegrip van de bouw van winkelcentra en parkeerterreinen, -met betrekking tot de bouw van 1000 of meer woongelegenheden, of -met een brutovloeroppervlakte van 5.000m2 handelsruimte of meer, of -met een verkeersgenererende werking van pieken van 1000 of meer personenauto-equivalenten per tijdsblok van 2 uur.
Gezien het plan eveneens voorziet in een noodzakelijke verbreding van de ‘zone openbaar domein’ in functie van de realisatie van een gewenst dwarsprofiel om een vrije trambedding mogelijk te maken, is de rubriek 10j eveneens van toepassing:
Aanleg van infrastructuur voor trams, boven- en ondergrondse spoorwegen, zweefspoor en dergelijke bijzondere constructies, welke uitsluitend of overwegend voor personenvervoer zijn bestemd met een lengte van 1 km of meer. woongelegenheden
Zowel voor de gesloten, als de open bouwblokken is de hoofdbestemming wonen. Voor de nieuwe woonblokken in de Cadixwijk worden minstens 75 % (ondergrens) woningen ontwikkeld. Voor het bestaande weefsel worden zoveel mogelijk impulsen gegeven aan het woonprogramma. In de visie voor het woonprogramma van het Eilandje wordt volgende verdeelsleutel beoogd: 25 % sociale woningen waarvan 10 % koopwoningen en 15 % huurwoningen, 25 % residentiële woningen en een streefcijfer van 50 % betaalbare woningen. De betaalbare woningen worden gelijkmatig verdeeld over de categorie van 90 m² en 150 m². Voor de residentiële woningen worden enkel wooneenheden van gemiddeld 150 m² voorzien en voor de sociale woningen met een gemiddelde van 90 m². Dit houdt in dat 50 % enkel wooneenheden van gemiddeld 150 m² worden voorzien, en 50 % wooneenheden van gemiddeld 90 m². Het totaalgemiddelde van oppervlakte van wooneenheden bedraagt dus 120 m². In de ontwikkelbare rand van de Cadixwijk wordt er gestreefd naar ca. 150.000 m² aan woonfunctie. Op te merken valt dat de ontwikkelbare rand van de Cadixwijk tevens de bouwblokken B2, B2’, C2 en D2 omvat die niet in het RUP zijn opgenomen. Het voorwerp van het RUP omvat slechts een deel van deze ontwikkelbare rand. Met name zijn volgende bouwblokken vervat in het plan: A1, A2, A3, A4, A5, B1, B5, B6’, C1, D1 en E1 (zie bijgaande figuur). De totale woonoppervlakte die in het plan wordt beoogd betreft ca. 135.000 m².
Rekening houdende met voornoemde en het aantal bouwlagen die bij de verschillende woonblokken worden voorzien, wordt het aantal bijkomende wooneenheden voor de ontwikkeling van dit deel van de Cadixwijk geraamd op ca. 810 woongelegenheden ten opzichte van de bestaande toestand. Hierbij dient echter de kanttekening gemaakt te worden dat op heden de invulling van woonfunctie voor twee bouwblokken nog niet geheel vastligt: het douanegebouw en kaai 38 (i.e. het oostelijke woonblok van de noordrand nabij de Kempische brug). Hierdoor komt het aantal wooneenheden naar alle waarschijnlijkheid boven de grenswaarde van 1000 wooneenheden te liggen. Een eerste inschatting geeft aan dat voor het douanegebouw een bijkomende woonoppervlakte van 22.500m² wordt beoogd, en voor kaai 38 15.000 m². Dit impliceert bijkomend ca. 310 woongelegenheden. In zijn totaliteit houdt de uitvoering van de ontwikkeling van dit deel van de Cadixwijk (met inbegrip van kaai 38 en douanegebouw) de realisatie van maximaal ca. 1120 wooneenheden in. Het RUP houdt echter slechts een wijziging van inrichtingsvoorschriften in ten opzichte van het bestaande plan (BPA). De wijziging dat het RUP teweeg brengt, betreft slechts een minimale wijziging van het aantal woongelegenheden. Enkel voor het douanegebouw en kaai 38 wordt in min en plus een wijziging ten opzichte van het BPA beoogd wat betreft de realisatie van woonoppervlakte: respectievelijk woonoppervlakte van 22.500 m² (i.p.v. 41.200 m²) en 15.000 m² (i.p.v. 9600 m²). In zijn globaliteit betekent de wijziging van het plan dus een geringe afname van het aantal woongelegenheden die worden voorzien. Rekening houdende met voornoemde kan gesteld worden dat ten opzichte van de planologische, juridische toestand geenzins een overschrijding van de drempelwaarde wordt veroorzaakt. Ten opzichte van de bestaande referentietoestand wordt deze drempel, met inbegrip van de woonontwikkeling van het douanegebouw en kaai 38, wel overschreden.
Figuur 5: Bouwblokken van de Cadixwijk die in het RUP zijn opgenomen
handelsruimte
Zoals hoger vernoemd wordt in het plangebied gestreefd naar minstens 75 % woonfunctie (ondergrens). In de ontwikkelbare schil (cf. supra) wordt in zijn totaliteit maximaal 21 % vloeroppervlakte voor handel én kantoren toegelaten, i.e. ca. 43 000 m². Zoals reeds hoger aangehaald, is het plangebied echter kleiner dan deze ontwikkelbare schil, en betreft de maximaal te ontwikkelen oppervlakte in functie van handel én kantoren binnen het plangebied: 37.800 m². Dit houdt een overschrijding in van de drempelwaarde voor handelsruimte. Er dient hierbij opgemerkt te worden dat de totale te ontwikkelen oppervlakten aan handelsruimte (max. 21%, 37.800m²) gedeeld wordt met kantoorfuncties; in deze is het niet denkbeeldig dat het merendeel van deze oppervlakte feitelijk zal ingenomen worden door kantoren. Aangezien men streeft naar een woonbuurt met lokale woonondersteunende voorzieningen en een flexibele mix van functies, wordt de brutovloeroppervlakte ingenomen door handelsruimte beperkt. De stedenbouwkundige voorschriften in het RUP zullen de ontwikkeling van grootschalige handelsoppervlakten niet toestaan. Het RUP zal een vloeroppervlakte (gelijkvloerse) voor kleinhandel en horeca toestaan van maximaal 400 m² per pand over het volledige plangebied in functie van de gewenste functiemix. Op specifieke locaties kunnen grotere handelsoppervlakten (vb. tot 2.000m²) gerealiseerd worden, weliswaar nog steeds in functie van buurt- en wijkgerichte handelsactiviteiten. Hoewel de optelsom van de mogelijk te realiseren handelsoppervlakten de drempelwaarde zou kunnen overschrijden, dient voorts opgemerkt dat de handelsoppervlakten niet geconcentreerd in het plangebied zullen voorkomen; echter een buurtondersteunende functie vervullen en gespreid worden over de verschillende woonblokken. Kleinschalige handelsfuncties moeten dus zowat overal met het wonen en de gemeenschapsfuncties kunnen verweven worden. Dit zal een bijdrage leveren aan het inperken van de mobiliteit en autogerichtheid van handelsfuncties in het gebied. Ten opzichte van de referentiesituatie als door het BPA voorzien, betekent het RUP nauwelijks een wijziging ten opzichte van de maximaal toelaatbare handelsruimte. Rekening houdende hiermee kan gesteld worden dat ten opzichte van de planologische toestand geenszins een overschrijding van de drempelwaarde wordt veroorzaakt.
verkeersgenererende werking
De gegevens vanuit de mobiliteitsstudie worden als basis gebruikt voor de berekening van de verkeersgenererende werking. Hierbij wordt het vervoerpotentieel geschat tijdens het drukste uur van de avondspits vanuit vloeroppervlakten verdeeld volgens basisfuncties, met daarbij een aantal vuistregels toegepast. Eén piekuur vertegenwoordigt slechts 30 à 33 % van de woon-werkvervoersvorm. De verkeersgenererende werking wordt berekend uitgaande van het aantal bewoners à rato van gemiddeld 2,3 inwoners per woongelegenheid. Uitgaande van een ontwikkeling van maximaal 1225 woongelegenheden (cf. supra), betekent dit 2818 inwoners. Op basis daarvan wordt een aantal verplaatsingen toegekend. Er wordt vanuit gegaan dat 40 % van de bewoners werk hebben (gemiddelde van het arrondissement Antwerpen), waarvan één derde tijdens het drukste piekuur rijden (zijnde 376). Per woning vinden 0,07 schoolverplaatsingen (79) en 0,17 verplaatsingen voor andere motieven plaats (192 verplaatsingen). Dit geeft een subtotaal van 647 bewonersverplaatsingen op het drukste spitsuur. In de publicatie ‘Verplaatsen in cijfers’ van de stad Antwerpen worden recente cijfers aangereikt met betrekking tot het verplaatsen in Antwerpen. Het aandeel van verplaatsingen volgens hoofdvervoerswijze (modal split) voor de stad Antwerpen is als volgt: auto (35,6 %), openbaar vervoer (8,9 %), te voet (19,9 %) en per fiets (12,2%). Betreffende de Cadixwijk valt te verwachten dat, mits de vooropgestelde stimulerende maatregelen om het openbaar vervoersnetwerk er optimaal te verbeteren (cf. tramlijn), het aandeel van autovervoer nog lager zal komen te liggen. Rekening houdende met een modal split van 35,6 % autoverkeer, zijn bij piekmomenten ca. 460 pae per tijdsblok van 2 uur te verwachten. Rekening houdende met voornoemde kan gesteld worden dat bij de uitvoering van het plan geen overschrijding van de drempelwaarde wordt veroorzaakt. De verkeersgenererende werking door de totale stedelijke ontwikkeling van het stedelijk project Eilandje (cumulatieve aspecten) werd nader onderzocht in de mobiliteitsstudie (cf.infra).
trambedding
Teneinde de bereikbaarheid van de Cadixwijk met het openbaar vervoer te optimaliseren voorziet het plan in een noodzakelijke verbreding van de ‘zone openbaar domein’ in functie van de realisatie van een gewenst dwarsprofiel om een vrije trambedding mogelijk te maken. Dit kadert in het project om een nieuwe tramlijn te voorzien, met name de doortrekking van de geplande Leientram vanaf de Noorderplaats, langs de Londenstraat en Kattendijkdok-Oostkaai (Cadixwijk) met een keerlus op het Mexico-eiland en mogelijkheid tot verdere doortrekking tot het station Luchtbal in een latere fase. De lengte van het tramtraject gelegen in het plangebied bedraagt ca. 500 m. Indien niet enkel het tramtraject in het plangebied zelf in beschouwing genomen wordt, maar eveneens het globale nieuwe traject vanaf het aansluitingspunt met een bestaande tramlijn, wordt echter wel de drempelwaarde van 1 km overschreden. De Vlaamse Regering heeft d.d. 9 mei 2008 beslist de aanleg van de nieuwe tramlijnen van het Eilandje in timing naar voor te schuiven waarbij de uitvoering zou starten in 2010 (budgetten Brabo II). Deze nieuwe tramlijnen worden gezien als één project (in totaliteit 2,4 km). Voor het ganse tramproject uitgevoerd door Brabo ll, zal een gezamenlijk apart project MER worden opgemaakt.
conclusie
Uit de toetsing aan de criteria van voorgenoemde bijlage I en bijlage II blijkt dus dat voorliggend plan ten opzichte van de bestaande feitelijke toestand een kader kán bieden voor vergunningen van projecten als gecategoriseerd onder bijlage II, meer bepaald aangaande het aantal woongelegenheden en brutovloeroppervlakte voor handelsruimte. Echter wanneer het bestaande BPA, i.e. de eigenlijke nulsituatie (geen doorgang vinden van het plan), als referentie wordt genomen, vormt het plan geen kader voor vergunningen van projecten bijlage II van het MER-besluit.
Klein gebied op lokaal niveau
Het gemeentelijk RUP betreft een verdere invulling en uitwerking van de bestaande beleidsplannen en het BPA. Het plan heeft betrekking op een slechts beperkt gedeelte van het grondgebied van het grootstedelijk gebied Antwerpen. Met de realisatie van bijkomende woongelegenheden binnen een oppervlakte van +/- 9 ha kan het plangebied dat een deel van de Cadixwijk omvat, dan ook beschouwd worden als een klein gebied op lokaal niveau. Bovendien kan gesteld worden dat het gemeentelijk RUP ‘Cadix’ – en in concreto de beoogde uitvoering ervan – slechts een beperkt ruimtelijk bereik van mogelijke milieueffecten zal hebben gezien de aard, context en situering van het plan. Deze stelling wordt via een onderzoek naar aanzienlijke milieueffecten verder onderbouwd (cf. infra).
Kleine wijziging van reeds bestaand goedgekeurd plan
Het gemeentelijk RUP betreft een verdere invulling en gedeeltelijke herziening van het reeds op 15 december 2005 goedgekeurde BPA ‘Eilandje – deel Cadixwijk’. In casus betreft het slechts een beperkte wijziging ten opzichte van het BPA. Het voorwerp van plan bestaat erin de Cadixwijk verder te ontwikkelen als stedelijke woonwijk en via een tramlijn te verbinden met de binnenstad en andere wijken. Het plan beoogt een wijziging van een aantal stedenbouwkundige voorschriften om meer flexibiliteit toe te laten (cf. bouwhoogte, douanegebouw). Het plan in kwestie houdt dus ook geen bestemmingswijziging in ten opzichte van het Gewestplan Antwerpen (woongebied) of het BPA ‘Eilandje’ (invulling woongebied). Er wordt verwacht dat geen substantiële effecten noch een essentiële verandering van milieueffecten ten gevolge van de uitwerking van het plan zullen optreden. Deze stelling dient via deze screeningsnota gestaafd en aangetoond te worden (cf. infra). Passende beoordeling
Het plangebied is niet gelegen in een vogel- of habitatrichtlijngebied. De meest nabijgelegen speciale beschermingszone ligt op ongeveer 500m ten westen van het plangebied en betreft het habitatrichtlijngebied ‘Waterzone van het gebied Schelde- en Durmeëstuarium van de Nederlandse grens tot Gent’. Recent zijn eveneens het watersysteem zelf en aansluitende natuurlijke estuariene zones in de afbakening mee opgenomen om de continuïteit van de levensgemeenschappen langsheen de estuariumgradiënten te verzekeren. De natuurwaarden zijn geassocieerd met de Schelde en vormen een begeleidende ecologische structuur langs deze waterloop. Deze ecologische watergebonden habitattypes van slikken en schorren en het wateroppervlakte als foerageergebied staan niet in relatie met het plangebied. Voorliggend plan betekent geen enkel direct ruimteverlies van habitat of leefgebieden binnen vogel- en habitatrichtlijngebied. Effecten op netwerkrelaties kunnen als onbestaande worden beoordeeld. Eveneens kan aangenomen worden dat verstoringseffecten niet zullen optreden. Rekening houdende met de actuele toestand van het plangebied, de stedelijke context, kan gesteld worden dat de globale huidige ecologische structuur van het plangebied arm is en dat het plangebied weinig tot geen bijdrage levert tot het Natura2000 netwerk of zelfs enig ander netwerk van natuurwaarden. Rekening houdend met voornoemde, kan worden gesteld dat geen betekenisvolle aantasting van de natuurlijke kenmerken van een speciale beschermingszone kan worden veroorzaakt. Er dient gesteld dat voor onderhavig gemeentelijk RUP geen passende beoordeling is vereist uit hoofde van artikel 36ter van het decreet voor natuurbehoud.
Conclusie
Het betreft een plan dat betrekking heeft op ruimtelijke ordening én dat ten opzichte van het BPA niet het kader vormt voor de toekenning van een vergunning voor een bijlage I of II-project uit het BVR van 10 december 2004, echter wel ten opzichte van bestaande toestand. Een passende beoordeling is niet vereist. Uit de toetsing aan de criteria van voorgenoemde bijlage I en bijlage II blijkt dus dat voorliggend plan ten opzichte van de bestaande feitelijke toestand een kader kan bieden voor vergunningen van projecten als gecategoriseerd onder bijlage II. Echter wanneer het bestaande BPA als referentie wordt genomen, vormt het Echter dient hierbij gesteld te worden dat desondanks het feit dat het plan als wijziging van het BPA geen kader vormt voor vergunningen van projecten bijlage II MER-besluit, maar de uitvoering van het plan ten opzichte van de bestaande situatie wel dergelijk kader voor vergunningen projecten bijlage II kan vormen, dit bijkomend pleit om te onderzoeken of het plan al dan niet aanleiding geeft tot aanzienlijke milieueffecten. Eveneens behoeft het feit dat het tramtraject in het plangebied kadert in de aanleg van nieuw aan te leggen tramlijnen in de omgeving, een nader onderzoek naar mogelijke aanzienlijke milieueffecten. Laatstgenoemde wordt echter nader onderzocht in een aparte project-MER. Bovendien kan gesteld worden dat het plan het gebruik bepaalt van een klein gebied op lokaal niveau en een kleine wijziging van een reeds bestaand plan inhoudt. Het plan zal slechts een beperkt ruimtelijk bereik van mogelijke milieueffecten hebben gezien de aard, context en situering van het plan. Er valt te verwachten dat geen substantiële effecten noch een essentiële verandering van milieueffecten ten gevolge van de uitwerking van het plan zullen optreden.
Gezien het plan niet voldoet aan voornoemde cumulatieve voorwaarden, wordt het plan dus beschouwd als niet van rechtswege plan-MER plichtig. Derhalve dient een onderzoek naar mogelijke aanzienlijke effecten te gebeuren.
4.3 Onderzoek tot milieueffectrapportage Voor plannen die het kader vormen voor een vergunning, doch niet vallen onder de plannen die van rechtwege plan-MER-plichtig zijn, dient een onderzoek uitgevoerd te worden naar het mogelijke voorkomen van aanzienlijke milieueffecten, i.e. een ‘onderzoek tot milieueffectrapportage’. Indien uit dit onderzoek als besluit volgt dat aanzienlijke negatieve effecten kunnen optreden, dient de initiatiefnemer alsnog een plan-MER op te (laten) stellen. Screeningscriteria
Een nader onderzoek dient te gebeuren naar het mogelijks optreden van aanzienlijke milieueffecten. Dit gebeurt aan de hand van een lijst van selectiecriteria, opgenomen in bijlage I van het plan-MER decreet (bijlage II van de Europese richtlijn plan-MER), teneinde te oordelen over het al dan niet MER-plichtig zijn van plannen en programma’s die niet van rechtswege MER-plichtig zijn. Deze criteria hebben enerzijds betrekking op de kenmerken van het plan en anderzijds op de kenmerken van de effecten en van de gebieden die kunnen worden beïnvloed. Deze criteria worden weergegeven in bijlage. Screening
Het onderzoek tot milieueffectrapportage – i.c. onderzoek naar aanzienlijke milieueffecten – houdt een inschatting op hoofdlijnen in van de te verwachten gevolgen op mens en milieu, i.e. een globale effectanalyse. Tijdens de doorlichting is het geenszins de bedoeling een gedetailleerde studie over de mogelijke milieueffecten door te voeren. Het RUP biedt het kader voor een project in stedelijke context. De nadruk van de screening zal dan ook liggen op de discipline mens – ruimtelijke aspecten. Daarnaast vormt mobiliteit een belangrijk aandachtspunt. Er worden met het RUP geen nieuwe functies ontwikkeld in relatie tot de huidige bestemmingen en plannenkader. Binnen elke discipline zullen enkel deze effecten worden onderzocht die relevant worden geacht voor de beoordeling van de inrichting van het plangebied. Bijgevolg zullen een aantal effectgroepen buiten beschouwing gelaten worden in het kader van een verdere screening. Volgende uitgangspunten worden hierbij gehanteerd:
voor de discipline WATER
voor de discipline BODEM
voor de discipline LANDSCHAP:
voor de discipline LUCHT:
voor de discipline NATUUR:
voor de discipline LANDSCHAP:
Rekening houdende met voornoemde wordt een scoping gehanteerd van de mogelijke relevante disciplines voor verder screeningsonderzoek. Deze worden beknopt toegelicht in onderstaande tabel.
Met betrekking tot de discipline mens worden slechts deze aspecten van het plan nagegaan die een mogelijks negatief effect teweeg kunnen brengen. Daarnaast worden eveneens positieve effecten verwacht van voorliggend plan:
Voornamelijk zijn met betrekking tot mogelijke negatieve effecten volgende deelaspecten van belang om nader toe te lichten:
Verkeer en mobiliteit
Bestaande situatie De as Kattendijkdok-Oostkaai / Mexicostraat is – naast de Rijnkaai / Oosterweelsteenweg – één van de twee belangrijke noord-zuidverbindingen die het Eilandje ontsluiten. Ten zuiden van de Mexicobrug vormt de as Kattendijkdok-Oostkaai de grens tussen het Kattendijkdok en de Cadixwijk. Op het kaaivlak tussen het dok en de straat bevindt zich een aantal havenloodsen. Aan de oostzijde start het orthogonaal patroon van de Cadixwijk. Het douanegebouw doorbreekt dit patroon en wordt omgeven door een gesloten groene zone en een parking langs de Cadixstraat. Hier wordt in het BPA en voorliggend RUP een Cadixplein voorzien. Momenteel is er geen band tussen de feitelijke Cadixwijk en het Kattendijkdok; de aanwezige loodsen vormen er een harde barrière. De tussenruimte tussen de loodsen en de straat wordt weinig efficiënt gebruikt, soms als parkeerplaats of laad- en loskade, maar dikwijls ook als onverzorgde restruimte. Het meest zuidelijke deel tussen de Londenstraat en het douanegebouw houdt een slordige provisorische inrichting in, weinig bescherming voor fietsers en een moeilijke oversteekbaarheid. Kasseien liggen erg ongelijk en geven lawaaioverlast. Er bevindt zicht een langsparkeerstrook aan de oostzijde en een haaks parkeren of laad- en loskades aan de westzijde. De privé restruimte tussen de loodsen en de rijweg wordt onderbenut. Ten noorden van de Indiëstraat wordt het ruimtelijk beeld verbreed, wat leidt tot hogere snelheden ondanks de oncomfortabele kasseien (mogelijke lawaaioverlast). Hier zijn conflicten mogelijk tussen doorgaand verkeer en de in- en uitrijmanoeuvres aan de naastliggende bedrijven. De huidige bereikbaarheid per openbaar vervoer is zeker niet voldoende om het ambitieniveau omtrent het Eilandje te bedienen en a fortiori ook te stimuleren. Het huidig aanbod ligt vooral perifeer t.o.v. het plangebied, en de buslijnenbundels via de Amsterdam-straat-Noorderplaats zijn niet echt zichtbaar aanwezig als wervend en structurerend element.
Mobiliteitsstudie en geplande ontwikkelingen
Om de bereikbaarheid én de leefbaarheid van het Eilandje te waarborgen, is een evenwichtige ontsluitingsstructuur noodzakelijk. Enerzijds moet het Eilandje vlot ontsluitbaar zijn voor bestemmingsverkeer, anderzijds mag de aanwezige ontsluitingsstructuur geen aanleiding geven tot ongewenst sluipverkeer. De nabijheid van de Oosterweelverbinding noopt tot extra aandacht in dit ver-band. In het kader van de gewenste planontwikkelingen op het Eilandje, werd dan ook geopteerd een mobiliteitsstudie Eilandje op te maken. De startnota van de mobiliteitsstudie (o.a. heraanleg as Kattendijkdok-Oostkaai) werd door de PAC goedgekeurd d.d. 15 mei 2008. Actueel wordt de projectnota gefinaliseerd waarin de concepten verder worden uitgewerkt tot een ontwerp van heraanleg. Essentieel uitgangspunt is een doorgedreven multimodale benadering van de bereikbaarheid van het gebied. Vandaar dat in de mobiliteitsstudie veel aandacht besteed werd aan de versterking van het openbaar vervoer (vrije trambanen) en het fietsroutenetwerk (hoogwaardige fietspaden langs beide hoofdassen, aansluitend op het stedelijk fietsroutenetwerk). Randvoorwaarde is echter dat het dichtslibben van toevoerkruispunten door autoverkeer geen hypotheek legt op de doorstroming van het verkeer. De doorstroming van de tram is afhankelijk van de doorstroming van het autoverkeer. In het deelmobiliteitsplan Kernstad en in het Masterplan Eilandje fase 1 wordt beklemtoond dat doorgaand sluipverkeer vermeden zal worden. Anderzijds zullen de geplande ontwikkelingen in de omgeving van de Cadixwijk moeten ontsloten worden, en de as Kattendijkdok- Oostkaai is daarvoor het meest aangewezen. De doorstromingskwaliteit van een gemengde tramlijn zal in die situatie slechts die van een lokale ontsluitende lijn zijn en minder gericht op verplaatsingen tussen bijvoorbeeld Luchtbal en de zuidelijke Scheldekaai. De tram kan gehinderd worden door parkeermanoeuvres en mogelijke filevorming. Bij de visie- en conceptvorming voor de Kattendijkdok-Oostkaai werden volgende uitgangspunten vooropgesteld in de studie:
De mobiliteitsstudie geeft aan dat enkel voor de toekomstige ontwikkelingen op het Droogdokken- en Mexico-eiland vooraf een mobiliteitseffectenrapport (MOBER) opgemaakt moet worden. Dit vooral voor het Droogdokkeneiland omdat daar de bereikbaarheid als meest problematisch worden ingeschat. Voor de woonontwikkeling in de Cadixwijk werd naar aanleiding van de mobiliteitsstudie (incl parkeerstudie) het bouwprogramma herzien en aanzienlijk verlicht. De capaciteit van het onderliggende weggennet wordt echter niet alleen ingevuld door herkomst/bestemmingsverkeer, maar ook door doorgaand verkeer, alhoewel dit laatste niet gewenst is. Het sturen van verkeersstromen door middel va ‘filtering’ wordt daarom noodzakelijk voorzien om verzadiging van het lager wegennet te voorkomen én om de kwaliteit van de assen Kattendijkdok-Oostkaai en Londen-Amsterdamstraat te waarborgen. Voornamelijk het gebruik van de kaaien als verbindingsweg van/naar de Oosterweelknoop en het gebruik van Kattendijkdok-Oostkaai zal vermeden worden. De filtering zal zo gebeuren dat doorgaand verkeer ontraden wordt, maar de bereikbaarheid van het Eilandje en de Cadixwijk wel gegarandeerd blijft. Naast de globale heraanleg (verblijfskarakter) en het downgraden van de Kattendijkdok-Oostkaai tot lokale weg, zullen de ophaalbruggen een sterk filterend effect hebben op het doorgaand verkeer. De vooropgestelde ontsluitingsstructuur voor het Eilandje kan zorgen voor de nodige filtering én bereikbaarheid van het Eilandje. De mobiliteitsstudie stelt dat het echter aangewezen is om een dergelijk totaalscenario voor het Eilandje door te laten rekenen met het multimodaal model voor Antwerpen. De redenering als voorgesteld in de mobiliteitsstudie, kan immers enkel opgebouwd worden vanuit de site Eilandje, maar houdt geen rekening met gevolgen en scenario’s voor verkeersstromen op een hoger schaalniveau. Eveneens is het belangrijk de mogelijke effecten op de stedelijke functies door sluipverkeer en verhoogde parkeerdruk nader te beschouwen. Door het ontbreken van een duidelijke regulerende verkeersstructuur op het Eilandje, dienden de verschillende verkeersassen louter als sluipwegen. Zoals reeds gesteld, wordt dan ook beoogd alleen nog bestemmingsverkeer op het Eilandje toe te laten. De Amsterdam/Londenstraat en Kattendijkdok-Oostkaai worden voor de Cadixwijk de zogenaamde “wijkontsluitingswegen” met een maximaal toegelaten snelheid van 50 km/u. Buiten deze wijkontsluitingswegen zijn alle straten woonstraten met een toegelaten snelheid van 30 km/u. Het fietsverkeer wordt aangepast aan de structuur van het autoverkeer: de wijkontsluitingsstraten worden de grote verdelende fietsassen. Afzonderlijke fietspaden in twee richtingen worden hierbij voorzien waarbij het fietsverkeer op comfortabele wijze veilig van het autoverkeer wordt gescheiden. Bij de wegontwerpen wordt bijzondere aandacht besteed naar veilige fietsoversteken bij de kruispunten. De voorziene ontwikkeling van wonen en werken zal de vraag naar openbaar vervoer aanzienlijk doen toenemen. Meer nog, een gemakkelijke bereikbaarheid dankzij een goed uitgebouwd netwerk van openbaar vervoer zal de ontwikkeling van de Cadixwijk en het Eilandje zelfs mee sturen. Om een goede basismobiliteit te garanderen, worden bijkomende buslijnen en nieuwe tramlijnen voorzien. Een bijkomende buslijn zal voor een verbinding met de Cadixwijk moeten zorgen. Hierdoor wordt een openbaar vervoer met een halteafstand in vogelvlucht van 350m mogelijk en wordt tegemoet gekomen aan de eis voor basismobiliteit. In de mobiliteitsstudie werd de noodzakelijke ‘filtering’ om sluipverkeer te beperken nader onderzocht. Tevens maakte een parkeerstudie integraal deel uit van de studie. Hierbij werd aangegeven dat de voorgestelde geïntegreerde aanpak zal leiden tot een effectieve wijziging in de verplaatsingswijzen (modal shift), waardoor de parkeerproblematiek voor het totale Eilandje beter beheersbaar zal zijn. Parkeerbeleid staat dan ook niet op zich maar maakt deel uit van een multimodaal bereikbaarheidsbeleid. De resultaten van het onderzoek krijgen doorwerking in de planvorming en bij uitvoering.
Beoordeling Met betrekking tot de geplande ontwikkelingen in de Cadixwijk, maar tevens naar cumulatieve ontwikkeling van het Eilandje, werd een mobiliteitsstudie uitgevoerd. Zoals tevens gesteld in voornoemde mobiliteitsstudie, moet een ontsluiting via onder meer de as Kattendijkdok-Oostkaai, de garantie kunnen bieden dat de verkeergeneratie van en naar het Eilandje, en in het bijzonder de Cadixwijk, verwerkt kan worden. Volgens de laatste prognoses en resultaten van de studie, vertrekkend vanuit een duurzaam modal shift-scenario, is dit haalbaar. Een belangrijke verschuiving van modal shift door de betekenisvolle daling van vrachtverkeer (door functiewijziging gebied), het ontmoedigen van autoverkeer en stimuleren van het aanbod openbaar vervoer en traag verkeer, wordt als positief effect ervaren en draagt bij tot een duurzame stadsontwikkeling. Voor de woonontwikkeling in de Cadixwijk werd naar aanleiding van de mobiliteitsstudie (incl parkeerstudie) het bouwprogramma trouwens herzien en aanzienlijk verlicht, i.e. rekening houdende met de draagkracht van het gebied. wijzigingen van perceptieve kenmerken door visuele verstoring
In de verschillende plannen (beeldkwaliteitplan buitenruimte, beeldkwaliteitplan architectuur, groenplan, waterplan) werd uitgebreid aandacht besteed aan de globale beeldkwaliteit en belevingskwaliteit van het gebied. In het plan werd rekening gehouden met de visuele effecten ten gevolge van de bouw van infrastructuren door het beoordelen van het architectonisch ontwerp naar landschappelijke integratie, perceptie en invloed op belevingskwaliteit. De algemene perceptie van het huidige plangebied is dat van een verlaten en afgeleefde restruimte, een overgangsgebied tussen de kernstad Antwerpen en de haven. Het plan voorziet in gesloten bouwblokken aan de kaaien. Het landhoofd aan de kade ter hoogte van de Kempischebrug (kaai 38) krijgt een torenblok die een nieuw referentiepunt toevoegt aan de skyline van Antwerpen. Omwille van de compacte, slanke vormgeving zal laatstgenoemde opvallend hoger zijn dan de infrastructuur in de nabije omgeving. Het is uiteraard een moeilijk gegeven om het visueel/landschappelijk effect van deze hoge torenblok objectief te beoordelen. Vanuit perceptieve kenmerken en landschappelijk oogpunt dient te worden benadrukt dat het Eilandje en het betrokken plangebied sterk dynamisch zijn gezien de grondige wijzigingen doorheen de geschiedenis: van een bedrijvige buurt veranderde het Eilandje langzaam maar zeker in een verlaten stadsdeel. Het plan kadert in de stedenbouwkundige renovatie van de buurt. De ontwikkelingen van de Cadixwijk dienen dan ook eerder als positief te worden beschouwd. Daar het plan tot doel heeft een verlaten industriële site te herontwikkelen naar een aantrekkelijk duurzaam woongebied als volwaardig deel van het stedelijk gebied, kunnen we immers verwachten dat de globale beeldkwaliteit beduidend beter zal zijn dan de huidige toestand.
De visuele impact van het Oosterweelviaduct dat ten noorden van het plangebied wordt voorzien, is positief op grote en middelgrote afstand. Het viaduct zal onmiskenbaar een baken of landmark vormen in het Antwerpse landschap. Door de grote omvang en de complexiteit van het viaduct zijn aanzienlijke negatieve effecten te verwachten in de directe omgeving van het viaduct. Voornamelijk is er ter hoogte van het Noordkasteel en het noordelijke deel van het Eilandje 7 een belangrijke negatieve impact te verwachten. Deze impact wordt ten dele verminderd worden door een zo hoog en noordelijk mogelijke keuze van het tracé. Door voldoende aandacht voor de negatieve aspecten bij de verdere uitwerking van het ontwerp, kunnen de belangrijkste negatieve effecten deels worden gemilderd. Bijvoorbeeld worden de nodige milderende maatregelen genomen om geluidseffecten te milderen (geluidsschermen geïntegreerd in de constructie van het viaduct, fluisterasfalt). Met betrekking tot het RUP Cadixwijk is het belangrijk te onderstrepen dat de ontwikkeling van het Eilandje fase 1 nauwelijks beïnvloed wordt door de bouw van de Oosterweelverbinding. mogelijke geluidshinder bij bewoners door aanleg tramlijn
Teneinde de bereikbaarheid van de Cadixwijk met het openbaar vervoer te optimaliseren voorziet het plan in een noodzakelijke verbreding van de ‘zone openbaar domein’ in functie van de realisatie van een gewenst dwarsprofiel om een vrije trambedding mogelijk te maken. Dit kadert in het project om een nieuwe tramlijn te voorzien, met name de doortrekking van de geplande Leientram vanaf de Noorderplaats, langs de Londenstraat en Kattendijkdok-Oostkaai (Cadixwijk) met een keerlus op het Mexico-eiland en mogelijkheid tot verdere doortrekking tot het station Luchtbal in een latere fase. De Vlaamse Regering heeft d.d. 9 mei 2008 beslist de aanleg van de nieuwe tramlijnen van het Eilandje in timing naar voor te schuiven waarbij de uitvoering zou starten in 2010 (budgetten Brabo II). Deze nieuwe tramlijnen worden gezien als één project (in totaliteit 2,4 km). De tramlijn door de Cadixwijk, kan negatieve effecten inzake geluidsverstoring teweegbrengen. Bij uitvoering van het tramtraject, kunnen indien relevant de nodige maatregelen worden genomen om dit effect op voldoende wijze te milderen (bijv. dempende bedding). Voor het ganse tramproject uitgevoerd door Brabo ll, waaronder de tramlijn in de Cadixwijk valt, zal een apart project MER worden opgemaakt. Mogelijke negatieve effecten en noodzakelijke milderende maatregelen inzake geluid worden dan ook in deze MER nader onderzocht.
5 Grensoverschrijdende effecten Het verdrag inzake milieueffectrapportage in grensoverschrijdend verband werd op 25 februari 1991 aangenomen te Espoo (Finland) en ondertekend door de Europese Gemeenschap. De doelstellingen van het verdrag van Espoo zijn dezelfde als van milieueffectrapportage in het algemeen, zij het dat vooral de nadruk wordt gelegd op de voorkoming, beperking en beheersing van belangrijke nadelige grensoverschrijdende milieueffecten van voorgenomen activiteiten. Op 9 juni 1999 (B.S. 31/12/1999) heeft België via de ‘wet houdende instemming met het Verdrag inzake milieueffectrapportage in grensoverschrijdend verband, gedaan te Espoo op 25/02/1991’ het verdrag bekrachtigd. Verder kan er inzake gewestgrensoverschrijdende milieueffecten ook verwezen worden naar het samenwerkingsakkoord van 4 juli 1994 tussen het Vlaams Gewest, het Waals Gewest en het Brussels Hoofdstedelijk Gewest, en de Europese richtlijn van 27 juni 1985 betreffende de milieueffectbeoordeling van bepaalde openbare en particuliere projecten (85/337EEG), gewijzigd door de richtlijn 97/11/EG van de Raad van 3 maart 1997. Conform art. 4; §2, 2° van het zogenaamde plan-MER besluit d.d. 12 oktober 2007 8 dient het verzoek tot raadpleging in voorkomend geval een beoordeling te bevatten of het voorgenomen plan of programma grens- of gewestgrensoverschrijdende aanzienlijke milieueffecten kan hebben. Het geplande project is volledig op Vlaams grondgebied gelegen en bevindt zich op ca. 13 km van de dichtste grens met Nederland. Gezien de aard, context en omvang van het plan, kan gesteld worden dat in onderhavig geval het voorgenomen plan geen aanzienlijke (gewest)grensoverschrijdende milieueffecten kan hebben. 6 Conclusie
In het planvormingsproces is in een zo vroeg mogelijk stadium reeds rekening gehouden met de mogelijks nadelige milieueffecten van de voorgenomen activiteiten. Het RUP wordt niet opgesteld met als doel bijkomende mogelijkheden te scheppen voor projecten die significant nadelige milieueffecten zouden genereren. Die mogelijkheden zijn in relatie tot de huidige juridische en bestaande toestand reeds voorzien door achtereenvolgens de vaststelling van de bestemming woongebied in het vastgestelde Gewestplan Antwerpen en het goedgekeurde BPA Eilandje. Het RUP zelf houdt een juridische verankering in van randvoorwaarden voor de inrichting van het gebied, die er juist op gericht zijn een voor mens en milieu duurzame ontwikkeling van het woongebied te verzekeren, als uitgewerkt in de visievorming van het gebied (masterplan Eilandje). Het RUP kadert in een globale visie voor de stedelijke ontwikkeling van het Eilandje te Antwerpen. Het RUP kent dan ook een uitgebreide voorgeschiedenis en planningskader waarbij specifieke opties en afwegingen werden beredeneerd. Hiertoe werden reeds verschillende plannen en studies opgemaakt die het afwegingskader voor vergunningsaanvragen vormen. De activiteitengroep, dewelke kan omschreven worden als ‘stadsproject’, omvat de bouw van woningen, kantoorruimten en voorzieningen in een stedelijke of peri-urbane zone. De accenten die bij de inschatting van mogelijke milieueffecten gedurende de planfase werder gelegd, zijn dan ook afhankelijk van de reeds heersende milieuomstandigheden. De nadruk ligt in voorkomend geval eerder op mogelijke effecten voor de mens, in hoofdzaak betreffende verkeer en mobiliteit. Het gemeentelijk RUP betreft een verdere detaillering van het bestaande BPA. Uit de screening blijkt dat het plan niet in de onmiddellijke nabijheid ligt van bijzonder beschermde gebieden (bijv. stads- of dorpsgezicht, natuurgebied). Bovendien werd aangetoond dat het plan slechts een beperkt ruimtelijk bereik zal hebben waarbij de milieueffecten niet als aanzienlijk te beschouwen zijn. Tevens zal de uitvoering van het plan geen substantiële of essentiële verandering van de milieueffecten veroorzaken. Bijgevolg kunnen we besluiten dat het hier gaat om een plan dat het gebruik bepaalt van een klein gebied op lokaal niveau én dat het plan slechts een kleine wijziging inhoudt van het bestaande BPA. Rekening houdende met voornoemde, kan gesteld worden dat mogelijke optredende milieueffecten op dergelijke wijze beperkt worden dat de ontwikkeling van het voorgestelde stedelijk woonproject vanuit milieuoogpunt als aanvaardbaar beschouwd kan worden, met andere woorden geen aanzienlijke milieueffecten kunnen optreden. Meer nog zijn er op verschillende vlakken positieve effecten te verwachten bij het vaststellen en uitvoeren van het plan. Een nieuw plan-MER zal redelijkerwijze geen nieuwe of bijkomende essentiële milieu-informatie bevatten. Het plan wordt dus beschouwd als niet plan-MER plichtig.
7 Bijlage screeningscriteria
voetnoten screeningsnota 1 Decreet van 27 april 2007 houdende wijziging van titel IV van DABM en van art. 36ter decreet natuurbehoud (B.S. 20/06/2007) 2 Besluit Vlaamse Regering d.d. 12 oktober 2007 betreffende de milieueffectrapportage over plannen en programma’s (B.S. 07/11/2007) 3 De eerste fase van het Masterplan Eilandje behelst de Oude Dokken, de Montevideowijk en de Cadixwijk. 4 Om duurzaamheid te vertalen in ruimtelijke ingrepen is het aangewezen om een stedenbouwkundig plan en de instrumenten die hieruit voortvloeien met de nodige flexibiliteit op te maken. Enkel zo kan het plan beantwoorden aan de tijdsgebonden wensen en behoeften op lange termijn. Met deze flexibiliteit wordt er getracht te anticiperen op de snel veranderende en onzekere toekomst van vele stedenbouwkundige processen. 5 Deze startnota werd goedgekeurd door de gemeentelijke begeleidingscommissie op 18 september 2007 en door het College van Burgemeester en Schepenen op 19 oktober 2007. 6 gewijzigd bij decreet van 27 april 2007 houdende wijziging van titel IV van het decreet van 5 april 1995 houdende algemene bepalingen inzake milieubeleid en van artikel 36ter van het decreet van 21 oktober 1997 betreffende het natuurbehoud en het natuurlijk milieu. 7 de afstand tot de noordgrens van het Eilandje bedraagt 300m 8 Besluit Vlaamse Regering d.d. 12 oktober 2007 betreffende de milieueffectrapportage over plannen en programma’s (B.S. 07/11/2007)
VOETNOTEN 1 Masterplan Eilandje fase 1&2, beeldkwaliteitplannen buitenruimte en architectuur, Groenplan en Waterplan 2 De gemeentelijke begeleidingscommissie keurde op 18 september 2007 de startnota Eilandje goed waarin een tramlijnscenario werd voorgesteld dat het Eilandje verbindt met de binnenstad en andere stadsdelen. ook het college besliste op 19 oktober 2007 deze startnota goed te keuren. de startnota werd conform verklaard op de PaC dd. 15/05/2008 3 Zie ook: 5.2.3 strategisch Ruimtelijk structuurplan Antwerpen. 4 De Douanesite wordt door de Federale overheid verkocht aan een ontwikkelaar die de site, na de verhuis van de Douane eind 2009, mag herontwikkelen. 5 Er is een Masterplan duurzaamheid in opmaak door daidalos-Peutz – evR architecten. de startvergadering vond plaats op 21.10.2008 6 7 Officieus gecoördineerde versie conform het besluit van de Vlaamse regering van 23 september 1997 en latere herzieningen. 8 Het RSPA werd goedgekeurd bij ministerieel besluit 10 juli 2001 9 Definitieve vaststelling gemeenteraad dd. 18 september 2006 en goedgekeurd door de deputatie op 21 december 2006. 10 11 12 13 14 15 Goedgekeurd CBS dd. 11 april 2008 16 In opmaak, startvergadering dd. 21 oktober 2008 OVERZICHT FIGUREN Figuur 1: Aanduiding Cadixwijk binnen het Eilandje. Figuur 2: Aanduiding bouwblokken binnen de Cadixwijk. Figuur 3: Masterplan Eilandje (schets). Figuur 4: Masterplan Eilandje (plan). Figuur 5: Harde ruggengraat. Figuur 6: Deeluitwerking Eilandje in het kader van het structuurplan Antwerpen. Figuur 7: Ontwikkelbare rand aangeduid in het rood, deze volumetrie is een voorbeeld van de maximalisatie van de enveloppes toegelaten in het BPA Eilandje. Figuur 8: Ontwikkelbare rand aangeduid in het rood, deze volumetrie is een voorbeeld van de maximalisatie van de enveloppes toegelaten in het RUP Cadix. Figuur 9 en 10: Ontwikkeling in homogeen raster. Figuur 11: Kattendijkdok Oostkaai. Figuur 12: Kattendijkdok Oostkaai. Figuur 13: Hart en as strategie. Figuur 14-18: Ontwikkelen van samengestelde bouwblokken. Figuur 19: Structuurschets. Figuur 20: Omwisselen bouwblokken A4 en A5. Figuur 21-22: Overzichtsbeelden maquette Cadixwijk. Figuur 23: Maatvoering kaaigevel Kattendijkdok Oostkaai. Figuur 24-26: Voorbeelden bouwblok Kattendijkdok Oostkaai. Figuur 27: Maquette Kattendijkdok Oostkaai. Figuur 28: Maquette noordrand. Figuur 29-31: Maquette compacte bouwblokken. Figuur 32-33: Superblok 110x110 met behoud (1) en afbraak (2) van het douangebouw. Figuur 34: Slankheid toren Figuur 35: Toegelaten bouwprofiel bouwvlak E1, zone Ce2 Figuur 36 - 37: Visuele impact toren met hoogte beperking 80m, redezicht Figuur 38 – 39: Visuele impact toren met hoogte beperking 80m, Sint - Annastrand Figuur 40 – 41: Visuele impact toren met hoogte beperking 80m, Spoor Noord Figuur 42 – 43: Visuele impact toren met hoogte beperking 80m, IJzerlaan Figuur 44 – 45: Visuele impact toren met hoogte beperking 80m, Noorderlaanbrug Figuur 46: Schaduwwerking, toren 80m hoog Figuur 47: Windstudie Figuur 48: Maquette kaai 38: solitair massief volume. Figuur 49: Profiel bebouwing bouwzone E1, Ce2 Figuur 50: Wijkcirculatieplan. Figuur 51: Verbindingen openbaar vervoer. Figuur 52: Fiets- en voetgangers-verbindingen. Figuur 53: 5 deelzones. Figuur 54: Profiel bebouwing bouwzone E1, Ce2 Figuur 55: BPA Eilandje. Figuur 56: Harde ruggengraat, strategisch Ruimtelijk structuurplan Antwerpen. Figuur 57: Overstromings-gevoelige gebieden. Figuur 58: Gebieden die gevoelig zijn voor grondwaterstroming. Figuur 59: Infiltratiegevoelige gebieden. OVERZICHT TABELLEN
| ||||||||||||||||||||||||||||||||||||||||||||||||||||||||||||||||||||||||||||||||||||||||||||||||||||||||||||||||||||||||||||||||||||||||||||||||||||||||||||||||

![i_RUP_11002_214_10003_00001_200000.png [image]](i_RUP_11002_214_10003_00001_200000.png)
![i_RUP_11002_214_10003_00001_200001.png [image]](i_RUP_11002_214_10003_00001_200001.png)
![i_RUP_11002_214_10003_00001_200002.png [image]](i_RUP_11002_214_10003_00001_200002.png)
![i_RUP_11002_214_10003_00001_200003.png [image]](i_RUP_11002_214_10003_00001_200003.png)
![i_RUP_11002_214_10003_00001_200004.png [image]](i_RUP_11002_214_10003_00001_200004.png)
![i_RUP_11002_214_10003_00001_200005.png [image]](i_RUP_11002_214_10003_00001_200005.png)
![i_RUP_11002_214_10003_00001_200006.png [image]](i_RUP_11002_214_10003_00001_200006.png)
![i_RUP_11002_214_10003_00001_200007.png [image]](i_RUP_11002_214_10003_00001_200007.png)
![i_RUP_11002_214_10003_00001_200008.png [image]](i_RUP_11002_214_10003_00001_200008.png)
![i_RUP_11002_214_10003_00001_200009.png [image]](i_RUP_11002_214_10003_00001_200009.png)
![i_RUP_11002_214_10003_00001_200010.png [image]](i_RUP_11002_214_10003_00001_200010.png)
![i_RUP_11002_214_10003_00001_200011.png [image]](i_RUP_11002_214_10003_00001_200011.png)
![i_RUP_11002_214_10003_00001_200012.png [image]](i_RUP_11002_214_10003_00001_200012.png)
![i_RUP_11002_214_10003_00001_200013.png [image]](i_RUP_11002_214_10003_00001_200013.png)
![i_RUP_11002_214_10003_00001_200014.png [image]](i_RUP_11002_214_10003_00001_200014.png)
![i_RUP_11002_214_10003_00001_200015.png [image]](i_RUP_11002_214_10003_00001_200015.png)
![i_RUP_11002_214_10003_00001_200016.png [image]](i_RUP_11002_214_10003_00001_200016.png)
![i_RUP_11002_214_10003_00001_200017.png [image]](i_RUP_11002_214_10003_00001_200017.png)
![i_RUP_11002_214_10003_00001_200018.png [image]](i_RUP_11002_214_10003_00001_200018.png)
![i_RUP_11002_214_10003_00001_200019.png [image]](i_RUP_11002_214_10003_00001_200019.png)
![i_RUP_11002_214_10003_00001_200020.png [image]](i_RUP_11002_214_10003_00001_200020.png)
![i_RUP_11002_214_10003_00001_200021.png [image]](i_RUP_11002_214_10003_00001_200021.png)
![i_RUP_11002_214_10003_00001_200022.png [image]](i_RUP_11002_214_10003_00001_200022.png)
![i_RUP_11002_214_10003_00001_200023.png [image]](i_RUP_11002_214_10003_00001_200023.png)
![i_RUP_11002_214_10003_00001_200024.png [image]](i_RUP_11002_214_10003_00001_200024.png)
![i_RUP_11002_214_10003_00001_200025.png [image]](i_RUP_11002_214_10003_00001_200025.png)
![i_RUP_11002_214_10003_00001_200026.png [image]](i_RUP_11002_214_10003_00001_200026.png)
![i_RUP_11002_214_10003_00001_200027.png [image]](i_RUP_11002_214_10003_00001_200027.png)
![i_RUP_11002_214_10003_00001_200028.png [image]](i_RUP_11002_214_10003_00001_200028.png)
![i_RUP_11002_214_10003_00001_200029.png [image]](i_RUP_11002_214_10003_00001_200029.png)
![i_RUP_11002_214_10003_00001_200030.png [image]](i_RUP_11002_214_10003_00001_200030.png)
![i_RUP_11002_214_10003_00001_200031.png [image]](i_RUP_11002_214_10003_00001_200031.png)
![i_RUP_11002_214_10003_00001_200032.png [image]](i_RUP_11002_214_10003_00001_200032.png)
![i_RUP_11002_214_10003_00001_200033.png [image]](i_RUP_11002_214_10003_00001_200033.png)
![i_RUP_11002_214_10003_00001_200034.png [image]](i_RUP_11002_214_10003_00001_200034.png)
![i_RUP_11002_214_10003_00001_200035.png [image]](i_RUP_11002_214_10003_00001_200035.png)
![i_RUP_11002_214_10003_00001_200036.png [image]](i_RUP_11002_214_10003_00001_200036.png)
![i_RUP_11002_214_10003_00001_200037.png [image]](i_RUP_11002_214_10003_00001_200037.png)
![i_RUP_11002_214_10003_00001_200038.png [image]](i_RUP_11002_214_10003_00001_200038.png)
![i_RUP_11002_214_10003_00001_200039.png [image]](i_RUP_11002_214_10003_00001_200039.png)
![i_RUP_11002_214_10003_00001_200040.png [image]](i_RUP_11002_214_10003_00001_200040.png)
![i_RUP_11002_214_10003_00001_200041.png [image]](i_RUP_11002_214_10003_00001_200041.png)
![i_RUP_11002_214_10003_00001_200042.png [image]](i_RUP_11002_214_10003_00001_200042.png)
![i_RUP_11002_214_10003_00001_200043.png [image]](i_RUP_11002_214_10003_00001_200043.png)
![i_RUP_11002_214_10003_00001_200044.png [image]](i_RUP_11002_214_10003_00001_200044.png)
![i_RUP_11002_214_10003_00001_200046.png [image]](i_RUP_11002_214_10003_00001_200046.png)
![i_RUP_11002_214_10003_00001_200047.png [image]](i_RUP_11002_214_10003_00001_200047.png)
![i_RUP_11002_214_10003_00001_200048.png [image]](i_RUP_11002_214_10003_00001_200048.png)
![i_RUP_11002_214_10003_00001_200049.png [image]](i_RUP_11002_214_10003_00001_200049.png)
![i_RUP_11002_214_10003_00001_200050.png [image]](i_RUP_11002_214_10003_00001_200050.png)
![i_RUP_11002_214_10003_00001_200051.png [image]](i_RUP_11002_214_10003_00001_200051.png)
![i_RUP_11002_214_10003_00001_200052.png [image]](i_RUP_11002_214_10003_00001_200052.png)
![i_RUP_11002_214_10003_00001_200053.png [image]](i_RUP_11002_214_10003_00001_200053.png)
![i_RUP_11002_214_10003_00001_200054.png [image]](i_RUP_11002_214_10003_00001_200054.png)
![i_RUP_11002_214_10003_00001_200055.png [image]](i_RUP_11002_214_10003_00001_200055.png)
![i_RUP_11002_214_10003_00001_200056.png [image]](i_RUP_11002_214_10003_00001_200056.png)
![i_RUP_11002_214_10003_00001_200057.png [image]](i_RUP_11002_214_10003_00001_200057.png)
![i_RUP_11002_214_10003_00001_200058.png [image]](i_RUP_11002_214_10003_00001_200058.png)
![i_RUP_11002_214_10003_00001_200059.png [image]](i_RUP_11002_214_10003_00001_200059.png)
![i_RUP_11002_214_10003_00001_200060.png [image]](i_RUP_11002_214_10003_00001_200060.png)
![i_RUP_11002_214_10003_00001_200061.png [image]](i_RUP_11002_214_10003_00001_200061.png)
![i_RUP_11002_214_10003_00001_200062.png [image]](i_RUP_11002_214_10003_00001_200062.png)
![i_RUP_11002_214_10003_00001_200063.png [image]](i_RUP_11002_214_10003_00001_200063.png)
![i_RUP_11002_214_10003_00001_200065.jpg [image]](i_RUP_11002_214_10003_00001_200065.jpg)
![i_RUP_11002_214_10003_00001_200066.png [image]](i_RUP_11002_214_10003_00001_200066.png)
![i_RUP_11002_214_10003_00001_200067.png [image]](i_RUP_11002_214_10003_00001_200067.png)
![i_RUP_11002_214_10003_00001_200068.jpg [image]](i_RUP_11002_214_10003_00001_200068.jpg)
![i_RUP_11002_214_10003_00001_200069.jpg [image]](i_RUP_11002_214_10003_00001_200069.jpg)
![i_RUP_11002_214_10003_00001_200070.png [image]](i_RUP_11002_214_10003_00001_200070.png)
