|
COLOFON
-
Projectleider
Marlies Lenaerts
-
Ontwerpend Onderzoek en analyse
Toon Vanobbergen
-
Regisseur stadsprojecten
Filip Smits
1 INLEIDING
1.1 Aanleiding
Het RUP kadert binnen de uitvoering van het Masterplan Havana dat een herontwikkeling van de site Havana vooropstelt.
In oktober 2011 keurde het college een eerste masterplan Havanastraat goed. Dit masterplan omvatte de huisvesting van de Polytechnische campus Noord in de S.B. Housmanskazerne en het huisvesten van de noordelijke cluster van stedelijke ateliers en depots in de zone tussen de kazerne en de A12 voor een periode van 20 à 25 jaar.
In maart 2013 besloot het college om dit masterplan te herzien in functie van een programma voor grootschalige detailhandel. In oktober 2013 werden de krachtlijnen van een herzien masterplan Havanastraat door het college goedgekeurd als basis voor de verdere uitwerking van het definitieve programma van de site Havana.
De site Havana is volgens het gewestplan grotendeels bestemd als ‘woongebied’ en deels als ‘bufferzone’. De opmaak van een RUP is noodzakelijk om de vooropgestelde krachtlijnen van het masterplan Havana te realiseren.
2 SITUERING VAN HET STUDIEGEBIED
2.1 Situering van het plangebied
Het plangebied van het RUP is gelegen tussen verschillende bovenlokale verkeersinfrastructuren: de Havanastraat, de Noorderlaan, de Ekersesteenweg, de A12 en de spoorlijn Antwerpen – Rotterdam.
![i_RUP_11002_214_10017_00001_200000.jpg [image]](i_RUP_11002_214_10017_00001_200000.jpg)
![i_RUP_11002_214_10017_00001_200001.jpg [image]](i_RUP_11002_214_10017_00001_200001.jpg)
Figuur 1 I situering plangebied
2.2 Ontstaansgeschiedenis van het studiegebied
![i_RUP_11002_214_10017_00001_200002.jpg [image]](i_RUP_11002_214_10017_00001_200002.jpg)
Figuur 2 I Vandermaelen 1850 en militaire stafkaart 1948
Tot eind 19de eeuw wijzigt het studiegebied nauwelijks. Het landschap wordt gedomineerd door poldergronden en fragmentarische bebouwing.
De spoorlijn tussen Antwerpen en Rotterdam is in 1854 de eerste grote infrastructuur die wordt aangelegd. Ook de Noorderlaan wordt aangelegd en in 1870 wordt de Ekersesteenweg rechtgetrokken.
De S.B. Housmans kazerne wordt in de periode 1937-39 gebouwd. De opbouw en inrichting ervan verwijst naar de nieuwe vormen voor kazernebouw die tijdens het interbellum in Nederland werden ontwikkeld. De rechthoekige gebouwen zijn opgesteld rond een paradeplein met een hoofdgebouw en drie omliggende gebouwen. Evenwijdig met blok C staat een vijfde gebouw.
De S.B.Housmans kazerne is opgenomen in de Inventaris Onroerend Erfgoed.
![i_RUP_11002_214_10017_00001_200004.jpg [image]](i_RUP_11002_214_10017_00001_200004.jpg)
Figuur 3 I kazerne in aanbouw. (Kazernecomplex S.B. Housmans: cultuurhistorische evaluatie, monumenten- en welstandszorg, 2010)
![i_RUP_11002_214_10017_00001_200005.jpg [image]](i_RUP_11002_214_10017_00001_200005.jpg)
Figuur 4 I omgeving plangebied. (Kazernecomplex S.B. Housmans: cultuurhistorische evaluatie, monumenten- en welstandszorg, 2010)
![i_RUP_11002_214_10017_00001_200006.jpg [image]](i_RUP_11002_214_10017_00001_200006.jpg) ![i_RUP_11002_214_10017_00001_200007.jpg [image]](i_RUP_11002_214_10017_00001_200007.jpg)
![i_RUP_11002_214_10017_00001_200008.jpg [image]](i_RUP_11002_214_10017_00001_200008.jpg)
Figuur 5 I zichten vanuit omgeving naar kazerne (Kazernecomplex S.B. Housmans: cultuurhistorische evaluatie, monumenten- en welstandszorg, 2010
![i_RUP_11002_214_10017_00001_200009.jpg [image]](i_RUP_11002_214_10017_00001_200009.jpg)
Figuur 6 I ministerie openbare werken 1959 en topografische kaart 1982
Na WOII verstedelijkt de omgeving van het plangebied. De snelwegen A12 en E19 worden aangelegd, evenals de Burgemeester Jozef Massurebrug in het verlengde van de Havanastraat. Aan de overzijde van de Noorderlaan nemen de havenactiviteiten toe.
De wijk Luchtbal wordt verder uitgebreid. De Inventaris Onroerend Erfgoed vermeldt deze sociale woonwijk als relict.
Tegen eind jaren ’50 zijn er rond het kazernecomplex in het plangebied een 15-tal nieuwe gebouwen opgericht.
In 1970 wordt de S.B. Housmans kazerne verkocht aan de stad. De stad brengt er vervolgens een politiecentrum, stadsdiensten, een school en stadsmagazijnen in onder. Ook in de zone tussen de A12 en de kazerne worden stadsmagazijnen gebouwd.
![i_RUP_11002_214_10017_00001_200011.jpg [image]](i_RUP_11002_214_10017_00001_200011.jpg)
Figuur 7 I topografische kaart 1996 en luchtfoto 2012
Sinds de jaren ’80 is het aantal functies langs de Noorderlaan – Eksersesteenweg uitgebreid. Het volkstuincomplex wordt als eerste aangelegd. In 1986 wordt een stedenbouwkundige vergunning verleend voor het oprichten van een tankstation. Begin jaren’90 volgt het containerpark, dat een tiental jaar later volledig wordt gereorganiseerd.
Het oostelijk deel van het plangebied ondergaat ook enkele veranderingen. Een drukreduceerstation wordt aangelegd. In 2012 wordt een deel van de schietstand van de politie afgebroken.
2.3 Het studiegebied binnen de ruime omgeving
2.3.1 Diverse entiteiten
Het plangebied is gelegen in een omgeving met diverse entiteiten:
zuiden, tussen de Noorderlaan en de spoorweg, ligt de woonwijk Luchtbal. De wijk telt ca. 5600 inwoners en bestaat overwegend uit sociale woningbouw: 90% van de woningen zijn sociale huurwoningen.
De hoofdontsluiting van de wijk loopt via de Noorderlaan, de Havanastraat en de Groenendaallaan. Langs de Noorderlaan zijn lokale commerciële voorzieningen, zoals een supermarkt, een apotheek en een bank geconcentreerd. Dit commerciële centrum ligt ter hoogte van de brandweerkazerne aan de overzijde. Verder is er een aanbod aan onderwijs, sportterreinen en een cultureel centrum. Het CC Luchtbal heeft een bovenlokale aantrekking.
-
Ten noorden grenst de A12 aan De Oude Landen, een natuurgebied van 100 ha groot.
-
Aan de westzijde van het plangebied ligt de oostelijke uitloper van de haven rond het Derde Havendok.
-
Het gebied aan de overzijde van de Noorderlaan is een gemengde zone met kantoren, handelszaken en bedrijvigheid.
2.3.2 Ontsluiting
De omgeving van het plangebied kent een goede bereikbaarheid voor de verschillende vervoersmodi:
-
Autoverkeer kan via de op- en afrit aan de Groenendaallaan de E19 bereiken. De A12 is bereikbaar via het afrittencomplex aan de Noorderlaan. Ekeren en Merksem zijn via de Ekersesteenweg en de Havanastraat en Groenendaallaan te bereiken. De Noorderlaan en de Straatsburgbrug leiden naar het Eilandje en het stadscentrum.
-
Het openbaar vervoersaanbod bestaat zowel uit trein, tram als bus. Het station Noorderdokken is een halte op de spoorlijn Essen – Antwerpen. Nabij het station zijn halteplaatsen voor busdiensten van havenbedrijven.
Langs de Noorderlaan rijden meerdere buslijnen. Aan de hoofdtoegang van het plangebied is een halte.
Brabo 2 voorziet in een verdere uitbouw van de tram langs de Noorderlaan: de tram wordt langs de zijde van Luchtbal doorgetrokken tot de site Havana waar ook een keerlus en een park and ride is voorzien.
-
Een fietspad langs de Ekerse steenweg en de Noorderlaan verbindt het centrum van Ekeren met het centrum van Antwerpen. Een tweede fietspad dat behoort tot het provinciaal fietsroutenetwerk, loopt door de Oude Landen langs de spoorlijn, via de wijk Luchtbal tot het centrum van Antwerpen.
2.4 Het plangebied
2.4.1 Bebouwingsstructuur
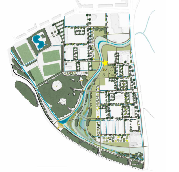
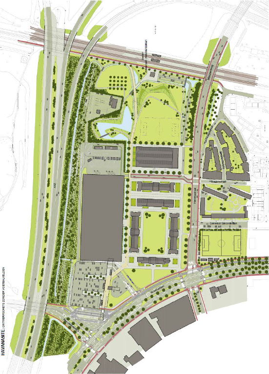
Een dominante factor in de bebouwingsstructuur is het kazernecomplex S.B. Housmans, gebouwd in de periode 1937 – 38. Dit complex dat vanuit de Havanastraat en de Noorderlaan beeldbepalend is, heeft vijf hoofdgebouwen waarvan er vier zijn gegroepeerd rond een rechthoekige binnenruimte, het paradeplein.
![i_RUP_11002_214_10017_00001_200013.jpg [image]](i_RUP_11002_214_10017_00001_200013.jpg)
Figuur 8 I geometrische opbouw inplanting gebouwen
Het hoofdgebouw langs de Noorderlaan heeft twee bouwlagen. De overige gebouwen bestaan uit drie bouwlagen.
![i_RUP_11002_214_10017_00001_200014.jpg [image]](i_RUP_11002_214_10017_00001_200014.jpg)
![i_RUP_11002_214_10017_00001_200016.jpg [image]](i_RUP_11002_214_10017_00001_200016.jpg) ![i_RUP_11002_214_10017_00001_200017.jpg [image]](i_RUP_11002_214_10017_00001_200017.jpg)
Figuur 9 I kazerne S.B. Housmans
De bebouwing rond deze kazerne is ingeplant volgens eenzelfde geometrisch grid. Enkel het tankstation en de schietstand van de politie volgen deze strakke inplanting niet.
2.4.2 Functionele structuur
In het plangebied dat een totale oppervlakte heeft van ca. 18 ha zijn verscheidene functies aanwezig:
-
A: S.B. Housmanskazerne
-
B: stel- en werkplaatsen in de gebouwen langs het kazernecomplex.
-
C: tankstation, bereikbaar via de Noorderlaan
-
D: containerpark Luchtbal, bereikbaar via de Noorderlaan.
-
E: Volkstuinen ten noorden van het tankstation, intussen reeds verplaatst naar Rozemaai..
-
F: schietstand van de politie.
-
G: station Noorderdokken met bijhorende parkeerplaatsen, bereikbaar langs de Argentiniëlaan
-
H: technische installatie “station Luchtbal” van Fluxys, bereikbaar langs de Argentiniëlaan
![i_RUP_11002_214_10017_00001_200018.png [image]](i_RUP_11002_214_10017_00001_200018.png)
Figuur 10 I invulling plangebied
![i_RUP_11002_214_10017_00001_200019.jpg [image]](i_RUP_11002_214_10017_00001_200019.jpg) ![i_RUP_11002_214_10017_00001_200020.jpg [image]](i_RUP_11002_214_10017_00001_200020.jpg)
![i_RUP_11002_214_10017_00001_200021.jpg [image]](i_RUP_11002_214_10017_00001_200021.jpg)
![i_RUP_11002_214_10017_00001_200023.jpg [image]](i_RUP_11002_214_10017_00001_200023.jpg)
![i_RUP_11002_214_10017_00001_200025.jpg [image]](i_RUP_11002_214_10017_00001_200025.jpg)
Figuur 11 I kazernecomplex en ateliers en depots
2.4.3 Mobiliteitsstructuur
Het plangebied wordt via twee randen ontsloten voor gemotoriseerd verkeer: in het westen via de Noorderlaan, in het zuiden via de Havanastraat en de Argentiniëlaan.
Publieke functies worden voornamelijk langs de Noorderlaan ontsloten: het politiekantoor, de volkstuinen, het containerpark en het tankstation. De Havanastraat ontsluit de stedelijke ateliers en depots. De Argentiniëlaan ontsluit de zone rond het station Noorderdokken.
Parkeren gebeurt verspreid tussen de verschillende gebouwen in het plangebied.
Naar lokaal openbaar vervoer aanbod valt de Havana-site binnen de 400m (op 5 min wandelen) van de toekomstige tramhalte en bestaand treinstation Noorderdokken (L-trein). Naar regionale uitstraling ligt het projectgebied buiten wandel-tramafstand (Vanuit de 3 hoogwaardige stations Centraal, Berchem en Zuid maximale reistijd van 15 min: ofwel 15 min/ 1 km wandelen ofwel rechtstreekse verbinding met tram (max 10 min rijden) en max 5 min wandelen (400m buffer)) (2de kaartje) en in toekomst wordt dit ook niet opgelost, want het station Noorderdokken is een lokaal en geen bovenlokaal station.
Lokale bereikbaarheid
![i_RUP_11002_214_10017_00001_200028.png [image]](i_RUP_11002_214_10017_00001_200028.png)
Bovenlokale bereikbaarheid
![i_RUP_11002_214_10017_00001_200030.png [image]](i_RUP_11002_214_10017_00001_200030.png)
Figuur 12 | lokale en bovenlokale bereikbaarheid
2.4.4 Groenstructuur
De gebruikswaarde van het groen in het plangebied is beperkt. De groene ruimte rond de schietstand wordt occasioneel gebruikt door de politie. Overig groen wordt niet of nauwelijks gebruikt voor activiteiten. De volkstuinen in het westen van het plangebied worden voor de aanleg van de keerlus binnen Brabo II ten zuiden van Rozemaai geherlocaliseerd.
De biologische waarderingskaart toont een dunne strook loofhoutaanplant langsheen de A12, aangeduid als biologisch waardevol. Eenzelfde waardering is gegeven aan twee groene ruimten naast de Burgemeester Jozef Masurebrug in het verlengde van de Havanastraat.
Deze bermenstroken zijn in realiteit aangeplant op verhoogde grond waardoor de effectieve waarde van die bermen te verwaarlozen is, hoewel uiteraard elk groen lint de grotere groenstructuur in beperkte mate versterkt.
De Oude Landen ten noorden van de A12 ligt is sinds 1980 beschermd als landschap. De biologische waardering is groot: heel dit gebied is aangeduid op de biologische waarderingskaart, waarbij de waardering varieert tussen biologisch minder waardevol (slechts een beperkte oppervlakte) tot biologisch zeer waardevol (een ruime oppervlakte). Dit gebied is tevens als faunistisch belangrijk gebied aangeduid.
Binnen de gebieden van VEN en IVON is het gebied Oude Landen en Bospolder opgenomen als Grote eenheid natuur (gen).
![i_RUP_11002_214_10017_00001_200031.png [image]](i_RUP_11002_214_10017_00001_200031.png)
Figuur 13 I Biologische waarderingskaart / Gebieden van VEN en IVON
2.5 Omgevingsanalyse
Dit hoofdstuk is opgebouwd uit fragmenten van een uitgebreide omgevingsanalyse van het projectgebied. Aan de hand van geodata (GIS) en statistische data werd de omgeving op een kwantitatieve en objectieve manier in beeld gebracht om zo tot een onderbouwde visie te komen. In de omgevingsanalyse komen de volgende thema’s aan bod: socio-demografie, economie, wonen, mobiliteit, milieu en lokale voorzieningen (onbebouwd en bebouwd).
Het projectgebied ligt in het noorden van de buurt Luchtbal-Noord (stat. sector J81-) en in de wijk Luchtbal, omringd door grote infrastructeren en door de wijken Haven Antwerpen, Schoonbroek-Rozemaai en Lambrechtshoeken- Merksem. (zie onderstaande kaart)
![i_RUP_11002_214_10017_00001_200032.png [image]](i_RUP_11002_214_10017_00001_200032.png)
Figuur 14 | statistische sector Luchtbal Noord, J 81
2.5.1 Algemene bevindingen
De wijk Luchtbal is op een aantal thema’s a-typisch ten opzichte van de gemiddelde cijfers voor die thema’s voor de rest van de stad.
Zo zijn er binnen de statistische sector Luchtbal Noord (J81) opvallend veel jongeren (31%) ten opzicht van het stadsgemiddelde dat 22% is.
De gemiddelde huishoudgrootte ligt daarom ook hoog (2,44 ten opzicht van een stadsgemiddelde van 2,14): als er veel kinderen zijn tussen 0 en 17 jaar, zijn er uiteraard in Luchtbal Noord veel gezinnen met kinderen aanwezig.
![i_RUP_11002_214_10017_00001_200033.jpg [image]](i_RUP_11002_214_10017_00001_200033.jpg)
Figuur 15 | percentage 0 tem 17-jarigen, 2015
![i_RUP_11002_214_10017_00001_200034.jpg [image]](i_RUP_11002_214_10017_00001_200034.jpg)
Figuur 16 | gemiddelde huishoudgrootte (aantal), 2015
Er zijn eveneens opvallend veel sociale woningen aanwezig binnen Luchtbal-Noord, alsook binnen Luchtbal-Zuid. Het gemiddelde aantal sociale woningen binnen de hele stad ligt op 10,1%.
![i_RUP_11002_214_10017_00001_200035.jpg [image]](i_RUP_11002_214_10017_00001_200035.jpg)
Figuur 17 | aandeel sociale woningen (%), 2014
![i_RUP_11002_214_10017_00001_200037.png [image]](i_RUP_11002_214_10017_00001_200037.png)
Figuur 18 | Kadaster – hoofdgebruik
![i_RUP_11002_214_10017_00001_200038.png [image]](i_RUP_11002_214_10017_00001_200038.png)
Figuur 19 | juridische bestemmingen (%), 2015
Tenslotte wonen alle bewoners (100%) op Luchtbal boven 40microgr (boven de EU-norm), stadsgemiddelde % inwoners dat boven de EU-norm van 40 µg/m³ stikstofdioxide leeft is 32,9%.
In hoofdstuk 4 ‘milieubeoordeling’ worden enkele courante maatregelen voor een verbetering van de leefkwaliteit opgesomd en wordt de conclusie van de geluids- en luchtstudie van 2012 aangehaald.
In hoofdstuk 6 ‘algemene concepten’ wordt onder hoofdstuk ‘Algemene ruimtelijke kwaliteit en milieukwaliteit’ een beoordelingskader luchtkwaliteit en geluidshinder voor kwetsbare groepen ter info meegegeven, alsook mogelijke maatregelen.
Het is opvallend dat de luchtkwaliteit in wijk Luchtbal er zo slecht aan toe is met gevolg voor al haar inwoners, aldus dienen de mogelijke maatregelen strikt in acht genomen bij de inrichting van een programma voor wonen of schoolfunctie op de Havanasite.
In de plan-MER (zie hoofdstuk 4 ‘milieubeoordeling’) wordt geconcludeerd dat de effecten van het plan voor de discipline lucht en geluid neutraal zijn, dat er geen negatieve effecten zijn ten opzichte van de huidige situatie. Er wordt bij de beoordeling van de negatieve effecten zowel rekening gehouden met de omvang en schaal van de impact van het plan of haar onderdelen, als met de kwetsbaarheid van de omgeving voor het betreffend milieuaspect. Niettegenstaande blijven lucht en geluidskwaliteit belangrijke aandachtspunten bij nieuwe ontwikkelingen in de omgeving.
2.5.2 Overzicht bestaande tekorten en tekortzones Havana
De analyse gebeurde op volgende statistische gebieden:
-
Buurt voorzieningen (loopafstand 400m, 5 min): buurt: J81-
-
Wijk voorzieningen (loopafstand 800m, 10 min): buurten: J81-, J881, J932, Q212, Q2AA
-
Stadsdeel voorzieningen (loopafstand 1.600m, 20 min of 10 min fietsen): wijken: LUCHTBAL, SCHOONBROEK-ROZEMAAI, DONK, LAMBRECHTSHOEKEN, TUINWIJK
![i_RUP_11002_214_10017_00001_200039.png [image]](i_RUP_11002_214_10017_00001_200039.png)
Figuur 20 | A. Buffer400m en selectie buurten, BUURT
B. Buffer 800m en selectie buurten, WIJK
C. Buffer1.600m en selectie wijken, STADSDEEL
Tekort = De kwantitatieve tekorten analyse geeft een ordegrootte van tekorten weer.
het stedelijk gemiddelde wordt als referentiewaarde gebruikt om te bepalen hoeveel voorzieningen er tekort zijn in een bepaalde buurt, wijk of stadsdeel (postzone)
Tekortzone = Naast het bepalen van de hoeveelheid van tekorten, is de ruimtelijke spreiding of de nabijheid en wandelafstand van deze lokale voorzieningen ook belangrijk. De tekortzone in de loopafstandenanalyse geeft aan waar de inplanting van een nieuwe voorziening het grootste effect heeft t.a.v. ruimtelijke spreiding en nabijheid.
Voorzieningen die zowel tekorten als tekortzones hebben, hebben uiteraard de eerste prioriteit.
Buurt: In het gebied rond Havana zijn er zowel tekorten als tekortzones voor de volgende buurt voorzieningen: speelterrein, slager (0,5 tekort) en bank (1,4 tekort). De andere buurtvoorzieningen hebben alleen tekortzones en geen tekorten: woonbuurtopenruimte, buurtsportterrein, basisschool, kinderopvang, jeugdwerk, apotheker, mini-superette en bakker.
Voor de wijk voorzieningen zijn er kleine tekorten en tekortzones voor dienstencentra (0,7 tekort) en supermarkten (0,6 tekort). Grote tekorten en geen tekortzones voor huisarts en tandarts. En tekortzones en geen tekorten voor wijk openruimte en hondenloopzones.
Voor de stadsdeel voorzieningen zijn er tekorten én tekortzones voor DKO Muziek (0,7 tekort), DKO Beeld (1,5 tekort), fuifruimte (3,7 tekort) en sporthal (2,7 tekort). Tekorten, maar geen tekortzones voor stadsdeel openruimte en middenschool. Alleen tekortzones en geen tekorten voor jeugdcentrum, zwembad, bibliotheek, cultuurcentrum, recyclagecentrum, stadskantoor en politiekantoor.
De vetgedrukte voorzieningen hebben een groter tekort dan de niet vetgedrukte.
![i_RUP_11002_214_10017_00001_200040.png [image]](i_RUP_11002_214_10017_00001_200040.png)
Figuur 21 | grafiek tekorten (links) en tekortzones (rechts) BUURTvoorzieningen
![i_RUP_11002_214_10017_00001_200041.png [image]](i_RUP_11002_214_10017_00001_200041.png) ![i_RUP_11002_214_10017_00001_200042.png [image]](i_RUP_11002_214_10017_00001_200042.png)
Figuur 22 | tekorten (links) en tekortzones (rechts) WIJKvoorzieningen
![i_RUP_11002_214_10017_00001_200043.png [image]](i_RUP_11002_214_10017_00001_200043.png) ![i_RUP_11002_214_10017_00001_200044.png [image]](i_RUP_11002_214_10017_00001_200044.png)
Figuur 23 | tekorten (links) en tekortzones (rechts) STADSDEELvoorzieningen
![i_RUP_11002_214_10017_00001_200045.png [image]](i_RUP_11002_214_10017_00001_200045.png) ![i_RUP_11002_214_10017_00001_200046.png [image]](i_RUP_11002_214_10017_00001_200046.png)
![i_RUP_11002_214_10017_00001_200047.png [image]](i_RUP_11002_214_10017_00001_200047.png)
Figuur 24 | synthese tekorten (links) en tekortzones (rechts) STADSDEELvoorzieningen
3 PLANNINGSCONTEXT
3.1 Ruimtelijke plannen met bindend karakter
3.1.1 Gewestplan
Het plangebied is volgens het gewestplan Antwerpen (KB 03.10.1979) gelegen in de bestemmingszones woongebied en bufferzone. Daarbij geldt een aanvullend voorschrift door de ligging in de bruinomrande zone binnen de stedelijke agglomeratie.
De woongebieden zijn bestemd voor wonen, alsmede voor handel, dienstverlening, ambacht en kleinbedrijf voor zover deze taken van bedrijf om redenen van goede ruimtelijke ordening niet in een daartoe aangewezen gebied moeten worden afgezonderd, voor groene ruimten, voor sociaal-culturele inrichtingen, voor openbare nutsvoorzieningen, voor toeristische voorzieningen, voor agrarische bedrijven. Deze bedrijven, voorzieningen en inrichtingen mogen echter maar worden toegestaan voor zover ze verenigbaar zijn met de onmiddellijke omgeving.
De bufferzones dienen in hun staat bewaard te worden of als groene ruimte ingericht te worden, om te dienen als overgangsgebied tussen gebieden waarvan de bestemmingen niet met elkaar te verenigen zijn of die ten behoeve van de goede plaatselijke ordening van elkaar moeten gescheiden worden.
Het aanvullend voorschrift legt bepalingen vast betreffende de hoogte van gebouwen. De hoogte wordt afgestemd op volgende criteria:
-
De in de onmiddellijke omgeving aanwezige bouwhoogte;
-
De eigen aard van het gebied (stedelijke agglomeratie);
-
De breedte van het voor het gebouw gelegen openbaar domein.
![i_RUP_11002_214_10017_00001_200048.jpg [image]](i_RUP_11002_214_10017_00001_200048.jpg)
Figuur 25 I gewestplan
3.1.2 A12 – Zone non Aedificandi
Onderstaande afbeelding geeft de bouwvrije zone van 30 meter langs de A12 weer. Meer specifiek geldt dat in de eerste 10 meter vanaf de gracht geen werken uitgevoerd mogen worden. In de overige 20 meter mag geen bebouwing opgetrokken worden, wel mag verharding aangebracht worden.
In functie van de afwikkeling van de zone voor P&R (waar mogelijks een parkeergebouw van maximaal 2700 parkeerplaatsen wordt opgericht) en de laad- en loszone van het ontwikkelingsveld voor een grootschalige detailhandel, wordt op het grafisch plan van het RUP Havana een zone voor openbare wegenis voorzien die deels gelegen is binnen de bouwvrije zone van 30 meter ten zuiden van de A12.
Het Koninklijk Besluit betreffende de vrije stroken langs autosnelwegen (datum 04/06/1958) stelt:
“Art. 1. De vrije stroken beslaan een breedte van dertig meter aan weerszijden van de grens van het domein van de autosnelweg. Benevens de rijbanen, de stationeerstroken en de als zodanig gerangschikte toegangswegen, omvat het domein van de autosnelweg, gans het Rijksdomein aan weerszijden van de weg, dat met het oog op de behoeften en voor de dienst van de autosnelweg is ingericht.
Art. 2. Het is verboden in die stroken te bouwen, te herbouwen of bestaande bouwwerken te verbouwen. Dat verbod geldt niet voor instandhoudings- en onderhoudswerken.
Het is verboden in die stroken onwettig opgerichte bouwwerken te handhaven.
Voorbij de tiende meter, gemeten van de grens van het domein van de autosnelweg, kan de wegbeheerder echter afwijkingen van het in het eerste lid gestelde verbod toestaan.”
Art. 2 van het Koninklijk Besluit betreffende de vrije stroken langs autosnelwegen van 1958 laat toe aan de wegbeheerder een afwijking te vragen op het verbod om in de vrije stroken van dertig meter aan weerszijden van de grens van het domein van de autosnelweg te bouwen, te herbouwen of bestaande bouwwerken te verbouwen.
![i_RUP_11002_214_10017_00001_200049.png [image]](i_RUP_11002_214_10017_00001_200049.png)
Figuur 26 I Zone non aedificandi langs A12
3.1.3 GRUP Afbakening zeehavengebied Antwerpen
Het plangebied grenst aan westelijke zijde aan het gewestelijk RUP Afbakening zeehavengebied Antwerpen. In april 2013 stelde de Vlaamse regering dit GRUP definitief vast.
Het GRUP Afbakening zeehavengebied Antwerpen geeft uitvoering aan de gewenste ruimtelijke structuur zoals vastgelegd in het RSV. De af te bakenen zeehavengebieden, waaronder de zeehaven van Antwerpen, zijn er exclusief voorbehouden voor zeehavengebonden industriële, distributie-, opslag-, overslag en logistieke zeehavenactiviteiten.
![i_RUP_11002_214_10017_00001_200050.png [image]](i_RUP_11002_214_10017_00001_200050.png)
![i_RUP_11002_214_10017_00001_200051.png [image]](i_RUP_11002_214_10017_00001_200051.png)
Figuur 27 I GRUP Afbakening zeehavengebied Antwerpen, fragment
3.1.4 Atlas der buurtwegen
Buurtweg nr. 1 loopt doorheen het plangebied van het RUP en buurtweg nr. 3 loopt er zuidoostelijk langs.
In de feitelijke toestand zijn deze buurtwegen niet meer herkenbaar. De infrastructuur van de A12 te noorden en de spoorweg Antwerpen-Amsterdam te oosten hebben de buurtwegen 1 en 3 ter hoogte van het plangebied afgesneden en de doorgang gehypothekeerd.
Buurtweg nummer 1 die dwars door de contour van het RUP loopt is in werkelijkheid niet meer aanwezig of bruikbaar. Er is zelfs geen spoor van wandelroute, pad of weg te bespeuren.
Binnen de ontwikkelingsvisie van het RUP Havanastraat wordt een structurerende ontsluitingsstructuur uitgezet met een centrale groene oos-west as voor fietsers en voetgangers waardoor de doorwaadbaarheid en het publiek karakter van de site enorm zal toenemen. De buurtweg uit het verleden vindt met het RUP Havana een compensatie volgens nieuwe inzichten en noden, en volgens de actuele ruimtelijke en stedenbouwkundige realiteit.
Een procedure tot afschaffing van de buurtweg werd opgestart.
![i_RUP_11002_214_10017_00001_200053.png [image]](i_RUP_11002_214_10017_00001_200053.png)
Figuur 28 | tracé van buurtweg nr 1 en 3 , atlas van de buurtwegen (boven) en GRB (onder)
![i_RUP_11002_214_10017_00001_200054.png [image]](i_RUP_11002_214_10017_00001_200054.png)
Figuur 29 | tracé van buurtweg nummer 1 over de luchtfoto
3.2 Ruimtelijke beleidsplannen
3.2.1 Ruimtelijk structuurplan Vlaanderen
Het Ruimtelijk Structuurplan Vlaanderen (RSV) werd door de Vlaamse Regering in 1997 goedgekeurd en werd later gewijzigd.
Met de metafoor ‘Vlaanderen, open en stedelijk’ wil het RSV een trendbreuk realiseren met betrekking tot de ruimtelijke ontwikkeling. Deze trendbreuk beoogt de versterking van het buitengebied en het tegengaan van de versnippering door een beter gebruik en beheer van de stedelijke structuur. Daarom wordt het principe van gedeconcentreerde bundeling vooropgesteld. Deze bundeling streeft een selectieve concentratie na van de groei van het wonen, het werken en de andere maatschappelijke functies in de stedelijke gebieden en in de kernen van het buitengebied. Vanuit deze optie moeten de stedelijke gebieden worden versterkt waarbij er activiteiten worden geconcentreerd en gestimuleerd.
Volgende ontwikkelingsperspectieven voor stedelijk gebied staan onder meer voorop:
-
Het realiseren van een groter aandeel bijkomende woongelegenheden;
-
Het versterken van de multifunctionaliteit;
-
Concentreren van kantoren aan knooppunten van het openbaar vervoer;
-
Het verzorgen van collectieve en openbare ruimten;
-
Het behoud en de ontwikkeling van stedelijke natuurelementen en randstedelijke groengebieden;
-
Het stimuleren van een stedelijk mobiliteit- en locatiebeleid.
Alle stedelijke gebieden zijn economische knooppunten.
De hoofdwegen met als hoofdfunctie het verbinden op internationaal niveau en als aanvullende functie verbinden op Vlaams niveau, zijn:
-
R1 van A1 (Ekeren) tot A14 (Linkeroever);
-
A1 van R1 (Ekeren) naar Breda;
-
A12 van A1 (Ekeren) naar Bergen op Zoom;
-
Noordelijke sluiting R1 aan te leggen van A11/N49 tot R1.
De R10 (Singel) van een te verbeteren verbinding met de N180 (Noorderlaan) en de N101 (Scheldelaan) tot een te verbeteren aansluiting op de N113 (Amerikalei) is geselecteerd als primaire weg categorie II zijn aangeduid.
De lijn Brussel-Antwerpen-Roosendaal (Amsterdam) is onderdeel van het hoofdspoorwegennet voor personenvervoer.
3.2.2 Ruimtelijk Structuurplan Provincie Antwerpen
Het Provinciaal Ruimtelijk Structuurplan Antwerpen werd in januari 2001 definitief vastgesteld.
In het structuurplan worden 4 grote hoofdruimten aangeduid binnen de provincie waarvan de ‘Antwerpse fragmenten’ van toepassing is voor het RUP. Karakteristiek voor de hoofdruimte is de sterke verwevenheid van functies en activiteiten. Aan deze hoofdruimte wordt een beleid gekoppeld van omgaan met fragmentatie: de verdergaande fragmentatie van de provincie Antwerpen wordt binnen de grenzen van de ‘Antwerpse fragmenten’ gehouden. De kwaliteit van de woonomgevingen moet worden verhoogd, met nieuwe nederzettings- en woontypologieën, nabijheid van voorzieningen, goede verplaatsingsmogelijkheden en groenstructuren.
De hoofdruimte Antwerpse fragmenten is verder uitgewerkt in deelruimten, waaronder Grootstedelijk Antwerpen. Deze deelruimte behoudt een centrale rol en biedt ruimte aan de meest hoogwaardige functies. Dat geldt voor wonen, bedrijvigheid, dienstverlening, grootschalige voorzieningen, (bv cultuur, gezondheidszorg, recreatie,..), distributie of verkeer. Een dergelijke concentratie van functies mag niet worden verzwakt door nieuwe polen van dit niveau te creëren.
3.2.3 Strategisch ruimtelijk structuurplan Antwerpen
Het strategisch ruimtelijk structuurplan Antwerpen, het s-RSA, werd definitief goedgekeurd door de Bestendige Deputatie op 22 december 2006.
Er worden in het s-RSA twee ruimtelijke strategieën vastgelegd: het generiek beleid en het actief beleid. Het generiek beleid is opgebouwd uit 7 beelden: de waterstad, de ecostad, de havenstad, de spoorstad, de poreuze stad, de dorpen en de metropool en de megastad. Het actief beleid is coherent met het generiek beleid, maar bakent ruimten af waar strategische programma’s en projecten worden ingezet. De 5 geselecteerde ruimten zijn de harde ruggengraat, zachte ruggengraat, lager netwerk en stedelijke centra, groene singel en levendig kanaal.
De ambitie van het strategisch Ruimtelijk Structuurplan Antwerpen (s-RSA) voor de Havanastraat als strategisch gebied en als noordelijke poort tot de metropool, werd uitgedrukt in het masterplan Havanastraat en wordt middels het RUP verder vertaald naar stedenbouw-kundige voorschriften en een grafisch plan.
GENERIEK BELEID
Havenstad
Het s-RSA stelt dat de ruimtelijke interacties tussen stad en haven, de mogelijkheden om de stad en polders goed te laten aansluiten aan de haven, en omgekeerd: de afwerking van de haven in de richting van de stad, moeten uitgewerkt worden. De Noorderlaan en omgeving is in dit kader een geselecteerd gebied, grenzend aan de haven en wordt beschreven als een locatie voor grootschalige stedelijke functies en voorzieningen. Het gebied verzorgt tevens de verbindingsfunctie tussen Luchtbal, Rozemaai en Ekeren met de stad en heeft voor deze gebieden dus ook een lokaal ondersteunende betekenis.
>> Grootschalige stedelijke functies worden gesuggereerd binnen het generiek beleid voor Noorderlaan en omgeving
>> Met een nieuw multimodaal knooppunt (tramkeerlus) nabij een nieuwe P&R in het plangebied, wordt de verbinding van de omgeving met de stad versterkt
>> de oostelijke groenzone met daardoorheen de langzaamverkeersroutes lr1 en lr2 vernetwerken Merksem, Luchtbal en Ekeren met het multimodaal knooppunt.
>> Ook de Haven krijgt er een multimodaal overstappunt bij met P&R en wordt zo beter omsloten
Spoorstad
Bij het beeld van de Spoorstad worden de radialen voorgesteld als territoriale boulevards.
De tramlijnen op de territoriale boulevards worden steeds beschouwd als ruimtelijk structuurbepalend, zowel op het niveau van de straat (profielbepalend) en haar omgeving (functiebepalend) als op het niveau van de ganse stad. Ze maken van Antwerpen een ‘open’ stad voor de buurgemeenten. De selectie van de Noorderlaan als territoriale boulevard met tramverbinding houdt een herinrichting in naar de status als boulevard. De tramlijn, komende van de Leien en Spoor Noord, zal toegang moeten verschaffen tot Luchtbalstation en de residentiele gebieden en tevens de oversteekbaarheid moeten bevorderen.
Bij de voorstellen voor park & rides staat ‘overgang Noorderlaan-Ekersesteenweg’ als potentiële locatie voor een nieuwe park & ride genoteerd.
Er wordt verder gesteld dat bepaalde woongebieden naast de inrichting van een park & ride best verder ontwikkeld worden (oa langs de Noorderlaan), in tegenstelling tot andere woongebieden die omwille van de realisatie van een beter lager netwerk uitgesloten moeten worden voor verdere ontwikkeling.
>> het RUP Havana biedt een nieuw juridisch kader om een P&R gebouw te kunnen oprichten, ter ondersteuning van de tramkeerlus volgens plannen van Brabo 2 voor de Noorderlijn, de nieuwe tramroute over de Noorderlaan
>> het RUP Havana biedt ruimte voor ontwikkeling omdat de Noorderlaan geselecteerd is als stedelijke territoriale boulevard. De P&R is gelegen aan een nieuwe ontwikkelingspool en nieuwe P&R en de andere mogelijke ontwikkelingen zullen elkaar versterken.
>> De P&R is zo dicht mogelijk bij het openbaar vervoersknooppunt gelegen om het comfort van de reizigers te verzekeren.
De dorpen en de metropool_wonen
De leefbaarheid van de Luchtbal wordt vergroot door in Luchtbal Noorderdokken een plek aan te bieden voor gemeenschappelijke recreatieve voorzieningen in open lucht. Het garanderen van de leesbaarheid en de vlotte bewegingen tussen de voorzieningen is de basisdoelstelling
voor dit gebied, als eindpunt van de woonwijk. Een tweede doel is het benadrukken van de oost-westverbinding tussen deze cluster en Merksem (gebruikmakend van bestaand groen) en tussen het water (de haven) en Luchtbal. Door de herinrichting ontstaat een afgewerkte open
![i_RUP_11002_214_10017_00001_200055.png [image]](i_RUP_11002_214_10017_00001_200055.png)
Figuur 30 I Woningprogrammatie (links), cultuurrecreatieve cluster Luchtbal (rechts)
ruimte met een beter recreatief gebruik, die noodzakelijk is voor het herstructureren en dicht woonweefsel te Luchtbal. De Havanastraat kan eventueel aan de noordzijde afgewerkt worden met een bebouwingswijze die coherent is met de watergevoeligheid en met een cultuurrecreatieve functie die aansluit bij de lokale cluster.
>> De ontwikkelingsvelden zijn compact uitgezet aan de zijde van de Noorderlaan om de oostelijke zijde van het plangebied te vrijwaren als een in hoofdzaak open groene ruimte die recreatief kan worden ingezet.
>> open lucht sportfaciliteiten zijn opgenomen in de voorschriften en in het referentieplan voor de open ruimte in de groenzone
>> het gebied wordt dooraderd met nieuw publiek domein en routes en assen voor zacht verkeer die in uitvoering van het referentieplan open ruimte kwalitatief zullen worden aangelegd
>> het referentieplan open ruimte toont een kwalitatief samenhangend geheel van nieuwe publieke ruimte in het gebied met de centrale as als brede groene boulevard voor fietsers en voetgangers, gekoppeld aan de fietsostrade en station Noorderdokken
>> In de zones voor centrumfuncties Ce2 (de kazerne) en Ce3 zijn cultuurrecreatieve functies mogelijk. In de kazerne is tevens een woonbestemming mogelijk. Deze centrumfuncties zijn gesitueerd tegenover het aangegeven buurtcentrum in de wijk Luchtbal langsheen de Havanastraat
De dorpen en de metropool_werken
De Noorderlaan wordt vernoemd in het hoofdstuk ‘Grootschalige detailhandel’, naast Boomsesteenweg, Bredabaan en Lobroekdok-Slachthuis. Met betrekking tot grootschalige detailhandel worden de reeds bestaande concentraties geoptimaliseerd. Hierbij dient een
duurzaam evenwicht te worden nagestreefd tussen bereikbaarheid met openbaar vervoer en autobereikbaarheid. Verder staat optimalisering van de bestaande grootschalige handelsconcentraties voor: behoud en herstructurering, inbreiding en verdichting, clustering en thematisering. Clusters langs de Boomsesteenweg, de Noorderlaan (zuidelijk deel tussen Noorderlaan en Vosseschijnstraat) en de Bredabaan worden aangeduid als te optimaliseren grootschalige handelscluster. In de cluster Noorderlaan is een verweving met stedelijke voorzieningen mogelijk.
>>‘De Noorderlaan’ wordt in dit licht begrepen als het zuidelijk deel van de Noorderlaan tussen Noorderlaan en Vosseschijnstraat, het optimaliseren van de bestaande cluster rond Metropolis, maar gezien het kruispunt Noorderlaan x Groenendaallaan vandaag echter verzadigd is voor autoverkeer, en ook een hoge verzadigingsgraad zal kennen na heraanleg, zijn bepaalde ontwikkelingen in het noorden eenvoudiger te ontsluiten dan in het zuiden. Op basis van deze vaststelling stelt het studiebureau van de MOBER Noorderlaan een voorstel van programma op met op de Havanna site een functie die veel verkeer aantrekt in een avondspits. Grootschalige detailhandel is een voorbeeld van zo een functies.
>>Het RUP Havana voorziet in de verweving van één grootschalige detailhandel met andere stedelijke centrumfuncties (mogelijk in zone Ce2, de kazerne, en de zones Ce3)
ACTIEF BELEID
Harde ruggengraat / Programma Noorderlaan
De Noorderlaan is het noordelijke uiteinde van de harde ruggengraat en vormt, zoals voorgesteld in het beeld van de Havenstad, een verbinding tussen haven en stad.
Het s-RSA vraagt naar een meer uitgebalanceerde structuur met betrekking tot hoogdynamische, verkeersaantrekkende stedelijke functies, en vergelijkt de Noorderlaan ten noorden met de Boomsesteenweg in het zuiden van de stad en het noordelijk deel van de Bredabaan in het oostelijke deel van de stad.
De strategische projecten binnen het Noorderlaan-programma zijn Noorderlaan, Luchtbal station en Luchtbal-Noord.
- Strategisch project Noorderlaan: De Noorderlaan kan evolueren naar een as met omvangrijke hoogbouw, winkelcentra, andere grootstedelijke functies en/of activiteiten en KMO en havengerelateerde functies. Het hoofddoel in de omgeving van de Noorderlaan is het gebied te verdichten met andere types woningen dan de bestaande, om een mix van verschillende sociale, leeftijds- en inkomensgroepen te realiseren. Het tracé van de Noorderlaan zal heringericht worden om de status van boulevard te krijgen. De tramlijn, komende van de Leien en Spoor Noord, zal toegang moeten verschaffen tot Luchtbalstation en de residentiële gebieden en tevens de oversteekbaarheid moeten bevorderen. Enkele nieuwe woonprojecten kunnen toegevoegd worden. Deze moeten van een andere aard zijn dan de aanwezige en typische sociale huisvestingtypes van de Luchtbal. De ruimten die rechtstreeks verbonden zijn met de openbare weg vormen een belangrijke schakel om een algemene verbetering van de kwaliteit van het publieke domein te bewerkstelligen.
- Strategisch project Luchtbal station: Omdat het gebied in de buurt ligt van een nieuw IC-treinstation (Luchtbal) en de haven en omdat in deze buurt in de toekomst nieuwe kantoren gebouwd kunnen worden, is de kans groot dat deze ambities gemakkelijk verwezenlijkt kunnen worden, gebruik makend van de toekomstige dynamiek. Langs de Noorderlaan, zuidelijk deel contactzone, kan ruimte geboden worden voor een geclusterde uitbouw van grootschalige kleinhandelsactiviteiten en stedelijke voorzieningen.
- Strategisch project Luchtbal-Noord: Deze selectie omvat onder meer de Havanasite. Hier zijn nog enkele bebouwbare terreinen aanwezig. Omwille van overstromingsgevaar zijn de meeste stukken echter niet bruikbaar. De beschikbaarheid van deze braakliggende gronden bieden, mede door de nabijheid van het spoorwegstation Noorderdokken en andere bestaande voorzieningen, een mogelijkheid tot het ontwikkelen van een nieuwe, kwalitatief ingerichte centraliteit, o.a. met nieuwe sportfaciliteiten in open lucht. Een belangrijk doel is het afzwakken van de huidige scheiding veroorzaakt door de infrastructuur en het versterken van de verbindingen tussen de verschillende delen, zowel ten noorden als ten zuiden van de Masurebrug (de brug zelf maakt deel uit van het lager netwerk), via een nieuw stedelijk centrum. Open ruimten en toegeruste groene ruimten zijn fundamenteel voor deze continuïteit.
Doelstelling is het benadrukken van de functie van het buurtcentrum, in relatie met de Noorderlaan en de grote handelszaken, KMO’s en stedelijke voorzieningen die erlangs gelegen zijn.
>> onder andere omwille van het in het s-RSA besproken overstromingsgevaar is de oostelijke zone in het RUP ingekleurd als open groene ruimte
>> open lucht sportfaciliteiten zijn opgenomen in de voorschriften en in het referentieplan voor de open ruimte in de groenzone
>> het gebied wordt dooraderd met nieuw publiek domein en routes en assen voor zacht verkeer die in uitvoering van het referentieplan open ruimte kwalitatief zullen worden aangelegd
>> de verbindingen worden binnen het mogelijke versterkt door de fietsostrade in het oosten te bevestigen en te verbinden via de centrale groene as tot aan het multimodaal knooppunt in het westen van het plangebied, een nieuwe openbare weg te voorzien in het verlengde van de Bostonstraat (Luchtbal) met een extra lichten geregeld kruispunt en de organisatie van een multimodaal knooppunt
>> De Havanasite zal met de ontwikkeling van een multimodaal knooppunt met P&R, een detailhandel, de herinrichting van een nieuw containerpark en een herbestemming van de kazerne een nieuw stedelijk centrum worden.
>> Het plangebied dat tot nu toe uit een voornamelijk afgebakend terrein bestaat, zal dankzij de aanleg van nieuwe wegenis en een aantal nieuwe publieke assen en plaatsen een publiek en stedelijk karakter krijgen. De site wordt middels de voorschriften en het nieuwe grafisch plan een aantrekkelijk stedelijke deel van de harde ruggengraat.
![i_RUP_11002_214_10017_00001_200056.png [image]](i_RUP_11002_214_10017_00001_200056.png)
![i_RUP_11002_214_10017_00001_200058.png [image]](i_RUP_11002_214_10017_00001_200058.png)
Figuur 31 I Harde ruggengraat en Programma Noorderlaan
Zachte Ruggengraat / Noorderpark
De strategische ruimte ‘Zachte Ruggengraat’ heeft als voornaamste doelstelling het creëren van een krachtig samenhangend ecologisch systeem en is samengesteld uit vijf grote stedelijke parken. Het plangebied wordt begrensd door het Noorderpark, een van de vijf stedelijke parken.
Het Noorderpark moet de ontwikkeling garanderen van de verbindende parkstructuur in het noordelijk deel van de stad en moet het bebouwde perifere landschap in Brasschaat/Schoten verbinden met de Schelde en het centrum. Een andere doelstelling is de ontwikkeling van de ecologische waarden van de gebieden langs de Laarse en Donkse beek enerzijds, en het voorzien van voldoende recreatieve en sportfaciliteiten voor Luchtbal, Merksem en Ekeren anderzijds.
Binnen het programma van het Noorderpark stelt het ruimtelijk structuurplan volgende strategische projecten voor: Noordelijke link en Laarse en Oudelandse beek.
![i_RUP_11002_214_10017_00001_200060.png [image]](i_RUP_11002_214_10017_00001_200060.png)
![i_RUP_11002_214_10017_00001_200061.png [image]](i_RUP_11002_214_10017_00001_200061.png)
Figuur 32 I Zachte ruggengraat / Programma Noorderpark
- Strategisch project Noordelijke link
De verbreding van het Albertkanaal en de constructie van de Oosterweelverbinding kunnen een opportuniteit zijn om een park te realiseren dat deel uitmaakt van een nieuw waterfront aan het kanaal.
>> de herontwikkeling van de Havanasite en dit strategisch project hebben weinig invloed op elkaar
- Strategisch project Laarse – Oudelandse beek
Dit strategisch project vertrekt vanuit de intentie een doorlopend park te realiseren langsheen het water met het behoud van de natuurlijke waarde en het toevoegen van enkele ‘lichte’ uitrustingen: voet- en fietspaden en enkele kleinere voorzieningen in de onmiddellijke omgeving van woningen.
Bij dit vernieuwingsproject voor het water zal tevens de recreatieve relatie met de omliggende woonwijken mee bekeken worden: een nieuw speelbos voor de buurt, het behoud van de spoorwegovergang aan Lijn 12, en het voorzien in een nieuwe spoorwegovergang aan Lijn 27A. Het structuurplan stelt voor om de buffercapaciteit van bijkomende natte natuur langsheen de waterlopen in dit gebied (Laarse en Donkse beek), als ontwerpconcept mee te nemen. De inplanting van de bundels moet ook rekening houden met het verval van de Laarse beek en de gewenste afvoer naar het Schijn. De mogelijkheid kan onderzocht worden om stroomafwaarts aan de Oude Landen (ten westen van de Ekerse Steenweg) een nieuwe open bedding te graven die zowel het debiet van de Laarse Beek, de Oudelandse Beek als de Donkse Beek kan opvangen. In elk geval moet de inplanting van de spoorwegbundels ten
![i_RUP_11002_214_10017_00001_200062.png [image]](i_RUP_11002_214_10017_00001_200062.png)
Figuur 33 | waterlopen en beken in de omgeving
zuiden van het stroomgebied van de Oudelandse beek beperkt blijven, om zo een bufferzone en parkgebied te behouden ten noorden ervan. Enerzijds als behoud van
het landschappelijk karakter en anderzijds om de kwaliteit van het nabij gelegen woongebied te vrijwaren.
>> de groenzone in het oostelijk deel van de Havanasite is een stapsteen in de oksel van het Noorderpark
>> de groenzone wordt eerder opgevat als een recreatieve, verbindende stapsteen, dan de ambitie te hebben om een ecologische stapsteen te zijn
>> de groenzone ligt in de onmiddellijke omgeving van de woningen van Luchtbal waardoor ‘lichte’ uitrustingen zoals voet- en fietspaden en enkele aanvullende voorzieningen zoals de mogelijkheid voor de inrichting van sportinfrastructuur worden mogelijk gehouden.
>> de buffercapaciteit wordt middels de mogelijkheid tot aanleg van een wadi en grachtenstelsel als bijkomende natte natuur in de nabijheid van de waterlopen in dit gebied (Laarse en Donkse beek), alvast als ontwerpconcept mee genomen en zo ook in het referentieplan open ruimte uitgewerkt.
Lager netwerk en stedelijke centra
Antwerpen moet opnieuw investeren in het netwerk van lokale wegen (stedelijke en territoriale boulevards, winkelstraten) en in het openbaar vervoer. Vooral het netwerk van tramlijnen bepaalt de strategische ruimten van het lager netwerk en structureert de stedelijke en grootstedelijke regio.
Het lager netwerk heeft betrekking tot het domein van straten, boulevards, tramlijnen; over het algemeen beschouwd als secundair volgens de hiërarchie die de snelwegen bovenaan plaatst.
Dit lager netwerk, gesitueerd in het gefragmenteerde en diffuse grondgebied van de Antwerpse regio, kan een belangrijke structurerende en strategische rol vervullen om de mobiliteit in deze ruimte te verbeteren. Het doel van het ruimtelijk structuurplan is het verhogen van de kwaliteit van het lager netwerk als een manier om de kwaliteit van de gebieden die hieraan gerelateerd zijn te bevorderen: de stedelijke buurtcentra, de winkel-straten, de stationsomgevingen en de gebieden langsheen de tramlijnen. Het concept van het lager netwerk wordt sterk gestuurd vanuit het beeld van de Spoorstad.
>> Het lager netwerk wordt versterkt door aan de eindhalte een park & ride van maximaal 12 wagens te voorzien
>> een structurerende ontsluitingsstructuur is één van de vijf krachtlijnen van het masterplan voor dit RUP. Gemotoriseerd verkeer, vrachtverkeer en zacht verkeer worden hierbij maximaal uit elkaar getrokken
>> het referentieplan open ruimte toont een kwalitatief samenhangend geheel van nieuwe publieke ruimte in het gebied met de centrale as als brede groene boulevard voor fietsers en voetgangers, gekoppeld aan de fietsostrade en station Noorderdokken
3.2.4 Masterplan 2020: tramlijnproject Brabo 2
In september 2010 keurde de Vlaamse regering het Masterplan 2020 goed. Het plan heeft volgende doelstellingen: het garanderen van de bereikbaarheid van stad en haven, het verhogen van de verkeersveiligheid en het herstellen van de leefbaarheid.
![i_RUP_11002_214_10017_00001_200063.png [image]](i_RUP_11002_214_10017_00001_200063.png)
Figuur 34 | Brabo 2, NOORDERLIJN
Brabo 2 is een van de onderdelen van het masterplan 2020. Met de aanleg van de Noorderlijn, ook bekend onder de technische naam Brabo 2, wordt het noorden van Antwerpen in verschillende fasen bereikbaar met de tram. Het project houdt de tramdoortrekking tot de site Havana in, vanaf de Noorderplaats via de Noorderlaan tot aan het kruispunt Noorderlaan – Ekersesteenweg.
Vanaf het kruispunt met de Groenendaallaan wordt de Noorderlaan van rooilijn tot rooilijn heraangelegd, inclusief een aan de oostzijde excentrisch gelegen trambusbaan en een ventweg aan de westzijde. Ter hoogte van het kruispunt Noorderlaan – Ekersesteenweg is een Park & Ride (P&R) voorzien.
Deze Park & Ride is een voorstadsknoop op de kruising van het radiaal georganiseerde bovenlokaal tramnet en de grote Ring rond Antwerpen.
De P&R functioneert veeleer op een bovenlokaal niveau. Zijn strategische positie ter hoogte van de verkeerswisselaar en aansluitingscomplex A12-E19 ondersteunt deze keuze. Verkeer met bestemming kernstad Antwerpen kan de snelweg verlaten en overstappen op de tramlijn. Met een tramkeerlus gelegen op de Havanasite zal de tram immers– op een vrije trambaanbedding – een zeer rechtlijnig, snel traject volgen.
![i_RUP_11002_214_10017_00001_200064.png [image]](i_RUP_11002_214_10017_00001_200064.png)
Figuur 35 | P&R aansluitingscomplex A12-E19 en P&R Keizershoek
Zolang de wagen het meest aangewezen of favoriete vervoersmiddel blijft voor bepaalde verplaatsingen, zal moeten geïnvesteerd worden in parkeercapaciteit wil de stad een “gastvrije stad” blijven. Bij voorkeur wordt er geparkeerd aan de rand van de stad zodat er op straat in de binnenstad ruimte blijft voor kortparkeren en om te verblijven zodat de leefbaarheid van de binnenstad minder verstoort wordt door luchtverontreiniging en geluidshinder van (parkeerzoek)verkeer.
Investeren in extra parkeercapaciteit aan de rand van de stad moet tegelijkertijd helpen de hinder in de stad te verminderen tijdens de grote werven die de komende jaren gepland zijn door duizenden wagens uit de spits te halen. Bezoekers en forenzen moeten hier immers de overstap kunnen maken van de wagen op het openbaar vervoer om zo –doorheen de werken- toch nog op een vlotte manier de binnenstad te bereiken.
In het op 2 maart door de gemeenteraad goedgekeurde stedelijke mobiliteitsplan zijn daarom een aantal locaties aan de rand van de stad genoemd waar de stad park en rides wil organiseren. Gezien de vaak beperkte ruimte enerzijds en de ambitie om voldoende overstapcapaciteit te voorzien anderzijds is er op een aantal plekken gekozen voor parkeergebouwen. Voor 1500 parkeerplaatsen is immers al snel een oppervlakte van 7,5 voetbalvelden nodig. Het wordt erg moeilijk dit nog efficiënt te organiseren op het maaiveld.
De beoogde doelgroepen van de P&R op basis van het reismotief:
• Woon-werkverkeer
1. A12 -> kernstad Antwerpen (primaire doelgroep)
Samen met de P&R Keizershoek vangt P&R aansluitingscomplex A12-E19 het verkeer op met herkomst A12 of E19 en bestemming kernstad Antwerpen. De P&R’s zijn respectievelijk op Tramlijn 3 en op de nieuwe Tramlijn Noorderlijn geënt. Het bedieningsgebied van deze tramlijnen overlapt in de kernstad. Gezien het gedeeltelijk overlappende bedieningsgebied van de tramlijnen en/of P&R’s zal men bij voorkeur gebruik maken van de dichtst bijzijnde van beide P&R’s. Deze hypothese impliceert dat P&R aansluitingscomplex A12-E19 hoofdzakelijk het verkeer met herkomst A12 zal opvangen, P&R Keizershoek het verkeer met herkomst E19.
2. … -> havengebied Antwerpen
Door een gepast voorzieningenniveau van de P&R moet de overstap op openbaar en/of collectief vervoer van/naar de haven (dmv goede busverbinding zoals vooropgesteld in het Provinciaal Ruimtelijk Structuurplan Antwerpen (personenvervoer in de haven)) worden gefaciliteerd. Het voortransport van deze doelgroep gebeurt – afhankelijk van herkomst -hoofdzakelijk met fiets en openbaar vervoer. Bij de inrichting van de P&R zullen hiervoor de nodige voorzieningen (bv. fietsenstalling) worden geïntegreerd.
• Evenementen en sportwedstrijden
Binnen het evenementenvervoersplan voor het Sportpaleis kan de P&R een belangrijke rol vervullen als pendelparking. Pendelbussen (of de verlengde Tramlijn 6) voeren de bezoekers van en naar het Sportpaleis via de Noorderlaan – Groenendaallaan – Theunisbrug, of via
Havanastraat – Victor Govaerslaan – Lambrechthoekenlaan – Groenendaallaan – Theunisbrug. Samen met de P&R Keizershoek wordt zo het verkeer met herkomst A12 en E19 opgevangen.
• Recreatief- en winkelverkeer
Voornamelijk op zaterdagen, koopzondagen en koopavonden kan de P&R de opvang van recreatief- en winkelverkeer naar de kernstad stimuleren. De grootste beslissingsfactor is hier vaak prijs, maar ook het gemak van het parkeren.
De stad Antwerpen wil op korte termijn op een aantal goedgekozen locaties de capaciteit van
de park en rides aanzienlijk verhogen door over te gaan naar parkeergebouwen waar een
comfortabele overstap kan gemaakt worden tussen verschillende vervoersmodi.
Een gebouw, zodat zuinig omgesprongen wordt met de beschikbare ruimte, zodat een
beeldbepalende vorm kan gecreëerd worden met signaalfunctie aan de rand van stad (waar
ook grootschalige retail een plek vindt), zodat het een poort naar groengebieden kan zijn en
zodat ook grote volumes op een comfortabele manier kunnen overstappen.
Op korte termijn, zodat ze kunnen dienen als flankerende maatregelen om de impact van de
grote infrastructuurwerven die vanaf 2015-2016 in het noorden van Antwerpen van start
zullen gaan (Noorderlijn, Ijzerlaan, Oosterweelverbinding,… te milderen.
Goedgekozen locaties, zodat ze ook na de werven blijven dienen.
Aanzienlijk verhogen, zodat gemikt kan worden op minstens 1000 tot maximum 1500
parkeerplaatsen per parkeergebouw.
![i_RUP_11002_214_10017_00001_200065.png [image]](i_RUP_11002_214_10017_00001_200065.png)
Figuur 36 | De geselecteerde locaties: Linkeroever, Havana, Keizershoek, Macro en Wommelgem
![i_RUP_11002_214_10017_00001_200066.jpg [image]](i_RUP_11002_214_10017_00001_200066.jpg)
Figuur 37 | bovenlokaal tramnet
![i_RUP_11002_214_10017_00001_200067.png [image]](i_RUP_11002_214_10017_00001_200067.png)
Figuur 38 I Brabo 2 ter hoogte van Havana
Halte-infrastructuur Brabo 2
Ter hoogte van de site Havana wordt binnen Brabo 2 een halte-infrastructuur voorzien, dat onder meer een fietsenstalling en een wachtruimte huisvest. De infrastructuur is uitgewerkt als een gebouw dat over de perrons en sporen tot in de onthaalzone van de site Havana reikt. De positie van de halte-infrastructuur is mede bepalend voor en interfereert mogelijks met de toekomstige ontwikkelingen in de onthaalzone (‘de kop‘). De integratie van de halte-infrastructuur met de toekomstige ontwikkelingen is nodig. Een goede afstemming met De Lijn is vereist.
![i_RUP_11002_214_10017_00001_200068.png [image]](i_RUP_11002_214_10017_00001_200068.png)
![i_RUP_11002_214_10017_00001_200069.png [image]](i_RUP_11002_214_10017_00001_200069.png)
![i_RUP_11002_214_10017_00001_200070.png [image]](i_RUP_11002_214_10017_00001_200070.png)
Figuur 39 I Halte-infrastructuur Brabo 2
3.2.5 Beleidsnota Detailhandel
In september 2013 keurde de gemeenteraad de Beleidsnota Detailhandel goed.
De nota bevat een samenvattende tabel waarbij de basisstructuur van de winkelgebieden met (prioritaire) kernwinkelgebieden, buurtwinkelcentra/verspreide bewinkeling en baanwinkelgebieden wordt gekoppeld aan de zes pijlers van de nota. Deze pijlers zijn: kernversterkend beleid, aanbodbeleid, kwaliteitsbeleid, mobiliteitsbeleid, promotiebeleid, netwerken.
De Beleidsnota Detailhandel brengt de Noorderlaan onder in het type winkelconcentratie ‘verspreide bewinkeling’.
Een belangrijk aandachtspunt voor baanwinkelgebieden zoals de Noorderlaan is:
De beleidsnota geeft met betrekking tot grootschalige detailhandel het volgende aan:
-
Grootschalige detailhandel vestigt zich bij voorkeur in kernwinkelgebieden en in tweede instantie op strategische en goed bereikbare locaties in woongebieden. Grootschalige detailhandel toelaten op perifere locaties (buiten woongebied) kan enkel onder strikte voorwaarden. Als bestaande grootschalige detailhandelszaken willen uitbreiden, evalueert Stad Antwerpen, alvorens te vergunnen, eerst hoe de handelszaak functioneert in het stedelijk weefsel.
Vestigingen van grootschalige detailhandel buiten de kernwinkelgebieden (al dan niet op perifere locaties), kunnen enkel onder bepaalde voorwaarden zoals weergegeven in volgende tabel.
![i_RUP_11002_214_10017_00001_200071.png [image]](i_RUP_11002_214_10017_00001_200071.png)
Figuur 40 I Kader voor het vestigen van nieuwe perifere en niet-perifere grootschalige detailhandel
3.2.6 RUP Contactzone Noorderlaan
Op 14 februari 2014 keurde het college de procesnota voor het RUP Contactzone Noorderlaan goed.
Het RUP Contactzone Noorderlaan omvat het gebied tussen de Noorderlaan, het Straatsburgdok, de Michiganstraat en de Vosseschijnstraat. Dit plangebied is een beperkt deel van de voorgestelde contactzone in het s-RSA.
De ruimtelijke invulling van de contactzone is sinds begin jaren ’90 geëvolueerd van een industriële omgeving naar een omgeving waarvan het industriële karakter sterk is afgebouwd.
Ten zuiden van de Michiganstraat is een gebied ontstaan met handelsactiviteiten gericht op leisure en recreatie, een doe-het-zelfzaak, een stelplaats van De Lijn en een brandweerkazerne.
Ook het gebied ten noorden van de Michiganstraat is geëvolueerd naar een gemengde zone waarin de grens tussen ambachtelijk bedrijf, kantoor, showroom, dienstverlening en handelszaak moeilijk vast te leggen is.
De dynamiek die de afgelopen decennia typeerde, blijft ook nu aanwezig. Voor Noord-Center (het GM-complex) dat ondertussen ruim 20 jaar zeer onderbenut is, werd de afgelopen jaren door verschillende partijen gepolst naar de mogelijkheden om een andere invulling dan industrie te ontwikkelen.
Ook vanuit de aanwezige of geïnteresseerde bedrijven werd eerder al gepolst naar de mogelijkheden van uitbreiding, wijziging van de handelsoppervlakte of heroriëntering van de activiteiten.
De wijzigingen in de ruimtelijke invulling en de aanduiding als contactzone zijn indicaties dat de geldende gewestplanbestemmingen van ‘industriegebied’ en gebied voor ‘ambachtelijke bedrijven en KMO’ aan evaluatie toe zijn.
De mobiliteitsafwikkeling is eveneens aan veranderingen onderhevig. Het project Brabo 2 voorziet een gewijzigd profiel voor de Noorderlaan met een tramverbinding tot en met de site Havana.
Het gewijzigd mobiliteitsprofiel van de Noorderlaan heeft onmiddellijke gevolgen voor de bereikbaarheid en/of toegankelijkheid van de aangrenzende functies.
De opdracht voor dit RUP is om binnen de bestaande beleidscontext volgende elementen op te nemen:
-
Een ruimtelijke structuur opzetten die de doelstellingen voor de contactzone Noorderlaan volgens het sRSA mogelijk maakt. De structuur vormt een stabiel kader waarin de wijzigingen in programma worden opvangen.
-
Een ruimtelijk programma opzetten dat de doelstellingen voor de contactzone volgens het sRSA mogelijk maakt. Het RUP voorziet voldoende flexibiliteit om zowel op de korte als op de lange termijn de transformatie van het plangebied op te vangen.
-
De structuur en het programma binnen het RUP afstemmen met het mobiliteitsprofiel van de omgeving.
3.2.7 Masterplan Luchtbal
Het masterplan Luchtbal, dat werd goedgekeurd in november 2009, had als ambitie om Luchtbal te vermengen door de sociale woonwijk te verdichten met sociale en private koopwoningen. Het programma van het Masterplan omvatte vier ontwikkelingslocaties met als hoofdfunctie wonen en nevenfuncties handel, kantoren, kantoorachtigen en publieke functies. Wonen was destijds het prioritair programma.
In functie van de haalbaarheid van deze strategie, werd in 2011 een markbevraging uitgevoerd. Deze bevraging toonde aan dat de private woningmarkt niet geïnteresseerd was in een grootschalige private woonontwikkeling in de wijk Luchtbal.
De focus van het masterplan werd daarom bijgesteld in de nota 'Luchtbal vaart' waarvan het college in juli 2012 kennis nam. Uit een behoeftepeiling in de wijk Luchtbal bleek dat een beter vrijetijdsaanbod en uitgebouwd winkelapparaat veel belangrijker zijn voor de bewoners dan nieuwe, private woningen. Vandaar dat de focus verschoof van wonen naar handel en vrijetijd.
In zitting van 15 november 2013 keurt het College de opstart van een haalbaarheidsstudie goed voor een topsport-, winkel- en woningcluster op ‘verdichtingslocatie 1’. Deze studie toont echter aan dat het project Luchtbal financieel niet rendabel is en beter zelfstandig wordt verdergezet zonder sporthal.
![i_RUP_11002_214_10017_00001_200072.png [image]](i_RUP_11002_214_10017_00001_200072.png)
Figuur 41 | overzicht investeringsprogramma 'Luchtbal vaart', 2012
3.2.8 Masterplan Rozemaai
In juni 2012 keurde het college het masterplan Rozemaai goed.
Het masterplan Rozemaai heeft de ambitie om de sociale woonwijk te transformeren tot een kwaliteitsvolle woonomgeving. Het uitgangspunt voor de transformatie is het waterrijke landschap. Dankzij het opnieuw openleggen van de Donkse Beek, het behouden van het overstromingsgebied en het aanleggen van een wadi-structuur zal de waterhuishouding in Rozemaai optimaal gebeuren. De landschaps- en natuurelementen zijn drager voor de uitwerking van het masterplan. Rond deze elementen wordt een parkstructuur gecreëerd waar een breed gamma aan diverse activiteiten kan plaatsvinden.
Als gevolg van de aanleg van een tramkeerlus en Park & Ride op de site Havana ter hoogte van het kruispunt Noorderlaan – Ekersesteenweg is een herlocalisatie van de huidige volkstuinen vereist.
In december 2013 besliste het college de herlocatie van deze volkstuinen naar Rozemaai te voorzien, meer bepaald naar de groene ruimte ten zuiden van de wijk.
In 2014 werd een ontwerper aangesteld voor de opmaak van het masterplan publiek domein van Rozemaai. 27 februari 2015 keurde het college de fase ‘analyse en visie’ voor het publiek domein van Rozemaai goed.
![i_RUP_11002_214_10017_00001_200073.png [image]](i_RUP_11002_214_10017_00001_200073.png)
Figuur 42 | goedgekeurde visie voor het publiek domein Rozemaai
3.2.9 Ideeëncompetitie Parkeergebouwen
De ‘Ideeëncompetitie Parkeergebouwen’ van 2012 had als doel een denkproces op te starten rond de architectuur van parkeergebouwen die fungeren als P&R en als ambitie hebben een efficiënte, kwaliteitsvolle overstap te creëren van privaat naar openbaar vervoer.
Aangezien de ontwikkeling van het P&R Linkeroever en het P&R Havana in de nabije toekomst is voorzien werd in de competitie gefocust op deze sites. Daarnaast werd ook een generieke strategie voor de architectuur van parkeergebouwen als P&R gevraagd aan de bureaus.
Het resultaat van de ideeëncompetitie is een waaier aan visies over de betekenis van een P&R, over de generieke aanpak van het ontwikkelen van parkeergebouwen als P&R’s rond de stad en over de specifieke inpassing hiervan op de twee cases, Havana en Linkeroever.
Ondanks zijn naam leverde de ideeëncompetitie ook concrete tools op om een P&R een
significante publieke ruimte en een significant gebouw te laten zijn aan de rand van de stad.
Het ontwerp van HUB voor Havana kan beschouwd worden als een haalbaarheidsstudie naar
een flexibele en “slimme” (kosten-efficiënte) (draag)structuur die groei, krimp en veranderingen van programmatie kan opvangen en zo sociale en economische processen kan opvangen en die toch kwalitatief is voor de gebruikers (voldoende natuurlijk lichtinval langsheen gescheiden voetgangerscirculatie) en voor de omgeving (horizontale schakeling van modules van 4 bouwlagen).
![i_RUP_11002_214_10017_00001_200074.png [image]](i_RUP_11002_214_10017_00001_200074.png)
![i_RUP_11002_214_10017_00001_200075.png [image]](i_RUP_11002_214_10017_00001_200075.png)
Figuur 43 I HUB i.s.m. Bureau Bouwtechniek, Mint en ABT
Het ontwerp van Artgineering legt de nadruk op de kwaliteit van de publieke ruimte waar de
verschillende modi samenkomen. Het architectuurontwerp van de perrons enz is belangrijker dan de architectuur van het gebouw. Een benadering als poort naar de stad, maar ook tot de natuur
-
Uitgerekt ‘perron’, geïntegreerd vormgegeven en goed leesbaar
-
Op dit perron worden alle parkeergebouwen geplugd
![i_RUP_11002_214_10017_00001_200076.png [image]](i_RUP_11002_214_10017_00001_200076.png) ![i_RUP_11002_214_10017_00001_200077.jpg [image]](i_RUP_11002_214_10017_00001_200077.jpg) ![i_RUP_11002_214_10017_00001_200078.jpg [image]](i_RUP_11002_214_10017_00001_200078.jpg)
![i_RUP_11002_214_10017_00001_200079.jpg [image]](i_RUP_11002_214_10017_00001_200079.jpg)
Figuur 44 I Artgineering i.s.m. Idea Consult
![i_RUP_11002_214_10017_00001_200080.png [image]](i_RUP_11002_214_10017_00001_200080.png)
![i_RUP_11002_214_10017_00001_200081.png [image]](i_RUP_11002_214_10017_00001_200081.png)
![i_RUP_11002_214_10017_00001_200082.png [image]](i_RUP_11002_214_10017_00001_200082.png)
Figuur 45 I NIO i.s.m. OKRA, ADVIER
Het ontwerp van Nio i.s.m Okra en Advier bevat een economische benadering met private inbreng
-
Pragmatische benadering: parkeren bij bestaande leisure inzetten als P&R
-
Gedeeld gebruik parkeerplaatsen (kantoren -nabij gelegen of in het centrum gelegen- die plekken huren op P&R) en flankerende functies
![i_RUP_11002_214_10017_00001_200083.jpg [image]](i_RUP_11002_214_10017_00001_200083.jpg)
![i_RUP_11002_214_10017_00001_200084.jpg [image]](i_RUP_11002_214_10017_00001_200084.jpg)
![i_RUP_11002_214_10017_00001_200086.jpg [image]](i_RUP_11002_214_10017_00001_200086.jpg)
Figuur 46 I Collectief Noord
Het ontwerp van Collectief Noord is een benadering als publieke plek
3.2.10 Bestuursakkoord 2013 – 2018
Het bestuursakkoord van de stad Antwerpen 2013 – 2018 bevat volgende relevante passage voor het plangebied:
-
Op de best geschikte locaties wenst de stad ruimte te creëren voor grootschalige distributie en bovenlokale handel. Op de Boomsesteenweg, Bredabaan en aan de Noorderlaan wenst de stad hiervoor bijkomende ruimte te maken in de zones voorzien in het strategisch-Ruimtelijk Structuurplan Antwerpen. De bestaande situatie kan worden geregulariseerd en nieuwe ontwikkelingen kunnen worden toegestaan, op voorwaarde dat ze het interne stedelijk commerciële weefsel niet beconcurreren.
4 MILIEUBEOORDELING
Gedurende de periode van de opmaak van het masterplan Havanastraat werden enkele ondersteunende studies uitgevoerd. De studies spitsten zich toe op de waterhuishouding van het plangebied, op de geluids- en luchtkwaliteit van de omgeving en op de mobiliteitsafwikkeling van een grootschalige detailhandel in het plangebied.
Het proces van het masterplan duurde enkele jaren. Verschillende mogelijke ontwikkelingen werden onderzocht. De conclusies uit de verrichte studies moeten gelezen worden met dit in het achterhoofd.
4.1 Water
In mei 2011 werd een onderzoek opgeleverd naar de waterhuishouding en watergevoeligheid op de site Havana. De aanleiding van dit onderzoek was de overstromingsgevoeligheid van het oostelijk deel van het plangebied.
In de periode van dit onderzoek werden verschillende ruimtelijke programma’s op de site geprojecteerd. Een definitieve invulling van de site Havana was nog niet gekend.
De studie spitste zich toe op een tiental ontwikkelingsscenario’s op basis van de geprojecteerde ruimtelijke programma’s.
De conclusie van de studie luidt als volgt:
De oostelijke zone van het projectgebied, die op de watertoetskaarten nog aangeduid staat als overstromingsgevoelig, blijkt niet meer overstromingsgevoelig te zijn door de recente werkzaamheden aan de Schijnkoker.
Er zijn geen uitvoeringsdetails over de scenario’s gekend, waardoor nog geen gedetailleerde inschatting van de effecten op de waterhuishouding mogelijk is. Er zijn ook te weinig gegevens gekend over de huidige bodemopbouw, -bodemeigenschappen en grondwaterregime. Dit wordt best in kaart gebracht met een aanvullende terreininventarisatie en meetcampagne.
Het oprichten van verharde oppervlakken moet gecompenseerd worden met de aanleg van infiltratie- of buffervoorzieningen. De oppervlakte die hiervoor nodig is in de vorm van buffergrachten of –vijvers werd per scenario berekend (met de aanname van 100% verharding). Op vlak van verharding en hemelwaterbuffering is elk scenario uitvoerbaar, op voorwaarde dat er voldoende compenserend buffervolume voorzien wordt. In ieder geval heeft infiltratie de voorkeur op buffering met vertraagde lozing, op voorwaarde dat uit aanvullend onderzoek blijkt dat er goede infiltratiemogelijkheden zijn.
Enerzijds bevindt de projectsite zich aan de rand van het kunstmatige havengebied, met in de huidige situatie o.a. een opgehoogd maaiveld, grote verharde oppervlakken en grote (bedrijfs-)gebouwen met vermoedelijk ondergrondse structuren. Het grondwaterstromingspatroon is m.a.w. in de huidige situatie al in min of meerdere mate verstoord. Anderzijds is er volgens de BWK geen belangrijke grondwaterafhankelijke vegetatie of natte natuur in de onmiddellijke omgeving ten oosten van de site ‘Havanastraat’. De A12 betekent waarschijnlijk een hydrologische barrière tussen de projectsite en het vochtige natuurgebied Oude Landen in het noorden. Daarom is de huidige inschatting (op basis van de beperkte gegevens die voorhanden zijn) dat de impact van ontwikkelingen in dit gebied op de grondwaterstroming en het effect op natuurwaarden vermoedelijk eerder beperkt blijft. Op de grondwaterkwets-baarheidskaart blijkt de projectsite zich in het gebied met verzilt grondwater te bevinden. De diepte van het grensvlak tussen zoet en zout water is op basis van deze kaart echter niet af te leiden. In de verzilte gebieden is het vooral van belang dat bij de aanleg en instandhouding van ondergrondse constructies de grondwaterstroming niet in die mate verstoord wordt (bvb. ten gevolge van bemalingen) dat er verzilting van het zoete water optreedt. Veel zal echter afhangen van de uitvoeringsdetails, zoals aanwezigheid en afmetingen van de ondergrondse structuren, en de duur en grootte van eventuele tijdelijke bemalingen. Die details zijn in dit stadium nog niet gekend, zodat er nog geen gedetailleerde inschatting van de effecten kan gebeuren. Het is daarom wenselijk om de aspecten verstoring van het grondwaterstromingspatroon en effecten op de verzilting verder te onderzoeken op basis van aanvullende gegevens over de bodemeigenschappen, het grondwaterregime, de verziltingstoestand en uitvoeringsdetails van de scenario’s.
…
De (theoretisch) maximaal te verharden oppervlakte is op 2 manieren bepaald. Indien het hemelwater in grachten gebufferd wordt, is er 169921 m2 of 88% verharding mogelijk. Indien de laag gelegen oostelijke zone als buffervijver of -plas ingericht wordt, is er 135558 m² of 70% verharding mogelijk.
De Zone voor Groen valt grotendeels samen met het deel van het terrein dat volgens de watertoetskaart effectief overstromingsgevoelig is en tijdens de extreme storm van september '98 overstroomd was.
Door de VMM - afdeling Operationeel Waterbeheer zijn ondertussen zeer ingrijpende werken uitgevoerd om overstromingen in de toekomst zoveel mogelijk te vermijden. De kans dat het perceel met overstromingen te maken krijgt, is dan ook aanzienlijk kleiner geworden. Evenwel hebben de meest recente modellen uitgewezen dat bij een hoog klimaatscenario delen van dit terrein wel onder water komen te staan.
Omdat overstromingen nooit helemaal kunnen uitgesloten worden, vraagt dienst VMM - afdeling Operationeel Waterbeheer dat er enkele voorzorgen worden genomen om het risico op wateroverlast tegen te gaan, vooral in het oostelijke deel van het gebied dat lager gelegen is. Een inrichting als open ruimte sluit hier goed op aan maar ook in het noordelijke deel
waar men volgens de ontwikkelingsvisie bebouwing voorziet, dient men hier aandacht voor te hebben bij de verdere concretisering van de plannen, bijvoorbeeld met een voorzorgsmaatregel zoals het voorzien van een dorpelpeil, minimaal 30 cm boven het huidige maaiveldpeil. Dit is in de voorschriften opgelegd.
Maar er zijn meer voorzorgsmaatregelen die bij uitvoering kunnen meegenomen worden:
-
Garandeer in alle omstandigheden de waterafvoer van het gebouw. Desnoods door een pompinstallatie.
-
Een overstroming veroorzaakt extra druk op de riolen. Met omgekeerde stroming als mogelijk gevolg. Terugslagkleppen op de regenwaterafvoer en de vuilwaterafvoer verhinderen dat.
-
Vermijd een ondergrondse stookolietank of een tank met te lage vul- en ontluchtingsopeningen. De tank kan opdrijven of stookolie verliezen.
-
Bouw bij voorkeur geen ondergrondse constructies bij nieuwbouw, tenzij eventueel als kruipkelder. Kiest u toch voor ondergrondse ruimten, bewaar er dan geen kostbaar materiaal. Ook ruimten met waterdichte bodems en wanden ontsnappen niet altijd aan het overstromingswater.
-
Zorg voor (regen)putten met waterdichte en verankerde deksels. Zo voorkomt u dat overstromingswater insijpelt.
-
Bouw bij voorkeur op kolommen of werk met een overstroombare kruipkelder. Zo neemt u geen overstromingsruimte in.
-
Hoog het terrein alleen op waar dit echt noodzakelijk is. Hoog in elk geval nooit de tuin op. Zo neemt u minder overstromingsruimte in.
-
Graaf ergens op uw perceel eenzelfde oppervlakte en volume af, boven de hoogste grondwaterstand. Zo compenseert u de inname van overstromingsruimte.
Op www.watertoets.be staat meer informatie over bouwen in overstromingsgevoelige gebieden.
4.2 Geluids- en luchtstudie
Geluidshinder
![i_RUP_11002_214_10017_00001_200087.png [image]](i_RUP_11002_214_10017_00001_200087.png) ![i_RUP_11002_214_10017_00001_200088.png [image]](i_RUP_11002_214_10017_00001_200088.png)
Figuur 47 | Aanduiding van de site op de geluidsbelastingskaart alle bronnen Lden (LNE, 2014)
Voor geluidshinder bestaat geen (in tegenstelling tot Nederland) officieel normenkader op Europees of Vlaams niveau. Er bestaan wel een aantal referentiewaarden (voorgesteld door LNE in het MER richtlijnenboek voor geluid en trillingen). Deze referentiewaarden geven het kader aan waarmee de omgevingskwaliteit van een site kan beoordeeld worden.
-
Lden ≤ 60dB/Lnight ≤ 50dB à kwalitatieve woonomgeving
-
Lden ≤ 65dB/Lnight ≤ 55dB à aanvaardbare woonomgeving, maar milderende maatregelen zijn aangewezen.
-
Lden > 70dB/Lnight > 60dB à het geluidsniveau is onaanvaardbaar hoog, woonfunctie is niet aangewezen.
Op bovenstaande kaart blijkt duidelijk dat de geluidsbelasting op de site zeer hoog is, de geluidsniveaus variëren van 65 tot 75dB. Enkel in een klein deel van het binnengebied wordt de 60dB (nipt) niet overschreden. De voornaamste bronnen zijn wegverkeer en spoorverkeer.
Luchtkwaliteit
![i_RUP_11002_214_10017_00001_200089.png [image]](i_RUP_11002_214_10017_00001_200089.png) ![i_RUP_11002_214_10017_00001_200090.png [image]](i_RUP_11002_214_10017_00001_200090.png)
Figuur 48 | NO2 kaart situatie 2012
Wat de luchtkwaliteit betreft legt de EU voor een aantal polluenten drempelwaarden vast die niet overschreden mogen worden. Voor fijn stof (PM10, PM2.5) worden die normen de laatste jaren gerespecteerd en prognoses voor de toekomst geven aan dat de toestand nog verder verbetert.
|
Fijn stof
(PM10)
|
|
mens
|
jaargemiddelde
|
40 µg/m3
|
grenswaarde
|
|
mens
|
daggemiddelde; overschrijding is toegestaan op niet meer dan 35 dagen per jaar.
|
50 µg/m3
|
grenswaarde
|
|
|
Fijn stof
(PM2,5)
|
|
mens
|
jaargemiddelde
|
25 µg/m3
|
grenswaarde, geldig van af 2015
|
|
mens
|
jaargemiddelde
|
20 µg/m3
|
streefwaarde, te bereiken in 2020
|
|
De meest relevante indicator blijft NO2. Stikstofdioxide is een oxiderend gas dat irritatie van de luchtwegen kan veroorzaken. Verder speelt het een belangrijke rol in de verzuring, in de vorming van secundair fijn stof en als ozonprecursor. NO2 wordt beschouwd als een ‘proxy’ voor verkeersgerelateerde luchtverontreiniging. Zowel de EU (2008/50/EG) als de Wereldgezondheidsorganisatie hanteren dezelfde jaargemiddelde grenswaarde van 40 µg/m³. Deze is bedoeld om de blootstelling van mensen aan lokale hoge concentraties langs bijvoorbeeld straten en wegen zo sterk mogelijk te beperken;
Op bovenstaande kaart is te zien dat de site voor NO2 in een risicozone tussen 40 en 50 µg/m³ ligt. Hier moeten zware inspanningen worden geleverd om de concentratieniveaus naar beneden te krijgen. Er wordt wel verwacht dat de plaatselijke situatie tegen 2020 aanzienlijk verbetert, vooral omdat het vracht- en busvervoer door de invoering van EURO 6 dieselmotoren properder wordt en het openbaar vervoersnet in de omgeving verder wordt uitgebouwd.
Enkele courante maatregelen voor een verbetering van de leefkwaliteit:
-
Gebouwen voor andere dan woonfuncties als buffer tussen de verkeersweg en de woonzone plaatsen, waardoor de luchtkwaliteit in het binnenterrein verbetert.
-
Aanleggen van groene zones die de afstand tussen bron en ontvanger vergroten
-
In functie van een gezond binnenmilieu is een ventilatiesysteem noodzakelijk. Er wordt minstens een F7 filter in combinatie met een actieve koolfilter aanbevolen; de aanzuiging wordt aan de verkeersluwe zijde geplaatst.
In maart 2012 werd een studie naar de geluids- en luchtkwaliteit voor de sites Havana en Rozemaai opgeleverd.
De conclusie van de studie naar geluid op de site Havana luidt als volgt:
Uit de bestaande geluidsbelastingskaarten van LNE en de eigen geluidsmodellering door Acoustical Engineering blijkt dat de Vlaremnormen en de consensuswaarden voor verkeersgeluid in (vrijwel) het hele deelgebied Rozemaai (ver) overschreden worden. In deelgebied Havanastraat ligt het geluidsniveau minstens even hoog, maar zijn de normen minder streng omdat de geplande bestemming hier “gemeenschapsvoorzieningen” (in casu een onderwijscampus) is en niet woongebied.
In deelgebied Havanastraat kan het gepland technisch gebouw langs de A12 voldoende afscherming bieden om t.h.v. de eigenlijke scholencampus (ruimschoots) aan de vooropgestelde Lden-norm van 65 dB(A) te voldoen. Dit is wel op voorwaarde dat het gebouw voldoende lang is – zich o.a. tot aan de Ekersesteenweg uitstrekt – en voldoende hoog is – minstens enkele meters uitsteekt boven de A12, die hier op een talud gelegen is (scenario 1). Indien men ook in het oostelijk deel van de site een geluids-niveau onder de 65 dB(A) wil bekomen, is ook afscherming nodig t.o.v. het geluid van het knooppunt Antwerpen-Noord en de spoorweg Antwerpen-Nederland. Dit kan bekomen worden door het technisch gebouw L-vormig door te trekken langs de spoorweg (scenario 2).
…
Aan de oostrand van Rozemaai en de westrand van Havanastraat zal de voorziene snelheidsverlaging op de Ekersesteenweg, resp. de Noorderlaan voor een daling van het geluidsniveau met 1 a 2 dB(A) zorgen, maar t.h.v. de eerstelijnsbebouwing nog altijd boven 60 dB(A) Lden liggen. Geluidsschermen of –bermen zijn hier niet aan de orde; de aangewezen oplossing is een betere isolatie van de betreffende bouwblokken.
De conclusie van de studie naar lucht op de site Havana luidt als volgt:
Wat het aspect luchtkwaliteit betreft, kan op basis van de luchtmodellering van VITO voor het jaar 2015 verwacht worden dat noch voor NO2, PM10 of PM2,5 een overschrijding zal optreden van de jaargemiddelde normen. Dit is in belangrijke mate het gevolg van de stelselmatige verstrenging van de emissienormen en vernieuwing van het wagenpark.
Hierdoor zijn milderende maatregelen t.h.v. het studiegebied in principe niet nodig, maar elke maatregel ter verbetering van de luchtkwaliteit is uiteraard wenselijk.
4.3 Mobiliteitsonderzoek
4.3.1 mobiliteitseffectenrapport (MOBER) Noorderlaan
De afstemming tussen de nieuwe ontwikkelingen en de omgeving werd uitvoering onderzocht door studiebureau Grontmij in een mobiliteitseffectenrapport (MOBER). De Noorderlaan zal sterk wijzigen door de aanleg van de Noorderlijn. De algemene doorstroming en de bereikbaarheid wordt sterk verbeterd door de aanleg van een tramlijn en volwaardige fietspaden. De autodoorstroming blijft na de herinrichting gelijkaardig aan de huidige doorstromingscapaciteit door een parallelle ontsluitingsweg voor de detailhandel en een optimalisatie van kruispunten en lichtenregelingen. Bijkomende grootschalige ontwikkelingen zullen een effect hebben op de doorstroming en de bereikbaarheid van de Noorderlaan. Deze studie schat het mobiliteitseffect in van grootschalige detailhandel op de site Havanna, Noord-Center en de kop van Metropolis evenals van een topsporthal op Luchtbal.
Vandaag en in de toekomst zullen de kruispunten aan de Noorderlaan een beperkte restcapaciteit kennen. Daarom werden er een aantal optimalisaties voorgesteld aan het autonetwerk om de autodoorstroming in deze omgeving te verbeteren. Hier werd gekozen om de capaciteit te vergroten door het inschakelen van de Vosseschijnstraat als parallelle auto ontsluiting van een aantal grootschalige ontwikkelingen en het inrichten van een beperkt aantal lichtengeregelde kruispunten op de Vosseschijnstraat. Deze ingrepen verbeteren de doorstroming in het noorden, maar lossen de doorstroming aan het kruispunt Groenendaallaan en Noorderlaan niet op. Het oplossen van de doorstroming aan dit kruispunt kan enkel door over het kruispunt een brug te leggen, wat volgens het studiebureau een moeilijk inpasbare en dure ingreep is die bovendien het doorstromingsprobleem verlegt naar de sterk verzadigde Noorderplaats wat een hypotheek legt op het ontwikkelingspotentieel van het Eilandje en Scheldekaaien.
Daardoor zijn bepaalde nieuwe ontwikkelingen in het noorden eenvoudiger te ontsluiten dan in het zuiden. Op basis van deze vaststelling stelt het studiebureau een voorstel van programma op dat op drie krachtlijnen steunt: (1) Op de Havanna site kan een functie voorzien worden die veel verkeer aantrekt in een avondspits. Voorbeelden van functies zijn: grootschalige detailhandel, kantoren of kmo. (2) Er kan tevens een topsporthal voorzien worden langsheen de Noorderlaan. Dit is een niet spitsgevoelige functie die bijgevolg op niet spitsmomenten verkeer aantrekt. De verkeersgeneratie van deze functie blijft eerder beperkt. (3) Op de overige sites met ontwikkelingspotentieel dienen vooral functies voorzien te worden die minder verkeer aantrekken op een spitsmoment. Dit zijn bijvoorbeeld recreatieve functies ( (top)sporthal(len), indoorspeeltuin, zwembad / wellness), of functies als opslag en loodsen (stedelijke opslag (Shurgard), stadsdistributie (Bubble Post, B-Post,…) en technische cluster stadsdiensten. Daaraan kan een vierde krachtlijn toegevoegd worden: indien toch spitsgevoelige functies voorzien worden mogen deze de verkeersgeneratie op de Noorderlaan niet verhogen.
Het verkeersmodel leert ons bijgevolg dat er op de potentiële ontwikkelingsvelden 1. Havanasite, 2. Verdichtingslocatie Luchtbal, 3. Noord-Center (GM-site), en 4. parking Metropolis infrastructurele aanpassingen en bovendien een strategisch vervoersmanagement noodzakelijk zijn om de verkeersdoorstroming leefbaar te houden.
Aangezien de Havana site tegen het hoger netwerk gelegen is en ook een P&R met 1200 parkeerplaatsen bevat, zal de invulling met een grootschalige detailhandel naar aanleiding van de resultaten van het verkeersmodel geen beperkingen op het aantal parkeerplaatsen (1500) krijgen. De P&R zal immers het verminderde voorziene aantal parkeerplaatsen van detailhandel opvullen en compenseren en daarbij zijn functie als P&R missen.
4.3.2 MOBER Havanasite
In 2013 werd een ontsluitingsstudie afgerond om de P&R binnen het ontwerp van Brabo 2 dat toen voorlag te confronteren met de verkeersbewegingen die een grootschalige detailhandel op de site zou aantrekken. Tegelijk werd in de studie rekening gehouden met de uitbreiding van de P&R tot 1200 parkeerplaatsen.
Een belangrijke conclusie van de studie was dat indien de P&R werd gecombineerd met grootschalige detailhandel, het voorliggende Brabo 2 ontwerp niet meer voldeed om het verkeer op een aanvaardbare manier af te wikkelen.
De studie toonde aan dat om structurele congestie in de avondspits te vermijden, drie doorgaande rijstroken (staduitwaarts) nodig zijn op het gedeelte van de Noorderlaan, tussen de Havanastraat en de Ekersesteenweg. Bovendien kon er bij het inpassen van een derde rijstrook ook een linksaf beweging stadinwaarts worden gerealiseerd wat een meerwaarde biedt voor het politiekantoor en het containerpark. Ook op vlak van ontsluiting, veiligheid en ontruiming van de hele site biedt dit een meerwaarde.
Het college besloot in oktober 2013 een collegiale brief aan het Vlaams Gewest (Administratie Wegen en Verkeer), De Lijn en de Beheersmaatschappij Antwerpen Mobiel (BAM) te richten. Hierin werd aangedrongen om het inpassen van een derde doorgaande rijstrook (staduitwaarts) op de Noorderlaan tussen de kruispunten Havanastraat en Ekersesteenweg, alsook een linksaf beweging vanop de Logistiekweg naar de Noorderlaan (stadinwaarts) verder te onderzoeken in samenspraak met de externe partners en de stad Antwerpen.
In de maanden na de collegiale brief werden de suggesties van de stad onderzocht. De aanvraag tot stedenbouwkundige vergunning voor Brabo 2 van mei 2014 omvat de gevraagde aanpassingen waardoor het ontwerp voldoende capaciteit heeft om de verkeersbewegingen van een grootschalige detailhandel op de site Havana op te vangen.
In 2015 werd de ontsluitingsstudie van 2013 herkauwd tot een mobiliteitseffectenstudie met een realistische inschatting van de mobiliteitsimpact en – effecten bij volledige ontwikkeling van de Havanasite met de tot hiertoe gekende ontwikkelingen.
Het in de mober bestudeerde programma voor de geplande toekomstige ontwikkelingen op de Havanasite ziet er als volgt uit:
-
Halte infrastructuur Brabo II met P&R en parkeergebouw met plaats voor 370 (KT) tot 1.200 (LT) auto’s;
-
Grootschalige detailhandel met een maximale brutovloeroppervlake (bvo) van 45.000m²;
-
Een herbestemming van de S.B. Housmanskazerne met een mix van stedelijke functies en dienstverlening. Volgende scenario’s worden onderzocht:
-
Scenario A: volledige invulling kazernecomplex met 300 woonunits van gemiddeld 90m².
-
Scenario B: invulling kazernecomplex met 150 woonunits en overige 13.000m² met een commerciële functie (1.600m²), kantoorfunctie (6.000m²) en/of socio-culturele functie (5.400m²).
-
Scenario C: één bouwblok van 70 woonunits en 20.000m² voor andere functies: bv. 6.000m² kantoorfunctie, 4x400m² winkelfunctie, 12.000m² school, 400m² levensbeschouwing + vergaderruimte.
De toegang langs de Noorderlaan en Logistiekweg wordt beschouwd als de voornaamste entree voor bezoekers van de site. De noord-zuid gerichte as tegenover de Bostonstraat zal instaan voor de afwikkeling van geplande ontwikkelingen in het kazernecomplex en kan (bij calamiteiten) als secundaire ontsluiting functioneren voor de grootschalige detailhandel en P&R.
Uit de simulaties komt naar voren dat de geplande ontwikkelingen (een P&R voorzien in Brabo II, een grootschalige detailhandel en herbestemming van de kazerne met een mix van stedelijke functies en dienstverlening) op de Havanasite mogelijk is, zonder noemenswaardige doorstromingsproblemen in de Noorderlaan. Ter hoogte van het kruispunt met de Korte Wielenstraat ontstaat tijdens de avondspits terugslag richting het kruispunt met de Vosseschijnstraat. Een mogelijk optimalisatie bestaat erin om de voorgestelde semi- conflictvrije regeling uit te breiden met een conflictvrije linksafslaande beweging, komende van de Korte Wielenstraat richting Noorderlaan zodoende een aanvaardbare verkeersafwikkeling wordt bekomen.
Voorts volgt uit de parkeerbalans dat het bundelen van de parkeercapaciteit van de P&R en de grootschalige detailhandel de voorkeur verdient omwille van een aantal factoren:
- Duidelijkheid voor de gebruiker: Er is 1 parking, men weet duidelijk waar men naartoe moet;
- Beperking parkeerzoekverkeer: Als er meerdere parkings zijn leidt dit tot onnodig parkeerzoekverkeer als een parking volzet is;
- Minder capaciteit nodig op 1 parking dan op verschillende kleinere parkings. De eerder berekende winst in aantal parkeerplaatsen omwille van dubbelgebruik is maximaal indien men
voor 1 grote parking kiest. Door een opsplitsing van de parkeercapaciteit in kleinere delen verdwijnt de synergie tussen de parkeervraag van de grootschalige detailhandel en deze van de P&R-functie.
Het idee achter dubbelgebruik zorgt ervoor dat op het moment dat de ene functie piekt, de andere een relatief dieptepunt kent, zodat de parkeervraag van de ene deels kan afgewikkeld worden op het parkeeraanbod van de andere. Voor het drukste moment van de grootschalige detailhandel op een zaterdag (14u-15u) betekent dit dat er ‘theoretisch’ gezien 220 parkeerplaatsen van de P&R kunnen ingeschakeld worden.
Uitgaande van een optimale (en tevens maximale) benutting van de parkeerplaatsen voor de P&R en grootschalige detailhandel blijkt een parkeercapaciteit van 2.647 voertuigen op lange termijn wenselijk. Bij het streven naar een maximale parkeerbezetting is het evenwel noodzakelijk om een dynamisch parkeerverwijssysteem te hanteren. Hierdoor wordt parkeerzoekverkeer tot een minimum beperkt, wordt dubbelgebruik van parkeerplaatsen maximaal benut en dient geen parkeerreservecapaciteit voorzien te worden.
Voor de berekening van de verkeersproductie- en attractie van de grootschalige detailhandel
werd gebruik gemaakt van ervaringsgegevens van gelijkaardige grote winkels. Deze gegevens zijn gebaseerd op basis van socio-economische studies, bezoekersverwachtingen van winkels met vergelijkbare brutovloeroppervlaktes en analyses van het potentiële marktgebied. Deze gegevens werden vervolgens geëxtrapoleerd op basis van de voorziene bvo (45.000m²).
Op basis van voorgaande gegevens wordt het jaarlijks bezoekersaantal ingeschat op 2 miljoen.
Tijdens een werkweek is vrijdag het drukst met ca. 17% van alle bezoekers. Omgerekend komt dit neer op 6.539 bezoekers. Om het aantal autobezoekers te bepalen wordt er, op basis van onderzoek en tellingen in andere vestigingen, uitgegaan van een gemiddelde bezettingsgraad van 1,8 bezoekers per gegenereerde auto. Dit komt neer op een autogebruik (bestuurder) van 55,6%. Navraag omtrent het verwachte mobiliteitsprofiel leert verder dat 10% van de bezoekers gebruik zal maken van het openbaar vervoer. Gezien de Havanasite maximaal ontsloten wordt door zowel trein, tram als bus kan aangenomen worden dat het gebruik van openbaar vervoer zo mogelijk nog zal toenemen.
Door een cumulatie van de mobiliteitsprofielen van een P&R (1200 plaatsen) en een grootschalige detailhandel kan een prognose gemaakt worden van over het gebruik van beide parkings en in welke mate dit overlappend of complementair is:
Op een gemiddelde werkdag trekt de P&R voornamelijk ingaande verplaatsingen aan in de ochtendspits en uitgaande in de avondspits. De grootschalige detailhandel zorgt vooral na de middag voor de grootste impact. Van 12u-13u is er een hoogst totale parkeervraag van ongeveer 1.800 voertuigen.
Eenzelfde oefening kan uitgevoerd worden voor een werkdag tijdens een piek week. Tijdens
deze piekweek stijgt de parkeervraag van de grootschalige detailhandel, maar blijft het aanbod en de vraag van de P&R-functie. Op het piekmoment (12u-13u) is er een vraag naar 2.019 parkeerplaatsen.
Een zaterdag kent de hoogste parkeervraag tengevolge van de grootschalige detailhandel. De
P&R wordt dan echter minder gebruikt dan tijdens een werkdag. Voor de P&R zal op een zaterdag het gebruik minder gelinkt zijn aan de woon-werkpendel. Het klassieke ochtend- en avondspitspatroon zal dan niet terug te vinden zijn. De periode tussen 13u-16u zorgt voor het meeste ingaand verkeer. De uitgaande piek ligt iets later en wordt gevormd door zowel de grootschalige detailhandel als de P&R. De maximale parkeervraag bedraagt 2.329 voertuigen.
Analoog aan een gemiddelde zaterdag kan voor een piek zaterdag de verkeersvraag berekend worden. Op een piek zaterdag worden door de grootschalige detailhandel 7.921 ingaande voertuigen verwacht. Voor de P&R blijft de parkeervraag analoog als deze van een gemiddelde zaterdag.
4.4 Erfgoedwaarde kazerne S.B. Housmans
De dienst monumenten- en welstandszorg maakte in 2010 een cultuurhistorische evaluatie voor het kazernecomplex S.B. Housmans.
De conclusie van de evaluatie is:
De Kazerne Housmans is een sprekend voorbeeld van kazernearchitectuur uit het einde van de jaren 1930 opgetrokken in nieuwe zakelijkheid. De appreciatie van het gebouw is van tweeërlei aard.
Enerzijds draagt de architecturale kwaliteit die men nagestreefd heeft bij het ontwerp van dit functioneel gebouw bij tot het waardevol karakter van de site en anderzijds is de cultuurhistorische component ook heel hoog. Hoewel verdere vergelijkende studie met andere kazernes in België nodig is kunnen we nu reeds stellen dat de Luchtbalkazerne een uniek bewaard voorbeeld is van kazernearchitectuur in Antwerpen.
Ook al gebeurden er doorheen de jaren aanpassingen aan de kazerne, toch bleef de oorspronkelijke structuur ervan bewaard. De indeling bleef grotendeels onveranderd en de bijbehorende interieurelementen in art-decostijl bleven voor zover in deze studie slechts beperkt onderzocht eveneens behouden. In een volgende fase is er naar dit aspect veel meer onderzoek nodig. Ook over de oorspronkelijke afwerkingslagen van het in- en exterieur is nog verder onderzoek nodig. Omdat de structuur van de kazerne zo goed bewaard is gebleven, is de erfgoedwaarde ervan hoog. Om de erfgoedwaarde voor de toekomst te garanderen is het belangrijk dat er voor de kazerne een herbestemmingsplan wordt uitgewerkt.
De opmaak van een herbestemmingsplan moet beschouwd worden als een opportuniteit. Het biedt de gelegenheid om de cultuurhistorische waarden ervan te verankeren maar tegelijkertijd ook om ze in te passen in de functie(s) die de kazerne in de toekomst zal bekleden. Op die manier vormt de cultuurhistorische eigenheid van het pand net een meerwaarde en geen last. Het is dan ook belangrijk een goede, gedragen visie te ontwikkelen die de leidraad vormt voor de te nemen beslissingen. Indien men de cultuurhistorische waarde van de kazerne als uitgangspunt neemt, heeft men een solide basis om een geschikte nieuwe bestemming te vinden.
Hand in hand met een herbestemmingsplan dient ook een restauratieplan opgesteld. Behoud van het oorspronkelijk karakter en verwijdering van storende elementen, zoals de gewijzigde vensteropeningen, laadpoorten in het gevelvlak en het pvc schrijnwerk moeten aan de grondslag liggen van dit plan. Tot op heden werden er slechts ad hoc herstellingen en aanpassingen uitgevoerd die de architecturale kwaliteit niet altijd ten goede komen.
Omwille van het feit dat de gebruikte materialen en constructiemethodes typerend zijn voor de periode en de stijl waarin de kazerne opgericht werd, nl. in nieuwe zakelijkheid. De architecturale kwaliteit en fijne detaillering waarmee het ontwerp werd uitgevoerd, de hoge cultuurhistorische component en de relatief goede bewaringstoestand van het gebouw adviseert de dienst monumentenzorg en welstand absoluut behoud en herbestemming van de besproken volumes.
4.5 Seveso – inrichtingen
Op een afstand van ongeveer 230 m is een Seveso-bedrijf gelegen (Euroports Terminals Antwerp). Afdeling Milieu-, Natuur en Energiebeleid, Dienst Veiligheidsrapportering (VR)
geeft een advies als er op minder dan 2 km van het plangebied een aantal (wijzigingen aan) aandachtsgebieden gepland zijn. Het aandachtsgebied is in dit kader een woongebied of een toegelaten kwetsbare functie zoals een school. De vraag wordt gesteld en onderzocht of de bestemming die men beoogt verzoenbaar is met de huidige activiteit(en) die bij het Seveso-bedrijf aanwezig zijn.
Het bedrijf Euroports Terminals Antwerp is een hogedrempelinrichting gespecialiseerd
in de op- en overslag van diverse bulkgoederen en in meer beperktere mate stukgoederen.
Het betreft hoofdzakelijk meststoffen, mineralen en ertsen, veevoeders en granen.
Euroports Terminals Antwerp nv is volledig gelegen in een zone voor bedrijvigheid, m.n. in een gebied voor zeehaven- en watergebonden bedrijven.
![i_RUP_11002_214_10017_00001_200091.png [image]](i_RUP_11002_214_10017_00001_200091.png)
Figuur 49 | Seveso- inrichten in de omgeving van het plangebied
Toelichting veiligheidsrapportering Seveso-bedrijven
In het kader van veiligheidsrapportering moet elk Seveso-bedrijf 2 soorten veiligheidsrapporten opmaken:
Een Seveso-bedrijf gaat de risico’s in een veiligheidsrapport op 2 manieren bekijken:
-
Plaatsgebonden risico
Dit is het risico uitzetten op een kaart waarbij men de punten met gelijk risico verbindt wat resulteert in lijnen waaraan een bepaalde waarde wordt gegeven.
Deze risico’s worden getoetst aan criteria die zijn opgenomen in de code van goede praktijken. De 10-6 wordt getoetst aan een woongebied en de 10-7 wordt getoetst aan een gebied met kwetsbare locatie zoals bvb ‘is er een school of een ziekenhuis?’
10-6 en 10-7: dit is een statistische uitdrukking, de ‘kans dat’ er een ongeval gebeurt (kan niet gemeten worden, is daarom fictief).
-
groepsrisico (GR) curve berekenen
Dit is: stel dat er iets bij een Seveso-bedrijf gebeurt wat is de kans dat er een grote groep mensen in 1 keer getroffen wordt door de gebeurtenis bij dit bedrijf. Dit wordt uitgezet in een grafiek waarop ook criteria worden toegepast door middel van lijnen die op deze grafiek worden getekend. De berekende GR-curve moet zich steeds onder de lijn bevinden die men als haalbaarheidscriterium hanteert anders zijn maatregelen nodig.
Er werd een geactualiseerde risico-analyse/nota met uitgebreide aandacht voor het aspect externe veiligheid, uitgevoerd door de erkende VR-deskundige, aan Afdeling Milieu-, Natuur en Energiebeleid, Dienst Veiligheidsrapportering voorgelegd om te oordelen of de beoogde bestemmingen en voorschriften van het RUP Havanastraat voor het plangebied aanvaardbaar zijn op vlak van veiligheid.
4.5.1 Evaluatie RUP Havanastraat & Euroports Terminals Antwerp nv
F. Maesen, erkend VR-deskundige voor Sertius heeft in samenwerking met Euroports Terminals Antwerp nv. een rapport opgesteld om de externe risico’s ( = de risico’s voor de mens buiten de inrichting) te kunnen evalueren.
PLAATSGEBONDEN RISICO - Aan de hand van de toetsing van de contouren voor het
plaatsgebonden risico aan de thans in Vlaanderen toegepaste risicocriteria wordt het volgende
afgeleid:
![i_RUP_11002_214_10017_00001_200092.png [image]](i_RUP_11002_214_10017_00001_200092.png)
Figuur 50 | plaatsgebonden risico Euroports Terminals Antwerp nv
GROEPSRISICO – Het groepsrisico verbonden aan de inrichting van Euroports Terminals Antwerp nv blijft zeer beperkt en voldoet aan het criterium.
Aangaande de mogelijke gevolgen van het RUP Havanastraat komt uit de bovenstaande
analyse van de externe risico’s verbonden aan de vestiging van Euroports Terminals Antwerp het volgende naar voor:
-
De minimale afstand van Euroports Terminals Antwerp nv tot een terrein met kwetsbare locatie bedraagt in de actuele situatie 200 m en dit rekening houdend met voetbalterreinen die deel uitmaken van de nabije school (gelegen ten westen van Euroports Terminals Antwerp nv). Met het RUP Havanastraat bedraagt de minimale afstand 250 m tot de locaties waar een school niet is uit te sluiten volgens het RUP (in de zone voor centrumfuncties Ce2 – artikel 6). Op die manier is het RUP niet strenger dan de actuele ruimtelijke situatie ten aanzien van dit risicocriterium. Enkel indien de voetbalterreinen geen deel uitmaken van de nabije school (kwetsbare locatie) wordt de minimale afstand van deze kwetsbare locatie tot de magazijnen gelijk aan 300 m en is het RUP Havanastraat hiermee mogelijk meer determinerend voor Euroports Terminals Antwerp nv in vergelijking met de situatie zonder het RUP Havanastraat. (…)
-
Voor wat de aanwezigheid van veel publiek betreft stelt men vast dat met de maximale effectafstand van 380 m voor magazijn M41A (dat het dichtst bij het RUP Havanastraat gesitueerd is) de zone voor centrumfuncties Ce2 (artikel 6) hierdoor voor een klein deel gevat wordt. Omdat de kans op letaal effect daar slechts iets hoger ligt dan 1%, en enkel geldt voor personen buitenshuis zal hier 1 slachtoffer in deze zone een aanwezigheid van meer dan 700 personen/ha vereisen. Dit impliceert dat rekening houdend met deze effectafstand vanuit het oogpunt van het groepsrisico er geen relevante toename van het groepsrisico verwacht wordt. (…)
4.5.2 Advies van dienst veiligheidsrapportering betreffende de risico’s van de inrichting Euroports Terminals Antwerp nv
Gelet op het feit dat
-
Uit de gegevens in de toelichtingsnota/stedenbouwkundige voorschriften kan besloten worden dat seveso-inrichtingen niet worden verwacht in het plangebied van het RUP;
-
Uit de gegevens in de toelichtingsnota/stedenbouwkundige voorschriften blijkt dat in het plangebied een aantal (wijzigingen aan) aandachtsgebieden gepland zijn, maar bepaald door
-
Art. 5 Zone voor Centrumfuncties – kazerne (Ce2) van de stedenbouwkundige voorschriften waarmee de kazerne (S.B.Housmans kazerne) een gemengd stedelijke bestemming kan krijgen waarbij wonen, horeca, commerciële ruimtes, onderwijs, vrije beroepen of kantoorruimte tot de mogelijkheden behoren. In voorliggend RUP zijn een aantal mogelijke scenario's opgenomen
-
Scenario A waarbij het huidige bouwvolume van het kazernecomplex volledig met woonunits wordt ingevuld (300 woonunits in een maximalistisch scenario);
-
Scenario B waarbij naast voorgaande ook nog commerciële ruimtes, kantoorruimtes en socio-culturele functies worden voorzien;
-
Scenario C waarbij naast voorgaande ook nog een school wordt voorzien.
-
Art. 6 Zone voor Centrumfuncties van de stedenbouwkundige voorschriften waarmee maatschappelijke en cultuurrecreatieve functies worden voorzien (o.a. onderwijs, openbare dienstverlening, ed.).
-
Overige artikels (meer bepaald Art. 1, Art. 2, Art. 3, Art. 8 en Art. 9 van de stedenbouwkundige voorschriften) waar de mogelijkheid bestaat dat deze gebieden kunnen beschouwd worden als aandachtsgebied, meerbepaald als 'door het publiek bezochte gebouwen en gebieden, incl. recreatiegebieden' vanwege het aantal personen aanwezig;
-
volgens de gegevens van de dienst VR in de onmiddellijke omgeving een hogedrempel Sevesoinrichting aanwezig is, met name Euroports Terminals Antwerp nv, Vosseschijnstraat 59 te 2030 Antwerpen en de dienst VR huidig over voldoende gegevens beschikt om te beslissen dat de voorgestelde ontwikkelingen verzoen baar zijn met de risico's van deze inrichting;
vraagt de dienst VR geen ruimtelijk veiligheidsrapport bij het voorliggende RUP.
De dienst VR merkt evenwel op dat in de conclusie van het document 'Evaluatie RUP Havanastraat & Euroports Terminals Antwerp nv’ wordt vermeld dat 'om de mogelijkheden van Euroports Terminals Antwerp nv ten aanzien van het criterium voor kwetsbare locaties op hetzelfde niveau te houden als in de actuele situatie zou deze afstand door het RUP
Havanastraat niet kleiner mogen worden’.
De dienst VR adviseert om er voor te zorgen dat kwetsbare locaties in de 'Zone voor centrumfuncties Ce2 (Art. 6)’ niet dichter bij de inrichting worden ingeplant dan deze huidig reeds aanwezig in de omgeving van de inrichting.
4.6 Samenvatting plan-MER
In het kader van de wettelijke verplichting voor het RUP Havanastraat wordt door Antea Group een plan-MER opgesteld (zie jaarnummer 3946) waarin de milieueffecten van het plan worden onderzocht. De effecteninschatting op vlak van mobiliteit is gebaseerd op het MOBER Havanastraat (Grontmij, 24 augustus 2015), dat zelf voortbouwt op het rapport “verkeersonderzoek ontsluiting Havanasite” (Grontmij, 12 september 2013).
De volgende disciplines worden in het plan-MER behandeld door een erkend MER-deskundige:
• Mens – mobiliteit
• Geluid en trillingen
• Lucht
De disciplines bodem, water, fauna en flora en landschap, bouwkundig erfgoed en archeologie en mens – ruimtelijke en sociale aspecten (inclusief hinderaspecten) worden voor dit plan niet als sleuteldisciplines beschouwd, en worden behandeld door de MER-coördinator.
In het plan-MER houdt de bespreking, beoordeling en evaluatie van de effecten van het plan voor de verschillende milieudisciplines rekening met globale ingreep-effectrelaties. De beoordeling van de effecten gebeurt waar mogelijk o.b.v. cijfermatige gegevens, en – indien dit niet mogelijk is vanwege de aard van het effect en/of het ontbreken van cijfergegevens – o.b.v. expert judgement.
Om een overzicht te verkrijgen van het belang van de verschillende effecten wordt voor elk effect volgende indelingswijze gehanteerd over de verschillende disciplines heen:
![i_RUP_11002_214_10017_00001_200093.png [image]](i_RUP_11002_214_10017_00001_200093.png)
Er wordt bij de beoordeling van de negatieve effecten zowel rekening gehouden met de omvang en schaal van de impact van het plan of haar onderdelen, als met de kwetsbaarheid van de omgeving voor het betreffend milieuaspect. Grosso modo kan volgend algemeen significantiekader vooropgesteld worden:
![i_RUP_11002_214_10017_00001_200094.png [image]](i_RUP_11002_214_10017_00001_200094.png)
Figuur 51 | waardeschaal voor effectenbeoordeling uit plan-MER, Antea Group, 2015
Het voorstellen/opleggen van milderende maatregelen is gekoppeld aan de effectbeoordeling:
-
Bij impactscore -1 is onderzoek naar milderende maatregelen minder dwingend maar indien de onderzoekssturende randvoorwaarden aangeven dat er zich een probleem kan stellen dan worden voorstellen van milderende maatregelen uitgewerkt;
-
Bij impactscore -2 wordt noodzakelijkerwijs gezocht naar milderende maatregelen, eventueel gekoppeld aan langere termijn;
-
Bij impactscore -3 wordt noodzakelijkerwijs gezocht naar milderende maatregelen, waarbij aangegeven wordt hoe deze bij de uitvoering van het plan/project zullen ingepast worden.
![i_RUP_11002_214_10017_00001_200095.png [image]](i_RUP_11002_214_10017_00001_200095.png)
![i_RUP_11002_214_10017_00001_200096.png [image]](i_RUP_11002_214_10017_00001_200096.png)
Figuur 52 | synthesetabel van milieueffecten + milderende maatregelen uit het plan-MER, Antea Group, 2015
Conclusies en aanbevelingen uit het ontwerprapport plan-MER
Algemeen kan dus gesteld worden dat het plan:
De binnenzijde van het kazernecomplex wordt qua geluids- en luchtklimaat geschikt geacht om er kwetsbare functies als wonen en/of onderwijs in te planten, en dit dankzij de afschermende werking van de bestaande en nieuwe omliggende bebouwing ten opzichte van de lucht- en geluidsemissies van de A12 en de E19. Het geluids- en luchtklimaat aan de buitenzijde van het complex, in het bijzonder langs de Noorderlaan, is en blijft echter matig tot slecht.
De geschiktheid van het kazernecomplex voor kwetsbare functies is onder voorbehoud dat de externe mensrisico’s verbonden aan de nabije Seveso-inrichting Euroports Terminal Antwerp (nog steeds) aanvaardbaar zijn.
Op basis van de resultaten van het plan-MER GRUP Oosterweelverbinding kan verwacht worden dat deze verbinding een (beperkt) positief effect zal hebben op de verkeersdoorstroming, geluids- en luchtkwaliteit ter hoogte van het plangebied.
Ten aanzien van het RUP worden volgende milderende maatregelen en aanbevelingen gedaan:
![i_RUP_11002_214_10017_00001_200097.png [image]](i_RUP_11002_214_10017_00001_200097.png)
Figuur 53 | milderende maatregelen en aanbevelingen ten aanzien van het RUP
Voorts is uiteraard steeds de sectorale wetgeving (Hemelwaterbesluit, Vlarema, archeologie,…) van toepassing.
5 oktober 2015 werd de kennisgeving/ontwerp-MER gezamenlijk ingediend.
Bij het opstarten van de m.e.r.-procedure is expliciet gekozen om de voorgestelde methodologie, die in de kennisgeving wordt beschreven, reeds verder uit te werken (ontwerp-MER) en beide gebundeld in te dienen.
Het plan-MER dient goedgekeurd te zijn opdat het samen met het ontwerp RUP in openbaar onderzoek kan gaan. Het ontwerp-RUP inclusief plan-MER, dat naar de plenaire vergadering gaat, dient rekening gehouden te hebben met de officiële richtlijnen die zijn geformuleerd in de plan-m.e.r.-procedure.
Op 2 februari 2016 werd het plan-MER goedgekeurd door de dienst milieueffectenrapportagebeheer van het Vlaams departement Leefmilieu, natuur en energie.
5 ONTWIKKELINGSVISIE
5.1 Ambities
Het definitief ontwerp van het masterplan Havanastraat werd in oktober 2013 goedgekeurd.
De ambitie van het masterplan is om een stadsdeel te ontwikkelen dat de potentie als poort tot de metropool kan uitdragen. Dat wil zeggen dat er ruimte moet zijn voor bovenlokale stedelijke activiteiten. Evenzeer moet er op een dense manier gebouwd worden. Een optimale benutting van de beschikbare oppervlakte en veel aandacht voor een kwalitatieve en publieke buitenruimte zijn harde randvoorwaarden.
5.2 Ruimtelijke concepten
Volgende ruimtelijke concepten vormen het kader waarbinnen de ambitie van het masterplan wordt gerealiseerd.
5.2.1 Structurerende ontsluitingsstructuur
De herontwikkeling van het plangebied Havanastraat is gebaseerd op het inbrengen van een aantal assen waarlangs verschillende programma’s worden georganiseerd. De assen vormen een structurerend, stabiel kader. De programma’s kunnen wijzigen doorheen de tijd.
Een oost-west gerichte as loopt van de Noorderlaan langs de kazerne tot de fiets-o-strade en de spoorlijn. Een noord-zuid gerichte as ligt in her verlengde van de Bostonstraat en loopt tevens langs de kazerne naar de A12.
![i_RUP_11002_214_10017_00001_200098.png [image]](i_RUP_11002_214_10017_00001_200098.png)
De ontsluiting van het plangebied en de interne ontsluiting wordt langs beide assen georganiseerd.
De huidige toegangsweg (logistiekweg) langs de Noorderlaan bedient zowel de P&R als de parkeervoorziening voor bezoekers van de grootschalige detailhandel. Het beperken van het aantal toegangen aan de Noorderlaan komt een goede doorstroming van het verkeer ten goede.
De toegangsweg tussen de S.B. Housmanskazerne en loods M&N bedient de laad- en loszone van de grootschalige detailhandel en de naastgelegen zone.
![i_RUP_11002_214_10017_00001_200099.png [image]](i_RUP_11002_214_10017_00001_200099.png)
5.2.2 Behoud kazerne S.B. Housmans
Het kazernecomplex S.B. Housmans is een bepalende factor binnen het plangebied. Het complex dat vanuit de Noorderlaan en de Havanastraat zichtbaar is, telt vijf hoofdgebouwen waarvan er vier
gegroepeerd zijn rond een paradeplein.
Het behoud van het kazernecomplex is zowel vanuit monumentaal als architecturaal oogpunt een belangrijke meerwaarde.
5.2.3 Behoud open ruimte
De open ruimte in het oostelijk deel van het plangebied vormt op bovenlokale schaal een belangrijke schakel tussen het natuurgebied De Oude Landen ten noorden van de A12 en de woonwijk Luchtbal ten zuiden van het plangebied.
Deze openruimtefunctie blijft bij de herontwikkeling van de site behouden en opgeladen met activiteiten die het lokale woonweefsel ondersteunen. Volkstuinen of sportvelden zijn een optie.
De fiets-o-strade tussen Essen en Antwerpen biedt een aanknopingspunt voor fietsers naar het plangebied.
![i_RUP_11002_214_10017_00001_200100.png [image]](i_RUP_11002_214_10017_00001_200100.png)
5.2.4 Bebouwing als buffer
Het bouwvolume op de projectgrond werkt als geluidsbuffer voor het geluid afkomstig van de A12. De massa en de hoogte van het gebouw zorgen ervoor dat het geluidsniveau ter hoogte van de kazernegebouwen daalt, wat een gunstig effect heeft op de verblijfskwaliteit in deze zone. Het bouwvolume is best aaneengesloten om optimaal geluid en fijnstof te bufferen.
Uit de geluidstudie blijkt dat een hoogte van minstens ‘enkele meters’ boven de A12 nodig is. De autosnelweg A12 ligt gemiddeld op 10,5 meter TAW. Het maaiveld ter hoogte van de ontwikkelingszone voor grootschalige detailhandel ligt ongeveer op 5,5 m TAW. Bij een minimale bouwhoogte van 9 m voor de grootschalige detailhandel komt deze 4 meter boven de A12 uit te waardoor een positieve impact op de geluidskwaliteit ter hoogte van de kazerne kan verwacht worden.
![i_RUP_11002_214_10017_00001_200101.png [image]](i_RUP_11002_214_10017_00001_200101.png)
5.2.5 Onthaalzone
De onthaalzone ter hoogte van het kruispunt Noorderlaan – Ekersesteenweg markeert een strategische plek in de stad. Het is de meest zichtbare zone en daarmee de eerste representatieve zone voor veel bezoekers en voorbijgangers. De vooropgestelde stedelijkheid moet hier ten volle worden ontwikkeld met de P&R en flankerende programma’s.
De onthaalzone is het scharnierpunt waar de overstap tussen privaat vervoer en openbaar vervoer wordt georganiseerd. Essentieel is dat deze overstap zo functioneel mogelijk gebeurt. Op korte termijn is een P&R met ca. 250 parkeerplaatsen voorzien. Op lange termijn ambieert de stad een toename van het aantal plaatsen tot 1200.
Om dit grote aantal parkeerplaatsen functioneel en ruimtelijk organisatorisch kwalitatief op te lossen wordt gedacht aan een gestapelde oplossing, een parkeergebouw.
![i_RUP_11002_214_10017_00001_200102.png [image]](i_RUP_11002_214_10017_00001_200102.png)
Ontwerpend onderzoek Onthaalzone
Ter aanvulling op het masterplan werd in oktober 2014 ontwerpend onderzoek verricht naar de mogelijke ontwikkeling van een gestapelde oplossing. De ruimtelijke impact van verschillende scenario’s en footprints voor een gescheiden of gezamenlijke realisatie van de parkeervoorzieningen voor de P&R en de grootschalige detailhandel werden onderzocht.
![i_RUP_11002_214_10017_00001_200103.png [image]](i_RUP_11002_214_10017_00001_200103.png)
Figuur 54 | ruimtelijke impact parkeergebouw, team ontwerpend onderzoek
De optie waarbij enkel de parkeerbehoefte voor de P&R op lange termijn (1200 ppl) op de kop wordt voorzien, en de parkeerbehoefte van de grootschalige detailhandel (1500 ppl) op eigen terrein én inpandig wordt voorzien (bv winkel op poten), geeft ruimtelijk betere resultaten naar volume, zichtbaarheid voor de grootschalige detailhandelszaak, ontsluiting en mogelijkheid tot extra flankerend programma op de kop.
Dit ontwerpend onderzoek werd in mei 2015 verder verfijnd en de mogelijkheden voor een gezamenlijke ontwikkeling verder uitgediept, want bij een gezamenlijke ontwikkeling kan de parkeervraag efficiënter beantwoord worden.
Ruimtelijke haalbaarheidsstudie parkeergebouw, Technum Tractebel Engineering
In het voorjaar van 2015 heeft Technum Tractebel Engineering de haalbaarheid onderzocht van een parkeergebouw in de onthaalzone van de site Havana, binnen de tramkeerlus en ten noorden van het fietspaviljoen van het project Noorderlijn.
Er werd gemikt op een parkeergebouw van bijna 2000 parkeerplaatsen, waarbij de helft bestemd was voor P&R en de helft voor de grootschalige detailhandel. Op piekmomenten zouden beide functies maximaal 200 parkeerplaatsen van elkaar kunnen gebruiken. De uitdaging was een heldere verdeling en routing te vinden voor de parkeerplaatsen die aan beide functies toebehoren en tegelijk een dubbel gebruik mogelijk te laten. Het was een louter ruimtelijk haalbaarheidsonderzoek en vond plaats vóór er sprake was van de uitwerking van een Algemeen (ruimtelijk) Concept (zie hoofdstuk “Toelichting zone voor centrumfuncties – P&R (Ce1)” voor de voorwaarden met betrekking tot het Algemeen Concept voor de P&R gebouwen in de stad.) Er werd dan ook expliciet niet naar architecturale vormgeving gevraagd.
Technum stelt voor drie gebouwen te ontwerpen om de schaal te breken en meer geleding te geven aan de ruimte. Deze gebouwen zijn gescheiden door patio’s voor natuurlijk licht en lucht. Het gebouw is opgevat als een splitlevel en heeft twee circulatietorens voor wagens aan de noordzijde en drie circulatietorens voor voetgangers en fietsers aan de zuidzijde. Zo worden de modi maximaal uit elkaar getrokken. De meer oostelijke parkeerplaatsen zijn bedoeld voor P&R-gebuikers, de meer westelijke voor retailklanten. De twee circulatietorens sturen de wagens richting de juiste parkeerplaatsen, maar in feite kan doorheen het hele gebouw vrij gecirculeerd worden. Zo wordt het dubbelgebruik mogelijk gemaakt. De parkeerplaatsen voor dubbelgebruik bevinden zich centraal in het gebouw. Er wordt haaks geparkeerd op vlakke vloerplaten. De brede, vlakke, enkelrichting rijbaan laat toe ook met winkelkarretjes eenvoudig te circuleren. In het verlengde van het fietspaviljoen wordt een passerelle ontworpen waarop de verticale circulatie van het parkeergebouw wordt aangehaakt en die een rechtstreekse verbinding geeft naar de perrons en naar de retailer, over de tram heen. Het zou logisch zijn in dit ontwerp dat er ook een ingang is naar de grootschalige detailhandel die zich op de hoogte van de passerelle bevindt.
Het maaiveld wordt voorbehouden voor flankerende functies zoals een fietsherstelpunt, een café/snackbar of een stedelijk distributiecentrum en fietsenstallingen. Het ontwerp voorziet hier dan ook een hogere vrije hoogte. Technum stelt eveneens voor het tankstation te reorganiseren en de shop te integreren in het parkeergebouw of minstens onder de passerelle. De toegangsweg vanop de Noorderlaan wordt gebundeld met de trambaan en kruist deze niet. Een tweede uitrit wordt ten noorden van de grootschalige detailhandel voorzien en sluit aan op de Havanastraat. Op het dak van de grootschalige detailhandel zouden nog minstens 350 parkeerplaatsen voorzien moeten worden. Deze worden ontsloten via het parkeergebouw voor wagens. Voor de retailklanten die op het dak parkeren zal de grootschalige detailhandel een verticale circulatie binnen zijn perceel moeten voorzien.
Het ontwerp maakt het mogelijk gefaseerd te bouwen, zodat al kan gestart worden wanneer het containerpark nog op de huidige locatie in werking is.
![i_RUP_11002_214_10017_00001_200104.png [image]](i_RUP_11002_214_10017_00001_200104.png)
![i_RUP_11002_214_10017_00001_200105.jpg [image]](i_RUP_11002_214_10017_00001_200105.jpg)
![i_RUP_11002_214_10017_00001_200106.jpg [image]](i_RUP_11002_214_10017_00001_200106.jpg)
![i_RUP_11002_214_10017_00001_200107.jpg [image]](i_RUP_11002_214_10017_00001_200107.jpg)
![i_RUP_11002_214_10017_00001_200108.jpg [image]](i_RUP_11002_214_10017_00001_200108.jpg)
Figuur 55 | Ruimtelijke haalbaarheidsstudie parkeergebouw, Technum Tractebel Engineering
5.3 Wensbeeld
De doordruk van de ruimtelijke concepten levert een eindbeeld op waar drie zones voor ontwikkeling uit voortvloeien: de ‘kop’, de ‘buik’ en de ‘staart’. Elk van deze zones kent een ontwikkeling met een eigen dynamiek en een eigen programma.
![i_RUP_11002_214_10017_00001_200109.png [image]](i_RUP_11002_214_10017_00001_200109.png) ![i_RUP_11002_214_10017_00001_200110.png [image]](i_RUP_11002_214_10017_00001_200110.png)
De KOP is de onthaalzone.
De BUIK is de centrale zone met een clustering van ontwikkelingsvelden.
De STAART is het open ruimte gebied.
De Havanasite is een transitruimte, de noordelijke toegang tot de stad met een P&R aan een multimodaal vervoersknooppunt, maar ook een bestemming als toegang tot de aangrenzende wijk Luchtbal Noord en natuurgebied Oude Landen alsook een ontwikkelingspool met een grootschalige detailhandel en diverse stadsdiensten en stedelijke functies.
Het geschetste eindbeeld zal gefaseerd ontwikkeld worden waarbij investeringen in het aanbod van het openbaar vervoer en investeringen in private of publieke programma’s elkaar versterken. Een kwalitatief openbaar vervoersknooppunt op Havana is gunstig voor de bereikbaarheid van de programma’s waardoor voor deze laatste de invloedssfeer vergroot. Een kwalitatief aanbod aan programma’s draagt omgekeerd bij tot de haalbaarheid en de rendabiliteit van het openbaar vervoersknooppunt.
5.3.1 DE KOP: de onthaalzone
![i_RUP_11002_214_10017_00001_200111.png [image]](i_RUP_11002_214_10017_00001_200111.png)
De onthaalzone is gericht op het organiseren van een efficiënt en kwalitatief openbaar vervoerspunt met een vlotte uitwisseling tussen privaat en openbaar vervoer. Tegelijk moet de onthaalzone bezoekers van de site Havana opvangen en naar de aangrenzende programma’s leiden.
Het ontwerp van Brabo 2 voorziet in de aanleg van een keerlus rond het huidige
benzinestation, het containerpark en de aan te leggen gelijkvloerse P&R. De in december 2014 verleende stedenbouwkundige vergunning voor Brabo 2 voorziet 252 parkeerplaatsen.
![i_RUP_11002_214_10017_00001_200112.jpg [image]](i_RUP_11002_214_10017_00001_200112.jpg)
Figuur 56 | schema studiebureau Technum
Het is wenselijk de hoofdcirculatie-as tussen de verschillende vervoersmodi verder te continueren en ruimtelijk te articuleren als verbindend element tussen de verschillende functies en gebouwen van de Havanasite:
- vanaf hoofdperron langs/onder/over fietsstalling
- richting centrale groene as (zone Pu2) tussen retail cluster (zone De) en kazernegebouw (Ce-ka)
![i_RUP_11002_214_10017_00001_200113.jpg [image]](i_RUP_11002_214_10017_00001_200113.jpg)
Figuur 57 | schema studiebureau Technum
Bij uitbreiding van het aantal parkeerplaatsen van de geplande gelijkvloerse P&R is een parkeergebouw evident. Een parkeergebouw in de zone Ce1 kan plaats bieden aan ca. 250 tot 1200 auto’s voor de afwikkeling van de P&R. De parkeerbehoefte van de grootschalige detailhandel kan eveneens voorzien worden in de onthaalzone, gecombineerd met de P&R. Zo ontstaat de mogelijkheid om vanwege de gecreëerde overlap van beide parkeerfuncties 15% minder parkeervakken te creëren om toch aan beide behoeftes tegemoet te komen. Een parkeergebouw voorziet op maaiveldniveau in een flankerend programma voor de onthaalzone, dit voor het gebruikerscomfort van de reiziger, maar ook uit veiligheidsoverwegingen.
Een flankerend programma vergroot de levendigheid en de sociale controle.
Zowel een (enkele) commerciële functie(s) als fietsherstelplaats of duurzaam distributiecentrum kunnen de plint van het parkeergebouw opladen en van het parkeergebouw een multimodale hub maken met faciliteiten voor alle modi en een dynamiek die afstraalt op het publiek domein en de perrons van de openbaar vervoer haltes.
De footprint van het parkeergebouw laat ruimte voor de zichtbaarheid naar de achtergelegen grootschalige detailhandel in zone De.
Door de ligging werkt het parkeergebouw als hefboom voor de stadsrand: als poort naar het natuurgebied Oude Landen en als trigger voor de vermarkting van de zone voor grootschalige detailhandel waarnaast het parkeergebouw gelegen is.
De strategische ligging van de site wordt vertaald in hoge eisen voor de beeldkwaliteit. Bij elk nieuw gebouw krijgt de onthaalzone er immers een ‘gezicht’ bij. De architectuur ervan en de samenhang met de kazerne en de achtergelegen zone voor grootschalige detailhandel zijn bepalend voor de identiteit van de site.
De hoge eisen vertalen zich in kwalitatief hoogwaardige gebouwen, met een duidelijke samenhang tussen constructiemethode, materialisatie en detaillering. In geen geval worden simpele, industriële ‘dozen’ ontwikkeld.
Het huidige containerpark is een uitdovende bestemming. Van zodra een nieuwe vestiging klaar is voor de verhuis van de huidige stel- en werkplaatsen, kan een nieuw containerpark opgericht worden aan de oostzijde van de buik, in een daarvoor voorziene zone Ce3 van ongeveer 5000m².
Het benzinestation is een functie die past binnen de onthaalzone, maar de huidige inplanting is vanuit ruimtelijk oogpunt gezien niet ideaal.
![i_RUP_11002_214_10017_00001_200114.jpg [image]](i_RUP_11002_214_10017_00001_200114.jpg) ![i_RUP_11002_214_10017_00001_200115.png [image]](i_RUP_11002_214_10017_00001_200115.png)
Figuur 58 | huidige locatie tankstation uit de ruimtelijke haalbaarheidsstudie P&R van studiebureau Technum
![i_RUP_11002_214_10017_00001_200116.jpg [image]](i_RUP_11002_214_10017_00001_200116.jpg) ![i_RUP_11002_214_10017_00001_200117.png [image]](i_RUP_11002_214_10017_00001_200117.png)
Figuur 59 | voorstel nieuwe locatie tankstation uit de ruimtelijke haalbaarheidsstudie P&R van studiebureau Technum
Het is wenselijk dat het benzinestation zich herlokaliseert op ongeveer dezelfde plek, maar zich beter integreert tegen/in/langs het parkeergebouw zoals uitgewerkt in het ontwerpend onderzoek voor een parkeergebouw op de Havanasite door studiebureau Technum.
5.3.2 DE BUIK
![i_RUP_11002_214_10017_00001_200118.png [image]](i_RUP_11002_214_10017_00001_200118.png)
De buikzone voorziet in vier ontwikkelingsvelden, waarvan één de kazerne bevat (zone Ce2). Een tweede ontwikkelingsveld omvat de huidige loods M&N (zone Ce3) aan de Havanastraat. Ten noorden van deze loods is een derde ontwikkelingsveld (zone Ce3). Daar bevinden zich momenteel verschillende stel- en werkplaatsen van de stad. Tussen de kazerne en de A12 bevindt zich het vierde ontwikkelingsveld (zone De) waar momenteel ook nog grootschalige stel- en werkplaatsen van de stad gelegen zijn.
Het kazerne-complex kan een nieuwe stedelijke invulling krijgen. De grootste zone De met een grondoppervlakte van ongeveer 27.500 m² zal ingevuld worden met een grootschalige detailhandel en de twee kleinere velden binnen zone Ce3 worden voorbehouden voor stedelijke functies.
De ontwikkeling van het geschetste eindbeeld zal de komende jaren in beslag nemen. Zowel voor de huidige stedelijke stel- en werkplaatsen, als voor de politiediensten die er tijdelijk worden gecentraliseerd, wordt een verhuis naar een definitieve locatie voorbereid. De stel- en werkplaatsen zijn dus een uitdovend programma.
Volgens de huidige verwachting loopt de tijdelijke centralisatie van politiediensten af in 2019 waardoor dit deel van de site vanaf 2020 vrij komt. De nieuwe technische cluster noord voor de stedelijke stel- en werkplaatsen zou ook tegen 2019 in gebruik genomen worden. Hierna komt ruimte vrij voor de grootschalige detailhandel en voor een verplaatsing van het huidige containerpark in de ‘kop’zone naar zone Ce3 in de ‘buik’zone.
De S.B. Housmanskazerne heeft een monumentale, historische en architecturale waarde. Het behoud van de kazerne staat voorop waarbij verbouwingen en uitbreidingen mogelijk moeten zijn mits respect voor de historische waarde van het complex. De inpassing van op te richten gebouwen vraagt extra aandacht door de aanwezigheid van de kazerne.
5.3.3 DE STAART: open ruimte
![i_RUP_11002_214_10017_00001_200119.png [image]](i_RUP_11002_214_10017_00001_200119.png)
De ontwikkeling van het geschetste eindbeeld voor de staart vraagt tijd. Van zodra de politiediensten verhuizen naar een definitief mastergebouw wordt ingezet op de eindfase: een open ruimte die aansluiting zoekt met het programma op de site en met de omgeving.
De nabijheid van het waardevolle natuurgebied Oude Landen van 100 ha waar de natuur door Natuurpunt Antwerpen Noord wordt beschermd en alle kansen krijgt, verlaagt de druk om in de groenzone van 7,5 ha binnen de contouren van het RUP Havana aan natuurontwikkeling en -bescherming te doen.
De groenzone binnen het RUP wordt aanzien als geleidelijke overgang en verbinding tussen de wijk Luchtbal en het natuurgebied Oude Landen, als stapsteen tussen het Laaglandpark in Merksem en de groenzone ten zuiden van de wijk Rozemaai. De groenzone is een scharnierplek tussen Ekeren, Merksem en Luchtbal.
Een bijkomende doelstelling is het voorzien van voldoende recreatieve- en sportfaciliteiten voor de drie woongebieden, zoals genoteerd in de ambities voor het Noorderpark in het structuurplan Antwerpen.
Tenslotte heeft de open ruimte een belangrijk functie met betrekking tot het bufferen van water. De gehele groenzone moet kunnen overstromen. Recente modellen hebben aangetoond dat deze zone bij een hoog klimaatscenario onder water kan komen te staan. Omdat overstromingen nooit helemaal kunnen uitgesloten worden dienen voorzorgen genomen te worden om het risico op wateroverlast tegen te gaan.
De zone wordt een open ruimte met lokale activiteiten zoals bijvoorbeeld sportinfrastructuur, een hondenlosloopzone en volkstuinen ter ondersteuning van het woonweefsel. Een goede landschappelijke inpassing van lokale activiteiten in de open ruimte is nodig.
Hekwerken tussen de verschillende open ruimte activiteiten worden zo veel mogelijk beperkt.
De fiets-o-strade langs de spoorlijn wordt doorheen de open ruimte en via de doorsteek voor zacht verkeer verbonden met de fietsinfrastructuur nabij het multimodaal knooppunt aan de Noorderlaan-Ekersesteenweg.
5.4 REFERENTIEPLAN OPEN RUIMTE
De kwaliteit van de open ruimte zal worden bepaald door een kwaliteitsvol en doordacht ontwerp waarbij elke deelzone (Pu1 tem Pu5 en Gr) en de verschillende stromen en plekken op een functionele, leesbare, en veilige manier in elkaar over vloeien tot één samenhangende kwalitatieve publieke ruimte.
Elke deelzone van het publiek domein heeft een eigen functie, programma, karakter en beeldwaarde. De ruimtelijke randvoorwaarden worden specifiek per zone uitgedrukt in de toelichting bij de voorschriften. Maar de verschillende deelzones moeten ook vloeiend in elkaar over gaan en een bepaalde eenheid nastreven.
De inrichting van elke deelzone dient in overeenstemming te zijn met de beoogde kwaliteit zoals aangegeven in het ”referentieplan open ruimte”. Het “referentieplan open ruimte” toont de krachtlijnen en de potenties van de open ruimte om te functioneren als één samenhangend geheel.
Bij vergunningsaanvragen voor werken voor de realisatie van openbaar domein of van delen ervan, wordt een inrichtingsstudie ‘publiek domein’ gevoegd. De inrichtingsstudie is een informatief document voor de vergunningverlenende overheid met het oog op het beoordelen van de vergunningsaanvraag in het kader van de goede ruimtelijke ordening en om het ontwerp van (een deel van) het publiek domein te kunnen beoordelen als onderdeel van één samenhangend geheel, zowel naar functionaliteit als naar ruimtelijke kwaliteit en beeldwaarde.
In functie van de gewenste beeld- en belevingskwaliteit moeten de constructies en de inrichting van het gebied kwaliteitsvol uitgevoerd worden. De vormgeving en inrichting van de buitenruimte moeten bijdragen tot een verhoging van de ruimtelijke kwaliteit.
Elke open ruimte en publiek domein moet uitgevoerd worden met het oog op de functionaliteit (het gebruik van de ruimte), de herkenbaarheid (aard van de activiteiten en locatie) en het verhogen van de beeldkwaliteit (plaatsing en vormgeving).
De inrichting dient in overeenstemming te zijn met de beoogde kwaliteit zoals aangegeven in het ”referentieplan open ruimte”. Het “referentieplan open ruimte” toont de krachtlijnen en de potenties van de open ruimte om te functioneren als één samenhangend geheel.
Hoogstammen maken integraal deel uit van het ontwerp van publiek domein en openbare wegenis, waarbij het STOP principe als uitgangspunt wordt gehanteerd.
De verhardingsmaterialen zijn te kiezen volgens het draaiboek openbaar domein van de stad.
De dimensies zijn eveneens te bepalen volgens het draaiboek openbaar domein.
Enkel inheemse beplanting is toegelaten.
Het referentieplan open ruimte ondersteunt de samenhang van het openbaar domein als één krachtig systeem. Het verbeeldt de eindvisie op de aanleg van het openbaar domein binnen de gehele site.
Gemotoriseerd verkeer en zacht verkeer worden maximaal gescheiden:
-
Structurerend voor de buik is de oost-westgerichte centrale as Pu2 die de onthaalzone met de staart verbindt. Langs de as worden de bezoekers van de verschillende programma’s opgevangen. Autoverkeer is op deze as niet toegelaten.
-
De noord-zuidgerichte as tegenover de Bostonstraat geleidt inkomend en uitgaand verkeer van de site. Het verkeer voor laden en lossen van ontwikkelingsvelden De en Ce3 gaat rechtdoor (over de gearceerde zone - Logistiek verkeer) en het bezoekers-verkeer buigt rechts af via een nieuwe weg Pu4 langs de groenzone.
![i_RUP_11002_214_10017_00001_200120.png [image]](i_RUP_11002_214_10017_00001_200120.png)
Figuur 60 | referentieplan open ruimte, scenario met twee voetbalvelden
De kwaliteit van de open ruimte zal worden bepaald door een kwaliteitsvol en doordacht ontwerp waarbij elke deelzone (Pu1 tem Pu5 en Gr) en de verschillende stromen en plekken op een functionele, leesbare, en veilige manier in elkaar overvloeien tot één samenhangende kwalitatieve publieke ruimte.
Omdat verschillende deelzones van de publieke ruimte (Pu1 tem Pu4) mogelijks door verschillende partijen ontworpen en uitgevoerd worden om daarna te worden overgedragen aan het publiek domein, is het van belang de samenhang van de verschillende ontwerpen te bewaken.
Er zijn 3 scenario’s uitgetekend:
-
Het eerste scenario waarbij de huidige wegenis nabij station Noorderdokken (gelegen op grond die momenteel nog in eigendom is van NMBS/Infrabel) onaangeroerd blijft
-
Het tweede scenario waarbij de huidige wegenis mee geïntegreerd is een landschapspark en 1 voetbalveld wordt ingericht in de groenzone
-
En tenslotte een scenario waarbij twee sportvelden worden ingericht in de groenzone. De twee voetbalvelden die nu gelegen zijn tussen de Noorderlaan en de Generaal Simondslaan worden later misschien bij aansnijding van de potentiële bouwgronden verplaatst van wijk Luchtbal naar het plangebied Havana.
![i_RUP_11002_214_10017_00001_200121.png [image]](i_RUP_11002_214_10017_00001_200121.png)
![i_RUP_11002_214_10017_00001_200122.png [image]](i_RUP_11002_214_10017_00001_200122.png)
![i_RUP_11002_214_10017_00001_200123.png [image]](i_RUP_11002_214_10017_00001_200123.png)
De samenhang van de functionele, ruimtelijke en architecturale kwaliteit van het openbaar domein wordt bewaakt op 4 niveaus:
-
Het referentieplan open ruimte
-
De toelichting bij de voorschriften
-
Voorwaarden binnen de marktbevraging bij verkoop van de ontwikkelingsvelden
-
Het proces voor en tijdens de stedenbouwkundige vergunning voor aanleg van openbare wegenis
Het referentieplan open ruimte inspireert en stuurt de globale visie voor de open ruimte binnen het plangebied. Het referentieplan verbeeldt het wensbeeld van de openruimte van het gehele plangebied. Een streefbeeld wanneer alle ontwikkelingsvelden en ruimtes zijn ingericht. In de toelichting bij de stedenbouwkundige voorschriften wordt verder ingegaan op de componenten van elke fragment of deelzone van het publiek domein.
In de toelichting bij de stedenbouwkundige voorschriften (zie verder) wordt per deelzone gespecifieerd wat de ambitie en de ontwerpcomponenten zijn, wat de functionele betekenis is en op welke wijze de deelzone aantakt op de aanpalende deelzones.
Er wordt voor elke deelzone aangegeven hoe de deelzone zich inpast in het geheel en hoe de deelzone verder aanknoopt aan de aanpalende deelzones en ontwikkelingsvelden.
In de marktbevraging voor de verkoop van de aanwezige ontwikkelingsvelden dienen minstens volgende ontwerpcomponenten voor de aanleg van het openbaar domein of de relatie met het openbaar domein opgesomd:
In de marktbevraging voor de ontwikkelingsvelden wordt tevens een ontwerper publieke ruimte (landschapsarchitect/studiebureau) verwacht die instaat voor het ontwerp van de gekoppelde publieke ruimte aanpalend aan het ontwikkelingsveld.
Bij vergunningsaanvragen voor werken voor de realisatie van openbaar domein of van delen ervan, wordt verplicht een inrichtingsstudie ‘publiek domein’ gevoegd. De inrichtingsstudie is een informatief document voor de vergunningverlenende overheid met het oog op het beoordelen van de vergunningsaanvraag in het kader van de goede ruimtelijke ordening en om het ontwerp van (een deel van) het publiek domein te kunnen beoordelen als onderdeel van één samenhangend geheel, zowel naar functionaliteit als naar ruimtelijke kwaliteit en beeldwaarde.
Vooraleer een ontwerp voor publiek domein klaar is voor een vergunningsaanvraag dient de gangbare procedure gevolgd voor aanleg van nieuwe publiek domein: met advies, coördinatie en begeleiding van de bedrijfseenheid stadsontwikkeling, afdeling ontwerp & uitvoering van de stad en een gunstig advies van de Commissie Openbaar Domein.
De inrichtingsstudie maakt deel uit van het dossier betreffende de aanvraag van een stedenbouwkundige vergunning en wordt als zodanig meegestuurd aan de advies verlenende instanties overeenkomstig de toepasselijke procedure voor de behandeling van de aanvragen.
De inrichtingsstudie geeft aan hoe:
-
-
het voorgenomen ontwerp voor de publieke ruimte zich verhoudt tot het referentieplan open ruimte uit de toelichtingsnota;
-
het voorgenomen ontwerp voor de publieke ruimte zich verhoudt tot wat al gerealiseerd is in het gebied en/of tot de mogelijke ontwikkeling van de rest van het gebied;
-
de deelzone van het publiek domein aansluit op de aangrenzende zones Pu;
-
de ontsluiting van de aanpalende ontwikkelingsvelden zal worden gerealiseerd;
-
het laden en lossen wordt georganiseerd in en rondom de ontwikkelingsvelden;
-
de inpassing ten opzichte van de aanpalende bebouwing op een kwalitatieve wijze wordt gerealiseerd;
-
het netwerk van paden voor de zachte wegebruiker aan elkaar aansluiten;
-
de afwatering zal gebeuren binnen de zone en van en/of naar de aanpalende deelzones
5.4.1 Referentiebeelden open ruimte
![i_RUP_11002_214_10017_00001_200124.png [image]](i_RUP_11002_214_10017_00001_200124.png)
![i_RUP_11002_214_10017_00001_200125.png [image]](i_RUP_11002_214_10017_00001_200125.png)
Figuur 61 | referentiebeelden van het referentieplan open ruimte
5.5 Algemene concepten
5.5.1 Algemene houding: duurzaam en intensief ontwikkelen
Aan de basis van de ontwikkeling ligt een houding die duurzaamheid en intensivering voorop stelt. Deze houding wordt vertaald in verschillende aspecten: compact bouwen, bouwen in synergie en bouwen in relatie tot water.
Door de bebouwbare oppervlakte compact te organiseren dwingt het plan tot zuinig omgaan met de oppervlakte en tot doordacht ontwerpen en bouwen.
Zuinig omgaan met ruimte heeft een aantal voordelen. Compact bouwen leidt tot duurzaam bouwen, het vraagt minder infrastructuur en laat meer ruimte voor ongekende ontwikkelingen op lange termijn. Ook wordt door compacte bebouwing de inname van de open ruimte beperkt.
Bouwen in synergie heeft betrekking op het creëren van een ruimtelijke samenhang tussen de verschillende programma’s. De architectuur van gebouwen en de inrichting van openbare ruimte dragen hiertoe bij. Tegelijk heeft synergie betrekking op het functioneren van de verschillende programma’s, op het zoeken naar overlappende programmaonderdelen en deze vervolgens in te zetten voor gezamenlijk gebruik.
Bouwen in relatie tot water vraagt aandacht voor de invloed van de bebouwde of verharde ruimte op de waterhuishouding van de omgeving. Het algemeen principe van het vasthouden van water, bergen en vervolgens afvoeren wordt gehanteerd.
5.5.2 Algemene ruimtelijke kwaliteit en milieukwaliteit
Gezien de stedelijke ambitie van het RUP Havanastraat, is architecturale kwaliteit van groot belang. In functie van de gewenste beeld- en belevingskwaliteit moeten de constructies en de inrichting van het gebied kwaliteitsvol uitgevoerd worden. Zowel de architectuur van de gebouwen als de vormgeving en inrichting van de buitenruimte moeten bijdragen tot een verhoging van de ruimtelijke kwaliteit.
Alle constructies moeten uitgevoerd worden met het oog op de functionaliteit (het gebruik van de ruimten), de herkenbaarheid (aard van de activiteiten en locatie) en het verhogen van de beeldkwaliteit (plaatsing en vormgeving).
De gebiedsontwikkeling van het gebied Havana volgt het principe van de duurzame stedenbouw of stedenbouw die in alle stadia van het planproces maximaal kansen en mogelijkheden benut om een hoge ruimtelijke kwaliteit in combinatie met een hoge milieukwaliteit tot stand te brengen. Dit betekent concreet dat projecten zowel conceptueel, constructief, als esthetisch voor lange tijd zijn bedacht en uitgevoerd en dit in harmonie met de omgeving.
De constructies en de inrichting van het gebied moeten voldoen aan de gewenste milieukwaliteit. Zowel de vormgeving en de uitrusting van de gebouwen als de inrichting en uitrusting van de buitenruimte moeten een zo minimaal mogelijke milieubelasting tot stand brengen (en waar mogelijk een verbetering van het milieu en een verhoging van de leefbaarheid).
Zoals te begrijpen uit de lucht- en geluidstudies en het plan-MER zijn zowel de luchtkwaliteit als de geluidhinder op de Havanasite niet ideaal. De kazerne is voor beide aspecten nog de ‘beste’ locatie van de ganse site, maar ook hier is de omgeving verre van ideaal om te wonen, of functies onder te brengen voor kwetsbare groepen.
EMA, dienst energie en milieu van de stad Antwerpen, dringt erop aan een (geïntegreerde) studie te laten uitvoeren naar effectieve maatregelen, die ervoor zorgen dat de opgegeven referentie- of grenswaarden voor geluid en luchtkwaliteit niet overschreden worden.
Onderaan wordt het beoordelingskader luchtkwaliteit en geluidshinder voor kwetsbare groepen ter info meegegeven.
Beoordelingskader luchtkwaliteit en geluidshinder voor kwetsbare groepen
(scholen en kinderdagverblijven)
Op zoek naar een beoordelingsmethode die rekening houdt met de extra gevoeligheid van kinderen wordt door de stad Antwerpen momenteel een beoordelingskader gevoelige doelgroepen uitgewerkt. Dit beoordelingskader is van toepassing wanneer nieuwe scholen en kinderdagverblijven worden gebouwd of bestaande scholen en kinderdagverblijven worden uitgebreid.
Voor luchtkwaliteit wordt van volgende overwegingen uitgegaan:
|
NO2
|
t.e.m. 38 µg/m³
|
39 µg/m³ - 40 µg/m³
|
41 µg/m³ - 43 µg/m³
|
44 µg/m³ en meer
|
|
|
C
|
C
Mogelijke maatregelen
|
|
C
Mits remedieerbaar
|
|
D
Niet-remedieerbaar
|
|
D
|
-
Positief advies: onder de 38 µg/m³, maar
-
Risicozone type 1: 38 µg/m³ - 39 µg/m³(onder de EU-norm van 40 µg/m³)
-
Risicozone type 2: 40 µg/m³ - 43 µg/m³ (met remedieerbare toestand)
-
Negatief advies: vanaf 44 µg/m³ en voor gebouwen tussen EU-norm van 40 µg/m³ en 43 µg/m³ met niet-remedieerbare toestand
-
boven de 44 µg/m³ kan niet meer gebouwd of verbouwd worden
-
functies in de zone ≥ 40 µg/m³ krijgen geen bouw- of verbouwvergunning als ze gelegen zijn of gepland worden op een locatie waar geen belangrijke en voldoende brede verkeersluwe zijde is voorzien
Mogelijke maatregelen:
-
Ingrepen op het niveau van het gebouw: voorzien van een ventilatiesysteem, waarvan de aanzuiging is aangebracht aan de meest verkeersluwe zijde van het gebouw.
-
Ventilatiesysteem is bij voorkeur gekoppeld aan een filtersysteem met actieve koolstof (zodat ook de gasvormige NOx-en kunnen ‘afgevangen’ worden).
-
Lokalen aan de straatzijde enkel gebruiken voor tijdelijke functies (bijv. refter, tekenklas, …)
-
Ommuren van de speelplaats van de school, zodat er afdoende afscherming is van de verkeersemissies.
Voor geluid wordt van volgende overwegingen uitgegaan:
|
|
< 58dB (Lden)
|
58-62dB (Lden)
|
63-67dB (Lden)³
|
>= 68dB (Lden)
|
|
Advies
|
C
|
C
+
milderende maatregelen
|
|
C
indien verkeersluwe zijde
|
|
D
indien geen verkeersluwe zijde
|
|
D
|
Mogelijke maatregelen zijn:
-
Toepassen van de Belgische norm NBN S 01-400-2 “Akoestische criteria voor schoolgebouwen” met als aanvulling een streven naar een geluidsbelasting van Laeq = 55dB tijdens de speeltijden;
-
Maatregelen nemen om de akoestiek binnen in de klaslokalen en andere lokalen te optimaliseren (BIM, 2014);
-
Beroep doen op een geluidsspecialist om bovenstaande 2 maatregelen correct toe te passen.
-
Overzichtsplan van het projectgebied aanpassen aan de aanwezigheid en positionering van de verschillende geluidsbronnen tegenover de geplande gebouwen;
-
Het grondplan, volumes en oriëntaties van de verschillende lokalen en functies binnenin de gebouwen aanpassen aan de geluidsbronnen. Voorbeeld: slaapruimtes langs minst belaste zijde, kleedruimtes, technische lokalen… langs meest geluidbelaste zijden;
-
Zo groot mogelijke bufferzone tussen de gevoelige functies en lokalen en de geluidsbronnen;
-
Gebruik van geluidswerende gevels;
-
Gebruik van akoestisch isolerende materialen;
-
Vermijden van reflecterende materialen (vb. bakstenen muur rond speelplaats).
5.5.3 Waterberging
Retourbemaling tijdens de werken
Het onttrekken van grondwater leidt niet alleen tot het verlagen van het grondwater in de een sleuf of in een bouwput, maar ook tot verlagingen van de grondwaterstand in de omgeving. Deze verlagingen in de omgeving kunnen in sommige gevallen ongewenst zijn. Hierbij valt te denken aan het negatief beïnvloeden van:
-
Door grondwater verplaatsbare verontreinigingen
-
Zettingen, verlagingen beneden de historisch laagste grondwaterstand in zettingsgevoelige bodem
-
Archeologische vindplaatsen
-
De grondwaterstand in een “nat” natuurgebied
-
Grondwateronttrekking van derden
-
Verdroging parken en groenstroken
-
Zoet-zoutwatergrens
Overstromingsgevoeligheid
de oostelijke groenzone moet steeds kunnen overstromen en voor de overige bebouwing op de site dienen minimaal de principes van overstromingsveilig bouwen toegepast te worden aangezien overstromingen niet uitgesloten zijn. De overstromingspeilen dienen hierbij steeds afgestemd te zijn op de meest recente en accurate modelgegevens.
Collectief open grachtensysteem naar Wadi in zone Ge
Bij het verlenen van een stedenbouwkundige vergunning is een afwijking op de verplichting tot bufferen van water op eigen terrein te verantwoorden omdat gestreefd wordt naar een collectief open grachtensysteem op openbaar domein richting groenzone.
In de groenzone kan tussen de bestaande nutsinfrastructuur en de zone Ce3 een wadi aangelegd worden voor het vertraagd afvoeren van hemelwater van de zone De, en eventueel andere zones.
Het overschot aan regenwater van de grootschalige detailhandel en andere bebouwing binnen het plangebied kan na hergebruik overlopen in een grachtenstelsel langs de centrale groene as. De wadi kan op zijn beurt via een nieuwe gracht verbonden worden met de bestaande gracht aan de voet van het talud van de snelweg. De overstortgracht van wadi naar de gracht aan de voet van de talud of de ingekokerde gracht aan de zijde van Oude Landen (zie referentieplan open ruimte) loopt langsheen de centrale as doorheen de open ruimte.
Volgens de beschikbare gegevens (grafisch plan, referentieplan open ruimte en ecostudie met oa thema water, 2011) zijn er volgende elementen om het hemelwater van de gebouwen en verharde oppervlakten te bufferen en vertraagd af te voeren:
De grondwaterstand is vrij hoog in de oostelijke zijde van het plangebied dus er is mogelijks maar een buffercapaciteit van 25 cm hoog boven die grondwaterstand.
Gracht 6,75 m breed x 295 m lengte = 1.991 m²
met bufferend vermogen van 0.2 m³/m² of ca 400 m³
Wadi 4.920 m²
met bufferend vermogen van 0.25m³/m² of ca 1.235 m³
Totaal 1.635 m³
1.635 m³ = 1.635.000 L dat kan gebufferd worden.
Stel dat 20.000 m² dakoppervlakte afwatert naar de gracht en wadi.
Dit geeft een buffervermogen van 80 l/m² (een extensief groendak heeft een bufferend vermogen van 35 l/m²).
Raming realisatie gracht / wadi (VH = vermoedelijke hoeveelheid)
-
Uitgraving voor gebruik binnen de werf VH 7.000 m³ 4,5 €/m³ 31.500 €
-
Plaatselijk ophoging herbruik gronden VH 7.000 m³ 2,75 €/m³ 19.250 €
-
Profileren bermen wadi en gracht VH 1.500 m² 3,5 €/m³ 5.250 €
-
Profileren terrein grondbalans VH 20.000 m² 1.25 €/m³ 25.000 €
-
Aanleg grasland bezaaiing VH 200 are 75 €/m³ 15.000 €
-
Hydraulische bezaaiing bermen VH 15 are 130 €/m³ 1.950 €
-
Maaien vlakke grasvegetaties 2beurt/j/2j VH 800 are 6,50 €/m³ 5.200 €
-
Maaien taluds 2 beurt/j/2j VH 60 are 30,00 €/m³ 1.800 €
Totaal excl BTW 104.950 €
In de raming zit 2 jaar onderhoud ( extensief eco maaibeheer ) verwerkt maar geen verder aanplant of realisatie bruggen en wegen parkaanleg.
Filtering regenwater
In de algemene voorschriften staat dat het regenwater afkomstig van parkeerruimte gefilterd dient te worden met olie-afscheiders. Betreffende deze filtering van het potentieel verontreinigd hemelwater moeten de KWS afscheiders regelmatig onderhouden worden, geïnstalleerd worden met sedimentvang en coalescentiefilter, en voldoen aan EN 858 en DIN 1999, teneinde de infiltratietapaciteit en de kwaliteit van het grondwater en
het oppervlaktewater te beschermen. Dit moet in de latere vergunningen worden opgelegd.
5.5.4 Warmtenet
Collectieve warmtevoorziening met het oog op aansluiting op een warmtenet
De stad plant in samenwerking met haar partners de aanleg van een stadswarmtenet voor de wijken Luchtbal en Rozemaai en enkele naburige industriegebieden. Dit staat beschreven in het plan van aanpak zoals goedgekeurd door het college van burgemeester en schepenen op 12/12/2014. De aanleg van dit warmtenet zal de energievoorziening van de stad verder verduurzamen en verzekeren voor de toekomst. De aangesloten gebouwen zullen op die manier toegang krijgen tot een schone en betrouwbare warmtebron. Zo wordt tenslotte ook de druk op de luchtkwaliteit in de omgeving verminderd. Voor de verwarming van de gebouwen en warm water is er immers geen verbranding meer nodig van fossiele brandstoffen op de site.
Het plangebied behoort ook tot het leveringsgebied van het toekomstige warmtenet. Elke nieuw op te richten gebouw met een zekere warmtevraag ( tot 70 °C) moet dus de nodige voorzieningen treffen om aan te sluiten op het warmtenet. Binnen het plangebied geldt bovendien een aansluitverplichting op het warmtenet voor zover dit warmtenet reeds werd gerealiseerd.
Indien op het moment van de vergunningsaanvraag onvoldoende garanties bestaan over de beschikbaarheid van het warmtenet, wordt de warmtevoorziening voor de gebouwen collectief georganiseerd. Eén warmteproductie-eenheid per bouwvolume is daarbij een goed uitgangspunt.
Ook de bouw van een warmtecentrale (eventueel met schouw en al dan niet met bijhorende ondersteunende of educatieve ruimte) is toegelaten. De warmtecentrale kan dienst doen voor warmteopwekking, warmteopslag of booster pompstation. Het maximaal bouwvolume van de warmtecentrale is beperkt tot 4500 m³, exclusief schouw. De inplanting, het volume en de architecturale uitwerking van de warmtecentrale moet geïntegreerd worden in de omgeving.
De transportleiding is immers gepland langs de havanna-site. Het is mogelijk dat het warmtedistributienet zone Luchtbal wordt afgetakt op Havanna voor verdere wijkverdeling. In dat geval is er behoefte aan een warmtecentrale/ warmteopslag/ boosterpompstation. Vroeger werd deze ingetekend in een verdichtingslocatie in wijk Luchtbal maar dit project is naar timing een te groot risico momenteel om er van uit te gaan dat in dit programma een warmtecentrale kan opgenomen worden.
6 TOELICHTING BIJ DE STEDENBOUWKUNDIGE VOORSCHRIFTEN
6.1 Toelichting Zone voor Centrumfuncties – P&R (Ce1)(art. 1 in de voorschriften)
In de zone is een gelijkvloerse P&R toegestaan, maar de stad ambieert een P&R met 1200 parkeerplaatsen waardoor de oprichting van een parkeergebouw evident wordt. Een parkeergebouw met een hoge P&R capaciteit naast de vervoersknoop is het wenselijke eindbeeld en kan bovendien als lokale ontwikkelzone beschouwd worden.
Het ontwerp van Brabo 2 voorziet in de aanleg van een keerlus in de zones PU1, Ce1, Ge en Gr. Het faciliteren van de traminfrastructuur is een randvoorwaarde bij de invulling van programma’s in die zones.
Het parkeergebouw is een multifunctionele vorm, die toelaat dat kleine functies zoals tankstation of koffiebar zich er onder en rond kunnen vestigen, die ruimte laat voor fietsherstelplaats en elektrische laadpunten of die toelaat dat buurtbewoners lege parkeerplekken gebruiken voor sport en spel. Er wordt gestreefd naar maximaal dubbel gebruik, ruimte-efficiëntie en het opladen van het gebouw met flankerende functies die de levendigheid en sociale controle bevorderen.
Als ondersteunend programma ten behoeve van de functie parkeergebouw wordt gedacht aan volgende (niet limitatieve) functies:
-
-
-
-
Bedrijfssamenhuislokalen/telewerkplekken
-
Duurzame stedelijke distributie
-
Fietsherstelplaats, fietsparkeergebouw, fietsverhuur, deelfietsensysteem,…
-
Bureel voor beheer van parkeergebouw en technische afdelingen
-
Dienstruimte of informatieruimte voor de openbare vervoermaatschappij
-
Kleedkamers, refter en sanitair
-
Benzinestation
-
oplaadpunten elektrische wagens, oplaadpunten elektrische fietsen
In de plint van het parkeergebouw zal een flankerend programma zorgen voor een levendige en dynamische plint. Zeker de westelijke en zuidelijke plint die raken aan intensief gebruikt openbaar domein (ten westen langs de perrons en ten zuiden langs de route tussen perrons en grootschalige kleinhandel) moeten opgeladen worden met een flankerend programma, naast het herbergen van parkeerplaatsen. Het gebruik van het openbaar vervoer wordt geoptimaliseerd door op de gelijkvloers van het parkeergebouw horeca, bureelruimte, een fietsherstelplaats en andere flankerende functies te voorzien.
Het parkeergebouw huisvest parkeren voor P&R, maar mogelijks, in kader van slim ruimtegebruik en het beter benutten van de bestaande infrastructuren, ook parkeren voor andere functies zoals retail. Zo wordt een win-win situatie gecreëerd: park en ride-gebruikers zijn nieuwe klanten voor de retail, de bereikbaarheid van de retail verhoogt, het gebruik van het openbaar vervoer wordt geoptimaliseerd omdat zowel van als naar de P&R en retail zal gereisd worden, de klanten van de retail zorgen op hun beurt weer voor verhoogde sociale controle, enz. Het parkeergebouw werkt als een grootschalig project van publiek belang binnen of naast een private ontwikkeling.
Met aandacht voor kwaliteit werkt het parkeergebouw als “visitekaartje” voor de stad: het gebouw verbeeldt de innovatieve en comfortabele stad. Een zo goedkoop en efficiënt mogelijk parkeergebouw is immers niet het meest succesvol. De kwaliteit van het parkeergebouw schuilt in de eerste plaats in de kwaliteit en het comfort van de overstap. Er wordt aandacht besteed aan bereikbaarheid en leesbaarheid, maar ook aan looproutes, sociale veiligheid, vormgeving van de perrons, natuurlijk licht en lucht… Het parkeergebouw stelt zich terughoudend op ten opzichte van haar omgeving: compact aangepast aan verstedelijking en economische tendensen.
Er is geen minimale of maximale bouwhoogte opgelegd. De volumetrie en organisatie van het parkeergebouw wordt bepaald door de gebruiks – en comfortlogica van een parkeergebouw (maximale wandelafstanden, snelheid, maatvoering, toegangscontrole,…).
Er wordt geen minimale ontwikkelingsoppervlakte of minimum B/T opgelegd voor de gelijkvloerse of gestapelde parking.
De onbebouwde ruimte binnen ontwikkelingsveld Ce1 wordt aangelegd als openbaar domein en overgedragen aan het openbaar domein.
Verhardingen worden zodanig aangelegd dat het hemelwater:
° ofwel maximaal kan infiltreren door gebruik van waterdoorlatende materialen;
° ofwel opgevangen kan worden voor hergebruik met een overloop naar het waterbergingssysteem binnen de zone Publiek domein en Groen
In tegenstelling tot de ontwikkelingsvelden in de buik-zone die logischerwijze de orthogonaliteit van het bepalende kazernecomplex volgen, kan het parkeergebouw een eigen richting aanhouden zonder zich in het grid van het kazernecomplex in te schuiven.
De gevelvlakken van een parkeergebouw in zone Ce1 kunnen gebogen en afgerond zijn als dit vanuit technische/structurele/architecturale logica van het parkeergebouw wenselijk is.
Het parkeergebouw kan functioneel ondergronds en/of bovengronds verbonden worden met de grootschalige detailhandel die wordt opgericht in zone De, maar is architecturaal en stedenbouwkundig gezien een solitair herkenbaar gebouw.
De gevels van een parkeergebouw hebben een grote mate van openheid en transparantie. Dit bevordert de sociale veiligheid. Een bijkomend voordeel is dat zoveel mogelijk op natuurlijke verluchting en verlichting ingezet kan worden.
Een aanvraag tot stedenbouwkundige vergunning wordt geadviseerd door de welstandscommissie.
Algemeen Concept voor de P&R-gebouwen in/rond Antwerpen
In opdracht van BAM heeft HUB een Algemeen Concept uitgewerkt om van de P&R-gebouwen het visitekaartje van de stad te maken voor bezoekers: herkenbaar langs de grote invalswegen, aantrekkelijk in gebruik en economisch in ontwerp.
Het concept zet in op een kwalitatieve beleving voor de gebruiker en HUB refereert hiervoor naar de grandeur van de stationsgebouwen enerzijds, maar ook naar de fijnzinnige materiaalkeuzes die gebruikt zijn in de metrostations van Porto anderzijds. Ze willen met andere woorden een grootstedelijk gebaar maken om de bezoeker te verwelkomen, met details op maat van de gebruiker.
Om de beleving van de gebruiker zo aangenaam mogelijk te maken, wordt maximaal ingezet op toetreding van natuurlijk licht en lucht, voor comfort en energiebesparing. Hiervoor worden patio’s in het gebouw voorzien en worden de voetgangerspasserelles en de verticale circulatie hierop aangehaakt. De patio’s werken oriënterend in het gebouw. De voetgangers lopen op de passerelles, gescheiden van de autocirculatie, wat aangewezen is om conflicten tussen auto’s en personen op piekmomenten van de P&R te vermijden. Het is verkeersveiliger en zorgt voor een vlottere doorstroming in het gebouw op piekmomenten.
Het gebouw heeft geen dak. Het is een open constructie en heeft bij voorkeur een maximale hoogte van 25m i.v.m. de brandweerstand. Een gesloten of hoger gebouw is veel duurder.
Er wordt kostenbewust gekozen voor een slimme, beeldbepalende constructie zonder gevel, eerder dan een dure gevel als opsmuk voor een basale constructie.
Elk element van de constructie is goed gekozen als meest logische voor haar rol: beton zorgt voor naadloze vloeren en een verloren bekisting in staal zorgt dan weer dat het gewicht van de vloer wordt uitgespaard. Na grondig onderzoek is de conclusie dat wat de balken en kolommen betreft een beeldbepalende structuur in hout zorgt voor een sterke, herkenbare, originele en ‘groene’ uitstraling voor een beperkte meerkost.
De houten balken zijn ook hoger, waardoor de plafonds hoger liggen, er meer daglichttoetreding is, er een groter veiligheidsgevoel heerst en het gebouw flexibeler wordt naar eventuele reconversie.
De patio’s, voetgangerspasserelles en de fijnzinnige montage van materialen met hout als herkenbare aandachtstrekker zorgen voor een stevige BASIS: ze maken de P&R-gebouwen extra aantrekkelijk voor gebruikers, waardoor de kans groeit dat deze parkeergebouwen vanaf dag één maximaal vol zullen staan.
Op 11 september 2015 is dit concept een eerste maal voorgesteld aan de welstandscommissie. De welstandscommissie apprecieerde de “poëzie van de pragmatiek” en de zorgvuldige detaillering ten zeerste. De welstandscommissie was wel bezorgd dat de leesbaarheid van de poëzie zou komen te vervallen indien voor betonnen balken en kolommen gekozen zou worden. Hout sloot volgens hen perfect aan bij het idee van de stadspoorten.
Op 22 september 2015 is dit concept voorgesteld aan het A-overleg. Ook voor hen genoot hout als constructiemateriaal de voorkeur, vooral omdat het recupereerbaar is, in tegenstelling tot beton.
Het Algemeen Concept wordt nog verder verfijnd tijdens de opmaak van de voorontwerpen voor de verschillende P&R-gebouwen en zal wellicht afgerond worden tegen eind 2015.
![i_RUP_11002_214_10017_00001_200126.png [image]](i_RUP_11002_214_10017_00001_200126.png)
Figuur 62 | collagebeeld P&R-gebouw te linkeroever volgens Algemeen Concept, HUB, 2015
![i_RUP_11002_214_10017_00001_200127.png [image]](i_RUP_11002_214_10017_00001_200127.png)
Figuur 63 | collagebeeld P&R-gebouw te linkeroever volgens Algemeen Concept, HUB, 2015
6.2 Toelichting Zone voor Gemengde functies (Ge) (art. 2 in de voorschriften)
Om een schakelzone tussen het mogelijks parkeergebouw en de grootschalige detailhandel zo flexibel mogelijk te houden is een ‘pyjama’ uitgezet (een gestreepte zone) waarin de voorschriften voor zone Ce1 en/of de voorschriften voor zone De gelden, afhankelijk van het programma dat wordt ingericht. Zodoende is er ruimte voor verticale circulatie voor (één van) beide programma’s, ruimte voor uitbreiding voor (één van) beide programma’s en ruimte voor functionele en fysieke verbindingen tussen de gebouwen.
De zone voor gemengde functies is een complex aanknopingspunt waar mogelijks verschillende programma’s door elkaar vloeien.
Als het parkeergebouw voor P&R gecombineerd wordt met parkeervoorzieningen van de grootschalige detailhandel en gekoppeld wordt aan het gebouw/programma binnen zone De, kan het interessant zijn om (zoals de ruimtelijke haalbaarheidsstudie van Technum leert) de voetgangersstromen van parking naar winkel op een passerelle te houden en ter hoogte van de eerste verdieping de detailhandel te bereiken zonder te tramsporen te kruisen.
Het is een uitdagende ontwerpopdracht om een ambitieus P&R-programma in een representatief poortgebouw tot de stad, eventueel te vervlechten met een grootschalige retailer en hierbij wegenis en infrastructuur voor al de vervoersstromen veilig en leesbaar in te richten.
De tramkeerlus moet ten allen tijde doorheen de zone Ce1 en/of Ge en/of Gr en/of Pu1 en/of Pu2 kunnen passeren. In elk van deze zones is traminfrastructuur toegestaan.
Anderzijds blijft de mogelijkheid aan de retailer om parkeervoorzieningen volledig op eigen terrein te creëren waardoor een schakelzone of gemengde zone niet relevant is en deze zone gewoon zal ingevuld worden met de tramkeerlus en publiek domein.
Het is moeilijk om in deze fase zones en grenzen af te bakenen, die later beperkingen in mogelijkheden en gewenste ontwikkelingen kunnen betekenen.
De ruimte die niet wordt ingenomen door bebouwing en constructies, zal aangelegd worden volgens de principes die gelden voor publiek domein Pu2.
6.3 Toelichting Zone voor Detailhandel (De) (art. 3 in de voorschriften)
De huidige publieke functies/dienstverlening (stel- en werkplaatsen) doven uit. Bij ingang van het RUP Havana worden deze zonevreemd en van zodra in dit ontwikkelingsveld de huidige functies weg trekken, geldt de in het RUP vastgelegde bestemming detailhandel.
Er wordt ingezet op detailhandel die moeilijk te verweven is met de bestaande winkelkernen omwille van de schaal, de verkeersgeneratie en het type goederen dat wordt aangeboden. Een combinatie van verschillende grootschalige detailhandelszaken is niet toegelaten.
De grootschalige detailhandel heeft een minimale bruto vloeroppervlakte van 20.000 m² en een maximale bruto vloeroppervlakte van 45.000 m².
De reden waarom op de site Havana voor dit type detailhandel wordt gekozen is omdat er in stad Antwerpen een schaarste is aan ruimte die voor hele grote detailhandel kan ingezet worden. Vaak wordt beschikbare en goed bereikbare ruimte zoals op de site Havana op de markt gezet voor allerlei andere functies of kleinere vormen van detailhandel, maar dit zou concurrentie betekenen voor middelgrote en kleinere zaken die meer in het centrum gelegen zijn. Met deze oppervlaktevork wordt een detailhandel aangetrokken die geen concurrentie vormt met het winkelapparaat in de binnenstad.
De zone heeft een oppervlakte van ongeveer 27.500 m², waarvan ongeveer 3.300 m² gearceerde laad-en loszone.
De minimum B/T (bebouwing-terreinindex) bedraagt 65%, wat een minimale bebouwde grondoppervlakte van 17.900 m² geeft.
Het laden en lossen dient op eigen perceel georganiseerd, binnen de gearceerde zone, waardoor de gearceerde zone voor laden en lossen grotendeels gevrijwaard zal blijven van bebouwing. Binnen de gearceerde zone zal een overlap bestaan tussen het laden en lossen van de grootschalige detailhandel en het laden en lossen van het geplande containerpark binnen de zone Ce3. Het laden en lossen zal bijgevolg collectief moeten georganiseerd worden. Daarom dient een afstand van 18 meter tot aan de aanpalende zone Ce3 gevrijwaarde van bebouwing. Dit om het laden en lossen van het noordelijke bouwveld van Ce3 niet te hypothekeren. Het laden en lossen van beide ontwikkelingsvelden is deels over elkaar geschoven om zo min mogelijk terrein in te nemen.
Hoewel het ontwikkelingsveld gelegen is tegen een multimodaal knooppunt met een ruim aanbod aan openbaar vervoer is een ruime parking in verhouding met de parkeerbehoefte van een handelszaak van de vooropgestelde m² vloeroppervlakte noodzakelijk om geen parkeerdruk af te wentelen op de P&R of de wijk Luchtbal.
Het maximaal aantal parkeerplaatsen wordt vastgelegd op 1500 parkeerplaatsen. Met deze maximale parkeernorm is ook rekening gehouden in de mober en de planMER.
Vandaag en in de toekomst kennen de kruispunten aan de Noorderlaan een beperkte restcapaciteit, maar het probleem ligt voornamelijk bij het kruispunt Noorderlaan-Groenendaallaan. Aangezien de Havanasite in het noorden tegen het hoger netwerk gelegen is en ook een P&R met 1200 plaatsen bevat, stelt het studiebureau Grontmij, met de resultaten van de MOBER indachtig, een voorstel van programma op voor de Havanna site met een functie die veel verkeer aantrekt in een avondspits.
Het zou niet zinvol zijn om naar aanleiding van de resultaten van het verkeersmodel beperkingen op het aantal vooropgestelde parkeerplaatsen op te leggen voor de grootschalige detailhandel omdat de naastgelegen P&R het verminderde voorziene aantal parkeerplaatsen van de detailhandel immers zou compenseren en daarbij zijn functie als P&R missen.
De minimale totale bouwhoogte van de grootschalige detailhandel bedraagt 12 meter.
Een voldoende hoog en langgerekt gebouw ten noorden van de kazerne heeft een gunstig effect op de geluidsmetingen in het kazernecomplex.
In de in 2012 uitgevoerde lucht- en geluidstudie leest men:
“In deelgebied Havanastraat kan het gepland technisch gebouw langs de A12 voldoende afscherming bieden om t.h.v. de eigenlijke scholencampus (ruimschoots) aan de vooropgestelde Lden-norm van 65 dB(A) te voldoen. Dit is wel op voorwaarde dat het gebouw voldoende lang is – zich o.a. tot aan de Ekersesteenweg uitstrekt – en voldoende hoog is – minstens enkele meters uitsteekt boven de A12, die hier op een talud gelegen is…”
Het wegniveau van de A12 is gelegen op 10,5 TAW, het maaiveld van de centrale as ligt op 5,5 TAW. Bijgevolg steekt een grootschalige detailhandel met een bouwhoogte van bijvoorbeeld 15 meter 10 meter uit boven A12. Hierdoor kan een positieve impact op de geluidskwaliteit ter hoogte van de kazerne verwacht worden.
De maximale totale bouwhoogte van de grootschalige detailhandel bedraagt 25 meter.
Een grootschalige detailhandel wil zichtbaar zijn vanaf de autosnelweg. Een navigatietoren tot 45 meter boven het maaiveld fungeert als ‘uithangbord’ naar de snelweg toe.
Het hoogteaccent wordt voorzien op voldoende afstand van het naastgelegen kazerne-complex en simulaties moeten aantonen dat de totem enkel zichtbaar is vanop de A12 en verder geen visuele impact heeft in het noordelijk aangrenzende natuurgebied Oude Landen. De totem mag de skyline vanuit Oude Landen niet verstoren.
De grootschalige detailhandel maakt deel uit van een stedelijke omgeving en wordt langs 3 zijden (noord, zuid en (deels) west) omsloten door openbare ruimte.
De noordgevel is een functionele gevel die uitgeeft op de berm van de A12 en waarlangs gemotoriseerd verkeer passeert vanaf zone Ce1 (P&R-gebouw) naar en van de parking van de grootschalige detailhandel in zone De.
Evacuatie - doorgangen en -constructies zouden niet storen aan deze zijde.
De oostgevel is een laad- en los gevel en grenst niet aan publiek domein.
De zuidgevel is de meest publieke en zichtbare gevel die moet inzetten op maximaal contact met de groene as Pu2. Het is belangrijk dat het gebouw maximaal relaties aangaat met de aangrenzende open ruimte.
De westgevel kan volgens twee scenario’s uitgewerkt worden:
-
Als parkeervoorzieningen voor de grootschalige detailhandel deels worden voorzien binnen zone Ce1, zal de westgevel ingezet worden als functioneel en fysiek verbindingsstuk met een parkeergebouw in zone Ce1.
-
Als alle parkeervoorzieningen voor de grootschalige detailhandel op eigen terrein binnen zone De worden voorzien, is de gehele westgevel een zichtbare gevel die als voorgevel dient behandeld.
De toegang tot de grootschalige detailhandel bevindt zich idealiter in de zuidwestelijke hoek van het complex. Dit is de hoek die het meest zichtbaar is vanaf de Noorderlaan, gericht is naar het openbaar vervoersknooppunt, de publieke ruimte voor het parkeergebouw oplaadt en ook de centrale as dynamiek geeft. Het is wenselijk om een toegang (in- of uitgang) te voorzien in de westelijke gevel en de andere toegang (in- of uitgang) in de zuidelijke gevel. Zo wordt het aangrenzende openbaar domein, de zones Pu1 en Pu2, maximaal opgeladen.
Enkel de gevelvlakken die grenzen aan of gericht zijn naar Pu3 en naar de zone met overdruk – Laad- en loszone zijn vrijgesteld van de vereiste om levendig en representatief te zijn.
Buitenopslag en hekwerken worden beperkt.
Als uitdrukking van de functionele bestemming, dient de gevelopbouw van de zuidelijke en (zichtbare) westelijke gevel (representatieve gevels) een duidelijk waarneembare geleding en ritmiek te vertonen, om te vermijden dat grootschalige monotone gevelpartijen ontstaan. De grootschalige detailhandel wordt als één complex, in één volume opgebouwd. Omwille van de grootte van het complex gaat bijzondere aandacht naar de uitwerking van de gevels. De zuidelijke gevel met een lengte van ongeveer 220 meter is een gevel die mee de kwaliteit van de aangrenzende publieke ruimte, de centrale as, bepaalt. Door maximale inzet van transparante geveldelen, openingen, terrassen, vitrines, toegangen enzovoort kan de centrale as een aangename verblijfsplek en doorgangsboulevard worden. De zuidelijke gevel is tevens gericht naar de kazerne en zal bepalend zijn voor de kwaliteit en het succes van een latere invulling van de kazerne. Door een waarneembare geleding, subtiele accenten en verspringingen, eerlijk gebruik van duurzame materialen, voldoende raamopeningen en aandacht voor welstand en architectuur kan het reusachtige geveloppervlakte aan kwaliteit winnen en kan de aangrenzende publieke ruimte aantrekkelijker worden.
Een grootschalige detailhandel met een maximale bruto vloeroppervlakte van 45.000 m² kan volgens de Mober 2 miljoen bezoekers verwachten. Er kan verwacht worden dat de centrale groene as een onderdeel zal worden van het stedelijk weefsel, van de harde ruggengraat, als je bij die 2 miljoen jaarlijkse bezoekers ook de pendelaars die per fiets of te voet het multimodaal vervoersknooppunt bereiken én de mensen die in de kazerne wonen en/of werken optelt.
Kleurgebruik volgens huisstijl is mogelijk, maar wel ingepast in de stedelijke omgeving.
Een aanvraag tot stedenbouwkundige vergunning wordt geadviseerd door de welstandscommissie.
Het is van belang dat het dak geen restruimte is, maar wordt uitgewerkt als bijvoorbeeld groen dak of dakparking.
Enkele testmodellen tonen de mogelijkheden qua volume, bouwhoogte en terreinbezetting:
![i_RUP_11002_214_10017_00001_200128.png [image]](i_RUP_11002_214_10017_00001_200128.png)
![i_RUP_11002_214_10017_00001_200129.png [image]](i_RUP_11002_214_10017_00001_200129.png)
![i_RUP_11002_214_10017_00001_200130.png [image]](i_RUP_11002_214_10017_00001_200130.png)
![i_RUP_11002_214_10017_00001_200131.png [image]](i_RUP_11002_214_10017_00001_200131.png)
![i_RUP_11002_214_10017_00001_200132.png [image]](i_RUP_11002_214_10017_00001_200132.png)
Figuur 64 | testmodellen op basis van de voorschriften
6.4 Toelichting overdruk – Laad- en loszone (art. 4 in de voorschriften)
Deze zone is bedoeld als collectieve niet overdekte laad- en loszone voor de grootschalige detailhandel en voor het programma binnen de aanpalende zone Ce3.
De zone is tot op 18 meter van de grens met de aanpalende zone Ce3 bebouwbaar volgens de inrichtingsvoorschriften voor zone De.
Op het aanpalende perceel Ce3 wordt hoogstwaarschijnlijk het te verplaatsen containerpark opgericht. Gezien beide functies (grootschalige detailhandel en containerpark) behoefte hebben aan een ruime opstelzone om te laden en te lossen, is het opportuun om die zones deels te laten overlappen. Dit geeft een ruimte-efficiënte inrichting waardoor de groenzone haar maximale terrein heeft.
Het containerpark in zone Ce3 zou op eigen terrein een strook van ongeveer 5 meter kunnen vrijwaren om te laden en lossen, maar heeft een strook van 18 meter nodig, waardoor ook ruimte nodig is op de overdruk- laad-en loszone binnen zone De in functie van laden en lossen voor het containerpark. Daarom wordt in de voorschriften gesproken van “collectieve” laad- en loszone.
Met een strook van 30 meter heeft de grootschalige detailhandel een ruime laad- en loskade op eigen terrein, maar indien deze laad- en loszone compacter kan voor de grootschalige detailhandel is bebouwing/uitbreiding voor de detailhandel in de overdrukzone mogelijk tot op de grens die dient gevrijwaard voor het functioneren van het aanpalende programma containerpark: zijnde 18 meter van de grens met de aanpalende zone Ce3.
Hellende op- en afritten om laadplatforms optimaal bruikbaar te maken zijn toegelaten.
Ten behoeve van de veiligheid en controle zijn afsluitingen binnen de gehele zone mogelijk.
6.5 Toelichting Zone voor Centrumfuncties - kazerne (Ce2)(art. 5 in de voorschriften)
De kazerne kan een gemengde stedelijke bestemming krijgen zoals onder andere wonen, horeca, enkele commerciële ruimtes tot 400 m², een onderwijsprogramma, vrije beroepen of een kantoorbestemming tot 6000 m².
Het kazernecomplex wordt in de plan-MERstudie qua geluids- en luchtklimaat geschikt geacht om er kwetsbare functies als wonen en/of onderwijs in te planten, en dit dankzij de afschermende werking van de bestaande en nieuwe omliggende bebouwing ten opzichte van de lucht- en geluidsemissies van vooral de A12 en de E19.
Een (dwingende) milderende maatregelen uit de plan-MER stelt dat bij invulling van het kazernecomplex met kwetsbare functies volgende voorwaarden dienen gerespecteerd:
o Wonen: leef- en slaapruimtes in de mate van het mogelijke naar de binnenzijde
van het complex richten
o School: speelplaats aan de binnenzijde van het complex
Kantoorbestemmingen zijn mogelijk, maar worden best beperkt in functie van de mobiliteits-impact, een gezonde mix aan programma en ook omwille van de huidige plaatselijke context:
Eind 2013 bedroeg leegstand in de buurt van de Havanasite 22% (ca. 24.000m²), vooral in de moderne gebouwen (5-15 jaar) en oude gebouwen (>15 jaar). Er staat ook nog ca. 13% leeg in de nieuwe gebouwen (0-5 jaar). Gedurende 2014 werd maar ca. 3.000m² opgenomen.
Toevoegen van veel extra m² kantoren aan de Havanasite zou de doodsteek kunnen betekenen van de leegstaande oude en moderne gebouwen aan de westzijde van de Noorderlaan aangezien ze maar weinig potentieel vertonen om te transformeren in iets anders en dringende renovatie hier aan de orde is. Daarom worden kantoren best toegelaten als onderdeel van een mix van stedelijke invullingen.
Kantoren met loketfuncties en kantoren voor vrije beroepen worden bij voorkeur toegelaten op de gelijkvloerse verdiepingen. Kantoren zonder loketfuncties kunnen ingericht worden op de verdiepingen. Onder ‘kantoren met loketfunctie’ worden bijvoorbeeld bankfilialen, ziekenkas, woonkantoor, interimkantoor, etc. bedoeld.
De locatie is niet opgenomen binnen het strategisch Ruimtelijk Structuurplan Antwerpen als strategische kantoorlocatie.
Er kan ook gedacht worden aan kleinere KMO-units waar vandaag vraag naar is en die ook vrij snel ingevuld geraken. De site ligt aan de rand van stad, met beperkte hinder en men kan er op alternatieve wijze geraken en heeft geen te grote mobiliteitsimpact.
Uit de omgevingsanalyse komt naar voren dat er qua voorzieningen op buurtniveau een tekort is aan een bank, en volgens de tekortzones ook aan jeugdwerk en een apotheker. Op wijkniveau zijn er grote tekorten en geen tekortzones voor huisarts en tandarts. Op stadsdeelniveau zijn er tekorten én tekortzones voor DKO Muziek, DKO Beeld, en vooral fuifruimte. Volgens de tekortzone-meting blijken een jeugdcentrum, bibliotheek, cultuurcentrum en politiekantoor wenselijk. Dit zijn allemaal functies die binnen het segment van ‘stedelijke functies’ passen en kunnen ingevuld worden in de kazernegebouwen.
Gezien de omgeving lijkt de kazerne in aanmerking te kunnen komen voor een hotel/motel uit de lagere prijsklasse. Er zijn al 3 ***-hotels en 3 ****-hotels langs de ring. Een budget-hotelketen van * of ** zou eventueel kunnen werken (ligt vlakbij de splitsing E19/A12 naar Nederland). Rekening houdend dat een ketenhotel mikt op min. 80 kamers om rendabel te zijn en een kamergrootte van 15-18m² voor * of ** (bruto 25m² per kamer) wil dat zeggen dat minimum 2000m² wordt ingenomen, bijkomend voldoende parkeerplaatsen vereist.
De S.B. Housmans kazerne is opgenomen in de Inventaris Onroerend Erfgoed. De kazerne dient behouden. Dit impliceert niet dat functiewijzigingen en verbouwingen met volumewijzigingen niet mogelijk zijn. Met respect voor het waardevol patrimonium kunnen aanpassingswerken en volumewijzigingen gebeuren.
“De grote, rechthoekige gebouwen van het kazernecomplex S.B Housmans zijn opgesteld rond een centraal paradeplein met een hoofdgebouw met toegangspoort (blok A) en drie omliggende gebouwen (blok B, C en E). De vier langgestrekte vleugels rond het paradeplein huisvesten oorspronkelijk de stafblok A, twee opleidingsblokken B en E en het logement voor vast personeel met keuken en kantine C. Evenwijdig met blok C is er nog een vijfde langgerekte vleugel D, deze sluit niet aan bij het paradeplein. Ter hoogte van de Havanastraat bevinden zich ook twee volumes, het voormalig "cachot", blok V en blok S.”
Blok V en S maken deel uit van de initiële Housmanskazerne. Blok V was het voormalig cachot. Blok S bevindt zich in het verlengde van blok V. De gebruikte materialen en constructie-methodes zijn typerend voor de periode en de stijl waarin de kazerne opgericht werd, nl. in nieuwe zakelijkheid. De architecturale kwaliteit en fijne detaillering waarmee het ontwerp werd uitgevoerd, de hoge cultuurhistorische component en de relatief goede bewaringstoestand van de gebouwen adviseert dienst monumentenzorg het behoud en de herbestemming van de paviljoenen. Ondanks de onoordeelkundige en ad hoc verbouwen en/of aanpassingen werken ze nog beeldbepalend voor de site. Een gepaste herbestemming dringt zich op. De beslotenheid van het complex is juist een kenmerk zoals je kan zien op onderstaand beeldmateriaal. Voor de volumes V en S zijn instandhoudingswerken mogelijk, uitbreiding niet.
In het referentieplan open ruimte zijn de paviljoenen V en S echter weg gedacht. Het is vanuit stedenbouwkundig en ruimtelijk oogpunt een overweging waard om beide gebouwen af te breken zodat de overige 5 hoofdgebouwen betrokken worden op de Havanastraat, de doorwaadbaarheid van zone Ce2 versterkt wordt, het plan zuiverder en toegankelijker wordt en het beeld vanaf de Havanastraat aantrekkelijker wordt. Maar dit zijn louter ruimtelijke argumenten die tegenover de historische argumenten moeten afgewogen worden bij herbestemming van het gehele kazernecomplex.
De voortuinstrook van de kazerne ten opzichte van de Havanastraat wordt hoofdzakelijk groen en onverhard ingericht volgens de principes van een voortuin.
De kazerne heeft een BVO van circa 36.000 m². Grofweg betekent dit netto
(- 25% circulatie en muren ) 27.000 m² netto bruikbare oppervlakte ( zonder bij te bouwen).
Een overzicht van de huidige bruto vloeroppervlaktes (BVO) van de verschillende blokken:
|
Blok A: 4.573m²
Blok B: 8.472m²
Blok C: 7.119m²
Blok D: 7.661m²
Blok E: 8.518m²
|
![i_RUP_11002_214_10017_00001_200133.png [image]](i_RUP_11002_214_10017_00001_200133.png)
|
Figuur 65 | de verschillende blokken van de S.B. Housmanskazerne
1. Als het huidige bouwvolume van het kazernecomplex volledig met woningen wordt ingevuld, geeft dat ongeveer 300 woonunits van gemiddeld 90 m².
2. Als het huidige bouwvolume van het kazernecomplex voor de helft met woningen wordt ingevuld, zijn dat 150 woningen en 13.000 m² met een commerciële, kantoor en/of socio-culturele invulling
3. Als het programma wonen wordt beperkt tot één van de bouwblokken zijn dat 70 woningen en nog 20.000 m² voor andere functies.
Om de mobiliteitseffecten van toekomstige invullingen in de kazerne te kunnen inschatten zijn 3 uiteenlopende mogelijke scenario’s uitgezet:
o Scenario A: 300 wooneenheden van gemiddeld 90 m2
o Scenario B: 150 wooneenheden + 1600 m² winkelfunctie + 6000 m² kantoorfunctie
+ 5400 m² socio-culturele functie
o Scenario C: 70 wooneenheden + 1600 m² winkelfunctie + 6000 m² kantoorfunctie +
12000 m² school + 400 m² levensbeschouwing/vergaderruimte
In onderstaande tabel uit de plan-MER wordt de geprognosticeerde verkeers-generatie weergegeven van de verschillende scenario’s, en dit zowel voor het drukste ochtend- als avondspitsuur.
![i_RUP_11002_214_10017_00001_200134.png [image]](i_RUP_11002_214_10017_00001_200134.png)
Figuur 66 | mobiliteitsprofiel voor 3 fictieve scenario's voor de kazerne, Grontmij, 2015
Er zijn qua bouwenveloppe geen concrete beperkingen opgenomen omdat het belangrijker is dat de kazerne wordt gerenoveerd/verbouwd met respect voor de historische waarde, eerder dan dat er voorschriften worden vastgelegd met beperkingen op vlak van bouwhoogte of- diepte. Respectvolle uitbreidingen moeten mogelijk zijn in functie van een nieuwe invulling.
Een minimale open ruimte wordt wél vastgelegd omdat het niet de bedoeling kan zijn het volledige binnenplein te bebouwen.
6.6 Toelichting Zone voor Centrumfuncties (Ce3) (art. 6 in de voorschriften)
De in zone Ce3 vooropgestelde toegelaten bestemmingen (lokale en bovenlokale gemeenschapsvoorzieningen, culturele, recreatieve en sportieve voorzieningen, onderwijs en openbare dienstverlening, ruimtes voor levensbeschouwing) vormen als maatschappelijke en cultuurrecreatieve functies een vloeiende overgang tussen de open ruimte ten oosten en de meer stedelijke en harde functies in de kazerne en de zone voor grootschalige detailhandel ten westen.
-
De zuidelijke zone Ce3 betreft de huidige loods ‘M&N’, behoud van dit gebouw en programma is mogelijk.
-
Binnen de noordelijke zone Ce3 met een oppervlakte van ca. 5000 m² kan een nieuw stedelijk programma, zoals een containerpark, ontwikkeld worden.
De maximale bouwhoogte is ongeveer gelijk aan de kroonlijsthoogte van gebouw D van het kazernecomplex. Ook aan deze zijde is het afschermend effect ten opzichte van geluidsoverlast vanwege de spoorlijn Antwerpen-Amsterdam een meerwaarde voor het comfort in de gebouwen van de S.B. Housmans kazerne.
6.7 Toelichting overdruk – Logistiek verkeer (art. 7 in de voorschriften)
Het uitgaand verkeer van de parkeervoorzieningen in zone Ce1 kan via een tweede ontsluiting (Pu3 en Pu4) de Havanastraat bereiken. Het bezoekersverkeer van het containerpark kan ook heen- en terug rijden vanaf de Havanastraat via Pu4 .
Het is wenselijk om het vrachtverkeer van en naar een containerpark en naar de laad- en loszone van een grootschalige detailhandel te scheiden van het ander verkeer.
De overdruk Laad- en loszone over zone De is de bestemmingszone voor al het zware vrachtverkeer binnen het plangebied, want het is een collectief laad-en losgebied voor de twee functies die vrachtverkeer met zich zullen meebrengen.
Het bezoekersverkeer van het containerpark in de noordelijke zone Ce3 wordt rondgeleid langs de grens van de groenzone. Het vrachtverkeer met een mogelijke totale lengte van ongeveer 18 meter vereist grote bochtstralen waardoor het wenselijk is om het vrachtverkeer zo min mogelijk bochten te laten nemen en het verkeer zo rechtlijnig mogelijk naar de laad-en loszone te leiden.
Aan de westzijde van de logistieke doorgang dient een dubbel richting fietspad en voetpad aangelegd aan de zijde van de kazerne voor fietsers en voetgangers die vanuit Luchtbal (Bostonstraat) en via de centrale as naar het multimodaal vervoersknooppunt of de ingang van de retailer gaan.
Na inrichting van de doorgang voor logistiek verkeer (vrachtverkeer) doorheen de overdruk over Ce3 kan de rest van de overdrukzone ingericht worden volgens de voorschriften voor Ce3.
6.8 Toelichting zone voor Publiek Domein (Pu) (art 8 in de voorschriften)
6.8.1 Toelichting onthaalzone (Pu1) (art 8 in de voorschriften)
De zone is de inkomstzone tot de ganse site. De onthaalzone bevat de hoofdontsluiting van de parkeervoorzieningen binnen de zone (Ce1) en desgevallend van de gecombineerde parkeervoorzieningen voor de P&R en de grootschalige detailhandel in één parkeergebouw.
De toegang vanaf de Noorderlaan naar de zone P&R is de voornaamste entree voor bezoekers tot de site. Het ontwerp van Brabo 2 voorziet in de aanleg van een keerlus doorheen de zones PU1, Ce1 en Gr. Het faciliteren van de traminfrastructuur is een randvoorwaarde bij de invulling van programma’s in die zones.
![i_RUP_11002_214_10017_00001_200135.png [image]](i_RUP_11002_214_10017_00001_200135.png)
Figuur 67 | selectie van de onthaalzone uit het referentieplan open ruimte
De oppervlakte van Pu1 is ongeveer 10.600 m², inclusief de privatieve zone van het huidige benzinestation (ongeveer 2200 m²).
De stromen van zacht verkeer worden geleid van het multimodaal verkeersknooppunt naar de centrale as via de inkomstzone van de grootschalige detailhandel. Die inkomstzone zal de meest levendige publieke plek worden van het hele gebied waar het oost-westelijk bewegend zacht verkeer het noord-zuidelijk bewegend gemotoriseerd verkeer dat de P&R (gebouw) in- en uit rijdt, kruist. De grootste uitdaging is het veilig en leesbaar leiden van beide intense stromen en dit over een hedendaagse en mooi aangelegde publieke ruimte.
De functie van het voornamelijk verhard plein rond de zuidwestelijke hoek van de zone voor detailhandel De binnen zones Pu1 en Pu2 is veilig en comfortabel van en naar de grootschalige detailhandel bewegen en de bereikbaarheid, veiligheid en beweeglijkheid van fietser/voetganger van en naar het multimodaal vervoersknooppunt, de fietsenstalling, de zone Ce2 en de andere zones op de site garanderen.
In huidige toestand is binnen het veld Pu1 ten noorden van de hoofdontsluiting een benzinestation gelegen. Het benzinestation is een ondersteunende functie bij een onthaalzone. Het benzinestation is daarom aanvaardbaar binnen de voorschriften voor Pu1, maar het station kan ook verplaatst/herbouwd worden binnen de zone Ce1. De voorschriften voor zone Ce1 laten in ieder geval de bouw van een benzinestation toe. Indien het benzinestation binnen de zone Pu1 blijft, is het wenselijk om de constructies te integreren in het programma en het ruimtelijk concept van het parkeergebouw zodat het benzinestation ruimtelijk wordt opgenomen door de nieuwe aanpalende volumes.
Het huidige perceel van het benzinestation is ongeveer 2200 m² groot, de huidige luifel en shop hebben samen een bebouwde oppervlakte van ongeveer 260 m². De huidige luifel is ongeveer 5,5 meter hoog en de infozuil heeft een hoogte van 7 meter. Bij het geïntegreerd herbouwen van het station zodat het zich beter inpast binnen de ruimtelijke logica van de nieuwe aanpalende projecten, laten de voorschriften een beperkte uitbreiding van luifel en shop toe tot maximaal 400 m² voor luifel en shop tezamen. Het benzinestation dient ten noorden van de ontsluitingsweg geherlokaliseerd. Dit om de infrastructuur maximaal te koppelen en te integreren met de infrastructuur van de P&R, de tramkeerlus niet te kruisen en het zicht op de voorgevel van het kazernecomplex niet te hinderen.
![i_RUP_11002_214_10017_00001_200136.png [image]](i_RUP_11002_214_10017_00001_200136.png) ![i_RUP_11002_214_10017_00001_200137.png [image]](i_RUP_11002_214_10017_00001_200137.png) ![i_RUP_11002_214_10017_00001_200138.png [image]](i_RUP_11002_214_10017_00001_200138.png)
Figuur 68 | onderzoekscenario's voor het verplaatsen/integreren van het benzinestation met het P&R-gebeuren
Waar geen stromen geleid moeten worden of een benzinestation gelegen is, worden grasvlaktes met enkele solitaire groenelementen en/of bomenrijen voorzien.
Hoogstammige bomen zijn mogelijk op voorwaarde dat ze het open karakter en het zicht naar het gebouw in zone De niet hypothekeren. Enkel inheemse beplanting is toegelaten.
De publieke ruimte is van hoge kwaliteit. De vormgeving ondersteunt de uitstraling van de site als multimodaal verkeersknooppunt, stedelijk gebied en groene openbare ruimte, organiseert de verschillende verkeersstromen op een veilige manier maar verzekert ook een aantrekkelijke verblijfskwaliteit. Er moeten zichten gecreëerd worden naar het nieuwe parkeergebouw en de hoek van de grootschalige detailhandel.
![i_RUP_11002_214_10017_00001_200139.jpg [image]](i_RUP_11002_214_10017_00001_200139.jpg)
Figuur 69 | ruimtelijke haalbaarheidsstudie P&R-gebouw Havana, copyright Technum, 2015
Terwijl de noordelijke zijde van Pu1 voornamelijk wordt ingenomen door de ontsluitingsweg, een benzinestation en een verhard plein rond de inkomzone van de grootschalige detailhandel, wordt de zuidelijke helft van Pu1 ingericht in het teken van de voorgevel van de kazerne. Het zuidelijke deel van Pu1 is het voorportaal van het kazernecomplex.
Het zicht op de historische gevels van de kazerne gebouwen moet maximaal behouden blijven.
De functie van de zuidelijke helft van Pu1 is het kazernecomplex ondersteunen en de toegang tot het complex faciliteren, voldoende groenindex te bieden ter compensatie van het verharde plein binnen Pu1 aan de inkomzone van de grootschalige detailhandel en de bereikbaarheid, veiligheid en beweeglijkheid van fietser/voetganger van en naar het multimodaal vervoersknooppunt garanderen.
Grote grasvlaktes met enkele solitaire groenelementen en/of bomenrijen kunnen dit waarmaken. Maximaal zicht behouden op de historische gevels van de kazerne gebouwen en zichtassen creëren naar de centrale binnenruimte van dit complex zijn de uitgangspunten.
Ook zichten creëren naar het nieuwe parkeergebouw en de hoek van de grootschalige detailhandel zijn voorwaarden bij de aanleg van de publieke ruimte tussen Noorderlaan en de voorgevel van de kazerne.
![i_RUP_11002_214_10017_00001_200140.png [image]](i_RUP_11002_214_10017_00001_200140.png)
Figuur 70 | voorgevel van de kazerne
6.8.2 Toelichting centrale as (Pu2) (artikel 8 in de voorschriften)
De centrale groene as is een groene oost-west gerichte doorsteek voor zacht verkeer tussen de grootschalige detailhandel en de kazerne, als verbinding tussen het onthaalplein aan de multimodale vervoersknoop en de oostelijke groene zone, de fietsostrade en het station Noorderdokken.
![i_RUP_11002_214_10017_00001_200141.png [image]](i_RUP_11002_214_10017_00001_200141.png)
Figuur 71 | selectie van de omgeving van centrale as uit het referentieplan open ruimte
Fietsers op de fietsostrade Antwerpen-Lier zullen via deze as het multimodaal knooppunt met tram- en bushalte en fietsenstalplaats bereiken, evenals de hoofdingang van de grootschalige detailhandel. De as is tevens de verbinding voor voetgangers tussen de tram- en bushalte en het station Noorderdokken en tussen de P&R en het station. Het is de verbinding tussen de P&R en de fietsenstalplaats en het natuurgebied Oude Landen. Het is ook de verbinding voor fietsers en voetgangers vanuit Luchtbal (via de Bostonstraat) naar het multimodaal knooppunt en de hoofdingang van de grootschalige detailhandel.
Het tracé voor voetgangers en fietsers moet ten westen aantakken aan een voet- en fietspad in zone Pu1 richting openbaar vervoersknooppunt aan de Ekersesteenweg en ten oosten aan het pad volgens pijl lr2 door de groenzone naar de fietsostrade, pijl lr1.
Door de tweede ontsluiting van de P&R ten noorden van de grootschalige detailhandel te leggen, gebundeld en parallel aan de A12, wordt het mogelijk de centrale as enkel in teken van de zachte weggebruiker in te richten met veel ruimte voor een groene aanleg.
De doorsteek wordt ontworpen als een groene promenade, op maat van de voetganger en de fietser. Het is een aantrekkelijke as voor zacht verkeer. Omdat een strook van 3 meter hoort bij de ontwikkelingszone van de kazerne, is op het grafisch plan een breedte van 17 meter aangegeven voor Pu2. De centrale as heeft in werkelijkheid een breedte van 20 meter van gevel tot gevel.
De breedte laat toe om de as deels in te richten met een waterloop in de vorm van een gracht of wadi. Hierdoor kan het resterende (na hergebruik) regenwater van de daken van de grootschalige detailhandel en eventueel het P&R-gebouw vertraagd afgevoerd worden en wordt de kwaliteit van de omgevingsaanleg en het karakter van groene as in functie van zachte weggebruiker, verhoogd. De waterloop mag de bereikbaarheid en beweeglijkheid van fietser/voetganger niet belemmeren en loopt via een buizenstelsel onder een toegangen of publieke wegenis.
![i_RUP_11002_214_10017_00001_200142.png [image]](i_RUP_11002_214_10017_00001_200142.png)
Figuur 72 | selectie van de centrale as uit het referentieplan open ruimte
In het referentieplan open ruimte bestaat de centrale as uit een noordelijke, een centrale en een zuidelijke strook of zone.
-
De noordelijke zone met breedte 11 meter bestaat uit een wadizone met bomenrij. Het noordelijke talud heeft een flauw talud (12/4 – 16/4).
-
De centrale zone, met breedte 6 meter, bestaat uit een gesloten verharding en wordt voorzien van straatmeubilair en verlichting. Deze wandel- en fietsas wordt doorgetrokken tot in de open ruimte en heeft voorrang op de secundaire ontsluiting.
-
De zuidelijke zone kadert de historishe gebouwen. De verharding sluit aan bij het karakter van de gebouwen. De groenvakken spelen in op de lijnvoering van de gebouwen. Hier kan tevens ruimte voorzien worden voor terrasjes, rustplekken, pleintjes, ...
![i_RUP_11002_214_10017_00001_200143.jpg [image]](i_RUP_11002_214_10017_00001_200143.jpg)
Figuur 73 | 3D zicht van het referentieplan open ruimte met rechts de kazerne en links de grootschalige detailhandel
Eén rij hoogstammige bomen over de volledige lengte van de as versterkt het wenselijke groene karakter. In de zones tussen de hoogstammige bomen kunnen grasvakken of groenbakken en zit- en speelelementen opgenomen worden.
Het tracé wordt ondersteund door verlichting.
Evacuatiewegen en dienstwegen voor onderhoud en/of kleinschalige dienstleveringen zijn toegelaten. Een brandweg moet onverhard worden ingericht of overlappen met het fietspad/voetpad. Kleinschalige leveringen kunnen mogelijks de zuidgevel van de grootschalige detailhandel bedienen via het fietspad/voetpad, maar bij voorkeur wordt ruimte/wegenis voor de leveringen beperkt tot de laad- en loszone of op eigen perceel ingericht. Met kleinschalige leveringen wordt bedoeld leveringen via kleine bestelwagens aan een horeca of een kleinschalige accessoire kleinhandel van dezelfde groothandelszaak , niet meer dan twee maal daags. 1 parkeerplaats voor laden- en lossen van kleinschalige dienstleveringen is toegestaan, zonder het tracé van zacht verkeer te hinderen.
De centrale as wordt maximaal 2 keer gekruist door wegenis voor gemotoriseerd verkeer:
-
gemotoriseerd verkeer dwarst de centrale as in de aanpalende zone Pu4
-
gemotoriseerd verkeer dwarst de centrale as maximaal één keer binnen zone Pu2, in uitvoering van de wegenis voor het logistiek verkeer naar de gearceerde zones tussen zone De en Ce3.
Ter hoogte van de westgevel van de zone De is een luifel of uitsprong van 10 meter ten opzichte van de bouwperimeter van de zone De toegestaan om de inkompartij van de grootschalige detailhandelszaak te accentueren. Deze luifel of uitsprong mag de traminfrastructuur en de verkeersstromen in geen geval hinderen.
6.8.3 Toelichting tweede ontsluiting (Pu3) (art. 8 in de voorschriften)
De zone Pu3 is de tweede ontsluiting voor de afwikkeling van het gemotoriseerd verkeer van de P&R of het parkeergebouw in zone Ce1, die via Pu4 aantakt op de Havanastraat.
![i_RUP_11002_214_10017_00001_200144.png [image]](i_RUP_11002_214_10017_00001_200144.png)
Figuur 74 | selectie van de tweede ontsluiting tot aan Pu4 uit het referentieplan open ruimte
De wegenis in deze zone is puur gericht op autoverkeer omdat voetgangers en fietsers worden gefaciliteerd doorheen de site langs de centrale as in zone Pu2.
De hoofdtoegangen van Ce1 en De zijn immers gelegen langsheen de onthaalzone Pu1 en de centrale as Pu2.
De weg in zone Pu3 kan ingericht worden voor : 1. het verkeer dat via het P&R-gebouw de parking op het terrein van de detailhandel inrijdt, 2. het uitgaand verkeer van de parking op terrein van de grootschalige detailhandel dat via het P&R-gebouw de Noorderlaan bereikt en 3. in geval van calamiteiten ter hoogte van de hoofdtoegang: het verkeer komend van de P+R richting Pu4 en Havanastraat.
Er zijn geen parkeerstroken toegelaten. Hellende op- en afritten voor het toegankelijk maken van de afwikkeling van zone Ce1 zijn wel toegelaten.
Nooduitgangen en dienstwegen voor onderhoud en/of kleinschalige leveringen zijn toegelaten. Ook noodtrappen voor de gebouwen in de zones Ce1 en De zijn toegelaten.
Vermits Pu3 gedeeltelijk is gelegen in de zone non-aedificandi, dient advies gevraagd aan de Administrateur Generaal voor de inrichting van een weg in de reservatiestrook van de A12 (zie hoofdstuk 3.1.2).
6.8.4 Toelichting tweede ontsluiting (Pu4) (art. 8 in de voorschriften)
De zone Pu4 is het vervolg van de tweede ontsluiting voor gemotoriseerd verkeer van de zone Ce1 die aantakt op de Havanastraat. Pu4 is tevens de hoofdontsluiting van personenvervoer (gemotoriseerd verkeer en zacht verkeer) van en naar de zones Ce3.
De wegenis binnen Pu4 takt aan op de Havanastraat met een kruispunt in het verlengde van de Bostonstraat.
Er worden geen parkeerplaatsen aangelegd en parkeren (op bermen bijvoorbeeld) wordt door de aanleg fysisch onmogelijk gemaakt.
De weg in de aanpalende zone Pu3 is onder meer ingericht voor het verkeer komend van de P&R richting Pu4 en Havanastraat. Vanaf Pu4 is de weg dubbelrichting: van en naar de ingang van het geplande containerpark. Vermits de weg vanaf de grens met Pu3 eenrichtingsverkeer wordt (uitgezonderd de verbinding tussen de parking in zone Ce1 en deze in zone De), dient een keerlus voorzien ter hoogte van de grens tussen Pu3 en Pu4.
![i_RUP_11002_214_10017_00001_200145.png [image]](i_RUP_11002_214_10017_00001_200145.png)
Figuur 75 | selectie van de 2de ontsluiting Pu4 uit het referentieplan open ruimte
Het vrachtverkeer naar de collectieve laad- en loszone van grootschalige detailhandel en het containerpark wordt gescheiden van het personenvervoer naar het containerpark en het personenvervoer komende via Pu3 richting Havanastraat. Zodoende worden conflicten tussen vrachtverkeer en ander verkeer geminimaliseerd.
Het vrachtverkeer naar de gearceerde collectieve laad- en loszone zone wordt geleid langs de kazerne doorheen de gearceerde zone binnen Ce3. Deze weg wordt aan de westzijde geflankeerd door een voetpad en dubbelrichting fietspad, met dimensies volgens het draaiboek openbaar domein van de stad, voor de voetgangers en fietsers vanuit wijk Luchtbal richting het openbaar vervoersknooppunt (linksaf).
Het personenverkeer wordt geleid langsheen de groenzone. De weg wordt aan de oostzijde geflankeerd door een voetpad en dubbelrichting fietspad voor voetgangers en fietsers vanuit wijk Luchtbal naar het containerpark, maar ook naar de groenzone, Oude Landen of station Noorderdokken (rechtsaf). De tweede ontsluiting bevat in Pu4 langs de rijbaan tussen Havanastraat en het containerpark een vrijliggend dubbelrichting fietspad en voetpad met dimensies volgens het draaiboek openbaar domein van de stad.
Het is van belang dat de inrichting van de wegenis tot aan de centrale as in zone Pu2 comfortabele fiets- en voetpadruimte heeft om de connectie van de ontwikkelingen op de Havanasite met de wijk Luchtbal voor voetgangers en fietsers te versterken.
De aansluiting van Pu4 met de Havanastraat ligt pal over de Bostonstraat om een compact verkeerslichten geregeld kruispunt te bekomen. Met een aantakking op de Havanastraat in het verlengde van de Bostonstraat (Luchtbal) wordt de wijk Luchtbal geconnecteerd aan de Havanasite. Een connectie in het verlengde van de Bostonstraat leidt voetgangers en fietsers vanuit Luchtbal recht naar de aantrekkelijke centrale as voor zacht verkeer. De centrale as leidt op haar beurt naar het openbaar vervoersknooppunt (linksaf) of naar de groenzone (rechtsaf).
![i_RUP_11002_214_10017_00001_200146.jpg [image]](i_RUP_11002_214_10017_00001_200146.jpg)
Figuur 76 | 3D zicht van het referentieplan vanuit de Bostonstraat naar de logistieke doorsteek doorheen de gearceerde zone van Ce3
6.8.5 Toelichting openbaar vervoersknooppunt (Pu5) (art. 8 in de voorschriften)
De zone voor publiek domein Pu5 is gelegen over het vervoersknooppunt aan de Ekersesteensweg en Noorderlaan.
De ruimtelijke haalbaarheidsstudie van Technum voor een P&R gebouw op de site Havana leverde een ontwerpend onderzoeksmodel op dat voorzag in een uitkraging over het publiek domein, over het fiets- en voetpad aan de Ekersesteenweg zoals vergund binnen de bouwaanvraagplannen voor de aanleg van de Noorderlijn, de halte-infrastructuur en het heraangelegde kruispunt Ekersesteenweg/Noorderlaan.
Omdat een uitkraging van een groot (semi-) publiek gebouw op die plek ruimtelijk gezien zeker te verantwoorden is, wordt een zone van publiek domein ingekleurd ter hoogte van de westgevel van de zone Ce1. Zoniet zou een uitkraging van Ce1 buiten de contour van het RUP vallen en zou de uitkraging strikt genomen deels in bufferzone volgens het gewestplan vallen.
De verschillende vervoersmodi lopen ter hoogte van het plangebied op een complexe en intelligente wijze naast en door elkaar, waardoor het in elkaar schuiven en schakelen van verschillende stromen, plekken, niveau’s en constructies zeker gepast is.
Om de mogelijkheid tot uitkragen van het parkeergebouw binnen zone Ce1 over de zone Pu5 vergunningstechnisch mogelijk te houden, is de zone Pu5 toegevoegd aan het grafisch plan van het RUP Havanastraat.
![i_RUP_11002_214_10017_00001_200147.jpg [image]](i_RUP_11002_214_10017_00001_200147.jpg) ![i_RUP_11002_214_10017_00001_200148.jpg [image]](i_RUP_11002_214_10017_00001_200148.jpg)
Figuur 77 | ruimtelijke haalbaarheidsstudie P&R-gebouw Havana, copyright Technum, 2015
6.9 Toelichting Zone voor Groen (Gr) (art. 9 in de voorschriften)
De zone is bestemd voor de aanleg en inrichting van een groene open ruimte met flankerende en ondergeschikte lokale activiteiten zoals recreatieve en sportieve functies (sportvelden, een hondenlosloopzone en volkstuinen ter ondersteuning van de wijk Luchtbal, Rozemaai en Merksem), voor zover zij het functioneren van de hoofdbestemming niet in het gedrang brengen.
De zone Gr is een recreatieve groenzone waar vele activiteiten en acties worden toegelaten.
De Zone voor Groen valt grotendeels samen met het deel van het terrein dat volgens de watertoetskaart effectief overstromingsgevoelig is. De kans dat het perceel met overstromingen te maken krijgt is aanzienlijk kleiner geworden, maar de meest recente modellen hebben uitgewezen dat bij een hoog klimaatscenario delen van dit terrein wel onder water komen te staan. Omdat overstromingen nooit helemaal kunnen uitgesloten worden, vooral in het oostelijke deel van het gebied dat lager gelegen is, moeten er voorzorgen worden genomen om het risico op wateroverlast tegen te gaan. Bebouwing is in beperkte mate toegelaten (bijvoorbeeld kleedruimtes bij een sportveld) en moet rekening houden met de overstromingsgevoeligheid.
Fietsenstalling en kleine constructies eigen aan de open ruimte activiteiten zijn mogelijk op voorwaarde dat ze goed zijn ingebed in het landschap, evenals ruimte voor waterberging als onderdeel landschap.
Het aanwezige station “Luchtbal“ van de onafhankelijke beheerder van aardgasinfrastructuur Fluxys zal in de groenzone aanwezig blijven en kan (beter) geïntegreerd worden in het ontwerp van de open groene ruimte, mits de veiligheidsvoorschriften van Fluxys gerespecteerd blijven en rekening wordt gehouden met de bereikbaarheid van het station ‘”Luchtbal”, alsook met de aanwezige optische vezelkabel en de ondergrondse installaties.
De oost-west gelegen wandel- en fietsas loopt centraal doorheen de open ruimte en verdeelt deze in 2 delen. Vervolgens maakt ze aansluiting met de wandel- en fietsas (fietsostrade) langsheen het spoor. Van hieruit kan er verder aansluiting gemaakt worden met de Oude Landen of met de Argentiniëlaan.
De noordelijke zijde van de groenzone, grenzend aan zone Ce3, kan ingericht worden met een waterpartij of wadi. Deze wadi wordt eventueel gevoed door overschot aan regenwater van de grootschalige detailhandel dat na hergebruik overloopt in een grachtenstelsel langs de centrale groene as. De wadi kan op zijn beurt via een nieuwe gracht verbonden worden met de bestaande gracht aan de voet van het talud van de snelweg. De overstortgracht van wadi naar de gracht aan de voet van de talud of de ingekokerde gracht aan de zijde van Oude Landen (zie referentieplan open ruimte) loopt langsheen de centrale as doorheen de open ruimte. De gracht zorgt voor een natuurlijke barrière waardoor de noordelijke zone eenvoudig kan afgesloten worden, bijv. als hondenloopzone. Eventueel kan naast de gracht een kastanjehouten afsluiting geplaatst worden om een hondenloopzone af te bakenen.
![i_RUP_11002_214_10017_00001_200149.png [image]](i_RUP_11002_214_10017_00001_200149.png) ![i_RUP_11002_214_10017_00001_200150.png [image]](i_RUP_11002_214_10017_00001_200150.png)
Figuur 78 | referentiebeelden van het referentieplan open ruimte
De zuidelijke zone kan ingericht worden met of zonder voetbalvelden:
-
alternatief 1, met voetbalvelden: In de zuidelijke zone kunnen 2 voetbalvelden naast elkaar aangelegd worden. Ter hoogte van het station kan een kantine voorzien worden,
-
alternatief 2, zonder voetbalvelden: De zuidelijke zone kan ingericht worden met een grazige open ruimte, wandelpaden, speelheuvels en kleinschalige spelvoorzieningen.
Het bestaande treinstation Noorderdokken behoort tot het voorstedelijk net. Er stopt slechts 1 trein per spitsuur van en naar de Noorderkempen. Het huidige gebouwtje aan het station is een fietsenstalling en berging. De parking lijkt overgedimensioneerd en wordt niet intensief gebruikt. De openbare wegenis loopt gedeeltelijk over privaat terrein van NMBS/Infrabel en de parkings ten noorden van de fietsenstalling liggen eveneens deels op openbaar domein en deels op grond van NMBS/Infrabel en zijn onderbenut of worden onderverhuurd aan bijvoorbeeld een rijschool als oefenterrein.
Aangezien NMBS/Infrabel niet kan inschatten hoe het aantal reizigers in het station Noorderdokken op lange termijn zal evolueren, is het niet aangewezen om een maximum aantal parkeerplaatsen vast te leggen in het RUP. Desalniettemin wordt in de voorschriften niet het aantal beperkt, maar wordt op het grafisch plan een zone afgebakend waarbinnen parkeervoorzieningen mogelijk zijn waarbij in de rest van de groenzone de inrichting van parking is uitgesloten.
De groenzone wordt aanzien als geleidelijke overgang en verbinding tussen de wijk Luchtbal en het natuurgebied Oude Landen, en als stapsteen tussen Laaglandpark in Merksem en de groenzone ten zuiden van de wijk Rozemaai, maar dit vooral op niveau van mens-verbindingen (zacht verkeer) tussen de huidige sterk door spoor en autostrade versneden groengebieden.
De effectieve en functionele natuurverbinding voor fauna moet gerealiseerd worden in de ruimte die geselecteerd is als strategisch project Laarse – Oudelandse beek binnen het s-RSA. Binnen het plangebied Havana is dat de strook met overdruk zone – non aedificandi. Deze ruimte, evenals de onderdoorgang van de fietsostrade onder de A12 (buiten het plangebied), dienen ingericht met het oog op effectieve natuurverbinding.
Er dient bij aanleg van de groenzone onderzocht voor welke soorten deze verbinding functioneel kan zijn en welke inrichtingsmaatregelen dit vereist.
![i_RUP_11002_214_10017_00001_200151.png [image]](i_RUP_11002_214_10017_00001_200151.png)
Figuur 79 | functionele natuurverbinding
Bij aanleg van de missing link van de fietsostrade vanaf de onderdoorgang van de A12 tot aan de onderdoorgang onder de Jozef Masurebrug kan meteen ook de onderdoorgang van de A12 worden ingericht met een functionele verbinding in de vorm van een aan de fietsostrade parallelle takkenwal in combinatie met een gracht, die de verbinding legt tot aan de ingekokerde Groot schijn waar ook de Laarse beek en de Oudelandse Beek in afwateren. .
Het is wenselijk dat de fietsostrade naast de sporen wordt gelegd. Momenteel is de fietsostrade niet herkenbaar over de ontdubbelde en overgedimensioneerde wegstructuur die nergens toe dient. Hiervoor zou de fietsenstalling herbouwd moeten worden.
![i_RUP_11002_214_10017_00001_200152.png [image]](i_RUP_11002_214_10017_00001_200152.png) ![i_RUP_11002_214_10017_00001_200153.png [image]](i_RUP_11002_214_10017_00001_200153.png)
Figuur 80 | referentieplan open ruimte, zonder herinrichting terreinen Infrabel/NMBS (links) en mét herinrichting terreinen Infrabel/NMBS (rechts)
Wanneer op termijn de twee bestaande voetbalvelden verplaatst worden van wijk Luchtbal naar de Havanasite vanwege de ontwikkeling van de sites op Luchtbal, zal dit een keerpunt betekenen voor de ontwikkeling van de groenzone aan de zijde van de sporen, waarbij de eindvisie voor de groenzone volgens het referentieplan open ruimte kan/zal ontwikkeld worden.
Op het einde van de Argentiniëlaan heeft Infrabel een LCI-antenne. Vanuit deze LCI-antenne vertrekken ploegen voor uitvoering van onderhoudswerken aan de sporen en de seininrichting. Naar dit LCI is met andere woorden steeds een toegang noodzakelijk voor dienstvoertuigen zoals camionettes met aanhangwagen, maar ook voor vrachtwagens (ev. met opligger) om de nodige materialen te kunnen leveren. De mogelijkheid van dienstverkeer naar de LCI-antenne dient gerespecteerd.
De bestaande nutsinfrastructuur tegen de zone non-aedificandi krijgt binnen het ontwerp voor de groenzone volgens het referentieplan open ruimte een vaste plek en wordt maximaal ingebed achter een groen scherm om op te gaan in de overwegend groene en natuurlijke aanleg van de open ruimte binnen de zone. De mogelijkheid van dienstverkeer naar het perceel met nutsinfrastructuur dient behouden.
Tussen deze nutsinfrastructuur en de zone Ce3 met het verplaatste containerpark kan een wadi aangelegd worden voor het vertraagd afvoeren van hemelwater van de zone De.
Een natuurvriendelijke oeverinrichting moet worden toegepast voor ten minste 50% van de lengte van de oever. Voor de aanleg van deze oevers dienen de technieken van de natuurtechnische milieubouw gehanteerd te worden.
![i_RUP_11002_214_10017_00001_200154.png [image]](i_RUP_11002_214_10017_00001_200154.png)
Figuur 81 | zone Gr met twee voetbalvelden volgens het referentieplan open ruimte
De bestaande groenstructuur (knotwilgen, grachten) kan als basis opgenomen
worden in het totaalontwerp van de groenstructuur. Daarbij zullen grachten bij voorkeur verbonden worden en geïntegreerd in het afwateringssysteem van de ruimere omgeving (beek, riolering).
Hekwerk voor bijvoorbeeld de afbakening van een hondenlosloopzone of voetbalvelden wordt maximaal geïntegreerd in een groene en natuurlijke omgeving.
Bij inrichting van de groenzone dient de boomwet rond spoorwegen gerespecteerd:
Wet van 25 juli 1891 op de politie der spoorwegen, gewijzigd bij de wet van 21 maart 1991.
Uittreksel betreffende het behoud en de veilige dienst op de spoorwegen.
Artikel 2.
"Langs de spoorweg mogen de bomen niet behouden worden op een groter hoogte dan de afstand tussen de voet van de boom en de vrije rand van de spoorweg. Wanneer echter de spoorweg op een grondverhoging is aangelegd, wordt die afstand berekend tussen de voet van de boom en de bovenrand der grondverhoging.
In geen geval mogen de bomen, zonder schriftelijke toestemming van de NMBS, op minder dan 6 meter van de vrije rand van de spoorweg worden geplant.
Door vrije rand is te verstaan de bovenrand der ingraving, de onderrand der grondverhoging of een lijn, getrokken op 1m50 der buitenspoorstaaf, wanneer de spoorweg gelijk ligt met de omliggende gronden en in de stations op 1m50 van de buitenspoorstaaf van de laatste baan bereden door de treinen of locomotieven."
![i_RUP_11002_214_10017_00001_200155.png [image]](i_RUP_11002_214_10017_00001_200155.png)
Figuur 82 | artikel 2 van de boomwet rond spoorwegen
Bij inrichting/aanleg van de groenzone kunnen tevens geen hoogstammige en diepwortelende bomen aangelegd worden boven de dubbele collector DN900 van Waterlink die de groenzone doorkruist.
6.10 Toelichting Overdruk - zone non-aedificandi (art. 10 in de voorschriften)
In het RUP Havanastraat wordt de mogelijkheid open gelaten om met een kleine overlap een beperkte strook openbare wegenis aan te leggen binnen de bouwvrije zone van 30 meter, mits de afwijking door de Administrateur Generaal gunstig wordt geadviseerd.
Veder wordt de zone ingericht volgens de voorschriften voor de zone voor groen, met uitzondering dat er buiten groenaanleg, de ondergrondse nutsleidingen en na gunstig advies een deel van de openbare wegenis binnen Pu3 en Pu4 geen andere constructies toegelaten zijn vanwege het Koninklijk Besluit betreffende de vrije stroken langs autosnelwegen (datum 04/06/1958).
6.11 Toelichting lijn symbolisch – langzaamverkeersroute (art. 11 in de voorschriften)
Een fietsostrade is een bovenlokale fietsroute waarmee je snel, comfortabel en veilig je bestemming bereikt. De fietsostrades liggen langs rechtlijnige infrastructuren zoals spoor- wegen en kanalen. De lokale fietspaden die de fietsostrade kruisen brengen je naar je eindbestemming. De fietsostrade Antwerpen-Essen brengt je in één rechte lijn van het noorden van de provincie naar de stad Antwerpen. De fietsroute loopt langs de spoorweg (lijn 12) van Antwerpen door Ekeren, Kapellen en Kalmthout naar het station van Essen. Ze is al voor 84% befietsbaar.
![i_RUP_11002_214_10017_00001_200156.jpg [image]](i_RUP_11002_214_10017_00001_200156.jpg)
Figuur 83 | fietsostrade Antwerpe-Essen, copyright Provincie Antwerpen
Hoewel het fragment fietsostrade doorheen de Havanasite wordt geclassificeerd onder ‘befietsbaar’, is dit deel alles behalve aantrekkelijk en duidelijk. De herkenbare ‘rode loper’ maakt ter hoogte van de Argentiniëlaan op de site plaatse voor een gewone gemeenteweg die kronkelt en uitsplitst waardoor je als fietser in verwarring wordt gebracht. De huidige ligging van het station Noorderdokken en de parking maken het onmogelijk om een recht traject langs het spoor uit te zetten.
Het is wenselijk om het herkenbare rode fietspad door te trekken over de site tot aan de Havanastraat, onder de Burgemeester Jozef Masurebrug door tot in de wijk Luchtbal.
Pijl ‘lr1’, langzaam verkeersroute 1
In het beste geval volgt het fietspad kaarsrecht de spoorlijn zoals het noordelijk gelegen traject (zie referentieplan open ruimte). Hiervoor dient de fietsenstalling van het station Noorderdokken verplaatst. Indien renovatie- of aanpassingswerken voor dit gebouw zich opdringen is het wenselijk enige afstand te nemen van de spoorlijn en de fietsostrade loodrecht verder te trekken langs de spoorlijn.
Omdat de fietsostrade een bovenlokale fietsroute is waarlangs vele mensen hun bestemming snel en veilig kunnen bereiken per fiets, is het van belang dat deze route aantakt op het geplande multimodale knooppunt in de onthaalzone op de Havanasite.
Pijl ‘lr2’, langzaam verkeersroute 2
Bij inrichting van de groenzone moet zeker een link worden gelegd tussen de fietsostrade Antwerpen-Essen en het openbaarvervoersknooppunt Mensen uit Ekeren, Kalmthout en Kapellen kunnen zo overstappen op tram of bus richting centrum.
De centrale as (zone Pu2) raakt de onthaalzone van Havana en wordt ingericht in functie van de zachte weggebruiker. Deze as moet volgens pijl lr2 doorheen de groenzone gelinkt worden aan de fietsostrade.
![i_RUP_11002_214_10017_00001_200157.jpg [image]](i_RUP_11002_214_10017_00001_200157.jpg)
![i_RUP_11002_214_10017_00001_200158.png [image]](i_RUP_11002_214_10017_00001_200158.png)
Figuur 84 | 3D zichten van het referentieplan open ruimte met links achteraan de kazerne en rechts achteraan de grootschalige detailhandel
7 JURIDISCH - ADMINISTRATIEVE ASPECTEN
7.1 Wijzigingen t.o.v. het gewestplan
7.1.1 Op te heffen voorschriften
Volgende bestemmingszone van het gewestplan worden met de inwerkingtreding van het ruimtelijk uitvoeringsplan Havana opgeheven:
- Woonzone (code 0100)
- Bufferzone (code 0600)
- Aanvullende voorschriften gp 14 : art 1(extra: 0115)
- Aanvullende voorschriften gp 14 : art 1, °1 punt 3 (bruinomrand, stedelijke agglomeratie)(extra: 0115)
- Bestaande afzonderlijke leidingstraten (hoofdcode: 150g)
Bij inwerkingtreding van het ruimtelijk uitvoeringsplan Havana worden de voorschriften van de
bestemmingen van het gewestplan ‘Antwerpen’ (K.B. 03 oktober 1979), die binnen de begrenzing van het ruimtelijk uitvoeringsplan liggen, opgeheven en vervangen door de voorschriften van het ruimtelijk uitvoeringsplan.
7.1.2 Afstemming categorieën van gebiedsaanduiding Vlaamse Codex
In artikel 2.2.3, §2 van de Vlaamse Codex Ruimtelijke Ordening, goedgekeurd bij besluit
van de Vlaamse Regering op 15 mei 2009, wordt opgelegd dat een stedenbouwkundig
voorschrift ten allen tijden sorteert onder een categorie of subcategorie van
gebiedsaanduiding. In de volgende tabel wordt aangegeven in welke categorie elke
bestemmingszone uit voorliggend RUP valt.
|
Categorie Vlaams Gewest
|
Bestemmingszones RUP Havana
|
|
[1°] Wonen, a) woongebied
[1°] Wonen, a) woongebied
[2°] Bedrijvigheid
[1°] Wonen, a) woongebied
[1°] Wonen, a) woongebied
[8°] lijninfrastructuur
[6°] Overig groen
|
Art. 1 zone voor centrumfuncties – P&R (Ce1)
Art. 2 zone voor gemengde functies (Ge)
Art. 3 zone voor detailhandel (De)
Art. 5 zone voor centrumfuncties – kazerne (Ce2)
Art. 6 zone voor centrumfuncties (Ce3)
Art. 8 Zone voor publiek domein (Pu1 tem Pu5)
Art. 9 Zone groen (Gr)
|
7.1.3 Planschade en planbaten
Het overzicht in onderstaande figuur geeft weer welke percelen ten gevolge van de bestemmingswijziging in het kader van voorliggend RUP aanleiding kunnen geven tot planschade, planbaten en/of compensatie conform de richtlijn.
Art. 2.6.1. §1 van de VCRO bepaalt dat de ruimtelijke uitvoeringsplannen erfdienstbaarheden
van openbaar nut kunnen doen ontstaan en eigendomsbeperkingen kunnen inhouden, met inbegrip van bouwverbod.
In de gevallen, vermeld in §2 en §3, kan een bouw of verkavelingsverbod aanleiding geven tot
een beperkte schadevergoeding, planschadevergoeding genaamd.
![i_RUP_11002_214_10017_00001_200159.png [image]](i_RUP_11002_214_10017_00001_200159.png)
![i_RUP_11002_214_10017_00001_200160.png [image]](i_RUP_11002_214_10017_00001_200160.png)
Figuur 85 | planbaten - planschade
7.2 Ruimteboekhouding
|
Bestemmingscategorie gewestplan
|
Oppervlakte
(m²)
|
Bestemmingszone RUP Havanastraat
|
Oppervlakte
(m²)
|
|
[1°] Wonen, a) woongebied
|
|
Zone voor centrumfuncties, totaal
|
61.951 m²
|
|
Ce1
|
Zone voor centrumfuncties – P&R
|
10.575 m²
|
|
Ge
|
Gemengd Ce1/De
|
2061 m²
|
|
Ce2
|
Zone voor centrumfuncties – kazerne
|
32.488 m²
|
|
Ce3
|
Zone voor centrumfuncties
|
11.767 m²
5.060 m²
|
|
|
[2°] Bedrijvigheid
|
|
De
|
Zone voor detailhandel
|
27.527 m²
|
|
[8°] lijninfrastructuur
|
|
Pu
|
|
Zone voor publiek domein, totaal
|
30.466 m²
|
|
Pu1
|
10.367 m²
|
|
Pu2
|
5.335 m²
|
|
Pu3
|
2.512 m²
|
|
Pu4
|
5.955 m²
|
|
Pu5
|
6.297 m²
|
|
|
[6°] Overig groen
|
|
Gr
|
Zone voor groen
|
70.948 m²
|
![i_RUP_11002_214_10017_00001_200161.png [image]](i_RUP_11002_214_10017_00001_200161.png)
Figuur 86 | oppervlaktes per zone
7.3 Rooilijnplannen
Er zijn geen actuele rooilijnplannen van toepassing.
Op onderstaande figuur wordt aangegeven welke rooilijnplannen (en ontwerpen) in het verleden hebben bestaan en (deels) binnen het plangebied vallen, maar niet meer van toepassing zijn.
-
Met gemeenteraadbesluit (jaarnummer GR_00478) op datum van 23/6/2014 werd een rooilijnplan van 1924 voor de ontwikkeling van een tuinwijk midden in het plangebied opgeheven. (Figuur 84)
-
Een ontwerprooilijnplan voor Ekeren werd nooit goedgekeurd.
-
Met gemeenteraadbesluit (jaarnummer GR_00286) op datum van 23/6/2014 werd een rooilijnplan van 1939 (k.b. van 21/2/1939) voor de opening van nieuwe straten te Luchtbal opgeheven.
-
Met gemeenteraadbesluit (jaarnummer GR_00286) op datum van 23/6/2014 werd een rooilijnplan van 1923 (k.b. van 17/11/1923) voor de opening van nieuwe straten te Luchtbal opgeheven.
![i_RUP_11002_214_10017_00001_200162.jpg [image]](i_RUP_11002_214_10017_00001_200162.jpg)
Figuur 87 | rooilijnplannen (en ontwerpen) die in het verleden hebben bestaan
en (deels) binnen het plangebied vallen, maar niet meer van toepassing zijn
![i_RUP_11002_214_10017_00001_200163.png [image]](i_RUP_11002_214_10017_00001_200163.png) ![i_RUP_11002_214_10017_00001_200164.png [image]](i_RUP_11002_214_10017_00001_200164.png)
Figuur 88 | opgeheven rooilijnplan uit 1924 voor een tuinwijk binnen het plangebied
7.4 Wijzigingen rooilijnen en wegenis
De huidige perceelstructuur komt niet overeen met de feitelijke toestand.
![i_RUP_11002_214_10017_00001_200165.jpg [image]](i_RUP_11002_214_10017_00001_200165.jpg) ![i_RUP_11002_214_10017_00001_200166.jpg [image]](i_RUP_11002_214_10017_00001_200166.jpg)
Figuur 89 | perceelstructuur versus feitelijke wegenis
Bij de aanleg van de A12 is er blijkbaar nooit een initiatief geweest om de van oudsher gekadastreerde percelen te herschikken. Bij uitvoering van het RUP Havanastraat en de bebouwing van de ontwikkelingsvelden binnen het RUP zou deze onduidelijke en incorrecte perceelstructuur recht gezet moeten worden.
De ontsluiting van het plangebied (westzijde) in de bocht van de Noorderlaan heeft een publiek karakter (onder andere de toegang tot het huidige recyclagepark), maar is gelegen op privaat terrein.
Bij uitvoering van het RUP Havanastraat en de ontwikkeling van de P&R en de inrichting van het openbaar domein binnen zone Pu1 zal de hoofdontsluiting van het plangebied overgedragen worden aan het openbaar domein.
De wegenis aan de zijde van station Noorderdokken (oostzijde) in het verlengde van de Argentiniëlaan heeft op sommige plannen de naam Vlierveld, op andere plannen de naam Argentiniëlaan. Deze weg is enkel voor bestemmingsverkeer naar de parking van het station Noorderdokken en dienstverkeer van Infrabel dat langs de sporen rijdt, via een tunnel onder de A12 in de richting van Oude Landen.
Het is wenselijk dat deze ontdubbelde en overgedimensioneerde wegenis plaats maakt voor de inrichting van kwalitatieve groene ruimte, een aangepaste parking, een nieuwe fietsenstalling zodat de fietsostrade duidelijk, rechtlijnig en herkenbaar doorheen het plangebied kan ingericht worden en een veel kleinere weg voor dienstverkeer van Infrabel, eventueel gecombineerd met de fietsostrade.
Bestaande rooilijnen worden niet verlegd, rooilijnplannen worden niet gewijzigd, maar bij inrichting van nieuw publiek domein zal bij elke bouwaanvraag aangegeven worden welke zones worden overgedragen aan het publiek domein.
7.5 Stedenbouwkundige Ontwikkelingskosten Havana
Het ontwikkelen van projecten in een stad brengt tal van voordelen met zich mee. Naargelang het programma komen er woningen, werkgelegenheid, en andere voorzieningen bij.
Bouwen van nieuwe projecten creëert ook maatschappelijke noden op vlak van voorzieningen zoals onderwijs, open ruimte, welzijn, zorg en mobiliteit. Deze voorzieningen dragen immers bij tot de leefbaarheid van de stad.
Uit artikel 1.1.4 van de Vlaamse Codex Ruimtelijke Ordening (hierna: “VCRO”) vloeit voort dat onder meer bij de vergunningsverlening van stadsontwikkelingsprojecten rekening moet worden gehouden met de ruimtelijke draagkracht, de gevolgen voor het leefmilieu en de culturele, economische, esthetische en sociale gevolgen. Op deze manier wordt gestreefd naar ruimtelijke kwaliteit.
Rekening houden met deze factoren is een maatregel van goede ruimtelijke ordening. Het is dan ook logisch dat ook privéprojecten bijdragen aan de maatschappelijke noden die ze creëren. Het ‘instrument stedenbouwkundige ontwikkelingskost’ regelt de bijdrage van privéprojecten aan de maatschappelijke noden.
Concreet voor de Havanasite wordt gesteld dat er binnen de voorschriften voor de zones voor centrumfuncties (Ce1, Ce2 en Ce3) voldoende ruimte is voor culturele, recreatieve en sociale activiteiten en voor de ontwikkeling ervan wordt gerekend op privé-initiatieven en stedelijke diensten. De ontwikkelingsvelden zijn zo compact mogelijk georganiseerd in het westen van het gebied zodat ten oosten voldoende open ruimte blijft voor groen en recreatie. Het creëren van een multimodaal knooppunt met nieuwe eindhaltes voor openbaar vervoer zijn een meerwaarde voor de omliggende woongebieden. De connectie van deze woongebieden met de voorzieningen in het centrum van de stad wordt versterkt.
Blijft de aanleg van een kwalitatief openbaar domein rondom de ontwikkelingsvelden over als maatschappelijke nood bij de herontwikkeling van de ganse site. Een samenhangend en kwalitatief openbaar domein garandeert het comfort en de veiligheid van bezoekers en gebruikers van de site.
De aanleg van openbaar domein rondom de nieuwe ontwikkelingsvelden is essentieel voor het goed functioneren van het gebied als connector tussen verschillende gebieden (groengebieden, woongebieden) en tussen verschillende verkeersmodi (auto, tram, bus en fiets); als toegangspoort (tot de stad, tot de wijk Luchtbal, maar ook tot het natuurgebied Oude Landen, ) en als bestemming (grootschalige detailhandel, autodeelplaats, diverse stadsdiensten en stedelijke functies, voorzieningen en recreatie).
De kosten voor de aanleg van openbaar domein kan bij wijze van stedenbouwkundige ontwikkelingskost worden meegenomen bij de verkoopsovereeenkomsten van de nieuwe ontwikkelingsvelden.
Zo engageren de ondertekenaars (projectontwikkelaars) zich om in de projecten met een zekere grootte een bijdrage op te nemen, namelijk financiering/aanleg van het openbaar domein dewelke kosteloos wordt overdragen aan de stad.
De lasten zoals de aanleg van openbaar domein worden in de overeenkomst nader uitgewerkt. Als er een vergunning wordt afgeleverd is het best dat de overeenkomst ermee verankerd wordt als stedenbouwkundige last. De stedenbouwkundige lasten opgenomen in dergelijke overeenkomst met de projectontwikkelaar/verkavelaar zijn echter afsplitsbaar van de vergunning en zullen dus niet als bouwovertreding kunnen beschouwd worden bij niet-uitvoering. Na het afsluiten van de overeenkomst is de projectontwikkelaar/verkavelaar echter gebonden door de overeenkomst zelf.
Omdat de lasten niet afdwingbaar zijn in de stedenbouwkundige vergunning of verkavelingsvergunning behalve met bestuursdwang ofwel mits financiële waarborgen, moet er eerst een overeenkomst zijn voor de vergunning.
Het opmaken van de overeenkomst kan op basis van artikelen 2.3.2., § 2, 2e lid, 4.3.1. § 2 en vooral 4.2.20 VCRO. Ook artikel 2 §2 van de Bouwcode kan dienen als wettelijke basis.
Het is aangewezen om bij verkoop van gronden/ontwikkelingsvelden binnen RUP Havana volgende stedenbouwkundige last voor aanleg openbaar domein op te leggen:
Pu1: ontwikkelaar zone Ce1
Pu2: ontwikkelaar zone De
Pu3: ontwikkelaar zone De
Pu4: de stad
Pu5: behoort reeds tot openbaar domein en bouwaanvraag heraanleg wegenis en openbaarvervoershaltes goedgekeurd. Aanleg wordt voorzien door BAM.
8 TIMING
8.1 Timing planproces
Volgend voorstel van tijdsplanning geeft de timing voor de opmaak van het RUP weer.
|
Stap 1
|
Proces- en richtnota
|
|
Goedkeuring college
|
december 2014
|
|
toelichting GECORO
|
februari 2015
|
|
Toelichting district
|
februari 2015
|
|
|
Stap 2
|
voorontwerp RUP
|
|
Opmaak planMER
|
mei 2015
|
|
Opmaak voorontwerp RUP
|
november 2015
|
|
Goedkeuring college
|
november 2015
|
|
Advies GECORO
|
december
|
|
Advies district
|
december 2015
|
|
Plenaire vergadering
|
januari 2016
|
|
|
Stap 3
|
Ontwerp RUP
|
|
Opmaak ontwerp RUP
|
februari 2016
|
|
Goedkeuring college ontwerp
|
26 februari 2016
|
|
Voorlopige vaststelling GR GRgemeenteraad
|
21 maart 2016
|
|
Openbaar onderzoek
|
april-mei 2016
|
|
Advies gecoro
|
juli 2016
|
|
|
Stap 4
|
RUP aanvaarding
|
|
Goedkeuring college
|
juli 2016
|
|
Goedkeuring gemeenteraad
|
september 2016
|
|
|
Stap 5
|
schorsingsperiode
|
deputatie en Vlaamse regering
|
oktober 2016
|
Data in vet-cursief zijn ramingen.
|